Toponímia LX - Guia de Apoio à gestão das placas toponímicas da cidade de Lisboa

Page 1

DE APOIO À GESTÃO DO PARQUE DE PLACAS TOPONÍMICAS DA CIDADE DE LISBOA

GUIA
António
Adriano | Miguel Carrelo CML | DMC fevereiro 2014
2

INTRODUÇÃO

ENQUADRAMENTO LEGAL

DA ATRIBUIÇÃO DE TOPÓNIMOS À INSTALAÇÃO DE PLACAS TOPONÍMICAS

ENQUADRAMENTO HISTÓRICO

TIPOLOGIAS DE PLACAS TOPONÍMICAS DE LISBOA

CRITÉRIOS DE LOCALIZAÇÃO E IMPLANTAÇÃO DAS PLACAS TOPONÍMICAS

PLACAS TOPONÍMICAS COM SUPORTE PRÓPRIO

PLACAS TOPONÍMICAS DE FACHADA

SUGESTÕES / RECOMENDAÇÕES

PROPOSTAS DE ÂMBITO GERAL

TIPOLOGIAS DE PLACAS TOPONÍMICAS A ADOTAR EM CASO DE SUBSTITUIÇÃO

TIPOLOGIAS DE PLACAS TOPONÍMICAS A ADOTAR EM NOVOS ARRUAMENTOS E EM ESPAÇOS REQUALIFICADOS

ÍNDICE 1.
4 2.
6 3.
8 4.
10 5.
13 6.
15 6.1.
16 6.2.
16 7.
17 7.1
17 7.2
17 7.3
18 3

O guia que agora se apresenta baseia se num estudo realizado em 2012 CONTRIBUTOS PARA O ESTUDO DAS PLACAS TOPONÍMICAS DE LISBOA | RELATÓRIO PRELIMINAR da autoria de António Adriano (DMC / DPC / Núcleo de Toponímia), Inês Metelo (DMAU / DAEP), Isabel Cristina C. M. A. Santos (DMPRG / DIGC / DIUG), José Guerra Monteiro (DMPO / DCMIVP), e Miguel Carrelo (DMC / DPC).

Incorpora um conjunto de alterações e adaptações julgadas necessárias, tendo em vista a resposta a dar a um novo desafio entretanto definido: Produzir um documento que possa servir de referência e nortear e a gestão do parque de placas toponímicas, competência transferida para as Juntas de Freguesia no âmbito do processo de descentralização e reformulação administrativa/territorial em curso em Lisboa.

O objeto do presente guia não é a toponímia, enquanto estudo linguístico e histórico da origem dos nomes de lugar (Dicionário web), mas sim a forma como a toponímia, ou melhor, os topónimos, se tornam visíveis e identificáveis em contexto urbano, e neste caso, em Lisboa. Versa, portanto, o estudo do suporte físico dos topónimos as placas toponímicas e a sua análise, nas várias vertentes que as caracterizam e distinguem, enquanto elemento integrante do espaço público.

Este trabalho traduz um ponto de vista e uma opinião crítica sobre alguns dos problemas com que esta área se debate e fornece pistas sobre possíveis caminhos a seguir na sua gestão. Dá especial atenção às áreas da Cidade onde se encontram certos tipos de placas toponímicas que, pela sua especificidade, reforçam a identidade dos lugares.

Considerando a natureza do objetivo traçado, concebeu se um trabalho de cariz eminentemente prático, dividido em duas partes:

A primeira parte, e corpo principal do guia, traça uma visão geral sobre a temática da toponímia, incidindo em pontos principais:

Enquadramento legal

Da atribuição de topónimos à instalação de placas toponímicas Faseamento do processo e respetivas competências

Enquadramento histórico

Tipologias de placas toponímicas de Lisboa

Critérios de localização e implantação das placas toponímicas

Sugestões / Recomendações

Numa segunda parte, que consta dos anexos, faz se a caraterização mais pormenorizada das principais tipologias de placas toponímicas existentes em Lisboa e sua distribuição geográfica, tomando se, ainda, a Baixa Pombalina como caso de estudo, que se pretende que possa funcionar como exemplo metodológico, para outras zonas da Cidade.

1. INTRODUÇÃO
4

Cada topónimo, cada nome de lugar, terá a sua origem, a sua razão de ser, mesmo que seja uma razão que pareça ou apareça sem razão. Gentes e lugares, porque sem gente não há lugares, mesmo que os haja. Os lugares precisam de um nome e de quem os nomeie, precisam de gente. Mas as gentes também precisam de um lugar, para ser e para estar…”1

Nestes casos, mais do que noutros, há todo o interesse em promover o conhecimento alargado das caraterísticas originais e singularidade das várias tipologias de placas toponímicas, enquanto elementos patrimoniais associados à história dos lugares.

http://deaveiroeportugal.blogspot.pt/

1
5

LEGAL

A toponímia rege se, no concelho de Lisboa, pelas seguintes normas legais:

LEI N.º 75/2013, DE 12 DE SETEMBRO que refere: Compete à Câmara Municipal estabelecer a denominação das ruas e praças do município, após parecer da correspondente Junta de Freguesia (artigo 33.º n.º 1 ss).

LEI N.º 56/2012, DE 8 DE NOVEMBRO que aprovou a reorganização administrativa da Cidade e a DELIBERAÇÃO N.º 6/AML/2014, que determinaram a transferência de um conjunto de competências para as Juntas de Freguesia, entre as quais a competência para assegurar a aquisição, colocação e manutenção das placas toponímicas (artigo 12.º b) da Lei 56/2012).

A composição, competências e princípios orientadores da Comissão Municipal de Toponímia resultarão da nova Deliberação.

POSTURA MUNICIPAL SOBRE TOPONÍMIA E NUMERAÇÃO DE POLÍCIA, EDITAL N.º 46/90, versão em vigor (com as alterações introduzidas pelas deliberações n.º 300/CM/2002 e 106/CM/2003)

2. ENQUADRAMENTO
6

Tabela Anexa Postura Municipal sobre Toponímia e Numeração de Polícia

Tipo de Letreiros

I Letreiros pintados directamente nas fachadas dos Prédios, com letras a branco sobre fundo preto ou em azulejo clássico.

II Placa da cantaria de lioz lapidada, com letras cavadas por igual e pintadas a preto fosco.

III Placa de cantaria de lioz, com letras tipo romano, cavadas e pintadas a verde bronze. Aos cantos, para fixação, levarão pregos metálicos bronzeados sextavados, (tipo diamante).

IV Placas de cantaria de lioz, assentes sobre pilar, com letras cavadas por igual e pintadas a preto fosco.

V Placas em azulejo, com bordadura a rectângulos esquartelados a duas cores (preto e branco) encimados pelo brasão da Cidade.

Categoria das Vias Públicas Exemplos

Arruamentos de bairros típicos Alfama e Castelo da Capital

Arruamentos e praças principais Avenidas, Alamedas e outras artérias importantes

Arruamentos da Baixa Rua Augusta, Rua da Prata, Pombalina Rua Áurea entre outras.

Arruamentos onde não existam Bairro do Restelo Prédios de gaveto nos pontos de Acesso

Arruamentos novos ou cuja Toponímia tenha sofrido alteração

7

À INSTALAÇÃO DE PLACAS TOPONÍMICAS

O processo de atribuição de um topónimo oficial inicia se com a identificação de um arruamento/espaço urbano que de tal careça. Esta identificação é da responsabilidade do município, sem prejuízo de poder ser feito por outras entidades ou particulares. Na sua generalidade estas vias são situadas em novos loteamentos e/ou urbanizações, que ostentam uma designação provisória (ex: Rua B Projetada à Avª das Forças Armadas, loteamento da Avª das Forças Armadas).

Paralelamente são rececionadas nos serviços camarários propostas para atribuição de topónimos, geralmente associadas a personalidades. Estas propostas podem ter origem na Câmara Municipal de Lisboa, Assembleia Municipal, Juntas de Freguesia, outras entidades e particulares.

Cada vez que um novo executivo municipal toma posse, é nomeada uma Comissão Municipal de Toponímia (CMT). A CMT é o órgão consultivo que analisa e propõe à CML a atribuição de topónimos a novos arruamentos. É composta por representantes de vários serviços municipais e de outras entidades externas. O presidente da CMT é, por norma, o Vereador da Cultura.

A relação dos arruamentos que carecem de topónimos e as respetivas propostas são levados à consideração da CMT que, após análise, propõe à CML a atribuição de um topónimo a um determinado arruamento (ex: atribuição do topónimo “Rua Mário Cesariny/Pintor e Poeta/1923 2006” ao arruamento com a designação provisória “Rua B Projectada à Avª das Forças Armadas, loteamento da Avª das Forças Armadas”).

Seguidamente, é solicitado parecer (não vinculativo) sobre a atribuição do topónimo, à Junta de Freguesia da área em questão.

A proposta é conduzida a Sessão de Câmara e, após aprovação, segue se o procedimento administrativo, que culminará com a oficialização do topónimo em edital e a sua publicação em Boletim Municipal.

É dado conhecimento do novo edital toponímico a várias entidades, entre as quais a Junta de Freguesia respetiva, a PSP, os CTT, Conservatórias, Serviços de Finanças e outros serviços.

Com a recente transferência de competências para as Juntas de Freguesia, passa a ser sua incumbência identificar a localização das placas toponímicas no arruamento, bem como a sua aquisição, instalação e manutenção.

Para finalizar o processo, as Junta de Freguesia deve m comunicar à CML a instalação/localização de novas placas toponímicas, com vista ao seu registo e inventariação.

3. DA ATRIBUIÇÃO DE TOPÓNIMOS
8

IDENTIFICAÇÃO DE ARRUAMENTOS SEM TOPONÍMIA OFICIAL (CML/JF)

PROPOSTA DE ATRIBUIÇÃO DE TOPÓNIMO (CML/JF/AM/Particulares/Associações/outros)

APRECIAÇÃO PELA COMISSÃO MUNICIPAL DE TOPONÍMIA (CMT) ( CMT /CML)

PARECER DA JUNTA DE FREGUESIA (CONSULTIVO) (JF)

APROVAÇÃO EM SESSÃO DE CÂMARA (CML)

PUBLICAÇÃO DE EDITAL DO TOPÓNIMO EM BOLETIM MUNICIPAL E COMUNICAÇÃO DO EDITAL TOPONÍMICO A VÁRIAS ENTIDADES (CML)

IDENTIFICAÇÃO DOS LOCAIS DE INSTALAÇÃO DAS PLACAS TOPONÍMICAS (JF)

IDENTIFICAÇÃO DAS NECESSIDADES DE AQUISIÇÃO / FORNECIMENTO / COLOCAÇÃO (JF) INSTALAÇÃO (JF)

INFORMAÇÃO À CML SOBRE A LOCALIZAÇÃO DAS PLACAS INSTALADAS (Para registo/inventário) (JF)

MONITORIZAÇÃO / MANUTENÇÃO DAS PLACAS EXISTENTES (JF)

FASEAMENTO PROCESSUAL (ESQUEMA)
9

A EVOLUÇÃO DAS PLACAS TOPONÍMICAS NA CIDADE DE LISBOA2

Ao longo dos séculos Lisboa foi colecionando topónimos de raiz popular, transmitidos por via oral de geração em geração, cuja primeira enumeração por freguesias se pode encontrar no seiscentista «Sumário» de Cristóvão Rodrigues de Oliveira (1554), mas só no tempo de Pombal, em 5 de Novembro de 1760 saiu a primeira Portaria que atribuiu oficialmente denominações toponímicas à baixa lisboeta.

O primeiro episódio da passagem das denominações a placas no próprio local é também pombalino, de acordo com a Dr.ª Irisalva Moita3 : «Outra novidade introduzida no Consulado pombalino, também retomada e generalizada pela reforma de 1802, incentivada pelos serviços do Correio da Posta diz respeito à inscrição de letreiros com o nome das ruas nas principais rua da Baixa, tendo se também iniciado, então, a remuneração das habitações». As Dr.ªs Salete Salvado e Célia Batalha, precisam mais esta ideia afirmando que «À execução do conteúdo desta portaria corresponde, curiosamente, o primeiro “letreiro” toponímico, de tipo erudito, gravado numa das pedras de dois cunhais de cada rua, sobre campo rebaixado e moldura de cantos boleados reentrantes. Irá inspirar um dos modelos de placas mais usado no século XX»4

Só a partir do século XIX, o uso de placas toponímicas se começou a generalizar em Lisboa. Conforme referem também as Dr.ªs Salete Salvado e Célia Batalha5 , «A necessidade de organizar um serviço coerente de correios consagrado na legislação entre 1800 e 1802 e a paralela organização de polícia obrigou a que se estabelecessem e fizessem cumprir regras claras de identificação de casas e de ruas, mediante numeração de polícia e a pintura, a inscultura ou aposição de legendas de identificação toponímica» precisando que «A competência de oficialização do registo do nome da rua no próprio local é atribuída pelo rei à Superintendência Geral dos Correios, em 9 de Dezembro de 1801, quando lhe ordenou a colocação “na esquina de cada rua da cidade de Lisboa um letreiro em maiúsculas, de maneira durável e económica que indique o nome da rua em que se achar colocado”.»6

O Regulamento de 1801 nunca chegou a entrar em vigor mas tal já não sucedeu com o novo de 1817.

Já no último quartel do séc. XIX, por exemplo, na sessão de câmara de 5 de janeiro de 1874 é mencionada uma intimação da Câmara para retirar placas apostas em prédios que não respeitavam a toponímia oficial e, é possível descortinar nas atas das reuniões de câmara, para além dos pedidos e propostas de pessoas singulares e coletivas recebidos pela Câmara para a denominação das ruas, que a edilidade promovia também as consultas necessárias para a execução de dísticos de numeração e toponímicos, usando como material o ferro esmaltado.

2 Paula Machado

3 MOITA, Irisalva, «A Toponímia e a Cidade Pombalina», in 1ªs Jornadas de Toponímia de Lisboa, Lisboa: CML, 1994

4 SALVADO, Salete e BATALHA, Célia, «Placas Toponímicas Génese e Evolução Ensaio» in 3ªs Jornadas de Toponímia de Lisboa, Lisboa: CML, 2000

5

SALVADO, Salete e BATALHA, Célia, «Toponímia: Notas para o estudo do seu suporte legal» in II Jornadas de Toponímia de Lisboa, Lisboa: CML, 1997

6 SALVADO, Salete e BATALHA, Célia, «Placas Toponímicas Génese e Evolução Ensaio» in 3ªs Jornadas de Toponímia de Lisboa, Lisboa: CML, 2000

4. ENQUADRAMENTO HISTÓRICO
10

Recorde se que na época as denominações eram oficializadas pelo Governo Civil de Lisboa era sua competência desde o Código Administrativo de Costa Cabral de 1842 e só com a publicação do Código Administrativo de 18767 foi conferida competência às câmaras municipais para determinarem a denominação das ruas e lugares públicos: «e só a partir dessa data, os registos sobre toponímia e numeração de polícia, que existiam no Governo Civil, foram transferidos para a Câmara, infelizmente muito incompletos (…)» , de acordo com o Sr. Carlos Morato8. O Sr. Morato refere ainda que «No que respeita propriamente à natureza dos letreiros usados na identificação dos arruamentos, verifica se que têm sofrido sucessivas alterações desde 1801, data em que apareceram os primeiros letreiros nas esquinas, nesse tempo pintados directamente nas fachadas dos prédios, tal como hoje sucede nos bairros mais característicos de Lisboa, como Alfama, Mouraria e Castelo.»9

Segundo a Dr.ª Salete Salvado e a Dr.ª Célia Batalha10 , a partir da década de 30 do século XX, foi largamente difundida em Lisboa a placa de azulejo de fundo branco e letras e filete azul, particularmente nas áreas de Campo de Ourique e Bairro Alto, como hoje ainda se pode encontrar.

Do ponto de vista cronológico, podemos sintetizar o tipo de placas toponímicas usadas em Lisboa da seguinte forma:

a) Um primeiro episódio no tempo de Pombal, com placas gravadas na pedra dos cunhais nos arruamentos da Baixa Pombalina, que corresponderiam grosso modo à atual placa tipo III (de cantaria de lioz, com letras tipo romano, cavadas e pintadas a verde bronze, fixadas com pregos metálicos bronzeados).

b) A partir de 1801, letreiros diretamente pintados nas fachadas dos prédios a que corresponderiam à atual placa tipo I (com letras a branco sobre fundo preto).

c) No último quartel do séc. XIX, surgiram as placas de ferro esmaltado

d) A partir dos anos 30 do século XX, difusão da placa de azulejo de fundo branco e letras e filete azul em várias zonas da cidade como Campo de Ourique ou Bairro Alto que aumentará nos anos 50, para os bairros sociais.

7 Artº 103º. Nº 28

MORATO, Carlos, «A Toponímia na Estrutura Orgânica da CML», in 1ªs Jornadas de Toponímia de Lisboa, Lisboa: CML, 1994

MORATO, Carlos, «A Toponímia na Estrutura Orgânica da CML», in 1ªs Jornadas de Toponímia de Lisboa, Lisboa: CML, 1994

SALVADO, Salete e BATALHA, Célia, «Placas Toponímicas Génese e Evolução Ensaio» in 3ªs Jornadas de Toponímia de Lisboa, Lisboa: CML, 2000

8
9
10
11

e) Após a criação da Comissão Municipal de Toponímia, em 1943, pode constatar se nas atas das suas reuniões a coexistência de placas de cantaria e de azulejo em Lisboa, sendo as de cantaria as que correspondem à atual placa tipo II (placa de cantaria de lioz bujardada, com letras cavadas por igual e pintadas a preto fosco) e, também a placa IV (placa de cantaria de lioz bujardada, com letras cavadas por igual e pintadas a preto fosco, assentes sobre pilar) nos casos em que o urbanismo do local obriga à colocação em espaço aberto.

f) Na década de 80, surge pontualmente na cidade a designada placa tipo V, de azulejo, com bordadura e encimado pelo brasão da CML abreviado

g) No âmbito da Expo ‘98 e da urbanização da sua área de influência, foram instaladas placas toponímicas de uma nova tipologia (oficializada por Edital, em 16/09/2009), em alumínio, de fundo azul com letras brancas, designada por tipo Expo

h) Recentemente constatou se estar em curso a instalação de uma nova tipologia de placas toponímicas na Alta de Lisboa, com caraterísticas semelhantes às do Parque das Nações (sistema de placas + poste de alumínio). A novidade desta situação justifica a não análise desta tipologia no presente estudo.

12

PLACAS TOPONÍMICAS DE LISBOA

A informação que suporta este guião foi, em grande parte, extraída da base de dados do Núcleo da Toponímia (Departamento de Património Cultural da CML) e decorre de um levantamento feito de raiz em 2001 e 2002, que incidiu sobre todos os arruamentos da cidade, registando as placas toponímicas existentes.

É, pois, natural, que, passados mais de 10 anos sobre a realização dessa inventariação, haja um desfasamento entre a realidade espelhada neste estudo e a situação atual do parque de placas toponímicas de Lisboa, embora seja de prever que as diferenças maiores se façam sentir nas zonas da Cidade que sofreram alterações urbanísticas mais profundas, num passado recente (por ex. Alta de Lisboa), e não tanto nas áreas consolidadas.

Existem em Lisboa, cerca de 11.500 placas toponímicas. De modo a facilitar a sua identificação, é costume agrupá las por tipologias, de acordo com algumas caraterísticas principais.

Como adiante se verá com maior detalhe, um dos aspetos que mais contribui para a diferenciação entre estas tipologias está relacionado com o design e as caraterísticas formais e construtivas das placas toponímicas, designadamente, o tipo de suporte (forma de fixação), os materiais usados, as dimensões (formato). Outro aspeto que diferencia as placas toponímicas prende se com a fonte tipográfica utilizada na transcrição dos topónimos.

São sete as tipologias analisadas neste guião, designadamente: Tipo I, tipo II, tipo III, tipo IV, tipo V, tipo Azulejo e tipo Expo.

Tipo I

Tipo II

Tipo III Tipo IV

5. TIPOLOGIAS DE
*
Tipo V Tipo Azulejo Tipo Expo
13

Para além da tipologia em utilização na Alta de Lisboa (já mencionada anteriormente), refere se, ainda, a existência de outros tipos de placas toponímicas na Cidade, que, devido ao seu significado episódico, não foram contempladas nesta análise.

Igualmente importantes, são os parâmetros utilizados para caraterizar quantitativamente o fenómeno. Neste âmbito, descrevem se: número de ocorrências de cada tipologia e o respetivo nível de representatividade , assim como o número médio de placas por arruamento.

A distribuição geográfica das placas toponím icas é outra vertente fundamental para compreensã o deste tema, na medida em que ajuda a contextualizar urbanística e arq uitetonicamente a ocorrência das várias tipologias, o que se revela fundamental para a determinação do seu contributo par a iden tidade dos lugares.

Nos anexos deste guia descrevem se mais p ormenorizadamente estas sete tipologia de placas to ponímicas e as suas principais caraterísticas.

14

DAS PLACAS TOPONÍMICAS

Conforme referido anteriormente, o EDITAL N.º 46/90 é muito vago no que concerne às regras e critérios definidores da localização das placas toponímicas. Apesar desta omissão normativa, a implantação das placas toponímicas tem obedecido a um conjunto de princípios que resultam do bom senso, da experiência e do conhecimento acumulados ao longo do tempo. Se articularmos este conjunto de princípios com o disposto no EDITAL N.° 101/91 Regulamento Geral de Mobiliário Urbano e Ocupação da Via Pública (versão em vigor, com as alterações efetuadas pelo Edital n.º 35/92), podemos sintetiza as principais regras a seguir neste âmbito.

Refere o EDITAL N.º 46/90:

Local de afixação

As placas devem ser afixadas, pelo menos, nas esquinas dos arruamentos respetivos e do lado esquerdo de quem neles entre pelos arruamentos de acesso e nos entroncamentos, na parede fronteira ao arruamento que entronca

Normas incluídas no EDITAL N.° 101/91 Regulamento Geral de Mobiliário Urbano e Ocupação da Via Pública Localização

A implantação de elementos de mobiliário urbano será efetuada em locais que não impeçam, nem dificultem a visibilidade de sinais de trânsito, ou o correto uso de outros elementos já existentes, nem afetem as instalações de subsolo ou a acessibilidade aos seus órgãos de manobra.

Limites

1 Não poderá ser instalado mobiliário urbano em passeios, placas centrais ou espaços públicos em geral, de largura igual ou inferior a 3 m, ou de largura superior, quando uma vez instalado aquele, não fique um espaço livre para circulação de pelo menos 2m.

2 Excetuam se da proibição anterior os elementos cuja instalação num determinado ponto seja exigido para satisfação, pelos concessionários, de necessidades públicas coletivas, bem como as ocupações aéreas de espaços públicos.

3 A título excecional poderão ser autorizadas ocupações de via pública que não respeitem o n.º 1, do artigo anterior quando se trate de vias com tráfego pedonal reduzido, e cuja localização obtenha parecer técnico e da junta de freguesia expressamente favorável, ou esteja em causa a satisfação do interesse público.

Distâncias

1 Os elementos de mobiliário urbano situar se ão de modo que a sua face maior seja paralela ao lancil do passeio e afastada do mesmo pelo menos 0,50 m.

6. CRITÉRIOS DE LOCALIZAÇÃO E IMPLANTAÇÃO
15

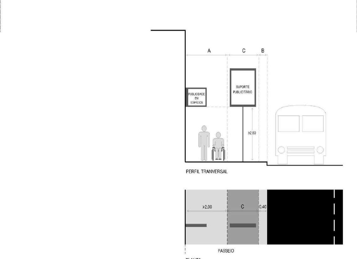
COM SUPORTE PRÓPRIO

A instalação de placas toponímicas com suporte próprio, deve ser feita de acordo com o estipulado no Regulamento de Ocupação e Utilização do Espaço Público (ver esquema ao lado), deixando um corredor livre para circulação pedonal não inferior a 2,00m e uma distância mínima de 0,40m ao lancil, (para o caso, em vez de suporte publicitário, deve considera se placa toponímica com suporte próprio).

6.2 PLACAS TOPONÍMICAS DE FACHADA

Distância da placa ao solo

Por norma, as placas toponímicas não são colocadas a uma altura inferior a 3m. Se não houver impedimentos, deverão ser instaladas a 3,50m do pavimento. Havendo constrangimentos, essa altura poderá ir até aos 5,50m. Distância da placa ao cunhal do edifício

O afastamento das placas em relação ao cunhal dos edifícios costuma ser de, aproximadamente, 0,50 m, podendo variar, em função da existência de elementos estruturais ou ornamentais.

6.1. PLACAS TOPONÍMICAS
16

7.1 PROPOSTAS DE ÂMBITO GERAL

O que este guião apresenta é uma análise algo superficial sobre o universo das placas toponímicas existentes em Lisboa e um esboço de intenções sobre o que pode ser feito para otimizar a sua gestão. Mas, para se poder intervir neste campo, de forma consciente e objetiva, haverá que melhorar a perceção da realidade, a um nível mais pormenorizado, nas diversas unidades urbanísticas homogéneas englobadas em cada Freguesia.

Para isso, será necessário aumentar a escala de análise, o que pressupõe a realização de um levantamento cartográfico e fotográfico de todas as placas, nos bairros onde ocorrem, e identificar as suas caraterísticas quantitativas (nº de ocorrências por tipologia e por via) e qualitativas (diversidade de tipologias, estado de conservação, etc). Depois de se ter uma noção exata da situação existente, haverá que decidir sobre o que deve ser feito para conferir uma lógica formal e funcional a todo o sistema toponímico e quais as medidas a adotar para promover o reforço da sua identidade e coerência, o que deve incluir:

Adopção de medidas que concorram para a salvaguarda, valorização e recuperação das placas toponímicas com interesse identitário, designadamente, dos tipos Azulejo, I e III.

Prosseguir com a utilização das placas toponímicas dos tipos II e IV, em situações urbanas indiferenciadas ou de continuidade. Em relação às placas do tipo IV, pode justificar se a realização de um projeto para um novo pilar (de betão pré fabricado?), que substitua o atualmente utilizado como suporte pelas placas do tipo IV (feito em granito), e que permita uma diminuição substancial de custos.

Admitir o surgimento de novas tipologias de placas toponímicas, em espaços de escala diversa e desde que dotados de homogeneidade urbanística (bairro, praça ou rua), sejam eles espaços novos ou espaços reabilitados.

Se, por um lado, consideramos as placas toponímicas como um elemento urbano com interesse para a identidade dos lugares e propomos a sua preservação, porque não encarar, por outro lado, a hipótese de viabilizar a produção de tipologias inovadoras, diferentes dos modelos tradicionais, como um contributo para a afirmação da identidade de novos lugares (ou de lugares reconvertidos)?

7.2 TIPOLOGIAS DE PLACAS TOPONÍMICAS A ADOTAR EM CASO DE SUBSTITUIÇÃO

Nos bairros onde predominam as tipologias I, III e Azulejo, sempre que se verifique a necessidade de substituição de placas, recomenda se que seja mantida a tipologia original, pois são zonas urbanisticamente homogéneas, onde a imagem das placas toponímicas é entendida como um fator que contribui para a identidade local.

Utilizar as placas toponímicas dos tipos II e IV, onde elas já existam, em situações indiferenciadas ou de continuidade, desde que não seja numa área de influência de placas com interesse especial, caso em que se deve optar pela tipologia específica da zona, como é o caso específico da Baixa Pombalina, para o qual se recomenda a substituição das 121 placas do tipo II existentes, por outras da tipologia original (tipo III).

7. SUGESTÕES / RECOMENDAÇÕES
17

TIPOLOGIAS DE PLACAS TOPONÍMICAS A ADOTAR EM NOVOS ARRUAMENTOS E EM ESPAÇOS REQUALIFICADOS

Há três abordagens possíveis quanto à atitude a tomar quando nos deparamos com a necessidade de instalar placas toponímicas em novos arruamentos ou em espaços requalificados:

Uma abordagem possível sugere que se dê continuidade às tipologias que são mais utilizadas atualmente, placas dos tipos II e IV. Neste último caso e conforme referido anteriormente, conviria desenhar um novo suporte (pilar), em betão pré fabricado e construído em série, que possa constituir uma alternativa menos onerosa ao executado em granito.

Defende se que esta opção seja tomada sempre que estejamos em presença de espaços que funcionem como prolongamento de ruas existentes ou que tenham caraterísticas urbanísticas e arquitetónicas que não se distingam da envolvente. Fará sentido que esta hipótese seja aplicada em intervenções de menor escala e/ou que não incluam algum tipo de peculiaridade, que possa justificar um tratamento especial e diferenciado.

Quando, pelo contrário, nos confrontamos com espaços resultantes de operações de planeamento urbano ou de requalificação, com alguma escala e uma imagem arquitetónica própria, a atitude certa pode passar pela adoção de placas toponímicas do tipo Expo (ou semelhante), atendendo às vantagens inerentes a este sistema.

Embora o suporte (poste) tenha um valor relativamente elevado, o seu design e caraterísticas funcionais permitem incorporar uma série relativamente grande de placas toponímicas e outras funcionalidades, o que, do ponto de vista da racionalização da ocupação do espaço público, constitui uma mais valia.

Insiste se na ideia da escala, como fator justificativo para uma opção desta natureza. Não faz sentido recorrer a este tipo de equipamento para situações pontuais e com diminuta área de influência, pois iria funcionar como um elemento descontextualizado e a toponímia deve obedecer a uma lógica coerente e integrada.

Uma terceira hipótese, mais arrojada, admite a introdução de placas toponímicas com design inovador. Se a toponímia serve para referenciar os lugares através de uma designação alusiva à sua origem ou a um qualquer episódio da sua história, ou caraterística distintiva, porque não utilizar as placas toponímicas como elementos que reforçam a identidade desses lugares através de uma imagem ou grafismo originais?

Para que esta hipótese possa ser implementada, haverá que definir previamente um programa que inclua um conjunto de normas orientadoras (formais e funcionais), destinadas a conferir coerência e consistência aos projetos.

7.3
18

Turn static files into dynamic content formats.

Create a flipbook
Issuu converts static files into: digital portfolios, online yearbooks, online catalogs, digital photo albums and more. Sign up and create your flipbook.
Toponímia LX - Guia de Apoio à gestão das placas toponímicas da cidade de Lisboa by Câmara Municipal de Lisboa - Issuu