Calvin Lee Portfolio: Professional Projects (2019–2024)

Page 1


Portfolio . Professional Projects

Calvin Lee

Location: Taipei, Taiwan

Email: calvinlee6806@gmail.com

Contact: +886 988 343 932

Date of Birth: 11/25/1994

Gender: Male

Nationality: Taiwanese, American Linkedin: www.linkedin.com/in/calvinlee6806

ACHIEVEMENTS

Advanced Developers Association Scholarship – Awarded for outstanding thesis design project

Honorable Mention – Creative Concrete Application Competition (Team)

Honorable Mention – Corning Innovative Application Competition (Team)

SKILLS

Design Skills

Revit, CAD, Rhinoceros, Grasshopper, Rhino.Inside, Enscape, Lumion, Adobe Suite

Language Skills

Chinese (Native), English (Proficient) - IELTS 7.5 (L8.0/ R8.5/ W6.5/ S7.0)

EXPERIENCE

Y2-Atelier

Architectural Designer (Part-time)

+ Developed competition schemes and 3D models for rendering presentations.

+ Created and finalized concept diagrams for competition boards.

Bio-architecture Formosana (BaF Architects)

Architectural Designer

+ Participated in competition, Urban Review, SD, DD phases across diverse projects.

+ Utilized Rhino and Revit as primary modeling platforms for all phases, including competitions.

+ CPC Green Tech Research Building (MK, PD, SD, UR, DD) Office, R&D / 88,000 m2 / 2021-2024

+ Coordinated project stages from competition (MK) through Schematic Design (SD) for this 6 5+ billion NTD project, managing client, PCM, and consultant communications.

+ Developed massing and facade schemes with Revit and Rhino.Inside.Revit.

+ Contributed to DD drawings, including floor plan coordination and detailed drawings.

+ NTU Art and Culture House (MK, Second Price) Museum, Concert, Education / 55,000 m2 / 2022

+ Developed design schemes and constructed 3D models in Rhino and Grasshopper for rendering

+ Produced diagrams for competition boards.

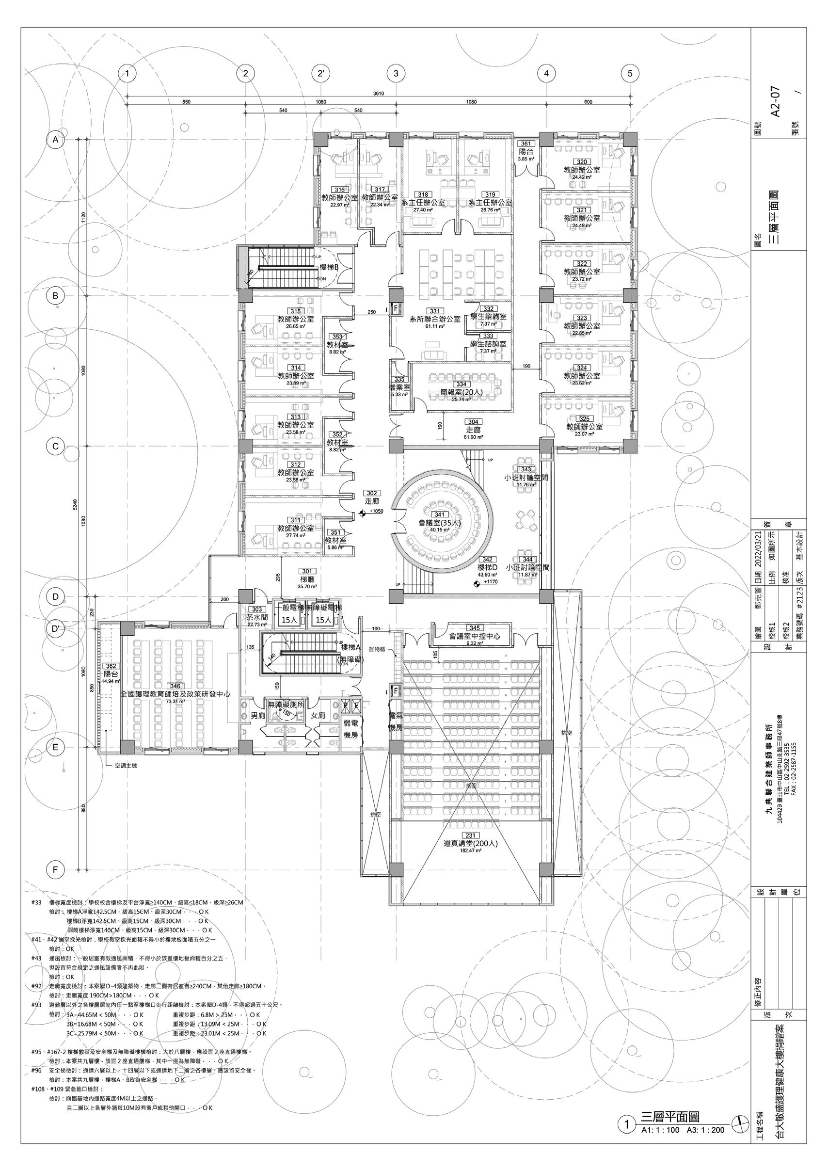
+ NTU Minsheng Nursing Educational Building (Pre-design, SD) Education / 10,000 m2 / 2021-2022

+ Coordinated the project, contributing to schemes, BIM modeling, and floor plan coordination.

+ Chien-Chen Fishing Marketing Center (MK, First Price) Market / 39,000 m2 / 2021

+ Developed competition design schemes and 3D models for rendering and drawings production.

+ Huashan Courthouse Building (DD) Court, Office / 165,000 m2/ 2020-2021

+ Contributed to Design Development drawings, including plan coordination and interior studies.

Wang Xiaoxuan Architects Office

Summer Intern

+ Conducted studies on brick wall patterns for small-scale projects using Grasshopper.

+ Measured existing buildings and developed 3D models, cad drawings, and physical models for design studies.

Taiwan Tech Digital Atelier (NTUST)

Student TA for Laser Cutters

+ Assisted architecture students with laser cutter operation and ensured safe and effective use of equipment.

National Taiwan University of Science and Technology

Bachelor of Architecture, Department of Architecture

*California State Polytechnic University, Pomona EDUCATION

International Exchange Program, Department of Architecture

01 CPC Green Tech Research and Development Building

Project Type | Professional (Bio-architecture Formosana)

Participated | 2021-2024 (MK/PD/SD/DD/UR)

Location | Nanzi, Kaohsiung, Taiwan

Typology/GFA | Office, Laboratory, Testing Facility / 88,000 m2

Architect | Ying-Chao Kuo

P. Manager | Chang-Lien Lin

P. Team | Wen-Yu Liao, Hong-Keng Kuo, Meng-Heng Shie, Qing-Yun Kong, Ci-En Sun, Wei-Rong Wu, Pin-Ping Wang

Description

This project is a multi-functional facility located in the Circular Technology Innovation R&D Zone, Nanzi, Kaohsiung. It accommdates research offices, laboratories, testing facilities, and amenities. Given the building’s complex functions and internal divisions, our goal was to simplify the layout to ensure maximum flexibility for future expansion and modifications.

Low-carbon strategies were integrated to meet the client’s sustaiability goals, including shadings, working balconies, an ice thermal storage AC system, and vanadium redox flow batteries for solar energy management.

Role and Contribution

Competition to Schematic Design: Served as Project Coordinator, overseeing requirements, developing schemes and plans, and coordinating with clients, PCM, and consultants.

Created Grasshopper and Rhino. Inside scripts to streamline design, including a heat-reducing facade pattern, regulatory compliance analysis, and automated annotations for detailed drawings.

Design Development: Coordinating floor plans and related detail drawings.

Ariel View
Major view from north-west direction. All renderings on this page were created in collaboration with Meng-Heng Shie and Eric Ceng. Contribution: Project Coordinator.
Ariel view from Banping mountain.
The view highlights the close connection with the existing historic building.
Sky Atrium Main Entrance Lobby Main Corridor on Typical Floors

Section Diagram

To address complex requirements, we positioned offices on the north side (front) and labs on the south to conceal industrial scrubber exhausts.

Testing spaces (PVT) were separated from R&D, creating a north-to-south workflow: administration, research, laboratory, and testing.

Plan Coordination (With Rhino.Inside)

The project includes 899 rooms, 1,879 doors, 437 windows, and 403 curtain walls (both exterior and interior).

My goal was to simplify the complex and repetitive design process, such as manual labeling, annotation checks, and regulatory analysis. I utilized Rhino.Inside to develop scripts that optimized workflows, including automated annotations and escape distance analysis.

Room Coordination (With Excel)

Managing room elements in Revit is a critical part of my role, as rooms generate essential data for Design Development (DD) and Construction Documents (CD), such as area and perimeter calculations, departmental distribution, and material schedules—key components in construction budget estimation. I collaborate closely with our firm’s budget team, adjusting room data as needed to ensure accurate and efficient budgeting.

Fire Zoning and Escape Distance Analysis with Rhino.Inside
Managing Rooms and Space Materials in Revit
Autonomous Family Tags and Dimensions Using Rhino.Inside

To address the hot and humid climate of southern Taiwan, our project team utilized Grasshopper, Ladybug, and Rhino. Inside to integrate analysis results and envelope studies. This approach enabled us to produce both sustainable performance analyses and construction drawings within a unified workflow.

Contribution

I developed the workflow from environmental analysis to facade studies and linked the study results into Revit to produce construction drawings for the firm. Final detailed drawings were completed by an associate designer under my guidance.

Facade Radiation Analysis and Scheme Development
Grasshopper-generated geometries are displayed in elevation detail drawings.
The elevation study results were linked to the Revit detailed model using Rhino.Inside.
Massing radiation analysis using Ladybug (Jun-Aug), the primary facade radiation gain occurs on the west and south sides of the building.
Based on radiation analysis, areas receiving higher radiation are disigned with denser and greater quantities of expanded metal panels.

1. 8+8A+8mm Low-E Double-Layer Ultra-Clear Glass, 1.6mm Galvanized Steel Plate + 50mm Insulated Rock Wool, Interior Finished with 3mm FluorocarbonCoated Aluminum Panel 2. 1. 8+8A+8mm Low-E Double-Layer Ultra-Clear Glass 3. 3mm Fluorocarbon-Coated Aluminum Panel, 50mm Insulated Rock Wool, and Hot-Dip Galvanized Fasteners 4. Aluminum Extrusion Horizontal Member with Fluorocarbon Coating 5. Rainwater Pipe with Aluminum Alloy Curtain Wall Fasteners 6. Painted Steel Pelmet 7. 3mm FluorocarbonCoated Aluminum Panel 8. Fluorocarbon-Coated Steel Plate Post Railing 9. 1:50 Slope, 30x60 Stone-Like Quartz Tiles, 1:3 Cement Mortar 10. Painted Aluminum Expanded Mesh Panel 11. Hot-Dip Galvanized Fasteners 12. 85x150

Fluorocarbon-Coated Aluminum Extrusion Vertical Member 13. 7mm Galvanized Grating Panel, L-Shaped Angle Iron, 50x50 Galvanized Square Tube Support 14. Multi-Layer Waterproof Coating System 15. Siphonic Rainwater Outlet 16. 6.8cm Covered PS Board Terrazzo Insulation Tile

Working

for each Laboratory and Testing Unit

Modular Laboratory Unit Equipment and Material Study
Flexible
Balcony

To ensure maximum flexibility for future modifications, we developed vertical transition sections for primary ducts.

Main shafts in the building cores facilitate the transfer of major duct supplies for communal spaces and MEP facilities, extending to primary ducts within standard room units.

Secondary shafts and working balconies accommodate the flexible needs of laboratory and testing spaces, ensuring that secondary ducts remain independent from primary ducts, thereby preventing interference.

Modular Labortory Unit

Layer 1 - Major Mechanical Supply (Primary Side)

Through shafts located in the central core, the major mechanical supply is distributed to each floor and routed through the ceilings of major corridors to service the primary side of each room.

Layer 2 - Secondary Shaft

Each modular room unit is equipped with a secondary shaft near the entrance, addressing fixed demands such as smoke exhaust and water supply specific to each room.

Layer 3 - Working Balcony

Each modular laboratory and testing unit includes a working balcony designed for rainwater drainage, lab exhaust, and equipment placement. The balcony maximizes flexibility, enabling the client to modify and rearrange laboratories to meet future needs.

02 Chien-Chen Fishing Multifunctional Marketing Center

Project Type | Professional (Bio-architecture Formosana)

Participated | 2021 (Competition)

Location | Kaohsiung, Taiwan

Typology/GFA | Market / 39,000 m2

Architect | Ying-Chao Kuo

P. Manager | Ping-Wei Kuo

P. Architect | Yi-De Tsai

P. Team | Ming-Ze Syu, Ciao-Syuan You

Description

The Chien-Chen Fishing Multifunctional Marketing Center is located within the Port of Kaohsiung, Taiwan’s largest harbor. The center aims to attract tourists and promote fresh fishing products which are directly transported to the market.

While the original plan proposed a rectangular, four-story building, our scheme suggested an enlarged footprint with only three stories, optimizing the ocean views, landscape terraces, and visitor circulation.

Role and Contribution

During the competition, I coordinated the design scheme and independently constructed the 3D model, along with diagrams, sections, and elevation drawings.

A distinctive feature of this project is the wave-like roof terrace, which reflects the surrounding landscape and natural environment.

I utilized Grasshopper to simulate the catenary curve, shaping the roof form and analyzing the structural height to ensure high-quality interior spaces.

Original Scheme Diagram

The original plan for the project was a four-story building with a smaller footprint.

Suggested Scheme Diagram

We enlarged the footprint, reducing the need for vertical circulation.

HACCP Wholesale Market (Produced by Team) Shopping Center (Produced by Team) Shopping Center (Produced by Team)
Theme Restaurant (Produced by Team)
Ariel Rendering by Cenby Digital / Contribution: 3D Modeling
Existing Roof Terrace Connection Rendering by Cenby Digital / Contribution: 3D Modeling
Roof Playground and Plaza Rendering by Cenby Digital / Contribution: 3D Modeling

Catenary Curve Edge (Grasshopper)

To capture the beauty of tides and waves, our design incorporates catenary curves to shape the roof's edge.

Adjusting Contours (Grasshopper)

After optimizing the interior space height, we ensured a gentle slope for visitors to ascend to the roof garden.

Rationalizing Structural System (Grasshopper)

Grasshopper is essential for transforming forms into data, providing precise coordinates for columns, beams, and slabs.

Surrounding

03 National Taiwan University Minsheng Nursing Educational Building

Project Type | Professional (Bio-architecture Formosana)

Participated | 2021-2022 (PD,SD)

Location | Taipei, Taiwan

Typology/GFA | Education, Office / 10,000 m2

Architect | Ching-Hwa Chang - Founding Partner Chang-Lien Lin - Project Manager

Team | Ke-Hsuan Cheng, Chieh-Wei Chiang

Role | Coordinator in PD and SD, Scheme, Plans, BIM Modeling

Fig. 5 Exterior Rendering

04 Huashan Courthouse Building

Project Type | Professional (Bio-architecture Formosana)

Participated | 2020-2021 (DD)

Location | Taipei, Taiwan

Typology/GFA | Office, Courthouse / 165,000 m2

Architect | Ying-Chao Kuo - Founding Partner Chang-Lien Lin - Project Manager

P. Architect | Yu-Ting Wei, Yi-Jung Lo Team | Klaudia Stefanowska, Hsiao-Lan Chiu, Shuan-Hao Kan, Chieh-Wei Chiang, Shun-Nien Miu, Feng-Qing Kuo Role | Coordination of Plans, Related Drawings, and BIM Modeling

Fig.
Fig.
Fig. 2 Detailed Drawings

Other Works: Participated Competition

NTU Center for the Arts / BAF Architects (2023)
Rendering by Eric Ceng / Role: Scheme, 3D Modeling, Diagram
Rendering by Eric Ceng / Role: Scheme, 3D Modeling, Plan Drawing Role: Scheme, 3D Modeling, Rendering, Plan and Section Drawing
Rendering by Po-Wei Lai / Role: 3D Modeling
Rendering by Eric Ceng / Role: Coordinator, Scheme, 3D Modeling
Role: Section Drawing
Tucheng Housing Competition / BAF Architects (2024) Ubiquity Inc. Campus / BAF Architects (2020) Wangyuanlin Art Museum / BAF Architects (2019)
CN Color Printing Development / BAF Architects (2022)
JinHua Public Housing / BAF Architects (2019)

Other Works: Computational Assistance Projects

Site Massing Generating Tool

Facade Pattern Study

Crowd Evacuation Simulation
Facade Shading Design
Platform: Rhino 3D, Grasshopper 3D
CN Color Printing Development / BAF Architects (2022) Platform: Rhino 3D, Grasshopper 3D
Taipei Concert Hall and Public Library / BAF Architects (2022) Platform: Rhino 3D, Grasshopper 3D (PedSim)
Iglesia del Redescubrimento Cultural Center / BAF Architects (2021) Platform: Revit, Rhino.Inside®.Revit (Grasshopper)

Turn static files into dynamic content formats.

Create a flipbook
Issuu converts static files into: digital portfolios, online yearbooks, online catalogs, digital photo albums and more. Sign up and create your flipbook.