Ting-Yu Lee (Calvin) Architecture Portfolio: Selected Works (2016-2024)

Page 1


Ting-Yu Lee

Email: calvinlee.cd@gmail.com

Tel: +886 988 343 932

Add: 10F-3, No. 350, Sec. 1, Tingzhou Rd., Zhongzheng District, Taipei, Taiwan (R.O.C.)

National Taiwan University of Science and Technology, Taiwan

Bachelor of Architecture (B.Arch), GPA 3.66 / 4.0

California State Polytechnic University Pomona, USA

International Exchange Program, GPA 3.90 / 4.0; Courses taken as follows:

+ ARC 403 Fourth Year Design 3

+ ARC 403L Fourth Year Design 3 Lab

+ ARC 453 Digitally Enhanced Const & Fab

+ ARC 499 Spec Topics UD Students (Course Topic: Facade Tectonics)

Yuan-Chun Lan Architects Illoca Inc.

Architectural Designer (Part-Time), Taipei International Contractor (Part-Time), Remote

+ Translated 2D inputs into 3D BIM models based on architectural judgment, delivering training data for AI applications.

09/2015 - 06/2019 03/2018 - 06/2018 06/2024 11/2024 - Present

+ Independently developed the parametric design scheme, created 3D models for renderings, and finalized the conceptual diagrams for the Green Energy Museum Competition.

Bio-architecture Formosana (BaF)

Architectural Designer, Project Designer, Taipei

09/2019 - 08/2024

+ Participated in competition (MK), Urban Review (UR), Pre-Design (PD), Schematic Design (SD), and Design Development (DD) phases across diverse public projects.

+ Created digital models, BIM models, renderings, diagrams, technical drawings, and presentations.

+ Utilized and promoted parametric design methodologies and their integration with BIM platforms.

Activities

Graduation Exhibition Student Committee

Website Promoter

+ Engaged in thorough discussions and independently developed the thesis exhibition promotional website using Wix: https://ttda2019.wixsite.com/thesis

Architecture Student Association

Activities Officer

+ Supported departmental activities, including site inspection and supply transportation for the freshman orientation camp, Moon Festival, and Christmas party.

Awards and Recognization

Green Energy Museum Competition - First Round Finalist (In Progress)

+ Awarded by Taiwan Power Company

+ Professional Team / Yuan-Chun Lan Architects

NTU Center for the Arts Competition - Third Place Awarded

+ Awarded by NTU Center for the Arts

+ Professional Team / BaF Architects

CPC Green Tech R&D Building Competition - First Place Winner

+ Awarded by CPC Corporation Taiwan

+ Professional Team / BaF Architects

Chien-Chen Fishing Marketing Center Competition - First Place Winner

+ Awarded by Fisheries Agency, Council of Agriculture, Taiwan

+ Professional Team / BaF Architects

Advanced Developers Association Scholarship

+ Awarded for Outstanding Thesis Design Project

+ Scholarship: $30,000 NTD

+ Coordinated the design process in MK, PD, SD, and early UR and DD for this 6.5+ billion NTD project, managing communications and documents between the client, PCM, consultants, and team.

+ Developed autonomous processes, massing and facade design with Revit and Rhino.Inside.

+ Coordinated floor plans, technical drawings, BIM model, regulatory analysis in DD.

+ NTU Art and Culture House

Museum, Concert, Education / 55,000 m / 2022

+ Developed design schemes and 3D models in MK phase with parametric optimization.

+ Illustrated conceptual diagrams for the phase I competition boards.

+ NTU Minsheng Nursing Educational Building

Education / 10,000 m2 / 2021-2022

+ Coordinated the project in PD, UR, SD, integrating input from the school, donor, and consultants.

+ Chien-Chen Fishing Marketing Center

+ CPC Green Tech R&D Building Office, R&D / 88,000 m2 / 2021-2024 Courthouse, Office / 165,000 m2/ 2020-2021 Market / 39,000 m2 / 2021

+ Contributed to design schemes, BIM modeling, floor plan coordination, and design documents.

+ Independently developed design schemes and 3D models during the competition phase.

+ Contributed to diagrams, renderings, elevation and section drawings, and the proposal documents.

+ Huashan Courthouse Building

+ Contributed to drawings and documents during DD, assisting with interior studies and renderings.

+ Coordinated floor plans and related BIM models for the basement, podium, and tower sections.

Taiwan Tech Digital Atelier

Student Teaching Assistance and Operator for Laser Cutters, Taipei

+ Assisted fellow students with laser cutting operation and software application guidance, including AutoCAD and Powercut.

Wang Xiaoxuan Architects

Summer Intern, Taipei

+ Conducted studies on brick wall patterns for small-scale projects using Grasshopper.

07-08/2016, 07-08/2017 02/2017 - 06/2019

+ Measured construction site, created physical and digital models, and developed CAD drawings.

Certifications and Skills

Creative Concrete Application Competition - Honorable Mention

+ Awarded by Shuo Ying Education Foundation

+ Academic Team / Project: Concrete Business Card

Corning Innovative Application Competition – Honorable Mention

+ Awarded by Corning Incorporated

+ Academic Team / Project: Life Light Optical Fiber Escape System

Quality Management Personnel for Public Construction

+ Public Construction Commission, Executive Yuan

Language Skills

+ Chinese (Native), English (Proficient) - IELTS 7.5 (L8.0/R8.5/W6.5/S7.0)

Design Skills

+ Revit, AutoCAD, Rhinoceros, Grasshopper, Ladybug, Rhino.Inside, Enscape, Lumion, Vray,

+ Indesign, Illustrator, Photoshop, Laser Cutter, 3D Printer

Others

Workshop - Presenter

+ Topic: Design Process and Parametric Design

Internal Company Workshop - Presenter

+ Topic: Application of Parametric Design in the Entire Design Process

Intern Workshop - Presenter

+ Topic: Projects and Parametric Design

01 Museum Within the City ; City Within the Museum

Project Type | Academic, Individual Project (B.Arch Thesis)

Year | Sep.2018 - Jun.2019

Level | 4th Year, 7th - 8th Semester

Location | Xinyi, Taipei, Taiwan

Programme | Art Museum + Commerce, 120,000 m2

Supervisor | Prof. Arch. Ying-Chao Kuo

Achievement | Awarded for Advanced Developers Association Scholarship

Background

In Taiwan, local governments have been actively investing in cultural creative parks to preserve heritage, achieving significant success in generating public interest and participation. Consequently, the cultural creative industry has experienced rapid growth, fostering both public engagement and commercial success.

In contrast, despite the ongoing const- ruction of new art museums in major cities, these institutions have not garnered the same level of public interest or commercial value, likely due to their disconnection from the urban fabric and insufficient resources.

Project Aim

Looking abroad, art museums in cities such as Tokyo and New York are seamlessly integrated into vibrant urban centers, enriching people’s souls in their daily lives. In Taiwan, however, art spaces often feel disconnected from everyday experiences, resulting in a diminished influence on the public.

Through this project, I aim to examine and explore new possibilities to move beyond conventional governmentoperated, nine-to-five models. By integrating with commercial systems, the art museum can now be embedded in the city’s heart and foster deeper connections with the public.

New York City (1,213 km2)

Population: 8,622,698 (2017)

Number of Museums: 64

Density: 0.074 (Museum/ 10,000 People) Washington, DC (177 km2) Population: 693,972 (2017)

of Museums: 22

0.317 (Museum/ 10,000 People)

Tokyo City (619 km2)

Population: 9,375,104 (2016)

Taipei City (271 km2)

Number of Museums: 55 Density: 0.058 (Museum/ 10,000 People)

Population: 2,674,063 (2018) Number of Museums: 2

0.007 (Museum/ 10,000 People)

ISSUE: Operation of Museums

Currently, the Taipei Fine Arts Museum (TFAM), Taiwan’s leading art institution, attracts roughly 400,000 visitors annually, significantly fewer than cultural creative parks. Additionally, its annual revenue covered only 2% of its expenses in 2015, making the museum to rely heavily on government funding, adding even more strain on its operation. This research highlights the urgent need for a more accessible and impactful art museum to meet the growing demand for art.

The project envisions a commercial development centered around an art museum, seamlessly integrating the seemingly opposing forces of art and commerce. While pure art is often regarded as priceless, these dual functions can coexist within a single entity, catering to different human needs—one addressing material desires and the other enriching the soul. This allows the distinct programs to sustain, complement, and elevate one another.

Zhongxiao Dunhua/Fuxing Visitors: apx. 62 million/year

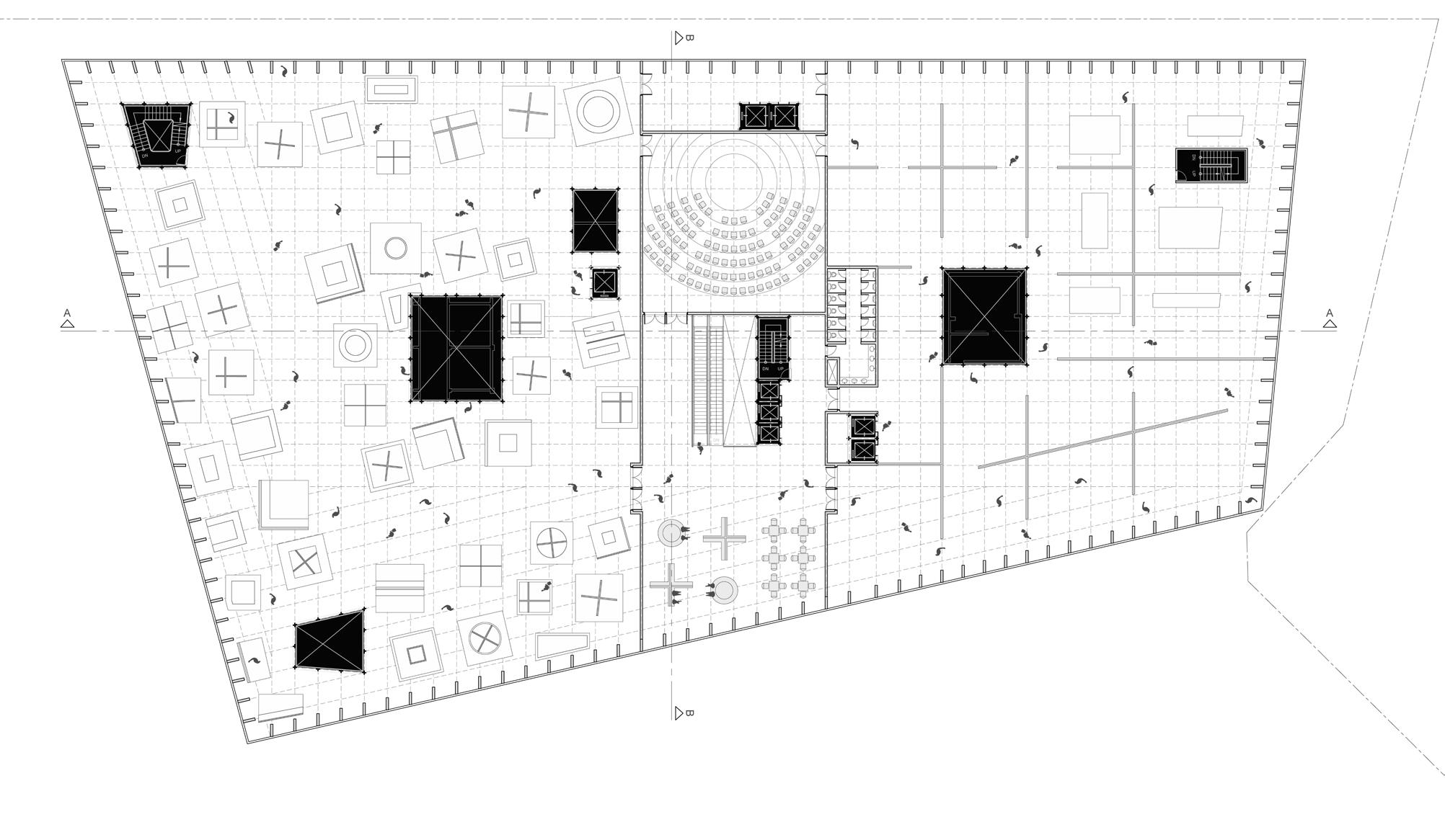
<High-rise,
<Gallery,
<Exhibition,
Songshan Cultural Park
The tremendous success of Songshan and Huashan Cultural Parks demonstrates the benefits of integrating into citizens' everyday lives.
Significant differences exist in revenue and visitor numbers between the Taipei Fine Arts Museum and Museum of Modern Art in New York.
Integration of art and commercial program is essential to sustain each other.
Illustrating the vertical relationships between the art museum and the commercial programs.
The museum atrium
below, welcoming visitors
The dramatic entrance setback not only creates an urban amphitheater but also reveals the museum's artwork, inviting visitors upward.
Visitors are encouraged to utilize the prominent escalators, which provide seamless access to both commercial and cultural programs.
The museum plaza integrates retail spaces, food, clubs, and sculpture garden, creating a vibrant platform for visitors.

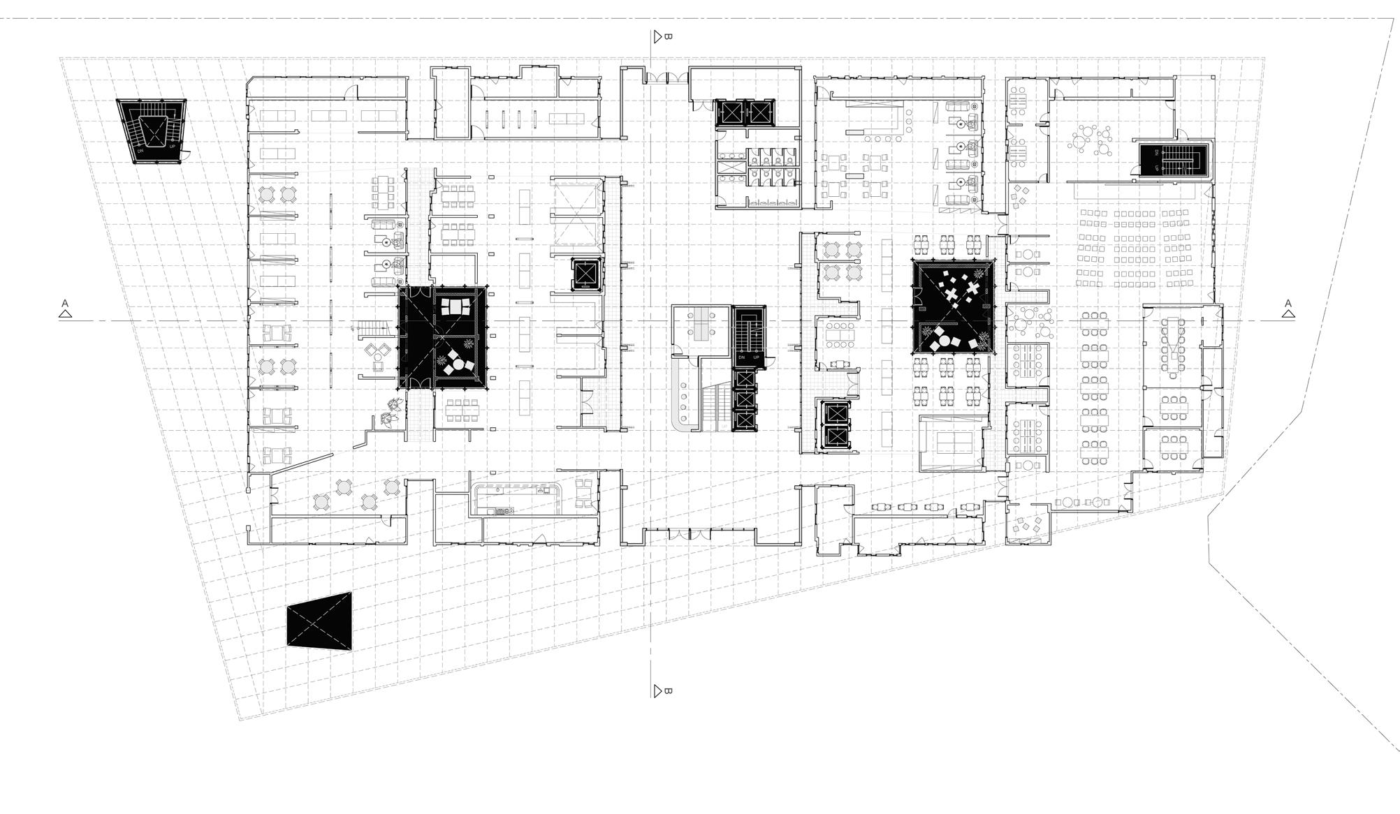
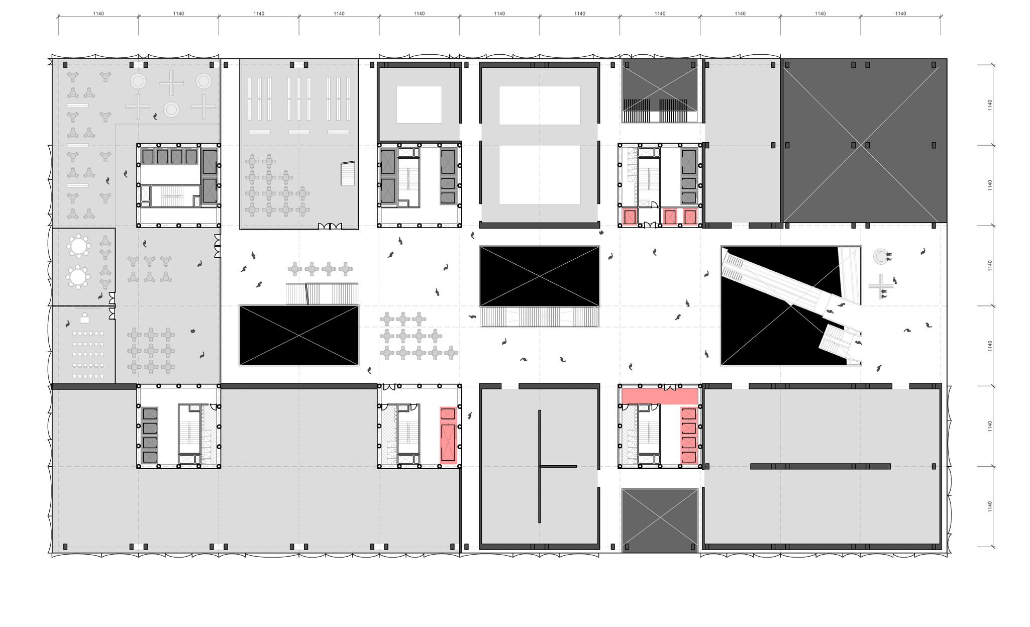
Positioned at the center of the building, a series of flexible boxes accommodates diverse events and exhibitions within the museum. The museum city not only serves as a vessel for art collections but also integrates seamlessly into urban daily life, offering inspirations to busy individuals.

The spaces in between, the museum plaza and artist plaza, further attract visitors with retail and entertainment spaces. The skyline is then returned to citizens, encouraging public engagement and creating the resources and support for both cultural and commercial programs.

The flexible museum plan can accommodate a variety of events both inside and outside the gallery boxes.
Museum atrium leads internal circulations.
Museum Plaza attracts diverse activities.
A view to the plaza from the office tower. The first museum level features
Section View: Six space column supporting the museum structure.
Museum City

02 2025 Taipei Expo

The Future Cultural Center

Project Type | Academic, Individual Project

Year | Nov.2017 - Jan.2018

Level | 3th Year, 5th Semester

Location | Xinyi, Taipei, Taiwan

Programme | Cultural Center+Exhibition, 10,000 m2

Supervisor | Prof. Arch. Yong-Fu Chen

Description

This project centers on the historic site “Four Four South Village”, a preserved military dependents’ village built in 1948. Adjacent to Taipei’s commercial core, this site offers a glimpse into early military village life while embracing the convenience of urban living.

With the city’s new demand for an 8,000 m² venue for Taipei 2025, the primary challenge is to balance respect for the historical space with future needs. The scheme emphasizes conserving, exhibiting, and revitalizing the last four buildings of “Four Four South Village”.

Exhibit the Old with the New

By integrating new spaces with historic views, the project aim to create a unique viewing experience.

The village buildings are refurbished to display their own history while becoming part of the exhibition within the framework of the newly constructed structure. Visitors can explore the new venue, enjoying views of the heritage structures as they gradually approach them; or they can begin in the heritage buildings and be guided through vertical transitions into the modern exhibition spaces for special exhibits and expositions.

Exploration of the preservation and exhibition options

Four Four South Village (Four buildings remaining since 1999)

B. Four Four East Village (Demolished in 1990s)

C. Four Four Military Warehouse (Demolished in 1984)

D. Four Four West Village (Demolished in 1980)

The sketches illustrate the process of exploring options to conserve and revitalize the site while exhibiting the historic spaces for the public. Starting from a giant glass box covering the structures, I explored the form of arches and column forests and the final scheme - a floating expo structure that covers and protects the site.

A.
D.
Collage of Historical Maps
A.
Illustrating the consecutive shifting between different city scales and typologies from south to north.
Historical scenes of the demolished buildings.

The Last Four Heritage Structures

Buildings A through D are the last remaining historical evidence of the ROC military retreat in this district, once part of a larger group of structures spread throughout the area.

Concept : Elevate the New Structure

To preserve valuable ground-level perspectives, it is essential to elevate the new arhictectural volume above the existing heritage buildings.

Attitude : Conservation is Needed

While it would be possible to remove the heritage structures, the significant historical and cultural value was recognized. Therefore, I decided to conserve the heritage while creating new spaces for the city.

Challenge : Develop A New 8000 m2 Venue

It is essential to address the city's increasing demand for venues for large expositions and exhibitions. However, the only available land for development would obstruct the views of the heritage structures.

Vertical Connection Between Old and New

Supporting structures, such as atriums, staircases, and elevators, connect the heritage buildings with the new venue, allowing visitors to explore the new space within the old or to observe the old from the new.

Exhibit and Revive

The historical spaces are revitalized with new functions, serving as exhibitions that showcase their own history, alongside a cultural gift shop, café and bistro, and theater.

EXHIBITION

HISTORICAL EXHIBITION

Urban Section - Elevating the new structure to preserve crucial view for the site.

ROOF STRUCTURE

EXPOSITION/ EXHIBITION VENUE

RENOVATED ROOF STRUCTURE

CONSERVED CONCRETE STRUCTURE

Process of Testing and Fabricating

1. Utilized Grasshopper to modify the frame structures.

2. Parametrically orientated the sliced structures onto flat surfaces for laser cutting.

3. Assembled model elements manually and further enhanced them with painting, furniture, and scaled figures.

TRUSS FRAME STRUCTURE SYSTEM
SUPPORTING SPACE COLUMN
Exploded Diagram - Illustrating the structural layers from existing heritage walls, roofs, to the new vertical circulation and expo structures.
Playful Voronoi Layout
Space Truss Column

Layer 1 - Preserve and reveal the heritage structures to the city, allowing citizens to appreciate historic scenes.

Layer 2 - Cover the heritage buildings with a new exhibition structure, providing fresh perspectives for observation and circulation.

Layer 3 - Revive the aging spaces, repurposing them to demonstrate their own history, encouraging visitors to engage with historic scenes and settings.

Layer 4 - Provide new functions on top, accommodating the city’s future needs for exposition and exhibition spaces.

Approaching the past through preserved historical scenes and structures, while exploring the future through elevated exhibition spaces.

Visual connection throught the atrium, turning the old walls into a playful space.
The atrium frames the historic tilted walls and narrow alley.

After touring through the special exhibition and exposition venue, visitors are welcomed to take the time machine to appreciate the history.

Four Four Café - New structures penetrate and interact with the heritage space. Cultural Gift Shop - New structures blend within the old.
Historic Narrow Alley - Guiding visitors toward the new atrium structure.
Section A - Reconnecting the existing buildings with the new structure, offering new live and purpose.
Section B - Heritage walls being displayed under the new structure.

03 Stacking the Haven Tucheng Commuity Library

Project Type | Academic, Individual Project Year | Oct.2016 - Jan.2017

Level | 2th Year, 3th Semester

Location | Tucheng, New Taipei City, Taiwan Programme | Library, 2,500 m2

Supervisor | Prof. Arch. Bo-Yang Lin

Project Vision

The aim of the library project is to meet the community’s needs while addressing environmental challenges in an area where nature is scarce.

Beyond its primary function as a library, the design incorporates setback volumes and a vertical circular park, creating spaces for residents to comfortably breathe, relax, read, and enjoy the enhanced micro-climate. This transformation elevates the library into a valuable urban retreat.

Ecosystem : Concrete Jungle

The project site, Tucheng, is one of Taiwan’s most densely populated areas, with over 8,000 people per square kilometer.

The urban landscape is dominated by high-rise buildings, narrow streets, heavy traffic, and severe air polution, creating a concrete jungle with scarce green spaces. Our site is uniquely positioned, curently standing as the only open space within a 0.5 km radius.

Needs and Hopes : Setback, Breathe

As Tucheng undergoes rapid urban development to accommodate growth from nearby Taipei City, the district’s dense and chaotic buildings have surpassed livability.

Beyond open spaces for walking, playing, and breathing fresh air, residents desire an inclusive hub where they can expand their knowledge and immerse themselves in books, finding peace in a quiet environment.

Residen�al / Apartment [Concrete] 5~8F
Residen�al / Apartment [Concrete] 5~8F
Residen�al / Complex [Concrete] 12F
Residen�al / Complex [Concrete] 16F
Residen�al / High-Rise [Concrete] 28F
Fig. 1~4. Illustrating the intense relationship between the concrete structures (red) and the narrow sidewalks (yellow), roads, pedestrians, and residents.
Fig. 1
Fig. 3
Fig. 2
Fig. 4 Proposing
Site Analysis

1. Park As a Whole

Life in New Taipei City is stressful, resulting from the dense “concrete jungle.” In response, the library is designed as a low-profile, nature-friendly “Library Park” that provides a peaceful green space for the community.

2. Setback and Breathe

Each floor of the library setbacks, creating a “park” on every level. This tiered design reduces the visual and physical impact on the surrounding urban landscape, easing the pressure on the city and passengers.

3. Inclusive passage and Reading Corners

A key discovery was the common shortcut residents living behind used to pass. By splitting the solid form, the library not only reforms the easy passage but also provides an inviting urban space that interacts with the library.

4. Linear Terrace Garden

Reconnecting the split form creates a continuous route around the building. This vertical park transforms the library from a quiet and static place into a lively, interactive space that inspires connection and creativity.

The exterior terrace garden and the interior reading corners offer citizens a peaceful escape from the stressful urban environment.
The sunken alley invites neighbors to engage with the library’s reading corners.

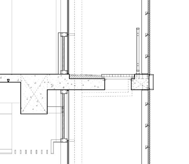
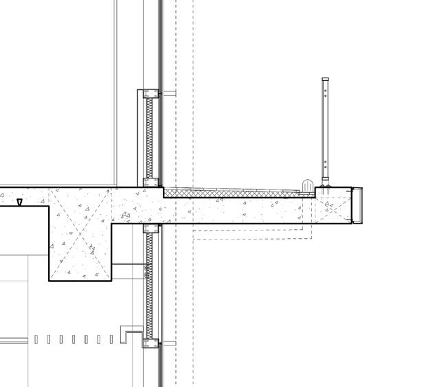
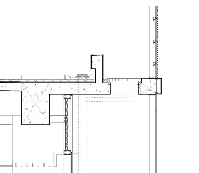
Detail A - Green Roofing System

1. Green Roof (Inverted Beam Structure) (700mm) Soil cover, (25mm) Gravel + Protective membrane + Waterproofing membrane, (160mm) Rigid insulation, (200mm) Reinforced concrete slab

2. Outdoor Wood Flooring (30mm) Wood flooring, (20mm) Waterproofing membrane, (160mm) Rigid insulation, (250mm) Reinforced concrete slab

3. Beam Dept (800mm)

4. Fixed Stainless Steel Railing (anchored to the concrete pedestal)

5. Fixed Window Frame (50x100mm), Low-E Insulated Glass (6mm+12A+6mm)

6. Interior Wood Flooring (30mm) wood flooring, (1mm) Moisture barrier, (180mm) Pipeline Layer, (250mm) RC slab

7. Fair-Faced Concrete Finish

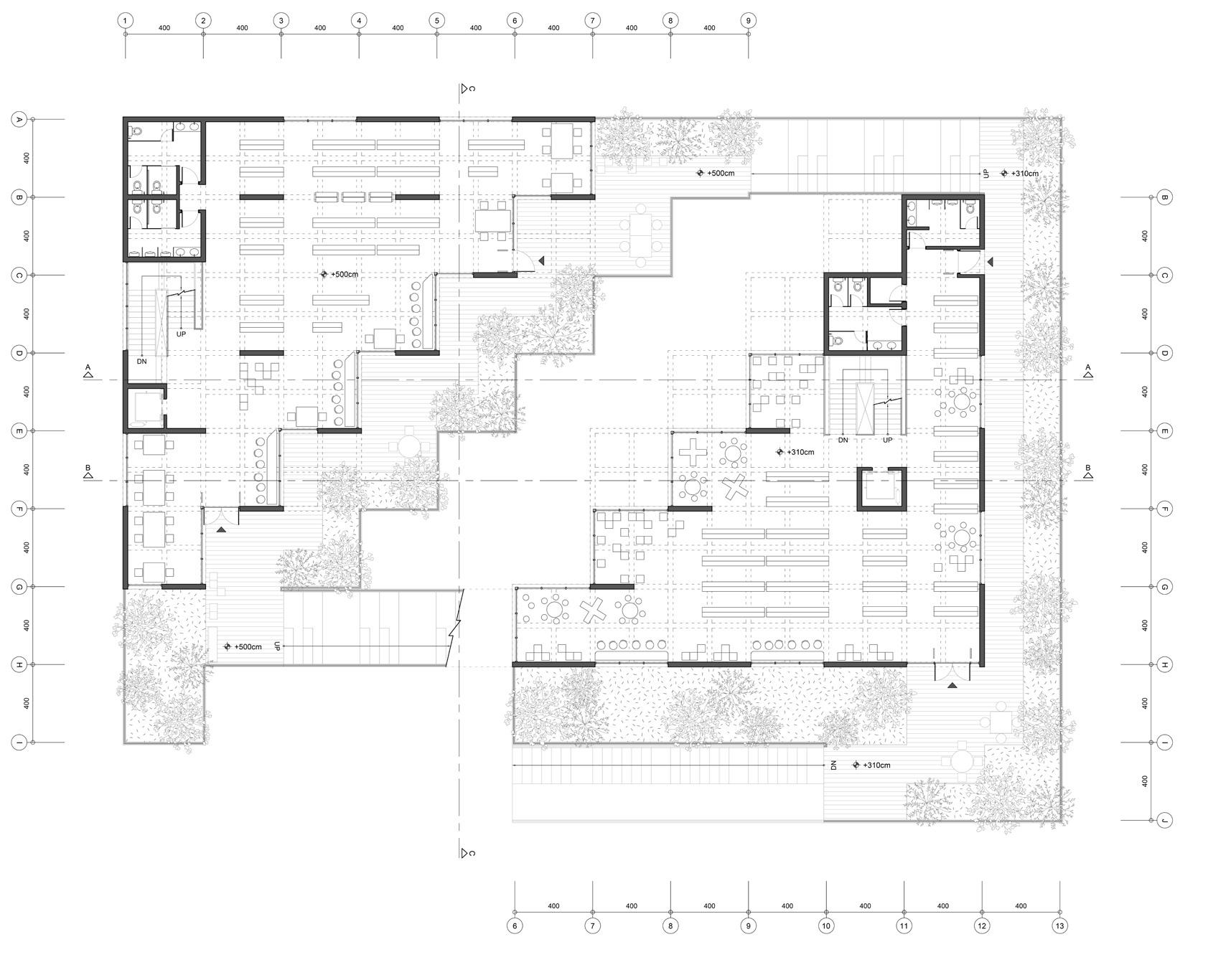
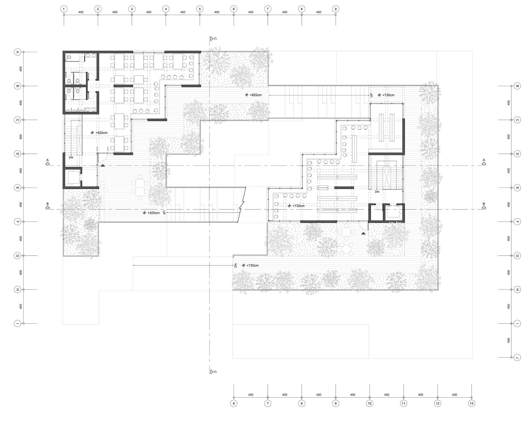
Information Desk

Self-Checkout

Book Section

Section A

Reading Corner

Special Exhibit

1. Alley of Knowledge: Inviting exploration of knowledge and engagement with activities via corner windows.

2. Terrace Garden: Setback gardens where citizens can walk, breathe, sunbathe, and enjoy leisure activities.

3. Reading Corner: Quiet, hidden spaces for readers to immerse themselves in books. First Floor Plan

04 Giant Box Project

Preservation of the Giant Rock

Project Type | Academic, Group Project

Year | Mar-Jun.2018 (International Exchange at Cal Poly Pomona)

Level | 3th Year, 6th Semester

Location | Landers, CA, USA

Programme | Exhibition, 3,000 m2

Supervisor | Prof. Axel Schmitzberger

Team | Ting-Yu Lee, Peter Cheng, Roger Yu, Charlie K. Dam

Role | In charge with 3D parametric modeling and envelope design, Illustrated diagrams, assisted with other drawings and process

Project Aim

The Giant Rock project explores the dramatic contrast between natural forms and artificial objects by creating an exhibition pavilion that protects the heritage boulder of the region. Our team envisions covering the Giant Rock with a Giant Box, which will create a void inside the box to provide protection and observation angles for visitors.

The facade is covered with identical panels that respond differently to the environment. The kinetic facade opens to provide more views in response to indirect sunlight, while it rotates and closes to protect against the desert heat as the sun rises. The project employed digitally enhanced methodologies to optimize the sustainable pavilion design, ensuring a balance between nature and the artificial structure.

1. Offset Contours from Giant Rock
5. Analyze Sun Angle (Ladybug)
2. Facade Panel Division
6. Kinetic Rotating Frame System
3. Distance to the Giant Rock
7. Stretchable Spandex Shading
Hint the Giant Rock by Color
40% Radiation Reduction

My role in the team was to develop the parametric rotating structural system, while my teammates focused on designing concepts, generating and optimizing 3D topography meshes, and finalizing the floor plans and section drawings.

I independently developed the parametric rotating system script, where the pipe frame rotates in response to the angle of the sun. When the pipe frame rotates, it stretches a surface made of polyurethane-coated Spandex material, which is flexible and can span and stretch easily without breaking. The system consists of a dual pair of rotating fiber shaders: one for shading and the other for reflecting sunlight into the building’s interior. The primary goal of the facade design is to create a system that blocks most direct sunlight while redirecting indirect sunlight into the interior space.

Utilizing drones to create a sequence of aerial photographs.

Maximun Shading Status

Substructure for Kine�c System

Rota�on Joint

Steel Pipe Frame

polyurethanecoated Spandex

Start: 0-60º

Peak: 0-25º

Start: 0-60º

Peak: 0-25º

Start: 0-60º

Stainless Steel Rota�on Joint Structure

Stretchable polyurethane-coated Spandex Material

Isometric Floors

Floor edge based on contours of the Giant Rock.

*In collaboration with the team

Minimum Shading (Start: 0° / Peak: 0°)

Half Shading (Start: 30° / Peak: 12.5°)

Maximum Shading (Start: 60° / Peak: 25°)

Minimun Shading Status

Substructure for Kine�c System

Rota�on Joint

Steel Pipe Frame

polyurethanecoated Spandex

Start: 0-60º

Peak: 0-25º

Start: 0-60º

Peak: 0-25º

Start: 0-60º

Section View

Exhibition floors with protection and viewing distance.

*In collaboration with the team

*All images presented were produced by me (any exceptions are noted)
Process 1. Aerial Survey
*In collaboration with the team
*In collaboration with the team
*The parametric envelope design was created independently by me
*In collaboration with the team
Process 2. Photo Analysis and Transformation Utilizing Pix4D to process photos and generate 3D topography.
Process 3. Digitally Enhanced Pavilion Design Employing Grasshopper to create adaptive kinetic envelope.
Process 4. Immersive Presentation Using InsiteVR to create 4D scenes of the Giant Box project.
Using conditional statements and graph mappers to compress and remap the rotation parameters based on sun angle.
Rotation Patterns

Sun Vector: X: -0.822014, Y: 0.183045, Z: -0.539247

Sun XY Angle: 282.5� Domain:

Rotation Start: 10.5� Rotation Peak: 0�

Sun Vector: X: -0.193476, Y: 0.420868, Z: -0.886249

Sun XY Angle: 335.3� Domain:

Rotation Start: 59.6� Rotation Peak: 15�

*Independently developed and finalized by me. *EPW: USA_CA_Twentynine.Palms.690150_TMY3, 8/30

Sun Vector:

X: -0.652103, Y: 0.292712, Z: -0.699343

Sun XY Angle: 294.2� Domain: Rotation Start: 23� Rotation Peak: 0.1�

Sun Vector: X: -0.437719, Y: 0.373805, Z: -0.817723

Sun XY Angle: 310.4� Domain: Rotation Start: 44.7� Rotation Peak: 2.3�

Sun Vector: X: -0.063977, Y: 0.430704, Z: -0.900223

Sun XY Angle: 8.4� Domain: Rotation Start: 60� Rotation Peak: 22�

Sun Vector: X: 0.317089, Y: 0.402654, Z: -0.858676

Sun XY Angle: 38.2� Domain:

Rotation Start: 56� Rotation Peak: 7.6�

Sun Vector: X: 0.548601, Y: 0.33864, Z: -0.764435

Sun XY Angle: 58.3� Domain:

Rotation Start: 32.5� Rotation Peak: 0.6�

Rotation Start: 16.2� Rotation Peak: 0�

Sun Vector: X: 0.886246, Y: 0.122425, Z: -0.446744

Rotation Start: 6.3� Rotation Peak: 0� Sun Vector: X: 0.742743, Y: 0.243087, Z: -0.623892 Sun XY Angle: 71.8� Domain:

Sun XY Angle: 82.1� Domain:

A view for the responsive facade pattern.
Kinetic shading movements interact dynamically with sunlight.
interior pavilion space offers views to observe the protected boulder.

05 CPC Green Tech Research and Development Building

Project Type | Professional (Bio-architecture Formosana)

Participated | Nov.2021 - Aug.2024 (MK/PD/SD/DD/UR)

Location | Nanzi, Kaohsiung, Taiwan

Programme | Office, Laboratory, Testing Facility / 88,000 m2

Architect | Ying-Chao Kuo

P. Manager | Chang-Lien Lin

P. Designer | Ting-Yu Lee

Project. Team | Wen-Yu Liao, Hong-Keng Kuo, Meng-Heng Shie, Qing-Yun Kong, Ci-En Sun, Wei-Rong Wu, Pin-Ping Wang

Achievements

2024 Net-Zero Building Design Award – Excellence Award

EEWH Green Building Certification – Gold Level (In Progress)

BERS Building Energy-Efficiency Rating System – Level 1 (In Progress)

2021 CPC Green Tech R&D Building Competition – First Place Winner

Description

This project is a multi-functional facility located in the Circular Technology Innovation R&D Zone, Nanzi, Kaohsiung. It accommdates research offices, laboratories, testing facilities, and amenities. Given the building’s complex functions and internal divisions, our goal was to simplify the layout to ensure maximum flexibility for future expansion and modifications.

Low-carbon strategies were integ-rated to meet the client’s sustaiability goals, including shadings, working balconies, an ice thermal storage AC system, and vanadium redox flow batteries for solar energy management.

Role and Contribution

Competition to Schematic Design: Served as Project Coordinator through early Design Development (over 270 days and 100 meetings) with support from my supervisor and assistant designers. My key responsibilities included overseeing requirements, design process, documents, schemes, plans, and coordinating with clients, PCM, and consultants. I also created Rhino.Inside scripts to streamline design, including energy-efficient facade pattern, regulatory evaluation, and automated tools for detailed drawings.

Later Stage of Design Development: Coordinating floor plans and related detail drawings.

Major view from north-west direction. All renderings on this page were created in collaboration with team members. Contribution: Project Coordinator.
Ariel view from Banping mountain.
The view highlights the close connection with the existing historic building.
South Facade Study Sky Atrium
Main Entrance Lobby
Main Corridor and Pantry

Section Diagram

To address complex requirements, we positioned offices on the north side (front) and labs on the south to conceal industrial scrubber exhausts.

Testing spaces (PVT) were separated from R&D, creating a north-to-south workflow: administration, research, laboratory, and testing.

Plan Coordination (With Rhino.Inside)

The project includes 899 rooms, 1,879 doors, 437 windows, and 403 curtain walls (both exterior and interior).

My goal was to simplify the complex and repetitive design process, such as manual labeling, annotation checks, and regulatory analysis. I utilized Rhino.Inside to develop scripts that optimized workflows, including automated annotations and escape distance analysis.

Room Coordination (With Excel)

Managing room elements in Revit is a critical part of my role, as rooms generate essential data for Design Development (DD) and Construction Documents (CD), such as area and perimeter calculations, departmental distribution, and material schedules—key components in construction budget estimation. I collaborate closely with our firm’s budget team, adjusting room data as needed to ensure accurate and efficient budgeting.

5C = 6.82+17.46+10.16+1.95+2.44=38.83M ≤ 50M...OK

Overlapping Travel Distance

6.82+17.46=24.28M ≤ 25M...OK

* Adding, Adjusting, Deleting Families * Changing * Adding, Adjusting, Deleting Families

Analyzing and Optimizing Regulatory Checking

Fire Zoning and Escape Distance Analysis with Rhino.Inside
Managing Rooms and Space Materials in Revit
Autonomous Family Tags and Dimensions Using Rhino.Inside

To address the hot and humid climate of southern Taiwan, our project team utilized Grasshopper, Ladybug, and Rhino. Inside to integrate analysis results and envelope studies. This approach enabled us to produce both sustainable performance analyses and construction drawings within a unified workflow.

Contribution

I developed the workflow from environmental analysis to facade studies and linked the study results into Revit to produce construction drawings for the firm. Final detailed drawings were completed by an associate designer under my guidance.

* EPW=TWN 467450 * Jun-Aug *Assign Category and Type *Assign Material *Assign Attributes *Adjust Template and Sheets

Grasshopper-generated
The elevation study results were linked to the Revit detailed model using Rhino.Inside.
Facade Radiation Analysis and Scheme Development
Radiation analysis utilized Ladybug (Jun-Aug), the primary elevation radiation gain occurs on the west and south sides of the building.
Based on analysis, areas receiving higher radiation are disigned with denser and smaller openings of expanded metal panels.

Ceiling

Galvanized Grating Panel, L-Shaped Angle Iron, 50x50 Galvanized Square Tube Support 14. Multi-Layer Waterproof Coating System 15. Siphonic Rainwater Outlet 16. 6.8cm Terrazzo Insulation Tile

Modular Labortory Unit

Layer 1 - Primary Side and Ducts - Primary Mechanical Supply Layer 2 - Secondary Shaft - For Fixed Demand in Each Unit Layer 3 - Working Balcony - For Flexible Demand in Each Unit

Primary Mechanical Destribution

To ensure maximum flexibility for future modifications, we developed vertical transition sections for primary ducts. Main shafts in the building cores facilitate the transfer of major duct supplies for communal spaces and MEP facilities, extending to primary ducts within standard room units.

Secondary shafts and working balconies accommodate the flexible needs of laboratory and testing spaces, ensuring that secondary ducts remain independent from primary ducts, thereby preventing interference.

BIM Collaboration with Consultants

We collaborate closely with structural, AC, MEP, and fire protection consultants to optimize supply and exhaust circulation systems. To address national electricity supply challenges and reduce energy costs, we proposed an ice thermal storage AC system, which stores ice during off-peak hours at night and uses the melted ice water during peak hours.

Additionally, we collaborated with the client to integrate vanadium redox flow batteries for solar energy management, storing solar energy during peak times and weekends for release in the mornings and evenings.

06 Chien-Chen Fishing Multifunctional Marketing Center

Project Type | Professional (Bio-architecture Formosana)

Participated | Aug-Dec.2021 (Competition)

Location | Chien-Chen, Kaohsiung, Taiwan

Programme | Market / 39,000 m2

Architect | Ying-Chao Kuo

P. Manager | Ping-Wei Kuo

P. Architect | Yi-De Tsai

P. Team | Ting-Yu Lee, Ming-Ze Syu, Ciao-Syuan You

Description

The Chien-Chen Fishing Multifunctional Marketing Center is located within the Port of Kaohsiung, Taiwan’s largest harbor. The center aims to attract tourists and promote fresh fishing products which are directly transported to the market.

While the original plan proposed a rectangular, four-story building, our scheme suggested an enlarged footprint with only three stories, optimizing the ocean views, landscape terraces, and visitor circulation.

Role and Contribution

During the competition, I developed the design scheme and independently constructed the 3D model, along with diagrams, sections, and elevation drawings.

A distinctive feature of this project is the wave-like roof terrace, which reflects the surrounding landscape and natural environment. I utilized Grasshopper to simulate the catenary curve, shaping the roof form and analyzing the structural height to ensure high-quality interior spaces.

Original Scheme Diagram

The original plan for the project was a four-story building with a smaller footprint.

Proposed Scheme Diagram

We enlarged the footprint, reducing the need for vertical circulation.

HACCP Wholesale Market (Produced by Team) Shopping Center (Produced by Team)
Center (Produced by Team)
Theme Restaurant (Produced by Team)
Ariel Rendering by Cenby Digital / Contribution: 3D Modeling
Existing Roof Terrace Connection Rendering by Cenby Digital / Contribution: 3D Modeling
Roof Playground and Plaza Rendering by Cenby Digital / Contribution: 3D Modeling

Parametric Catenary Curve Edge

To capture the beauty of tides and waves, our design incorporates catenary curves to shape the roof's edge.

Adjusting Contours

After optimizing the interior space height, we ensured a gentle slope for visitors to ascend to the roof garden.

Rationalizing Structural System

Grasshopper is essential for transforming forms into data, providing precise coordinates for columns, beams, and slabs.

Indication

Section B
View From The Ocean - Echoing the Surrounding Nature
Section A

Other Works

Rendering by Eric Ceng / Role: Scheme, 3D Modeling, Diagram My massing and envelope study progressed into the final proposal.
Rendering by Eric Ceng / Role: Scheme, 3D Modeling, Plan Drawing (below)
Interior Study by me / Role: BIM Modeling in Floor Plans, Interior Study
Rendering by Po-Wei Lai / Role: 3D Modeling
Rendering by Eric Ceng / Role: Coordinator, Scheme, 3D Modeling
Rendering by Ke-Hsuan Cheng / Role: Project Coordinator, BIM Modeling
Tucheng Housing Competition / BaF Architects (2024)
Ubiquity Inc. Campus / BaF Architects (2020)
Wangyuanlin Art Museum / BaF Architects (2019) DD Parametric Facade Study / BaF Architects (2020)
Huashan Courthouse Building / BaF Architects (2019)
Crowd Evacuation Simulation / BaF Architects (2022) Facade Prototype Study / BaF Architects (2022) Site Massing Generating Tool / BaF Architects (2019)
CN Color Printing Development / BaF Architects (2022)
Mingsheng Educational Building / BaF Architects(2021)

Turn static files into dynamic content formats.

Create a flipbook
Issuu converts static files into: digital portfolios, online yearbooks, online catalogs, digital photo albums and more. Sign up and create your flipbook.