
Urban University Design Singapore
Academic/Individual project
2025.01-2025.04
Education and Urban Evolution
Tutor: Steven THOR
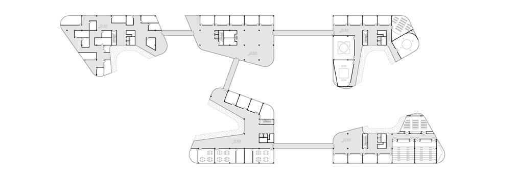
This project envisions a Social Sciences university campus that responds directly to the needs of its urban context in Singapore. Surrounded by diverse communities—residents, multi-faith groups, students, patients, and seniors—the campus integrates education with social engagement. Organized into four specialized schools (Religious Studies, Social Work, Education, Public Health) and a central interdisciplinary hub, the design fosters real-time behavioral research and knowledge exchange. Drawing from real societal concerns and evolving human dynamics, it functions as a Living Lab. A public corridor weaves through the campus, connecting green spaces, observation points, and participatory zones. The campus not only serves as an academic institution but also as a catalyst for urban regeneration, transforming the site into an inclusive, vibrant, and socially responsive connector.











By choosing Social Sciences, the campus can form a mutually beneficial relationship with the local community through communityuniversity partnerships. The community provides real-world data and research opportunities, while research outcomes, such as new policies and technologies, can directly benefit the surrounding population.
Nature











Unlike Natural Sciences, Social Sciences focus on human behavior, societal dynamics, and the interactions between individuals and institutions. These elements are constantly evolving due to: Cultural shifts Policy changes Unpredictable human actions. So a Social Sciences campus should also be an active, real-time space where human behavior and social systems can be observed and studied in real-time.
Typical Social Issues of
In recent years, Singapore faces several significant social issues, many of which are hard to cope with, but some of them align closely with the four research focuses of the four departments. By providing specialized functional spaces and targeted services, the university can contribute to mitigating these issues to some extent.


( Source: https://www.mili.eu/sg)






















Massing Strategy




Four Data Collection Method of Social Sciences


Studying large groups' natural behavior through Behavioral Mapping and Movement Tracking. Conducting interviews for Instant Feedback and high-quality Recordings for further analysis.


























