Undergraduate Architecture Portfolio

Page 1

STUDENT ARCHIITECTURE PORTFOLIO

CHRISTOPHER PERRYMAN-AGEE

TUSKEGEE UNIVERSITY

"
CONTENTS Bookmobile...................................................... Spatial Relations.............................................. Vacation Home................................................. 3-7 8-14 15-20

The Bookmobile

1st Year Studio Spring 2022

Instructor: Dr. Kwesi Daniels

Location: Tuskegee, Alabama

The goal of this project was to renovate a school bus into a space for children to better engage with reading, The idea was taken from the Jessup Wagon which was once used in a similar fashion while keeping all the components that make the bus mobile. The bus will be used to increase literacy rates and promote reading in different areas around the county.

Research

ThemainconceptIneededtoknowwaswhatexactlyisabookmobileandwhat isitspurpose?Afterdoingresearchonit,Italkedtoaclientwhowantedmeto createsomeideasforabookmobilethatwouldoccurinasmallcityforchildren touse.Theclientthengavemesomesmallrequirementsthatthebusshould have,sothesehelpedmebrainstorminthedevelopmentofmymodel.

The mood board began with designingpicturecollages to get an idea of what children mightliketohaveonthebus.

Iterations

Iteration1

Iteration2

Iteration3

FinalDesign

SIDE ELEVATION

SCALE: 1/2" =1'0"

SIDE SECTION

SCALE: 1/2" =1'0"

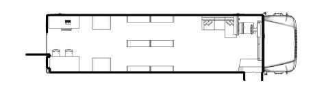
FinalDesign

FLOOR PLAN

SCALE: 1/2" =1'0"

Spatial Relations

1st Year Studio Spring 2022

Instructor: Dr. Kwesi Daniels

Location: Tuskegee, Alabama

The objective of this project is to demonstrate the understanding of how the organizational structures of spaces and pathways can work together to produce an architectonic structure or building. With the support of lighting, and space defining element. The challenges were faced during the design process, understanding how to transform and create structures with a pathway that is combined with the enclosure.

Research

Centralized Radial Clustered

Theprojectbeganwithafew exerciseswiththegoalof understandingthestructuresof organization.Usingfoam modelstheexaminationofthese structuresinradial,centralized andclusteredstructureswereused tobetterunderstandtheconcepts.

Centralized Radial Clustered

Wethentransferredthemodels intothecomputersoftware (Sketchup).

Theseimageswereusedasprecedents forelementsofthefinalmodel.

Theblueprintwasusedtoinspirepartofthepathwayof thefinalstructure.Thecentralstructurewasusedasa referencetounderstandhowdifferentshapedstructures canfittogether

Elevations Front Elevation Back Elevation West Elevation East Elevation

AdditionalViews

FinalModel

Vacation Home

2nd Year Studio Fall2022

Instructor: Dr. Wesley Henderson

Location: New Canaan, Connecticut

As an Architect, communication is key to making sure your clients get everything they desire.

I designed and created the dream vacation home of a faculty member in the department. After several meetings I was able to deliver a glass house in New Canaan, Connecticut.

Research

Create a client's dream Vacation home and adjust things to their personal needs and wants. The clients will be Tuskegee University professors. My client was Professor Wesley Henderson. He wanted a vacation home located in the woods of Connecticut. Within the home, he wanted a open studio house with his bathroom and washing room closed off.

Site

Precedent

What I wanted to take away from this precedents was its use of windows and incorporate both of their overall structures by combining them together somehow, and just have overall a more modern version of the Glass House

Diagrams

DesignProcess

Rough Model Section Cut Scale 1/4"=1'0" Rough Floor Plan

FinalModel

Christopher Perryman-Agee

BACHELOR OF ARCHITECTURE

TUSKEGEE UNIVERSITY

cagee166@gmail.com

Turn static files into dynamic content formats.

Create a flipbook
Issuu converts static files into: digital portfolios, online yearbooks, online catalogs, digital photo albums and more. Sign up and create your flipbook.