PORTFOLIO 2024
Elléa BAZILLON
Dessinatrice architecte
Projet d’écoles / stages / agences


![]()
Dessinatrice architecte
Projet d’écoles / stages / agences


Mission : a uette et représentations pour a communication des projets de a ence p anches concours│Localisation ene étropo e ace Henri o s│UrbanMakers Nantes│

a uette impréssion D Découpe azer
1:500

M-O : Privée│Localisation : Erbalunga, commune de Brando│Phases : EDLESQUISSE - CUb - DP
Ce projet prévoit la réfection de la toiture d’un appartement situé dans le village d’Erbalunga, en Corse, à proximité de la tour Génoise, classée dans le périmètre des Bâtiments de France (ABF).
L’intervention inclut une surélévation de la charpente ainsi qu’un recentrage du faîtage. L’appartement est ainsi agrandi, tout en valorisant l’existant. Les lauzes en toiture sont conservées et les ouvertures en façade harmonisées, dans le respect de l’esthétique et du caractère historique du quartier.


Façade - Etat des lieux

Façade - Etat projetté




M-O : CGI Pietri et Boccara │Localisation : 22 rue luce de casablanca - Bastia│Phases : RELEVE, DP
Renovation de façade et reprise structurelle des balcons d’un immeuble du centre de bastia. Les dalles des balcons étaient pour certaines fortement altérées du fait de l’érosion et menaçaient de s’effondrer, ils étaient localement renforcé grace à des étayes. Dans certains cas, les aciers des balcons pouvaient etre conservé et traités, dans d’autres ils devaient etre remplacés intégralement. Intervention également par piquetage de la façade + nettoyage, décapage + enduit 3 couches.
Ma mission a consisté à effectuer le relevé du bâtiment et la consititution d’un dossier graphique pour le dépot de la déclaration préalable de travaux ainsi que l’établissement du dossier de consultation pour la co-propriété.
de la façade + Nettoyage/decapage +Enduit à la chaux trois couches teinte "sable"
Pignon EST - état des lieux
Pignon OUEST - état des lieux
Ajout de bracons métalliques en renfort
Maître d'ouvrage
Pignon EST - état projetté
Maître d'oeuvre
Pignon OUEST - état projetté
Adresse
Façade SUD - état




MO : Privée│Localisation : Patrimonio - Corse│Phase : ESQUISSE│Travail en collaboration avec l’agence Lucchini.



Le projet consiste en l’esquisse d’une villa pour un client privé à Patrimonio (Corse). Le programme prévoit six chambres, chacune équipée d’une salle de bain, dont une conçue comme un dortoir. Les différents espaces de la villa ont été conçus en tenant compte de la topographie du site, avec des volumes distincts s’articulant autour d’un patio central. La majorité des espaces sont orientés vers l’ouest, offrant une vue dégagée sur les cultures d’oliviers, d’agrumes et de vignes qui s’étendent en contrebas du terrain.

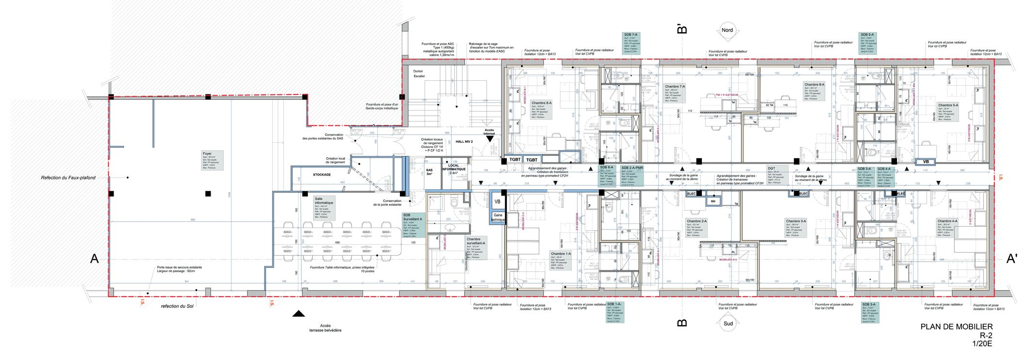
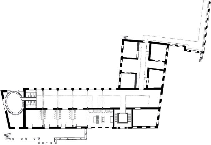
M-O : CDC (Commuauté de Corse)│Localisation Corte - Haute-Corses│Phases : ETAT DES LIEUX, ESQUISSE, APS/APD, PERMIS, PRO/DCE │Localisation Corte - Haute-Corses│En binome avec une cheffe de projet chez ADP architctes
Refexion sur la restructuration de l’internat du lycée Pascal Paoli de Corte sur trois nveaux : Transformation des sanitaires communs en sanitaire individuels pour chaque chambres, amélioration de la qualité des espaces communs et du foyer, conversion des anciens espaces de sanitaires communs en salle informatique, salle polyvalente et salle de réunion + Isolation thermique du bâtiment.



Note : a compléxité de la mission, d’un point de vue architectural, consistait porposer un nouveau plan d’amélioration de la qualité des chambres tout en ardant une cohérences lobale des réseaux et en tenant compte de la fa ade de l’internat tr s tramée + aitriser des normes incendie et handicappé découlant de ce type d’ RP.

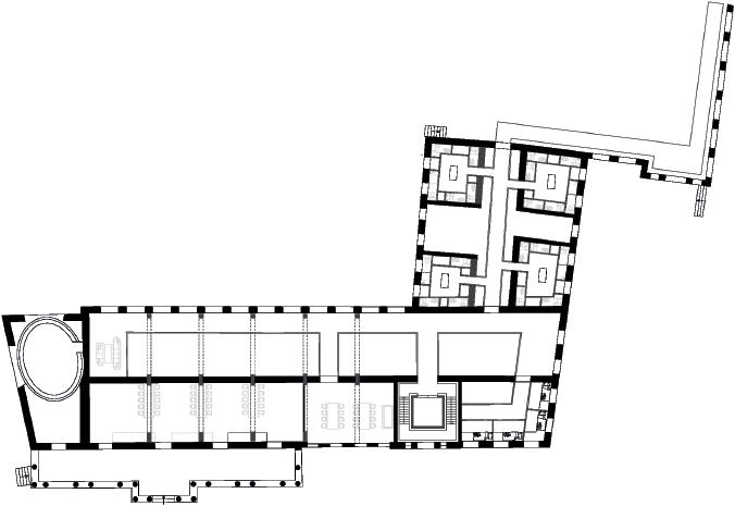
M-O : CDC (Commuauté de Corse)│Localisation Corte - Haute-Corse│Phases : ESAPS/APD, PERMIS, PRO/DCE│ n binome avec une cheffe de projet chez ADP Architectes.

TYPE A
essin des ensembles mobiliers en bois sur mesure pour l’aména ement des nouvelles chambres des él ves. Ces ensembles lit placar bureaux ont été pensés de la mani re la plus er onomique possible et facile a mettre en oeuvre en s’adaptant aux typolo ies des chambres travers la déclinaison de plusieurs variantes.













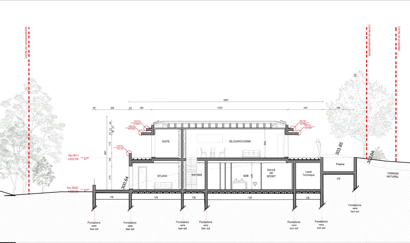
M-O : Privée│Localisation : Valecalle│Phases : Esquisse/APS et Permis de construire │En binome avec une cheffe de projet chez ADP architectes
Dialogue avec le client pour établir le programme du projet selon ses besoins et son budget. Les espaces de la maison principale et de son annexe ont été pensés pour pouvoir permettre une autonomie des differentes générations, parents, grands parents et enfants, ainsi que de permettre des locations saisonnières.
Les façades sont recouverte d’un enduit clair. Les ouvertures du projets, rythmées par des brises soleil, intègrent les ouvertures du projet dont les menuiseries sont en aluminium teinte bronze.

Façade - Maison principale

Coupe longitudinale - Maison principale


L’iimplantation des deux constructions épouses la courbe naturelle du site et sa topographie avec chacune leur orientation propre. Les parties hautes et basses de la maison principale sont également desaxéees afn d’offrir des vues différentes et de dégager une terasse au premier niveau.
transversale - Maison principale

transversale - Annexe
Localisation : Seine saint denis│Phase : CONCOURS│ ravai en é uipe sur e concours ( chitechtes D et moi m me) chez UrbanMakers

Perspective concours du projet (Réalisé en externe par un perspepectiviste)

Réalisation coupes et façades concours sur REVIT.



Réalisation coupes et façades concours sur REVIT.
Localisation : Lorient│Phase : CONCOURS│ ravai en é uipe sur e concours ( chitechtes D et moi m me) chez UrbanMakers

Vue du Projet (Perspectiviste)
3D réalisée sur REVIT

MO : Promotion immobilière│Localisation : Bordeaux│Phase : APS│Production de documents graphiques et 3D pour un dossier de controle de qualité des façades │dans le cadre d’un stage chez FLINT


Façade texturée
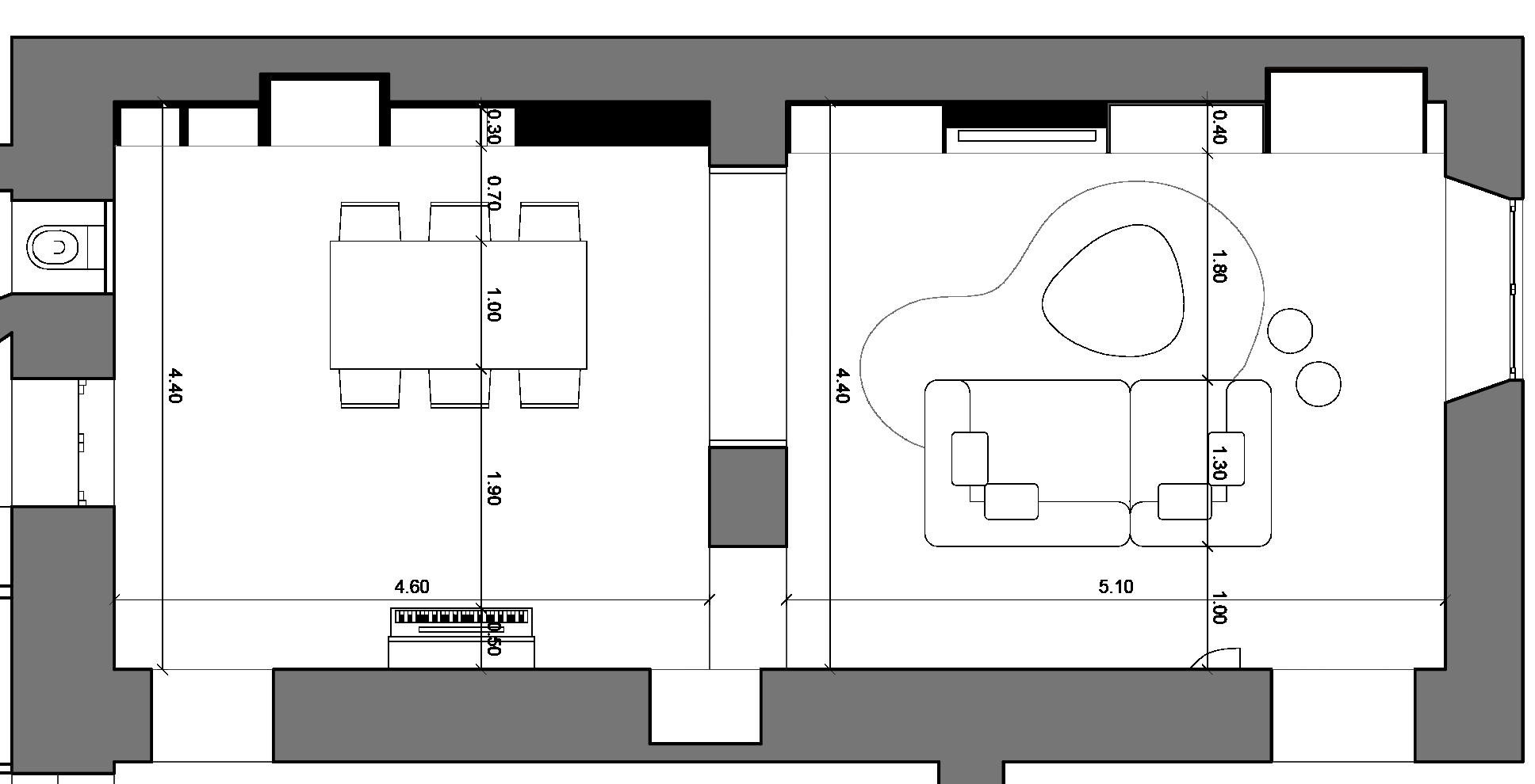
MO : Privée│Localisation : Bastia - Corse│Phase : ESQUISSE│Commande personnelle, hors agence
Plan relevé de l’appartement

Pour ce projet, réalisé à la demande d’une cliente propriétaire d’un appartement à Bastia, j’ai travaillé sur une ESQUISSE pour la rénovation de plusieurs espaces, dans le respect du budget de la cliente :
- Le séjour : Proposition de deux aménagements distincts, avec choix de mobilier.
- La salle de bain : Une refonte complète a été pensée pour optimiser l’espace et améliorer la fonctionnalité, tout en intégrant des matériaux modernes et brut.
- La cuisine : Conception d’un aménagement repensé pour maximiser les rangements et rendre l’espace plus convivial.
- Une des chambres : L’accent a été mis sur le confort et l’intimité, avec une sélection de meubles adaptés à l’espace et une palette de couleurs douces.













MO : Privée│Localisation : Patrimonio - Corse│Phase : ESQUISSE│Commande personnelle, hors agence
Le projet :
Ce projet consiste en la création d’une structure extérieure en bois dans le cadre de l’agrandissement d’un restaurant à Patrimonio, en Corse.
La contrainte était de construire rapidement en utilisant au maximum des élément recyclés (Menuiseries, mobilier etc...)
Pour se faire, j’ai proposé un batiment en structure bois, dont la façade ouest serait vitrée, traitée avec des menuiseries récupérées et réhabilitées. L’espace vu de l’interier serait conçu dans l’esprit d’une serre tropicale.

Plan 1/100
Plan - Esquisse


Vue 3D
Schéma Structure Bois pour chiffrage charpente
Elevation Profl de la charpente


Pourtant cette réalité est le cas de plus d’un décès sur deux en France. L’hôpital a été pensé comme une machine à soigner effcace, mais lorsqu’il s’agit de la « fn de vie », son écriture architecturale, rigide, générique et ultra rationaliste peut devenir aliénante pour le patient et les familles. On constate alors une forme de dé-socialisation entourant ce dernier segment de l’existence. Ces réfexions m’ont conduites à questionner la pertinence d’une nouvelle écriture architecturale pour un centre de soin palliatif en dehors de l’hôpital public. Comment l’architecture peut-elle renverser les normes institutionnelles en matière de soin ? ELLIPSIS
Dans un contexte global marqué par une accélération sans précédent du rythme de vieillissement des sociétés d’Europe occidentale et de fragilisation des traditions religieuses, les derniers moments vécus par les personnes malades peuvent apparaitre vides de signifcation lorsqu’ils ont lieu à l’hôpital public.



Le projet prend place sur les hauteurs de Floirac, à travers la réhabilitation du domaine de la Chartreuse de Bel Sito. Cette demeure, de style néo-classique inspiré des villas italiennes demeure à l’état de ruine, entourée par 5 autres batiments à l’abandon eux aussi. Le site semble fgé, hors du temps, dans un état d’abandon préoccupant. Mon projet propose une vision de la réutilisation de ses batiments, en y injectant le programme complexe du centre de soin et par la création d’un dialogue entre les différentes entités au moyen d’un parcours paysager insolite.


PFE - Architecture Située
PFE - Architecture Située




CHARTREUSE DE BEL SITO
Maison des familles
Etat Projetté




Projet M1 - Architecture Située Xavier Leibar/Aline Lefort
Projet M1 - Architecture Située Xavier Leibar/Aline Lefort

