Station
Groningen
Onderdeel van
![]()
Onderdeel van

Onderdeel van
Redactie
Miguel Loos - Bureau Spoorbouwmeester
Noor Scheltema - NS Stations
Roderick Jacobs - NS Stations
8 november 2013
Het is meer dan 175 jaar geleden dat de eerste trein ging rijden in Nederland. In al die jaren is een unieke verzameling van stationsgebouwen ontstaan met een veelheid aan afmetingen, stijlen en materialen. De historische ontwikkeling van de spoorwegen en stationsgebouwen is in deze diversiteit terug te zien. De stations zijn ongeacht hun bouwperiode continu aan veranderingen onderhevig: Van het verdwijnen van aparte bagage afhandeling tot het inpassen van OV-chipkaart poortjes. Het is bijzonder dat ondanks deze grote veranderingen, de stationsgebouwen uit de 19e eeuw dagelijks nog tienduizenden mensen bedienen met uiteenlopende voorzieningen. Dit oude en jongere stationserfgoed verdient dan ook speciale aandacht. Het stationserfgoed is een enorme kans om reizigers en betrokkenen mee te nemen in het verhaal van de spoorwegen in Nederland door de tijd heen. Door het bewaken, herstellen en ‘oppoetsen’ van de unieke kwaliteiten van het stationserfgoed blijven stations bijzondere en aansprekende plekken.
Stationserfgoed en De Collectie
ProRail en NS Stations voelen zich als gezamenlijk eigenaar van alle stations in Nederland verantwoordelijk voor dit vastgoed met maatschappelijke waarde. Daarom is samen met Bureau Spoorbouwmeester door Crimson Architectural Historians, Urban Fabric en SteenhuisMeurs onderzoek gedaan naar de cultuurhistorische waarde van voor- en naoorlogse stations. Aan de hand van inventarisaties zijn vijftig stations geselecteerd met de hoogste cultuurhistorische waarde die zijn omgedoopt tot De Collectie. Daarbij is uit ieder cluster van gelijksoortige stations telkens het gaafste, beste exemplaar, qua interieur en exterieur, toegevoegd. NS Stations en ProRail hebben De Collectie sindsdien omarmd en de verantwoorde omgang met deze waardevolle stations als belangrijk thema aangemerkt.
Waardestellingen
Na vaststelling van De Collectie bleek diepgaand onderzoek nodig om bij het plannen van stationsverbouwingen gerichte aanpassingen te kunnen doen om de cultuurhistorische waarde te herstellen en te bewaken. In 2012 is besloten om voor alle stations uit De Collectie een Cultuurhistorisch Onderzoek en Waardestelling, kortweg Waardestelling, uit te laten voeren door gespecialiseerde onderzoeksbureaus. De mate waarin een stationsgebouw kan functioneren als station blijkt essentieel voor de cultuurhistorische waarde. Daarom zijn door Bureau SteenhuisMeurs speciale richtlijnen opgesteld, waardoor het functioneren van het station als rode draad door iedere Waardestelling loopt.
De Waardestellingen geven waardevolle inzichten voor het ontwikkelen van een visie en ontwerp bij stationsverbouwingen en worden zodoende al vanaf de eerste fase van ieder project geraadpleegd. De meerwaarde van deze rapportages heeft ProRail en NS Stations doen besluiten om ook voor monumentale stations buiten De Collectie een waardestellend onderzoek op te laten stellen.
ProRail, NS Stations en Bureau Spoorbouwmeester zijn trots op de reeks Waardestellingen die door jaren van succesvolle en nauwe samenwerking tot stand zijn gekomen. Met de kennis die door de Waardestellingen aanwezig is zal de cultuurhistorische waarde van de Nederlandse stations de aandacht krijgen die het verdient.
Veel leesplezier met de beschrijving van de rijke cultuurhistorie en architectonische kwaliteiten van de stations.
April 2016
NS Stations
ProRail Bureau Spoorbouwmeester
Kaders van aanbevelingen
ProRail en NS Stations zijn zich bewust van de kracht en waarde van het stationserfgoed. Vanuit dit perspectief zijn onafhankelijk experts gevraagd om de Waardestellingen op te stellen. Vooropgesteld, NS Stations en ProRail hebben de intentie om de conclusies en aanbevelingen uit de Waardestellingen te volgen. Echter, functionele eisen of financiële en juridische kaders kunnen maken dat sommige aanbevelingen niet, niet geheel of niet direct haalbaar zijn. Desondanks nemen NS Stations en ProRail alle aanbevelingen serieus omdat hiermee de juiste discussies gevoerd kunnen worden. We willen graag met de belanghebbenden in gesprek gaan over hoe we gezamenlijk de cultuurhistorische waarde van het stationserfgoed kunnen borgen. Met als doel om de reizigers goed functionerende en aangename stations te bieden.
Contact: waardestellingen@nsstations.nl
cultuurhistorisch

project
Naam: Station Groningen
Adres: Stationsplein 4
9726 AE Groningen
Status.: - stationsgebouw -> rijksmonument, monumentnummer: 18691
- perronoverkappingen en traverse met seinhuis -> gemeentelijkmonument
Kadastraal: Gemeente Groningen A t/m R, sectie C, nummers 2542/47
Doel: Cultuurhistorisch onderzoek en waardestelling
Auteurs: Stefanie Weser
Claudia van Kouwen
Eva Dubbelboer
Datum: 8 november 2013
Formaat: A4
opdrachtgever / eigenaar
Naam: NS Stations B.V.
Roderick Jacobs
Adres: Postbus 2534
3500 GM Utrecht
E-mail: roderick.jacobs@ns.nl
adviseur / architect
Naam: TAK architecten
Adres Delft: Zocherweg 2A 2613 ZV Delft
Tel: 015 212 59 03
Fax: 015 212 56 64
Adres Arnhem: Van Oldenbarneveldtstraat 92-2 6827 AN Arnhem
Tel: 026 442 67 50
Fax: 026 370 24 60
E-mail: info@takarchitecten.nl
Website: www.takarchitecten.nl
adviseur cultuurhistorie
Naam: Claudia van Kouwen MA, MSc
Adres: Fazantenlaan 58 3704 EN Zeist
Tel: 06 21958597
Email: info@claudiavankouwen.nl
Website: www.claudiavankouwen.nl
1.1 Het station in de geschiedenis van de 6 spoorwegontwikkeling
1.2 Het station in het oeuvre van de architect 9 en de architectuurgeschiedenis
1.3 Gebruiksgeschiedenis
3.1 Opzet emplacement, uitwerking reizigers- 38 en bagagestromen, opzet perrons en perronbebouwing
3.2 Veranderingen en aanpassingen 42 in latere fases
4.2 Gebouw: veranderingen en aanpassingen
4.3 Perrons: oorspronkelijke opzet van de 78 architectuur, constructie, materialisatie, ornamentiek
4.4 Perrons: veranderingen en aanpassingen 80 in latere fases
Aanbevolen vervolgonderzoeken
cultuurhistorisch onderzoek en waardestelling
Het station van Groningen, ontworpen door Isaac Gosschalk, werd in 1896 opgeleverd. Het pronkstation werd uitgevoerd als een dubbel kopstation met een stationsgebouw, twee eind(toilet)gebouwen en twee overkapte perrons. De perrons werden recht voor de vestibule verbonden met een overkapt perronplein. In 1928 werd het emplacement uitgebreid met een 3e overkapt perron, dat bereikt kon worden via een traverse, en een verlenging van het 2e perron met een overkapping. Op deze traverse, boven de overkappingen, werd een seinhuis gebouwd.
Het stationsgebouw met nog één aanwezig eindgebouw is een rijksmonument. Alle perronoverkappingen en de traverse met het seinhuis zijn beschermd als gemeentelijk monument.
Om het huidige station Groningen te kunnen begrijpen is het cruciaal om met name de historische stedenbouwkundige ontwikkelingen te onderzoeken en analyseren die nog vóór de oprichting van het pronkstation in 1896 hebben plaatsgevonden.
Deze situatie, waarin het nieuwe station in 1896 werd opgericht, kenmerkt tot op heden de stationsomgeving. Belangrijk is te verkennen welke relatie het pronkstation in de oorspronkelijke opzet met zijn omgeving heeft gehad en waarin de kwaliteiten lagen.
Het in opdracht van NS Stations uitgevoerde onderzoek geeft een inventarisatie van de cultuurhistorische waarde om de samenhang tussen de verschillende schaalniveaus van
de stad, het emplacement en het gebouw uit een te zetten. Doel van het onderzoek is om zich van de oorspronkelijke opzet van deze schalen nadrukkelijk bewust te zijn om van hieruit plannen voor (deel)verbouwingen, uitbreidingen en gebiedsontwikkelingen afgewogen te ontwikkelen. Belangrijk is om bewuste keuzes te maken op basis van de aanwezige, te koesteren of te herontwikkelen kwaliteiten. Hierbij moet een monumentale waarde van een complex niet als belemmering beschouwd worden maar juist als potentie om een dynamische en duurzame toekomst te kunnen ontwikkelen.
TAK architecten, november 2013
1.1 Het station in de geschiedenis van de spoorontwikkeling
Spoorontwikkeling in de provincie Groningen
Bij besluit van 24 maart 1855 werd concessie verleend voor de aanleg en exploitatie van de spoorweg die loopt van de haven van Harlingen, langs Franeker, Leeuwarden, Meppel, Zwolle en Almelo naar Duitsland en een spoorlijn van Leeuwarden naar Groningen. Daarnaast werd er een voorkeur uitgesproken voor een tweede lijn van Groningen via Winschoten en Nieuweschans naar Leer. Het spoorwegnetwerk werd aangelegd door de Maatschappij tot Exploitatie van Staatsspoorwegen en het netwerk werd vanaf 1893 aangevuld met spoorwegen van lokale maatschappijen zoals de Groninger Locaal Spoorwegmaatschappij die een spoorlijn aanlegde van Sauwerd naar Roodeschool. Vanaf 1910 breidde het spoorwegnetwerk in het noordoosten van de provincie Groningen zich snel uit.
Er werd een spoorlijn van Delfzijl naar Stadskanaal en een directe lijn van Groningen naar Delfzijl aangelegd. Ook kwam er een tramspoor van Groningen naar Drachten in 1913. Bij de oprichting van de Nederlandse Spoorwegen in 1938 werden alle rendabele spoorlijnen overgenomen door de Nederlandse Spoorwegen en de lijnen die niet meer rendabel waren werden opgeheven.

1866 Harlingen-Leeuwarden-Meppel-Zwolle-Almelo (MESS)
1866 Leeuwarden-Groningen (MESS)

Drachten
1893 Sauwerd-Winsum-Roodeschool (GLS)
1910 Stadskanaal-Zuidbroek-Delfzijl (NOLS)
1913 Groningen-Drachten (NTM)
Meppel
Assen
Groningen

1868 Groningen-Winschoten-Nieuweschans (MESS)
1870 Groningen-Assen-Meppel (MESS)
Zoutkamp
Sauwerd Nieuweschans
Groningen
Delfzijl
Winschoten

1884 Groningen-Sauwerd-Delfzijl (MESS)

1922 Winsum-Zoutkamp (GLS)
1924 Stadskanaal-Ter Apel (STAR)
1929 Groningen-Delfzijl (WESTIG)
Winsum Delfzijl
Groningen
Leeuwarden
Harlingen
Stadskanaal
Ter Apel
Meppel
Sauwerd
Groningen
Delfzijl
MESS Maatschappij tot Exploitatie van Staatsspoorwegen
NTM Nederlandse Tramweg Maatschappij

Winschoten Nieuweschans Assen Roodeschool
GLS Groninger Locaal Spoorwegmaatschappij
NOLS Noordooster Lokaal Spoorwegmaatschappij
STAR Spoorwegmaatschappij Stadskanaal-Ter Apel-Rijksgrens
WESTIG Woldjerspoorweg en Stroomtramwegen in Groningen
NS Nederlandse Spoorwegen (neemt alle rendabele lijnen over)
1938 oprichting Nederlandse Spoorwegen (NS) Alle niet rendabele lijnen worden opgeheven

Afb. 1.1: Ontwikkeling Spoorwegen in Groningen

In 1860 wees de Commissie voor de Staatssporen in Groningen een plaats aan voor de ligging van het stationsgebied. Dit gebied lag ten zuiden van de stad naast de hoofdtoegangsweg tot de vesting (de huidige Herebrug). Op deze wijze kreeg het station een aansluiting met de vesting, de weg naar Haren en Assen en met het vervoer over het water. De keuze voor de ligging ten opzichte van de stad en de vestingwerken wordt in
De spoorlijn Leeuwarden-Groningen werd in 1866 met een noodgebouw in Groningen geopend. Vanwege de Kringenwet uit 1853 mochten er in de buurt van vestingwerken geen stenen gebouwen worden opgericht. Zo ontstond er, als opvolger van


het noodstation uit 1866, in 1872 een stationsgebouw dat in houten stijl- en regelwerk werd opgetrokken. Dit gebouw werd door de spoorwegarchitect K. H. van Brederode (1827-1897) ontworpen.
Het stadsbestuur heeft zich toen sterk gemaakt om de status van vestingstad op te heffen. Op 18 april 1874 werd in Nederland de Vestingwet aangenomen, waardoor onder andere Groningen zijn vesting mocht ontmantelen. Vooral het uitbreiden van de stad en het verbeteren van het station en stationsgebied hadden hoge prioriteit vanwege de rol die het spoor speelde in het vervoer voor de vee-, graan- en houthandel. Door de uitbreiding van het spoorwegennet nam de handel in vee vanuit Engeland, Frankrijk en Duitsland sterk toe. Groningen werd


internationaal bekend om zijn veemarkten en het vervoeren van vee geschiedde vooral via de spoorwegen. In 1892 werd een nieuw veemarktterrein geopend met laad- en losplaats bij het spoor.
Het succes van de spoorwegen verlangde een groter station en in 1893 werd aan de dan befaamde architect Isaac Gosschalk (1838-1907) opdracht verleend om het ontwerp van het nieuwe station, een station ‘1e klasse’ te ontwikkelen. Het nieuwe stenen station van Gosschalk werd op dezelfde plaats gebouwd als waar het eerdere houten station stond en werd in 1896 geopend.

1.2 Het station in het oeuvre van de architect en de architectuurgeschiedenis
Architect
De architect Isaac Gosschalk (1838-1907) kan gezien worden als grondlegger van de Hollandse, ook wel ‘nationale’, neorenaissance. Gosschalk is in zijn tijd een belangrijke architectuurtheoreticus die zijn visie op de juiste architectuurstijl in brieven naar tijdschriften, kranten en andere media stuurde.
Daarbij publiceerde hij veel in wetenschappelijke tijdschriften en wordt hij gezien als één van de eersten, samen met hoogleraar E. Gugel, die de herleving van de 16e en 17e eeuwse Hollandse Renaissance propageerde. Hij studeerde tussen 1858 en 1862 aan het Eidgenössisches Polytechnikum in Zürich die op dat moment één van de betere bouwkundeopleidingen in Europa had.
Toen Gosschalk weer in Nederland verbleef, werd hij lid van het Koninklijk Instituut van Ingenieurs en van de Maatschappij tot Bevordering der Bouwkunst. Ook zat hij in de redactie van meerdere (progressief-) liberale weekbladen zoals de Amstelstem en de Burgerpligt. In de jaren ‘70 was Gosschalk enige tijd voorzitter van de afdeling Amsterdam van de Maatschappij tot Bevordering der Bouwkunst, secretaris van het Koninklijk Oudheidkundig Genootschap en nam hij in 1875 zitting in de Amsterdamse gemeenteraad. In de gemeenteraad
was hij woordvoerder van de Commissie van bijstand in het beheer der Publieke Werken. Maar hoewel zijn autoriteit erkend werd, botsten zijn ideeën over architectuur, monumentenzorg en ruimtelijke ordening met de heersende liberale opvatting dat de overheid geen zorg hoefde te dragen voor de verfraaiing van de stad. Gosschalk ontwierp veel plannen voor de uitbreiding van Amsterdam. Enkele elementen van deze plannen zijn overgenomen door de directeur van de Publieke Werken, Jan Kalff.
In mei 1875 trad Gosschalk aan als opvolger van hoogleraar Gugel in het College van Rijksadviseurs voor de Monumenten van Geschiedenis en Kunst waarin Victor de Stuers (die als grondlegger wordt gezien van de Nederlandse Rijksmonumentenzorg) en de architect Pierre Cuypers al actief waren. De Stuers, Cuypers en Gosschalk werden als de belangrijkste leden van de commissie gezien. Deze regeringscommissie adviseerde direct aan de Minister van Binnenlandse Zaken. Zijn publieke functies zorgden voor veel bekendheid en in de jaren ‘70 kreeg Gosschalk daardoor meer ontwerpopdrachten. Hij deed mee aan verschillende prijsvragen en ontwierp niet alleen gebouwen: in 1864 ontwierp hij een derde spoorlijn van Amsterdam naar Rotterdam. Het plan van Gosschalk ging niet door maar hij raakte later wel betrokken bij een discussie die betrekking had op de door hem ontworpen spoorlijn: de stedenbouwkundige inbedding van het
nieuwe centraal station in Amsterdam. Zijn betrokkenheid in het College van Rijksadviseurs en zijn eerdere ambitieuze plannen voor een spoorlijn en stations kunnen aanleiding zijn geweest om Gosschalk te vragen als architect van station Groningen. De exacte reden waarom juist Gosschalk als architect is gevraagd, is niet bekend.

Ontwerpstijl
Tijdens zijn opleiding in Zürich volgde hij colleges van Gottfried Semper, een voorstander van de neorenaissance in een tijd waarin de hevige strijd tussen neorenaissancisten en de neogotici zijn hoogtepunt bereikte. Tijdens de strijd nam Gosschalk in het begin het standpunt in van Semper. Al snel veranderde de visie van Gosschalk en wilde hij beide stijlen combineren. Gosschalk sloot zich aan bij een derde groep omdat hij, zoals hij in een artikel uit 1899 toelichtte, “het goede in beide stijlrichtingen waardeerend, zich tot het zoogenaamde schilderachtige aangetrokken voelde“. Gosschalk was geen modernist maar wel op zoek naar, zoals hij het zelf noemde, een “moderne bouwstijl” waarbij hij hoofdzakelijk zijn inspiratie haalde uit de Nederlandse architectuur tot de 17e eeuw. Na de 17e eeuw had de Nederlandse architectuur volgens hem “gebroken met een goede gewoonte” en hij wilde de traditie van het toepassen van de architectuurstijl uit de glorieuze jaren van de Nederlandse geschiedenis weer in ere herstellen door de stijlen van de 17e eeuw te laten herleven. Toch geeft hij in de vele geschriften en ingezonden brieven aan dat er geen zuivere architectuurstijl gehandhaafd hoefde te worden: de basis zou neorenaissance zijn maar er konden motieven en elementen uit andere stijlen worden toegevoegd. Het karakter van een gebouw kreeg de prioriteit van Gosschalk en daarvoor wilde hij niet vasthouden aan stijlprincipes maar elementen uit
verschillende stijlen halen zodat het karakter van het gebouw sterker werd. Dit standpunt is duidelijk te herkennen in zijn laatste werk, het station Groningen, waar hij zowel gotische als neo-renaissancistische stijlelementen combineerde. Zoals hij zelf aangeeft in zijn vele brieven stond het ‘schilderachtige’ centraal in zijn werk en probeerde hij dit met een combinatie van het “beste” van beide architectuurstijlen te bereiken. Volgens Gosschalk moest een goede architect letten op “schaduwwerking, op de wijze waarop een gebouw tegen de lucht uitkomt, het silhouet”. Het schilderachtige was volgens hem niet afhankelijk van het gebruik van dure materialen,

hij wenste dit effect te realiseren door een eenvoudige groepering van de onderdelen van een gebouw. Daarbij zijn de verhoudingen tussen en de positionering van de onderdelen belangrijk. Een goed voorbeeld hiervan is een opvolging van doorgangen waardoor ruimtes, die door hun verhoudingen en afwerkingen in relatie tot elkaar staan, waar te nemen zijn. Dit kwam veel voor in de (barok)classisistische periode, wat ook vaak in de schilderkunst werd uitgebeeld.

Station in het oeuvre van de architect Ondanks zijn belangrijke bijdragen aan de Nederlandse architectuurgeschiedenis en –debatten bestaat het oeuvre van Isaac Gosschalk niet uit talrijke gebouwen. Het duurde tot in de jaren ‘80 voor hij veel opdrachten kreeg. Gosschalk werd een veel geprezen architect met ontwerpopgaven zoals het Nederlands-Israëlitisch ziekenhuis, het Broekerhuis, de godsdienstschool van de vereniging Talmoed Tora (allen afgebroken) en in opdracht van Gerard Heineken de Westergasfabriek, de Oostergasfabriek en Die Port van Cleve, allen te Amsterdam. Zoals hiervoor al omschreven propageerde
Gosschalk in de eerste jaren de Hollandse neorenaissance, maar gaf zijn ontwerpen meer detaillering en uitbundige details mee dan andere medegrondleggers van deze architectuurstijl, zoals Eugen Gugel en Constantijn Muyskens die veel soberdere ontwerpen maakten. Nog voor de Hollandse neorenaissance het hoogtepunt van zijn populariteit bereikte, ontwikkelde
zoals de neorenaissance in combinatie met de neogotiek, gecombineerd wordt met het gebruik van nieuwe materialen en technieken wat kenmerkend is voor deze architect.

Gosschalk een meer eclectische stijl. Deze stijl van Gosschalk is te herkennen in Die Port van Cleve en het Groningse station waar hij naast een Hollandse neo-renaissancistisch ontwerp ook vormen gebruikte die zijn ontleend aan de hoge en late gotiek. Het ontwerp van station Groningen is zijn laatste werk en het enige station dat Gosschalk heeft ontworpen. Het station wordt gezien als het belangrijkste werk van de architect omdat in dit werk zijn visie over de inzet van de juiste architectuurstijlen, Afb.


Station in de spoorwegarchitectuurgeschiedenis
Om de bouw van stations structureel te laten verlopen, heeft de Maatschappij tot Exploitatie van de Staatsspoorwegen omstreeks 1862 een serie standaardstations ontworpen: een station 1e klasse is een groot station dat hoort bij grotere steden waarbij de spoorbanen worden overdekt. Terwijl de 5e klasse stations zo klein waren dat ze haltegebouwen werden genoemd. Groningen werd hierbij in de stations 1e klasse ingedeeld.
Wat toen de basis van het standaardstation 1e klasse was is niet helemaal duidelijk. De architectuur van de stations werd vanaf rond 1824 tot medio 1800 bepaald door de periode van de ‘Waterstaatstijl’: ieder ontwerp van een gebouw dat (deels) werd gefinancierd door de overheid, diende te worden goedgekeurd door de ingenieurs van het Ministerie van Waterstaat. De ingenieurs keurden een ontwerp vaak pas goed als het overeenkwam met de heersende neo-classicistische stijl. Deze stijl werd door tegenstanders vaak ten onrechte ‘Waterstaatstijl’ genoemd. De ‘Waterstaatstijl’ is dus geen echte bouwstijl maar zegt meer over hoe het gebouw werd gefinancierd. Een vergelijking met andere 1e klasse stations uit die periode laat bepaalde constanten zien, zoals een hoog middenpaviljoen (1) dat via lage vleugels (2) symmetrisch met hoekpaviljoens (3) verbonden is.
Stations 1e klasse tijdens de Waterstaatstijl-periode (neo-classicistische stijl):





Medio 19e eeuw mocht in Groningen vanwege de Vestingwet een dergelijk stenen gebouw nog niet buiten de vesting worden opgericht. Voor Groningen en de andere vestingsteden ontwierp spoorwegarchitect Van Brederode gebouwen met een houten constructie die snel gesloopt zouden kunnen worden. Voor deze stations werd geen standaardtype ontwikkeld zodat
deze ook in afmetingen verschilden. Het houten station van Groningen werd in 1872 geopend. Net voor het opheffen van de status als vestingstad in 1874. Het duurde dan ook ruim 25 jaar voordat het nieuwe stenen stationsgebouw in 1896 werd gerealiseerd.



De standaardtypen van de stations werden aan het einde van de 19e eeuw aangepast aan de moderne tijd en ook aan de architectuur werd steeds meer zorg besteed. De bouw van het stenen pronkstation viel daarmee in een periode waarbij een (vooralsnog onbekende) grondvorm werd vastgesteld door de Maatschappij tot Exploitatie van de Staatsspoorwegen en de bestekken werden gekeurd door het Ministerie van Waterstaat.
Isaac Gosschalk zou aanvankelijk alleen de opdracht voor het ontwerpen van de gevels van het station Groningen krijgen bij een te verstrekken plattegrond als grondvorm met de bijhorende waar te nemen constanten. Niet uit te sluiten is dat ook de eindgebouwtjes tot de uitgangspunten behoorden.
Eindgebouwen waren als onderdeel van het totaalensemble vaak bij standaardstations aanwezig. Maar na protest kreeg Gosschalk toch de leiding over het gehele ontwerp. In hoofdlijn is bekend dat hij hierdoor zijn eigen voorkeuren in het ontwerp kon realiseren, namelijk het aanhouden van een neorennaissance stijl ondersteund door andere architectuurstijlen, met name de neogotische. In Nijmegen en ’s Hertogenbosch werden na de Vestingwet ook stenen stations gebouwd waarbij dezelfde kenmerken, met dezelfde toen modernere architectuurstijl, waar te nemen zijn.

Uit het artikel van Gosschalk (‘Bij de Platen, betreffende het nieuwe station te Groningen’. In: Bouwkundig Tijdschrift 17, 1899) blijkt dat hij zijn ontwerp ook heeft aangepast aan de toen in Europa heersende stationstypologie: in veel Europese stations was de colonnade een kenmerkend onderdeel van de typologische expressie. Dit is te zien in de stations Gare de l’Est in Parijs, King’s Cross in Londen en het station van München (zie blauwe kaders in de afbeeldingen). In Nederland daarentegen werd de colonnade nauwelijks toegepast in stationsgebouwen. Wel is een strenge ritmiek en herhaling van dezelfde openingen in het gevelbeeld van stationsgebouwen af te lezen waardoor een colonnade effect ontstaat. Maar voor zover in dit onderzoek vastgesteld kon worden, is station Groningen het enige Nederlandse stationsgebouw waarin een colonnade is geïntegreerd.
Een verdere overeenkomst met de 19e eeuwse Europese stationtypologie is het triomfboogmotief met lunetvenster boven de hoofdingang (zie roze kaders in de afbeeldingen). In Europa komt dit classicistische motief vooral voor bij kopstations en een enkele keer bij een parallelstation. In Nederland waren deze motieven te vinden in de kopstations Leiden en Den Bosch.







Het Groningse station werd in 1896 opgericht als dubbel kopstation. Gosschalk stelde in zijn artikel uit 1899 dat hij liever een andere vorm voor het station gezien had: een vorm waarbij het station haaks op de perrons zou staan. Door de vastgestelde grondvorm van het station was dit niet mogelijk. In hoeverre hij bij de vormgeving van de perronoverkappingen betrokken was kon binnen dit onderzoek niet worden aangetoond. Wel is echter een bepaalde architectonische stijl en uitwerking van het totaal ensemble te herkennen die in sterke mate doet vermoeden dat Gosschalk invloed had op het ontwerp hiervan (zie H4). Het emplacement heeft een bepaalde identiteit die een duidelijke relatie met het hoofdgebouw heeft. Deze wordt gekenmerkt door een rijke detaillering, verschillende kaphoogtes en een ‘perronplein’ met een haaks op de spoorkappen aangebrachte lage kap. In de aanwezigheid van dit perronplein ligt het kenmerk van het dubbel kopstation in Groningen. Zijn functie als oriëntatie- en knooppunt en zijn architectonische relatie met het stationsgebouw was essentieel voor het functioneren van het emplacement.
De sporen 2 en 3 werden duidelijk als eindsporen gerealiseerd. Spoor 1 vond zijn eindpunten direct naast de eindgebouwen. Daarentegen was spoor 4 wel een doorgaande spoorlijn maar dat wil niet zeggen dat de reizigers hier konden doorrijden. Een station kan een dubbel kopstation genoemd worden als fysiek geen doorgaand treinverkeer plaatsvindt maar ook wanneer
doorgaand treinverkeer wel mogelijk is waarbij geen doorgaand reizigersvervoer plaatsvindt. In Groningen waren vermoedelijk beide gevallen van toepassing.
De reden voor de aanleg van een dubbel kopstation is onbekend.
Het kan zijn dat het station als eindpunt voor verschillende spoorlijnen diende of dat de elite van Groningen, die eerder al een (onbekend) ontwerp afkeurde omdat het niet rijk genoeg vormgegeven zou zijn, meer aandacht voor het station wilde door de reizigers te laten overstappen. De verplichte overstap op het station zorgde ervoor dat ook de doorgaande reiziger het pronkstation te zien kreeg.
Veel dubbele kopstations zijn verdwenen of hebben de functie van een doorgaand station gekregen. Zo was station Zwolle vroeger een dubbel kopstation en op dit moment is station
Enschede dat nog steeds. De structuur van het dubbele kopstation, met een perronplein als gevolg van de twee samenkomende sporen, is kenmerkend voor het emplacement van station Groningen.




In 1896 was het station verdeeld in drie gebruiksfuncties:
- de westelijke vleugel werd vooral ingevuld door personeelsvoorzieningen,
- in de vestibule en de oostelijke vleugel bevonden zich de reizigersvoorzieningen,
- op de verdiepingen in de hoekpaviljoens zijn de dienstwoningen gehuisvest voor de restaurateur, de opzichter, de stationschef, de souschef en de medewerker die verantwoordelijk was voor de verlichting van het emplacement.
In de geschiedenis van het station zijn er tot op heden niet veel nieuwe functies bijgekomen maar de ruimtebehoeften van de functies zelf kregen andere verhoudingen ten opzichte van elkaar. Deze verschuivingen zijn weergegeven op de afbeelding hiernaast. In H4 wordt nader ingegaan op deze veranderingen.
Naar aanleiding van de gebruiksgeschiedenis en daarmee de veranderingen van het oorspronkelijke (architectonische) concept van het gebouw kunnen de volgende fasen onderscheiden worden:
Fase 0, de uitgevoerde situatie in 1896
De functionele deling tussen de oostelijke en de westelijke vleugel is duidelijk te herkennen. Terwijl de zolder van de westelijke
vleugel ook werd gebruikt voor personeelsvoorzieningen, was de zolder van de oostelijke vleugel niet in gebruik. De voorgevel was de belangrijkste gevel, niet alleen met betrekking tot zijn architectuur maar ook tot het gebruik.
Fase 1, eerste veranderingen in routing en ruimtelijke hoofdstructuur, WOII - 1968
Een essentiële verandering tot eind jaren ‘60 was het afsluiten van de zijgangen waardoor de vleugels vanaf de vestibule niet meer te bereiken waren (geplaatste trap, 1 op tekening, en vergrote bagage- en kantoorruimte, 2 op de tekening). De oorspronkelijke restauratie werd met een nieuwe ingang vanuit de galerij toegankelijk gemaakt. De wachtkamer en voormalige damessalon 1e en 2e klasse en de wachtkamer 3e klasse waren alleen maar nog via de achterkant te bereiken. Aannemelijk is dat in deze periode de achtergevel aan betekenis toenam. Deze aanpassingen kunnen als beginpunt van de logistieke maar ook architectonische afwijking ten opzichte van het oorspronkelijke concept worden gezien. Verder is op de tekening van 1969 te zien dat de oorspronkelijke bouwkundige structuren in de westelijke vleugel al grotendeels ten behoeve van herziene personeelsvoorzieningen waren verdwenen.
Fase 2, de grote verbouwing in 1968
De functionele deling tussen de westelijke en oostelijke
vleugel werd met de modernisering in 1968 opgeheven. De functies werden meer en meer in het gebouw gemengd. Door de toename aan commercie (wordt in deze gezien als een reizigersvoorziening) zijn ook aanvullende personeelsvoorzieningen nodig. Er werd een tussenvloer in de vestibule geplaatst ten behoeve van een recreatieruimte voor het personeel (3). De functies begonnen zich dus te vermengen waardoor de logistiek en daarmee de beleving van de architectuur van het pronkstation ingrijpend veranderde. Het station was geen gebouw meer om in te verblijven maar was gericht op snelle doorstroming en afhandeling van de reizigers.
Dit is te herkennen aan de aangepaste looproute die nu in het middengedeelte rechtdoor liep. De woningen op de verdieping verdwenen en ook deze ruimtes werden bestemd voor het personeel.
Verdere aanpassingen zorgden tot eind jaren ’90 voor verder verlies van historisch materiaal en bouwkundige structuren.
Fase 3, de restauratie in 1998/2000
De bestaande toestand van 1995 laat zien dat ook de wachtkamer 3e klasse voor personeelsvoorzieningen werd ingericht. Bekend is dat er toen diverse ruimtes leeg stonden. De Nederlandse Spoorwegen zag in deze leegstand een potentie met betrekking tot commercie. Na een inventarisatie hoe bepaalde ruimtes weer goed toegankelijk gemaakt konden
worden, werd besloten om de monumentaliteit van het station als kwaliteit te zien en voor de commercie te benutten. Het doel was om met het herstel van de oude afwerkingen en de ruimtelijke structuren, met name de relatie tussen vestibule en de westelijke en oostelijke vleugel, de reizigers (en ook andere bezoekers) voor de commercie naar het station te “lokken”.
Hiervoor werd ook de logistiek in het gebouw deels weer teruggebracht naar het oorspronkelijke ontwerp. Sommige ruimtes zoals de oorspronkelijke wachtkamer 3e klasse werden met de restauratie opgeleverd zonder nog een exacte commerciële invulling te kennen. Deze restauratie werd in 2000 met de “Europa Nostra Medal of Honor“ geërd.
Inmiddels zijn bijna alle ruimtes op de begane grond in gebruik waarbij deze hele laag voor commerciële doeleinden met zijn nevenvoorzieningen gebruikt wordt, behalve het westelijke hoekpaviljoen (1), het tochtportaal (2), de voormalige bagageruimte (3) en de voormalige telegraaf (4). Het westelijke hoekpaviljoen, de kapruimtes van de westelijke vleugel en de verdieping van het oostelijke hoekpaviljoen worden volledig gebruikt voor personeelsvoorzieningen. De met de restauratie van 1998/2000 tot vergadercentrum verbouwde kapruimtes van de oostelijke vleugel staan tot op heden leeg.




Reizigersvoorziening
Personeelsruimte
Woning ruimte

Afb. 1.32: Plattegronden en doorsneden
1.4 Samenvatting
- Omstreeks 1862 wordt Groningen door de Commissie voor de Staatsspoorwegen als 1e klasse station ingedeeld. Bij deze klasse worden ook perronoverkappingen toegepast. Vanwege het feit dat Groningen een vestingstad was werd er in 1872 een gebouw in een houten constructie opgericht.
- De aanleg van de spoorlijnen stimuleerde de economische groei van de stad Groningen en de aangrenzende regio (door het vervoer van graan, hout en vooral vee, zowel nationaal als internationaal). Daarom werd in 1896 het stenen stationsgebouw als pronkstation inclusief perronoverkappingen gebouwd.
- Hoewel niet bekend is welke uitgangspunten de architect voor het ontwerp van MESS precies heeft meegekregen laten zich bepaalde overeenkomsten met andere stations vaststellen, te weten een grondvorm van een hoog middenpaviljoen met symmetrische zijvleugels die door hoekpaviljoens beëindigd worden. Mogelijk horen de eindgebouwen ook tot de standaard en completeren het ensemble.
- Het station hoort tot de groep stationsgebouwen die vanwege hun modernere architectuur (eclecticisme) afwijken van de tot die tijd gehanteerde procedure en vormgeving van stationsgebouwen 1e klasse (neo-classicistisch) die door overheidsgeld gefinancierd werden.
- De opdracht voor het ontwerp van het station ging naar de architect Isaac Gosschalk die een belangrijke bijdrage heeft geleverd aan de Nederlandse architectuurgeschiedenis.
- Het nieuwe station werd opgericht als een dubbel kopstation wat door de vormgeving van de kappen met het perronplein gekenmerkt werd. Een invloed van Gosschalk op de vormgeving van de perronoverkapping is niet uit te sluiten (zie hiervoor H4).
- Het is het enige station dat Gosschalk heeft ontworpen en is het belangrijkste werk binnen het oeuvre van Gosschalk door de gebruikte architectuurstijl.
- Het station is een kenmerkend voorbeeld voor de eind 19e eeuwse (Europese) stationstypologie van een kopstation door de colonnades ter plaatse van de zijvleugels en het lunetvenster ter plaatse van het hoge middenpaviljoen boven de luifel. Alhoewel de colonnades een bekend onderdeel van
een station in Europa zijn werden deze in Nederland niet of nauwelijks toegepast.
- De functionele indeling van de oorspronkelijke structuur werd tot en met 1968 fors veranderd. De veranderde visie op het station als doorstromingsgebouw stond haaks op het oorspronkelijke verblijfsconcept.
- De oorspronkelijke structuur en beleving binnen het stationsgebouw is grotendeels hersteld tijdens de restauratie in 1998/2000.
1.5 Conclusie
- Het station was van regionaal belang voor het vervoer van vee, hout en graan en heeft zo een bijdrage geleverd aan de (economische) ontwikkeling van de provincie Groningen.
- Het station is een zeldzaam overgebleven voorbeeld van een dubbel kopstation omdat veel kopsporen in de loop der jaren zijn veranderd in doorgaande sporen.
- Het perronplein dat de kopsporen scheidt, is een verkeersknooppunt geweest voor de (overstappende) reiziger en markeert met zijn functie en vormgeving het station als dubbel kopstation.
- Binnen het oeuvre van architect Isaac Gosschalk is het stationsgebouw het belangrijkste werk.
- Gosschalk heeft ondanks de vastgestelde grondvorm toch een persoonlijke stempel weten te drukken op de vormgeving van het station. Hij heeft de plattegrond kunnen wijzigen en in het ontwerp van het in- en exterieur is zijn ontwerpvisie duidelijk te herkennen.
- Het station is cultuurhistorisch van internationaal belang omdat het aansluit bij de Europese stationstypologie. Ook de eer van de “Europa Nostra Medal of Honor” voor de restauratie in 1998/2000 stelde het stationsgebouw nadrukkelijk in een Europees daglicht.
- Het stationsgebouw onderging vanwege een andere visie op het gebruik van stationsgebouwen eind jaren ’60 tot eind jaren’90 forse aanpassingen die voor grote schade en negatieve veranderingen in het stationsgebouw zorgden. Met de restauratie van 1998/2000 werd de grootste schade weer hersteld.
Om de stedenbouwkundige context van het stationsgebouw uit 1896 te kunnen begrijpen is het belangrijk de historische situatie en ontwikkeling in de stedenbouw vóór die tijd uiteen te zetten. Deze periode was maatgevend voor de stationslocatie en is tot op heden waarneembaar.
De stationslocatie ten tijde van de vestingstad, rond 1850 - 1877
Rond 1850 werd Groningen, door de bloeiende vee-, hout- en graanhandel en de opkomende industrialisatie met de daarbij behorende fabrieken, de derde handelsstad van Nederland. Hierdoor ontstond een sterke toename van het inwoneraantal.
Van de noodzakelijke verbetering van de infrastructuur waren de twee nieuwe kanalen, het Noord-Willemskanaal en het Eemskanaal, en de nieuwe spoorlijn de hoofdelementen. Spoorlijnen werden buiten de vesting (respectievelijk de bebouwde kom) aangelegd omdat daar ruimte was en geen bebouwing gesloopt hoefde te worden. De stationslocatie werd

2.1:

Legenda: water (deels) groen (kleine) wegen stationsplein

(lichte) bebouwing (deels) industrie/kantoor zichtlijnen

Afb. 2.2: Kaart 1875
daarmee ook buiten de vestingstad gezocht op een voor het goederentransport infrastructureel gunstige plek tussen het nieuwe Noord-Willemskanaal en de hoofdtoegangsweg naar de vestingstad, de huidige Hereweg.
Omdat het stationsgebied buiten de vesting en daarmee in het schootsveld lag mocht men geen stenen gebouw oprichten.
Het in 1872 in een houten constructie opgerichte symmetrische stationsgebouw werd met zijn middenas georiënteerd op een punt van de vestinggracht, de saillant. Het lag daarmee in het midden tussen het Noord-Willemskanaal en de meest belangrijke toegangsweg naar de stad, de huidige Hereweg.
Vanaf deze weg was er maar één toegangsweg richting het

emplacement, de Oude Stationsweg. Van hieruit bereikte men een overzichtelijk gedimensioneerd voorplein, met de stationschefwoning in het midden.
Vanaf het (huidige) Hereviaduct had men zicht op de grootte van het emplacement, met op de achtergrond het architectonische ensemble van de stationsgebouwen.
Door de oriëntatie van het stationsgebouw met zijn eindgebouwen op de vestinggracht en hun architectonische uitstraling als totaalensemble werd het stationsgebied niet alleen stedenbouwkundig met de vestingstad verbonden maar kreeg het ook een zorgvuldig ingericht aanzien.



De stationslocatie als onderdeel van een karakteristieke beëindiging van de oude binnenstad, 1877 - WOII
Na de ontmanteling van de vesting in 1874 presenteerde ingenieur F.W. van Gendt in 1877 zijn plan voor de ontwikkeling van de voormalige vestingterreinen. De middeleeuwse structuur zou intact blijven en daar omheen vond de nieuwe uitbreiding plaats. Opvallend is dat hierbij de stationslocatie geen directe infrastructurele aansluiting met de stad heeft gekregen.
Belangrijker leek hierbij een continue en systematische verbetering van de infrastructuur van Groningen naar de
ommelanden te zijn. Deze verbetering vond dáár plaats waar dit het meest zinvol leek, namelijk in het zuiden rondom de stationslocatie. De oude structuur van de vestinggracht werd
vervangen door het Verbindingskanaal tussen het NoordWillemskanaal en het Eemskanaal met de nieuw aangelegde Ooster- en Westerhaven. Ter hoogte van de aanwezige goederenloods werd een zwaaikom aangelegd die gebruikt kon worden voor het laden- en lossen van goederen en het keren van schepen. Door een aanvullende toegangsweg vanuit de binnenstad, de huidige Emmabrug in het westen, bleek de infrastructurele aansluiting met de stad op dat moment voldoende

te zijn geweest.
Samen met de nieuw aangelegde boomrijke Zuidersingel aan de noordzijde van het Verbindingskanaal (de huidige Ubbo Emmiussingel) en het groene Zuiderpark in de vorm van een oude saillant, allebei bedoeld voor luxe en rijke villa’s, vormde de stationslocatie met zijn lommerrijke toegangswegen vanaf 1877 een karakteristieke beëindiging van de oude binnenstad. Zichtrelaties over het water heen en vanaf de bruggen waren en zijn belangrijk om deze locatie als één samenhangend geheel te ervaren. Als onderdeel van deze historisch groene zone had de stationslocatie daarmee een duidelijke identiteit.

Met de oprichting van het stenen stationsgebouw van Gosschalk in 1896 borduurde men voort op de bestaande stedenbouwkundige situatie. Het nieuwe station werd op dezelfde plaats gebouwd als zijn voorganger en de inbedding in de groene zone bleef behouden. Opmerkelijk is dat er voor het nieuwe stationsensemble een symmetrische opzet werd gekozen met een duidelijke oriëntatie frontaal naar de stad. Dit sloot niet aan op de stedenbouwkundige infrastructuur: de stationslocatie vraagt vanuit zijn ontwerp een stedenbouwkundige noord-zuid oriëntatie terwijl de infrastructuur oost-west georiënteerd was. Gosschalk stelde nog tevergeefs een vorm voor waarbij het station haaks op de perrons zou staan waardoor deze beter zou passen bij een dubbel kopstation (en ook bij de stedenbouw).
Maar door de grootte van het pronkstation en het ruime en open voorplein was het gebouw vanuit de flanken zichtbaar. Vanaf de Herebrug werd het gebouw als oriëntatiepunt nadrukkelijk waargenomen. In de verte zag men het stationsgebouw al staan, op de Stationsweg zelf zal men het gebouw vanwege de bomen en de goederenloodsen niet meer waargenomen hebben maar zal men genoten hebben van de rit of wandeling langs het water. Van hieruit zal de reiziger wel al het grote en open voorplein met zijn middelpunt als oriëntatie hebben waargenomen (zie H2.2). Pas aan het einde van de weg, met het bereiken van het voorplein, werd het station weer zichtbaar. Door de perspectivische hoek nam men de architectuur van de

Afb. 2.9: Foto 2013, het stationsgebouw als oriëntatiepunt vanaf de Herebrug station

2.10: Stationsomgeving tussen 1896 (bouw stenen pronkstation) en WOII, het voorplein veranderde in deze periode wel van vorm, zie H2.2)
verspringende massa’s in diepte en hoogte zeer goed waar. De grootte van het emplacement presenteerde zich nog steeds vanuit het Hereviaduct.
De opkomst van een paardentram (1880 – 1910) nog ten tijde van het houten station geeft al de gegroeide behoefte van het reizigersvervoer en de belangrijkheid van het station voor de stad aan.
De stedenbouwkundige ontwikkeling na de ontmanteling van de vesting in 1877 en de vervanging van het houten stationsgebouw door een pronkstation in 1896 op dezelfde plek kan beschouwd worden als de basis voor de stedenbouwkundige situatie die tot op heden de stationsomgeving kenmerkt.


Als gevolg van de in 1901 aangenomen Woningwet heeft de gemeente Groningen in 1906 het eerste gemeentelijke uitbreidingsplan, ‘het Plan van Uitleg,’ vastgesteld. Het was een plan van gemeente-architect ingenieur J.A. Mulock Houwer dat op de toekomst en de uitbreiding van de stad gericht was waarbij de functies van de stad gescheiden werden: terwijl aan de oostelijke zijde vooral terreinen voor industrie en nijverheid werden gepland, zouden zich aan de westelijke en zuidelijke zijde woonwijken ontwikkelen. Hij meende dat rondom de

toegangswegen de gebieden snel volgebouwd zouden zijn en daarom stelde hij al een stratenplan op voor de omliggende gebieden waarbij goede verbindingswegen met de regio een belangrijke rol speelden. Met een nieuw uitbreidingsplan in 1928 van Mulock Houwers opvolger, de gemeente-architect
H.P.J. Schut, werd in samenwerking met de architect H.P. Berlage de visie op de scheiding van functies doorgezet. Het valt op dat deze groei van woonwijken tussen 1906 en WOII niet nadrukkelijk in de directe omgeving van de stationslocatie

plaatsvond. In deze periode was dit gebied met het nieuwe Stadspark bestemd tot wandelgebied. De stationslocatie bleef nog steeds onderdeel van de groene zone als karakteristieke beëindiging van de oude binnenstad.
Naarmate er meer woonwijken ontstonden groeide het reizigersverkeer en werd het even belangrijk als het goederentransport. De stationslocatie begon zich tot een belangrijk knooppunt voor de stad te ontwikkelen. De in het westen en zuiden verder weg gelegen woonwijken konden vanaf 1910 met tramlijnen vanuit de stationslocatie goed bereikt worden. Op een foto uit de jaren ’30 zijn al wachtende taxi’s voor het gebouw te zien. Vanaf ongeveer 1940 tot 1965 hebben trolleybussen de taak van de trams overgenomen. Net zoals de tramhaltes waren ook de haltes van de trolleybussen voor het stationsgebouw gesitueerd.


Legenda:
Elektrische trams:
lijn 1. 1910-1949 van noord (via grote markt) naar Haren lijn 2. 1910-1927 van oost (via grote markt) naar west lijn 3. 1910-1949 van station naar grote markt lijn 4. 1915-1927 van grote markt naar zuiden lijn 5. 1921-1939 van station naar Haren


De stationslocatie als het verkeersknooppunt van de stad, WOII - jaren ‘80
Pas in de wederopbouwperiode werden zuidelijk van de stationslocatie woonwijken gebouwd, maar nu in een hoog tempo. De Stationsweg werd een belangrijke ringweg voor het gemotoriseerde verkeer werd. Zo was de stationslocatie na 1970 volledig omgeven door woonwijken en is de stad ook in het algemeen richting het zuiden sterk gegroeid. De snelle bevolkingstoename zorgde voor verkeersoverlast in

de binnenstad. Hierop werd door de stad in 1969 gereageerd met het opstellen van een verkeerscirculatieplan waardoor de binnenstad nagenoeg autovrij werd gemaakt. Vóór de voltooiing van dit verkeerscirculatieplan in 1977 was men rond 1960 ook al begonnen met de realisatie van het ringwegstelsel om de stad heen. Hiervoor was de aanleg van het Emmaviaduct westelijk van het emplacement in 1961 één van de eerste onderdelen. Voor de stationslocatie betekende de aanleg van dat viaduct niet alleen een nog sterkere toename van verkeer

verkeerscirculatieplan
via de Stationsweg maar ook dat de stationslocatie zelf een aantrekkelijke plek werd voor de hoofdzakelijk gemotoriseerde vervoersstromen: dichtbij de autovrije binnenstad en goed en snel bereikbaar vanuit de woonwijken en de ommelanden. Het voorplein moest daarmee niet alleen de taak op zich nemen als onderdeel van een belangrijke ringweg, maar ook ruimte bieden aan een verhoogde hoeveelheid bussen met hun haltes, auto’s en fietsverkeer. Voor deze laatste werd er in de bestaande kelder onder de westelijke vleugel van het stationsgebouw een grote fietsenstalling ingericht. Daarbij werd getracht om het voorplein nog steeds als groen plantsoen te presenteren voor het stationsgebouw.
In 1954 werd op het oostelijke voorplein een wachtruimte voor busreizigers geplaatst. Dit verslechterde voor de reizigers de beleving van de routing naar het station. Hierdoor werd de oriëntatie op de hoofdtoegang van het stationsgebouw verplaatst naar de oostelijke zijkant. Door het plaatsen van kaartautomaten, bereikbaar vanuit de achtergevel, begonnen de reizigers de oostelijke doorgang tussen stationsgebouw en eindgebouw niet alleen te gebruiken om het emplacement te verlaten maar ook om het te betreden (zie ook H3).



Legenda: Bussen Auto’s


Fietsers



Afb. 2.20: Vervoersstromen jaren ‘60
De stationslocatie zonder identiteit, jaren ’80 - heden
Door de goede infrastructurele situatie was het gebied bij de stationslocatie een attractief economische plek geworden. Met het verplaatsen van de goederenloodsen naar het nieuwe industrie- en havencomplex Eemskanaal in het oosten van de stad ontstond vrije ruimte op het noordelijke emplacement (zie ook H3). Hierdoor konden vanaf begin jaren ’80 van de 20e eeuw gebruik gemaakt door het realiseren van grootschalige kantoorgebouwen, noordelijk en (deels) zuidelijk van het emplacement, gerealiseerd worden. Zo werd het emplacement werd voor de reizigers (forensen) steeds belangrijker. De inrichting van de openbare ruimte werd afgestemd op de behoefte van de kantoorgebouwen en het regelen van de vervoersstromen waarin groenvoorzieningen geen nadrukkelijke betekenis meer hadden. Er ontstond een groot voorterrein dat in de jaren ‘80 verdeeld werd in drie vlakken: westelijk een parkeergelegenheid voor Kiss&Ride, een versmald voorplein als voetgangersgebied en oostelijk een groot busstation met overkappingen dat nu hier zijn haltes had. Vanwege het grote busstation werd de routing van de voetgangers richting station verplaatst naar het gelijktijdig door de NS opgerichte kantoorcomplex, het Hunzehuys (1981). Hierdoor werd de oostelijke doorgang van het emplacement, tussen stationsgebouw en eindgebouw, nog meer gebruikt. Een doorgang in het Hunzehuys en daarmee een extra toegang naar








2.21: Vervoersstromen jaren ‘80
het 1e perron heeft de toegenomen reizigersstroom verspreid. Met deze aanpassing bleek het te drukke verkeerstechnische probleem opgelost te zijn. Door alle aandacht op een goed geregelde routing te richten is echter de beleving van het stationsgebouw verloren gegaan. Ook verloor de stationslocatie hierdoor volledig zijn identiteit als onderdeel van de historische groene 19e eeuwse zone. De in 1985 opgerichte Werkgroep Harmonie, bestaande uit architecten en politici, had zich hevig tegen deze ontwikkeling van grootschalige kantoorgebouwen verzet. Zij vonden “deze locatie in de nabijheid van de 19e eeuwse singels uit cultuurhistorisch oogpunt ongewenst”. Dit protest kon de oprichting van grootschalige kantoorgebouwen niet tegenhouden.
Maar dan nog blijft het een historisch belangrijke locatie met veel gelaagdheid waardoor iedere aanpassing tegen het licht van de historische ontwikkeling gehouden moet worden.
Ook werd de beleving van de grootte van het emplacement vanaf het Hereviaduct belemmerd door de bouw van een voetgangersbrug in 1984 op het oostelijke emplacement. Deze brug werd door NS gerealiseerd ten behoeve van de geplande grootschalige kantoorgebouwen aan de zuidzijde van het emplacement. Deze plannen stagneerden echter vanwege het felle protest uit de bevolking. Na de bouw van het PTT kantoor in 1975 werden er geen nieuwe kantoren gerealiseerd. Het stationsgebouw is door deze brug, maar ook door de plaatsing van het Hunzehuys in het verlengde van de achtergevel van het


Afb. 2.23: Luchtfoto 2007

Afb. 2.24: Luchtfoto stationsgebied (2005)
station vanaf het Hereviaduct onvoldoende als middelpunt van het emplacement waar te nemen.
In deze nieuw gecreëerde situatie van een voorterrein, opgedeeld in drie vakken, werd in 1994 de inmiddels dringend noodzakelijke fiets- en voetgangersbrug gerealiseerd samen met het nieuwe eiland in de voormalige zwaaikom. De brug werd in het verlengde van een historische straat, de huidige Ubbo Emmiusstraat, vanuit de oude binnenstad aangebracht. Op het eiland werd het Groninger Museum gebouwd waardoor de nieuwe routing tussen de binnenstad en de stationslocatie betekenis kreeg en de beide locaties beter met elkaar verbonden werden. Infrastructureel werd daarmee positief op de verbinding tussen binnenstad en stationslocatie ingespeeld. Deze brug vindt echter aan de stationszijde geen stedenbouwkundige aansluiting. Het valt op dat deze brug in het verlengde ligt van de toegang van de fietsenstalling en de doorgang naar het perron in het Hunzehuys. Of het plan van de nieuwe brug rekening hield met deze voorzieningen in het Hunzehuys is voor de auteurs onbekend.
Voor de inrichting van de openbare ruimte tussen de binnenstad en de stationslocatie is tot op heden geen bevredigende oplossing gevonden. De (noordelijke) omgeving van de stationslocatie is stedenbouwkundig een op zichzelf staand element geworden waarin de kantoorgebouwen domineren. De cultuurhistorische betekenis van de stationslocatie voor de
stad heeft hierdoor nadrukkelijk aan kwaliteit verloren. De in 2007 gerealiseerde grote halfondergrondse fietsenstalling, het “Stadsbalkon” recht voor het pronkstation, versterkt dit effect en werkt als visuele en fysieke barrière tussen de binnenstad en het historisch kenmerkende middelpunt: het pronkstation. Het voorterrein werd in nagenoeg twee gelijke delen opgesplitst, één voor het busstation, nu zonder overkappingen, en één voor de in opdracht van de gemeente Groningen uitgevoerde fietsenstalling. De bovenkant hiervan is bedoeld als plein voor voetgangers. Dit ontwerp kent echter geen relatie met het stationsgebouw (zie ook H2.2). De plattegrond van de fietsenstalling is zodanig ontworpen dat de meeste fietsen dichtbij de oostelijke uitgang gestald worden. De uitgang richting hoofdtoegang van het stationsgebouw wordt nauwelijks waargenomen en gebruikt. Hierdoor wordt de routing via de oostelijke zijde van het stationsgebouw nadrukkelijk door de reizigers gebruikt en heeft deze zijde de functie van de hoofdtoegang naar het emplacement overgenomen.









Het station en zijn voorplein als samenhangend geheel, 1877 - WOII
De grootte van het voorplein en zijn afbakening werd ten tijde van de vestingstad bepaald: de middenas van het ensemble werd georiënteerd op het punt van een saillant. Daardoor kreeg het plein een overzichtelijke dimensie. Aan de zijkanten gebeurde dat door met name de oostelijke goederenloods iets naar voren te laten springen. De architectonische middenas van de stationsgebouwen werd in het plein benadrukt door de locatie van de stationschefwoning.
De woning was omgeven door een plantsoen. De weg er omheen was verhard en voorzien van straatlantaarns.
De grootte van dit voorplein werd met het nieuwe plan na de ontmanteling van de vesting in 1877 en met de bouw van het stenen station in 1896 nauwelijks in omvang veranderd. De oost-west breedte werd bepaald door het stationsensamble bestaande uit het hoofdgebouw en de eindgebouwen. Daarmee was het nog steeds een groot tot aan het water reikend plein dat zorgvuldig ingericht was. De middenas werd gemarkeerd door symmetrisch aangelegde plantsoenen met een klok in het middelste plantsoen. Een afzonderlijk plantsoen werd voorzien van een kiosk voor de reizigers (tijdschriften en prenten).




Met de uitbreidingsplannen van de stad en de opkomst van de tramlijnen kregen de symmetrische vormen van de plantsoenen een meer organische vorm. Mogelijk vloeit deze verandering ook voort uit het ‘Plan van Uitleg’ van de gemeente-architect ingenieur J.A. Mulock Houwer in 1906. Voor zijn ontwerp liet hij zich inspireren door de destijds zeer invloedrijke ideeën over stedenbouw van de Oostenrijkse architect Camillo Sitte. De ideale stad van Mulock Houwer was een combinatie van sociaal-economische aspecten (volkshuisvesting, verkeer en recreatie) en esthetische kwaliteiten. Bochtige straten, statige lanen en pleinen met monumentale gebouwen vormden de basis voor de ontwikkelingen. Hij stapte daarmee af van de heersende rechte, symmetrische neo-classicistische invloeden. De middenas van het nu ten opzichte van het stationsgebouw asymmetrische voorplein bleef gehandhaafd door een extra plantsoen in de vorm van een rozet met een klok in het midden.


Van een vormgegeven voorplein naar een verkeerstechnisch voorplein, WOII - 2007
Door de sloop van het westelijke eindgebouw in 1954 verloor ook het oostelijke eindgebouw zijn aansluiting aan het plein. Daarmee werd het voorplein verkleind. Het plantsoen werd ten behoeve van de voorzieningen voor het verkeer iets ingekort en strakker vormgegeven. Door het nieuw ingerichte voorplein te asfalteren kreeg het een andere materialisatie toegekend waardoor het oostelijke eindgebouw buiten het plein viel. Verkeersborden en straatmarkeringen bepaalden de inrichting en het functioneren van het voorplein. Wel was het nog als één plein tussen het stationsgebouw en het water te ervaren met in de middenas het plantsoen met de klok. De bomen aan het water en langs de toegangswegen lijken inmiddels vernieuwd te zijn (zie afb. 2.36).
Het plein en daarmee de stationslocatie zou in deze fase nog enigszins als onderdeel van de karakteristieke groene beëindiging beschouwd kunnen worden.
In augustus 1959 is het beeld Het Peerd van Ome Loeks op het oostelijke deel van het stationsplein geplaatst (zie afb. 2.37).
Door de herverdeling van de verschillende verkeerstechnische functies aan de Stationsweg in de jaren ’80 werd het voorplein van het station verkleind tot een smalle strook. Deze strook werd, op het plantsoen met de klok na, volledig verhard met zwarte basaltblokken. Door de bevolking werd het dan ook als “het zwarte plein” beschreven. Dit plein liep niet meer door
tot aan het water en was te smal om het stationsgebouw een statige entree te bieden. De belangrijke relatie tussen gebouw en plein was vanaf dat moment verdwenen




Het beeld van Loeks met zijn paard (uit het bekendste liedje van Groningen) heeft de gemeente Groningen laten maken door de kunstenaar Jan de Baat. Aanvankelijk zou het beeld op de vismarkt komen te staan maar dit zorgde voor protest. De NS gaf toen toestemming om het beeld op het stationsplein te zetten, mits het hoofd van het paard naar het station gericht zou worden.
Het stationsgebouw zonder voorplein, 2007 - heden
Het zogenaamde ‘Stadsbalkon’ werd zodanig asymmetrisch voor het stationsgebouw gesitueerd dat een complete loskoppeling tussen voorplein en stationsgebouw heeft plaats gevonden. Hierdoor kent het station ook geen relatie meer met het water en daarmee met de Villawijk aan de noordzijde van het Verbindingskanaal. Het plein mist door zijn hellende vormgeving en inrichting de relatie met het stationsgebouw. De driedimensionale vorm leidt zelfs van het stationsgebouw af en de zichtrelaties naar het gebouw zijn verstoord. Door de strakke vormgeving in combinatie met de enorme grootte van de stalling blijven er restruimtes omheen over waardoor het ‘Stadsbalkon’ als solitair wordt ervaren. Het stationsgebouw kwam daarmee aan onderdelen van deze restruimtes te liggen en niet meer aan een voorplein.
De inrichting van de openbare ruimte volgt de vorm van het Stadsbalkon en is daarmee niet meer afgestemd op de stationslocatie. Een voorbeeld geven de twee strakke lijnen lantaarnpalen die in lengterichting zijn neergezet. Deze palen vallen door hun grote en hoeveelheid in het beeld op. Voor de opening in 2007 is het beeld Het Peerd van Ome Loeks na een renovatie weer teruggeplaatst op het stationsplein.




- De stedenbouwkundige situatie rondom de stationslocatie vond zijn oorsprong in de tijd dat Groningen nog een vestingstad was en de Hereweg met -brug de hoofdtoegangsweg naar de stad. De Hereweg met –brug (weliswaar iets verplaatst) en een restant van de Oude Stationsweg zijn in de huidige situatie nog steeds aanwezig.
- De huidige stedenbouwkundige situatie is ontstaan na de ontmanteling van de vesting in 1874 door een uitbreidingsplan voor de stad in 1877. Dit plan hield een verbeterde infrastructuur in en een karakteristieke beëindiging van de oude binnenstad waarvan de stationslocatie onderdeel was. Aanwezige kenmerken van de infrastructurele inrichting zijn nog steeds het Verbindingskanaal met de zwaaikom, de Stationsweg richting oost en west met de bruggen, inmiddels vervangen door de Emmabrug en de iets verplaatste Herebrug. Ook is rondom de stationslocatie nog de karakteristieke beëindiging van de oude binnenstad met de luxe villa’s in het boomrijke Zuiderpark en de Zuidersingel aanwezig. Door de grootschalige kantoorbebouwing er omheen is de stationslocatie echter geen onderdeel meer van deze beëindiging.
- De keuze voor een architectonisch symmetrische (noordzuid georiënteerde) opzet voor het pronkstation in 1896 speelde niet in op de al ingerichte stedenbouwkundige (oostwest georiënteerde) infrastructuur. Desondanks bleef het station door het lege en ruime voorplein goed zichtbaar vanuit de omgeving.
- In de eerste helft van de twintigste eeuw ontstonden nieuwe woonwijken langs de toegangswegen westelijk en oostelijk van de stationslocatie. De stationslocatie lag niet aan een toegangsweg. Daarom bleef zijn directe (met name zuidelijke) omgeving nog onbebouwd. De karakteristieke groene zone tussen oude binnenstad en de nieuwe uitgebreide stad kreeg stedenbouwkundig een vervolg met de aanleg van het nieuwe Stadspark in het zuidwesten.
- In de jaren ’50, ’60 en ’70 werden in hoog tempo woonwijken gebouwd waardoor ook de stationslocatie volledig omgeven werd met woningen. De verkeerstromen werden groter wat tot overlast van de binnenstad zorgde. Met het nagenoeg autovrij maken van de binnenstad en de aanleg van het Emmaviaduct als begin van het nieuwe ringwegstelsel om de stad verplaatste zich het probleem van de verkeersoverlast van de binnenstad naar met name de Stationsweg. Het gebied rondom de
Stationsweg moest op de enorm gegroeide behoefte van het verkeer inspelen en veranderde in de jaren ’60 en ’70 tot een belangrijke verkeerstechnische zone waardoor de groenvoorzieningen in de verdrukking kwamen.
- Door het verplaatsen van voorzieningen voor het goederentransport in de jaren ‘70 naar elders in de stad kwam op het emplacement ruimte vrij. Door de inmiddels zeer goede infrastructurele aansluiting van de stationslocatie vanuit de ommelanden en de nabijheid van de binnenstad was dat gebied economisch gezien attractief geworden. In aansluiting op het door NS gerealiseerde grootschalige kantoorcomplex , het ‘Hunzehuys’ in 1981, besloot de stad in 1985/86, in een tijd van crisis, om de stationsomgeving te voorzien van grootschalige kantoren.
Dit is het hoofdschakelmoment van de verandering van de stationsomgeving. Het regelen van het verkeer voor het inmiddels sterk toegenomen aantal reizigers (forensen) leek vanaf dat moment de enige ambitie met de herinrichting van de openbare ruimte te zijn geweest. De routing van de reizigers van en naar het emplacement verschoof met name door de bouw van het Hunzehuys in 1981 nadrukkelijk naar de oostzijde.
- De infrastructurele situatie werd in 1994 verder verbeterd door de realisatie van een fiets- en voetgangersbrug tussen de stationslocatie en de binnenstad en in 2007 door de aanleg van een grote halfondergrondse fietsenstalling, het ‘Stadsbalkon’. Door de vormgeving van de fietsenstalling heeft echter een loskoppeling van het voorplein met de stationslocatie plaats gevonden. Het ‘Stadsbalkon verbindt ook het stationsgebouw niet met het water en daarmee met de villawijk aan de noordzijde van het Verbindingskanaal.
Door deze gewijzigde inrichting van het voorplein heeft de stationslocatie zijn stedenbouwkundige identiteit als onderdeel van een karakteristieke (groene) beëindiging van de oude stad volledig verloren.
- De stationslocatie was vanwege het enorme goederentransport van begin af aan gericht op een goede infrastructurele aansluiting, in het begin nog hoofdzakelijk naar de ommelanden. Vanwege de groei van de stad en daarmee de toename van de reizigersstroom werd de aansluiting met de stad met name na WOII steeds belangrijker.
- Bij de historische ontwikkeling van de stationslocatie is het
belangrijk om te beseffen dat de stedenbouwkundige omgeving van de stationslocatie ten tijde van de ontmanteling van de vestingstad (1874) bepaald werd en in 1896 met het stenen station in principe onveranderd bleef. Het volgende werd hierbij bepaald:
o een infrastructureel gunstige ligging naar de ommelanden,
o de grootte en afbakening van het voorplein,
o een relatie met het water,
o en de (hoofd)routing naar het station toe vanuit de oostzijde.
- De stationslocatie kende met de bouw van het stenen station in 1896 geen aansluiting met de stad in de zin van een op het stationsgebouw gericht stedenbouwkundig ontwerp (of omgekeerd). De nieuwbouw kan puur gezien worden als het oprichten van een pronkstation dat indruk moest maken, gebaseerd op een standaardplattegrond en de locatie van zijn voorganger. Daarmee was en is de relatie tussen de stationslocatie en de stedenbouwkundige situatie niet ideaal. De locatie vond wel met de inrichting van zijn omgeving een identiteit als onderdeel van een karakteristieke beëindiging van de oude binnenstad die tot en met WOII overeind bleef. Door essentiële veranderingen in de inrichting van de omgeving heeft de stationslocatie deze identiteit verloren. Ze werd ook niet vervangen door een nieuwe identiteit met aansluiting op de stad.
- Na de WOII heeft de steeds wijzigende infrastructuur de ontwikkeling van de stationslocatie bepaald. Met alle aanpassingen op het emplacement speelde men in op de wisselende stedenbouwkundige situatie. De stationslocatie ontwikkelde zich tot een belangrijk verkeersknooppunt. Daardoor werd een weg ingeslagen, het nadrukkelijk verplaatsen van het reizigersstroom naar de oostzijde, die geen rekening hield met de historische stedenbouwkundige situatie van de stationsomgeving. De oostelijke zijde van het emplacement werd een hoofdtoegang en de inrichting van het voorplein werd met de realisatie van het ‘Stadsbalkon’ volledig losgekoppeld van het stationsgebouw. Hierdoor begon het monumentale emplacement zijn stationsfunctie te verliezen. Het gevaar dreigt dat deze in de toekomst volledig verloren gaat.
- Door deze stedenbouwkundige ontwikkelingen vanaf met name de jaren ’80 is de beleving van het station in de reizigersrouting en daarmee ook zijn cultuurhistorische betekenis en kwaliteit voor de stad zeer sterk teruggelopen. Het gevaar dreigt dat deze in de toekomst volledig verloren gaat.
3.1 Opzet emplacement, uitwerking reizigers- en bagagestromen, opzet perrons en perronbebouwing
Net zoals bij hoofdstuk 2 is het ook in dit hoofdstuk van belang om de situatie van het emplacement van vóór 1896 te onderzoeken. De structuur van het ten tijde van de vestingstad ingerichte emplacement (1872) werd namelijk met de oprichting van het pronkstation overgenomen.
Het emplacement buiten de vesting, 1866 - 1896 Op de kaart van omstreeks 1875 is de stationslocatie vóór de ontmanteling van de vestingwerken weergegeven. Op de stationslocatie stond het houten station van de architect Van Brederode (1872). Aan de perronzijde sierde een luifel de gehele lengte van het gebouw. De woning van de stationschef werd geplaatst op het voorplein. Naast het station bevond zich oostelijk een rijtuigenloods en westelijk een bergplaats, achter het station stond een goederenloods. Deze gebouwen vormden een ensemble, ze pasten wat betreft vormgeving en materialisatie (houten vakwerk) bij elkaar. De woning van de stationchef, het hoofdgebouw en de goederenloods liggen op één lijn symmetrisch georiënteerd op de punt van de vestinggracht, de saillant.
Al voor de bouw van dit ensemble werden er, gelijktijdig met de aanleg van de spoorlijnen in 1866/68, op het terrein al verscheidene gebouwen opgericht: een locomotiefloods, enkele andere loodsen en twee seinwachtershuisjes. In 1874 werd nog een spoorweghaven aan het emplacement toegevoegd.

Beschrijving en datering van de verschillende onderdelen:
Omstreeks 1875:

1. Vijf standen locomotiefloods 1866-1925
2. Seinwachtershuisje oostkant 1866?-jaren’30
3. Seinwachtershuisje westkant 1866?-?
4. Loods 1866?-?
5. Bergplaats
6. Houten station met luifel aan spoorzijde
7. Stationschefwoning
8. Rijtuigenloods (later goederen)
9. Goederenloods
Legenda: sporen emplacementsgrens Veranderingen tot: Omstreeks 1875
10. Spoorweghaven

Beschrijving en datering van de verschillende onderdelen:
Omstreeks 1875:
1. Vijf standen locomotiefloods 1866-1925
2. Seinwachtershuisje oostkant 1866?-jaren’30
3. Seinwachtershuisje westkant 1866?-?
4. Loods 1866?-?
5. Bergplaats 1872?-?
6. Houten station met luifel aan spoorzijde 1872-1896
7. Stationschefwoning 1872-1896
8. Rijtuigenloods (later goederen) 1872-1976
9. Goederenloods 1872-1895
10. Spoorweghaven 1874-1926
Afb. 3.1: Emplacement omstreeks 1875 (op een kaart zonder jaartal)
Locomotiefloods: In de begin tijd was er een vijf-standenlocomotiefloods op het emplacement aanwezig, dit betekend dat er vijf locomotieven tegelijk in konden. In 1925 werd deze vijf-standenloods vervangen door een modernere acht-standenloods. Aan de noordkant van deze loods bevonden zich gebouwen met een kantoor, wasruimte, kolenopslag en keteldeel. In de jaren ’60 werd deze locomotiefloods van achteren ingekort ivm de aanleg van het Emmaviaduct. In 1972 werd deze loods pas gesloopt, terwijl er vanaf 1952 al geen stoomtreinen meer reden in Groningen en de loods zijn functie had verloren.
Een nieuw emplacement met zijn oriëntatiepunten en routing, 1896
Met het aanpassen van de vestinggracht in 1877 verloor het oude ensemble zijn richtpunt, de saillant. Een nieuw symmetrisch ensemble, nu ook bestemd voor de reiziger, ontstond in 1896 met essentiële oriëntatiepunten:
A het grote voorplein met zijn markering in het midden als oriëntatie vanuit de toegangswegen;
B een representatief stenen stationsgebouw, inclusief eindgebouwen, dat met zijn vestibule in het middenpaviljoen als oriëntatie voor de vertrekkende reizigers diende;
C het tussen de tweede en derde kopsporen gesitueerde perronplein dat met zijn lage en dwarsliggende kap als verkeersknoop- en oriëntatiepunt diende. Met dit kenmerkend onderdeel van het emplacement werd het station als dubbel kopstation benadrukt.
Ook waren er algemene uitbreidingen op het emplacement noodzakelijk. Vanwege het toegenomen goederentransport werd de voormalige rijtuigenloods al gebruikt als goederenloods en rond 1894 nog eens uitgebreid. Op de routing van de reizigers werd op het voorplein een kiosk (voor o.a. kranten en prentbriefkaarten) geplaatst.
In 1902 worden de plannen voor de bouw van een vetgasfabriek op het emplacement goedgekeurd en in 1906 wordt deze gerealiseerd. De vetgasfabriek was voor het reizigersvervoer
in Noord-Nederland niet onbelangrijk (zie toelichting afb. 3.4).
Het ontvangstgebied, de vestibule, sloot in zijn routing aan op het verblijfsgebied, de oostelijke vleugel met de reizigersvoorzieningen: De vestibule was met de loketten, een portier en een hulploket niet alleen een ontvangstgebied maar ook een oriëntatie- en knooppunt voor de reizigers tussen zowel het stationsgebouw en de perrons als ook tussen de voor het personeel bestemde westelijke vleugel en de voor de reizigers bestemde oostelijke vleugel. Via de westelijke zijgang kon de reiziger naar de bagageafgifte en/of de telegraaf gaan. Via de oostelijke zijgang konden de reizigers de wachtkamers of de restauratiezaal en daarmee het reizigersgedeelte bereiken. Voor de reizigers met haast of eventuele gasten die de passagiers wilden uitzwaaien was het mogelijk om via de vestibule naar het perron te gaan. Men werd dan bij de uitgang van de vestibule gecontroleerd. De andere reizigers betraden het perron via de wachtkamers waar ook de controle plaatsvond. Daarom werden in de achtergevel van de oostelijke vleugel veel deuren toegepast. Ook de achtergevel van de westelijke vleugel werd van veel deuren voorzien. Dat had onder andere te maken met het feit dat de bagage direct vanaf de bagageafgifte naar de treinen werd vervoerd, er was geen sprake van bagagetunnels etc. Ook is dat het resultaat van een redelijk smalle plattegrond waar de ruimte voor interne gangen
beperkt was. De meeste personeelsruimtes hadden daarom rechtstreeks toegang naar het perron.
Aannemelijk is dat de aankomende reizigers het emplacement via de doorgang tussen het stationsgebouw en het oostelijke eindgebouw verlieten. In 1905 werd namelijk het voorstel om hier een controle-inrichting te bouwen goedgekeurd.
Legenda: aankomende reizigers verlatende reizigers aankomend en vertrekkend reizigers voorzieningen personeelsvoorzieningen dienstwoningen


Afb. 3.3: Reizigersstroom 1896
vetgasfabriek 1906

Beschrijving en datering van de verschillende onderdelen:
Omstreeks 1875:


Afb. 3.6: Het perronplein (links) en het stationsgebouw met 1e perron ervoor gezien vanaf het 2e perron perron-
1. Vijf standen locomotiefloods 1866-1925
2. Seinwachtershuisje oostkant 1866?-jaren’30
3. Seinwachtershuisje westkant 1866?-?
4. Loods 1866?-?
5. Bergplaats 1872?-?
6. Houten station met luifel aan spoorzijde 1872-1896 7. Stationschefwoning 1872-1896
8. Rijtuigenloods (later goederen) 1872-1976
9. Goederenloods 1872-1895
10. Spoorweghaven 1874-1926
Legenda: aankomende reizigers verlatende reizigers aankomend en vertrekkend sporen emplacementsgrens voorplein vestibule perronplein
Veranderingen tot: Omstreeks 1875 1896

Beschrijving en datering van de verschillende onderdelen:
Omstreeks 1875:
14. Stenen station en 2 perrons met overkappingen 1896-heden 15. Kiosk 1896-1954
1. Vijf standen locomotiefloods 1866-1925
2. Seinwachtershuisje oostkant 1866?-jaren’30
3. Seinwachtershuisje westkant 1866?-?
4. Loods 1866?-?
5. Bergplaats 1872?-?
6. Houten station met luifel aan spoorzijde 1872-1896
7. Stationschefwoning 1872-1896
8. Rijtuigenloods (later goederen) 1872-1976
9. Goederenloods 1872-1895
10. Spoorweghaven 1874-1926
1896:
11. Uitbreiding locomotiefloods <1893-1925
12. Draaischijf voor locomotieven 1894-1925
13. Uitbreiding goederenloods Van Gend en Loos 1894-1976
14. Stenen station en 2 perrons met overkappingen 1896-heden
15. Kiosk 1896-1954
Vetgasfabriek: De vetgasfabriek werd in 1906 gebouwd en bestond uit een schoorsteen (gesloopt vlak na WOII), een fabriek en een gemetselde gashouder (beide gesloopt in 1972). De vetgasfabriek zorgde voor de verlichting van de treinstellen. Het in Groningen geproduceerde gas werd per spoor vervoerd naar de gasdepots van andere stations in Noord-Nederland, zo voorzag de vetgasfabriek in Groningen heel Noord-Nederland van gas voor de treinstellen.


Afb. 3.7a: Het perronplein zoals het zou moeten worden waargenomen
In 1939 werd gestopt met de productie van gas, toch bleven de gebouwen nog tot 1972 staan. Dit kan te maken hebben met de vervuilde grond. De restproducten van de gasproductie werden namelijk gewoon in een sloot geloosd, waardoor de grond sterk vervuild raakte. Men moest de grond tot 10 meter diep afgraven en saneren. Toen de grond gesaneerd was werd er een (kostenintensieve) parkeerplaats voor NS personeel aangelegd.
Seinhuis: Aanvankelijk waren er aan de oost- en westkant van het emplacement seinwachterhuisjes. In 1928 kwam er een seinpost in het midden van het emplacement bij, boven de perronkap van het eveneens nieuwe 3e perron. In de jaren ’30 werd de oostelijke seinpost vervangen door een hoger exemplaar. Dit exemplaar stond meer richting het Hereviaduct, vanaf het viaduct kon men in de seinpost kijken. In de jaren ’70 is ook deze seinpost gesloopt. In de jaren ‘80 verloor de seinpost uit 1928 zijn functie.
3.2 Veranderingen en aanpassingen in latere fases
Uitbreiding van het emplacement in het stoomtijdperk, 1909 - 1928
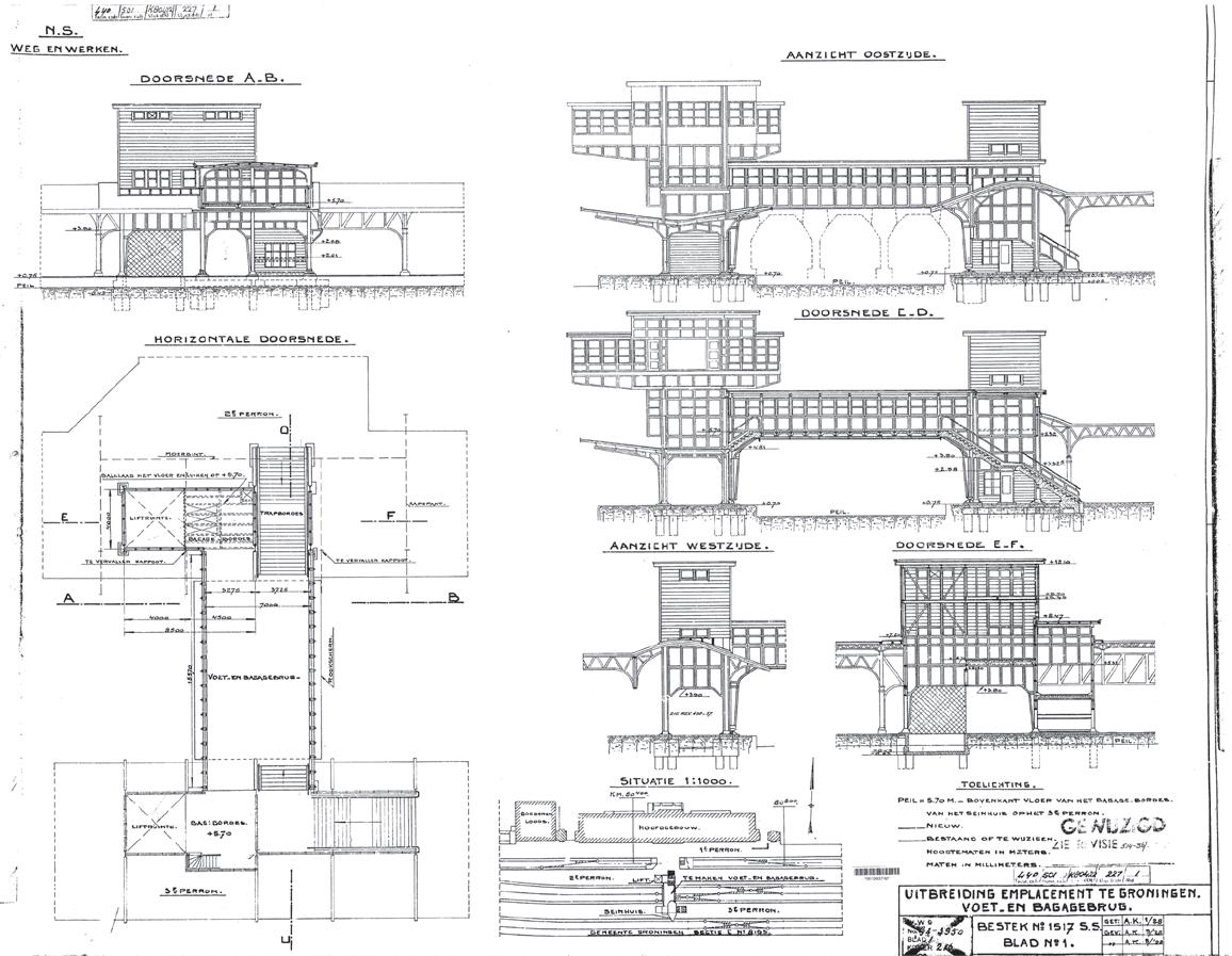
In 1914, nog geen twintig jaar na de bouw, werd er al gesproken over een nieuw station. In samenwerking met de gemeente werd gekeken naar mogelijkheden tot de bouw van een nieuw station op een andere plaats aan de spoorlijn. De reden hiervoor lag in het feit dat vooral voor de veehandel een enorme capaciteit nodig was terwijl station Groningen ook een druk station met passagiers was. De plannen voor een nieuw station vonden uiteindelijk geen doorgang omdat de kosten hiervan te hoog zouden worden. In plaats daarvan werd het emplacement met een aantal sporen uitgebreid. In de jaren ‘20 werd begonnen met de aanleg en in 1928 werd de bouw van het 3e perron en de verlenging van het 2e perron afgerond. Voor de verbinding met het 3e perron werd in 1928 een voetgangers- en bagagebrug aangelegd. Aan het einde van de brug werd boven de kap een seinhuis gebouwd. Vanaf dat moment was dit het enige seinhuis van het emplacement. De locatie boven de kap in het midden van het emplacement is daarmee een strategisch logische plek. Vanuit zijn locatie was het noodzakelijk om het hele emplacement te kunnen overzien. Deze noodzaak wordt weergegeven door de bijzondere vormgeving met afgeschuinde eindstukken en ramen rondom het hele bouwdeel


Beschrijving en datering van de verschillende onderdelen:
Legenda:
Omstreeks 1875:
(zie afb. 4.80).
1896:
11. Uitbreiding locomotiefloods <1893-1925
22. Waterreservoir <1927-jaren’50/heden
7. Stationschefwoning 1872-1896
12. Draaischijf voor locomotieven 1894-1925
23. Kolenpark <1927-ca1970
8. Rijtuigenloods (later goederen) 1872-1976
24. Verlening goederenloods 1927?-1976

1. Vijf standen locomotiefloods 1866-1925
2. Seinwachtershuisje oostkant 1866?-jaren’30
3. Seinwachtershuisje westkant 1866?-?
4. Loods 1866?-?
5. Bergplaats 1872?-?
6. Houten station met luifel aan spoorzijde 1872-1896
7. Stationschefwoning 1872-1896
8. Rijtuigenloods (later goederen) 1872-1976
9. Goederenloods 1872-1895
10. Spoorweghaven 1874-1926
Afb. 3.10: Emplacement 1927 (op een kaart uit 1926/27)
aankomende reizigers verlatende reizigers aankomend en vertrekkend sporen emplacementsgrens Veranderingen tot: Omstreeks 1875 1896 1927

13. Uitbreiding goederenloods Van Gend en Loos 1894-1976
9. Goederenloods 1872-1895
14. Stenen station en 2 perrons met overkappingen 1896-heden
15. Kiosk 1896-1954
1927:
25. 3e perron (a), seinhuis (b), traverse (c) 1928-heden verlenging 2e perron (d) 1932-heden
10. Spoorweghaven 1874-1926
1896:
16. Vetgasfabriek 1906-1972
17. Draaischijf met bedieningshuisje 1909-?/heden
26. Draaischijf voor locomotieven 1928-?
27. Opstelterrein 1928-heden
28. Seinhuis jaren’30-jaren’70 25d
11. Uitbreiding locomotiefloods <1893-1925
18. Bestelgoederenloods <1914-1954
12. Draaischijf voor locomotieven 1894-1925
19. Goederengebouwen <194?-?
20. Acht standen locomotiefloods 1925-heden
13. Uitbreiding goederenloods Van Gend en Loos 1894-1976
21. Takkenbossenloods <1927->1954
14. Stenen station en 2 perrons met overkappingen 1896-heden
15. Kiosk 1896-1954
1927:
16. Vetgasfabriek 1906-1972
17. Draaischijf met bedieningshuisje 1909-?/heden
18. Bestelgoederenloods <1914-1954
19. Goederengebouwen <194?-?
20. Acht standen locomotiefloods 1925-heden
21. Takkenbossenloods <1927->1954
Beschrijving en datering van de verschillende onderdelen:
Omstreeks 1875:
1. Vijf standen locomotiefloods 1866-1925
2. Seinwachtershuisje oostkant 1866?-jaren’30
3. Seinwachtershuisje westkant 1866?-?
4. Loods 1866?-?
5. Bergplaats 1872?-?
6. Houten station met luifel aan spoorzijde 1872-1896
Afb. 3.9: Emplacement 1927 (op een kaart uit 1926/27)
22. Waterreservoir <1927-jaren’50/heden
23. Kolenpark <1927-ca1970
24. Verlening goederenloods 1927?-1976
25. 3e perron (a), seinhuis (b), traverse (c) 1928-heden verlenging 2e perron (d) 1932-heden
26. Draaischijf voor locomotieven 1928-?
27. Opstelterrein 1928-heden
28. Seinhuis jaren’30-jaren’70
Takkenbossenloods: In deze loods werden bossen dunne takken opgeslagen die gebruikt werden om het vuur in de locomotieven weer aan te krijgen nadat de locomotieven te koud waren geworden.
Tijdens deze periode werden vanwege de ontwikkelingen op het gebied van de stoommachines de oude locomotiefloods vervangen door een moderner en groter exemplaar. Het goederentransport vroeg inmiddels om nog meer gebouwen. Aan de westzijde werden er nieuwe loodsen opgericht en de oostelijke goederenloods werd verder uitgebreid. Voor de uitbreiding van het opstelterrein werd de spoorweghaven gedempt. Ook werden er in deze periode een groot kolenpark, een takkenbossenloods, een waterreservoir en een elektrische draaischijf met bedieningshuisje toegevoegd aan het emplacement. Deze laatste twee, waarbij er van het waterreservoir alleen maar nog de onderkant aanwezig is, zijn tegenwoordig de enige gebouwen die, naast het hoofdgebouw met zijn perronoverkappingen, nog herinneren aan het stoomtijdperk van het verleden.
zie ook afb. 3.8 nr. 22
Legenda: buiten gebruik sporen emplacementsgrens Omstreeks 1875


Waterreservoir: Dit reservoir is van het type SS (staatsspoorwegen). Er werd water uit de kanaal in dit reservoir gepompt, dat diende om de locomotieven van koelwater te voorzien. De watertank bevond zich boven in het gebouw, in de jaren ‘50 begon deze te lekken. De bovenkant werd toen gesloopt. De onderkant is blijven staan en staat er vandaag de dag nog steeds.
De routing werd op de perrons iets aangepast door de nieuwe trap van de bagage- en voetgangersbrug. Maar door deze traverse ook symmetrisch op het perronplein te oriënteren bleef het plein als centraal punt behouden. Op het 3e perron werd alleen een trap aan de oostzijde geplaatst. Aan die zijde was namelijk meer lengte beschikbaar. De routing van de reizigers door het stationsgebouw en aan de oostzijde onderging geen veranderingen.
Na deze periode tot aan WOII zijn geen essentiële wijzigingen van het emplacement bekend.
Draaischijven: Er waren een paar draaischijven op het emplacement aanwezig. Met deze draaischijven konden locomotieven worden gedraaid. Aan de westkant vlak bij de spoorweghaven was er één, tot de spoorweghaven werd gedempt. Toen werd deze verplaatst naar de uiterste westkant van het emplacement. Richting het oosten was er ook één. Bij deze draaischijf stond een bedieningshuisje dat er momenteel nog steeds staat, al is de draaischijf verdwenen.
De krimp van het emplacement, een veranderde reizigersstroom en een gegroeide betekenis van de achtergevel, WOII - 1985
In 1952 reed de laatste stroomtrein in Groningen. De stoomlocomotieven werden vervangen door diesellocomotieven. Veel gebouwen op het emplacement verloren hierdoor hun functie, zoals het waterreservoir, het kolenpark en later ook de locomotiefloods. In 1961 werd het Emmaviaduct aangelegd, waarvoor de locomotiefloods werd ingekort.
Toen het emplacement zijn functie als overslagplaats van
goederen begon te verliezen werd het emplacement aan de noordkant verkleint. Aan de westelijke en oostelijke zijde maakten de goederenloodsen plaats voor parkeervoorzieningen en voor een busstation. Vlak naast het stationsgebouw werd in 1954 een groot postkantoor gebouwd, waarvoor het westelijke eindgebouw van Gosschalk moest wijken.
Sinds de opening van het pronkstation in 1896 tot de jaren ’60 was er weinig aan het interieur veranderd. De periode eind jaren ’60 van de twintigste eeuw werd echter

8 13 13 24 14
maatgevend voor een veranderende routing in en om het stationsgebouw. Door het afsluiten van de oostelijke en westelijke zijgangen van de vestibule naar de vleugels (zie ook H4.2) werd het verblijfsgebied, de oostelijke vleugel met de reizigersvoorzieningen, losgekoppeld van de hal. De functie van de vestibule als ontvangstgebied werd hierdoor afgezwakt. Ook verloor de vestibule hierdoor haar functie als oriëntatiepunt. Zij was alleen nog maar doorgangsruimte naar de perrons. Om vanaf de voorkant van het station de wachtkamers te kunnen bereiken, is in de galerij een extra doorgang naar de restauratie
Legenda: aankomende reizigers verlatende reizigers aankomend en vertrekkend reizigers voorzieningen personeelsvoorzieningen dienstwoningen



Beschrijving en datering van de verschillende onderdelen:
Legenda:
Omstreeks 1875:
gemaakt. Deze opening zorgde voor een nieuwe looproute naar de perrons. Ook was de wachtkamer 3e klasse niet meer vanaf de voorkant bereikbaar, alleen nog maar vanaf de achterkant.
1896:
11. Uitbreiding locomotiefloods <1893-1925
22. Waterreservoir <1927-jaren’50/heden
Beschrijving en datering van de verschillende onderdelen:
12. Draaischijf voor locomotieven 1894-1925
23. Kolenpark <1927-ca1970
21. Takkenbossenloods <1927->1954
24. Verlening goederenloods 1927?-1976
22. Waterreservoir <1927-jaren’50/heden
1. Vijf standen locomotiefloods 1866-1925
2. Seinwachtershuisje oostkant 1866?-jaren’30
3. Seinwachtershuisje westkant 1866?-?
4. Loods 1866?-?
5. Bergplaats 1872?-?
6. Houten station met luifel aan spoorzijde 1872-1896
7. Stationschefwoning 1872-1896
8. Rijtuigenloods (later goederen) 1872-1976
9. Goederenloods 1872-1895
10. Spoorweghaven 1874-1926
13. Uitbreiding goederenloods Van Gend en Loos 1894-1976
Omstreeks 1875:
14. Stenen station en 2 perrons met overkappingen 1896-heden
25. 3e perron (a), seinhuis (b), traverse (c) 1928-heden verlenging 2e perron (d) 1932-heden
23. Kolenpark <1927-ca1970
15. Kiosk 1896-1954
1. Vijf standen locomotiefloods 1866-1925
26. Draaischijf voor locomotieven 1928-?
2. Seinwachtershuisje oostkant 1866?-jaren’30
24. Verlening goederenloods 1927?-1976
27. Opstelterrein 1928-heden
1927:
16. Vetgasfabriek 1906-1972
3. Seinwachtershuisje westkant 1866?-?
28. Seinhuis jaren’30-jaren’70
4. Loods 1866?-?
Omstreeks 1970
17. Draaischijf met bedieningshuisje 1909-?/heden
18. Bestelgoederenloods <1914-1954
5. Bergplaats 1872?-?
29. Emmaviaduct 1961-heden
25. 3e perron (a), seinhuis (b), traverse (c) 1928-heden verlenging 2e perron (d) 1932-heden
26. Draaischijf voor locomotieven 1928-?
30. Postkantoor 1953-1985
19. Goederengebouwen <194?-?
20. Acht standen locomotiefloods 1925-heden
6. Houten station met luifel aan spoorzijde 1872-1896
31. Paviljoen 1954-1986?
7. Stationschefwoning 1872-1896
21. Takkenbossenloods <1927->1954
8. Rijtuigenloods (later goederen) 1872-1976
Afb. 3.15: Emplacement omstreeks 1970 (op een kaart waarvan de bovenkant uit 1964/65 is en de onderkant uit 1971)
Afb.
aankomende reizigers verlatende reizigers aankomend en vertrekkend buiten gebruik sporen emplacementsgrens
Veranderingen tot: Omstreeks 1875
1896
1927
Omstreeks 1970

9. Goederenloods 1872-1895
10. Spoorweghaven 1874-1926
1896:
11. Uitbreiding locomotiefloods <1893-1925
12. Draaischijf voor locomotieven 1894-1925
13. Uitbreiding goederenloods Van Gend en Loos 1894-1976
14. Stenen station en 2 perrons met overkappingen 1896-heden
15. Kiosk 1896-1954
1927:
16. Vetgasfabriek 1906-1972
17. Draaischijf met bedieningshuisje 1909-?/heden
18. Bestelgoederenloods <1914-1954
19. Goederengebouwen <194?-?
20. Acht standen locomotiefloods 1925-heden
Legenda: buiten gebruik sporen emplacementsgrens Omstreeks 1875 1896 1927 Omstreeks 1970
27. Opstelterrein 1928-heden
28. Seinhuis jaren’30-jaren’70
Omstreeks 1970
29. Emmaviaduct 1961-heden
30. Postkantoor 1953-1985
31. Paviljoen 1954-1986?
Het toegenomen aantal bussen stopte hoofdzakelijk op het door het verkeer intensief gebruikte voorplein. Door de algemene toename van reizigers in de vestibule zal de reizigersstroom zich voor de loketten in de vestibule sterker geconcentreerd hebben. Mogelijk werden daarom in 1969 kaartautomaten in de oostelijke vleugel, ter plaatse van de damessalon 1e en 2e klasse, neergezet. Ook deze waren alleen via de achtergevel te bereiken. Hierdoor waren reizigers niet meer genoodzaakt om voor de koop van tickets de vestibule te betreden maar konden rechtstreeks, of vanaf het voorplein via de extra doorgang op de galerij of komend vanuit de doorgang tussen stationsgebouw en oostelijk eindgebouw, naar de achterkant van het stationsgebouw doorlopen. Ook werd de westelijke zijde met de bouw van het postkantoor in 1954 door de reizigers als toe- en uitgang van het emplacement gebruikt. Door deze veranderingen in de routing kreeg de achterzijde steeds meer de ‘ontvangst’functie van het station.
Eind jaren ‘70 werden de laatste gebouwen, die door het einde van het tijdperk van de stoomttrein en het goederenvervoer buiten gebruik waren geraakt, gesloopt. Het emplacement kon hierdoor aan de noord(oost) en zuid(oost)zijde verder worden verkleind. Dit omdat het station als infrastructureel aantrekkelijke plek gebruikt werd voor het oprichten van kantoorgebouwen zoals het PTT kantoor in 1975 (34) en het Hunzehuys in 1981 (36). Een nieuwe voetgangersbrug in 1985 ter hoogte van deze twee kantoorgebouwen zou het verwachtte hoge aantal forensen opvangen dat door nog meer geplande kantoren in het zuidelijke gebied zou ontstaan. Zoals in 2.2 al uitgelegd vonden deze plannen geen doorgang.
Op het emplacement zelf werden technische centra gebouwd en parkeervoorzieningen aangelegd.
Op de tot de jaren ’60 ingeslagen weg van de veranderende routing in en om het stationsgebouw werd met een grootschalige verbouwing van het stationsgebouw in 1968 voortgeborduurd. De verbouwing bleek noodzakelijk omdat het station niet meer bestand was tegen de toegenomen reizigersaantallen. De routing diende door een modernisering geoptimaliseerd te worden. Om de reizigers snel naar de perrons te laten stromen werd in de vestibule een brede gang gecreëerd met aan de zijkanten de loketten, bagage en commercie met een nieuwe brede uitgang naar de perrons recht tegenover de ingang.
Wat deze verbouwingen voor de architectuur betekende zal in hoofdstuk 4 nader worden toegelicht.
Door de nieuwe voetgangersbrug aan de oostkant van het station hebben het 1e en 2e perron een nieuwe aansluiting gekregen. Door deze brug, maar ook door het Hunzehuys met zijn doorgang naar het 1e perron vanaf de haltes van het nieuwe busstation, werd het 1e perron, oostelijk van het stationsgebouw, door de reizigersstromen als toegang tot het emplacement gebruikt. Het perronplein bleef een knooppunt van de reizigersstromen. De behoefte aan commercie begon te groeien en zo werd half op het perronplein en half ter plaatse van het spoorgedeelte een kiosk geplaatst. Deze locatie op het perronplein, dichtbij de achtergevel, zou als symbool gezien kunnen worden voor de verandering in de tijd: oorspronkelijk was er een kiosk op het voorplein, toen waren daar nog de meeste reizigers, maar de behoefte aan commercie begon zich door de ontwikkelingen te verplaatsen naar de achterzijde van het stationsgebouw.
Legenda: aankomende reizigers verlatende reizigers aankomend en vertrekkend reizigers voorzieningen personeelsvoorzieningen dienstwoningen



Beschrijving en datering van de verschillende onderdelen:
Legenda:
Omstreeks 1875:
1896: 11. Uitbreiding locomotiefloods <1893-1925
22. Waterreservoir <1927-jaren’50/heden
Beschrijving en datering van de verschillende onderdelen:
12. Draaischijf voor locomotieven 1894-1925
23. Kolenpark <1927-ca1970
21. Takkenbossenloods <1927->1954
24. Verlening goederenloods 1927?-1976
1983 32. Technisch centrum 1971-heden
33. Parkeerterrein 1973-heden
22. Waterreservoir <1927-jaren’50/heden
1. Vijf standen locomotiefloods 1866-1925
2. Seinwachtershuisje oostkant 1866?-jaren’30
3. Seinwachtershuisje westkant 1866?-?
4. Loods 1866?-?
5. Bergplaats 1872?-?
6. Houten station met luifel aan spoorzijde 1872-1896
7. Stationschefwoning 1872-1896
8. Rijtuigenloods (later goederen) 1872-1976
9. Goederenloods 1872-1895
10. Spoorweghaven 1874-1926
Afb. 3.19: Emplacement 1983 (op een kaart uit 1982/84)
aankomende reizigers verlatende reizigers aankomend en vertrekkend buiten gebruik sporen emplacementsgrens perronplein
Veranderingen tot: Omstreeks 1875 1896 1927
Omstreeks 1970 1982/84

13. Uitbreiding goederenloods Van Gend en Loos 1894-1976
Omstreeks 1875:
14. Stenen station en 2 perrons met overkappingen 1896-heden
15. Kiosk 1896-1954
1927:
25. 3e perron (a), seinhuis (b), traverse (c) 1928-heden verlenging 2e perron (d) 1932-heden
1. Vijf standen locomotiefloods 1866-1925
34. PTT kantoor ca1975-heden
23. Kolenpark <1927-ca1970
26. Draaischijf voor locomotieven 1928-?
2. Seinwachtershuisje oostkant 1866?-jaren’30
16. Vetgasfabriek 1906-1972
35. Technisch centrum 1981-heden
24. Verlening goederenloods 1927?-1976
27. Opstelterrein 1928-heden
28. Seinhuis jaren’30-jaren’70
3. Seinwachtershuisje westkant 1866?-?
17. Draaischijf met bedieningshuisje 1909-?/heden
4. Loods 1866?-?
Omstreeks 1970
29. Emmaviaduct 1961-heden
18. Bestelgoederenloods <1914-1954
5. Bergplaats 1872?-?
19. Goederengebouwen <194?-?
20. Acht standen locomotiefloods 1925-heden
6. Houten station met luifel aan spoorzijde 1872-1896
30. Postkantoor 1953-1985?
31. Paviljoen 1954-1985?
7. Stationschefwoning 1872-1896
21. Takkenbossenloods <1927->1954
8. Rijtuigenloods (later goederen) 1872-1976
9. Goederenloods 1872-1895
10. Spoorweghaven 1874-1926
1896: 11. Uitbreiding locomotiefloods <1893-1925
12. Draaischijf voor locomotieven 1894-1925
13. Uitbreiding goederenloods Van Gend en Loos 1894-1976
14. Stenen station en 2 perrons met overkappingen 1896-heden
15. Kiosk 1896-1954
1927:
16. Vetgasfabriek 1906-1972
17. Draaischijf met bedieningshuisje 1909-?/heden
18. Bestelgoederenloods <1914-1954
19. Goederengebouwen <194?-? 20. Acht standen locomotiefloods 1925-heden
Afb. 3.17: Emplacement 1983 (op een kaart uit 1982/84)
36. Hunzehuys 1984-heden
37. Luchtbrug 1985-heden
38. Kiosk en tech. ruimte ca1980-heden
25. 3e perron (a), seinhuis (b), traverse (c) 1928-heden verlenging 2e perron (d) 1932-heden
26. Draaischijf voor locomotieven 1928-?
27. Opstelterrein 1928-heden
Legenda: buiten gebruik sporen emplacementsgrens Omstreeks 1875 1896 1927 Omstreeks 1970 1982/84
28. Seinhuis jaren’30-jaren’70
Omstreeks 1970
29. Emmaviaduct 1961-heden
30. Postkantoor 1953-1985?
31. Paviljoen 1954-1985?
1983
32. Technisch centrum 1971-heden
33. Parkeerterrein 1973-heden
34. PTT kantoor ca1975-heden
35. Technisch centrum 1981-heden
36. Hunzehuys 1984-heden
37. Luchtbrug 1985-heden
38. Kiosk en tech. ruimte ca1980-heden
Een gerestaureerd stationsgebouw en een niet hierop afgestemde inrichting van en routing op het emplacement, 1985 – tot heden
Met de restauratie, afgerond in 2000, werd de vestibule door herstel van de ruimtelijke structuren weer verbonden met de voor commercie herstelde verblijfsruimtes in de oostelijke vleugel en ook in de westelijke zijvleugel. De vestibule heeft echter zijn functie als ontvangstgebied en (hoofd)oriëntatiepunt niet terug gekregen doordat de reizigersstroom en inrichting op het emplacement niet op deze functie werden afgestemd.
De uit de vestibule verwijderde commercie werd ter hoogte van het perronplein in een langgerekt gebouw tussen het 1e en 2e perron geplaatst waarvoor de twee oostelijke kopsporen
werden ingekort. Door de ligging van de al aanwezige kiosk en de nieuwe commercie ten opzichte van het perronplein, asymmetrisch en te dichtbij het perronplein, is de vormgeving van het plein niet meer te ervaren. Daarmee ging zijn functie als oriëntatiepunt maar ook zijn relatie met het stationsgebouw en de vestibule verloren.
Door de gelijkvloerse overgang naar het 2e perron (2000), de aanleg van een gelijkvloerse overgang naar het 3e perron (2010), waardoor de traverse zijn functie verloor, en de mogelijkheid om naast de westelijke kiosk het 1e respectievelijk 2e perron te kunnen bereiken hebben zich diverse reizigersstromen ontwikkeld die niet meer overeen komen met de oorspronkelijke opzet.

Hierdoor werd de oriëntatie van de reizigersstroom richting het oosten geforceerd. De locatie van de uitgangen van het Stadsbalkon hebben nog extra bijgedragen aan deze verplaatsing. De routing via de vestibule van het stationsgebouw wordt nauwelijks nog gebruikt. Door het intensieve gebruik van de achtergevel en daarmee het feit dat commerciële ruimtes hoofdzakelijk via deze gevel bereikbaar zijn, is de voorkant van het stationsgebouw functioneel nagenoeg op de achtergrond geraakt.
Emplacement en stedenbouw zijn daarmee een wisselwerking aangegaan zonder rekening te houden met de historisch waardevolle opzet van de stationslocatie en de plaats van het stationsgebouw hierin.
Legenda: aankomende reizigers verlatende reizigers aankomend en vertrekkend

reizigers voorzieningen personeelsvoorzieningen dienstwoningen


Afb. 3.19: Reizigersstroom 2012

Beschrijving en datering van de verschillende onderdelen:
Legenda:
Omstreeks 1875:
1896: 11. Uitbreiding locomotiefloods <1893-1925
Omstreeks 1875:
12. Draaischijf voor locomotieven 1894-1925
22. Waterreservoir <1927-jaren’50/heden
23. Kolenpark <1927-ca1970
1. Vijf standen locomotiefloods 1866-1925
24. Verlening goederenloods 1927?-1976
1983
32. Technisch centrum 1971-heden
33. Parkeerterrein 1973-heden
24. Verlening goederenloods 1927?-1976
34. PTT kantoor ca1975-heden
1. Vijf standen locomotiefloods 1866-1925
2. Seinwachtershuisje oostkant 1866?-jaren’30
3. Seinwachtershuisje westkant 1866?-?
4. Loods 1866?-?
5. Bergplaats 1872?-?
6. Houten station met luifel aan spoorzijde 1872-1896
7. Stationschefwoning 1872-1896
8. Rijtuigenloods (later goederen) 1872-1976
9. Goederenloods 1872-1895
10. Spoorweghaven 1874-1926
Afb. 3.24: Emplacement 2012 (op een kaart uit 2012)
aankomende reizigers verlatende reizigers aankomend en vertrekkend buiten gebruik sporen emplacementsgrens Veranderingen tot: Omstreeks 1875 1896 1927
Omstreeks 1970 1982/84 2012

13. Uitbreiding goederenloods Van Gend en Loos 1894-1976
14. Stenen station en 2 perrons met overkappingen 1896-heden
2. Seinwachtershuisje oostkant 1866?-jaren’30
15. Kiosk 1896-1954
1927:
25. 3e perron (a), seinhuis (b), traverse (c) 1928-heden verlenging 2e perron (d) 1932-heden
3. Seinwachtershuisje westkant 1866?-?
26. Draaischijf voor locomotieven 1928-?
4. Loods 1866?-?
27. Opstelterrein 1928-heden
5. Bergplaats 1872?-?
16. Vetgasfabriek 1906-1972
17. Draaischijf met bedieningshuisje 1909-?/heden
6. Houten station met luifel aan spoorzijde 1872-1896
18. Bestelgoederenloods <1914-1954
19. Goederengebouwen <194?-?
20. Acht standen locomotiefloods 1925-heden
23. Kolenpark <1927-ca1970
35. Technisch centrum 1981-heden
25. 3e perron (a), seinhuis (b), traverse (c) 1928-heden verlenging 2e perron (d) 1932-heden
36. Hunzehuys 1984-heden
26. Draaischijf voor locomotieven 1928-?
28. Seinhuis jaren’30-jaren’70
Omstreeks 1970
7. Stationschefwoning 1872-1896
29. Emmaviaduct 1961-heden
30. Postkantoor 1953-1985?
8. Rijtuigenloods (later goederen) 1872-1976
31. Paviljoen 1954-1985?
9. Goederenloods 1872-1895
21. Takkenbossenloods <1927->1954
10. Spoorweghaven 1874-1926
1896:
11. Uitbreiding locomotiefloods <1893-1925
12. Draaischijf voor locomotieven 1894-1925
13. Uitbreiding goederenloods Van Gend en Loos 1894-1976
14. Stenen station en 2 perrons met overkappingen 1896-heden
15. Kiosk 1896-1954
1927:
16. Vetgasfabriek 1906-1972
17. Draaischijf met bedieningshuisje 1909-?/heden
18. Bestelgoederenloods <1914-1954
19. Goederengebouwen <194?-?
20. Acht standen locomotiefloods 1925-heden
21. Takkenbossenloods <1927->1954
22. Waterreservoir <1927-jaren’50/heden
Afb. 3.20: Emplacement 2012 (op een kaart uit 2012)
37. Luchtbrug 1985-heden
38. Kiosk en tech. ruimte ca1980-heden
27. Opstelterrein 1928-heden
28. Seinhuis jaren’30-jaren’70
2012
39. KPN/PTT kantoor 1989-heden
Omstreeks 1970
40. Groninger Museum 1994-heden
41. Kiosk op de sporen 2000-heden
Legenda: buiten gebruik sporen emplacementsgrens Omstreeks 1875 1896 1927 Omstreeks 1970 1982/84 2012
29. Emmaviaduct 1961-heden
42. Stadsbalkon 2007-heden
30. Postkantoor 1953-1985?
31. Paviljoen 1954-1985?
1983
32. Technisch centrum 1971-heden
33. Parkeerterrein 1973-heden
34. PTT kantoor ca1975-heden
35. Technisch centrum 1981-heden
36. Hunzehuys 1984-heden
37. Luchtbrug 1985-heden
38. Kiosk en tech. ruimte ca1980-heden
2012
39. KPN/PTT kantoor 1989-heden
40. Groninger Museum 1994-heden
41. Kiosk op de sporen 2000-heden
42. Stadsbalkon 2007-heden
3.3 Samenvatting
Oorspronkelijke opzet
- De inrichting van het emplacement werd met de aanleg van het houten station in 1872 vastgelegd. De locaties van het stationsgebouw en de verschillende loodsen werden in deze fase bepaald en met de bouw van het stenen station in 1896 overgenomen.
- Het in 1896 nieuw ingerichte emplacement werd opgezet met drie oriëntatiepunten voor de reizigersstroom: het voorplein met zijn markering in het midden, de vestibule in het stationsgebouw en het perronplein.
- De vestibule in het stationsgebouw was niet alleen een oriëntatiepunt maar ook het ontvangstgebied dat iedere reiziger die met de trein wilde vertrekken moest betreden. Daarmee was de vestibule voor de reiziger de meeste belangrijke ruimte van het emplacement.
- Het perronplein bevindt zich tussen het 1e en 2e perron waardoor 4 kopsporen worden gecreëerd. Het emplacement wordt daarmee fysiek als dubbelkopstation gekenmerkt.
- De achtergevel van het stationsgebouw sloot aan op het 1e perron en werd voorzien van vele deuren omdat onder andere de reizigers via de wachtkamers het perron bereikten en de bagage rechtstreeks vanuit de afgifteruimte naar de treinen gebracht werd.
- De met de trein aankomende reizigers verlieten het emplacement via de doorgang tussen het stationsgebouw en het oostelijke eindgebouw.
Veranderingen
- In 1927/28 werd het emplacement uitgebreid door onder andere de verlenging van de overkapping van het 2e perron en een nieuw overkapt 3e perron met een traverse voor bagage en reizigers. Aan het eind van de traverse werd een seinhuis met een bijzondere architectonische vormgeving boven de overkappingen geplaatst.
- Verbouwingen in het stationsgebouw zorgden in de jaren ‘60 voor een loskoppeling van het ontvangstgebied, de vestibule, en de zijvleugels door het afsluiten van de zijgangen. In plaats ven één duidelijke routing door het gebouw werden hierdoor verschillende, los van elkaar staande, wegen richting perrons
gecreëerd. Hierbij bleef de vestibule als onderdeel van de hoofdrouting nog steeds een ontvangstgebied maar verloor zijn functie als oriëntatiepunt naar de andere gebouwdelen.
- Met deze verbouwingen werd de bereikbaarheid van de ruimtes voor reizigers zodanig veranderd dat de achterzijde de ontvangstfunctie begon over te nemen. Het plaatsen van kaartautomaten, bereikbaar alleen via de achtergevel, zal dit effect hebben versterkt.
- De modernisering van het stationsgebouw in 1968 was noodzakelijk vanwege de enorm gegroeide reizigersstroom. De hoofdrouting werd geoptimaliseerd door de vestibule op te delen in een brede gang in het midden met aan de zijkanten de reizigersvoorzieningen en een nieuwe brede uitgang naar het perronplein toe. Deze situatie bleef in hoofdlijnen tot aan de restauratie 1998/2000 gehandhaafd.
- Met het einde van het stoomtijdperk werd het emplacement eind jaren ’60 en ‘70 aan de noord- en zuidzijde verkleind. Het westelijke eindgebouw werd ten behoeve van de bouw van een postkantoor in 1954 gesloopt. In de jaren ’70 en ’80 werden kantoorgebouwen aan de zuidoost (PTT)- en noordoostzijde (Hunzehuys) van het emplacement gebouwd
die door middel van een voetgangersbrug in 1984 met elkaar verbonden werden.
- Het oostelijke emplacement begon zich vanaf de jaren ’80 tot een toegangsdomein te ontwikkelen doordat het 1e perron oostelijk van het stationsgebouw vooral vanwege de stedenbouwkundige ontwikkelingen (Hunzehuys, Stadsbalkon) doelgericht en snel bereikt konden worden. Een extra overgang naar het 2e perron in 2000, tegenover de doorgang tussen het stationsgebouw en het oostelijke eindgebouw, versterkte dit effect. Hierdoor verloor het voorplein maar ook het perronplein zijn functie als oriëntatiepunt.
- Met het naar het oosten verplaatste toegangsdomein heeft de voorgevel zijn betekenis als representatieve ontvangstgevel verloren. Vanaf de jaren ’80 ontwikkelde zich de achterzijde van het stationsgebouw nadrukkelijk tot het nieuwe ontvangstgebied (het 1e perron).
- De restauratie van 1998/2000 zorgde voor een herstel van de ruimtelijke structuren in het stationsgebouw, met name de vestibule met haar zijgangen naar de vleugels. Hiervoor werd de commercie uit de vestibule naar een nieuw gebouw
tussen het 1e en 2e perron verplaatst. Dit gebouw versterkte het functieverlies van het perronplein als oriëntatiepunt.
- Het seinhuis van 1928 verloor in de jaren ‘80 zijn functie en kent sindsdien geen nieuw gebruik. De traverse raakte in 2010 buiten gebruik door de aanleg van een overgang op perronniveau naar het 3e perron.
3.4 Conclusie
- Het stapsgewijs verloren gaan van al de 3 oriëntatiepunten op één as, het voorplein, de vestibule en het perronplein, is een negatieve ontwikkeling in verband met de beleving en waarde van het monumentale complex.
- Het huidige toegangsdomein oostelijk van het stationsgebouw is het resultaat van sluipende ontwikkelingen in de stedenbouw en van het emplacement die een wisselwerking vanaf de jaren ’80 zijn aangegaan zonder rekening te houden met de historisch waardevolle opzet van het emplacement en de plaats van het stationsgebouw hierin.
- De vestibule is DE meest belangrijke ruimte van het gehele emplacement. Met de restauratie werd deze met zijn
monumentale afwerkingen weer hersteld maar heeft naast de functie als oriëntatiepunt ook zijn functie als ontvangstdomein niet terug gekregen door de naar de oostzijde verplaatste reizigersstroom. Het toekennen van een specifieke en openbare functie aan de vestibule is van essentieel belang voor het werken van het emplacement met zijn cultuurhistorisch waardevolle opzet.
- De locatie van de in-uitcheckpunten voor tickets heeft grote invloed op de reizigersstroom. Wil de NS de vestibule als belangrijkste ruimte van het emplacement in ere herstellen dan moet de aanwijzing van de in-uitcheckpunten afgestemd worden op de oorspronkelijke opzet van het station.
- Uit het onderzoek en de analyse van de veranderingen in de tijd blijkt dat bijna iedere ingreep de aantasting van de monumentale waarde van het gebouw vergrootte waarop in een volgende fase weer voortgeborduurd werd. De restauratie van 1998/2000 was een (eerste) inhaalslag. Deze ingreep kan en moet beter worden benut en doorontwikkeld.
- De locatie van de traverse en seinhuis (uitbreiding in 1928) heeft zich in de oorspronkelijke opzet van het
emplacement met zijn middenas gevoegd zonder de reizigersrouting verstoord te hebben. Het perronplein bleef het knooppunt van de reizigersstromen op de perrons. Echter heeft de reizigerstroom tot heden dermate sterk toegenomen waardoor deze uitbreiding van 1928 dichtbij het perronplein een obstakel lijkt te zijn. Hierbij speelt ook de stedenbouwkundige locatie van het station een belangrijke rol voor de bewoners als zijnde en verbinding tussen de oude binnenstad en de gegroeide zuidelijke stad (zie H2).
Indien de stationslocatie naast de reizigersstroom ook een doorgangsstroom tussen deze twee stadsdelen zou krijgen moet bij een nieuwe transformatie een afgewogen balans gevonden worden waarbij het behoud van de symmetrische opzet met het perronplein voorop staat.
- De locatie van het seinhuis boven de perronkappen kan gezien worden als symbool voor de fase rond 1914 waarbij besloten werd de bestaande stationslocatie aan te houden en essentieel uit te breiden. De bijzondere architectuur van het seinhuis (zie H4) refereert aan de locatie in het midden van het emplacement en geeft als een soort landmark de grootte van het emplacement uit die tijd aan.
4.1 Gebouw: oorspronkelijke opzet van de architectuur, constructie, materialisatie, ornamentiek
Het ontwerp en de uitvoering ervan, 1891 - 1896
Een standaard ontwerp voor een 1e klasse station in Groningen werd door de Groningse bevolking als niet acceptabel en rijk genoeg beschouwd. Groningen moest een echt pronkstation krijgen dat voor de reizigers als DE voordeur tot de stad moest dienen. Aan deze wens zou architect Isaac Gosschalk invulling geven (zie ook H1).
Zoals in hoofdstuk 1 al uitgelegd kreeg Gosschalk wel de leiding over het gehele ontwerp maar diende hij dit op basis van een vooraf vastgestelde plattegrond met een symmetrische grondvorm te ontwikkelen. Ondanks het feit dat deze grondvorm vooralsnog onbekend is, is het aannemelijk dat deze bestond uit een hoog middenpaviljoen met twee lage vleugels en twee hoekpaviljoens,
ook de eindgebouwen, zijnde toiletvoorzieningen, hoorden mogelijk bij het verstrekte standaardstation. Hij concentreerde zich met zijn ontwerp op het vormgeven van de gevels met al hun verhoudingen, details, versieringen en materialisatie. Maar ook in het interieur schonk hij alle aandacht aan met name de door de reizigers gebruikte ruimtes. Zijn ambitie was om een schilderachtig gebouw te realiseren dat door zijn rijke uitstraling recht deed aan een pronkstation. Hierbij moet worden opgemerkt dat de reiziger in zijn ontwerp altijd op de voorgrond stond. Zijn architectonische visie zette Gosschalk zo in dat het voor de reiziger niet alleen een goed functionerend gebouw was maar ook een gebouw om van te genieten en in te verblijven.
Vanwege het tijdgebrek heeft hij echter zijn visie op het station in de ontwerpfase niet als afgerond ervaren. Hij was niet tevreden met de proporties van de voorgeschreven plattegrond die inherent zijn aan een parallelstation waarbij de lengte van

Afb. 4.1: Voorgevel ontwerptekening
het gebouw niet afgestemd is op zijn hoogte. Zo zijn dan ook tussen de bestek(ontwerp)tekeningen en de tekeningen van de daadwerkelijk uitgevoerde situatie diverse verschillen te zien.
Deze fase kan daarmee al als een eerste belangrijke fase van veranderingen worden beschouwd. Hierbij valt op dat hij met de uitvoering iets is afgeweken van de strenge symmetrie die nog aan de voorgevel van de bestektekening af te lezen is. Het oostelijke hoekpaviljoen heeft hij door een trapgevel aan de zijkant meer massa gegeven en het middenpaviljoen kreeg een minder hoog fronton en dak ten opzichte van de hoekpaviljoens.
Door deze gemaakte aanpassingen blijft het middenpaviljoen wel het hoofdelement maar is het meer een onderdeel geworden van het totale (oost-west gerichte) langwerpige gebouw. Door ook de eindgebouwen in hun vorm en massa aan te passen vormt het driedelige ensemble een duidelijke eenheid. Verondersteld zou kunnen worden dat Gosschalk daarmee inspeelde op het feit dat de strenge symmetrische grondvorm met een dominerend hoofdelement in het midden niet paste bij de toen bestaande stedenbouwkundige situatie met de hoofdtoegangsweg vanuit de oostelijke zijde (zie H2.1). Ook zullen deze wijzigingen te maken hebben gehad met de invulling van het gebouw waarbij de samenhang tussen (interne) functie en het gevelbeeld uitgestraald wordt.
Het uitgevoerde stationsgebouw - 1896 Als neorenaissancist omschreef Gosschalk zijn visie als volgt: in de architectuur “is men wel degelijk verplicht te letten op het schilderachtige effect, op schaduwwerking, op de wijze waarop een gebouw tegen de lucht uitkomt, het silhouet”. Hij zette dan ook diverse middelen in om zijn architectuurvisie bij het stationsgebouw vorm te geven. Deze middelen kunnen als volgt worden onderscheiden:

- gebruik van kenmerken uit de Europese stationstypologie voor een kopstation;
- gebruik van licht;
- gebruik van symboliek en kunstwerken;
- functionaliteit;
- gebruik van bouwkundige constructie en techniek indien het ten goede komt aan het verrijken van zijn visie. Duidelijk is dat de vestibule als ontvangstgebied en hoofdoriëntatiepunt de belangrijkste ruimte was. Hier kwamen dan ook al de hierboven genoemde middelen aan bod om indruk te maken en het al van buiten af waargenomen beeld van het pronkstation met het betreden van het gebouw te herbeleven.
- gebruik van verschillende architectuurstijlen (eclecticisme), met name neorenaissance en neogotiek, in geringe mate Jugendstil, gepaard met bijzonder rijke materialisatie en afwerkingen;

De eindgebouwen als onderdeel van de architectonische opzet
Gosschalk gebruikte de aanwezigheid van de (mogelijk) voorgeschreven eindgebouwen om het stationsgebouw in zijn omgeving te plaatsen. Door een ten opzichte van het ontwerp aangepaste hogere dakvorm en grotere massa van de eindgebouwen en door dezelfde materiaalinzet als het stationsgebouw creëerde hij een architectonisch belangrijke relatie tussen de gebouwen als totaalensemble. In vergelijking met de ontwerptekeningen zijn er door deze wijzigingen een verhoogde architectonische kwaliteit van de eindgebouwen ontstaan waardoor zij een nauwe relatie met het stationsgebouw kregen. De eindgebouwen ronden het ensemble af en zetten het stationsgebouw “vrij” ten opzichte van de belendende bebouwing.
Door hen werd de voor het stationsgebouw noodzakelijke breedte van het voorplein bepaald.

Het gebouw en het spel met verhoudingen in relatie tot de materialisatie
Interieur
Bekijkt men de plattegrond van het stationsgebouw dan kan men een symmetrische ritmiek van ruimtes aflezen met in het midden het grootste en meest naar voren springende middenpaviljoen (A), het kruispunt met de zijarmen naar de vleugels toe. Binnen
deze ruimtelijke structuren zijn in de oostelijke (reizigers)vleugel wederom drie ruimtes waar te nemen die in lengte, breedte en hoogte tot elkaar zijn vormgegeven. Hierbij gaat het om de restauratie, de wachtkamer en de damessalon voor de 1e en 2e klas reiziger. Deze ruimtelijke relaties zijn door doorkijkjes versterkt waarbij de doorgangen tussen deze ruimtes net verspringend ten opzichte van elkaar aanwezig zijn.



Plattegrond en doorsnede met de verhoudingen van de damessalon, wachtkamer en restauratie en de doorgangen in rood
De afwerkingen van de voor de reizigers toegankelijke ruimtes waren tussen de verkeers- en verblijfsruimtes duidelijk verschillend uitgevoerd. De verkeersruimtes kenden door hun steenachtige afwerkingen, op het plafond van de vestibule na, dezelfde uitstraling. Door in deze afwerkingen nuances aan te brengen werd de routing van de reizigers geaccentueerd. Verschillende rijke afwerkingen maar ook identieke of gelijkwaardige afwerkingen zijn doelgericht gebruikt om zowel een bepaalde hiërarchie tussen de ruimtes aan te geven als ook

Legenda: verkeersruimtes verblijfsruimtes

de verschillende ruimtes met elkaar te verbinden als onderdeel van een routing. Volgende voorbeelden kunnen hierbij genoemd worden:
- in verband met de hiërarchie: de zeer rijk afgewerkte vestibule als ontvangstgebied, daarna volgden qua routing de zijgangen, de tochtportalen naast de vestibule, de galerijen en uiteindelijk het tochtportaal naar de wachtkamer 3e klasse – in deze ruimtes is de stapsgewijs minder rijk uitgevoerde afwerking goed aan de gewelven te zien, van rijke kruisribgewelven



naar troggewelven toe;
- in verband met gelijkwaardige afwerkingen: het gebruik van kruisribgewelven in de tochtportalen en galerijen;
- in verband met identieke afwerkingen: de lambrisering van wandtegelwerk (met Jugendstil patroon) in de vestibule en de zijgangen.
Bij het betreden van de verblijfsruimtes, te weten de wachtkamers en de restauratie in de oostelijke vleugel, ontstond door het gebruik van “warme” materialen, zoals hout en behang, weer een bepaalde rust en warmte. Deze ruimtes staan niet alleen met betrekking tot hun verhoudingen, zoals hiervoor omschreven, in relatie tot elkaar maar ook op het niveau van de afwerking: de wachtkamer 3e klasse is in zijn detaillering relatief eenvoudig afgewerkt met een grenen houten lambrisering en een minder rijk afgewerkt plafond. De restauratie en wachtkamer 1e en 2e klasse zijn rijker afgewerkt. Dit is te zien in een rijker uitgevoerde profilering en de keuze voor duurdere materialen, zoals

lambriseringen van eiken wagenschot met briefpaneel motieven. Met het zelf ontwerpen van het meubilair, zoals de in de betimmering geïntegreerde banken, buffet en kasten, voorkwam Gosschalk dat er misplaatste stijlen zijn ontwerp verstoorden. De damessalon was de kleinste wachtkamer en tevens de rijkste in zijn afwerking.
Over de afwerking van de westelijke vleugel met de personeelsvoorzieningen is weinig bekend. Het is mogelijk dat Gosschalk de ruimtes die voor de reizigers toegankelijk of te ervaren waren, zoals het bagageloket, de telegraaf en het postkantoor, iets rijker heeft afgewerkt dan de andere personeelsruimtes.



Gosschalk paste verschillende hoogten en diepten in de gebouwdelen toe. Het middenpaviljoen zette hij meer naar voren waardoor de hiërarchie van de gebouwdelen duidelijk wordt aangegeven: de belangrijkste bouwmassa met de vestibule. Onderdelen zoals de erkers van de woningen, de wat terugliggende tochtportalen met de galerijen en de verschillende dakhoogtes doen mee in dit spel waarmee Gosschalk de reizigers naar het gebouw “lokte”.
Hij schreef dat men zich eerder bewust is hoe een gebouw er naar boven uitziet, hoe het tegen de lucht afsteekt dan hoe het basement is gevormd. Hij trekt de vergelijking met een boom: “de stam van de boom, waar alles uit voortkomt, is eenvoudiger, toont kracht”. De aandacht dient naar de bovenkant te gaan. Alleen wanneer de onderkant “gekunsteld, samengesteld was, zou het de aandacht trekken”. Zo krijgt het gebouw door de nagenoeg doorlopende plint van zand- en hardsteen een vaste voet die o.a. vanwege het materiaalgebruik kracht maar ook rust uitstraalt. Daarmee is in de afwerking van de buitengevels het principe terug te vinden dat Gosschalk ook aan de binnenkant gebruikte: hoe hoger des te rijker vormgeving en materialisatie worden.
Dat voor Gosschalk een duurzame keuze van het materiaalgebruik van bijzonder belang was is in het feit terug te vinden dat hij voor het stationsgebouw voor het eerst een Nederlandse baksteen gebruikte. Voor die tijd achtte Gosschalk de kwaliteit van de
Nederlandse baksteen voor verwerking in een buitengevel niet voldoende. De kwaliteit werd in die tijd verbeterd door een veranderd bakproces. Daarmee hervond Gosschalk zijn vertrouwen en met zijn keuze voor de Groningse rode en Friese gele steen is duidelijk dat hij tot in het materiaal toe een gebouw voor Groningen wilde oprichten. Voor de witte banden in de gevels werd Oberkirchnersteen gebruikt, een zandsteen. De combinatie van natuursteen met schoonmetselwerk, door hemzelf aangeduid als ‘berg- en baksteen’, is niet alleen kenmerkend voor het werk van Gosschalk maar ook voor de neo-renaissance stijl.

Kenmerkende stijlelementen ter vervolmaking van de architectonische opzet
Volgens zijn artikel was Gosschalk, ondanks zijn wijzigingen, nog steeds niet tevreden met de verhoudingen van het langgerekte stationsgebouw. Rijke decoraties en kenmerkende stijlelementen gebruikte hij om zowel zijn gebouw “aan te kleden” als ook om de niet kloppende verhoudingen te verdoezelen. Zo heeft hij de driepas-bogen van de galerijen als middel ingezet om de aandacht af te leiden van de verhoudingen: “Door deze drukke vormen trachtte ik alweer te verkrijgen, dat men zich minder rekenschap afvraagt van de verhoudingen.”
Hiervoor gebruikte Gosschalk niet alleen neo-renaissance stijlelementen maar ook elementen uit de Neogotiek. Ter verduidelijking kunnen hierbij de volgende elementen genoemd worden:
- het spiltrapje in de vestibule;
- de vorstkammen op de daken;
- de Vlaams- Brabantse driepasbogen van de galerijen.


Spiltrapje: In de detaillering moest Gosschalk concessies doen in verband met geld- en tijdgebrek. Zo schreef hij over het gotische spiltrapje in de vestibule waarmee de zolder bereikt kan worden: “uitgevoerd in den geest (maar oneindig veel eenvoudiger, anders had het Rijkstoezicht niet nagelaten een knokkelkastijding toe te dienen!) als de Franse en Engelsche gotiek voorbeelden aanbieden”. Hij had de ambitie om dit nog rijker vorm te geven.

4.18: Het gotische spiltrapje

Vorstkammen: De voor de neogotiek kenmerkende vorstkammen op de daken zijn een middel om het stationsgebouw minder sterk tegen de lucht te doen afsteken: de strakke lijnen en vormen worden verzacht waardoor het gebouw niet meer streng tegen de lucht afsteekt.
De omgang met licht Gosschalk liet in het gehele gebouw glas-in-lood toepassen wat volgens hem een prettig gedempt licht gaf zonder te verduisteren.
Op bijzondere plaatsen gebruikte hij patronen met gekleurd glas, zoals in de traceringen van de restauratie en het rozetvenster in het plafond van de vestibule waardoor gekleurd diffuus licht van de zolder de vestibule bereikt. Samen met de halve radvensters in de voor- en achtergevel ontstond in de vestibule een warm licht waarvan het effect wederom vergeleken kan worden met schilderijen uit de Hollandse kunstgeschiedenis. Over het halfronde venster in de zuidelijke achtergevel schreef hij: “Voor


het achtervenster boven de loketten kon ik de verzoeking niet weerstaan een zeldzaam fraaie traceering uit de Bovenkerk te Kampen onder de oogen van een grooter publiek te brengen”.
Misschien gaf hij aan dit venster een bepaalde betekenis omdat het aan de zuidzijde ligt en daardoor meer lichtinval krijgt dan het halfronde venster in de (noordelijke) voorgevel. De reizigers komen binnen en zien meteen het halfronde venster in de achtergevel.
Andere gerichte lichtinvallen creëerde hij door middel van een lichtschacht met een daklicht op de verdiepingen van de woningen in de hoekpaviljoens.


Het feit dat de lantaarn die de vestibule verlicht geen elektrisch licht voortbracht maar dat het station zou ‘stralen en zich met het warmere, en minder opdringerige gaslicht zou vergenoegen’ stemde Gosschalk positief, hoewel dit een zuiver financiële keuze was van de spoorwegen.

Vlaams-Brabantse driepasbogen: Nadat de bestektekeningen klaar waren, was Gosschalk niet tevreden over bepaalde verhoudingen en wijzigde de vijf halfronde bogen, rustend op vierkante pijlers omdat de bogen een “zeer zware indruk” maakten. Hij veranderde de halfronde bogen in Vlaams-Brabantse driepasbogen, een element uit de gotiek, die rusten op nu slankere kolommen. Deze wijziging van rondbogen naar driepas- bogen ontneemt het gebouw het strenge karakter van het neo-classicisme.
Het station en zijn kunstwerken
Gosschalk heeft zijn gebouw voorzien van diverse kunstwerken die met hun decoratie, materialisatie en symboliek in het gebouw architectonisch en functioneel werden geïntegreerd. In dit onderzoek worden de volgende categorieën aangehouden en nader toegelicht:
- tegeltableaus;
- beletteringen;
- beeldhouwwerk;
- overige decoraties.
Kunstwerken / symboliek:
- tegeltableaus
I cluster de Telegrafie, Stedenmaagd en Post;
II cluster de Arbeid en de Tijd
III tegeltableau Spoorwegenkaart
- belettering
a “DIENSTINGANG” met hierbij horend gebeeldhouwde hoofden van de postbeambte en van de stationschef, zie ook 2;
b “POSTERIJEN”
c “BAGAGE”
d “DOORGANG”
e “WACHTKAMER 3DE KLASSE”
f “BAGAGE, TELEGRAAF, STATIONSCHEF”
g “WACHTKAMERS 1E EN 2E KLASSE”
h “RESTAURATEUR”
- beeldhouwwerken in natuursteen
1 sluitstenen met de hoofden van boeren en boerinnen als symbool voor de Groningse bevolking;
2 gebeeldhouwde hoofden van een postbeambte en van een stationschef, horend bij de daarboven aangebracht belettering, zie a
3 gebeeldhouwde haan als symbool voor de woning van de opzichter;
4 gebeeldhouwd reliëf met de belettering van “restaurateur”, verwijzend naar diens woning;
- overige decoraties
A gevleugeld wiel
B gaslantaarn
C papierstuc - plafond vestibule

Afb. 4.24: Plattegrond met daarin met nummer de kunstwerken/symboliek aangegeven
Tegeltableaus
In de vestibule zijn, vrij hoog in de ruimte, twee clusters van tegeltableaus in Jugendstil te zien. ‘De Stedenmaagd, de Telegrafie en de Post’ boven de doorgang naar de westelijke vleugel waarin zich de telegraaf, het bagageloket en het kanoor van de stationschef bevinden. ‘De Arbeid en Tijd’ boven de doorgang naar de oostelijke vleugel die naar de verblijfsruimtes van de reizigers leidt. Hierdoor hebben de tableaus een inhoudelijke relatie met de functies van de ruimtes in de zijvleugels.

*1. In de wachtkamer 3e klasse is een groot tegeltableau te zien waarop de spoorwegenkaart met de spoorlijnen in Nederland en de aansluitingen met het buitenland staan afgebeeld: misschien tot lering en vermaak van de reizigers 3e klasse.
*2. De tegeltableaus boven de westelijke doorgang naar de telegraaf, het bagageloket en het kantoor van de stationschef:



- rechts de post, gesymboliseerd door een figuur met brief op het gevleugeld wiel, dat symbool staat voor de spoorwegen, met daarboven verschillende locomotieven; - in het midden de stedenmaagd van Groningen: omgeven door attributen uit de landbouw en veeteelt en voorzien van een gevleugeld wiel onder haar troon.
- links de Griekse god Hermes, die als boodschapper symbool staat voor de telegrafie. Ook staan er duiven op het tableau, symbool voor de overdracht



van boodschappen. Hermes wordt niet vergezeld door een gevleugeld wiel: de telegraaf vervoert de boodschappen ‘door de lucht’ en niet via het spoor.
*3. De tegeltableaus boven de oostelijke doorgang naar de reizigersvoorzieningen:
- links de Arbeid, bijgestaan door ijverige diersoorten zoals bijen, spinnen en mieren;
- rechts de Tijd, gesymboliseerd door een zandloper bovenin.
Belettering
De diverse in de architectuur geïntegreerde beletteringen boven in- en doorgangen laten duidelijk zien hoe belangrijk het voor Gosschalk was om de architectuur op de functionaliteit af te stemmen. Hierbij valt op dat de bewegwijzering voor de reizigers met duidelijke letters is weergegeven terwijl de aanduidingen voor het personeel wat speelser en minder opvallend, soms zelfs alleen maar met symboliek, zijn uitgevoerd.



Beeldhouwwerken
Elke galerijboog wordt bekroond met een sluitsteen waarin de kop van een boer of een boerin is weergegeven. De economische bloei van Groningen werd eind 19e eeuw veroorzaakt door de handel in vee, hout en graan. De elite in Groningen bestond in die tijd vooral uit boeren.
In de voorgevel zijn er boven de dienstingang in de westelijke vleugel twee hoofden te herkennen: de postbeambte en de


stationschef. Ook bij de entrees naar de woningen in het station paste Gosschalk symboliek toe. Boven de entrees van de chefswoningen is een reliëf met een haan erop te zien, dit geeft de waakzaamheid en het altijd vroege ontwaken aan dat bij dit beroep hoort.
Overige decoratie
Op een prominente plaats in het station, namelijk op het dak van het middenpaviljoen, is het gevleugeld wiel te vinden, het toenmalige symbool van de spoorwegen.
Een andere kenmerkende decoratie is de zes meter hoge gaslantaarn in het midden van de vestibule. Het licht was voor Gosschalk een belangrijk element in de architectuur waarvoor deze lantaarn als symbool gezien kan worden. Waar de wanden

een rijke decoratie kennen, wordt de aandacht in het midden van de ruimte naar deze, uit rijk gedecoreerde smeedijzeren elementen bestaande, (inmiddels gereconstrueerde) lantaarn getrokken.
Het rijk beschilderde papierstucplafond in de vestibule is niet alleen bijzonder vanwege de gebruikte techniek maar ook vanwege zijn bewerkelijkheid en uitstraling. Over zijn kleurkeuze van het plafond schreef Gosschalk: “Met voordacht nam ik de kleuren krachtig, aan lucht en licht met gerustheid de verbleeking overlatende.” Rondom het in het midden geplaatste rozetvenster met een gebrandschilderd glaspatroon ontwierp Gosschalk verschillende ‘schijnvensters’ door deze lichtblauw te schilderen. Door de grote hoogte leken er meerdere vensters in het plafond te zitten terwijl het er in werkelijkheid maar één was.
Een functioneel stationsgebouw met een duidelijke routing Zoals hiervoor al kenbaar gemaakt gebruikte Gosschalk diverse middelen om het gebouw functioneel te houden en een duidelijke routing voor de reizigers aan te geven. Deze middelen kunnen als volgt worden samengevat:
- door het spel met verhoudingen in het exterieur worden de reizigers naar het middenpaviljoen als entree- en ontvangstgebied geleid;
- door de materialisatie van een nagenoeg doorlopende zanden hardstenen plint met de hoofdtoegangsdeuren als snel herkenbare onderbreking wordt de entree duidelijk benadrukt;
- in de vestibule wordt de reiziger door de lichtinval via het rijk vormgegeven en gekleurde halve radvenster in de zuidelijke achtergevel naar de loketten geleid;

- door de identieke of gelijkwaardige afwerking van de Afb. 4.38:

oostelijke vleugel
westelijke vleugel
personeelsvoorzieningen reizigersvoorzieningen vestibule


verkeersruimtes weet de reiziger zijn weg te vinden naar de verblijfsruimtes.
Verdere zijn de volgende functionele kenmerken aan met name de voorgevel van het gebouw af te lezen:
- de oostelijke reizigersvleugel kenmerkt zich o.a. door de grote ramen van de wachtkamer 3e klasse en het gekleurde glasin-lood panelen in de traceringen van de restauratie;
- de westelijke personeelsvleugel kenmerkt zich o.a. door de met bakstenen siermetselwerk gevulde boogvelden;
- het ontvangstgebied met de vestibule als belangrijkste ruimte voor de reiziger kenmerkt zich door zijn veelvoudige decoratie.
De aankomende reiziger daarentegen ervoer een achtergevel die wat betreft detaillering en decoratie wat minder rijk was afgewerkt. Voor de overstappende reizigers was restauratie door grotere openingen gemarkeerd.

4.41: Tekening van de uitvoering van de achtergevel, met in roze kaders de openingen behorende bij de verblijfsruimtes
Bouwkundige techniek en constructie
Gosschalk besteedde in zijn ontwerp veel aandacht aan detaillering en de daarbij behorende materialen. Hij was een pionier op het gebied van nieuwe materialen en technieken en zette deze in om zijn beoogde architectonische visie kracht bij te zetten. Hij benutte constructieve onderdelen vooral om deze ten goede te laten komen aan zijn architectonische visie en de rol van de afwerkingen hierin. Een voorbeeld hierbij zijn de al eerder genoemde kruisribgewelven in de verkeersruimtes. Dit is een constructieve techniek die esthetisch fraai vorm gegeven kan worden (zie afb. 4.7 t/m 4.9).
Een grotere uitdaging was daarentegen een fraaie vormgeving van de twee houten tralieliggers van ruim 2 meter hoogte, waarop de zoldervloer van het middenpaviljoen rustte.
Gosschalk camoufleerde deze door hen op te nemen in het ontwerp van het papierstuc-plafond. Dit plafond is in de huidige tijd het meest bijzondere materiaalgebruik van het gebouw. Gosschalk gebruikte het enerzijds omdat stucwerk te zwaar zou zijn, anderzijds omdat hij het plafond op tijd vóór de oplevering beschilderd wilde hebben. De plafonds van de wachtkamer 1e en 2e klasse, de damessalon en restauratie werden ook met papierstuc afgewerkt. Papierstuc is een vorm van papiermaché. Er zijn twee soorten papier-maché: de eerste soort wordt gemaakt door geweekte en gekookte snippers papier te mengen met lijm tot een brei die vervolgens in een vorm wordt gegoten,
de tweede soort bestaat uit allemaal verschillende lagen papier die met lijm op elkaar zijn geplakt in een bepaalde vorm. De laatste soort werd door de firma Bennewitz & Co papierstuc genoemd en werd toegepast in het station van Groningen. Deze techniek is oorspronkelijk een uitvinding afkomstig uit Duitsland en was aan het eind van de vorige eeuw niet ongebruikelijk als kamerdecoratie. Na verloop van tijd raakt het weer uit de mode, verdwenen de fabrieken en daarmee ook de kennis over dit materiaal. Met de restauratie van 1998/2000 moest deze kennis in Nederland weer terug gewonnen worden. Dit onderzoek en de omvang van het te restaureren papierstuc was bijzonder en eenmalig voor Nederland.
In de wachtkamers maakte Gosschalk gebruik van de constructieve eigenschappen van kwadrant-ijzer, dat in die tijd in opkomst was. Maar omdat hij bang was dat men zou denken dat de ijzeren kolommen “het niet zouden doen”, liet hij de onderkanten betimmeren waardoor de kolommen een stabielere indruk zouden maken.
Ook buiten het zicht van de reiziger maakte hij gebruik van een bijzondere constructie. Onder de vestibule zijn Moniergewelven van gewapend beton toegepast. Gosschalk schreef hierover: “Gewapend beton was in die tijd een nieuwe techniek en er konden grotere overspanningen gerealiseerd worden dan gebruikelijk was met oudere technieken.”

Afb. 4.42: De onderaan betimmerde kolom van kwadrant-ijzer

vakwerkspanten
Afb. 4.43: De vestibule met de vakwerkspanten bedekt met papierstuk
4.2 Gebouw: veranderingen en aanpassingen in latere fases
Over aanpassingen in de eerste helft van de 20e eeuw is weinig bekend. In de jaren ’30 werd een zadeldak geplaatst boven de doorgang tussen het stationsgebouw en het oostelijke eindgebouw. Hier verlieten reizigers het perron via een controlepost. De meest ingrijpende veranderingen vonden in de tweede helft van de 20ste eeuw plaats. Hierbij zijn er drie periodes verkend die essentieel waren in de verbouwingsgeschiedenis van het stationsgebouw. Deze zijn in een overzicht hiernaast weergegeven en worden vervolgens nader uitgelegd.
1 een periode tussen WOII en 1968 met eerste bouwkundige ingrepen die de oorspronkelijke opzet en routing verstoorden;
2 het jaar 1968 met een ingrijpende modernisering van het interieur van het stationsgebouw waardoor de beleving van het monumentale karakter en de routing volledig was verdwenen;


Legenda:
Stationshal
Loketten
Bagage
Controle
Reizigersvoorziening

Afb. 4.44: Overzicht plattegronden door de tijd
Commercie
Personeelsruitmes
Personeelswoning
Toegang passagiers
Toegang personeel
3 het jaar 2000 met de oplevering van een omvattende restauratie, renovatie en enkele reconstructies aan zowel de binnen- als ook de buitenkant van het gebouw.
1896 uitvoering

voor 1968

na 1968 op een tekening uit 1981

1995

2000

Eerste verstoringen in routing en ruimtelijke hoofdstructuur, WOII - 1968
Tot in de jaren ’60 ontwikkelde zich het voorplein tot een gebied dat door het verkeer erg frequent en intensief gebruikt werd. De eerste incidentele verbouwingen speelden mogelijk in op deze ontwikkeling: De westelijke zijgang naar het bagageloket en de telegraaf werd ten behoeve van het inrichten van kantoren en het vergroten van de bagageruimte afgesloten (20), ter plaatse van het kantoor zelfs nagenoeg gesloopt. Voorstelbaar is ook dat de zijgang te smal werd voor het groeiende aantal reizigers. Door de afgifte rechtstreeks vanuit de vestibule te regelen zou dat probleem opgelost geweest zijn. Een verhoogd aantal reizigers betekent een drukkere stationslocatie waarvoor meer personeel nodig is. Op de zolder van de oostelijke vleugel werden dan ook kantoren ingericht waarvoor een trap in de oostelijke zijgang geplaatst werd (11). Deze twee wijzigingen in beide zijgangen hebben de meest gevoelige ruimtelijke structuur van het stationsgebouw verstoord: de vestibule als kruis- en oriëntatiepunt met zijgangen naar de beide vleugels. Omdat de restauratie nu vanaf de vestibule niet meer bereikbaar was werd er een nieuwe toegang aangebracht vanaf de galerij. Een verdere wijziging van betekenis was het dichtzetten van het tochtportaal naar de wachtkamer 3e klasse met een spoelkeuken. Deze wachtkamer was daarmee alleen vanaf de achtergevel toegankelijk. De achtergevel begon ook meer
betekenis te krijgen door het plaatsen van kaartautomaten op de plaats waar ooit de damessalon was. Een belangrijke wijziging in het gevelbeeld was de verwijdering van de vorstkammen op de daken van de hoekpaviljoens door hun slechte staat.
Door al deze veranderingen werd de oorspronkelijke opzet en routing al ingrijpend verstoord. Op deze ontwikkelingen werd met de volgende fase, de modernisering in 1968, voortgeborduurd.

Legenda: Stationshal
Loketten
Bagage
Controle
Reizigersvoorziening
Commercie
Personeelsruitmes
Personeelswoning

Toegang passagiers
Toegang personeel Ingangen reizigers

belangrijke wijzigingen gewijzigde ruimtes (gebruik) wijziging in het gevelbeeld alle wijzigingen zijn ten opzichte van de toestand daarvoor


Afb. 4.45: voor 1969, voorgevel

Afb. 4.46: voor 1969, achtergevel



1. Toiletgebouw openbaar
2. Woningtrap opzichter, restaurateur
3. Wachtkamer 3e kl
4. Keuken
5. Buffetruimte
6. Tochtportaal
7. Restauratie 1e / 2e kl
8. Wachtkamer 1e / 2e kl
9. Damessalon
10. Toiletten
11. Oostelijke zijgang
12. Tochtportaal
13. Tochtportaal
14. Loketten
15. Vestibule
16. Hulploket
17. Tochtportaal
18. Portier / garderobe
19. Bagage
20. Westelijke zijgang
21. Tochtportaal
22. Telegraaf
23. Personeelsruimtes
24. Personeelsruimtes
25. Woningtrap souschef, chef, verantwoordelijke verlichting
26. Toiletgebouw privé
27. Dienstwoningen opzichter, restaurateur
28. Zolder
29. Kantoren
30. Dienstwoningen souschef, chef, verantwoordelijke verlichting
1. Bloemenkiosk
2. Trappen naar verdiepingen
3. Wachtkamer vm 3e klasse
4. Keuken
5. Buffetruimte
6. Spoelkeuken
7. Restauratie vm 1e en 2e klasse
8. Wachtkamer vm 1e en 2e klasse
9. Kaartautomaten
10. Toiletten
11. Trappenhuis
12. Inlichtingen
13. Kaartcontrole
14. Loketten
15. Vestibule
16. GWK
17. Tochtportaal
18. Boekhandel
19. Bagage
20. Bagage
21. Bagage
22. Personeelsruimtes
23. Personeelsruimtes
24. Personeelsruimtes
25. Trappen naar verdiepingen
26. Gesloopt
27. Dienstwoningen
28. Kantoren
29. Kantoren
30. Dienstwoningen
Ingrijpende verbouwing in verband met een modernisering, 1968
In de jaren ‘60 bleek het station niet meer opgewassen tegen de grote aantallen reizigers. Daarnaast verkeerden delen van het gebouw, waaronder het papierstuc plafond in de vestibule, in slechte staat. Intussen was ook de visie op neostijlen veranderd wat wil zeggen dat de waardering voor 19e eeuwse gebouwen niet erg groot meer was.
Stationsgebouwen werden in deze tijd steeds kleiner omdat diensten en functies veranderden of vervielen: woonfuncties in het stationsgebouw raakten buiten gebruik, de restauratie en de wachtkamers verdwenen. Historische stations werden gesloopt en vervangen door kleine stations met alleen een verkooppunt voor plaatskaarten. In de lege ruimtes van stations die wel behouden bleven, werd commercie de belangrijkste invulling. Stations moesten op de eerste plaats omzetverhogend werken. Ir. Cees
Douma was als NS-chef Gebouwen, Stedebouw en Vormgeving verantwoordelijk voor de verbouwing van het station Groningen in 1968. Volgens Douma was een nieuw, modern en doelmatig opgezet en goed geoutilleerd station één van de omzetverhogende factoren. De cultuurhistorische waarde of de waarde van de historische bouwmassa van het gebouw werd ondergeschikt aan de commerciële uitgangspunten.
gebrekkige papierstuc plafond niet gerestaureerd te worden (dit zou een onmogelijke opgave zijn volgens specialisten van toen).
Ook ontstond er via de tussenvloer een betere verbinding tussen de kantoren op de verdiepingen van de beide vleugels. De nieuw gecreëerde ruimte boven de vestibule werd de recreatieruimte voor het personeel.
Met het aanbrengen van de tussenvloer verdween de beleving van de vestibule. Het reizigersgedeelte onder deze vloer werd geheel voorzien van nieuw afwerkingen waarbij de lambrisering van geglazuurde art nouveau tegels nagenoeg geheel werd
verwijderd en er nieuwe openingen in de wanden gemaakt werden. Met het creëren van een brede gang ten behoeve van een snelle doorstroming met links en rechts voorzieningen voor de reizigers werd een naar opvatting van die tijd moderne inrichting gecreëerd.
Ten behoeve van de snelle doorstroming werden de toegangsdeuren in de voorgevel vervangen door moderne exemplaren en werd er in de achtergevel een brede opening gemaakt met evenveel deuren als in de voorgevel. Doordat de vorstkammen door roest loskwamen, verdwenen ze van lieverlede. Op de tekening van de voorgevel uit 1981 staan zij niet meer aangegeven.



Deze visie werd onder andere gerealiseerd door in de vestibule op verdiepingshoogte een tussenvloer aan te brengen. Zo hoefde het Afb. 4.49: 1981, boven voorgevel en onder achtergevel
Legenda:

Stationshal
Loketten
Bagage
Controle
Reizigersvoorziening
Commercie
Personeelsruitmes
Personeelswoning

Toegang passagiers
Toegang personeel
Ingangen reizigers

belangrijke wijzigingen gewijzigde ruimtes (gebruik) wijziging in het gevelbeeld alle wijzigingen zijn ten opzichte van de toestand daarvoor 6




1. Bloemenkiosk
2. Trappen naar verdiepingen
3. Wachtkamer vm 3e kl
4. Toiletten
5. Buffetruimte
6. Spoelkeuken
7. Restauratie vm 1e en 2e klasse
8. Wachtkamer vm 1e en 2e klasse
9. Automatiek
10. Toiletten
11. Tochtportaal en trappenhuis
12. Kantoren GWK
13. Loketten
14. Vestibule
15. Vestibule
15a. Recreatie zolder
16. GWK
17. Vestibule
18. Reisbureau
19. Boekhandel
22. Personeelsruimtes
23. Personeelsruimtes
24. Personeelsruimtes
25. Trappen naar verdiepingen
26. Gesloopt
27. Woningen
28. Kantoren
29. Kantoren
30. Kantoren
De modernisering van 1968 bleef tot aan de restauratie in 1998/2000 de inrichting van het stationsgebouw bepalen. In deze periode zijn er verdere wijzigingen doorgevoerd waardoor er nog meer aan belangrijk historisch materiaal en kwaliteit verloren ging (zie afb. 4.54). Hierbij is met name te noemen de verdere sloop van onderdelen van de zijwanden van de vestibule om een betere inrichting van de ruimtes te verkrijgen en het verbouwen van de wachtkamer 3e klasse tot kantoorruimtes waarvoor mogelijk het oorspronkelijke plafond moest wijken. De lambrisering van Amerikaans grenen hout bleef in deze ruimte ondanks de verbouwing gehandhaafd.
De restauratie en de herinrichting van het stationsgebouw, 1998/2000
De aanleiding van de restauratie gaat terug naar het jaar 1994. Rob Staal, toen de businessmanager van de NS, ging in overleg met de architect van Holland Rail Consult, Rob Steenhuis, om de mogelijkheden van commercieel gebruik van de op dat moment ongebruikte ruimtes op de begane grond en de verdiepingen te onderzoeken. Gedurende dat proces werd men zich bewust van de monumentale kwaliteiten van het gebouw. Besloten werd om deze kwaliteiten in te zetten om een commercieel en rendabel station te creëren. Om een dergelijke herindeling te bewerkstelligen moest de commercie permanent uit het gebouw worden geweerd. Zij zouden een vervangende ruimte op de
perrons krijgen (ontwerp Holland Rail Consult). Op de vraag welke onderdelen gerestaureerd dienden te worden is door de initiatiefnemers gereageerd door de waardering van de ruimtes met het toekennen van sterren uit te drukken. Zo werd vastgelegd dat de vestibule met het plafond van papierstuc en haar ontsluiting naar de zijgangen als 5 sterren-ruimte (de hoogste score) volledig gerestaureerd en, waar nodig, gereconstrueerd diende te worden.
Om de keuzes van het restauratieniveau per onderdeel goed af te wegen werd als architect Kees Tak van TAK architecten aangetrokken. Een integraal proces, waarbij in een projectteam alle betrokken partijen vertegenwoordigd waren, maakte deze
ingrijpende herinterpretatie van het gebouw uiteindelijk mogelijk. De vestibule kreeg haar oorspronkelijke afmetingen terug, de doorgangen naar de vleugels werden (deels gereconstrueerd) teruggebracht waarmee de oost-westas hersteld werd. Het unieke plafond van papierstuc werd na veel onderzoek gerestaureerd en proefondervindelijk deels gereconstrueerd. De moderne toegangsdeuren in de voorgevel werden vervangen door automatische deuren met een historisch passende uitstraling. De brede doorgang in de achtergevel van de vestibule werd weliswaar versmald naar een beter op de 19eeuwse architectuur afgestemde gevelopening met borstwering maar ging niet terug naar zijn originele vorm. De vestibule kreeg twee nieuwe






1. Bloemenkiosk
2. Lift en trap naar verdiepingen
3. ???
4. Toiletten
5. ???
6. ???
7. Wachtkamer
8. Restaurant
9. Automatiek
10. Boekhandel
11. Tochtportaal en
trappenhuis
12. Kantoren GWK
13. Bagage
14. Loketten
15. Vestibule
15a. Recreatie zolder
16. GWK en pinautomaat
17. Vestibule
18. Reisbureau
19. Personeelsruimtes
20. Personeelsruimtes
21. Loketten (internationaal)
22. Personeelsruimtes
23. Personeelsruimtes
24. Personeelsruimtes
25. Trappen naar verdiepingen
26. n.v.t.
27. Kantoren
28. Kantoren
29. Kantoren
30. Kantoren
1. Commercie: Julia’s
2. Lift en trap naar verdiepingen
3. Commercie: AH to go
4. Personeelsruimte
5. Personeelsruitme
6. Verkeersruimte
7. Commercie: Starbucks
8. Commercie: Rituals
9. GWK
10. Pinautomaat
Legenda:

Stationshal
Loketten
Bagage
Controle
Reizigersvoorziening
Commercie
Personeelsruitmes
Personeelswoning
11. Gang
12. Personeelsruimtes
13. Vestibule
14. Vestibule
15. Vestibule
15a. Glazen loopbrug in vestibule
16. Vestibule
17. Vestibule
18. Vestibule
19. Lege kantoorruimte
20. Gang

21. Loketten
22. Loketten
23. Commercie: Burger King
24. Personeelsruimtes
25. Trappen naar verdiepingen
26. n.v.t.
27. Kantoren
28. Vergadercentrum
29. Kantoren
30. Kantoren
Toegang passagiers
Toegang personeel
Ingangen reizigers
belangrijke wijzigingen gewijzigde ruimtes (gebruik) wijziging in het gevelbeeld

alle wijzigingen zijn ten opzichte van de toestand daarvoor 6
doorgangen naar de perrons waarbij zowel de oorspronkelijke doorgang werd hersteld en aanvullend een tweede werd gecreëerd - een op de praktijk afgestemde oplossing maar aansluitend op de architectuur van Gosschalk.
De restauratiezaal en wachtkamer 1e en 2e klasse met hun nog aanwezige oorspronkelijke papierstuc plafonds en originele lambriseringen behoefden een minder ingrijpende restauratie.
De doorgangen tussen deze ruimtes (zie H4.1) bleven dicht maar zijn wel in de houten lambrisering als bouwsporen af te lezen.
De oorspronkelijke afwerkingen van de voormalige damessalon zijn echter al lang verdwenen. Met de restauratie in 1998/2000 werden nog restanten van het oorspronkelijke plafond gevonden en in sitú boven een verlaagd plafond bewaard. Daarmee werd het openbare gedeelte, de vestibule en de oostelijke vleugel, weer grotendeels teruggebracht naar de oorspronkelijke toestand. De begane grond van de westelijke vleugel werd een vrij indeelbare commerciële ruimte met eigentijdse afwerkingen.
De oorspronkelijke indeling van dit gedeelte was al in een eerdere fase geheel verdwenen.
De interieurs van het westelijke hoekpaviljoen, en de ruimtes in de kappen van de west- en oostvleugel en de verdieping van de oostelijke hoekpaviljoen werden ten behoeve van kantoorvoorzieningen en een nieuw vergadercentrum ook in eigentijdse afwerkingen gerenoveerd. In de vestibule werd een glazen loopbrug aangebracht, die voor de verdieping als
tweede vluchtweg fungeerde en gelijktijdig het nieuw ingerichte vergadercentrum en de kantoorvoorzieningen met elkaar verbond.
Het exterieur werd waar nodig hersteld en kreeg grotendeels haar originele uiterlijk terug. Op de daken werden de vorstkammen teruggebracht. De in de loop der tijd uitgevoerde aanpassingen in de voorgevel (zoals nieuwe gevelopeningen in de plint, onder de grote ramen) zijn gehandhaafd aangezien ze een positief effect opleveren. De achtergevel onderging echter wat meer wijzigingen. Ten behoeve van een bij de 19e eeuwse architectuur passende uitstraling werden diverse nieuwe deuren aangebracht zoals die oorspronkelijk aanwezig maar ook functioneel noodzakelijk waren. Het resultaat was, dat met name in de eerste jaren na de restauratie, het station een toeristische trekpleister was voor de stad Groningen. Met deze restauratie heeft het station in 1998/2000 de Europa Nostra Medal of Honour gewonnen wat niet alleen een bekroning is voor de restauratie maar het station ook in een Europees daglicht stelde. De motivering was als volgt: “for the sensitive and skilfull restoration of the late 19th century railway station of Groningen to its original splendour, and especially of the central hall with its rare papier-maché ceiling and tiled walls”.
Huidige situatie
Geconcludeerd moet worden dat de finale slag na de restauratie ontbrak: een aantal ruimtes werd met de restauratie wel aangepakt ofschoon de bestemming hiervan nog niet duidelijk was zoals de wachtkamer 3e klasse en de begane grond van de westvleugel. Wel werden uiteindelijk bijna alle ruimtes die op de begane grond bedoeld waren voor commercie als zodanig daadwerkelijk herbestemd, maar het toen beoogde effect van de herbeleving van het monument werd niet consequent vervolgd. De extra toegangen vanaf het voorplein naar de commerciële ruimtes van de StarBucks en de Burger King worden als kortere route door de reizigers meer gebruikt dan de ook aanwezige route via de vestibule en de zijgangen. De voormalige wachtkamer 3e klasse (AH to go), de wachtkamer 1e en 2e klasse (Ritual) en de damessalon (GWK) zijn niet vanaf het voorplein, dat wil zeggen via de vestibule, toegankelijk maar alleen via de achtergevel en daarmee via het 1e perron. Daarmee is de vestibule geen onderdeel van de reizigersrouting waardoor het met de restauratie beoogde herstel van de oude routebeleving niet tot stand is gekomen. De vestibule had met het herstel van zijn afwerkingen weer als ontvangstgebied voor de reizigers moeten dienen. Om voor de reizigersstroom niet te veel obstakels te creëren werden geen extra faciliteiten, zoals oorspronkelijk de loketten en de garderobe, in de vestibule aangebracht. Echter heeft zich het 1e perron tot ontvangstgebied
ontwikkeld door de veranderde (oostelijke) reizigersrouting. Hier zijn dan ook diverse reclameborden en inrichtingselementen zoals prullenbakken waar te nemen. Door een grotendeels ongestructureerde plaatsing en niet passende vormgeving van deze elementen, aangevuld met technische voorzieningen zoals meterkasten en kabelgoten, wordt de achtergevel in zijn uitstraling ontsierd.
Naast de, met betrekking tot het monument, negatieve ontwikkeling in de routing van de reizigers wordt ook
geconstateerd dat er inmiddels al weer een aantal ruimtes leeg staan of zelfs nooit een echter invulling hebben gekregen, zoals het met de restauratie beoogde vergadercentrum op de verdieping. Waarom Tickets&Service van de ruimte naast de vestibule verhuisd is naar de ruimte naast de Burger King is niet bekend. Mogelijk heeft deze wijziging te maken met het feit dat de gebruikers inspeelden op de routing die door de reizigers het meest gebruikt wordt – een routing die niet via de vestibule verloopt maar via de commerciële ruimtes.




Afb. 4.59: De ruimte met de in 2000 nieuw gecreëerde toegangsdeur naar de vm wachtkamer 3e klasse is nu vanuit de voorkant alleen een (niet prettige) toegangsruimte naar de vm restauratie
Ook worden er monumentale ruimtes niet conform hun waarde en betekenis voor het gebouw gebruikt. Zo zijn de tochtportalen maar deels toegankelijk voor de reizigers. In het westelijke tochtportaal naast de vestibule is nu een informatiebalie van een vervoerder gevestigd. Dit portaal is voorzien van een verlaagd plafond en stucwerk op de wanden waardoor eventuele oorspronkelijke afwerkingen niet waarneembaar zijn. Het oostelijke tochtportaal wordt nu gebruikt als opslagruimte voor de commercie en is niet toegankelijk voor de reiziger. De inrichting van de AH to go in de wachtkamer 3e klasse blijkt geen rekening te houden met de kwaliteiten en waarde van deze ruimte. De schappen staan langs de wanden waardoor de ruimte niet in zijn daadwerkelijke grootte te ervaren is en de afwerkingen van de ruimte niet op kijkhoogte te beleven zijn.


4.3 Perrons: oorspronkelijke opzet van de architectuur, constructie, materialisatie, ornamentiek
Bij het analyseren van de kapconstructie en de decoraties van de kolommen zijn grote overeenkomsten gevonden met de ontwerpvisie van Gosschalk: de kappen staan in een bepaalde verhouding tot elkaar en er wordt op deze wijze met hun functies en de lichtinval gespeeld. De kolommen zijn geplaatst op een hoog voetstuk met, daaruit voortvloeiend, een relatief korte schacht met cannelure en een Korinthisch kapiteel. De verhoudingen binnen deze kolommen komen overeen met de verhoudingen van de kolommen aan de voorgevel.
Of Gosschalk ook voor de kappen een specifieke opdracht van de ingenieurs van de spoorwegen of het Ministerie van Waterstaat heeft meegekregen is vooralsnog onbekend.

Op de perrons komen drie kapconstructies samen: een hoge kapconstructie in vorm van een segmentboog langs het gehele hoofdgebouw (1), in aansluiting hierop lagere kapconstructies op het 1e en het 2e perron (2) en een dwarsliggende, laagste, kap van het perronplein (3).
Aan het uiteinde van de hoge kap bevindt zich, als voortvloeisel van de lagere kap (2), een luifel die de reiziger bij het instappen van de trein beschermt tegen regen. Het oorspronkelijk open gedeelte hier tussenin zorgde niet alleen voor ventilatie van de stoom maar ook voor meer lichtinval op het perron. De spanten van de hoge kap rusten aan de gevelzijde op zandstenen consoles en aan de spoorzijde op ijzeren kolommen. Hun posities volgen niet de ritmiek van het gebouw maar worden bepaald door de technische mogelijkheden van de kapconstructie. De kappen bestaan uit ijzeren vakwerkspanten die met elkaar verbonden


zijn door ijzeren vakwerkliggers. De constructie is betimmerd met houten planken waar de dakbedekking op is aangebracht. Dit zorgt voor een gesloten karakter van de kap.
Het symmetrisch op de vestibule georiënteerde perronplein verbindt het 1e met het 2e perron. Het werkt met zijn twee hoofdspanten, de lage kap en de hierdoor gecreëerde lichtinval als een soort portaal niet alleen naar de perrons maar ook naar het gebouw toe. Daarbij is het vakwerkspant uitgevoerd op dezelfde wijze als het vakwerk van de luifel aan de voorzijde van de vestibule. De vormgeving is zo in harmonie met het stationsgebouw. Het perronplein accentueert het type station als zijnde een dubbel kopstation.





4.4 Perrons: veranderingen en aanpassingen in latere fases
Een uitbreiding in 1928
De plannen voor een 3e perron bestonden al in 1913 maar vanwege het mogelijke verplaatsten van het station werden deze nog niet meteen uitgevoerd (zie H3). Nadat duidelijk was dat het station gehandhaafd bleef werd in 1928 het 3e perron met een eigentijds vormgegeven overkapping aangelegd. Daarmee kwamen er drie doorgaande sporen bij. Het 2e perron werd verlengd met overkappingen in dezelfde vorm als die van het 3e perron. Het contrast tussen de oude en de nieuwe kappen is opvallend: de kappen uit 1896 zijn bolvormig en hun spanten rusten op twee kolommen. De kappen uit 1928 zijn holvormig

waarbij de spanten op maar één kolom rusten. Verklaringen hiervoor kunnen gevonden worden in de nieuwe technische mogelijkheden in het interbellum. Ook kan een contrasterend
ontwerp zijn gekozen als gevolg van de veranderende visie op de combinatie van nieuwe architectuur en monumentale vormgeving die in die periode opkomt.
De constructie is ook opgetrokken uit ijzer, maar niet met de lichte vakwerkspanten zoals op de andere perrons maar met spanten van geprofileerd plaatijzer.
Het 3e perron werd met gebruik van dezelfde materialisatie verbonden door een traverse met seinhuis. Zij zijn daarmee onderdeel van het ontwerp van de overkappingen van het 3e perron. De stalen portaalspanten van het seinhuis zijn geïntegreerd in de kapconstructie van het 3e perron. Echter
kennen deze bouwdelen verschillende functies waarbij de functie maar ook locatie van het seinhuis in het middelpunt van het emplacement nadrukkelijk aan zijn vormgeving is af te lezen. De afgeschuinde eindpunten en doorlopende ramen rondom dit bouwdeel geven de noodzaak van een totaaloverzicht over het emplacement weer.* Het seinhuis staat met deze bijzondere vormgeving symbool voor de betekenis en de groei van de stad en het stationsgebied. Het markeert duidelijk het eindpunt van het emplacement dat voor de reizigers toegankelijk was. Dit is vanuit de zichtrelaties vanaf het Emmaviaduct in het westen, de voetgangersburg in het oosten, en is als deze er niet zou zijn, ook zeker nog vanaf het Hereviaduct nadrukkelijk waarneembaar. De traverse daarentegen is in zijn vormgeving ondergeschikt en voldoet op pragmatische manier aan zijn functie. Voor de reizigers

* De ruimtes van het seinhuis waren met dit onderzoek niet toegankelijk.
was de binnenkant de meest belangrijke zone. Hier kon dan ook door de gebogen spanten in het zicht een bijzondere ruimtelijke kwaliteit beleefd worden. De traverse sluit symmetrisch in het midden aan op de kap van het perronplein. Het plein bleef zo een verzamelplaats voor reizigersstromen. De traverse is met het laten vervallen van de bagagelift niet helemaal uitgevoerd zoals deze gepland was (zie afbeeldingen op de volgende pagina). Op perronniveau werden alleen de afgesloten ruimtes onder de trappen gerealiseerd. In de jaren ‘70 zijn deze ruimtes uitgebreid. Doordat daarmee de volledige breedte van de traverse op perronniveau dichtgezet werd is de oriëntatie naar het perronplein en daarmee het zicht naar het stationsgebouw beperkter geworden.





lift niet uitgevoerd







De veranderingen tot op heden
De monumentale perronoverkappingen, inclusief de constructie van het perronplein, zijn tot op heden aanwezig. De enige bouwkundige verandering was het inkorten van bijna alle perronoverkappingen van 1896 vanwege de inmiddels hogere treinen. Wel zorgden nieuwe behoeftes voor diverse aanpassingen met betrekking tot de inrichting van de perrons. Daardoor is de oorspronkelijk heldere en overzichtelijke opzet vertroebelt geraakt. Ook heeft de monumentale structuur wat betreft de beleving zijn kwaliteit verloren, met name geldt dat voor het perronplein.
De beleving van de monumentale structuur werd eveneens maatgevend verstoord door het veranderde materiaalgebruik van de kapbedekkingen en de open en dichte onderdelen in de kappen. Door de transparante dakbedekking op de kap van het

2e perron gaat de relatie met de identieke kapconstructie van het 1e perron verloren. Ook wordt hierdoor de gerichte lichtinval rondom de lage kap van het perronplein ontnomen waardoor de vormgeving van het plein vanaf het 2e perron niet meer waarneembaar is.
Een verstoring van de beleving van het perronplein heeft ook vanaf het 1e perron plaats gevonden. Hier leidt het ten opzichte van het plein en de vestibule asymmetrisch aangebrachte daklicht in de hoge kap te veel af van de vormgeving van het plein. Dit effect wordt nog versterkt door de rond 1980 geplaatste commercie tussen de hoofdspanten en de asymmetrische toevoeging van een verdere commercie in 1998/2000. Deze commercie werd voorzien van een golvend dak dat te veel de aandacht op zichzelf richt en de zichtrelatie vanaf het 2e perron naar het hoofdgebouw verstoort. Dit golvend dak zoekt aan de

één zijde aansluiting met de lage kap van het perronplein en aan de andere zijde overdekt het een nieuwe overgang naar het 2e perron. Vanwege de hiervoor nodige lengte rust het dak op extra kolommen waardoor er met name bij het perronplein een te onrustig en onoverzichtelijk beeld ontstaat. Ten behoeve van deze commercie en de nieuwe overgang naar het 2e perron werden de oostelijke kopsporen 2 en 3 fors ingekort. Reizigers voor de treinen, nota bene treinen met belangrijke bestemmingen zoals Zwolle en Den Haag, stappen daarmee oostelijk van het stationsgebouw in en uit waar zij dan ook, zoals in hoofdstuk 2 al uitgelegd, het emplacement snel kunnen bereiken en kunnen verlaten.




In 2010 heeft de laatste bouwkundige verandering plaatsgevonden: er is een gelijkvloerse overgang gerealiseerd van het 2e naar het 3e perron zodat dit perron ook voor mindervaliden toegankelijk is. De vormgeving van deze overkapping als ook diverse inrichtingen op en diverse afwerkingen van de perrons zijn niet afgestemd op het monumentale complex. Te noemen zijn hierbij de bagagekluizen naast de commercie op het 2e perron waardoor een monumentale kolom op perronniveau niet meer te ervaren is, elektriciteitsbekabelingen die op storende plaatsen de kapconstructie ontsieren, een niet consequent aangehouden kleurgebruik van de kapconstructie in het bijzonder en

van de algemene inrichting, flexibele reclameborden die regelmatig door de gebruikers verplaatst worden en storende kunstverlichting onder de perronkappen.



4.5 Samenvatting
Oorspronkelijke opzet architectuur
- Gosschalk hield zich met zijn ontwerp voor het stationsgebouw aan de door de Staatsspoorwegen voorgeschreven grondvorm met een hoofd- en twee hoekpaviljoens. De eindgebouwen behoorden waarschijnlijk ook bij de voorgeschreven grondvorm.
- Hij wijzigde de ontwerptekeningen tijdens de uitvoering waardoor de mogelijk voorgeschreven nadrukkelijke concentratie op het middenpaviljoen afgezwakt werd en de eindgebouwen een nauwe relatie kregen met het stationsgebouw. Het vermoeden is dat hij daarmee op de oostwest georiënteerde stedenbouwkundige situatie probeerde in te spelen en de breedte van het voorplein tot en met de eindgebouwen bepaalde.
- Als neo-rennaissancist gaf hij het gebouw zodanig vorm dat de relatie van ruimtelijke structuren, de materialisatie van afwerkingen, het spel van verhoudingen, het gebruik van verschillende architectonische stijlelementen, het gebruik van licht en het toepassen van kunstwerken en symboliek een belangrijke wisselwerking met elkaar aangingen.
- Hierdoor schiep hij een ‘Gesamtkunstwerk’ waarbij altijd de reiziger op de voorgrond stond. Door de wisselwerking van de verschillende architectonische onderdelen creëerde hij een duidelijke routing en herkenbaarheid van belangrijke en minder belangrijke ruimtes resp. gebouwdelen, zowel aan de buiten- als ook aan de binnenkant.
- Onbekend is of Gosschalk invloed had op het ontwerp van de perronoverkappingen. Opvallend is dat er bepaalde overeenkomsten met de ontwerpvisie van Gosschalk geconstateerd kunnen worden (verhoudingen en detailleringen van de kappen) waardoor de overkappingen een nauwe relatie met het stationsgebouw kennen.
- De boogvormige perronoverkappingen met ijzeren vakwerkspanten bestaan uit drie basiskappen:
1 een hoge kap markeert de gehele lengte van het stationsgebouw op het 1e Perron;
2 een lagere kap op het overige 1e perron en op het gehele 2e perron zorgt voor een bescherming van de reizigers;
3 het perronplein wordt benadrukt door een dwarsliggende lage kap met een afzonderlijke spantconstructie en een gerichte lichtinval.
- Het perronplein heeft als kenmerk van het dubbelkopstation een eigen vormgeving.
Veranderingen
- Eerste maatgevende veranderingen met betrekking tot de architectuur vonden in 1928 op de perrons plaats. Er werd een overkapt 3e perron met bijbehorende traverse en seinhuis aangelegd en het 2e perron werd verlengd. Deze uitbreiding symboliseert niet alleen de gegroeide betekenis van het emplacement (zie H3) maar ook een veranderde zienswijze op de vormgeving in die periode. Ondanks dit architectonische contrast werd de uitbreiding passend in het oorspronkelijke complex gevoegd.
- De vormgeving van het seinhuis met afgeschuinde eindstukken en ramen geheel rondom zijn het resultaat van zijn locatie, namelijk in het midden van het emplacement boven de overkappingen.
- De vormgeving van de traverse is ondergeschikt aan zijn omgeving en volgt de betkenis van een traverse waarbij de binnenruimte met de gebogen spanten een kwaliteit kent.
- Het westelijke eindgebouw werd ten behoeve van de bouw van een nieuwe postkantoor in 1954 gesloopt.
- De enorme groei aan woonwijken na WOII en daarmee de nieuwe rol van het voorterrein als verkeerstechnisch knooppunt had ook invloed op het gebruik van het stationsgebouw. De groei aan reizigers in de jaren ’60 vroeg meer reizigersvoorzieningen en daarmee ook meer kantoorvoorzieningen in het stationsgebouw. De hiermee gemoeide aanpassingen hebben in de jaren ’60 geleid tot de eerste wijzigingen in het gebouw die het monumentale karakter en de routing verstoorden.
- Met de grote modernisering in 1968 werd op de hiervóór uitgevoerde wijzigingen doorgeborduurd. De vestibule kreeg een moderne stationsinrichting met een brede naar de perrons doorlopende gang. De 19e eeuwse afwerkingen werden volledig aan het oog ontrokken. De beleving van de oude structuren en routing was volledig verloren gegaan.
- Nadat de toestand tot in de jaren ’90 alleen maar was verslechterd werd het stationsgebouw in 1998/2000 grondig gerestaureerd en waar nodig gereconstrueerd. De openbare ruimtes met de vestibule en de oostvleugel werden nagenoeg
teruggebracht naar hun oorspronkelijke toestand. Deze prestatie is onder andere te danken aan een sterk teamverband tussen verschillende betrokken partijen waarbij iedereen aan een visie bleef vasthouden: het herstel van de oude glorie van het stationsgebouw. Het resultaat werd dan ook met de toekenning van de Europa Nostra Medal of Honour in 2000 bekroond.
- Aan de hand van het beschikbare materiaal (tekeningen) kan worden geconstateerd dat in de zijgevels in de loop der tijd maar weinig veranderd werd.
- Van de zijgevel van de eindgebouwen is alleen een tekening uit 1969 van het oostelijke gebouw beschikbaar wat mogelijk nog de oorspronkelijke toestand laat zien.
- De beleving van de monumentale perronoverkappingen en hun relatie met het stationsgebouw werd vanaf de jaren ’70 maatgevend verstoord door gebouwen onder de traverse en later met name door de realisatie van asymmetrisch geplaatste commercie naast en op het perronplein en door het langgerekte golvende dak van een van de commerciële gebouwtjes.
4.6 Conclusie
- Om het monumentale gebouw in zijn waarde te handhaven is het essentieel zijn oorspronkelijke opzet te respecteren en te benutten waarbij de vestibule als ontvangstgebied en knooppunt tussen beide vleugels HET meest belangrijke onderdeel is. Wil men het gebouw als een geloofwaardig stationsgebouw blijven gebruiken moet aan de vestibule altijd een openbare en specifieke stationsfunctie (oorspronkelijk ontvangst met loketten) toegekend worden.
- De leegstaande ruimtes in het stationsgebouw kunnen als oorzaak gezien worden van de richting oost verplaatste en daarmee niet op de oorsponkelijke opzet afgestemde reizigersstroom. Deze opzet hoeft geen belemmering te zijn. Het gebouw met zijn oorspronkelijke structuur zou de routing moeten bepalen en daarmee het gebruik van de ruimtes.
- De aanwezigheid van het oostelijke eindgebouw is vanwege zijn positionering, volume en architectonische uitstraling belangrijk omdat het een kenmerkend onderdeel is van de oorspronkelijke architectonische opzet. Het draagt essentieel bij aan de kwaliteit en waarde van het complex. Het laat het stationsgebouw “vrij”staan waardoor dit stedenbouwkundig
herkenbaar blijft. Het Hunzehuys tast deze herkenbaarheid aan door zijn grote volume in combinatie met zijn te nabije positionering. Het verlies van het westelijke bijgebouw als pendant is nadelig voor het front als geheel.
- Na de erg ingrijpende veranderingen van het interieur in de tweede helft van de twintigste eeuw werd met de restauratie getracht de zeer grote schade te herstellen. Dat is gelukt in de zin dat de ruimtelijke hoofdstructuren weer werden hersteld. De reizigersstromen in en door het stationsgebouw zijn echter niet afgestemd op de monumentale opzet van het gebouw en het emplacement. Hierdoor is ook de hiërarchie van de ruimtes als een samenhangend geheel niet goed te ervaren. Met de huidige situatie kan geconcludeerd worden dat de ambitie van de restauratie van 1998/2000 geen positief vervolg heeft gekregen. Een aanpak van het gebouw met een duidelijke visie, afgestemd op de waarde en kwaliteiten van het gebouw en het emplacement, is dringend noodzakelijk wil men het met de restauratie bereikte vasthouden. Dat is alleen mogelijk wanneer ook de situaties om het gebouw integraal worden betrokken bij het zoeken naar een oplossing.
- De principeaanpak van de inrichting van de voormalige verblijfsruimtes in de oostvleugel van de winkel Ritual en de
Starbucks wordt, op sommige details na, als niet storend gezien. De inrichting van de AH to go is daarentegen niet passend. Ook staat de toegankelijkheid van deze waardevolle ruimtes niet in verhouding met hun monumentale betekenis.
- De verschillende verkeersruimtes waren een belangrijk onderdeel van de routing van de reizigers. Hiervan is wel nog de hoofdstructuur met de vestibule als middelpunt en (een gedeelte van) de zijgangen te beleven. Gezien de betekenis van de verkeersruimtes in de oorspronkelijke opzet is dat echter te weinig. De tochtportalen naast de vestibule en het tochtportaal bij de wachtkamer 3e klasse zijn vanwege moderne aftimmeringen, het gebruik als opslagruimte of vanwege leegstand op dit moment niet door de reizigers te ervaren. Deze zouden weer onderdeel moeten worden van de routing van de reizigers of een openbare functie moeten krijgen.
- De storende wijzigingen in het gevelbeeld werden met de restauratie hersteld, niet storende elementen bleven onaangetast. De achtergevel heeft wel weer zijn 19e euwse uitstraling terug gekregen, echter diverse inrichtingselementen en reclameborden verstoren de beleving van de achterzijde van het stationsgebouw en de perrons.
- De papierstuc-plafonds in de vestibule, de restauratie en de
wachtkamer 1e en 2e klasse zijn uniek in Europa. Het materiaal was kenmerkend voor het decoreren van kamers in de 19e eeuw maar is in de loop der tijd tot een zeldzaam materiaal geworden. De aanpak en de uitvoering van de restauratie werd uitgebreid in het Praktijkboek Instandhouding Monumenten opgenomen.
- De waarde van het stationsgebouw wordt maatgevend bepaald en beïnvloed door de aanwezigheid en beleving van de monumentale perronoverkappingen. Beide onderdelen kennen door hun vormgeving een nauwe relatie met elkaar. De structuur van de perronoverkappingen met het perronplein wordt op dit moment door de reizigers vanwege diverse veranderingen niet meer ervaren. De reiziger concentreert zich op het snel verlaten en bereiken van de perrons zonder de kwaliteit van het monumentale complex waar te nemen.
- De huidige leegstand van het seinhuis en de traverse is een bedreiging voor deze bouwwerken. Indien de traverse in de toekomst buiten gebruik blijft zouden deze twee bouwwerken met een nieuwe herbestemming elkaar kunnen ondersteunen, maar zouden ook afzonderlijk beschouwd kunnen worden waarbij de bijzondere status van het seinhuis de meeste aandacht vraagt.
Op basis van de getrokken conclusies van de hoofdstukken 1 tot en met 4 zijn in paragraaf 5.1 de kwaliteiten en knelpunten benoemd op de schaal van stad, het emplacement, en het gebouw. Het gaat hierbij om nog aanwezige kwaliteiten vanuit de oorspronkelijke opzet die nadrukkelijk met de stationslocatie te maken hebben. De knelpunten staan zowel voor verloren kwaliteiten die ten behoeve van de cultuurhistorische waarde weer hersteld zouden moeten worden, als ook voor storende elementen die nadrukkelijk afbreuk doen aan de waarde van de stationslocatie. Deze kwaliteiten en knelpunten worden in paragraaf 5.2 per schaal gesorteerd naar hun waardering. Deze waarden zijn weergegeven op een cultuurhistorische waardenkaart, waarbij puntsgewijs wordt toegelicht welke waarde aan de verschillende onderdelen zijn toegekend.
5.1 Kwaliteiten en knelpunten
Schaal van de stad
Kwaliteiten

1. De aanwezigheid van de 19e eeuwse en begin 20e eeuwse villabuurten en (beperkte) groenvoorzieningen langs de stationsweg waarmee de stationslocatie in oorsprong de karakteristieke beëindiging van de oude stad vormde.

2. Het stationsgebouw is als oriëntatiepunt nog steeds vanaf de Herebrug te ervaren als onderdeel van de historische routing.

3. De aanwezigheid van het oostelijke eindgebouw als onderdeel van het architectonische stationsensemble dat, samen met het station en het gesloopte westelijke eindgebouw, de voorkant domineerde en daarmee de grootte van het voorplein bepaalde.




5. De oorspronkelijke routing vanuit het oosten kende zijn eindpunt op enige afstand voor het stationsgebouw waardoor de reizigers de architectuur vanuit een perspectivische hoek waarnamen. Dit perspectief verdween door de stedenbouwkundige ontwikkelingen, maar is door de aanleg van de museumbrug weer in de routing van de reiziger opgenomen.

4. Door de korte verbinding met de stad via de fiets- en voetgangersbrug en het Groninger Museum werd de stationsomgeving opgewaardeerd. De routing tussen station en centrum werd hierdoor een stuk verbeterd.
Schaal van de stad
Knelpunten

1. Vroeger ontleende de stationslocatie haar identiteit aan het feit dat zij onderdeel uitmaakte van de karakteristieke beëindiging van de oude stad. Deze identiteit is verloren gegaan door het op grote schaal neerzetten van hoge gebouwmassa’s in de directe nabijheid van het station, het verminderen van de groenvoorzieningen en de inrichting van het Stadsbalkon. Deze ontwikkelingen hebben er ook niet voor gezorgd dat de stationslocatie een nieuwe identiteit kreeg.

2. De inrichting van de openbare ruimte is niet afgestemd op het monumentale complex met zijn oorspronkelijke opzet. Het Stadsbalkon heeft het zicht op de plint van het gebouw ontnomen en verzwakt door de inrichting van de ruimte (lantaarnpalen / verkeersborden) het effect op het gebouw.

3. De sloop van het westelijke eindgebouw heeft bijgedragen aan de teloorgang van de relatie tussen stationsgebouw en voorplein.


4. Met de realisatie van het ‘Stadsbalkon’ heeft het stationsgebouw volledig zijn voorplein als oriëntatiepunt en daarmee een belangrijke cultuurhistorische waarde verloren. Door het voormalige voorplein had de stationslocatie een relatie met het water wat cultuurhistorisch van waarde is omdat hieraan herkenbaar is dat de stationslocatie ontstond ten tijden van de vestingstad en daarmee buiten de vestinggracht lag.

6. De doorgang in het Hunzehuys naar het 1e perron forceert de (negatief) veranderde routing van de reizigers die zich hierdoor meer op het oostelijke emplacement is gaan concentreren.


5. De zichtrelatie op de grootte van het emplacement met het stationsgebouw is vanaf het Hereviaduct vanwege de voetgangersbrug en de grootschalige bebouwing nauwelijks meer waarneembaar.
6. De dimensie en de te dichte locatie van het laatste gebouwdeel van het Hunzehuys staat niet in verhouding met de massa van het oostelijke eindgebouw dat hierdoor vanaf een afstand niet voldoende genoeg waargenomen wordt, nog afgezien van het hellende gedeelte van het Stadsbalkon.
Schaal van het emplacement
Kwaliteiten



1. Alle monumentale perronkappen, incl. het perronplein, zijn nagenoeg in hun oorspronkelijke vorm aanwezig. De kwaliteit van hun vormgeving en daglichttoetreding moet worden verbeterd om deze in hun oorspronkelijkheid te kunnen beleven.


2. De nog aanwezige geklinknagelde luifel van de hoofdentree en het in hetzelfde constructieve principe uitgevoerde hoofdspant van het perronplein zijn nog aanwezig en geven de nauwe relatie tussen perronplein en hoofdgebouw weer.

3. Bij de kappen uit 1896 en 1928/32 wordt de veranderde opvatting van de vormgeving weerspiegeld door het architectonische contrast. Bijzonder is om dit op het emplacement waar te nemen waarbij de nieuwe vormgeving door onder andere de materialisatie niet storend is en met respect voor het oude werd uitgevoerd.

4. De aanwezigheid van het oostelijke eindgebouw als zijnde een oorspronkelijk toiletgebouw. Het geeft het oorspronkelijke gebruik van het emplacement weer en verwijst naar het voormalige bestaan van beide eindgebouwen.
Dit is een foto bewerkt door Wim Mensinga. De betrouwbaarheid hiervan is niet gecontroleerd.



5. Het seinhuis uit 1928 is als wezenlijk onderdeel van het “spoorbeeld” nog aanwezig. Het symboliseert de architectuuropvatting van de eerste helft van 20e eeuw = form follows function.

7. Het waterreservoir, gebouwd vóór 1927 (inmiddels drastisch verbouwd en deels gesloopt) en het bedieningshuisje (behorende bij een inmiddels verwijderde draaischijf) zijn de oudste bouwdelen van het zuidelijke emplacement. Hun aanwezigheid symboliseert het stoomtijdperk met de daarbij horende voorzieningen en markeert de grootte van het emplacement in begin van de twintigste eeuw.

6. De traverse heeft met de zichtbare spanten een aantrekkelijke ruimtelijke kwaliteit die een potentie is met betrekking tot een mogelijke herbestemming.
Schaal van het emplacement
Knelpunten

2. De betonnen luifel tussen het stationsgebouw en het oostelijke eindgebouw is door zijn grootte en uitstraling niet passend. Hij sluit over de hele lengte aan op de monumentale gebouwen waardoor deze visueel niet meer vrij staan.

belangrijkste treinen

1. De richting oost verplaatste routing van de reizigers is negatief voor het behoud van de monumentale en cultuurhistorische waarde van het emplacement. De reizigers lopen minder intensief door het gebouw heen. Hierdoor heeft de vestibule zijn functie als oriëntatiepunt en ontvangstdomein verloren. De inrichting van het emplacement is meegegaan met de verplaatsing van de routing richting oost. Zo zijn de haltering van de (belangrijkste) treinen en de toegankelijkeheid van de perrons (door een nieuwe gelijkvloerse overgang) meegegaan met de verschuiving van de routing.


3. De vormgeving van het perronplein als centraal oriëntatiepunt is niet meer te ervaren vanwege de asymmetrisch en te dicht bij de monumentale hoofdspanten geplaatste bouwwerken. Ook is de oorspronkelijke daglichttoetreding te veel verstoord.



4. De zichtrelaties naar het perronplein zijn sterk verstoord door bouwwerken van de commercie, de overstek van het golvende dak en het platte dak met de kolommen van de tijdelijke doorgang naar het 3e perron en de later aangebrachte gebouwdelen onder de traverse.



6. De lichtdoorlatende materialisatie van de overkapping van het 2e perron verstoort te veel het monumentale karakter:
a. de oorspronkelijke daglichttoetreding ter benadrukking van het boogvormige dak van het perronplein is verloren gegaan; b. de eenheid tussen de overkapping van het 1e perron en het 2e perron is verstoord;
c. door de lichtdoorlatende materialisatie worden alle elementen onder deze kap benadrukt.

5. Het golvende dak tussen het 1e en 2e perron contrasteert te sterk met de monumentale overkappingen. De golvende vorm leidt af van de monumentale vormgeving van de perronkappen, verstoort de relatie tussen de perrons, plein en hoofdgebouw en belemmert de lichttoetreding op het perronplein.


7. Volgens de redengevende omschrijving zijn blijkbaar niet de oorspronkelijke kleuren bij de monumentale onderdelen aangebracht (zwartachtig ter plaatse van de traverse en het seinhuis). Ook is het aanbrengen van de kleurstelling niet consequent aangehouden.


8. De inrichting van de perrons geeft een rommelig en ongestructureerd beeld en verstoort de beleving van de monumentale overkappingen. Het betreft hier o.a. misplaatste of qua kleurstelling onaangepaste bouwkundige voorzieningen zoals kabelgoten en masten maar ook ongelukkig geplaatste bagagekluizen, bewegwijzeringen, informatie elementen en (flexibele) reclameborden, prullenbakken en kunstverlichtingen.

9. De uitstraling van de commercie (stijl- en regelwerk, grove dakrand, kleur) is niet afgestemd op de bestaande omgeving.
Schaal van het gebouw
Kwaliteiten


1. De aanwezige respectievelijk herstelde architectuur van Gosschalk als ‘Gesamtkunstwerk’ met zijn verhoudingen, ritmiek, decoraties en kunstwerken zowel aan de buiten- als ook aan de binnenkant. De voor- en zijgevels bleven als de representatieve gevels tot op heden vrij van reclame-uitingen.

2. De aanwezigheid van het oostelijke eindgebouw. Samen met het gesloopte westelijke eindgebouw completeerde het de symmetrische totaalopzet. Op deze manier werd het “vrijstaan” van het hoofdgebouw vorm gegeven en gewaarborgd.


3. De (nagenoeg) herstelde ruimtelijke binnenstructuren met hun symmetrische hoofdopzet en de hierin verweven ruimtelijke structuren van de vestibule met de toegangen naar de zijvleugels en de opvolging van de drie verblijfsruimtes van de toenmalige reizigers 1e en 2e klasse.

4. De met de restauratie van 1998/2000 herstelde en weer zichtbaar gemaakte afwerkingen van het interieur van een groot deel van de meest belangrijke verkeers- en verblijfsruimtes waarbij de vestibule met het papierstuc-plafond en andere rijke afwerkingen het hoogtepunt vormt.


5. De aanwezige herkenbaarheid van de oorspronkelijke doorgangen tussen de wachtkamer 1e en 2e klasse, de restauratie en de damessalon zijn tijdgetuigen van het oorspronkelijke gebruik van het gebouw. Deze kwaliteit kan verbeterd worden door de doorgangen weer open te zetten zodat de relatie van deze drie ruimtes weer te ervaren is.
Schaal van het gebouw
Knelpunten

1. Door de sloop van het westelijke eindgebouw heeft het stationsgebouw zijn symmetrische afbakening naar de omgeving toe verloren. Het “vrijstaan” van het hoofdgebouw is aan de westzijde verloren gegaan.



3. De vanuit de galerij intensief gebruikte voorruimte van de vm restauratie straalt door zijn afwerking en gebruik een sfeer van een bergruimte uit. Dit staat niet in verhouding met deze ruimtes en ook niet met gerestaureerde / gereconstrueerde elementen zoals een doorgang naar de voormalige wachtkamer 3e klasse. Helaas wordt deze doorgang niet gebruikt waardoor de routing in het gebouw onderbroken wordt.

2. Door de wijziging in de loopstroom van de reizigers heeft de vestibule geen functie meer als ontvangstdomein maar wordt ook niet gebruikt voor andere doeleinden. Het negatief gevolg hiervan is in het gebruik te zien: De in 1998/2000 aangebrachte deuren in de zijwanden zijn dichtgezet. Vanwege ontbrekend toezicht werden de aan de zijkanten gesitueerde banken om de lantaarn heen geplaatst. Dit om klimmen in de lantaarn te voorkomen.

4. Alle drie de tochtportalen zijn als onderdelen van de oorspronkelijke routing in de huidige situatie voor de reizigers of niet toegankelijk of in hun oorspronkelijke afwerking niet te beleven. Hierdoor zijn de galerijen niet vanuit de vestibule bereikbaar waardoor de routing vanuit de vestibule naar de hoekpaviljoens, met name de oostelijke, onderbroken is.

6. Aan de perronzijde van de westelijke vleugel is een groot deel van de deuren afgeplakt. Dit verzwakt de relatie tussen het gebouw en het perron omdat er geen interactie is tussen de functie van het gebouw en het emplacement.



5. Verschillende ruimtes zijn momenteel niet in gebruik. De leegstaande ruimtes bevinden zich vooral op de begane grond van de westelijke vleugel en op de (zolder)verdieping van de oostelijke vleugel. Een afstemming tussen routing en gebruik van het gebouw zal voor een maatgevende verbetering zorgen.


7. De niet consequente beeldkwaliteit van de reclame aan de achtergevel en het plaatsen van diverse technische voorzieningen doen afbreuk aan het monumentale karakter van de achtergevel. Enkele reclame-uitingen concurreren door de grootte en vormgeving met het karakter van het gebouw.
In deze paragraaf worden de cultuurhistorische waarden van het station uiteengezet. De kwaliteiten en knelpunten uit paragraaf 5.1 worden meegenomen in de waardenstelling. Niet elke kwaliteit zal een cultuurhistorische waarde hebben en er zijn natuurlijk ook cultuurhistorische waarden die niet direct van het gebouw zijn af te lezen maar waar men zich wel bewust van dient te zijn. Deze waarden worden als ‘algemene’ cultuurhistorische waarden beschouwd en zijn niet weergegeven in de waardenkaart maar worden hier uiteraard wel beschreven. De waardenkaart is afgeleid van de bouwhistorische waarderingsplattegrond zoals beschreven in de Bouwhistorische Richtlijnen uit 2009. Een cultuurhistorisch onderzoek is echter veel breder dan een bouwhistorisch onderzoek. Een bouwhistorisch onderzoek richt zich voornamelijk op het materiaal met eventueel de ontwerpvisie van de architect. Bij dit cultuurhistorisch onderzoek is ook de historische geografie, de sociaal-maatschappelijke geschiedenis en de plaats van het station in de geschiedenis van de spoorontwikkeling meegenomen, wat tot andere toetsingscriteria leidt.
Voor het toekennen van de waarden is bij de interieurafwerking geen onderscheid gemaakt tussen de restauratie en de
reconstructie van oorspronkelijke onderdelen en afwerkingen.
Dit omdat beide passen in de ontwerpvisie van de architect. Daarbij zal het onderscheid tussen deze onderdelen geen groot verschil maken voor de belevingswaarde van de reiziger en kan de restauratie worden gezien als markant onderdeel van de ontwikkelingsgeschiedenis van het stationsgebouw.
De toetsingscriteria die worden gehanteerd met betrekking tot de cultuurhistorische waardering zijn zowel de fysieke elementen als gaafheid en zeldzaamheid als ook niet fysieke elementen die van sociaal-maatschappelijke betekenis zijn. Hierbij kan worden gedacht aan de ontstaanshistorie, de betekenis voor de ontwikkeling van de stad en de ligging.
Hoge, positieve en indifferente cultuurhistorische waarde
De waarderingscategorieën zijn per schaal van het rapport omschreven en op een tekening kenbaar gemaakt: de schaal van de stad, het emplacement en het gebouw. Eventuele algemene waarden zijn in de omschrijving als nummer 0. aangegeven. Bij de indifferente waarde zijn storende elementen met een * gemarkeerd.
Het station is op dit moment door meerdere organisaties in gebruik en het was niet mogelijk om alle ruimtes te onderzoeken en vervolgens te waarderen. Ruimten die niet onderzocht zijn maar wel met redelijke zekerheid waarden bevatten, worden ingedeeld in de categorie positieve verwachtingswaarde.
Randvoorwaarden
Hoge cultuurhistorische waarden
Het behoud van de elementen van hoge cultuurhistorische waarden staat voorop. Eventuele gewenste aanpassingen zijn alleen mogelijk indien zij het bestaande waardevolle karakter versterken. Tevens dienen de aanpassingen van onderdelen andere elementen met een hoge cultuurhistorische waarden niet te verstoren. Zo dient altijd rekening te worden gehouden met het symmetrische karakter en de verhoudingen binnen het ontwerp alsmede het, door de architect, zorgvuldig gekozen materiaalgebruik en mate van afwerking.
Een andere randvoorwaarde voor ontwikkeling is dat de structuur van het dubbel kopstation als positief wordt ervaren. Het is een zeldzame structuur en kenmerkend voor dit emplacement. Nu dreigt het dubbel kopstation een andere structuur opgelegd te krijgen die niet past bij het monument. Door het sterk toegenomen aantal reizigers en daarmee een grote behoefte aan commercie is een veranderde zienswijze op het gebruik van de stationslocatie evident. Maar gedegen afwegingen en een goede overlegstructuur tussen de betrokken partijen zou moeten leiden tot een visie vanuit het monument waarbij het cultuurhistorische karakter tot zijn recht komt. Daarbij is het van belang om wijzigingen te laten toetsen door specialisten. Het stationsgebouw en het emplacement is een samenhangend
geheel. Het is een complex architectonisch ontwerp en alle onderdelen staan op een bepaalde wijze in verhouding tot elkaar. Het is ook aan te bevelen om een architectuur- en bouwhistoricus te betrekken bij wijzigingen en transformatie om de waarden en het karakter van het gebouw en emplacement te behouden.
Als laatste randvoorwaarde wordt gesteld dat er een manier binnen het beleid van NS en / of ProRail gevonden zou moeten worden om de beeldkwaliteit van het hele emplacement te bewaken, te controleren, te sturen en te stimuleren. Een monumentaal station, vol met cultuurhistorische waarde, vraagt een andere bejegening dan een nieuw station. Ook voor de inrichting van het stationsgebouw en de perrons dient vanuit het monument gedacht te worden, alleen dan kunnen de cultuurhistorische waarden worden bewaard en versterkt.
Positieve cultuurhistorische waarden
Het uitgangspunt voor onderdelen met een positieve cultuurhistorische waarde is dat gestreefd dient te worden naar behoud van deze elementen. Aanpassingen zijn mogelijk indien het cultuurhistorische karakter van de aan te passen onderdelen en de symmetrie, materiaal en verhouding van het gehele ontwerp niet wordt verstoord.
Indifferente cultuurhistorische waarden
De onderdelen met een indifferente cultuurhistorische waarden kunnen worden gewijzigd of gesloopt. Deze zijn niet bepalend voor de oorspronkelijke opzet of doen zelfs afbreuk hieraan. Uitgangspunt voor verandering of sloop zou moeten zijn dat hierdoor het cultuurhistorische karakter van het gebouw en emplacement wordt versterkt. Het is daarbij van belang te beseffen dat het wijzigen van onderdelen met een indifferente waarde degelijk invloed kan hebben op het karakter van het emplacement en het gebouw.
Schaal van de stad
Voordat hieronder de waardes met betrekking tot de stad in een korte versie worden genoemd, willen de auteurs van dit onderzoek het volgende benadrukken: Het station Groningen kent een hoge cultuurhistorische waarde in sociaal-maatschappelijke zin. De Groningse bevolking liet 125 jaar geleden dit station met veel trots oprichten. Het staat symbool voor de boeren en boerinnen die toen door de handel in vee, hout en graan het mogelijk maakten dat Groningen aan nationale en internationale betekenis heeft gewonnen en zich tot een belangrijk knooppunt van het goederentransport ontwikkelde.
Voor het goederentransport was een stationslocatie die onderdeel is van een goede infrastructuur met de ommelanden het meest belangrijke en niet zo zeer de stedenbouwkundig sterke relatie met de stad. Om wel een aansluiting met de stad te waarborgen werd de stationslocatie onderdeel van een (groene) karakteristieke beëindiging van de oude binnenstad. Hier zit dan ook de stedenbouwkundige kwaliteit van toen. Bij ontwikkelingen in en rondom de stationslocatie moeten plannen dan ook met het bewustzijn van deze sociaal-maatschappelijke waarde en daarmee met respect voor de bevolking van toen worden opgepakt. Dit is al een keer gebeurd – namelijk met de restauratie van het stationsgebouw in 1998/2000, die sterk ondersteund werd door de bevolking.
Op stedenbouwkundig niveau lijkt dit respect echter met name vanaf de jaren ’80 verloren te zijn gegaan. Vanwege de steeds verbeterde infrastructuur, in de loop der tijd ook naar de stad toe, ontwikkelde zich de stationsomgeving tot een belangrijk verkeerstechnisch knooppunt en daarmee tot een economisch aantrekkelijke locatie. Zo ontstonden hier grootschalige kantoorcomplexen. De inrichting van de openbare ruimte werd hoofdzakelijk afgestemd op deze nieuwe situatie. Daardoor verloor de openbare ruimte zijn historische relatie met het emplacement en zijn stedenbouwkundige aansluiting. Zo staat het stationsgebouw stedenbouwkundig, functioneel en in zekere mate ook architectonisch verloren in zijn omgeving. Alleen enkele onderdelen, zoals de commerciële ruimtes op de begane grond, dragen nog bij aan een sociaal-maatschappelijke betekenis.
Hoge cultuurhistorische waarde
0. De oprichting van een pronkstation.
0. De ligging van het station aan het water.
1. De zichtrelatie vanaf de huidige Herebrug.
2. Het beleven van de architectuur vanuit een perspectivische hoek zoals deze met de historische routing naar het gebouw toe te belven was.
3. De architectonische relatie met de villabuurt aan de overkant van het kanaal en met de villabuurt ‘Zuiderpark’.
4. De aanwezige groenvoorzieningen langs de Stationsweg
aan de westzijde tot aan de Emmabrug.
5. De locatie een aanwezigheid van het oostelijk eindgebouw.
Positieve cultuurhistorische waarde
1. Het tegenwoordig nog aanwezige restant van de oorspronkelijke toegangsweg ten tijde van de vestingstad, de huidige Oude Stationsstraat. (Is een tijdgetuige van de stedenbouwkundige situatie ten tijde van de vestingstad en geeft daarmee de oorsprong aan van de stedenbouwkundige ontwikkelingen rondom de stationslocatie. Ook verwijst hij met zijn ligging naar de oude vorm van de vestinggracht, als pendant van de vorm van het Zuiderpark aan de andere kant van de Hereweg.)
2. De aanwezige zichtrelatie vanaf het historische Hereviaduct op het emplacement met op de achtergrond het stationsgebouw.
3. De voetgangers- en fietsbrug en het Groninger Museum.
Indifferente cultuurhistorische waarde
1*. Het Stadsbalkon
2*. De galerij en doorgang onder het Hunzehys.
3*. Het grote volume in combinatie met een te nabije positionering van het laatste bouwdeel van het Hunzehuys.
Legenda:

Hoge waarde
Positieve waarde
Indifferente waarde Storend

Schaal van het emplacement
Hoge cultuurhistorische waarde
0. De zeldzaamheid van dit emplacement als een dubbel kopstation in Nederland en de mate van gaafheid waarin het type emplacement bewaard is gebleven.
1. De nauwe relatie tussen de perronstructuur en -architectuur en het hoofdgebouw.
2. De vormgeving van de kappen en hun relatie onderling.
3. De locatie en architectuur van het seinhuis.
4. Het oostelijke eindgebouw is een gaaf exemplaar als zijnde een oorspronkelijk privaat(toilet)gebouw.
Positieve cultuurhistorische waarde
1. De constructieve vormgeving van de traverse.
2./3. De twee nog aanwezige oudste onderdelen van het emplacement, te weten het bedieningshuisje ten behoeve van de voormalige draaischuif uit 1909 en het waterreservoir van voor 1927.
Indifferente cultuurhistorische waarde
1*. De betonnen luifel tussen het stationsgebouw en het oostelijke eindgebouw.
2*. Het ten opzichte van het perronplein asymmetrische daklicht in de hoge overkapping van het 1e perron.
3*. De transparante dakbedekking op de perronkappen.
4*. De later aangebrachte gebouwdelen onder de traverse.
5. Het bouwwerk onder de overkapping van het 3e perron.
6*. De ten opzichte van het perronplein asymmetrische en te dicht bij de hoofdspanten gepositioneerde commercie op de perrons, incl. hun vormgeving op perronniveau.
7*. De golvende daken van de commercie met hun kolommen
8*. De aanwezigheid van de gelijkvloerse overgang van het 1e naar het 2e perron
9*. De gelijkvloerse overgang van het 2e en 3e perron, waarbij de kolommenstructuur en de platte luifel storend zijn.
10. De in 1985 gerealiseerde voetgangersbrug tussen de zuiden noordzijde van het emplacement.
Niet op tekening aangegeven: 2/3. positieve waarden 10. indifferente waarde

Cultuurhistorische waardekaart: schaal van het emplacement
Legenda:

Hoge waarde
Positieve waarde
Indifferente waarde
Waarde van plafond Storend
Schaal van het gebouw
Hoge cultuurhistorische waarde
0. Het stationsgebouw kan, samen met zijn eindgebouw(en) en de perronoverkappingen, gezien worden als een gaaf bewaard en zeldzaam exemplaar van een late variatie op een station 1e klasse. Vanwege I. Gosschalk als architect, de conform zijn ontwerpstijl gerealiseerde architectuur, het gebouw als ‘Gesamtkunstwerk’, de samenhang tussen functie en architectuur.
0. De aanwezige respectievelijk herstelde bouwkundige structuur van 1896.
1. De symmetrische opzet van het stationsgebouw, m.b.t. het gevelbeeld als ook de ruimtelijke indeling.
2. De ruimtelijke structuur van de vestibule met de twee zijvleugels.
3. De verhoudingen tussen de voormalige restauratie, de voormalige wachtkamer 1e en 2e klasse en de voormalige damessalon.
4. De herstelde respectievelijk nog aanwezige monumentale interieurafwerkingen van de wanden, de vloeren, de plafonds en de gewelven van de oorspronkelijke verkeers- en verblijfsruimtes.
5. De colonnade en het triomfboogmotief met lunetvenster boven de luifel als kenmerken van de Europese stationstypolo-
gie. Ook verwijst het triomfboogmotief met lunetvenster naar de structuur van het emplacement als een dubbel kopstation.
6. De vormgeving, locatie en aanwezigheid van het oostelijke eindgebouw.
7. De decoraties en kunstwerken van 1896, zoals in H4.1 omschreven.
Positieve cultuurhistorische waarde
0. Gosschalks keuze voor Nederlandse baksteen.
1. De constructie ten behoeve van het rozetvenster in het plafond van de vestibule vanwege zijn gaafheid en de mate van authenticiteit.
2. De aanwezige oorspronkelijke kapconstructies van de paviljoens.
3. De aanwezigheid van nog oorspronkelijke trappen naar de voormalige woningen.
4. De muren van de voormalige ruimte voor gevangenen.
Indifferente waarde
1*. De niet oorspronkelijke inrichtingen en afwerkingen van de tochtportalen.
2. De verder niet oorspronkelijke ruimtelijke structuren en inrichtingen op de begane grond.
3. De inrichting van de verdiepingen van het stationsgebouw.
4. De positie en in eigentijdse vorm uitgevoerde loopbrug. De oorspronkelijke oversteek bevond zich op een lager niveau, namelijk direct boven de oorspronkelijke loketten en daarmee op enige afstand onder het halfronde venster met zijn rijke tracering.
5. De indeling van het oostelijke eindgebouw wordt op basis van tekeningen als indifferent ingeschat. Deze ruimte was tijdens het onderzoek niet toegankelijk.

oorspronkelijke hoogte oversteek
Niet op tekening aangegeven: 5 en 7 hoge waarden

Legenda:

Hoge waarde
Positieve waarde
Indifferente waarde Waarde van plafond Storend
Positieve verwachtingswaarde
Met betrekking tot nog aanwezige oorspronkelijke interieurafwerkingen wordt voor de volgende ruimtes een positieve verwachtingswaarde aangehouden:
1. De voormalige tochtportalen westelijk en oostelijk van de vestibule. Dit omdat hier voorzetwanden tegen resp. gesausd stucwerk op mogelijk van schoonmetselwerk voorziene wanden aangebracht zijn. Boven een verlaagd plafond van het westelijke portaal is een oorspronkelijk kruisribgewelf aanwezig.
2. Het voormalige tochtportaal naar de wachtkamer 3e klasse.
Dezelfde argumentatie als punt 1.
3. De ruimte van het oorspronkelijke bagageloket. Dit omdat de voor de reizigers gebruikte ruimtes door Gosschalk rijk afgewerkt werden. Deze ruimte werd waarschijnlijk niet door de reizigers betreden maar was toch vanuit de verkeersruimte te ervaren.
4. De ruimte van de voormalige telegraaf. Dezelfde argumentatie als punt 3.
5. Het plafond van de voormalige damessalon. Onbekend is in welke omvang hier nog restanten aanwezig zijn.
6. De structuur van de bovenverdieping van de hoekpaviljoens is gewijzigd en het interieur is gerenoveerd. Oude afwerkingslagen of verwijzingen naar de oude structuur kunnen worden aangetroffen.
Geadviseerd wordt om onderdelen met een positieve verwachtingswaarde bij wijzigingen of sloop van de moderne afwerking bouwhistorisch en kleurhistorisch te laten onderzoeken op oude afwerkingslagen, materiaalgebruik en evt. resten van constructiemethoden.

Legenda: Positieve verwachtingswaarde Waarde van plafond

In dit deelhoofdstuk worden de in hoofdlijnen de kenmerken van de kwaliteiten en waarden van de stationslocatie samengevat. Nieuwe plannen zouden altijd aan deze agenda / leidraad getoetst moeten worden.
Schaal van de stad:
- het station met zijn voorplein als de stedenbouwkundig meest belangrijke plek tussen de twee bruggen, de Here- en Emmabrug;
- de relatie met de stedenbouwkundige omgeving ten behoeve van het teruggeven / koesteren van een identiteit;
- een op de stationslocatie afgestemde inrichting van de openbare ruimte / voorplein;
- een wandeling/routing naar het gebouw als een historische bewustwordingsroute.
Schaal van het emplacement:
- de drie oriëntatiepunten (voorplein, vestibule, perronplein) als onderdelen van de routing van de reizigers;
- de symmetrische totaalopzet in het algemeen en in het bijzonder op de perrons waardoor het dubbel kopstation gekenmerkt wordt;
- de nauwe relatie tussen de perronoverkappingen van 1896 en het stationsgebouw;
- de architectuur van de perronoverkappingen van 1896 en 1928/32.
Schaal van het gebouw
- het gebouw als “Gesamtkunstwerk” met al zijn architectonische kenmerken en bijzonderheden, incl. het oostelijke eindgebouw.
1 Het stationsgebouw met een op het gebouw gericht voorplein als de meest belangrijke plek in zijn omgeving (tussen Herebrug en Emmabrug)
Dat betekent dat het voorplein:
A) een duidelijke functie toegekend krijgt;
B) op dezelfde symmetrieas georiënteerd wordt als het stationsgebouw;
C) zijn functie en inrichting ‘uitstraalt’ naar de omgeving;
D) vanaf het water tot en met de eindgebouwen ingericht wordt.
Aanbevelingen stedenbouwkundige:
a) de inrichting aanpassen op het monumentale complex met zijn symmetrieas en op de relatie met het water;
b) de plek van het westelijke eindgebouw markeren;
c) de relatie met het water en groen dominanter ontwikkelen dan de oriëntatie (naar de) oost- en west(zijde).

Dat betekent dat:
A) het stationsgebouw met zijn eindgebouw(en) als het meest belangrijke architectuur ensemble in zijn omgeving wordt waargenomen;
B) de bebouwing naast het ensemble niet te dichtbij, niet te groot en in de uitstraling niet te concurrerend met het ensemble gerealiseerd wordt.
Aanbevelingen stedenbouwkundige:
a) de groenvoorzieningen langs het water en langs de toegangswegen hebben oorspronkelijk de inrichting bepaald. Dit zou weer opgepakt kunnen worden om de zichtrelaties te versterken;
b) het voorplein in samenhang met het stationsgebouw inrichten.





Suggestie verbeterde zichtrelatie
3 Het herstellen van de drie oriëntatiepunten op de symmetrieas
Dat betekent dat:
A) de inrichting van het voorplein rekening houdt met zijn functie als eerste oriëntatiepunt van het emplacement; van hieruit wordt de reizigers geleid naar de hoofdentree, de vestibule van het stationsgebouw;
B) de reizigersstroom hersteld wordt waardoor de vestibule als tweede (hoofd)oriëntatiepunt weer onderdeel wordt van de hoofdrouting van de reizigers;
C) de vormgeving van het perronplein als het derde oriëntatiepunt op de symmetrieas weer ervaren wordt.
Aanbevelingen stedenbouwkundige:
a) pas het “Stadsbalkon” aan door dit in zijn vormgeving te richten op het gebouw door de uitgangen op een looproute in de richting van de vestibule te oriënteren en de restruimtes bij het stationsgebouw en het eindgebouw te laten vervallen.

Aanbeveling architect:
b) zorg voor een afgewogen afstand van bebouwing tot de kolommen van de hoofdspanten op het perronplein (zie thema 4);
c) herstel de vormgeving rondom de kapaansluitingen van het perronplein i.v.m. de daglichttoetreding.
Aanbeveling beheerder:
d) houdt de kolommen van de hoofdspanten van het perronplein vrij van inrichting.
Aanbevelingen eigenaar:
e) verplaats de haltering van de belangrijke treinen naar het
monumentaal gebouw latere toevoegingen aanbevelingen ?

midden van het emplacement;
f) laat de later aangebrachte gelijkvloerse overgang van het 1e naar het 2e perron vervallen;
g) overweeg de noodzaak van de doorgang naar het emplacement vanuit het Hunzehuys;
h) beperk of sluit de toegankelijkheid van het 1e perron vanuit de westzijde langs het stationsgebouw af;
i) gebruik de doorgangen in de zijwanden van de vestibule zodat de ruimtes vanuit de vestibule toegankelijk zijn;
j) positioneer de in-uitcheckpunten voor tickets zodanig dat de monumentale opzet niet verstoord wordt.
4 het aanhouden van de architectonische symmetriebalans met een duidelijke middenas
Dat betekent dat:
A) de vestibule in zijn gebruik weer de meest belangrijke ruimte wordt;
B) dat de relatie tussen vestibule en perronplein voor de reizigers duidelijk voelbaar is;
C) bij een mogelijke uitbreiding van het emplacement er een oplossing binnen de symmetriebalans gezocht wordt.

CAanbevelingen eigenaar:
a) volg met de inrichting van de perrons (bewegwijzering enz.) een op de symmetrie helder afgestemde structuur;
b) ontwerp een op de ruimte afgestemde inrichting van de tochtportalen oostelijk en westelijk van de vestibule, hou respectievelijk maak deze weer toegankelijk voor reizigers.
Aanbeveling beheerder/eigenaar:
c) volg met bouwkundige voorzieningen (masten, kabelgoten enz.) een op de symmetrie helder afgestemde structuur;
d) bewaak het misplaatsen van ondergeschikte inrichtingen zoals flexibele reclameborden, prullenbakken enz.

Aanbevelingen architect:
e) de zichtrelatie naar de architectuur van het perronplein en de gevel van het hoofdpaviljoen moet beleefbaar blijven;
f) stem gebouwen op de perrons af op de monumentale elementen. Nieuwe toevoegingen moeten aan deze ondergeschikt zijn;
g) bewaak bij aanpassingen het effect van de daglichttoetreding;
h) houdt het perronplein tot voorbij de hoofdspanten vrij van bebouwing.
5 de architectonische beleving van de perronoverkappingen koesteren en verbeteren
Dat betekent dat:
A) de structuur voelbaar blijft, zowel de constructie van de kappen als ook de perrons zelf.
Aanbeveling beheerder:
a) breng de oorspronkelijke kleurstelling van de kapconstructies en traverse met seinhuis terug en bewaak een consequente toepassing;
b) vervang de lichtdoorlatende dakbedekking van het 2e perron door dakbeschot zoals dit op het 1e perron aanwezig is en waarschijnlijk ook de oorspronkelijke situatie was;
c) bewaak het onderhoud van de overkappingen, met name de boeiborden aan het eind van de kappen;
d) houd kabelgoten, meterkasten enz. zoveel mogelijk uit het zicht;
e) stem de kleurstelling van bouwkundige voorzieningen zoals masten op de oorspronkelijke onderdelen af (ondergeschikt);
f) houd de kolommen van de monumentale kappen vrij.
Aanbeveling architect:
a) stem de kleurstelling van nieuwe bebouwing op de oorspronkelijke onderdelen af (ondergeschikt).
Aanbeveling plantoetsers:
a) een strenge toetsing bij wijzigingen zoals dit plaatsvindt bij het rijksmonument, het stationsgebouw met zijn eindgebouw.
Onderstaand zijn een aantal potenties genoemd die positief kunnen bijdragen aan het verbeteren van de beleving van de monumentale stationslocatie.
Schaal van de stad

- De stationslocatie markeerde tot WOII de overgang van de binnenstad naar het “groene buiten” en legde daarmee een relatie met het in de jaren ’20 geplande en tot heden aanwezige Stadspark (gemeentelijk monument). Een potentie voor de stationslocatie met meer betekenis kan gezien worden in het leggen van een verbinding / een te ervaren relatie met het Stadspark.
Schaal van het emplacement
- De ruimtelijke indeling van het oostelijke eindgebouw is in de loop der tijd compleet veranderd. De vrijheid hierdoor om een bijzondere bestemming voor dit gebouw te vinden is een potentie.
- Het leegstaande seinhuis kent met zijn locatie boven de kappen, in het midden van het emplacement en daarmee tegenover het stationsgebouw een bijzonder potentiaal voor een transformatie.*
* Het gebouw zelf was tijdens het onderzoek niet toegankelijk.
- De tranverse kent door zijn spanten een ruimtelijke binnenkwaliteit die als potentie gezien kan worden.
Schaal van het gebouw
- De doorgang tussen de voorruimte van de voormalige restauratie en de voormalige wachtkamer 3e klasse is nu dichtgezet. Ook is de afwerking van deze (niet oorspronkelijke) voorruimte niet passend voor het gebouw. De potentie ligt in de positieve belevingswaarde bij het verbeteren van deze ruimte, afgestemd op het monument, en de toegankelijkheid vanuit deze ruimte naar de voormalige wachtkamer 3e klasse.
- De leegstaande ruimte ter plaatse van het voormalige bagageloket kan met een goede functie, samen met de verwachtingswaarde van zijn afwerkingen, bijdragen aan de levendigheid van het stationsgebouw, met name in relatie tot de vestibule.
- Mogelijk kan met het terugbrengen van de oorspronkelijke kleurstellingen de attractiviteit en bijzonderheid van de verdiepingen van de hoekpaviljoens verbeterd worden.
6.4 Aanbevolen vervolgonderzoeken
Om de diverse voorgestelde verbeteringen door te kunnen voeren is vooraf dringend onderzoek nodig naar de (on)mogelijkheden m.b.t. een werkend stationsgebouw in relatie tot de monumenten
status. Het voorliggende cultuurhistorische onderzoek geeft eerste handvatten hiervoor maar dit zou op het gebied van de architectuur, stedenbouw en bouwhistorie nog geïntensiveerd moeten worden.
Schaal van de stad
- stedenbouwkundige visie ontwikkelen ten behoeve van de identiteit van het station: een stationsgebouw met een eigen voorterrein;
- onderzoek naar de kwaliteiten en knelpunten van de bestaande verlichting op het voorplein, zodat ook de avond respectievelijk nachtsituatie op het monumentale complex afgestemd is.
Schaal van het emplacement
- kleurhistorisch onderzoek van de perronoverkappingen;
- visualisatie van het oorspronkelijke ontwerpconcept, met name op de perrons t.b.v. een betere beeldvorming bij partijen;
- architectonische analyse van het seinhuis met traverse;
- haalbaarheidsonderzoek van een herbestemming van het seinhuis met traverse.
Schaal van het gebouw
- architectonische analyse m.b.t. waardes, potenties, knel-
punten en vrijheden van het stationsgebouw met zijn eindgebouw(en) waarbij nader op de architectuurhistorie ingegaan kan worden;
- bouwhistorisch beter inzicht krijgen m.b.t. gebruikte en nog aanwezige materialen in relatie met ruimtes en de door Gosschalk aangehouden / ontwikkelde bouwkundige detaillering (in materiaal en detaillering ligt de kracht van het gebouw);
- kleurhistorisch onderzoek van het stationsgebouw (voor zover nog niet aanwezig), met name op de verdiepingen van de hoekpaviljoens.
Het stationsgebouw werd in 1896 opgericht, ongeveer 100 jaar later werd het gebouw met respect voor zijn waarde gerestaureerd en voor de toekomst weer aan de bevolking in zijn oude glorie beschikbaar gesteld.
Op de schaal van de stad werd er in 1914 over nagedacht de stationslocatie te verplaatsen. Hiervoor werd niet gekozen – het zou te duur worden. De handen werden uit de mouwen gestoken en de bestaande locatie werd opgewaardeerd. De stationslocatie ontwikkelde zich tot een (economisch) attractieve plek als intermediair tussen een groeiende periferie en de oude binnenstad.
Met de restauratie van 1998/2000 is een goede aanzet gegeven de oorspronkelijke integrale kwaliteiten (potenties) te herinterpreteren. Echter bij de relatie met de omliggende bebouwing en open ruimtes schort het nog op de onderlinge (integrale) afstemming. Kwaliteiten die ontwikkeld moeten worden zijn er op dit moment niet. De kwaliteiten van het gebouw hebben daar nu onder te lijden.
cultuurhistorisch onderzoek en waardestelling
1. redengevende omschrijving hoofdgebouw
2. redengevende omschrijving perronkappen
Monumentnummer: 18691
Smallepad 5
3811 MG Amersfoort
Postbus 1600 3800 BP Amersfoort www.cultureelerfgoed.nl
T 033 421 74 21
F 033 421 77 99
E info@cultureelerfgoed.nl
Status : Beschermd
Aanwijzingsbesluit :
Inschrijving register : 05-11-1975
Kadaster deel/nummer : 2542/47
Gemeente: Provincie: Groningen Groningen
Plaatselijke aanduiding:
Stationsplein 2 9726 AE Groningen
Stationsplein 4 9726 AE Groningen
Stationsplein 6 9726 AE Groningen
Stationsplein 1 9726 AE Groningen
Stationsplein 3 9726 AE Groningen
Stationsplein 5 9726 AE Groningen
Kadastrale gemeente: Sectie: Kad.object: App: Grondperceel: Groningen A t/m R C 12634
Omschrijving:
Hoofdstation N.S.
Van 1895-1898 door I. Gosschalk gebouwd in een virtuoze mengeling van renaissance- en gotische stijlelementen.
Langgerekt hoofdgebouw met hoek- en middenpaviljoens waartussen aan de straatzijde hoge loggia's.
De voor die tijd gebruikelijke hoge ingangshal in de diepterichting, thans door een verlaagd plafond aan het oog onttrokken, uitwendig nog kenbaar door het grote halve roosvenster; overigens in enige wacht- en restauratieruimten nog de oorspronkelijke aankleding.
Perronkappen met overdekte loopbrug en seinhuis van het NS-Hoofdstation van Groningen (het stationsgebouw is beschermd Rijksmonument)
Adres: Stationsplein 4
Architect/ontwerper: Ingenieurs Maatschappij tot Exploitatie van Staatsspoorwegen (MES); gebouw architect I. Gosschalk (1838-1907)
Bouwjaar:
1896 (perronoverkappingen);
1928 (derde perron met overkapping, overdekte loopbrug met seinhuis)
1932 (verlenging 2de perronoverkapping)
Oorspronkelijke functie: perrons met overkappingen, overdekte loopbrug en seinhuis
Huidige bestemming: perrons met overkappingen, overdekte loopbrug en seinhuis (niet meer als zodanig in gebruik)
Inleiding
Perronoverkappingen, deel uitmakend van het stationscomplex van Groningen (waarvan het stationsgebouw zelf Rijks-
monument is), gerealiseerd in 1896 met later toegevoegde overdekte loopbrug met seinhuis uit 1928 over de doorgaande middensporen en bijbehorende perronoverkappingen over het 3de perron naar ontwerp van ingenieurs van de Nederlandse Spoorwegen.
In 1932 werd het 2de perron aan de zuidoostzijde uitgebreid met een stuk overkapping, qua type identiek aan die van 1928.
In de jaren ‘80 van de vorige eeuw verloor het seinhuis zijn functie, doordat voor het nieuwe beveiligingssysteem een nieuw seinhuis voor de railverkeersleiding werd gebouwd op het westelijke deel van het emplacement.
In de periode 1970-1980 zijn de perronoverkappingen van het 2de perron gesloopt en vervangen door transparante golfplaten.
Vanaf 2002 is het middenperron op de schop gegaan. De kopsporen 2a/3a en 2b/3b werden ingekort, aan de b-zijde zelfs zover dat ze aan de andere uiteinden weer een flink stuk verlengd moesten worden. Hierdoor ontstond een groter ‘perronplein’ waarop geschakelde winkeleenheden werden gerealiseerd. In 2002 is ter voorbereiding van onderhoudswerkzaamheden kleuronderzoek verricht naar de loopbrug en van het ex- en interieur van de voormalige seinpost. Oorspronkelijk had dit een zwartachtige afwerking, die later is overgeschilderd in donkergroen, vervolgens blauwgroen en later weer bruingrijs. Men koos voor de blauwgroene fase, omdat al besloten was
de stalen delen van de perronoverkappingen in deze kleur te schilderen. De houten ramen zijn vernieuwd en opnieuw van raamroeden voorzien, die een okerkleur kregen.
Omschrijving
De opzet van de perronaanleg van het Hoofdstation van Groningen is in feite gebaseerd op het principe van een dubbel kopstation, dat wil zeggen gescheiden perrons voor treinen uit zuidelijke en noordelijke richting. Doorgaand verkeer in beide richtingen was alleen mogelijk via het buitenste perronspoor. Structuur van de perrons met de overkappingen
Tussen de kopsporen is een breed verbindingsplein gesitueerd, dat symmetrisch in de as van het stationsgebouw ligt. Het plein strookt nagenoeg met de breedte van de monumentale ingangshal en verbindt de beide perrons (1 en 2). De perrons zijn overdekt met zelfstandige luifelkappen in de vorm van gebogen kappen, die rusten op twee rijen gecanneleerde, gietijzeren kolommen met Corinthische kapitelen. De luifels hebben geklonken vakwerkspanten van welijzer met een gebogen onderrand. Over de breedte van het hoofdgebouw is de perronkap verhoogd.
Aan de achtergevelzijde van het stationsgebouw rusten de vakwerkspanten op zandstenen consoles. Aan de spoorzijde bevat de kap een horizontale glasstrook die oorspronkelijk fungeerde als ventilatiestrook voor afvoer van rookgas van de (stoom)loco-
motieven. Daaronder sluit een luifelspant met luifel aan. Deze luifels gaan voorbij de verhoogde kap langs het stationsgebouw weer over in de lagere, symmetrische kappen over de perrons van de kopsporen met de twee rijen gietijzeren kolommen. Het centrale verbindingsplein tussen het 1ste en 2de perron is overdekt met een segmentboogvormige kap, die haaks staat op de perronkappen. Twee gebogen vakwerkspanten zijn in de perronkappen opgenomen. De opleggingen van deze (hoofd) vakwerkspanten rusten op vier extra zwaar uitgevoerde hoofdkolommen van geklonken samengestelde T en I profielen op een gietijzeren voet. Hiertussen liggen als overspanning elf geklonken vakwerkliggers. Oorspronkelijk waren aan weerszijden van het plein reeksen van acht slanke gietijzeren kolommen aangebracht. Deze leken de kap te ondersteunen, maar hadden vooral een decoratieve en afschermende functie. Naderhand - vermoedelijk in 1928 toen de loopbrug werd aangelegd en er extra ruimte nodig was, zijn deze kolommetjes dan ook verwijderd; de bevestigingsmoeten zijn nog altijd zichtbaar in de onderste langsliggers.
Alle perronkappen waren gedekt met plaatijzeren golfplaten, die haaks op de lengterichting van de kappen waren aangebracht. Deze bedekking is naderhand vervangen door een houten beschieting van kraalschroten, evenwijdig aan de lengterichting van de kappen, en afgedekt met dakleer (nog aanwezig in de perronkap van het 1e perron). De kap over het gehele 2de per-
ron is in de periode 1970-1980 verwijderd en vervangen door de huidige transparante golfplaten.
Seinhuis met overdekte loopbrug en overkappingen 3de perron In 1928 werd het stationscomplex voorzien van een 3de perron vanwege het snel toenemende reizigersverkeer. Om dit perron veilig te kunnen bereiken, werd over de doorgaande middensporen een loopbrug gelegd. Op de loopbrug werd over de volle breedte van de overspanning een seinhuis, Post T, gebouwd (Post T is de benaming voor de ruimte op een Nederlands spoorwegstation waarin zich de railverkeersleiding bevindt. Van hieruit bedient de treindienstleider de seinen en wissels op het station. De T staat voor treindienstleider. Met de invoering van de Centrale Verkeersleiding verdwenen de posten.). In dit seinhuis vond de bediening plaats van de seinen en wissels op het stationsemplacement. Dit gebeurde door middel van een voor die tijd modern tweerij-ig stelknoppentoestel ten behoeve van de stationsbeveiliging. Door de automatisering van het spoorwegbedrijf heeft het seinhuis van Groningen geen bestemming meer.
Het seinhuis bestaat uit een torenachtige, driedelige opbouw met haaks op elkaar geplaatste en verspringende onderdelen waarvan de onderste constructieve elementen als stalen portaalspanten zijn geïntegreerd in de overkappingsspanten van het 3de perron. De loopbrug sluit aan op het middelste niveau vlak boven de perronkap en bestaat uit een kokerachtige doo-
sconstructie met een plat dak. Op het bovenste niveau van het seinhuis bevindt zich een doosvormige uitbouw met plat dak die aan de kopse zijden driehoekig uitgebouwde delen bevat. Behalve voor de bediening had het seinhuis ook een belangrijke functie als uitzichtspunt op het emplacement, vandaar de vele stalen raampartijen in dit bovenste deel waar zich de seinzaal bevond met bedieningstoestel. Deze doos rust op drie zware liggers van geklonken profielen. Geklonken profielen zijn ook toegepast in de constructie van de loopbrug, perronkap en overige onderdelen van het seinhuis. De wanden zijn van origine voorzien van een plaatstalen beschieting. In deze wanden zijn stalen taatsramen opgenomen. Tegen de achterzijde (westzijde) van de seinzaal is een latere aanbouw opgenomen van drie lagen waarvan de wanden met horizontale houten delen zijn beschoten. De ramen in dit gedeelte zijn ook van hout. Die van de tussenverdieping lopen visueel door in de westwand van de voetgangersbrug, alleen daar zijn ze uitgevoerd in staal. Volgens de bestektekening uit 1928 was in dit gedeelte oorspronkelijk een lift gepland. Het oorspronkelijk geheel open gedeelte onder de trap is naderhand dichtgezet overeenkomstig de houten (lift) ombouw op de verdiepingen. Vanaf het middenperron voert een halfopen betontrap omhoog naar de voetgangersbrug, ter hoogte van het bordes halverwege, zijn de zijwanden geheel dicht. Overkapping 3de perron De overkapping van het derde perron is eveneens van het type
luifelkap, maar dan met een enkele rij kolommen van geklonken stalen profielen en spanten met een geknikt dak. In zuidoostelijke richting versmalt de overkapping zich iets en maakt ze een licht gebogen lijn.
Waardering
Perronoverkappingen met centraal - overkapt - middenperron uit 1896, deel uitmakend van het stationscomplex van Groningen met later toegevoegde overdekte loopbrug met seinhuis en derde perronoverkapping uit 1928 en verlengde perronkap van het 2de perron uit 1932, naar ontwerp van Ingenieurs van de Staats (Nederlandse) Spoorwegen, van algemeen belang voor de gemeente Groningen:
# vanwege hun cultuurhistorische waarden, als functionele onderdelen van de monumentale opzet, inrichting en latere uitbreiding van het stationscomplex van Groningen dat wordt beschouwd als een van de mooiste 19de eeuwse stationsgebouwen van Nederland en daarmee van belang voor de spoorweggeschiedenis in Nederland. Bovendien neemt het stationscomplex een belangrijke plaats in als goed bewaard gebleven unieke en herkenbare entree naar de stad Groningen;
# vanwege hun architectuurhistorische waarden, gelet op de esthetische kwaliteiten van het ontwerp als goed bewaard gebleven stationsoverkappingen in nauwe functionele relatie met de opzet en architectuur van het stationsgebouw, een kopstation
uit de bloeiperiode van de grote ‘stationspaleizen’, tot uiting komend in de indeling en situering van de perrons met centraal gelegen verbindingsperron dat in de as van de hal van het gebouw is geplaatst, bestaande uit zelfstandige luifeldaken met gebogen kappen en geklonken vakwerkspanten; voorts tot uiting komend in de opzet, constructie en de originele architectonische vorm van het seinhuis uit 1928, waarvan in Nederland slechts een paar voorbeelden bewaard zijn gebleven; voorts vanwege de wijze waarop dit seinhuis is geïntegreerd in de overkapping van het derde perron, door middel van portaalspanten, geklonken profielen en dergelijke in combinatie met de overdekte loopbrug, die uit hetzelfde materiaal is samengesteld; van belang is verder de metalen windwijzer op het seinhuis in de vorm van een klocomotief met treintje.
# vanwege het spoorwegenensemble met een aantal monumentale hoogtepunten als het station, de perronoverkappingen en seinhuis met loopbrug, deel uitmakend van de historische infrastructuur;
# vanwege de relatieve gaafheid en zeldzaamheid van de perronoverkappingen uit de bloeiperiode van de Nederlandse spoorwegen als representant van het type zelfstandig luifeldak op gietijzeren kolommen en de later toegevoegde overdekte loopbrug met seinpost en perronoverkapping uit de jaren ‘20 van de vorige eeuw. Van een dergelijk geïntegreerd ontwerp zijn in Nederland niet veel voorbeelden bewaard gebleven.
cultuurhistorisch onderzoek en waardestelling
groningen
Bronvermelding afbeeldingen
Onderstaande afbeeldingen zijn eigen dom van de Groninger Archieven. Bij publicatie van meer dan 50 exemplaren dient contact opgenomen te worden met de Groninger Archieven in verband met beeldrechten.
1.6 J.G. Kramer, collectie RHC Groninger Archieven, NL-GnGRA_1785_7131
1.29 J.G. Kramer, collectie RHC Groninger Archieven, NL-GnGRA_1785_7136
1.30 J.G. Kramer, collectie RHC Groninger Archieven, NL-GnGRA_1785_7144
2.6 J. Gorter, collectie RHC Groninger Archieven, NL-GnGRA_1785_13519
2.15 Prentbriefkaart, collectie RHC Groninger Archieven, NL-GnGRA_1986-5439
2.28 J.G. Kramer, collectie RHC Groninger Archieven, NL-GnGRA_1785_8526
2.32 Collectie RHC Groninger Archieven, NL-GnGRA_1785_7027
2.36 W. van den Burgh, collectie RHC Groninger Archieven 1758-30198
3.6 J.G. Kramer, collectie RHC Groninger Archieven, NL-GnGRA_1785_7144
3.8 Collectie RHC Groninger Archieven, NL-GnGRA_1785_7027
4.13 Collectie RHC Groninger Archieven, NL-GnGRA_1785-10438
4.14 J.G. Kramer, collectie RHC Groninger Archieven, NL-GnGRA_1785_7136
4.15 J.G. Kramer, collectie RHC Groninger Archieven, NL-GnGRA_1785_7131
4.35 J.G. Kramer, collectie RHC Groninger Archieven, NL-GnGRA_1785_7132
4.42 J.G. Kramer, collectie RHC Groninger Archieven, NL-GnGRA_1785_7136
cultuurhistorisch onderzoek en waardestelling
groningen
Bakel, Anne van • ‘De restauratie van het papierstuc plafond in de stationshal te Groningen’. In: Praktijkboek Instandhouding Monumenten, deel II-8 Interieurs • Sdu Uitgevers te Den Haag 1999.
CROW • Verkeersmanagement, energie en milieu • CROW 1994.
Dijkstra, Joke en Akkerman, Hilde • Groningen Hoofdstation
Centraal • Regio-Project Uitgevers te Groningen 1999.
Doedens, Anne en Mulder, Liek • Een spoor van verandering: Nederland en 150 jaar spoorwegen (1839-1989) • Bosch en Keuning te Baarn 1989.
Douma, C. • Monumentaliteit heeft afgedaan. Nieuwe ontwikkelingen in de stationsbouw • In: Futura 11, 1986.
Duijvendak, M.G.J., Hillenga, M. en Feenstra, J. • Geschiedenis van Groningen • WBooks Bv te Zwolle 2009.
Duijvendak, M. en Vries, B. de (red.) • Stad van het Noorden: Groningen in de twintigste eeuw • Koninklijke van Gorcum te Assen 2003.
Europa Nostra • ‘Railway station Groningen The Netherlands’ • In: Europ Nostra Bulletin, 2000.
Gosschalk, Isaac • ‘Bij de Platen, betreffende het nieuwe station te Groningen’. • In: Bouwkundig Tijdschrift 17, 1899.
Hajema, Luuk • De glazenwassers van het bestuur, Lokale overheid, massamedia, burgers en communicatie. Groningen in landelijk perspectief 1945-2001 • Van Gorcum, 2001
Haslinghuis dr. E.J. en Janse, dr.ing H. • Bouwkundige termen • Primavera Pers te Leiden 2005.
Huizinga, Petra • Ir. Jan Anthony Mulock Houwer en de volkshuisvesting in de stad Groningen (1900-1923) • Open Universiteit Nederland, 2011
Leeuwen, Wilfried van • ‘Een station in driekwartsmaat’. • In: Sluitsteen. Jaarboek van het Cypersgenootschap, 1998.
Leeuwen, W.R.F. van • Isaac Gosschalk, een tovenaar met berg- en baksteen • Scriptie.
Lintsen (red.), H.W. • Geschiedenis van de techniek in Nederland. De wording van een moderne samenleving 1800-1890. Deel I. Techniek en modernisering. Landbouw en voeding • Walburg Pers te Zutphen 1992.
Mulder, J., Jong, R de en Bouwman, E. • De elektrische trams van Groningen, Arnhem en Nijmegen • Uitgeverij Wyt te Rotterdam 1971.
Oldenhuis Gratama, Mr. L. • Bedenkingen over de rigting van den spoorweg in Friesland, Groningen en Drenthe • April 1855.
Panman, Margriet en Possel, Jans • Architectuur en stedenbouw in Groningen, 1850-1940 • WBooks te Zwolle 1992.
Pothof, Marten • Stationsgebied Groningen in 2020 écht onderdeel van de binnenstad? • Afstudeerscriptie Rijksuniversiteit Groningen 2008.
RvT • Jaarverslagen Raad van Toezicht: 1892, 1893, 1902,
1905 en 1913
Steenhuis, Rob • Gesprek op 13 februari 2013 te Arnhem. Stenvert, Ronald • Biografie van de baksteen • 2012.
Veenendaal, Guus • Spoorwegen in Nederland van 1834 tot nu • Boom te Amsterdam 2004.
Geraadpleegde websites:
www.gemeente.groningen.nl
www.grunn.nl
www.staatingroningen.nl
www.spoornoord.webklik.nl
www.wikipedia.nl
Geraadpleegde Archieven:
Groninger Archieven: beeldmateriaal (bij publicatie van meer dan 50 exemplaren dient contact opgenomen te worden met de Groninger Archieven in verband met beeldrechten).
Het Utrechts Archief (HUA):
- inventarisnummer 939 bestektekeningen van de infrastructuur, - inventarisnummer 959 tekeningen objecten. Spoorwegmuseum, Utrecht.
Zocherweg 2A
2613 ZV Delft
Tel: 015 212 59 03
Van Oldenbarneveldtstraat 92-2
6827 AN Arnhem
Tel: 026 442 67 50
info@takarchitecten.nl www.takarchitecten.nl