Margaret M. Clark Aquatic Center Parking/Shuttle Plan

Page 1

MARGARET M. CLARK AQUATIC CENTER

PARKING/SHUTTLE PLAN

TOTAL PARKING SPACES: 3,290

• Walking Distance: 3 – 20 Minutes (695 Spaces) Shuttle available • Overflow Parking: Sunrise Mall (2,595 Spaces) Shuttle available

PARKING LOT SCHEDULE/AVAILABILITY

• A Ambassador: THUR & SUN Only

• B BISD Bus Barn: THUR - SUN (15-20 Min Walk) – 300 Spaces

• H Hudson Elementary: THUR - SUN (10-15 Min Walk) – 190 Spaces

• M Margaret M. Clark: THUR - SUN – Handicap Parking Only

• U Unity Church: TH, FRI, SAT ONLY (No Sunday). (3-5 Min Walk) – 61 Spaces

ALL ALL ALL ~300 ~300 TH & SUN ONLY SWIM MEET PARKING HANDICAP Drop Off Only HANDICAP Drop Off Only ALL ALL: • THURSDAY • FRIDAY • SATURDAY • SUNDAY ALL: • THURSDAY • FRIDAY • SATURDAY • SUNDAY NOTICE – TOWING MAY OCCUR FOR PARKING IN THE NEIGHBORHOOD OR UNAUTHORIZED BUSINESS A H B U M

PARKING LOT Venue Key and Addresses

A = Ambassador Events Center 2735 Ruben Torres Sr Blvd, Brownsville, TX B = BISD Bus Barn 2601 Dana Ave., Brownsville, TX H = Hubert R. Hudson Elementary 2980 FM802, Brownsville, TX M = Margaret M. Clark Aquatic Center 2901 FM802, Brownsville, TX U = Unity Church 100 Seville Blvd., Brownsville, TX Sunrise Mall 2370 Frontage Rd., Brownsville, TX

MC AQUATIC CENTER PARKING

ALL PUBLIC PARKING 44 Spaces
A U M

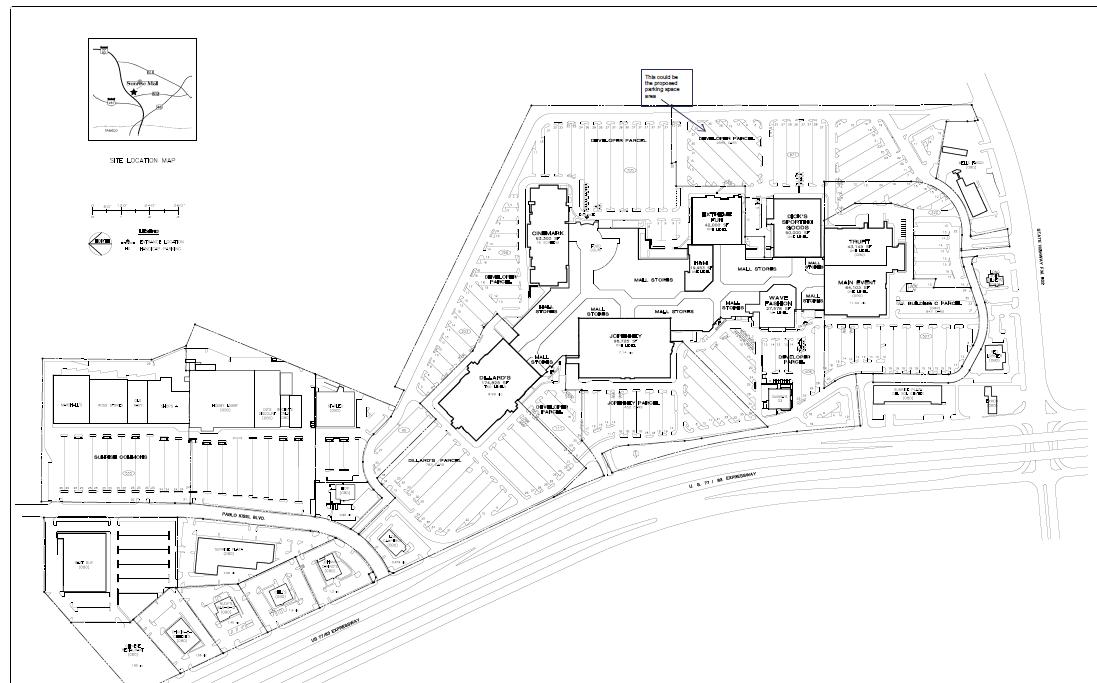
SUNRISE MALL SITE MAP

2,595 Spaces

Turn static files into dynamic content formats.

Create a flipbook
Issuu converts static files into: digital portfolios, online yearbooks, online catalogs, digital photo albums and more. Sign up and create your flipbook.