Thunder Road

Page 1

MOUNTAIN RETREAT WITH INCOME POTENTIAL

632 THUNDER ROAD, CLYDE, NC 28721

WEBSITE
MLS

MOUNTAIN RETREAT

This charming home is a hidden gem situated on 5.5 private acres with a separate apartment in the basement that has potential for rental income. If you're looking for a great investment opportunity or a cozy place to call home, this property is perfect for you.

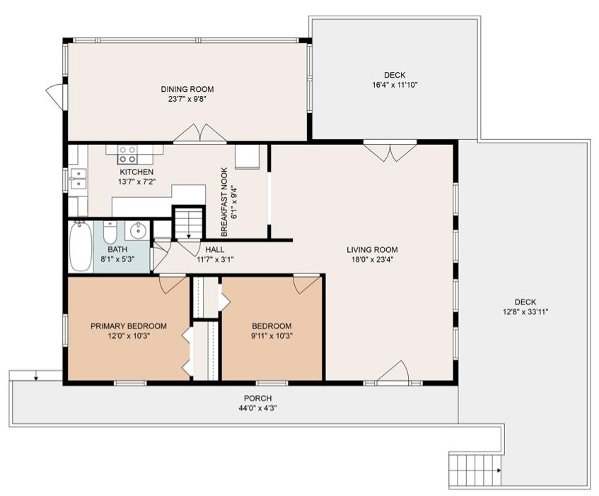
The main level of this home features a welcoming and open living space with plenty of natural light and picturesque views. With its hardwood floors and neutral color palette, the living space is both stylish and comfortable.

This home has two spacious bedrooms on the main level, each offering a peaceful retreat from the hustle and bustle of daily life. The rooms are bright and airy, with large windows that let in plenty of natural light and offer stunning views of the surrounding landscape.

MOUNTAIN RETREAT

Step outside onto the expansive covered deck and take in breathtaking mountain views. This outdoor space is perfect for relaxing and taking in the natural beauty that surrounds you. The deck is spacious and covered, providing shade on sunny days, and there's plenty of room for outdoor furniture and entertaining. The property also offers ample outdoor space for gardening or other activities, making it ideal for those who enjoy spending time outdoors.

BROKER ASHEVILLE Listings@BrokerAsheville.com 828.424.9745 Office 828.424.9868 Cell MOUNTAIN RETREAT FIRST FLOOR BASEMENT

Turn static files into dynamic content formats.

Create a flipbook
Issuu converts static files into: digital portfolios, online yearbooks, online catalogs, digital photo albums and more. Sign up and create your flipbook.