Residence Handbook 2023-24

Page 1

Residence Handbook 2023-2024

Student Wellness and Accessibility Centre (SWAC) offers a student-centred collaborative approach to care.

• Student Health Services

• Personal Counselling

• Student Accessibility Services

• The Wellness Hub (Peer to Peer Support)

Personal Counselling

To book an appointment (in person or online) please call 1-833-276-2533 (1-833-Brock33)

Students outside North America call 001-416-382-3257 (long distance charges may apply).

This line is available 24 hours a day 365 days a year.

Questions about Personal Counselling?

Call 905-688-5550 x6380

Wellness HUB

The Wellness HUB is a Peer support program that aims to create a safe, inviting space where students can discuss student-life concerns with a trained peer supporter who can listen, validate and refer. Located in the lower level of Market Hall.

Student Health Services

Feeling unwell?

Full service Medical Care available.

Phone: 905-688-5550 x3243

Email: referralstaff@brocku.ca

Student Accessibility Services

Is your academic functioning affected by a documented permanent disability or a diagnosed ongoing, cyclical mental health or medical condition?

For more information visit: brocku.ca/sas

Further Questions?

asksas@brocku.ca

905-688-5550, x3240

From Intention to Action (FITA)

Is your Mental health affecting your academics?

FITA is a structured program which involves 8 weeks of supportive counselling and learning strategies.

For more information: brocku.ca/health-wellness-accessibility/ personal-counselling-services/fita

For a full list of services and resources visit: brocku.ca/health-wellness-accessibility @brockSWAC

2 Residence Handbook 2023-2024
Download the My SSP app: Search Brock University Personal Counselling Program when creating your profile. Text or chat using the My SSP app any time, day or night.

Welcome Home Badgers!

Housing Services staff work hard to facilitate the successful “sleep, study and social life” for thousands of residence students. To do this, we balance residents’ needs to ensure that high quality of life and academic success are the goals we reach by the end of our students’ time here in residence. mountains

We acknowledge the land on which we gather is the traditional territory of the Haudenosaunee and Anishinaabe peoples, many of whom continue to live and work here today. This territory is covered by the Upper Canada Treaties and is within the land protected by the Dish with One Spoon Wampum agreement. Today this gathering place is home to many First Nations, Metis and Inuit peoples and acknowledging reminds us that our great standard of living is directly related to the resources and friendship of Indigenous people.

Residence Handbook 2023-2024 1
home

Lingo

BUSU

Brock University’s Student Union

CSS

Campus Safety Services

ESD

East Service Desk (Closest for Earp, Res 8 Quarry View and Gateway)

H/H/C/B

House, Hall, Court, Block (Depicting the communities within residence)

Keys

Your student ID card or a physical key depending on your living style

NSD

North Service Desk (Closest for DeCew, Vallee)

RCS

Residence Community Standards (Policies in place within residence that students must follow)

Semi-Suite Residence

Single bedroom sharing a bathroom with another Single/ Double room (Lowenberger, Vallee, Res 8 and Earp)

SSD

South Service Desk (Closest for Lowenberger and Village)

Swipe

Your student ID card that swipes into your building/ room through a magnetic strip (Earp only)

Tap

Your student ID card that taps into your building/ room through proxy

Townhouse Residence

Non-Traditional Residence where students live in a townhouse (Village & Quarry View)

Single/Double rooms sharing a common bathroom

a community (DeCew)

From time to time, edits and/or changes to this document are required throughout the year. The most up-to-date version of this document can be found online at brocku.ca/housing

Residence Handbook 2023-2024 3
Traditional Residence
within
Suite Residence Single rooms sharing
common bathrooms, kitchen and living room (Gateway)
two
Contents Welcome ...................................................................... 1 Health Guidelines 4 Resources .................................................................... 5 Important Dates .......................................................... 6 Tips for Move-in Day ................................................ 7 Move-in Day Schedule ............................................. 7 Where Do I Go? 8 What to Pack................................................................ 10 What Not to Pack ....................................................... 11 Contents Insurance .................................................... 11 Decorating Your Room .............................................. 12 Typical Room Layout 12 Welcome Weeks ........................................................ 12 Receiving Mail ............................................................. 13 Residence Service Desks ......................................... 14 Brock Dining Services ............................................... 15 Res Tech 16 Residence Basics ....................................................... 17 Residence Life Student Staff .................................. 18 Residence Community Standards ........................ 19 IR Notifications ........................................................... 19 Lounges 20 Quiet Hours ................................................................. 20 Guest Sign In ............................................................... 21 Maintenance Problems ..................................... 22-23 Lost Key(s) or student Card .................................... 24 Replacing Your Student Card 24 Smoking on Campus ................................................ 25 Fire Safety ............................................................. 25-31 Cleaning Standards ............................................ 32-35 Garbage and Recycling .......................................... 36 Heating and Cooling 37 Laundry Services .......................................................38 Getting Along with Roommates .......................... 39 Damage Charges and Billing ................................. 39 Winter Break .............................................................. 40 April Move Out 40 Early Withdrawal from Residence ....................... 40 Residence Agreement ........................................ 41-45 Residence Community Standards .................. 46-72

Health Guidelines

Housing Services continues to work with Brock University and local Public Health to monitor the public health landscape. We encourage all students to come prepared with masks, sanitizer, updated health records and ID in the event that we need to adapt to new guidelines.

Hygiene

Proper hygiene can help reduce the risk of infection or spreading infection to others.

Wash your hands often with soap and water for at least 20 seconds, especially after using the washroom and when preparing food. Use alcohol-based hand sanitizer if soap and water are not available.

When coughing or sneezing:

• Cough or sneeze into a tissue or the bend of your arm, not your hand

• Dispose of any tissues you have used as soon as possible in a lined waste basket and wash your hands afterwards

• Avoid touching your eyes, nose, or mouth with unwashed hands

hand-sparkles

Feeling Unwell?

If you are feeling unwell, please contact your Service Desk and/or Student Health Services.

High-touch surfaces include:

Toys

TV Remotes

Phones

Bedside Tables

Clean high-touch surfaces frequently with regular household cleaners or diluted bleach (1 part bleach to 9 parts water)

Door Handles

Toilet Electronics

4 Residence Handbook 2023-2024
head-side-cough robot tv-alt mobile-android bed-alt door-closed toilet laptop
Residence Handbook 2023-2024 5 Department Location Extension Email Hadiyaˀdagénhahs First Nations, Métis and Inuit Student Centre TH 145 5774 cbiancaniello@brocku.ca Brock Campus Store PLZ 200 5583 campusstore@brocku.ca Brock Card Office TH 221A 4770 brockcard@brocku.ca Brock Central ST 3rd Floor 3052 central@brocku.ca Brock International GLB 208 3163 international@brocku.ca Campus Safety - Emergency Kenmore Centre 3200 security@brocku.ca Campus Safety - Non-Emergency Kenmore Centre 4300 security@brocku.ca Faith and Life Center Alphies Trough 3134/3977 faithandlife@brocku.ca Human Rights and Equity MCE 205-215 3873/5454/6211 Information Technology Services PLZ 200/Computer Commons 4357/3778 Library ST 2nd Floor 4583 libhelp@brocku.ca Parking Services PLZ 200 4309 parking@brocku.ca Office of the Ombudsperson TH 252B 4195 ombuds@brocku.ca Personal Counselling Services ST 4th Floor 5442 counselling@brocku.ca Recreation Services Walker Complex 4060 recservices@brocku.ca Residence East Service Desk Residence 8 Lobby 3220 eastdesk@brocku.ca Residence North Service Desk DeCew Lobby by STWL 14 3706 northdesk@brocku.ca Residence South Service Desk Lowenberger Lobby 4311 southdesk@brocku.ca Sexual Violence Support MCE 215 4387 svsec@brocku.ca/ enyambiya@brocku.ca Student Accessibility Services ST 4th Floor 3240 asksas@brocku.ca Student Health Services Harrison Hall 3243 Student Justice Centre TH 253D rchoudhary2@brocku.ca Student Life MCA 204 6321 studentlife@brocku.ca Student Success Centre Market Hall 5774 nfinstad@brocku.ca Resources on Campus Niagara Regional Police 911 Distress Centre of Niagara 905-688-3711 Good to Talk 1-866-925-5454 Kids Help Line 1-800-668-6868 Personal Counselling 1-833-BROCK-33 Support Services for Students in Need 905-688-5550 + 1 + Download the Brock Safety App! Telehealth 1-866-797-0000 COAST 1-866-550-5205 press 1 St. Catharines Hospital 905-378-4647 Niagara Sexual Assault Centre 905-682-4584 Campus Pharmacy 905-688-8800

Important Dates

Sept. 2, 3 Residence move in

Sept. 4 Labour Day – Residences Open, University closed

Sept. 6 First Day of Fall/Winter classes

Sept. 8

Deadline for reporting discrepancies with Unit/Room Inventory and Condition Reports to NSD, ESD or SSD by 4:30 p.m.

Sept. 25 - 29 1st round of Traditional Room and Townhouse Unit Inspections

Oct. 2 - 6 1st round of Semi-Suite Room Inspections

Oct. 9 - 13 Fall reading week - Residences open, University open

Nov. 27 - Dec. 1 2nd round of Townhouse Unit Inspections

Dec. 5 Last day of lectures for Fall Term, duration two courses

Dec. 8 - 20

Exam period. Residence students MUST leave residence no later than 12 noon the day following their last exam.

Dec. 21 @ Noon Residences close for winter break

Dec. 21 - Jan 7

Residences closed for winter break. Winter break inspections (no secondary or formal inspection sheet).

Jan. 7 @ Noon Residences re-open for the winter term

Jan. 8

Mid - January

First day of winter term for Undergraduate programs

Deadline to apply to be a Don for 2024-25

Feb. 5 - 9 2nd round of Traditional Room and 3rd round of Townhouse Unit Inspections

Feb. 12 - 16 2nd round of Semi-Suite Room Inspections

Feb. 19 Family Day - Residences open, University closed

Feb. 19 - 23

Winter reading week - Residences open, no classes will be held in Undergraduate programs, University open

Mar. 25 - 28 3rd round of Traditional Room and 4th round of Townhouse Unit Inspections

Apr. 1 - 5 3rd round of Semi-Suite Room Inspections

Apr. 8

Apr. 10 - 24

End of June

Last day of Fall/Winter sessions for duration one and three classes

Final Exam Period. Residence students MUST leave residence no later than 12 noon the day following their last exam.

If damages are found following move-out, billing will be processed through your student account and email notification will be sent to your Brock email account with charges.

6 Residence Handbook 2023-2024

Tips for Move-in Day Move-in Day Schedule

• Check your Brock e-mail account for information and bring your move-in day parking permit (will be e-mailed late in the week prior to move-in).

• Check-in takes place in one hour time slots to allow for physical distancing and manage traffic.

• Only one vehicle per student is permitted. If you need to bring two, we ask that you unload one vehicle with the items and park the second in long term parking for the day upon arrival.

• There will be a limit of 2 helpers per student to assist you in moving in your items on move-in day.

• Please have your Government issued ID in hand. We will use your ID to validate the information on your student card and residence move in envelope. Should no errors be present, you will receive your Brock Card. If you have not yet uploaded your photo through the online student card submission process, please do so at this time (idphoto.brocku.ca). Your Service Desk will contact you when your Brock Card is ready for pick up. Visit our website at brocku.ca/housing to print move-in day maps and instructions for easy reference.

• Ensure all your items are securely packed (preferably in boxes) with your name, as well as your building and room number/letter (eg. John Smith LOW 232-B)

• Please do not pack your items in garbage bags –they could get mistaken for actual garbage!

• Please do not bring family pets. Pets are not allowed to enter residence buildings.

• Welcome week events will be occurring throughout week, follow @BrockHousing for more information.

• Ensure that individuals coming along with you [max of 2] to St. Catharines that are planning to stay overnight, book accommodations early! There are no guests allowed in residence during Welcome Week.

To manage large volume of traffic and crowding in unloading areas of residence, we have assigned move-in times based on locations of residence rooms.

Ex: VAL 504 move-in time 9 a.m. - 10 a.m.;

VAL 505 move-in time 1 p.m. - 2 p.m.

Please refer to the to the email sent to your Brock email for your designated move-in time!

For those who wish to arrive later than their assigned move-in day/time are to email housing@brocku.ca to schedule a new time to ensure capacity is managed. No early arrivals are permitted.

For more information on Move in Day, please visit: brocku.ca/housing/move-in-day

Residence Handbook 2023-2024 7

Where Do I Go?

1. When you arrive on campus, look for a colour coded sign with your residence name on it at one of the two entrances to campus.

2. Follow signs through the internal Brock roads to the closest unloading zone to your residence.

3. While unloading, have your printed parking permit visible on the dash of your car. NOTE: The driver must remain with the vehicle at all times.

4. While the driver is with the vehicle, you and your ID will go to the designated registration table to be given your keys for the year! You will sign that you have received the correct keys for your room, and you will also sign the Residence Agreement. If you were under 18 when you applied to residence, you will need a guardian’s signature so bring them to the table with you.

5. Take your keys and head on over to your room/unit.

6. After the car is fully unloaded, the driver has to move the car to the LONG TERM PARKING LOT. There will be several signs around campus.

TIP: As long as your room is attended, you may want to leave your door open so that you can meet your floor or house mates! Make sure you do not leave your door propped unless you are present in your room, as that is a safety and fire hazard!

South Side (Lowenberger & Village)

Enter campus through the Sir Isaac Brock Way entrance. Vehicles will be directed toward residence & unloading zones based on room assignments. After unloading, you will immediately move your vehicle to Long Term Parking (Zone 3, Lots T & V).

North Side (DeCew, Vallee, Earp, Res 8)

Enter campus through the Glenridge entrance. Vehicles will be directed off the first exit for DeCew & Vallee and the second exit for Res 8 & Earp. You will be directed to the appropriate unloading zones based on room assignments. After unloading, you will immediately move your vehicle to Long Term Parking (Zone 1).

Quarry View

Turn onto John Macdonell St. from either entrance. Unloading zones will be available surrounding the building. After unloading, you will immediately move your vehicle to Long Term Parking across the street (Lot EA).

Registration Village - Kenmore Building

Lowenberger - Front entrance

DeCew - Dining Hall Patio

Vallee - Parking lot K

Earp - Earp Lobby

Quarry View - Front Parking Lot by mailboxes

Res 8 - Res 8 Lobby

8 Residence Handbook 2023-2024
Residence Handbook 2023-2024 9 Lot G Lot Q Lot K Lot H Lot D Visitor Parking Lot P Lot 3A Lot East Academic Lot Glenridge Lot CUB Lot Concordia Lot B1 Lot 1 Lot E Visitor Parking Lot 3B Lot 2A Lot 4B Lot A Lot B2 Canada Games Park Parking Lot 4A Lot O Lot R Lot G Lot J Lot Quarry View Lot C Lot F Lot Q1 Visitor Parking Visitor Parking Lot 2B Visitor Parking Alumni Field Tennis Courts C.A.T.I. Ropes Course Playing Field #2 Soccer Playing Field #1 Soccer Canada Games Park Track Rankin Family Pavilion Thistle Complex Schmon Tower Scotiabank Hall Robert S.K. Welch Hall South Block Walker Sports Complex Gordon & Betty Vallee Residence DeCew Residence Roy And Lois Cairns Health & Biosciences Complex Plaza Building Alphie’s Trough Student & Alumni Centre Goodman School of Business Harrison Hall Kenmore Centre Rosalind Blauer Centre For Child Care Lowenberger Residence Village Residence Central Utilities Building Concordia Lutheran Seminary Ian D. Beddis Gymnasium Walker Sports and Abilities Centre Residence 8 Heritage Place Plaza McDonald’s Tim Hortons East Academic 573 Glenridge Ave International Centre Quarry View Residence Brock Suites Residence Alan Earp Residence Sir Isaac Brock statue Theal House Mackenzie Chown Complex Court 7 Court 8 Court 9 Court 4 Court 10 Court 11 Court 3 Court 2 Court 1 Court 12 Court 5 Court 6 Glenridge Ave Glenridge Ave Merrittville Hwy IsaacSir Brock Way SchmonParkway Rd.Village University Rd. West University Rd. East Isaac Brock Blvd. North Isaac Brock Blvd. South Residence Rd. Flora Egeter Way N HWY 406 PEN CENTRE DOWNTOWN ST.CATHARINES SIR ISAAC BROCK WAY BLVD. ENTRANCE Niagara Escarpment GLENRIDGE ENTRANCE Registration Locations

What to Pack

What’s in my Room?

Room inventory and Condition Report

Bed, mattress & zippered mattress protector (twin size)

Dresser & closet space or wardrobe

Desk & Chair

Small garbage can & recycling bin

Book Shelf

Window coverings/blinds

Wifi

What’s in my Bathroom?

Room Inventory and Condition Report

Small garbage can

Shower Curtain

Plunger

Cabinet/storage

DeCew is the ONLY residence that is provided with toilet paper

**Upon checking in, you will find yellow carbon copies of your unit, room, and washroom inventory and condition report. You should review these carefully, as the information will be used to assess damage and missing items upon your move-out, for which you could be financially responsible. Any discrepancies you find must be reported to your Service Desk (preferably by email) before 4:30 p.m. on Fri, Sept 8th. Ensure you check it and hand in the bottom for a chance to win $50 in Flex Dollars

Some Ideas of What to Bring

• Personal ID items

• School supplies

• Desk lamp

• Laptop/computer and accessories (printers must connect via cable or bluetooth)

• CSA approved surge protected power bar

• Bed linens, pillows, and comforter (you can order online at residencelinens.com)

• Clothes hangers

• Laundry bag/bin, detergent, and dryer sheets

• Towels and facecloths

• Personal toiletries (soap, toothpaste, shampoo, bandaids, hand sanitizer, etc.)

• Reusable mugs/cups, plates, bowls, and utensils

• Cleaning supplies (bedroom/bathroom/kitchen as needed by your style of residence)

• Small fan (without a heater function)

• Maximum 5 cubic feet fridge with NO separate exterior freezer compartment. Purchase your own or they are available to rent through coldexrents. com. General Health Related recommendations:

As we continue to navigate a changing Public Health environment, we recommend that you come prepared with the following items;

• Personal protective equipment (face masks, hand soap/sanitizer, gloves)

• Thermometer

• Disinfectant supplies

• Personal documents (health card, photo ID, etc.)

For a complete list of approved/accepted items we suggest, please visit: brocku.ca/housing/move-in-day

10 Residence Handbook 2023-2024

What NOT to Pack

For your safety and comfort, please do not bring the following to residence:

• Mattresses (these are already provided)

• Candles, incense, or wax/oil lamps (including the plug-in kind)

• Pets (not even as visitors!)

• Certain appliances, see brocku.ca/housing/ important-information/allowable-appliances

• Space heaters (including fans that have a heating function)

• Beer, ciders, and any similar beverage in any type of glass bottle (cans only!)

• Large volume alcohol containers (Kegs, “bubbas”, 60 oz. Texas mickeys, etc - see the RCS for details), or alcohol-related paraphernalia (i.e. funnels, beer pong tables).

• Ashtrays (all residences are non-smoking)

• Room alteration or repair materials (paint, nails, window treatments, wallpaper, putty, etc.)

• The university will provide double sided sticky tabs to all residence students at no cost. The use of any other adhesive material on residence walls/property (i.e. scotch tape, sticky tack, duct tape, etc.) is prohibited and may result in damage charges.

• Firearms, knives, ammunition items intended to resemble firearms, simulated weapons, fireworks, or other explosive/ flammable devices and any other weapon or item that is created/intended/used to cause harm or could be seen as intimidating.

• Anything of an illegal nature (illegal prescription, and/or non-prescription drugs for recreational purposes and/or drug paraphernalia, underage cannabis possession etc.)

• Sub woofers and amps are not permitted due to noise restrictions.

• Items/furniture not listed on the “Allowable Furnishings” page, see brocku.ca/housing/ important-information/allowable-furnishing

Note: Prohibited items will be confiscated and/ or you will be asked to have them returned home.

Contents Insurance

It is important to know that you are responsible for insuring your own belongings. Brock University is NOT responsible or liable (directly or indirectly) for your belongings should they become damaged or if they are stolen. Content insurance is insurance that pays for damage to, or loss of, an individual’s possessions while they are located within that individual’s home.

As per the Residence Agreement, students are required to have contents insurance. In August students will be billed $80 +HST ($90.40) for insurance for the year. Students who have their own insurance may opt out of this insurance plan by completing an online form indicating their policy information (by Sept. 15th) and the fee will be removed from their account, otherwise students will be enrolled in the insurance program facilitated by Marsh Insurance for Brock. More information on the plan can be found at brocku.ca/housing/ important-information/rules-and-regulations/ insurance.

Residence Handbook 2023-2024 11

Decorating Your Room

Housing Services reserves the right to remove objectionable/inappropriate materials/writing even if in an approved area. Below is a guideline of what is and is not allowed in residence. Please note posters and pictures are all acceptable as long as they do not violate the Residence Community Standards and are put up with the double-sided sticky pads that are provided to students. Just remember these rules:

• Only decorate within your bedroom.

• All items must be hung with the sticky pads provided to you in your move-in envelope. If you run out, stop by the Service Desk to pick up more.

• Do not alter any part of your residence by drilling holes, or nailing/thumb tacking any items to your walls or furniture.

• Decorations cannot be placed over light fixtures or lamps, on or over fire safety equipment (conduits running on wall/ceiling), near stoves or over heating, ventilation, and air conditioning vents.

• Two house plants are permitted per resident as long as they are maintained. Plants must be smaller than 18” in height and no cannabis plants are allowed. Only artificial Christmas trees are permitted in residence. Dried leaves, branches, straw, corn husks etc. are also not permitted in residence.

• Students are not permitted to install their own additional fixtures (lights, ceiling fans, air conditioners, satellite dishes, antennas, etc) or substitute Brock University’s with their own.

• Writing, chalking, drawing, or marking on any surface other than white boards, chalkboards, room mirrors or inside windows, and student room message boards is not permitted and is considered vandalism. Any costs to remove these products from the inappropriate surfaces will be billed back to the student/unit occupants as outlined in the damages section.

• Students are not permitted to paint or wallpaper anywhere within residence.

• Decorative strings of lights/LED light strips are allowed but must be hung using Brock provided

stickies, may only be on when the student is present and in a way that does not violate any other sections of the RCS.

• Decorations should not impede the function of the door or cover the glass.

• Due to fire regulations, students are only permitted to have a ‘door tag’ (usually provided by the Residence Life Staff) and a wipeable memo board on their bedroom doors. Any other door decorating is not permitted as per the St. Catharines Fire Department.

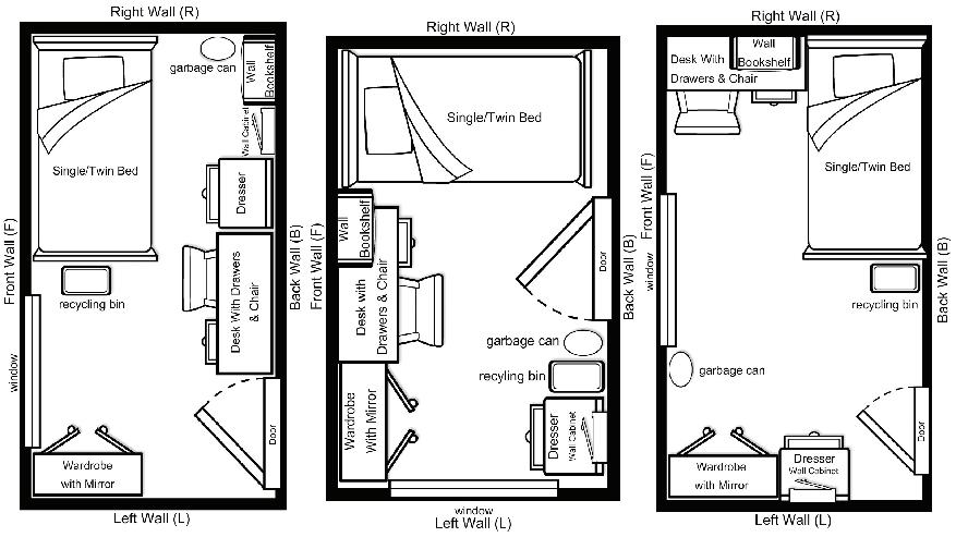
Typical Room Layout

Typical single

These layouts can be found online under each building page at: brocku.ca/housing/ buildings-and-amenities/residences

Typical single rooms

Welcome Weeks

Brock University Students’ Union (BUSU), along with partnering departments on the Welcome Week Planning Committee, work hard to organize and plan an exciting, unique, and welcoming week for each year that creates memories to last a lifetime! Take full advantage of this experience by meeting other students, exploring the campus, and attending all posted Welcome Week events. Check out the Brock University Welcome Week website to find out about all events and services provided during Welcome Week.

NOTE: As per guest policy there are no guests allowed during Welcome Week.

12 Residence Handbook 2023-2024
All doors and drawers should open fully, without hitting anything. All furniture should be reasonably accessible. The bed platform must be put back to its correct height. There are two black lines on the foot board; place the bed platform between these lines. Light switches and blind cords must not be blocked by furniture. All ports and outlets should be reasonably accessible. Vents and grills must not be blocked/covered for proper heat/air flow. The telephone and cord must be able to reach the desk. The furniture must not be placed in a way that blocks access to the window. All furniture must be placed back in its original location. Before checking out of residence these diagrams and bullet points MUST be followed as closely as possible. Failure to follow the points and diagrams may result in financial consequences upon departure, regardless of how the room was arranged upon arrival or during your stay. For more information please see the End of Term Noticed.
Vallee Residence
rooms All doors and All furniture The bed platform There are two platform between Light switches All ports and Vents and The telephone The furniture window. All furniture Before checking out of residence these diagrams and bullet points MUST be followed as closely as possible. Failure to follow the points and diagrams may result in financial consequences upon departure, regardless of how the room was arranged upon arrival or during your stay. For more information please see the End of Term Noticed.
Village Residence

Receiving Mail in Residence

What is my mailing address while living in residence?

How to write your address:

Student Name

Residence Building Name

Unit or Room # and Letter

Brock University

1812 Sir Isaac Brock Way

St. Catharines, ON L2S 3A1

Village Example: Jane Doe

Village Unit 214, Room D

Brock University

1812 Sir Isaac Brock Way

St. Catharines, ON L2S 3A1

Semi-Suite/Traditional Example: John Smith

DeCew Room 232-C

Brock University

1812 Sir Isaac Brock Way

St. Catharines, ON L2S 3A1

What if I live in Quarry View?

Your mailing address is different compared to the other residences. Please use the following template for your mailing address:

Student Name

Quarry View Unit # and Room Letter

51 John Macdonell Street

St. Catharines, ON L2T 4E4

Collection Notice:

Brock University protects your privacy and your Personal Information. The Personal Information requested at the Residence Desk mail lockers are collected under the authority of The Brock University Act, 1964, section 3, and in accordance with the Freedom of Information and Protection of Privacy Act (“FIPPA”). Your information (email address, phone#, optionally your name) will be used by a third party to aid in the delivery of parcels to you. If you do not want to receive parcels from the lockers, notify the contact below by the 1st day of classes. If you have any questions, please contact the Housing Facilities Supervisor, Administration at Brock University at (905) 688-5550, x5055 or see www.brocku.ca/housing

OUR PRIVACY COMMITMENT TO YOU: Residence respects your privacy and the confidentiality of your personal information.

Where do I pick up my mail?

Lowenberger & Village mailboxes: Lowenberger - Main Lobby

DeCew & Vallee package lockers: North Service Desk - DeCew STWL 14

Res 8, Earp & Quarry View package lockers: East Service Desk - Res 8 Lobby

Quarry View mailboxes: Receives mail & packages through Post Canada, and superboxes are located directly in front of Quarry View.

How do I know my package has

arrived?

If you receive a package on campus, the package will first be received by the university centrally and then received at the Residence Service Desks (excluding Quarry View). When your package is ready to be picked up, the Service Desk will email you a notification and instructions on how and what you will need to pick up your package. Even if you receive a shipping notification, please wait until the Service Desk contacts you.

Lowenberger & Village: South Service Desk

DeCew & Vallee: North Service Desk

Earp & Res 8: East Service Desk

Quarry View: If your package is too large to fit in the package box in the Super mailbox, you will have to go off campus to a Canada Post to pick up your package. Alternatively, if you address your package with your name and only the East Service Desk at 1812 Sir Isaac Brock Way, your package will be delivered on campus. When your package is ready to be picked up, you will receive an email notification to pick up your package.

We undertake to keep it secure and only use it for the purposes of providing you with services and supports or as permitted by law.

HOW YOUR INFORMATION IS SHARED: In some cases, we may need to share information in order to provide you with optimal residence services. Specifically:

Within Residence: We will only share your personal information with Residence staff who are involved in providing services to you and only if the they need the information to do their job. At Brock: If staff outside of the Residence need information about you to facilitate programs or services, then Residence will share the specific information needed to enable this.

Outside of Brock: If we need to exchange information about you with anyone outside of Brock University (e.g. parcel delivery service provider), Residence will endeavor to provide notification.

Residence Handbook 2023-2024 13

Residence Service Desks

East Service Desk: x3220

(Serves Earp, Res 8 and Quarry View residents)

Located in the lobby of Res 8

North Service Desk: x3706

(Serves DeCew & Vallee residents)

Located at Stairwell 14 in DeCew Residence

South Service Desk: x4311

(Serves Lowenberger and Village residents)

Located in the lobby of Lowenberger Residence

Open 24 hours a day/7 days a week, the Service Desks are here to help. The Service Desk Staff will be able to answer your questions or will point you in the right direction. They also provide the necessary follow-up, including the dispatch of on-duty residence staff to handle concerns.

The Service Desks are responsible for providing administrative services which include:

• Providing keys & swipes for lockouts

• Calls for assistance from Residence Life Staff

• Calls for emergency assistance when needed (Ambulance, Fire, and Police)

• Answering questions for residents and guests

• Taking maintenance requests

• Signing guests in

• Sorting mail and packages

The Service Desks are the first response for most concerns and questions within our residences. If you have a question or concern of a sensitive nature, please note that the Service Desks provide confidential assistance and cannot give out any student information (phone numbers, room numbers, etc.) to ANYONE. This includes friends, parents and other departments in the University.

How to Report a Maintenance Issue

When maintenance is requested, you are authorizing a Brock University staff member or authorized contractor to enter your room/unit without further notification being given.

To report a maintenance concern you should contact the appropriate Service Desk in one of three ways; In Person:

Village & Lowenberger: Go to the SSD located in the main lobby of Lowenberger Residence

DeCew & Vallee: Go to the NSD located at Stairwell 14 in DeCew Residence

Earp, Quarry View & Res 8: Go to the ESD located in the lobby of Res 8

By Phone:

Village & Lowenberger: Call 905-688-5550 x4311 from your phone

DeCew & Vallee: Call 905-688-5550 x3706 from your phone

Earp, Quarry View & Res 8: Call 905-688-5550 x3220 from your phone

By Email: Village & Lowenberger: Email southdesk@brocku.ca

DeCew & Vallee: Email northdesk@brocku.ca

Earp, Quarry View & Res 8: Email eastdesk@brocku.ca

The most efficient way to report maintenance is either by phone or in person.

• Don’t wait to report maintenance issues. Report them as soon as they occur, as most repairs are made during normal business hours (M-F 8:30 a.m.-4 p.m.).

• Please be aware that problems are prioritized, and are usually responded to within three to five business days and students are emailed a confirmation of the report.

• Any Internet, cable, or phone problems should be reported directly to Information Technology Services at x4357 or via email to helpdesk@brocku.ca.

• The ITS Help Desk is located within the Campus Bookstore and the Computer Commons.

• Whenever Brock University staff enter a room or unit, if they find a violation of the RCS they must document it.

14 Residence Handbook 2023-2024
comments Reach us through our Live Chat

Brock Dining Services

All students living in residence are required to have an All-Access meal plan. Traditional, Semi-Suite and Townhouse residence students have two AllAccess meal plan options to choose from. Your meal plan selection for traditional, semi-suite and townhouse residence students is completed through the residence application process, with the 7 Day All-Access meal plan being the default. Students wishing to change their meal plan by way of up or downgrading, you may do so before September 15th. After this date only upgrades will be permitted. All changes must be completed by emailing the Brock Card office at brockcard@brocku.ca. Email subject line: Meal Plan Upgrade or Downgrade, with the body of the email including Student ID#, full correct spelling of first and last name; followed by: please upgrade or downgrade my meal plan to the X Day All-Access meal plan.

All-Access Portion of the Meal Plan

The All-Access portion of a 7 Day All-Access meal plan provides unlimited daily access to both the Fresh Food Company DeCew and Lowenberger dining halls, with no restrictions from Move-in day to Move-out day in April; noting that a 5 Day All-Access plan is only valid Monday to Friday. The All-Access portion of the meal plan will expire 24 hours after your residence move out date in April.

Dining Dollars

Your dining dollars are an extension of your All-Access meal plan, available for use at all Brock Dining Services locations only, including both the Fresh Food Company DeCew and Lowenberger dining halls, The Guernsey Market, Starbucks-Market location, Hungry Badger (Pita Pit, Pizza Pizza and Tim Hortons) and Tim Hortons Schmon Tower. Unable to use all your money by the end of the academic term? You will be able to carry over any unused dining dollars to the next academic year!

Flex Dollars

Your flex dollars (not tax exempt) are exactly as they sound, flexible to be spent at most on-campus eateries, laundry facilities, beverage and snack machines, the Campus Store and more (brocku.ca/ dining-services/flex-dollars). Your balance decreases after each purchase.

Please note: Your All-Access dining dollars will carry over into a taxable plan that can be used at any Dining Services location on campus. Should you leave Brock, any unused dining dollars are nonrefundable and non-transferable.

Capital Improvement Fund

CI fund consists of a fixed cost based on All-Access meal plan size, which is allocated to a capital improvement fund to help maintain and renovate residence infrastructure and to help with operating costs in the dining halls across campus. This is a non-refundable cost and is automatically deducted at the beginning of the academic year.

Dining Services Information

(including Hours of Operations): brocku.ca/dining-services

Meal plan inquiries: brocku.ca/dining-services/meal-plan-information

Brock Card inquiries: brocku.ca/dining-services/about-brock-card

Dining Hall Walking Map

See Appendix D

If you have any food allergies or concerns, please contact:

On-Site Registered Dietitian:

Rebecca Delduco: delduco-rebecca@aramark.ca

Your Dining Hall Manager at:

Fresh Food Company DeCew Dining Hall x4532

Fresh Food Company Lowenberger Dining Hall x3348

Dining Service Locations:

Fresh Food Company DeCew and Lowenberger Dining Halls, Guernsey

Market, Starbucks - Guernsey Market, the Hungry Badger (Pita Pit, Pizza Pizza and Tim Hortons) and Tim Hortons Schmon Tower.

Residence Handbook 2023-2024 15

Res Tech

Information Technology Services (ITS) provides Internet throughout Brock campus, including residence. To access this Internet, simply connect to Brock Wifi or Eduroam and open up your internet browser. This should automatically re-direct you to a page, which asks for your login and password, which will be the same as your portal login. Any changes to your password will require a reconnection to the wi-fi system.

All residences are completely wireless. If you need instructions or assistance connecting your computer to the wireless system, please go to brocku.ca/wireless

Students are also able to connect gaming consoles and other peripherals to the wireless network. To do so, go to the IT website and refer to the Gaming section to set up your device.

Please visit brocku.ca/information-technology/ service-catalogue/residence-technology/resiotsetup for step by step instructions on how to connect to the wireless system with your gaming consoles and other devices.

Printers

Only printers that have bluetooth or USB cable connections will function in residence

Email Set Up

Information regarding student e-mail can be found online at: brocku.ca/information-technology/info/ accounts-and-passwords/email

Common Area Phones

Telephones are available for student use in traditional and semi-suite residence lounges and townhouse living rooms. The phones can be used for on campus or local calling. You must dial “9” when making a local call. Long distance calls cannot be made from these telephones. If you dial “0” on the common area phones in residence you will be connected to your Service Desk.

Cable TV in Residence

Cable TV is provided in all traditional and semi-suite residence lounges and townhouse living rooms (Village and Quarry View). There is no cable in

residence bedrooms. Flat screen TVs are provided in the traditional and semi-suite style residence lounges. For those in Village and Quarry View Residence who would like to bring their own TV, please note that Brock is supporting standard CATV frequencies. This means that when you are setting up your TV, you will need to set the input to Cable TV.

For the full listing of channels available visit: brocku.ca/information-technology/ service-catalogue/residence-technology/ cable-tv-channels

Need help with wireless or other IT issues?

Contact the Computer Commons ITS HelpDesk at x4375 OR submit an IT ticket at brocku.ca/ information-technology/helpdesk

Just a reminder: Abuse of any of the services provided by Information Technology Services will not be tolerated, these include:

Harassment and/or sexual harassment via phone or e-mail OR Attempting to by-pass long distance restrictions or toll fraud

Failure to comply will result in services being disconnected. Re-instatement of services will be at the student’s expense.

16 Residence Handbook 2023-2024

Residence Basics

What is an H/H/C/B?

Here at Brock we divide our residences up in a variety of ways. DeCew residence is divided into “Houses”, while Lowenberger, Vallee. Res 8 and Earp into “Halls”, Village into “Courts” and Quarry View into “Blocks”. They are commonly referred to as “HHCBs”.

There are some fantastic opportunities to get involved in residence life. Throughout the year there are many activities and events to participate in as well as the opportunity to participate in educational programming. Brock also has a strong commitment to student services, ensuring that our students have the highest quality experience both in and out of the classroom. Our residences are a community based on respect.

Get Involved!

Your residence and university experience will be what you make of it. Within residence & campus, various student groups, clubs & committees, and volunteer opportunities exist to provide ways for students to get involved as much as or as little as desired. In addition, Brock community, the Residence Life Staff and Residence Action Council provide events and activities all year long.

To learn more, visit: Residence: brocku.ca/housing/getting-involved Campus: experience.brocku.ca

Instagram: @BrockHousing

Residence Life Management Team (RLMT)

The Residence Life Management Team are a group of professionals who oversee the Residence Life Staff Team. They ensure that all residence policies are upheld and ensure the safety of all students and staff in residence.

Residence Admissions/Administrative Team

The Residence Admissions/Administrative Team are a group of professionals who assist in the daily functions throughout residence. The team also deals with residence applications, placements, room switches etc. They assist Residence Life, Facilities, and the Service Desk in administrative roles.

Residence Facilities Team

The Residence Facilities team oversees the Service Desks, inspections, maintenance as well as longterm capital projects and construction in residence. They work to ensure that the buildings and residence facilities are maintained and at a high standard of care and cleanliness.

Residence Action Council (RAC)

RAC is a volunteer student group representing the students in residence; responsible for social, and charitable programming. They provide a voice for the students in residence; liaising with Dining Services and Housing Services to improve facilities and services. To get involved or should you have any inquiries, talk to your RAC representative or Don. brocku.ca/housing/residence-life/rac

Custodial and Facilities Staff

Brock University is pleased to employ its own Brock trades and custodial staff team to clean public areas and maintain the residences. The university custodial staff work during the daytime hours, with a reduced workforce on evenings and weekends, and assist in maintaining a clean and pleasant living environment.

Residence Handbook 2023-2024 17

Residence Life Staff (RLS)

The team in Housing Services endeavors to enrich students’ university experience through the provision of innovative programs and student-centered services in a safe, supportive living environment that embraces diversity, fosters mutual respect, promotes accountability and encourages good citizenship.

Head Residents (HRs)

Each residence building has a Head Resident who monitors residence life within his/her respective building. Head Residents are the leaders of the Residence Life staff team in their building. They assist in some administrative decisions and in residence disciplinary matters.

Residence Dons

There is at least one Don for each house, hall, court, and block (HHCB). Dons assist and refer their students to campus departments and community services when needed, and work closely with the Head Residents to maintain a positive sense of community within Residence. Dons are here to provide students with one on one mentoring if they are having difficulty, roommate or residence community challenges and mental health support. You can contact your Don when you need help with anything from school, to roommate issues, to finding your way around the city!

Dons of Activities (DAs)

Dons of Activities are placed across the residence community. They have general RLS responsibilities, but are dedicated to running energetic social programs in residence.

Residence Education Dons (REDs)

Residence Education Dons are responsible for implemented and facilitating the residence curriculum which focuses on developing students in the areas of independence, resilience and emotional intelligence.

Peer Mentors

Each Living Learning Community (LLC) has a dedicated upper year Peer Mentor who will plan events and provide support to the participants based on the theme of the LLC to ensure a strong and exciting community is maintained all year.  A Living Learning Community (LLC) is a group of students who live together and share similar interests (such as an academic subject or non-academic area of interest) programming and support from various areas within the institution.

Residence Life Coordinators (RLCs)

The RLCs are the full time professional staff who oversee the residences and the Residence Life Staff. They support and supervise the RLS, respond to emergency situations and assist in educating residents.

Transition and Support Coordinators (TSCs)

The TSCs are full time professional staff who provide mental health and wellness support to residence students. They support students in developing transition plans, connecting with campus and community resources and provide ongoing mental health and wellness education to residence students.

18 Residence Handbook 2023-2024

Residence Community Standards (RCS)

The residence community is a unique environment in which we aim to balance residents’ needs as well as their academic successes during the students’ time in residence. For this purpose, Brock University’s Housing Services has created a document entitled Residence Community Standards (RCS) which defines unacceptable behaviour, outlines the levels and types of infractions, and describes in detail both the manner in which infractions are enforced and the kinds of sanctions applied. Residents are expected to read, understand and abide by the information contained in this document. You electronically agree to this document when submitting your residence application, and also will sign an agreement upon check-in to residence. So, it is a good idea to have a look at this document prior to your arrival!

The goals of the Community Standards are as follows:

1) To provide students with clear information about what is expected of them while living in residence.

2) To provide Housing Services and Residence Life Staff with a resource that specifically outlines the course of disciplinary action for any unacceptable behavior.

3) To illustrate to students the importance of cooperation while living in the residence community.

The RCS can be found at the back of this handbook and online at: brocku.ca/housing/importantinformation/community-standards

IR Notifications

IR stands for “Incident Report,” which is written to document an infraction of the Residence Community Standards. Our approach to managing unacceptable behaviour in residence at Brock is a educational, systematic, progressive (i.e. consequences become more severe for repeated or more serious misconduct) process. We aim to educate students on the outcomes and consequences of their choices and set them up for success in the future. We also recognize that intent, impact, and extenuating circumstances may be contributing factors in some situations. As such, some types of behaviour may fall within more than one level. Students are assigned disciplinary points based on each infraction as a way to track the frequency and severity of infractions. Points accumulate over the year and stay on your residence record until the end of the academic year.

Level One Infractions: (1-2 points)

Behaviour by an individual(s) that interferes with the rights of another individual(s) to the peaceful use and enjoyment of his or her space in residence.

Level Two Infractions: (2-3 points)

Behaviour by an individual(s) that creates a significant nuisance and/or disturbance to an individual(s) or community.

Level Three Infractions: (3-4 points)

Behaviour by an individual(s) which: endangers the safety and security of themselves or another individual(s); and/or compromises personal or university property; and/or attacks the dignity/ integrity of an individual(s); and/or breaks the laws of the land.

Residence Handbook 2023-2024 19

Residence Lounges Quiet Hours

The availability of these lounges will be dependent on the guidelines set out by public health and Brock and may change throughout the year. Changes in use and availability will be communicated.

All residents at Brock will have access to a lounge space in their unit or building. There are some common lounges located around campus for the use of all current residence students. Please make use of these lounges as extensions to your living space, using them to study, relax, meet with friends etc.

Traditional & Semi-Suite Residence Lounges

These residents have access to a lounge or common area that will include a kettle, microwave, common telephone for on campus and local calls and cable TV that they are free to use responsibly.

Lowenberger 134

Available for use by residence students at Brock. Offers access to a microwave, large screen TV (with DVD/bluray and VCR), whiteboards, and some couches and tables. L134 is a convenient place to relax or study while doing laundry!

Other Lounges

There are additional lounges in residences: Allanburg/Merrit, Lounge (DeCew), Vallee 500, Res 8 and Fireplace Lounge (Earp). These rooms can be used by students for specific purposes (ie. as a study/ group project room) To inquire about these lounges please contact your Service Desk.

Responsible use of Lounges

As lounges are common spaces for all students, we ask that students be respectful and clean up after themselves and not to cause damage to lounges. In the event of issues or excessive damage, a lounge will be put out of use for students.

Sunday to Thursday 11:00 p.m. to 8:00 a.m.

Friday and Saturday 1:00 a.m. (Sat/Sun) to 8:00 a.m.

Extended quiet hours are implemented during December and April exam periods. Starting on the last day of classes, quiet hours are extended to 22 hours daily with only two hours for less quiet activities—Sunday through Friday 7-9 p.m. and Saturday 9-11 p.m.. During these two hours noise should not be excessive.

If you are concerned about noise within the quiet hours, please call your Service Desk [ x3706 (North), x4311 (South) or x3220 (East) ] to report a noise complaint.

Respect Hours are in effect 24 hours a day, 7 days a week.

The right to a quiet living/learning environment supersedes your right to make noise.

20 Residence Handbook 2023-2024
info-circle

Guest Sign In

Who Qualifies as a “Guest”?

Any non-resident of Brock University residences. Students must accompany any visitors (guests and/ or fellow residents from other areas) at all times. Students may only have guests for six nights per month. No more than two guests on any occasion (i.e. do not invite groups of more than two friends to visit you in residence at any one time). Guests may not visit for more than three nights in a row. In the event of an extenuating circumstance, students may ask for permission from the Residence Life Coordinator to have a guest for more nights than indicated above. Students must be considerate of other students who share their living space while having guests and let their roommate/unit mates know when they will be hosting a guest. Guests must sleep in their hosts assigned living space and not in lounges or other common spaces. Students CANNOT give keys/card to guests.

For Guest Sign In Process

Submitting Your Overnight Guest Request

• Using a laptop or desktop computer, go to my.brocku.ca. (It is essential that your browser is set to enable pop-ups/cookies).

• Login using your Brock username and password.

• Click the “Applicant and Student Self Serve” tab.

• Click “Apply for Residence” at the bottom right of the page.

• Select “Overnight Guest Request.”

Please email eastdesk@brocku.ca for assistance with your overnight guest request.

• As soon as your guest arrives, please bring the guest to your Service Desk so they can verify guest ID and provide guest band authorizing your guest to be in residence.

• Print or keep a copy of the email confirmation for verification purposes if requested by Brock staff. There is no charge to sign a guest in. For the safety of everyone in the residence community, non-registered guests (i.e. guests who are found without wristbands) will be asked to leave residence and/or escorted from campus.

Welcome Week Guest Guideline

Students are not permitted to have any guests in the evenings during Welcome Week (from move-in day until the following Monday). Students are permitted visitors from other residences during the day up until 6 p.m. Residence students may visit other residence buildings and should be accompanied by residents of that building. For the duration of Welcome Week all residence students will be issued a wristband, which will act as identification and for the purposes of admission to the week’s events. Students must wear their wristband for the entire week, students who remove their wristband will be responsible for paying for a new wristband.

January Guest Guideline

Students are not permitted to have any guests in the evenings during the first seven days of school in January. Students are permitted guests during the day up until 6 p.m. Residence students may visit other residence buildings as guests of a resident of that residence.

Guests must follow Brock University parking guidelines. Daily and hourly parking can be purchased though the HONK mobile App. For more information about parking at Brock visit brocku.ca/parking.

Guests may be restricted from and/or banned from residence at the discretion of the Manager, Residence Life.

Additional Guest Guidelines

No guests are allowed during the following times:

Welcome Weeks until Sunday, September 17, 2023 There will be a no guest policy in effect during the first two weeks of September.

First week of second term

From Move In Day until the following Monday

St. Patrick’s Day

From the Thursday preceding St. Patrick’s Day until March 18th

Residence Handbook 2023-2024 21

Maintenance Problems

General Residence Problems and Solutions

When maintenance is requested, you are authorizing a Brock University staff member or authorized contractor to enter your room/unit without further notification being given.

Listed below are some common occurrences that you may encounter living in residence, and steps you can take to solve the problem, as well as, ways to obtain the information the Service Desk will need in order to help you. CALL your Service Desk if you can speak directly to staff in detail and avoid delays from having to follow up for more information.

Toilet Overflowing?

Don’t ever flush a clogged toilet

Is water spilling over the edge? Turn off the valve at the back of the toilet with the handle on or near the wall (turn to right until no water is running)

Clean up any and all water on the floor to prevent costly water damage

Use the plunger in your washroom until the water goes down

Plunging doesn’t help? Leave the water off, put a sign on the toilet, let your roommates know, and contact your Service Desk

TIP - Do not flush feminine hygiene products/wet wipes/paper towel down the toilet OR use excessive amounts of toilet paper

Ensure your room/unit area is clean (bugs love trash!) If you haven’t been, be sure to empty garbage then vacuum and clean

Seeing bugs, ants or fruit flies??

Call the Service Desk. Make sure that you tell them how many bugs, where you see them, if others around you are having issues (if possible, bring a sample bug)

Often pest control issues take a couple of weeks to resolve

Remove any hair/food/debris that is sitting in the drain, keep pulling/cleaning until it is all out

Drain Clogged?

Invest in a drain cover to stop hair/food/debris and regularly clear all items from the drain cover

Do NOT use Drano or other abrasive/harsh products as this can damage the pipes. If you are still having problems, call the Service Desk

Is it the item that you have plugged in that is not working? Try another appliance. How many appliances are plugged in?

Check the reset buttons on any power bars to see if the power bar has tripped

Check nearby outlets to see if they are working. Note if any lights are affected

No Power?

Bathroom outlet? These are unique and have a TEST/RESET button on them. Try pushing the RESET button

QV kitchen? Check the outlet by pushing the RESET button

Otherwise call your Service Desk

Always turn off anything plugged in before resetting

22 Residence Handbook 2023-2024

Townhouse Problems and Solutions

When maintenance is requested, you are authorizing a Brock University staff member or authorized contractor to enter your room/unit without further notification being given.

Listed below are some common occurrences that you may encounter living in a Townhouse Unit, and steps you can take to solve the problem, as well as ways to obtain the information the Service Desk will need in order to help you:

Ensure that the fridge is set to mid-range temperature. Ensure that the door is closing completely.

Fridge/Freezer Not Cold?

Ensure that the fan at the back of the freezer is not blocked by too many items in front of it.

Call the Service Desk to report the maintenance concern and have accurate information as to what is working and what is not.

Check that the burner rings are plugged in fully.

Stove Burners/ Oven not Working

Check that the timer has not been set.

Call the Service Desk to report the maintenance concern and have accurate information as to what is working and what is not.

How many people showered before you? (Does the tank need time to reheat?)

Check at least two other water sources i.e. Kitchen sink, bathroom sink, or shower to see if water is hot.

No Hot Water?

Is there any warm water or is it just cold?

Call the Service Desk to report the maintenance concern and have accurate information as to what is working and what is not.

Check that your thermostat is set to heat and the fan is set to Auto.

Check to see what temperature the thermostat is set to and what the actual temperature is reading.

No Heat? Unit is Humid?

Check floor vents on all levels to see if the vents are open, and if any air is coming out at all. Is the air hot or cold?

Check if you have hot water.

Call the Service Desk as soon as possible to report a maintenance concern.

As the weather changes, the metals in the door frame may expand and contract which can affect unlocking and locking your door.

Door is Difficult to Open?

When you are turning your key, gently pull the door toward you to alleviate pressure on the latch.

To prevent damage, or the door jamming, don’t slam the door. Pull it closed.

Residence Handbook 2023-2024 23

Lost Key(s) or Student Cards Replacing your Student Card

Lost or found keys/student cards should be reported immediately to a Residence Service Desk for your safety and the safety of those around you. Charges for replacement keys and/or lock changes are billed to your student account. Lending any residence key or swipe card to anyone is prohibited. Students are not permitted to copy their residence keys or cards. Lending out your keys or attempting to duplicate them is considered a level 2 or 3 infraction. Please refer to your copy of the RCS or online for more detail on the infraction system. See below for information regarding temporary key(s)/swipes.

Keep Yourself and Your Belongings Safe!

All windows, bedrooms, and front doors are equipped with locks, and it is essential that you take the precaution to make sure everything is locked when you leave your room/unit. Also if there are any locks in your room/unit/building that are not working properly, report them to the Service Desk immediately as repairs take place during normal business hours (Monday-Friday 8:30 a.m.-4 p.m.). Failing to report a non-functioning lock, leaving a door unlocked or granting open access to one’s space will not be accepted as an excuse for any damage or infraction that occurs in a student’s space. Village front doors lock as soon as they are closed so always make sure to pull (not slam) the door closed tightly and be sure to have your keys with you as your unit mates will not always be there to let you in (and it is an unfair expectation to think they should be!). Slamming doors will cause the door to jam and become inoperable. All other buildings require you to lock the door with your key or swipe.

Locked Out?

Your Service Desk can help you by signing out temporary key(s)/swipe! Progressive charges exist for taking out temporary swipes or keys from the Service Desks; a $5 per 24 hour fee is also applied so return as soon as the original is found!

If you have lost your student set of keys and know that you will not find them within seven days, a lock change will be initiated at your expense. As noted above, report lost key(s)/swipes right away!

Visit the Brock Card Office during business hours to replace your lost/ stolen/damaged Brock ID Card. If your card has been lost/stolen/damaged during nonbusiness hours, please proceed to your Service Desk to obtain a temporary card in order to access your residence room/floor/building.

Office Location

Main Level, Thistle Corridor

TH221A (across hall from the market entrance)

Hours: Monday - Friday, 8:30 a.m. to 4:30 p.m.

Lost/Stolen Cards

To replace a lost or stolen Brock Card bring a valid government issued Photo I.D. to the Brock Card Office and a new card will be issued to you for a replacement fee ($35). If you are living or working in a residence that requires swipe access you will be charged an additional $15 reprogramming fee to your student account by the Service Desk.

Damaged Cards

To replace a damaged card (either broken, or demagnetized) bring the damaged or broken card to the Brock Card Office (even if in pieces) in order to purchase a replacement card. The applicable replacement fee ($10) will be charged if you cannot turn in the damaged card at the time the replacement card is being issued. If your card has been willfully damaged (holes punched in magnetic stripe etc.), the applicable replacement fee will be charged.

Need your card for dining?

Arrange to report/replace your lost card as soon as possible. Remember it carries your flex dollars and is your access into the dining halls.

24 Residence Handbook 2023-2024

Smoking on Campus

Smoking is not permitted on campus except in “Designated Smoking Areas” (Map available in Appendix E). The use of e-cigarettes and vaporizers are considered to be smoking and must be used in a “Designated Smoking Area” only.

It is important to note that vaporizers, e-cigarettes (and other similar products) DO set off the fire alarm because of the by-product they produce. Alarms set off intentionally or due to a device of this nature will be fined by Brock and/or the St. Catharines Fire Department.

Evidence of smoking inside [ashes, smell, residue] will result in cleaning charges, and lost RCS points.

Designated Smoking Areas

Designated smoking areas are identified by green signs and there are 3 areas across campus:

• Behind Fresh Food Company DeCew Dining Hall at Residence Road

• In between Vallee Residence and Earp Residence near parking lot K

• Near the backside of the Fresh Food Company Lowenberger Dining Hall – off Village Rd

Fire Safety

Residents, guests, and staff are expected to exercise care and good judgment with regard to their own personal safety and the safety of others. Students may be in violation of the RCS and/or other policies if they cause an unsafe situation for other students including, but not limited to, propping open exterior doors or tampering with light bulbs in hallways, stairwells or elevators.

Students are expected to ensure that their living environment is safe and free from safety hazards. This includes:

• Not overloading plugs

• Using CSA approved, surge protected power bars and extension cords

• Using the approved appliances only in approved locations and ensuring that items such as curling irons or hair straighteners are unplugged when not in use.

Fire safety equipment must be respected:

• Discharging fire equipment, interfering with the normal operation (e.g. covering, removing wires or batteries), tampering with or using any fire prevention or detection equipment for any thing other than the intended purpose is prohibited.

• Attaching, covering or hanging items from any door closers, fire safety/detection equipment, or the conduit/wiring leading to it is prohibited. Students who fail to report a non-functioning life safety device may also be subject to disciplinary action.

Certain Items are not permitted in residence:

• Candles, incense, or wax/oil lamps (including plug-ins) are not permitted in any residence. This includes lighting/burning as well as possession.

• Any student required to light or burn candles/ incense based on religious grounds must seek and receive prior written permission from his or her Residence Life Coordinator.

• Using and/or storing any combustible fuels (i.e. propane tanks, lighter fluid, etc) (either empty or full) indoors, or any appliance requiring combustible fuel (including fondue sets) is not permitted in any residence.

• See the Residence Community Standards and the Allowable Appliances document for more details.

Residence Handbook 2023-2024 25

Common Fire Hazards in Residence

Over the years, we have discovered some very common household items that can be considered very serious fire hazards:

Halogen Lamps

Bulbs become very hot and will start a fire if accidentally knocked over and/or left unattended

Always be sure to unplug if empty

Scented Plug-Ins

If there is a night light built in and it starts flickering, unplug it right away

Plug ins that melt scented wax or oil are not permitted in residence

Unplug every time you are finished as this will ensure that the item is off

Hair Straightener/ Curlers/ Irons

Never leave these items unattended or on fabric surfaces

Any appliances using combustible fuel cannot be stored or used indoors

Propane Tanks/ BBQs/ charcoal/ combustible fuels

Only permitted in Village & Quarry View

Must be stored at least 10 meters from the building

Any found in disrepair, in close proximity, or in unit will be removed

Smoking is not allowed inside any Residence Building

Smoking (Including e-cigarettes & vapes)

Smoking is only allowed in designated areas on campus

Are to be used in the kitchen area only, never left unattended while in use

Appliances

Should be unplugged and/or turned off when not in use

When using the oven/stove top turn on the exhaust fan

Use CSA approved power bars

Power Bars

Do NOT overload them!

Traditional & Semi-Suite Residence Smoke/ Heat Detectors and Monthly Alarm Testing

All traditional and semi-suite residences are equipped with smoke/heat detectors in the bedrooms and hallways.

Housing Services staff will set off these detectors on the second Wednesday of each month to ensure that the detectors in your building are working properly. You are not required to evacuate during these tests and these tests alone.

You will be notified by email (to your Brock student email account) of the test time/date, signs will be posted on main entrances/exits and it will also be

noted on our website as well as on social media. Details are provided on how to tell the difference between our test and a real alarm.

Tampering with life safety equipment is a very serious offence that is addressed in the Residence Community Standards. It can also be enforced by the St Catharines Fire Department, with substantial fines (can be up to $2500 for tampering) levied directly against you, the occupant, in addition to charges from Housing Services.

Smoke can cause death, so do not disconnect a smoke detector or ignore a beeping detector, as they are present to save lives.

26 Residence Handbook 2023-2024

Traditional and Semi-Suite Residence Fire Safety

All residents must evacuate the building immediately when the fire alarm sounds. Please exit the building in an orderly fashion via the nearest fire exit. Close and lock bedroom doors as you are leaving, and please do not use the elevator. Once outside the building, go to the marshaling area as indicated to you by your Don. Do not remain in doorways or near the building and please remain off roadways to ensure that fire trucks and emergency vehicles are not blocked. Remain outside the building until given the all clear to return by Campus Safety Services.

Please note: Your room may be entered by Housing Services Staff, Campus Safety Services and/or the Fire Department without knocking during an alarm.

Fire extinguishers are located throughout corridors in all Traditional and Semi-Suite residences, usually near stairwells. Pull stations are located at all stairwell exit doors. If you discover a fire, activate the nearest fire alarm pull station.

Every house and hall in traditional and semi-suite residences will have volunteer “Fire Wardens” who will assist in evacuations during fire alarms. Dons will ask for volunteers at their first community meeting in September, and all volunteers will receive 30-45 minutes of training about fire alarms so please follow their lead. They are trying to help you exit safely.

Fire Tests will be conducted (with notice) in each residence monthly. There will be one fire drill annually without notice.

2023/24 Traditional and Semi-Suite Residence

Fire Alarm Test Dates:

September 13, 2023

October 11, 2023

November 8, 2023

December 6, 2023

January 10, 2024

February 7, 2024

March 6, 2024

April 3, 2024

Residence Handbook 2023-2024 27
Live Burn
Causing a fire alarm (intentionally or not) due to misuse or smoking in ANY residence will result in a $175-$2000 tampering charge, plus costs associated with repair/reset of system and possible fines.
fire-flame-curved

For additional information refer to the RCS (pages 6061) or the Residence Handbook (pages 25-31)

28 Residence Handbook 2023-2024

Village Residence Fire Safety

If a carbon monoxide and/or smoke detector goes off, residents are to evacuate the area in alarm immediately (may be the individual unit, a cluster of units or the entire court) and meet with other students from the affected area in the designated meeting place for all fire alarms except the posted monthly fire alarm test. Do not remain in doorways or near the building and please remain off roadways to ensure that fire trucks and emergency vehicles are not blocked. Remain outside the building until given the all clear to return by Campus Safety Services.

Please note: Your unit/rooms may be entered by Housing Services Staff, Campus Safety Services and/or the Fire Department without knocking during an alarm.

If you suspect carbon monoxide is present (detector activated and occupants experiencing nausea, fatigue, headaches) you need to leave the unit immediately. If you can, open up the windows to provide fresh air and leave the unit. Immediately contact your Service Desk from a separate location who will dispatch Campus Security to attend. Wait for help to arrive to assess the situation before re-entering the unit.

Smoke/Carbon Monoxide can cause death, so do not ignore or disconnect a beeping detector, as they are present to save lives.

What Can Set off the Detector (Other than a fire)?

• Smoking (of any kind, including vaporizers (“vaping”), e-cigarettes, etc.)

• Tampering with, removing, covering, or hitting the detectors

• Burning food

• Walking away leaving appliances unattended while cooking

• Using ovens, toasters, pans that have grease/food spills built up – causing smoke to occur when heated

• Using personal hygiene devices or aerosol products near or at the devices (i.e. perfume, cologne, steam from hair dryers or hair straighteners)

What are the Consequences of Causing a Fire Alarm? (see page 28)

• You will be sanctioned under the RCS – can be a level 1, 2, or 3 offence

• You will receive a charge of $350 to cover the costs associated with the repair/reset of the system

• You will receive a $75 tampering charge + all costs associated with the repair/reset

• When the University receives a fine from the St. Catharines Fire Department ($1650) for the alarm, that fine will be forwarded to the individual(s) who caused the false alarm

2023/2024 Village Fire

Alarm Test Dates:

September 20, 2023

October 18, 2023

November 15, 2023

December 21, 2023

January 17, 2024

February 14, 2024

March 13, 2024

April 24, 2024

Residence Handbook 2023-2024 29

Quarry View Residence Smoke/Carbon Monoxide Detectors

How do you make sure the detectors work?

• Residence Facilities staff will enter your unit each month to test the detectors

• Advance notice is NOT provided

• A contractor does an annual test and check of all detectors in residence

I set the detector off while cooking! Now what?

• Do not take them down!

• Wave a dishtowel under the detector and open a window

• Cooking is NOT an excuse to tamper with the detectors

Village and Quarry View Residence Fire Extinguishers

Each unit is equipped with a fire extinguisher in the vestibule/entranceway to the unit. The extinguisher must be left in the mount, as emergency personnel must be aware of the extinguisher location within the units.

Tampering with fire extinguishers for any purpose other than the control of a fire is prohibited and could lead to financial consequences. Tampering includes removing the metal safety pin, removing the plastic seal holding the metal pin in place, discharging the fire extinguisher and/or lost extinguishers.

If an extinguisher is discharged or lost, contact the Service Desk immediately so that a replacement can be given and/or clean up can be arranged. If an extinguisher is taken because the unit front door is left open/unlocked, the occupants of the unit are responsible!

Regular inspections of unit/rooms will occur (see important dates for timing) to make sure that they are kept in a reasonable condition and that the fire and life safety equipment is working properly. Students will be notified if special entrance is required for non-emergency maintenance. No notice will be given for emergency maintenance, monthly detector testing, or for requested maintenance.

STUDENTS CANNOT REFUSE ENTRANCE TO UNITS FOR MAINTENANCE, DETECTOR TESTING, EMERGENCIES OR REGULAR INSPECTIONS.

My detector is beeping without instigation! What do I do?

• Listen to any beeping or verbal messages from the detector, and from which room it is coming from

• Call your Service Desk to report beeping and give as much detail as possible

Quarry View Residence Smoke/Carbon Monoxide Detectors

Each Quarry View townhouse unit is equipped with a combination smoke/carbon monoxide detector on each level.

Housing Services staff will enter your unit once monthly to ensure that the detectors and fire extinguishers in your unit are working properly. Tampering with life safety equipment is a very serious offence that is addressed in the Residence Community Standards. It can also be enforced by the St. Catharines Fire Department, with substantial fines (can be up to $2500 for tampering) levied directly against you, the occupant, in addition to charges from Housing Services.

If you suspect carbon monoxide is present (detector activated and occupants experiencing nausea, fatigue, headaches) you need to leave the unit immediately. If you can, open up the windows to provide fresh air and leave the unit. Immediately contact your Service Desk from a separate location who will dispatch Campus Security to attend. Wait for help to arrive to assess the situation before re-entering the unit.

Smoke/Carbon Monoxide can cause death, so do not ignore or disconnect a beeping detector, as they are present to save lives.

30 Residence Handbook 2023-2024

For additional information refer to the RCS (pages 60-61) or the Residence Handbook (pages 25-31)

For Quarry View Students, please refer to page 30 for fire safety.

Residence Handbook 2023-2024 31

Cleaning Standards

Residence Cleanliness Inspections

Here at Brock University we are proud to offer well-maintained residences for you to stay in. Part of this maintenance includes ensuring that residences remain clean throughout the school year and are left clean on move out. For this reason, we have several inspections that take place throughout the year, during which Housing Services staff enter your Unit/Bedroom/Washroom and rate the level of cleanliness. These cleanliness inspections exist in order for you to live in a safe, secure and healthy environment, and we encourage you to view them as a positive experience.

Residents are responsible for bringing their own cleaning tools and products and for using products as directed on the label and only on the surfaces suggested. It is important to discuss standards with your housemates, roommates and bathroom-mates early on so everyone has the same expectations and cleanliness is maintained from the beginning. If you fail an inspection, a follow up inspection will be scheduled. It is our hope that the level of cleanliness will have improved prior to this inspection, but if it has not, we are required to send custodial services in to clean at your expense. Residence students are expected to maintain an acceptable level of cleanliness in all living spaces,

shared or personal. Housing Services will conduct regular inspections of all student living areas to ensure that all areas are kept clean and tidy so that damages and health issues do not arise due to lack of proper cleaning.

Inspections are scheduled to be conducted approximately five (5) times throughout the academic year. Students will receive email notification to their Brock email account from the Residence Facilities Team the week prior to inspections confirming the inspection. The dates will also be published in advance on the residences website - they will be noted on the “events” section.

Issues of cleanliness can be documented at anytime including but not limited to:

• Fire extinguisher checks

• Preventative maintenance and maintenance calls

• Winter break shut down

• Anytime a Brock staff member identifies an issue when they are in a unit/ bedroom/washroom.

Cleanliness standards are also outlined online and on inspection forms for student reference. All residents share equal responsibility for the cleanliness of common areas. Roommate conflicts WILL NOT be considered as justification for cleanliness issues. All areas will be assessed and given a ranking from 1 (health concern) -10 (excellent). A ranking of 5 or below will be considered a failure. A ranking of 6 will be considered as a marginal pass wherein conditions must be improved prior to the next inspection. If areas have not improved and consecutively ranked at level 6, residents will receive a level 5 (fail).

Bedroom and Unit Cleanliness Inspections

Student bedrooms and townhouse units are also required to maintain a minimum standard of cleanliness. Inspection failures will be subject to an administration fee (typically $10/student) and subsequent re- inspections. Students who are unable to maintain minimum cleanliness standards in their living areas will be subject to disciplinary and educational sanctions.

All charges for failed inspections will be placed directly onto the student account. An email will be sent to the student’s Brock email account providing notification that the charge has been placed on the account.

32 Residence Handbook 2023-2024

Inspection Dates for 2023/2024

Traditional Room Inspections

Sept. 25, 2023 - Sept. 29, 2023

Winter Break Inspection

Feb. 5, 2024 - Feb. 9, 2024

Mar. 25, 2024 - Mar. 28, 2024

Townhouse Unit Inspections

Sept. 25, 2023 - Sept. 29, 2023

Nov. 27, 2023 - Dec. 1, 2023

Winter Break Inspection

Feb. 5, 2024 - Feb. 9, 2024

Mar. 25, 2024 - Mar. 28, 2024

Inspection Failure Consequences

Semi-Suite Room Inspections

Oct. 2, 2023 - Oct. 6, 2023

Winter Break Inspection

Feb. 12, 2024 - Feb. 16, 2024

Apr. 1, 2024 - Apr. 5, 2024

As per the Residence Cleanliness Standards, students receiving a failure may expect the following consequences:

• Students who fail their first inspection will be subject to a $50 unit administration fee to be shared among all occupants of the townhouse (plus a $10 bedroom fee for bedrooms that fail which will be assessed to the occupant of that bedroom only). Bedroom failures also apply for students in traditional and semi-suite residences.

First Failure

Second Failure

• The unit will be re-inspected approximately seven to ten days later and units that still fail will be cleaned by university custodial staff at the students’ expense.

• In addition, students will receive one disciplinary point, and will be given a warning regarding cleanliness standards.

• Students who fail their second inspection will be subject to a $50 unit administration fee to be shared among all occupants of the townhouse (plus a $10 bedroom fee for bedrooms that fail which will be assessed to the occupant of that bedroom only).

• The unit will be re-inspected approximately seven to ten days later and units that still fail will be cleaned by university custodial staff at the students’ expense.

• In addition, students will receive one disciplinary point, and will be placed on probation.

• Students who fail their third inspection will be subject to a $100 unit administration fee to be shared among all occupants of the townhouse (plus a $10 bedroom fee for bedrooms that fail which will be assessed to the occupant of that bedroom only).

Third Failure

• In addition, students will receive two disciplinary points, one for violation of the cleanliness standards, and one for failure to comply with staff (due to the repeated violation) and will be suspended from residence for an amount of time not to exceed one week.

• Students who fail their fourth inspection will be subject to a $150 unit administration fee to be shared among all occupants of the townhouse (plus a $10 bedroom fee for bedrooms that fail which will be assessed to the occupant of that bedroom only).

Fourth Failure

• In addition, students will receive three disciplinary points, one for violation of the cleanliness standards, and two for failure to comply with staff (due to the repeated violations) and will be evicted from residence for the remainder of the school year.

Residence Handbook 2023-2024 33

Traditional and Semi-Suite Cleaning Standards and Tips

It is important that residents of Vallee, Earp, Res 8 and Lowenberger are aware that they are responsible for cleaning not only their bedroom but also their shared bathroom. It is the residents’ responsibility to supply toilet paper and cleaning tools & supplies themselves.

It is important to note that residents of DeCew are NOT responsible for cleaning their shared bathroom. The University has custodial staff who will ensure that DeCew washrooms are clean and stocked with toilet paper; however, it is the residents’ responsibility to keep their bedrooms clean. TIP: use a shower caddy in DeCew, please do not leave personal items on countertops.

It is important to discuss standards with your roommates and/or bathroom mates early on so everyone has the same expectations and cleanliness is maintained from the beginning.

Dishes

Oven

Stove Top

Fridge

Storage

Townhouse Cleaning Standards and Tips

All Townhouse residence students are expected to keep personal and shared living areas, as well as, the exterior of their room/units clean and ensure regular removal of garbage and recycling.

Townhouse residents are responsible for bringing their own cleaning tools and products as well as for using products as directed on the label and only on the surfaces suggested. (ie. Oven cleaner only in the oven).

It is important to discuss unit standards with your housemates early on so everyone has the same expectations and cleanliness is maintained from the beginning. It is highly recommended that you develop a cleaning schedule together to divide responsibilities equally.

It is best when each student does their own dishes, but it’s helpful to also set timelines as to when they need to be washed by (ex. Daily before the next meal). Also deciding whether or not you dry with a cloth or leave them out to dry.

Ovens should be cleaned monthly. Grocery stores sell oven cleaners. Simply follow the cleaning instructions. You can also reduce build-up by lining the base of the oven with tin foil.

Wipe stove tops after each use. Aluminum drip pans under burners also reduce build-up, and change easily once residue builds-up. Build-up is also a fire hazard.

Wipe fridge and freezer monthly with cloth and soapy water. To reduce odor, an open box of baking soda helps absorbing any odor. Make sure dials are always between 4-5. Throw out any expired, old, or moldy food and don’t overfill freezer (can cause issues staying cold)

Your storage room should always be kept organized. If you are in Village, DO NOT pile items over/in front of the access hatch as Maintenance Staff must always be able to access the utility room should the need arise, so the door must always be accessible.

• Courts 1 - 6: the access hatch is in your storage room floor

• Courts 7 - 12: the access hatch is in your living room wall

34 Residence Handbook 2023-2024

Suggested Cleaning Supplies For All Residences

Bathroom Bedroom Kitchen

• Toilet bowl cleaner & toilet brush

• Non-abrasive tub/shower cleaner

• All-purpose multi-surface cleaner

• Sponges

• Gloves

• Cleaning cloth

• Mop & bucket

• Laminate/tile floor cleaner

• Broom and dust pan

• All-purpose cleaner

• Cleaning cloth

• Duster

• Small garbage bags

• Vacuums are available for temporary sign-out at the Residence Service Desks at no charge.

• Students in Quarry View may wish to bring their own vacuums if they don’t want to walk to the East Service Desk to borrow a vacuum.

• Students in Village residence are provided with central vac.

Sample Chart, designed for Village units, for cleaning schedule:

• All-purpose cleaner

• Cleaning cloth

• Sponges

• Large garbage bags

• Oven cleaner

• Oven drip trays and burner drip trays

• Broom and dust pan

• Mop & bucket

• Laminate/tile floor cleaner

A printable and more detailed cleaning schedule can be found at: brocku.ca/housing/living/publications

Helpful tips

Vacuum

• Pick up larger items

• Empty container in personal vacuums

• For Village, empty central vacuum cannister in storage room regularly

Bathtub

• Ensure doors/curtains are always closed

• Scrub tub with cleaning supplies

• Always use exhaust fan to avoid build-up from humidity

• Use hair catcher for drain to help prevent clogs

Toilets

• Do not flush non-flushable items (ex. tampons, wet wipes, condoms)

• Use toilet brush with toilet brush cleaner

• Wipe seat and rim down

Garbage & Recycling

• Take out as soon as its full to the nearest dumpster/floor’s garbage/recycling container

• DO NOT leave outside of room/unit

• Rinse out jars, bottles, or cans

• Line your bins with bags to help keep bin clean

Residence Handbook 2023-2024 35
Unit Area Week 1 Week 2 Week 3 Week 4 Week 5 Vestibule A Room B Room C Room D1 Room D2 Room Main Floor Bathroom B Room C Room D1 Room D2 Room A Room Kitchen Area C Room D1 Room D2 Room A Room B Room Living Room D1 Room D2 Room A Room B Room C Room 2nd Floor Bathroom D2 Room A Room B Room C Room D1 Room

Garbage and Recycling

You are provided a garbage and recycling bin in each residence bedroom. It is your responsibility to dispose of collected items and place in appropriate recycle or garbage containers avoiding contamination.

Village

Garbage and recycling containers are located in ground containers off of the main road.

DeCew

There are garbage and recycling bins in every lounge on every floor.

Lowenberger, Res 8 and Earp

Garbage rooms are located on each floor near the lounges with garbage and recycling bins.

Vallee

Garbage and recycling bins are placed throughout the hallway.

Quarry View

Garbage and recycling containers are located behind Blocks 2 & 6.

Recycling

& Conserving Tips!

• Buy second hand textbooks or download legal online textbook copies to save paper

• Wash old jars and containers and reuse them

• Use a reusable water bottle/travel mug instead of buying bottled drinks or a new coffee cup

• Turn off lights in bedrooms, common rooms, and washrooms when they’re not occupied while there’s daylight

• Use lights only when needed

• Plug electronics into a power bar, and turn the power bar off when not in use

• Keep fridges well stocked, as it is easier to cool a full mini-fridge down than an empty one

• Reduce shower times to save water = a five minute shower uses about 100L of water

For more information, visit our website: brocku.ca/housing/buildings-and-amenities/garbage-and-recycling

36 Residence Handbook 2023-2024

Heating and Cooling

It is important for you to be comfortable in residences, and Housing Services and the Service Desk Staff are here to help you.

Remember that you are sharing an environment with others, which may mean that the temperature at which you are comfortable is not the same as the temperature at which they are comfortable.

Here are some hints to help manage

temperature:

temperature-hot

Too Cold?

• Open blinds to let the sun in!

• Remember to dress accordingly, wear sweaters and use extra blankets

• If A/C is on, see if you are able to close any vents in room or adjust thermostat if possible

• Space heaters are not permitted in residence as they are a fire safety hazard

temperature-frigid

Too Hot?

• Close the vent in your room (when heat is on)

• Close windows and blinds during the day to keep the sun out

• If it is cooler at night, open windows at night to let fresh air in

• Use a fan to help circulate the air

Traditional & Semi-Suite

Temperatures in these residence buildings are set from one central location called a “set point” which is typically set at 21°C. Since we are only able to have one mode, the heating will be on throughout majority of the academic year.

Students do not have the ability to control their own temperatures. There is a thermostat in the room to

indicate the temperature of the room. You can help manage the temperature by following the tips provided.

In some cases, there is a fan control where speed can be adjusted and/or by increasing/decreasing the temperature setting a few degrees the fan will run continually or be shut off (thereby controlling the temperature slightly). To do this, ensure that you and your bathroom mate [in DeCew, room across from you] have the thermostat set to the same temperature.

Townhouse Heating and Cooling

It is important to note that living in a townhouse unit means that you have full control over your heating and cooling via your thermostat. Your thermostat will have three main settings, Heat, Off and Cool. There will also be two settings for the fan, Auto (fan will turn to maintain the temperature you have set on your thermostat) or On (fan is running constantly). Ensure the fan is set to Auto.

Winter Months:

HEATING MODE

• Set your thermostat to 20°C (68°F) “HEAT” and fan to “AUTO” mode. NEVER turn your thermostat to Off or Cooling, as this could cause the pipes in your unit to freeze and then burst causing extensive damage. You will be held financially liable for thousands of dollars in repair bills.

Warmer Months:

COOLING MODE

• DO NOT set your thermostat below 20°C (68°F) as this could cause the air conditioning unit to freeze up and no longer work. Repairs needed due to damage as a result of a freeze up could result in damage charges to the occupants (can cost upwards of $3500).

range of 20°C-23°C

Residence Handbook 2023-2024 37
Thermostats should always be set in the

Laundry Services

Student Card-activated laundry facilities are available throughout the residence system, using students’ flex dollars. The locations of these laundry facilities are as follows:

Village: Laundry facilities are located in Lowenberger Residence on the main floor of the building near the public washrooms.

Lowenberger: The laundry room is located on the main floor of the building near the public washrooms.

DeCew: Laundry facilities are located in the basements of stairwell 5 and 18.

Vallee: Laundry facilities are located in the basement. Take the elevator down to floor one, and turn right.

Earp: Laundry facilities are located in the basement. Take the elevator down to “B”, turn right, and it is down the hall and on your right hand side.

Quarry View: Laundry facilities are located in Block 3 (side entrance) or Block 5 (side entrance). Use your student card to access these areas.

Res 8: Laundry facilities are located just off main lobby.

Laundry How-To

Step 1: Sort your clothes!

• It is important to read clothing tags. Separate into categories: whites, brights, darks, delicates.

Step 2: Pay with Laundry App

(Please refer to the LaundryCat graphic on right)

Step 3: Load the machine

• Ensure that the clothes are evenly distributed throughout the tub so that you don’t have an “unbalanced load”.

• Don’t stuff too many clothes into the machines or they won’t be washed properly.

• Put detergent in the tub with the clothes.

• Select the appropriate setting and turn on the machine.

Step 4: Time to dry!

• Clean the lint filter of the dryer before putting your clothes in.

• Add fabric softener sheets (1 per load) before beginning the cycle.

• Just like the washer, don’t overload the dryer.

• Hang delicates out to dry to avoid ruining the garment with the harsh heat of the dryer.

Step 5: Fold your laundry!

• Begin folding immediately to help reduce wrinkles.

• Never hang sweaters or articles of clothing that are form-fitting or they could stretch. Always hang button-down shirts to avoid wrinkles.

You are responsible for providing your own laundry products! Please report any malfunctioning machines to the Service Desk Right away! Make sure to reference machine number and location. Cost per wash or dry: $1.75

38 Residence Handbook 2023-2024

Getting Along with Roommates

If you are experiencing difficulties with roommates, there are several steps you can take to resolving any issues. Some steps you can take are:

1. Talk to the roommate and let them know the issues you’re experiencing

2. If the situation continues after talking, approach the roommate again to discuss why the issue keeps continuing

3. Talk to your Don and they can help further (talking to the student, holding a mediation, provide some tips, etc.)

Roommate Mediation

Roommate mediation is an assisted disputeresolution process in which you and your roommate discuss your concerns in a controlled and respectful manner in the presence of your Residence Life Staff.

Room Switches

We are committed to roommate mediation as a part of our dispute-resolution process. We will not simply arrange for a room switch as a solution. In a small number of cases, if the mediation is not successful, the Residence Admissions Office will attempt to facilitate a room switch depending on availability of rooms.

Damage Charges and Billing

Damages include any costs associated with physical damage, whether intentional or accidental, replacing missing furniture and/or fixtures, cleaning charges etc. Any damages that occur within your unit, bedroom and washroom will be billed accordingly:

Single Room

Will be billed to the occupant only.

Double Room

If no student claims responsibility, both students will be billed equally unless Housing Services staff determines one students to be solely responsible.

Common Areas

If no student claims responsibility, all students will be billed equally unless Housing Services determines specific student(s) to be fully responsible.

Students must report damages to the Service Desks immediately. Every student is responsible for reporting damage(s) in a timely manner so that action can be taken immediately and further issues or charges are avoided. Emergencies outside of normal hours can result in significant overtime costs and these charges may be assessed to the occupants. Damages are identified throughout the year and charges are billed monthly to student accounts.

Unfortunately, if your parents call regarding any situation in residence we are unable to discuss the matter with them due to the Freedom of Information Privacy Policy Act.

At the end of April, once all residents have moved out, Housing Services Facilities staff will be conducting an inspection in every washroom/room/ unit to assess the state of cleanliness and repair. No one other than Housing Services Facilities staff will enter the room/unit until after the inspection has been done. Conditions will be compared against your move-in Inventory and Condition Report and damages assessed accordingly. Damages will be billed through your student account and you will receive an e-mail notification to your Brock email account of these charges by end of June 2024.

Residence Handbook 2023-2024 39
handshake

Winter Break

December 21, 2023 to January 7, 2024

Residence is provided from Move-in days (September 2 and 3, 2023) to either noon the day following your last examination, or at noon on Dec. 21, 2023, whichever occurs first, and from noon on Jan. 7, 2024 to conclude either at noon the day following your last examination, or at noon on Apr. 24, 2024, whichever occurs first. The University fully closes the day following the last exam until classes start the first week of January. The University may grant an extension agreement during Winter Break for students whose circumstances, in the opinion of the University, require them to remain in residence. The University will collect a fee for each week (or part thereof) the student remains in residence during the Winter Break...”.

For students who have an academic or varsity team requirement OR an international flight home (was booked prior to knowing the exam schedule) where they have a need to stay beyond their expected departure date an extended stay will be considered. An Extended Stay Form request, with required documentation must be submitted from Nov. 130. If submitted after Nov. 30, a $50 late fee will be applied (and the request may not be granted). This can be done through your my.brocku.ca portal, select “Residence Portal” and select “Request Extended Stay”.

April Move Out

Full details will be sent to residents’ Brock email in early November.

Students must vacate their room no later than noon on the day following their last April examination or no later than noon on Wednesday, April 24, 2024, whichever occurs first.

For students who live a long distance away, extensions of up to four hours may be granted upon request to the Facilities Supervisor. For students who have an academic requirement OR an international

flight home (was booked prior to knowing the exam schedule) where they have a need to stay beyond their expected departure date an extended stay will be considered.

An Extended Stay Form request, with required documentation must be submitted from Mar. 1 - 31. If submitted after Mar. 31, a $50 late fee will be applied (and the request may not be granted). This can be done through your my.brocku.ca portal, select “Residence Portal” and select “Request Extended Stay”.

Full details regarding April move out will be sent to your Brock student email account by the end of February.

Early Withdrawal from Residence

Early Withdrawal from Residence

Students who decide to withdraw from residence early can do so by logging into their my.brocku.ca portal, select “Residence Portal”, and select “Request Early Departure.

Students MUST vacate their room no later than noon on the following day of their last exam.

Winter Break Policy:

brocku.ca/housing/important-information/ winter-break-closure

April Move Out Policy:

brocku.ca/housing/moving-out/ end-of-term-notice/end-of-winter-term-notice-april

Early Withdrawal Policy: brocku.ca/housing/moving-out/early-withdrawal

Did You Know?

• Bedrooms must be returned to the original set up when you moved in - including bed height

• There are exam quiet hours (22hrs/day)

• No guests permitted during exams

• There are no volunteers to help at move out

40 Residence Handbook 2023-2024

Brock University Residence Agreement

Academic Year 2023-24

PLEASE READ THIS AGREEMENT CAREFULLY. IF YOU DO NOT UNDERSTAND ANY OF THE TERMS OR ARE NOT WILLING TO ABIDE BY THEM, DO NOT SIGN THIS AGREEMENT AND CONTACT THE DEPARTMENT OF RESIDENCES AT res@brocku.ca.

1. Your Accommodation

1.1. Commitment to provide accommodation: Provided you pay the residence fees set out below (“Fees”) and comply with the terms of this Agreement, the University will provide you accommodation in one of the University’s residences, including but not limited to DeCew, Vallee, Earp, Lowenberger, Residence 8, Village, and Quarry View (“Residences”), subject to the University’s reserved rights set out in section 1.3 below.

1.2. Your room: The Department of Residences will assign you a room in one of the Residences in its discretion. The Department of Residences will endeavor to place you in a room according to your preferences, but cannot guarantee that your preferences will be met.

1.3. Reserved rights: The University reserves the right to delay occupancy or terminate this residence agreement with you if (1) the University determines that it is prudent or necessary to do so for reasons of public health or student safety, or (2) the University is required by law, order or directive to close one or more of its residences, to limit the number of persons residing in residence, or such other law, order or directive affecting the normal operation of its residences. In such circumstances, the University will provide you with reasonable notice and either reduce your residence fees or credit your student account the residence application fee or a portion of any prepaid residence fees, as it determines appropriate.

1.4. Changing rooms: You must receive permission from the Department of Residences to change rooms. You may request a change of rooms in accordance with the Room Switch Procedures as outlined at https://brocku.ca/residence/important -information/admissions-procedures/roomswitch-procedures/

1.5. Reassignment: The University reserves the right to, after no less than 24 hours’ notice to you, change the accommodation assigned to you in its unfettered discretion if circumstances arise which, in the opinion of the University, make the change necessary or desir able. You must cooperate fully in any reassignment.

2. Term of Agreement

2.1. Period of residence: Unless otherwise determined in accordance with this Agreement, the University will provide you with accommodation in a Residence during:

a. Fall session, from September 2 or 3, 2023 (the University will notify you of your move -in date at least 4 weeks’ prior to move-in) to noon on the day following your last examination, or noon on December 21, 2023, whichever occurs first, and

b. Winter session, from noon on January 7, 2024 to noon the day following your last examination, or noon on April 2 4, 2024, whichever occurs first.

2.2. Winter Break: The University plans to close the Residences for Winter Break from 12pm (noon) the day after the last December exam ination until 12pm (noon) the day before the start of classes in January and will not provide accommodation, meals, services, nor the associated support staff during this time.

Residence Handbook 2023-2024 41

2.3. Accommodation during Winter Break or after end of Winter session: The University may permit you to remain in Residence during Winter Break and/or beyond the Winter session if, in the opinion of the University, you are:

a. an international student with no means of getting home or securing alternate accommodation;

b. a Varsity team athlete who is required to remain in residence for a team event during Winter Break; or

c. a student who has an academic requirement that requires you to remain on campus. If you wish to remain in Residence during Winter Break or after the end of Winter session, you must obtain approval from the University through the process set out at: https://brocku.ca/residence/important-information/winter-break-closure/. If your application is approved by the University, in its absolute discretion, you must pay a fee of $250 for each week (or part of a week) you remain in Residence during the Winter Break or past the end of the Winter session.

3. Fees

3.1. Obligation to pay fees: You must pay to the University the Fees set by the University as listed on the Department of Residences website at: https://brocku.ca/residence/apply/residence-fees/ Residence fees will be determined by the move in date, type of residence room and meal plan.

3.2. Due date for fees: You must pay the Fees by the due dates set out in the fee schedule listed on the Department of Residences website at https://brocku.ca/residence/apply/residence -fees/paymentfor-residence/

3.3. Outstanding balances: If you have an outstanding balance on your account (including tuition fees, residence fees, meal plan fees, incidental fees and any other outstanding fees and charges), as determined by the Finance Office, you must pay an additional interest charge at the rate set out by the University’s Finance Office website at https://brocku.ca/safa/tuition-and-fees/overdueaccounts/ Interest charges will be assessed on the 1st of each month starting in October.

4. Meal Plan

4.1. Obligation to purchase meal contract : If you are assigned a room in residence, you must purchase a meal plan through Brock Dining Services, and comply with the rules and requirements related to the meal plan, as set by the University’s Dining Services. The applicable meal plans, rates and policies are available online at https://brocku.ca/dining-services/.

4.2. Breaks in meal plan service: The University meal plan does not provide for meals during the Winter Break between Fall and Winter terms and provides limited service during the Spring and Fall Reading Breaks. Dining hall hours are subject to change. Hours of operation are posted in advance.

4.3. Special dietary requirements: If you have a special dietary requirement, you should disclose that information in your residence application and, if applicable, provide supporting medical documentation. That information will be shared with Brock Dining Services. If you have any issues or concerns with ingredients it is recommended that you speak to a Dining Hall Manager.

5. Residence rules and requirements

5.1. Requirement to maintain student status: This Agreement is conditional upon you registering with Brock University as a full time student in a degree program for 202 3-24 or registering as a student in Intensive English Language Program and maintaining your student status for the duration of the Agreement.

42 Residence Handbook 2023-2024

5.2. Obligation to comply with rules and regulations: During your accommodation in Residence, you must comply with all applicable laws and regulations, all University policies and procedures and the Residence Community Standards (available at: https://brocku.ca/residence/importantinformation/community -standards/). If you breach any of these rules or regulations, the University may terminate this Agreement in accordance with section 7.2 below.

In particular, you must comply with the following general rules:

a. Residents are individually responsible for the care and proper use of all University property. Residents may either individually or jointly be held responsible for the loss or damage to the Residences or common areas. The University assumes no responsibility and is not liable for any loss or damage to the residents’ personal property or injury to person.

b. The University reserves the right to enter a residence room/unit for maintenance, repairs, cleaning and/or inspection.

c. The following is prohibited in and around University Residences, as outlined in the Residence Community Standards: behaviour by an individual(s) that interferes with the rights of another individual(s) to the peaceful use and enjoyment of their space in residence; behaviour that creates a significant nuisance and/or disturbance to an individual or community; behaviour which endangers the safety and security of themselves or another individual(s), and/or compromises personal or university property, and/or attacks the dignity/integrity of an individual, and/or break the laws of the land.

5.3. Communicable diseases: During your accommodation in Residence, you must comply with all public health and University requirements related to any communicable disease, including but not limited to COVID-19. Failure to comply with these requirements may result in restrictions or conditions imposed on your residence accommodation or termination of this Agreement in accordance with section 7.2

6. Facilities and Maintenance

6.1. Obligation to maintain room in good condition: You are required to maintain the cleanliness of your room and keep your room in a condition of good repair.

6.2. Responsibility for missing items, damages or cleaning: You must pay for all missing ite ms, damages or cleaning caused to your room /unit by you or your guests. If your room /unit is shared or there are common areas, all costs for missing items, damages or cleaning will be divided and assessed equally between you and the other residents, unless the damage or disorder can be attributed to one resident, then that resident will be responsible for the full cost.

6.3. Inspection by University: The University reserves the right to enter a room/unit without notice for maintenance, repairs, cleaning and/or inspection.

6.4. Disclaimer of liability: The University assumes no responsibility and is not liable or any loss or damage to your personal property or injury to person.

7. Early Termination of this Agre ement

7.1. Early withdrawal from Residence by Resident: If you wish to vacate your Residence before the end of the Winter session, you must submit a request in accordance with the Early Withdrawal from Residence Procedures available at: https://brocku.ca/residence/moving-out/early-withdrawal/and fees paid will be forfeited in accordance with those procedures.

Residence Handbook 2023-2024 43

7.2. Early termination by University: The University may terminate this agreement if you breach this Agreement or any terms incorporated by reference into this Agreement, such as the Residence Community Standards, effective immediately upon written notice to yo u or as specified in the written notice. If the University terminates this Agreement for breach, you must still pay all residence and meal plan fees for the full 2023-24 academic year.

7.3. Appeal against early termination by University: You may appeal an early termination decision by the University if you have documentary evidence which establishes that your breach of this Agreement was due to compassionate or medical reasons. The University may uphold or rescind the termination in its absolute discretion.

8. General provisions

8.1. No liability for emergencies: The University shall not be liable for any delays or failure to provide the residential accommodation which is provided for in this Agreement when such failure is caused by fire, explosion, water, Acts of God, civil disobedience or disturbances, strikes or other labour interruptions, vandalism, war, riot, sabotage, failure of public utility services, governmental rules, pandemic or public health measures, or any other courses which are beyond the reasonable control of the University (“Emergency” or “Emergencies”). If the Residences cannot open, are restricted in their capacity to accommodate residents and/or must close for any such Emergency, the University will use reasonable efforts to ensure that residents are notified in advance and the University will use reasonable efforts to mitigate against the effects of the Emergency. The University is not liable for any loss and there shall be no compensation in any form whatsoever for inconvenience or discomfort suffered as a result of Emergencies or other circums tances which are beyond the control of the University.

8.2. Other unforeseen circumstances. In the event that the Residences cannot open, are restricted in their capacity to accommodate residents and/or must close due to the actions of third parties with respect to planned or unforeseen renovation or construction, which are beyond the control of the University but not an Emergency, the University shall use its best efforts to notify the residents in advance and provide substitute accommodation on- or off-campus.

8.3. Changes to rules: The University reserves the right to amend or make additional rules and regulations concerning the Residences, which shall form part of this agreement and you agree to be bound by such amendments or additions.

8.4. Waiver: Waiver of these procedures by the University in certain circumstances shall not be deemed to be a waiver of these procedures generally.

8.5. Notice: Any notice the University is required to provide to you under this Agreement shall be deemed to have been properly delivered if delivered to your residence mailbox, University email or posted on the door to your Residence Room. Any notice required to be given to the University should be delivered to: the North, East, or South Service Desk, or send by email to res@brocku.ca, and made attention to Management, Department of Residences.

8.6. Indemnity: You shall indemnify and hold harmless the University from all claims, liabilities, costs, expenses, damages and legal expenses arising out of or in any way connected with your use or occupation of your room, shared areas, or common areas, or any other part or parts of the Residence.

44 Residence Handbook 2023-2024

8.7. Insurance: The University assumes no liability, directly or indirectly, for loss or theft of personal property, including food, or for damage or destruction of such property by fire, water or other causes (e.g. loss of utilities). You are required to obtain personal insurance against such losses and provide proof of insurance. Unless you provide satisfactory proof of insurance to the University prior to move-in, you will be enrolled in the University’s residence contents insurance program and be required to pay the applicable rates set out at: https://brocku.ca/residence/importantinformation/rules-and-regulations/insurance/

8.8. Assignment: This Agreement cannot be assigned without the prior written consent of the University.

8.9. Severability: In the event that any portion of this Agreement is found to be unenforceable, that provision shall be deemed deleted from this Agreement and the remainder of the Agreement shall continue in full force and effect.

8.10. Entire Contract: You agree that this Agreement includes the Residence Community Standards and any other policy, procedure or document incorporated by reference or by link into this agreement. This Agreement supersedes and takes the place of any and all previous contracts and representations of any kind, written or verbal, made previously. To the extent that there is any discrepancy between matters dealing both in this contract and any other University publication or agreement, the provisions of this contract shall prevail.

8.11. Time is of the Essence: You must deal with your obligations as a resident or in a situation in accordance with any assigned deadlines, particularly situations which affect your academic performance or standing in residence. Unresolved problems generally get worse and, in some cases, additional penalties, late fees or other remedies may result from the delay.

8.12. Application of the Residential Tenancies Act: You acknowledge that your accommodation in the Residence is not governed by or subject to the provisions of the Residential Tenancies Act, 2006, S.O. 2006, c. 17

8.13. Residents Under the Age of 18: If you are under the age of 18 years, this Agreement must be signed by your parent or legal guardian in order to be binding on Brock University. The undersigned parent or guardian of the resident hereby acknowledges full responsibility and liability for all covenants and obligations of the resident as provided for in this Contract including, but not limited to, payment of all Residence Fees.

8.14. Online Electronic Acceptance of Contract: Submitting an online application through the residence application website, officially indicates that you understand and agree to the terms and conditions of this Agreement. Note: If you are the parent or legal guardian of the student you will be asked to sign this agreement on their behalf at the time that they move into residence.

Residence Handbook 2023-2024 45

Residence Community 2023-2024 Standards

46 Residence
2023-2024
Handbook

Residence Community Standards

The Residence Community Standards (RCS) are updated both annually and as the need arises. The standards available online are the most current version and may be different than any print versions available.

Contents

Alcohol Use Glorification, Beer Bottles, Cannabis plants, Cannabis Possession and Storage, Distribution of Drugs and/or Alcohol, Drug Paraphernalia, Illegal Drugs, Substance Misuse, Gambling, Drinking Games, Mass Consumption/ Common Source, Over Consumption, Prohibited Areas for Consumption of Alcohol, Prohibited Areas for Consumption of Cannabis, Cannabis and Substance Free Areas, Underage Cannabis Consumption, Underage Alcohol Consumption Residence Administration & Facilities.................. 65-67 Animals in Residence, Chargeable Damages, Cleanliness Standards , Commercial Use, Consolidated Singles, Contractual Dates, Decorating, Equipment Storage, Failure to Notify, Heating and Cooling, Prohibited Furniture, Removal of Residence Property, Room

Fire Safety, Tampering with Life Safety Equipment, Candles & Incense, Combustible Fuels, Fire Alarms, Inappropriate/Illegal Entry or Exit, Keys/Swipe Cards, Open Door Policies, Prohibited Appliances, Physically Active Games in Residence, Restricted Areas, Smoking, Throwing Items and Weapons

Residence Handbook 2023-2024 47
Welcome & Introduction ......................................... 48 Why Do We Have Standards? ............................... 48 Unacceptable Behaviour ......................................... 48 Student Rights and Responsibilities 49 Disciplinary Action Steps 50 Infraction Levels .......................................................... 51 Administration & Enforcement of Standards ........................................................ 52-55 Appeal Process 55 Infraction Categories 56 Community Respect & Accountability ......... 56-59 Bullying/Cyberbullying,
Raids, Pornography,
Safety ....................................................................
Cooperation with Staff, Disruption of Community Guests, Discrimination, Harassment, Noise, Physical Aggression, Pranks &
Sexual Violence and Theft
60-63
Alcohol, Drugs,
Gambling ...................................
Alterations,
Vandalism Appendix A – List of Related Documents ............... 68 Appendix B –Housing Services Contact Information ...................... 68 Appendix C – Residence Decorating ........................ 69 Appendix D – Dining Hall Walking Map ................... 70 Appendix E – Areas for Smoking on Campus ......... 71 Appendix F –Areas for Physically Active Games 72
&
63-65
Subletting and

Welcome and Introduction Unacceptable Behaviour

Welcome to your new home in residence at Brock University! Housing Services works hard to facilitate the successful “sleep, study, and social life” for all residence students. To do this, we must balance residents’ needs to ensure that high quality of life and academic success are the goals we reach by the end of students’ time in residence. By knowing and adhering to our Residence Community Standards, residents make a significant contribution to these goals. The privilege of living in residence comes with the responsibility of abiding by Federal, Provincial, Regional and Municipal laws, following residence rules, and upholding community standards.

Please note: When you submitted your online application and when you collected your keys you confirmed that you have read, understood and agreed to abide by these standards.

Why do we have the Residence Community Standards?

The residence community is a unique environment and these standards have been created to benefit both students and staff by clearly outlining behavioural expectations for residence students. This standards document defines unacceptable behaviour, outlines the levels and types of infractions, and describes in detail both the manner in which infractions are enforced and the kinds of sanctions applied.

Residents are expected to have read and be aware of the information contained in this document. The goals of the standards are as follows:

• To provide students with clear information about what is expected of them while living in residence.

• To provide Housing Services and Residence Life Staff with a resource that outlines specifically the course of disciplinary action for any unacceptable behaviour.

• To illustrate to students the importance of cooperation while living in the residence community.

Under the terms of the Residence Agreement (which all students must electronically sign when applying to residence), students are to be familiar with the content of and abide by the following: the Residence Community Standards, the Residence Agreement, Residence policies and procedures, the Brock University Code of Student Conduct and any other applicable Brock University policy. Students are also expected to respect and abide by all Municipal, Regional, Provincial and Federal Laws.

“Unacceptable behaviour” is defined as any behaviour which contravenes these documents. Ignorance, anger, alcohol or substance abuse will not be accepted as an excuse, reason, or rationale for unacceptable behaviour. It is expected that if a student is having a problem with anger or substance abuse that he or she will seek help from an appropriate resource (e.g. Personal Counseling Services) before the situation intensifies. Unacceptable behaviour can be identified and addressed by anyone in the residence community. Students are reminded that unacceptable behaviour may come to the University’s attention in a variety of ways, including observation by staff in residence, Campus Safety Services, Facilities Management, Food Services or other students, or through photo, internet, social media, mobile device or video evidence. While the University does not actively search for evidence of violations on line, anything posted on line which comes to our attention (e.g. Facebook, YouTube and Twitter) can be used as evidence in an investigation.

Unacceptable behaviour within residence can be documented formally by: Residence Life Staff, Housing Services Staff, Facilities Management or any other University staff including contractors, who work in the residences, Campus Safety Services, and the Niagara Regional Police.

As expressed in the Brock University mission statement, we are a diverse and inclusive community. Our diversity makes us stronger and is something we welcome and celebrate within residence. And behaviour that attacks the integrity or dignity of another individual will not be tolerated.

48 Residence Handbook 2023-2024

Student Rights & Responsibilities

The Residence Life Staff (RLS) and Residence Action Council (RAC) will do their part to orient you to this environment through a variety of social, educational and recreational activities. You, in turn, will be expected to do your part as a member of the community. Being a student in residence means that you are given both privileges and responsibilities to uphold. The information in the Residence Community Standards will orient you to the residence structure and services and to the regulations that help to ensure the rights of each community member. You are responsible for knowing this information and meeting the standards of behaviour necessary for the development of the residence community. While you have a responsibility, you will certainly reap the benefits. Welcome to the challenge, the opportunity and the fun. We look forward to your arrival and an exciting year in residence!

Student Rights

1. The right to sleep, study and socialize in a clean and safe environment.

2. The right to have any residence incidents, issues or concerns addressed in a timely and respectful fashion.

3. The right to privacy and/or confidentiality from Housing Services with regards to all personal information. The Department will not contact emergency contacts without consent except in an emergency situation.

4. The right to appropriate and timely notification from Housing Services for all matters that have an impact on their living environment (e.g. repair work, fire alarm testing).

5. The right to expect Housing Services will abide by the terms and conditions outlined in the Residence Agreement and follow departmental policies and procedures

Student Responsibilities

As members of the residence community, students have the following responsibilities:

1. To treat other people with respect and consideration and to guarantee them their individual rights.

2. To behave in a responsible manner and accept responsibility for inappropriate behaviour and the consequences related to that behaviour.

3. To respect and accept responsibility for residence and university property and facilities, treating them like you would your home.

4. To accept responsibility for personal and community safety; i.e. to lock windows and doors, to refrain from misusing life safety equipment, damaging property, propping fire doors, losing or sharing keys / swipe cards, etc.

5. To contribute positively to the community through participation in programs.

6. To regularly check their email account, Financial Account, and residence mailbox. All of these modes of communication will be used by Housing Services to communicate with residence students.

7. To report damages and safety concerns or any other issues or concerns in a timely manner to the Service Desks (refer to the section on Facilities).

8. To abide by the terms and conditions outlined in the Residence Agreement and follow departmental policies and procedures.

Please note: various public areas on campus (including residences) are being video recorded for safety and security purposes. The personal information is collected under the authority of the Brock University Act. Questions may be directed to Brock University Campus Safety Services, 905.688.5550 x3200 or see brocku.ca/campus-safety

Residence Handbook 2023-2024 49

Disciplinary Action Steps

1. Incident Occurs

2. Report is written

3. Student has a follow up conversation with staff member (Residence Don) to go over the report

4. Head Resident (HR) receives report

5. **Cases can be addressed through Housing Services and/or the Office of Student Affairs. At this point, a case may be referred to the Office of Student Affairs.

6. Conduct meeting with the student (with HR, Residence Life Coordinator (RLC) or Manager depending on accumulated points and severity of infraction)

7. Decision is made (student receives communication as an email or letter)

8. *Student can submit request for an appeal. If there are grounds, appeal meeting granted (with RLC, MRL or Director). If there are no grounds for appeal, the process is complete.

9. Decision is made (sanction can be lower, higher or same as original decision)

Students are provided the opportunity to review the incident report in their scheduled conduct meeting with HR, RLC, or Manager. The conduct meeting is the space for all students involved to individually discuss the incident and to share their perspective on the incident. This allows for the HR, RLC or Manager to make an informed decision on the outcomes.

*Submissions for appeals must be evaluated first for grounds to appeal then, if there are grounds for an appeal, the appeal is considered. Please see page 55 for more details on the appeal process. Note: There is a separate process for damage charges.

**In general, incidents that occur within residence will be addressed via the Residence Community Standards. Occasionally, cases are referred to the

Office of Student Affairs. The reasons for this referral include but are not limited to:

• The incident and behaviours are significant or severe in nature and place the university community at risk. In these cases, students will often be issued a temporary residence sanction until such time as the incident is addressed via the Student Code of Conduct.

• There is insufficient time to appropriately adjudicate the case (e.g. at the end of the residence contract). In particular, for the months of December and April, the process of reviewing Incident Reports in advance of discipline meetings will be suspended in the interest of timely decision making. As a large number of students move home to study, any incidents occurring on or after December 1 and April 1 will be expedited so that decisions may be made prior to students departure at the end of exams. Any incident that is not able to be addressed prior to the end of April will be addressed with a residence ban for the following year or referred to the Office of Student Affairs to be addressed via the Student Code of Conduct.

50 Residence Handbook 2023-2024
clipboard-list-checkpen-clip

Infraction Levels

Our approach to discipline in residence at Brock is designed to address unacceptable behaviour in a systematic, progressive manner (i.e. consequences become more severe for repeated or more serious misconduct). We also recognize that intent, impact, and extenuating circumstances may be contributing factors in some situations. As such, some types of behaviour may fall within more than one level.

Level One Infraction (1-2 points)

Level Two Infraction (2-3 points)

Behaviour by an individual(s) that interferes with the rights of another individual(s) to the peaceful use and enjoyment of their space in residence.

Behaviour by an individual(s) that creates a significant nuisance and/or disturbance to an individual(s) or community.

Level Three Infraction (3-4 points)

Behaviour by an individual(s) which: endangers the safety and security of themselves or another individual(s); and/or compromises personal or university property; and/or attacks the dignity/integrity of an individual(s); and/or breaks the laws of the land.

Administrative Infractions (points based on severity of infraction): Are related to how you use your assigned space in residence, and whether you abide by the terms of the Residence Agreement; they typically involve misuse or loss of university property and often include charges that will be billed to your student account. Examples of Administrative Infractions include but are not limited to: damages, commercial use of residence space, lost keys, and subletting; each of these infractions are described in the Residence Administration & Facilities section of Infraction Categories.

Note: It should be noted that the possibility of residence disciplinary action does not preclude referral to other disciplinary systems including the Student Code of Conduct or remedies that may be available through the legal system. Expulsion from the University may occur in extreme cases.

Residence Handbook 2023-2024 51

Administration & Enforcement of Residence Community Standards

Infractions are dealt with through a variety of mechanisms depending on the severity of the incident. This document attempts to provide to the student an example of what the sanction might be for particular behaviour. This does not limit the possibility of other sanctions being imposed should the situation warrant. All financial costs incurred, as a result of breaking a residence regulation will be billed to the account of the student(s) involved. Should students move out of residence prior to being adjudicated for alleged misconduct, Housing Services reserves the right to adjudicate the case or forward cases to the appropriate University departments (i.e. Campus Safety Services and/or the Office of Student Affairs) to have cases investigated/adjudicated. All sanctions are considered to be in effect once the student(s) has been notified verbally during their conduct meeting. Should a student fail to attend the meeting, a decision will be made and a sanction imposed in their absence. Students will receive an email to their Brock account outlining the infraction and sanctions associated. In cases of suspension or eviction from residence, a written letter confirming the details of the sanction will be sent via the North and South Service Desks. All sanctions are in effect whether or not a student has read their email and/or picked up this written confirmation. Letters must be picked up within one week of notification that the letter is available for pick up.

The following may occur as a consequence of breaking residence rules (all are described further below):

• Verbal Warning

• Written Warning

• Disciplinary Points

• Community Service/Educational Sanctions

• Disciplinary Probation

• Suspension or Loss of Privileges

• Confiscation of Prohibited Items

• Restitution for Damages

• Suspension from Residence

• Relocation within Residence

• Eviction from Residence

• Denial of Readmission to Residence

• Alcohol Probation

• Cannabis Probation

• Collective Billing

• Ban from all Brock University residences

• Other Actions

Verbal Warning

Verbal warnings are used by the Residence Life Staff (RLS) to indicate to students what standard has been violated and what the consequences are should the behaviour be repeated. Verbal warnings will not be given for Level 3 infractions and are typically only given prior to Fall Reading Week.

Written Warning

The purpose of the Written Warning is to ensure that students are aware of their own questionable or inappropriate behaviour. A Written Warning comes in the form of written communication that is given to the student(s) involved in the incident(s). It may indicate the number of points assessed for the infraction(s).

Disciplinary Points

Disciplinary points are assigned in the majority of incidents. Points are accumulated throughout each academic year and are not removed from a student’s disciplinary history until the completion of the academic year. As described in the Infractions section, the points issued for an infraction increase as the level of the infraction increases.

Community Service/Educational Sanctions

Community and Educational Sanctions may be used individually or may accompany any number of other sanctions. They may include, but are not limited to: referral to the Substance Choices seminar, educational programming, reflection paper, completion of a quiz, meeting with a campus partner (eg. Campus Safety Services, Human Rights and Equity Services) and community service to the affected person/group.

52 Residence Handbook 2023-2024

Disciplinary Probation

Typically, students placed on Disciplinary Probation are notified via written communication. Disciplinary Probation means that the student(s) needs to monitor their behaviour carefully because the next incident of inappropriate conduct may result in suspension or eviction from residence. Disciplinary Probation can last for a specific period of time (e.g. one month), until the end of the academic year (April), or until the student in question moves out of residence.

Suspension or Loss of Privileges

Students who break residence rules and regulations may have some of their privileges suspended. This may include, but is not limited to: removal of speakers or electronic equipment; removal of guest privileges; limited access to residence areas; and restricted Dining Hall privileges. Housing Services reserves the right to carry the suspension of privileges into the following academic year(s).

Confiscation of Prohibited Items

As necessary, items that are prohibited in residence may be confiscated by a member of Housing Services staff or Campus Safety Services. In some cases, it is possible for the item to be retrieved at a later date in cooperation with a Residence Life Coordinator. Please see the Confiscated Items procedure for more details.

Restitution for Damages

Students responsible for damages will be charged the cost of replacement or repair. They will be billed directly to their University account. An administrative fee may apply depending on the situation. There may be some benefit to the student(s) in question to come forward as soon as the incident occurs so that an investigation does not have to occur. Students are not permitted to make repairs on their own, any attempts will be redone by a professional at the students’ expense.

Suspension from Residence

Students may be suspended from residence for a period of time. Students on suspension may not: be within 10 meters (35 feet) of any residence; eat in the Residence Dining Halls; access their residence room; access their mailbox/package locker; or stay with any other residence student in their residence room. This also includes attending any residence sponsored events, either on or off campus. Students in violation

of suspension can be charged under the Trespass of Property Act. Students must turn in their keys to the appropriate Service Desk (including their mailbox key) and sign their loss of privilege paperwork will have their student card access removed, prior to their departure or they will be deemed to have not completed their sanction. Any exception must be approved, in writing, by Housing Services. Students who are charged with trespassing during their suspension may also face further residence sanctions.

Relocation within Residence

Students may be required to relocate to another room in residence, often in a different area of campus in some situations. This will often include restrictions on that student’s ability to return to their previous residence building.

Eviction from Residence

In some cases, a student(s) may be required to vacate residence. The student(s) will also be banned from all other residence buildings. Students in violation of an eviction can be charged under the Trespass to Property Act. When a student(s) presents a threat to any other residence student or the community, they may be required to leave residence immediately. All students evicted from residence automatically receive a ban from residence until the end of the next academic year.

Denial of Readmission

Housing Services reserves the right to deny students admission to residence for the following year. The student(s) will be informed of this decision after he or she has checked out of residence.

Residence Handbook 2023-2024 53
memopencil

Alcohol Probation

Students on alcohol probation may not: consume alcohol in any residence; possess or have any evidence of possession of alcohol in any residence; come back to any residence after drinking at another location (e.g. an off-campus party, pub or bar) nor have even the smell of alcohol on their breath while in any Brock residence. Students caught drinking underage are placed on Alcohol Probation which is in effect until a minimum of two weeks have passed AFTER their nineteenth birthday. Students who create a disturbance after or because of drinking, violate rules and regulations after or because of drinking, or demonstrate signs of problem drinking are typically placed on alcohol probation for a specific time period. Students in violation of their alcohol probation may face suspension or eviction from residence. Students on Alcohol Probation are automatically placed on Disciplinary Probation for a period of time. Students who misuse alcohol in residence are also required to complete the “Substance Choices” program offered through Student Health Services.

Cannabis Probation

Students on cannabis probation may not: consume cannabis in any residence; possess or have any evidence of possession of cannabis in any residence; come back to any residence after consuming at another location (e.g. an off campus party). Students caught consuming underage are placed on Cannabis Probation which is in effect until a minimum requirement of two weeks have passed AFTER their nineteenth birthday. Students who create a disturbance after or because of cannabis consumption, violate rules and regulations after or because of intoxication, or demonstrate signs of substance misuse are typically placed on Cannabis Probation for a specific time period. Students in violation of their cannabis probation may face suspension or eviction from residence. Students on Cannabis Probation are automatically placed on Disciplinary Probation for a period of time. Students who misuse cannabis in residence are also required to complete the “Substance Choices” seminar offered through Student Health Services.

Collective Billing

Communities of students (e.g. a specific floor, unit, house/hall/court/or block) may be billed collectively for damages that occur to the common areas they

occupy. This is only done after attempts have been made to find the individual(s) responsible for the damage. This includes, but is not limited to, fire alarm charges, extra cleaning charges, broken fixtures, broken windows, missing or damaged furniture, etc. Collective billing is also applicable to common space inside townhouse units, with common area damages being billed to all the occupants of that townhouse unit. Collective billing is done on a monthly basis and any charges will show up on a student’s account shortly after the first of the month after the damages have been assessed.

Ban from Residence

Individuals (students and non-students) may be banned from all Brock University residences. Individuals in violation of a residence ban can be charged under the Trespass to Property Act. Should an individual require access to any of the university offices located in a residence building, they will need to make arrangements with the Manager, Residence Life.

Other Actions

In some cases, students may also be asked to see other people or departments either on or off-campus. Examples of those professionals include: Campus Safety Services, the Niagara Regional Police, staff in the Student Success Centre, the Office of Student Affairs, Ombuds Officer, the Human Rights and Equity Office and/or staff in the Student Wellness and Accessibility Centre. Other disciplinary actions may be taken at the discretion of the Manager, Residence Life.

Any Level 3 infraction could result in an eviction at any time.

54 Residence Handbook 2023-2024
Number of Accumulated** Points Range of Sanctions Applied at this Point Level** 0 to 2* Verbal and/or Written Warning 2 to 4* Loss of Privileges and/or Probation 4 to 6* Probation to Suspension 6 or more* Suspension to Eviction from Residence
of Sanctions
Typical Range

* It is important to keep in mind that severity or circumstance surrounding an incident may result in a higher point value than what is listed and, therefore, a heavier sanction may be imposed.

** Accumulated Points refers to the TOTAL number of points a student has accumulated from all infractions record, which includes points from past disciplinary incidents (e.g. a low level infraction receives a more serious sanction if a student has a previous disciplinary points on record).

Educational Sanctions are used regularly at all point levels and Disciplinary Points will be applied in the majority of cases.

Appeal Process

Appeal Process for Sanctions

Students may appeal sanctions given by Head Residents, the Residence Life Coordinator, and/or the Manager of Residence Life. Some infractions may go immediately to the Manager of Residence Life, especially when the safety of an individual or the community is compromised. Decisions made by the Manager of Residence Life may be appealed to the Director of Housing Services. During the appeal process, students must comply with all aspects of an imposed sanction until such time as they are notified in writing of the outcome of their appeal. Students can appeal a decision only once.

Appeal Procedure for Sanctions

Students have three business days after receipt of the written decision to submit a formal written appeal of a sanction including the grounds by which they wish to appeal as well as a description of the pertinent information for the appeal. Students may only appeal on the following grounds:

• Bias and/or unfair treatment, any procedural error, Improper investigation, discrimination etc.;

• The sanction is disproportion to the infraction;

• New information has come to light, a new witness, or something not known when the original decision was made.

Appeal of Sanctions given by a Head Resident

The student has three business days to appeal a Head Resident’s decision, in writing, to the Residence Life Coordinator.

Appeal of Sanctions given by a Residence Life Coordinator

The student has three business days to appeal a decision made by a Residence Life Coordinator, in writing, to the Manager of Residence Life.

Appeal of Sanctions given by the Manager of Residence Life

The student has three business days to appeal a decision made by the Manager of Residence Life, in writing, to the Director of Housing Services.

Appeal Procedure for Damages/Charges

1. Charge Responsibility: When reasonable, a member of the Residence Life staff will make an attempt to investigate the damage to determine the individual(s) responsible. Appeals with respect to responsibility for damages/charges should be made following the same procedure as the appeals for sanctions.

2. Charge Amount: Many charges issued within Housing Services are set annually based on an average from the previous year and are not appealable. Any appeals regarding the amount charged must be made within five business days of the email notification of the charges. Appeals should be made to the Residence Facilities Supervisor, Administration.

Please note: As notification of pending inspections are provided in advance and all students are responsible for shared living areas as noted in the Residence Handbook and the RCS, the associated charges and responsibility are not able to be appealed.

Possible Outcomes of Appeal (for Sanctions and/or Damages)

Three options exist for the person(s) hearing the appeal. They can:

• Uphold the original decision

• Overturn the original decision

• Modify the sanction (which could include increasing or decreasing the severity of the original sanction or increasing or decreasing the charges)

Residence Handbook 2023-2024 55

Infraction Categories

Infractions are grouped into four categories: Community Respect & Accountability; Safety; Alcohol, Drugs & Gambling; and Residence Administration and Facilities. Within each category, individual infractions are described and have a typical infraction level shown in brackets. Students should note that the specific infractions listed are not an all-inclusive nor exhaustive list and disciplinary action may be taken in response to any behaviour which meets the levels defined in “Infraction Levels”.

Community Respect & Accountability

The residence community is a unique environment— one in which approximately 2,800 students live together in close proximity while they study, sleep, and socialize. Respect for our community space and those who live in it, as well as accountability for our actions, are central to creating an environment that meets everyone’s needs while enriching the Brock experience.

Bullying/Cyber Bullying (Level 2 or 3)

Bullying is unwanted, aggressive behaviour that involves a real or perceived power imbalance. The behaviour is typically repetitive, or has the potential to be repeated, over time. All forms of bullying are not tolerated on our campus. Messages seeking to harm, intimidate or coerce sent to or about a person through technological means (e.g. text, social media) are not permitted under this standard.

Cooperation With Staff (Level 1, 2 or 3)

Residents and guests are expected to cooperate with all Brock University staff members, including but not limited to: Residence Life Staff, Residence Facilities

Staff, Service Desk Staff, Custodians and Campus Security. Infractions include but are not limited to:

• Failing to reply to communications (e.g. voicemails, Emails) sent by Brock Residence Staff within three business days

• Lying to staff, misleading staff, failing to provide identification when requested, providing false identification, or otherwise failing to cooperate.

• Obstructing or interfering with any investigation.

• Failing to comply with a reasonable request of any university staff member.

• Acting in an offensive, inappropriate or hostile manner toward staff.

• Violating the terms of a behavioural contract or sanction.

• Failing to report a violation of the RCS.

• Avoiding or refusing to comply with meeting requests. Students who fail to respond to repeated meeting requests risk having their residence room lock disabled (at the student’s expense) until such time as the student appears for a meeting.

Disruption of Community (Level 1, 2 or 3)

Every individual has the right to an environment that, while safeguarding dissent, is free from interference and disruption. Every individual has the responsibility to not intimidate, interfere with, threaten or otherwise obstruct any activity organized by the University, including classes or to hinder other members of the University community from being able to carry out their legitimate activities, including their ability to speak or associate with others. The laws of the land (municipal, regional, provincial and federal) will apply in residence at all times. This includes, but is not limited to any conduct or activity which is deemed to be inappropriate by peers, Housing Services Staff and the Residence Life Staff.

Guests (Level 1, 2 or 3)

Please note, we continue to work with Public Health and monitor the public health landscape. In the event that Public Health guidelines change, Housing Services policies and procedures may change as well and we will communicate accordingly

Any non-resident of Brock Residences is considered a guest. Students must accompany any visitors (guests and/or fellow residents from other areas) at

56 Residence Handbook 2023-2024

all times. Students may only have guests for six nights per month, with no more than two guests on any occasion (i.e. do not invite groups of more than two friends to visit residence after 11 p.m. or overnight at any one time). Guests may not visit for more than three nights in a row. In the event of an extenuating circumstance, students may ask for permission from the Residence Life Coordinator to have a guest for more nights than indicated above. Students must be considerate of other students who share their living space while having guests and let their roommate/ unitmates know when they will be hosting a guest. Guests must sleep in their hosts assigned living space and not in lounges or other common spaces. Students may not give their keys to a visitor or guest. Guests may be restricted from and/or banned from residence at the discretion of the Manager, Residence Life.

Arrival and movement of guests: Guests must be met by their residence host at the front entrance of the host’s residence (rather than inappropriately entering and wandering through residence in search of their host). Guests must be accompanied by their residence student host, and have their wristband on at all times during their visit. Housing Services reserves the right to remove a guest or revoke a students’ guest privilege.

No Guest Periods:

Students are not permitted to have any non Brock residence guests in the evenings during the following time periods:

• Welcome Weeks until Sunday, September 17, 2023

• There will be a no guest policy in effect during the first two weeks of September.

• First week of second term

• From Move In Day until the following Monday

• St. Patrick’s Day

• From the Thursday preceding St. Patrick’s Day until March 18

Wristbands

All residence students will be issued a wristband for Welcome Week which will act as identification and for the purposes of admission to Welcome Week events. Students must wear their wristband for the entire week, students who remove their wristband

will be responsible for paying for a new wristband.

For Guest Sign In Process:

Submitting Your Overnight Guest Request

• Go to my.brocku.ca. (It is essential that your browser is set to enable pop-ups/cookies).

• Login using your Brock username and password.

• Click the “Applicant and Student Self Serve” tab.

• Click “Apply for Residence” at the bottom right of the page.

• Select “Overnight Guest Request.”

Please email eastdesk@brocku.ca for assistance with or to cancel your overnight your overnight guest request.

• As soon as your guest arrives, please bring the guest to your Service Desk so they can verify guest ID and provide guest band authorizing your guest to be in residence.

• Print or keep a copy of the email confirmation for verification purposes if requested by Brock staff. There is no charge to sign a guest in, and for the safety of everyone in the residence community, nonregistered guests (i.e. guests who are found without wristbands) will be asked to leave residence and/or escorted from campus.

Sign-in Procedure and ID requirements:

You and your guest must visit the North, East or South Service Desk TOGETHER to complete the sign-in process. To do so, you will need your Brock Student ID card, and your guest must present government-issued photo identification bearing the guest’s date of birth (i.e. driver’s license, passport). If a guest does not provide ID with a date of birth then that guest will provided a wristband indicating that they are under the age of 19.

Housing Services reserves the right to deny guests entry that do not have any form of identification. Both you and your guest may be asked to present additional identification if there is any question as to your identity or authenticity of your identification. Each guest will be fitted with a guest wristband (which must be kept on and visible at all times) which permits them to be in residence provided they behave in accordance with residence rules. Students may not sign in guests on behalf of other students. This includes students who already have two guests

Residence Handbook 2023-2024 57

signed in or students who have had guest privileges suspended or revoked, as well as for those who have been banned from entering residences. We reserve the right to deny guests based on past behaviour.

Guest behavioural expectations:

Residents are held responsible for guest behaviour (regardless of whether or not they have signed in their guest), and are responsible for informing their guests of residence rules and policies. In the event that guests are disruptive, cause damages, or conduct themselves inappropriately, they may be asked to leave (escorted by Campus Security or Niagara Regional Police if necessary), and an incident report will be filed. The residence student host may be billed for any damage caused by the guest(s), and may be sanctioned for the guest(s) behaviour.

If, after your guest(s) arrival, you are concerned that your guest(s) may become disruptive, it is important that you instruct your guest to leave before problems arise and escort them out of residence. We would also recommend that you notify your Service Desk regarding their departure from residence. Any guest who is disruptive may be subject to a fine under a Brock Offence Notice or a Provincial Offence Notice through CSS and a campus ban. Residence students will be responsible for their guests’ behaviour regardless of where they are on campus at the time of an incident. Guests who are also Brock students may have their behaviour documented by Campus Security and face consequences under the Student Code of Conduct.

Uninvited/unexpected guests:

In the event that an uninvited/unexpected guest(s) show up to visit you, you are still required to sign them in as outlined above. If you are not comfortable hosting a particular uninvited/unexpected guest(s), you should not permit them to enter residence, and you must advise a residence staff member or Campus Security immediately of the persons presence. If you permit uninvited/unexpected guest(s) to enter residence, you are responsible for their behaviour whether or not you sign them in as a guest.

Exam Periods:

During the December and April exam periods, only Brock students are permitted as guests and only for the purposes of studying up until 11 p.m., after 11 p.m. only Brock RESIDENCE students will be permitted

as visitors. During exams, non-Brock guests are prohibited to ensure that we are providing a quiet environment conducive to study, while still permitting residence students to study in residence with one or two off-campus classmates up to 11 p.m.

Residents:

Residents are held accountable for their behaviour regardless of their location in residence and are not required to sign into other residence buildings. Should there be evidence of unacceptable behaviour on the part of a resident, a restriction from a building or area of residence/campus may be put in place. Residents may be asked to leave a building or area of residence at the discretion of the staff member involved.

Discrimination (Level 2 or 3)

Every individual has the right to an environment characterized by equal opportunity and equitable access to University goods and services. Every individual has the responsibility to treat all members of the University community without discrimination. Discrimination is defined as any conduct that results in adverse treatment of an individual or group on the basis of race, ancestry, place of origin, colour, ethnic origin, citizenship, creed/religion, sex, sexual orientation, disability, age, marital status, record of offence, gender identity or receipt of public assistance.

Harassment (Level 2 or 3)

Harassment is defined as repeated vexatious comments or conduct in relation to a person or group of persons, which is known or should be known to be unwelcome, which has the effect or purpose of creating a hostile or intimidating living, working or educational environment. This includes any attention or conduct by an individual or group who knows, or ought reasonably to know, that such attention or conduct is unwelcome, unwanted, offensive, or intimidating. Harassment based on a person’s race, culture, creed, religion, sexual orientation, gender, age, abilities or appearance will not be tolerated. Harassing messages sent to a person or written about a person through technological means are prohibited. These technological means may include but are not limited to text messages, social media, and blogging are also not permitted under this standard. Harassment of a sexual nature is addressed under the section on Sexual Violence.

58 Residence Handbook 2023-2024

Noise (Level 1 or 2)

Residents are to be mindful of the disruptive effect of their noise on others and at all times to respect the reasonable requests of others to cease making noise at any time, whether or not the request is made by the student directly or through the Residence Life Staff or other Brock staff (this includes, but is not limited to, the volume of any type of speakers, stereos, amplifiers, sub woofers, a person’s voice and musical instruments). The Residence Life Staff, Housing Services Staff and Campus Security Staff will be responsible for determining acceptable noise levels and students may be directed to reduce noise levels at any time of the day. In addition to being considerate at all times, quiet hours are those times during which residents are prohibited from making noise that can be heard outside of their unit or room, or which may disturb the resident’s roommate in any way (if applicable), or which can be heard outside the residence building and may disturb a resident inside the building.

Quiet hours are:

Sunday to Thursday - 11 p.m. to 8 a.m. Friday and Saturday - 1 a.m. (Sat/Sun) to 8 a.m.

Please note: “Respect hours” are in effect 24 hours a day, 7 days a week. Extended quiet hours are implemented during December and April exam periods. Starting on the last day of classes each term, quiet hours are extended to 22 hours daily with only two hours for less quiet activities - Sunday through Friday 7- 9 p.m. and Saturday 9 -11 p.m.. During these two hours noise should not be excessive.

Physical Aggression and Threats of Violence (Level 2 or 3)

Physical aggression, violence and threats of violence are not tolerated in residence. Physical aggression and violence can include, but are not limited to: pushing; pulling; slapping; biting; kicking; hitting; fighting; punching and posting or uttering threats. Students involved in acts or threats of physical aggression will face consequences regardless of who initiated the aggressive behaviour. Students who witness a fight or have been threatened are to call Campus Safety Services immediately (x3200).

Pornography (Level 1, 2 or 3)

Posting or displaying pornographic materials, photos, images and/or graffiti, including by electronic means in public areas including but not limited to hallways,

common rooms, lobbies, stairwells, bathrooms, exterior of room doors, living rooms, kitchens or windows, or any interior area of a room that can be seen from an open door or window is prohibited (in accordance with the Criminal Code of Canada, Section 163), as is use of computers or network infrastructure to display or distribute such material. Refer also to the University’s Respectful Work & Learning Environment policy and guidelines for appropriate academic computer use.

Theft (Level 2 or 3)

As per federal and provincial laws, taking someone else’s property, including university and/or municipal property, without permission is not permitted even if the property is left unattended. Students are responsible for keeping their rooms/units locked and carrying their keys and student cards with them at all times. In the event of a theft, please contact Campus Safety Services directly at x3200.

Pranks & Raids (Level 2 or 3)

Initiating, encouraging, supporting, responding in kind, retaliating or participating in raids and/or pranks that are disruptive, offensive, damaging to property, make a mess, hostile to residents and/or staff are prohibited. These raids/pranks include, but are not limited to: water fights; leaners; prank phone calls; locking people in/out of rooms; removing/relocating personal or university property etc.

Sexual Violence (Level 3)

As per Federal and Provincial Laws, sexual violence is not tolerated in residence. Sexual violence is defined as any violence, physical or psychological, carried out through sexual means or by targeting sexuality. If you, or someone you know, experiences sexual violence, please contact a member of the Residence Life Staff (via your Service Desk x3706), the Office of Human Rights and Equity Services (x6174) or Campus Safety Services (x3200) immediately.

All incidents of sexual violence will be addressed through the Sexual Assault and Harassment Policy which is administered through the Office of Human Rights and Equity Services (brocku.ca/policies/ wp-content/uploads/sites/94/ Sexual-Assault-Policy.pdf)

Residence Handbook 2023-2024 59

Safety

Residents, guests, and staff are expected to exercise care and good judgment with regard to their own personal safety and the safety of others. Students may be in violation of the residence safety standards if they cause an unsafe situation for other students including, but not limited to: propping open exterior doors or tampering with light bulbs, fixtures or switches in hallways, stairwells or elevators.

Please note: Any level 3 infractions of the safety standards will result in a charge of $75 for “Tampering with Life Safety Equipment” plus any applicable repair or replacement costs.

Fire Safety (Level 1, 2 or 3)

Students are expected to ensure that their living environment is safe and free from life safety hazards. This includes not overloading plugs, using CSA approved power bars and extension cords, using the approved appliances only in approved locations, ensuring that items such as curling irons or hair straighteners are unplugged when not in use and reporting non-functioning life safety devices (e.g. alarm, extinguisher, door closer). Propping fire doors, and propping bedroom doors in Vallee, Earp, Res 8 or Lowenberger while not in the room and attaching, covering or hanging items from any fire safety/ detection equipment or the wiring/conduit leading to it is prohibited.

Candles and Incense (Level 1 or 2)

Candles, incense, or wax/oil lamps are not permitted in any residence. This includes lighting/burning as well as possession. Any student required to light or burn candles/incense based on religious grounds must seek and receive prior written permission from their Residence Life Coordinator. Students are permitted to have lava lamps in residence provided that they are CSA compliant. Lamps should be off when students are not home.

Tampering with Life Safety Equipment (Level 3)

Discharging fire equipment, interfering with the normal operation (e.g. covering, removing wires or batteries), tampering with or using any fire prevention

or detection equipment for any purpose other than the control of fire is prohibited. This includes but is not limited to: tampering with fire extinguishers (including removing pull pins or plastic ties holding the pull pin in place and/or discharging fire extinguishers), automatic door closers (for bedrooms and common spaces), exit signs, fire hoses, smoke heat detectors, carbon monoxide detectors and/or microwave sensors.

Combustible Fuels (including Propane Tanks) (Level 2 or 3)

Using and/or storing propane tanks (either empty or full) indoors, or any appliance requiring combustible fuel (including fondue sets) is not permitted in any residence. Barbeques are only permitted to be used at Quarry View and Village residences, must be stored and used at least ten metres from the building for fire safety purposes and must be removed prior to November 1st. Any barbeques found in disrepair or in close proximity to a unit will be removed at the units/ owners’ expense.

Fire Alarms (Level 2)

Information about fire alarms will be communicated to students in person and electronically. Please review this information regularly and ensure you are aware of the appropriate procedures.

Traditional and Semi-Suite Residences:

Students are required to evacuate residence from the closest exit that will take them directly out of the building and meet with other students from their community in their designated meeting place for all fire alarms except the posted monthly fire alarm test. There is no re-entry to the building until the all clear is given by the Fire Department/Campus Safety Services/RLS.

Village Residence:

If a carbon monoxide and/or smoke detector goes off, residents are to evacuate the area in alarm immediately (may be the individual unit, a cluster of units or the entire court) and meet with other students from the affected area in the designated meeting place for all fire alarms except the posted monthly fire alarm tests.

Quarry View Residence:

If a carbon monoxide and/or smoke detector goes off, residents are to evacuate the unit immediately

60 Residence Handbook 2023-2024

and meet with other students from the affected area in the designated meeting place for all fire alarms. Students should call the Service Desk so that the appropriate emergency personnel can respond.

Nuisance Alarms:

Students are expected to avoid behaviours that may trigger a fire alarm in non-emergency situations. These behaviours may include but are not limited to: leaving cooking appliances unattended, spraying mists near a detector (e.g. perfume, body spray, hair spray, Febreze), vaping/smoking indoors, using hair drying/steaming/straightening appliances beneath a detector and/or striking/tampering a detector.

Re-Entry:

There is no re-entry to any building until the all clear is given by the Fire Department/ Campus Safety Services/RLS.

Fire Drills:

The University is required to conduct at least one fire drill annually. During a fire drill, we are required to enter each bedroom to ensure all residents have evacuated the building. Any infractions of the RCS noted at this time will be documented and addressed.

Students who fail to comply with fire alarm procedures, activate a nuisance alarm or tamper with fire safety equipment will be subject to a charge from Brock University, a charge from the St. Catharines Fire Department and/or other disciplinary measures. For 2022, the charge from the St. Catharines Fire Department for a nuisance alarm is $1431. Additionally, the Brock University charge for nuisance alarms is $350.

Inappropriate/Illegal Entry or Exit (Level 3)

Gaining access or exiting by forcing a lock, accessing any residence space through windows, balconies, or utility hatches, or entering without permission is prohibited. For safety reasons, all utility hatches, tunnels, rooftops, balconies, attics and unoccupied basements are strictly off-limits to residents. Charges will apply should repairs be required. Please see the standard regarding Restricted Areas.

Keys/Swipe Cards (Lost keys: Administrative Infraction; Loaning Keys: Level 1, 2 or 3)

Students are required to carry their Brock ID and assigned residence keys. Lost or found keys should be reported immediately to a residence Service Desk

for your safety and the safety of those around you. Charges for replacement keys, lock changes and/or reprogramming are billed to your student account. Loaning any residence key or swipe card to anyone is prohibited. Students are not permitted to copy their residence keys or cards. Students who need to sign out their temporary access keys or card from one of the Service Desks are subject to sign out costs as outlined on your key card at check in. Misuse or abuse of the sign out process will result in having sign-out privileges suspended.

“Open Door” Policies (Level 1/Administrative Infraction)

Open Doors are not permitted in residence; leaving a door unlocked or granting open access to one’s space will not be accepted as an excuse for any damage or infraction that occurs in a student’s space. Students are required to keep doors closed and secured while they are not present, including basement back doors in DeCew, townhouse unit front doors, fire doors in Quarry View, bedroom doors in traditional and semi-suite style residences, front doors to residence areas, hallway doors and fire exits. Staff are required to lock doors upon their exit/ departure from any room or unit regardless if they were unlocked upon arrival.

Prohibited Appliances (Level 1)

Students are permitted to bring or rent one small, compact sized refrigerator with no separate freezer compartments (maximum size of 5 cubic feet) to all residences. Housing Services reserves the right to inspect any permitted appliances for safety reasons and ask for them to be removed based on their age and/or condition. Space heaters are not permitted in any residence, this includes fans with a heater function (unless provided by Housing Services due to maintenance issues). Non-Brock issued space heaters will be confiscated if found. Please see the guideline for Confiscated Items (on our website) for more information.

Traditional and Semi-Suite Style Residences: A history of problems, including fire alarms, associated with students cooking and using other appliances in residence bedrooms and lounges has resulted in restrictions on the appliances that residents of DeCew, Vallee, Earp, Res 8 and Lowenberger may bring to residence. DeCew, Vallee, Earp, Res 8 and Lowenberger students are not permitted to bring their own cooking/food

Residence Handbook 2023-2024 61

preparation appliances (including freezers) into the traditional/ semi-suite style residences. This includes but is not limited to coffeemakers and blenders. Basic appliances (microwaves and kettles) are provided for student use in many common areas.

Townhouse Style Residences:

Village and Quarry View residents must store and use cooking appliances only in kitchens. One small freezer (maximum size of 7 cubic feet) is permitted per townhouse and only in the kitchen, front vestibule or storage area on non-carpeted surfaces. In all cases, residents are advised to exercise care and good judgment in the use of permitted appliances, and should never leave any cooking appliance unattended while it is operating. Please view the Allowable Appliances information for more detail on this standard.

Physically Active Games in Residence

Common Spaces, Courts, Quads, or areas adjacent to Residences (Level 1)

Activities that are potentially destructive, disruptive and/or may cause physical injury or property damage are not permitted in residence common spaces including but not limited to; lobbies, lounges, halls, courts, elevators or in areas directly adjacent to the residence halls including parking lots. These activities include, but are not limited to: nerf gun and water gun fights, sports (e.g. football, soccer, hockey, baseball, mini sticks, lacrosse), snowball fights and/or the indoor use of inline skates, bicycles, frisbees, longboards and skateboards. Please see Appendix F for a map.

Communicable Diseases (Level 1, 2 or 3)

Students are expected to comply with public health requirements set forth by the university and other relevant bodies (local and provincial public health units).

Restricted Areas (Level 3)

Students are prohibited from being in or on any restricted areas. These include but are not limited to: the roof of any residence; Village unit basements and attics; Quarry View utility rooms and attics; Lowenberger basement; University tunnels; window ledges; and balconies. Should students find that the access to a restricted area is opened or unlocked, this does not grant permission to that area and they are asked to report the security breach to the Service Desk immediately. This includes the Residence Dining Halls outside of normal operating hours and another

person’s room when they are not there. Sleeping is prohibited in public areas of residence including but not limited to all lounges, lobbies and hallways.

Smoking and/or Vaping (Level 2/Administrative Infraction)

Smoking/vaping of any substance is not permitted in any buildings at Brock University, including residences. Additionally, as per the university’s Smoking & Vaping Policy, smoking and or vaping cannot occur within five meters of any campus building entrances, which includes entrances to residence buildings such as exterior stairwell doors in DeCew, unit front doors or front stoops of Village and Quarry View units, and at the front or back entrances of Vallee, Earp, Res 8 and Lowenberger residences.

Smoking/vaping of tobacco and/or flavoured vape liquid is acceptable in designated areas only, which will be located five meters from any building entrance and nine meters away from air intake vents, loading docks and flammable & combustible liquids; please refer to Appendix E for a map of the designated smoking areas on campus.

In accordance with campus policy, smoking/vaping of cannabis is not permitted in any designated smoking area or anywhere on campus.

Hookahs, shisha, e-cigarettes, vapourizers and similar smoking devices are not permitted for use in residence and as a result will be confiscated upon evidence of inappropriate use. Any student wishing to possess or use a hookah for cultural purposes must seek and receive prior written permission from their Residence Life Coordinator.

Please refer to the Cleaning Charges for Smoking in Residence (brocku.ca/housing/importantinformation/rules-and-regulations/cleaning-chargesfor-smoking-in-residence) for possible additional cleaning costs associated with violating the residence smoking standard.

Throwing Items (Level 1, 2 or 3)

Throwing, dropping, or ejecting objects or material from residence buildings, out of windows, roofs, or down stairwells is prohibited. Throwing anything at residence buildings is also prohibited. Throwing items and/or food in the Residence Dining Halls is also prohibited. Items lost on any residence roof/balcony must be retrieved by the appropriate University staff member with any related costs being incurred by the student.

62 Residence Handbook 2023-2024

Weapons (Level 3)

The use and/or possession of firearms, knives, ammunition, items intended to resemble firearms, simulated weapons, fireworks or other explosive/ flammable devices and any other weapon or item that is created/intended/used to cause harm or could be seen as intimidating are strictly prohibited. Students are permitted to have standard kitchen knives and small pocket knives. Air pellet guns and paintball guns are prohibited by this standard. Students who may require a sword/knife for any reason must seek and receive prior written permission from the Residence Life Coordinator to be able to store it in residence.

Alcohol, Drugs, & Gambling

Along with our educative and developmental goals as part of the broader university community, Housing Services works diligently to uphold Federal, Provincial, Regional and Municipal laws, as well as university and residence policies and community standards. We are committed to fostering an environment of responsible (and lawful) choices with regard to alcohol, drugs, and gambling, and engaging community members in alleviating associated problems if and when they arise.

Alcohol Use Glorification (Level 1)

Displaying items in residence that glorify the consumption of alcohol is prohibited. Beer can walls, beer case displays (more than five panels) and displays of alcohol and/or beer bottles or any other large collection of recyclables (more than five cans and/or bottles per person in a public area) are not to be kept in student living spaces and must be removed. This includes playing drinking games that do not involve alcohol and the possession of alcohol paraphernalia not in use (e.g. funnel, beer pong table).

Beer Bottles (Level 1)

Beer in any colour of glass bottles, along with any other beer type beverage (e.g. malt liquor) in glass bottles, is not permitted in residence.

Cannabis Plants (Level 1 or 2)

Students are not permitted to grow or possess cannabis plants in residence. Housing Services reserves the right to confiscate and destroy any cannabis plants found in residence.

Cannabis Possession and Storage (Level 2)

Students may possess up to 30 grams of dried leaf cannabis or the equivalent amount of legallyavailable cannabis product(s), stored in a sealed, scent-proof container. Students possessing more than 30 grams will be addressed through the Distribution of Controlled Substances standard. Students requiring medical cannabis should notify their Residence Life Coordinator to ensure proper procedures are followed.

Distribution of Controlled Substances (Level 3)

The distribution of controlled substances is prohibited in the residence community. This standard also prohibits the distribution of drugs, tobacco or alcohol to underage students and the distribution of prescription or non-prescription drugs.

Students found trafficking controlled substances (exchanging substances in any amount for money and/ or property) in residence will be evicted and their case will be forwarded to the Office of Student Affairs.

Drug Paraphernalia (Level 2 or 3)

The possession of drug paraphernalia in residence is prohibited and Housing Services reserves the right to confiscate drug-related paraphernalia. This includes but is not limited to: bongs, pipes, rolling papers, grinders and vaporizers or any items deemed to be associated with use of drugs in residence.

Illegal Drugs (Level 3)

Students in residence are prohibited from being involved with the possession, use, and consumption of illegal drugs in the residence community. This includes evidence that a student has used (e.g. returns to residence under the influence of drugs) drugs elsewhere.

Please note that students found to be using or in possession of such substances in the residence community will be, at a minimum, suspended from residence on the first offence.

Residence Handbook 2023-2024 63

Substance Misuse (Level 3)

Students in residence are prohibited from misusing of alcohol and drugs in residence. This may include, but it not limited to, the possession, use, and consumption of prescription drugs by a student that were not prescribed to that student and/or the use of non-prescription drugs for recreational purposes in the residence community.

Please note that students found to be misusing substances in the residence community may be suspended from residence on the first offence.

Gambling in Residence (Level 2 or 3)

Participating in and/or running an illegal gaming or gambling operation is prohibited. Games of skill or chance (e.g. Poker, Sports Pools) where money and/or property changes hands are prohibited under this standard.

Drinking Games (Level 3)

Participating in “drinking games” (including but not limited to: flip cup, beer pong, century club, and kings cup), and/or participating in activities or games where drinking is a consequence, within residence is prohibited.

Mass Consumption and Common Source Alcohol (Level 3)

Possession and/or consumption of “common source” alcohol [e.g. Kegs, “bubbas”, Jell-O shooters, Texas Mickeys, other large containers of alcohol] is prohibited. Large containers of alcohol are defined as 16oz or 501mL of beer/50oz or 1475 mL hard liquor/1.75L of wine/16oz or 501mL of pre-mixed alcoholic beverage (cooler). Home brewing or wine making equipment is also prohibited.

Please note: Housing Services reserves the right to confiscate alcohol-related paraphernalia (e.g. funnels) deemed to be associated with mass consumption of alcohol or its glorification in residence.

Over-Consumption of Alcohol or Cannabis (Level 3)

Consuming alcohol or cannabis to the point of extreme intoxication, where a student becomes a burden on staff or friends, or is a danger to him or herself and/or the community is prohibited.

Prohibited Areas for Alcohol Consumption [Open Alcohol] (Level 2)

It is against Provincial Legislation to be intoxicated or possess open alcohol (e.g. alcohol that has been transferred from the original container or with an open seal) in a public place. Alcohol may not be consumed in public areas (including but not limited to: main hallways/corridors, stairwells, elevators, lobbies, foyers, courtyards in Village Residence, front stoops of Quarry View Residence, public lounges, parking lots and Residence Dining Halls) Students found to be in violation may also be subject to a Provincial Offense Notice or Brock Offense Notice from Campus Safety Services. Students who attempt to hide evidence via dumping or “chugging” alcohol may face additional sanctions.

Prohibited Areas for Cannabis Consumption (Level 2)

Cannabis may not be consumed, stored or used in public areas or any prescribed area (including but not limited to: hallways/corridors, stairwells, elevators, lobbies, foyers, courtyards and common areas/kitchens in Village Residence, front stoops and common areas of Quarry View Residence, public and House/Hall lounges, parking lots and Residence Dining Halls). This includes the use of cannabis in baking or food preparation to produce edible cannabis products.

Students found to be in violation may also be subject to a Provincial Offense Notice or Brock Offense Notice from Campus Safety Services. Students who attempt to hide evidence may face additional sanctions in accordance with the standard relating to cooperation with staff.

Cannabis and Substance Free Areas (Level 2)

Residence has designated cannabis or substance free areas in residence (e.g. floors, units, houses). Students living in cannabis free areas, including their guests and visitors, are not permitted to possess and/or consume cannabis in the designated areas. Students living in substance free areas, including their guests and visitors, are not permitted to possess and/or consume alcohol or cannabis in the designated areas.

Underage Cannabis Consumption (Level 3)

Federal and Provincial cannabis laws are to be obeyed at all times. Underage use or possession is not permitted in residence. Cannabis products

64 Residence Handbook 2023-2024

may only be possessed and used by those students who have reached legal age (19 years). Students may be found in violation of this standard when the evidence demonstrates that a student has used cannabis illegally/inappropriately. This includes being under the influence of or possessing cannabis while underage.

Underage Drinking (Level 3)

Federal and Provincial alcohol laws are to be obeyed at all times. Alcohol may only be consumed by those students who have reached the legal drinking age (19 years), in private areas of residence (rooms, private lounges, and private hallways). Underage drinking is not permitted in residence. Students may be found in violation of this law when the evidence demonstrates that a student has used, is about to use or will use alcohol illegally/inappropriately in the future. This includes being under the influence of or possessing alcohol. Students who provide alcohol to those who are under the legal drinking age will also be held accountable.

Residence Administration &

Facilities

Housing Services strives to provide residents with space that is clean and well-maintained, while minimizing the impact of damage or misuse of space on residence fees. As such, every effort is made to assign financial and disciplinary accountability for damage and other improper use of residence facilities to the individual or individuals responsible. Upon check in, students will find a copy of an inventory and condition report completed by Housing Services Staff prior to their arrival. Students must note any discrepancies to their respective Service Desks prior to the end of Welcome Week or they will be held accountable for those damages and/or missing items upon move out (please refer to page 10 for more information). When a student receives a facilities charge, the details of that charge will be emailed to the student’s Brock account at the time that the charge is placed on their student financial

account. Regular inspections of rooms and units will occur to make sure that they are kept in a reasonable condition and that the fire and life safety equipment is working properly. Students will be notified if special entrance is required for non-emergency maintenance. No notice will be given for emergency maintenance, monthly detector testing, fire extinguisher checks or for requested maintenance.

Please note: Students cannot refuse entrance to units for maintenance, detector testing, fire extinguisher checks, emergencies or cleanliness and move out inspections. Staff are required to present identification. Please contact the Service Desk if you have questions about work being performed in your room/unit.

Animals in Residence (Level 2/Administrative Infraction)

In accordance with AODA, any individual can be accompanied by a service animal in the public areas of residence provided they can be readily identified or they carry documentation to confirm the animal is a service animal. Animals are not allowed in private areas of residence (not even as visitors) with the following exceptions:

• Non-dangerous fish in aquariums no larger than five gallons

• Emotional support animals, if approved under the Residence Emotional Support Animal Procedure

• Service animals, if approved under the Service Animals on Campus Procedures

Please note: We recommend that students requiring an emotional support animal or service animal complete the registration process at least two months prior to their anticipated residence move-in date as the process can take some time to complete. Should the need for an emotional support animal or service animal arise while a student is residing with us the student should initiate the process as soon as possible once the need is identified as the process can take longer than one month depending on the circumstances.

Chargeable Damages (Administrative Infraction, billed to student account)

Students may be charged if the contents of their room and/or common spaces are damaged or missing. An administrative fee may apply depending on the situation.

Residence Handbook 2023-2024 65

Damage charges typically are levied as follows:

• Damages in single student rooms are billed to the occupant of the room

• Damages in double rooms are billed equally to both occupants of the room. Damages in common spaces inside townhouse units are billed equally to all occupants of that townhouse

• Damages in other residence common spaces are billed to all students with access to that common space (e.g. floor, lounge, bathroom, living room)

Exceptions - damages may be billed differently than above in the event that:

• The person(s) responsible for the damage come(s) forward

• Investigation by Housing Services determines the individuals responsible

If individual responsibility can be established, the responsible person(s) will be billed accordingly. In the event that common area damages are not reported, or are found during periodic inspections or at check-out time, they will be billed equally to all residents who share the space. Investigations of damages caused cannot be requested or initiated after students have left residence. Please see the Appeals section for information on how to appeal a damage charge.

Cleanliness Standards (Level 1)

Residence rooms and units are subject to regular inspection by Residence Facilities staff (typically townhouses are inspected five times a year, traditional and semi-suite residences are inspected four times a year). Students are expected to keep shared living areas and the exterior of their room and/or unit doors clean and adhere to the proper removal of garbage and/or recycling. Food is to be stored in appropriate containers to avoid odour, pests, and contamination. Garbage and recyclables are not to be left outside of a room or unit and must be taken by the student to the appropriate bin or dumpster for disposal. Students who violate the cleanliness standards during an inspection will receive the standard points and sanctions for the violation. Please refer to the Residence Cleanliness Standards for details on possible consequences of a failed inspection.

Commercial Use (Administrative Infraction)

The use of your residence room, residence and/ or university services for any commercial purpose

is prohibited including, but not limited to your: mailbox; communal telephone; data connections; common spaces. Exceptions may be made for students in Living Learning Communities as long as they adhere to the mandate of the given LLC, follow the policies set out for the LLC and any such venture receives prior written permission from a Residence Life Coordinator.

Consolidated Singles (Level 1)

A consolidated single is a double room with only one occupant where the occupant pays an additional fee to use the entire room. Students may be offered the option of a consolidated single is space permits. Unless an offer is made to a student, students are not permitted to use the entire room. If a student does not accept the offer of a consolidated single and the associated charges, they are not permitted to use the entire room and must keep their items on their side of the room only. In addition, students who do not accept the option of a consolidated single may be assigned a new roommate or be moved to another double room. Please refer to the Consolidated Singles process for more information.

Contractual Dates (Administrative Infraction)

There are specific dates students are permitted to be in residence, failure to comply with these dates will result in a financial charge and/or administrative sanctions. Please refer to the Residence Agreement, pages 41-45 for the 2023-2024 contractual dates.

66 Residence Handbook 2023-2024

Decorating (Level 1)

Housing Services understands that decorating is important in making your room and unit feel like home. In order to maintain our facilities and comply with fire code, there are specific guidelines associated with decorating your space. Additionally, Housing Services reserves the right to remove objectionable, inappropriate or unsafe materials even if in an approved area. Please refer to the Decorating Guidelines (Appendix C) for more information visit brocku.ca/housing/important-information/ rules-and-regulations/allowable-furnishings

Equipment Storage (Level 1)

Personal belongings or room furnishings are not to be stored in common living areas in traditional and semi-suite style residences (e.g. hallways, stairwells or on landings between bedrooms in DeCew). This may include, but is not limited to: desk chairs; sports equipment; bicycles; laundry and packing materials. There is some limited storage for bikes and sports equipment available in semi-suite residence, please speak to the Service Desk.

Failure to Notify (Level 1)

If damage occurs in a space for which you are partially or fully responsible as outlined above, it is your responsibility to notify your Service Desk immediately of the damage.

Heating and Cooling (Level 1)

Students who live in Village and Quarry View residences have full control over the heating and cooling in their respective units. Students may be held accountable and financially liable for any damages in units, including but not limited to burst pipes and resulting flooding, water damage etc., which are a direct result of a failure to properly control the heating and/or cooling in their unit. This includes (but is not limited to) failing to maintain the thermostat at a reasonable level as well as failing to keep windows closed in cold weather. In addition, students are not permitted to use air conditioners during cold weather. Please refer to page 37 for tips on managing temperatures in your townhouse unit.

Prohibited Furniture (Level 1)

Any furniture in addition to that provided by Brock is not permitted. The only exceptions to the furniture rule are for specific items that are of an organizational

nature (eg. a small shelf or storage unit) and those items must be made of metal or plastic. A complete listing of allowable furnishings can be found (with pictures) on our website at brocku.ca/housing/ important-information/rules-and-regulations/ allowable-furnishings

Removal of Residence Property (Level 1 or 2)

Removing and/or relocating furniture or equipment from its original and/or intended location is not permitted. Relocating residence property from a residence common area to a student residence room or vice versa is not permitted. Students are not to replace furniture provided by Brock University. Students who bring in any furniture listed in the allowable furniture list must remove it at the end of their contract. Residence reserves the right to inspect any non-Brock furniture and ask for it to be removed if it is deemed unacceptable.

Room Alterations (Level 1)

Students are not permitted to alter their residence room in anyway, including but not limited to: plumbing, painting, wallpapering, the installation of shelves or hooks or removing window treatments. Students are not permitted to repair their own drywall nor install additional window treatments. Students are not permitted to raise their bed frames on blocks, milk crates etc. When bunking beds or changing the height of beds within adjustable frames, students should ensure they use the pegs provided and that the bed is secured safely and that they return the beds to the original position prior to their departure from residence. Students who rearrange the furniture are required to return the room to the original layout prior to departure. Students who cause damage to their room, unit or common space due to these alterations will be responsible for the cost associated with the damages incurred.

Subletting (Administrative Infraction)

Renting your room, or space in your room/unit, and or allowing someone to live in your room/unit is prohibited.

Vandalism (Level 2 or 3)

Vandalism is defined as the willful or malicious destruction or defacement of public or private property. Such behaviour will result in disciplinary action, in addition to restitution for damages.

Residence Handbook 2023-2024 67

Appendix A List of Related Documents

Provided below is a list of the policies, procedures, processes and guidelines associated with this document that are available on the Housing Services or Brock University website.

Housing Services

brocku.ca/housing

Allowable Appliances

Allowable Furnishings

Checking Out of Residence

Confiscation of Items

Early Withdrawal from Residence Policy

End of Term Notices

Residence Agreement

Residence Cleanliness Standards

Residence Handbook

Residence Posting Guidelines

Room Switch Procedures

Roommate/Bathroom mate/

Unitmate Agreement

Vacancy/Consolidation Procedures

Appendix B

Departmental

Brock University

brocku.ca/policies

Accessibility

IT Acceptable Use

Respectful Work and Learning Environment Policy

Sexual Assault and Harassment Policy

Smoking and Vaping Policy

Student Code of Conduct

68 Residence Handbook 2023-2024
Contact
visit brocku.ca/directory for the most current staff directory. Email Ext. Housing Services housing@brocku.ca x3370 North Service Desk northdesk@brocku.ca x3706 South Service Desk southdesk@brocku.ca x4311 East Service Desk eastdesk@brocku.ca x3220
Information Please

Appendix C Decorating Guidelines

• Students are permitted to decorate within their bedroom only.

• Students are responsible for the exterior of their unit and bedroom doors. Due to fire regulations, students are only permitted to have a ‘door tag’ (usually provided by the Residence Life Staff) and a wipeable memo board on their bedroom doors. Any other decoration is not permitted as per the St. Catharines Fire Department.

• Decorating the lounge spaces, exterior of the residence buildings, the surrounding shrubs and/ or trees is not permitted unless approved through Housing Services.

• Decorations for special events (e.g. lounge decorating competition) may go until no earlier than 72 hours prior to the event and must be taken down/removed within 24 after the event.

• Posters and pictures are all acceptable as long as they do not violate the Residence Community Standards.

• All items must be hung with the sticky pads provided to you in your move-in envelope. If you run out, stop by the Service Desk to pick up more. Note that the store bought products/tape will take paint off the walls resulting in wall surface damage that will be chargeable to you upon your move out.

• Do not alter any part of your residence by drilling holes, or nailing/thumb tacking any items to your walls or furniture.

• Decorations cannot be placed over light fixtures or lamps, on or over fire safety equipment (conduits running on wall/ceiling), near stoves or over heating, ventilation, and air conditioning vents.

• Students are not permitted to paint or wallpaper anywhere within residence. Caution: We have seen some damage occur as a result of wall decor

stickers as well. Please take this into consideration should you choose to use them.

• Students are not permitted to install their own additional fixtures (lights, ceiling fans, air conditioners, satellite dishes, antennas, cable, internet, etc.) or substitute Brock University’s with their own.

• Writing, chalking, drawing, or marking on any surface other than white boards, chalkboards, room mirrors or inside windows, and student room message boards is not permitted and is considered vandalism. This restriction includes but is not limited to: artificial snow, window/surface writers, silly string, chalk on brick, and foam writers. Any costs to remove these products will be billed back to the student/unit occupants as outlined below in the damages section. Please note that charges could include repainting walls if the product leaves a residue.

• Two house plants are permitted per resident as long as they are maintained. Plants must be smaller than 18” in height. Only artificial Christmas trees are permitted in residence. Dried leaves, branches, straw, corn husks, cannabis plants etc. are also not permitted in residence.

• Decorative strings of lights/LED light strips may be used throughout the year as decorations in bedrooms and townhouse living/kitchen areas only and provided that they are being used only when the student is present in the room and in a safe manner that does not violate any other sections of the RCS. They must be hung with Brock provided stickies. Removal of adhesive/residue OR repair of wall damage caused will be billed to students upon move out.

• Decorations should not impede the function of the door (e.g. the door’s ability to shut and lock). Please also refer to the “Open Door” Policies guideline on pg. 61 and the allowable furnishing guideline.

Residence Handbook 2023-2024 69
70 Residence Handbook 2023-2024 Lot G Lot Q Lot K Lot H Lot D Visitor Parking Lot P Lot 3A Lot East Academic Lot Glenridge Lot CUB Lot Concordia Lot B1 Lot 1 Lot E Visitor Parking Lot 3B Lot 2A Lot 4B Lot A Lot B2 Canada Games Park Parking Lot 4A Lot O Lot R Lot G Lot J Lot Quarry View Lot C Lot F Lot Q1 Visitor Parking Visitor Parking Lot 2B Visitor Parking Alumni Field Tennis Courts C.A.T.I. Ropes Course Playing Field #2 Soccer Playing Field #1 Soccer Canada Games Park Track Rankin Family Pavilion Thistle Complex Schmon Tower Scotiabank Hall Robert S.K. Welch Hall South Block Walker Sports Complex Gordon & Betty Vallee Residence DeCew Residence Roy And Lois Cairns Health & Biosciences Complex Plaza Building Alphie’s Trough Student & Alumni Centre Goodman School of Business Harrison Hall Kenmore Centre Rosalind Blauer Centre For Child Care Lowenberger Residence Village Residence Central Utilities Building Concordia Lutheran Seminary Ian D. Beddis Gymnasium Walker Sports and Abilities Centre Residence 8 Heritage Place Plaza McDonald’s Tim Hortons East Academic 573 Glenridge Ave International Centre Quarry View Residence Brock Suites Residence Alan Earp Residence Sir Isaac Brock statue Theal House Mackenzie Chown Complex Glenridge Ave Glenridge Ave Merrittville Hwy IsaacSir Brock Way SchmonParkway Rd.Village University Rd. West University Rd. East Isaac Brock Blvd. North Isaac Brock Blvd. South Residence Rd. Flora Egeter Way N HWY 406 PEN CENTRE DOWNTOWN ST.CATHARINES MAIN ENTRANCE Niagara Escarpment Legend FRESH FOOD COMPANY DECEW DINING HALL Gateway 8-9 Minutes Quarryview 7-8 minutes FRESH FOOD COMPANY LOWENBERGER DINING HALL Gateway & Quarryview 15-16 minutes Hungry Badger SALADS SANDWICHES WRAPS Union Station BUSU’s Appendix D - Campus Food Outlets Walking Map

Appendix E - Areas for Smoking on Campus

Residence Handbook 2023-2024 71

Students are permitted to play physically active games in the red areas of the map above.

72 Residence Handbook 2023-2024
Appendix F - Areas for Physically Active Games
Lot G Lot Q Lot K Lot H Lot D Visitor Parking Lot P Lot 3A Lot East Academic Lot Glenridge Lot CUB Lot Concordia Lot B1 Lot 1 Lot E Visitor Parking Lot 3B Lot 2A Lot 4B Lot A Lot B2 Canada Games Park Parking Lot 4A Lot O Lot R Lot G Lot J Lot Quarry View Lot C Lot F Lot Q1 Visitor Parking Visitor Parking Lot 2B Visitor Parking Alumni Field Tennis Courts C.A.T.I. Ropes Course Playing Field #2 Soccer Playing Field #1 Soccer Canada Games Park Track Rankin Family Pavilion Thistle Complex Schmon Tower Scotiabank Hall Robert S.K. Welch Hall South Block Walker Sports Complex Gordon & Betty Vallee Residence DeCew Residence Roy And Lois Cairns Health & Biosciences Complex Plaza Building Alphie’s Trough Student & Alumni Centre Goodman School of Business Harrison Hall Kenmore Centre Rosalind Blauer Centre For Child Care Lowenberger Residence Village Residence Central Utilities Building Concordia Lutheran Seminary Ian D. Beddis Gymnasium Walker Sports and Abilities Centre Residence 8 Heritage Place Plaza McDonald’s Tim Hortons East Academic 573 Glenridge Ave International Centre Quarry View Residence Brock Suites Residence Alan Earp Residence Sir Isaac Brock statue Theal House Mackenzie Chown Complex Glenridge Ave Glenridge Ave Merrittville Hwy IsaacSir Brock Way SchmonParkway Rd.Village University Rd. West University Rd. East Isaac Brock Blvd. North Isaac Brock Blvd. South Residence Rd. Flora Egeter Way N HWY 406 PEN CENTRE DOWNTOWN ST.CATHARINES MAIN ENTRANCE Niagara Escarpment

STAY STAY KNOW KNOW in the in the

Keep up to date with what’s happening on campus by following @BrockHousing on Instagram!

Housing Services

1812 Sir Isaac Brock Way

St. Catharines, ON, L2S 3A1

Phone | 905 688 5550

East Service Desk x3220

North Service Desk x3706

South Service Desk x4311

Housing Services x3370

Fax | 905 688 0797

Email | housing@brocku.ca

Instagram @BrockHousing

comments Reach us through our Live Chat at brocku.ca/housing and click the bubble icon.

Turn static files into dynamic content formats.

Create a flipbook
Issuu converts static files into: digital portfolios, online yearbooks, online catalogs, digital photo albums and more. Sign up and create your flipbook.