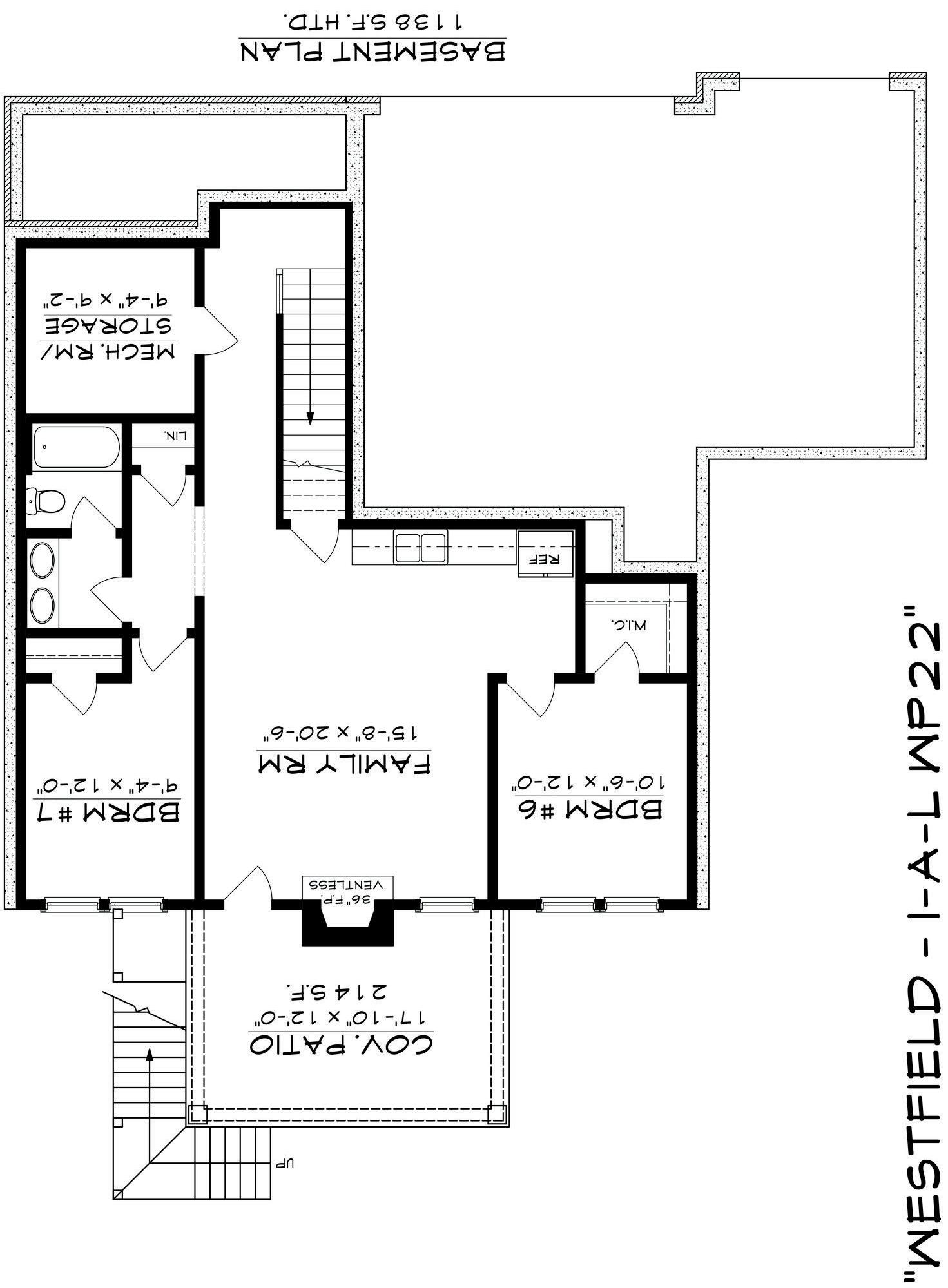
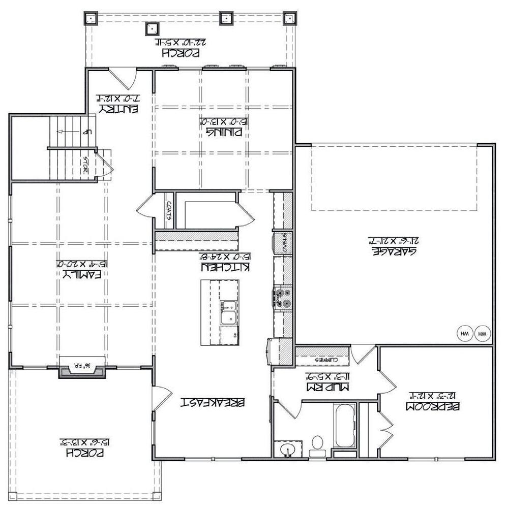
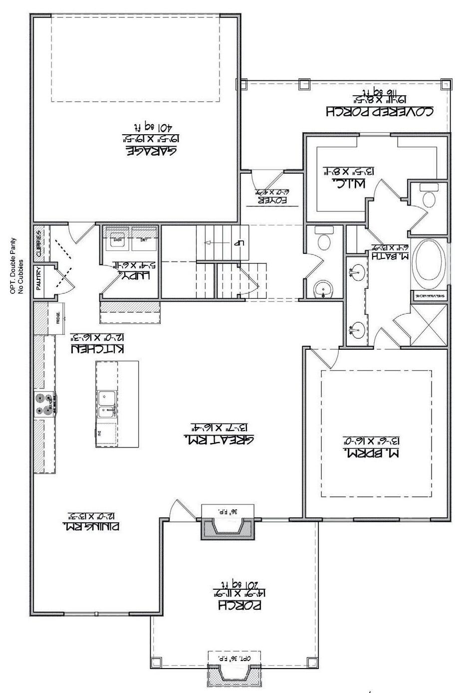
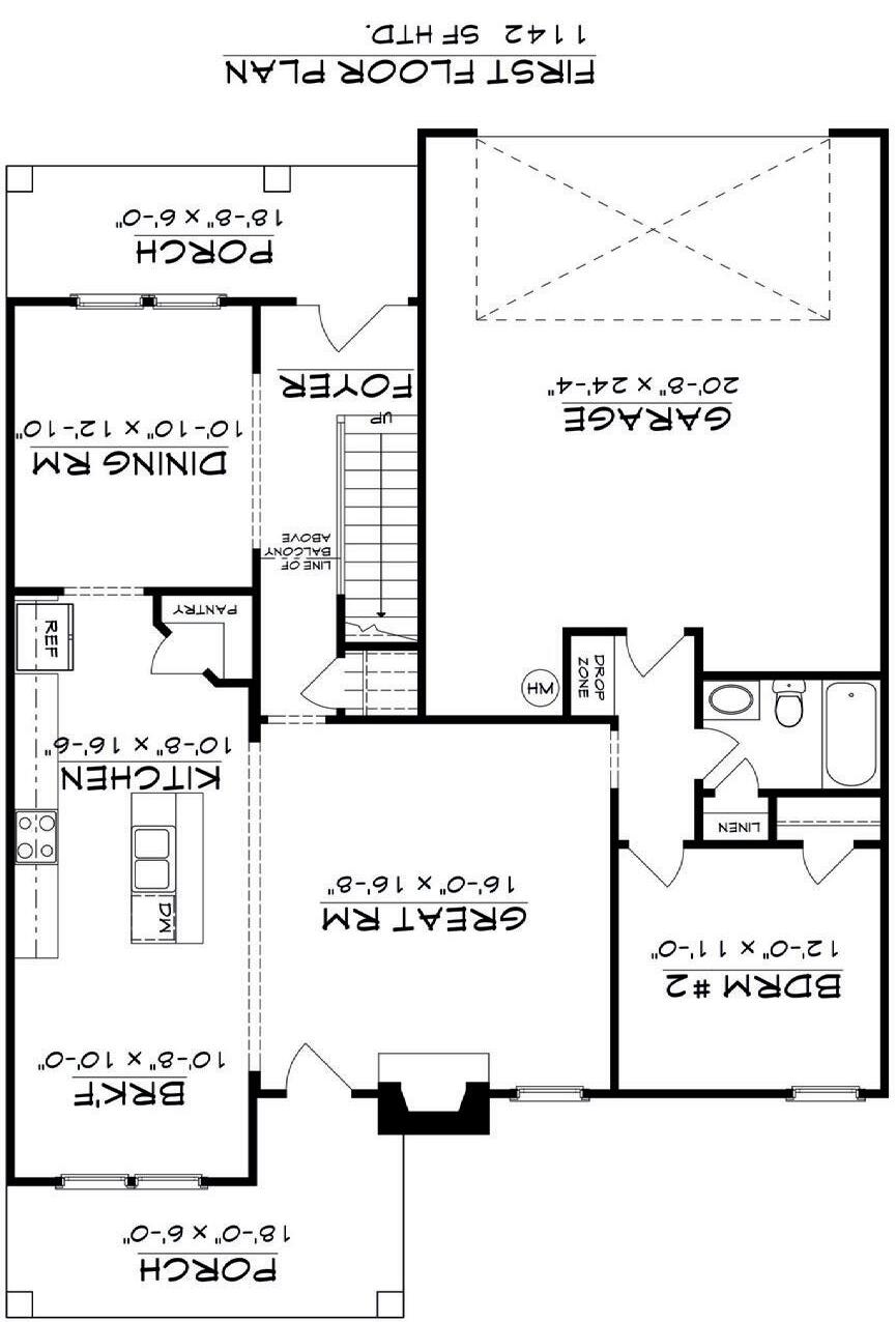
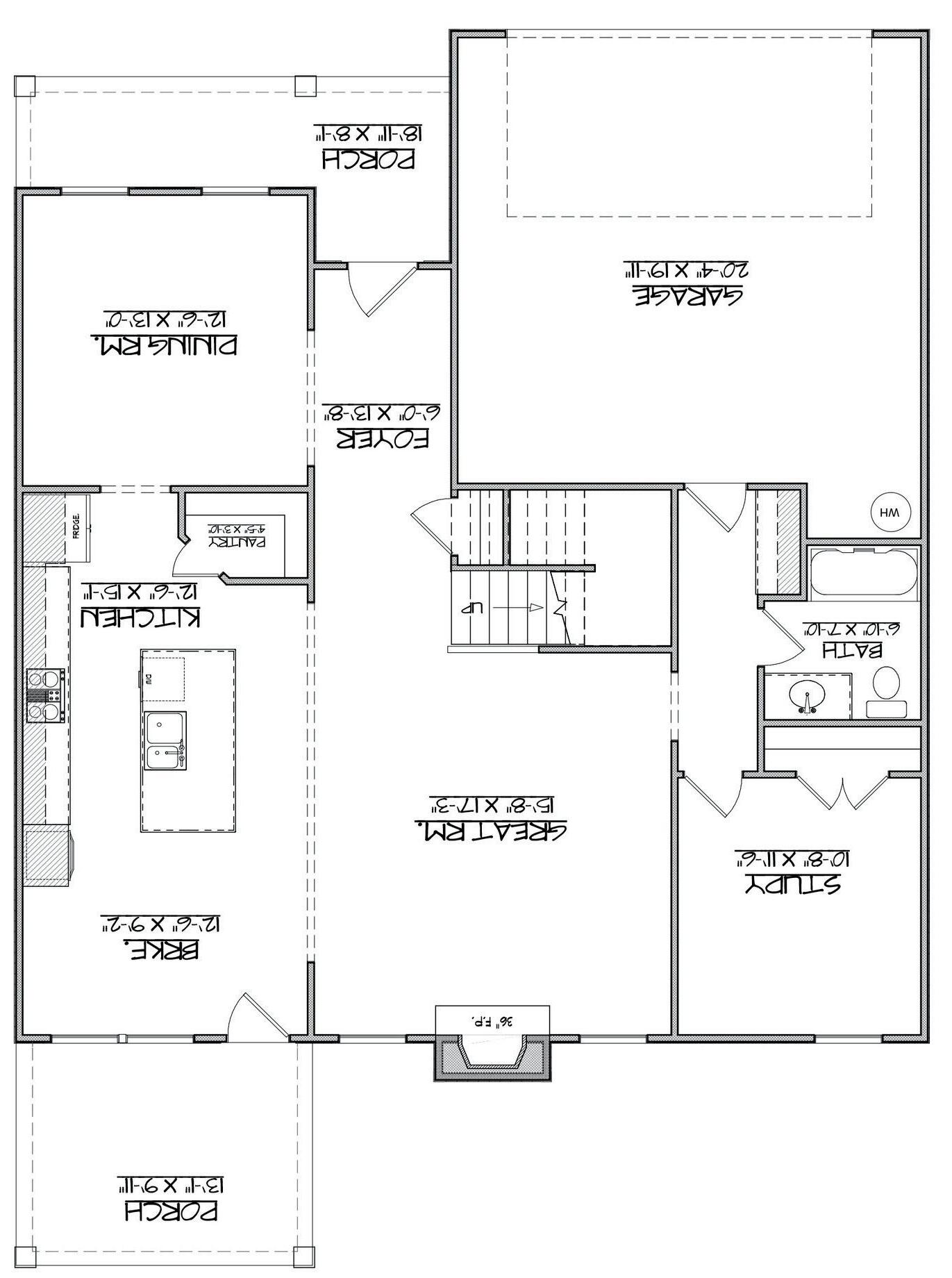
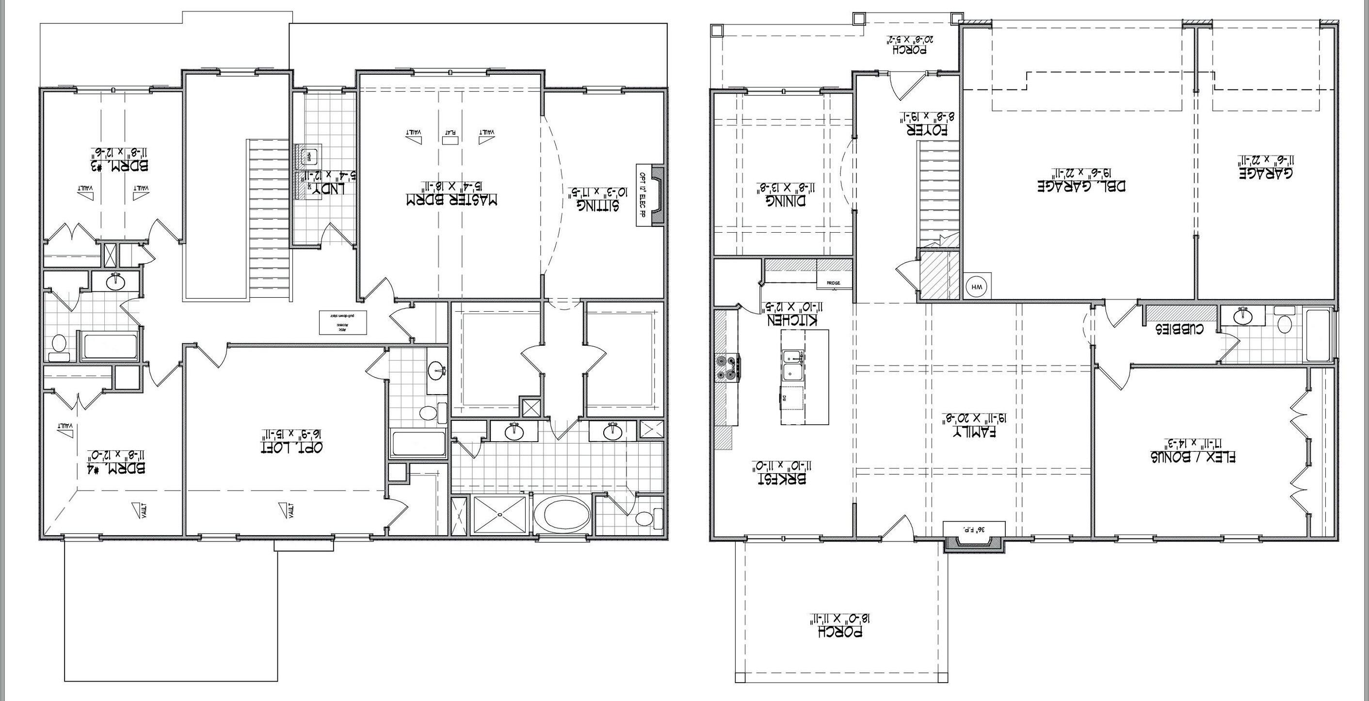
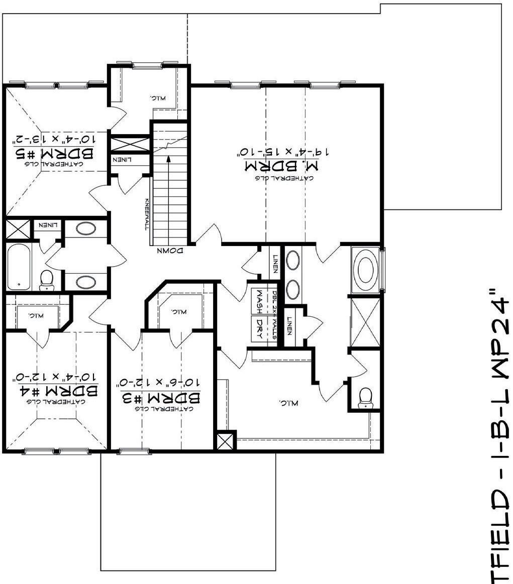
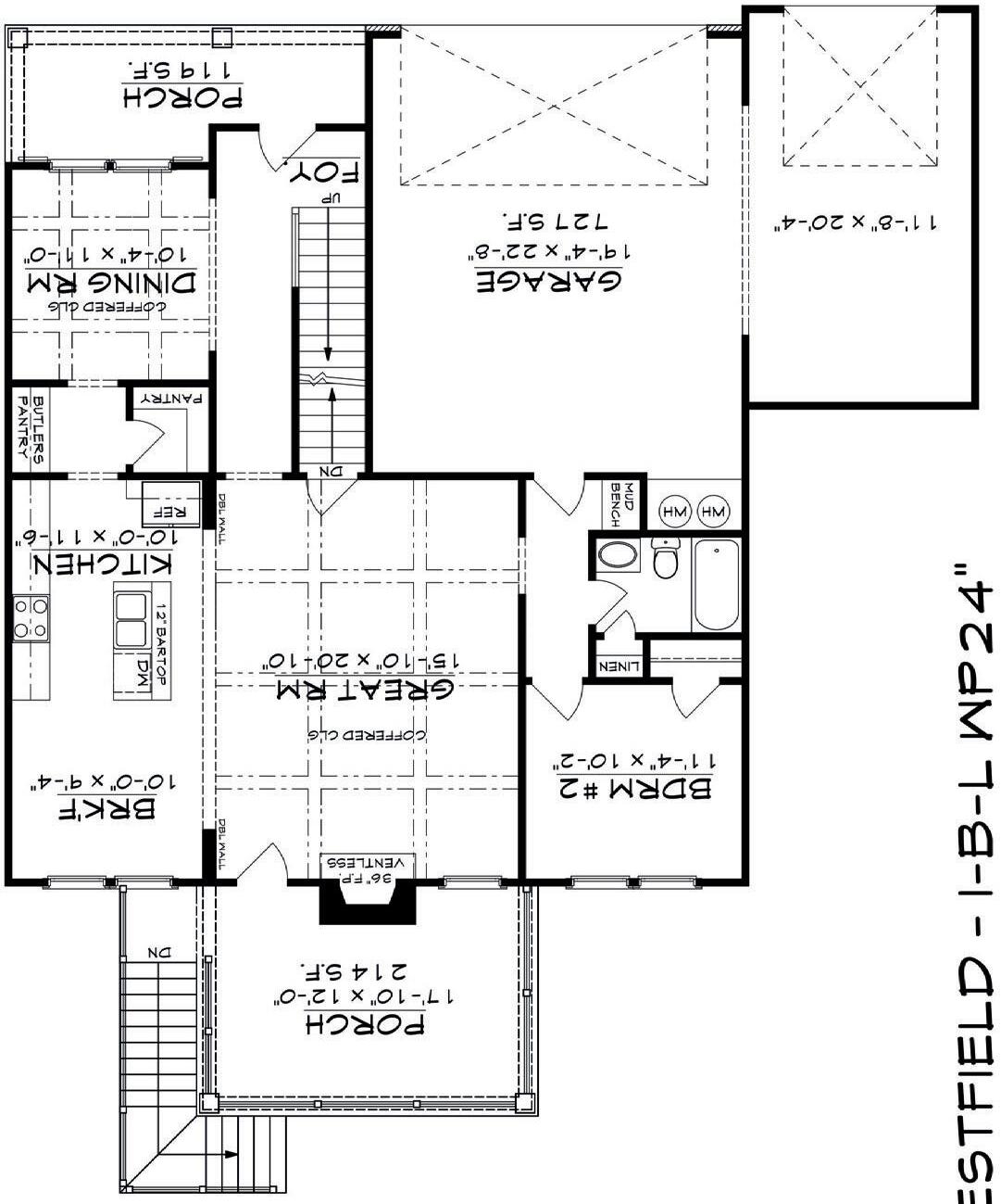
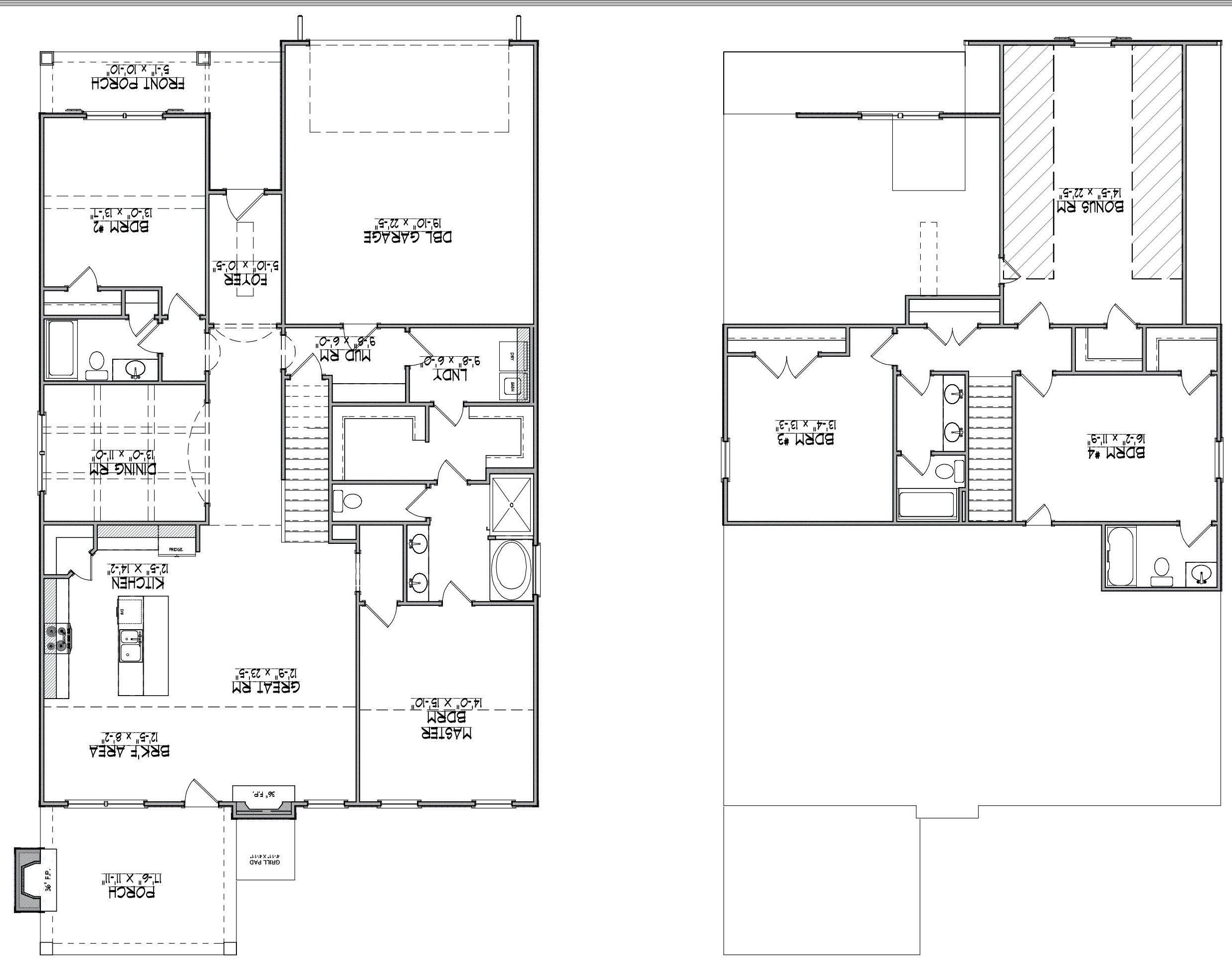
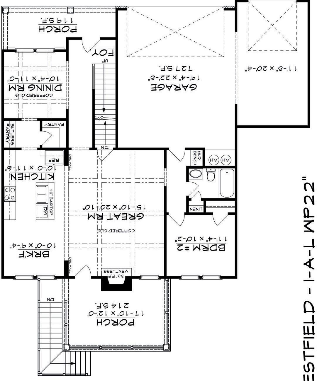
Whispering Pines is a Master Planned Community located in Columbia County Georgia. This plan book shows the plans and pricing of the homes being built in the Estate section. Plans are subject to change. Contact the Whispering Pines Sales Team for current pricing. The Blue 360 symbol indicates that there is a virtual tour of this plan. Click the Symbol to open the virtual tour.