William Coyle Work Sample

Page 1

Selected Works 2024
William ‘Briggs’ Coyle 3509 North Valley St. Arlington, VA 22207 +1 703 963 6642 wbc9mhd@virginia.edu briggscoyle.com

Education

2018 - 2022

University of Virginia School of Architecture

Charlottesville, VA

Bachelor of Science in Architecture, Pre-Professional Architectural History Minor

Experience

Winter 2024

NAC Architecture

Los Angeles, CA

Role: Intern

Working alongside Principal in the conceptual design, and production of 5’ x 5’ physical model, for a RFP for Centennial High School in Compton, California

Accolades

Skills Interests

Winter 2022 - 23 11 months

Aspen Skiing Company

Aspen, CO

Role: Lift Foreman, Guest Services & Trail Crew

Maintained the safety of guests and efficiency of lift operations at Aspen Snowmass; Engaged with guests to provide a memorable on-mountain experience; Operated heavy machinery and power tools to maintain ski slopes and infrastructure

Summer 2021 3 months

Summer 2020 3 months

Summer 2019 2 months

University Landscaping

Charlottesville, VA

Role: General Landscaper

Managed a team of four landscapers working on 10 properties with a cumulative value in excess of $20 million

Arbor Properties, LLC

Washington, D.C.

Role: General Maintenance

Performed tasks such as painting and landscaping

Washington Golf & Country Club

Arlington, VA

Role: Assistant to Director of Golf

Emersion internship covering several facets of golf course management

Show it Better’s “Top 10 Best Portfolios of 2023” 2023

Proficient in Rhino, V-Ray, Adobe Creative Suite, and Microsoft Office

Experience with Revit, Grasshopper, 3D printing, laser cutting, carpentry, model making, photography, ceramics, lithographic print making, and painting

Painting, Drawing, Ceramics, Snowboarding, Hiking, Golf

Contents

Centennial High School Proposal

Professional | Winter 2024 | NAC

The New Collective Commons

Academic | Spring 2021 | Instructor: Katie Stranix

A Trade School for the Culinary Arts

Academic | Fall 2020 | Instructor: Peter Waldman

Chapultapec Park Section 3

Academic | Fall 2022 | Instructor: Mario Schjetnam

Nomadic Minimal Dwelling

Academic | Spring 2022 | Instructor: Ehsan Baharlou

06
12 22 32 42

Centennial High School Proposal

Professional | NAC | Winter 2024

“Learning in the Round”

Location: Compton, CA

The concept of “learning in the round” epitomizes the innovative design of this new Centennial High School Campus. The circular building promotes an inclusive, secure, and equitable educational environment, fostering collabortation and equal access to resources. The centerpiece is an innovation center, strategically placed at the heart of the structure, symbolizing the core of forward-thinking education. The unique layout encourages students to engage in interdisciplinary learning, breaking down traditional barriers and fostering a sense of unity and safety.

This proposal provides a ring of program enveloping a unifying core landscape. The act of entering Centennial High School is a transformation from life outside of school to a cohesive center for learning and growth. The round shape is found in all cultures as a foundation for collaboration and group activity.

6
7
8
Level 1
Plans produced in collaboration with NAC project team
Level 2
10

5’ x 5’ physical model 1:30 scale

Produced in collaboration with NAC project team

11

The New Collective Commons

UVA SoA | ARCH 3020 | Spring 2021

Studio: The Student Center as Civic Anchor at UVA

Location: Charlottesville, Virginia

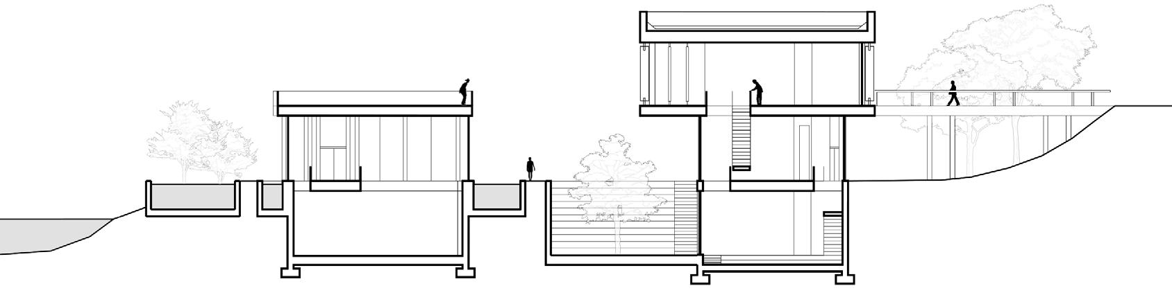
The New Collective Commons ties into existing physical and social networks of the Charlottesville community, enhancing the relationship between Charlottesville residents and University students. Located at the intersection of academic buildings, student housing, and residential neighborhoods, the site presents the opportunity to serve local stakeholders as both a student-oriented building and a community center. The proposal hybridizes civic amenities and academic spaces with the aim to blur existing lines of separation between the student body and broader Charlottesville community.

The proposed development contains programmed study, library, and auditorium spaces, along with deliberately unprogrammed space to be informed by evolving community needs. The form consists of two blocks with circulation cores inside. A second story bridges the two blocks and creates a connection point to the upper terrace of the site. Interior voids bring light to the lower levels and act as visual connectors between floors. An inhabitable green rooftop and sunken courtyard offer a variety of communal spaces for students and community members to share and enjoy.

12
13

01. Site

The existing site includes a parking lot, basketball courts, as well as the Dell pond. The site is located at the intersection of student housing, academical buildings, and Charlottesville neighborhoods.

03. Bridge

A bridge to the upper terrace of the site as well as a cantalieverd second story creates a better circulation flow and connects ground level spaces.

02. Initial Massing

The massing strategy embraces existing circulation routes students take to traverse the site while minimizes uneeded parking and maximizes greenspace.

05. Dig

A central courtyard allows for light to enter the subteranean level, while creating a space for students and Charlottesville residents to cohabitate.

04. Rotate

Rotating the structure allows for specific views of the Dell, park, and upper terrace to be framed ultimately enhancing the sites unique qualities.

06. Extend

Refelecting pools connect the exterior spaces to the Dell pond further situating the building in its surrounding landscape.

14

Axonometric with surrounding context

15
16
View from top floor corridor
17 Top floor plan Roof plan
Subteranean floor plan Ground floor plan
18
View from top floor study spaces
19
Section A Section B Section C
20
View from sunken courtyard
21

A Trade School for the Culinary Arts

UVA SoA | ARCH 3010 | Fall 2020

Studio: Vertical Mobility

Location: New York City, New York

The Trade School for Culinary Arts stands at the intersection of commerce, culture, practical study, and public enjoyment. Tasked with rethinking a traditional trade school, the proposal’s metabolic design facilitates organic exchange across floors, spaces, and use cases. The layout acts as the connective tissue for farmers, butchers, and bakers; apiarists, craftsmen, and candlestick makers; culinary students, consumers, and passersby, to engage in the symbiotic interactions embodying the host—New York City’s— ethos.

From the basement-level subway terminal, visitors enter a farmers’ market inspired reception hall, further opening into a double height vendor area. A “fire pit” at the heart of the space fulfills both aesthetic and functional roles. The light of the flame pierces upwards, sharply illuminating the atrium’s central void, while simultaneously softening visitors’ optical transition from the subway’s cold overhead fluorescence to the grotto’s ambient warmth within. The fire powers an open-flame cooking range, marking center-stage for culinary seminars and acting as the cynosure for butchers and

chefs to showcase their talents when the space transitions to a feasting hall at night. Just as respiration circulates oxygen through the body, the grotto’s design circulates activity through the shops in the basement, and upwards towards the second floor cafe. With additional access to Chrystie Street, the cafe acts as a membrane connecting the building to the city’s street level. From street level, the upper plates of the building extend gradually towards Sara Roosevelt park, like saplings instinctively growing towards the sun. From the top floor, the rooftop Sara Roosevelt Park opens onto the elevated promenade. Unobstructed by shade from the urban canopy, the park doubles as an agricultural space supporting communitygarden style farm plots for culinary students to cultivate their “school supplies” and community members to enjoy the abundance of nature. Even when all gardeners and parkgoers have returned home, the ecosystem is dutifully tended by the building’s only full time residents—bees inhabiting the rooftop apiary—providing resources for the cooks, bakers, and candlestick makers to refine their products for use in the classroom and market below.

22
23

An Almanac of Connective Tissues

The collage studies explore qualities of New York City. The strict grid of the city creates a metering system within the structure of each collage. Central Park is represented as a void, reading in section as a vertical atrium. The section of Bramante’s Tempietto corresponds to the grid of New York City with a central void and cave like basement reminiscent of the subway system. The cave like basement becomes a grotto esque gathering space.

24
25

From Frame to Plane

A series of concept models, informed by the initial collage iterations, explore the relationships between gravity and lightness, frame and plane, and opacity and translucency. Materials such as glycerin, rockite, eggshell, waterbottle, toothpicks, and wooden dowels were used to achieve spatial and physical qualities.

26
27

Exploded axon with surrounding context

28
29 Section through center void and subway connection
30 Longitudinal section
31

Chapultapec Park Section 3 Masterplan and Pavilion Proposal

UVA SoA | ARCH 4010 | Fall 2021

Studio: Mexico City

Location: Chapultapec Park, Mexico City, Mexico

The Chapultapec Park Section 3 Master Plan proposal aims to navigate the sites challenging topographical, ecological, and hydrological conditions while reviving the park’s rich historical significance to Mexico. Chapultapec Park is one of the largest parks in the Americas. With a history spanning the Aztec Empire, Colonial Spain, and present day Mexico, the park is a critical source of cultural identity for Mexico City and Mexico as a whole. Chapultapec Park sections 1 and 2 have undergone significant master planning efforts, however, section 3 still stands in disrepair.

Phase two of the studio dives into an individual site development. The site intervention proposal aims to create a communal space showcasing Mexican culture through an open air theater inspired by Aztec art and architecture. A terraced garden reintroduces native plant species that have been taken over by invasive species throughout the park, while simultaneously creating a space for rest and relaxation.

32
33

CHAPULTAPEC PARK TIMELINE

CHAPULTAPEC PARK TIMELINE

34
Chapultapec Forest Given to Mexico City 1530 Char es V gave Chapultapec Forest to Mexico City A gunpowder manufactur ng plant was there unti 1784 Forest Transformation 1890 Jose Limantour transforms the forest to look ike Bo s de Bou ogne in Par s France Hydraulic System Introduced 1466 Moctezuma I orders for a double aqueduct to be bu lt from Chapultapec to the Tlaxpana Palace Construction Begins 1785 Viceroy Matias de Ga vez begins construct on of a neoclass ca style palace on top of the hi l The Consejo Rector Ciudadano is Formed 2002 Fideicomiso Pro Bosque is Formed 1987 Infrastructural Improvements for Mexican Independence Celebration 1900/1901 New roads fountains and poo s were bu lt and renovations were made on the greenhouse and zoo done for the Mexican Independence Centenn a Third Section to Park Added 1974 The third sect on of Chapultapec Park was added Second Section to Park Added 1962 The second section of Chapu tepec Park was added Mexico Gains Independence 1821 Mexico ga ns independence from Spain and Chapu tapec was abandoned Master plan for the First Section of the Park 2004 Mario Sch etnam creates a master p an for the first section of the forest focusing on the recovery of the env ronment Castle Used as Presidential Home 1859 Miguel Miramon was the first Mex can President to use the former castle as an officia president a home Master Plan for the Second Section of the Park 2008 Christian Chapel Constructed 1521 The Chapel of Saint Michae the Archangel was built on the top of the h ll where the Temple of Huiz lopocht i stood
Aztecs Arrive at Chapultapec ca 1250
Complex for Ritual and Astrological Observations 1435 Emperor Itzcoatl had his portrait carved into c iff face and later successors fol owed su t Castle as an Imperial Residence 1864 Max m lian of Habsburg used the castle as his imper a residence after enlarging it as we l as forming Italian style gardens Pre-Hispanic Period (1250 a c - 1466) V ceregal Per od (1521 - 1785) Independent Mexico (1821 - 1867) Restored Repub ic and Porfiri t (1872 1896) E d f Dia Era & 20th Cent r (1900 1987) 21st Cent r Mexico City Population 0.02 3.36 5.47 8.83 13.02 15.65 18.45 20.13 21.78 Population (millions) 1250 1950 1960 1970 1980 1990 2000 2010 2020 0 10 20 30 MexicanAmerican War 1846 In 1847 mil tary cadets known as child Heroes defend the cast e from a foreign invas on in a hero c act Fourth Section to Park Added 2021 Section 1 Created Section 2 Added Section 3 Added Section 4 Added Aztecs Arrive at Chapultapec ca 1250 Chapultapec Forest to Mexico City A gunpowder manufactur ng plant was there unti 1784 Forest Transformation 1890 Jose Limantour transforms the forest to look ike Bo s de Bou ogne in Par s France Hydraulic System Introduced 1466 Moctezuma I orders for a double aqueduct to be bu lt from Chapultapec to the Tlaxpana Palace Construction Begins 1785 Viceroy Matias de Ga vez begins construct on of a neoclass ca style palace on top of the hi l Rector Ciudadano is Formed 2002 Fideicomiso Pro Bosque is Formed 1987 New roads fountains and poo s were bu lt and renovations were made on the greenhouse and zoo done for the Mexican Independence Centenn a 1974 The third sect on of Chapultapec Park was added Second Section to Park Added 1962 The second section of Chapu tepec Park was added independence from Spain and Chapu tapec was abandoned Master plan for the First Section of the Park 2004 Mario Sch etnam creates a master p an for the first section of the forest focusing on the recovery of the env ronment Castle Used as Presidential Home 1859 Miguel Miramon was the first Mex can President to use the former castle as an officia president a home the Second Section of the Park 2008 Christian Chapel Constructed 1521 The Chapel of Saint Michae the Archangel was built on the top of the h ll where the Temple of Huiz lopocht i stood Emperor Itzcoatl had his portrait carved into c iff face and later successors fol owed su t used the castle as his imper a residence after enlarging it as we l as forming Italian style gardens Mexico City Population 0.02 3.36 5.47 8.83 13.02 15.65 18.45 20.13 21.78 Population (millions) 1250 1950 1960 1970 1980 1990 2000 2010 2020 0 10 20 30 known as child Heroes defend the cast e from a foreign invas on in a hero c act Fourth Section to Park Added 2021 Section 1 Created Section 2 Added Section 3 Added Section 4 Added Aztecs Arrive at Chapultapec ca 1250 Chapultapec Forest Given to Mexico City 1530 Charles V gave Chapultapec Forest to Mexico City A gunpowder manufactur ng plant was there unti 1784 Forest Transformation 1890 Jose L mantour transforms the forest to ook l ke Bois de Boulogne in Paris France Hydraulic System Introduced 1466 Moctezuma I orders for a double aqueduct to be bui t from Chapu tapec to the Tlaxpana Palace Construction Begins 1785 Viceroy Mat as de Galvez begins construction of a neoclassical sty e pa ace on top of the h ll The Consejo Rector Ciudadano is Formed 2002 Fideicomiso Pro Bosque is Formed 1987 Infrastructural Improvements for Mexican Independence Celebration 1900/1901 New roads fountains, and poo s were built and renovations were made on the greenhouse and zoo done for the Mexican Independence Centenn a Third Section to Park Added 1974 The th rd sect on of Chapultapec Park was added
Section to Park Added 1962 The second section of Chapu tepec Park was added Mexico Gains Independence 1821 Mex co ga ns independence from Spain and Chapultapec was abandoned Master plan for the First Section of the Park 2004 Mario Sch etnam creates a master p an for the f rst section of the forest focusing on the recovery of the environment Castle Used as Presidential Home 1859 Miguel Miramon was the first Mex can President to use the former castle as an offic a president a home Master Plan for the Second Section of the Park 2008 Christian Chapel Constructed 1521 The Chapel of Saint Michael the Archangel was built on the top of the h ll where the Temple of Huiz lopocht i stood
Second
Complex for Ritual and Astrological Observations 1435 Emperor Itzcoatl had h s portrait carved into cl ff face and later successors fol owed su t Castle as an Imperial Residence 1864 Max m lian of Habsburg used the castle as his imper a residence after enlarging it as wel as forming Italian style gardens Pre-Hispanic Period (1250 a c - 1466) Viceregal Period (1521 - 1785) Independent Mexico (1821 - 1867) Restored Republic and Porfiriat (1872 - 1896) End of Diaz Era & 20th Century (1900 - 1987) 21st Century Mexico City Population 0.02 3.36 5.47 8.83 13.02 15.65 18.45 20.13 21.78 Population (millions) 1250 1950 1960 1970 1980 1990 2000 2010 2020 0 10 20 30 MexicanAmerican War 1846 In 1847 mi itary cadets known as chi d Heroes defend the castle from a foreign nvasion n a heroic act Fourth Section to Park Added 2021 Chapultapec Forest Given to Mexico City 1530 Charles V gave Chapultapec Forest to Mexico City A gunpowder manufactur ng plant was there until 1784 The Consejo Rector Ciudadano is Formed 2002 Infrastructural Improvements for Mexican Independence Celebration 1900/1901 New roads fountains and pools were bu lt and renovations were made on the greenhouse and zoo done for the Mex can Independence Centenn al Third Section to Park Added 1974 The third sect on of Chapultapec Park was added Mexico Gains Independence 1821 Mexico ga ns independence from Spain and Chapultapec was abandoned Master Plan for the Second Section of the Park 2008 CHAPULTAPEC
Complex for Ritual and Astrological Observations 1435 Emperor Itzcoatl had his portra t carved into cl ff face and later successors followed suit Castle as an Imperial Residence 1864 Maximilian of Habsburg used the castle as his mperia residence after enlarg ng it as we l as forming Ital an style gardens Pre-Hispanic Period (1250 a c - 1466) Viceregal Period (1521 - 1785) Independent Mexico (1821 - 1867) Restored Republic and Porfiriat (1872 - 1896) End of Diaz Era & 20th Century (1900 - 1987) 21st Century MexicanAmerican War 1846 In 1847 m litary cadets known as child Heroes defend the castle from a foreign invas on in a heroic act
PARK TIMELINE

A series of lines - waterways, floodplains, hill tops, ravines, view corridors, roads, possible site intervention locations and circulation

35

The initial masterplan, informed by the historical timeline of Chapultapec Park and site analysis

36
37 Chapultapec Park Section 3 Masterplan Proposal 1. Entrance Pavilion 2. Toltec Site 3. Parking 4. Aztec Site 5. Spanish Colonial Site 6. Mexican Independence Site 7. Vendor Area 8. Present Day Future Site 250 m Final masterplan with location of site for further development
38
Section A
Roof plan
Floor plan Section B

Model (scale 1:16)

40
41
Exterior facade Interior theater space

Nomadic Minimal Dwelling

UVA SoA | ARCH 4020 | Spring 2022

Studio: Emerging Advanced Technologies

Location: Siteless

The Nomadic Minimal Dwelling offers a solution to the overcrowding and surging housing costs in areas affected by the ‘zoom boom’ by providing a modern alternative to current mobile home typologies.

With the opportunity to work remotely due to the Coronavirus, areas with good outdoor recreation have seen big city challenges in small towns. An influx of people moving to these destinations has caused housing prices to increase. In turn, many locals of these areas are forced to relocate. The proposal allows those moving from a big city to a scenic destination the ability to do so without exacerbating the housing issue.

The expandable, offgrid, home offers a permanent feel for a temporary condition. The client can purchase or rent the Nomadic, move it to their desired destination, live and work from the home remotely, and pack it up and leave the location whenever they desire.

While positioned as a solution to the covid ‘zoom boom’ housing issue, the Nomadic can also serve as a temporary ADU or disaster relief shelter. The hydraulic foundation allows for the structure to be situated with no permanent foundation and the customizeable interior core allow for a variety of program to be housed within the unit.

42
43

Elevations (packed, unpacked)

Plans - packed + unpacked

The Nomadic is transported in the folded up form by road as it conforms to roadway height and width regulations. The packed dimensions allow the unit to be parked in standard parking space. The Nomadic mechanically unfolds into the living form with programmed spaces (kitchen, living, bathroom, bedroom, office) defined by the foldable core.

44

Packed Core

The core is in the packed configuration during transport. All funriture is housed within.

Unpacked Core

The core is unpacked to define programmed space within.

Core Customization

Clients have the ability to customize the core based on their specific needs. The core unit has the ability for 1-4 beds.

45

Packed trailer

Doors open, hydraulic foundation deploys, wheels fold under, trailor hitch retracts

46 01. 02. 03. 06. 07. 08.
12.
11.
13.
16. 17. 18. Hydraulic beams swing foundation supports Roof and floor panels lock into place on beams Sunshades slide out of roof cavity, wifi antenna unfolds Sunshades lock wifi antenna Secondary glass wall units unfold Secondary glass wall units unfold Secondary units unfold Interior core is manually unfolded Wall is unfolded from core seperating office from bedroom Murphy bed murphy desk

lock into place, locks upright

47 04. 05. 09. 10. 14.
15. 19. 20.
swing out, secondary supports deploy Hydraulic beams lock into place, staircase unfolds Roof and floor panels unfold Interior glass wall panel unlocks Interior glass wall panel slides on tracks embeded in floor and roof glass wall unfold Secondary glass wall units unfold Secondary glass wall units lock into place bed unfolds, desk unfolds Furniture is unpacked from interior core storage areas Unpacked dwelling
48
Section A Section B Section C

SOLAR PANELS

RETRACTABLE SUN SHADE

SOLAR BATTERIES

FOLDABLE CORE

TOILET PLUMBING

SHOWER DRAIN SINK PLUMBING

HYDRAULIC FOUNDATION

FOLDING STAIRCASE

GREY WATER TANK

FRESH WATER TANK

FOLDING WHEEL

HYDRAULICS

FOLDING WHEEL

WELL

49
WIFI ANTENNA
Exploded
axonometric

personal website: www.briggscoyle.com

email: wbc9mhd@virginia.edu

phone: (703) - 963 - 6642

William ‘Briggs’ Coyle

Turn static files into dynamic content formats.

Create a flipbook
Issuu converts static files into: digital portfolios, online yearbooks, online catalogs, digital photo albums and more. Sign up and create your flipbook.
William Coyle Work Sample by Briggscoyle - Issuu