De Oude Werf Het Pakhuis

Page 1

HET PAK HUIS

DE OUDE WERF

Vogelvlucht impressie | De Oude Werf Aan afbeeldingen in deze brochure kunnen geen rechten ontleend worden.

“Het water staat absoluut centraal en de scheepvaarthistorie komt op meerdere manieren in het plan ‘De Oude Werf’ terug. Hiermee krijgt de rijke historie de aandacht die het verdient.”

INLEIDING 06 INHOUD 20 PARKEREN ONTDEK DE WERFTUIN 18 HISTORIE 08 12 OMGEVING 16 HET PLAN 14 ARCHITECTEN 10 KRIMPEN AAN DEN IJSSEL
68 VOORDELEN NIEUWBOUW 88 KLEUREN & MATERIALEN 28 VERDIEPINGEN OVERZICHT 70 DUURZAAM WONEN 76 TECHNISCHE OMSCHRIJVING 26 BOUWNUMMER OVERZICHT 90 MAKELAAR & ONTWIKKELAAR 30 GEVEL AANZICHTEN KEUKEN, SANITAIR EN TEGELWERK 72 KOOP PROCES 74 HET PAKHUIS 24

INLEIDING

EEN TOEKOMST VOL WOONGENOT

Genieten van de mooiste zonsondergangen langs het water, wandelen langs levendige decors en rustig zitten naast de geurige bloemen in de Werftuin. De Oude Werf biedt woongenot in én rond de woning. Hier koopt u een thuis voor de toekomst.

“De gebouwen van De Oude Werf staan ieder op zich en horen tegelijkertijd nadrukkelijk bij elkaar.”

UW PLEK IN HET PAKHUIS, KRAANHUIS, SCHEEPSHUIS OF DIJKHUIS

Alle vier de gebouwen zijn ontworpen met een duidelijke link naar het verleden van de locatie. Dit is terug te zien in de kenmerkende namen, maar ook in de duurzame materiaalkeuze die perfect past binnen de stoere, industriële stijl van de scheepvaart.

Van appartementen tot stadswoningen en penthouses. Met een variatie in maatvoering, uitstraling, ligging en uitzicht is er in het project De Oude Werf voor iedereen een passende woning beschikbaar.

Exterieur impressie | De Oude Werf Aan afbeeldingen in deze brochure kunnen geen rechten ontleend worden. 06
07

HISTORIE

EEN WOONOMGEVING MET EEN RIJK VERLEDEN

Kent u het scheepsverleden van De Oude Werf? Op deze plek werden in de 17e eeuw de eerste houten schepen gebouwd, gevolgd door de eerste stalen schepen in de 19e eeuw.

Na de exploitatie van A.J. Otto & Zonen kwam het scheepsterrein in 1910 braak te liggen tot deze in 1940 werd overgenomen door de firma Joh. van Duijvendijk. Deze hield zich bezig met de reparatie en nieuwbouw van binnenvaartschepen.

De Werf Joh. van Duijvendijk is als een van de weinige scheepswerven uit die tijd bewaard gebleven. In 2002 werd deze echter gesloten en is er een plan gemaakt voor herontwikkeling. Goed nieuws voor u, want hierdoor is de mogelijkheid ontstaan om unieke woningen te ontwikkelen, direct langs de Hollandsche IJssel.

“De bijzondere dwarshelling met insteekhaven is een (rijks)monument en springt echt in het oog. Het is ook een van de oudste nog aanwezige dwarshellingen van Nederland.”

08

DE TROTS VAN KRIMPEN AAN DEN IJSSEL

De Joh. van Duijvendijk scheepswerf vormt een karakteristiek herkenningspunt langs de Hollandsche IJssel en zal dat altijd blijven. Een plek die tot de verbeelding spreekt en waarvan de geschiedenis een belangrijke inspiratiebron vormt in de ontwikkeling van De Oude Werf.

Hier neemt een historisch stuk Krimpen aan den IJssel een nieuwe plek in. De Oude Werf vormt een inspirerend woongebied en een prachtige trekpleister om van de majestueuze Hollandsche IJssel te genieten.

09

KRIMPEN AAN DEN IJSSEL

Geniet van het moderne leven omringd door de rust van de natuur. Breng een bezoek aan het levendige centrum, de haven, luister naar het kabbelende water langs de oevers van de Hollandsche IJssel of verken de fraai ingerichte stadsparken en omliggende natuurgebieden.

EEN LEVENDIGE DORPSKERN

In Krimpen aan den IJssel bruist het van de activiteit. Gezellige winkels, sfeervolle cafés en terugkerende markten, er is altijd iets te doen. Neem de tijd om rond te struinen, ontmoet elkaar in de dorpskern en geniet van de lokale lekkernijen.

EEN UNIEKE PLEK VOOR NATUURLIEFHEBBERS

Van ontspannende wandelingen tot verkwikkende fietstochten, de echte schoonheid van Krimpen aan den IJssel is te vinden in haar natuurlijke ligging. Hier treft u uitgestrekte watergebieden, verzorgde parken, schilderachtige bossen en sfeervolle polders. Een oase van rust waar u kunt genieten van een ontspannen picknick, een boottocht over het water of een heerlijke middag vissen.

TREK EROP UIT

Ontdek de diversiteit aan flora en fauna in het Loetbos, de Krimpenerhout en het Stormpoldervloedbos en zie hoe de seizoenen de omgeving veranderen. Deze natuurgebieden zijn uitermate geschikt voor een breed scala aan recreatiemogelijkheden.

DE LEUKSTE ACTIVITEITEN

Bekijk de uitagenda van Krimpen aan den IJssel voor de leukste streekmarkten en evenementen of breng een bezoek aan ontmoetingscentrum de Tuyter, het Streekmuseum en de Stormpolderrail.

SPORTVOORZIENINGEN

Van voetbal en hockey tot fitness, zwemmen en tennis, in Krimpen aan den IJssel zijn ruim voldoende sportvoorzieningen aanwezig. Een plek van eindeloos bewegen, zowel binnen de verenigingen als in de frisse buitenlucht.

10
11

OMGEVING

WONEN AAN DE HOLLANDSCHE IJSSEL

DOOR WATER EN LEVENDIGE STEDEN OMRINGD

Uniek aan de ligging van Krimpen aan den IJssel is de rust van een natuurlijke omgeving zonder de bruisende grotere steden ook maar een moment te hoeven missen. Of u nu geniet van inspirerende plekken in de buitenlucht of een liefhebber bent van cultuur en architectuur, vanuit Krimpen aan den IJssel is alles in de buurt.

UNIEKE NIEUWE

WOONOMGEVING AAN HET

WATER VAN DE HOLLANDSCHE IJSSEL

VERKEER EN VERVOER

Krimpen aan den IJssel is onderdeel van metropoolregio Rotterdam

Den Haag. Vanuit hier zijn verbindingswegen als de A16 en de N210 snel bereikbaar. Busverbindingen in de omgeving vervoeren u naar steden als Rotterdam, Utrecht en Gouda. binnen een kwartier bevindt u zicht in Capelle aan den IJssel, in een half uur in Rotterdam. Extra bijzonder is de waterbus voor een pittoreske overtocht naar bijvoorbeeld de prachtige Biesbosch en het centrum van Rotterdam. Ook met de fiets kunt u er heerlijk op uit.

OP PAD MET DE WATERBUS

De waterbus biedt u een unieke manier van reizen. Plan talloze uitjes vanuit uw nieuwe woonomgeving in Krimpen aan den IJssel. Denk bijvoorbeeld aan Rotterdam, de stad die bekend staat om de grote haven, de ‘geen woorden, maar daden’ mentaliteit en de vele opties op het gebied van kunst, cultuur, winkelen en genieten. Super dichtbij gelegen, op minder dan 10 kilometer afstand. Bezoek de havengebieden, de Markthal, Museumpark en de vele winkelstraten die de stad rijk is. Sluit de avond af met een gezellig diner en een voorstelling bij een van de theaters en keer na afloop tevreden terug naar uw heerlijke thuis in het Pakhuis.

12
DE OUDE WERF N210 A16 N210 N219 HollandscheIJssel Nieuwe Maas I J s seldijk KRIMPEN AAN DEN IJSSEL ROTTERDAM DEN HAAG ZOETERMEER DORDRECHT GOUDA DELFT LEIDEN CENTRUM 4 min. SNELWEG (A16) 13 min. ROTTERDAM 12 min. BASISSCHOOL 5 min. MIDDELBARE SCHOOL 7 min. BUSHALTE 3 min. SPORTVERENIGING 4 min. ROTTERDAM 45 min. A16 A15 A29 A20 A12 A4 13

INTERVIEW MET DE ARCHITECTEN

RUST EN REURING VANUIT ÉÉN LOCATIE

“Hier zouden we zelf graag wonen”

Vol passie vertellen de architecten over het ontstaan van De Oude Werf. De ligging, het scheepsverleden, het industriële en stoere karakter van de gebouwen, wat hen betreft is dit een fenomenale plek om te wonen.

Interieur impressie | Bouwnummer 41

Aan afbeeldingen in deze brochure kunnen geen rechten ontleend worden.

“De Oude Werf is een passend project, dat voortborduurt op de context, schaalgrootte en kapvormen van het verleden. Bebouwing die een duidelijke link heeft met de voormalige scheepswerf en het water én een hoge, duurzame woonkwaliteit biedt. Het project heeft alles in zich om hier straks bijzonder fijn te wonen. De vier gebouwen staan ieder op zich en horen tegelijkertijd nadrukkelijk bij elkaar. Herkenbare architectuur; een stoere uitstraling aan de buitenzijde, met veelal balkons en loggia’s die het leven aan het water versterken. De penthouses hebben grote terrassen met vrij uitzicht op de Hollandsche IJssel en langsvarende schepen.”

Marnix van der Meer
14
Jasper Smits

EEN GROTE VARIËTEIT AAN WONINGEN

Voor dit project zaten de architecten gelukkig al snel op één lijn met de kaders van de gemeente. Zij hadden al direct een tussenschaal qua bebouwing voor ogen met een brede range aan woningtypen.

“We bieden voornamelijk gelijkvloerse appartementen aan. Drie­ en vierkamerwoningen, penthouses, alles met afmetingen van circa 60 m² tot circa 240 m².”

Exterieur impressie | Het Pakhuis Aan afbeeldingen in deze brochure kunnen geen rechten ontleend worden.

EEN KRACHTIGE SAMENWERKING

Voor het ontwerp van de vier gebouwen werkten Marnix van der Meer (Zecc architecten) en Jasper Smits (Jasper Smits Architecten) zeer succesvol samen. Met gevoel voor de historie van de locatie besloten ze ieder gebouw unieke eigenschappen mee te geven waardoor bewoners straks trots kunnen zeggen: ‘Ik woon in het appartement of penthouse in het Pakhuis.’

15

HET PLAN

STOERE GEBOUWEN EN EEN PRACHTIGE TUIN

De Oude Werf blijft een historische plek. Een landmark voor Krimpen aan den IJssel met stoere gebouwen rond een prachtige tuin. Een plek met modern wooncomfort voor een toekomst aan het water. Hier komen mensen samen, genieten ze van het prachtige uitzicht langs de kade en de rust van de Werftuin. De Oude Werf nodigt uit tot contact.

IEDER GEBOUW EEN EIGEN IDENTITEIT

Stoere, robuuste en duurzame gebouwen met een authentiek karakter en een eigen aardse tint, dat kenmerkt De Oude Werf. De balkons en loggia’s versterken het leven aan het water en de moderne industriële architectuur brengt heden en verleden samen.

Zo is het schuine dak van het Kraanhuis geïnspireerd op oude scheepskranen, komt het hout van de smederijloods terug in het Dijkhuis en is de afgeknotte kapvorm van het Scheepshuis te herleiden naar de directiewoning van oude werven.

UW EIGEN PLEK LANGS DE HOLLANDSCHE IJSSEL

“Het rijke verleden van deze plek prikkelde meteen om een duurzame toekomstvisie op te mogen bedenken.”

Denkt u zich eens in… thuiskomen op uw eigen plek langs de Hollandsche IJssel. U kijkt uit over het water vanaf de autovrije kade. De zon gaat langzaam onder, waarna u in alle rust door de Werftuin wandelt. U haalt diep adem en ruikt de prachtige bloemen. U groet de buren en realiseert zich opnieuw hoe fijn het is om op deze unieke plek te wonen. Aan het water, op loopafstand van het centrum van Krimpen aan den IJssel.

KRAANHUIS PAKHUIS DIJKHUIS SCHEEPSHUIS
16

HET PAKHUIS

13 APPARTEMENTEN

2 appartementen ca. 95 - 110 m²

8 appartementen ca. 120 - 160 m²

3 penthouses ca. 115 - 240 m²

16 WONINGEN

12 appartementen ca. 60 - 125 m²

2 penthouses ca. 160 - 165 m²

2 stadswoningen ca. 155 m²

HET KRAANHUIS

13 APPARTEMENTEN

6 appartementen ca. 65 - 115 m²

4 appartementen ca. 135 m²

3 penthouses ca. 170 - 220 m²

HET DIJKHUIS

11 WONINGEN

8 appartementen ca. 60 - 90 m²

3 stadswoningen ca. 130 - 135 m²

HET SCHEEPSHUIS
17
Exterieur impressie | Werftuin Aan afbeeldingen in deze brochure kunnen geen rechten ontleend worden. 18

ONTDEK DE WERFTUIN

Een intieme verhoogde binnentuin, voorzien van volwaardige beplanting. Hier treft u een speels wandelpad en voldoende ruimte om plaats te nemen tussen de elzen, heesters en sierfruitbomen. Een plek waar u andere bewoners en bezoekers kunt ontmoeten.

In direct contact met de rivier, de werf en de sfeervolle dijk is de Werftuin een heerlijke plek om te verblijven. Kom binnen door de poorten aan verschillende zijden van De Oude Werf of benut de unieke entree via de brug vanuit de stallinggarage. Hiervandaan hebt u vrij uitzicht over de dijk en de Hollandsche IJssel terwijl u de rust van de achterliggende tuin nadert.

EEN UNIEKE DYNAMIEK

De Werftuin staat in mooi contrast tot de ruwere buitenruimte. Betonnen platen, kasseien en grote palen maken plaats voor halfverharding, stapstenen, veldkeien en meerpalen.

“Bewoners zullen vanuit de Werftuin de dynamiek terugzien van herkenbare elementen uit het oorspronkelijke landschap en het ongetemde karakter van een leven aan het water.” vertelt Jos van de Lindeloof van Lindeloof Tuin­ en landschapsarchitecten. “We hebben dit bedacht om de geschiedenis een plek te geven en de waarde van de tuin voor bewoners te vergroten. In de Werftuin geniet u van een rustige, beschutte omgeving in een sfeer die geïnspireerd is op het boerenplatteland.”

Het is een soort ontdekkingsplek, een plek waar u toevalligerwijs terecht kunt komen.
19
Berging Parkeerplaats Stallinggarage 75 1 1 3 6 9 23 11 21 2 2 3 4 5 6 7 8 9 10 11 12 13 14 15 16 17 18 19 20 21 22 23 24 25 26 27 28 29 30 31 32 33 34 35 36 37 38 39 40 41 42 43 44 45 46 47 48 49 50 51 52 53 4 7 25 27 28 29 30 32 34 31 33 35 36 37 74 73 72 71 70 69 38 39 40 41 44 47 42 45 48 43 46 49 51 50 52 53 54 55 56 57 58 59 60 61 62 63 64 65 66 67 68 10 22 12 20 13 14 15 16 17 18 19 5 8 24 26 3250+ R2000 88+ 0,23 3,77+ poort flatkast CVZ 1 Insteekhaven Werftuin Hollandsche IJssel 20

Situatietekening

Exterieur impressie | Gevel begane grond

Aan afbeeldingen in deze brochure kunnen geen rechten ontleend worden.

Exterieur impressie | Entree stallinggarage

Aan afbeeldingen in deze brochure kunnen geen rechten ontleend worden.

HALF VERDIEPTE STALLINGGARAGE

Met de strategisch ontworpen half verdiepte stallinggarage met de toegang onder het Dijkhuis staat uw auto altijd dichtbij. De stallinggarage biedt toegang tot de Werftuin en is tegelijkertijd met alle gebouwen verbonden. Zo hebben bewoners de gelegenheid om binnendoor naar huis te lopen.

Naast parkeergelegenheid treft u in de stallinggarage een privé­berging met stroomvoorziening voor het opladen van elektrische fietsen of andere elektrische apparatuur.

64+ P IJsseldijk
21
Entreestallinggarage
impressie | De Oude Werf Aan afbeeldingen in deze brochure kunnen geen rechten ontleend worden.
Vogelvlucht
23
in
rechten ontleend worden.
Exterieur impressie | Pakhuis Aan afbeeldingen
deze brochure kunnen geen

HET PAK HUIS

13 APPARTEMENTEN

In het hoogste gebouw op de kop van De Oude Werf treft u appartementen en penthouses met een prachtig uitzicht over de Hollandsche IJssel. Stoer wonen, in een industrieel pand dat tot de verbeelding spreekt.

Vanuit de woonkamer en de ruime balkons bekijkt u dagelijks de meest spectaculaire Hollandse luchten. Volg de boten die voorbijvaren en geniet van de reuring die een leven aan het water u brengt.

Uw nieuwe thuis is volledig naar wens in te richten. Hier treft u een riante woonomgeving met grote raampartijen en voldoende ruimte om een comfortabele en inspirerende thuiswerkplek te creëren.

Op zoek naar een nieuw perspectief? Wandel door de poort langs de IJsselkade de Werftuin in voor een heerlijke middag in het groen. Neem plaats tussen de sierfruitbomen en ontmoet uw medebewoners voor een praatje.

Interieur impressie | Entree Pakhuis Aan afbeeldingen in deze brochure kunnen geen rechten ontleend worden. 25
De aangegeven maten zijn ‘circa’ maten. Bouwnr. Woonoppervlakte Buitenruimte Slaapkamers Verdieping Pagina 1 97 m² 14,8 m² 2 (3e optioneel) BG 32 2 110 m² 27,7 m² 2 BG 35 3 163 m² 22,4 m² 3 (4e optioneel) 1 38 4 120 m² 19,3 m² 2 1 44 5 163 m² 22,4 m² 3 (4e optioneel) 2 38 6 138 m² 19,3 m² 3 2 47 7 152 m² 30,7 m² 3 (4e optioneel) 3 50 8 138 m² 19,3 m² 3 3 47 9 152 m² 30,6 m² 3 (4e optioneel) 4 50 10 138 m² 19,3 m² 3 4 47 11 141 m² 25,6 m² 3 5 53 12 115 m² 23,6 m² 2 5 56 13 241 m² 75 m² 4 6 62 26
BOUWNUMMER OVERZICHT
|
Aan afbeeldingen in deze brochure kunnen geen rechten ontleend worden. 27
Exterieur impressie
Pakhuis
VERDIEPINGEN OVERZICHT Eerste verdieping 0m 1m G R O U onderdeel datum THE NETHERLANDS DE OUDE Pakhuis eerste verdieping Copy 1 3 4 Begane grond 0m 2m 5m 1m Pakhuis begane grond N 1 2 Tweede verdieping 0m 2m 5m 1m Pakhuis d: b: G R O U N D E D A R C H I T E C T U R E ZECC ARCHITECTEN BV TRACTIEWEG 41 3534 AP UTRECHT onderdeel datum fase THE NETHERLANDS T+31(0)30 273 1289 INFO@ZECC.NL WWW.ZECC.NL BANK NL59 RABO 0394 6127 44 KVK 30 183 613 LID BNA schaal DE OUDE WERF KRIMPEN Pakhuis -tweede verdieping Copy 1 21-12-202322-02-202401-03-202407-03-2024 TO 1:100 / A2 263-P-1-010 Pakhuis tweede verdieping N 5 6 28
0m 2m 5m 1m Pakhuis d: c: b: a: G R O U N D E D A R C H I T E C T U R E ZECC ARCHITECTEN BV TRACTIEWEG 41 3534 AP UTRECHT onderdeel datum fase THE NETHERLANDS T+31(0)30 273 1289 INFO@ZECC.NL WWW.ZECC.NL BANK NL59 RABO 0394 6127 44 KVK 30 183 613 LID BNA schaal DE OUDE WERF KRIMPEN Pakhuis -vijfde verdieping Copy 1 21-12-202322-02-202401-03-202407-03-2024 TO 1:100 / A2 263-P-1-013 Pakhuis vijfde verdieping Copy 1 N 11 12 Vierde verdieping 9 10 0m 1m G R O U onderdeel datum THE NETHERLANDS DE OUDE Pakhuis vierde verdieping Copy 1 0m 1m G R O U onderdeel datum THE NETHERLANDS DE OUDE Pakhuis zesde verdieping Copy 1 Zesde verdieping 13 Derde verdieping 0m 2m 5m 1m Pakhuis Pakhuis derde verdieping Copy 1 N 7 8 29
Vijfde verdieping
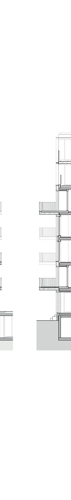
GEVELAANZICHTEN Hollandse IJsselzijde | schaal 1:200 Werftuinzijde | schaal 1:200 +960 00 begane grond +3960 01 eerste verdieping +6960 02 tweede verdieping +9960 03 derde verdieping +12960 04 vierde verdieping +15960 05 vijfde verdieping +18960 06 zesde verdieping +0 peil entree bk dakrand 22310 +P stallingsgarage +960 00 begane grond +3960 01 eerste verdieping +6960 02 tweede verdieping +9960 03 derde verdieping +12960 04 vierde verdieping +15960 05 vijfde verdieping +18960 06 zesde verdieping +0 peil entree bk dakrand 22310 +P stallingsgarage appartementen Kraanhuis appartementen Kraanhuis appartementen Kraanhuis appartementen Kraanhuis achtergevel rechter zijgevel +960 00 begane grond +3960 01 eerste verdieping +6960 02 tweede verdieping +9960 03 derde verdieping +12960 04 vierde verdieping +15960 05 vijfde verdieping +18960 06 zesde verdieping +0 peil entree bk dakrand 22310 +P stallingsgarage +15960 05 vijfde verdieping +18960 06 zesde verdieping bk dakrand 22310 +P achtergevel 22310+P +0 +18960 +3960 +12960 +15960 +6960 +9960
peil entree
22310+P +18960
+15960
+960 +3960 +6960 +9960 30
dakrand
begane grond
+12960
dakrand

Symbool

Omschrijving positie meterkast

opstelplaats wm = wasmachine, wd = wasdroger

opstelplaatst keuken

ventilatierooster in het glas of boven kozijn

afzuigpunt ventilatie

MECHANISCHE INSTALLATIES & OPSTELPLAATSEN

ELEKTRISCHE INSTALLATIES & AFKORTINGEN

Symbool

Omschrijving

Bedrade leiding

Bel drukknop

Centraaldoos met lichtpunt

RM

D1

Data aansluitpunt

Intercom videofoon

Loze leiding

Rookmelder

Schakelaar enkelpolig

Schakelaar met ingebouwde signaallamp

Schakelaar kruis

Schakelaar serie

Schakelaar wissel

Wandcontactdoos 1­voudig

Wandcontactdoos 1­voudig, waterdicht

Wandcontactdoos 2­voudig in 2 inbouwdozen

Wandcontactdoos 2­voudig opbouw

Wandcontactdoos 3 fasen, nul en aarde

Wandlichtpunt

Symbool

Omschrijving vloerverwarmingsverdeler omvormer pv­panelen

warmtepomp

mechanische ventilatie unit elektrische radiator

RENVOOI TECHNISCHE PLATTEGRONDEN

Afkorting Omschrijving

KOOK 3F Elektrische kookaansluiting 3­fase

AFZ Afzuigkap

BO Boiler

CM Combi magnetron

HH

Huishoudelijk gebruik

KK Koelkast

RAD Radiator elektrisch

Th Thermostaat

VW Vaatwasser

WD Wasdroger

WM Wasmachine

KWK Kokend water kraan

WKK Wijn klimaat kast

bk dakrand 22320 +P 0m 2m 5m 1m Pakhuis onderdeel m a a t v o e r n g i n m l i m e t e r s schaal datum DE OUDE WERF KRIMPEN Pakhuis -doorsneden 01-03-2024 1:100 / A1 VK-P-3-001 N Doorsnede | schaal 1:200 bk dakrand 22320 +P bk dakrand 22320 +P 0m 2m 5m 1m Pakhuis onderdeel m a a t v o e r i n g i n m i i m e t e r s schaal datum DE OUDE WERF KRIMPEN Pakhuis -doorsneden 01-03-2024 1:100 / A1 VK-P-3-001 doorsnede B-B doorsnede C-C N
31

indelingssuggestie | niet op schaal

BOUWNR

01

Soort Appartement

Gebouw Pakhuis

Oppervlakte 97 m²

Buitenruimte 14,8 m²

Verdieping BG

Slaapkamers 2 Met de mogelijkheid tot 3 slaapkamers

Badkamer 1

Uitzicht Over de Hollandsche IJssel en de Werftuin

Ligging Buitenruimte van ca. 14,8 m², Zuidoost, aan zijde Werftuin

zijde Hollandsche IJssel zijde Werftuin

zitelement entree

◄3715►

◄1115►

kolom

postbussen en belpaneel

◄5450►

BWNR.1

D1 D1

zitelement

◄6560►

45,0 m² woonkamer/keuken

◄850►

◄1905► afz

KOOK 3F

AFZ CM HH VW KK HH

◄15890►

1,4 m² techniek

◄1690►

◄930►

◄1420►

v.v. pv

1,3 m²berging

RM BO Th

◄1915►

◄900►

douchescherm

◄2690►

6,3 m² badkamer

◄2740►

entreehal

schoonloopmat

entreehal

lift

◄7160►

wp + mv wp + mv

◄1800►

◄800►

◄1420►

1,3 m² toilet

◄930►

8,4 m²werk-/hobbyruimte

e g a a a g h h d e d b c b c

◄1085►

WM WD RAD

◄2200► trede

1,4 m² techniek

◄3815►

stalen poort t.b.v. afsluitbaarheid binnentuin afz afz

0,8 m²berging

◄4805►

◄1100►

6,9 m² hal

◄2130►

◄1010►

◄1550►

15,0 m² slaapkamer 1

◄4330►

◄1905►

◄3475►

b2

7,9 m² slaapkamer 2

◄3300►

◄2400►

trappenhuis

flatkast CVZ-kast

◄4880►

◄1725►

b2 b2 d

technische plattegrond | schaal 1:50

BO WM WD

◄1695►

◄1200►

AFZ CM HH VW KK HH a a c

v. v.

afz afz afz afz afz afz

v.v. pv

◄1370►

2,3 m²berging

◄5335►

◄1230►

1,2 m² toilet

RM

◄930►

17,1 m² slaapkamer

1

◄3495►

◄3000► v. v. v.

14,8 m² terras trede trede trede

◄5000►

◄3000►

3F
KOOK
b2
afz
* * *
afz
34
begane grond

zitelement entree

postbussen en belpaneel

D1 D1

◄2200► trede

◄3815►

schoonloopmat

entreehal

◄2740►

◄7160►

◄1695►

kolom kolom

◄7850►

11,7 m² terras

zitelement

◄4805►

◄1100►

6,9 m² hal

◄2130►

◄1010►

◄1550►

entreehal ◄3000►

trappenhuis

◄800►

wp + mv

2,3 m²berging 1,4 m² techniek

◄1200►

◄5335►

KOOK 3F RM

v.v. pv

◄1230►

1,2 m² toilet

◄930►

◄1725►

7,9 m² slaapkamer 2

◄3300►

◄2400►

BWNR.2

50,3 m² woonkamer/keuken

BO RAD WM WD RAD AFZ CM HH VW KK HH h g h g a a a d d c b

◄5490►

v. v. v. v. v. afz zitelement afz

Th

◄4215►

12,2 m² hal

flatkast CVZ-kast

◄4880►

17,1 m² slaapkamer 1

a c b2 b2

◄2445►

8,4 m² badkamer

◄3530►

◄1770►

◄3495►

kolom kolom

trede trede

b1 b1 b2 a

◄3500►

◄1370► afz afz afz afz lift

◄1495►

douchescherm

◄900►

15,1 m² slaapkamer 2

◄4285►

◄3000►

16 m² terras

◄5500►

◄3550►

technische plattegrond | schaal 1:50

a g h h b2 d
6,3 m² badkamer
◄1800► ◄1915► ◄1085►
◄4330► douchescherm ◄900►
v.
35

indelingssuggestie | niet op schaal

BOUWNR

02

Soort Appartement

Gebouw Pakhuis

Oppervlakte 110 m²

Buitenruimte 27,7 m²

Verdieping BG

Slaapkamers 2

Badkamer 1

Uitzicht Over de Hollandsche IJssel en de Werftuin

Ligging 2 Buitenruimtes van ca. 11,7 en 16 m², respectievelijk Noord en Zuidoost

zijde Hollandsche IJssel zijde Werftuin 37

indelingssuggestie | niet op schaal

BOUWNR

03 & 05

Soort Appartement

Gebouw Pakhuis

Oppervlakte 163 m²

Buitenruimte 22,4 m²

Verdieping 1e (bouwnummer 03) | 2e (bouwnummer 05)

Slaapkamers 3 Met de mogelijkheid tot 4 slaapkamers

Badkamers 2

Uitzicht Over de Hollandsche IJssel en de Werftuin

Ligging 2 Buitenruimtes van ca. 10,6 en 11,8 m², respectievelijk Noord en Zuidoost

zijde Hollandsche IJssel zijde Werftuin

10,6 m² balkon

kolom

b1

trede

b1

◄3190► ◄2420►

◄6560►

kolom

c b

WKK

◄8375► afz

◄6170►

BWNR.3

◄15890►

CM HH KWK KK HH VW

◄5450► ◄2755►

◄900► ◄880►

◄3690►

8,9 m² badkamer 1

◄900►

◄1740►

douchescherm

◄2100►

95,0 m² woonkamer/keuken

◄1160► ◄4990►

◄5650►

v. lift

D1 KOOK 3F RM Th

◄1100►

0,8 m²berging

WM WD RAD RAD

◄1860►

v. v.

mv D1

j g a a a a j k k h g h d e d e b c

◄4330►

◄7160►

technische plattegrond | schaal 1:50

afz afz afz afz afz

◄1985►

v.v. pv

5,7 m² techniek

◄4330►

11,5 m² slaapkamer 2

◄3490►

◄2800►

b2

b2

betonnen borstwering vide entreehal afz

trappenhuis

wp wp + mv

◄3690►

3,6 m² badkamer 2

◄1100►

◄930►

◄6000►

◄1410►

1,3 m² toilet

◄3490►

8,2 m² hal

◄2130►

◄1100► ◄1550►

10,0 m² slaapkamer 3

◄4330►

◄2580►

b2

trappenhuis

◄3300►

15,0 m² slaapkamer 1

◄4550►

◄800►

KK HH a

CM HH

1,4 m² techniek

WM WD

◄2200►

◄4880►

◄5040►

◄3495►

v. v. v. v.

b2

11,8 m² balkon

VW
a c
d
17,5 m² slaapkamer 1
afz
afz
◄1850► ◄1200► ◄1725► ◄1800►
8,7 m² balkon
afz ◄3195► VK 40
41
Interieur impressie | Bouwnummer 3 en 5 Aan afbeeldingen in deze brochure kunnen geen rechten ontleend worden. 43

indelingssuggestie | niet op schaal

BOUWNR

04

Soort Appartement

Gebouw Pakhuis

Oppervlakte 120 m²

Buitenruimte 19,3 m²

Verdieping 1e

Slaapkamers 2

Badkamer 1

Uitzicht Over de Hollandsche IJssel en de Werftuin

Ligging 2 Buitenruimtes van ca. 10,6 en 8,7 m², respectievelijk Noord en Zuidoost

zijde
zijde Hollandsche IJssel
Werftuin

10,6 m² balkon

◄3195►

douchescherm v. v. v. v. v. v. lift

◄7160►

betonnen borstwering vide entreehal

◄800►

◄1800►

◄2130►

◄1695►

◄5335►

◄1200►

◄2200►

1,2 m² toilet

◄1725►

◄4880►

◄5040►

Th BO RAD WM WD AFZ CM HH VW KK HH h g h g a a a d d c b b1 b1 a b2 a c

trede

◄7850►

59,2 m² woonkamer/keuken

KOOK 3F RM

2,3 m²berging 1,4 m² techniek trappenhuis trappenhuis

◄1230►

◄1370►

BWNR.4

◄7760►

technische plattegrond | schaal 1:50 wp + mv v.v. pv

12,2 m² hal

◄4215►

◄2445►

8,4 m² badkamer

◄930► afz afz afz afz

17,5 m² slaapkamer 1

◄3495►

8,7 m² balkon

◄900► afz afz

kolom kolom kolom kolom

◄1770►

◄1490►

◄3550► ◄3500►

15,1 m² slaapkamer 2

◄4285►

v.v. pv mv
D1
a a b1 b2
D1
RM
d b2
slaapkamer 3
5,7 m² techniek
15,0 m² slaapkamer 1 8,2 m² hal
◄4330► ◄3690► ◄5650► ◄1985► ◄1100►
◄4330► ◄4550►
◄3300►
◄1100►
◄1550►
trede
46

◄4550►

◄6560►

10,6 m² balkon

◄5450►

◄5450►

◄1850►

◄1985►

◄3890►

◄3890►

◄4330►

◄3565►

stalen balk

◄12650►

69,2 m² woonkamer/keuken

◄7160►

◄4550►

◄1800►

10,6 m² balkon

◄3690►

8,2 m² hal 3,6 m² badkamer 2 5,7 m² techniek m²berging 1,3 m² toilet

◄930►

◄3330►

◄2110►

◄6000►

◄1100►

◄1100►

◄1410►

◄3330►

◄2130►

◄1100►

◄1550►

trappenhuis

◄8365►

◄800►

afz trappenhuis afz ◄4085►

◄6250►

◄2330►

◄7850►

◄4025►

◄4525►

◄2280►

◄1080►

◄1505►

◄1370►

◄1725►

◄1800►

◄1100►

◄1370►

v. v. v. v. lift ◄900► ◄1160►

BWNR.6

trede

◄5570►

technische plattegrond gevel bouwnummer 10 | schaal 1:50

◄12650► ◄3040► 11,8

◄2085►

6,7 m² badkamer

◄4330►

◄1200►

2,1 m²techniek/berging

69,4 m² woonkamer/keuken

1,5 m² toilet

◄4520►

◄5695►

15,1 m² hal

◄800►

◄4750►

◄3390►

afz afz

1,4 m² techniek trappenhuis

wp + mv v.v. pv wp v.v. pv

15,0 m² slaapkamer 1

◄2580►

◄1200► trede trede

◄3300►

17,1 m² slaapkamer

◄2330►

mv D1 D1 KOOK 3F RM RM

◄4525►

WM WD CM HH KWK KK HH VW j a

◄1505►

◄1370►

2,1 m²berging

◄3430►

◄1080►

◄1100►

Th

1,5 m² toilet

◄4390►

◄4750►

◄5695►

1 10,0 m² slaapkamer

◄4550►

a

trappenhuis

◄3170►

◄6610►

◄930► ◄1085►

◄3260►

RAD RAD

14,9 m² hal

◄1725►

◄3495►

v. v. v.

◄1550►

◄4550►

◄3300►

◄4750►

◄4910►

8,7 m² balkon

17,1 m² slaapkamer 1

◄3495►

10,6 m² balkon kolom kolom kolom kolom

◄2085►

6,4 m² badkamer

◄5880►

3 12,3 m² slaapkamer

2

◄3430►

◄2130►

◄4750►

10,0 m² slaapkamer 2

◄2130►

◄2085►

◄5880►

12,3 m² slaapkamer 3

◄2085►

kolom kolom kolom kolom afz afz afz afz afz

1,4 m² techniek afz afz afz afz afz

technische plattegrond | schaal 1:50 bouwnummer 06 en 08 getoond

8,7 m² balkon

v.

v.

b2 g h h g a a a e b c c d e b1 b1 b a b2 a d b1 b2

WD
WM
a
j k
b
k
m² balkon
afz
afz
douchescherm
v. v. v.
◄3490►
◄7850► 15,0 m² slaapkamer 1 stalen balk wp wp + mv v.v. pv v.v. pv mv D1 D1 KOOK
RM RM
WM
WM WD RAD
a j k
b
v.
v. v. v. lift afz ◄1095► ◄920► ◄1985► ◄1410► ◄2580► ◄5650► ◄3725► ◄2110► ◄1100► ◄4330► ◄1100► ◄3490► ◄1850► ◄1740► ◄930► ◄2165► ◄5990► ◄1100►
10,0 m² slaapkamer 3 3,6 m² badkamer 2 5,7 m² techniek 8,2 m² hal ◄900► ◄1160► ◄1370►
3F
Th RAD
WD
CM HH KWK KK HH VW g h h g a a a b d c c d e b1 b1 b a b2 a j a
k
a e b2
BWNR.10 9,7 m² slaapkamer 3
afz afz
douchescherm
v.
afz
47

indelingssuggestie | niet op schaal bouwnummer 06 en 08 getoond

BOUWNR

06, 08 & 10

Soort Appartement

Gebouw Pakhuis

Oppervlakte 138 m²

Buitenruimte 19,3 m²

Verdieping 2e (bouwnummer 06) | 3e (bouwnummer 08) | 4e (bouwnummer 10)

Slaapkamers 3

Badkamer 1

Uitzicht Over de Hollandsche IJssel en de Werftuin

Ligging 2 Buitenruimtes van ca. 10,6 en 8,7 m², respectievelijk Noord en Zuidoost

zijde Hollandsche IJssel zijde Werftuin 49

indelingssuggestie | niet op schaal

BOUWNR

07 & 09

Soort Appartement

Gebouw Pakhuis

Oppervlakte 152 m²

Buitenruimte 30,7 m²

Verdieping 3e (bouwnummer 07) | 4e (bouwnummer 09)

Slaapkamers 3 Met de mogelijkheid tot 4 slaapkamers

Badkamers 2

Uitzicht Over de Hollandsche IJssel en de Werftuin

Ligging 2 Buitenruimtes van ca. 19,1 en 11,6 m², respectievelijk Noord en Zuidoost

zijde Hollandsche IJssel zijde
Werftuin

BWNR.7

19,1 m² balkon

◄3275►

kolom

◄4550►

◄4085►

◄6560►

◄8775►

◄2755►

◄5450►

a b b1 b a j g a a a j k k h g h e d e b c b1

◄900►

◄12605►

CM HH KWK KK HH VW

mv D1 D1

◄3890►

◄2980►

◄1850►

◄1985►

wp v.v. pv

◄880►

◄3690►

8,9 m² badkamer

1

◄900►

◄1160►

85,7 m² woonkamer/keuken

◄4990►

KOOK 3F RM Th

◄3690►

5,7 m² techniek

◄2100►

◄1740►

◄2110►

8,2 m² hal

0,8 m²berging

◄6250►

◄12650►

◄1200► trede trede

WM WD RAD RAD

3,6 m² badkamer 2

◄1100►

◄6000►

1,3 m² toilet

◄1100►

◄2130►

◄4330►

trappenhuis trappenhuis

◄835►

11,6 m² balkon 10,6

◄1860►

11,2 m² slaapkamer 2

◄3330►

◄930►

◄1410►

◄1100►

9,7 m² slaapkamer 3

◄4330►

v. v. lift afz

technische plattegrond | schaal 1:50 wp + mv

◄1800►

1,4 m² techniek

◄1725►

kolom afz afz afz afz afz afz afz afz

◄1550►

◄1100►

douchescherm v. v. v. v. v. v.

◄4750►

◄3300►

15,0 m² slaapkamer 1

◄2580►

◄2800►

b1 c b a b2

◄4550►

b2 b2

e d

v.v. pv

◄2400►

woonkamer/keuken 17,1 m² slaapkamer

HH KK VW

WM

◄3495►

8,7 m² balkon

KOOK 3F
69,5 m²
m² balkon
derde verdieping VK 52
stalen balk Pakhuis

◄4550►

◄4085►

kolom

kolom kolom

kolom

d BWNR.11

◄3760►

◄3565►

kolom

kolom kolom

b1

v. v. lift

b

◄9170►

stalen balk

◄3255►

BWNR.12

◄4655►

11,3 m² terras 14,3 m² terras

CM HH KWK KK HH VW

kolom

e d e

◄8845►

◄2715►

◄4725►

◄5450►

71,2 m² woonkamer/keuken

◄900►

◄880►

◄1850►

◄1985►

◄6600►

◄3930►

b

◄8500►

◄2800►

◄4550► trede trede trede

◄3690►

v.v. pv mv D1 D1 KOOK 3F

c c b b2 b2 b2 b1

8,8 m² badkamer 1

v. v. v. v. v.

◄900►

◄3690►

b1 b

◄7270►

61,9 woonkamer/keuken

◄2060►

j g a a a a

douchescherm

k h g h

5,7 m² techniek

◄1740►

◄1100►

0,8 m²berging

◄1850►

j k

◄800►

◄2395►

1,9 m² techniek

RM RM Th RAD

kolom

◄4330►

11,7 m² slaapkamer 2

◄3370►

◄1100► ◄2110►

3,6 m² badkamer 2

◄6000►

8,3 m² hal

stalen balk

◄2130►

1,3 m² toilet

◄2935►

trappenhuis trappenhuis

◄1400►

◄3565►

WM WD RAD RAD

◄900►

◄2090►

◄930►

◄1200►

◄1160► afz

◄1400►

technische plattegrond | schaal 1:50 wp + mv wp

◄755►

v.v. pv

◄2940►

◄2395►

5,9 m² badkamer

◄1100►

◄1640►

afz afz afz afz afz afz afz afz

h h g a

10,2 m² slaapkamer 3

◄4330►

kolom kolom

◄2670►

15,5 m² slaapkamer 1

◄4640►

◄3300►

◄1440►

douchescherm

◄900►

◄2670►

10,8 m² slaapkamer

◄3700►

c d
VK 53
stalen balk Pakhuis vijfde verdieping

indelingssuggestie | niet op schaal

BOUWNR

11

Soort Penthouse

Gebouw Pakhuis

Oppervlakte 141 m²

Buitenruimte 25,6 m²

Verdieping 5e

Slaapkamers 3

Badkamers 2

Uitzicht Over de Hollandsche IJssel en de Werftuin

Ligging 2 Buitenruimtes van ca. 11,3 en 14,3 m², respectievelijk Noord en Zuidoost

zijde Hollandsche IJssel zijde Werftuin
55

BOUWNR

12

Soort Penthouse

Gebouw Pakhuis

Oppervlakte 115 m²

Buitenruimte 23,6 m²

Verdieping 5e

Slaapkamers 2

Badkamer 1

Uitzicht Over de Hollandsche IJssel en de Werftuin

Ligging 2 Buitenruimtes ca. 11,6 en 12 m², respectievelijk Noord en Zuidoost

indelingssuggestie | niet op schaal zijde Hollandsche IJssel zijde Werftuin

◄3565►

◄4550►

◄4085►

D1 D1

◄3930►

◄4725►

◄8500► ◄4550►

stalen balk stalen balk

BWNR.12

61,9 m² woonkamer/keuken

◄900►

douchescherm

71,2 m² woonkamer/keuken 0,8 m²berging

◄3790►

mv

◄1850► ◄1740►

wp

◄1985►

v.v. pv

◄3690►

5,7 m² techniek

trappenhuis

◄3370►

◄930►

1,3 m² toilet 3,6 m² badkamer 2

◄6000►

8,3 m² hal

wp + mv

1,9 m² techniek

◄1400►

10,2 m² slaapkamer 3

v.v. pv

◄900►

◄2090►

◄1100► ◄2110► afz afz

◄3565►

◄755►

◄1350►

◄1350►

◄5220►

9,6 m² hal

a

◄2130►

◄1200►

◄7550► stalen balk

trappenhuis

◄1100►

◄1640►

◄4330►

◄2670►

15,5 m² slaapkamer 1

v. v. lift

5,9 m² badkamer

◄3300►

◄2800► kolom kolom kolom kolom kolom kolom kolom

1,3 m² toilet

KOOK 3F RM RM

◄3925► 11,6 m² terras

◄2395►

b1 b1 b b2 b2 b2 j a

◄4640►

◄930► afz

◄930►

1,3 m²berging

RAD VW h g h g a a a a e b c d c d e

◄3115►

afz afz afz

◄2335►

◄2250►

◄900►

◄1440►

◄2940► ◄2670►

Th RAD WM WD

10,8 m² slaapkamer 2

◄3300►

◄3700►

◄2395► ◄1100► afz douchescherm

KWK KK HH

CM HH

◄5175►

◄3215► ◄3350►

19,9 m² slaapkamer 1

◄4350► ◄1100►

◄1235►

◄7985► trede trede trede

v. v. v.

12,0 m² terras

kolom kolom kolom kolom

stalen balk stalen balk

technische plattegrond | schaal 1:50

WD
WM
a
j k
b
k
afz afz
◄6600► ◄5450► ◄7270► ◄800► ◄1400►
◄900► ◄880►
v.
◄1160► afz
58
59
Interieur impressie | Bouwnummer 13 Aan afbeeldingen in deze brochure kunnen geen rechten ontleend worden.
61

BOUWNR

Soort Penthouse

Gebouw Pakhuis

Oppervlakte 241 m²

Buitenruimte 75 m²

Verdieping 6e

Slaapkamers 4

Badkamers 2

Uitzicht Over de Hollandsche IJssel en de Werftuin

Ligging 4 buitenruimtes van ca. 13,3, 13,6, 14,1 en 34 m², respectievelijk Noord, Noordwest, Zuidwest en Zuidoost

13
zijde Werftuin
indelingssuggestie | niet op schaal zijde Hollandsche IJssel

120,4 m² woonkamer/keuken

34,0 m² dakterras

◄4300►

◄1080►

1,0 m² berging

◄740►

1,5 m² toilet

◄2085►

◄1170►

◄1125►

13,3 m² balkon

◄4300►

◄9170►

5,4 m² hal

◄1440►

◄1550►

Geen tegels

◄2800►

◄12515►

1,4 m² techniek

◄1730►

◄800►

3,6 m² techniek/berging

◄2600►

◄1370►

technische plattegrond | schaal 1:50 wp

7,2 m² gang

◄3170►

8,3 m² badkamer 1 28,3 m² slaapkamer 1

WKK a a c e d h g h g b1 b k j k a f f f b b b2 b2

◄3930►

◄3500►

◄1080►

◄3500►

7,6 m² badkamer 2

2,6 m² toilet

m² gang

BWNR.13

CM HH KWK KK HH RAD RAD VW

kolom kolom kolom kolom

120,4 m² woonkamer/keuken

◄3340► trappenhuis trappenhuis kolom kolom kolom kolom

b1 b4 f e e e e c d m m b4 b3 b3 b1 m

◄4085► ◄4550► ◄3565► ◄12560►

b3 b4 m m m

14,1 m² balkon ◄2800►

kolom kolom kolom

12,3 m² slaapkamer 2

12,3 m² slaapkamer 3

◄4100►

◄4100►

v.v. pv mv D1 KOOK 3F RM RM RM RM RM RM RM RM Th WM WD

12,3 m² slaapkamer 4

13,6 m² balkon

◄4100► stalen balk stalen balk stalen balk stalen balk stalen balk stalen balk stalen balk

◄3000► ◄3015►
◄1115► ◄3015►
◄2400► ◄1315► afz afz afz afz afz afz afz
11,3
◄1815► ◄2070► ◄4880► ◄2070► ◄1800► ◄1200► ◄8635►
◄4550► ◄3565►
* * * * * * *
v.
* * * lift
kolom kolom kolom kolom kolom kolom kolom kolom kolom kolom dakluik ◄1370► afz ◄2400► ◄2400► douchescherm douchescherm
v. v. v. v. v. v. v.
v. v. v.
◄2330► ◄900► ◄1450► ◄900► ◄2550► trede trede trede
stalen
stalen
Pakhuis zesde verdieping VK
balk
balk
64
65
Interieur impressie | Bouwnummer 13 Aan afbeeldingen in deze brochure kunnen geen rechten ontleend worden. 67

VOORDELEN NIEUWBOUW

Kiezen voor een nieuwbouwwoning biedt tal van voordelen en pluspunten. Zo schept nieuwbouw bijvoorbeeld als vanzelfsprekend een band. U en uw buren maken immers gelijktijdig een nieuwe start in een nieuwe woonomgeving. Daarnaast zijn er uiteraard ook tal van andere voordelen. Denkt u bijvoorbeeld aan:

FINANCIEEL AANTREKKELIJK

• U betaalt geen overdrachtsbelasting. U koopt de woning vrij op naam (v.o.n.). Dit betekent dat u koopt inclusief bijkomende kosten zoals:

• kosten van architect en overige adviseurs

• toezichtkosten tijdens de bouw

• bouw­ en grondkosten

• éénmalige aansluitkosten ­nutsvoorzieningen: elektra, water en riolering

• notaris­ en kadaster kosten voor de aankoop van uw woning

• omzetbelasting (21% BTW). Eventuele wettelijk bepaalde verhogingen van het btw­tarief worden doorberekend

• standaard inrichting keuken

• standaard inrichting badkamer en toilet met tegels & sanitair

• inclusief Woningborg Garantie.

Niet inbegrepen zijn:

• Kosten voor eventueel meerwerk kopers opties

• advies­ en bemiddelingskosten voor hypothecaire lening

• abonnee­ en aansluitkosten voor telefoon, cai en nutsvoorzieningen

• notaris­ en kadaster kosten voor je hypotheek

• renteverlies tijdens de bouw.

DUURZAAM

Bij de realisatie van transformatie­ en nieuwbouwprojecten staat de hoogwaardige afwerking garant voor jarenlang zorgeloos genieten. Hier woont u straks in een gasloos en energiezuinige woning. Goed geïsoleerd, voorzien van triple beglazing én voorzien van de nieuwste technieken op gebied van duurzaamheid. Daken, gevels en beglazing zijn uitstekend geïsoleerd en de eigen warmtepomp en ventilatie realiseert het gehele jaar door een comfortabel woonklimaat. Kiezen voor een nieuwbouwwoning is een goede keus voor wie comfortabel wil wonen en daarbij bewust om wil gaan met het milieu.

ENERGIEZUINIG

Veel producten zijn sterk verbeterd de afgelopen jaren als het gaat om energie labels. Ook de bouwwereld werkt hier hard aan mee. Een goede ontwikkeling waar iedereen beter van wordt. Voor het project De Oude Werf geldt het energielabel A++(+).

ZORGELOOS

Alles is nieuw, alles werkt na oplevering van uw nieuwbouwwoning. Op veel onderdelen heeft u garantie en de woning is de eerste jaren onderhoudsvrij. Een ontspannen gedachte.

COMFORTABEL

De nieuwbouwwoningen zijn voorzien van moderne technieken, waaronder installatietechnieken. Hierdoor geniet u van een aangename temperatuur en weinig tot geen geluid van buiten. De woningen zijn namelijk goed geïsoleerd tegen temperatuurwisselingen en geluid van buiten. Ook zijn de woningen voorzien van vloerverwarming die u per verblijfsruimte in kunt stellen.

EERSTE BEWONER

U bent de allereerste bewoner en heeft daardoor veel te kiezen. Tijdens het aankooptraject bespreekt de kopersbegeleider met u alle persoonlijke woonwensen aan de hand van de afbouwoptielijst. Bij afbouwopties kunt u denken aan het verplaatsen van stopcontacten, de keus van beslag en lichtpunten. Of de ideale droomkeuken met kookeiland misschien wel?!

69

DUURZAAM WONEN

DUURZAAM IN ALLE OPZICHTEN

Naast techniek en installaties spelen voor de architecten ook andere duurzaamheidseisen een rol. “Wij wilden herkenbaarheid creëren voor de lange termijn door een architectonische vormentaal te ontwikkelen. We hebben baksteen en hout gecombineerd met staal als dragers van de architectuur die passen bij de gedachte van de werf. Stoer en industrieel, in een sociale context waar mensen prettig wonen en verblijven.”

De gevels zijn optimaal geïsoleerd, de ramen bestaan uit goed geïsoleerd triple glas en de daken zijn voorzien van zo veel mogelijk, aan het zicht onttrokken, zonnepanelen. Bijkomend voordeel is de openheid en ligging aan het water. “Het wordt hier nooit zo heet als in de stad. Een beetje wind, weinig steen, lijkt me heerlijk!”

DUURZAAM EN HOOGWAARDIG

Nederland wil in 2050 een energieneutraal gebouwde omgeving. Met de woningen in het nieuwbouwproject De Oude Werf wordt hierop voorgesorteerd. De Oude Werf wordt gebouwd volgens de BENG­norm. BENG gaat ervan uit dat energiebesparing boven energieopwekking gaat. De hoogwaardige isolatie en goede ventilatie zorgt voor een heel comfortabel binnenklimaat en woonbeleving. De warmte wordt in de winter langer vastgehouden en in de zomer juist buitenshuis gehouden. Nieuwbouwwoningen zijn gasloos, wat betekent dat u op inductie kookt.

COMFORTABELE VLOERVERWARMING

Dagelijks kunt u genieten van comfortabele vloerverwarming. De vloerverwarming en de warmwater voorziening worden niet meer aangestuurd door een cv­ketel maar door een duurzame warmtepomp. In De Oude Werf profiteert u van het comfort van een nieuwbouwwoning en bent u klaar voor de toekomst!

70

De Oude Werf is duurzaam.

Dit gaat niet alleen over bouwtechniek en materialen, maar ook over hoe we omgaan met de natuur en dat we een woonomgeving realiseren die bijdraagt aan woongeluk.

AFWERKING

De woningen worden compleet opgeleverd met een keuken, sanitair en tegelwerk in toilet en badkamer. De badkamer krijgt standaard een inloopdouche, wastafel, mengkranen en een spiegel. Een aantal bouwnummers is ingedeeld met een tweede toilet en/of een ligbad. Natuurlijk is er ruimte voor aanpassingen om de door u aangekochte woning nog beter bij uw smaak en wensen aan te laten sluiten. Naast de keuken en badkamer bieden we ook andere opties, waarover de kopersbegeleider u na aankoop van uw woning uitgebreid zal informeren. Dat is het voordeel van een nieuwbouwwoning.

EXTRA FINANCIËLE MOGELIJKHEDEN

Doordat uw woning in het project De Oude Werf het energielabel A++(+) heeft, is het vanaf 1 januari 2024 mogelijk om desgewenst extra geld te lenen. Wilt u hierover meer informatie? Neem dan contact op met uw eigen bank of het bij dit project betrokken financieel adviesbureau Vaes finance. Zie voor meer informatie en contactgegevens de website: vaesfinance.nl.

71

KEUKEN, SANITAIR EN TEGELWERK

COMPLEET OPGELEVERD VOOR ZORGELOOS WONEN

Wat maakt van dit huis uw thuis? Het is de beleving, de mate waarin alles klopt, waarin u uw leefstijl en voorkeuren gereflecteerd ziet. Van de keuken waarin u geniet van dat eerste kopje koffie, een zondags ontbijt met de hele familie en diners met vrienden tot een oase van rust in uw stijlvolle nieuwe badkamer.

Iedere keuken wordt compleet opgeleverd met alle faciliteiten die u nodig heeft. Alles wat het hart van uw huis, de plek maakt waarvandaan de lekkerste gerechten hun geuren verspreiden. De plek waar de leukste plannen worden gemaakt en de beste gesprekken worden gevoerd. Een plek vol leven waar u eindeloos van kunt genieten.

Het sanitair van V&B, biedt u de gelegenheid om iedere dag goed te beginnen en af te sluiten. Geniet van een aaneenschakeling van natuurlijke tinten, of kies juist voor een uitgesproken stijl met mozaïek of opvallende tegelvormen. Voorzien van alle moderne gemakken en het tegelwerk van uw keuze. Na aankoop kiest u in de projectshowroom uw eigen elegante, stijlvolle en luxe uitstraling voor uw keuken en sanitair. Zo geniet u in De Oude Werf direct vanaf de sleuteloverdracht optimaal van uw nieuwe thuis.

72
73

HET KOOPPROCES IN TIEN STAPPEN

1 STAP

DE REIS BEGINT...

De brochure en projectwebsite voorzien in uitgebreide informatie.

KIES UW FAVORIETEN

Via de woningzoeker kunt u al uw favoriete bouwnummers bekijken. De perfecte voorbereiding t.b.v. uw inschrijving.

2 7

PERSOONLIJKE KOPERSBEGELEIDER

Na het tekenen van uw koop­en aanneemovereenkomst wordt u verder begeleid door de kopersbegeleider Uw aanspreekpunt gedurende het bouwproces tot en met de oplevering met sleuteloverdracht.

KEUZE MEER-/MINDERWERK

Zodra het merendeel van de bouwnummers is verkocht, wordt u uitgenodigd in de showroom van de projectleveranciers en worden de mogelijkheden ten aanzien van het meer­ en minderwerk doorgenomen.

STAP STAP
8 STAP
74

(ONLINE) INSCHRIJVEN

Na de start van de verkoop kunt u (online) inschrijven voor één of meer bouwnummers die uw voorkeur genieten.

ONDERTEKENEN KOOP- EN AANNEMINGSOVEREENKOMST

De volgende afspraak bij de makelaar betreft de tekenafspraak. Hierbij wordt de toewijzing definitief vastgelegd door middel van het ondertekenen van de koop­en aannemingsovereenkomst.

SELECTIE EN OPTIEGESPREK

INFORMATIE OVER VOORTGANG

Middels digitale nieuwsbrieven wordt u op de hoogte gehouden van de voortgang van het (bouw)proces en de kijken inmeetmomenten. Stap voor stap komt de oplevering van uw nieuwe woning of (top)appartement dichterbij!

U koopt uw woning of (top)appartement onder Woningborg Garantie. Bouwbedrijf De Langen & van den Berg realiseert graag een woonomgeving waar u met plezier woont. Enkele weken voor de oplevering vindt de voorschouw plaats. Dit is een infor meel moment waar u de gelegenheid krijgt uw woning/(top)appartement te inspecteren op onvolkomenheden. Deze proberen wij voor u op te lossen vóór oplevering. Hierna vindt de formele oplevering plaats en doen we samen met u een inspectieronde. 3

Na inschrijving kunt u geselecteerd worden als kandidaat voor een bouwnummer. Als u een bouwnummer krijgt toegewezen, wordt u door de makelaar uitgenodigd voor een optiegesprek. Diegenen die helaas geen bouwnummer toegewezen hebben gekregen, worden per e­mail geïnformeerd en automatisch op de reservelijst geplaatst.

OPTIEPERIODE

Na het optiegesprek met de makelaar heeft u officieel een optie op de woning of het (top)appartement tot aan het moment van de tekenafspraak. In de optieperiode kunt u uw financiële mogelijkheden in orde maken en uw persoonlijke woonwensen in kaart brengen.

VOORSCHOUW EN OPLEVERING

9
5 10 STAP STAP STAP STAP STAP STAP 75
6
4

TECHNISCHE OMSCHRIJVING

ALGEMEEN

Algemeen

Indien u besluit een appartement van ons te kopen, kunt u er zeker van zijn dat wij alles in het werk stellen om het vertrouwen dat u ons geeft waar te maken. Het is ons streven om een zo goed mogelijk product te leveren. In dit document geven wij u een overzicht van de gang van zaken van aankoop tot oplevering en geven wij u een overzicht van de onderdelen die allemaal bij de realisatie van uw appartement behoren.

Voorschriften en bepalingen

 Op dit project zijn de voorschriften en bepalingen van toepassing, die van kracht zijn op het moment van indiening van de omgevingsvergunning;

 Ongeacht wat in deze technische omschrijving is bepaald, gelden onverkort de door Woningborg gehanteerde en voorgeschreven regelingen, reglementen en standaard voorwaarden;

 In het geval dat enige bepaling in deze technische omschrijving daarmee onverenigbaar mocht zijn, dan wel nadeliger mocht zijn voor de koper, prevaleren steeds de bovengenoemde bepalingen van Woningborg.

1. PROCES VAN AANKOOP TOT EN MET DE NAZORGPERIODE

1.1 KOOP- EN AANNEMINGSOVEREENKOMST

Koop- en aannemingsovereenkomst

Met het ondertekenen van de koop­ en aannemingsovereenkomst verplicht u zich tot het betalen van de koop­ en aanneemsom, terwijl wij ons door medeondertekening verplichten tot de bouw van het appartementengebouw (één en ander behoudens contractuele en ontbindende voorwaarden). Nadat de koop­ en aannemingsovereenkomst door alle partijen is ondertekend, ontvangt u hiervan een exemplaar. Ook wordt er een origineel exemplaar naar de notaris gezonden die de notariële akte van eigendomsoverdracht opmaakt.

Vrij op naam (v.o.n.)

De koopsom van het appartement is vrij op naam, tenzij uitdrukkelijk anders vermeld. Vrij op naam wil zeggen dat de hieronder genoemde kosten, die met het verwerven van een eigen appartement gemoeid zijn, in de koopsom zijn inbegrepen:

 Grondkosten;

 Bouwkosten;

 CAR­verzekering;

 Honorarium voor architect en constructeur;

 Notariskosten inzake het notarieel transport;

 Makelaarscourtage/verkoopkosten;

 Gemeentelijke leges, de bouw van het standaard appartement betreffende (dus niet over eventueel meerwerk omtrent wijzigingen);

 Btw (21% eventuele wijzigingen worden conform wettelijke voorschriften verrekend);

 Kadastrale uitmeting;

 Omgevingsvergunning;

 Woningborgcertificaat;

 Aansluiting ten behoeve van water, elektra en riool (niet de aanvraag tot levering);

 Eventuele loon­ en prijsverhogingen (deze worden dus niet doorberekend);

 Energielabel.

De met de financiering van uw appartement verband houdende kosten, die niet in de koop­ en aanneemsom zijn begrepen, kunnen zijn:

 De kosten verbonden met het aangaan van een hypothecaire lening (zoals afsluitkosten, taxatiekosten);

 De premie voor de opstal­ en/of risicoreservering;

 De (bouw)rente over de grondkosten en de vervallen maar niet betaalde termijnen tot de transportdatum;

 De notariskosten voor het opmaken van de hypotheekakte.

 Andere bijkomende kosten kunnen zijn:

 De aanvraag voor levering van water en elektriciteit;

 Aansluitkosten voor telefoon;

 Aansluitkosten van CAI voor het aanleggen van het kabelnet (tv/radio) en/of glasvezel;

 Aanleg beveiligingsinstallatie;

 Tuinaanleg met beplanting en grondbewerking zoals spitwerk, drainage en dergelijke;

 Grondwerk, bestrating van rijstroken, terrassen en ontsluitingen van voordeur en achterplaats;

 Woninginrichting (meubilair en dergelijke);

 Vloer­ en wandafwerking;

 Eventueel meerwerk ten opzichte van het standaard appartement;

 Eventuele aanvullende gemeentelijke heffingen (bijvoorbeeld een inritvergunning).

Opschortingsrecht (5% opleveringsregeling)

De appartementen worden opgeleverd volgens eisen en richtlijnen van Woningborg. Een belangrijk punt hierbij is het opschortingsrecht (zogenaamde 5%­regeling), welke bij het tekenen van de koop­/ aannemingsovereenkomst van toepassing is verklaard. Deze regeling geeft de koper extra zekerheid om de bij de oplevering geconstateerde tekortkomingen zo spoedig mogelijk verholpen te krijgen.

Als koper van een nieuwbouwappartement heeft u het recht gebruik te maken van dit opschortingsrecht. Deze regeling betekent in het kort dat door de bouwonderneming bij de notaris een bankgarantie wordt afgegeven voor ten hoogste 5% van de aanneemsom, zijnde de helft van de laatste termijn van de aanneemsom, tot extra zekerheid dat, ondanks de voortdurende kwaliteitscontrole, de eventuele tekortkomingen die u bij de oplevering constateert zo spoedig mogelijk worden verholpen. De bankgarantie valt vrij nadat drie maanden zijn verstreken na het tijdstip van oplevering van uw privégedeelte, tenzij u voortijdig schriftelijk en onderbouwd aan de notaris kenbaar maakt dat u het vrijvallen van de bankgarantie wil blijven opschorten (opschortingsrecht). Dit opschortingsrecht heeft u alleen indien er tegen het eind van de drie­maandstermijn (nog) tekortkomingen bestaan. Als in verband met weersomstandigheden bv. het buitenschilderwerk later wordt afgewerkt, is het mogelijk om in overleg de bankgarantie te verlagen tot 1%.

Notaris

Voordat de bouw start wordt u als koper uitgenodigd voor de levering van de grond. De notariële stukken worden tijdens dit overleg besproken en ondertekend.

Akte van levering

De eigendomsoverdracht van het te bouwen appartement geschiedt door middel van een zogenaamde ‘akte van levering’ bij de notaris. In de koop­ en aannemingsovereenkomst wordt de uiterste datum van overdracht vermeld. Ook moet rekening worden gehouden met de geldigheidsduur van de hypotheekofferte. Vóór de datum van notarieel transport zendt de notaris u een afrekening waarop het totale, op die datum, verschuldigde bedrag is aangegeven. Op de afrekening wordt ook vermeld welk bedrag u aan de notaris moet overmaken. Het hypotheekbedrag dat in depot blijft, moet gelijk zijn aan de vanaf de transportdatum nog verschuldigde bouwtermijnen. Indien dit niet het geval is, zal het eventueel ontbrekende bedrag aangevuld moeten worden uit eigen middelen. Dan ook dient, indien dit noodzakelijk is, een bankgarantie te worden gesteld.

Akte van splitsing

De appartementsrechten ontstaan op basis van de akte van splitsing. In die akte worden de onderlinge belangen van de eigenaren geregeld, voor zover dat

76

nodig is. Elk appartementsrecht wordt in de akte van splitsing aangeduid met het complexnummer van het hele gebouw plus het cijfer van het betreffende appartementsrecht. Het complexnummer van het gebouw wordt vastgesteld door het kadaster. De voorlopige grenzen van het terrein worden nauwkeurig bepaald en verwerkt in een splitsingstekening en splitsingsakte. U kunt naar de notaris voor de overdracht van uw appartement als deze documenten gereed zijn. Als alles rond is, ontvangt u een uitnodiging van de notaris. U krijgt dan de akte van splitsing in appartementsrechten en een exemplaar van het modelreglement dat geldt voor het complex waarvan u mede­eigenaar wordt.

Hypotheekakte

Met betrekking tot de lening die u van de geldgever ontvangt (indien van toepassing).

Wat en wanneer te betalen

In de aannemingsovereenkomst treft u een overzicht van betalingstermijnen aan. Na ondertekening van de aannemingsovereenkomst wacht u af tot wij de reeds vervallen termijnen in rekening brengen. Er zijn dan een aantal mogelijkheden:

 Maakt u gebruik van eigen geld, dan betaalt u de factuur;

 Maakt u gebruik van een hypotheek en is de hypotheekakte gepasseerd dan betaalt u de factuur (via de hypotheekverstrekker);

 Maakt u gebruik van een hypotheek en is de hypotheekakte nog niet gepasseerd, dan betaalt u nog niet. U heeft dan automatisch uitstel van betaling, zoals dat ook in de aannemingsovereenkomst vermeld staat. Over de verschuldigde, maar niet betaalde grondkosten en termijnen, wordt de overeengekomen rente berekend. Deze rente wordt bij de notariële akte van levering met u verrekend.

 Telkens wanneer de bouw weer zover is gevorderd dat een (bouw)termijn is vervallen, ontvangt u van ons een digitaal verzoek tot betaling.

Hypotheek tijdens de bouw

Indien u een hypotheek heeft afgesloten ontvangt u van ons na de notariële overdracht digitaal de nota’s voor de (bouw)termijnen. Deze zendt u zo spoedig mogelijk, voorzien van uw handtekening, naar uw geldverstrekker die voor betaling zal zorgen.

Prijsstijgingen

De met u in de koop­ en aannemingsovereenkomst overeengekomen totale koopsom staat vast met uitzondering van eventuele wijzigingen in het btw tarief. Loon­ en materiaalkostenstijgingen tijdens de bouw zijn voor rekening en risico van de bouwonderneming.

Vereniging van Eigenaren (VvE)

Wanneer u tot koop van het appartement overgaat, wordt u eigenaar van een appartementsrecht. Het appartement dat u koopt maakt deel uit van een complex van woningen (het gebouw) met gemeenschappelijke voorzieningen. Als eigenaar van een appartementsrecht bent u van rechtswege lid van de ‘Vereniging van Eigenaren’ (VvE), de gezamenlijke eigenaren van het complex. U betaalt straks periodiek een bijdrage aan de VvE, deze bijdrage is afhankelijk van uw aandeel in het gebouw. Daarbij kunt u denken aan de schoonmaakkosten voor de hal en trappen, de glasbewassing, kosten van verzekering (opstal­ en aansprakelijkheidsverzekering) en energiekosten van de gemeenschappelijke ruimten. Daarnaast wordt er uit de VvE­bijdragen geld gereserveerd voor onderhoud; schilderwerk, vernieuwing van het dak, herstel van de lift, etc.

Deze vereniging moet minimaal één keer per jaar vergaderen. Tijdens die vergaderingen worden diverse belangrijke beslissingen genomen, bijvoorbeeld over maatregelen voor het onderhoud van het gebouw, de onderhoudskosten, het opstellen van een huishoudelijk reglement voor het gebruik van de algemene ruimten e.d.

Door De Langen & van den Berg vastgoedontwikkeling wordt een beheerkantoor aangesteld welke zich aan de toekomstige eigenaars zal voorstellen tijdens de start­vergadering die éénmalig zal worden gehouden. Tijdens deze opstartvergadering wordt door de gehele VvE een bestuur gekozen.

1.2 WONINGBORG GARANTIE

Woningborg

Op het appartement is de Woningborg Garantie­ en waarborgregeling Nieuwbouw 2024 van toepassing. Woningborg heeft belang bij een goede kwaliteit van het appartement en een goede vertrouwensrelatie met de koper van het appartement. De overheid heeft het waarborgcertificaat van Woningborg officieel erkend. Het waarborgcertificaat betekent voor u als koper dat u met een financieel gezonde en technisch vakbekwame onderneming zaken doet. U ontvangt bij de aannemingsovereenkomst het boekje “Woningborg Garantie­ en waarborgregeling Nieuwbouw 2024” van het Woningborg. Hierin worden de garantie­ en waarborgregelingen en de garantietermijnen per onderdeel uitgebreid beschreven.

De garantie­ en waarborgregeling is primair gekoppeld aan het appartement, zodat u bij verkoop binnen de garantietermijn de rechten uit de garantie­ en waarborgregeling kunt overdragen aan de nieuwe eigenaar.

Wat houdt de Woningborg Garantie- en waarborgregeling in?

Het certificaat wordt uitgegeven door Woningborg N.V. onder de naam Woningborg­certificaat. De Woningborg Garantie­ en waarborgregeling beschermt u als kopers van het appartement tegen de risico’s van een eventueel faillissement van de bouwonderneming tijdens de bouw en voor bouwkundige gebreken na oplevering.

Woningborg geeft u meer zekerheid

Voordat een bouwonderneming zich kan inschrijven bij Woningborg, toetst Woningborg de bouwonderneming op financieel gebied, technische vakbekwaamheid en deskundigheid. Bij ieder bouwplan worden de tekeningen en technische omschrijving getoetst aan het Bouwbesluit. Ook wordt de aannemingsovereenkomst beoordeeld op een goede balans in de rechtsverhouding tussen koper en bouwonderneming.

Wat betekent de Woningborg Garantie- en waarborgregeling voor u?

Als u een appartement met Woningborggarantie koopt, betekent dit voor u onder andere het volgende:

 Gaat uw bouwonderneming tijdens de bouw failliet? Dan zorgt Woningborg voor afbouw van uw appartement. Is afbouw om wat voor reden dan ook onmogelijk? Dan verstrekt Woningborg u een financiële schadeloosstelling;  De bouwonderneming garandeert de kwaliteit van het appartement tot zes jaar en drie maanden na oplevering. Bij bepaalde ernstige gebreken zelfs tot tien jaar en drie maanden. Woningborg waarborgt de garantieverplichting van de bouwonderneming, anders gezegd: als de bouwonderneming niet meer kan of wil herstellen dan draagt Woningborg hier zorg voor;

 Bouwondernemingen die bij Woningborg zijn ingeschreven, zijn verplicht om een model aannemingsovereenkomst met bijbehorende algemene voorwaarden en toelichting te gebruiken. Het modelcontract vormt de contractuele basis voor de rechtsverhouding tussen u als koper en de bouwonderneming. In dit modelcontract zijn de rechten en plichten van de koper en de bouwonderneming evenwichtig vastgelegd;

 Wanneer er na oplevering van het appartement geschillen tussen de koper en de bouwonderneming ontstaan over de kwaliteit van het appartement dan kan Woningborg hierin bemiddelen.

Wat valt niet onder de Woningborggarantie?

Onderdelen die niet door of via de bouwonderneming worden uitgevoerd (zoals bijvoorbeeld minderwerk), vallen niet onder de Woningborg Garantieen waarborgregeling. Indien uw minderwerk een beperkte garantie als gevolg heeft, ontvangt u een beperkte regeling ter ondertekening. Daarnaast worden in uw aannemingsovereenkomst en in de Woningborg Garantie­ en waarborgregeling een aantal aspecten genoemd die van de garantie zijn uitgesloten.

Onderdelen welke uitgesloten zijn van Woningborggarantie zijn onder andere:

 Beplanting;

 Straatwerk (verzakking ervan);

 Esthetische zaken (zitjes voorzijde);

 Krimpscheuren;

 Werkzaamheden welke door derden zijn uitgevoerd.

77

Mogelijkheden meerwerk

Als koper krijgt u de gelegenheid te kiezen uit ruime mogelijkheden aan wijzigingen. Zo kunt u het appartement zoveel mogelijk aanpassen aan uw persoonlijke wensen. Een overzicht van deze wijzigingen treft u aan op de standaard meer­ en minderwerklijst. Het is natuurlijk mogelijk dat u wensen heeft die niet op deze lijst staan. Vandaar dat wij u, voor een nog nader door ons aan te geven datum, uitnodigen voor een persoonlijk gesprek bij ons op kantoor (of indien gewenst online) om uw wensen te bespreken. De gehonoreerde wensen worden vervolgens afgeprijsd en aan u geoffreerd. Deze offerte krijgt u toegezonden. Vanaf dat moment bent u in het bezit van een keuzelijst en aanvullende meer­ en minderwerklijst. Deze twee documenten retourneert u in één keer vóór een nader te bepalen sluitingsdatum. Gezien de noodzakelijke werkvoorbereiding kunnen aanvullingen en wijzigingen op het meer­ en minderwerk na een nader te bepalen sluitingsdatum niet meer in behandeling worden genomen.

Individuele wensen

Hoewel het onze intentie is om zoveel mogelijk met ieders individuele wensen rekening te houden, is het helaas niet altijd mogelijk alles te honoreren. Het appartement dient bij oplevering te voldoen aan het Bouwbesluit, de nennormen, de eisen van nutsbedrijven, brandveiligheidsvoorschriften en de Garantie­ en waarborgregeling van Woningborg. In verband met deze eisen, de seriematigheid van het bouwproject, constructieve en/of esthetische redenen, is (tenzij reeds opgenomen in de meer­ en minderwerklijst) het weglaten of wijzigen van sommige essentiële onderdelen niet mogelijk. Zoals bijvoorbeeld:

 Alle wijzigingen in strijd met geldende regelgeving en/of vergunningen;

 Het casco op laten leveren van het toilet/de toiletten en/of badkamer(s);

 Verplaatsen van leidingen, leidingschachten, standleidingen, hemelwaterafvoeren, meterkasten, eventuele kruipluiken of verdeeleenheid vloerverwarming;

 Verplaatsen of wijzigen van de warmtepomp, ventilatie unit, thermostaat en ventilatiepunten;

 Verplaatsen of vervallen PV­panelen (zonnepanelen);

 Het wijzigen van kleurkeuze van het binnen schilderwerk;

 Aanbrengen van spuitwerk of sierpleister op wanden (niet mogelijk in verband met scheurvorming). Goede voorlichting door de vakhandel is gewenst indien u na oplevering van het appartement dit soort wandversiering zelf laat aanbrengen;

 Verzoek tot dichtzetten v­naden in de plafonds wordt niet gehonoreerd i.v.m. risico op scheurvorming. Het spuitwerk kan wel in zijn geheel weggelaten worden, zodat het plafond na oplevering glad kan worden gestuukt;

 Het los of niet leveren van bouwmaterialen of onderdelen zoals tegels, sanitair, deuren, verwarmingselementen en afwerkvloeren;

 Het aanbrengen van voorzieningen voor haard en/of airconditioning;

 Het aanbrengen van tegelwerk op vloeren, met uitzondering van de ruimten waar in basis tegelwerk wordt aangebracht;

 Werkzaamheden en/of leveringen door derden voor de oplevering;

 Wijzigingen in tegelwerk en sanitair zijn alleen mogelijk bij de projectshowroom(s) die voor dit project door de bouwondernemer is/zijn gecontracteerd.

HOOMCTRL

Tijdens het project verloopt de communicatie via een online portaal: HOOMCTRL (spreek uit als Hoomcontrol). Op dat portaal treft u alle projectinformatie aan. Via dit portaal kunt u vragen stellen aan uw kopersbegeleider en woonwensen doorgeven. Ook verloopt uw opdrachtverstrekking voor de individuele wensen voor meer­ en/of minderwerk via dit portaal. Alles handig bij elkaar op één plek. Het portaal wordt door ons compleet gemaakt met alle laatste informatie. U ontvangt te zijner tijd automatisch de inloggegevens van ons, zodat u daarmee op HOOMCTRL terecht kunt.

Kopersbegeleiding

Voor vragen kunt u terecht bij onze kopersbegeleiding, die de advisering van de kopers keuzen verzorgt. De kopersbegeleiding neemt contact met u op om een afspraak te maken. Deze afspraak vindt plaats op kantoor (of indien gewenst online) tijdens kantoortijden en duurt circa 1,5 uur. Tijdens deze

afspraak krijgt u de ‘spelregels’ van het project toegelicht. Daarnaast kunt u in dit gesprek uw eventuele vragen en/of wensen kenbaar maken. De (haalbare) wensen die naar voren komen in deze gesprekken worden verwerkt in een offerte/opdrachtbevestiging.

Wijzigingen in de verkoopstukken

De technische omschrijving is nauwkeurig en met zorg samengesteld aan de hand van de gegevens en tekeningen, verstrekt door gemeentelijke diensten, architect, constructeur en adviseurs. Desondanks is een voorbehoud gemaakt ten aanzien van wijzigingen, voortvloeiend uit bijvoorbeeld een stedenbouwkundige verkaveling, een gewijzigde constructie of uit eisen van de overheid en/of nutsbedrijven of welstandseisen. Ook is het recht voorbehouden om wijzigingen op de tekeningen en/of technische omschrijving door te voeren waarvan de noodzakelijkheid bij de uitvoering blijkt, zonder dat dit afbreuk doet aan de kwaliteit van het appartement. Indien bovenstaand op uw appartement van toepassing is brengen wij u op de hoogte door middel van een erratum. Dit erratum zullen wij u ter ondertekening aanbieden.

De voornaamste maten zijn op de verkooptekeningen vastgelegd of zijn in de technische omschrijving vermeld. Hoewel aan de maatvoering veel zorg is besteed, kunnen er maatafwijkingen voorkomen. Afwijking in vierkante meters is niet verrekenbaar. Bij het inrichten van het appartement dienen de maten ter plaatse ingemeten te worden. Geringe wijzigingen in de maten, die verband houden met de nadere uitwerking en met de maten van de bouwstoffen, geven geen aanleiding tot verrekening. Afwijkingen in maat, constructie en vorm zijn voorbehouden.

De indeling van de technische ruimte is onder voorbehoud. Uit de engineering zal de positie van de warmtepomp/ventilatie unit/cv­verdeler/e.d. blijken. Hier zijn dan ook verder geen rechten aan te ontlenen. Het leidingwerk in de technische ruimte wordt als opbouw uitgevoerd.

1.4 UITVOERINGSPROCEDURE

Uitvoeringsduur

De uitvoeringsduur van de bouw bedraagt een aantal werkbare werkdagen, nader aangegeven in de aannemingsovereenkomst. Deze werkbare werkdagen worden gerekend vanaf de start van de bouw. Feest­ en vakantiedagen, weekeinden en atv­dagen, als ook dagen met slechte weersomstandigheden zoals bijvoorbeeld regen en vorst, vallen niet onder werkbare werkdagen. Als er sprake is van schade ontstaan door onvoorziene omstandigheden zoals brand of storm, kan de bouwtijd worden verlengd met het aantal werkbare werkdagen dat nodig is voor het verhelpen van deze schade. Voor een volledige definitie van onwerkbare werkdagen verwijzen wij u naar de algemene voorwaarden van de aannemingsovereenkomst.

Verzekering

Tijdens de bouw tot en met het moment van oplevering is het appartement verzekerd tegen risico’s van o.a. brand­ en stormschade. Vanaf de datum van oplevering dient u zelf voor de inboedelverzekering zorg te dragen. De opstalverzekering zal via de VVE dienen te worden afgesloten.

Kopers kijkmiddagen / inmeetdag

Gedurende het gehele bouwproces worden er speciale kopers kijkmiddagen georganiseerd. U krijgt dan de mogelijkheid om de bouw te betreden, waarbij u uw appartement kunt bezichtigen. Buiten de door de bouwonderneming georganiseerde kopers kijkmiddagen, is het niet toegestaan om de bouwlocatie te betreden in verband met de aansprakelijkheid van de bouwonderneming. Ook heeft dit te maken met veiligheidsredenen voor uzelf en de mensen die op de bouwlocatie werkzaam zijn. Op de laatste kijkmiddag kunt u maten opnemen van bijvoorbeeld de installatiepunten van de keuken of de na oplevering aan te brengen stoffering. Ook kunt u alvast uw nieuwe buren ontmoeten. Verder hebben uw eventuele eigen leveranciers dan de mogelijkheid om in te meten voor na oplevering uit te voeren werkzaamheden. U wordt te zijner tijd uitgenodigd voor de kopers kijkmiddagen. Tijdens deze kijkmiddagen wordt er op de bouw rekening gehouden met uw bezoek, zodat u zo veilig mogelijk de bouw kunt betreden. Desondanks blijft het betreden van de bouw een risicovolle aangelegenheid en gebeurt dit te allen tijde op uw eigen risico.

Tenslotte willen wij u erop wijzen dat tot aan de oplevering van uw appartement wij gerechtigd zijn het appartement open te stellen tijdens open

1.3 BOUWVOORBEREIDINGSPROCEDURE
78

dagen/evenementen die op de bouwplaats kunnen worden georganiseerd.

1.5 OPLEVERINGSPROCEDURE

Werkwijze oplevering

Na aanvang van de bouw wordt een globale opleveringsprognose gegeven. De datum waarop uw appartement aan u wordt opgeleverd, is dan nog niet exact aan te geven. Wij moeten daarbij de nodige reserves in acht nemen, omdat een nieuwbouwproject altijd uniek is en er veel onzekere factoren zijn. Wanneer er in een bepaalde periode veel verlet is, bijvoorbeeld door regen of vorst, dan zijn er minder werkbare werkdagen en dat kan een langere bouwtijd veroorzaken. Als het vriest, kan er bijvoorbeeld niet worden gemetseld. Als er veel regen valt, kan er niet worden geschilderd, etc.

Daarnaast zijn onder andere de levering van materialen, de beschikbaarheid van vaklieden en het tijdig aanleggen van de nutsvoorzieningen van invloed op het moment van oplevering. Circa zes weken voor de oplevering ontvangt u een prognoseplanning met daarin de momenten van vooroplevering en oplevering.

Uiteraard informeren wij u regelmatig over de voortgang van de bouw. Dat is overigens een service waaraan u geen rechten kunt ontlenen. Contractueel zijn wij gebonden aan de bouwtijd zoals die in de aannemingsovereenkomst is vastgelegd.

De opleveringsprocedure bestaat uit de vooroplevering en de definitieve oplevering. Ongeveer vier weken vóór de definitieve datum van oplevering ontvangt u een uitnodiging voor de vooroplevering en de oplevering.

Vooroplevering

Bij de vooroplevering kunt u het appartement alvast op eventuele onvolkomenheden controleren. Een vertegenwoordiger van ons zal met u meelopen. Het streven is om alle eventuele geconstateerde onvolkomenheden bij de oplevering (circa drie werkbare werkweken later) opgelost te hebben.

Oplevering

Tijdens de oplevering controleren wij, samen met u (en eventueel een vertegenwoordiger van Vereniging Eigen Huis) of er nog onvolkomenheden aanwezig zijn en of alle werkzaamheden volgens afspraak zijn uitgevoerd. Geconstateerde onvolkomenheden worden schriftelijk vastgelegd in een zogenaamd ‘proces­verbaal van oplevering’. Dit document wordt door beide partijen ondertekend. U accepteert hiermee het appartement met uitzondering van de genoteerde onvolkomenheden. De desbetreffende punten worden, voor zover mogelijk (afhankelijk van o.a. levertijd), binnen vijf werkbare werkdagen hersteld.

De oplevering zal plaatsvinden binnen de termijn die in de aannemingsovereenkomst is genoemd. Eventueel meerwerk kan invloed hebben op het aantal werkbare werkdagen en kan een langere bouwtijd tot gevolg hebben. Als u vóór de oplevering aan alle verplichtingen heeft voldaan, inclusief de betaling van de eindafrekening van de termijnen en het restant van het (eventuele) meerwerk, ontvangt u bij de oplevering, na ondertekening van het proces verbaal, de sleutels van uw appartement.

Het appartement wordt bezemschoon opgeleverd.

Ingebruikname appartement

Een nieuwbouwappartement heeft in de eerste periode van bewoning een hoge vochtigheidsgraad. Daarom raden wij u aan in deze periode goed te ventileren en niet te hard te stoken. Ondanks dat blijft het mogelijk dat er krimpscheuren ontstaan door het “werken” van materialen. Het is daarom mogelijk dat er bijvoorbeeld in de hoeken van het stucwerk haarscheurtjes ontstaan. Dat is niets ernstigs; ze worden veroorzaakt door wegtrekkend vocht. Deuren kunnen gaan klemmen, omdat hout moet “wennen” aan een andere temperatuur en vochtigheidsgraad. Deze zaken kunnen nooit helemaal worden voorkomen. Tegelvloeren, grindvloeren, natuursteenvloeren, etc. kunnen niet zonder meer op de afwerkvloer geplaatst worden. Door droging en werking van de onderliggende constructie alsmede van de afwerkvloer, ontstaan krimpscheurtjes die doorgegeven worden aan de tegel­, grind­ en natuursteenvloer. Speciale voorzieningen in de afwerkvloer zijn in dit geval vereist. Wij raden u aan uw leverancier van uw “harde” vloerbedekking hierover te informeren.

Het is noodzakelijk om jaarlijks preventief onderhoud te plegen om eventuele schade te voorkomen.

Regel zelf tijdig energie

Het bouwbedrijf zal bij de eigenaar/beheerder van het elektranetwerk uit de regio voor oplevering de aansluiting van elektriciteit aanvragen, zodat dit bij oplevering van uw appartement voor u beschikbaar is. U bent daarop vanaf de opleveringsdatum zelf verantwoordelijk om een leveringscontract af te sluiten met een energieleverancier naar eigen keuze, onder de voorwaarden die door het door u gewenste energiebedrijf worden gesteld. Indien u dit niet tijdig regelt, zal de levering van energie na oplevering worden voortgezet op uw naam op basis van het contract voor oplevering.

1.6 NAZORG

Garantie op technische gebreken na oplevering

De procedures en garantienormen/­termijnen zijn omschreven in de brochure Woningborg Garantie­ en waarborgregeling welke u bij ondertekening ontvangt. Enkele aandachtspunten aangaande eventuele onvolkomenheden na oplevering zijn:

 De melding dient direct na constatering te worden gedaan via www.bouwnazorg.nl;

 De melding is niet het gevolg van verkeerd gebruik of het gevolg van het werken van materialen;

 U dient de bouwonderneming altijd in de gelegenheid te stellen om de garantiemelding te herstellen;

 Door u gemaakte kosten kunnen zonder vooroverleg met de bouwonderneming in principe niet worden verhaald, tenzij er sprake is van een noodsituatie;

 Bij onterechte meldingen zullen de eventueel daaraan verbonden kosten aan de koper doorberekend worden;

 Niet onder de Garantie­ en waarborgregeling van Woningborg vallen voorzieningen buiten het appartement, voorzieningen van niet bouwkundige aard en/of voorzieningen die niet onder verantwoording van de bouwonderneming zijn aangebracht.

Terugkomdag

Na de eindoplevering kan het zijn, dat u tijdens de inrichting van uw appartement enkele punten ontdekt die toch niet goed blijken te functioneren in uw appartement.

Deze punten kunt u aanmelden bij bouwnazorg. Urgente zaken, zoals een lekkage, zullen direct opgepakt worden door ons serviceteam.

Overige zaken die in de eerste periode na oplevering worden gemeld, zullen tijdens een BouwNazorg dag (ongeveer 3 maanden na oplevering) worden afgehandeld door medewerkers van Bouwbedrijf De Langen & van den Berg, installateurs en/of servicemonteurs van onze toeleveranciers.

Deze datum wordt voor oplevering aan u gecommuniceerd, zodat u ervoor kunt zorgen dat er deze dag toegang verleend kan worden tot uw appartement. Eventuele beschadigingen die u tijdens de oplevering constateert dient u als opleverpunt vast te leggen. Beschadigingen na de oplevering zullen wij niet als nazorg punt in behandeling nemen.

De servicemap

Deze map ontvangt u bij de oplevering van uw appartement in de vorm van een usb­stick. Hierin nemen we informatie op die u nodig heeft om uw appartement op een goede manier te onderhouden en te behouden.

2. TECHNISCHE OMSCHRIJVING APPARTEMENTEN

2.1. Uitgangspunten

Uitgangspunten

 Eisen vanuit het Bouwbesluit;

 De voor de omgevingsvergunning benodigde bouwtekeningen en ­berekeningen;

 De voor de omgevingsvergunning benodigde constructie tekeningen en berekeningen;

 De BENG (Bijna Energie Neutraal Gebouw) normering;

 De toepassing van een lucht­water of lucht­lucht warmtepomp, ventilatiesysteem met natuurlijke luchttoevoer (middels ventilatieroosters in

79

de gevels) en mechanische luchtafvoer (middels afzuigpunten in het plafond/ de wand), PV­panelen, vloerverwarming in verblijfsruimtes en badkamer.

Ruimtebenamingen

 De overheid hanteert voor haar regelgeving (o.a. de omgevingsvergunning) begrippen uit het Bouwbesluit. Hierin komen ruimteomschrijvingen, zoals bijvoorbeeld slaapkamer en woonkamer niet voor. Deze zijn vervangen door zogenaamde bouwbesluitbegrippen. Ook Woningborg verwijst naar deze bouwbesluitbegrippen. Op de verkooptekening zijn de gangbare ruimteomschrijvingen aangehouden. Omgezet naar begrippen uit het

Bouwbesluit dient u deze te lezen als:

Ruimte: Benaming conform Bouwbesluit

Entree/hal Verkeersruimte

Meterkast Meterruimte

Woonkamer Verblijfsruimte

Keuken Verblijfsruimte

Eetkamer Verblijfsruimte

Toilet Toiletruimte

Slaapkamers Verblijfsruimte

Overloop Verkeersruimte

Badkamer Badruimte

Technische ruimte Technische ruimte

Berging Onbenoemde ruimte

Stallinggarage Stallingruimte

 Een onbenoemde ruimte is een ruimte waarbij niet voldaan wordt aan de eisen voor een verblijfsruimte en die derhalve niet als zodanig gebruikt kan worden.

Krijtstreepmethode

Het ontwerp en de indeling van het appartement zijn van dien aard dat de mate van daglichttoetreding op sommige verblijfsgebieden niet is berekend over het gehele vloeroppervlak van de ruimte. Hierbij is gebruik gemaakt van de zogenaamde krijtstreepmethode, een rekenmethode waarbij door middel van een berekening het ontwerp van het appartement getoetst wordt aan het Bouwbesluit ten aanzien van daglichttoetreding. De appartementen van dit project voldoen aan de gestelde eisen in het Bouwbesluit.

Artist impressies en sfeerplattegronden

 In de ingekleurde sfeerplattegronden staan interieursuggesties zoals, kasten, (buiten­) meubilair, garderobe, auto’s, fietsen, apparatuur en dergelijke. Deze worden niet geleverd, tenzij uitdrukkelijk vermeld in deze omschrijving;  De opgenomen perspectieftekeningen zijn ‘artist impressies’. Het kan voorkomen dat er verschillen zijn tussen deze impressies en de daadwerkelijke uitvoering. Aan deze artist impressies kunnen dan ook geen rechten worden ontleend. Ook niet qua kleurstelling en dergelijke. Deze worden veelal in een later stadium door de architect ingevuld;  De situatietekening betreft een momentopname. Het voornemen is de situatie in te richten conform de in deze brochure opgenomen situatietekening en omschrijving echter wij zijn mede afhankelijk van de gemeente. Aan deze tekening kunnen dan ook geen rechten worden ontleent.

2.2. ROND EN ONDER UW APPARTEMENT

Situatie

De situatietekening, waarop de appartementen met hun bijbehorende grond, het openbaar gebied, et cetera staan aangegeven, wordt met de grootst mogelijke zorgvuldigheid vervaardigd. Onder andere omdat het mogelijk is dat de situatietekening op het moment van verkoop door procedures door de overheden nog niet tot in de detail is uitgewerkt, moet in de praktijk worden vastgesteld dat er afwijkingen tot stand kunnen komen. Uitdrukkelijk wijzen wij u erop dat tekeningen, voor zover niet behorende bij een bestemmingsplan, geen juridische werking hebben. Derhalve kunt u geen rechten aan de situatietekening ontlenen.

Peil van het gebouw

 Het peil –P­, van waaruit alle hoogten en diepten wordt gemeten, komt overeen met de bovenkant van de afgewerkte begane grondvloer in de entreehal van het appartementengebouw;

 De peilhoogte wordt bepaald in overleg met de dienst bouw­ en woningtoezicht van de gemeente, evenals de rooilijnen en eventuele erfgrenzen;

 De eventuele aanwezige peilhoogtes op de verkoopstukken zijn indicatief, de juiste hoogte van het omliggende maaiveld c.q. bestratingen wordt in een later stadium bepaald, in overleg met de dienst bouw­ en woningtoezicht van de gemeente.

Grondwerk

 De bouwput wordt tot voldoende diepte ontgraven;

 Het terrein wordt, waar nodig, ontgraven voor de stallinggarage, riolering, kabels, leidingen;

 Onder de bestrating binnen de eigendomsgrens van het gebouw wordt een zandbed aangebracht.

Buitenriolering

 Het vuilwaterriool van het gebouw wordt aangesloten op het openbare rioolsysteem;

 De riolering wordt uitgevoerd in kunststof buizen met bijbehorende hulpstukken en verbindingen;

 De hemelwaterriolering wordt afgevoerd op oppervlaktewater en op de daktuin;

 Op de tekeningen staan hemelwaterafvoeren aangegeven, deze zijn indicatief. Het aantal en de plaatsing worden nader bepaald in overleg met de installateur.

Terreininrichting

Het aanbrengen van de terreininrichting buiten de erfgrenzen van het gebouw zal door de gemeente worden uitgevoerd bij het woonrijp maken van het gebied. De gemeente heeft het voornemen de inrichting conform de impressies uit te voeren. Naderen informatie kunt u t.z.t. opvragen bij de gemeente.

Daktuin

 Op het dak van de stallinggarage wordt een daktuin aangelegd. De daktuin is eigendom van de VvE;

 De daktuin is zo ontworpen dat deze niet toegankelijk is voor grote voertuigen. Ondanks dat er kleinschalige voertuigen op de daktuin kunnen komen voor het plegen van onderhoud e.d. wordt het afgeraden deze intensief te gebruiken. De maximale belasting van de daktuin is 400 kilo per vierkante meter inclusief afwerking. In de notariële akte zal de maximale belasting van de daktuin worden vastgelegd;

 Een deel van de daktuin wordt voorzien van een wateropvangsysteem. Dit systeem zorgt ervoor dat bij regenval water wordt vastgehouden die in drogere periodes kan worden afgegeven aan de grond. Bij overvloedige regenval zal de noodoverstort het overtollige water afvoeren op het oppervlaktewater;

 De daktuin wordt aangelegd conform de inrichtingstekening van de landschapsarchitect;

 De daktuin zal door middel van toegangspoorten afsluitbaar zijn. De stalen toegangspoorten zijn voorzien van kokerprofielen met een uitgelaserde staalplaat in patroon/letters;

 Ter plaatse van het Pakhuis is de binnentuin toegankelijk middels een hellingbaan welke rolstoelvriendelijk is;

 Ter plaatse van het Scheepshuis en het Dijkhuis is de binnentuin toegankelijk middels een trap;

 Ter plaatse van het Dijkhuis wordt langs de trap en de toegang tot de daktuin een verdiepingshoog hekwerk aangebracht langs de contouren van de hellingbaan;

 Vanuit de daktuin is tevens de stallinggarage bereikbaar.

Vuilafvoer

Het huisvuil wordt ingezameld in ondergrondse vuilcontainers. De positie van de containers is nabij de entree van het plangebied, deze positie is door de gemeente bepaald.

2.3. AFWERKING ALGEMENE RUIMTES

Toegang hoofdentree

 De hoofdentreedeur wordt uitgevoerd als een schuifdeur;

80

 Waar nodig worden verwijsborden en huisnummers aangebracht;

 Op de gevel naast de hoofdentree wordt het belpaneel (digitaal scherm) en de postbussen gemonteerd. Eén postbus voor elk appartement;

 Er wordt een sleutelkluis aangebracht t.b.v. NUTS partijen.

Meterruimte

 Het trappenhuis is voorzien van een aantal afgesloten kasten. Het betreft hier een CVZ­kast en flatkast (elektraverdeler).

Trappen en hekwerken

 Het hoofdtrappenhuis wordt uitgevoerd met prefab betonnen trappen welke aan beide zijden worden voorzien van trapbomen. De onderzijde van de trappen hebben een ruw gestructureerd oppervlak en worden niet nader afgewerkt. Het loopvlak wordt voorzien van een anti­slip profiel;

 De trappen worden voorzien van metalen leuningen en hekken welke worden gepoedercoat;

 Op de eerste verdieping wordt het tussenbordes voorzien van een betonnen borstwering van circa 100 cm;

 Het noodtrappenhuis wordt uitgevoerd als stalen trappen met roostertredes en rubber doppen, met metalen leuningen en hekwerken welke worden gepoedercoat;

 Ter plaatse van de daktuin wordt een metalen spiltrap (met hekwerk en leuningen) als noodtrap toegepast. De spiltrap wordt gepoedercoat.

Liftinstallatie

 Het appartementengebouw wordt voorzien van een liftinstallatie welke rolstoeltoegankelijk is en geschikt voor vervoer van een brancard;

 De binnenzijde van de lift is verlicht middels plafondspots;

 De liftkooi heeft een binnenmaat van (lxbxh) ca. 210 x 120 x 210 cm, de lifttoegang een afmeting van ca. 90 x 210 cm. Deze afmetingen kunnen van belang zijn voor uw verhuizer;

 De liftleverancier dient toegang tot de lift te krijgen zodra er onderhoud gepleegd moet worden. Afspraken hierover dienen vastgelegd te worden in het VvE reglement;

 Muurkopomkledingen worden uitgevoerd in staal.

Werkkast en hydrofoorruimte

 In het trappenhuis van het Pakhuis wordt een werkkast/hydrofoorruimte gecreëerd t.b.v. alle gebouwen;

 De werkkast/hydrofoorruimte is voor algemeen gebruik en is voorzien van een uitstortgootsteen met benodigde toebehoren;

 De uitstortgootsteen wordt tevens voorzien van een close­up boiler ten behoeve van warmwater;

 In de werkkast/hydrofoorruimte wordt de hydrofoor (waterdrukverhoging) gemonteerd t.b.v. alle appartementen/woningen.

Vloerafwerking

 Ter plaatse van de hoofdentree wordt een schoonloopmat gelegd;

 Het overige deel van de entreehal op de begane grond wordt voorzien van een harde vloerafwerking (terrazzo o.g.);

 De overige verkeersruimtes worden afgewerkt met een kunststof vloerafwerking (marmoleum o.g.);

 De prefab betonnen trappen worden niet nader afgewerkt. Tintverschillen welke in prefab beton kunnen voorkomen zullen zichtbaar blijven;

 De vloer van de werkkast/hydrofoorruimte, CVZ­kast en flatkasten wordt niet nader afgewerkt.

Wandafwerking

 De wanden van de hoofdentree worden voorzien van stucwerk en gesausd. Ter plaatse van de kleurovergang wordt een eiken houten lat toegepast. Tevens wordt een gedeelte van de beton wanden voorzien van een coating;

 De wanden worden voorzien van een tegelplint (h=10cm);

 De wanden van de werkkast/hydrofoorruimte worden niet nader afgewerkt;

 Achter de uitstortgootsteen word een tegeltableau aangebracht van ca. 80 x 140 cm van witte tegels 20 x 40 cm, horizontaal in tegelverband verwerkt en wit gevoegd;

 De wanden van het noodtrappenhuis worden voorzien van stucwerk en gesausd;

 Tegen de wand van de hoofdentree wordt een eiken houten bankje aangebracht.

Plafondafwerking

 Het plafond van de hoofdentree wordt uitgevoerd in akoestisch spuitwerk met roosterplafond;

 Het plafond van het noodtrappenhuis wordt uitgevoerd in akoestisch spuitwerk;

 Het plafond van de werkkast/hydrofoorruimte wordt niet nader afgewerkt;

 De v­naden aan de onderzijde van de vloeren c.q. plafonds van onderliggende ruimten blijven in het zicht.

Binnenkozijnen en –deuren

 De algemene binnendeurkozijnen worden uitgevoerd in hout;

 De deuren naar de algemene gangen worden voorzien van een glasstrook;

 De stompe binnendeuren worden uitgevoerd in hout met HPL toplaag en zijn zelfsluitend waar dit op tekening staat aangegeven.

Hang- en sluitwerk

 De hoofdentree is van buitenaf te openen met een sleutel. Van binnenuit is de deur te openen met een elleboogschakelaar en van binnenuit het appartement via de videofoon. De hoofdentree is gelijksluitend met de voordeur;

 De bergingsdeuren worden voorzien van een cilinder gelijksluitend met het betreffende appartement;

 De algemene kasten worden voorzien van een cilinderslot, zonder kruk of vaste knop;

 De overige binnendeuren worden voorzien van een loopslot;

 De poortdeuren en deur van de noodtrap van de binnentuin naar stallinggarage worden voorzien van een (knop)cilinder gelijksluitend met de overige afsluitbare deuren behorende bij uw appartement. Tevens worden de poortdeuren voorzien van een dubbele kruk.

Elektra installatie

 Lichtpunten, inclusief armaturen, wandcontactdozen, schakelaars, rookmelders en toebehoren worden aangebracht volgens geldende voorschriften;

 De verlichting van de gemeenschappelijke ruimten wordt geschakeld door middel van een schemer of bewegingsschakeling;

 De trap­ en lifthallen worden voorzien van elektrische verwarming;

 De elektrische installaties in de algemene ruimten wordt aangesloten op de algemene elektrameter in de CVZ­kast;

 In de lifthallen wordt per verdieping 1 wandcontactdoos aangebracht op 30 cm boven de vloer voor algemeen gebruik welke afsluitbaar is.

Ventilatievoorzieningen

 De ventilatie van de entreehal en de trappenhuizen vindt plaats middels natuurlijke toevoer en mechanische afvoer. De liftschacht wordt natuurlijk geventileerd;

 De ventilatie unit zal op het dak van het gebouw worden aangebracht en is bereikbaar via het dakluik.

2.4. STALLINGGARAGE

Algemeen

 De stallinggarage wordt voorzien van 75 parkeerplaatsen en 54 bergingen, waarvan 1 berging voor algemeen gebruik bedoeld is. Hierin wordt tevens het buffervat voor de daktuin geplaatst. In het buffervat wordt water opgevangen wat gebruikt zal worden om de beplanting van de daktuin te irrigeren en de waterstand van de vijver op peil te houden;

 De stallinggarage is voor voertuigen, fietsers en voetgangers middels een hellingbaan toegankelijk;

 De hellingbaan wordt voorzien van een draingoot, pompput en elektrische opritverwarming;

 In de stallinggarage ter plaatse van de bergingen is de vrije hoogte minimaal 2,3 m1, plaatselijk kunnen er (riolerings)leidingen aan het plafond aanwezig zijn. Hiermee dient u rekening te houden met het inrichten van uw berging;

 De vrije hoogte in het parkeergedeelte is minimaal 2,1 m1;

 De stallinggarage wordt voorzien van wegbelijning en belijning van de brandschermen;

 Op de wand worden witte bordjes met zwarte letters ‘privé/bezoeker’ aangebracht alsmede het nummer van het parkeervak. Bij de parkeer­

81

vakken waar dat niet mogelijk is, wordt dit op de vloer aangegeven; Deze nummering is afwijkend van de huisnummering;

 Daar waar nodig worden metalen aanrijdpaaltjes toegepast ten behoeve van het vrijhouden van de nooduitgang;

 De parkeerplaatsen worden voorzien van betonnen biggenruggen;

 De stallinggarage voldoet niet volledig aan NEN 2443 betreffende de draaicirkels;

 De stallinggarage wordt afgesloten met een elektrische roldeur met open structuur;

 Bij de entree van de stallinggarage wordt aan de bovenzijde van de poort met markering aangegeven wat de vrije doorrijhoogte is;

 Er zal een uitrijlus in de vloer van de stallinggarage worden opgenomen ten behoeve van het openen van de elektrische roldeur bij uitrijden, de deur sluit na uitrijden automatisch;

 Aan de binnenzijde bij de entree van de stallinggarage worden (nood) drukknoppen aangebracht voor het openen en sluiten van de roldeur;

 De stallinggarage wordt uitgevoerd met natuurlijke luchttoevoer en mechanische luchtafvoer. De natuurlijke luchttoevoer vindt plaats via de roldeur met open structuur. Voor de luchtcirculatie in de stallinggarage zullen er enkele stuwdrukventilatoren aan het plafond worden aangebracht. De mechanische afzuiging vindt plaats via de schacht in het Pakhuis en zal op het platte dak van het Pakhuis van een ventilatiekap worden voorzien;

 In de stallinggarage worden brandschermen aangebracht welke in geval van brand automatisch gesloten zullen worden zodat een veilige vluchtroute wordt gewaarborgd;

 Er wordt een metalen spiltrap (met hekwerk en leuningen) als noodtrap toegepast welke uitkomt op de daktuin. De spiltrap wordt in kleur gepoedercoat.

Vloerafwerking

 De vloer van de stallinggarage wordt uitgevoerd als een in werk gestorte betonvloer. De vloer van de stallinggarage wordt vlak (gevlinderd) afgewerkt. Ter plaatse van overgang Kraanhuis met Scheepshuis wordt een constructieve dilatatie aangebracht, welke in het zicht blijft;

 De vloer van de bergingen wordt vlak (gevlinderd) afgewerkt;

 De hellingbaan wordt uitgevoerd als een opgeruwde betonvloer.

Wandafwerking

 De wanden en kolommen van de stallinggarage worden uitgevoerd in beton en niet nader afgewerkt;

 De wanden van de bergingen worden deels uitgevoerd als kalkzandsteen vellingblokken (onafgewerkt), betonwanden (onafgewerkt) of geïsoleerde voorzetwanden (behangklaar afgewerkt);

 De wanden van de hellingbaan worden uitgevoerd in beton en niet nader afgewerkt.

Plafondafwerking

 De onderzijde van de begane grondvloer wordt ter plaatse van de bovengelegen appartementen voorzien van een geïsoleerd houtwolcementplafond. Het overige plafond onder de daktuin wordt niet nader afgewerkt. Eventueel leidingwerk en kabelgoten blijven in het zicht.

Kozijnen en deuren

 De kozijnen en binnendeuren in de stallinggarage, van de bergingen en van het trappenhuis worden uitgevoerd in hout;

 De deuren worden in een stompe uitvoering aangebracht;

 De binnenkozijnen en ­deuren worden behandeld met een dekkende verflaag;

 Boven en/of in de bergingsdeuren worden ventilatievoorzieningen aangebracht t.b.v. natuurlijke ventilatie;

 Daar waar nodig worden zelfsluitende deuren toegepast.

Hang- en sluitwerk

 De elektrische segmentdeur is te openen met een handzender (2 stuks per appartement) en met een drukknop aan de binnenzijde van de segmentdeur;

 De deuren van de bergingen zijn voorzien van cilindersloten met anti kerntrekbeveiliging, gelijksluitend met de cilinders van het betreffende appartement;

 De overige deuren worden voorzien van loopsloten;

 Daar waar nodig worden deuren voorzien van een deurdranger.

Elektra installatie

 Lichtpunten inclusief armaturen, wandcontactdozen, schakelaars, rookmelders, nooduitjes en toebehoren worden aangebracht volgens de geldende voorschriften;

 Het leidingwerk en de elektrische installatie wordt als opbouw uitgevoerd;

 De LED verlichting in de stallinggarage wordt geschakeld door middel van bewegingssensoren;

 Waar nodig worden er kabelgoten aangebracht;

 De bergingen worden voorzien van een schakelaar, aansluitpunt plafondlichtpunt en een dubbele wandcontactdoos;

 De elektrische installatie in de bergingen worden aangesloten op de elektrameter in de appartementen;

 De elektrische installatie in de algemene ruimten wordt aangesloten op de algemene elektrameter in de CVZ­kast (centrale voorzieningenkast);

 De hellingbaan bij de entree van de stallinggarage wordt voorzien van een elektrische verwarming in de betonvloer, welke wordt aangesloten op de CVZ­kast. Bij een buitentemperatuur onder de 7 graden Celsius zal deze aangaan waardoor de hellingbaan sneeuw en ijsvrij blijft;

 Bij de entree van de stallinggarage komt een paaltje met videofoon (digitaal scherm), voor de toegang van bewoners en bezoekers;

 De hellingbaan bij de entree van de stallinggarage wordt aan de boven­ en onderzijde voorzien van een verkeerslicht (groen/rood). De verkeerslichten worden gemonteerd aan de gevel van het gebouw.

 Bij het verlaten van de parkeergarage is er een opstelplaats voorzien met een uitrijlus t.b.v. het uitrijden;

 De stallinggarage wordt voorzien van een brandmeldinstallatie (BMI) en een ontruimingsalarminstallatie (OAI) conform de geldende voorschriften.

Ventilatievoorzieningen

 De ventilatie van de bergingen en de stallinggarage vindt plaats middels natuurlijke toevoer en mechanische afvoer.

2.5. RUWBOUW VAN UW APPARTEMENT

Fundering

 Aan de hand van de resultaten van de uitgevoerde sonderingen en het uitgevoerde terreinonderzoek wordt het appartementengebouw op palen gefundeerd;

 Over de palen worden funderingsbalken en een vloer van gewapend beton aangebracht;

Vloerconstructie

 De begane grond vloer wordt uitgevoerd als een gestorte breedplaatvloer, ter plaatse van de kruipruimtes wordt een geïsoleerde systeemvloer toegepast;

 De verdiepingsvloer wordt uitgevoerd als een gestorte breedplaatvloer;

 De vrije hoogte in de appartementen onder het betonplafond is minimaal 2,6 m1;

 De v­naden aan de onderzijde van de vloeren c.q. plafonds van onderliggende ruimten blijven in het zicht;

 In de vloeren worden op enkele plaatsen stalen constructieve liggers ingestort, welke als stippellijnen op de verkooptekening zijn aangegeven. De stalen balken worden aan de onderzijde brandwerend afgewerkt en meegespoten met de plafondafwerking;

 De onderzijde van de begane grondvloer wordt ter plaatse van bovengelegen appartementen voorzien van een geïsoleerd houtwolcementplafond.

Wand- en gevelconstructie

 De dragende wanden worden uitgevoerd in massief beton. Eén en ander conform opgave van de constructeur;

 De niet dragende woning scheidende wanden worden uitgevoerd als een systeemwand;

 Dragende kolommen worden uitgevoerd in beton, afmeting conform opgave van de constructeur;

 De binnenspouwbladen van de geïsoleerde buitengevels worden uitgevoerd in houtskeletbouw elementen. Eén en ander conform opgave van de constructeur;

82

 Het gevelmetselwerk wordt uitgevoerd met een gebakken gevelsteen. Het voornemen is het metselwerk uit te voeren in halfsteens verband, de stootvoegen bij dit verband zullen onderling in maatvoering verschillen in verband met maattoleranties. Daarom zal de definitieve keuze bepaald worden aan de hand van enkele proefmuren tijdens de uitvoering;

 Het schoon gevelmetselwerk wordt verdiept gevoegd;

 De gevels op de 5e en 6e verdieping worden afgewerkt met metalen sierkaders in kleur;

 In de gevel worden de noodzakelijke dilataties (openingen om scheurvorming te voorkomen) aangebracht. Dilataties blijven zichtbaar en open;

 In de gevels worden diverse betonbanden aangebracht;

 Betonbanden onderling worden afgekit in kleur passend bij de betonband;

 Boven de kozijnen in de gevel worden de noodzakelijke lateien en/of geveldragers aangebracht;

 In de spouw van de buitengevels wordt isolatie toegepast;

 Voor de ventilatie van de spouw worden open stootvoegen in de gevel aangebracht;

 Voor een goede waterdichte afwerking worden de noodzakelijke lood (vervanger)­ en/of kunststofstroken aangebracht;

 Op de dakrand aan de voorzijde boven de hoofdentree wordt de gebouwnaam PAKHUIS aangebracht in metaal.

Dakconstructie

 Het platte dak wordt uitgevoerd als een breedplaatvloer, welke waterdicht wordt afgewerkt;

 Het dak is ter plaatse van het trappenhuis van binnenuit bereikbaar middels een dakluik met geïntegreerde ladder/schaartrap op de bovenste etage;

 De dakrand en gevel beëindigingen worden afgewerkt met een stalen L­profiel in een kleur conform kleur en materialen staat.

Gevelkozijnen, -ramen en -deuren

 Alle buitenkozijnen en –ramen, inclusief draaiende delen, worden uitgevoerd in aluminium;

 Het voordeurkozijn en de voordeur van het appartementengebouw worden uitgevoerd in aluminium;

 De voordeur van het appartementengebouw wordt uitgevoerd als een elektrische schuifdeur;

 De deuren van de algemene ruimtes worden voorzien van een deurdranger;

 De schuifpui naar terras/balkon wordt naar binnenschuivend uitgevoerd;

 Alle buitenkozijnen worden voorzien van de benodigde tocht­ en aansluitprofielen;

 Kozijnen in de gevel worden waar nodig voorzien van ventilatieroosters conform de ventilatieberekeningen;

 Diverse buitenramen worden voorzien van een draai­/kiep of enkel kiepstand t.b.v. (spui)ventilatie.

Beglazing buitengevelkozijnen

 Alle glasopeningen in de gevelkozijnen en ­deuren worden bezet met isolerende triple beglazing, daar waar nodig in brandwerende en/of doorvalveilige uitvoering;

 NEN 3569 (letselwerend glas) is niet van toepassing;

 Bij de toepassing van triple beglazing dient rekening gehouden te worden met een verhoogde kans op het ontstaan van thermische breuk. Mogelijke oorzaken kunnen zijn;

- Gedeeltelijke schaduwwerking door een halfgesloten zonwering;

- Hoge binnentemperatuur ten gevolge van binnen zonwering/spullen dicht op het glas;

- Beglazing die deels is afgeplakt met folie;

- Tijdelijke condensvorming (het zogenaamde beslaan) bij koud weer. Bovengenoemde valt buiten de garantie.

Glazenwassen – gevelonderhoud

 Er is geen glazenwas­ en/of gevelonderhoud installatie van toepassing;

 De bewassing van de buiten beglazing dient conform de ARBO­wetgeving op een veilige wijze te geschieden. Wij adviseren u dan ook om reden van de veiligheid het bewassen van deze beglazing door een erkend glazenwasbedrijf collectief via de V.v.E te laten uit voeren.

Buitenschilderwerk

 Eventuele buitenbetimmeringen worden behandeld met een dekkende verflaag in kleur conform de kleuren­ en materialenstaat.

Dakbedekking

 Het platte dak wordt afgewerkt met bitumineuze dakbedekking;

 Op het dak worden schoorstenen aangebracht t.b.v. de installaties;

 Het platte dak wordt voorzien van PV­panelen. De positie van de PV­panelen is indicatief weergegeven op de verkooptekeningen;

 Op het platte dak worden de buitenunits geplaatst van de lucht/water warmtepompen;

 Het platte dak wordt voorzien van aanlijnbeveiligingspunten (t.b.v. onderhoudswerkzaamheden op het dak na oplevering);

 Het platte dak wordt voorzien van een dakluik.

Goten en hemelwaterafvoeren

 Het hemelwater van de terrassen en balkons wordt ter plaatse van de gevels afgevoerd middels hemelwaterafvoeren. De posities van de hemelwaterafvoeren worden nog nader bepaald n.a.v. de technische uitwerking van het afschotplan van de daken en de balkons/loggia’s;

 Het hemelwater van het platte dak wordt zo veel mogelijk afgevoerd via de schachten;

 De hemelwaterafvoeren in het zicht worden uitgevoerd in zink/aluminium. De overige HWA’s worden uitgevoerd in kunststof;

 De terrassen/loggia’s en het platte dak worden voorzien van benodigde noodoverstorten;

 De hemelwaterafvoeren worden voorzien van de nodige hulp­ en ontstoppingsstukken en wordt afgevoerd op oppervlaktewater of op de daktuin.

Buitenruimte

 Het appartementengebouw heeft buitenruimtes (terrassen/balkons en loggia’s) van prefab beton en in het werk gestort beton;

 Bouwnummer 1 en 2 zijn voorzien van een terras op de binnentuin. Deze terrassen worden voorzien van betontegels 50 x 50 cm;

 Bouwnummer 2 is ook voorzien van een terras aan de zijde van de Hollandsche IJssel met betontegels van 50 x 50 cm;

 De bovenzijde van de prefab betonbalkons worden voorzien van een antislip profiel;

 De onderkanten van de prefab balkons hebben een ruw gestructureerd oppervlak en worden niet nader afgewerkt. Tintverschillen welke in prefab beton kunnen voorkomen zullen zichtbaar blijven;

 De in het werk gestorte balkons worden voorzien van isolatie en dakbedekking. Op de dakbedekking worden betontegels 50 x 50 cm aangebracht, langs de randen ca. 5 cm vrijgehouden en niet opgevuld met grind. De betontegels volgen het afschot van de dakbedekking;

 Om de waterdichting te waarborgen is het noodzakelijk om een hoogteverschil aan te brengen. Hierdoor ontstaat een trede (e.e.a. conform verkooptekeningen) tussen het appartement en de buitenruimte van ca. 20 cm hoog om aan de buitenzijde een afdoende waterdichte aansluiting/ opstand te kunnen realiseren, deze trede wordt aan de bovenzijde afgewerkt met een kunststenen vensterbank in kleur gebroken wit;

 Aan de onderzijde van de balkons wordt een noodoverstort aangebracht welke in het zicht blijft;

 De kopkanten van de balkons worden voorzien van een stalen UNP profiel welke in kleur wordt gepoedercoat. Deze worden met een boutverbinding gekoppeld aan de balkons. De boutkoppen aan de buitenzijde blijven in het zicht;

 Bij de buitenruimtes (m.u.v. de terrassen die uitkomen op de binnentuin) wordt een metalen gepoedercoat hekwerk aangebracht conform verkooptekening. Op de vijfde en zesde verdieping wordt een glazen balustrade aangebracht met metalen balusters achter het glas.

2.6. AFBOUW VAN UW APPARTEMENT

Binnenwanden

 De niet dragende binnenwanden worden uitgevoerd als zogenaamde “lichte scheidingswand” opgebouwd uit gipsblokken;

 De wanden van de technische ruimte, schachten en tussen verblijfsruimtes onderling worden uitgevoerd als geluidswerende gipsblokken wanden.

83

Binnendeuren en –kozijnen

 De voordeur van het appartement wordt uitgevoerd als vlakke deur met HPL afwerking voorzien van een spionoog op 155 cm ten opzichte van onderkant deur. Het kozijn heeft een dagmaatbreedte van 95 cm;

 De binnen kozijnen worden uitgevoerd als metalen nastelkozijnen;

 De binnen kozijnen worden fabrieksmatig afgelakt in een standaard kleur wit;

 Boven de binnen kozijnen wordt de wand doorgebouwd;

 De binnendeuren (231,5 cm hoog) worden uitgevoerd als stompe deuren;

 De vlakke binnendeuren worden fabrieksmatig afgelakt in een standaard kleur wit;

 Doordat de kozijnen en deuren van een ander materiaal zijn gemaakt kan er een klein nuance verschil zitten in de kleur wit van beide onderdelen;

 Onder de binnendeuren wordt, in verband met de ventilatiedoorstroming, een vrije ruimte gehouden van circa 2 a 3 cm. Met uitzondering van de toiletdeur(en), de badkamerdeur(en) en de deur van de technische ruimte worden er geen dorpels toegepast;

 De deur(en) van de technische ruimte(n) en/of berging welke uitkomen in een verblijfsruimte wordt/worden uitgevoerd als geluidswerende deur(en) met geluidswerend rooster. Deze deuren worden voorzien van een doorgaand rubberprofiel rondom. Bij de onderdorpel wordt een kunststof dorpel op de vloer aangebracht t.b.v. de aanslag voor het rubberprofiel. Tijdens het kopers keuze traject kan het zijn dat de gewenste paneel­ of stijldeuren niet als geluidswerende uitvoering verkrijgbaar zijn. Deze deur zal dan alsnog als vlakke geluidswerende deur uitgevoerd worden.

Hang- en sluitwerk

 De binnendeuren worden afgemonteerd met aluminium rond rozet beslag;

 Het toilet/de toiletten en de badkamer(s) worden voorzien van een vrij­ en bezetsluiting;

 De meterkast wordt voorzien van een kastslot (enkel een sleutelplaat zonder kruk/vaste knop);

 De overige binnendeuren worden voorzien van een loopslot en bijbehorend beslag;

 De voordeur, bergingsdeur en terrasdeur/balkondeur worden afgemonteerd met (anti kerntrek) aluminium beslag en voorzien van een gelijksluitende cilinder;

 De voordeur wordt voorzien van een vrijloopdranger en wordt brandwerend uitgevoerd.

Dorpels

Ter plaatse van het toilet/de toiletten en de badkamer(s) wordt een kunststeen dorpel direct achter de binnendeur aangebracht in de kleur antraciet. Het douchescherm wordt op een antraciet kleurige dorpel geplaatst. Bij de deur(en) van de technische ruimte, welke uitkom(t)(en) in een verblijfsruimte, wordt een kunststof dorpel aangebracht t.b.v. aanslag van het rubber kader.

Vloerafwerking

 Het gehele appartement wordt voorzien van een (zwevende) anhydriet afwerkvloer m.u.v. de badkamer(s), hier wordt een zandcement dekvloer aangebracht direct op de betonvloer;

 In de afwerkvloer worden de aan­ en afvoerleidingen van de vloerverwarming weggewerkt. Er dient rekening mee gehouden te worden dat er niet geboord, gespijkerd of gehakt kan worden in de dekvloer i.v.m. het risico van schade aan de leidingwerken;

 Afwerkvloeren zijn onderhevig aan krimp en de constructievloeren aan krimp en kruip. Hierdoor kunnen scheurtjes ontstaan in de dekvloer. Deze eventuele scheurtjes doen geen afbreuk aan de kwaliteit. De vloerafwerker dient gepaste maatregelen te nemen zodat deze scheurtjes niet doorzetten in de vloerafwerking;

 Er worden standaard geen definitieve vloerafwerkingen in uw appartement aangebracht. Bij het aanbrengen van de definitieve vloerafwerking (aan te brengen door derden) met bijvoorbeeld PVC, tapijt, laminaat, hout, tegels, gietvloer, etc., dient u met de volgende zaken rekening te houden:

- Er dient voor het aanbrengen van de vloerafwerking in veel gevallen rekening gehouden te worden met droogtijd van de onderliggende vloer;

- Bij sommige vloerafwerkingen is het noodzakelijk om de vloer vooraf te laten egaliseren;

- Vloerafwerkingen dienen vrij te liggen van de wanden (kantstrook);

- Eventuele plinten mogen de anhydriet dekvloer en de vloerafwerking niet raken.

 Het appartement is voorzien van een vloerverwarmingssysteem. Bij vloerverwarming en ­koeling kan vrijwel elke vloerafwerking worden toegepast. Om het systeem goed te laten werken mag de warmteweerstand (ook wel: Rc­waarde of isolatiewaarde) van de vloerafwerking niet te hoog zijn. De Rc­waarde van de totale vloerafwerking mag maximaal 0,09 (m2 K/W) zijn. Een isolerende laag in of onder de vloerafwerking is ongewenst.

Wandafwerking

 Alle binnenwanden worden behangklaar opgeleverd met uitzondering van het toilet/de toiletten, de badkamer(s), opstelplaats keuken, berging, technische ruimte en de meterkast;  De uitgangspunten voor behangklaar zijn als volgt: Voor de wanden geldt dat kleine oneffenheden in de vorm van gaatjes, bultjes, spaanslagen zijn toegestaan. Behangklaar wil ook zeggen dat ervan uitgegaan wordt dat er na oplevering nog een verdere afwerking door de bewoner gaat plaatsvinden. Verdere afwerkingen kunnen bijvoorbeeld behang of een sierpleister zijn. Let goed op wat voor behang u koopt, want niet alle behangsoorten zijn geschikt. Een wand die behangklaar is gemaakt is onvoldoende vlak om te kunnen sausen. Indien de wanden door of namens u als bewoner ‘sausklaar’ worden gemaakt, bevelen we aan om een eventuele opvolgende sausafwerking altijd toe te passen in combinatie met onderliggend glasvliesbehang. Door toepassing van diverse materialen met verschillende eigenschappen en mede door het drogen van het appartement zullen er met name bij de aansluitnaden krimpscheuren kunnen ontstaan. Deze zijn niet volledig uit te sluiten en vallen niet onder de garantie.

Plafondafwerking

 Op alle betonplafonds wordt wit spuitwerk (in fijne korrel) aangebracht met uitzondering van de meterkast/berging/technische ruimte;

 In de betonvloeren worden mogelijk plaatselijk stalen constructieve liggers toegepast, e.e.a. conform de verkooptekening. Deze liggers worden langs het plafond afgewerkt met een brandwerende betimmering. Deze betimmering blijft in het zicht en steekt onder het plafond uit. De betimmering wordt mee gespoten met de plafondafwerking;

 De v­naden bij de overgang van vloerelementen aan de onderzijde van de verdiepingsvloer c.q. plafonds van onderliggende ruimten, blijven in het zicht en worden niet vlak afgewerkt;

 Aangezien de verschillende materialen in de eerste periode kunnen werken en zetten bestaat de kans op scheurvorming. Dergelijke, mogelijke, scheurvorming is uitgesloten van de garantie.

Binnenschilderwerk

Aftimmeringen zijn dekkend wit afgelakt (op waterbasis).

Sanitair

Het sanitair dat wordt aangebracht is van het merk Villeroy & Boch, de kranen zijn van het merk Grohe.

 In de toiletruimte wordt aangebracht:

- Wandclosetcombinatie met inbouwreservoir;

- Closetzitting (softclose);

- Fonteincombinatie;

- Chromen bekersifon met muurbuis;

- Fonteinkraan.

 In badkamer 1 wordt aangebracht:

- Wastafelmeubel van 80 cm breed (bouwnummer 1, 2 en 4);

- Wastafelmeubel van 120 cm breed (bouwnummer 3, 5 t/m 13);

- Wastafelmengkraan met waste;

- Chromen bekersifon met muurbuis;

- Verwarmde spiegel met vaste elektra aansluiting met verlichting 80 x 60 cm (bouwnummer 1, 2 en 4);

- Vloerafwerkingen mogen nooit met een verende ondervloer worden toegepast. Er wordt al een zwevende dekvloer toegepast t.b.v. de akoestiek. Extra verende lagen (ondervloeren) verslechteren de geluidisolatie juist i.p.v. deze te verbeteren. Vloerafwerkingen dienen direct aangebracht te worden op de anhydriet dekvloer, dus zonder verende tussenlaag;

- Verwarmde spiegel met vaste elektra aansluiting met verlichting 120 x 60 cm (bouwnummer 3, 5 t/m 13);

- Douchedraingoot van 70 cm breed;

84

- De maat van de inloopdouche welke op afschot loopt is ca. 90 x 90 cm;

- Douchescherm 120 x 200 cm (bouwnummer 1, 2, 4, 12 en 13);

- Gibowand 120 x cm lang en plafondhoog (bouwnummer 3, 5 t/m 11);

- Bad 180 x 80 cm (bouwnummer 3, 5, 7, 9, 11 en 13);

- Douchethermostaatkraan met glijstangcombinatie;

- Elektrische radiator.

 In de 2de badkamer (bouwnummer 3, 5, 7, 9, 11 en 13) wordt aangebracht:

- Wastafelmeubel van 80 cm breed;

- Wastafelmengkraan met waste;

- Chromen bekersifon met muurbuis;

- Verwarmde spiegel met vaste elektra aansluiting met verlichting 80 x 60 cm;

- Douchedraingoot van 70 cm breed;

- De maat van de inloopdouche welke op afschot loopt is ca. 90 x 90 cm;

- Douchescherm 100 x 200 cm lang;

- Douchethermostaatkraan met glijstangcombinatie;

- Elektrische radiator.

Tegelafwerking

 In het toilet/de toiletten en de badkamer(s) worden antraciet kleurige vloertegels aangebracht in de afmeting 45 x 45 cm bij bouwnummer 1, 2 en 4;

 In het toilet/de toiletten en de badkamer(s) worden antraciet kleurige vloertegels aangebracht in de afmeting 60 x 60 cm bij bouwnummer 3, 5 t/m 13;

 In de badkamer(s) worden, ter plaatse van de douchehoek, de vloertegels verdiept en op afschot aangebracht;

 De zijaansluiting van de vloer van de verdiepte douchehoek wordt afgewerkt met een metalen beeindigingsprofiel;

 De witte wandtegels worden uitgevoerd in de afmeting 20 x 40 cm bij bouwnummer 1, 2 en 4;

 De witte wandtegels worden uitgevoerd in de afmeting 30 x 60 cm bij bouwnummer 3, 5 t/m 13;

 De wandtegels worden in de badkamer(s) liggend verwerkt tot aan het plafond;

 De wandtegels worden in het toilet/de toiletten liggend verwerkt tot een hoogte van ca. 140 cm bij bouwnummer 1, 2 en 4 boven de afwerkvloer;

 De wandtegels worden in het toilet/de toiletten liggend verwerkt tot een hoogte van ca. 150 cm bij bouwnummer 3, 5 t/m 13 boven de afwerkvloer;

 De wanden in het toilet/de toiletten boven het tegelwerk worden voorzien van wit spuitwerk. De bovenzijde van het inbouwreservoir wordt als plateau uitgevoerd en afgewerkt met wandtegels;

 De vloer­ en wandtegels worden niet strokend verwerkt;

 De voegkleur van de vloertegels is grijs en de voegkleur van de wandtegels is wit;

 Het kitwerk van al het wandtegelwerk wordt uitgevoerd in de kleur wit;

 Het kitwerk van de aansluiting wand­ en vloertegelwerk wordt uitgevoerd in de kleur grijs;

 Het kitwerk van het sanitair is wit, bij het wastafelmeubel wordt er alleen horizontaal kitwerk aan de bovenzijde van het meubel toegepast;

 De uitwendige hoeken van het wandtegelwerk worden afgewerkt met metalen tegel beëindigingsprofiel.

Keuken

Het appartement wordt standaard voorzien van een keukeninrichting. E.e.a. conform de keukenaanbieding. Indien gewenst kunt u via de keukenshowroom die aan dit project gekoppeld is en waar wij afspraken mee hebben gemaakt, deze keuken geheel naar eigen wens aan laten passen. De eventuele bijkomende kosten zullen via uw kopersbegeleider verrekend worden op het meer­minderwerk overzicht.

Het voordeel van een projectshowroom is dat zij precies op de hoogte zijn van alle ins en outs van het project en u er tijdens het bouwproces ook geen omkijken naar heeft. De projectshowroom onderhoudt rechtstreeks contact met ons en weet zo wanneer de keuken in bestelling genomen kan worden en wanneer er een afspraak gemaakt kan worden voor het inmeten. De keukenshowroom maakt een afspraak met u over het plaatsen zodat u de mogelijkheid heeft eerst de vloer en/of wandafwerking te regelen. de Een keuken wordt te allen tijde pas geplaatst ná de oplevering. Een bijkomend voordeel van deze projectshowroom is dat verplaatsingen van aansluitpunten binnen de basis keukenopstelling zoals deze op de verkooptekening is

ingetekend kosteloos zijn.

Keukenaansluitingen

 Riool­ en wateraansluitingen van de spoelbak en vaatwasser worden conform de keuken 0­tekening op de juiste hoogte afgemonteerd;

 De elektra aansluitingen worden conform de keuken 0­tekening op de juiste hoogte afgemonteerd;

 De ventilatie­afzuigpunten hebben een vaste positie en kunnen niet verplaatst worden;

 Alle standaard aansluitpunten worden aangebracht conform de keukenindeling op de verkooptekening.

Aftimmerwerk

 Op de benodigde locaties worden betimmeringen aangebracht en in kleur geschilderd conform de kleuren­ en materialenstaat;

 Er worden geen vloerplinten aangebracht.

2.7. INSTALLATIES

Meterkast

 De meterkast wordt aangebracht met de afmetingen volgens de geldende voorschriften;

 De meterkast wordt voorzien van de door de nutsbedrijven voorgeschreven invoervoorzieningen;

 Op dit moment is het nog niet exact aan te geven van welke elektrische aansluiting de meterkast is voorzien. Dit hangt samen met een aantal factoren, waaronder de zwaarte van de hoeveelheid elektrische componenten in het appartement. Hoe groter het verbruik, hoe groter de kans dat de aansluiting zwaarder moet zijn. In feite wordt de zwaarte bepaald door hoeveel stroom er gelijktijdig wordt afgenomen, dus de optelsom van wat de elektrische apparaten tegelijk maximaal afnemen. In overleg met de elektra installateur zal de standaard aansluiting van uw appartement worden bepaald en door de kopersbegeleiding met u worden gecommuniceerd, dit kan zijn een 3x25 A of een 3x35 A aansluiting. Tevens kan tijdens het kopers keuze traject blijken dat door uw meerwerkkeuzes de aansluiting in de meterkast aangepast dient te worden.

 Dit zal te allen tijde door de elektricien bepaald worden en met u besproken/geoffreerd worden. Indien er een zwaardere aansluiting noodzakelijk is dient u er rekening mee te houden dat dit gepaard gaat met een hoger verbruik en een hoger vastrecht welke door het energiebedrijf aan u worden doorberekend;

 De meterkastdeur wordt voorzien van (een) rooster(s) t.b.v. ventilatie.

Verwarmingsinstallatie

Lucht – water warmtepomp (bouwnummer 3, 5, 7, 9, 11 en 13)

 Het appartement wordt voorzien van een lucht – water warmtepomp;

 De warmtepomp (met topkoelfunctie) staat opgesteld in de technische ruimte;

 Met topkoeling kan de temperatuur enkele graden worden afgevlakt;

 De buitenunit staat gemonteerd op het platte dak van het appartementengebouw en voert het condenswater af op de dakbedekking;

 De buitenunits zijn dusdanig gesitueerd dat deze voldoen aan de wettelijke geluidsnormen;

 Het appartement is voorzien van een warmwater boilervat van 300 liter. Dit betekent dat er aaneengesloten 300 liter warm water gebruikt kan worden, wanneer het boilervat geheel gevuld is. Hoe snel dit water op is, is afhankelijk van het type douchekop en de temperatuur waarop gedoucht wordt of op andere wijze warm water gebruikt wordt. In de praktijk kunt u in totaal ca. 30 minuten aaneengesloten douchen alvorens de boiler weer gevuld moet gaan worden;

 In tegenstelling tot de cv­ketel is het verbruik van warm water via de warmtepomp niet oneindig. Indien het boilervat leeggetapt is gaat er enige tijd overeen alvorens het vat weer beschikking heeft over warm water;

 Indien u via de showroom een douchemengkraan met een hogere doorstroom capaciteit wenst raakt de boiler versneld leeg, waardoor u minder lang kunt douchen. Dit is te ondervangen door het toepassen van een grotere boilercapaciteit. De kopersbegeleiding kan u hier nader over informeren. Let op: Een boiler met een hogere capaciteit kan ook effect hebben op de BENG berekening met aanvullende kosten;

 Verwarming van het appartement geschiedt door middel van

85

vloerverwarming (laagtemperatuurverwarming). Deze wordt aangebracht in de verblijfsruimtes en de badkamer(s);

 In verband met vloerverwarming als hoofdverwarming dient er geen nachtverlaging te worden toegepast. Dat betekent dat u de kamerthermostaat op de ingestelde temperatuur kunt laten staan. Hierdoor zal een beter comfort ontstaan. De toepassing van vloerverwarming impliceert dat u rekening dient te houden met het gegeven dat niet elke vloerbedekking geschikt is. De warmte moet redelijk gemakkelijk afgegeven kunnen worden aan deze vloerbedekking, daar anders de dekvloer te warm wordt en schade het gevolg kan zijn. Laat u door uw leverancier van vloeren goed informeren of u de juiste vloerbedekking aanschaft;

 De vloerverwarming wordt aangesloten op verdeler(s). Deze verdeler(s) word(t)(en) zoveel als mogelijk uit het zicht geplaatst. Indien een verdeler in een verblijfsruimte wordt geplaatst zal de verdeler worden voorzien van een omkasting (kleur wit);

 De aansturing van de temperatuurregeling geschiedt door een thermostaat per verblijfsruimte. Deze zogenaamde master/master­regeling kan het appartement alleen verwarmen. Per verblijfsruimte is de temperatuur separaat te regelen met dien verstande dat het temperatuurverschil tussen de verblijfsruimtes in de praktijk maximaal 2 à 3 graden Celsius zal bedragen (o.a. afhankelijk van de bezonning);

 De badkamer(s) word(t)(en), naast vloerverwarming, voorzien van een elektrische design radiator;

 De plaats en afmeting van de warmtepomp is indicatief en kan vanwege installatietechnische redenen afwijken van de verkooptekening;

 De hieronder vermelde temperaturen moeten, conform de eisen van Woningborg, bij gelijktijdig functioneren van de vloerverwarming behaald en behouden kunnen worden tot ten minste een buitentemperatuur van ­10 °C (uitgegaan van het niet toepassen van nachtverlaging) en een maximale windkracht 7.

- Woonkamer en keuken : 22 graden;

- Slaapkamers : 22 graden;

- Badkamer(s) : 22 graden;

- Verkeersruimten : 18 graden;

- Technische ruimte : 15 graden;

- Toilet(ten) : 18 graden;

- Berging : 15 graden.

Lucht – lucht warmtepomp (bouwnummer 1, 2, 4, 6, 8, 10 en 12)

 Het appartement wordt voorzien van een lucht ­ lucht warmtepomp;

 Een lucht ­ lucht warmte pomp wordt ook wel een ventilatie warmtepomp genoemd;

 De warmtepomp (met topkoelfunctie) staat opgesteld in de technische ruimte;

 Met topkoeling kan de temperatuur enkele graden worden afgevlakt;

 Voor de warm water voorziening is het appartement voorzien van een elektrische warmwater boilervat van 170 liter (bouwnummer 1, 2, 4 en 12), 200 liter (bouwnummer 6, 8 en 10). Dit betekent dat er aaneengesloten 170/200 liter warm water gebruikt kan worden, wanneer het boilervat geheel gevuld is. Hoe snel dit water op is, is afhankelijk van het type douchekop en de temperatuur waarop gedoucht wordt of op andere wijze warm water gebruikt wordt. In de praktijk kunt u in totaal ca. 30 minuten aaneengesloten douchen alvorens de boiler weer gevuld moet gaan worden;

 In tegenstelling tot de cv­ketel is het verbruik van warm water via de warmtepomp niet oneindig. Indien het boilervat leeggetapt is gaat er enige tijd overeen alvorens het vat weer beschikking heeft over warm water;

 Indien u via de showroom een douchemengkraan met een hogere doorstroom capaciteit wenst raakt de boiler versneld leeg, waardoor u minder lang kunt douchen. Dit is te ondervangen door het toepassen van een grotere boilercapaciteit. De kopersbegeleiding kan u hier nader over informeren. Let op: Een boiler met een hogere capaciteit kan ook effect hebben op de BENG berekening met aanvullende kosten;

 Verwarming van het appartement geschiedt door middel van vloerverwarming (laagtemperatuurverwarming). Deze wordt aangebracht in de verblijfsruimtes en de badkamer(s);

 In verband met vloerverwarming als hoofdverwarming dient er geen nachtverlaging te worden toegepast. Dat betekent dat u de kamerthermostaat op de ingestelde temperatuur kunt laten staan. Hierdoor zal een beter comfort ontstaan. De toepassing van vloerverwarming impliceert dat u rekening dient te houden met het gegeven dat niet elke

vloerbedekking geschikt is. De warmte moet redelijk gemakkelijk afgegeven kunnen worden aan deze vloerbedekking, daar anders de dekvloer te warm wordt en schade het gevolg kan zijn. Laat u door uw leverancier van vloeren goed informeren of u de juiste vloerbedekking aanschaft;

 De vloerverwarming wordt aangesloten op verdeler(s). Deze verdeler(s) word(t)(en) zoveel als mogelijk uit het zicht geplaatst. Indien een verdeler in een verblijfsruimte wordt geplaatst zal de verdeler worden voorzien van een omkasting (kleur wit);

 De aansturing van de temperatuurregeling geschiedt door een thermostaat per verblijfsruimte. Deze zogenaamde master/master­regeling kan het appartement alleen verwarmen. Per verblijfsruimte is de temperatuur separaat te regelen met dien verstande dat het temperatuurverschil tussen de verblijfsruimtes in de praktijk maximaal 2 à 3 graden Celsius zal bedragen (o.a. afhankelijk van de bezonning);

 De badkamer(s) word(t)(en), naast vloerverwarming, voorzien van een elektrische design radiator;

 De plaats en afmeting van de warmtepomp is indicatief en kan vanwege installatietechnische redenen afwijken van de verkooptekening;

 De hieronder vermelde temperaturen moeten, conform de eisen van Woningborg, bij gelijktijdig functioneren van de vloerverwarming behaald en behouden kunnen worden tot ten minste een buitentemperatuur van ­10 °C (uitgegaan van het niet toepassen van nachtverlaging) en een maximale windkracht 7.

- Woonkamer en keuken : 22 graden;

- Slaapkamers : 22 graden;

- Badkamer(s) : 22 graden;

- Verkeersruimten : 18 graden;

- Technische ruimte : 15 graden;

- Toilet(ten) : 18 graden;

- Berging : 15 graden.

Ventilatievoorzieningen

 Het appartement wordt voorzien van een mechanisch ventilatie (MV) systeem, met natuurlijke toevoer en mechanische afvoer;

 De mechanische luchtafvoer wordt verzorgd door een ventilatorunit;

 De luchtafvoerpunten worden aangebracht in het plafond of in de wand van het toilet/de toiletten, keuken (2x), badkamer(s) en de technische ruimte/ opstelruimte wasmachine;

 De ventilatorunit is geïntegreerd in de warmtepomp behoudens bij bouwnummer 3, 5, 7, 9, 11 en 13 daar wordt de unit geplaatst in de technische ruimte en de buitenunit op het platte dak. Leidingwerk vanaf de ventilatorunit naar de schacht en van de ventilatorunit naar de dak doorvoer wordt als opbouw uitgevoerd en is dus in het zicht;

 De natuurlijke luchttoevoer wordt gerealiseerd middels ventilatieroosters in de gevel;

 De plaats en afmeting van de ventilatievoorziening is indicatief en kan vanwege installatietechnische redenen afwijken van de verkooptekening;  Met betrekking tot de plaatsing van een afzuigkap in de keuken dient u een recirculatiekap te gebruiken. Het aansluiten van een afzuigkap of wasemkap op het centrale ventilatiesysteem is niet mogelijk. Tevens is een afzuigkap met directe doorvoer naar buiten niet mogelijk, omdat dit warmteverlies tot gevolg heeft en het systeem in onbalans kan raken. Voor de recirculatiekap is het belangrijk dat het koolstoffilter regelmatig vervangen moet worden. Een filter gaat gemiddeld 6 tot 8 maanden mee. Wanneer de recirculatiekap minder geur weg neemt dan is een nieuw koolstoffilter nodig.

Waterinstallatie

 Een warmwaterleiding wordt aangelegd naar:

- De keuken;

- De wastafel(s);

- Het bad (bouwnummer 3, 5, 7, 9, 11 en 13);

- De doucheopstelling(en).

 Een koud waterleiding wordt aangelegd naar:

- De keuken;

- De wastafel(s);

- De doucheopstelling(en);

- Het bad;

- Het toilet/de toiletten;

- De fontein in het toilet/de toiletten;

- De opstelplaats voor de wasmachine;

- Boiler/warmtepomp.

86

Riolering

 De aanleg van de riolering is conform de eisen van de gemeente;

 Een aansluitpunt t.b.v. riolering wordt aangelegd naar:

- De keuken;

- Het toilet/de toiletten;

- De fontein in het toilet/de toiletten;

- De opstelplaats voor de wasmachine;

- De opstelplaats voor de wasdroger (er wordt een T­stuk op het riool van de wasmachine aansluiting aangebracht(opbouw));

- De wastafel(s);

- De doucheopstelling(en);

- Het bad (bouwnummer 3, 5, 7, 9, 11 en 13);

- De ventilatorunit (opbouw);

- De warmtepomp (opbouw).

 Ter plaatse van de opstelplaats van de wasmachine wordt een afvoer met stankafsluiter (opbouw) gemaakt.

Elektra installatie

 De elektrische installatie wordt uitgevoerd conform de geldende voorschriften;

 De rookmeldinstallatie wordt uitgevoerd conform de geldende voorschriften;

 Waar mogelijk en noodzakelijk worden de leidingen weggewerkt, behoudens in de meterkast en technische ruimte. Hier wordt het leidingwerk als opbouw uitgevoerd;

 Er worden kunststof inbouwschakelaars en – wandcontactdozen toegepast;

 Er wordt een beldrukker met drukknop toegepast;

 De op tekening aangegeven schakelaars, aansluitpunten, loze leidingen en thermostaten zijn indicatief. De juiste positie wordt nader bepaald;

 In de woonkamer/entreehal wordt een videofoon installatie toegepast welke is gekoppeld aan het bellentableau van de hoofdentree. Vanuit het appartement is alleen de deur van de hoofdentree van het appartementengebouw te ontgrendelen en de segmentdeur van de toegang tot de stallinggarage;

 De wandcontactdozen worden horizontaal geplaatst m.u.v. de berging;

 Voor de aansluitpunten geldt het volgende: hoogte vanaf vloer

- Schakelaar toilet bij inbouwreservoir: 105/130 cm;

- Overige schakelaars: 105 cm;

- Wandcontactdozen woonkamer: 30 cm;

- Wandcontactdozen slaapkamer: 30 cm;

- Wandcontactdozen boven aanrecht: 125 cm;

- Wandcontactdoos naast wastafel: 105 cm;

- Wandcontactdoos e­radiator: 30 cm;

- Wandcontactdozen bij schakelaar: 105 cm;

- Wandcontactdozen in berging: 105 cm;

- Wandcontactdoos wasmachine: 105 cm;

- Wandcontactdoos droger: 105 cm;

- Wandcontactdoos in de meterkast: 200 cm;

- Loze leiding in woonkamer: 30 cm;

- Loze leiding slaapkamer: 30 cm;

- Loze leiding voor boiler (bnr. 1, 2 en 4): conform keuken 0­tekening;

- Aansluiting quooker (bnr. 3, 5 t/m 13): conform keuken 0­tekening;

- Aansluiting wijnklimaatkast (bnr. 3, 5 en 13): conform keuken 0­tekening;

- Aansluiting koel/vrieskast: conform keuken 0­tekening;

- Aansluiting recirculatiekap: conform keuken 0­tekening;

- Aansluiting kooktoestel: conform keuken 0­tekening;

- Aansluiting vaatwasser: conform keuken 0­tekening;

- Aansluiting combimagnetron: conform keuken 0­tekening;

- Aansluitpunt wandlichtpunt badkamer: 180 cm;

- Aansluitpunt wandlichtpunt buiten, van binnenuit gemeten: 220 cm;

- Bediening mechanische ventilatie: 150 cm;

- Beldrukker naast voordeur (geplaatst op het kozijn of de wand): 150 cm;

- Thermostaat: 150 cm;

- Bediening videofoon: 150 cm;

- Aansluitpunten in technische ruimte: diverse hoogtes.

 De hierboven genoemde maten betreffen circa maten;

 De daarvoor in aanmerking komende groepen worden beveiligd door middel van een aardlekschakelaar.

PV-installatie (zonnepanelen)

Een zonnepaneel, ook wel PV­paneel genoemd (PV is een afkorting voor het Engelse ‘Photo Voltaic’ en refereert aan licht en elektriciteit), is een paneel dat samen met de omvormer zonne­energie omzet in elektriciteit. Een PVsysteem is een volledige installatie bestaande uit PV­panelen, bekabeling, regelapparatuur en een omvormer. . Mede dankzij de omvormer kan het PV­systeem aan het elektriciteitsnet van het appartement worden gekoppeld waardoor het bijdraagt aan de energielevering binnen het appartement.

Doordat uw appartement ook is aangesloten op het openbare elektriciteitsnet kan altijd aan de volledige elektriciteitsvraag worden voldaan. U beschikt dus over voldoende elektriciteit ook wanneer zonlicht niet voorhanden is of wanneer er meer elektriciteit wordt gevraagd dan door het PV­systeem wordt opgewekt. Op het moment dat er meer elektriciteit wordt opgewekt dan wordt gebruikt, kan de extra opgewekte energie worden terug geleverd aan het openbare elektriciteitsnet. De elektriciteit die u terug levert wordt, op basis van de op dat moment geldende regelgeving, verrekend met hetgeen bij de energieleverancier is of wordt afgenomen. Eventueel in de toekomst te heffen energiebelasting is voor rekening van de koper.

 Het appartement wordt standaard voorzien van PV­panelen. Bouwnummer 1 en 2 krijgen ieder 5 PV­panelen, bouwnummer 4, 6, 8, 10 t/m 12 krijgen ieder 6 PV­panelen, bouwnummer 3, 5, 7 en 9 krijgen ieder 7 PV­panelen en bouwnummer 13 krijgt 9 PV­panelen;

 De PV­panelen worden op het hoofddak aangebracht en per appartement gekoppeld;

 De positie van de omvormer wordt nader bepaald door de installateur;

 Per appartement wordt een aantal PV­panelen aangebracht;

 De positie en de afmeting van de op tekening aangegeven PV­panelen en omvormer zijn slechts indicatief. De definitieve positie en afmeting worden in overleg met de architect en installateur, rekening houdend met oriëntatie, esthetica en aanwezig dakoppervlak, nader bepaald.

Telecommunicatie installatie

Vanuit de meterkast in het appartement wordt er één bedrade leiding aangebracht naar de woonkamer en één loze leiding aangebracht naar de hoofdslaapkamer. De loze leiding wordt voorzien van een controledraad (deze draad is niet geschikt als trekdraad).

Brandpreventie

Ten behoeve van een tijdige signalering van brand en/of rookontwikkeling worden in de verkeersruimten, van uw appartement, en daar waar overeenkomstig de voorschriften vereist, rookmelders aangebracht tegen de wand, op een pendel vanuit de nok of het plafond. Deze rookmelders zijn rechtstreeks aangesloten op de elektrische installatie en zijn ook voorzien van een noodaccu in geval van stroomuitval.

87

KLEUREN & MATERIALEN

ONDERDELEN MATERIAAL KLEUR

Gevelsteen

Metalen gevel (5e en 6e verdieping)

Voegwerk

Afdekbanden

Balkons

Gebakken metselsteen Geel/beige

Metaal Olijfgroen

Doorstrijkmortel

Donkergrijs

Prefab beton Grijs

Prefab/in werk gestort beton Grijs

Dakbedekking Bitumen Zwart

Buitenkozijnen

Draaiende/schuivende delen

Voordeur (appartement)

Kozijn voordeur (appartement)

Deur berging

Waterslagen

Hemelwaterafvoer zichtwerk

Postkasten / bellentableau

Hekwerken t.p.v. balkons/terrassen

Verwijsborden en huisnummers

Inbouwschakelaars en wandcontactdozen

Beldrukker

Plafondplaten

Aluminium

Aluminium

Olijfgroen

Olijfgroen

Hout met HPL Parel wit

Hout Parel wit

Hout Wit

Aluminium

Olijfgroen

Zink/aluminium Naturel

Metaal

Metaal

Groenbeige

Olijfgroen

Staal Grijs met zwarte letters

Kunststof Wit

Kunststof

Zwart met witte drukknop

Houtwolcement Wit

Sierkaders Metaal Olijfgroen

Betontegels

Traphekken in trappenhuis

Beton Grijs

Metaal

Geel

88
Exterieur impressie | Pakhuis Aan afbeeldingen in deze brochure kunnen geen rechten ontleend worden. 89

MAKELAAR

info@tw3.nl

EEN WONING WAARMEE U ZICH KUNT IDENTIFICEREN

Volgens Tom van Noord, oprichter en verkoopadviseur van TW3, wordt met De Oude Werf een project gebouwd waar iedereen een geschikt thuis kan vinden. “De sociale cohesie in de gebouwen, de dynamische architectuur, de verschillen in vorm, indeling en uitstraling qua woonoppervlak, alles draagt bij aan het creëren van een eigen verhaal. Hierdoor krijgen mensen de kans om een woning te kopen waar ze zich mee kunnen identificeren.”

WIE WIL ER NOU NIET WONEN AAN HET WATER?!

Juist de woningen die direct aan het water liggen zijn schaars, niet alleen in Krimpen aan den IJssel maar ook in het nabijgelegen Rotterdam. Dit maakt De Oude Werf zo uniek. Het is een van de laatste gebieden waar luxe woningen aan het water kunnen worden aangekocht en dan ook nog eens volledig toegerust op de toekomst.

010 - 300 71 17
90

ONTWIKKELAAR

STIJLVOLLE HERONTWIKKELING DOOR DE LANGEN & VAN DEN BERG

Als bouwer én projectontwikkelaar weet De Langen & van den Berg als geen ander wat ervoor nodig is om luxe nieuwbouwwoningen te ontwikkelen. In samenwerking met Zecc architecten, Jasper Smits Architecten en Lindeloof Landschapsarchitecten, heeft De Langen & van den Berg dan ook een plan geschetst dat naadloos aansluit op de uitvraag van de gemeente.

EEN NIEUWE TIJD VOOR DE WERF

De Langen & van den Berg won de herontwikkeling door in het plan niet alleen de historie van de locatie op alle niveaus terug te laten komen, maar ook de openbare verbinding met de IJssel te versterken. Met hun plan hopen ze een nieuwe tijdlaag aan de historische werf toe te voegen en de belevingswaarde van de kade te vergroten.

“Het DNA van de historische werf is het uitgangspunt geweest. We hebben een ontwerp gemaakt in het stoere karakter van de werf, waarmee voldaan wordt aan alle vereisten van deze tijd. Van een gezonde woonomgeving en hoge duurzaamheidsambities tot natuurinclusiviteit, klimaatadaptatie en de energietransitie.” vertelt Tomas van den Berg, directeur van De Langen & van den Berg.

HET PAKHUIS WONENAANDEOUDEWERF.NL brickx.nl Disclaimer De Langen & van den Berg heeft er alles aan gedaan om de juiste informatie te verstrekken. Alle informatie in deze brochure is onder voorbehoud. Houdt u er rekening mee dat de informatie, de tekeningen en de maataanduidingen kunnen afwijken. Er kunnen geen rechten worden ontleend aan de informatie die in deze brochure wordt verstrekt.

Turn static files into dynamic content formats.

Create a flipbook
Issuu converts static files into: digital portfolios, online yearbooks, online catalogs, digital photo albums and more. Sign up and create your flipbook.