



![]()




By NATHAN MAYBERG nmayberg@breezenewspapers com
Lee County Republicans kept Lee County Board of County Commissioners Chairman Mike Greenwell as the party’s nominee for the District 5 seat in the Primary Election on Aug 20, while also choosing David Mulicka for the District 3 seat
Greenwell withstood a challenge from Alva Republican Amanda Cochran in one of the tighter county races of the night He beat Cochran 55 33% to 44 67%
Cochran ran a campaign against overdevelopment and specifically objected to a development proposal for property Greenwell owns in the rural North Olga neighborhood The p r o p e r t y w a s
Greenwell was on the board to allow for 400,000 square feet of commercial space and 122 multifamily units He contended that he needed to develop the property after losing part of his land to state road expansion projects to accommodate increased traffic from Babcock Ranch
Greenwell will now face Democrat Kizzie Fowler in the November election District 5 includes Alva, Lehigh Acres,
Buckingham, Olga and eastern unincorporated Fort Myers, though voting is open to all of the county’s electorate Owner of HONC Destruction, Mulicka won his race comfortably while running on a pro-development platform over opponent Matt Thornton Mulicka received 64 29% of the vote over Thornton's 35 71% Thornton ran a campaign against what he contended was over-aggressive development in the county
Mulicka is the husband of District 78 State Rep Jenna Persons-Mulicka
District 3 includes Fort Myers Beach, Bonita Springs, Estero and the Iona-McGregor section of unincorporated Lee County, though voting is open to all of the county’s electorate
Other county races
Lee County voters countywide, regardless of political party, were able to take part in a universal primary to keep Lee County Supervisor of Elections Tommy Doyle in office He won in a landslide See PRIMARIES, page 18
By MEGHAN BRADBURY news@breezenewspapers com
As with the start of every s c h o o l y e a r , t h e c h a l l e n g e s almost solely fall upon transportation and the drop-off and pick-up lines at schools
“The first couple of week parents need to be patient and them iron it out,” School District of L e e C o u n t y R e g i o n a l A s s o c i a t e

Superintendent Chuck Vilardi said on Aug 15 of getting families to understand the process
arents should give the schools least two weeks for those lines o become better, and buses to roll smoother With that said, he said, if there are any major issues with transportation, the p a r e n t s s
chool’s principal, so they can the issue corrected right away B u s e s a r e r o l l i n g o u t m u c h quicker each and every day My principals are reaching out to me,” Vilardi said, adding that they are trying to manage the process and if certain schools are having
problems, they are taking care of the problems “I hope everyone enjoyed the first week of school I look forward to a smoother next week ”
He took on the new position of regional associate superintendent a K-12 model this year, which oversees 22 schools in Cape Coral and Pine Island. Cheryl Neely is the regional associate superintendent who oversees the schools t h a t i n c l u d e T h e S a n i b e l S
Sanibel
“The responsibilities are to be super-
See SCHOOL, page 19
By TIFFANY REPECKI trepecki@breezenewspapers com
The Sanibel City Council approved the solid waste rates and assessments for the 2024-25 fiscal year, along with the Shell H
District assessments, at its recent meeting
On Aug 20, the council held a public hearing to consider the annual special service assessments to fund the collection and disposal of solid waste, recyclables and horticultural waste The proposed rates were $495 14 for 4,024 dwelling
$627 60 for 40 dwelling units using the backdoor service Both were an increase from the current $369.44 and $487.82, respectfully
The council voted unanimously 5-0 on a resolution to set and approve the rate of assessment and solid waste assessment roll, then voted 5-0 on a second resolution as the Equalization Board to levy those
Also during the meeting, the council
page 18



By MEGHAN BRADBURY news@breezenewspapers com
The Lee County School Board's District 7 race provided all voters countywide with the opportunity to cast a ballot in the Aug 20 Primary Election in the three-way race featuring Vanessa Chaviano, Sheridan Chester and Joshua Molandes
Chaviano and Chester received the two highest percentages for at-large non-partisan seat
There is a run-off in the General Election if there is no majority winner with 50% plus one vote
Chaviano received 47 11% or 45,631 votes, Chester had 31 42% or 30,432 votes, and Molandes received 21 48% or 20,807 votes, with all the precincts reporting
Chaviano holds a bachelor’s degree in criminal justice
a n d c r
University, master’s degree in criminal forensics and behavioral analysis from Florida Gulf Coast University and master’s degree in business administration from Ashford University
A 25-year resident in Lee County, she works at LIV Digital Marketing in marketing operations She is a former teacher, school administrator, and coach and currently has two children in the district
“I am very excited, proud and happy for everyone that has supported me,” Chaviano said of those that came out for the primary. “We did everything as far as marketing,


door knocking grassroots efforts. We will continue those grassroots efforts here in the community keep doing what we have been doing ”
She said obviously it continues into November
“Hopefully, everyone comes out in November Every voice matters making sure every voice is heard, and everyone is accounted for I’m looking forward to serving them on the school board,” Chaviano said Chester received an AA degree from CUNY, Borough of Manhattan Community College, bachelor’s from John Jay College of criminal justice, as well as certified recov-
ery peer specialist
Also, a 25-year resident of Lee County, she has been a substitute teacher for the School District of Lee County Chester's top three issues include salaries, hire and retention of qualified teachers and safety
She could not be reached for comment as of press time.
The District 2 and 3 races were decided by voters registered in the respective districts
District 2 incumbent Melissa Giovannelli will serve another four years A real estate agent, she had the most votes with 12,660 or 56 71%, beating opponent Carol Frantz, a retired radiologic technologist, who received 9,665 votes or 43 29%
Giovannelli was first elected in 2016 and re-elected in 2020. A native of Lee County, she is a graduate of Riverdale High School Giovannelli has a Florida real estate license from Ed Klopfer of Real Estate and a paralegal certification from Barry University
Bill Ribble, who worked as a vice president of corporate operational development with UPS, won the District 3 race with 12,307 votes or 50 38% against opponent Kaityln Schoeffel, a car dealership and mother, who received 12,120 votes or 49 62%
Election results are unofficial until certified
By CJ HADDAD cjhaddad@breezenewspapers com
Lee County Property Appraiser Matt Caldwell staved off a primary challenge with more than 70% of the vote in the Primary Election on Aug. 20.
H e f a c e d c h a l l e n g e r S t e v e Cunningham in a “universal” primary
open to all voters Since there were only two candidates for property appraiser this election cycle, both Republican, the winner of the primary is now elected “We are honored to have the overwhelming support of our community,”
C a l d w e l l t o l d s i s t e r n e w s p a p e r T h e Breeze “I look forward to continuing to

s e r v e a s y o u r p r o p e r t y appraiser Our office will continue to be advocates for the taxpayer in every way possible ”
He had 70 37% of the v o t e t o C u n n i n g h a m ' s 29 63% with all precincts reporting
E l e c t i o n r e s u l t s a r e unofficial until certified
attended Florida Gulf Coast University and received a degree in history He works as a real estate appraiser and consultant with Maxwell, Hendry & Simmons in Fort Myers, having attained the highest state certification in his field and being

qualified as an expert witness in multiple states and federal court Caldwell is also a partner and consulta n t w i t h T M S t r a t e g i c Consulting He was a member of the F l o r i d a H o u s e o f R e p r
2010-18, serving on and chairing several committees during his tenure, including
and public lands, transportation and infrastructure, local, federal, and military affairs, and oversight of government operations, such as pensions and elections
The vegetation along Sanibel-Captiva Road on both sides of the road, including the Shared Use Path, will be trimmed from now through Aug. 30 from 8 a.m. to 5 p.m., weather permitting The city of Sanibel reported due to the nature of the work, one lane of the road may be intermittently closed to traffic Be prepared to expect delays Drivers and pedestrians are asked to proceed slowly and cautiously through the area when workers are present For



Previous Question
What do think about Gov Tim Walz for Harris' running mate?
∫ Good pick, 50% (23) ∫ Bad pick, 39% (18)
∫ No opinion, 11% (5)
Current Question
Did you vote in the Primary Election?
∫ Yes, by mail.
∫ Yes, early
∫ Yes, day of
∫ No, I did not

By NICOLAS RATMIROFF
Whether you are a parent, a teacher or a member of the community, we all want to ensure that the children in our neighborhoods are safe, healthy and have a c c e s s t o t h e
y
deserve The child labor protections established in 1938 by the Fair Labor Standards Act were designed to ensure just that that children have safe, healthy jobs that do not stand in the way of their educational opportunities At the U S Department of L
Division, we are d e d t o
a
n g t h protections a reali for the young peo ple in our community
H e r e i n
Florida, a recent U . S . D e p
t m e n t of Labor investiga tion found five sk i
children under age 16 to work longer hours than legally allowed

Unfortunately, cases like our
Vote for climate
To the editor:
For the record, last year 2023 is now officially the hottest year on planet earth since record keeping began in 1850 The warmest day on earth was July 22, 2024 Hurricane Ian, which hit
S
storm surge since 1873, resulted in $112 billion dollars in damage While there are still people reading this that believe climate change is a hoax, or a cycle, or simply overblown, there is a very powerful group of people who disagree. They are called actuaries and they work for the insurance industry
Florida gets hit by approximately 40% of all hurricanes that land in the United States With the mid-Atlantic experiencing the warmest ocean waters ever recorded and storm after storm
s
know these number-crunching accountants are paying attention Large reinsurance firms, such as Munich Re or Lloyds of London that cover the losses of thousands of smaller insurance companies, are raising their rates with every degree of warming They are in the insurance business to make money and storms like Ian, Debbie and the next big one scare the hell out of them
Which brings us to politics While there are still plenty of climate change deniers out there in Congress or running for office, they are not on your side Florida already leads the nation in insurance costs with a projected average cost in 2024 of $11,759 annually. Several Florida insurers have already requested a 50% increase for 2025 If you vote for candidates who reject the very idea of climate change you are, in essence, voting for higher insurance premiums Drill baby drill might mean
Florida investigaremind us that egal child labor is not a thing of the p
years, the Wage a n d H o u r Division has seen a troubling rise in hild labor viola-
try In fiscal year
5,800 children employed illegally, an 88% increase since 2019
Employers were assessed more
your gas prices drop a few dollars in the short term, but don’t you think that paying $15,000 to 17,000 a year for your home insurance policies is a far bigger problem? That’s why you should make sure your candidate not only believes in climate change, but that they are willi n g t o d o
Otherwise, drop your coverage and risk everything you have in an overheated world Good luck with that one Charles Sobczak Sanibel
The Island Reporter published an article in its Aug 21, 2024, issue titled the “City's planning commission signs off on new Bailey's store ” Yea! Whoopee! While we wait for the new, bigger and better Bailey's to arrive at their old Periwinkle Way and Tarpon Bay Road location, we can enjoy their new “A Bit of Bailey's” at the Rabbit Road Center For many of us Sanibel will never be fully whole again without Bailey's As we used to say, no matter where we might shop, somehow i
Bailey's.”
That being said, what I truly do not u
remarkable progress and improvements made over the last 30 years in printing and publishing, is why the Reporter can't manage to reproduce architectural plans, drawings and photographs that are large enough to be seen by the human eye? I can't even make sense of t
glass!
Judy Hicks Sanibel
from the previous year
Our nation, our state and our communities must do better than that
To combat the problem, the department is actively engaged in a nationwide child labor enforcement and outreach initiative Our top priority is protecting the most vulnerable workers in our country and our state kids We are providing education and training to parents, youth, school officials and employers so that everyone understands the rules and how they can help protect Florida’s youngest workers
But this isn’t just the job of

Although known mainly for his often-controversial political cartoons, our namesake, Jay Norwood “Ding” Darling, was given to flights of whimsy and n
“Vacation is over,” in this one published on Sept. 7, 1926, Oswald’s mother urges him to “come in now and get your hair brushed and your shoes and stockings on,” as school books and a teacher round the corner “Some of your old friends are here to play with you ” The “Ding” Darling Wildlife Society-Friends of the Refuge owns the copyright of the “Ding” Darling cartoons REFUGE/DDWS
verification pur-
be e-
at captivasani-
Reporter reserves the right to edit or reject any submission.


By TIFFANY REPECKI trepecki@breezenewspapers com
The Lee County Board of County Commissioners approved the not-to-exceed millage rates for the Truth in Millage (TRIM) notice and budget hearings for fiscal year 2024-25 at a recent meeting
On July 30, the commissioners voted 40 to adopt a proposed ad valorem maximum millage rate of 3 7623 for the countywide General Revenue, which is equal to the cur-
rent rate and a 0% change.
“This is to set the maximum millage rates for the upcoming fiscal year for property taxes during September,” Assistant County Manager and Chief Financial Officer Peter Winton said
“These rates can be adjusted downward, but cannot go upward,” he added
The motion included the approval of the following proposed non-countywide millages: 0 0693 for the Lee County All
Hazards Unincorporated, which is equal to the current rate and a 0% change; 0 4714 for the Lee County Library Fund, which is equal to the current rate and a 0% change; and 0 8398 for the Lee County Unincorporated MSTU (Municipal Services Taxing Unit), which is equal to the current rate and a 0% change; along with the proposed maximum millage rates for the dependent districts MSTUs
“Most of these that you see are

P
System, the Captiva Memorial Library is offering the following free programming:
Adult programs
∫ Today, Aug 28: Who Ate the Snacks?
(daily during operating hours)
You were invited to the Kenzie family beach trip, but disaster has struck The snacks are gone All that is left is the w h o l e w a t e r m e l o n a n d c o u n t l e
crumbs It is up to you to solve the mystery Sleuth around the library to interview each family member and figure out

who took the snacks
∫ Aug 30: Who Ate the Snacks?
(daily during operating hours)
You were invited to the Kenzie family beach trip, but disaster has struck The snacks are gone All that is left is the w h o l
crumbs. It is up to you to solve the mys-
tery Sleuth around the library to interview each family member and figure out who took the snacks
The library is open on Mondays, Wednesdays and Fridays from 10 a m to 12:30 p m and 1 to 4 p m It will be closed on Sept 2 in observance of Labor Day
For more information about a program or to register, call 239-533-4890. Download books, stream video and o t h e r o n l i n e c o n t e n t a t w w w l e e l ibrary net
The Captiva Memorial Library is at 11560 Chapin Lane, Captiva
Municipal Services Taxing Units, where neighborhoods agree to tax themselves for things such as lighting, security, landscaping, boat ramps, dredging, et cetera,” Winton said
Commissioner Brian Hamman was absent for the meeting
The millage rates can be lowered during the upcoming budget process but not raised
The budget hearings will be held on Sept 3 and Sept 17 at 5:05 p m
By TIFFANY REPECKI trepecki@breezenewspapers
overview of the proposed general budget for the 2024-25 fiscal year from staff during a recen budget workshop
On Aug 22, Executive D

gave a presentation on the projected budget numbers for the upcoming year and options for the commissioners to consider for the millage rate at the budget hearings The first hearing is tentatively planned for Sept 9 at 5:01 p m
He opened with an overview of the island's property values and CEPD's
For
$1,517,100,899 estimated for next year the
rate is 0 3511 and
Most Lee County administrative operations will be closed on Sept. 2 in observance of Labor Day
The county’s holiday schedule adjustments are as follows:
∫ Domestic Animal Ser vices
L e e C o u n t y D o m e s t i c A n i m a l Services, at 5600 Banner Drive, Fort Myers, will be closed on Sept 2 It will resume regular business hours on Sept 3
∫ LeeTran
L e e T r a n w i l l n o t r u n b u s , t r o l l e y , ULTRA on-demand or paratransit service on Sept 2 Services will resume on Sept 3 Route schedules and maps are available at www rideleetran com
See HOLIDAY, page 7
Munt reported that the district's debt cap is estimated at $45 million
“With roughly $13 million remaining on previous beach nourishment, and nearly $27 million forecasted for next year's beach nourishment, the CEPD is nearing the maximum indebtedness cap,” staff noted “This model of project funding is unsustainable continuing forward We must carefully explore an increase in our annual ad valorem taxes to build our project fund treasury ”
In discussing the General Fund, Munt explained that the current millage rate of 0 3511 raised $485,800 in revenue He outlined the following estimated rates and revenues for 2024-25:
∫ Rollback rate of 0 3160: $475,800 in revenue
∫ Rate of 0.3318: $495,000 in revenue (requires simple majority vote)
∫ Rate of 0 3650: $543,000 in revenue (requires two-thirds vote)
∫ Rate of 0 5000: $735,000 in revenue (requires unanimous vote)
∫ Rate of 1 0000: $1,455,000 in revenue (requires
∫ Parks & Recreation
Lee County Parks & Recreation offices and recreation centers will be closed on Sept 2 and will reopen on Sept 3 Parks, beaches, pools and preserves will remain open on Sept 2 For a list of open locat i o n s , h
www leeparks org
remember that no alcohol is permitted in county parks I t
unanimous vote)
Munt provided a breakdown of the projected expenses for the upcoming year, to include: $113,500 for admin, up from $98,500 budgeted for 2023-24 which encompasses advertising, bank service charges, board meeting expenses, dues and subscriptions, insurance, office expense, postage, rent expense, repairs, telephone, travel and conferences, utilities, and website and computer maintenance; $161,000 for wages, up from $151,000 budgeted for 2023-24 which entails gross wages, and payroll taxes and fees; and $41,500 for professional fees, up from $35,000 budgeted for 2023-24
Based on the total expenditures, including a proposed transfer to capital projects ranging from $84,450 to $1,050,000, he outlined the following net incomes for each of the millage rates:
∫ Rollback rate of 0 3160: $68,850 ($84,450 transfer)
∫ Rate of 0 3318: $72,500 ($100,000 transfer)
∫ Rate of 0 3650: $70,500 ($150,000 transfer)
∫ Rate of 0 5000: $72,500 ($340,000 transfer)
People launching boats, kayaks or other watercraft at county facilities in the greater Pine Island area should be aware that construction is also underway on the Little Pine Island Bridge. The FDOT states that work on the bridge, which is on the west side of Matlacha, will continue through the holiday weekend, so motorists and boaters
∫ Rate of 1 0000: $72,500 ($1,050,000 transfer)
In addition, Munt provided an overview of the proposed capital budget for 2024-25.
Without calculating in the possible General Fund
includes: local, state and federal grants; special assessment; parking fees; interest; and other
For the upcoming budget year, expenses are projected to be $31,376,541 and include line items for the following: admin, parking lot, wages, professional fees, projects and debt service
To view the presentation, visit this article online for free at http://www captivasanibel com/
∫ Munt reported that Treasurer Dick Pyle recently resigned from the commission
Staff have opened the application process for interested individuals
The intent is to have the commissioners make the appointment in September
are asked to use caution in the area
Solid Waste
Garbage, recycling and yard waste collections in unincorporated Lee County, city of Bonita Springs, village of Estero and town of Fort Myers Beach will take place one day after the regularly scheduled collection day following the holiday If the regular collection day is Sept. 2, the truck will pick up material on Sept 3 Regularly scheduled pickups on Sept 3 will occur on Sept 4, and so on through
Sept 7 Regular collection schedules will resume on Sept 9
Lee County Solid Waste facilities and offices will be closed on Sept 2 It includes operations at the: Household Chemical Waste Collection Facility, at 6441 Topaz Court, Fort Myers; Resource Recovery Facility on Buckingham Road; and Lee/Hendry Regional Solid Waste Disposal Facility. Residents are urged to recycle plastic, metal and glass containers from their holiday activities
By MEGHAN BRADBURY news@breezenewspapers com
The School District of Lee County co tinues to hone its safety measures to b compliant with House Bill 1473 the Safety Bill
Parents and staff received an email on Aug. 5 informing them of the safety measures the district will make for the Safety Bill, which was recently signe into law by Gov Ron DeSantis
The email stated that “all school c rooms and other instructional spaces mus ly and conspicuously mark the safest areas in each classroom or other instructional space where students must shelter in place during an emergency ”

“Our safety and security team joined school administrators and school resource officers to survey every campus over the summer to determine and mark the safe area in all instructional space,” district spokesperson Rob
r said “As required by law, each area is rly identified Students will be advised of e location and practice going to that area uring some emergency drills ”
In addition, the bill requires schools to provide instruction on the use and misuse of FortifyFL the state mobile suspicious activity reporting tool
The FortifyFL app was created and unded by the Legislature in 2018 as part the Marjory Stoneman Douglas High ool Public Safety Act. Spicker said stuave been using the suspicious activity reporting tool for years
“Tips are reported to local law enforcement and school administrators for immediate investigation,” he said “What is new this year is that we must advise students within the first 10 days of school about the app and the consequences for reporting false information or fake threats ”
The app is on each student’s Chromebook Tit can also be downloaded on their device or reported through the FortifyFL website Spicker said students can also report suspicious or concerning behavior to their teacher, administrator SRO or CrimeStoppers
“The School District of Lee County was in compliance with many of the features of HB 1473 before it passed, so the new law codifies much of what we were already doing We will continue to keep all doors locked, gates secured, expand the guardian program and implement our layers of security so that our students and staff are as safe as possible during the school day,” he said.
“We continually look for ways to protect our students and staff and when new technology is available, we determine if it will work for us We are also proud to be the only district in Florida that uses OPENGATE weapon detection systems at every school and are focused on refining the procedures this year to enhance the protection they provide to our schools ”
By MEGHAN BRADBURY news@breezenewspapers
com
The Lee County School Board was recently briefed on some new awareness added to the 2024-25 school year comprehensive health instructional materials, which will be voted on next month
Chief Academic Officer Dr Nathan Shaker said those include awareness of the benefits of sexual abstinence as the expected standard and the consequences of teenage pregnancy for grades 6-12 and teen dating violence for those in grades 7-12
Other additional new items include an update on certain health and physical education courses to include revised state acad e m i c s t a n d a r d s f o r h e a l t h e d u c a t i o n , which were approved in July of 2023 He said the updated courses will include topics such as the effects of social media and
resiliency education.
“These courses become effective for the 2024-2025 school year,” Shaker said
In regard to health instructional materials, there has been a delay in adoption until the 2025-26 year
Curriculum & Instruction Director Lori Houchin said the material used for kindergarten through fifth grade will include S a f e r , S m a r t e r K i d s S c o p e a n d
Sequence and a Safety Rules Video for kindergarten lesson one
“We have our district-created materials for substance abuse and use,” she said Parent opt out forms were also discussed, which will be sent through school messenger
“At the beginning of every school year we send a notice to parents, in addition the opt out forms, letting them know about
the required health education,” Houchin said
The middle school health instructional materials include Glencoe Teen Health, 2 0 1 4 e d i t i o n , a n d G l e n c o e F l o r i d a
Health, 2014 edition for high school “ M i d d l e s c h o o l , w e a r e m a k i n g a change In the past, I would say seven years, the district required that all sixthgraders take health With the changes of standards, we were missing the teen dating violence,” she said
Houchin said there are now a variety of w a y s t o c o v e r h e a l t h T h o s e o p t i o n s include a semester of health for sixth grade, seventh grade or eighth grade; peer counseling for the entire year; embedded into a semester of a PE course; or embedded in a science course
High school remains the same with one
credit of physical education to include the integration of health There are waiver options two years of JV or varsity sport, two years of JROTC, one semester o f m a r c
r International Baccalaureate or Cambridge A d v
Program
Parents are also offered an opt out form for reproductive health and any disease
“We follow our scope and sequence and send out again two weeks prior to hitting those standards,” she said.
Students who have parents that opt out are not penalized, as they will receive an alternative assignment
“There are plenty of other standards plethora of other standards to where they can receive grades and a full credit,” Houchin said

On Aug 19, Billy's Rentals on Sanibel marked 25 years of operation under owner Billy Kirkland
It held a celebration the prior day to recognize the milestone. Kirkland thanked Bill LeJeune, of the Pfeifer Realty Group, for cooking burgers and hotdogs alongside employee Vitto Rodino, as well as Max and Bridget Kolshak for their time and ice cream from The Magic Bus Ice Cream & Caffeine
Billy's Rentals reported that the story of the business began with Kirkland, a U S Army veteran and Georgia native He got his start in Lee County 40-plus years ago with a beach chair and sailboat rental operation on Fort Myers Beach
In 1985, Kirkland moved to Sanibel and began working with island resorts to rent chairs, bicycles and sailboats. The desire to “hang his own sign” led him to the creation of Billy's Rentals on Periwinkle Way in 1999 Providing surreys, beach cruisers, wheelchair bikes and beach equipment, then adding a delivery and pick-up service and website for internet ordering, customers could have bicycles waiting for them when they arrived at their hotel
In 2004, when Hurricane Charley hit, Kirkland helped the community by starting Billy's Tractor Service, offering brush removal and maintenance of parking lots and private roads
Seeing a need for new bike sales, bicycle repair service and high-end rentals, he and his wife, Salli, went on to open Billy's Bike Shop on Sanibel in 2005
In 2014, Kirkland opened a second rental location in the Bailey's Shopping Center on the island Billy's at Baileys then went on to house Billy's Bike Shop at


By STAFF REPORT trepecki@breezenewspapers com
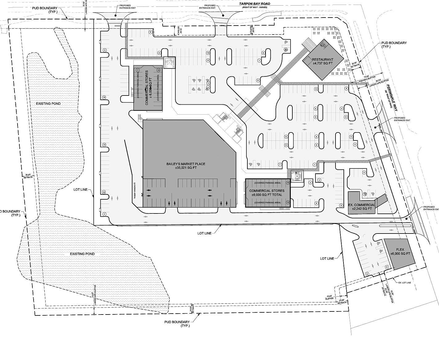
Bailey's General Store on Sanibel reported that its rebuilding project continues to move forward
At the Sanibel City Council's meeting on July 16, the development permit for the Bailey's Shopping Center, which includes the store, was approved The Bailey family explained that it is a culmination of their years-long planning and preparation efforts to rebuild responsibly and resiliently for the future
“It is important to the Bailey family to carefully reconstruct with the community in mind because all of the people that will once again visit Bailey's center in the future,” the family shared “This approval is well-timed for the 125th anniversary of Bailey's General Store in 2024 ”
To help the public understand the future plans for the store, the family provided a short history
“Originally located on Matthews' Wharf in San Carlos Bay in 1899, Bailey's was the sole resource for all goods and shipping, as well as the reception site for visitors and residents of Sanibel and Captiva as they arrived on the ferry,” they shared “After the first building rendition of Bailey's was blown away by an early 20th century hurricane, Frank P Bailey recovered only the
Bay ”
The family reported that he
Sanibel Packing Company on the land next to where the wharf was located, which was
time. The second iteration of Bailey's and “new store,” as he called it, was rebuilt overlooking the bay The third iteration was built at Tarpon
Way in order to move inland and improve storm resiliency
“When that building replaced the second store, it was relocated to the Sanibel Historical Village and Museum, where it resides today,” they shared “Interestingly, the newly renovated post-Hurricane Ian exhibits are worth a stop for history lovers.”
As for what visitors to the future shopping center can expect, the family explained that the biggest change will be the raised buildings, minus the historic service station After Ian flooded the store, their biggest disappointment was their inability to serve the community in the immediate aftermath The layout of the center will shift the main building to the southeast corner, which provides room for enhanced parking and functionality, along with a porte-coch re to load groceries in inclement weather
The public will access the businesses via elevator or stair Electric vehicle charging will also return
See UPDATE, page 10



SANCAP
City of Sanibel, SanCap Chamber and Lee County Visitor & Convention Bureau representatives cheer the Aug. 19 unveiling of a new mural on the side of the chamber's Visitor Center on Sanibel.
c e p t w i t h a p p r o v a l f r o m t h e c h a m b e r a n d i n p a r t n e r s h i p w i t h t h e F o r t M y e r s
M u r a l S o c i e t y P i n e I s l a n d a r t i s t
R o l a n d R u o c c o p a i n t e d t h e s c e n e
B i l l y ’ s B i k e S h o p o n S a n i b e l d o n a t e d
The Zonta Foundation of Southwest F l o r i d a a n d Z o n t a C l u b o
Captiva are taking applications from non-
empowerment of women and girls for its 2025 grants
The club reported that the foundation strives to focus on supporting women to claim their rights as individuals through training, education and affordable housing
“Applications must focus on one or more of these aspects of empowering women and girls,” Grants Co-chair Pam Eccles said
“We know that many wonderful organizations are doing amazing work to promote the welfare of women and girls, and Zonta wants to recognize and support this work,” Grants Co-chair Diane Chesley added
Previous recipients and new applicants are encouraged to request funding for ongoing or new projects The application requires describing in full the project for which the applicant is seeking the funds
Zonta is non-sectarian and cannot consider applications from faith-based or religious organizations

The deadline to apply is Aug 30
The grants will be awarded in January
For more information or to apply, visit h t t p s :
“2025 Grant Application ”
For questions, contact Chesley at dhche s l e y @
pam901@aol com
Zonta Club of Sanibel-Captiva is part of Zonta International, a global organization of professionals empowering women through service and advocacy. Similarly, it focuses on education, economic selfsufficiency, safety, and health for women
https://zontasancap org/
San Cap Community Bank hires King
i n c o m m u n i t i e s
t h r o u g h o u t t h e c o u n t y “ T h e m u r a l s i d e n t i f y p l a c e s t h r o u g h o u t o u r d e s t i n a t i o n a n d w h a t ’ s s p e c i a l a b o u t t h e m , ” V C B P r o d u c t
D e v e l o p m e n t M a n a g e r N a n c y
M a c P h e e s a i d “ W e w a n t t o t o u c h e v e r y c o m m u n i t y , a n d w e h a v e 1 0
E a c h m u r a l i s i n t e r a c t i v e , a n d p e o p l e
c a n h a v e t h e i r p i c t u r e s t a k e n w i t h i t ”
T h e c h a m b e r m u r a l d e p i c t s a b i c y -
c l e p a r k e d a t a b e a c h a c c e s s o n t h e i s l a n d s w i t h t h e S a n i b e l L i g h t h o u s e ,
w h i c h c e l e b r a t e d i t s 1 4 0 t h a n n i v e r -
s a r y t h e f o l l o w i n g d a y , i n t h e b a c k -
g r o u n d T h e V C B d e v e l o p e d t h e c o n -
From page 8
In addition to Bailey's General Store, the center will offer tenant spaces for restaurants, retail and other services for the island community The family reported that while some previous businesses will be returning, other favorite restaurants and retailers from the center will not be able to return to operation
The family offered answers to some of the most common questions:
∫ Will it be elevated?
Yes, it will be elevated to help avoid future flooding and ensure swift return to business after hurricanes
∫ Will the outparcel restaurant space be rebuilt?
Yes, the former tenant has indicated they will not return.
the location in the new year of 2021 Billy's Rentals has weathered many challenges over the last 25 years, including red tide outbreaks, hurricanes, oil spills and COVID Kirkland has won several awards over the years He is the recipient of multiple
a b i c y c l e t o m o u n t n e x t t o t h e m u r a l f o r p h o t o o p s “ W e w e r e t h r i l l e d w h e n t h e V C B
c a m e t o u s w i t h a p r o p o s a l t o b e c o m e
p a r t o f i t s d y n a m i c m u r a l p r o j e c t , ”
c h a m b e r P r e s i d e n t a n d C h i e f
E x e c u t i v e O f f i c e r J o h n L a i s a i d “ T h e
f i n i s h e d p r o d u c t t r u l y c a p t u r e s t h e
c h a r a c t e r o f t h e i s l a n d s a n d a d d s a n
a t t r a c t i o n t o a f o r m e r l y b l a n k w a l l ” “ W e w e r e l o o k i n g f o r a l l m u r a l s t o
b e i n a n a r e a w h e r e t h e r e i s g o o d f o o t
t r a f f i c , ”
∫ When will Bailey's reopen?
As soon as we can rebuild, rehire and reopen Likely still years away
Recognizing that the project will be one of the largest rebuilds on Sanibel and is anticipated to take about two years, the
Commission for
smaller temporary location at the Rabbit Road Center on Rabbit
space for the needs of a grocery store
The tentative opening date is late this year or early next year
A Bit of Bailey's will offer many of the same products available at the Bailey fami
From page 8
Community Business Award in
and the Florida Senate Medal of Excellence
Community.
Community Bank as a teller at the McGregor Branch in Fort Myers
She is responsible for assisting customers with personal and business banking transactions
King has over 25 years of banking experience and previously worked for the bank as a teller supervisor at the McGregor Branch
See BUSINESS NOTES, page 20

Susan King
Women's Association is taking applications for its 2024 Scholarship Program
woman who lives on, works on or supports Sanibel-Captiva and is a U S citi-
Store The family noted that the larger footprint will provide for expanded fresh offerings However, without a large commercial kitchen and bakery, rehired staff will endeavor to provide as many of the products possible with the available space and equipment
“Customers can expect to see some of their favorite products, including fresh guacamole and salsa, chicken salad and other deli salads, fresh produce and prepared fruits and veggies, hot meals, and the return of small-scale catering,” they shared “The entirety of offerings will include the famed coffee bar, bakery, full service deli, fresh produce, butcher shop, s e a f o o d m a r k e t , d r y g o o d
wine.”
In 2023, the Kirklands received the SanCap Chamber's Citizen of the Year Award Post-Hurricane Ian, they opened their bike inventory for free use and helped islanders and businesses in countless ways Kirkland's motto is “Give back to the community you live and work in.” He
zen Recipients can use the scholarship
advancement
“Supporting women in the pursuit of continuing education and career advanceSee SCBWA SCHOLARSHIP, page 21
The family thanked its partners to date
Benchmark General Contractors, GMA A r c
Engineering, Delisi Land Use Planning & Water Policy, Coastal Vista Landscape Architects and UNFI
“The temporary loss of Bailey's has made such an impact on the community that WGCU created a documentary to tell the story of the island recovery through the lens of the historic store,” they added The premiere will take place on Oct 21 at 6 p m at BIG ARTS on Sanibel
cjohnson@baileys-sanibel com
Rehabilitation of Wildlife, F I S H of Sanibel-Captiva, The Community House and other causes Billy's Rentals is at 1470 Periwinkle Way, Sanibel


SANIBEL-CAPTIVA CONSERVATION FOUNDATION
Sanderling range map.
This summer, the Sanibel-Captiva Conservation Foundation shorebird team re-sighted a sanderling, known as 4MC, that was originally banded in Ica, Peru, in 2018 It was the second time that the SCCF observed the bird on Sanibel, the first being in 2022
The SCCF reported that 4MC was likely stopping by on the way to its wintering grounds in Peru, refueling during its long migration from arctic Canada Sanderlings’ migrations can be anywhere from 1,800 to over 6,000 miles, making stopover sites like Sanibel crucially important habitats
“Just like humans on a long road trip, migratory shorebirds need to stop once in a while to refuel their energy reserves,” SCCF shorebird biologist Audrey Albrecht said “We also have resident wintering sanderlings on Sanibel that stop their migration route once reaching our shores ”
I t w a s b a n d e d b y r e s e a r c h e r s a t t h e P a r a c a s Shorebird Project, which has been banding shorebirds at the Paracas National Reserve in Peru for eight years. The project has banded thousands of shorebirds, including sanderlings, semipalmated sandpipers and semipalmated plovers, which can all be found in Southwest Florida
The SCCF reported that sharing its re-sightings helps give the project insight into the migration patterns of individual banded birds
The “Ding” Darling Wildlife Society-Friends of the Refuge reported that Ashley McGovern is stepping up from her position as the Jenni & Kyle Foundation Wildlife on Wheels education intern to full-time education staffer for the J N “Ding” Darling National Wildlife Refuge on Sanibel
She will continue on a permanent basis as assistant u r b a n e d u c
Melissa Maher, teaching Title I students on WoW visits
See WOW INTERN, page 13
Foundation reported that water quality is directly tied to the health of the area's economies, as the Preserving Paradise participants explored in the program's second session on Aug 20 at the Marriott Sanibel Harbour Resort & Spa in Fort Myers
From personal stories about the 2018 red tide crisis, to panels on Everglades restoration and water quality advocacy on Capitol Hill, participants came out of the day with a stronger passion to protect the local coastal ecosystems for generations to come

Bailey’s General Store; fishing guide Ozzie Lessinger; Bill Robinson, with the Sanibel & Captiva Islands Association of Realtors; and Bill Waichulis, with the Pink Shell Beach Resort and Boykin Management.
The Everglades and economics panel included: SCCF
Everglades Foundation Chief Economist Paul Hindsley; and Lee Health infectious disease specialist MaryBeth Saunders
New perspectives were shared about the impact of water quality on human health, the importance of coalition building, how to work against competing interests, and solutions to ensure progress continues
Before leaving, participants, leading organizations and their guests enjoyed an evening dinner cruise aboard the Sanibel Harbour Princess
between the SanCap Chamber, SCCF, Captains for Clean Water and The Everglades Foundation to immerse business leaders in water quality advocacy through classroom sessions and boots-on-the-ground field experiences
For more information about the program, visit preservingparadise org

Conservation Foundation reported that as of Aug 21, loggerhead sea
Sanibel and Captiva this season and 13,940 loggerhead hatchlings had emerged.
Sea turtle nesting season lasts through Oct 31 Call the SCCF Sea Turtle Hotline at 978-7283663 to report stranded turtles or issues related to nests, lighting, beach furniture or holes on the beach.

COASTAL WATCH
Initiative planted hundreds of mangrove propagules on Aug. 9 at the Gretchen C.
Valade Preserve on Sanibel Thanks to their hard work, it is one step closer to restoring the property to its full potential

From page 12
in the Tice community and greater area o
District of Lee County
“Ashley has become an invaluable part of the education team since she joined us for the 2023-2024 school year,” Maher said “She excels at planning curriculum to meet STEM and Sunshine State standards and hands-on,
through middle school grades to nature and science concepts She has helped create countless conservation stewards of the future ”
A Johnston, Iowa, native and gradua
McGovern majored in marine biology with minors in environmental science
Ashley McGovern shows students a smalltooth sawfish rostrum replica inside the J.N. “Ding” Darling National Wildlife Refuge's Wildlife on Wheels mobile classroom
REFUGE/DDWS
and criminal justice She worked previ-
Elementary School students in Iowa as a substitute associate for students with disabilities or in need of special accommodations
“I am thrilled to be able to continue working with students here and getting them excited about science,” McGovern said “It’s such a joy to see that spark in children’s eyes when they get to experience the wonder of nature for often the first time ”
The DDWS fully funds McGovern and Maher's positions, while supporting the maintenance and operation of WoW, a mobile outreach classroom that first hit the road in December of 2020

As Sanibel continues to recover from Hurricane Ian, the Sanibel Police Department is committed to keeping the community safe and secure To support that effort, a weekly police blotter will be issued on Tuesday that will include real time information about law enforcement response to criminal activity
∫ On Aug 14, a traffic stop was initiated on a vehicle for excessive speed. The driver was subsequently issued a citation for speeding and notice to appear for never having a driver’s license issued
∫ On Aug 15, a traffic stop was initiated on a vehicle for excessive speed The driver was subsequently issued a citation for speeding and notice to appear for never having a driver’s license issued
∫ On Aug 18, a traffic stop was initiated on a vehicle for excessive speed A records check indicated the driver’s license was suspended and there was a seize tag order on the vehicle The driver was subsequently issued citations for unlawful speed, failure to carry and exhibit registration and unknowingly driving with a suspended license The license plate was seized and the vehicle towed from the scene
∫ The SPD is investigating a vandalism incident that occurred on Aug 4 at The Lighthouse Resort & Club, at 210 Periwinkle Way Surveillance footage of three individuals trespassing on the property has been posted to its Facebook page If anyone has information regarding the case or the identity of the individuals, contact the SPD using one of the methods at the bottom of this blotter
From Aug 13-19:
∫ Alarm calls (business and residential): 8
∫ 911 non-emergency calls: 13
∫ Traffic crashes: 2
∫ Radar details: 45
∫ Traffic stops: 31
Citations issued: 15
Written warnings issued: 0
Verbal warnings issued: 20
∫ Residential area checks: 299
∫ Business area checks: 152
∫ Total area checks: 820
∫ Reported burglaries: 3
∫ Reported thefts: 1
∫ Total CAD calls: 1,069
August 2024 to date:
∫ Alarm calls (business and residential): 32
∫ Non-emergency calls: 57
∫ Traffic crashes: 3
∫ Radar details: 102
∫ Traffic stops: 110
Citations issued: 49
Written warnings issued: 0
Verbal warnings issued: 69
∫ Residential area checks: 809
∫ Business area checks: 480
∫ Total area checks: 2,246
∫ Reported burglaries: 4
∫ Reported thefts: 1
∫ Total CAD calls: 2,929
Impor tant reminders
Roadside parking is not allowed on Sanibel and is enforceable with a $150 fine
When leaving Sanibel, motorists are encouraged to
See BLOTTER, page 15


Crafternoon will take place today, Aug 28, and Sept 4 at the
The Sanibel Public Library provides a variety of programming for adults and children.
Crafternoon will be held today, Aug 28, from 3 to 4:30 p m The project will be “Bookmarks ” Open to ages 3 and older, make a work of art A variety of craft supplies will be available, along with examples and guidance
On Aug 30, Family Storytime for ages 5 and under will take place from 10:30 to 11 a.m. Sing, read, question and move around during the stories, followed by early literacy centers of play to flex minds, motor skills and creativity The program will include an art/craft center
Offices will be closed on Sept 2 in observance of Labor
They will resume regular operating hours on Sept 3 For more
From page 14
Baby & Toddler Storytime and Playdate will be held on Sept 3 from 10:30 to 11:30 a m Open to ages 3 and under, babies and their caregivers will take part in a short story time, sensory play, literacy activities and more
On Sept 4, Crafternoon will take place from 3 to 4:30 p.m. The project will be “Clay Pots Decorated with Shells ” Open to ages 3 and older, make a work of art A variety of craft supplies will be available, along with examples and guidance
For the most up-to-date information, visit the calendar at https://sanlib org/
Pick up an Adult Summer Bingo card and keep track of read books from now through Aug 31 Open to ages 16 and older, those who complete a Bingo on their card will be entered into a lottery for a chance to win a Sanibel Public Library Book Bundle, which will include a library
From page 14
tote bag filled with themed books
Participants must turn in their card by Aug 31 to be entered into the raffle
Library cards are available to residents of Sanibel and Lee County at no charge Visitor library cards are available for a $10 annual fee
The library is open on Mondays and Thursdays from 9 a m to 8 p m , Tuesdays, Wednesdays and Fridays from 9 a m to 5 p m and Saturdays from 9 a m to 1 p m Beginning on Sept 1, it will be open on Mondays and Thursdays from 9 a m t o 8 p m
Wednesdays, Fridays and Saturdays from 9 a m to 5 p m The library will be closed on Sept 2 in observance of Labor Day
For more information, call 2394 7 2 - 2 4 8 3 o r v
https://sanlib org/
The Sanibel Public Library is at 770 Dunlop Road, Sanibel Library
travel east on Periwinkle Way In order to minimize the number of vehicles driving through residential neighborhoods and increase traffic flow, priority is being
g i v e n t o v e h i c l e s e a s t b o u n d o n
Periwinkle Motorists using Bailey Road
s o u t h b o u n d , L i n d g r e n n o r t h b o u n d a n d
Periwinkle westbound may experience
a d d i t i o n a l d e l a y s a s t r a f f i c f l o w s a r e adjusted for efficiency
T

Recreation Center and are valid from the date of purchase through Nov. 30. The 2023 permits have expired and are no longer valid
I
Ramp:
∫ Parking and boat launching fee is $40 per day
∫ P
weekends and holidays is with AC/BC permit only
∫ Commercial use is prohibited

∫ Fines for violations at the boat ramp are $500. Solicitation is not allowed on Sanibel Please share any photos of solicitation hang tags to police@mysanibel com or use Tip411
Repor ting suspicious activity
Anonymous tips regarding crimes or suspicious activity can be submitted via Tip411:
∫ Text the keyword SANIBEL then your tip to 847411 ∫ W
https://www tip411 com/tips/new?alert g roup id=22450
∫ Use the free “Sanibel PD” app for your Android or iOS device The SPD's non-emergency line is 239472-3111
https://www facebook com/SanibelPolice


T h e N a t i o n a l O c e a n i c a n d A t m o s p h e r i c
Association’s (NOAA) Climate Prediction Center recently announced a shift in the predicted onset of the La Niña weather pattern this year, pushing its anticipated arrival later than previously expected
T h e S a n i b e l - C a p t i v a C o n s e r v a t i o n F o u n d a t i o n reported that while earlier forecasting called for an onset during the summer months, more recent predictions delay the likelihood of its arrival until early fall
La Niña exists as one of three possible ENSO (El Nino-Southern Oscillation) states, which are recurring climate patterns causing relatively predictable shifts in water temperatures, rainfall and weather across the tropics The three include El Niña, La Niña, and Neutral the current state
Current NOAA models now estimate a 66% chance of La Niña emergence between September through November, with a 74% chance of the condit i o n s p e r s i s t i n g t h r o u g h t h e w i n t e r m o n t h s o f November through January
“While a later arrival may delay the onset of certain environmental impacts associated with La Niña, such as intensified storms due to less wind shear, it will not eliminate the chances of Southwest Florida feeling those effects upon the weather pattern’s arrival,” SCCF Policy Associate Allie Pecenka
Trends of warming waters in the Gulf of Mexico and Atlantic also increase the likelihood of more powerful storms, leading to predictions for an extremely active hurricane season if coupled with the stormstrengthening nature of La Niña
Additional impacts of La Niña include a dry, warmer-than-average winter in the southern U S and a wet, colder-than-average winter up north
“The continued collection and analysis of climate, weather and water quality data by groups like NOAA and SCCF’s RECON network help provide the scientific community information to inform accurate predictions for Southwest Florida and its environment,” she said.


Tarpon Bay Explorers reported that it will close for September, with plans to reopen on Oct 2 The closure will include the Tarpon Bay recreational area, including the ramp “September is generally a very slow time for us and the island in general during a normal year A majority of hotels, condos and resorts are still recovering, so we anticipate demand will be lower than usual and justify a temporary closure until we begin to see snowbirds return and the holidays near,” managing partner Wendy Schnapp said. “We hope folks are able to squeeze in a
National Wildlife Refuge's concession, TBE also offers activities like kayak and paddlecraft rentals and guided tours, along with a nature-themed gift shop Hours are Mondays, Wednesdays, Fridays and Saturdays from 8 a m to 5 p m , with rentals stopping at 3 p m For more information or reservations, visit www tarponbayexplorers com or call 239-472-8900 TBE is at 900 Tarpon Bay Road, Sanibel

T h e J N
Refuge reported that the gate times for Wildlife Drive will change on Sept 1 to 7 a m through 7 p m It is open every day except for Fridays, regardless of holidays Admission is $10 for vehicles and $1 for hikers and bicyclists The refuge is at 1 Wildlife Drive, Sanibel
The Dunes Golf & Tennis Club will host a Labor Day Golf Scramble on Sept 2 at 8:30 a m at 949 Sand Castle Road, Sanibel The four-player scramble will feature a shotgun start, along with gross and net prizes Cost is $65 for members and $80 for non-members and includes golf, lunch and prizes For more informa-


From page 1
Council From page 1
c
assessment to fund the dredging for the Shell Harbor and Sanibel Estates canal area The proposal was a $90,000 assessment for the Sanibel Marina (40%) and $60,750 assessment for property owners (27%) at $125 per parcel, along with $74,250 paid by the city (33%) The assessment included funding to support the annual project, plus repay the General Fund for a $30,000 loan that was needed to dredge in fiscal year 2024
The council again voted 5-0 on a resolution to set and approve the rate of
voted 5-0 on a second resolution as the Equalization Board to levy those Causeway, Periwinkle intersection evaluation
Also at the meeting, city consultant Kimley-Horn gave a presentation on its “Causeway Boulevard at Periwinkle Way Intersection Evaluation ” City staff noted that no design solutions had been developed as of the council meeting as the meeting was the last element of the predesign, public engagement process Once the process is concluded, the firm will develop two alternative designs for consideration.
Bill Waddill, of Kimley-Horn, opened the presentation by explaining that the purpose is to analyze the traffic issues and congestion caused by the intersection and o f f e r r e c o m m
ments
Ian Rairden spoke about the firm's data collection, which included:
∫ Counting traffic at five intersections along Periwinkle (Causeway, Casa Ybel Road, Donax Street, Bailey Road and East Gulf Drive)
∫ C ap tu r in g imp acts o f C au s ew ay intersection on adjacent intersections
∫ Daily counts along Causeway bridge
They discussed the firm's signal warr an t an aly s is an d I n ter s ectio n C o n tr o l Evaluation (ICE), which found that traffic volumes do not support installing a traffic signal as the recommended solution
Other intersection types to be analyzed with ICE included:

fatal/injury crashes and delay; cons are higher cost and right-of-way (ROW)
∫ Median U-turn: Pros are fewer signal phases and conflicts; cons are wide Uturn
∫ Restricted crossing U-turn: Pros are fewer signal phases; cons are wide U-turn and out of direction for through movement
The firm reported that its online survey h
which about two-thirds listed the island as their primary residence About 80% of the
delays Additional feedback has included: frustration, particularly in season, with getting off the island; ensuring that the improvements meet with the island's character; a desire for innovative solutions as
desire to move forward with improvements and to do so quickly
They outlined the following as key design considerations:
∫ Sanibel context
∫ User experience
∫ Traffic operations
∫ Existing right-of-way
∫ Implementation cost
Kimley-Horn also outlined the following next steps and timeline: conceptual

CITY OF SANIBEL
ABOVE: The Sanibel City Council presents state Rep Adam Botana with a key to the city at its meeting on Aug 20 for Botana's work and support on behalf of the island LEFT: The Sanibel City Council presents Florida Senate President Sen Kathleen Passidomo with a key to the city at its meeting on Aug 20 for Passidomo's work and support on behalf of the island.
design alternatives in September, community workshops and feedback in October, Sanibel Planning Commission recommendations in November, and city council approval and final report in December.
To view the presentation, visit this article online for free at http://www captivasanibel com/
∫ The council voted 5-0 to approve an ordinance that amends the Code regarding an automatic speed detection system for the school zone at The Sanibel School
∫ The council voted 5-0 to approve an ordinance that amends the Code regarding buildings and building regulations and m a n d a t o r y i n s p e c t i o n m i l e s t o n e inspection of aging condominium and cooperative buildings
∫ The council voted 5-0 to approve an ordinance that amends the Charter to allow the council greater flexibility in determining interim council appointments and any necessary special election following a vacancy in its membership
∫ CliftonLarsonAllen gave a presentation on the city's fiscal year 2023 Annual Comprehensive Financial Report, which was prepared by the Finance Department The firm reported that its financial statement audit opinion and federal awards and
state projects audit opinion were “unmodified
Chris Kessler said “The highest level of opinion that you can receive.”
∫ The council voted 5-0 on a resolut i o n t o r e a p p o i n t C h r i
D e n i c k , K y l e Sweet and Wendy Walker to three-year terms and to appoint Bernard Arroyo to a one-year term on the Parks & Recreation Advisory Committee The other applic a n
s , L y
n Borror, Jason Cohen, Robert Fodor, Julie Jones, Kerri Maw and Riley Russell
∫ The council voted 5-0 on a resolution to appoint Iris Aloia to the Lee C o u n t y M e t r o p o l i t a
Committee
∫ The council held the first reading for an ordinance to amend the Code regarding e-bikes and Shared Use Path speed limit, relating to certain bicycles, micro-mobility devices, motorized scooters and mopeds The second reading is set for Sept 9 ∫ The council held the first reading for an ordinance to amend the Code regarding conditional use approvals to aid hurricane recovery efforts. The second reading is set for Sept 9
See COUNCIL, page 19

vising those principals, helping those schools and communicating with those schools,” Vilardi said “The hope is to communicate better and build better trust and take action quicker ” The idea is to have a better streamline of communication, as well as helping principals understand the current trends in education, coaching them and becoming a model for newer principals
“The goal for this year increase student achievement, increase trust, accountability and communication,” he said Another goal is closing the achievement gap that
From page 18
∫ T h e c o u n c i l h e l d t h e f i r s t r e a d i n g
f o r a n o r d i n a n c e t o a m e n d t h e C o d e
r e g a r d i n g n o n c o n f o r m i n g u s e s t o
e x t e n d t h e p e r i o d t o r e - e s t a b l i s h n o n -
c o n f o r m i n g u s e s f r o m 1 4 m o n t h s t o 3 6
m o n t h s w h e n a s t a t e o f l o c a l e m e r g e n c y
e x i s t s b e y o n d s i x m o n t h s a n d t o e x t e n d t h e p e r i o d t o r e - e s t a b l i s h n o n c o n f o r m -
i n g s t r u c t u r e s f r o m 1 4 m o n t h s t o 3 6
m o n t h s T h e s e c o n d r e a d i n g i s s e t f o r
S e p t 9
∫ T h e c o u n c i l h e l d t h e f i r s t r e a d i n g
f o r a n o r d i n a n c e t o a m e n d t h e C o d e
r e g a r d i n g l o n g - f o r m a p p l i c a t i o n s t o
s u p p o r t t h e r e b u i l d i n g e f f o r t s o f t h e
c o m m u n i t y b y n o t r e q u i r i n g a l o n g -
f o r m d e v e l o p m e n t p e r m i t f o r c e r t a i n
a p p l i c a t i o n s f o r a d e f i n e d p e r i o d o f t i m e T h e s e c o n d r e a d i n g i s s e t f o r S e p t
9 . ∫ T h e c o u n c i l h e l d t h e f i r s t r e a d i n g
f o r a n o r d i n a n c e t o a m e n d t h e C o d e
r e g a r d i n g w a i v e r s t o s u p p o r t t h e r e b u i l d i n g e f f o r t s o f t h e c o m m u n i t y b y
e x p e d i t i n g t h e r e v i e w o f w a v i e r a p p l i -
c a t i o n s f o r a c e r t a i n p e r i o d o f t i m e
r e l a t e d t o l a w f u l l y e x i s t i n g n o n c o n -
COVID caused Vilardi said the pandemic years really affected those who are in fourth and fifth grade now as they missed some of the foundational years in education. The district is looking at the skills missed and what interventions can be put into place to meet those needs
He said they are looking at every piece of curriculum, so they can increase learning and engagement The district is looking at clientele in each region and gathering information to determine what the curriculum is going to look like
As of Aug 15, Vilardi was able to visit 18 of the 22 schools he oversees 19,256 students He planned on
f o r m
G e n e r a l , T o w n C e n t e r G e n e r a l a n d
T
e
o r S e p t 9 ∫ T h e c o u n c i l h e l d t h e f i r
t h e n u m b e r o f t r u s t e e s t o
visiting the remaining four schools on Aug 16
Every week, he will be in the schools at least two to three times a week. He said the real key is that the schools are closer together and if a problem arises, he is only right up the road
“I saw a lot of kids really happy and teachers happy to be back,” Vilardi said, adding that it was neat to see the engagement in classrooms “There were smiling parents dropping off the kids, too ”
From page 4
C
e g a r d i n g R e s o r t H o u s i n g D i s t r i c t h e i g h t l i m i t a t i o n s t o a d j u s t t h e h e i g h t l i m i t a t i o n s w i t h i n t h e d i s t r i c t r e l a t e d t o u n i f i e d r e s i d e n t i a l h o u s i n g ( c l u s t e r h o u s i n g ) a n d m u l t i f a m i l y h o u s i n g T h e
s e c o n d r e a d i n g i s s e t f o r S e p t 9 ∫ T h e c o u n c i l v o t e d 5 - 0 t o a d v a n c e t o f i r s t r e a d i n g a d r a f t o r d i n a n c e t h a t a m e n d s t h e C o d e r e g a r d i n g t h e c i t y ' s
c o n t r a c t a n d p u r c h a s i n g p o l i c y
∫ T h e c o u n c i l v o t e d 5 - 0 t o a d v a n c e
t o f i r s t r e a d i n g a d r a f t o r d i n a n c e t h a t a m e n d s t h e C o d e r e g a r d i n g t h e G e n e r a l E m p l o y e e P e n s i o n B o a r d b y d e c r e a s i n g

the Department of Labor Everyone involved in a young worker’s life can play a role in keeping children out of harm’s way By staying informed and raising awareness of federal child labor rules against dangerous jobs and excess i v e h o u r s , w e c a n e n s u
a t teenagers’ first jobs are good, safe jobs Positive, age-appropriate work experiences can allow young people to develop skills and learn what it means to be part of the labor force These are the kinds of good jobs that can get young workers on the path to good careers
To be clear: age-appropriate and safe workplace experiences offer teens valu-
able learning opportunities and a chance to earn money Those benefits, however, must never come at the expense of a young person’s education or well-being We call on parents, educators and others concerned about our communities and the future of Florida’s youngest workers to work together to keep teen workers safe We will not allow our economy to b e b u i l t o n t h e b a c k s o f c h i l d r e n Florida is better than that
Nicolas Ratmiroff is district director for the U S Department of Labor's Wage and Hour Division in Tampa

From page 10
TCH, SCA welcome new director
The Community H ous e a n d S a n i b e l C o m m u
A s s o c i a t
n r e c e n t l y announced Emily Ankerson as the new executive director
She will bring her skills in strategic leadership, experience in non-profit growth and brand-building, and a p o s i t i v e a n d c o l l a b o r a t i
e community presence
Ankerson will also strive to grow and foster member relationships and support for TCH

She has served as executive director of the Captiva Civic Association since 2021 and previously worked as an administrator at an arts education non-profit in West Palm Beach
A
Michael's College in Vermont and dedicated the beginning years of her career to education before entering the nonprofit sector
Climate Sur vey quar terly repor t
The Charitable Foundation of the Islands reported that its Business Climate Survey for the second quarter is now available
In an effort to determine the percentage of businesses currently open on the islands, results from the survey were compared to data collected by the SanCap Chamber in July of 2023 and September
Eighty-four percent of total respondents indicated that they were open, up 5 4% points from this year's first quarter measure and 6 1 points above the chamber’s September measure.
T o v i e w t h e
SanCapOutlook com
Sanibel Post Office staffer honored
A
States Postal Service's “For the Long Haul” initiative, it celebrated Retail Associate
L
served the Sanibel community for over 29 years
The USPS initiative is designed to honor the dedi-
their communities

Defeo's unwavering commitment and exceptional service have made her a beloved figure in the neighborhood that she serves She has developed lasting relationships with customers and has become a familiar face Defeo knows all the customers and their dogs by name and treats them like family
She began her career with the USPS in 1995 at the Sanibel Post Office and is also an artist who has created and donated many original art works During the after-
“Mailigator” was found inside the post office The story spread and inspired Defeo to create a “Mailigator” piece, sold as prints and T-shirts, with all proceeds benefitting the island community
Sanibel Captiva Community Bank recently announced the purchase of gulf-side land at 2670 and 2680 Estero Blvd on Fort Myers Beach for the development of its new branch
The purchase marks a milestone in the bank's growth plan and positions it to meet the growing need for banking services on Fort Myers Beach Sanibel Captiva Community Bank will be the only bank on the beach in years


Local architect Joyce Owens is designing the building that will sit on 0 34 acres of commercial-zoned property
The branch will feature a fully staffed, state-of-the-art banking facility and will include onsite lenders, drivethru services, ATMs and conference space.
The bank has already begun planning with the Town of Fort Myers Beach in anticipation of beginning the project as quickly as possible Construction of the branch is expected to begin in early 2025, with an anticipated opening in 2026
The bank was represented by LQ Commercial Real Estate Services for the purchase
See BUSINESS NOTES, page 21


The Calusa Waterkeeper recently released its monthly water sample results for fecal indicator bacteria on Aug 17 For more information, including historical data, visit https://calusawaterkeeper org/monitoring/
ment are integral parts of who we are as a
Taylor Osborne said “We are very excited to begin taking applications for our 2024 Scholarship Program to aid local women who aspire to better themselves through education or career advancement, which in turn, betters our community.”
From page 10
The application deadline is Aug 31 R
SCBWA's luncheon on Sept 17 to be recognized
For more information or to obtain a copy of the application, contact SCBWA Scholarship Committee Chair Sue Laird at slaird4040@gmail.com.

The SCBWA is dedicated to empowering and supp o
n g t h e w
From page 20

LEAGUE OF CITIES
From left, the Florida League of Cities officers for 2024-25 are Second Vice President Mark Franks, President Michael C. Blake and First Vice President Holly D. Smith. FLC elects new officers
The Florida League of Cities announced the election of its officers for the 2024-25 term.
City of Cocoa Mayor Michael C Blake was elected president by the FLC membership and will serve a one-year term Also elected to serve was Sanibel City Councilmember Holly D Smith as first vice president and Town of Shalimar Mayor Mark Franks as second vice president
n w h o work and live on the islands through networking, mentorship, continuing education and career advancement It aims to serve the community by offering an inclusive, supportive and diverse group of
women supporting women
For more information, visit www faceb o o k c o m / S a n C a p B W A o r c o n t a c t Osborne at taylor@irisprintdesigns com





Now it can be told Biden and Putin held a secret meeting on Sanibel recently to discuss the details of a proposed updated nuclear arms treaty and a resolution to the North Korea situation There was no fan-
agents with rifles on the
s o understated that it took place on the beach with Biden and Putin posing as

meeting because it gave him an excuse to get out o
never tried blackened fish before and his Kremlin cronies told him that next to Russian caviar, blackened fish on Sanibel was a gourmet delight and worth a meeting there with Biden
So there they were, these two great world leaders, walking along the beach of Sanibel with shovels and pails in an attempt to prevent the world from blowing itself up
“So, Jill is well, I trust?” Putin said
“Yes, Mr. President. She sends her deep respects to you and Mrs Putin and thanks you for your recent generous gift She wears the vintage Red Army boots on any occasion she can ”
“We in turn thank you, Mr President uh, may I call you JoeJoe? Mr President is so formal We in turn thank you, JoeJoe, for the autographed baseball of all the New York Yankees players What a marvelous year they're having But I still marvel that you allow one of your American baseball teams to be called ‘Reds’ the Cincinnati Reds So unlike you careful Americans,” Putin chuckled
“Oh, I think I’ve got one, Mr. President. Do you mind if I call you Pootie? Pootie, what kind of shell is this? It’s shaped like the Pentagon I think I’ll put it in Nancy Pelosi’s soup and see what her reaction is I have such a serious group of advisors They just can’t take a joke ”
The two world leaders continued walking and paused every few moments studying nature’s bounty on the shores of the Gulf of Mexico Putin cleared his throat which was his usual signal that polite banter must come to an end
“JoeJoe, we’ve got a sticky problem to deal with We must both return to our capitals with a deal or the political hacks will be on our backs Hey, that rhymes ”
“Pootie, the key issue is on-site inspection I’d like to propose that our famous international ambassador Bruce Springsteen represent both our countries and be designated the official nuclear testing inspector in North Korea The Boss will win the North Koreans over with a display of his sportsmanship,” Biden said Putin picked up what he thought was a rare shell, realized it was a hard boiled egg and threw it back
“Bruce Springsteen? Not a chance, JoeJoe,” he said. “The first thing he’ll do is say to the North Koreans, ‘come to Philadelphia ' I have enough trouble holding my party together without having to worry about special hearings on Springsteen diplomacy in prime time What sacrifices we world leaders have to make for the cause of peace
“Let’s get on with our negotiations If you agree to destroy one hundred medium range ballistic missiles by 2026, we will agree to give Ukraine back But there’s one condition You will have to agree to hold the 2026 World Series in Moscow Aaron Judge will pack them in ” Biden frowned. “I don’t know if I can get the baseball commissioner to go along with that He’s concerned that you might not allow Aaron Judge to leave
See SUMMIT, page 25

The Clinic for the Rehabilitation of Wildlife will host its 43rd Taste of the Islands on Nov 9
Reimagined in 2020 due to COVID and canceled in 2022 due to Hurricane Ian, the event will return to an inperson competition this year from 11 a m to 4 p m at City Hall, at 800 Dunlop Road, Sanibel
“Taste is back!,” CROW Executive Director Alison Charney Hussey said. “We are so thrilled to bring the much beloved open-air event back to the islands ”
The event will feature live music and showcase Sanibel and Captiva's vibrant and diverse restaurant community, helping to reunite and celebrate the resilience of businesses Returning this year, attendees will get a 'taste' of CROW and meet its Animal Ambassadors, as well as take home the Taste T-shirt
“ S a n i b
November as well, and we thought it appropriate to bring Taste for all to enjoy at City Hall,” she said “We know how much everyone loves the farmers market, so we think the new venue will give a fresh look and feel to Taste.”
In the week leading up to the event, participating restaurants will celebrate at their locations From Nov 18, the public can 'taste' each restaurant's featured item and get a chance to cast their vote early
“By continuing to support our restaurant partners with the restaurant week leading up to the traditional event, we hope to make this year's Taste a must do for everyone,” Hussey said



Edison National Bank/Bank of the Islands is returning as the title sponsor
“CROW has adapted Taste of the Islands over the past few years, not only to raise funds for their mission, but also to support the islands' many restaurants,” bank Chief Executive Officer Geoff Roepstorff said. “The one-day event gives the community a chance to come together to celebrate the fantastic food and drink the restaurants have to offer while supporting CROW's good work of saving our wildlife ”
The event proceeds will ensure CROW's continued success providing the highest quality care and treatment of injured, sick and orphaned wildlife through state-of-theart veterinary care The funds will also support public education and outreach efforts
Admission is $10 for ages 11 and older, $5 for ages 10-4, and free for ages 3 and under
Attendees will also purchase CROW Bucks to receive their “tastes” from the restaurants
Tickets are available at tasteoftheislands org or can also be purchased at the gate
For more information about the event, sponsorships or to become a participating restaurant, contact CROW Development Director Grace Murphy at 239-322-5073 or development@crowclinic org
CROW is at 3883 Sanibel-Captiva Road, Sanibel


FRIENDS OF RANDY OF SANIBEL
From left, Community Housing & Resources Housing Administrator Bonnie McCurry, Friends of Randy of Sanibel Co-Vice President Allen Dunham, gift card recipient Jaxon Edwards, FOROS President Randy Carson and CHR Bookkeeper Tracy Haskins.
T
recently presented Community Housing & Resources with $125 in gift cards for all school-aged children of families in CHR housing to help with back-to-school sup-
plies The funds were raised by the sponsors, donors, gift givers and participants of the 44th annual 4th of July Road Rally, h
FOROS

Russia But how about this? If we allow you on-site inspection on U S soil, then you have to agree to turn over the Bolshoi Ballet to the United States ”
Putin said, “If you agree to let me host Saturday Night Live I think we might have a deal I have some new North Korea jokes I want to try out By the way, what kind of shell is this?”
Biden was elated and didn’t bother to answer the question. “I can hardly wait to see Raul Castro’s face when he learns that
Sanibel Public Library, at 770 Dunlap Road, Sanibel It celebrates Sanibel's recovery from its brutal brush with Mother Nature
The SCAL has opened a ballot for “Best of Show” for the public to vote Visitors can place their vote at the library's IT Help Desk For more information, visit www san capart org SANIBEL PUBLIC LIBRARY
Cuba is our 51st state Pootie, we have a deal How shall we celebrate?”
Putin picked up his pail and shovel, thought for a moment and said, “Can you introduce me to Taylor Swift? I’ve always wanted to meet this American singer who keeps taking our teenagers' minds off communism ”
Art Stevens is a long-time columnist for the Sanibel-Captiva Islander. His tongue-incheek humor is always offered with a smile

Pavel Gurlenya, 13, o f L i n c o l n s h i r e , I l l i n o i s , f o u n d a n alphabet cone on Aug 1 3 a t s u n s e t i n t h e water near the shoreline a t B o w m a n ' s B e a c h P a r k o n S a n i b e l H e was visiting the island for the first time with his family “The sunsets and the sky colors w e r e u n r e a l t h e most beautiful I've ever seen,” Pavel said “For two days straight, we s n o r k e l e d a n d d o v e n e a r t h e s h o r e a t Bowman's Beach The w a t e r w a s s o w a r m , and the ocean floor was covered with seashells, m a k i n g t h e s e a s h e l l hunt incredibly fun!” It was his first time finding an alphabet cone, and he initially thought it was a junonia “Even t h o u g h i t w a s n ' t , I ' m still happy with this rare and wonderful find I'd say that finding the shell was the highlight of my trip, and I plan to keep it as my lucky charm,” Pavel added. “I'd also love to return to Sanibel



Buttonwood is a favorite native, grown as a multitrunk shrub or in standard tree form, and comes in both a green variety (Conocarpus erectus) or silver

v a r i e t y ( C o n o c a r p u s erectus var sericeus)
S o m e t i m e s r e f e r r e d
t o a s “ b u t t o n m a ngrove,” the plant is often
f o u n d g r o w i n g j u s t inland of the white man-
g r o v e s , a l o n g m a n y island beaches. In fact,
b u t t o n w o o d i s i n t h e same family as the white m a n g r o v e , b l a c k o l i v e and tropical almond A native of Florida, it is also found naturally on islands like Bermuda and the Bahamas and throughout the Caribbean, Mexico, Central and South America, as well as the Galapagos Islands
While the native loves the beach, the buttonwood also does well in inland habitats, along the borders of fresh and brackish marshes and along the edges of low hammocks Buttonwood is highly salt-resistant and protects against beach erosion from storm surge It is also a food source for wildlife The wood has been used for smoking fish and firewood It is a tough plant that grows well in sandy soil, as well as wet salty conditions, so it is a highly recommended plant for seaside areas
The buttonwood is also used in hedges and buffers and sometimes as a specimen tree in an all-native landscape It will take either full sun or partial shade and does not have a lot of leaf drop, which is always nice. Another nice perk, the buttonwood’s rough bark provides an ideal environment for attaching bromeliads or orchids out in the landscape
If you need a native tree or shrub that can put up with tough conditions and still look good, try the green buttonwood or silver buttonwood in your landscape You will be glad you did
In The Garden is a joint effort by all at the local g a
R o a d , Sanibel For more information, contact 239-3955859 or visit www facebook com/rswalshinthegarden
The city of Sanibel reported that it will l brate its 50th anniversary in November, and is looking forward to a year-long celebration to remember. It is encouraging Sanibelians to come together to spruce up their properties and make their neighborhoods and businesses shine “Whether it's finishing up that landscaping project, painting fences or simpl tidying up, every little effort counts,” the c shared “Show our pride in our island paradise and

te a beautiful backdrop for the festivities ” I S H of Sanibel-Captiva has a group of Florida Gulf Coast University volunteers for those needing assistance. The group will be available on Aug 31 from 9 a m to noon to help with in-house furniture moving, yard work and miscellaneous projects For more
nuela@fishofsancap org
Island residents will be able to safely and responsibly dispose of household chemical waste leftover paints, cleaners, herbicides, pesticides, automotive fluids and pool chemicals on Sept 4
Hosted by the city of Sanibel and Lee County Solid Waste, a household chemical waste collection event will be held from 9 a m to 1 p m in the parking lot of the Sanibel Public L
that might otherwise be harmful to people and the environment
The collection events are for residential waste only Businesses that need chemical waste disposal can contact MXI Environmental Services
@MXIINC com to schedule a chemical drop-off
Sanibel Drop off of items will be an easy drive-through process at no charge It is part of an interlocal agreement between the city and county to

y Innocents recently helped
Those interested in doing
while giving back to the
and seniors, can join the CHR crew on Thursdays at 9 a m at 800 Casa Ybel Road, Sanibel Signups are requested For more infor-
or savannah@sanibelchr org
chemical waste and can be set out with regular garbage:
∫ Empty paint cans and dried paint
∫ Empty automotive fluid containers
∫ Small-engine equipment, such as pressure washers, lawnmowers, and weed eaters
∫ Small electronic parts, such as routers, mice and keyboards
∫ Small appliances
∫ Tires
By SANIBEL-CAPTIVA CONSERVATION FOUNDATION
The Florida silver palm (Coccothrinax argentata) is listed as a threatened plant species in the state With its narrow leaves and slow growth rate, it is petite next to the native Florida thatch palm (Thrinax radiata) The fronds of the silver palm have deeply divided, narrow palmate leaves that split close to the leaf shaft, and they hang down around the palm almost like a skirt It gets its name from the silver-y hue found on the underside of each palm frond The silver color is exposed when the wind blows the soft leaves around making an interesting addition to the landscape It can also do well in a pot, given its slow growth rate, and would be an interesting addition to a deck or rock garden The species does well in the region's nutrient poor and high pH soils It is salt tolerant and drought tolerant after it has been established Silver palms are also the larval host for the monk skipper butterfly

By CHEF LORETTA PAGANINI
Delicate and so delicious, I love to make crepes with my grandchildren They have become experts at flipping the crepes and catching them with cheering from the whole family Crepes can be made ahead and kept frozen for up to three months. Alternate parchment paper in between the layers before freezing them Serves 10 (Chef tip: To clarify butter, place butter in a small pan and melt at low heat Gently poor liquid butter out of the pan in a liquid measuring cup, leaving the milk solid at the bottom of the pan behind )
Clarified butter, for pan
For crepes:
1/2 cup whole milk
2 large eggs
1/4 cup mineral or soda water
2 tablespoons unsalted butter, softened
1 cup all-purpose flour or Wondra instant flour, sifted
1 tablespoon granulated sugar
1/4 teaspoon salt
For strawberries:
2 cups fresh strawberries, sliced
2 teaspoons limoncello
2 teaspoons fresh mint, chopped
1/4 cup sugar

For whipped cream:
2 cups heavy cream, chilled 1/4 cup confectioners’ sugar
1 teaspoon vanilla extract
In a large chilled mixing bowl, whip heavy cream, confectioner’s sugar and vanilla extract until stiff peaks form Place mixture in a pastry bag, fitted with a large star tip and refrigerate until ready to use Mix strawberries with sugar Add the limoncello and mint, and set aside
Combine milk, water and eggs in food processor or blender Add flour, sugar and salt Blend on low speed until very smooth, stopping occasionally to scrape down sides of container Pour batter into medium bowl Let stand in the refrigerator at least one hour and up to two hours, stirring occasionally
Heat a 10-inch nonstick skillet over high heat Brush very lightly with clarified butter Transfer batter to small pouring cup Working quickly, pour batter about 2 ounces at a time into the center of the hot skillet; tilt skillet to spread batter around skillet. Reduce heat to medium-high and cook crepe until yellow on top and bottom is speckled brown, about two minutes Loosen sides of crepe with spatula and turn over and cook one more minute Turn out onto parchment paper Cover with parchment paper Repeat with remaining batter, brushing pan occasionally with clarify butter and layering crepes between parchment paper
Place a crepe on a clean work surface and fill with prepared strawberries Fold crepe in half and fold again into a triangle, repeat with remaining crepes Top strawberry crepes with whipped cream Serve immediately
The Clinic for the Rehabilitation of Wildlife's Visitor Education Center, at 3883 Sanibel-Captiva Road, Sanibel, will present the following:
∫ Today, Aug 2 8
Program of the Week at 11 a m
The presentation will be “One World One Health.”
∫ Thursday, Aug. 2 9
Program of the Week at 11 a m
The presentation will be “A Day In The Life ”
∫ Friday, Aug. 3 0 Program of the Week at 11 a m
The presentation will be “If You Care, Leave it There ”
Admission is $12 for ages 13 and older, $7 for ages 4-12 and free for ages 3 and under
In addition, CROW offers a Wildlife Walk Hospital Tour on Mondays through F
Limited to 12 people; participants must be age 10 or older. The cost is $25 per person; advanced registration and payment is required To register, contact 239-4723644 ext 229 or reservations@crowclinic org
http://www crowclinic org/ or call 239472-3644
The Santiva Islanders will present the following:
Mahnaz Bassir will host Cardio & Strength today, Aug. 28, from 10 to 11 a m in the Parish Hall at Saint Michael and All Angels Episcopal Church, at 2304 Periwinkle Way, Sanibel Bring water and a towel; no mat is required Light weights may be brought Cost is $5 per class and $60 per month for members or $10 per class and $120 per month for non-members
Lynn Young will host Gentle Yoga on Aug 29 from 10:30 to 11:30 a m at the Sanibel Congregational United Church of Christ, at 2050 Periwinkle Way, Sanibel Bring a towel and ample water and wear comfortable clothing; bring a mat, if needed Cost is $10 per class For more information, contact Susan Talmage at 214206-6822 or drsusantalmage@gmail com
Social Mahjong will be held on Aug 29 from 1 to 3:30 p m in the library at Saint Michael and All Angels Episcopal Church, at 2304 Periwinkle Way, Sanibel Cost is $5 For more information, contact Beth Funderburg at bfundy4648@gmail com
Coffee & Conversation will be held on Aug 30 from 9:30 a m to noon in the library at Saint Michael and All Angels Episcopal Church, at 2304 Periwinkle Way, Sanibel Volunteers will be available to answer questions, register new members, sign up for activities and more
Mahnaz Bassir will host Cardio & Strength on Aug 30 from 10 to 11 a m in the Parish Hall at Saint Michael and All
2 3 0 4
Periwinkle Way, Sanibel Bring water and a towel; no mat is required. Light weights may be brought Cost is $5 per class and $60 per month for members or $10 per class and $120 per month for non-members
∫ Bat Yam Temple of the Islands
2050 Periwinkle Way, Sanibel (Sanibel Congregational United Church of Christ), https://www batyam org/, https://www facebook com/batyamsanibel/ Rabbi Sunny Schnitzer
Sabbath service on Friday at 7 p m and via Zoom For Zoom links, email batyamsanibel@gmail.com.
∫ Captiva Chapel by the Sea 11580 Chapin Lane, Captiva, 239-472-1646, https://www captivachapel com/, www facebook com/Captiva-Chapel-By-The-Sea
Rev Dr Doug Dortch
Services will return for season in November Videos of services from the past season can be found on the chapel's website and Facebook page
∫ Chavurat Shalom of Southwest Florida P O Box 722, Sanibel, www chavuratshalomofsouthwestflorida org
Shabbat service on Friday at 7:30 p m Torah Talk on Tuesday at 7:30 p m
There are also speakers, discussions and informal “schmoozes ” For Zoom links, email ChavuratShalom@gmail com
∫ Sanibel Community Church 1740 Periwinkle Way, Sanibel, 239-472-2684, https://sanibelchurch com/, https://www facebook com/sanibelchurch/ Pastor Jeramie Rinne
Sunday service at 10 a m in the Sanctuary Services will be recorded and posted on the SCC's YouTube channel
∫ Sanibel Congregational United Church of Christ 2050 Periwinkle Way, Sanibel, 239-472-0497, https://www sanibelucc org/, https://www facebook com/sanibelucc/
Senior Minister Rev Dr Mark Boyea
Sunday service at 10 a m in the Sanctuary
∫ Saint Isabel Catholic Church 3559 Sanibel-Captiva Road, Sanibel, 239-472-2763, https://www.saintisabel org/, https://www facebook com/stisabelcatholicchurch/ Father Edward Martin
Friday Mass at 9 a m Saturday Vigil Mass at 5 p m Sunday Mass at 10 a m
∫ Saint Michael and All Angels Episcopal Church 2304 Periwinkle Way, Sanibel, 239-472-2173, https://www saintmichaelssanibel org/, https://www facebook com/saintmichaelssanibel/ Rev William “Bill” Van Oss
Saturday service at 5 p m in the Sanctuary, with a social to follow Sunday service at 9:30 a m , with a coffee hour to follow; service is available via livestream and the link on the website
Happy Hour will be held on Sept 2 from 4 to 6 p m at Tutti Pazzi Italian K i t c h e n , a t 1 2 0 0 P e r i w i n k l e W a y , Sanibel Enjoy happy hour drink and appetizer specials Attendees will order and pay individually
may be brought Cost is $5 per class and $60 per month for members or $10 per class and $120 per month for non-members
Mahnaz Bassir will host Cardio & Strength on Sept 2 from 10 to 11 a m in the Parish Hall at Saint Michael and All A n g e
t 2 3 0 4
Periwinkle Way, Sanibel Bring water and a towel; no mat is required Light weights may be brought Cost is $5 per class and $60 per month for members or $10 per class and $120 per month for non-members
Cardio & Strength
Mahnaz Bassir will host Cardio & Strength on Sept 4 from 10 to 11 a m in the Parish Hall at Saint Michael and All A n g e l s E p
The Santiva Islanders serve all adult islanders and visitors, regardless of age The cost is $25 for an annual membership The Island Seniors raise funding to help defray the cost of the program activities
For more information, visit https://san-
3 0 4
Periwinkle Way, Sanibel Bring water and a towel; no mat is required Light weights

Cheeburger Cheeburger, 1975 Periwinkle Way, Sanibel
MudBugs
Cajun Kitchen, 1473 Periwinkle Way, Sanibel


The Community House on Sanibel features a “retail shop,” including a jewelry display The public can browse
notepads and more, along with a variety of Shell Critter Kits TCH is open on Mondays through Fridays from 9 a m to 3 p m For more information, visit www sanibelcommunityhouse net
The Community House, at 2173 Periwinkle Way, Sanibel, will present the following:
Sanibel Hear ts Club
The Sanibel Hearts Club will meet on Aug 30 from noon to 3 p m Beginners to experts are welcome to participate and play the card game No reservations are required Suggested donation of $5
Shellcrafters
The Shellcrafters will meet on Sept 2 from 10 a.m. to 1 p.m. in the lobby. A shell crafting class will take place at 10 a m ; it is free and supplies range from $5-10 Items will be available for sale All sales benefit the operations of TCH
Shell Critter Kits are available for purchase in a variety of different options Cost is $5 per kit with all of the supplies included, except for glue. Order them in-person at TCH or call 239-472-2155
TCH office hours are Monday through Friday from 9 a m to 3 p m
F I S H of Sanibel-Captiva reported that it contributes its success to its com-
islands In a collaboration, Trademark Roofing has worked with F.I.S.H. on a variety of projects, including a canvassing initiative in partnership with Florida Gulf Coast University to identify and address unmet needs in the community, p
repairs It also addressed a roof leak at F I S H 's facility For more information about being a community partner, contact Executive Director Maria Espinoza at 239-472-4775

F I S H OF SANIBEL-CAPTIVA From left, Trademark Roofing Chief Executive Officer Tristan Starbird and F.I.S.H. of Sanibel-Captiva Executive Director Maria Espinoza.
For more information, visit www sanibelcommun
a c t 2 3 9 - 4 7 2 - 2 1 5 5 o
info@sanibelcommunityhouse net

Sanibel, and Mike Temporiti and his children, Mona Temporiti, 10, and Mike Jr Temporiti, 8, all
a c h found an alphabet cone on Aug 6 near Mile Marker 5 on West Gulf Drive on Sanibel The shells were found in days following Tropical Storm Debby Mike Temporiti reported that his family often visits the island John Temporiti Sr and his wife, Karen, and their four children have visited and owned property on Sanibel since 1981 The couple have been
2008 To report a shell find, contact 239-472-1587 or trepecki@breezenewspapers com

After her second child was stillborn, my mother made a “promesa,” a promise to the Virgin that in return for a healthy male child, she would not cut his hair
Alas, I was that healthy male child and for the first four years of my life my hair grew below my shoulders just like a girl’s and to make matters worse it was silky and curly and the women in my family took turns combing it and creating elaborate hairdos or making ringlets with pieces of paper bags and sighing “que ricitos tan lindos,” (what gorgeous little curls)
then sent me out to play with the roughest group of four year olds ever assembled on the East Side of Manhattan
It had been tough enough with these guys when I was three and hadn’t learned English yet because no one but my brother spoke English at home, but English mastery could not deliver me from the misery caused by groups of boys yanking at my curls while chanting “Ding dong bell” and calling me Josephine
The curls and long hair had to go and for the first time in my life, I delivered an ultimatum: “Cut my hair or I won’t go out to play,” I demanded tearfully in Spanish
They actually hired a studio photographer to come to the house and take the picture of me sitting on a high chair just before the great shearing As I remember, I cried a little, each woman took a snip and saved a lock, the men sat in the parlor drinking beer, my brother told me it would be safe to play outside again and my mother would not come out of her bedroom until it was over and couldn’t look at me straight for the longest time

Chillicothe, Ohio, found a junonia on Aug 7 at about 4 p m in shin-deep
Hagerup Beach Park on Captiva. Trish Kovaleski reported that the trip was for her husband's birthday “Beach combing is our favorite hobby, and Captiva is our favorite


reported that two CHR residents recently received e-bikes, which were donated by Dorothy and Seth Hemming












