

BRADLEY LYON
01 public library
02.1 urban housing - precedent
02.2 urban housing - design
03 double house

site, space, & program partner: baran derebail
summer 2024
7
The aim of this studio was to understand design intentions and organization of a structure with public program. This library is on the site of an existing location of the Egleston branch of the Boston Public Libraries, and the assignment was to either replace or adapt to the existing building in order to create a design fit for the rapidly evolving neighborhood that surrounds it.
This design embraces structural elements as a part of the exterior and interior aesthetic and utilizes a window wall system that allows for the structure to feel as open as possible. The goal of this structure is to invite the surounding community to engage with one another and have access to a center provoking productivity and activity.


elevation perspective

diagram





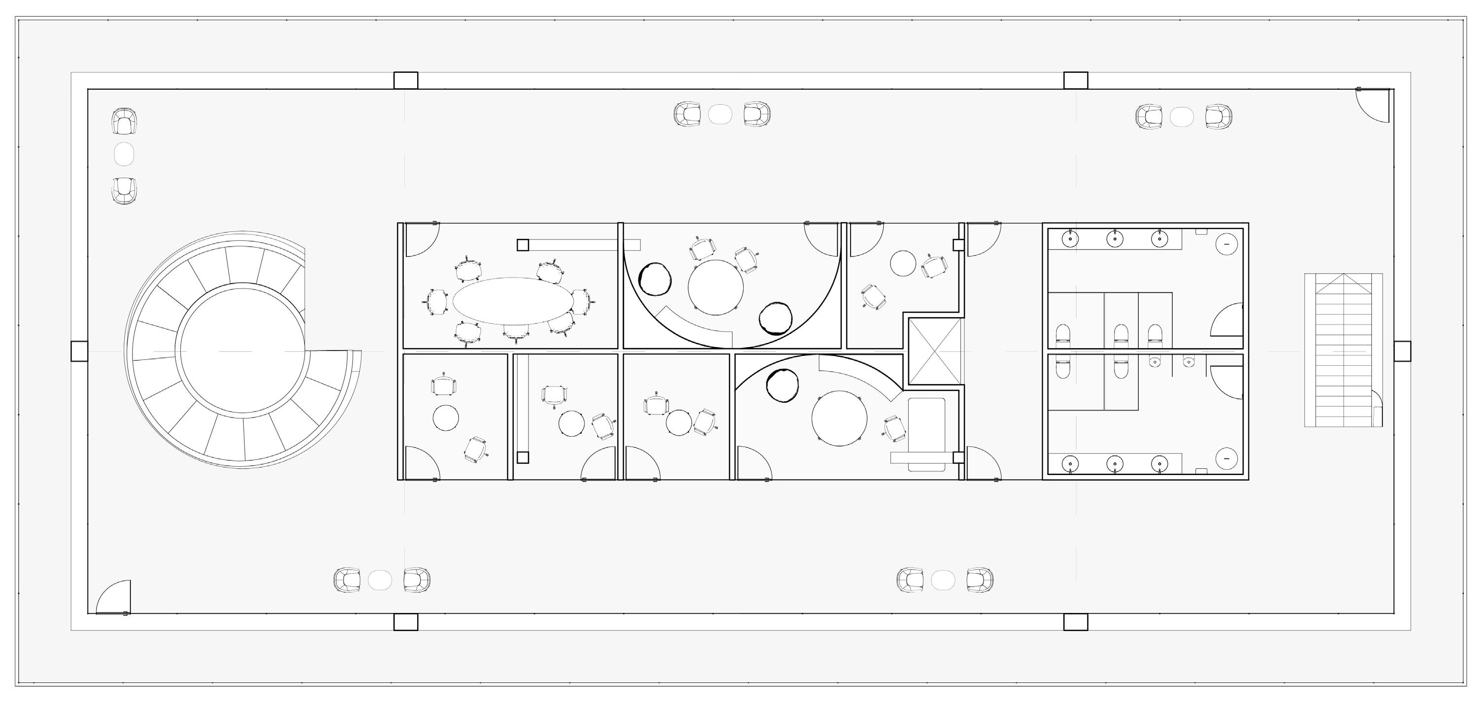
FIRST FLOOR PLAN
ground floor: open plan serving as a gateway to the rear courtyard and establishes a social environment


SECOND FLOOR PLAN
second floor: floor dedicated to classic library program inlcuding bookshelves, reception, and ample seating for reading/study

third floor: private cubicles with study space, amplified acoustics for music listeners, office space, bathrooms, and seating lining the perimeter
Derebail and Lyon ARCH 2130
02.1 PRECEDENT
public housing
individual spring 2024
This studio taught students how to design buildings in an urban environment in which took into consideration the existing environment surrounding a site as well as the people that occupied the space. Concepts such as circulation, imageability, nodes, program, and open/closed space were studied so students could understand how to practically and rationally orient their designs.
A precedent was assigned to each student so that they could have a project to refer back to when thinking of their own designs. The structure assigned to me was Songa Micro Housing located in Seol, South Korea. This structure aims to establish a soft boundary between the condensed setting it resides in and those residing within the structure. The organization of circulation and shared spaces promotes social interaction between its residents through bridging walkways connecting units and collective living areas.











BRADLEY LYON / ISADORA DANNIN
SONGPA MICRO HOUSING
plans
SONGPA MICRO HOUSING

SONGPA MICRO HOUSING




FLOOR PLANS
SCALE: 1/16β = 1β-0β






connecting circulation family living
individual units

LIVING
NAVIGATE PUBLIC HOUSING




2140 ISADORA DANNIN
SCALE: 1/32β = 1β-0β

SCALE: 1/32β = 1β-0β



SCALE: 1/32β = 1β-0β


SCALE: 1/8β = 1β-0β

CONNECTED SPACE: An open space that bridges two residential two separate buildings that allows for an intimate relationship In an ideal scenario, these relationships help establish a community operates in harmony and eliminates the severe isolation most apartments induce today.


SCALE: 1/8β = 1β-0β

SCALE: 1/8β = 1β-0β

COMMUNAL SPACE: A space with an entirely open floor plan with nonpermanent furniture creates a loose environment that promotes the intermingling of residents respective to that building. An outdoor space gives the residents an opportunity to participate in a shared activity, further developing a cohesive community.
SCALE: 1/8β = 1β-0β




FIRST FLOOR
SECOND FLOOR
THIRD FLOOR
UNITCIRCULATIONCOMMUNALCONNECTEDPRIVATE OUTDOOR GREEN
SCALE: 1/32β = 1β-0β
TYPE 1: L.1
UNITCIRCULATIONCOMMUNALCONNECTEDPRIVATE OUTDOOR GREEN
SCALE: 1/32β = 1β-0β

SCALE: 1/32β = 1β-0β

SCALE: 1/32β = 1β-0β

SCALE: 1/32β = 1β-0β

SCALE: 1/8β = 1β-0β
TYPE 1: L.1
CONNECTED SPACE: An open space that bridges two residential units of two separate buildings that allows for an intimate relationship to form. In an ideal scenario, these relationships help establish a community that operates in harmony and eliminates the severe isolation most apartments induce today.
SCALE: 1/8β = 1β-0β
COMMUNAL SPACE: A space with an entirely open floor plan with nonpermanent furniture creates a loose environment that promotes the intermingling of residents respective to that building. An outdoor green space gives the residents an opportunity to participate in a shared activity, further developing a cohesive community.
SCALE: 1/8β = 1β-0β
TYPE 3: BAR
COMMUNAL SPACE: A space with an entirely open floor plan with nonpermanent furniture creates a loose environment that promotes the intermingling of residents respective to that building. An outdoor green space gives the residents an opportunity to participate in a shared activity, further developing a cohesive community.
TYPE 2: L.2
SCALE: 1/8β = 1β-0β
TYPE 2: L.2
SCALE: 1/8β = 1β-0β
CONNECTED SPACE: An open space that bridges two residential units of two separate buildings that allows for an intimate relationship to form. In an ideal scenario, these relationships help establish a community that operates in harmony and eliminates the severe isolation most apartments induce today.
SCALE: 1/8β = 1β-0β






02 DOUBLE HOUSE
single family homes
individual spring 2024
This final project of the first comprehensive studio combined all of the lessons of that studio to be synthesized and implimented onto a site with two structures that housed two seperate households. Each student was assigned a unique parcel, and each parcel neighbored one another to form a collective neighborhood.
This design embraces elements of raum plan as well as free plan with the intention of embracing the siteβs steep and its flowing contours. The geomtrical forms of the structures take inspiration from the contours of the site itself. The two conjoined homes are overlapped to align with the narrative of two siblings taking up one of each households.


SITE PLAN
Progress diagram showing the thought process behind forming the gerometries and location of structures on the site.
Rhino model used to experiment with various levels and heights for each respective structure.
Floor plans created after being happy with the forms and spaces, and solid fill hatching that highlights where the structures plug into the topography.
FLOOR PLANS
OBLIQUES




oblique views offering a realistic view of what the structures would look like in the third dimension with the inclusion of model pictures that correlate with various views of each structure
Oblique views offering a realistic view of what the structures would look like in the third dimension with the inclusion of model pictures that correlate with various views of each structure.

Cross sections of each structure showing how the various leveling affects the interior of the house regarding spatiality and functionality
cross sections of each structure showing how the various leveling affects the interior of the house regarding spatiality and functionality














Section diagram further displaying the different leveling present within the buildings as well as highlighting the flow between the public and private spaces throughout them.
section diagram further displaying the contrasting leveling present within the buildings as well as highlighting the flow between the public and private spaces throughout them
