

BRADLEY LYON

site, space, & program partner: baran derebail
summer 2024
7
The aim of this studio was to understand design intentions and organization of a structure with public program. This library is on the site of an existing location of the Egleston branch of the Boston Public Libraries, and the assignment was to either replace or adapt to the existing building in order to create a design fit for the rapidly evolving neighborhood that surrounds it.
This design embraces structural elements as a part of the exterior and interior aesthetic and utilizes a window wall system that allows for the structure to feel as open as possible. The goal of this structure is to invite the surounding community to engage with one another and have access to a center provoking productivity and activity.


elevation perspective

diagram





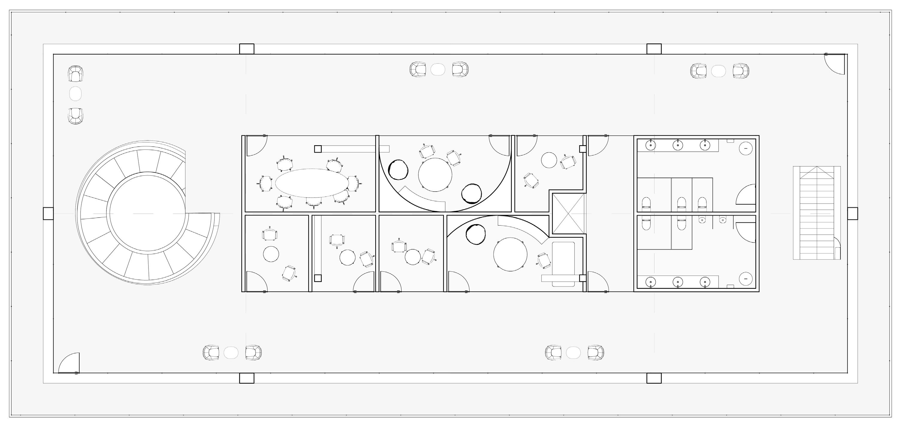
FIRST FLOOR PLAN
ground floor: open plan serving as a gateway to the rear courtyard and establishes a social environment


SECOND FLOOR PLAN
second floor: floor dedicated to classic library program inlcuding bookshelves, reception, and ample seating for reading/study

third floor: private cubicles with study space, amplified acoustics for music listeners, office space, bathrooms, and seating lining the perimeter
Derebail and Lyon ARCH 2130
02POOLENPAVILION
architectural design studio
individual
spring 2026
Poolen Pavilion was the first design project completed while studying abroad in Copenhagen, Denmark. This project involved an extensive classwide site analysis regarding materials, textures, colors, programs, defining elements, and historical context. This assignment being an adaptive reuse project, students were asked to create a structure hosting a function that respected the site by acknowledging the aforementioned components as well as to overall seamlessly fit into the existing landscape.
My project is a pavilion designed to be a standing social lounge and small-scale live music venue to attract those attending events at the nearby music venue Poolen. Architecturally, the forms are inspired by foam impressions and plaster castings gathered from onsite textures and organized with an emphasis on the human viewing experience. Rising and descending surfaces, layers and spacing of glass and vertical obstructions create a unique experience depending on where the user chooses to stand as well as where the decide their viewing point is. Poolen Pavilion blends into the site utilizing a parasitic typology and incorporating materials and elemtns found on the site.



































material choice




































03NAVIGATEURBAN
LIVING
public housing
individual spring 2024




























































SCALE: 1/32” = 1’-0”

SCALE: 1/32” = 1’-0”



SCALE: 1/32” = 1’-0”


SCALE: 1/8” = 1’-0”

CONNECTED SPACE: An open space that bridges two residential two separate buildings that allows for an intimate relationship In an ideal scenario, these relationships help establish a community operates in harmony and eliminates the severe isolation most apartments induce today.


SCALE: 1/8” = 1’-0”

SCALE: 1/8” = 1’-0”

COMMUNAL SPACE: A space with an entirely open floor plan with nonpermanent furniture creates a loose environment that promotes the intermingling of residents respective to that building. An outdoor space gives the residents an opportunity to participate in a shared activity, further developing a cohesive community.
SCALE: 1/8” = 1’-0”




FIRST FLOOR
SECOND FLOOR
THIRD FLOOR
UNITCIRCULATIONCOMMUNALCONNECTEDPRIVATE OUTDOOR GREEN
SCALE: 1/32” = 1’-0”
TYPE 1: L.1
UNITCIRCULATIONCOMMUNALCONNECTEDPRIVATE OUTDOOR GREEN
SCALE: 1/32” = 1’-0”

SCALE: 1/32” = 1’-0”

SCALE: 1/32” = 1’-0”

SCALE: 1/32” = 1’-0”

SCALE: 1/8” = 1’-0”
TYPE 1: L.1
CONNECTED SPACE: An open space that bridges two residential units of two separate buildings that allows for an intimate relationship to form. In an ideal scenario, these relationships help establish a community that operates in harmony and eliminates the severe isolation most apartments induce today.
SCALE: 1/8” = 1’-0”
COMMUNAL SPACE: A space with an entirely open floor plan with nonpermanent furniture creates a loose environment that promotes the intermingling of residents respective to that building. An outdoor green space gives the residents an opportunity to participate in a shared activity, further developing a cohesive community.
SCALE: 1/8” = 1’-0”
TYPE 3: BAR
COMMUNAL SPACE: A space with an entirely open floor plan with nonpermanent furniture creates a loose environment that promotes the intermingling of residents respective to that building. An outdoor green space gives the residents an opportunity to participate in a shared activity, further developing a cohesive community.
TYPE 2: L.2
SCALE: 1/8” = 1’-0”
TYPE 2: L.2
SCALE: 1/8” = 1’-0”
CONNECTED SPACE: An open space that bridges two residential units of two separate buildings that allows for an intimate relationship to form. In an ideal scenario, these relationships help establish a community that operates in harmony and eliminates the severe isolation most apartments induce today.
SCALE: 1/8” = 1’-0”






04 DOUBLE HOUSE
public housing
individual spring 2024































































SITE PLAN
Progress diagram showing the thought process behind forming the gerometries and location of structures on the site.
Rhino model used to experiment with various levels and heights for each respective structure.
Floor plans created after being happy with the forms and spaces, and solid fill hatching that highlights where the structures plug into the topography.
FLOOR PLANS
OBLIQUES




oblique views offering a realistic view of what the structures would look like in the third dimension with the inclusion of model pictures that correlate with various views of each structure
Oblique views offering a realistic view of what the structures would look like in the third dimension with the inclusion of model pictures that correlate with various views of each structure.

Cross sections of each structure showing how the various leveling affects the interior of the house regarding spatiality and functionality
cross sections of each structure showing how the various leveling affects the interior of the house regarding spatiality and functionality














Section diagram further displaying the different leveling present within the buildings as well as highlighting the flow between the public and private spaces throughout them.
section diagram further displaying the contrasting leveling present within the buildings as well as highlighting the flow between the public and private spaces throughout them
