






![]()







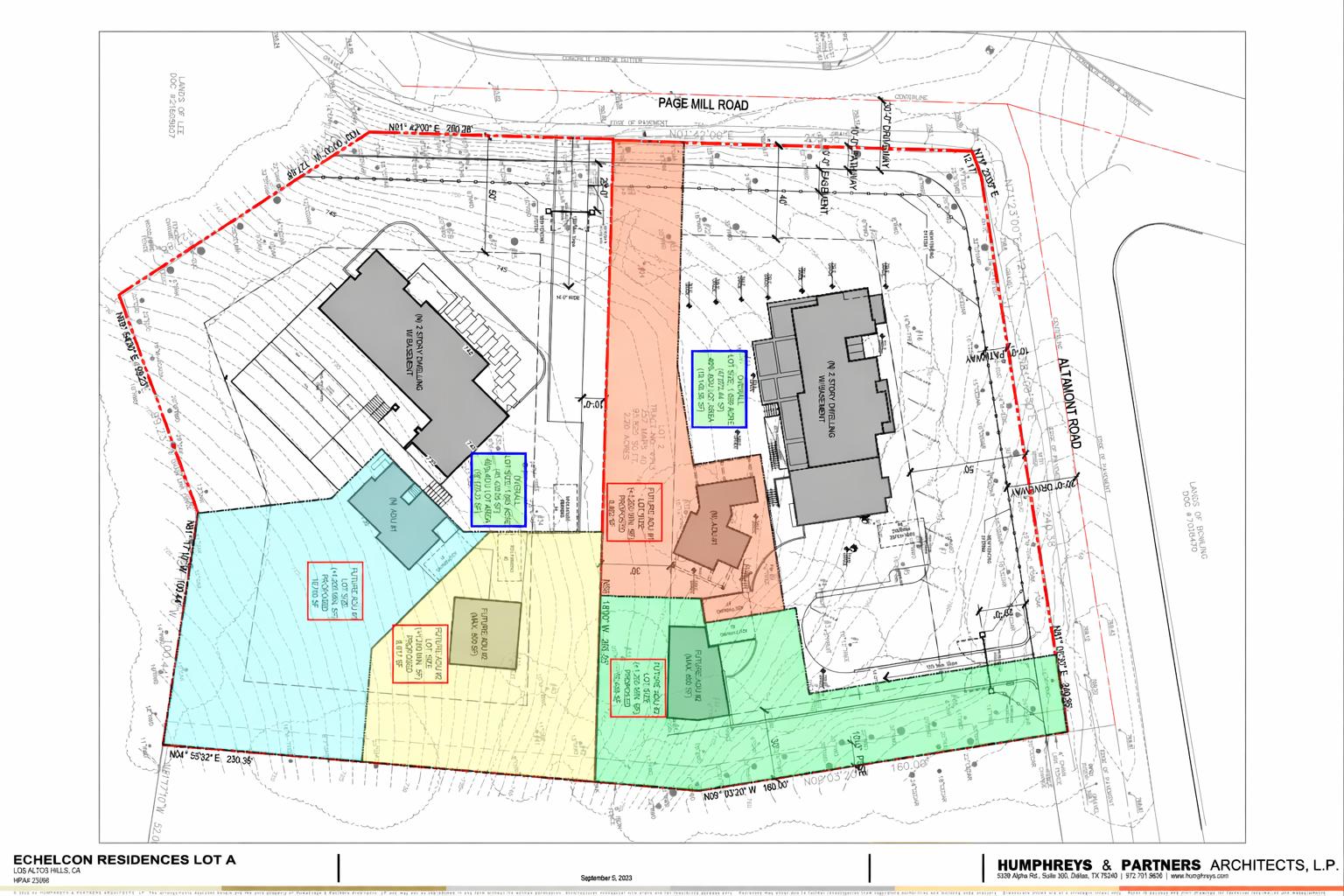
Along one of Los Altos Hills’ most prestigious and tightly held corridors, 27600 Altamont Road presents a rare convergence of vision, preparation, and place. This 1.2-acre estate parcel comes with fully designed, shovel-ready architectural plans by the internationally acclaimed modernist firm Humphreys & Partners Architects, L.P.—offering buyers the chance to step directly into execution without the uncertainty, time, or entitlement risk typically associated with hillside luxury development The presence of an existing home can simplify financing compared to raw land.
The proposed residence is bold yet timeless: approximately 5,800 square feet for the main home, complemented by a 1,200-square-foot ADU ideal for guests, multigenerational living, or a private executive workspace and a thoughtfully planned basement level designed to flex effortlessly between wellness, wine storage, media, or additional living space. Every square foot has been considered in relation to the land itself, maximizing privacy, light, and long views while preserving the natural serenity of the Hills.
Designed for a sophisticated, global audience, the architecture emphasizes clean modern lines, seamless indoor–outdoor flow, and dramatic site integration. The home is intended to feel grounded yet expansive anchored to the land while opening outward to nature, sky, and surrounding open space. This is modern luxury that feels intentional, not imposed.
The location elevates the offering even further. Set within the Altamont corridor, the property enjoys a rare duality: the quiet prestige and privacy that define Los Altos Hills, paired with effortless access to the Silicon Valley core. Downtown Palo Alto and Los Altos are just a short, scenic drive away, while daily life is enriched by immediate access to hik and equestrian trails and the protected open space of Byrne Preserve.
This balance—estate living without isolation—is what makes Altamont Road so coveted. Estate-scale parcels, iconic surroundings, and a sense of calm define the setting, yet the world’s most influential technology campuses, cultural amenities, and dining destinations remain close at hand.
What truly distinguishes 27600 Altamont Road is its architectural pedigree. Humphreys & Partners Architects bring a global reputation for refined modernism, thoughtful massing, and enduring design value. Their vision here translates into a residence that offers:
Timeless modern architecture with long-term relevance
Carefully framed sightlines and proportional balance
Grand entertaining spaces paired with intimate private retreats
A home that resonates equally with design connoisseurs and ultra-high-net-worth buyers
In a market where premier land is scarce and entitlement certainty is priceless, 27600 Altamont Road stands apart not simply as a parcel, but as a fully realized architectural opportunity, ready for its next chapter.







