Interdisciplinary Learning

Page 1

Interdisciplinary Learning

ABOUT BNIM

BNIM is an innovative leader in designing high performance environments. BNIM’s instrumental development of the USGBC, LEED, and the Living Building concept, combined with projects, methods, and research, shaped the direction of the sustainable movement. Through this involvement, the firm has redefined design excellence to elevate human experience together with aesthetics and building performance. In practice, this multifaceted approach to design excellence has yielded national acclaim, including the AIA National Architecture Firm Award, and consistent design recognition nationally and internationally. BNIM is Building Positive, a notion that describes how our practice leverages its collective capacity for design thinking to solve issues at every scale in a way that is focused on building the positive attributes of community and the built environment. Through an integrated process of collaborative discovery, BNIM creates transformative, living designs that lead to vital and healthy organizations and communities.

Interdisciplinary Learning

Innovation is about collision.

Innovation is all about collision.

Many contemporary university buildings are being designed as academic hubs that house or support multiple schools and departments. These types of facilities can promote spontaneous and chance interactions between disciplines by way of strategically designed collision spaces such as shared common zones for focus and collaboration, open circulation systems, small nooks, stairway landings, study areas, and multi-use breakout rooms. The spaces encourage human connection and cross pollination of ideas, effectively cultivating the potential for innovation.

Interdisciplinary learning has the potential to create a backdrop for future transformational moments – the birth of new disruptive ideas, innovative breakthroughs, first encounters that will lead to globally impactful collaborations.

Our work with higher education institutions across the country reflects the adoption and permeation of this collaborative future for education. When students and faculty have access to a hub that is specifically designed to encourage the intersection of arts, education, technology, research, collaboration, and other disciplines, a cross-pollination of ideas begins to happen that, in time, creates extraordinary outcomes. To reflect on the etymology of the term “alma mater,” our clients are creating places that act as a “fostering mother” – to ideas, knowledge, discovery, creativity, collaboration, nature, and the human spirit.

is building positive

Human-Purposed Integrated Design

We deliver beautiful, integrated, living environments that inspire change and enhance the human condition. This is BNIM’s core purpose, and it guides and informs our approach to design. To accomplish this, we employ a process that we call HumanPurposed Integrated Design, or HPID, which guides us to create solutions that advance human and organizational potential and building performance through design. For higher education, this means helping students, faculty, staff, researchers, and investigators achieve more while working in environments that are better for them, more responsible to natural systems, and less expensive to own and operate.

SEATON HALL ADDITION AND RENOVATIONS KANSAS STATE UNIVERSITY

Long Life, Loose Fit

By designing an academic facility that brings students and faculty from various disciplines together, colleges and universities help to spur the evolution of our national and global economy to be one that breeds creativity and innovation. In working with educational institutions across the county, we understand that the nature of pedagogy is continually evolving. Each semester brings expands different learning styles. Flexibility for the future is an important consideration for academic facilities. Designing for interdisciplinary learning embraces flexibility, creating transformational academic spaces - from focused study areas to collaboration spaces to state-of-the-art laboratories and studios - that are designed to not simply accommodate change but to encourage innovation.

Benefits of Interdisciplinary Learning

Interdisciplinary learning supports collaboration between disciplines and encourages students to make meaningful connections across academic fields. Benefits of interdisciplinary learning can include increased motivation among students to seek out topics of interest and purpose, an in-depth understanding of material, development of critical thinking and research skills, formulation of new ideas from different perspectives, and enhanced creativity [1]. These benefits of interdisciplinary study, while enhancing students’ educational experiences, can also prepare students for their future career pathways. Similar to pedagogy, the workforce

is building positive
BLOCH EXECUTIVE HALL UNIVERSITY OF MISSOURI-KANSAS CITY

is ever evolving. It is important to employers that students are entering the workforce equipped with both field-specific technical skills and baseline knowledge, critical thinking ability, and effective communication skills[2]. However, reports indicate that less than 30% of employers find graduates are prepared with these holistic qualifications[2]. Interdisciplinary learning can strengthen students’ comprehension across disciplines and successful application of knowledge in the workplace and beyond [2]

[1] What are the benefits of interdisciplinary study? (2019, March 1). The Open University. open.edu/openlearn/education/what-are-the-benefits-interdisciplinary-study

[2] Bear, A., Skorton, D. (Winter 2019). The World Needs Students with Interdisciplinary Education. Issues in Science and Technology 35, no. 2, 60-62. https://issues.org/the-world-needs-students-with-interdisciplinaryeducation/

UNIVERSITY OF IOWA INFORMATICS INITIATIVE (UI3)
“With BNIM’s leadership we were able to achieve a new paradigm for collaborative science and research. The building is a tremendous asset in the recruiting process.”
is building positive
IRMA GIGLI, MD - DEPUTY DIRECTOR EMERITUS, IMM UNIVERSITY OF TEXAS HEALTH SCIENCE CENTER AT HOUSTON
FAYEZ S. SAROFIM RESEARCH BUILDING UNIVERSITY OF HOUSTON HEALTH SCIENCES CAMPUS

University of Iowa Informatics Initiative (UI3)

The following case studies demonstrate academic facilities designed to support interdisciplinary learning initiatives:

The University of Iowa Informatics Initiative (UI3) was built out on the fifth floor of the existing College of Public Health Building on the University of Iowa campus. The space incorporates the latest technologies, intentionally flexible spaces, and various types of environments to foster collaboration between researchers, graduate students, and staff from various disciplines across campus.

MU Christopher S. Bond Life Sciences Center

The Life Sciences Center at the University of Missouri - Columbia unites faculty and students from several schools and programs into one, collaboratively focused research center. The Colleges of Agriculture, Food and Natural Resources, Arts and Sciences, Veterinary Medicine, Human and Environmental Sciences Engineering, and the School of Medicine engage in joint research into genomic and biomolecular structures. In this facility, students, faculty, and researchers are equipped with state-of-the-art laboratories, shared meeting areas and public spaces provide unsurpassed opportunities for interdisciplinary biomedical science and agricultural biotechnology research.

UI Seamans Center for the Engineering Arts and Sciences - South Annex Addition

The South Annex Addition to the Seamans Center for the Engineering Arts and Sciences builds a larger community within the entire engineering facility to foster innovation in teaching, learning, and discovery. The engineering community at the University of Iowa is brought together through formal and informal research spaces, varied sizes of active learning classrooms, student development and tutoring spaces, and the creation of a new common lobby centered around a technology-rich student project design studio.

is building positive

KSU Seaton Hall Renovation and Addition

Located in the heart of the Kansas State University campus network, the new addition to Seaton Hall, which brings together two historic renovated buildings for the College of Architecture, Planning, and Design, was designed to become a hub of interdisciplinary interaction, engaging KSU in a unified expression of innovation, excellence, and sustainability.

UMKC Bloch Executive Hall

The Henry W. Bloch Executive Hall for Entrepreneurship and Innovation provides new spaces for the demands of increased student population, the specialized needs of entrepreneurial education programs and to serve the growing executive education programs of the Bloch School. The facility provides multiple flexible and active learning classrooms, seminar rooms, finance lab, design-led innovation laboratory, space for prototyping entrepreneurial concepts, and an open, light-filled lobby that connects students from across the school.

JCCC Fine Arts and Design Studios

The Fine Arts + Design Studios (FADS) building at Johnson County Community College (JCCC) brings together the following disciplines into a single, carefully crafted facility: graphic design, sculpture, ceramics, metals, painting, drawing, photography, and filmmaking. The building and its spaces exemplify the notion of learning by doing, providing a framework for new synergies and enhanced collaboration across disciplines that were previously dispersed across the suburban campus.

KSU FASTER

The master planning and programming study for the College of Agriculture at Kansas State University (KSU) was a comprehensive study that evaluated over 1.1M SF of existing facilities. BNIM worked with 11 departmental groups to create a phased concept design with the overall goal to elevate the College of Agriculture from a top 20 program into the top 5 national ranking. The study identified an additional need for 125,000 SF of research space; 59,000 SF of teaching space; 79,000 SF of office space; and 122,000 SF of greenhouse space. The proposed expansion included two new buildings and three new greenhouses; and renovating existing space.

CSU San Marcos Integrated Sciences and Engineering Building Feasibility Study

Prompted by existing space constraints and deficits, need to provide space for a new engineering department, and need to accommodate future growth in the College of Science and Mathematics (CSM), CSU San Marcos engaged BNIM to develop a feasibility study for a new academic building. The design team developed a program and Zero Net Energy concept design primarily composed of teaching and research laboratories, classrooms, student spaces, and faculty and staff offices. Recommendations are based on University goals to raise the profile of CSU San Marcos; strengthen partnerships with local industries; support innovative learning and research on campus; and allow for a collaborative, interdisciplinary culture. biotechnology research.

ISU Therkildsen Industrial Engineering Building

The design of Therkildsen Industrial Engineering Building has been carefully and thoughtfully organized to foster community among industrial engineering scholars. This design creates a unique identity for the Industrial and Manufacturing Systems Engineering (IMSE) Department, elevating and enhancing the student, faculty, and visitor experience with a collaborative, light-filled, and engaging spirit. The design expands the ability to effectively provide innovative teaching, impactful research, and community engagement.

is building positive

Eden Hall Campus Master Plan

The Eden Hall Campus (EHC) will be home to the School of Sustainability and the Environment. BNIM and Andropogon worked to align the vision of stakeholders to plan a restorative campus that will enhance the regional environment. The farmland and woodlands will be utilized to support the University’s academic and educational outreach programs, and will also be available for public education and research. A deep ecological study of the land and its carrying capacity guided the planning and design process in determining the most appropriate solutions for EHC’s waste water treatment, energy generation, and production of a healthy food supply for Chatham.

UCLA WIN-GEM

The development of the Western Institute of Nanoelectronics (WIN) and Green Engineering and Metrology (GEM) building (Phase I) on the UCLA campus represents the highest of aspirations for the research community in supporting the advancement of clean and green technologies. The facility was thoughtfully designed for collaborative, multidisciplinary research, and the building itself is thought of as an expression and armature of that research. The total engineering complex is comprised of flexible wet and dry research laboratories; faculty, graduate and post-doc offices; conference spaces; supporting interaction space within various configurations; and a Conference Center that includes flexible meeting rooms and a 250-seat multi-functional auditorium.

UCLA Medical Education and Biomedical Library Study

The study creates new outdoor spaces to promote campus community and interprofessional activities including a future Tiverton Health Sciences Commons, planned as a largely pedestrian outdoor space adjacent to the Botanic Garden which will connect the front doors of the Schools of Medicine, Dentistry, Public Health and Nursing. The new commons relates directly to the newly renovated Court of Sciences due north in the heart of the main campus. The master plan includes a second new outdoor, public space north of the new building and east of the new library.

is building positive
University of Iowa Informatics Initiative (UI3) university of Iowa iowa city, iowa

The University of Iowa introduced a campus-wide initiative designed to foster collaborations and cultivate research opportunities across disciplines. The initiative joins the computational discipline with the humanities, arts, natural, biological, health, and social sciences to identify and resolve current issues. Researchers and faculty who work within these different disciplines needed a place that would allow them to connect and collaborate, to work together, and to work privately.

The University of Iowa Informatics Initiative (UI3) creates a physical and intellectual home for the initiative within existing building shell space at the university. Establishing a culture and identity for this new collaboration was an important goal of the project. While the individuals who are part of the program are dispersed across campus, a common ground is found in the work they do. By offering a rich variety of functional opportunities, the design ensures users are attracted to the space and utilize it regularly, regardless of where their departments are located. The space draws together these individuals, who share a common pursuit, creating opportunities that lead to academic collaborations and innovations.

11,913 SF Completion in 2016

During the programming process, BNIM and the University of Iowa determined that people – and the connections between them – were the most important element that a space can offer. The design was shaped by organizing a spectrum of spaces to support various modes of work, optimize interactions, interweave relationships, and promote visual connections while respecting appropriate levels of privacy. The diverse disciplines and backgrounds within the initiative necessitated a single unifying element. Design cues were drawn from genetics – a human data element and common thread that binds these disciplines together. Visual connections through and across the entire space inspire curiosity and promote engagement.

Bent linear ribbons, inspired by the graphic linearity of human genome mapping and the ribbon-like structure of DNA, serve as a spatial organizing device. This unifier was interpreted in various scales, from the organization of spaces united by contiguous bands, to surface treatment such as glazing frit patterns. The frit pattern, which provides privacy and writable space at key areas, was based on the pattern of the human genome and developed using digital algorithms. Within the pattern itself the coded message can be found, revealing the name of the initiative. This series of consistent gestures at various levels and scales establishes and reinforces a sense of place and identity unique to the program.

A central core of collaboration rooms spans east-west in the space, woven together with a series of bent wood ribbons. Secondary ribbons rendered in white capture and organize smaller scale collaboration and focused workspaces adjacent to those contained by the central spine. These spaces take advantage of their proximity with connectivity to the central spine as well as views to the exterior.

is building positive
is building positive
is building positive
is building positive
is building positive
is building positive

AWARDS

IIDA Mid-America Design Awards

Gold Award, Higher Education, Research

2017

“Working with BNIM was great. They were very collaborative and worked with us to help us better define our needs and vision, and then they came up with a wonderful design. We wanted to create a space that would help us bring the Informatics community together — from all corners of the University, from art to medicine — to foster collaborations, scholarship, and training.”

Christopher S. Bond Life Sciences Center

is building positive
university of missouri - columbia Columbia, Missouri

The Life Sciences Center at the University of Missouri - Columbia unites faculty and students from several schools and programs into one, collaboratively focused research center. The Colleges of Agriculture, Food and Natural Resources, Arts and Sciences, Veterinary Medicine, Human and Environmental Sciences Engineering, and the School of Medicine engage in joint research into genomic and biomolecular structures. State-of-the-art laboratories, shared meeting areas and public spaces provide unsurpassed opportunities for interdisciplinary biomedical science and agricultural biotechnology research.

239,714 GSF Completion in 2004

With the idea that a healthy building illustrates the principles that life sciences embody, research, teaching and education converge in naturally daylit laboratory spaces, generous meeting areas, and informal teaming areas located off of the primary circulation spaces. The building features a central daylit atrium, strategically connecting the wings in an east-west direction to create a lively corridor called ‘Main Street.’ The naturally lit atrium, which centralizes faculty and research offices, a café and one of the reading rooms, encourages and facilitates interaction among users.

is building positive
“The Center is kind of a catalyst that brings people together doing such different things.”
MANNIE LISCUM BIOLOGICAL SCIENCES PROFESSOR AND ASSOCIATE DEAN OF GRADUATE STUDIES

“Most researchers would argue that, when it comes to science, collaboration is central to success. Just over a decade ago an MU experiment in brick and mortar set out to prove it. Today the Bond Life Sciences Center has largely confirmed its planners’ vision, demonstrating to scientists and scholars here at MU and around the world that, if knowledge is power, then shared knowledge is power2.

“This place is intended to be a coordinated organism, not a hotel for good scientists,” said Jack Schultz, director of the Bond LSC since 2007. “It’s been a fascinating but slow process to see investigators gain from working with others outside of their field who overlap in an aspect of their research.”

Both the National Academy of Sciences and National Institutes of Health (NIH) agree this sort of convergent science, cutting across disciplines, is the future. The former highlighted the Bond LSC in a 2014 report as among those programs that excel in being exceptionally “nimble in their focus” of steering faculty toward interdisciplinary convergence and novel research approaches.”

Excerpt from Discovery - Bond Lifescience Center Annual Report 2014

is building positive

"The Building has been set up with lots of what we call ‘collision zones.’ In Chemistry, when things collide you get a reaction. When two people can interact in a hall or corner and discuss an idea, that's when you get new ideas and new things happening. Students see how this happens and they grow and thrive under this."

AWARDS

2005 Honor Award, Excellence in Architecture

AIA Kansas

2005 Merit Award

AIA Mid-Missouri

The MU Bond Lifesciences Building has since 2016 received federal competitive grants totalling -

FY18 $13.3 M

FY19 $16.8 M

FY20 $15.2 M

Overall, with approximately 3% of faculty at MU, the LSC generates approximately 10% of competitively funded research expenditures at MU.

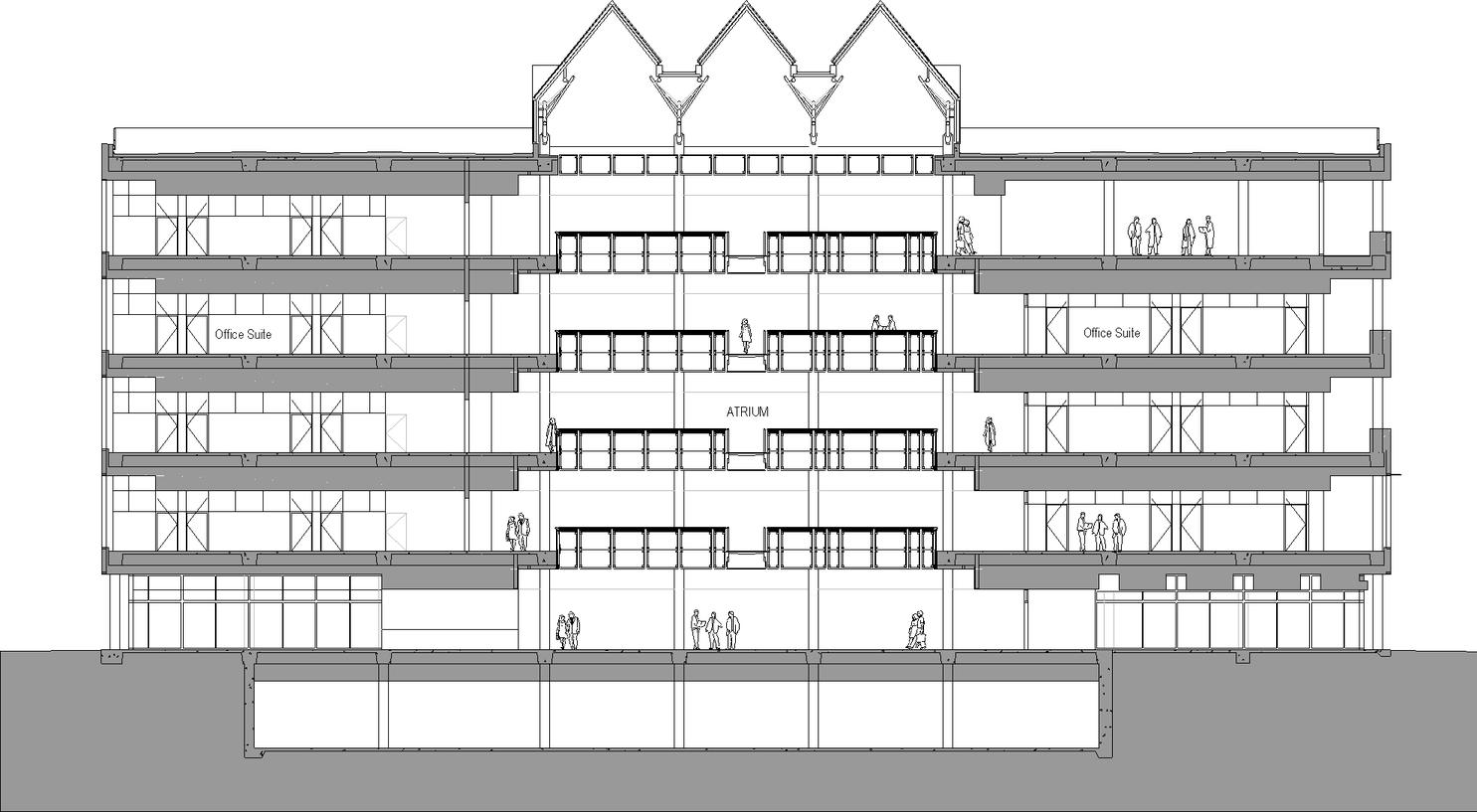
To Veterinary Medicine Campus Future Expansion C o ll e g e A v e nu e R o llin s S t r e e t Student Housing Sanborn Field Service Building is building positive
SECTION - LABS
- ATRIUM
SECTION
is building positive

Seamans Center for the Engineering Arts and Sciences

south annex addition University of iowa, iowa city is building positive

The South Annex Addition to the Seamans Center for the Engineering Arts and Sciences will build a larger community within the entire engineering facility and foster innovation in teaching, learning, and discovery.

The Annex includes new formal and informal research spaces, varied sizes of active learning classrooms, student development and tutoring spaces, and the creation of a new common lobby centered around a technology-rich student project design studio that brings the entire engineering community together. Renovation work in the existing building includes creating an Engineering Learning Commons adjacent to the engineering library space. The Commons will include flexible study and presentation spaces for faculty and students use.

68,094 SF Completion 2017

1 Fluids Workshop 2 Fluids Teaching Lab 3 Classroom 4 Office 5 Meeting 6 Mechanical Existing Building 0 12’
1 1 3 2 4 4 4 4 6 5 is building positive
LEVEL
is building positive
Lighting is Designed to 30% Below ASHRAE 90.1

SUSTAINABLE / NOTABLE FEATURES

• 68,094 SF facility

• Building will serve as a living laboratory that creates an attitude of discovery and innovation.

• The majority of the building is elevated above the grade plane to increase open space on the urban site and to create covered bicycle parking.

• The elevation also allows air and light to create a more habitable urban environment on a congested campus site.

• Above and beyond approach to universal design includes a digital kiosk with assistive learning technology and a comprehensive wayfinding strategy.

• The site / building design offers 24/7 accessible access up and down a steeply sloped site, which was previously a significant barrier in a heavily utilized pedestrian path.

• Prior to the project, stormwater would run-off down a steep slope to the storm sewer and near by river. The site now incorporates biocells to slow, cool, and clean storm water.

• Native landscaping and ground covers also create a more sustainable site condition.

• There is enough detention to reduce the postdeveloped 100-year storm to be less than half of the pre-developed rate.

is building positive
is building positive
is building positive

undergraduate enrollment has doubled, reaching

2,200 students since the expansion

is building positive

AWARDS:

2018 AIA Central States Region Citation, Design Excellence Award

2018 AIA Iowa Merit, Excellence in Design

is building positive

234 solar roof panels with the capacity to produce

76,000 kWh of energy per year, saving energy costs

Seaton Hall and Seaton Court Renovation and Expansion

Kansas State university, Manhattan, kansas

is building positive

Over the last decade, the College of Architecture, Planning, and Design (APDesign) at Kansas State University has risen in stature and recognition among the nation’s design programs. Each semester, APDesign students, faculty, and visitors together explore the potential of design to impact human experience, health, and happiness – the new and renovated facility is born of these same pedagogical objectives.

The new addition stitches together the two renovated historic buildings of Seaton East (1908) and Mechanics Hall (1874), and is punctuated by “The Jewel,” a transparent, three-story social container and entry courtyard that assumes the new face of APDesign. Located in the heart of the campus network, the facility is a hub of interdisciplinary interaction, engaging KSU in a unified expression of innovation, excellence, and sustainability.

With Ennead Architects and Confluence 191,247 SF Completed in Fall 2017 LEED Gold Targeted

40% water use reduction and 50% potable water reduction

is building positive

AWARDS

2019 AIA Kansas City

Architecture XLarge: Merit, Design Excellence Awards

2018 Association of General Contractors Kansas Building Award

2018 ASLA Prairie Gateway Chapter Honor Award, Design

2018 AIA Kansas Honor, Design Excellence Awards

2016 ASLA Central States Merit Award, Design (unbuilt)

is building positive
UP Special Stacks Making Lab Small CNC Lab Main Electrical S Center for Design Excellence Finishing Lab Upholstery Lab Room Room Room Studio Studio Studio Studio Spray Metal Lab Glue Lab Spray Finish Lab Lab Fine Woodworking Lab Office Fab Lab Link Information Commons Fabrication Lab Weigel Library Studio UP SN C O Link OPEN TO BELOW OPEN TO BELOW Room Room Room Office Office Shared Office Office Office Office OfficeOffice Office Office Office Office Shared Office Double Room Crit Room Crit. Room Room Studio Studio Studio Studio Spray Booth Gallery Upper Info Laser Room Plot Room Tech-Rich Studio Department Suite Lobby Auditorium S Support Room Department Suite Studio Studio Department Suite Student Services Open Crit Open Crit Porch Open Crit Porch Porch Porch Basement Level 1 is building positive
UP UP DN E UP Room Room Crit Room Studio Room Studio Studio Shared Office Office Office Office Office OfficeOffice Office Office Office APD BELOW Studio Studio Studio Studio Studio Crit Room Clean Room Crit Room Spray Booth BELOW BELOW Crit Seminar Room Plot Room Laser Room BELOW BELOW OPEN TO OPEN TO BELOW BELOW OPEN TO BELOW OPEN TO BELOW OPEN TO BELOW Storage Office Office Auditorium Terrace Crit Room OPEN TO BELOW Conf. Room/Crit Conf. Room Crit Studio Suite UP Penthouse Lobby Level 2 Level 3
is building positive

35% energy savings from baseline

Bloch Executive Hall

UNIVERSITY OF MISSOURI - KANSAS CITY MISSOURI

is building
positive

Entrepreneurship and Innovation is designed for high levels of collaboration between students and faculty in a variety of active learning classrooms, similar to the interdisciplinary collaboration within health sciences facilities. The building serves as a social hub for students on campus, providing new spaces for increased student population, the specialized needs of entrepreneurial education programs, and growing executive education programs. Its design is intentionally simple and elegant. It includes a 200-seat auditorium, multiple flexible- and active learning classrooms, seminar rooms, a finance lab, faculty offices, and prototyping and business incubator spaces. The upper three floors are connected by an open, light-filled lobby that includes an amphitheater.

With Moore Ruble Yudell
1 2 3 4 5 6
68,000 SF Completion in 2013 LEED Gold Certified 1 Marion H. Bloch Park 2 Bloch School Courtyard 3 Henry W. Bloch School 4 Henry W. Bloch Executive Hall 5 Student Union 6 Entrepreuner’s Hall of Fame / Path of Innovation
is building positive

Level One connects with Level One of the existing Bloch School and has a west-facing, grade-level entry providing convenient access to the largest parking area of the Bloch School. This floor houses lobby spac, the behavioral research lab and building support spaces for mechanical and other uses.

The main entries are on Level Two, which houses a 200-seat auditorium, three active learning classrooms, a finance lab, small group study rooms and informal student study areas. The spaces are organized along a north-south axial lobby space. At the center of the building is an amphitheater connecting the three main levels of the building with a light-filled, three-story lobby.

1 2 3 4 5 6 7 8 8 8 9 10 11 12 13 14 14 15 15 16 17 is building positive

The Institute for Entrepreneurship and Innovation is the primary occupant of Level Three. The spaces include the Design-Led Innovation Lab, one 60seat active learning classroom, an 80-seat tiered classroom, small group study rooms and institute offices wrapped around central lobby space.

Level Four will house a second 80-person tiered classroom, the remaining active learning classroom/ boardroom, small group meeting/office rooms for departmental use and the dean’s suite. There is also a roof garden that opens to the central lobby space and serves the entire building for small group study, relaxation

1 Mechanical Room 2 Individual Research 3 Team Research 4 Conference 5 Office 6 Research Assistants 7 Lobby 8 Active Learning Classroom 9 Auditorium 10 Amphitheater 11 Cafe 12 Womens 13 Mens 14 Atrium 15 Group Study 16 Finance Lab 17 Quiet Study 18 Tiered Classroom 19 Executive Mentor 20 Open Teaming 21 Venture Accelerators 22 Prototyping 23 Brainstorming 24 Design-led Innovation Lab 25 Break-out 26 Seminar 27 Rooftop Patio 28 Dean’s Conference 18 19 19 20 21 22 23 4 5 8 24 5 26 26 12 13 20 27 28 29 5 5 18 4 4 8 30 12 13 20 0 20 40 60 FT 25 25 25 25
and special events.
is building positive

AWARDS

2015 IIDA Mid America

Mid-America Design Awards - Silver AwardHigher Education

2014 Precast/Prestressed Concrete Institute (PCI) Best Higher Education/University Building

2014 Precast/Prestressed Concrete Institute (PCI) The Harry H Edwards Industry Advancement Award

2014 AIA Kansas City

Merit Award, Excellence in Architecture

2014 AIA Kansas

Excellence in Architecture Merit Award

2013 Precast/Prestressed Concrete Institute (PCI) Honorable Mention

2013 Design-Build Institute of America (DBIA) Mid-America Regional Award

2013 Concrete Promotional Group (CPG) Excellence in Concrete Award – High Rise

2013 AIA Kansas City

Citation Award – Architecture

2013 Southtown Beautification Award

Fine Arts + Design Studios

JOHNSON COUNTY COMMUNITY COLLEGE OVERLAND PARK, KANSAS

is building positive

The new Fine Arts + Design Studios building at Johnson County Community College (JCCC) brings together the following disciplines into a single, carefully crafted facility: graphic design, sculpture, ceramics, metals, painting, drawing, photography, and filmmaking. The building and its spaces exemplify the notion of learning by doing, providing a framework for new synergies and enhanced collaboration across disciplines that are currently dispersed across campus.

In addition to providing flexible and vibrant interior studios, the building is thoughtfully sited to provide intimately scaled exterior spaces for the creation and display of art, and integrate and strengthen campus connections. The building will also anchor a new arts neighborhood on campus with its adjacency to JCCC’s successful Wylie Hospitality and Culinary Academy Building and the Nerman Museum of Contemporary Art.

The design of the Fine Arts + Design Studios project has included careful consideration of the building envelope, energy use, occupant health and well-being, building systems and connection to the surrounding campus. The project is currently on target to achieve a LEED V4 Silver rating. It is anticipated that the building will achieve a total energy savings of about 25% over the baseline case.

41,650 SF Completed in 2018
is building positive
1 1 1 1 2 3 4 4 4 7
FIRST FLOOR
5 2D Arts 6 Graphic Design 7 Multi-Use Space 8 Student Production/Lounge 9 Crit/Gallery Space Circulation through the building South Entry North Entry 1 Ceramics 2 Metalsmithing 3 Photo + Film 4 Sculpture
3 3 3 6 6 6 6 6 6 5 5 8 9
SECOND FLOOR

North Entry

Informally referred to by the project team as “the Street” this north entry and corridor which expands to the east facade and connects to the southeast entry will serve as gallery space for both 2D and 3D art to be displayed. Exterior walkways allow for the viewing of work form the outside in through full height glazing along “the street”. The panelized expanded metal ceiling above provides an overhead canvas for hanging work while integrating a flexible track lighting system. The Mixed-Use space beyond is not dedicated to a specific department and can therefore be used for a variety of purposes such as formal gallery space, special exhibits, special project space, classroom, etc. It has fully operable glass walls that can be opened up for special events. The connecting stair with clerestory above filters natural light into the space. This is duplicated near the southeast entry as well.

is building positive
is building positive

Crit/Gallery Space

Located on the second floor near the south connecting stair, this Crit/Gallery space is another area that is not dedicated to a specific department and, therefore, providing flexibility to the users. Both planned and spontaneous activities will take place here ranging from special exhibits, small group presentations, special projects, and classes.

is building positive

Student Production/Lounge

This Student Production space and lounge will not only serve as a space to help students get their work done outside of class but will also encourage the cross-pollination of programs as a place to gather and retreat away of the classrooms and studios. Visibility to and collaboration with students from the various art and design programs is a critical project goal. This space provides access to network computers, art supplies and equipment, storage for work, vending machines, and a variety of postures ranging from comfortable seating to standing. This area is located near the connecting stair to the gallery space below with other amenities directly adjacent including Print Lab/Materials Check-Out, Library for shared resources, and staff and faculty offices. All the gypsum walls are constructed with plywood backing so that various art can be displayed throughout all public corridors. Natural daylight floods the space by way of clerestories and large windows.

Painting Studio

The Painting studio with optimal northern light, gallery walls, high ceilings, flexible lighting, open floor space, updated technology and various storage spaces will support the teaching of the arts. A specialized ventilation system is integrated into the walls to maintain healthy indoor air quality.

AWARDS

2020 Kansas City Business Journal Capstone Award

2019 AIA Kansas City Architecture Medium: Merit Design Excellence Awards

2019 AIA Kansas Merit Award, Architectural Project

2019 AIA Central States Region Honor Award

Fine Arts + Design Studios 97
is building positive Summer and Winter Shade Overlays Plant Typologies Based on Sun Summer 9 am 12 am 3 am Full Sun Part Sun Full Shade Winter 9 am 12 am 3 am

Landscape

The campus landscape at Johnson County Community College (JCCC) is similar to other community college landscapes in many ways, yet is also uniquely different. The gathering spaces between the academic buildings vary in scale, from large, more public courtyard spaces or amphitheater style spaces down to small, very intimate areas for personal study or reflection. All of these spaces, despite their scale, are enhanced by a lush, very diverse and comprehensive palette of plant material, unlike the majority of community college campuses. The landscape at the Fine Arts + Design Studios building is no different, it is informed by its contextual surroundings and microclimate and establish unique landscape typologies that vary in function and style. There is a large, minimal lawn area for active play, a shaded hardscape area for passive gathering and maybe most importantly, a sculpture garden, where large scale art pieces created by the students in the new academic building can be showcased, amid a dense ground plane of ornamental plantings. All of these plantings are native, assisting in stormwater treatment and minimizing long term maintenance needs.

Integrated Sciences and Engineering Building Feasability Study SAN MARCOS, CA

is building positive

Located on a 304-acre hillside overlooking the city of San Marcos, the California State University San Marcos (CSUSM) has far exceeded growth projections with current enrollment of over 17,000 students. In particular, the College of Science and Mathematics (CSM) has experienced growth exceeding expectations. Prompted by existing space constraints and deficits, a need to provide space for a new engineering department, and accommodate future college growth, the University engaged BNIM to develop a feasibility study for a new 110,000 GSF academic building.

80,000 SF 304 acre

BNIM, in collaboration with RFD, developed a program and Zero Net Energy concept design for the College of Science and Mathematics, comprised of the physics, computer science, software engineering, and electrical engineering departments. Primarily composed of teaching and research laboratories, classrooms, student spaces, and faculty and staff office spaces, the Integrated Sciences and Engineering Building will be the first phase in the design and construction of a series of projects that will support the growth of CSM.

is building positive

Collectively, the design team set out to imagine the future of CSM, and the impact this could have on the greater CSUSM community. A series of workshops, interviews, and interactive presentations were held to gain feedback which directly informed recommendations for the project. The future College of Science and Mathematics Academic Building will be designed to raise the profile, exposure, and visibility of CSU San Marcos; strengthen partnerships with local industries; support innovative learning and research on campus; and allow for a collaborative, interdisciplinary, & professional culture.

FASTER Feasibility Study and Programming

kansas state university

manhattan, kansas

is building positive

This comprehensive master planning and programming study evaluated over 1.1M SF of existing facilities. BNIM worked with 11 departmental groups to create a phased concept design with the overall goal to elevate the College of Agriculture from a top 20 program into the top 5 national ranking. The study identified additional space needs for research, teaching, offices, and greenhouses. The proposed expansion of facilities will be addressed by building two new buildings, a set of three new greenhouses, and renovating existing research and teaching space to provide opportunities for contemporary models of research, teaching, and collaboration.

385,000 SF Completion in 2015 (study)
is building positive
is building positive

Eden Hall Campus Master Plan

CHATHAM UNIVERSITY GIBSONIA PENNSYLVANIA

is building
positive

Chatham University’s Eden Hall Campus (EHC), which is 25 miles north of the main campus in Pittsburgh, Pennsylvania, will be home to the new School of Sustainability and the Environment, and a model sustainable living and learning community for the region and beyond. BNIM and Andropogon worked to align the vision of University stakeholders and plan a restorative campus that will enhance the regional environment, ensure the long-term financial success of the University, and create quality of life and learning for current and future students.

The farmland and woodlands on the EHC will be actively utilized to support Chatham University’s academic and educational outreach programs, and will also be available for public education and research. The campus master plan includes plans for the restoration and adaptation of a number of historic farm buildings and the original homestead mansion, as well as plans for new academic and residential facilities for students and faculty while restoring the natural systems to become learning tools for the school and the larger community.

A deep ecological study of the land and its carrying capacity guided the planning and design process in determining the most appropriate solutions for EHC’s waste water treatment, energy generation and production of a healthy food supply for Chatham. These solutions, in turn, will guide the University in the development of the multidisciplinary curricula that may be engaged at EHC to fully benefit their student population and the community at large.

Location Gibsonia , PA Size 985,000 SF

is building positive
is building positive
is building positive

Therkildsen Industrial Engineering Building

STATE UNIVERSITY
IOWA is building positive
IOWA
AMES,

The design of Therkildsen Industrial Engineering Building has been carefully and thoughtfully organized to foster community among industrial engineering scholars. This design creates a unique identity for the Department of Industrial and Manufacturing Systems Engineering, elevating and enhancing the student, faculty, and visitor experience with a collaborative, light-filled, and engaging spirit

79,592 SF

The design expands the ability to effectively provide innovative teaching, impactful research, and community engagement through the following design goals:

- Provide a dynamic system of spaces that integrates teaching, learning, and research in an innovative academic facility

- Create an inviting and inclusive environment that encourages collaboration among students, faculty, staff, and industry partners while enhancing the sense of community for IMSE

- Create a facility for IMSE and the College of Engineering that fosters current program needs yet is adaptable, flexible, and resilient to evolve as the challenges of industry partners, curriculum, pedagogies, and research advances.

is building positive
is building positive

Spaces include advanced manufacturing lab and related shop facilities, flexible labs for collaboration with industry; immersive lab incorporating digital technologies, operational research labs, and human factors research labs. Teaching spaces include active learning classrooms, computer labs, and learning community collaborative settings. Administrative space is provided for departmental, faculty, and student services. The entire facility incorporates a spectrum of social and collaborative spaces to provide a sense of community throughout the building.

is building positive
is building positive

Western Institute of Nanoelectronics

Green Engineering and Metrology

UNIVERSITY OF CALIFORNIA, LOS ANGELES los angeles, california

is building positive

The development of the Western Institute of Nanoelectronics (WIN) and Green Engineering and Metrology (GEM) building (Phase I) on the UCLA campus represents the highest of aspirations for the research community in supporting the advancement of clean and green technologies. The building houses three primary driving Centers of Excellence in the field of nano-systems and clean technology.

The WIN-GEM facility provides space for faculty and their industrial collaborators to perform research and development in energy harvesting, storage, conservation and management. As such the facility is thoughtfully designed for collaborative, multidisciplinary research, and the building itself is thought of as an expression and armature of that research.

With Moore Ruble Yudell 61,625 SF Completion in 2014 LEED Gold certified

SUSTAINABLE / NOTABLE FEATURES

• 61,625 SF facility

• Active chilled beams in dry labs

• Natural ventilation in post doc office suites – mixed-mode VAV

• Demand ventilation in wet labs to reduce air change rates

• Exhaust stream monitoring to reduce fan power

• Fume hood sash management by reduced height to reduce air changes

• Dry lab return air used as supply air in wet research support space alcoves

• Grey water system - reclaims waste RO process water for toilet flushing

• Façade shading element for solar heat gain control

is building positive

Medical Education and Biomedical Library Study

THE UNIVERSITY OF CALIFORNIA, LOS ANGELES

LOS ANGELES, CA

is building positive

BNIM led a comprehensive design team to develop a new building for the David Geffen School of Medicine at UCLA, which will establish a new gateway for the Health Sciences campus, create a front door for the School of Medicine (SOM), and integrate the new building with existing facilities to provide greater campus connectivity and new outdoor spaces. The team developed a Design Brief that includes a space program for the School of Medicine and Library functions, a master plan for the Health Sciences campus precinct, and a conceptual design for a new building in conjunction with the repurposing of an adjacent, existing structure for the Biomedical Library, which will serve the entire campus.

The space program for the new SOM facility includes classrooms and seminar rooms, multi-purpose teaching laboratory space, study and amenity space for students, administrative offices and related building support space.

The plan creates new outdoor spaces to promote campus community and interprofessional activities, including a future Tiverton Health Sciences Commons, planned as a largely pedestrian outdoor space adjacent to the Botanic Garden, which will connect the front doors of the Schools of Medicine, Dentistry, Public Health and Nursing. The new commons relates directly to the newly renovated Court of Sciences due north in the heart of the main campus. The master plan includes a second new outdoor, public space north of the new building and east of the new library

Size 157,223 SF

Completion 2011

SPACES FOR Innovation

SEATON HALL KANSAS STATE UNIVERSITY RESEARCH AND DEVELOPMENT BUILDING PACIFIC CENTER CAMPUS DEVELOPMENT SCHOOL OF MEDICINE RENOVATION UNIVERSITY OF MISSOURI-KANSAS CITY CENTER FOR ADVANCED + EMERGING TECHNOLOGIES / MCC
is building positive
BLOCH EXECUTIVE HALL UNIVERSITY OF MISSOURI-KANSAS CITY SEATON HALL KANSAS STATE UNIVERSITY

SPACES FOR Collaboration

SEATON HALL KANSAS STATE UNIVERSITY AMENITIES BUILDING PACIFIC CENTER CAMPUS DEVELOPMENT SCHOOL OF MEDICINE RENOVATION UNIVERSITY OF MISSOURI-KANSAS CITY
is building positive
PLEXPOD WESTPORT COMMONS KANSAS CITY, MISSOURI COLLEGE OF NURSING BUILDING-BUILDING MODIFICATIONS UNIVERSITY OF IOWA TROXEL HALL IOWA STATE UNIVERSITY RESEARCH AND DEVELOPMENT BUILDING PACIFIC CENTER CAMPUS DEVELOPMENT CENTER FOR ADVANCED + EMERGING TECHNOLOGIES / MCC

AIB COLLEGE OF BUSINESS

Campus Master Plan

CALIFORNIA STATE UNIVERSITY, LONG BEACH

Child Development Center

Presidents Suite

The Pointe Renovation

TOCA (Task Order Construction Agreement)

CALIFORNIA POLYTECHNIC STATE UNIVERSITY, SAN LUIS OBISPO

Kennedy Library Renovation Programming + Feasibility Study

CALIFORNIA STATE UNIVERSITY, SAN MARCOS

Integrated Sciences and Engineering Study

Student Wellness Building Feasibility Study

CAMBRIAN COLLEGE

Cambrian College Energy Center of Excellence

CHATHAM UNIVERSITY

Eden Hall Campus Master Plan

DRAKE UNIVERSITY

Meredith Hall Feasibility Study

Harkin Institute

GEORGIA INSTITUTE OF TECHNOLOGY

Price Gilbert Library and Crosland Tower Renewal

GRINNELL COLLEGE

Nollen House Renovation + Addition

Academic Center Renovation

1127 Park Street Renovation + Addition Study

Grinnell House Renovation + Addition Study

Preschool Psychology Lab Facility Study

IOWA STATE UNIVERSITY

Gerdin Business Building Expansion

Parks Library Window Replacement

Troxel Hall Auditorium

Pearson Hall Classroom Improvements

JOHNSON COUNTY COMMUNITY COLLEGE

Career and Technical Education Building

Fine Arts + Design Studios

KANSAS CITY ART INSTITUTE

Campus Master Plan + Plan Verification

Campus Coffee House

ARTSpace (adaptive reuse)

Jannes Library + Learning Center

New Academic Building Feasibility Study

KANSAS STATE UNIVERSITY

Justin Hall Renovation + Addition Study

Seaton Hall Revitalization + Expansion (with Ennead)

FASTER Feasibility Study + Programming

McCain Auditorium Study + Concept Design

“BNIM's leadership has been critical to the success of this project. We have been greatly impressed by the depth of their staff at all levels, whether related to design or technology, building codes, sustainability, envelope detailing, waterproofing or specifications. Their goal has been to make the finished product the best it can be, consistent with our budget.”
JANE CURRY, SENIOR PROJECT MANAGER PRINCETON UNIVERSITY LEWIS ARTS CENTER
is building positive

LITTLE BIG HORN COLLEGE

Health + Wellness Center

MARQUETTE UNIVERSITY

New School of Business

METROPOLITAN COMMUNITY COLLEGE

Blue River Campus Public Safety Renovation & Addition

Blue River Campus New Facilities Building

Blue River Campus Public New Career Training Facility

Longview Campus Concept Study

METROPOLITAN COMMUNITY COLLEGE- OMAHA

Center for Advanced and Emerging Technology

MIDDLEBURY COLLEGE

Middlebury College Bicentennial Hall

MIRACOSTA COMMUNITY COLLEGE DISTRICT

Master Services Agreement

MISSOURI STATE UNIVERSITY

Walnut Street Housing

(with Hanbury Evans Wright Vlattas)

Blair-Shannon House Renovation

Freudenberger House Renovation

Hammons House Renovation

Hutchens House Renovation

Kentwood Hall Study

Garst Dining Center Renovation and Addition

Looney Hall Renovation (West Plains Campus)

Jordan Valley Innovation Center Renovation

Ozarks Education Center, Bull Shoals Field Station

MISSOURI UNIV. OF SCIENCE & TECHNOLOGY

Student Success Center Programming Study

MONTANA STATE UNIVERSITY

Montana State University EPICenter + NIST Report

Gaines Hall Renovation

OBERLIN COLLEGE

Green Arts District Master Plan

Master Plan Programming + Planning

PALOMAR COMMUNITY COLLEGE

Maintenance and Operations Facility

PRINCETON UNIVERSITY

Lewis Center for the Arts

(with Steven Holl Architects)

RESEARCH COLLEGE OF NURSING

Classroom Renovations

BNIM Higher Education Experience

ROCKHURST UNIVERSITY

Campus Master Plan

Parking Structure

RICE UNIVERSITY

Anderson Hall Improvements

SOUTH DAKOTA STATE UNIVERSITY

Visual Arts Building (with Koch Hazard Architects)

TARRANT COUNTY COLLEGE DISTRICT

Center of Excellence for Energy Technology

THE UNIVERSITY OF BRITISH COLUMBIA

C.K. Choi Institute of Asian Research (Sustainable Design Consultant)

UNIVERSITY OF CALIFORNIA - BERKELEY

Moffitt Library Renovation

UNIVERSITY OF CALIFORNIA - LOS ANGELES

Medical Education Building + Biomedical Library (with Lake | Flato Architects)

Engineering VI Phase I (WIN-GEM) (with MRY)

Engineering VI Phase II (with MRY)

UNIVERSITY OF CHICAGO

Stevanovich Institute on the Formation of Knowledge (with UrbanWorks Architecture)

UNIVERSITY OF GEORGIA

Odum School of Ecology

UNIVERSITY OF HOUSTON

Campus Expansion Site Study

Michael J. Cemo Hall

UNIVERSITY OF IOWA

Visual Arts Building (with Steven Holl Architects) Newton Road and Melrose Avenue Parking Facilities Architectural Enhancements

Museum of Art

Psychological + Brain Sciences Center

Stuit Hall Renovation

Art Building West Flood Recovery

Art Building Flood Replacement Project (with Steven Holl Architects)

Seamans Center for the Engineering Arts + Sciences

University of Iowa Informatics Initiative (UI3) College of Nursing Building

UNIVERSITY OF KANSAS

KU Endowment Association Office Renovation

Marvin Hall Addition + Renovation Study

School of Engineering M2SEC Research Building

NIST Grant

UNIVERSITY OF KANSAS MEDICAL CENTER

Parking Garage #5

UNIVERSITY OF MISSOURI

Christopher S. Bond Life Sciences Center

Virginia Avenue Parking Garage

Maryland Avenue Parking Design-Build Guidelines

Reynolds Alumni Center

Journalism School Renovations

Parking Garage No. 7

Patient-Centered Care Learning Center

School of Music Building

UNIVERSITY OF MISSOURI - KANSAS CITY

The Henry W. Bloch Executive Hall for Entrepreneurship + Innovation

Cherry Street Parking Garage

Heritage Hall Study

Hospital Hill Parking Garage

Hospital Hill Health Sciences Education + Research Buildings Planning Study

School of Medicine Renovation

UNIVERSITY OF NEBRASKA MEDICAL CENTER

Harold M. + Beverly Maurer Center of Public Health

UNIVERSITY OF NORTH CAROLINA CHAPEL HILL

Carolina North Utilities Master Plan

UNIVERSITY OF NORTHERN IOWA

University Center Feasibility Study

UNIVERSITY OF SOUTHERN CALIFORNIA

USC Viterbi Dr. Allen & Charlotte Ginsburg

Human-Centered Computational BuildingConcept Design

UNIVERSITY OF TENNESSEE-CHATTANOOGA Sustainability Workshop

UNIVERSITY OF TEXAS HEALTH SCIENCE

CENTER AT HOUSTON

University of Texas Flood Mitigation + Hazard Plan

University of Texas Central Campus Master Plan

University of Texas Campus Redevelopment

School of Nursing + Student Community Center

The Fayez S. Sarofim Research Building

Mental Sciences Institute

UNIVERSITY OF WISCONSIN - MADISON

School of Nursing (Programming + Design Development Consultant)

WASHINGTON UNIVERSITY IN ST. LOUIS

East Precinct Framework Plan

New Parking Facility

YORK UNIVERSITY

Computer Science Building (Sustainable Design Consultant)

is building positive
2460 PERSHING RD SUITE 100 KANSAS CITY MO 64108 816 783 1500 BNIM.COM 845 15TH STREET SUITE 305 SAN DIEGO CA 92101 619 795 9920 317 6TH AVE SUITE 100 DES MOINES IA 50309 515 974 6462 is building positive

Turn static files into dynamic content formats.

Create a flipbook
Issuu converts static files into: digital portfolios, online yearbooks, online catalogs, digital photo albums and more. Sign up and create your flipbook.