CREATIVE REUSE
ADAPTIVE REUSE | HISTORIC PRESERVATION | REHABILITATION


We understand the permanence and cultural significance of historic buildings

![]()
ADAPTIVE REUSE | HISTORIC PRESERVATION | REHABILITATION


We understand the permanence and cultural significance of historic buildings

BKV Group enhances the physical and cultural environment through meaningful, responsive, multi-disciplinary design. Supported by innovative technology and a strategic market focus, we work to transform communities locally, nationally, and internationally. We believe the craft is as important as the science, especially in giving soul to the process and built environment. Through a highly participatory endeavor, our design strategies express a “rootedness” in their surroundings. This strategy goes beyond the specific building to deliberately capture the expression of people, site, and culture. It is a contextually sensitive approach that is based on, and reactive to, our clients’ goals, budget, vision, and focus, with our creative process engaging all team members to transform and positively shape communities around the globe.

JACK OWEN BOARMAN
Senior Design Leader, CEO Washington, DC

JOE BROWN
Senior Project Architect, Associate Partner Minneapolis, MN

MIKE KRYCH
Senior Design Leader, Managing Partner (MN) Minneapolis, MN

KELLY NAYLOR
Vice President of Interior Design, Senior Partner Minneapolis, MN
ARCHITECTURE
5 PRACTICE SITES
45 YEARS OF OPERATION
200+ EMPLOYEES
STRUCTURAL & MEP ENGINEERING
INTERIOR DESIGN
URBAN DESIGN
LANDSCAPE ARCHITECTURE
CONSTRUCTION ADMINISTRATION SUSTAINABLE DESIGN
BRANDED ENVIRONMENTS

Collaborating regionally, BKV Group operates as a cohesive firm delivering a wide range of project types for a diverse set of national and local clients. We leverage industry-leading communication and technology tools with best-in-class design processes to seamlessly work across practice sites to meet our clients’ needs, and continually expand our presence into existing and new markets.
The National practice sites at BKV Group are supported by BKV’s Vietnam offices in Hanoi, Ho Chi Minh City, and Da Nang, which contribute design services for many of our U.S. projects, while allowing BKV access to the Asian markets. Furthermore, our firm is able to provide crosspractice training opportunities and structure project teams to leverage the 12-hour time difference, creating a nearly 24-hour design studio that can meet accelerated deadlines without sacrificing quality and creativity.
BKV Group has significant experience planning and designing historic building renovations and re-purposing including government, corporate and residential buildings. Our staff understands the permanence and cultural significance of historic buildings and works closely with clients to translate technical challenges into clear, understandable building solutions.
724 Lofts (Formerly Security Warehouse), Minneapolis, MN Warehouse
1010 Building (Formerly Strutwear Knitting Company Building, Metrodome Place), Minneapolis, MN Factory
âme (Formerly Meridian Hill Hotel), Washington, DC Hotel
A-Mill Artist Lofts (Pillsbury), Minneapolis, MN Mill
ARC at Old Colony (Formerly Old Colony Building), Chicago, IL Office
Barrel House, Minneapolis, MN Office
BKV Group Minneapolis Office (Long & Kees Building), Minneapolis, MN Office
Buzza Lofts (Formerly Lehmann Center), Minneapolis, MN Office/School
C&E Lofts - Chittenden Eastman (was a furniture company), St. Paul, MN Factory
C&E Flats - Chittenden Eastman (was a furniture company), St. Paul, MN Factory
Carleton Place Artist Lofts (Originally Johnson Bros Liquors), St. Paul, MN Warehouse
City Club Apartments CBD Cincinnati (Site of former Burnet House & Beaux Arts building), Cincinnati, OH Office City Club Apartments Union Central, Cincinnati, OH Office
City Club Apartments CBD Minneapolis, Minneapolis, MN Artist Guild
City Club Apartments Crossroads Kansas City, Kansas City, MO Hotel
Colle & McVoy, Minneapolis, MN Office
Colonial Warehouse (Formerly Minneapolis Street Railway Company Building), Minneapolis, MN Warehouse
Custom House (Originally St. Paul Post Office), St. Paul, MN Post Office
Duffey Lofts (Originally Mpls Iron Store, formerly Duffey Paper Co), Minneapolis, MN Warehouse
Eitel Building City Apartments (Originally Eitel Hospital, formerly Alina IT Center), Minneapolis, MN Hospital Elgin Artspace (Formerly historic Sears structure), Elgin, IL Department Store
Elsewarehouse (Formerly Precision Building), Minneapolis, MN Warehouse First & First, Minneapolis, MN Warehouse
Florence Court (FloCo Fusion Landmark Apartments), Minneapolis, MN Historic Housing
Upper Post Flats (Formerly Fort Snelling), Fort Snelling, MN Military Fort Hotel Kaddatz Artist Lofts, Fergus Falls, MN Hotel
Landmark Tower (Formerly Amhoist Tower), St. Paul, MN Office
Millworks Lofts (Originally Lake Street Sash & Door Co), Minneapolis, MN Warehouse
Northstar East, Minneapolis, MN Office
Northstar West, Minneapolis, MN Office
Octave 1320, Silver Spring, MD Office
Press House Apartments (Originally Pioneer Press Building), St. Paul, MN Office Randolph Tower City Apartments, Chicago, IL Office
Schmidt Artist Lofts (Originally Schmidt Brewery), St. Paul, MN Brewery
Soo Line Apartments (Originally Soo Line Building), Minneapolis, MN Office
The Arcade Apartments, St. Louis, MO Office
The Copham (Formerly Parlin & Orendorff Plow Co), Minneapolis, MN Warehouse
The Hall Lofts (Formerly Duffey Paper Co), Minneapolis, MN Warehouse
The Penfield (Former 1930’s Public Safety Building), St. Paul, MN Public Safety
The Vintage, Washington, DC Office


• TAX CREDITS
• CONVERSION CREDITS
• TIF FINANCING
• GRANTS
BKV Group has completed dozens of projects in cooperation with various Historic Preservation Commissions, Review Boards, and Consultants and understands the need to maintain a building’s historical character, especially in areas where these buildings are contributing structures. We work with residents, property owners, community and neighborhood associations, and the preservation societies, undertaking reconnaissance-level research and surveys of the neighborhoods, as well as investigating all aspects of the existing building fabric, fenestration, systems, and structural framework. The construction assemblies for renovation projects can take on numerous characteristics to provide noise mitigation and sound attenuation measures. BKV Group has worked closely with acoustic consultants to design cost effective and successful performance-based floor, roof, and wall assemblies while maintaining most of the original characteristics of the historic structure.
When federal and state tax credits are pursued, we often recommend the addition of a historic consultant to produce the various written submittals required for the State Historic Preservation Office (SHPO) and the Department of the Interior’s National Park Service (NPS). We work closely with historic consultants to gain the support and approvals from SHPO and NPS. BKV Group provides the necessary building documentation to assure that Part 1, Part 2 and the final Part 3 historic designation requirements are fulfilled in order to obtain tax credits.
BKV Group is a leading authority in the design and planning of adaptive reuse, historical preservation, and re-purposing. Our design infuses modern and relevant spaces that create meaningful connections between residents, guests, tenants, and the community while honoring precious architectural details. Our philosophy is to design within the historic fabric of the architecture and the cultural fabric of the community, using materials and systems that provide optimum value, functionality, flexibility, durability, and timeless quality.

We immerse our holistic team into the fabric of the place to gain a deep understanding of the physical traits, culture, values, objectives, challenges, comps, audience, opportunities, and differentiators.
This data guides and informs the foundational aspects for the overall opportunity including vision and design direction, programming, and potential ROI.
• Pre-Development Services
• Site Condition Evaluations & Fit Plans
• Historic Constraints
• SHPO/National Park Service Requirements
• Visioning & Discovery

We consider the varying conditions of structural systems and construction methods found in the re-use building evaluation and design. Existing building element fire ratings, historic context, compatibility or re-use program are all considered, as well as building fabric deterioration caused by chemical or moisture intrusion, or previous construction adaptation and damage.
• Building Forensics
• Building Scanning and Documenting
• Code Assessment
• Historic Research
• Site and Building Evaluations
• Photographic Analysis

There are several federal and state programs that can be used to assist with financing. These include Low Income Housing Tax Credits, Historic Tax Credits (for buildings listed on the National Register), Rental Assistance Demonstration for improving public housing and the New Market Tax Credit Program.
Many local jurisdictions have their own incentives to spur much needed housing stock or conversions to other uses. Note that these tax credit programs are often very specific to a particular geographic region or municipality.
• Tax credits
• Conversion credits
• TIF financing
• Grants

We find the right mix of experts to discuss means and methods for demolition or re-construction. We consider masonry forensics, historic context professionals (research and process flow through Landmark process), specialty materials testing and forensics, hazards abatement resources, acoustics evaluations, daylighting, accessibility solutions, building envelope specialists, and more.
• Community Goal-Building
• Visioning Process & Brand Formation
• Design Parti Development
• Documentation Details
• Sustainability Initiatives
• Revitalization
• Building Technology & Systems
• Efficiency in Planning
• Wayfinding

Unforeseen or hidden conditions inevitably come up with every creative reuse project. Having experienced professionals within every discipline allows for adept and swift resolution of the challenge at hand to keep these projects moving to keep schedule.
• Demo Discovery
• Unforeseen Conditions
• Problem Solving
• Means and Methods Collaboration
• Design Adaptation
• Structural Repairs
• Historic Amendments
• Client & User Testimonials

Innovative building systems technology expands the potential of your project. Our creative design methodologies define both the short and long-term value of the facility. Customizing the application of codes and building systems allow for differentiation in the market place. This potential includes combining building systems and code categories to increase density, research into structural systems to increase height and flexibility or insert new program uses, and exterior material systems for efficiency and speed of construction.
Additionally, unique in-house engineered systems and machinery enhance sustainable goals and objectives with creative outcomes and self-produced energy resourcing for a carbon-neutral world.
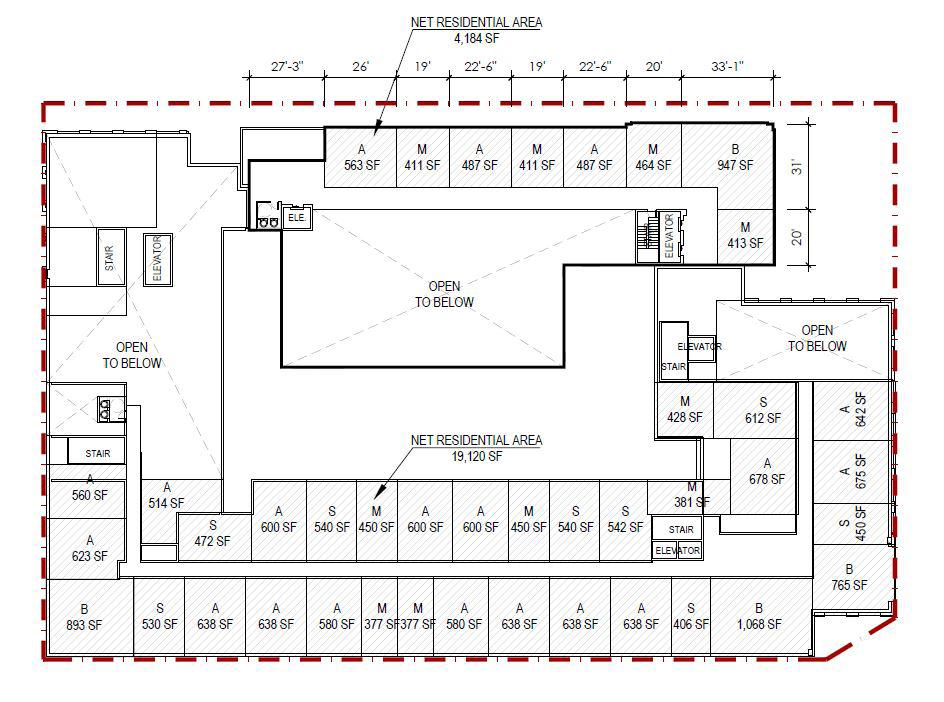
When designing for residential adaptive reuse, BKV has developed a process resulting in an efficiency that provides up to 85% of the built area in the resident’s unit, which creates maximum income for the client and lowers construction cost. Additionally, our design solutions bring to life the most important historic elements and features of each project. This is accomplished through:
• Organizing plan and dwelling arrangements to maximize windowing and daylighting
• Creating seamless and recognizable accessibility to all areas
• Strategically locating stair, elevator, and vertical cores to optimize MEP building systems arrangements plus minimize travel distances and disruption to the existing floor plan
• Creating repetition where possible
• Thinking outside of the box when introducing new additions, light wells, parking, and sustainable features



Amenities that serve the social desires, health and spirit of the users:
• Flexible and accessible social areas
• Intimate natural landscapes, green roofs, and vibrant outdoor "rooms"
• Unique, spa-level fitness areas and programs
• Animated clubrooms including rooftop "skyrooms" and terraces
• One-of-a-kind common areas for working, playing & more
• Stylish hallways with individual alcove unit entries
• Extension of dwelling units
• Designing to feature prominent and important historical elements
We tell compelling stories through design.
The Branded Environments group guides the firm’s project teams nationally in building powerful and purposeful brand identities for clients using storytelling techniques to establish a consistent narrative that is carried throughout the built environment.
BKV Group is one of the few national design firms offering an in-house Branded Environments unit who, in addition, assist our design teams in navigating through the initial research, strategy and discovery phases, shaping brands early in the project life cycle that will inform how spaces are designed, marketed and experienced.

There is not a more sustainable approach or practice then that of preserving our existing buildings and infrastructure, for both carbon reduction, as well as preserving great craftsmanship, our heritage, and cultural history.
• A-MILL ARTIST LOFTS, HYDROELECTRIC GENERATOR (LEED GOLD) - over 70% of entire complex’s electricity power needs
• SCHMIDT ARTIST LOFTS, ENERGY EFFICIENT DESIGN & ENERGY MODELING - over 29% less than building to code
• MILLWORKS LOFTS, GEOTHERMAL HEATING & COOLING SYSTEM - over 40% in annual energy savings & reduction of carbon footprint by the equivalent of 75 homes’ energy use each year
• LANDMARK TOWER, ANTICIPATED LEED SILVER CERTIFICATION





A-MILL’S HYDROELECTRIC GENERATOR PROVIDES ELECTRICITY FOR OVER 70% OF THE ENTIRE COMPLEX’S POWER NEEDS
BKV Group helped to re-create the historic Pillsbury A-Mill into 251 units of affordable artists’ lofts, while also bringing the mill’s infamous hydropower back to life. In the bowels of the mill, large pipes and new turbine generators are installed in the historic water-power canals.




Minneapolis, Minnesota
OVERVIEW
• National Register of Historic Places
• Re-captured original grand 3-story banking lobby
TYPE
Creative Adaptive Reuse - 1915 Office to Market-Rate Housing
SIZE
19 stories
310,000 SF
254 units
• Skytop additions and greenspace
• Luxury units in the heart of the business district
Constructed in 1915, the Soo Line Building is ornamented with Second Renaissance Revival details. Over the years, the structure fell into disrepair and underwent several renovations that disrespected its historic character. BKV Group was selected to renovate the building into 254 luxury apartment units and add retail, restaurant, and office space while maintaining its connection to the Minneapolis Skyway System. The design team worked extensively with the Minneapolis Historic Preservation Committee (MHPC) and the State Historic Preservation Office (SHPO) for approvals recapturing the 3-story volume lobby space and adding stunning rooftop additions with a skytop pool and skyroom clubhouse. This landmark project is also listed on the National Register of Historic Places, with the team restoring the exterior and interior as closely as possible to the original.







Minneapolis, Minnesota
OVERVIEW
• National Register of Historic Places
• One of nation’s 13-most endangered properties at time
• Engineered and implemented hydro-electric turbine to leverage water power of Mississippi River and historic raceway tunnels to power over 75% of entire project
TYPE
• Inserted new Steel skeleton wall beyond historic bowed facade for stabilization
• Removed column supporting 7-stories for black-box theater
• Converted historic rail corridor to shared woonerf
• LEED Gold
Creative Adaptive Reuse - 1881 Flour Mill to Artists Lofts - Affordable Housing
SIZE
400,000 GSF
251 units & over 80 unit types
7 total buildings in existing complex
New below-grade 263 stall parking ramp
An ambitious restoration and redevelopment encompassing two city blocks of historic industrial structures, including the Pillsbury A-Mill constructed in 1881. A 251-unit affordable/subsidized live-work artist housing development, the design concept was driven by a respect for the historic strength and materials of the buildings and integrating state-of-the-art infrastructure for the artists. Milling equipment was left in place and the old stone, concrete, and wood walls were highlighted to bring attention to the beauty of the iconic buildings.








OVERVIEW
• National Register of Historic Places
• One of nation’s 10-most endangered properties at the time
• Catalyst for neighborhood revitalization
• Creative silo design solution for accessibility between the 26 different structures and additions making up the Brew House-Integrated Artist Studios throughout
TYPE
• Engineered electric turbines
• Removed large precast ethanol plant addition revealing covered castlelated facades
• Infused unique light monitors/skylights to bring natural daylight into subterranean levels
• Converted historic rail corridor to shared Woonerf street
Creative Adaptive Reuse - 1855 Brewery to Artists Lofts - Affordable Housing
SIZE
350,000 SF
260 units & 250 unit types
The adaptive reuse of the historic Schmidt Brewery into artist lofts continues the rich tradition of a 100-year-old neighborhood landmark in the city of St. Paul. After five years of planning and design, the team began turning the brewery’s 16 acres into the 350,000 SF Schmidt Artist Lofts. The scope involved restoring the structure’s exterior, which features crenelated towers and Gothic details, and converting the Brew House and Bottling House into 247 loft-style units. 13 town-homes with corbeled eaves and low-pitched roofs — evoking the nearby Stahlmann-Schmidt-Bremer House’s Italianate style — were also added to the site to provide a total of 260 units throughout the site.






St. Paul, Minnesota
OVERVIEW
• National Register of Historic Places
• Catalyst for neighborhood revitalization
• Spurred the St. Paul River Balcony Concept
TYPE
• Carved Lightwell into center of building for daylighting and rooftop amenities
• Restored window system to original splendor
Creative Adaptive Reuse - 1934 US Post Office to Mixed-Use Development
SIZE
748,000 GSF
202 Market-rate Units
149 Hotel Keys
A re-imagining of the Historic St Paul Downtown Post Office & Custom House Building, Custom House is a 202-unit market-rate apartment community and Mixed-Use Development including the Hyatt Place Hotel, Restaurant, Parking Structure, and Storage Facilities. The original 1930s structure was restored, adding small contemporary touches to create a sophisticated, edgy, and modern environment with a nod to its Art Deco roots. This 17-story building was constructed in phases during 1934, 1939, and 1961. The design and development teams worked closely with the National Park Service and the City of St. Paul throughout the renovation. Much of the building’s historic fabric had been destroyed in previous renovations. The team was able to maintain many of the original wall locations, and restore ceiling details, terrazzo flooring, stairways, elevators, and the original mailboxes in the lobby.







OVERVIEW
• National Register of Historic Places - gaining historic tax credits as 1980’s office building
• Curtain wall Conversion to housing realized
• TIF financing
TYPE
Creative Adaptive Reuse - 1983 Office to Market-Rate Housing
SIZE
25-story
213,000 GSF
187 units
5-level existing parking garage
• Replaced curtain wall glass to original historic bronze tones
• Introduced operables into the curtain wall for residents
Landmark Tower, formerly known as Amhoist Tower is located at 345 St. Peter Street in St. Paul, MN. Built in 1983, the building is a Class A 25-story High-Rise, previously containing 20 floors of Class-A commercial office space and five floors of residential condominiums. The building area is approximately 213,000 sf with roughly 11,600 sf per floor, and converted floors 1-20 of Landmark Tower from office to residential use. Renovation includes 187 residential units, and includes new common area amenities including a rooftop outdoor patio, a tech lounge/coworking office, a club room, a fitness room, and a package room. Project also includes renovations to the parking ramp.






Cincinnati, Ohio
OVERVIEW
• National Register of Historic Places
• Converted Rooftop Mechanical room to Pool Room and Skyclub
TYPE
• Introduced small flats and multi-level dwelling units with emphasis on communal spaces
• Helped spur economic vibrancy for downtown
Creative Adaptive Reuse - 1928 Office to Market-Rate Housing and Mixed-Use Development
SIZE
300,000 SF
294 units
50,000 SF of Office and Retail
City Club Apartments CBD Cincinnati is the restoration and adaptive reuse of a historic Cincinnati landmark. Constructed in 1928, this 300,000 SF Beaux Arts building is in the heart of Cincinnati’s downtown business district along the Ohio River. It was once home to the 340-room Burnet Hotel, which opened in the 1850s and was demolished in 1926. The fully renovated building offers 294 market-rate units, and 333 stalls of parking for residents, guests, and commercial/retail tenants plus 50,000 SF of Office and Retail space. The project scope included the restoration of the exterior facade, interior details, and the insertion of apartment units and amenities into the building.






Minneapolis, Minnesota
OVERVIEW
• National Register of Historic Places
• Carved 30’x30’ lightwell into 160’ deep warehouse to daylight interior units
• Inserted 3 level delta-beam ramp into steel warehouse building
TYPE
• Retained front 3 historic bays for crane room coffee shop
• Rooftop clubroom addition and green roof
• VRF Mechanical System
Creative Adaptive Reuse - 1911, 1916 Warehouse to Market-Rate Housing and Mixed-Use Development
SIZE
188-units
33,000 SF of Residential Amenities
22,700 SF of Retail Space
114 structured parking stalls
In Minneapolis’ North Loop along historic Washington Avenue, BKV Group revitalized the former Duffey Paper Company’s site. Inside, we transformed the manufacturing building into a contemporary, high-amenity multifamily development featuring 188 residential units and 33,000 square feet of resident amenities, including a 4,000-square-foot crane room – which features a large intact overhead industrial crane – designated for co-working, a coffee shop and residential concierge and 22,700 square feet of retail space.







Minneapolis, Minnesota
OVERVIEW
• National Register of Historic Places
• 3 Block Development in Historic Warehouse District - Hall Hardware, Newell Building, New Construction Wrap Project
• Carved 30’x60’ lightwell into 160’ deep warehouse to daylight interior units
• First skyway connected buildings in the warehouse district
• Cut out 3 basement-level columns to accommodate parking
TYPE
• Amenities - from rooftop clubroom additions, pool and green roofs, to boxing gym and bowling alleys
• Designed to accommodate rooftop ice rink
• Local Procured Public Art murals
• VRF Mechanical Systems
Creative Adaptive Reuse - 1923 Warehouse to Market-Rate Housing and Mixed-Use Development
SIZE
3 Block Development - 2 Historic, 1 New Construction
328 units
550,000 total GSF
42,000 SF of Retail
The Hall Lofts (Duffey 2.0 project), following the successful completion of The Duffey Lofts in Minneapolis’ North Loop, is a $171 million mixed-use development blending adaptive reuse and new construction. Completed in late 2023, the 550,000 sq. ft. project features 358 multifamily units, including studio to three-bedroom layouts, and 42,000 sq. ft. of retail space. Approved by the Minneapolis Heritage Preservation Commission and the National Park Service, the development incorporates historic tax credits. Amenities include a rooftop lounge, pool, spa, fitness center, bowling alley, golf simulator, pickleball court, and coworking spaces. The restoration of the iconic skyway, which predates the city’s skyway system, further highlights the project’s historic significance.









OVERVIEW
• National Register of Historic Places
• Oldest outpost in Minnesota
• 8 year project
TYPE
• Worked with over a dozen agencies
• Included Federal 106 process
• Completed on time despite fire gutting Gymnasium Building
Creative Adaptive Reuse - 1879 Former Military Fort to Affordable Family Housing
SIZE
41 acre site
26 total buildings - 4 distinct site zones
192 affordable housing units with a preference for veterans
370,078 SF
The historic buildings at Fort Snelling Upper Post and the 41-acre site developed into 192 affordable housing units with a preference for veterans. The project restores an important part of Minnesota’s history. The existing buildings were constructed between 1879 and 1939 for a variety of uses including housing, barracks, hospital, offices, gymnasium, fire station, guardhouse, bakery, and morgue. Exteriors of these buildings were restored and structures were stabilized and rebuilt preserving their historic character. Existing windows were restored, and new storm windows added for energy and acoustic performance. The amenities include a pool, club room, business center, fitness center, and playground.












Washington, DC
OVERVIEW
• National Register of Historic Places
• Former Meridian Hill Hall Hotel for Women
TYPE
• Fully Amenitized
Creative Adaptive Reuse - 1942 Former Hotel and Dormitory to Market-Rate Housing
SIZE
8 stories 206 units 180,000 SF
Meridian Hill Hall in Washington, DC has been redeveloped as âme, an 8-story, concrete frame and brick building located across the north side of Meridian Hill Park on 16th Street. After its use as a women’s hotel, the building was used as a student dormitory by Howard University since 1969, and was renovated to offer the community 206 luxury rental units. The design includes studios, and one- and two-bedroom units. The development includes a collaborative business center, fitness room and pool lounge in the basement; the Great Hall and Lounge, roof features a lounge, gameroom, and terrace with expansive views of the Mall, the Capitol, and the Washington Monument.






Silver Spring, Maryland
OVERVIEW
• Former office building in central business district
• Boutique condominium building in dynamic urban setting
TYPE
Creative Adaptive Reuse - 1960s Office to For-Sale Housing
SIZE
102 units
72,000 SF
Located in downtown Silver Spring adjacent to a public parking garage and near the intermodal transit center, Octave 1320 transforms an existing office building into 102 condominium units. With flexible floor plans and a wide range of first-rate amenities, this community caters especially to first-time home buyers.
The majority of the residences in the eight-story, 72,000 SF existing building are micro units, and it also includes two-bedroom units. Project features include a roof lounge, roof deck, exterior balconies, fitness room, and terrace units at the ground level.






Elgin, Illinois
OVERVIEW
• Live-Work Artist Housing
• Transit Oriented Development in downtown
• Central feature courtyard
TYPE
• Former Sears Department Store and later School
• Artist Gallery and Studio space within
• Revitalized struggling downtown district
Creative Adaptive Reuse & New Construction Addition - 1908 Former department store and school to Affordable Housing
53 total units
80,889 SF 3-story addition
The Elgin Artspace Lofts were designed specifically for artists in this community, and they provide creative residents with a collaborative environment in which they can both live and work. In turn, these residents enliven Elgin’s unique sense of place — especially in the once-struggling downtown. Elgin celebrated the Lofts’ opening in late 2012, and the units were leased to 100% capacity within the first month. The project is housed by two buildings: a renovated historic building and a modern new construction. The design combines the adaptive reuse of the vintage structure and a new three-story addition. Renewing this site transformed downtown into a livable, walkable, and inviting neighborhood by bringing full-time residents to an area that was formerly transient in nature.






Minneapolis, Minnesota
OVERVIEW
• On National Register of Historic Places
• Transit Oriented Development on Hiawatha Blue Line
TYPE
• 80-well Geothermal Field in parking area
• Rooftop solar ready
Creative Adaptive Reuse - 1926 Former window sash company to Affordable Family Housing
SIZE
78 units
104,690 GSF
Located on Hiawatha Avenue near the Blue Line LRT platform, Millworks Lofts is a redevelopment of a historically significant industrial site into 78 units of affordable housing. The restoration kept the historic character of the neighborhood and assemblage of buildings intact while providing much-needed affordable housing along the Hiawatha Corridor. The unique project is composed of a 3-story heavy timber building with exterior masonry bearing walls plus 3 shed buildings of exposed timber framing. The building’s tenants earn no more than 60% of the area median income. Millworks’ thoughtful design, affordable rent, and its proximity to light rail transit make the development an attractive option for many.








Chicago, Illinois
OVERVIEW
• National Register of Historic Places
TYPE
Creative Adaptive Reuse - 1929 Office to Market-Rate Housing
SIZE
45-story
312 units
152,000 GSF amenity space
• Interior Designers for the project.
The Steuben Club Building is located at the northern edge of The Loop on Randolph Street at the corner of Wells Street. A Gothic Revival masterpiece, this magnificent 45-story, white terra-cotta structure has been reinvented as Randolph Tower City Apartments. It takes its place as one of the city’s premier residential properties. Residents may choose their personal lifestyle space from a wide selection of unique plans; studios, convertibles, one- and two-bedroom apartments- some with dens and multiple bathrooms. Exclusive “Limited Edition” one- and two-story penthouses with 360° views and finishes comparable to luxury condominiums are also available.






Chicago, Illinois
OVERVIEW
• Landmark building in the Chicago Loop Community
TYPE
Creative Adaptive Reuse - 1894 Office to Student Housing
SIZE
17 story
111 units
The historic Old Colony Building was repurposed into a luxury housing development. This 17-story, “early skyscraper” was built in 1893-94 by Holabird & Roche, and was first landmarked in the 1970s. Located in the South Loop neighborhood in downtown Chicago, this building now boasts 111 residential units and several great amenity spaces, including numerous gathering spaces, study lounges, blowout bar, clubroom, and a rooftop deck. The building has been restored to its historic condition and is fully of remarkable details alluding to its past. Salvaged elevator cages and custom “OCB” doorknobs are featured in several of the common areas, while much of the original marble shines throughout the building.






St. Paul, Minnesota
OVERVIEW
• On National Register of Historic Places
• Transit Oriented Development on Hiawatha Blue Line
• Post WWII Mid-Century Modern Office Building
TYPE
• One of NPS’s first studied examples of a modern open office design
• SHPO/NPS will use these findings to help review future 50year old modern open office designed buildings
Creative Adaptive Reuse - 1955 Office to Affordable Family Housing
SIZE
8 story
144 units
Press House Apartments is an 8-story, steel frame and masonry building located in downtown St. Paul, MN. The building’s downtown location, which is close to the light rail station and directly connected to the skyway system and adjacent parking ramp, made the structure an ideal candidate for transformation into rental housing. The mid-century modern history of the building offers many unique opportunities as it is repurposed into a mix of studio, one, two, and three bedroom units. The historic grand entry lobby and second floor open office, along with each floor’s elevator lobby, retains the character and style of the 1950s office building. A clubroom is located on the refurbished lower level and the alley has been converted into green space for the building’s tenants.






Cincinnati, Ohio
OVERVIEW
• Transit-oriented mixed-use development
TYPE
Creative Adaptive Reuse - 1913 Office to Market-Rate Housing and Mixed-Use Development
SIZE
31 stories
340,000 SF
300 units
City Club Apartments Union Central is the restoration and adaptive reuse of a Cincinnati Landmark, the Union Central Life Tower. In 1913, this was the fifth tallest building in the world. The 31-story tower, 340,000 square foot building was renovated into a vibrant mixed use community. The building houses 300 luxury apartments and boasts amenities including a world class fitness destination, spa, salon, retail and private resident amenities such as a rooftop pool and wellness lounge, private social lounges and co-working spaces. The project is integrated with City Club Apartments Cincinnati located next door and connected via a skyway. The two properties and their amenity offering are accessible by resident in both buildings. BKV Interiors worked to celebrate the historic character of the building while blending old with modern insertions of large scale artwork and graphic elements, custom light fixtures and bold motifs of color and pattern.






Minneapolis, Minnesota
OVERVIEW
• On National Register of Historic Places
• Carved out 2 atrium light wells to bring daylight into interior of 160’ deep building
• Added rooftop clubhouse featuring green roofs
TYPE
• 2 levels of underground parking
• Sunken garden patios
• Borrowed daylight to 55’ deep interior units
Creative Adaptive Reuse - 1920s Warehouse to Market-Rate Housing and Restaurant/Retail
SIZE
6 story
116 units
230,130 GSF
20,000 GSF Retail/Commercial Space
ElseWarehouse is a model for adaptive reuse and urban place-making. Its success proves it is part of a contemporary, sustainable pattern that can be repeated anywhere. This mixed-use development is located in the bustling North Loop district. The 6-and 3-story historic brick and cast-concrete structure with its enormous windows, sits along the historic commercial corridor of Washington Avenue, reinforcing the urban streetwall of its neighbors. By repurposing this historic warehouse in a strategic, sustainable, and design-centric way, the team preserved a piece of Minneapolis history contributing to the revitalization of an up-and-coming urban neighborhood.







Minneapolis, Minnesota
OVERVIEW
• Advertising agency’s new headquarter location
TYPE
Creative Adaptive Reuse - 1896 Warehouse to Office
SIZE
7 story
179,977 GSF
Advertising agency Colle McVoy sought a new home to fuse their corporate culture with their agrarian roots. They found this on the top two floors of a historic building in downtown Minneapolis’ warehouse district—blocks away from the company’s original location.
Careful attention was paid to preserve the envelope of the historic structure, including beautiful plaster coves and beams, by allowing several smaller spaces to float below the ceiling and only lock larger spaces into the building when necessary. By borrowing from the original structure’s architectural past, the team crafted a design that loosely echoes guilded patterning on the façade as well as drawing inspiration from the sonnet façade mural in the adjacent Schmitt Music building. The result creates a streamlined look of windows and reveals, establishing a ‘Mondrian-like’ tapestry, set off a brick podium paying homage to the existing neighborhood aesthetic.






St. Paul, Minnesota
OVERVIEW
• Worked closely with St. Paul Heritage Preservation Commission, State Historic Preservation Office and National Park Service
TYPE
Creative Adaptive Reuse - 1917 Office to Market-Rate Housing New Addition to Historic Building
SIZE
C&E Lofts - 7-Story
121,245 GSF
104 units
C&E Flats - 5-story over 1-story historic buidling
139,000 GSF
119 units
• B3 certification with solar array and green roof
The Chittenden & Eastman Building is located on West University Avenue in Saint Paul. A landmark in the Midway area since its construction in 1917, the property was included as a contributing element within the University-Raymond Commercial Historic District. The building consists of two sections: the main structure with six stories above a high basement, and a two-story extension to the rear which serves as a receiving area and garage space. The renovated building units consist of studio, one- and two-bedroom layouts ranging in size from 600 SF to 1,300 SF. There is commercial tenant space on the ground level, resident amenity spaces, a roof terrace, and enclosed parking.
C&E Flats consists of the renovation of an existing 1-story retail and warehouse structure and the addition of five stories of new apartment residences built above the existing building.






St. Louis, Missouri
OVERVIEW
• Transit-oriented mixed-use development
TYPE
• Artist Housing
Creative Adaptive Reuse - 1908 Office to Market-Rate Housing and Mixed-Use Development
SIZE
204 Units
170,000 SF
Both a City Landmark and a National Historic Landmark, The Arcade is situated in the heart of the central corridor of historic downtown St. Louis. In 1913 it was named for the spectacular two-story interior rib-vaulted shopping arcade. Historically inspired by the galleries of Milan and Naples, The Arcade is one of St. Louis’ best examples of a Gothic Revival skyscraper.
After being abandoned for decades, the project re-opened in 2016 as artist lofts and multi-family luxury residential housing. The units have tall loft-like ceilings and spacious living areas. Polished concrete and high-end kitchens are highlighted within the units. The amenities support the community and include artist studios among the historic corridors. Also featured are a fitness room, yoga studio, steam shower, sauna, theater, clubroom, rooftop game room, catering kitchen, and spectacular 19th floor rooftop terrace and party room with panoramic views of the City.
BKV Interiors worked to reinvent the interior of The Arcade, and within months of opening, the apartment community became fully leased due to immense popularity.





Minneapolis, Minnesota
OVERVIEW
• On National Register of Historic Places
• Transit-oriented mixed-use development
TYPE
• LEED Silver certification
Creative Adaptive Reuse - 1907 Office/School to Affordable Housing
SIZE
136 units
The Buzza Building in Uptown Minneapolis was converted from a school and office complex into a 136-unit affordable housing complex. Located just south of the Midtown Greenway, the Buzza Lofts provide an easy commute to downtown on this popular bicycle and pedestrian route.
Amenities include a fitness center, lobby lounge, private courtyard with grilling stations and a fire pit, and rain gardens with extensive plantings and seating areas.
The building is listed on the National Register of Historic Places and BKV Group worked to keep the historical character of the building in place. Many sustainable features were incorporated with the renovation, providing better energy efficiency and a higherquality living environment. The building achieved LEED Silver Certification.





Minneapolis, Minnesota
OVERVIEW
• National Register of Historic Places
TYPE
• 2019 BOMA TOBY Award Winner.
Creative Adaptive Reuse - added amenities and refreshed common area in active 1885 office building
SIZE
203,000 SF
The Colonial Warehouse is a five-story, 203,000 SF building centrally located in the dynamic North Loop neighborhood of Minneapolis. BKV Group was hired to update spaces with luxe finishes and fuse them with the building’s timeless details preserved from 1885. Architectural hallmarks include exposed brick walls, open floorplans, polished cement and wood floors, wood beams, high ceilings, natural lighting and original two-story arched bay windows. Colonial Warehouse now houses creative and technology firms, modern multi-use offices, and prominent retail businesses, but remains a significant building in the history of Minneapolis and is included on the National Register of Historic Places.






Minneapolis, Minnesota
OVERVIEW
• Last building on the woonerf to be completed for the connection to the river
TYPE
• Rebranding to correlate with the history of the building
Creative Adaptive Reuse - added amenities and refreshed common area in active 1880 office building
SIZE
4 story
112,960 SF
Built in 1880 to accommodate the storage needs of the booming flour mill industry in Minneapolis’ West Side Milling District, Barrel House was first known as the Hall and Dann Barrel Company. Updates included a new building entry, a re-worked rooftop terrace, electrical and mechanical systems upgrades, and interior finish, fixture, and furniture updates to common spaces. Notable to this creative reuse project is the BKV Group-designed landscaped path called a “Woonerf,” a Dutch street design concept consisting of shared space for vehicles, pedestrians and bicycles. The Woonerf provides a rare gateway to the parks and trails along the Mississippi River, and serves as a public right of way for bicyclists and pedestrians.





Minneapolis, Minnesota
OVERVIEW
• Utilized federal and state historic tax credits.
• Rooftop Clubroom addition
TYPE
• Addition of skylights to daylight top floor
Creative Adaptive Reuse - 1910 Warehouse to Market-Rate Housing and Restaurant
SIZE
6 story
120 units
The Holden Building warehouse property on Washington Avenue North was transformed from industrial use to 120 market-rate apartments with commercial space and renamed The Copham Residences. Rehabilitation work tackled the cleaning and repair of masonry, including the removal of the cream paint from the first story of the building. Window openings that had been filled in and walled over were reopened. Historic windows were restored and new replacement windows were installed that were modeled after the historic. The industrial characters of the building was respected while accommodating new construction for residential apartments and commercial tenants. With close access to a light-rail station and in walking distance from downtown Minneapolis, the recycled building is a model for sustainability.






Minneapolis, Minnesota
OVERVIEW
• On National Register of Historic Places
• Creative adaptive reuse which transformed historic hospital and former IT facility into modern day amenity
• First Twin Cities project to implement new codes to gain additional level in wood-frame construction.
TYPE
• Mid-block connection from neighborhood to park
• Gutted tower and reclad
• Restored cornice and entrances
Creative Adaptive Reuse & New Construction Addition - 1911 Hospital to Market-Rate Housing
SIZE
5 & 6 stories
212 units
300,005 GSF
3,200 SF restaurant
The Eitel Building City Apartments is a collection of new buildings that are integrated with transformed relics. The location and character were intentionally designed to reclaim park edges and reinforce neighborhood patterns, while shaping courtyards and pedestrian plazas. These newly defined spaces link parks to neighborhood, creating a dialogue within the community. In addition to the 1911 historic building’s restored exterior and transformed interiors, a portion of a 1967 addition was stripped down to its concrete structure and renovated into the celebrated heart of the development.








St. Paul, Minnesota
OVERVIEW
• LEED Silver - consumes 60% less energy than buildings of the same size and type, green roof
• First downtown grocery in St. Paul
TYPE
• Reintegrates primary facade and front court of historic Saint Paul Public Safety Building
• Incorporates public artwork by local artists
• First market-rate housing in central business district
Creative Adaptive Reuse of 1930s Historic Facade & New Construction - Market-Rate Housing
SIZE
6 story
406,000 SF
254 units
330 parking spaces
The historic Public Safety Building and parking lot have been reinvented to become the Penfield, a six-story, market-rate apartment building featuring 254 units, a first floor Lund’s grocer, and 330 enclosed parking spaces. The design team carefully preserved the south and west facing historic facades as they redeveloped this 406,000 square foot property.






St. Paul, Minnesota
OVERVIEW
• National Register of Historic Places
• One of first significant projects along LRT, it became a catalyst for future Raymond Ave Station university neighborhood
TYPE
• Provides critical affordable housing community
• Creatively adapted 3 historic buildings with additions into new artist housing for the area
Creative Adaptive Reuse - 1920s and 1930s Warehouses to Affordable Artist Housing and New Construction Market-Rate
SIZE
169 lofts
Carleton Place Artist Lofts consists of three historic warehouse buildings converted into 169 industrial loft-style affordable rental living units offering comfortable state-of-the-art amenities for the artist community. The design team collaborated with preservation consultants to restore the original designs of each building while incorporating a new live-work environment.







Washington, DC
• A repositioning of an existing 1930’s building
• Built in the stripped classical style, as an annex to, the Department of Agriculture building in the heart of DC’s Federal Mall district the property was reborn as multifamily residential.
TYPE
Creative Adaptive Reuse - 1936 Historic building & New Construction Addition - Market-Rate Housing
12-story + penthouse, 515,000 GSF
610 units (rental)
1 level below grade parking
Designed for Douglas Development, The Cotton Annex is a repositioning of an existing 1930’s building. Built in the stripped classical style, as an annex to, the Department of Agriculture building in the heart of DC’s Federal Mall district the property was reborn as multifamily residential. It includes 90 units in the existing building and another 520 units in a new 12 story tower. The new tower features large penthouse units with private outdoor terraces and spectacular city views. Also included, is a roof top pool and clubroom space, fitness center, below grade parking, and a retail storefront.
This one-of-a-kind building is one of the few residential buildings in and around the National Mall. It capitalizes on its connection to the new Southwest Waterfront development district. This project design was well received by all the major agencies having a say in its development and density including:
+ Historic Preservation Review Board
+ Office of Planning
+ Commission of Fine Arts
+ Zoning Commission



