Santika Premiere Hotel & Co - Living | Perwujudan Green Hotel Berbasis Collaborative Space

Page 1

HOTEL & CO-LIVING
PREMIERE HOTEL BimaBahitsu’aliAfnanKusuma19512188|ARobbiMahgzaya,ST,.M.SC.
URBAN
PerwujudanGreenHotelBerbasisCollaborativeSpace SANTIKA

ABSTRAK

Bagian tengah Kota Yogyakarta tepatnya di Jalan Jend. Sudirman merupakan daerah pusat bisnis yang dekat dengan perputaran ekonomi Yogyakarta. Daerah tersebut memiliki latar belakang yang memunculkan isu, isu tersebut berasal dari permasalahan dan kebutuhan baik dari lingkup non arsitektur hingga arsitektural. Permasalahan dan kebutuhan yang telah dibedah dan dapat disimpulkan dengan bagaimana dapat merancang sebuah hotel dengan annex sebagai fasilitas pendukung dengan batasan aturan yang ada namun tetap dapat menerapkan pendekatan desain bangunan hijau (Green Building Sustainability) sekaligus dapat meningkatkan produktivitas dengan adanya wadah untuk komunitas (perkumpulan) yang mulai bangkit ada dan selalu dibutuhkandimasainidanmendatang.

Maka dari itu, perancangan ini yaitu menyediakan kamar hotel sekaligus hiburan yang didukung dengan ruang kreatif bagi para pekerja, komunitas dsb. PerancanganiniberdasarkepadatolakukurGBCIdenganpoinpointerpilihyangmemungkinkandiaplikasikanpadadesain

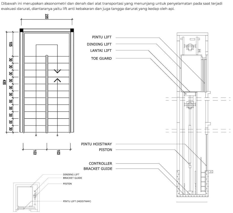
DepartmentofArchitecture|FacultyofCivilEngineeringandPlanning|UniversitasIslamIndonesia BimaBahitsu’aliAfnanKusuma|19512188|ClassA|StudioDesainArsitektur3 RESIST100% RVS FIRESAFETY EDGE

BAB1PENDAHULUAN

Latar belakang PERMASALAHAN

1.1.1MenengokTrendHotel

Seiring berkembangnya zaman, kegiatan pembangunan terutama di area urban terus berlangsung yang sejalan dengan bertambahnya jumlah penduduk selaras dengan kebutuhan akan tempat tinggal menjadi semakin besar namun persediaan ruang semakin menipis. Kebutuhan akan tempat tinggal dapat bersifat sementara yang biasa disebut penginapan, hotel, homestay, apartemen, kos atau sebutan lainnya. Dalam konteks ini, hotel menjadi fokus dalam perancangan yaitu mendesain kompleks city hotel dan annex fasilitas konvensi dengan pendekatan performance based design dan kinerja bangunan berkelanjutan.

Hotel sebagai bagian dari tipologi fasilitas komersial tentulah harus menyesuaikan dengan konteks kekinian, terutama yang terjadi di konteks kota ke depannya. Dalam konteks kota kekinian pola penyediaan fasilitas multi-komersial akan menarik warga dan berfungsi sebagai ruang komunitas. Selain secara ekonomi mensinergikan fasilitas di sekitarnya, ruang komunitas juga memberikan manfaat besar pengaruh pada area komersial di sekitarnya, menyediakantempatyangdapatmenyegarkankotasebagairuangkonvensibaru.

Di era saat ini yaitu pasca pandemi terjadi pola gaya hidup dengan pola dinamika yang baru. Belakangan ini, terutama di kota besar, kehidupan orang Indonesia makin individualis dikarenakan jarang berkomunikasi secara langsung dalam jangka waktu lama. Ironisnya perubahan gaya hidup ini membentuk ruang sosial yang pasif atau tidak memungkinkan terjadi interaksi sosial yang kuat. Dinamika kehidupan manusia saat ini menjadi insan yang dapat bekerja dan berkarya dengan mudah dimanapun berada, namun di sisi lain dengan interaksi sosial yang minim dapat menimbulkan gejala psikologis hinggakelelahanmental.Selainitu,tidaksedikitdarigenerasimilenialyangmasihkesulitanmembelihuniankarenaketerbatasansepertibiayaataulahan.

Perbedaan jarak dan waktu yang sempat direnggut kini menjadi cara berkehidupan yang dapat kembali dirangkul oleh setiap individu dan kelompok. Melalui penyediaan ruang ruang sosial berbasis komunitas dimana para pengguna dapat hidup dan beraktivitas sebagai satu komunitas yang memungkinkan terciptanya kolaborasi di dalamnya dengan tetap menikmati privacy. Melihat dari fenomena yang terjadi maka trend hotel pun megikuti pola kehidupan manusia yang berkekmbang dengan mengusung konsep urban hotel & co-living yaitu menekankan pada ruang dan fasilitas yang dapat digunakanolehsemuapenggunahotelbersamaan.

Kotamerupakansuatubentukfisikaldanmorfologikal,mengandunginstitusi-institusimanusiayangmenggambarkansuatutempatsebagai harapanuntukkehidupan.Institusi-institusiinimempersatukandanmenguatkanhubungansetiapindividu,kelompoksertalingkunganfisik sebagai sebuah wadah yang mengakomodasi aktivitas mereka Setiap kota tentunya memiliki wajah kotanya masing-masing. Wajah kota dapat terbentuk dari adanya proses dalam perkembangan serta peristiwa. Terbentuknya wajah suatu kota merupakan proses perwujudan elemen-elemen yang menjadi karakteristik kota tersebut, seperti bangunan-bangunan, pola jalan, pola tata guna lahan, ruang-ruang terbuka kota serta skyline. Selain itu, terbentuknya wajah suatu kota juga dipengaruhi oleh aspek-aspek non fisik berupa aktivitas masyarakat, perilaku masyarakat, lingkungan alam serta kebijakan-kebijakan yang diberlakukan pemerintahan terhadap kota tersebut (Heryanto, Roh danCitraKota,2011).

berada di lokasi strategis yaitu berada pusat kota yogyakarta di kawasan urban pusat perdagangan, pemerintahan, pendidikan dan jasa dengan fasilitas umum transportasi dan infrastruktur yang memadai. Dekat dengan destinasi wisata dan tugu jogja yang merupakan Kawasan pusat ramai berkumpul wisatawan. stasiun kereta apiYogyakarta dan Lempuyangan yang terletak di jantung kota, bis kotaTrans Jogja yang tertib dan nyaman serta konektivitas jalur darat yang lancar menuju daerah-daerah wisata di sekelilingnya Sebagai kota yang strategis membuat kota ini tumbuh pesat menjadi pusat bisnis-bisnis yang menjamur di tengah masyarakat. Kepadatan bisnis komoditas penginapanpunmembludakdisekitarpusatkotayangmeningkatkanpersainganbisnis.Olehkarenaitukepadatanaktivitaspadadaerahini akan menunjang kebutuhan ruang untuk mewadahi aktivitas para user seperti untuk konvensi, penginapan, ruang komunitas, dsb. Untuk ruang komunitas sendiri merupakan suatu area yang dapat mewadahi berbagai karakter aktivitas pada setiap komunitasnya (Bintoro et al., 2019).

1.1.2PemilihanLokasi&Site

Di sisi lain, keberadaannya di pusat kota yogyakarta tepatnya di jalan jenderal sudirman yang masih kental akan budaya. Arsitektur kolonial merupakan bagian dari sejarah Indonesia. Sejarah arsitektur kolonial di Indonesia pada dasarnya merupakan bagian yang saling berhubungan dengan sejarah perkembangan arsitektur Indonesia. Arsitektur kolonial juga memiliki hubungan yang erat dengan pengaruh modernisasi arsitektur di Indonesia (Handinoto, 2012). Pada masa awal kolonial Belanda, jalan jenderal sudirman merupakan tempat tinggalorangbelanda.Bangunandengancorakarsitektureropa.orang-orangBelandadiIndonesiakhususnyadiPulauJawa,menggunakan pola-poladanbentukpembangunankotasesuaidenganacuanBelanda.SebagaicontohkotaBataviapadamasakolonialBelanda,memiliki bentukdanpolasepertikotaAmsterdam.

Melihat dari sudut pandang makro, sebuah kota tentu perlu memperhatikan citra kotanya. Citra dari sebuah kota akan memberikan gambaran mengenai karakter khusus dari wajah arsitektur kota tersebut. Kota Yogyakarta bermula dari ada di dalam kesadaran tertinggi berupa filosofi makrokosmos yakni poros gunung-laut. Gunung sebagai simbol laki-laki dan laut sebagai simbol perempuan. Perjumpaan antara dua simbol ini disahkan dalam suatu simbol monumen berupa tugu pal putih Yogyakarta, menggantikan tugu golong gilig. Guna mengakselerasi DIY dengan membangkitkan kembali peradaban unggul Yogyakarta dan nusantara melalui renaissance budaya yang memuat landasan filosofis Hamemayu Hayuning Bawana yang secara konseptual mengatur harmoni hubungan dan tata laku antar sesama rakyat,antarsesamawargamasyarakatdenganlingkungannyadanantarinsandenganTuhanYangMahaPencipta.

Melihat dari sudut pandang secara mikro dan lebih spesifik, citra kota akan membentuk identitas kawasan kawasan yang berada di dalam kota tersebut. Hubungan ini akan menjadi sebuah timbal balik. Bentuk dan citra fisik arsitektur pada sebuah kawasan merupakan cerminan masyarakatsebagaipenghunidanpenggunadidalamnya.karakterataucirikhasdarikawasantersebutdapatdirasakanberdasarkan.

● SenseofPlace :seseorangataupengamatdapatmengenalidanmengingatkarakterdankeunikandarikotaataukawasan.

● AGoodofPlace : berkaitan dengan kemudahan dalam mengenali sebuah kota atau kawasan, berhubungan dengan persepsi masyarakatyangmenciptakansusunankhususdankeunikan.

● IdentifiablePlace : identifikasi terhadap sebuah kota atau kawasan yang berkaitan dengan kebudayaan dan kebiasaan masyarakatdidalamnya,sehinggadapatmemberikannilaidaningatanterhadapkotaataukawasantersebut(Mulyandari,2011).

KONTEKS&NILAIBUDAYA

Isu green architecture pada kondisi saat ini mengalami pergeseran. Menurunnya pergerakan dan intensitas manufaktur serta denyut ekonomi ternyata berdampak pada perubahan fenomena dan isu yang lekat dengan green architecture. Sebelum masa pandemi terjadi peningkatan gas rumah kaca, Polusi udara, Efek rumah kaca, Penggunaan CFC berlebihan, Penggundulan hutan, Polusi metana karena peternakan, pertanian, dan perkebunan, Penggunaan energi berlebih, Sampah yang memberikan dampak pemanasan global yaitu Ketidakstabilan iklim, Mencairnya es di kutub, Meningginya volume permukaan air laut, Sumber daya alam menipis. kepadatan penduduk dan kegiatan ekonomi yang sibuk lama-kelamaan akan menghasilkan akumulasi panas. Ini karena kota yang padat penduduk akan mengalami peningkatan keperluan dasar seperti tempat tinggal, jalanan, fasilitas umum, fasilitas kesehatan, dan yang lainnya. Panas yang terpusat di bagian-bagian tertentu dikenal sebagai kutub panas kota. Kutub panas kotajugadisebuturbanheatisland.Urbanheatislandditandaidenganterjadinyapeningkatansuhudikota,dimanapusatkotamempunyaisuhuyang lebih tinggi dibandingkan daerah di sekitarnya. Sehingga, di wilayah yang mengalami urban heat island, suhu udaranya berbeda beberapa derajat dengan daerah di sekitarnya. Daerah yang dipenuhi gedung tinggi atau aspal yang terbuka memiliki naik-turun suhu yang tajam. Fenomena urban heat island disebut menjadi salah satu hal yang disebut menjadi pemicu pemanasan global, selain aktivitas industri. dampak dari urban heat island yangmenjadisalahsatupemicupemanasanglobal.

Belakangan ini di masa pandemi dan pasca covid-19, fenomena merapatnya Kembali lubang ozon mengantar pada harapan membaiknya kondisi bumi yang pada akhirnya diharapkan mengurangi peningkatan degradasi lingkungan. Namun demikian, seperti yang optimism penemuan vaksin mengantar pada sikap waspada akan kembalinya terjadi degradasi lingkungan. Sehingga focus pada fenomena yang melatarbelakangi green architecture seperti Urban Heat Island (UHI), Ozon depletion (OD), dan greenhouse effect (GH) serta isu kekeringan tetap menjadi relevan untuk direspon oleh para arsitek, pemerhati arsitektur dan tentu saja mahasiswa arsitektur. Di sisi lain, keberadaannya di pusat kota yogyakarta tepatnya di jalan jenderal sudirman termasuk kawasan dengan tingkat kemacetan yang tinggi beriringan dengan polusi dan kebisingan yang buruk. Lingkungan yang semakin buruk karena minim vegetasi pada area hotel dan view yang kurang menarik di sekitar hotel yang hanya terdiri dari bangunan bangunan.Suhutinggidapatmencapai36.4Cdenganrataratasuhuthn2015-2021yaitu31.8C.

Pendekatan kinerja bangunan saat ini telah menjadi tuntutan bagi arsitek. Bagaimana keberhasilan bangunan diukur tergantung seberapa tinggi bangunan mencapai kinerja yang ditetapkan klien. Kinerja bangunan dalam pendekatan green architecture saat ini dengan adanya pembelajaran pandemic COVID 19 mengalami pergeseran keseimbangan tidak hanya berfokus pada environment tetapi untuk human. Variabel desain yang pada awalnya lebih didominasi pada building for environment seperti efisiensi energi, konservasi air dan material maka semestinya juga memprioritas padaindoorhealthandcomfort.ParameterpadadesaininiadalahGreenBuilding-HealthyBuilding:Safety-EnergyandIndoorhealthandcomfort.

1.1.3PentingnyaSustainableGreenBuilding

1.2.1 RANGKUMAN SWOT

STRENGTH

● BeradadipusatkotaYogyakarta

● Areasitepresisi

● Dayadukungtanah(konturdatar)

● Fasumtransportasidaninfrastrukturkotamemadai

● Memilikisejarahdancitrayangbaik

WEAKNESS

● Minimvegetasi

● Viewkurangmenarik

OPPORTUNITIES

● Berlombalombamenciptakankonsephotel

● Menjadihoteldengancirikhasvaluetersendiridengan pangsapasartersendiri

● Kebutuhanmasyarakatdanwisatawanakanspace

● Saranatujuanrekreasidanmenginap

● Dekatdengandestinasiwisatadantugujogja

● Kawasanpusatramaiberkumpulwisatawan

● Siteberadadikawasanurbanpusatperdagangan, pemerintahan,pendidikandanjasa

● Aksesibilitasmudahdenganaksesutamajalankota

● Orientasimatahariselarasdengangubahanmassa

THREATS

● Beradadikawasancagarbudayayangeratakanregulasi bangunan

● Suhutinggi padaoktober2019mencapai36.4Cdengan rataratasuhuthn2015-2021yaitu31.8C

● Kemacetantinggi

● Polusipusatkotaburuk

● Kebisingantinggi

● Persainganbisnishinggakemungkinanakuisisiatau collapse

1.2.2 LINGKUP PERMASALAHAN PERANCANGAN

GLOBAL WARMINGURBANHEAT ISLAND

BISNIS PERHOTELAN

RUANGHIJAU KOTA

PEMILIK

KEBUTUHAN PENGINAPAN≠ RUANG KOMUNITASDAN BISNIS

YOGYAKARTA KOTASTART-UP

KONTEKS& NILAIBUDAYAREGIONALISME

INVESTOR PENGGUNA

KEPUASAN PENGGUNA GREENHOTEL

EFISIENSIHOTEL

1.2.3 RUMUSAN PERMASALAHAN

PERSPEKTIF ISU

ISU

RUMUSAN MASALAH

PEMILIK INVESTOR

RANCANGAN

GLOBALWARMINGURBANHEATISLAND

RUANG HIJAUKOTA

KONTEKS&NILAI BUDAYA-REGIONALISME

URGENSIPERANCANGAN MENINGKATKANNILAIBANGUNANDI PERKOTAANYANGBERDAMPAKPOSITIF BAGILINGKUNGAN

SUSTAINABLEGREENBUILDING

BISNISPERHOTELAN

YOGYAKARTA KOTA START-UP

PENGGUNA

KEBUTUHANPENGINAPAN≠ RUANGKOMUNITASDANBISNIS

KEBUTUHANTEMPATUNTUKMENYALURKANHOBI, KREATIVITASDANINOVASIDALAMBERKOLABORASIDI KOTAYOGYAKARTA

FUNCTIONALEFFICIENTHOTELBUILDINGSAFETY&COST EFFECTIVEFORCUSTOMERSATISFACTION

Bagaimanamerancanghotelmelaluipendekatandesainbangunanhijau (GreenBuildingSustainability)berbasiskomunallivingberupa pelayanandanfasilitashotel(Co-Living)sehinggadapatmembentukkomunitasdankenyamananyangmemungkinkanterciptanya kolaborasididalamnyadengantetapmenikmatiprivacy.

GREENHOTEL EFFICIENTHOTELBUILDING

COLLABORATIVESPACE

Tujuandariperancanganiniadalahsebuahhoteldipusatkotapariwisatadenganannexsebagaiperwujudandukunganpenyediaanruangberkumpul, santai,kerjasekaligusruangkreatifbagipublikagarsetiapmasyarakatdapatmelakukankegiatanrumahnyauntukberistirahat,kegiatanbekerja, bersosialisasi,menyalurkanhobidankreativitashinggaberkolaborasibersamaoranglaindengannyamandangembiradalamsatutempat(allin).

Perancangantentusajadengankonsepbangunanramahlingkungandanberkelanjutan..

DIYOGYAKARTA PROBLEMSOLVING PERDADANTORADS3

VARIABEL

GREENHOTEL

BEM

- Dasar pengelolaan sampah - GPtim proyek - Polusi konstruksi - Pengelolaan sampah tindaklanjut - Sistem komisioning

- DataGreen Building - FitOut - Survei pengguna gedung

- Refigeran fundamental - Material reuse - Material ramah lingkungan - Refrigeran tanpaODP - Kayu bersertifikat - Material prefabrikasi - Material regional

ASD

- Memperluas areadasar hijau

- Pemilihan Tapak - Aksesibilitas komunitas

- Transportasi publik

- Fasilitas pengguna sepeda

- Lansekap padalahan dengan vegetasi

- Iklimmikro

- Manajemen airhujan

IHC EEC WAC

- Introduksi udaraluar

- Pemantauan kadarCO2 - Kendaliasap rokok - Polutankimia

- Pemandangan keluar gedung

- Kenyamanan visual

- Kenyamanan termal

- Tingkat kebisingan

- Pemasangan sub-meter

- Perhitungan OTTV

- Langkah Penghematan energi - Pencahayaan alami

- Ventilasi - Pengaruh perubahan iklim

- Energi terbarukan

- Meteranair - Perhitungan Penggunaan Air - Pengurangan Penggunaan air - Fiturair - Daur ulang air - Sumber air alternatif

- Penampunga nairhujan

- Efisiensi penggunaan airlansekap

EFISIENSIHOTEL KEPUASANPELANGGAN

- CostMaintenance

- Management - ConstructionCost - LokasiStrategis - Tataruangefektif

- Fleksibilitasruang

- Struktur,utilitasdaninfrastruktur

- Communityhub - Creativecollaborativespace

- BEM

- BEM

- BEM

- BEM

- BEM5 - BEM6 - BEM7 - IHCP - IHC1 - IHC2 - IHC3 - IHC4 - IHC5 - IHC6 - IHC7

-

- Materialtahanapi

- Memilikijalurevakuasi

- Sistemaktifdanpasifpencegahandan penanganankebakaran

- PenentuanJenisdanDimensiRuang

- PenentuanBukaanRuang

- PolaSirkulasiDalamBangunan

- TeknologiBerkelanjutan

- HubunganAntarRuang - PerancanganStrukturAntiBencana

- PerancanganSistemUtilitasdan infrastruktur

- PenyediaanSistemMaintenance

- ZonasiAksesibilitasdanJangkauan RuangtermasukDifabel - Fireprotection - Ruangkamardenganbalkon

Indikator

GREENSHIPGBCI

MRC PARAMETER INDIKATOR STRATEGI
-
-
-
- EEC
- EEC
- EEC
- EEC
-
-
- WAC
- WAC
- WAC
- WAC5 - WAC
- ASDP - ASD1
ASD2 - ASD3 - ASD4
ASD5 - ASD6 - ASD7 - MRCP - MRC1
MRC2 - MRC3 - MRC4 - MRC5 - MRC6 - BEM
P
1
2
3
4
EECP1
P2
3
4
5 - WACP1
WACP2
WAC1
2
3
4
6
- Nyaman - Safety - Security - Fasilitaslengkap - Layakuntukdisewa - Viewdanvista
TATATAPAKDANTATARUANG TRANSFORMASIMASSA INTEGRASISARPRASINFRASTRUKTUR EKSPLORASIDESAIN BENTUKDANPOLA
- Exhibitionspace
BangunanBaruV.1.2
KONSEPTUAL SKEMATIKDESAIN EVALUASI DESAIN
1.3 PENELURUSAN & PEMANTAPAN VARIABEL PBD

1.4 EKSPLORASI STRATEGI MENETAPKAN INDIKATOR DESAIN

Tahapanmetodedaripengumpulandatadanfaktaberhubungandenganperspektif3lingkupkemudianperancangan awalyangmeliputistrategiyangditetapkanuntukmencapaiindikatorPBDsesuaidesain.

KAJIANLATARBELAKANG

PERUMUSANMASALAH DANKEBUTUHAN

ISUNONARSITEKTUR

PERSPEKTIF

ISUARSITEKTUR

Analisakebutuhandanpermasalahan dariperspektifinvestor,pemilikdanpenggunayangadapadalokasidan kawasansekaligustuntutanatasketentuanyangadadanharusdiselesaikanyangkemudianmengarahkanpada penentuantemaperancangan.

ANALISISISU

PENETAPANVARIABEL& PARAMETERPBD

MRC BEM ASD

IHC EEC WAC

PENETAPANINDIKATOR&STRATEGI DESAIN

MenentukanparameterdanvariabelPBDberdasarkanhasilpenelusuranmasalahdankebutuhansesuaipanduan GBCIdalammembantumelanjutkanketahappenetapanindikatordanstrategidesainuntukmencapaitarget.

KONSEPTUAL

PRESEDENDESAIN PBD

EKSPLORASISTRATEGIDESAIN

PenentuanKonsepdenganmelaluisketsakonseptualrancangandaneksplorasistrategidesainuntukmencapai targetPBDyangditetapkan

PARKROYALonPickering

ASD, WAC, EEC, IHC

ASD, MRC, EEC

Pemenang penghargaan dengan tata letak sisi terbuka dan fitur hijau yang inovatif. Kaca berperforma tinggi menyaring panas matahari, membantu memaksimalkan sinar matahari alami dan menghemat energi melalui penggunaansensoruntukcahaya,gerakandanhujan,serta lampu hemat energi. Penggunaan air hujan yang dipanen, NEWater dan perlengkapan hemat air bekerja untuk mengurangi pemborosan air dan selanjutnya menambah upayakonservasinya.

perwujudan reputasi Singapura sebagai kota taman. Menampilkan taman rimbun seluas 15.000 meter persegi dengan 50 jenis tanaman, terintegrasi dengan mulus ke dalam lanskap perkotaan, taman langit menghembuskan kehidupan ke dalam hotel dan ditenagai oleh sel surya, mengonsumsienerginol-bersih.

struktur beton yang menjulang tinggi di Kawasan Pusat Bisnis Singapura. menonjol dengan fasadnya yang hijau. Tanaman merambat terjalin dengan panel merah yang kontras, sementara pohon-pohon tinggi dari taman langit mengintip melalui – menyelimuti seluruh bangunan dan menciptakantamanvertikalyangbesar.

Bukan hanya eksterior gedung pencakar langit tropis ini yang mengesankan. Lebih banyak tanaman hijau menghiasi area rekreasi, menyambut fauna seperti burung dan serangga ke dalam ekosistemnya. Desain terbuka meningkatkanventilasialamidanmemberikanketeduhan, mengurangi kebutuhan akan AC. Curah hujan dikumpulkan untuk mengairi taman yang berkembang, menekankankomitmenhotelterhadapkeberlanjutan.

kanopi iklim mikro oleh Foster+Partners adalah pièce de résistance JW Marriott Hotel. Ini membawa angin laut ke kota baik dalam bentuk maupun fungsinya; struktur yang menjulang meniru lekukan gelombang laut dan pita baja dan aluminium yang dimiringkan dengan hati-hati dirancang untuk mendorong aliran udaradanmenurunkansuhudibawahkanopisebesar1 hingga 2 derajat lebih dingin daripada di luar kanopi. Strukturnya dirancang untuk memanen air hujan dan juga dilengkapi dengan panel surya, yang membantu menerangi fasad bangunan. Kaca selektif spektral juga membantu membatasi gelombang inframerah, yang mengurangi jumlah panas tanpa membatasi cahaya. Artinya, interior tetap lebih sejuk dan seluruh pengembanganlebihhematenergi.

1.4 EKSPLORASI STRATEGI MENETAPKAN INDIKATOR DESAIN
OasiaHotelDowntown
PBD
Preseden Lesson Lanjutan
JWMarriottHotelSingaporeSouthBeach

1.5 PENETAPAN STRATEGI DESAIN SESUAI PBD & ISU

ISU USULAN

UrbanHeat Island

Ruang HijauKota

Memaksimalkanareadasarhijausertamembuatlanskap padasitedanrancangan.Selainitu,memaksimalkan pencahayaanalamidanpenghawaanalamidengan meletakkanmassasesuaiorientasiterbaikdan menggunakanteknologiyangtidakmerusakozon.

STRATEGIDESAIN VARIABEL

PENGHAWAANALAMI

PENCAHAYAANALAMI

EGGCRATE

VEGETASISHADING

FASADKINETIK

SOLARPANEL

LIGHTSHELVES

PASSIVECOOLING

EECP1,EECP2,EEC2,EEC 3,MRCP,MRC3,ASD6

Kepadatan

MenyediakanRTHdiatasketentuanminimumaturan greenareapadaareatidakterbangundanmenetapkan konsepareahijaupadarancanganbangunan.

Ruang

komunitas danBisnis

Integrasidengantransportasiumumdijalandan penyediaanparkirumum.Jalursepedadanpejalankaki yangdikoneksikanantararancangandenganjalanumum.

TAMANVERTIKAL

VEGETASILOKAL

TAMANBALKON

VEGETASISHADING

Konektivitasantarmassa

Konektivitaspublicarea

KonektivitasBike

BikeTrack

Terbukauntukpejalankaki

Menciptakanruanguntukberkolaborasi,bekerja, bersantai, bersosialisasihinggaberekspresisatusamalain sehinggapenggunadapatmengeluarkanatas kreativitasnyadankolaborasinya

ExhibitionSpace

CulturalHub

CollaborativeSpace

RentalSpace

ChillinSpace

ASDP,ASD1,ASD5,WAC P1,WACP2,WAC5,

ASD2,ASD3,ASD4

IHCP,IHC4,IHC5,IHC6, IHC7

1.6 PROSEDUR DESAIN

ISUNONARSITEKTUR

KAJIANLATARBELAKANG

PERUMUSANMASALAH DANKEBUTUHAN

PERSPEKTIF

EMPHATIZE DEFINE

ANALISISISU

PENETAPANVARIABEL& PARAMETERPBD

PENETAPANINDIKATOR&STRATEGI DESAIN

IDEATE

KONSEPTUAL

PRESEDENDESAIN PBD

EKSPLORASISTRATEGIDESAIN

PROTOTYPE

3DMODELLING

UJISIMULASI

ISUARSITEKTUR

IHC EEC WAC MRC BEM ASD
IHC EEC WAC MRC BEM ASD NO YES ASSES DESIGNREPORT
TEST

1.6 REFERENSI

https://koranbernas.id/kembangkan-ekosistem-startup-digital-dari-yogyakarta-jadi-incaran

https://www.kompas.com/stori/read/2022/09/13/060000079/ruang-digital-apa-gunanya-?page=all

https://kebudayaan.kemdikbud.go.id/bpnbyogyakarta/wp-content/uploads/sites/24/2014/11/Kota_Jogj a-Inajati.pdf

https://bobo.grid.id/read/082391323/apa-yang-dimaksud-dengan-urban-heat-island-apa-ada-hubung annya-dengan-hujan-es?page=all

http://repository.umy.ac.id/bitstream/handle/123456789/22918/6%29%20BAB%20II.pdf?sequence=6 &isAllowed=y

http://e-journal.uajy.ac.id/17656/3/MTA026602.pdf

https://issuu.com/dadywicaksono/docs/laporan_kompre

https://www.rukita.co/stories/apa-itu-coliving-space/

https://www.padusi.id/joylive-bsd-city-co-living-communal-living-hotel-26522/

https://blog.cove.id/coliving-jakarta-selatan/

http://www.fireonline.it/wp-content/uploads/2016/06/Symposium-Day_G.Amaro_.pdf

Elizabeth. M, Gunawan. R. 2018. Evaluasi Kinerja Desain Light Shelf Terhadap Penetrasi Cahaya Alami SIang Hari Pada Bangunan SInar Mas Land Plaza Tangerang Untuk Meningkatkan Penilaian Green Mark. Riset Arsitektur ISSN 2548-8074. Volume 02, Nomor 04, 388-404

GAGASANKONSEPTUAL BAB2EKSPLOIrASI

2.1.1 PROGRAM RUANG

TOR NamaRuang

Maksimal5%

Publik Lobby FrontOffice lounge

Restroom

LiftPengunjung

ShowerSepeda

Minimal 55%

Kamar

Standard Suite

PresidentSuite

Coffeshop CreativeHub

Minimal10%

Annex

coworkingspace

Collaborativespace

CommunityArea

ExhibitionSpace

TOR NamaRuang

Maksimal5%

MEE

Maksimal10%

Manajemen& Support

ConferenceHall Masjid

meetingroom

Meetingpoint

restroom loadingdockarea smokingarea

Office janitor gudang Dapur Resto

chillinspace GamingStation

SpotFoto

Relaxingcorner

ReflecttivePool

Maksimal15%

Sirkulasi& Parkir

Parkirsepeda parkirmobil parkirmotor R.elevator

liftbarang/karyawan Corridors R.Tanggadarurat

Menyesuaikan Landscape

Ruanggenset

RuangTransfomator&Panel

Ruangpompa

RuangOperatorSistemME

AirConditioningsentral/VRF

CentralCommunicationSystem (CCTV,SoundSystem,PABX)

IPAL ruangmesinlift firepump

groundwatertank ductingfan shaft

RentalSepeda&Scooter

Halamanparkir

Droppoffarea Security chillinspace taman joggingtrack atmstation

Menyesuaikan Roof

RumahLift

KolamKoi

KidsPlayground GamingStation

Menyesuaikan ParkirBasement

2.1.2 REKAYASA SITE

Site memiliki luasan 4450 m2 di area perkotaan tanah tidakberkontur

Lokasi Site berada di Yogyakarta tepatnya di Jl Jend Sudirman, Jetis, Yogyakarta, Indonesia. Site memiliki luas 6500 m2 yang kemudian diperkecil untuk mempermudah dalam perancangan menjadi 4450 m2 dengan berada di pusat perdagangan & jasa serta ikonik kota yaitu

Area terbangun di bagian tengah site dengan sedekatnya ke bagian depan agar nampak dan dijauhkan darisempadansecukupnya

Zoning untuk setiap area terbangun utama dan landscaping

Mayoritas bangunan adalah perkantoran, penginapan dan toko atau restoran di area tersebut yang menjadi poin tambahan yang dapat dikatakansebagailokasistrategis. View pada site sangatlah unggul dengan utamanya pada sisi utara yaitu gunung merapi dan tugu ke arah barat daya. Untuk memaksimalkannya dengan adaptasi orientasi terhadap view, arah matahari, angin dan hujan. Diperlukannya penataan site dengan transformasinyasepertiberikut.

Memenuhi RTH >15% dengan adanya area resapan air dengan ditanami rumput dan tanaman penghias. Selain itu sirkulasi dipusatkan di area depan sehingga bisa memaksimalkanarealainuntukareahijau.

Meningkatkan penghijauan kota dan memenuhi ASD serta mengurangi polusi dan kebisingan jalan raya perkotaan serta meminimalisir radiasi matahari dengan adanya vegetasi pada area site yangditanam.

Lokasi Site berada di Yogyakarta tepatnya di Jl Jend Sudirman, Jetis, Yogyakarta, Indonesia. Site memiliki luas 6500 m2 yang kemudian diperkecil untuk mempermudah dalam perancangan menjadi 4450 m2 dengan berada di pusat perdagangan & jasa serta ikonik kota yaitu tugu lilin yogyakarta antara Jl P Mangkubumi. Mayoritas bangunan adalahperkantoran,penginapan dantokoataurestorandiarea tersebut yang menjadi poin tambahan yang dapat dikatakan sebagailokasistrategis.

2.1.2 INTENSITAS SITE
PROPERTY SIZE ATURAN BANGUNAN TOR PERDASETEMPAT PERANCANGAN Total Luas Site 4000 sd 4500 - 4450 Total Bangunan Maksimal 12000 Tinggi Bangunan Maksimal (m) - 40 m Tinggi Bangunan Maksimal (lantai) - 10 KDB 70% 60% 3115 KLB 4,5 4,2 20.025 RTH 15% 10% 667 PROGRAM RUANG TOR ACUAN PERANCANGAN Publik 5% 600m2 632m2 Kamar 55% 6600m2 6596m2 Annex 10% 120m2 1525m2 ManajemenandSupport 10% 1200m2 SirkulasidanParkir 15% 1800m2 Landscape Menyesuaikan Roof Menyesuaikan MEE 5% 600m2 ParkirBasementAnnex0.2 Menyesuaikan 688m2 55 unit

Sirkulasimasukberasaldariselatandankeluardiselatan.Haltersbutsesuaidengan konsepsatujalursatusirkluasiyangmemperdmudahdalammendeteksidanmenjaga keamanan.Setelahkendaraanmelewatidropoff kemudiandihubungkandengan basement.Selainituterdapatparkiranumumpadasiteuntukmobil,motordansepeda.

PadaMassaterdapat2fungsiberbeda,fungsipertamaadalahhoteldanfungsikedua adalahcollaborativespacesehinggaakanbanyakorangyangdatangdanlebih menggunakanruangsebagaitempatberkumpul,berkerjaataupunhanyaabersantai sekaligusmewadahibagiyangmembutuhkanruanglegauntuksatukomunitasdan terpadatareauntukpameran.

2.1.5 FLOOR PLAN

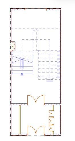
2.1.6 SISTEM INFRASTRUKTUR

Tangga darurat lengkap dengan kompartemennya yang disertai dengan pintu keluar terdekat ke ruang terbuka di lantai dasar dan salah satunya dilengkapi lift darurat yang sekaligus berfungsi sebagai lift barang yang terdapat 2 terpisah berjarak lebih dari 15 meter. terdapat 1 lift komersial dan 2 lift observaton sebagai akses pengguna hotel.

dibutuhkannya lift barang karena melihat intensitas ruang dan kebutuhan pada ara public dan hotel karena penempatan loading dock yaitu pada basement. pada annex terdapat tangga komersial dan 2 lift komersialyangdapatdigunakan.

Sprinkler dibuat seefektif mungkin menjangkau semua area dan sudut sehingga dapat beraksi cepat menyebarkesemuaarea.

Sistem shaft seperti pada gambar digunakan untuk IPAL atau sistem plumbing dan untuk shaft kelistrikan terpisah diletakkan bersama dengan kompartemen kebakaran beserta ruang panel tiap lantainya sehingga dapat mengatur kelistrikan tiap lantainyaagardapatefisienenergi.

Pohon cemara ini ditanam dengan tujuan untuk mempermudah untuk mencapai tujuan tertentu dikarenakan pohon ini berguna sebagai pengarah, selain itu, pohon ini juga ditanam sebagai pemecah angin pada bagian tenggara. Pohon ini juga berfungsi sebagai pengikat air di dalam tanah dan pencegah longsor.

Pohon ketapang kencana ini merupakan pohon tipe peneduh yang gunananya selain untuk meneduhkan juga yaitu untuk menyerap polusi. Maka dari itu untuk penempatannya ditempatkan pada area depan, dekat dengan drop off sekaligus menjadi penyerap polusi padabagiandepan(arealalulintasjalanbesar)

Selain pohon pohonan, pada bagian lansekap pula dibuat streetscape, streetscape merupakan upaya untuk menciptakan ruang luar yang menarik dan dapat dilakukan dengan mendesain elemen elemen pembentuk ruang yang bernilai fungsional. Contohnya yaitu dengan material perkerasan yang menggunan paving block berpola tertentu, selain untuk mempercanik dari segi estetika, namun paving block juga dapat menjadi area resapan bagi air hujan ditambahdenganadanyatanamanperdusemak.

2.1.7 LANSEKAP

2.1.8 RESPON TERHADAP ASD

ASDPAreaDasarHijau

Menyediakan ruang sebagai area

resapan air hujan dan penyediaan taman vertikal. Penggunaan vegetasi

lokal Dengan perhitungan Koefisien

Dasar Hijau (KDH) dan luas tajuk

Memelihara atau memperluas kehijauan kota untuk meningkatkan kualitas iklim mikro, mengurangi CO2 dan zat polutan, mencegah erosi tanah, mengurangi beban sistem drainase, menjaga keseimbangan neraca air bersih dan system air tanah.

P1,

Area Perkerasan, pedestrian, sumur resapan dll

P2,

Luas Site (m2) KDB (%) Luas Dasar Terbangun (m2) vegetasi min 10% dari luas lahan (m2) (m2)
4450 70% 2000 1200 1250 600
50% P1, tanaman sesuai permen PU (m2) P1
Cemara 14 4 12.56 175.84 Pohon Gugur Pagoda 20 4 12.56 251.2 Semak Perdu 60 2 3.14 427.04 % 35.58666667
Jenis Tanaman Jumlah Tanaman Diameter (m) Luas Tajuk (m2) Jumlah luas Tajuk (m2) P2

Padagambartelahmewakiliterdapatsistemyang terpadudenganjaringanjalan,jaringanpenerangan, jaringanpejalankakikawasan,jaringantelepon, jaringanfiberoptic,sistempembuangan sampah,dandrainase.

ASD1PemilahanTapak

Parkir

Perhotelan

Halte

Perbankan

Harvest Roti

Pertamina Station

Restaurant Mcdonald

Museum Sandi

ASD2AksebilitasKomunitas Bus Toko dan Warung Toko, Farmasi dan Warung Tugu Lilin Toko dan Warung RTHP

ASD3TransportasiUmum

ASD 3 Transportasi Umum

Tujuan

Mendorong pengguna gedung untuk menggunakan kendaraan umum massal dan mengurangi kendaraan pribadi.

Tolok Ukur

1A

Adanya hatle atau stasiun transportasi umum dalam jangkauan 300 m (walking distance) dari gerbang lokasi bangunan dengan tidak tidak memperhitungkan panjang jembatan penyeberangan dan ramp

atau

1B

2

Menyediakan shuttle bus untuk pengguna tetap gedung dengan jumlah unit minimum untuk 10% pengguna tetap gedung

Menyediakan fasilitas jalur pedestriandi dalam area gedung untuk menuju ke stasiun transporttasi umum terdekat yang aman dan nyaman degan mempertimbangkan Peraturan Menteri Pekerjaan Umum 30/PRT/M/2006 mengenai Pedoman Tekniks Fasilitas dan Aksesibilitas pada Bangunan Gedung dan Lingkungan Lampiran 2B

Karenapadasitememilikishuttlebusterdekatyaitudi seberangdarisite,makapadaperancangantidakdiperlukan areashuttlebusuntukmemenuhiASD3ini,hanyasaja diperlukandesainyangmenunjukkanbahwaperancangan mendesainsirkulasiuntukmemudahkanpenggunagedung kearahshuttlebustersebut.

sirkulasiuntukmemudahkanpengguna gedungkearahshuttlebustersebut.

1
1

ASD4FasilitasPenggunaSepeda

ASD 4 Fasilitas Pengguna Sepeda

Tujuan

Mendorong penggunaan sepeda bagi penguna gedung dengan mempertimbangkan fasilitas yang memamdai sehingga dapat mengurangi penggunaan kendaraan bermotor

Tolok Ukur

1

2

Adanya tempat parkir sepeda yang aman sebanyak unit parkir per 20 pengguna gedung hingga maksismal 100 unit parkir sepeda. 1 2

Apabila tolok ukur diatas terpenuhi, perlu tersedianya shower sebanyak 1 unit untuk setiao 10 parkir sepeda 1

Total Kamar yaitu 207 dengan asumsi pengguna 2 orang per kamar. Karyawan sebanyak 50 orang sehingga totalnya 464 orang.

Maka minimum penyedian sepeda yaitu 23 dengan shower sebanyak 2

Pada desain memberikan parkir untuk sepeda sebanyak 25 unit dan tersedia shower sebanyak 3

KODE KRITERIA dan TOLOK UKUR NILAI ACUAN NILAI NILAI MAKS

ASD5LansekapPadalahan

ASD 5 Lansekap pada Lahan

Tujuan

Memelihara atau memperluas kehijauan kota untuk meningkatkan kualitas iklim mikro, mengurangi CO2 dan zat polutas, mencegah erosi tanah, mengurangi beban system drainase, menjaga keseimbangan neraca air bersih dan system air tanah

Tolok Ukur

1A

1B

Adanya area lansekap berupa vegetasi (softscape) yang bebas dari bangunna tanaman (hardscape) yang terletak di atas permukiman tanah seluas minimal 40% luas total lahan. Luas area yang diperhitungkan adalah temasuk yang disebut di Prasyarat 1, taman di atas basement, roof garden, terrace garden, dan wall garden, dengan mempertimbangkan Peraturan Menteri PU No. 5/PRT/M/2008 mengenai Ruang

Terbuka Hijau (RTH) Pasal 2.3.1 tentang Kriteria Vegetasi untuk Pekarangan

1 3

Bila tolok ukur 1 dipenuhi, setiap penambahan 5% area lansekep dari luas total lahan mendapat nilai 1 1

2 Penggunaan tanaman yang telah dibudidayakan secara lokal dalam skala provinsi, sebesar 60% luas tajuk dewasa terhadap luas area lansekap pada ADS 5 tolom ukur 1 1

Luas Site (m2) KDB

Luas Dasar Terbangun (m2)

ASD 5, Lahan Hijau min 40% (m2)

KODE KRITERIA
NILAI ACUAN NILAI NILAI MAKS
dan TOLOK UKUR
(%)
4450 70% 2000 1780 Tipe/Jenis Tanaman H P Luas Tajuk (m2) Area Hijau P1 1200 Area Hijau Balkon 720 Area Hijau Wall 27 21 567 Tipe/Jenis Tanaman Jumlah Tanama n Diamete r Luas Tajuk (m2) Area Pot 50 0.5 9.8125 Jumlah Total Green Area 2496.8125

ASD6IklimMikro

Tujuan

Meningkatkan kualitas iklim mikro di sekitar gedung yang mencangkup kenyamanan manusia dan habitat sekitar gedung

Tolok Ukur

1A Menggunakan berbagai material untuk menghindari efek heat island pada area atap gedung sehingga nilai albedo (daya refleksi panas matahari) minimum 0,3 sesuai dengan perhitungan.

1 atau

1B Menggunakan green roof sebesar 50% dari luas atap yang tidak digunakan untuk mechanical electrical (ME), dihitung dari luas tajuk.

2 Menggunakan berbagai material untuk menghindari efek heat island pada area perkerasan non-atap sehingga nilai albedo (daya refleksi panas matahari) minimum 0,3 sesuai perhitungan. 1

3A Dengan lansekap berupa vegetasi (softscape) pada sirkulasi utama pejalan kaki menunjukan adanya perlindungan dari panas akibat radiasi matahari

1 atau

3B Dengan lansekap berupa vegetasi (softscape) pada sirkulasi utama pejalan kaki menunjukan adanya perlindungan dari terpaan angin kencang

PadatujuanASD6iniyaitu,meningkatkan kualitasiklimmikrodisekitargedungyang mencangkupkenyamananmanusiadan habitatsekitargedungdenganmenggunakan berbagaimaterialuntukmenghindariefek heatislandpadaareaatap.

Menyediakan ruang sebagai area resapan air hujan dan penyediaan taman vertikal dan Penggunaan vegetasi lokal

Dapat dilihat nantinya dari penggunaan material non atap

Menyediakan vegetasi melindungi sirkulasi

ASD 6 Iklim Mikro

ASD7IklimMikro

Tolok Ukur

1A

Pengurangan beban volume limpasan air hujan ke jaringan drainase kota dari lokasi bangunan hingga 50%, yang dihitung menggunakan nilai intensitas curah hujan *.

1B

Pengurangan beban volume limpasan air hujan ke jaringan drainase kota dari lokasi bangunan hingga 85%, yang dihitung menggunakan nilai intensitas curah hujan *.

2 Menunjukan adanya upaya penanganan pengurangan beban banjir lingkungan dari luas lokasi bangunan. 1

3 Menggunakan teknologi – teknologi yang dapat mengurangi debit limpasan air hujan. 1

*Untuk wilayah DKI Jakarta, menggunakan curah hujan 50mm/hari sesuai Peraturan Gubernur DKI No 39 tahun 2012 tentang Bangunan Gedung Hijau.

* Untuk wilayah lain, menggunakan curah hujan harian maksimum setempat (10 tahunan) yang disertai dengan bukti perhitungan.

volume limpasan air hujan meliputi : Footprint bangunan, lahan hijau (greenfields), landscape dan luas total lahan.

Teknologi Storm water module akan membantu mendukung sumur resapan dan resapan biopori. Dengan adanya infiltrain tank dapat menyerap dan megurangi beban aliran air kota.

1 atau
2

2.2

INTEGRASI

SISTEM BANGUNAN

AspekFungsional

Aspek fungsional merupakan suatu aspek dalam analisis sistem integrasi bangunan yang membuat bangunan. tersebut dibuat sebagaimana fungsinya yang dapat memudahkan dari fungsi mobilitas bangunan itu sendiri. Yang mempengaruhinya diantaranya:

ModulBentangKolom

Kolom dibuat dengan bentang 8x8 agar dapat mendapatkan efisiensi dalam modul parkir yang dapatmemuat3mobildalam1bentang8mnya.

ModulSirkulasi

Sirkulasi satu terarah, terdapat sirkulasi yang memuat untuk kendaraan bermotor, seperti mobil dan motor. Namun, disediakan pula sirkulasi bagi kendaraan sepeda untuk memaksimalkan dan mengkonektivitaskan sirkulasi yang berada pada area Jalan Sudirman. Hal tersebut dibuat agar para pengguna sepeda dapat nyaman dan mempunyai haknya untuk berada pada sirkulasi keluar masuk area gedung tersebut. Sirkulasi juga dibuat dengan lebar 3-5m dengan maksudnya agar lebih leluasa pada saat rotation atau belokan di area area tertentu. Selain itu sirkulasi bagi pejalan kaki sangat menyatu karena dapat menghubungkan jalan utama dengan jalan setapak yang ada di sampaing hotel melalui ruangpubliklantaidasaryangterbukauntukpublik.

AspekStruktur&MaterialKonstruksi

Aspek struktur merupakan suatu aspek dalam analisis sistem integrasi bangunan yang membuat bangunan tersebut dibuat agar kokoh dan kuat dari gaya yang diterima oleh bangunan tersebut, masu itu gaya horizontal, vertikal, atau gaya lateral. Maka beberapa dari aspek tersebutbeberapadiantarayangmempengaruhinyaadalah:

MomentBasedFrame

Material dominan pada perancangan ini menggunakan beton sitecast dengan struktur gabungan antara beton pada area tower serta struktur steel atau baja pada areaAnnex. Hal tersebut digunakan karena desain dari Annex yang memiliki bentang lebar sehingga kurang memungkinkan jika menggunakan struktur beton pada saat uji simulasimenggunakanresist.

ShearWall

Pada area tower terdapat shear wall atau dinding penopang yang dibuat untuk menstabilkan bangunan dan mengkombinasikan antara kolom balok untuk menopang beban. Ketebalan dari dinding core yang dibuat dalam perancangan ini memiliki ketabalan 25cm yang telah lulus diuji oleh software resist. Pada area core ini terdapat beberapaprogramruangyangdapatdilihatpadagambardibawahini:

AspekPasar

Pada perancangan bangunan ini memiliki fasilitas penunjang yaitu colaborative space dengan coffe shop, maka dari segi produksi pasar, kamar hotel tersebut akan disewakan kepada pada setiap pengunjung yang datang untuk berlibur, bekerja, perkumpulan yang membutuhkan ruang rapat hingga sedang akanmerintisperusahaannyamenujulebihbesar.Ditambahjuga dari segi pasar umum terdapat area mini driving golf, exhibition space dan coworking space yang dapat disewakan dan dikunjungi selama beberapa jam. untuk fasilitas penunjang itu sendiri dapat digunakan oleh para generasi muda yang memiliki ide kreatif dan mempunyai acara, hingga ruang tersebut dapat disewakan untuk menggelar pertunjukkan kecil kecilan, pertunjukkan pameran, hingga seminar atau hanya sekedar kumpulkecilbersamakomunitaskomunitaslainnya.

Rata-rata suhu khususnya Jalan Sudirman yaitu sekitar 30 derajat Celcius hingga 31 derajat Celcius. Dan untuk arah angin berasal dari area barat laut menuju tenggara dengan rata rata berbelok dengan kemiringan 30 derajat Berdasarkan arah cahaya matahari, orientasi bangunan memanjang dari timur ke barat karena menyesuaikan dengan site, hal tersebut cukup menguntukngkan karena dapat mengurangi paparan sinar radiasi matahari secara langsung. Namun pada saat tahap mendesain nanti akan tetap mengembangkan shading development dengan beberapa kemiringantertentupadabagiantertentu.

2.3 RESPON EFISIENSI ENERGI

2.3.1UjiSuntool

Pada uji suntool ini memperlihatkan bagaimana arah jatuhnya bayangan matahari pada sudut sudut tertentu, tingkat keberhasilan ini ditentukan dengan persentase yang ada pada pukul pukul tertentu setiap harinya sekaligus mempertimbangkan orang yang berada didalamnya sedang beraktivitas apa. Sehingga tidak selalu harus 100% dikarenakan ruang ruang mempunyai kriteria tertentu sesuai dengan penggunaanya dan orang didalamnya. Maka dari itu, dalam semua uji per bulan ini, maka diambil bulan yang cukup signifikan untuk diambil rata-rata dari 12 bulan tersebut. Berikut merupakan 3d modelling dari suntool dan persentase sesuai bulannya.

JUNE-TIMUR

JUNE-BARAT

EFISIENSISHADING

2.3.2UjiOTTV

terdapat fasad yang disesuaikan dengan pengaplikasian material yang tidak merusak ozon atau menambah isu urban heat island, maka diperlukan pemilihan material yang telah lulus uji ottv atau memang khusus tidak merusak lingkungan, berikut merupakan fungsidariujiOTTVbuildingenvelope

MRC PPerhitungan OTTV

Pada rancangan building envelope bagian tower, terdapat krtieria untuk menghitung perhitungan OTTV menggunakan tabel excel, maka dari itu daribuildingenvelopeiniterdapat3bagianmaterial,yaitu

Dari ketiga material itu, yang dominan adalah Glass Black Panel dengan memakai merk Asahimas, type Sunfort dengan spesifikasi dibawahini:

Fasad Utara FasadTenggara Fasad Selatan Fasad Barat Daya

PadaEEC2initujuannyayaituuntukmemaksimalkanpencahayaanalamisemaksimalmungkindengantolakukuroptimal30%dariluaslantai yangdigunakan.makadariitubagianEEC2inidimaksimalkanpadapencahayaanalamidibagiankamardanareapublikataukatalainsemua bagianbangunan.

KarenauntukmemenuhisyaratdariEEC2iniyaitudenganluasanlebihdari30%,makadapatdiperhitungkandenganrumus:LuasTotalLantai: Luasyangberhasillebihdari300lux=PersentasePencahayaan.Terlihatdarigambarluasanruangyangmemilikiluxlebihdari300telah melebihidari30%padasaatcuacabiasasaja.

Uji
Pencahayaan
EEC2
Velux-
alami
Ketikaditerapkanterdapatartificiallightingtidakberpengaruhsignifikannamuntetapmembantudalampenerangan

KarenauntukmemenuhisyaratdariEEC2iniyaitudenganluasanlebihdari30%,maka dapatdiperhitungkandenganrumus:LuasTotalLantai:Luasyangberhasillebihdari300 lux=PersentasePencahayaan.Terlihatdarigambarluasanruangyangmemilikiluxlebih dari300telahmelebihidari30%padasaatcuacabiasasaja.

2.4.1analisisujisistemstrukturberdasarkanujiRESIST

2.4 RESPON TERHADAP SAFETY

2.4.2analisisujisistemstrukturberdasarkanujiRESISTANNEX

Pada IHC 2 ini tujuannya yaitu untuk mengurangi area roko yang biasanya berada pada tempat umum, seperti contoh tolak ukurnya dipasang tanda dilarang meroko diseluruh area gedung, dan jika ada maka minimal berada pada jarak 5m dari pintu masuk,ataubukaanjendela

Terdapat cigar lounge sebagai area khusus untukmerokokdandenganalatpenyedotasap sehinggatidakmenyebabkangasemisi

Pada IHC 4 ini pemandangan keluar gedung dimaksimalkan pada area gedung yang megarahlangsungkejalansudirmandanpada area utara dapat melihat gelora bung karno. Pada bagian annex juga ditempatkan dengan elevasi rendah yang terbuka ke arah jalan sudirmandenganleluasabagiareaserbaguna

2.5
RESPON TERHADAP INDOOR HEALTH COMFORT

PadaIHC5initujuannyayaituuntukmembuatruangantidakterlaluterangdanmasihdiambangbataswajarketeranganluxnya, sehinggadiukurdengantolokukurmenggunakanlampudengantingkatpencahayaanyangpassesuaidengankonservasienergi.

PadaIHC6inibertujuanuntukmeningkatkan kondisiyangstabildenganmenjagasuhu secaraumumdikisaran25derajat,sekaligus kelembabandenganrelative60%.

Makadariitudibuatlahrencanadariperancangandenganperencanaantanamanpadasudutsuduttertentudiluardandiareadalambangunan denganvisualisasitanamanuntukmenjagasuhu.

PadaIHC7initerdapatkriteriatingkatkebisingan dengankebisingandidalamruanganyangoptimal, makadariituuntukmeminimalisirkebisingan tersebutdiplottingtanamanyangberfungsisebagai pemecahsuarapadaareadepandanbelakang bangunan,khususnyayangberadapadaarea belakangbangunankarenaterdapatareaparkir umumdanjugapadaareadepanyaitupadaarea JalanSudirman(JalanUtama),berikutmerupakan visualisasinya:

2.6 RESPON MATERIAL RESOURCES AND CYCLE

PadaMRC6inimempunyaitujuanuntukmengurangijejakkarbondarimodatransportasipadasaat dibangunnyarancangan,makadariituuntukmemenuhisyaratinidiperlukantokobangunanyangtidakjauhdari site.Penggunaanmaterialkayusebagaibahanutamalokalyaitu,kayupinusdidaerahbantul,Yogyakarta.

Pada WAC P1 dan P2 ini bertujuan untuk memantau penggunaan air sehingga tidak terjadi kelebihan air yang dipakai pada gedung, Caranya yaitu dengan menggunakan pemasangan alat meteran yang ditempatkan di lokasi lokasi tertentu sehingga setiap volume air yang keluardapatdimonitorpengeluarannya.

WAC3DaurUlangAir

PadaWACP1danP2inibertujuanuntukmemantaupenggunaanair sehinggatidakterjadikelebihanairyangdipakaipadagedung,Caranya yaitudenganmenggunakanpemasanganalatmeteranyangditempatkan dilokasilokasitertentusehinggasetiapvolumeairyangkeluardapatdi monitorpengeluarannya.

2.7
RESPON TERHADAP WATER CONVERSATION
GSEducationalVersion
DESAIN
Bima Bahitsuali Afnan Kusuma - 19512188
BAB 3 SKEMATIK

3.1.1 AKSONOMETRI KONFIGURASI MASA DALAM SITE

Lokasi Site berada di Yogyakarta tepatnya di Jl Jend Sudirman, Jetis, Yogyakarta Indonesia Site memiliki luas 6500 m2 yang kemudian diperkecil untuk mempermudah dalam perancangan menjadi 4450 m2 dengan berada di pusat perdagangan & jasa serta ikonik kota yaitu tugu lilin yogyakarta antara Jl P Mangkubumi

Mayoritas bangunan adalah perkantoran, penginapan dan toko atau restoran di area tersebut yang menjadi poin tambahan yang dapat dikatakan sebagai lokasi strategis View pada site sangatlah unggul dengan utamanya pada sisi utara yaitu gunung merapi dan tugu ke arah barat daya Untuk memaksimalkannya dengan adaptasi orientasi terhadap view, arah matahari, angin dan hujan Diperlukannya penataan site dengan transformasinya seperti berikut.

Luas Site 4450 m2 dengan jenis tanah tidak kontur di perkotaan

Area terbangun di bagian tengah site dengan sedekatnya ke bagian depan agar nampak dan dijauhkan dari sempadan minimal 8 m dan ditambah secukupnya

1 2 3 4

penempatan tower hotel dan annex dipisah dan akan menciptakan lansekap yang lebih variatif dengan pemanfaatan site yang maksimal selain itu, massa dipotong untuk orientasi yang penting agar kesan dan konfigurasi lebih efisien dan efektif dalam adaptifnya mengurangi radiasi matahari, merespon pergerakan angin dan pemanfaatan view.

meningkatkan kelembaban dan penghijauan untuk udara lingkungan maka ditambahkan area hijau pada bangunan sekaligus sebagai shading cahaya yang masuk ke dalam bangunan

menambahkan sirip sebagai bagian perwujudan perlindungan area dalam dari terkena radiasi matahari secara langsung yang bersifat kinetik ( under control)

terdapat area transisi diantara tower dan nnex sebagai entrance utama dan diangkatnya bagian tengah tower sebagai respon atas pencahayaan, penghawaan, view dan sirkulasi yang baik dan sehat

massa yang dinaikkan dengan memaksimalkan view pada barat daya yaitu tugu dan utara yaitu gunung merapi megurangi radiasi matahari dari terkena permukaan dengan adanya shading overhang (eggcreate).

merespon kebisisngan pada pengguna di ruang dan kebutuhan kenyamanan yang terlindung maka ditempatkan pohon lokal sebagai pemecah angin, kebisingan dan sebagai pengarah sekaligus penghias yang dapat menajdi peneduh bagi pengguna ditenpatkan pada area area utama yang memungkinkan pengguna menggunakannya sebagai sirkulasi dan ditempatkan pada bagian gedung sebagai taman, selain itu mengurangi radiasi matahari dari tanaman rambat di selubung bangunan tersebut

GSEducationalVersion
6
7 8
5

3.1.2 AKSONOMETRI KONFIGURASI RUANG

Perancangan ini memiliki dua fungsi yaitu hotel dan annex

LT

BACK OF HOUSE

LT GF. LOBBY

BASEMENT. MEP & PARKIR

BASEMENT 2 ME & PARKIR

BASEMENT 3 PARKIR

GSEducationalVersion
3 - 11 HOTEL
LT
2 OUTDOOR SKY RESTAURANT
& LOUNGE
BASEMENT PARKIR
GF. COFFE SHOP
1 COLLABORATIVE SPACE
2 POOL AND GYM DSB
3 CONVENTION HALL
LT
LT
LT
LT

Sistem struktur terdiri dari 2 struktur bangunan berbeda yang telah diuji kekuatannya di software RESIST guna mendapatkan ramuan kombinasi struktur yang tepat.

Tower Hotel mempunyai bentang 8x7 ditambah dengan shear wall ditempatkan pada bagian tengah melingkupi shaft, tangga darurat, lift access dan area service. Termasuk menyebar di 2 tangga darurat gedung, sistem strukturnya adalah Concrete - With Shear Wall dengan material reinforced concrete structure.

3.1.3 AKSONOMETRI SISTEM STRUKTUR HOTEL

Pada Struktur Bangunan annex, sistem struktur menggunakan Steel - Moment - ResistingFrame yang merupakan pendukung dari konstruksi bentang lebar fungsi convention hall. untuk struktur selubung atas atau atap yaitu waffle structure. kombinasi tersebut guna menerima beban dengan bentang yaitu 37x20 m.

GSEducationalVersion
BalokInduk600x400mm Kolom 650 x 650 mm
ketebalan 25cm ketebalanretainingwall 30cm
ANNEX
Shear Wall (core)
Bentang Lebar Steel MomentResisting Frame
WaffleRoofStructure

Kolom 650 x 650 mm

ketebalanretainingwall 30cm

ShearWall(core) Ketebalan30cm

BalokInduk600x400mm

GSEducationalVersion
Waffle Roof Structure
Struktur Baja

Ruang AHU

3.1.4 AKSONOMETRI SISTEM INFRASTRUKTUR

Tangga darurat lengkap dengan kompartemennya yang disertai dengan pintu keluar langsung ke ruang terbuka di lantai dasar dan salah satunya dilengkapi lift darurat yang sekaligus berfungsi sebagai lift service yang berjarak kurang dari 15 meter dari ruang terbuka. terdapat 2 lift komersial dan 1 lift observaton sebagai akses pengguna hotel.

dibutuhkannya lift service karena melihat intensitas ruang dan kebutuhan pada area public dan hotel karena penempatan loading dock yaitu pada basement. pada annex terdapat tangga komersial dan 1 lift komersial yang dapat digunakan para pengguna serta didukung 1 tangga darurat.

Pada dapur terdapat satu shaft khusus sebagai lift barang kebutuhan dapur.

Sprinkler dan sistem pencegahatan kebakarannya lainnya perletakan sistemnya di area plumbing service dengan dibuat seefektif mungkin menjangkau semua area dan sudut sehingga dapat beraksi cepat menyebar ke semua area.

Shaft Plumbing, ruang service & ruang panel

Tangga darurat dengan lift kebakaran, Ruang Panel danShaft Kelistrikan

Tanggadarurat&Lift

1 lift observation

2 lift komersial

Sistem shaft seperti pada gambar digunakan untuk IPAL atau sistem plumbing dan untuk shaft kelistrikan terpisah diletakkan bersama dengan kompartemen kebakaran beserta ruang panel tiap lantainya sehingga dapat mengatur kelistrikan tiap lantainya agar dapat efisien energi.

GSEducationalVersion
GSEducationalVersion
3.2.1 SITUASI DAN SETTING KAWASAN

3.2.2 SITEPLAN

GSEducationalVersion 200 922 14 21 DOWN 302 302 10 DOWN 150 13 11 12 19 20 DOWN 20R 170310 1 2 3 4 4 5 6 7 8 8 8 8 9 10 10 11 2 13 14 1 1 17 18 19 20 1 22 23 24 25 26 2 28 28 29 30 30 31 32 33 34 35 35 36 36 37 38 3 40 41 42 4 28 4 44 4 5 Site Plan 1:300
GSEducationalVersion 2 4 10 10 2 1 19 20 1 23 30 30 31 3 36 36 40 41 42 4 Site Plan 1:500
3.2.3 LANDSCAPE Pohon Cemara Pohon Gugur Pagoda Semak Perdu
GSEducationalVersion 12 16 18 22 25 DOWN UP 196 G 14 DOWN 16 156 15 302 13 DOWN UP 16 156 15 302 DOWN 10 11 13 DOWN UP 14 150 13 333 6 8 10 11 12 14 16 18 19 DOWN UP 170 19 310 0. Ground Floor 1:250
3.2.4 DENAH - DENAH
GSEducationalVersion 10 12 15 17 18 DOWN UP 14 17 DOWN 200 16 250 10 13 200 16 250 DOWN 2 10 11 13 14 16 18 20 DOWN 20 170 19G 310 KIDS PLAYGROUND BRIDGE 2 Story 1:250
GSEducationalVersion UP 13 15 16 18 DOWN 272 6 8 10 11 12 14 16 18 19 DOWN 170 19 310 10 3 Story 1:250
GSEducationalVersion
3.2.5 DENAH HUNIAN DAN RUANG SOSIAL
GSEducationalVersion W-01 S-06 Building
1:250
Section (1)
3.2.6 POTONGAN-POTONGAN
GSEducationalVersion
S-07 Building Section 1:250

3.2.7 BUILDING ENVELOPE

S-06 Building Section (1) 1:1000

Sistem light shelf yang baik untuk menangkap sinar matahari dan menyebarkannya ke dalam ruangan dengan mengontrol sifat panas dan silau agar tidak serta masuk ke dalam. Light shelf dapat meningkatkan masuknya cahaya matahari ke dalam ruangan hanya jika menangkap dan mengalihkan sinar matahari langsung. Light shelf memiliki keuntungan yang terbatas dengan cahaya yang menyebar, ketika cuaca sedang berawan dan matahari tertutup awan.

W-01

Worksheet 1:100

GSEducationalVersion -
Façade menggunakan bahan tahan api. Tetap agar ada cross ventilation

BAB4PENGUJIAN

GAGASANDESAIN

4.1 PRINTSCREEN EXCEL SIMULASI ASD

Menyediakan ruang sebagai area

resapan air hujan dan penyediaan

taman vertikal. Penggunaan vegetasi

lokal Dengan perhitungan Koefisien

Dasar Hijau (KDH) dan luas tajuk

Memelihara atau memperluas kehijauan kota untuk meningkatkan kualitas iklim mikro, mengurangi CO2 dan zat polutan, mencegah erosi tanah, mengurangi beban sistem drainase, menjaga keseimbangan neraca air bersih dan system air tanah.

Area Perkerasan, pedestrian, sumur resapan

ASDPAreaDasarHijau Luas Site (m2) KDB (%) Luas Dasar Terbangun (m2) P1, vegetasi min 10% dari luas lahan (m2) dll (m2)
4450 70% 2000 1200 1250 600
P2, 50% P1, tanaman sesuai permen PU (m2)
P1
Jenis Tanaman Jumlah Tanaman Diameter (m) Luas Tajuk (m2)
Cemara 14 4 12.56 175.84 Pohon Gugur Pagoda 20 4 12.56 251.2 Semak Perdu 60 2 3.14 427.04 % 35.58666667
Jumlah luas Tajuk (m2) P2

Parkir

Perhotelan

Halte

Perbankan

Harvest Roti

Pertamina Station

Restaurant Mcdonald

Museum Sandi

ASD2AksebilitasKomunitas Bus Toko dan Warung Toko, Farmasi dan Warung Tugu Lilin Toko dan Warung RTHP

Padagambartelahmewakiliterdapatsistemyang terpadudenganjaringanjalan,jaringanpenerangan, jaringanpejalankakikawasan,jaringantelepon, jaringanfiberoptic,sistempembuangan sampah,dandrainase.

ASD1PemilahanTapak

Parkir

Perhotelan

Halte

Perbankan

Harvest Roti

Pertamina Station

Restaurant Mcdonald

Museum Sandi

ASD2AksebilitasKomunitas Bus Toko dan Warung Toko, Farmasi dan Warung Tugu Lilin Toko dan Warung RTHP

ASD3TransportasiUmum

ASD 3 Transportasi Umum

Tujuan

Mendorong pengguna gedung untuk menggunakan kendaraan umum massal dan mengurangi kendaraan pribadi.

Tolok Ukur

1A

Adanya hatle atau stasiun transportasi umum dalam jangkauan 300 m (walking distance) dari gerbang lokasi bangunan dengan tidak tidak memperhitungkan panjang jembatan penyeberangan dan ramp

atau

1B

2

Menyediakan shuttle bus untuk pengguna tetap gedung dengan jumlah unit minimum untuk 10% pengguna tetap gedung

Menyediakan fasilitas jalur pedestriandi dalam area gedung untuk menuju ke stasiun transporttasi umum terdekat yang aman dan nyaman degan mempertimbangkan Peraturan Menteri Pekerjaan Umum 30/PRT/M/2006 mengenai Pedoman Tekniks Fasilitas dan Aksesibilitas pada Bangunan Gedung dan Lingkungan Lampiran 2B

Karenapadasitememilikishuttlebusterdekatyaitudi seberangdarisite,makapadaperancangantidakdiperlukan areashuttlebusuntukmemenuhiASD3ini,hanyasaja diperlukandesainyangmenunjukkanbahwaperancangan mendesainsirkulasiuntukmemudahkanpenggunagedung kearahshuttlebustersebut.

sirkulasiuntukmemudahkanpengguna gedungkearahshuttlebustersebut.

1
1

ASD4FasilitasPenggunaSepeda

ASD 4 Fasilitas Pengguna Sepeda

Tujuan

Mendorong penggunaan sepeda bagi penguna gedung dengan mempertimbangkan fasilitas yang memamdai sehingga dapat mengurangi penggunaan kendaraan bermotor

Tolok Ukur

1

2

Adanya tempat parkir sepeda yang aman sebanyak unit parkir per 20 pengguna gedung hingga maksismal 100 unit parkir sepeda. 1 2

Apabila tolok ukur diatas terpenuhi, perlu tersedianya shower sebanyak 1 unit untuk setiao 10 parkir sepeda 1

Total Kamar yaitu 207 dengan asumsi pengguna 2 orang per kamar. Karyawan sebanyak 50 orang sehingga totalnya 464 orang.

Maka minimum penyedian sepeda yaitu 23 dengan shower sebanyak 2

Pada desain memberikan parkir untuk sepeda sebanyak 25 unit dan tersedia shower sebanyak 3

KODE KRITERIA dan TOLOK UKUR NILAI ACUAN NILAI NILAI MAKS

ASD5LansekapPadalahan

ASD 5 Lansekap pada Lahan

Tujuan

Memelihara atau memperluas kehijauan kota untuk meningkatkan kualitas iklim mikro, mengurangi CO2 dan zat polutas, mencegah erosi tanah, mengurangi beban system drainase, menjaga keseimbangan neraca air bersih dan system air tanah

Tolok Ukur

1A

1B

Adanya area lansekap berupa vegetasi (softscape) yang bebas dari bangunna tanaman (hardscape) yang terletak di atas permukiman tanah seluas minimal 40% luas total lahan. Luas area yang diperhitungkan adalah temasuk yang disebut di Prasyarat 1, taman di atas basement, roof garden, terrace garden, dan wall garden, dengan mempertimbangkan Peraturan Menteri PU No. 5/PRT/M/2008 mengenai Ruang

Terbuka Hijau (RTH) Pasal 2.3.1 tentang Kriteria Vegetasi untuk Pekarangan

1 3

Bila tolok ukur 1 dipenuhi, setiap penambahan 5% area lansekep dari luas total lahan mendapat nilai 1 1

2 Penggunaan tanaman yang telah dibudidayakan secara lokal dalam skala provinsi, sebesar 60% luas tajuk dewasa terhadap luas area lansekap pada ADS 5 tolom ukur 1 1

Luas Site (m2) KDB

Luas Dasar Terbangun (m2)

ASD 5, Lahan Hijau min 40% (m2)

KODE KRITERIA
NILAI ACUAN NILAI NILAI MAKS
dan TOLOK UKUR
(%)
4450 70% 3115 1780 Tipe/Jenis Tanaman H P Luas Tajuk (m2) Area Hijau P1 1000 Area Hijau Roof 20 20 400 Area Hijau Wall 27 21 567 Tipe/Jenis Tanaman Jumlah Tanama n Diamete r Luas Tajuk (m2) Area Pot 20 2 62.8 Jumlah Total Green Area 2029.8

ASD6IklimMikro

Tujuan

Meningkatkan kualitas iklim mikro di sekitar gedung yang mencangkup kenyamanan manusia dan habitat sekitar gedung

Tolok Ukur

1A Menggunakan berbagai material untuk menghindari efek heat island pada area atap gedung sehingga nilai albedo (daya refleksi panas matahari) minimum 0,3 sesuai dengan perhitungan.

1 atau

1B Menggunakan green roof sebesar 50% dari luas atap yang tidak digunakan untuk mechanical electrical (ME), dihitung dari luas tajuk.

2 Menggunakan berbagai material untuk menghindari efek heat island pada area perkerasan non-atap sehingga nilai albedo (daya refleksi panas matahari) minimum 0,3 sesuai perhitungan. 1

3A Dengan lansekap berupa vegetasi (softscape) pada sirkulasi utama pejalan kaki menunjukan adanya perlindungan dari panas akibat radiasi matahari

1 atau

3B Dengan lansekap berupa vegetasi (softscape) pada sirkulasi utama pejalan kaki menunjukan adanya perlindungan dari terpaan angin kencang

PadatujuanASD6iniyaitu,meningkatkan kualitasiklimmikrodisekitargedungyang mencangkupkenyamananmanusiadan habitatsekitargedungdenganmenggunakan berbagaimaterialuntukmenghindariefek heatislandpadaareaatap.

Menyediakan ruang sebagai area resapan air hujan dan penyediaan taman vertikal dan Penggunaan vegetasi lokal

Dapat dilihat nantinya dari penggunaan material non atap

Menyediakan vegetasi melindungi sirkulasi

ASD 6 Iklim Mikro

ASD7IklimMikro

Tolok Ukur

1A

Pengurangan beban volume limpasan air hujan ke jaringan drainase kota dari lokasi bangunan hingga 50%, yang dihitung menggunakan nilai intensitas curah hujan *.

1B

Pengurangan beban volume limpasan air hujan ke jaringan drainase kota dari lokasi bangunan hingga 85%, yang dihitung menggunakan nilai intensitas curah hujan *.

2 Menunjukan adanya upaya penanganan pengurangan beban banjir lingkungan dari luas lokasi bangunan. 1

3 Menggunakan teknologi – teknologi yang dapat mengurangi debit limpasan air hujan. 1

*Untuk wilayah DKI Jakarta, menggunakan curah hujan 50mm/hari sesuai Peraturan Gubernur DKI No 39 tahun 2012 tentang Bangunan Gedung Hijau.

* Untuk wilayah lain, menggunakan curah hujan harian maksimum setempat (10 tahunan) yang disertai dengan bukti perhitungan.

volume limpasan air hujan meliputi : Footprint bangunan, lahan hijau (greenfields), landscape dan luas total lahan.

Teknologi Storm water module akan membantu mendukung sumur resapan dan resapan biopori. Dengan adanya infiltrain tank dapat menyerap dan megurangi beban aliran air kota.

1 atau
2

4.2 PRINTSCREEN SIMULASI UJI ORIENTASI SOLAR TOOL

Pada uji suntool ini memperlihatkan bagaimana arah jatuhnya bayangan matahari pada sudut sudut tertentu, tingkat keberhasilan ini ditentukan dengan persentase yang ada pada pukul pukul tertentu setiap harinya sekaligus mempertimbangkan orang yang berada didalamnya sedang beraktivitas apa. Sehingga tidak selalu harus 100% dikarenakan ruang ruang mempunyai kriteria tertentu sesuai dengan penggunaanya dan orang didalamnya. Maka dari itu, dalam semua uji per bulan ini, maka diambil bulan yang cukup signifikan untuk diambil rata-rata dari 12 bulan tersebut. Berikut merupakan 3d modelling dari suntool dan persentase sesuai bulannya.

JUNE-TIMUR

JUNE-BARAT

EFISIENSISHADING

4.3 PRINTSCREEN SIMULASI UJI OTTV

terdapat fasad yang disesuaikan dengan pengaplikasian material yang tidak merusak ozon atau menambah isu urban heat island, maka diperlukan pemilihan material yang telah lulus uji ottv atau memang khusus tidak merusak lingkungan, berikut merupakan fungsidariujiOTTVbuildingenvelope

MRC PPerhitungan OTTV

Pada rancangan building envelope bagian tower, terdapat krtieria untuk menghitung perhitungan OTTV menggunakan tabel excel, maka dari itu daribuildingenvelopeiniterdapat3bagianmaterial,yaitu

Dari ketiga material itu, yang dominan adalah Glass Black Panel dengan memakai merk Asahimas, type Sunfort dengan spesifikasi dibawahini:

Fasad Utara FasadTenggara Fasad Selatan Fasad Barat Daya

PadaEEC2initujuannyayaituuntukmemaksimalkanpencahayaanalamisemaksimalmungkindengantolakukuroptimal30%dariluaslantai yangdigunakan.makadariitubagianEEC2inidimaksimalkanpadapencahayaanalamidibagiankamardanareapublikataukatalainsemua bagianbangunan.

KarenauntukmemenuhisyaratdariEEC2iniyaitudenganluasanlebihdari30%,makadapatdiperhitungkandenganrumus:LuasTotalLantai: Luasyangberhasillebihdari300lux=PersentasePencahayaan.Terlihatdarigambarluasanruangyangmemilikiluxlebihdari300telah melebihidari30%padasaatcuacabiasasaja.

Uji
Pencahayaan
EEC2
Velux-
alami
Ketikaditerapkanterdapatartificiallightingtidakberpengaruhsignifikannamuntetapmembantudalampenerangan

KarenauntukmemenuhisyaratdariEEC2 iniyaitudenganluasanlebihdari30%,maka dapatdiperhitungkandenganrumus:Luas TotalLantai:Luasyangberhasillebihdari 300lux=PersentasePencahayaan.Terlihat darigambarluasanruangyangmemilikilux lebihdari300telahmelebihidari30%pada saatcuacabiasasaja.

4.4 PRINTSCREEN UJI ALTERNATIF SISTEM STRUKTUR RESIST DAN RAPIT

2.4.2analisisujisistemstrukturberdasarkanujiRESISTANNEX

4.5 PRINTSCREEN UJI FIRE SAFETY DENGAN SHEET STANDAR

4.6 PRINTSCREEN UJI MRC

PadaMRC6inimempunyaitujuantunukmengurangijejakkarbon darimodatransportasipadasaatdibangunnyarancangan,maka dariituuntukmemenuhisyaratinidiperlukantokobangunanyang tidakjauhdarisite.Penggunaanmaterialkayusebagaibahan utamalokalyaitu,kayupinusdidaerahbantul,Yogyakarta.

4.7
PRINTSCREEN UJI WAC
desain BAB5Pengembangan

5.1. Pengembangan desain untuk indoor Health Comfort

5.1.1kontrolkualitaspencahayaandanintegrasidesaindenganteknologicanggih

ViewdankualitasTermalditentukandari simulasisuntooldanaplikasiveluxuntuk mengetahui arah bukaan dalam bangunan yang sesuai pencahayaan dan penghawaan. pada basement maka akan ditambahkan ventilasi pada bangunan basementagarpencahayaandanpenghawaanalamidapatmasuk.

Penerapan desain eggcrate pada bukaan kamar hotel sebagai konsep desain yang mewadahi hasrat dan value kamar sekaligus memberikan kesempatan bagi pencahayaan dan penghawaan secara alami masuk karena material dinding kamar adalah kaca yang didukung oleh secondary skin metal kinetik yang dapat diatur sendiri oleh pengguna tanpa harus kehilangan pengalaman melihat keluar dantakperlumerasakankepanasandiwaktutertentu

Penggunaanfasadepadabangunansangatberdampakdenganadanyabukaandalambangunan,agardapatmenghasilkan pencahayaanyangtidakberlebih.SertadapatmenghasilkanperhitunganOTTVdanEDGEyangbaikdanmenerapkanefisiensi energidalambangunan.

Pada fungsi lantai yang bersifat semi outdoor seperti lantai dasar dan lantai 1 yang mempunyai fungsi coffe shop dan collaborative space dengan sifat ruangan semi outdoor sehingga minim dinding tegakan tetapi kualitas akustik dapat tetap baik dengan tambahn plafon peredamsuara.

Penerapan desain selubung kaca yang didukung oleh secondary skin metal kinetik yang dapat diatur sendiri oleh pengguna tanpa harus kehilangan pengalaman melihat keluar dan tak perlu merasakan kepanasan di waktu tertentu dan gypsum pada annex yang berfungsi sebagai elemen peredam kebisingan dan mengurangiradiasimataharinamuntetap bisa menerima pencahayaan alami secukupnya. Terutama pada fasad tpwer dimana dapat ditumbuhi tanaman rambat yangmenambahnilaiakustik.

5.1.2kontrolkualitasakustikdanintegrasidesaindenganteknologicanggih DarimaterialyangdigunakanolehConferenceHalldiAnnexyaitumenggunakangypsumyangdapatmeredamkebisingan hingga450dB,makadengandatayangdidapatkankebisinganpadaareasekitaryaitusebesar175dB.Sehinggaruangan tersebutdapatredambilaterjadisebuahkegiatandidalamnya.

Rancangan pada bukaan menggunakan kaca asahimas dengan fasad eggcrate pada keseluruhan unit kamar hotel dan facade vertikal yang ditempatkan sesuai orientasi massa terhadap penghawaandanpencahayaan

5.1.3tampilandankontrolkualitastermaldanintegrasidesaindenganteknologicanggih

Pada uji suntool ini memperlihatkan bagaimana arah jatuhnya bayangan matahari pada sudut sudut tertentu, tingkat keberhasilan ini ditentukan dengan persentase yang ada pada pukul pukul tertentu setiap harinya sekaligus mempertimbangkan orang yang berada didalamnya sedang beraktivitas apa. Sehingga tidak selalu harus 100% dikarenakan ruang ruang mempunyai kriteria tertentu sesuai dengan penggunaanya dan orang didalamnya. Maka dari itu, dalam semua uji per bulan ini, maka diambil bulan yang cukup signifikan untuk diambil rata-rata dari 12 bulan tersebut. Berikut merupakan 3d modelling dari suntool dan persentase sesuai bulannya.

JUNE-TIMUR

JUNE-BARAT

EFISIENSISHADING

5.1.4kontrolkualitasventilasidanintegrasidesaindenganteknologicanggihdalamkebutuhanmanusia,sistem infrastruktur,sistemstruktur

Ruang Ber -AC

Dirancang penghawaan alami yang didapat pada fasad dengan bukaan vertical fasad dan juga didukung adanya garden court yang dapat memberikan pencahayaan dan penghawaan alamipadaseluruhbagiankoridorbangunan

Ventilasivertikalmenggunakanmetalfabricpanel dengan kemiringan (rotasi) yang dapat disesuaikanarahcahayamatahari.

Green Fasade dengan material ramah lingkungan didukung light shelf dan area balkon sebagaiselubungeggcratte

Garden Court membantu menjaga termal mengandalkan penghawaan alami yang dapat disalurkan melalui area garden court untuk pergantian udara panas dan dingin menuju bangunan

Green Fasade eggcratte Light Shelf

5.2. EFISIENSI ENERGI

terdapat fasad yang disesuaikan dengan pengaplikasian material yang tidak merusak ozon atau menambah isu urban heat island, maka diperlukan pemilihan material yang telah lulus uji ottv atau memang khusus tidak merusak lingkungan, berikut merupakan fungsidariujiOTTVbuildingenvelope

Pada rancangan building envelope bagian tower, terdapatkrtieriauntukmenghitungperhitunganOTTV menggunakan tabel excel, maka dari itu dari building envelopeiniterdapat3bagianmaterial,yaitu

Fasad Utara FasadTenggara Fasad Selatan Fasad Barat Daya

5.2.2AlternatifPotonganVentilasiAlami

Dirancang penghawaan alami yang didapat pada fasad dengan bukaan vertical fasad dan juga didukung adanya garden court yang dapat memberikan pencahayaan dan penghawaan alamipadaseluruhbagiankoridorbangunan

Ventilasivertikalmenggunakanmetalfabricpanel dengan kemiringan (rotasi) yang dapat disesuaikanarahcahayamatahari.

Green Fasade dengan material ramah lingkungan didukung light shelf dan area balkon sebagaiselubungeggcratte

Garden Court membantu menjaga termal mengandalkan penghawaan alami yang dapat disalurkan melalui area garden court untuk pergantian udara panas dan dingin menuju bangunan

5.2.3AlternatifPotonganPencahayaanAlami

PadaEEC2initujuannyayaituuntukmemaksimalkanpencahayaanalamisemaksimalmungkindengantolakukuroptimal30%dariluaslantaiyang digunakan.makadariitubagianEEC2inidimaksimalkanpadapencahayaanalamidibagiankamardanareapublikataukatalainsemuabagianbangunan.

KarenauntukmemenuhisyaratdariEEC2iniyaitudenganluasanlebihdari30%,makadapatdiperhitungkandenganrumus:LuasTotalLantai:Luas yangberhasillebihdari300lux=PersentasePencahayaan.Terlihatdarigambarluasanruangyangmemilikiluxlebihdari300telahmelebihidari30% padasaatcuacabiasasaja.

Ketikaditerapkanterdapatartificiallightingtidakberpengaruhsignifikannamuntetapmembantudalampenerangan
5.2.4AlternatifRencanaEnergiTerbarukan

5.3. Material Resource & Cycle

terdapatfasadyangdisesuaikandenganpengaplikasianmaterialyangtidakmerusakozonataumenambahisuurbanheatisland, makadiperlukanpemilihanmaterialyangtelahlulusujiottvataumemangkhusustidakmerusaklingkungan,berikutmerupakan fungsidariujiOTTVbuildingenvelope. materialyangdipakaikhususbertujuanuntukmengurangipolusiudaradariemisimaterial yangmengganggukenyamanan.makadariituSantikamenggunakancatzeroVOCdanmaterialstainlesssteelfabricdariGKD METALFABRICsebagaimaterialfasadyangkarakternyapedulikarenaramahterhadaplingkungandankemudahanperawatan.

untukmengurangijejakkarbondarimodatransportasipadasaatdibangunnyarancangan,makadariituuntukmemenuhisyaratini diperlukantokobangunanyangtidakjauhdarisite.Penggunaanmaterialkayusebagaibahanutamalokalyaitu,kayupinusdidaerah bantul,Yogyakarta.

5.3.1AlternatifKonstruksiGambarDetailMaterial

materialyangdipakaikhususbertujuanuntukmengurangipolusiudaradariemisimaterialyangmengganggukenyamanan.maka dariituSantikamenggunakancatzeroVOCdanmaterialstainlesssteelfabricdariGKDMETALFABRICsebagaimaterialfasad yang karakternyapedulikarenaramahterhadaplingkungandankemudahanperawatan.

5.4. Pengembangan site yang tepat

5.4.1RencanaLansekap&IntensitasLahan

Site memiliki luasan 4450 m2 di area perkotaan tanah tidakberkontur

Lokasi Site berada di Yogyakarta tepatnya di Jl Jend Sudirman, Jetis, Yogyakarta, Indonesia. Site memiliki luas 6500 m2 yang kemudian diperkecil untuk mempermudah dalam perancangan menjadi 4450 m2 dengan berada di pusat perdagangan & jasa serta ikonik kota yaitu

Area terbangun di bagian tengah site dengan sedekatnya ke bagian depan agar nampak dan dijauhkan darisempadansecukupnya

Zoning untuk setiap area terbangun utama dan landscaping

Mayoritas bangunan adalah perkantoran, penginapan dan toko atau restoran di area tersebut yang menjadi poin tambahan yang dapat dikatakansebagailokasistrategis. View pada site sangatlah unggul dengan utamanya pada sisi utara yaitu gunung merapi dan tugu ke arah barat daya. Untuk memaksimalkannya dengan adaptasi orientasi terhadap view, arah matahari, angin dan hujan. Diperlukannya penataan site dengan transformasinyasepertiberikut.

Memenuhi RTH >15% dengan adanya area resapan air dengan ditanami rumput dan tanaman penghias. Selain itu sirkulasi dipusatkan di area depan sehingga bisa memaksimalkanarealainuntukareahijau.

Meningkatkan penghijauan kota dan memenuhi ASD serta mengurangi polusi dan kebisingan jalan raya perkotaan serta meminimalisir radiasi matahari dengan adanya vegetasi pada area site yangditanam.

Lokasi Site berada di Yogyakarta tepatnya di Jl Jend Sudirman, Jetis, Yogyakarta, Indonesia. Site memiliki luas 6500 m2 yang kemudian diperkecil untuk mempermudah dalam perancangan menjadi 4450 m2 dengan berada di pusat perdagangan & jasa serta ikonik kota yaitu tugu lilin yogyakarta antara Jl P Mangkubumi. Mayoritas bangunan adalahperkantoran,penginapan dantokoataurestorandiarea tersebut yang menjadi poin tambahan yang dapat dikatakan sebagailokasistrategis.

ASDPAreaDasarHijau

Menyediakan ruang sebagai area resapan air hujan dan penyediaan taman vertikal. Penggunaan vegetasi lokal Dengan perhitungan Koefisien Dasar Hijau (KDH) dan luas tajuk

Memelihara atau memperluas kehijauan kota untuk meningkatkan kualitas iklim mikro, mengurangi CO2 dan zat polutan, mencegah erosi tanah, mengurangi beban sistem drainase, menjaga keseimbangan neraca air bersih dan system air tanah.

P1,

Area Perkerasan, pedestrian, sumur resapan dll

P2, 50%

Luas Site (m2) KDB (%) Luas Dasar Terbangun (m2) vegetasi min 10% dari luas lahan (m2) (m2)
4450 70% 2000 1200 1250 600
P1, tanaman sesuai permen PU (m2) P1
Cemara 14 4 12.56 175.84 Pohon Gugur Pagoda 20 4 12.56 251.2 Semak Perdu 60 2 3.14 427.04 % 35.58666667
Jenis Tanaman Jumlah Tanaman Diameter (m) Luas Tajuk (m2) Jumlah luas Tajuk (m2) P2

Pohon cemara ini ditanam dengan tujuan untuk mempermudah untuk mencapai tujuan tertentu dikarenakan pohon ini berguna sebagai pengarah, selain itu, pohon ini juga ditanam sebagai pemecah angin pada bagian tenggara. Pohon ini juga berfungsi sebagai pengikat air di dalam tanah dan pencegah longsor.

Pohon ketapang kencana ini merupakan pohon tipe peneduh yang gunananya selain untuk meneduhkan juga yaitu untuk menyerap polusi. Maka dari itu untuk penempatannya ditempatkan pada area depan, dekat dengan drop off sekaligus menjadi penyerap polusi padabagiandepan(arealalulintasjalanbesar)

Selain pohon pohonan, pada bagian lansekap pula dibuat streetscape, streetscape merupakan upaya untuk menciptakan ruang luar yang menarik dan dapat dilakukan dengan mendesain elemen elemen pembentuk ruang yang bernilai fungsional. Contohnya yaitu dengan material perkerasan yang menggunan paving block berpola tertentu, selain untuk mempercanik dari segi estetika, namun paving block juga dapat menjadi area resapan bagi air hujan ditambahdenganadanyatanamanperdusemak.

5.4.2AlternatifsolusipencapaianindikatorASDsepertiaplikasigreenbalkon,walldanatauroofsertaelememlainpadabangunan
5.4.3Alternatif
rencanapengelolaanairhujan

5.5. Konservasi Air

PerhitunganExcel

5.6. Penyelesaian keselamatan kebakaran

5.6.2AlternatifSkenarioEvakuasiKebakaran

5.6.3KomponenEvakuasiKebakaran

5.6.4Alternatif
PenanggulanganBencana

5.7. Penyelesaian sistem struktur dan konstruksi bangunan dan ruang infrastruktur untuk keselamatan, keamanan dan kenyamanan

2.4.2analisisujisistemstrukturberdasarkanujiRESISTANNEX

BAB7HASILUJI

KINERJADESAIN

7.1. Uji ASD

ASDPAreaDasarHijau

Menyediakan ruang sebagai area

resapan air hujan dan penyediaan taman vertikal. Penggunaan vegetasi lokal Dengan perhitungan Koefisien Dasar Hijau (KDH) dan luas tajuk

Memelihara atau memperluas kehijauan kota untuk meningkatkan kualitas iklim mikro, mengurangi CO2 dan zat polutan, mencegah erosi tanah, mengurangi beban sistem drainase, menjaga keseimbangan neraca air bersih dan system air tanah.

Luas

Luas Site (m2) KDB (%)

P1, vegetasi min 10% dari luas lahan (m2)

Area Perkerasan, pedestrian, sumur resapan dll (m2)

P2, 50% P1, tanaman sesuai permen PU

Dasar Terbangun (m2)
4450 70% 2000 1200 1250 600
(m2) P1
Cemara 14 4 12.56 175.84 Pohon Gugur Pagoda 20 4 12.56 251.2 Semak Perdu 60 2 3.14 427.04 % 35.58666667
Jenis Tanaman Jumlah Tanaman Diameter (m) Luas Tajuk (m2) Jumlah luas Tajuk (m2) P2

Padagambartelahmewakiliterdapatsistemyang terpadudenganjaringanjalan,jaringanpenerangan, jaringanpejalankakikawasan,jaringantelepon, jaringanfiberoptic,sistempembuangan sampah,dandrainase.

ASD1PemilahanTapak

Parkir

Perhotelan

Halte

Perbankan

Harvest Roti

Pertamina Station

Restaurant Mcdonald

Museum Sandi

ASD2AksebilitasKomunitas Bus Toko dan Warung Toko, Farmasi dan Warung Tugu Lilin Toko dan Warung RTHP

ASD3TransportasiUmum

ASD 3 Transportasi Umum

Tujuan

Mendorong pengguna gedung untuk menggunakan kendaraan umum massal dan mengurangi kendaraan pribadi.

Tolok Ukur

1A

Adanya hatle atau stasiun transportasi umum dalam jangkauan 300 m (walking distance) dari gerbang lokasi bangunan dengan tidak tidak memperhitungkan panjang jembatan penyeberangan dan ramp

atau

1B

2

Menyediakan shuttle bus untuk pengguna tetap gedung dengan jumlah unit minimum untuk 10% pengguna tetap gedung

Menyediakan fasilitas jalur pedestriandi dalam area gedung untuk menuju ke stasiun transporttasi umum terdekat yang aman dan nyaman degan mempertimbangkan Peraturan Menteri Pekerjaan Umum 30/PRT/M/2006 mengenai Pedoman Tekniks Fasilitas dan Aksesibilitas pada Bangunan Gedung dan Lingkungan Lampiran 2B

Karenapadasitememilikishuttlebusterdekatyaitudi seberangdarisite,makapadaperancangantidakdiperlukan areashuttlebusuntukmemenuhiASD3ini,hanyasaja diperlukandesainyangmenunjukkanbahwaperancangan mendesainsirkulasiuntukmemudahkanpenggunagedung kearahshuttlebustersebut.

sirkulasiuntukmemudahkanpengguna gedungkearahshuttlebustersebut.

1
1

ASD4FasilitasPenggunaSepeda

ASD 4 Fasilitas Pengguna Sepeda

Tujuan

Mendorong penggunaan sepeda bagi penguna gedung dengan mempertimbangkan fasilitas yang memamdai sehingga dapat mengurangi penggunaan kendaraan bermotor

Tolok Ukur

1

2

Adanya tempat parkir sepeda yang aman sebanyak unit parkir per 20 pengguna gedung hingga maksismal 100 unit parkir sepeda. 1 2

Apabila tolok ukur diatas terpenuhi, perlu tersedianya shower sebanyak 1 unit untuk setiao 10 parkir sepeda 1

Total Kamar yaitu 207 dengan asumsi pengguna 2 orang per kamar. Karyawan sebanyak 50 orang sehingga totalnya 464 orang.

Maka minimum penyedian sepeda yaitu 23 dengan shower sebanyak 2

Pada desain memberikan parkir untuk sepeda sebanyak 25 unit dan tersedia shower sebanyak 3

KODE KRITERIA dan TOLOK UKUR NILAI ACUAN NILAI NILAI MAKS

ASD5LansekapPadalahan

ASD 5 Lansekap pada Lahan

Tujuan

Memelihara atau memperluas kehijauan kota untuk meningkatkan kualitas iklim mikro, mengurangi CO2 dan zat polutas, mencegah erosi tanah, mengurangi beban system drainase, menjaga keseimbangan neraca air bersih dan system air tanah

Tolok Ukur

1A

1B

Adanya area lansekap berupa vegetasi (softscape) yang bebas dari bangunna tanaman (hardscape) yang terletak di atas permukiman tanah seluas minimal 40% luas total lahan. Luas area yang diperhitungkan adalah temasuk yang disebut di Prasyarat 1, taman di atas basement, roof garden, terrace garden, dan wall garden, dengan mempertimbangkan Peraturan Menteri PU No. 5/PRT/M/2008 mengenai Ruang

Terbuka Hijau (RTH) Pasal 2.3.1 tentang Kriteria Vegetasi untuk Pekarangan

1 3

Bila tolok ukur 1 dipenuhi, setiap penambahan 5% area lansekep dari luas total lahan mendapat nilai 1 1

2 Penggunaan tanaman yang telah dibudidayakan secara lokal dalam skala provinsi, sebesar 60% luas tajuk dewasa terhadap luas area lansekap pada ADS 5 tolom ukur 1 1

Luas Site (m2) KDB

Luas Dasar Terbangun (m2)

ASD 5, Lahan Hijau min 40% (m2)

KODE KRITERIA
NILAI ACUAN NILAI NILAI MAKS
dan TOLOK UKUR
(%)
4450 70% 2000 1780 Tipe/Jenis Tanaman H P Luas Tajuk (m2) Area Hijau P1 1200 Area Hijau Balkon 720 Area Hijau Wall 27 21 567 Tipe/Jenis Tanaman Jumlah Tanama n Diamete r Luas Tajuk (m2) Area Pot 50 0.5 9.8125 Jumlah Total Green Area 2496.8125

ASD6IklimMikro

Tujuan

Meningkatkan kualitas iklim mikro di sekitar gedung yang mencangkup kenyamanan manusia dan habitat sekitar gedung

Tolok Ukur

1A Menggunakan berbagai material untuk menghindari efek heat island pada area atap gedung sehingga nilai albedo (daya refleksi panas matahari) minimum 0,3 sesuai dengan perhitungan.

1 atau

1B Menggunakan green roof sebesar 50% dari luas atap yang tidak digunakan untuk mechanical electrical (ME), dihitung dari luas tajuk.

2 Menggunakan berbagai material untuk menghindari efek heat island pada area perkerasan non-atap sehingga nilai albedo (daya refleksi panas matahari) minimum 0,3 sesuai perhitungan. 1

3A Dengan lansekap berupa vegetasi (softscape) pada sirkulasi utama pejalan kaki menunjukan adanya perlindungan dari panas akibat radiasi matahari

1 atau

3B Dengan lansekap berupa vegetasi (softscape) pada sirkulasi utama pejalan kaki menunjukan adanya perlindungan dari terpaan angin kencang

PadatujuanASD6iniyaitu,meningkatkan kualitasiklimmikrodisekitargedungyang mencangkupkenyamananmanusiadan habitatsekitargedungdenganmenggunakan berbagaimaterialuntukmenghindariefek heatislandpadaareaatap.

Menyediakan ruang sebagai area resapan air hujan dan penyediaan taman vertikal dan Penggunaan vegetasi lokal

Dapat dilihat nantinya dari penggunaan material non atap

Menyediakan vegetasi melindungi sirkulasi

ASD 6 Iklim Mikro

ASD7IklimMikro

Tolok Ukur

1A

Pengurangan beban volume limpasan air hujan ke jaringan drainase kota dari lokasi bangunan hingga 50%, yang dihitung menggunakan nilai intensitas curah hujan *.

1B

Pengurangan beban volume limpasan air hujan ke jaringan drainase kota dari lokasi bangunan hingga 85%, yang dihitung menggunakan nilai intensitas curah hujan *.

2 Menunjukan adanya upaya penanganan pengurangan beban banjir lingkungan dari luas lokasi bangunan. 1

3 Menggunakan teknologi – teknologi yang dapat mengurangi debit limpasan air hujan. 1

*Untuk wilayah DKI Jakarta, menggunakan curah hujan 50mm/hari sesuai Peraturan Gubernur DKI No 39 tahun 2012 tentang Bangunan Gedung Hijau.

* Untuk wilayah lain, menggunakan curah hujan harian maksimum setempat (10 tahunan) yang disertai dengan bukti perhitungan.

volume limpasan air hujan meliputi : Footprint bangunan, lahan hijau (greenfields), landscape dan luas total lahan.

Teknologi Storm water module akan membantu mendukung sumur resapan dan resapan biopori. Dengan adanya infiltrain tank dapat menyerap dan megurangi beban aliran air kota.

1 atau
2

Pohon cemara ini ditanam dengan tujuan untuk mempermudah untuk mencapai tujuan tertentu dikarenakan pohon ini berguna sebagai pengarah, selain itu, pohon ini juga ditanam sebagai pemecah angin pada bagian tenggara. Pohon ini juga berfungsi sebagai pengikat air di dalam tanah dan pencegah longsor.

Pohon ketapang kencana ini merupakan pohon tipe peneduh yang gunananya selain untuk meneduhkan juga yaitu untuk menyerap polusi. Maka dari itu untuk penempatannya ditempatkan pada area depan, dekat dengan drop off sekaligus menjadi penyerap polusi padabagiandepan(arealalulintasjalanbesar)

Selain pohon pohonan, pada bagian lansekap pula dibuat streetscape, streetscape merupakan upaya untuk menciptakan ruang luar yang menarik dan dapat dilakukan dengan mendesain elemen elemen pembentuk ruang yang bernilai fungsional. Contohnya yaitu dengan material perkerasan yang menggunan paving block berpola tertentu, selain untuk mempercanik dari segi estetika, namun paving block juga dapat menjadi area resapan bagi air hujan ditambahdenganadanyatanamanperdusemak.

5.4.2AlternatifsolusipencapaianindikatorASDsepertiaplikasigreenbalkon,walldanatauroofsertaelememlainpadabangunan
5.4.3Alternatif
rencanapengelolaanairhujan

7.2. Uji EEC

Rata-rata suhu khususnya Jalan Sudirman yaitu sekitar 30 derajat Celcius hingga 31 derajat Celcius. Dan untuk arah angin berasal dari area barat laut menuju tenggara dengan rata rata berbelok dengan kemiringan 30 derajat Berdasarkan arah cahaya matahari, orientasi bangunan memanjang dari timur ke barat karena menyesuaikan dengan site, hal tersebut cukup menguntukngkan karena dapat mengurangi paparan sinar radiasi matahari secara langsung. Namun pada saat tahap mendesain nanti akan tetap mengembangkan shading development dengan beberapa kemiringantertentupadabagiantertentu.

2.3.1UjiSuntool

Pada uji suntool ini memperlihatkan bagaimana arah jatuhnya bayangan matahari pada sudut sudut tertentu, tingkat keberhasilan ini ditentukan dengan persentase yang ada pada pukul pukul tertentu setiap harinya sekaligus mempertimbangkan orang yang berada didalamnya sedang beraktivitas apa. Sehingga tidak selalu harus 100% dikarenakan ruang ruang mempunyai kriteria tertentu sesuai dengan penggunaanya dan orang didalamnya. Maka dari itu, dalam semua uji per bulan ini, maka diambil bulan yang cukup signifikan untuk diambil rata-rata dari 12 bulan tersebut. Berikut merupakan 3d modelling dari suntool dan persentase sesuai bulannya.

JUNE-TIMUR

JUNE-BARAT

EFISIENSISHADING

2.3.2UjiOTTV

terdapat fasad yang disesuaikan dengan pengaplikasian material yang tidak merusak ozon atau menambah isu urban heat island, maka diperlukan pemilihan material yang telah lulus uji ottv atau memang khusus tidak merusak lingkungan, berikut merupakan fungsidariujiOTTVbuildingenvelope

MRC PPerhitungan OTTV

Pada rancangan building envelope bagian tower, terdapat krtieria untuk menghitung perhitungan OTTV menggunakan tabel excel, maka dari itu daribuildingenvelopeiniterdapat3bagianmaterial,yaitu

Dari ketiga material itu, yang dominan adalah Glass Black Panel dengan memakai merk Asahimas, type Sunfort dengan spesifikasi dibawahini:

Fasad Utara FasadTenggara Fasad Selatan Fasad Barat Daya

PadaEEC2initujuannyayaituuntukmemaksimalkanpencahayaanalamisemaksimalmungkindengantolakukuroptimal30%dariluaslantai yangdigunakan.makadariitubagianEEC2inidimaksimalkanpadapencahayaanalamidibagiankamardanareapublikataukatalainsemua bagianbangunan.

KarenauntukmemenuhisyaratdariEEC2iniyaitudenganluasanlebihdari30%,makadapatdiperhitungkandenganrumus:LuasTotalLantai: Luasyangberhasillebihdari300lux=PersentasePencahayaan.Terlihatdarigambarluasanruangyangmemilikiluxlebihdari300telah melebihidari30%padasaatcuacabiasasaja.

Uji
Pencahayaan
EEC2
Velux-
alami
Ketikaditerapkanterdapatartificiallightingtidakberpengaruhsignifikannamuntetapmembantudalampenerangan

KarenauntukmemenuhisyaratdariEEC2iniyaitudenganluasanlebihdari30%,maka dapatdiperhitungkandenganrumus:LuasTotalLantai:Luasyangberhasillebihdari300 lux=PersentasePencahayaan.Terlihatdarigambarluasanruangyangmemilikiluxlebih dari300telahmelebihidari30%padasaatcuacabiasasaja.

7.3. Uji IHC

Pada IHC 2 ini tujuannya yaitu untuk mengurangi area roko yang biasanya berada pada tempat umum, seperti contoh tolak ukurnya dipasang tanda dilarang meroko diseluruh area gedung, dan jika ada maka minimal berada pada jarak 5m dari pintu masuk,ataubukaanjendela

Terdapat cigar lounge sebagai area khusus untukmerokokdandenganalatpenyedotasap sehinggatidakmenyebabkangasemisi

Pada IHC 4 ini pemandangan keluar gedung dimaksimalkan pada area gedung yang megarahlangsungkejalansudirmandanpada area utara dapat melihat gelora bung karno. Pada bagian annex juga ditempatkan dengan elevasi rendah yang terbuka ke arah jalan sudirmandenganleluasabagiareaserbaguna

PadaIHC5initujuannyayaituuntukmembuatruangantidakterlaluterangdanmasihdiambangbataswajarketeranganluxnya, sehinggadiukurdengantolokukurmenggunakanlampudengantingkatpencahayaanyangpassesuaidengankonservasienergi.

PadaIHC6inibertujuanuntukmeningkatkan kondisiyangstabildenganmenjagasuhu secaraumumdikisaran25derajat,sekaligus kelembabandenganrelative60%.

Makadariitudibuatlahrencanadariperancangandenganperencanaantanamanpadasudutsuduttertentudiluardandiareadalambangunan denganvisualisasitanamanuntukmenjagasuhu.

PadaIHC7initerdapatkriteriatingkatkebisingan dengankebisingandidalamruanganyangoptimal, makadariituuntukmeminimalisirkebisingan tersebutdiplottingtanamanyangberfungsisebagai pemecahsuarapadaareadepandanbelakang bangunan,khususnyayangberadapadaarea belakangbangunankarenaterdapatareaparkir umumdanjugapadaareadepanyaitupadaarea JalanSudirman(JalanUtama),berikutmerupakan visualisasinya:

7.4. Uji MRC

PadaMRC6inimempunyaitujuanuntukmengurangijejakkarbondarimodatransportasipadasaat dibangunnyarancangan,makadariituuntukmemenuhisyaratinidiperlukantokobangunanyangtidakjauhdari site.Penggunaanmaterialkayusebagaibahanutamalokalyaitu,kayupinusdidaerahbantul,Yogyakarta.

7.5. Uji WAC

Pada WAC P1 dan P2 ini bertujuan untuk memantau penggunaan air sehingga tidak terjadi kelebihan air yang dipakai pada gedung, Caranya yaitu dengan menggunakan pemasangan alat meteran yang ditempatkan di lokasi lokasi tertentu sehingga setiap volume air yang keluardapatdimonitorpengeluarannya.

WAC3DaurUlangAir

PadaWACP1danP2inibertujuanuntukmemantaupenggunaanair sehinggatidakterjadikelebihanairyangdipakaipadagedung,Caranya yaitudenganmenggunakanpemasanganalatmeteranyangditempatkan dilokasilokasitertentusehinggasetiapvolumeairyangkeluardapatdi monitorpengeluarannya.

7.6. Uji Struktur RESIST dan RAPID

2.4.2analisisujisistemstrukturberdasarkanujiRESISTANNEX

7.7 Uji keselamatan Kebakaran

7.8 Uji EDGE

Perancangantentusajadengankonsepbangunanramahlingkungandanberkelanjutan.

DIYOGYAKARTA

PROBLEMSOLVING

PERDADANTORADS3

VARIABEL

GREENHOTEL EFISIENSIHOTEL KEPUASANPELANGGAN

BEM

- Dasar pengelolaan sampah

- GPtim proyek - Polusi konstruksi

- Pengelolaan sampah tindaklanjut

- Sistem komisioning

- DataGreen Building - FitOut - Survei pengguna gedung

- Refigeran fundamental - Material reuse - Material ramah lingkungan

- Refrigeran tanpaODP - Kayu bersertifikat

- Material prefabrikasi

- Material regional

ASD

- Memperluas areadasar hijau

- Pemilihan Tapak - Aksesibilitas komunitas

- Transportasi publik

- Fasilitas pengguna sepeda

- Lansekap padalahan dengan vegetasi

- Iklimmikro

- Manajemen airhujan

IHC EEC WAC

- Introduksi udaraluar

- Pemantauan kadarCO2

- Kendaliasap rokok

- Polutankimia

- Pemandangan keluar gedung

- Kenyamanan visual

- Kenyamanan termal

- Tingkat kebisingan

- Pemasangan sub-meter - Perhitungan OTTV

- Langkah Penghematan energi

- Pencahayaan alami

- Ventilasi - Pengaruh perubahan iklim

- Energi terbarukan

- Meteranair - Perhitungan Penggunaan Air - Pengurangan Penggunaan air - Fiturair - Daur ulang air

- Sumber air alternatif - Penampunga nairhujan

- CostMaintenance - Management

- ConstructionCost - LokasiStrategis

- Tataruangefektif

- Fleksibilitasruang

- Struktur,utilitasdaninfrastruktur

- Layakuntukdisewa

- Viewdanvista

- Communityhub - Creativecollaborativespace

-

ASDP - ASD1 - ASD2 - ASD3 - ASD4 - ASD5 - ASD6 - ASD7 - MRCP - MRC1 - MRC2 - MRC3 - MRC4 - MRC5 - MRC6 - BEMP - BEM1 - BEM2 - BEM3 - BEM4 - BEM5 - BEM6 - BEM7

IndikatorGREENSHIPGBCIBangunanBaruV.1.2

- Materialtahanapi

- Memilikijalurevakuasi

- Sistemaktifdanpasifpencegahandan penanganankebakaran

- PenentuanJenisdanDimensiRuang

- PenentuanBukaanRuang

- PolaSirkulasiDalamBangunan

- TeknologiBerkelanjutan

- HubunganAntarRuang

- PerancanganStrukturAntiBencana

- PerancanganSistemUtilitasdan infrastruktur

- PenyediaanSistemMaintenance

RESIST

100%TERCAPAI

FIRESAFETY96%TERCAPAI

- ZonasiAksesibilitasdanJangkauan RuangtermasukDifabel - Fireprotection - Ruangkamardenganbalkon - Exhibitionspace

MRC PARAMETER INDIKATOR
IHCP - IHC1 - IHC2 - IHC3 - IHC4 - IHC5 - IHC6 - IHC7 - EECP1 - EECP2 - EEC3 - EEC4 - EEC5 - WACP1 - WACP2 - WAC1 - WAC2 - WAC3 - WAC4 - WAC5 - WAC6
- Efisiensi penggunaan airlansekap
-
- Nyaman - Safety - Security - Fasilitaslengkap
KESIMPULAN KETERCAPAIAN KERJA Tujuandariperancanganiniadalahsebuahhoteldipusatkotapariwisatadenganannexsebagaiperwujudandukunganpenyediaanruangberkumpul, santai,kerjasekaligusruangkreatifbagipublikagarsetiapmasyarakatdapatmelakukankegiatanrumahnyauntukberistirahat,kegiatanbekerja, bersosialisasi,menyalurkanhobidankreativitashinggaberkolaborasibersamaoranglaindengannyamandangembiradalamsatutempat(allin).

Turn static files into dynamic content formats.

Create a flipbook
Issuu converts static files into: digital portfolios, online yearbooks, online catalogs, digital photo albums and more. Sign up and create your flipbook.