Bill Feng - Selected Works 2023

Page 1

PORTFOLIO

BILL CHENHAO FENG | SELECTED WORKS 2023

03 01 02 KAY BLAIR HOSPICE OAKWOOD COMMUNITY CENTER NIA CENTER OF THE ARTS 04 AN-SHUN RESORT CONCEPT DESIGN FOR A HOSPICE IN BRAMPTON ONTARIO CULTURAL ART PERFORMANCE CENTER ON EGLINGTON AVE, TORONTO COMMUNITY CENTER ON OAKWOOD AVE, TORONTO ARCHITECTURAL NET-ZERO
04 05 06 TMU E-SPORT LOUNGE PROFESSIONAL WORK AN-SHUN RESORT CONTENTS WORKS DURING PREVIOUS INTERNSHIP INTERIOR CONCEPT DESIGN FOR A E-SPORT LOUNGE AT TMU ARCHITECTURAL DESIN & MASTERPLANNING FOR A NET-ZERO ENERGY RESORT IN ANSHUN, CHINA

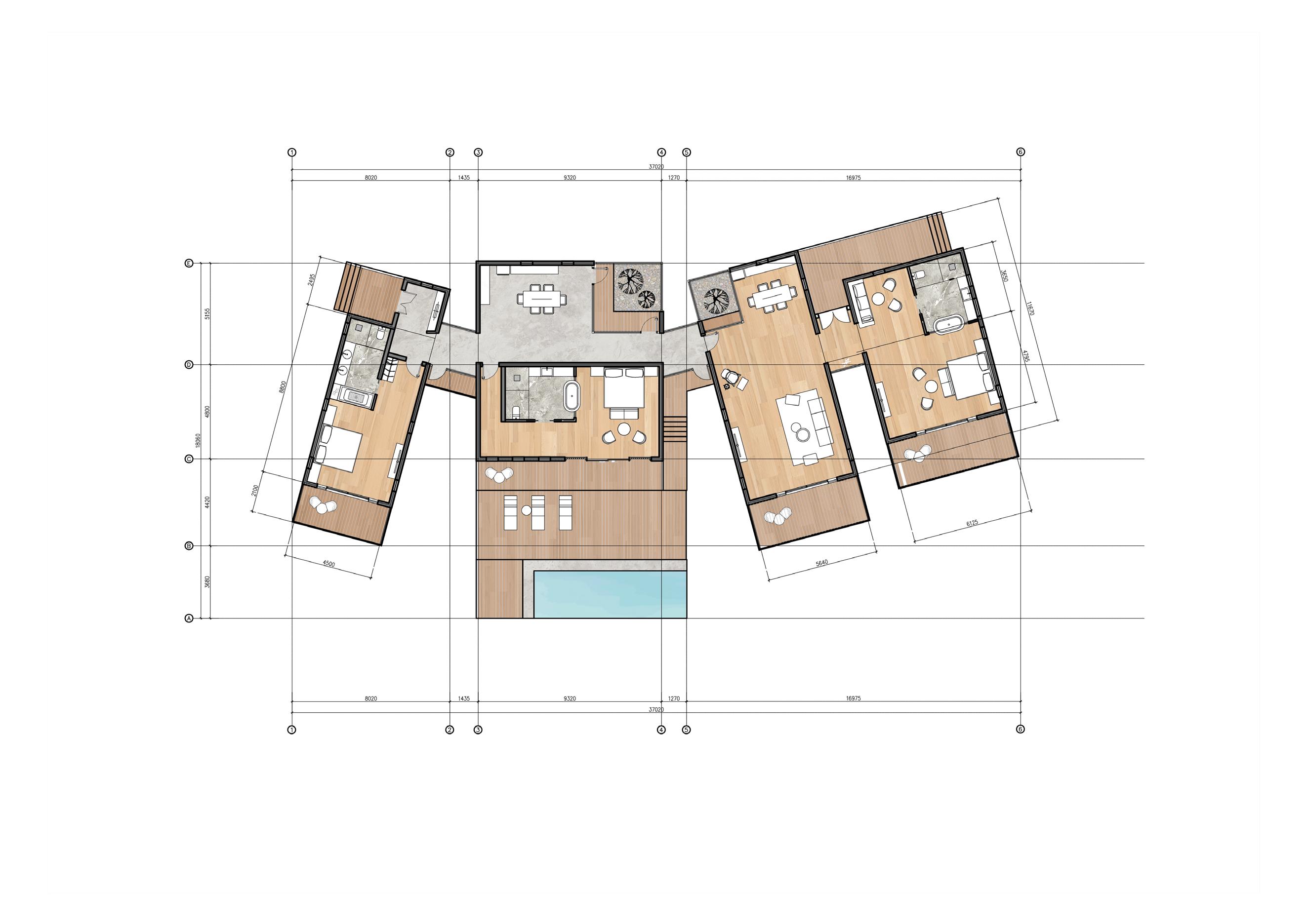
01: KAY BLAIR HOSPICE

LOCATION: 529 Oakwood Ave, Toronto, ON, Canada

BUILDING TYPE: Hospice

DESIGN TIME: Sept 2022 - Dec 2022(Year 4, Semeter 1)

SOFTWARE: Sketchup, AutoCad, Enscape, Adobe Photoshop, Adobe Illustrator

INSTRUCTOR: Yew-Thong Leong

[UNDER ONE ROOF]

The design objective of the Kay Blair hospice is to create a warm and welcoming experience for those that occupies the space, and to allow patients to live in quality and to die in dignity. A design that is imagined for the Kay Blair hospice is to create a village-like layout, with individual houses of different function all located under one common roof, in one hospice space. The proposed design takes advantage of the local sun path to create a cozy and warm living environment for those that stays in the residential units.

CHENHAO FENG | SELECTED WORKS 2023 | 12 FUTURE RESIDENTIAL DEVELOPEMENT SESQUICENTENNIAL PARK GREEN BELT HERITAGE AREA SITE 1 km 0.5 km BRAMALEARD. BRAMALEA CHRISTIAN FELLOWSHIP COMMERCIAL ZONE BramaleaRoad 1 2 3 4 5 6 7 8 1 2 3 4 5 6 7 Main Entrance Visitor Parking Staff Parking Secondary Entrance/Staff Entrance Loading Area North-Facing Park (For Staff + Family) Outdoor Pavillion 8 South-Facing Park (For Staff) BRAMALEAROAD Site Context Site Masterplan

Urban Context Analysis

MASSING FORMS ARE BEING LAID DOWN BASED ON THE MAXIMUM COVERAGE AREA, SURROUNDING A CENTRAL COURTYARD

Form Analysis

SMALL FORMS ARE CREATED BASED ON THE DIMENSION OF THE REQUIRED PROGRAMS. EACH INDIVIDUAL BUILDING CONTAINS RELATED PROGRAMS. A SMALL “VILLAGE” OF BUILDING IS FORMED

EACH OF THE INDIVIDUAL HOUSES ARE CONNECTED WITH A COMMON ROOF, CREATING ONE LARGE SPACE. THE ANGLE OF RESIDENCE UNITS ARE ADJUSTED FOR BEST NATURAL LIGHT CONDITION

Ground Floor Plan

RESIDENCE STAFF + SERVICE RESIDENCE +STAFF BRAMALEA RD.

Exterior Perspective

South-East Elevation

South Elevation

CHENHAO FENG | SELECTED WORKS 2023 | 14 C C
Building Section 1

Exterior Perspective: Staff Entrance

Exterior Perspective: Residential Unit

Interior Perspective: Residential Unit

CHENHAO FENG | SELECTED WORKS 2023 | 15
CHENHAO FENG | SELECTED WORKS 2023 | 16
Building Section 2 Arrival / Main Entrance Outdoor Park Lobby Space
A
Central Courtyard
A

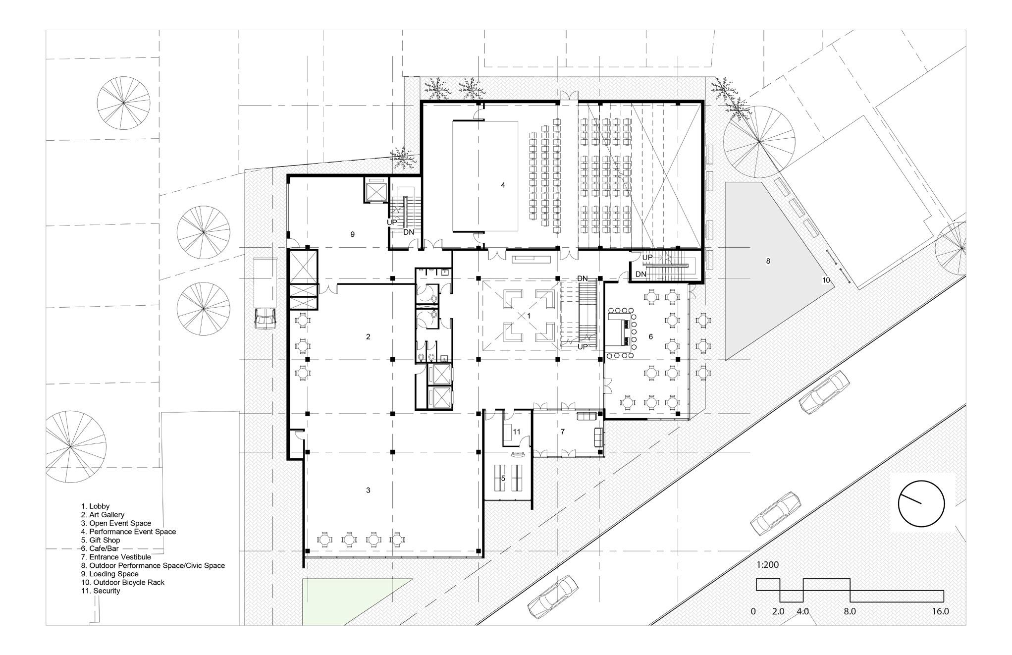
02: NIA CENTER OF THE ARTS

LOCATION: 529 Oakwood Ave, Toronto, ON, Canada

BUILDING TYPE: Cultural Community Center

DESIGN TIME: Feb 2021 - May 2021(Year 3, Semeter 2)

SOFTWARE: Revit, AutoCad, Enscape, Adobe Photoshop, Adobe Illustrator

INSTRUCTOR: Carlo Parente

COLLABORATOR: Jiajie Yuan

[URBAN THRESHOLD]

The project is conceived as a complex of spaces embracing the intersection of various systems, demographics, programs, and activities. Programs and activities are exposed to weave intricate network of public spaces that every journey between levels becomes a spectacle on its own. The open outdoor public space is integrated into the main body of structure and served as platforms for users to perceive the atmosphere of arts and culture.

In order to avoid the mistakes in planning that “city blocks serve no purpose other than as space to pass is the eponymous character of urban corridor.” The building will be a threshold as well as monument to connect and reactivate the adjacent neighborhood.

CHENHAO FENG | SELECTED WORKS 2023 | 20 OAKWOOD AVE T A D R AV E UD T 1:200 0 2.0 4.0 8.0 16.0 m SITE PLAN
Context
Masterplan
Site
Site
CHENHAO FENG | SELECTED WORKS 2023 | 21 UP UP UP DN UP obby 2 A t Ga e y 3 Open E n Space 4 P E Sp 5 R pt 6 C fe/B 7 En ance Ves bu e 8 Outdoor Pe ormance Spa e/C v Space 9 Load ng Space 10. BOH Eq p Sto g 1 6 7 9 5 10 1:100 0 1.0 2.0 4.0 8.0 m GROUND FLOOR PLAN Exterior Perspective Ground Floor Plan
CHENHAO FENG | SELECTED WORKS 2023 | 22 1:100 0 1.0 2.0 4.0 8.0 m SECOND FLOOR PLAN 11. S 3. q p o g 14. M R La e) g 16. e - n Loung C R 1 4 5 U UP DN P DN DN P 9. C K 1. d K h d p 4. S E S 6. Y C -W k S 2 1:100 0 1.0 2.0 4.0 8.0 m THIRD FLOOR PLAN DN DN 27. Y h29. S u e Lo e o ge/ h we 30. R R 32. R B oth g 34. S M R op 36. S 38. S Me n R om La ge) O 41. O 3 33 3 0 0 0 1:100 0 1.0 2.0 4.0 8.0 m FOURTH FLOOR PLAN
Second Floor Plan
Fourth Floor Plan
Third Floor Plan
CHENHAO FENG | SELECTED WORKS 2023 | 23 Level 1 0 Level 2 5500 Level 3 10500 Level 4 14500 Basement -3750 Level 5 19500 Roof 21900 A D E F B C South Elevation West Elevation Building Section 1

Perspective Section 1

CHENHAO FENG | SELECTED WORKS 2023 | 24
1F Perspective 2F Perspective
CHENHAO FENG | SELECTED WORKS 2023 | 25 3F Perspective 4F Perspective
Perspective Section 2 Systems Integration Diagram 1 Systems Integration Diagram 2

Structural Analysis

ROOF SLAB ENVELOPE FACADE CIRCULATION STAIRS CONCRETE SLAB WITH LOAD-BEARING WALLS RENDER CREATIVE LAB PROGRAM ANALYSIS
CHENHAO FENG | SELECTED WORKS 2023 | 28 Operable Perforated Corten Steel Panel Gypsum Board with semi-vapor permeable paint Dropped Compound Ceiling Assembly: Steel Web Gypsum Ceiling Panel Structural W-Flange Beam Exterior Gypsum Sheathing Vapor Retarder Water-Resitant Barrier Rigid Insulation with water-resistant paint nish Typical Green Roof Assembly: Extensive Substrate Filtering Layer Drainage Layer Bitumen Vapor Barrier Geotextile Protection Layer Rigid Insulation Steel Deck Batt Insulation Concrete Floor Slab Double Glazed Window Wall System Foundation Wall Assembly: Drainage Board Exterior Rigid Insulation Waterproo ng Membrane Concrete Foundation Wall Interior Rigid Insulation Fiberglass Insulation Gypsum Board Exterior Finish Grade W-Flange Steel Column Round DiagonalSteel Column HVAC Grating Insulated Glazing Door Typical Floor Assembly: PVC Screed Thermal Insulation Panel Polythene Seperating Layer EPS Impact-Sound Insulation Concrete Slab Steel Deck Round DiagonalSteel Column 5500 Level 2 Level 4 14500 10500 Basement -3750 Level 3 Level 5 19500 0 Level 1 F E
Typical Wall Section
CHENHAO FENG | SELECTED WORKS 2023 | 29 28.14 10.00 78.55 192.83 10.63 6.44 30.00 93.88 17.28 100.00 50.00 139.95 235.46 20.75 147.09 57.26 25.74 356.55 Perforated Corten Steel Cladding Gypsum Board with semi-vapor permeable paint Structural W-Flange Beam Exterior Gypsum Sheathing Vapor Retarder Water-Resitant Barrier Rigid Insulation with water-resistant paint nish Batt Insulation ASK 2a: Section Detail 2 (Wall Connection at So t) 1:20 ASK 2b: Plan Interior wood oor nish Double Glazed Curtain Wall Double Glazed Curtain Wall Rigid Insulation Steel Structural Support Concrete Floor Slab So with Wood Finish B B
1 BILL SCALE: 1:10 10.00 28.14 192.83 10.63 6.44 30.00 78.55 150.00 126.41 57.00 197.00 500.00 643.00 89.32 Perforated Corten Steel Cladding Gypsum Board with semi-vapor permeable paint Rigid Insulation Filtering Layer Drainage Layer BitumenVapor Barrier Geotextyle protection Layer Gypsum Compound Ceiling Structural W-Flange Beam Exterior Gypsum Sheathing Vapor Retarder Water-Resitant Barrier Rigid Insulation with water-resistant paint nish Extensive Substrate Gravel Batt Insulation ASK 1a: Section Detail 1 (Wall Connection with Roof & Extensive Green Roof) 1:20 ASK 1b: Plan Detail: Concrete Floor Slab A A
3 BILL SCALE: 1:10 22.12 213.73 20.91 8.93 34.31 40.10 141.99 339.62 ASK 3a: Section Detail 3 (Skylight Opening Base Connection with Roof) 1:20 ASK 3b: Plan Detail Exterior Gypsum Sheathing Batt Insulation Double Glazed Insulated Curtain Wall Vapor Retarder Water-Resistant Barrier Rigid Insulation Roof Deck Pedestal System with wood nish Masonry Stone Panel Finish Gypsum Board with semi-vapor permeable paint C C
Detail
DETAIL
DETAIL
Detail Section 3
Section 2 Detail Section 1

03: OAKWOOD COMMUNITY CENTER

LOCATION: 611 Vaughan Rd, Toronto, ON, Canada

BUILDING TYPE: Communitry Center

DESIGN TIME: Sept 2021 - Dec 2021(Year 3, Semeter 1)

SOFTWARE: Revit, AutoCad, Enscape, Adobe Photoshop, Adobe Illustrator

INSTRUCTOR: Michelle Grant

[CONNECT + GATHER]

The vision of the Oakwood community art center is to create a public gathering place to celebrate and to preserve the local culture in the neighbourhood. A central theme of the new design proposal is gathering, and this was demonstrated from the overall form creation process of the design. Through the joining and interconnection or “gathering” of different functional programs in basic geometric forms of different size, height, and proportions, a new form is created following the overall shape of the site. Through the interconnection of form, both interior space and exterior space are created within the building, and this creates different atmospheres for interaction, cultural, and social exchange.

Building From Analysis

Building Features

CHENHAO FENG | SELECTED WORKS 2023 | 32
TERRACES / EXTERRIOR CIRCULATION PUBLIC EXTERIOR GATHERING SPACE VIEWS & TRANSPARENCY
MASSING FORMS LAID DOWN ON THE MAXIMUM COVERAGE AREA. GATHERING OF MAJOR FUNCTIONAL PROGRAM & THE CREATION OF CENTRAL GATHERING SPACE WITH SURROUNDING PROGRAM. A LARGER SPACE CREATED THROUGH THE INTERCONNECTING OF FORMS BASED ON THE SHAPE OF THE SITE.
CHENHAO FENG | SELECTED WORKS 2023 | 33
Building Section
South East Elevation

Interior Perspective

Exterior Perspective

Building Perspective Section

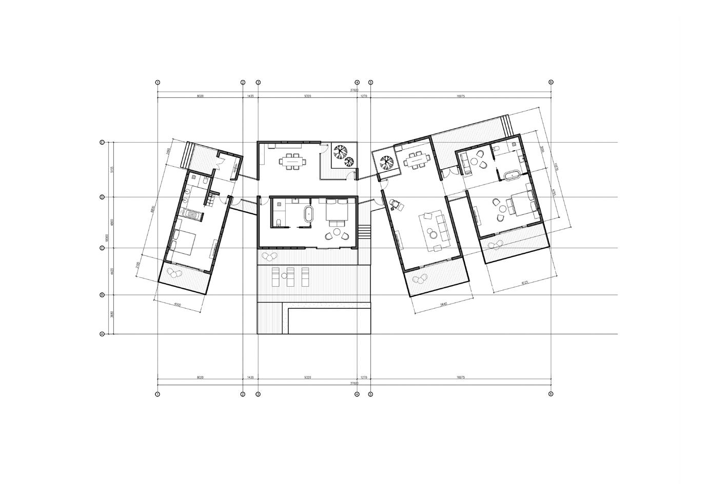
04: ANSHUN NET-ZERO RESORT

LOCATION: Anshun, China

BUILDING TYPE: Resort, Net-Zero Energy Building

DESIGN TIME: May 2022 - Nov 2022(Extracurricular)

SOFTWARE: Sketchup, AutoCad, Enscape, Adobe Photoshop, Adobe Illustrator

INSTRUCTOR/ADVISOR: Zaiyi Liao, Stanley Lung (MIX Design Studio)

DESIGN SCOPE: Architectural Design + Site Masterplanning

[WHEN TRADITION MEETS TECHNOLOGY]

This project consists of a series of net-zero-energy dwelling units being situated in the mountains of Anshun, Guizhou. Together, these dwellings forms a resort on the Hillside to invite guests to stay in. The goal of “Net Zero Energy Resort Anshun” is to not only provide visitors with the best scenery and experience of the site, but also to keep building energy consumption to the minimum to reduce operating cost of the resort.

The project takes inspiration from traditional Chinese Diaojiaolou, one of the most iconic architectural typologies in the Yunnan Province.

NET-ZERO ENERGY

MODULAR ASSEMBLY

TRADITIONS & CULTURE COMMUNITY RURAL BUILDING

Building form inspired by the classic “L”layout of the traditionla diaojiaolou typology, with bedroom on one end & living room on the other.

Building Form Analysis

The large volumn is broken up into smaller units, seperating the different functions. the “glass box” in-between the volumns invites natural light into the interior.

The local climate context has indicated prority wind coming from the south-west & southeast direction. the volumns are then rotated to maximize natural wind penetration to the interior.

CHENHAO FENG | SELECTED WORKS 2023 | 38 1 1 8 9 10 12 12 11 11 2 2 3 4 5 5 6 7
Tea
Common Dining Space/ Banquet Hall Swimming Pool with Change Room Flower Field
Water Landscape
Feature Pavillion Grass Field Resort Zone 1: Building Type 2
Resort
Zone 2: Building Type 3 Resort Zone 3: Building Type 1
Car
Park Guest Reception Center Public Park/ View Deck Site Masterplan

The resort contains three different types of units for guests to choose from. Unit 1 includes two independent guest rooms and a suite, as well as a common dining area. The two sides of unit type 2 are independent loft units, a public bar and can be located in the middle of the building. Type 3 consists of 4 separate bedroom units and a shared living room. Each unit includes an open outdoor terrace. The platform contains a small swimming pool as well as viewing and resting areas.

CHENHAO FENG | SELECTED WORKS 2023 | 39 Building Types Overview 10 12 12 3 4 5 7 7 6
Buidling Type 1 Buidling Type 2 Buidling Type 3

Floor Plan: Building Type 1

Floor Plan L1: Building Type 2

Floor Plan L1: Building Type 3

Floor Plan B1: Building Type 2

Floor Plan B1: Building Type 3

METAL ROOF ASSEMBLY WITH BIPV SOLAR PANELS, RAFTERS TO BE CONNECTED TO ROOF STRUCTURAL FRAME

ROOF STRUCTURAL FRAME, CONNECTED WITH THE REST OF THE WOOD FRAME STRUCTURAL SYSTEM

WOODEN JOIST FRAME STRUCTURAL SYSTEM

CLT WOOD CLADDED WALL SYSTEM WITH ALUMINUM-FRAMED GLASS OPENINGS

WOOD SLAB WITH WOOD PANEL FLOORING

EXTENDED OUTDOOR EXTERIOR WOOD DECK

STEEL-FRAMED FOUNDATION SUPPORT WITH CONCRETE FOOTING

Site Perspective

Exterior Passage Perspective

Building Type 2 Perspective

CHENHAO FENG | SELECTED WORKS 2023 | 42
Building Type 1 Exterior Perspective

Sustainable Design Strategies Analysis

Building Envelope

NET-ZERO DESIGN STRATEGIES SUMMARY:

1. Different building programs seperated into individual enclosed units for seperate temperature control.

2. Application of BIPV solar panels on roof.

3. Responding to the wind on-site, maximizing building exposure to natural ventilation

4. Water saving devices: water reuse system

5. Double glazed low-e high performance window to minimize thermal bridging

6. Building envelope: highly insulated, built with recycleable material (wood clt)

7. Roof shading design: prventing direct sunlight during summer months & more sunlight during winter months

8. Achieve cross ventilation through opening designs on the building’s interior.

9. Raised platform prevents moisture & reduces interior heat during summer months.

CHENHAO FENG | SELECTED WORKS 2023 | 43 RAISED PLATFORMS TO EXPEL MOISTURE & FOR BETTER COOLING OPENINGS ON BOTH ENDS TO ACHIEVE CROSS VENTILATION HOLDING TANK REUSE TANK GREYWATER HIGH SUMMER SUN LOW WINTER SUN SITE
NATURAL VENTILATION DIAGRAM SITE WIND ANBALYSIS

05: TMU E-SPORT LOUNGE

LOCATION: 350 Victoria St, Toronto, ON, Canada

PROJECT TYPE: Interior Design (E-Sport Lounge)

DESIGN TIME: May 2020 - August 2020(Extracurricular)

SOFTWARE: Rhino, AutoCad, Vray, Adobe Photoshop, Adobe Illustrator

COLLABORATOR: Alvin Huang, Caleb Culmone, Olivia Ferreira

SUPERVISOR: Vincent Hui

[SCI-FI, FUTURISTIC GAMING LOUNGE ]

As part of the new E-sports popularity wave, Ryerson University is now beginning to establish a new club called “Ryerson esports”, where students and other members could be a part of the experience. As a result, the Ryerson esports club would need a space where they could meet up and practice. The proposed space is dedicated to the use of individual gaming and streaming, as well as competitive spaces for groups of friends and teams. The overall space could be divided into three areas, including the main console gaming lounge, the streaming labs, as well as the pc stations. With LED lights as the main decorating element, the overall spaces is surrounded by a savvy tech atmosphere.

CHENHAO FENG | SELECTED WORKS 2023 | 46 1 1 2 2 3 4 5 6 7 8 9 3 4 5 6 7 8 9 Front Desk VR Station Leasure Lane Group Gaming Wall of Champs Lounge Streaming Booths Gaming Snack Bar PC Gaming Lab E-Sports Competition Stage
CHENHAO FENG | SELECTED WORKS 2023 | 47

06: HAI-PHONG MIXED-USE

LOCATION: Haiphong, Vietnam

PROJECT TYPE: Commercial Mixed Use + Hotel + Residential (ARCHITECTURAL DESIGN)

DESIGN TIME: Dec 2021 - Mar 2022 (Internship)

SOFTWARE: Sketchup, AutoCad, Enscape, Adobe Photoshop, Adobe Illustrator

DESIGN TEAM (HBA Architecture): Joe Lau, Ingwa Han, Xin Chen, Joey Zhang, Sonia Louh, Chenhao Feng

Key Responsibilities: Masterplan, Floor Plan, Concept Diagrams

[ARCHITECTURAL INTERPRETATION OF THE PHOENIX FLOWER]

The project site is a semi circular shaped lot, located at the tip of a peninsular block in the old French Quarter of Hai Phong. The site used to be the site of the old ‘Iron Markets of Hai Phong’. The site is surrounded by Tam Bac River on the North, Tam Bac Lake on the south and Tam Bac Park on the West.

The design concept of the project takes inspiration from the Phoenix flower. Hai Phong main streets are characterized by avenues of Phoenix flower trees. The Phoenix flowers are large, with four spreading scarlet or orange-red petals and a fifth upright petal called the standard, which is slightly larger and spotted with yellow and white.

CHENHAO FENG | SELECTED WORKS 2023 | 50 RIVER PROMENADE LAKE PROMENADE PARK MAIN ENTRANCE PLAZA PLAZA STANDARD 3 2 1 4 STANDARD 3 2 1 4 STANDARD 3 2 1 4

The Hotel Tower stands proud as the main Central Tower, representing the main petal of the Phoenix Flower. Hotel drop off and arrival is elevated on L2, moving Hotel and Ballroom guests from the hustle and bustle of street level activities to an elevated ‘city sanctuary’. Guests arriving at the Hotel Lobby on L2 will be shuttled via express lifts to L38 where the Hotel Reception and Lounge is located. Guests will be greeted by a panoramic view of Hai Phong City, extending to the sea.

2 Apartment Tower blocks flank the Hotel and Serviced Apartment tower, The serrated perimeter outline of the apartment towers are inspired by the wavy edges of the Phoenix Flower petals, maximizing window areas and opportunity for views. 3 Separate tower formation allows larger gaps between the buildings, reducing the perception of bulkiness.

CHENHAO FENG | SELECTED WORKS 2023 | 51 L11-25 Hotel Apartment L27-37 Hotel Suite L38 Hotel Sky Lobby & Sky Lounge L39 Hotel Sky Restaurant Roof Hotel Sky Pool & Sky Bar L6-10 Office HOTEL ROOM L29-37 KEYS: 308 RESTAURANT & SKY BAR L39 RECEPTION & ADD L38 REFUGE L26 TRANSFER HOTEL APARTMENT L11-25 KEYS: 420 OFFICE L6-10 APARTMENT L6-19, 21-37 UNITS: 675 FLOOR HEIGHT: 3.5M SKY VILLA & PENTHOUSE L36-38 UNITS: 15 FLOOR HEIGHT: 8.2M REFUGE 20 TRANSFER APART. FACILITIES L5

LANZHOU JCG WATERFRONT DEVELOPEMENT

LOCATION: Lanzhou, China

PROJECT TYPE: Open Air Commercial Street + Hotel (MASTERPLANNING + ARCHITECTURAL DESIGN)

DESIGN TIME: Oct 2021 - Dec 2021(Internship)

SOFTWARE: Sketchup, AutoCad, Enscape, Adobe Photoshop, Adobe Illustrator

DESIGN TEAM (HBA Architecture): Howard Tseng, Joey Zhang, Anastasia Mikerchuk, Chenhao Feng

Key Responsibilities: Design of Individual Store Units, Masterplan, Floor Plan

[REIMAGINING THE “GOLDEN GATE” HISTORICAL TOWN]

The Lanzhou JCG Waterfront Developement is composed of “Jincheng Commercial District” and “Baiyun Resort Hotel Group”, as well as the adjacent “Baitashan Park” scenic spot. The proposed future “Jincheng Commercial District” is intended to become an attractive tourism and commercial destination in Lanzhou City. The “ Jincheng Commercial District” into three areas: the East District, the Central District and the West District. Open spaces such as “squares” connect tourists and activities in various areas. Retails in the developement is mostly in the form of open-air commercial streets.

The Jincheng East District is composed of a multi-story parking building and commercial facilities, providing large-scale interior catering and entertainment experience.

The Jincheng Central District is composed of a series of existing heritage building in combination with newly built commercial buildings. The main business formats are flagship stores of major brands, retail and catering, large bookstores, etc., which can provide a rich shopping and leisure experience.

Jincheng West District plans to reproduce the architectural art installations of Jincheng Pass. The area also includes a number of retail stores and F&B.

CHENHAO FENG | SELECTED WORKS 2023 | 54 MASTERPLAN OF COMMERCIAL STREET
WEST PROMENADE JINCHENG PLAZA JINCHENGGUAN PLAZA HUANGHE PLAZA
CHENHAO FENG | SELECTED WORKS 2023 | 55
WHITE
CENTRAL PROMENADE EAST PROMENADE L4 (+1535) L2 (+1525) L3 (+1530) L1 (+1520) LEGEND 图例 KEY PLAN 总平面 BROWN ALUMINIUM LOUVERS 棕色铝制格栅 MATERIAL 材质 BLUE-GREY DOUBLE GLAZING GLASS 蓝灰色中空玻璃 ELEVATIONS 步行街内部立面图 GRAY CLAY ROOF TILE 灰色陶瓦 DARK GRAY METAL ROOF TILE 灰色金属瓦 GREY ALUMINIUM MULLION 灰色铝框 COLOR 色彩 1F ±0.00M 2F 5.00M RF 13.00M
SILKROAD PLAZA
PAGODA PLAZA FENGLINGUAN PLAZA

Other Works

ATV Showroom (Academic Work, Second Year Semester 2)

Valley of Arch-Art-Sci Experimental Green Building (Extracurricular Work)

Studio on the Hill (Academic Work, First Year Second Semester)

CHENHAO FENG | SELECTED WORKS 2023 | 56

DAM Plank

CHENHAO FENG | SELECTED WORKS 2023 | 57 190 mm 500 mm
FLW Banff Pavillion (Extracurricular Work) DAM Plank (Benchmark Competition Entry) Tech Showroom Interior Design (Extracurricular Work)

Additional Works

CHENHAO FENG | SELECTED WORKS 2023 | 58
Bamboo Lamp (Installation Art /Furniture) Meditation Cabin(2018, Academic Work) Niagara Winery (2019, Academic Work) The Space Within (Installation Art) CUBE
CHENHAO FENG | SELECTED WORKS 2023 | 59
City in the Sky (Pen & Ink Drawing) Composition IV (Acrylic Painting) [Machinery] (Pencil Drawing) Dream of the Sand Castle (Plaster Model) The Tower (Paper Model)
CHENHAO FENG | SELECTED WORKS 2023 | 60 CHENHAO FENG Email: chenhao.feng2022@outlook.com Tel: (647) 987 7018 THANK YOU !

Turn static files into dynamic content formats.

Create a flipbook
Issuu converts static files into: digital portfolios, online yearbooks, online catalogs, digital photo albums and more. Sign up and create your flipbook.