

BERNICE WAHLER LANDSCAPES

Bernice Wahler
ABOUT BERNICE
Bernice Wahler has over twenty-five years of experience designing and executing landscapes that are of enduring quality and celebrate their unique surroundings. She has practiced with leading design firms in the United States and Asia, including EDSA Orient, Douglas Hoerr Landscape Architecture, Pressley Associates, and Stephen Stimson Associates.
With many of her projects largely in Coastal New England, she is very focused on maintaining the unique sense of place that draws her clients to their properties and strives to understand the unique context with which the landscape exists. She focuses on using native plants and local materials that are in dialogue with their context.
Bernice has a comprehensive knowledge of the regulations and approval process required for the development of these properties. She prides herself on listening to and collaborating with clients, architects, engineers, regulatory agencies, and contractors in the realization of these projects.
THE BWL STUDIO
Founded in 2012, Bernice Wahler Landscapes specializes in the context-driven design of landscapes throughout New England. Our clients' goals and priorities provide the foundation of our designs. Collaboration is an essential element to our design process and we have a passion for problem-solving that guides discussions, seeking the best possible outcome.
We are responsive to the intricate process of collaborating with clients, communities, public agencies, and private entities, and we maintain a commitment to creating finely-crafted landscapes that are contextually relevant and unique.
STUDIO DIRECTOR
Cally's passion for landscape and design was shaped by her upbringing along the vibrant Massachusetts coastline. Surrounded by the ever changing vistas, scents, and seasonal shifts of this dynamic environment, she developed an innate appreciation for the outdoors.
With a Master's degree in Landscape Architecture from Harvard University's Graduate School of Design and Bachelor’s degree in Environmental Studies from College of the Holy Cross, Cally merges her creativity with an understanding of ecological principles. Her approach strikes a balance between aesthetics and functionality.
Cally thrives on collaboration, working closely with clients to understand their unique aspirations. She is dedicated to enhancing their vision while ensuring the creation of enduring landscapes.
Drawing on her vast project experience with leading design firms, including luxury retail, corporate campuses and roof terraces, hospitality, outdoor entertainment, and residential spaces, she brings her expertise to all aspects of the project from concept to construction.

Cally Casey, RLA


SELECT PROJECT LIST
Gather RI / Providence, RI / In-Progress
Private Residence / Dobbs Ferry, NY / In-Progress
Langley Road Residence / Falmouth, MA / In-Progress
Great Island Residence / Yarmouth, MA / In-Progress
Chatham Residence / Chatham, MA / In-Progress
Private Residence / Bronxville, NY / In-Progress
Osterville Village Residence / Osterville, MA / Summer 2023
Old County Road Estate / Cataumet, MA / Summer 2023
Dune Road Residence / Brewster, MA / Summer 2023
Saconesset Hills Residence / Falmouth, MA / Summer 2023
Wing's Neck Residence / Bourne, MA / Summer 2022
Sea View Avenue Residence / Osterville, MA / Summer 2022
Hurricane Hall Residence / Hyannis Port, MA / Summer 2022
Low Beach Road Residence / Nantucket, MA / Spring 2022
Bannon Builders / Sandwich, MA / Summer 2021
Fells Pond Residence / Mashpee, MA / Summer 2021
MASS Audubon / Barnstable, MA / Summer 2021
Grey Gardens Residence / Sandwich, MA / Summer 2021
Rocky Point Road Residence / Bourne, MA / Summer 2021
Shimmo Pond Road Residence / Nantucket, MA / Fall 2020
Pocomo Road Residence / Nantucket, MA / Summer 2020
Juniper Point Residence / Woods Hole, MA / Concept 2018
Great Woods Estate / Harwich, MA / Concept 2018
Paine’s Creek Residence / Brewster, MA / Summer 2018
Mount Vernon / Hyannis Port, MA / Summer 2018
The Cottage House / Falmouth, MA / Summer 2018
Gunning Point Residence / Falmouth, MA / Fall 2017
Buzzards Bay Residence / Falmouth, MA / Summer 2017
Lombard Residence / Dorchester, MA / Spring 2017
Oyster Way Residence / Osterville, MA / Concept 2017
Woodland Retreat Residence / Osterville, MA / 2016
Oyster Harbors Residence / Osterville, MA / 2016
Wianno Residence / Osterville, MA / 2016
Irving Avenue Residence / Hyannis Port, MA / 2016
West Bay Residence / Osterville, MA / 2015
Sandy Neck Residence / Sandwich, MA / 2014
West Hyannis Port Residence / West Hyannis Port, MA / 2014
Coastal Woodland Residence / Brewster, MA / 2014
New Silver Marsh Residence / North Falmouth, MA / 2011

“A beautiful landscape is the reward. Each image in this collection represents a collaboration between our clients and a team of professionals. I am most grateful each day for the opportunity to create landscapes and to have some fun in the process!”
Bernice Wahler

Architect: Emeritus Development / Builder: EJ Jaxtimer Builder, Inc. / Contractor: Blueclaw Associates / Photographer: Greg Premru
2023 BRICC AWARDS SILVER - EXCELLENCE IN OUTDOOR LIVING DESIGN

NANTUCKET SOUNDS
Nantucket, Massachusetts





The original 1920’s structure has been transformed into a stunning waterfront vacation retreat, fulfilling the owners’ desire for extensive outdoor living areas and the perfect summer escape.


With portions of the landscape built on structure; grading, drainage, and waterproofing were key considerations. These elements were crucial to ensure the functionality and longevity of both the built and natural environments. The process required close collaboration with a waterproofing consultant, architects, and a structural engineer. Together, we developed solutions that not only met the needs of the landscape but also addressed the structure's requirements



Seating opportunities casually invite guests to enjoy the island time.



Early concept studies allowed the client a sneak peak into their summer life in waiting. Multiple social zones were placed throughout the property to provide the owners unique settings through the day.




Architect: Neubauer Ennis Architects / Builder: Bannon / Contractor: Francisco Tavares Inc. / Photographer: Jane Messinger

BOLD VIEW
Falmouth, Massachusetts

At its core, Bold View celebrates the dynamic contrast between rugged natural elements and refined modern architecture, offering a bold yet harmonious sense of place.



A distinctive feature of the arrival sequence is the elevated front entry bridge that connects the driveway to the front door.





Privacy and spatial definition are achieved through layers of structured concrete walls slicing contextual planting, which privatize and define the outdoor rooms. The extension of architectural wall elements into the landscape serve to enhance the sense of privacy and blur the lines between indoors and outdoors, while still allowing a comfortable flow throughout the site.



Builder: E.B. Norris / Contractor: Francisco Tavares Inc. / Photographer: Charles Mayer


HYANNIS PORT RESIDENCE
Hyannis Port, Massachusetts



A naturalized meadow path leading to the private beach stands as a focal point of this landscape’s design. This pine boardwalk, stretching an impressive 152 feet, weaves its way through the salt marsh and connects the home with the untamed beauty of the coastline. Its construction was no easy feat, but the result allows users to immerse themselves in the coastal environment.





Bernice Wahler Landscapes created a courtyard garden off of the front porch to provide a protective setting for lawn games surrounded by lush gardens.




Architect: Neubauer Ennis Architects / Photographer: Charles Mayer
2023

MASS AUDUBON
Barnstable, Massachusetts



Graciously overlooking Sandy Neck on the horizon, the 110 acres of natural beauty of MASS Audubon’s Long Pasture Wildlife Sanctuary not only contributes to the overall health of the coastal ecosystem but also provides visitors with a truly unique experience of Cape Cod’s pristine environment. When tasked with creating a new Welcome Center, and outdoor classroom, the design team was captivated by the sanctuary’s trails and beach, using this immersive experience to inspire a design that seamlessly blended the built environment of a historic site with nature


Long Pasture is not only a wildlife sanctuary, but also a hub for nature-based education and discovery. The sanctuary director wanted to lean into the educational programming as part of their outreach to the greater community.


BWL collaborated with this incredible organization and remained dedicated to their mission throughout the construction process. Our meetings were filled with inspiring, compassionate team members and BWL worked relentlessly to maximize the impact of their investments. With some clever grading and budget friendly stabilized aggregate we were able to make the campus universally accessible.




Outdoor spaces are defined by built-in benches, providing rest for trail leaders or educators organizing energetic groups of school children before embarking on their campus exploration.






Photographer: Charles Mayer Photography

GREY GARDENS
Sandwich, Massachusetts
This home's tiered landscape offers plenty of space for guests to swim, eat, chat, and entertain. Bluestone lawn steps help transition from the dining terrace to the pool and offer a setting for lush planters. A Japanese maple, transplanted from a different part of the property, provides privacy and a sense of enclosure in the pool area.







Beach stones are used to allow water to infiltrate through to the tree roots below.





Large pots and lush shrubs create the garden transition between the upper terrace to the pool area.



Photographer: Charles Mayer Photography

BANNON BUILDS
Sandwich, Massachusetts




BWL was commissioned by this trendsetting builder to create a landscape that reflected their company's personality. The site plan showcases clean lines and clarity of circulation.



Architect: Neubauer Ennis Architects / Contractor: Francisco Tavares, Inc. / Photographers: Meredith Hunnibell and Peter Vanderwarker

SEAM LESS
Falmouth, Massachusetts


Site salvaged boulders placed within a modern stone wall illustrate the dynamic energy of untamed wild within an organized framework.


Located along the banks of a salt pond, BWL worked with the project architect to create a tree-houselike responsiveness to the abutting native oak woodland. Working with the drama of the tree trunks backlit by Buzzards Bay, BWL sculpted the site to allow the building to sit on trunk like columns with decks projecting into the native landscape. BWL took the lead on the extensive environmental permitting required to achieve this intimate relationship with the protected coastal bank. The project includes wild native plants juxtaposed within strong architectural walls and terraces, creating a seamless connection to both the building and adjacent landscape.



Storm water management becomes a passive design element by collecting the roof runoff and channeling it through a series of steel channels, weirs, and stone filled basins.





Architect: SALT Architecture / Photographer: Dan Cutrona

SACONESSETT HILLS RESIDENCE
West Hyannis Port, Massachusetts



BWL worked with the project architect to address the visibility to the front door incorporating a pergola with pathways and plantings framing the main walk clearly visible from the arrival court.




GATHER RI
Providence, Rhode Island



Working closely with the clients and architect for this project allowed us to maximize the potential of the landscape by creating multiple spaces for gathering, such as a rooftop terrace and a courtyard adjacent to the entrance.





Architect: Neubauer Ennis Architects / Builder: Cape Associates, Inc. / Contractor: Ponderosa Landscaping / Photography: Meredith Hunnibell

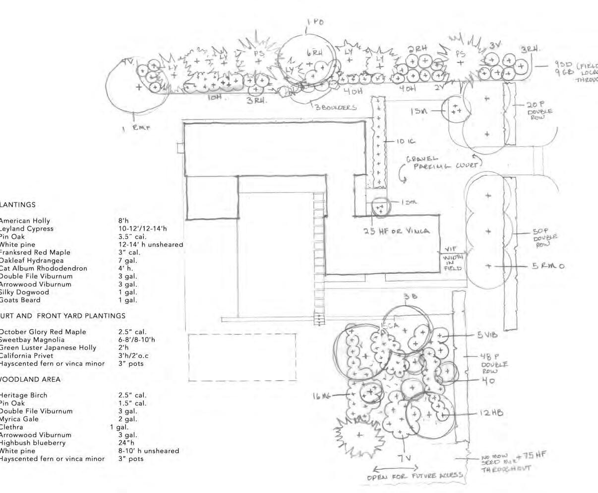
COASTAL WOODLAND
Brewster, Massachusetts

The design takes cues from regional context, re-establishing the woodland link.

Cape Cod Bay
Myricks Pond
Bog
Site
Old King’s Highway

Surrounded by coastal upland forest, this residence was designed to coexist with its context. The house is situated on the southernmost end of the property, with the majority of the landscape consisting of contiguous restored. Layers of native plants in various sizes emulate indigenous communities of plants and allows for natural succession and long-term stability with minimal management. A lowmaintenance fescue lawn provides the canvas for outdoor games and functions as a sloped plane directing runoff to adjacent plantings for cleansing and infiltration. A quarry end slab of bluestone is repurposed as a “sunning” block or a place to sit.






A path leads from the beach through a restored wooded area to the outdoor shower, intentionally designed to replicate the look of a natural footpath.







Shadow patterns from a nearby birch offer lacy interest.



Builder: Pinsonneault / Contractor: Mike Libben / Photographer: Charles Mayer

FELLS POND
Mashpee, Massachusetts

Naturalized plantings on this property are inspired by the adjacent forested pond edge. This modest site was sculpted to create opportunities for a more functional parking arrangement. The overall site achieves its relaxed character by embracing the natural forms of the native plants and allowing them to knit together into a continuous green understory.




Architect: Patrick Ahearn Architects, LLC / Contractor: EJ Jaxtimer Builder, Inc. / Photographer: Dan Cutrona Photography

RESORT LIVING
West Hyannis Port, Massachusetts


Nestled in an area more protected from wind, an outdoor fire pit keeps evening entertaining warm and bright at this beach retreat.

With views of famous Craigsville Beach, this seasonal house kicks into high gear in the summer. The recessed pool terrace and subtle paving pattern of the ground plane lead the eye across the landscape and out to the ocean.


Architect: Neubauer Ennis Architects / Builder: Cape Associates / Contractor: Ponderosa Landscaping / Photographer: Jane Messinger

PAINE’S CREEK
Brewster, Massachusetts




A simple plant palette highlights the modernity of the home and the broader beauty of the surrounding landscape.


Sitting on a peninsula of land surrounded by marshes, ponds, and wetlands, this unique new construction required extensive environmental permitting championed by the Landscape Architect. The outdoor elements remain humble to the natural surroundings, giving a minimal aesthetic and maintaining unobstructed views to the Cape Cod Bay. Monochromatic bluestone paving supports outdoor living and provides casual transitions from inside to outside. Fastgrowing natural material provides instant screening along the driveway, diffusing the view of a neighboring home. Attention to detail allows the built landscape elements to merge seamlessly with the architecture to create this Cape Cod vacation retreat.

Bernice Wahler landscapes creates instant privacy to screen views of an adjacent house with the use of columnar evergreens and native birch.


Architect: John Dvorsack Architect / Contractor: EJ Jaxtimer Builder, Inc. / Photographer: Dan Cutrona

TERRACED VIEW
Hyannis, Massachusetts

The custom flatwork and wall stones were created from a selected range of granites to reflect the warm sandy tones of the Cape Cod shores.


Working with a significant topography change of twenty feet from the backyard to the front yard, the landscape plan for this seasonal family home utilizes walls and sloped banks to form level areas for circulation, dining, lounging, gardening, and lawn play. Upon arrival to the property, guests are greeted by a set of landscape steps cleverly incorporated into planted terraces to give the feeling of a garden walk-up from the lower garage level to the first-floor entrance. Inspired by Gertrude Jekyll, an English style cottage gravel garden was created at the base of the terrace wall. The terraces also function as oversized raised beds, allowing the homeowner to access and seasonally plant easily.





Architect: Salt Architecture / Photographer: Alissa Hike Harris

PAIRING DOWN
Falmouth, Massachusetts


The site design for this home creatively sculpts functional level outdoor space from what was once a wooded knoll. The upper lawn maintains a strong connection to the lower play area through the use of lawn steps. The proposed swimming pool and terrace are slightly depressed for discrete views from the main house. Working closely with the architect and owner, the building was sited to maximize the usable yard space and takes advantage of the site’s grade changes to provide a fully furnished walk-out lower level.


Before: Concept Design
After: Built Project


SANDY POINT
Cape Cod, Massachusetts




This seasonal summer home showcases a palette of plants that transition seamlessly from summer to fall. Ornamental grasses were paired with summer-blooming hydrangea to quietly nest this residence into its grassy shoreline.



Architect: Neubauer Ennis Architects / Builder: McLaughlin & Son, Inc. / Contractor: Francisco Tavares, Inc. / Photography: Meredith Hunnibell

SUMMER CAMP
Bourne, Massachusetts

A family-friendly summer home in the woods encourages bare feet, grilling, evening fires, camping, lawn games, and laughing. The simple site plan has a restrained style with functional outdoor spaces that are created from gravel and lawn. The proposed planting areas use material originating in the surrounding natural landscape and are meaningfully organized to enhance the outdoor spaces.




Contractor: EJ Jaxtimer Builder, Inc.

COASTAL COMPOUND
Cotuit, Massachusetts


Anchored by a meadow, this collection of three single-family homes and a carriage house get a new life as a family summer retreat with privacy for all. Unity is created through the use of tree rows, stone walls, and clipped hedges. Materials are repeated consistently throughout the property to maintain the feel of a coastal village.

Contractor: EJ Jaxtimer Builder, Inc. / Photography: Meredith Hunnibell
2017 WORLD’S BEST POOLS

SPA DAY

Oyster Harbors, Massachusetts



A sunken terrace offers respite for summer reads.


Setting up a dramatic view for summertime entertaining, this seasonaluse landscape emphasizes the site’s spectacular views to West Bay. The infinity-edge pool is situated off to the side of the main entertaining terrace, leaving open, unobstructed views from the main living room to the natural vegetation bank and bay.




RIPPLE EFFECT
Woods Hole, Massachusetts

Visitors to this property are invited through naturalized plantings and native stone pathways. Landscape terraces accomodate large events, while native plantings reflect the natural shoreline and recall the Cape Cod context.




Reclaimed granite tilings create a pedestrian friendly path along the driveway.


WBE
Bernice Wahler Landscapes is a certified Women’s Business Enterprise in the state of Massachusetts. Bernice has significant experience on multiple institutional projects including rooftop gardens, streetscapes and public parks working with multidisciplinary teams throughout New England.
OUR PROCESS
We have significant experience leading and collaborating with interdisciplinary teams of architects, engineers, and soil scientists. We select and compose a group of consultants, according to the specific needs of each project we undertake.
Phase I: Conceptual Design Plan
We take inventory and assess the existing conditions from a provided survey plan, architectural layout, and field requirements. We then prepare perspective views, conceptual design plans, and imagery to convey the design intent and overall layout of proposed improvements.
SUSTAINABILITY
We begin with a thorough study of the environmental context and ecosystems at the site. Specific site conditions are analyzed to determine which sustainable design solutions are most pragmatic, cost-effective, and appropriate for the site, project, and client. We advocate LEED priorities where possible.

Phase II: Design Permits
It is understood that the Client will pursue any required historic, building, and conservation permits. Any permit services requested by the owner will be billed as additional services. BWL will work with the project engineer to provide supporting drawings, prepare the filings, and attend hearings as required. It is understood that there may need to be adjustments to the initial concept plans to confirm to permitting agency's request. Any revisions to the drawings will be billed as hourly as required.
Phase III: Project Documentation
CONCEPTUAL PRICING AND SCOPE CONFIRMATION
We prepare a rough cost estimate for the client review, which serves as a guideline moving forward in the design process.
DESIGN DEVELOPMENT
We continue to develop the landscape package, enriching the conceptual plan to include paving pattern studies, material options, lighting selection, and detailed revisions. Material samples and imagery are sourced for client review with additional sketches and renderings produced if needed.
PRICING
A 100% Design Development package is issued with a quantified pricing form noting line items and quantities for outside contractor pricing. We coordinate with pricing contractors and compile price comparisons.
CONSTRUCTION DOCUMENTATION
We make edits to the plans to reflect agreedupon improvements resulting from the understood project budget. The Construction Document package includes a dimensioned layout plan, materials plan showing all materials and stone sizes, grading and drainage provisions, detailed planting plan, hardscape specifications, and soils specifications. We coordinate with others who document the required drainage, electrical, and all subgrade utilities.
Phase IV: Bidding, Value Engineering, and Site Observation
BIDDING
A 100% Construction Document is issued with a quantified bid form noting line items and quantities. We work with the owner to provide all the information needed for the owner to select a landscape contractor. We will then attend meetings as necessary to instruct and inform bidding contractors and ensure all parties understand the project scope.
VALUE ENGINEERING
Suggested cost savings options are provided in addition to alternatives for client consideration. We incorporate agreed-upon suggestions into the conformed, for construction package.
SITE OBSERVATION
We will review samples and submittals, coordinate with the installing contractor, and respond to requests for information to keep the construction process advancing efficiently. We will also make site visits to review and confirm design intent, ensure the contractor is meeting contract obligations, and tag and assist the contractor in sourcing plant material. Finally, we will make site visits for plant material layout, and provide field sketches as necessary for contractor clarity.
SELECT COLLABORATORS
A3 Architects
Alfieri Tree Care
Archwright Home Builders
Atlantic View Lighting
Bannon Custom Builders
Blue Claw Associates, Inc.
Brilliant Lighting Inc.
BSS Design
Cape Associates, Inc.
Charles Mayer Photography
Clodagh
CMS Landscape
Cor-Metals, Inc.
Coast to Coast
Cross Rip Builders
Custom Quality Pools
Dale Tree Movers
Dan Cutrona Photography
E.B. Norris & Son Builders
EJ Jaxtimer Builder, Inc.
Emeritus Development
Environmental Pools
Falmouth Engineering
Francisco Tavares, Inc.
GF Architecture
Greg Clancy Construction, Inc.

Holmes and McGrath, Inc.
Hunt Architects
Hutker Architects
Neubauer Ennis Architects
J.M. O’Reilly & Associates, Inc.
John Dvorsack Architect
Joyce Landscaping
Leon's Metal Lab
Lineal Architects + Builders
M. Duffany Builders
McLaughlin & Son, Inc.
Meredith Hunnibell
Merrill Engineers and Land Surveyors
Patrick Ahearn Architects, LLC
Pine & Swallow Environmental
Pinsonneault Builders
Ponderosa Landscaping
Ryder & Wilcox
Salt Architecture
Sage and Coombe Architects
Sea-Dar Construction
Seaview Builders
Sullivan Engineering & Surveying
SV Design
TA LaBarge, Inc.
Wilkinson Ecological Design, Inc.














FIREPLACES: GAS VS. WOOD

PUBLICATIONS IN DESIGN
"Cape Cod Retreat Designed For Family Life," New England Home , 2025
"There's a Summer Place," Cape Cod Home , 2024
"Peace in Preservation," Cape Cod Home, Summer 2023
"6 Ways to Boost Your Home’s Curb Appeal Without Breaking the Bank," The Boston Globe, Summer 2023
"Faces of Design," Modern Luxury Interiors Boston , 2023
"Turning a New Page," New England Home , 2022
"Outdoor Aesthetics," Boston Design Guide , October 2021
"Close to Nature," At Home on Cape Cod , Summer 2021
"Going Coastal," Boston Home Magazine , Summer 2020
"10 Perfect Pool Houses," Boston Design Guide , July 2020
"The Best Room in the House: Screened Porches," Boston Design Guide , June 2020
“Into the Woods,” Cape Cod Home , Autumn 2019
“Glamour + Camp = Glamp,” Boston Design Guide , August 2019
“Grounded,” Boston Design Guide, Summer 2019
“Cape Contemporary: Into the Woods,” New England Home, Summer 2019
“Incredible Outdoor Spaces,” June 2019
“The Artist’s Garden at Hyannis Port,” Cape Cod Home, January 2019
“Tree House,” Design New England, July/August 2018
“Hot Seats,” New England Home, Summer 2018
“Bernice Wahler Landscapes,” The World’s Greatest Pools , 2017
“A Whole New Level,” Home Remodeling, Fall 2017
“Partnership Forms to Create Attractive, Affordable Model Homes,”
The Falmouth Enterprise, September 2017
“Flamethrowers,” Globe Magazine , April 2017
“Avalon of Osterville,” Cape Cod Home , Summer 2017
“Excellence in Outdoor Living Space Design,” Cape Cod Home , Summer 2017
“Top Landscape Architects of 2016,” Ocean Home , April/May 2016
AWARDS AND RECOGNITION:
2025 BRICC Awards Gold - Excellence in Outdoor Living Space
2025 BRICC Awards Silver - Excellence in Landscape Design
2024 Best Boutique Landscape Architecture Design Practice - New England
2024 LUXLife Home & Garden Awards
2023 BRICC Awards Gold - Outstanding Commercial Project
2023 BRICC Awards Silver-Excellence in Outdoor Living Design
2023 BRICC Awards Silver - Excellence in Landscape Design
2022 World's Greatest Pools - Pebble Technology Winner
2021 World's Greatest Pools - Pebble Technology Winner
2019 Prism Award – Gold Winner
2018 BRICC Awards Gold – Excellence in Landscape Design
2018 BRICC Awards Silver – Excellence in Landscape Design
2017 World’s Greatest Pools - Pebble Technology Winner
2016 BRICC Awards Gold - Excellence in Outdoor Living Space
2016 BRICC Awards Gold - Excellence in Landscape/Garden
2016 Home Top Landscape Architect - Ocean Home Magazine
2014 Green Builder Award


