
2023-2024 portfolio
ben noël | selected works
table of contents

ubc vertical farm 4-11
architecture design from the ground into the light 18-25

c(our)t(yard) 12-17

architecture study landscape design hand drawing



![]()

2023-2024 portfolio
ben noël | selected works

ubc vertical farm 4-11
architecture design from the ground into the light 18-25

c(our)t(yard) 12-17

architecture study landscape design hand drawing



project type: architecture design mediums: rhino, illustrator, photoshop, twinmotion collaborators: solo project year: 2024
The UBC Vertical Farm bridges agriculture, research, and education to redefine urban living. Positioned along a proposed farming corridor, the development integrates food production, housing, and greenways, creating a transition between UBC’s campus and Pacific Spirit Park. The design emphasizes permeability, blending built and natural environments, while fostering community with interactive workshops, public agricultural labs, and rewilded rooftop spaces. As a hub for sustainability and learning, it reconnects urban residents with food systems and cultural stewardship.
















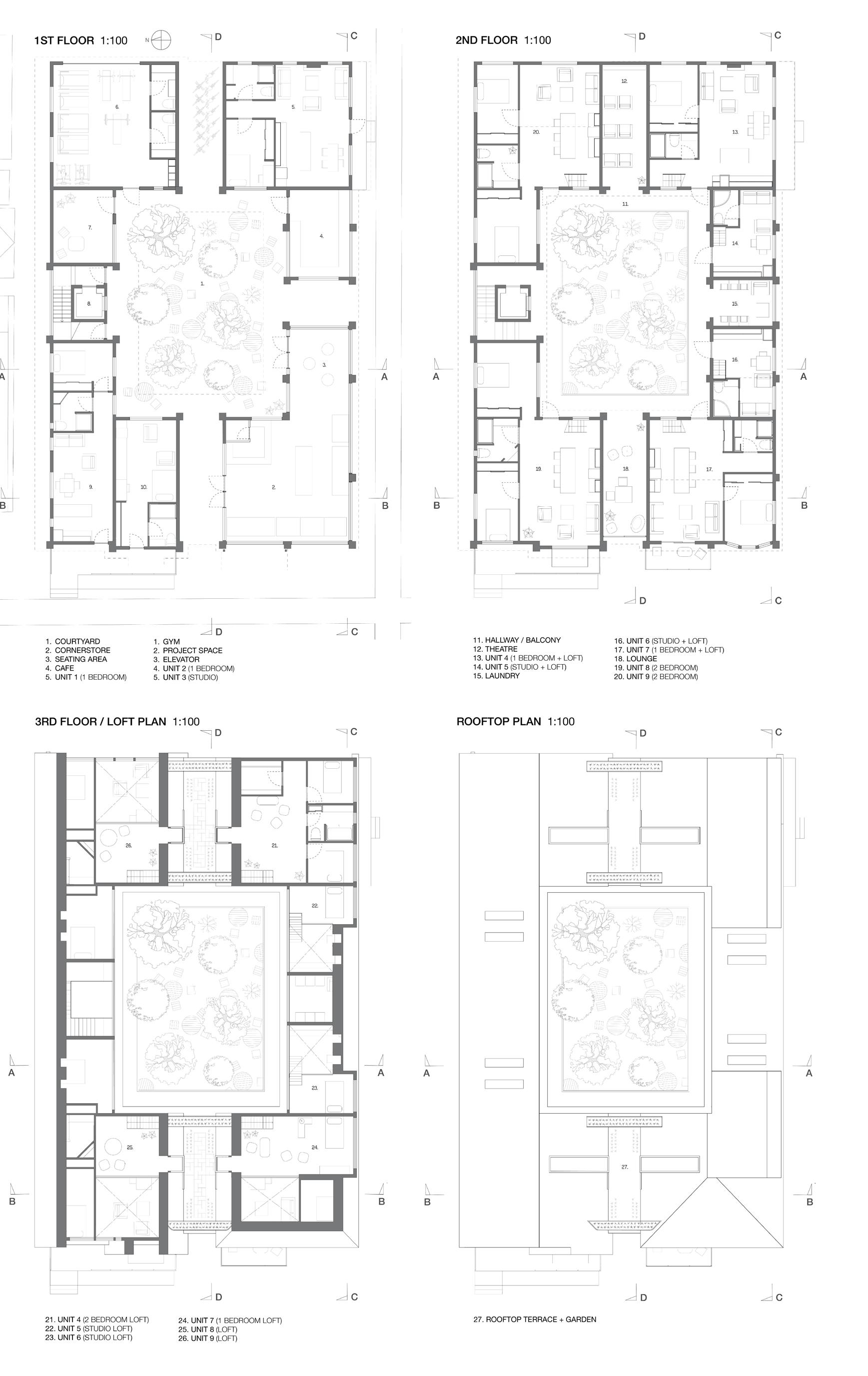
project type: architecture design mediums: rhino, illustrator, photoshop, procreate collaborators: sol lee year: 2023
This conceptual design proposal consolidates two laneway homes in Vancouver BC, through adaptive reuse and gentle densification, creating nine residential units. It incorporates shared amenities such as green terraces and a gym, alongside public features like a café, grocery store, and artisan space. At its heart is a vibrant central courtyard, fostering connection among residents and visitors alike.







project type: museum exhibit mediums: physical modeling, rhino, illustrator, photoshop collaborators: solo project year: 2023
From the Ground, Into the Light is an exhibit at Wentworth Villa Architectural Heritage Museum in Victoria, BC, featuring organic architecture from the Salish Sea and coastal British Columbia. It showcases works by renowned architects Ron Thom, Richard Hunter, John DiCastri, and Henry Schubart. For this exhibit, I was tasked with drafting simplified architectural plans for panels, and building a hand-cut scale model of Ron Thom’s Mayhew House.




































































































project type: museum exhibit mediums: physical modeling, rhino, illustrator, photoshop collaborators: sol lee year: 2023
This case study of Spatial Design Studio + A Studio’s “Share Yaraicho” co-housing experiment in Tokyo, Japan explores how the project achieves a delicate balance between shared and private space. By carefully integrating communal living areas with individualized units, the design fosters social interaction while respecting personal boundaries, redefining urban co-housing models.



















project type: landscape design mediums: AutoCAD, Rhino, Illustrator, Photoshop collaborators: solo project year: 2024
“Antitheater” reimagines Maple Tree Square in Gastown, engaging its history while fostering connection and activism. The design punctures a brick veneer to reveal urban and natural layers, ending in a native plant meadow, symbolizing a return to the land. A reimagined Gassy Jack plinth becomes a counter-monument to activism, while the amphitheaterinspired layout creates an inclusive space for dialogue on Gastown’s evolving identity and future.







LEFT : Brick surfacing gradually dissipates to symbolize the fragility of the site’s constructed veneer and a return to its natural, pre-urban state.
RIGHT : The empty plinth of “Gassy Jack” is reimagined as a stage for local activism, featuring an inscribed timeline of significant moments in Gastown’s history.













































































































































































