BENJAMIN ZUNINO 2020 2024







![]()








CARLOS CASARES, BUENOS AIRES [ARGENTINA]
+54 9 2395 40 9280
Benja.zunino@gmail.com
EDUCACIÓN
Arquitectura 2019-actualidad.
FACULTAD DE ARQUITECTURA, DISEÑO Y URBANISMO, UBA. [CABA, ARGENTINA]
ESPAÑOL
IDIOMAS
EXPERIENCIA Un año como Arquitecto Junior
MANEJO DE SOFTWARES
Inglés B2. Illustrator Indesign Photoshop Premiere


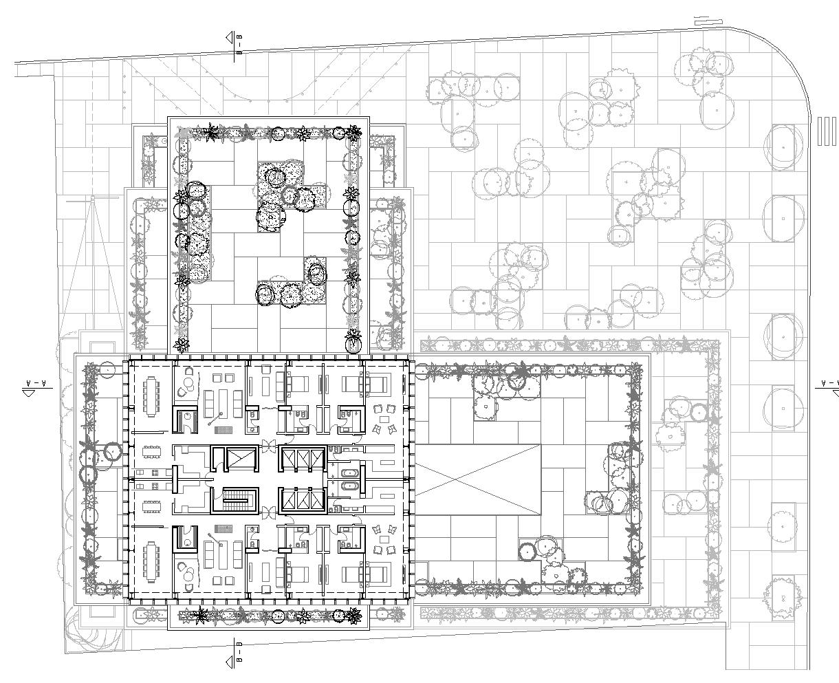
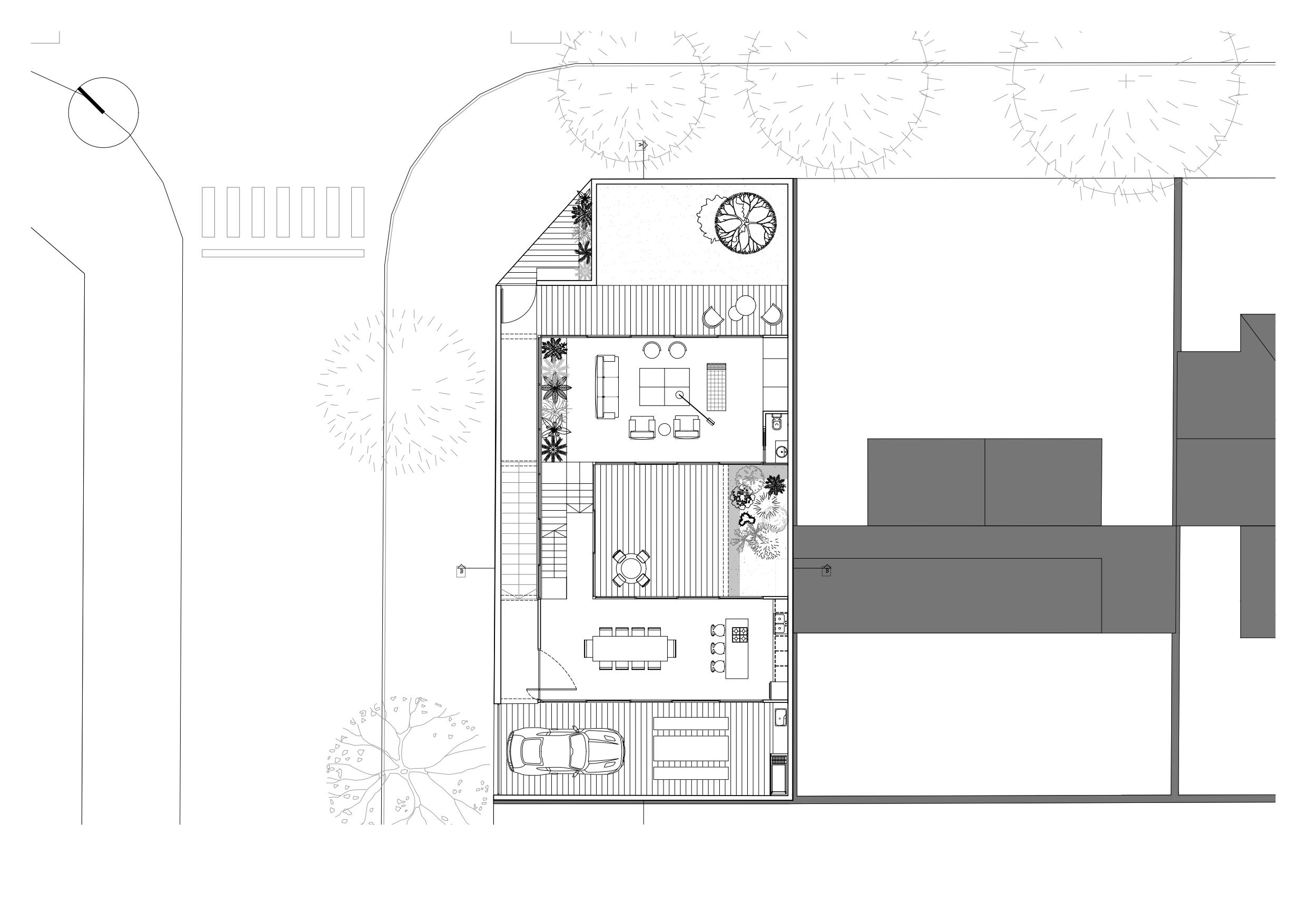
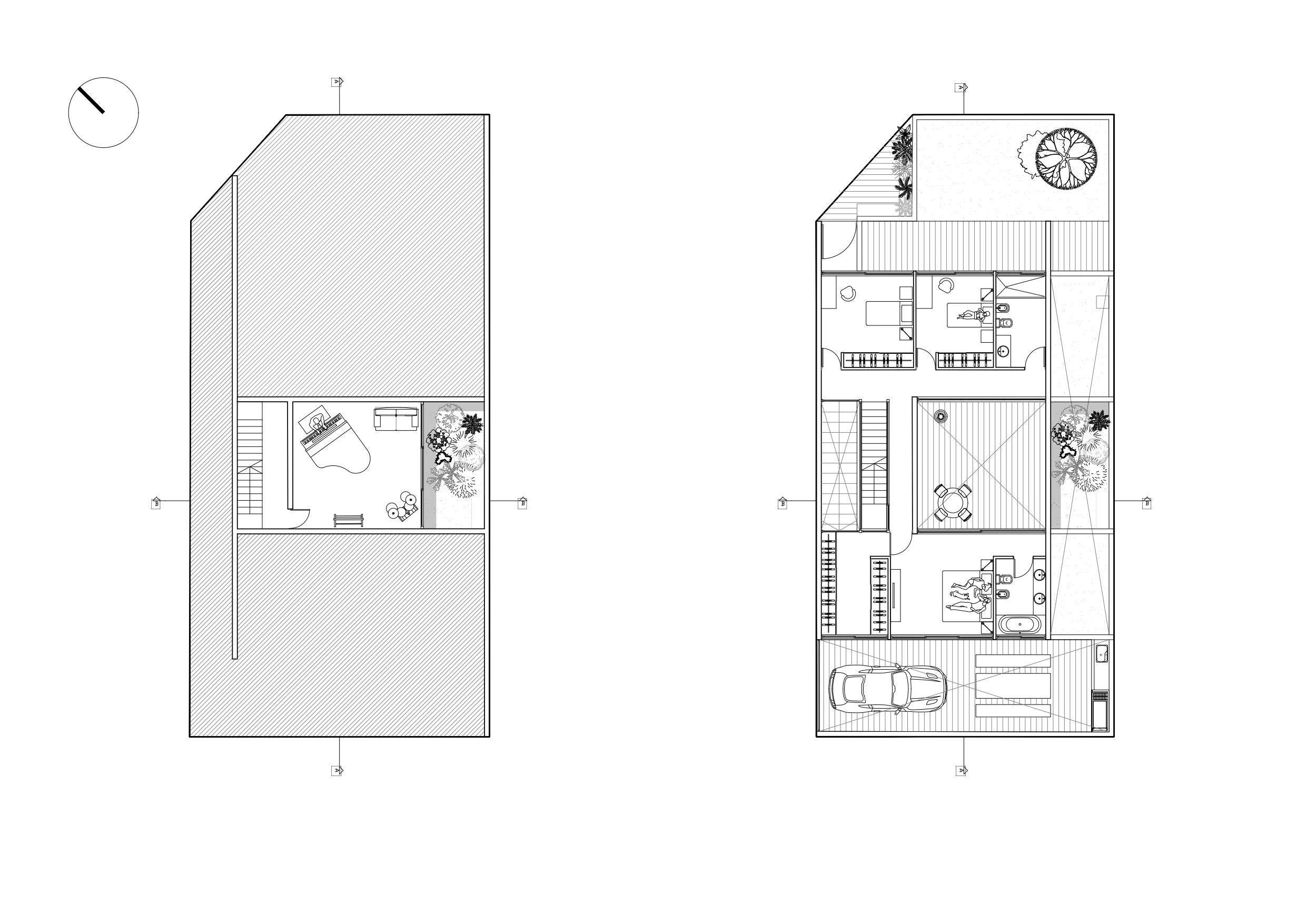
TORRES DE VIVIENDAS

MUSEO LEANDRO ERLICH

MERCADO SAN CRISTOBAL JARDÍN DE INFANTES










Bloque Villa Urquiza, Buenos Aires





























PROYECTO PARA ALBERGAR
LA OBRA DE LEANDRO ERLICH

EN VALOR
DEL MERCADO SAN CRISTOBAL














ARQUITECTURA COMO ELEMENTO POTENCIADOR DEL APRENDIZAJE


















