Bellastock - Plaquette 2025

Page 1


MAÎTRISE D’ŒUVRE ARCHITECTURALE BUREAU D’ÉTUDES RÉEMPLOI AMO ÉCONOMIE CIRCULAIRE

ÉTUDES & RECHERCHES FORMATION & SENSIBILISATION

ARCHITECTES DE LA TRANSFORMATION CIRCULAIRE UNE COOPÉRATIVE PIONNIÈRE EN RÉEMPLOI

MAÎTRISE D’ŒUVRE ARCHITECTURALE

BUREAU D’ÉTUDES RÉEMPLOI

AMO ÉCONOMIE CIRCULAIRE

ÉTUDES & RECHERCHES

Bellastock, unique coopérative d’intérêt collectif d’architecture et structure de l’Économie Sociale et Solidaire, explore les possibilités architecturales offertes par l’économie circulaire depuis près de 20 ans. Son approche par le «faire» et sa méthodologie exploratoire articulent : pratique et théorie, atelier et chantier, formation et plaidoyer, conception de projets manifestes et publications de recherches ou d’outils en libre accès.

Engagée dans la transition écologique et sociale, sa démarche est militante pour une acculturation au réemploi de l’ensemble des acteur·ices de la construction et au-delà. Cette vision s’est d’abord incarnée en 2006 dans une utopie d’étudiant·es réalisée avec la construction d’une ville éphémère à l’échelle 1:1, le premier festival Bellastock. Devenue un rendez-vous annuel, festif, constructif, et de recherche action sur le cycle de la matière, ce lieu d’expérimentation, d’exploration, d’expression et d’extrapolation, s’est d’emblée imposé comme outil de préfiguration des futurs usages d’un territoire. Fort de cette démarche inédite, le collectif a acquis la capacité à identifier les enjeux territoriaux et à conduire le changement de manière innovante, développant une expertise pionnière dans le réemploi des matériaux de construction et dans l’urbanisme de transition. En la nommant au Palmarès des Jeunes Urbanistes 2020, le ministère de la Transition écologique récompense sa contribution aux nouvelles manières de penser et de fabriquer la ville.

Basée à Paris et à Marseille, l’équipe de vingt architectes et ingénieur·es cultive une approche où chaque savoir-faire se nourrit des autres, transformant la complexité des enjeux environnementaux, sociaux et territoriaux en opportunités de création.

DU LINÉAIRE AU CIRCULAIRE

DÉCONSTRUIRE SÉLECTIF

RECYCLER

RÉEMPLOYER

RÉHABILITER

PENSER RÉVERSIBILITÉ

DIAGNOSTIQUER

EXTRAIRE CONCEVOIR CONSTRUIRE DÉMOLIR HABITER

MATÉRIAUX BIO GÉO-SOURCÉS LOCAUX RECHERCHER EXPÉRIMENTER

PRÉFIGURER URBANISME DE TRANSITION

LA DÉMARCHE CIRCULAIRE DE BELLASTOCK EN ACTION, EN RUPTURE AVEC LE PROCESSUS LINÉAIRE

SAVOIR-FAIRE

MAÎTRISE D’ŒUVRE ARCHITECTURALE

BUREAU D’ÉTUDES RÉEMPLOI

Conception architecturale en réemploi et matériaux bio géo-sourcés, privilégiant la réhabilitation des bâtiments existants et l’urbanisme de transition.

Co-conception avec les architectes, accompagnement pour intégrer le réemploi dans leurs projets, en garantissant sa faisabilité réglementaire, technique et économique.

ET FAIRE SAVOIR

AMO ÉCONOMIE CIRCULAIRE ÉTUDES ET RECHERCHES

Accompagnement stratégique et opérationnel des maîtres d’ouvrage pour développer et structurer les pratiques circulaires à l’échelle du territoire, en mobilisant les ressources locales, en activant les filières et en impliquant les communautés. Développer et diffuser des outils méthodologiques facilitant l’intégration du réemploi à toutes les échelles pour l'ensemble des acteur·ices de la construction. Développer et expérimenter de nouvelles approches constructives. Apporter des réponses concrètes aux défis réglementaires et assurantiels. Diffuser et promouvoir pour une nouvelle culture architecturale. Ces travaux visent à lever les freins et à stimuler les pratiques de réemploi dans le secteur de la construction.

FORMATION ET SENSIBILISATION

Former les professionnel·les aux pratiques du réemploi et de l’économie circulaire. Sensibiliser toutes les générations aux enjeux contemporains de l’architecture. Construire des espaces d’expérimentation et de compréhension collective. Ces actions visent à diffuser une nouvelle culture architecturale, en favorisant l’apprentissage par la pratique et le partage des savoirs.

MAÎTRISE D’OEUVRE ARCHITECTURALE

BUREAU ÉTUDES RÉEMPLOI

AMO ÉCONOMIE CIRCULAIRE

ÉTUDES & RECHERCHES

L’EXPÉRIMENTATION

FONDATRICE

Né de l’envie et du besoin d’étudiant·es en architecture de l’ENSA Paris-Belleville de pratiquer la construction à l’échelle 1:1, le FESTIVAL BELLASTOCK, propose la construction d’une ville éphémère en 4 jours autour d’une thématique constructive spécifique chaque année. Cette manifestation devient rapidement un laboratoire grandeur réelle des thématiques contemporaines liées au devenir de l’espace métropolitain. Le processus collectif du projet, les cycles de la matière, l’innovation des mises en œuvre, l’occupation temporaire d’espaces en mutation s’y explorent concrètement.

L’ENGAGEMENT PROFESSIONNEL

L’association Bellastock est créée pour défricher le réemploi de matériaux issus de la déconstruction et pérenniser le festival. En 2012 il accueille 1000 architectes et étudiant·es sur le chantier de déconstruction des entrepôts du Printemps sur l’Ile Saint Denis, où Bellastock activera la mutation du territoire pendant sept ans (2012-2019) avec ACTLAB, laboratoire de recherche-action architectural.

Cette expérimentation aboutit à la production de REPAR 1 et 2, guide méthodologique et technique devenu référence pour la mise en œuvre du réemploi. Cette expérience donne lieu à de nouveaux projets et permet la diffusion du modèle au sein de la filière.

LA TRANSFORMATION COOPÉRATIVE

L’association change d’échelle et développe son activité de Bureau d’Études en réemploi et d'AMO économie circulaire. Elle acte son statut de structure de l’Économie Sociale et Solidaire et devient l’unique SOCIÉTÉ COOPÉRATIVE D’INTÉRÊT COLLECTIF d’architecture en France.

À sa création, elle rassemble 40 sociétaires, salarié·es ou non salarié·es, personnes physiques et morales, issus·es de secteurs complémentaires.Tous·tes sont mobilisé·es autour d’objectifs communs pour régénérer les imaginaires et les pratiques, défendre la transdisciplinarité, partager la gouvernance. En 2020, elle est lauréate du Palmarès des Jeunes Urbanistes.

L’ESSAIMAGE TERRITORIAL

La coopérative poursuit son développement avec l’ouverture d’une antenne à Marseille. Elle consolide son expertise de maîtrise d’oeuvre architecturale en réemploi et élargi son champ d’action d’urbanisme de transition en collaboration avec Plateau Urbain.

Les programmes de recherches se développent au niveau européen et elle renforce ses liens avec ses partenaires institutionnels dans le cadre des formations et du festival. Bellastock affirme son engagement pour développer le secteur du réemploi à travers sa présence au directoire du SPREC, le syndicat professionnel du réemploi de matériaux dans la construction.

BOUTIQUE DE LA CITÉ DES SCIENCES ET DE L’INDUSTRIE

AMÉNAGEMENT I PARIS I 2023 I MOA ARTEUM

Aménagement d’une librairie-boutique à travers une conception en matériaux de réemploi in situ et ex situ - 80% du mobilier initialement présent sur le site est réemployé. Le modèle d’assemblage des tubes acier permet une installation scénographique démontable et réversible.

Intégrer des matériaux de réemploi et des ressources bio-géosourcées locales 1 3 2 4 6 5 7

Privilégier la réhabilitation, l’urbanisme de transition et le réemploi plutôt que la démolition

Concevoir des assemblages frugaux et réversibles, où la créativité naît de la mise en œuvre

Créer une valeur ajoutée architecturale, urbaine et sociale, au-delà de la simple réduction des impacts environnementaux

Générer des synergies territoriales, en optimisant les flux, ressources et filières selon une démarche d’Écologie Industrielle et Territoriale

Reconstruire des coopérations entre tous les acteur·ices : architecture, ingénierie, artisanat, BTP et aménagement, en favorisant la transversalité

Promouvoir une gouvernance partagée, intégrant toutes les parties prenantes dans le processus de projet, incarnée par la structuration coopérative

PRENDRE SOIN DE L’EXISTANT, CONSTRUIRE RÉVERSIBLE

Porte-parole de la pétition portée par le Syndicat de l’Architecture en 2025 pour inscrire la réhabilitation dans la loi de 1977, Bellastock se dresse contre les démolitions systématiques, radicales et violentes, dont les impacts sociaux, culturels et environnementaux sont considérables. Lorsque la déconstruction s’avère nécessaire, le soin apporté à l’existant guide chaque intervention de Bellastock : analyse fine du bâti, distinguant les pathologies irréversibles de celles qui peuvent être traitées; déconstruction précise préservant ainsi les écosystèmes et sélectionnant les composants réutilisables; réemploi des matériaux, valorisation des ressources locales, mobilisation des savoirfaire du territoire. Cette approche sensible permet de révéler les qualités intrinsèques des lieux tout en anticipant leur évolution future à travers des solutions réversibles et adaptables.

RENDRE VISIBLE LA MATIÈRE BRUTE, LA MÉMOIRE URBAINE & SOCIALE

Au-delà de la seule performance environnementale, Bellastock conçoit la réhabilitation, le réemploi et l’utilisation de ressources bio et géosourcées locales comme un levier pour créer de la valeur positive sur les plans social et culturel. Les marques de l’histoire des lieux, les traces du travail, l’expression de la matière première, deviennent les véritables protagonistes des projets, des témoignages précieux de la singularité des territoires. En mettant en lumière les matériaux et en assumant leur vécu, Bellastock invite les habitant·es à s’approprier leur cadre de vie, à en raconter l’histoire et les enjeux. Ce dialogue avec la mémoire urbaine et l’écosystème, tisse des liens durables entre les communautés et les défis écologiques auxquels elles sont confrontées.

INTELLIGENCE CONSTRUCTIVE ET COLLECTIVE

Bellastock défend une approche où l’intelligence constructive naît du dialogue constant entre architectes, ingénieur·es et constructeur·ices. Cette collaboration, bien au-delà d’une simple répartition des tâches, constitue un processus de travail partagé qui s’établit dès l’origine du projet jusqu’à son parachèvement. Cette démarche requiert avant tout une capacité d’écoute, d’intuition et de curiosité partagée entre les différents acteur·ices. L’innovation émerge alors de cette fertilisation croisée des savoirs, où l’ingénierie et la construction participent pleinement à l’acte créatif architectural.

FAIRE CAUSE COMMUNE

Le réemploi n’est pas l’affaire des seuls architectes, ingénieur·es et constructeur·ices, c’est une entreprise collective qui prend forme grâce à l’implication de l’ensemble des acteur·ices du territoire - habitant·es, industriels, décideur·ses politiques. Bellastock place la participation et le partage de connaissances au cœur de sa démarche à travers des formations, des ateliers, des chantiers participatifs et des temps d’échanges. Cette co-construction permet de réinventer les processus de conception et de production, en phase avec les réalités et les aspirations des usager·es. Le réemploi devient un vecteur de transformation sociale, culturelle et environnementale, porté par la diversité des initiatives qui l’accompagnent.

ACTLAB : LA GLANEUSE

ILE SAINT DENIS | FESTIVAL «LE GRAND DÉTOURNEMENT» 2012

Réutilisation de skydomes, de tubes et connecteurs du réseau anti incendie «sprinkler» issus du chantier de la déconstruction des entrepôts du Printemps, chantier géré in vivo par Bellastock pendant 7 ans.

MAÎTRISE D’ŒUVRE ARCHITECTURALE

Bellastock conçoit des projets d’architecture et d’aménagement intérieur ou extérieur qui conjuguent réhabilitation, réemploi, matériaux bio et géo-sourcés, privilégiant l’existant, la frugalité, la réversibilité, et la co-conception avec la maîtrise d’ouvrage et d’usage. Quelque soit l’échelle, les projets s’inscrivent dans des contextes de transformations durables oeuvrant pour la transition écologique et sociale. Equipements, espaces de travail flexibles, tiers-lieux, aménagements urbains, architectures éphémères, environnements techniques pour le stockage et la préparation de la ressource, les projets peuvent prendre une dimension performative de « manifeste » donnant à voir et à comprendre les pratiques circulaires. Les réponses sont adaptées à chaque territoire en mutation : villes moyennes, banlieues, métropoles, pour mettre en relief la mémoire des lieux tout en permettant de nouveaux usages.

CO-PROGRAMMER, FÉDÉRER, MUTUALISER

Diagnostic des usages et élaboration du programme avec la maîtrise d’ouvrage et la maîtrise d’usage.

Faisabilité architecturale, technique et chiffrage intégrant les pratiques circulaires.

RÉHABILITER LE BÂTI, CONCEVOIR DES ÉQUIPEMENTS RÉVERSIBLES

Conception architecturale (ESQ, APS, APD, PRO).

Sourcing de matériaux, encadrement logistique, technique, assurentiel, règlementaire et financier.

Étude d’impact financier du réemploi.

Estimation prévisionnelle et chiffrage de l’enveloppe travaux.

Sélection des entreprises (DCE, ACT).

Suivi de chantier (DET).

Livraison de bâtiment (AOR).

METTRE EN OEUVRE LA COOPÉRATION ET L’URBANISME DE TRANSITION

Diagnostic du territoire, des usages et ressources.

Étude des publics et intégration de la participation habitante et usagère.

Conception formelle et fonctionnelle de la stratégie participative.

Pilotage des phases opérationnelles organisation, animation, coordination de chantier participatif, ateliers. pédagogiques, concertation citoyenne, workshop et évènements.

Programmation architecturale pour des ouvertures de chantier.

LA BALISE

RÉHABILITATION & CONSTRUCTION D'ESPACES DE TRAVAIL RÉVERSIBLES I ÎLE-SAINT-DENIS I

2023 > 2025 I MOA FONCIÈRE BELLEVILLES & ASSOCIATION HALAGE I superficie : 833 m²

Sur l'Île-Saint-Denis, Bellastock transforme deux halles industrielles en un écosystème de travail flexible pour l'Économie Sociale et Solidaire. Le projet incarne une approche écologique exigeante et frugale, où la réhabilitation répond aux enjeux contemporains de durabilité et de circularité. Après un diagnostic rigoureux révélant les potentialités du lieu, le bâti existant est précieusement conservé et rénové, devenant une enveloppe protectrice. À l'intérieur, deux microarchitectures en bois émergent, construites uniquement à partir de matériaux de réemploi locaux : bois de structure de l'académie Fratellini, cloisons modulaires parisiennes, menuiseries et isolants récupérés à Nozay. Suivant le principe architectural des « boîtes dans la boîte » , ces espaces s'organisent autour d'un patio central et d'une rue intérieure zénithale. Les systèmes constructifs choisis permettent leurs réversibilités, chaque élément peut être démonté, déplacé, adapté aux usages.

Coupe perspective sur les boites

MOB - isolant laine de bois

Complexe plafond léger en bois et isolant

Polycarbonate

Chassis en bois de réemploi

Faux plancher technique en bois de réemploi

Lames de terrasse en bois de réemploi

Portes stratifiées en réemploi

Cloisons modulaires vitrées en réemploi

Portiques bois de réemploi

Juillet 2024 l'intérieur avant travaux
Les cloisons modulaires des espaces de travail sont issues d’un chantier de déconstruction à Paris.
Le patio.
Octobre 2024 constructiondes boîtes et assemblage de la structure du faux plancher; le tout est démontable et en bois de réemploi.
LA BALISE : des micro-architectures démontables en bois de réemploi sourcé localement, un "dedans-dehors" à l'intérieur de halles industrielles.

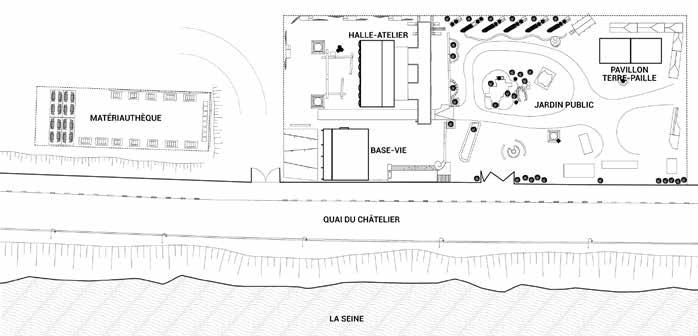
ACTLAB - CONCEPTION ET CONSTRUCTION ÉQUIPEMENTS, AMÉNAGEMENTS, MOBILIER URBAIN I

ILE SAINT DENIS I 2013 > 2020 I superficie : 6 000 m2

Un laboratoire de recherches-actions sur le chantier de la déconstruction des entrepôts du Printemps. Bellastock a géré ce site in vivo par pendant sept ans et construit quatre projets démonstrateurs en matériaux de réemploi issus de la déconstruction.

Intérieur de la BASE VIE.
Coupe Pavillon de résidence Terre Paille
Coupe Mathériauthèque Coupe Base vie
Coupe Halle Atelier
La BASE VIE, ouverte au public sur le chantier d'Actlab.

FERME URBAINE PARTICIPATIVE WANGARI MAATHAI

ÉQUIPEMENT PUBLIC ET AMÉNAGEMENT I MALAKOFF I 2018 > 2020 I MOA VILLE DE MALAKOFF

Trophée de l’Économie Circulaire 2024 décerné par la Métropole du Grand Paris

La Maison Wangari Maathai est un projet d'accueil du public, de jardin pédagogique, d’éco-pâturage urbain, de potager-verger, de permaculture, et d’installations de compostage. Organisation et pilotage de chantiers participatifs avec la construction collective d’un pavillon sans béton, en paille, terre et bois, complètement réversible et la co-conception-construction d’aménagement des espaces extérieurs en bois de réemploi.

LA TRAVERSIÈRE - CONCEPTION ET CONSTRUCTION

ÉQUIPEMENT PUBLIC ET AMÉNAGEMENT I ARGENTEUIL I 2022 > 2023 I MOA PARIS SUD AMÉNAGEMENT

Dans le cadre du renouvellement du quartier de la Porte-Saint-Germain, un projet d’urbanisme transitoire co-conçu avec les habitant·es, comprenant un espace public en charpente de bois de réemploi, et du mobilier co-construit avec les usager·ères. L’ ilôt traversant aménagé est à la fois le lieu du nouveau projet de ville et un site « couveuse » qui permet d’expérimenter de nouvelles propositions destinées à exister dans le futur quartier.

BUREAU D’ÉTUDES RÉEMPLOI

De l’esquisse à la livraison, Bellastock accompagne les architectes dans l’intégration du réemploi des matériaux de construction dans leurs projets. L’équipe d’ingénieur·es architectes propose des réponses conceptuelles, formelles et techniques, en garantissant leur faisabilité sur les plans réglementaire, assurantiel, économique et organisationnel. Son expertise spécifique matériau par matériau, joue un rôle clé de facilitateur pour lever les freins identifiés par les commanditaires et pour apporter une vision globale, créative du réemploi.

DIAGNOSTIQUER, RECENSER

Diagnostic Ressources.

Diagnostic PEMD.

Inventaire des matériaux sur le territoire.

PRÉSCRIRE, RÉGLER, & CO-CONCEVOIR

Études de faisabilité technique, économique, logistique, assurantielle et réglementaire du réemploi.

Co-conception et recherche de matériaux.

Oganisation de la dépose sélective.

Adaptation des marchés de travaux et sélection des entreprises.

ENCADRER, ORGANISER

Suivi des enlèvements.

Dépose sélective.

Suivi des approvisionnements.

Suivi de l’installation des matériaux.

Bilan environnemental, social et économique.

SENSIBILISER, VISIBILISER

Organisation et encadrement d’ateliers pédagogiques, de chantiers participatifs, de workshops et d’évènements.

LA MAISON DES CANAUX

PARIS 2020 > 2022 | MOA DIRECTION DU LOGEMENT ET DE L’HABITAT ARCHITECTES : GRAND HUIT

Exemple de réemploi de poutrelles métalliques issus d’un hangar en déconstruction pour ce lieu de référence de l’économie circulaire, sociale et solidaire à Paris

RÉSILIENCE : LA FERME DES POSSIBLES

STAINS 2019 > 2020 | MOA NOVAEDIA ARCHITECTES FRÉDÉRIC DENISE ARCHIPEL ZÉRO

Grand Prix de la catégorie «Bâtiments tertiaires/construction neuve» des Trophées Bâtiments Circulaires 2021 Maîtrise d’oeuvre des lots de réemploi façades vitrées réalisées avec des fenêtres en bois à simple vitrage, issues de la rénovation thermique d’un ensemble de logements sociaux à Epinay-sur-Seine, à moins de 4 km du site. Mur trombe et enduits en terre crue construits avec 17 000 briques de terre comprimées réalisée avec les déblais des chantiers du Grand Paris lors du festival Bellastock « LA VILLE DES TERRES ».

QUARTIER DE L’ANCIENNE CASERNE MELLINET

Projet nommé à l‘Equerre d’argent 2024 dans la catégorie «Espaces publics et paysagers»

NANTES | 2017 > 2021 | MOA NANTES MÉTROPOLE AMÉNAGEMENT | PAYSAGISTE ATELIER GEORGES.

Diagnostic des ressources, évènements sur chantier et construction de prototypes pour valoriser plus de 1200 m3 de pierre naturelle et de bois de charpente issus de la déconstruction.

BUREAU D’ÉTUDES RÉEMPLOI

ACADÉMIE FRATELLINI

SAINT-DENIS | 2020 > 2022 | MOA ACADÉMIE FRATELLINI | ARCHITECTES ATELIER DU PONT

Dans le cadre de la réhabilitation et de l’extension de l’ecole

Supérieure des arts et du Cirque, Bellastock a › réalisé le diagnostic PEMD, › fiabilisé et adapté les lots réemploi aux marchés travaux › installé sur site un magasin de réemploi (avec Tricycle Environnement). Les entreprises peuvent venir y chercher les matériaux dont ils ont besoin pendant le chantier. Tout ce qui y est stocké mais qui n’a pas été employé dans le projet continue d’être valorisé ex-situ, Bellastock y a par exemple puisé le bois pour les portiques du projet «La Balise».

AMO ÉCONOMIE CIRCULAIRE

Bellastock accompagne stratégiquement et opérationnellement la maîtrise d’ouvrage pour activer les filières locales et crée des synergies territoriales dans un processus de transformation collective, plaçant la participation des habitant·es et des acteur·ices locaux au cœur de sa démarche. Le collectif déploie de manière systémique ses expertises en réemploi complémentaires : la conception des prototypes adaptés, la faisabilité technique et réglementaire, le développement d’outils méthodologiques innovants, la montée en compétences des parties prenantes et la participation citoyenne. Cette approche holistique permet de transformer les contraintes environnementales en opportunités de réinvention des pratiques constructives, en impliquant directement les communautés dans la fabrique de leur cadre de vie. L’objectif est de faire émerger des solutions sur-mesure, depuis l’identification des ressources jusqu’à la réalisation de projets, en passant par la mobilisation des acteur·ices et la création de nouvelles dynamiques territoriales.

À L’ÉCHELLE DU TERRITOIRE

Étude de métabolisme territorial (fluxs, filières, fonciers).

Audit des pratiques et formalisation de stratégies et plans d’action systémique d’économie circulaire.

Création d’outils opérationnels et planification.

Animation et formations des équipes en interne.

Accompagnement pour le déploiement et la montée en compétence de filières locales.

À L’ÉCHELLE DU BÂTIMENT OU DU QUARTIER

Diagnostic Ressources.

Diagnostic PEMD.

Inventaire des matériaux sur le territoire.

PROGRAMMER, ÉVALUER, FIABILISER LES SOLUTIONS DE RÉEMPLOI IN SITU ET EX SITU

Formalisation de stratégie et définition des objectifs réemploi.

À l’échelle urbaine, adaptation des documents cadre (charte économie circulaire, plan guide, CPAUPE, fiches de lots).

Faisabilité technique, économique, logistique, assurantielle et réglementaire.

SUIVRE LES ÉTUDES

Suivi et animation des équipes de maîtrise d’œuvre.

Recherche de matériaux.

Adaptation des marchés de travaux et sélection des entreprises.

SUIVRE LES TRAVAUX

Suivi des enlèvements (flux sortants) et des approvisionnements (flux entrants).

Suivi dépose sélective.

Suivi de l’installation des matériaux.

DRESSER UN BILAN

Retour d’expériences et bilan environnemental, social et économique.

ORGANISER ET ANIMER LA PARTICIPATION CITOYENNE

Ateliers pédagogiques, chantiers participatifs, workshops et évènements de sensibilisation.

AMO ÉCONOMIE CIRCULAIRE

MÉTABOLISME URBAIN DE PLAINE COMMUNE

SEINE-SAINT-DENIS (93) 2017 > 2020 | MOA PLAINE COMMUNE, CAISSE DES DÉPÔTS, RÉGION IDF, ADEME | GROUPEMENT BELLASTOCK - AUXILIA - ALBERT&CO - PHARES - RECOVERING - ENCORE HEUREUX - CSTB - HALAGE.

Identifier les gisements de matériaux, créer des synergies entre acteur·ices, concevoir des solutions de valorisation des ressources locales. Au-delà des aspects techniques, l’accompagnement intègre une dimension sociale et culturelle, favorisant l’émergence de nouvelles pratiques de coopération territoriale.

LA FABRIQUE DU CLOS

SEINE-SAINT-DENIS (93) | 2015 > 2019 | ANRU - PLAINE COMMUNE - VILLE DE STAINS

Projet lauréat « Architecture de la transformation » 2015 Caisse des Dépôts et Union Sociale pour l’Habitat Prix spécial du jury UNFSA 2017 lauréat du Programme d’Investissement d’Avenir “Villes et Territoires durables” du groupement pour le Clos Saint-Lazare / la Prêtresse

Orchestration de la déconstruction sélective de plusieurs tours du quartier du Clos Saint-Lazare à Stains, création d’un projet d’équipement de chantier expérimental avec la construction d’une recyclerie en béton de réemploi et l’aménagement d’un lieu de convivialité, de sensibilisation environnementale et d’expérimentations artistiques.

AMO ÉCONOMIE CIRCULAIRE

QUARTIER SANITAS

TOURS | 2020 > EN COURS TOURS HABITAT

› Dépose soignée, nettoyage et tests en laboratoire des matériaux de réemploi

› Création d’une zone de stockage et conditionnement

› Recherche de débouchés pour 7 425 tonnes de ressources identifiées

› Formation des équipes MOA et MOE en charge du réemploi des matériaux sur les chantiers partenaires du territoire.

ÉTUDES & RECHERCHES

Dans le prolongement des projets de conception-construction d’ACTLAB, Bellastock engage une démarche de recherche-action avec le programme REPAR - le Réemploi comme Passerelle entre Architecture et Industrie - en 2013 qui sera complétée par REPAR II en 2018. Cette recherche pionnière est devenue un guide méthodologique et technique de référence pour faciliter la mise en œuvred du réemploi des matériaux de construction à grande échelle.

Le collectif poursuit cette dynamique d’innovation ouverte à travers plusieurs programmes européens dont FCRBE et actuellement PREUSE, qui visent à aider les autorités publiques à lever les freins réglementaires et financiers, identifier les ressources disponibles et proposer de nouveaux cadres d’analyse. Ces travaux contribuent à une transformation en profondeur des processus de production et d’usage, en rupture avec le modèle linéaire de la démolition brutale.

En co-développant des plateformes Bellastock œuvre à la création d’un langage commun et d’outils partagés, faisant advenir progressivement une nouvelle culture architecturale centrée sur l’économie circulaire.

PARTICIPATION ET PRODUCTION DE PROGRAMMES DE RECHERCHES NATIONAUX ET EUROPÉENS

Investigations sur la circularité des matériaux.

Étude pour favoriser l’intégration du réemploi dans les pratiques de construction contemporaines.

Étude sur les modèles économiques et environnementaux liés au réemploi.

Apport théorique et positionnement critique via des publications et des expositions.

Organisation et participation à des événements et colloques.

DÉVELOPPEMENT D’OUTILS EN OPEN SOURCE

Gestion de Opalis en France : un annuaire en ligne de revendeur·euses de matériaux de réemploi (Opalis.eu).

Création de guides méthodologiques pour faciliter la récupération et la réutilisation de matériaux issus du réemploi.

Création de fiches techniques matériaux.

EXPÉRIMENTATION SUR CHANTIER

Construction de prototypes de composants d’ouvrage en réemploi.

Mise en place de chantiers pilotes de grande ampleur.

Installation et exploitation de lieux d’expérimentation.

DIRECTION DE L’HABITAT, DE L’URBANISME ET DES PAYSAGES

2019 | DHUP QC2

Etude faisabilité d’une coordination technique et d’un centre de ressources sur le réemploi de matériaux dans la construction.

OPALIS

2011 > 2028 | ROTOR - BELLASTOCKINTERREG NWE

Opalis est un annuaire et un centre de ressources en ligne pour construire et rénover en réemploi. Plus de 530 fournisseurs sont référencés sur le site dont 240 l'ont été par Bellastock grâce à des visites de terrain. On y retrouve de la documentation et des exemples de projets illustrés et détaillés. Le site Opalis.eu cumule 10 000 visiteurs uniques en moyenne par mois.

FACT

2015 > 2017 | CSTB, DRAC, PLAINE COMMUNE, ILE-SAINT-DENIS, RÉGION ÎLE-DE-FRANCE

Sous la direction d’Émeline Bailly, Bellastock a co-écrit l’ouvrage «Oser la ville sensible», publié en 2018 suite à la recherche-action FACT qui traite des signes du grand paysage, des cycles de la matière et réalise des interventions urbaines artistiques. L’ouvrage retrace cette recherche et propose une approche poétiques de la création des villes.

FCRBE - FACILITATING THE CIRCULATION OF RECLAIMED BUILDING ELEMENTS -

2019 > 2023 | PROGRAMME INTERREG NWE | ROTOR - SALVO - EMBUILD - BUILDWISE - CSTB - BRUSSEL ENVIRONMENT - UNIVERSITY OF BRIGHTON - CITY OF UTRECHT - LIST - DELFT UNIVERSITY - BELLASTOCK Programme de recherche européen pour encourager les acteur·ices de la construction et de l’aménagement à faire appel à l’économie circulaire et au réemploi au sein de leurs projets. Méthode d’audit, guides stratégique, fiches matériaux, calculs des taux de réemploi …L’ensemble des ressources est en libre accès sur le site du projet vb.nweurope.eu/fcrbe

TERRES DU GRAND PARIS

2017 | SOCIÉTÉ DU GRAND PARIS, ADEME | GROUPEMENT CRAterre, AE&CC, ENSA Grenoble, ApproTechno

Une recherche d’innovation pour recycler, in situ, les déblais des chantiers du Grand Paris en Briques de Terre Comprimée sans logistique de transport. Le lieu d’extraction devient aussi le lieu de production, suivant un concept «usine mobile». 17 000 briques de terre comprimées ont été réalisée lors du festival Bellastock «La ville des terres» en 2017, elles ont été réemployées en 2019 pour le projet «La ferme des possibles» de Novaedia avec les architectes d’Archipel Zéro.

PREUSE

2023 > 2028 PROGRAMME INTERREG NWE ROTORBELLASTOCK - VILLE DE MECHELEN - VILLE DE LORIENT - VILLE D'UTRECHT - METROPOLE DU GRAND PARIS - LIST - MUNICIPALITÉ DE WITLZ - LA FABRIQUE DES QUARTIERS

Projet de recherche international qui vise à aider les collectivités publiques locales et régionales à améliorer la gestion de leurs ressources matérielles et à mettre en œuvre des solutions pour valoriser et réutiliser les matériaux de construction. Le programme développe une stratégie de développement de plateformes de réemploi à travers 3 opérations pilotes à Roubaix, Lorient et Utrecht.

OPALIS

BENELUX | 2011 > 2028 | BELLASTOCK - ROTOR

Visite de terrain et analyse pour :

› mettre en relation et identifier territoriale acteur·ices du réemplo

› Développer la culture du réemploi en favorisant les rencontres et les visites

› Former les professionnel·les et leur livrer les meilleurs outils pour mettre en oeuvre le réemploi

› Trouver des ressources, des partenaires, des références et de exemples concrets pour se lancer en confiance.

FORMATION & SENSIBILISATION

Bellastock développe des programmes de formation et de sensibilisation pour contribuer à la diffusion d’une nouvelle culture architecturale autour du réemploi. Ses dispositifs pédagogiques innovants, hybrides et ancrés dans la pratique, s’adressent à un large public : maîtres d’ouvrage, architectes, étudiant·es, décideur·ses politiques et professionnel·les de la construction et de la déconstruction.

La coopérative propose des formations continues et initiales combinant apports théoriques et expérimentation de terrain, avec des formats variés allant de sessions courtes de sensibilisation à des parcours diplômants. Au-delà des formations, Bellastock organise des événements culturelschantiers participatifs, tables rondes, expositions, webinaires - et son festival annuel d’architecture, lieu unique d’exploration et de croisement des pratiques.

Ces actions visent à développer une approche interdisciplinaire du réemploi, en favorisant le partage des savoirs et l’émergence de nouvelles compétences pour transformer les pratiques constructives.

FORMATION CONTINUE : MOA ET MOE

Formations au réemploi & à l’économie circulaire

Formations expérientielles

Formations sur mesure

FORMATION INITIALE ENSEIGNEMENT SUPÉRIEUR

Accompagnement aux pédagogies expérientielles au sein des établissements ou aux Grands Ateliers (Lyon) ou au CAAPP (Évry-Courcouronnes)

Production de contenus théoriques comme le réemploi en architecture (licence, master) ou les enjeux juridiques de la structuration d’une SCIC d’architecture (HMONP).

SENSIBILISATION : GRAND PUBLIC ET SCOLAIRES

Événements de sensibilisation : Organisation d’événements culturels de sensibilisation aux sujets portés par Bellastock (chantiers participatifs, tables rondes, expositions, webinaires...).

Festival Bellastock : Organisation annuelle d’un festival d’architecture mêlant théorie et pratique, sur une thématique définie avec les sociétaires de Bellastock.

FORMATIONS MAÎTRISE D'OUVRAGE

NORMANDIE 2021 > 2024 | RÉGION NORMANDIE - ADEME

Accompagnement de dix maîtres d’ouvrages normands dans l’adaptation de leurs pratiques afin de faciliter l’intégration d’objectifs d’économie circulaire et de politiques d’achats durables dans leur organisation

LES PETIT·ES ARCHITECTES

BOBIGNY (93) | 2022 VILLE DE BOBIGNY

Ateliers pédagogiques à destination des enfants dans une démarche de sensibilisation au développement durable et à leur cadre de vie.

INTÉGRER DES MATÉRIAUX DE RÉEMPLOI DANS UN PROJET DE CONSTRUCTION

VILLEFONTAINE (38) | 2023 | BELLASTOCK - LES GRANDS ATELIERS INNOVATION ARCHITECTURE (GAIA)

Formation de 5 jours sur le sujet du réemploi contenus théoriques - retours d’expérience - visite d’une entreprise de revente de matériaux de réemploi - exercices de mise en pratique - la construction de prototypes de matériaux de réemploi.

HANGAR AGRICOLE

PISCOP (95) 2020 > 2021 RÉCOLTES ET SEMAILLES

Chantier participatif sur la construction en terre-crue, dans le cadre d’un projet de construction d’un pavillon en matériaux biosourcés, géosourcés et de réemploi.

FORMATION & SENSIBILISATION FESTIVAL BELLASTOCK

Raison d’être initiale de Bellastock, le festival perpétue chaque année l’exploration de la fabrique collective de la ville par la construction d’une ville éphémère à l’échelle 1:1. En 20 ans, ses 18 éditions ont rassemblé plus de dizaines de milliers de participant·es - étudiant·es, architectes, designer·euses, artistes, artisan·es, constructeur·ices et habitant·es - venus inventer de nouveaux récits urbains. Ce laboratoire d’architecture expérimentale, enrichi de conférences, débats et moments festifs, a essaimé internationalement : Chine, Chili, Mexique, Canada, Danemark, Espagne, Turquie, Grèce, Suisse, Italie et Belgique. Chaque édition suit un scénario commun - découvrir et s’abriter, améliorer et consolider, habiter et ouvrir, déconstruire en laissant intact - autour d’une thématique constructive spécifique, révélant la capacité créative collective à réinventer les pratiques architecturales.

bois de charpente, bâche plastique, Issoudun (36), Villiers-le-Morhier (28),Cussy-en-Morvan (71), 2006-2008 palettes de manutention « LA VILLE PALETTE », Issoudun (36), 2009 sable « THE SANDY SHOP » Carrière-sous-Poissy (78), 2010 architecture gonflable « LA VILLE EN UN SOUFFLE » Évry Courcouronnes (91), 2011 cagettes de bière consignées « THE BEER CR(E)ATE CITY », Aarhus, Danemark, 2011 déchets « LE GRAND DÉTOURNEMENT » site d’Act-Lab, Ile Saint Denis (93), 2012

pneu et carton « LA CIUDAD EFIMERA » Mexico, Mexique, 2013 tiges végétales « GREENWASHING » Versailles (78), 2013 déchets « BELLASTOCK TURQUIE », Istanbul, 2013 et «SUPERGREEN» Stuttgart, Allemagne, 2013 bouteilles plastique « PET CITY » Farellones Chili, 2013

eau « WATERWORLD » Bauches À Achères (78),2014 et «CHINAFLOAT» Wuhan, Chine, 2014

mobilité « PLAYMOBILE » Tremblay-En France (93), 2015

réemploi ex situ « SUPERSTOCK » Bobigny (93) | 2016

terre crue « LA VILLE DES TERRES » site d’Act-Lab, Ile Saint Denis (93), 2017

fôrets « CIME CITY » Evry (91), 2018

paille « MELTING BOTTE » Évry Courcouronnes (91), 2019

préfiguration « CITÉ VIVANTE, CITÉ CONVIVIALE, CITÉ APPRENANTE » Évry Courcouronnes (91) 2021/22/23

habiter le stock «STOCKOPOLIS», Epinay sur Seine, l’Éclair, 2024

& 60

sociétaires

Portrait de la coopérative Bellastock et des bénévoles lors de la 17ème édition «Cité Apprenante» en 2023, devant le Centre Art Architecture Paysage Patrimoine. Réalisé sur le site de l’ancien couvent de la Maison SainteGeneviève à Evry-Courcouronnes, ce projet s’inscrit dans la préfiguration du CAAPP. Piloté par Bellastock depuis 2017 avec le soutien du Ministère de la Culture, des Grands Ateliers Innovation Architecture (GAIA) et des écoles d’Architecture franciliennes, il incarne la vision de la coopérative : une architecture et un enseignement par «le faire».

Maitres d’ouvrage & partenaires

Services et établissements publics

• Ademe

• Agence publique pour l'immobilier de la Justice

• Cité des Sciences et de l’Industrie

• CSTB

• Ministère de la Culture

• Ministère de la Transition écologique

• OPPIC

• Pavillon de l’Arsenal

• SNCF Gares & Connexions

• Syndicat de l’Architecture

• SPREC

Ecoles

• ENSA : Paris-belleville, Paris-Est, Malaquais, Versailles, Val de Seine, Bretagne, Clermont-Ferrand, Lille, Marseille, Nancy, Nantes, Saint-Etienne, Strasbourg

• ENSAD Paris

• ESAJ

• EIVP

• DNMADE

• Terra institute

• Strate

• UMONS Régions et Départements

• Conseil départemental 93

• Département de Meurthe et Moselle

• Région Bourgogne Franche-Comté

• Région Ile-de-France

Villes

• Bastia

• Gennevilliers

• Ivry

• Lorient

• Paris

• Saint-Denis

• Stains

Métropoles et intercommunalités

• Clermont Auvergne Métropole

• Communauté d’agglomération du Havre

• Est Ensemble

• Eurométropole de Strasbourg

• Le Mans Métropole

• Métropole Aix-Marseille-Provence

• Métropole de Lyon, Autre soie

• Métropole du Grand Paris

• Nantes Métropole

• Plaine Commune

• Seine Normandie Agglomération

Aménageurs publics

• Brest Métropole Aménagement SPL

• EPA Euroméditerranée

• EPA ORSA

• Grand Paris Aménagement

• Société d'Equipement de la Touraine

• Paris Sud Aménagement

• SPL Poitou Aménagement

• SPLA-IN Aix Marseille Provence

Bailleurs sociaux et opérateurs immobiliers

• Bellevilles

• Habitat 77

• Hauts de Seine Habitat

• Immobilière 3F

• Logirep

• Marseille Habitat

• Paris Habitat

• RIVP

• Sequano

• SORELI

• Seine Saint Denis Habitat

• Terres d'Armor Habitat

• Tours Métropole Habitat

Associations collectifs et coopératives

• Bail Pour Tous

• Travail et Vie

• Ecominero

• Ekopolis

• Frugalité Heureuse et créative

• IMOA

• Les Grands Ateliers*

• Les Hydropathes

• OCAB

• Plateau Urbain*

• Rotor

• Sicovad

• Valdelia

• Valobat

• Collectif Parenthèse*

• LOKAL*

• Temaprod*

Acteurs privés et fondations

• EDF

• Fondation de France

• Icade

• Novaédia

• Novaxia

• Organika*

Architectes

• Archipel Zero

• Atelier du Pont

• Atelier Georges

• Atelier Lion

• Atelier OSTY

• Atelier Roberta

• BFV

• D&A

• DeJean Marin

• Fagart & Fontana

• Force pure*

• Grand Huit

• Lieux Fauves

• Moonwalklocal

• Nunc architectes

• PNG architecture

• Villemard

* sociétaires de Bellastock

Turn static files into dynamic content formats.

Create a flipbook
Issuu converts static files into: digital portfolios, online yearbooks, online catalogs, digital photo albums and more. Sign up and create your flipbook.