


![]()



Ideal locations for all seasons! Enjoy spectacular restaurants, shopping and all of the summer and winter activities Beaver Creek provides just out your front door.
https://www.relahq.com/mls/232548431




Some homes feel like a destination. This one feels like a homecoming —an alpine sanctuary where the mountains rise around you like old friends and every room carries the soft echo of a life well -lived. Tucked into the cherished Royal Elk Villas enclave, this 4 -bedroom retreat is a rare blend of craftsmanship, serenity, and the effortless grace that defines Beaver Creek, Colorado.






Morning light pours across integrated plaster walls, warming spaces shaped by intention and quiet luxury. The great room opens like a breath with vaulted tongue -and -groove ceilings lifting your gaze upward, a moss -rock fireplace anchoring the room with its steady glow. It ’s a place where winter evenings stretch long and gentle, where laughter settles into the corners, and where the mountains outside feel close enough to touch. Thoughtful luxurious updates bring a sense of calm refinement: designer wool carpeting underfoot, refreshed bathrooms and kitchen, updated flooring, and a dedicated coffee station that turns simple rituals into small celebrations. The open loft invites possibility — family room, study, creative refuge —whatever your life needs in the moment.














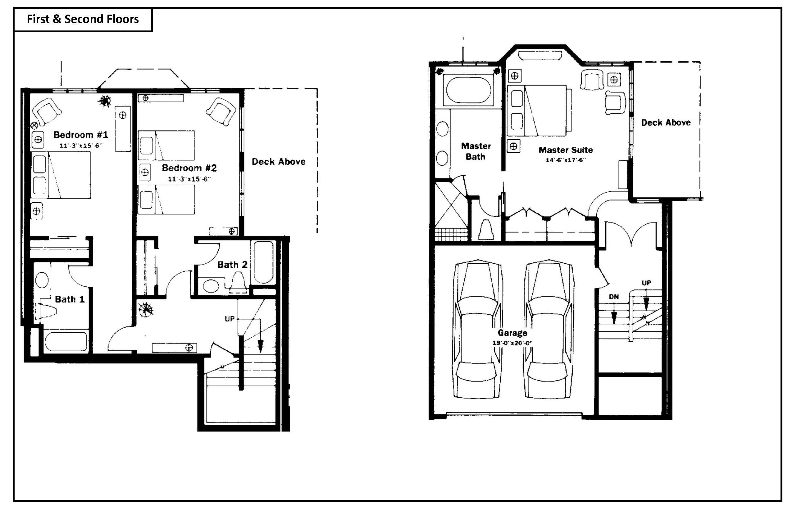
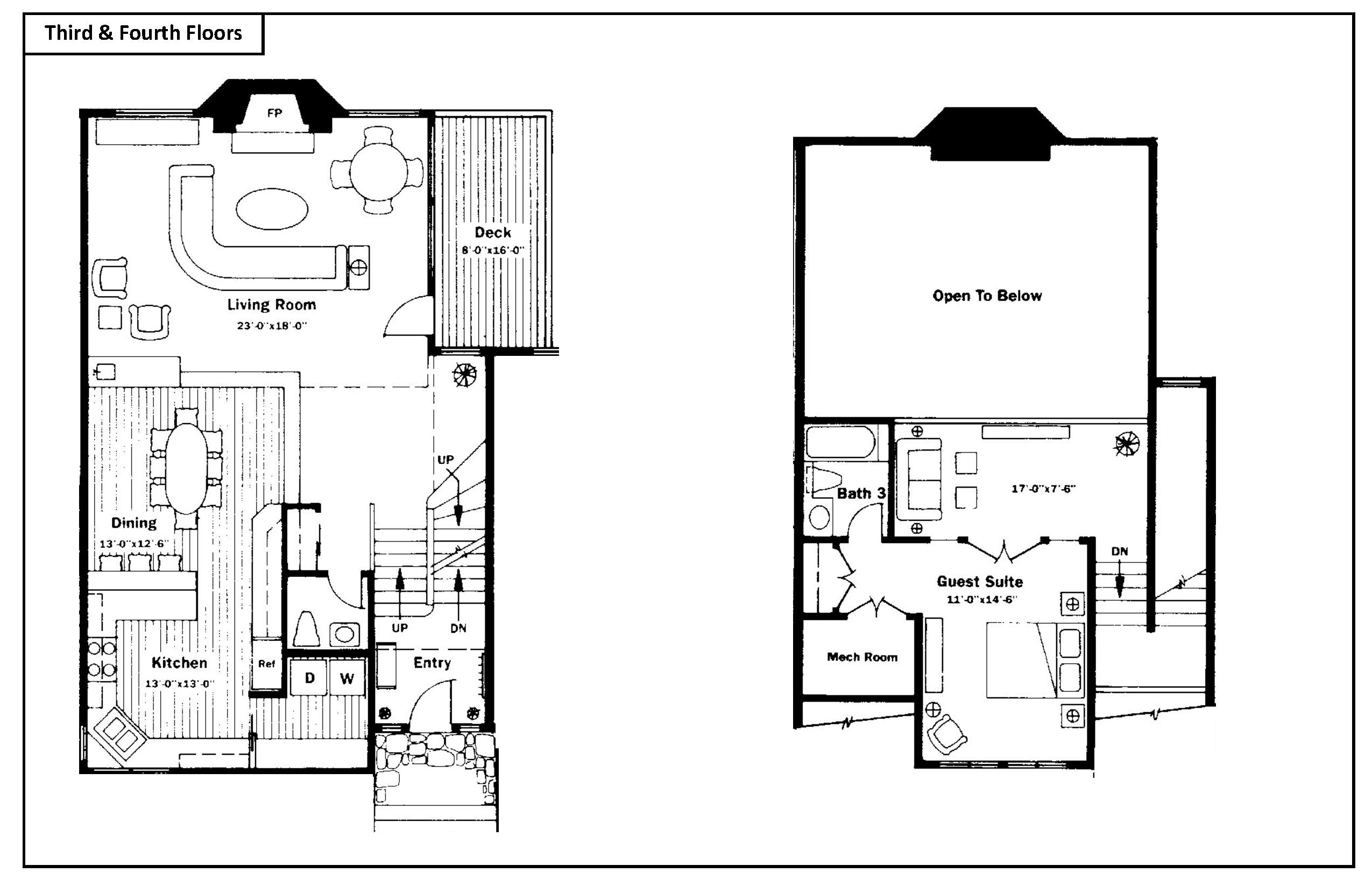
2,860 +/ - Square Feet


*NOT TO SCALE



Situated high up Gore Valley and surrounded by the magnificent White River National Forest, Beaver Creek, located just 10 miles west of Vail, is a private year -round resort community where luxury begins at the gate.
Beaver Creek ’s small village is an escape from the ordinary. A complimentary shuttle provides pick -up and drop -off to all homes and businesses within Beaver Creek and Bachelor Gulch. The village offers award winning dining year -round and world -class performances at the Vilar Performing Arts Center that presents an array of shows from Broadway to opera, rock to soul, and dance to comedy throughout the year.
Just 100 miles from Denver, visitors flock year round to enjoy the sheer beauty of the Rockies, intimate old world European charm, luxury accommodations, moderate climate, wide array of luxury real estate and countless cultural events and recreational activities offered at Beaver Creek.




Whether you are an expert snowboarder who appreciates “steep and deep ” runs, a moderate ski enthusiast attracted to groomed cruisers, or a first -timer signed up for your inaugural lesson on the bunny slopes, wintertime in Beaver Creek will excite your inner child and exceed expectations.
The varied landscape makes this area a favorite among families, and children love the kid -friendly activities found across the mountains.
Even if you have no interest in attaching the slender boards to your feet, you can still find plenty of entertainment off the ski trails.
Adventurous sorts tackle the multi -lane tubing hills for an adrenaline -filled ride downhill. When you ’re ready for more, you ’ll be whisked back to the top — no uphill tube hauling necessary!
Other outdoor activities include ice skating, snowshoeing and ski biking.



As inviting as Colorado is in the winter months, summer bursts at the seams with activities. The arts reign supreme, with events such as music, dance, and jazz festivals — each featuring several performances throughout the season.
When the mountains call, lace up your hiking boots for some of the most beautiful trails in Colorado.
If you prefer to hike across manicured fairways and greens, enjoy a round of golf at one of the many fine courses.
If mountain biking is your passion, you ’ve come to the right place. Some areas accommodate mountain biking, with gondolas carrying bikes up the mountain to access a network of trails. You can also take a ride to the top of the hill and hike back down to the base.
Activities such as horseback riding and ropes courses help ensure there is something for everyone.




Exclusively for property owners in Beaver Creek, this club provides members with special privileges and unique opportunities to relax, play and participate in stimulating activities.
Year -round access to the Clubhouse
Exclusive winter use of Beano ’s Cabin & Allie ’s Cabin for Lunch
Complimentary daily continental breakfast at the Clubhouse
Ski -in / Ski -out valet services
Designated lockers in the private locker room
Dedicated concierge for everything from lift tickets to dinner reservations
Reciprocity program at Game Creek Club & Zach ’s Cabin
Spa & fitness access
Use of Beaver Creek Golf Course member rates
Preferred court times at Beaver Creek Tennis Center
Complimentary Wine & Cheese events
Men’s & Ladies ’ Ski Days
Corduroy and Cocoa (BCC ’s First Tracks)
Summer & Winter Holiday Parties
Snowshoe Hikes to Allie ’s and Beano ’s Cabin
Summer Hiking & Biking Adventures
Family Adventures Around the Valley Tennis Center Events





Beaver Creek is known as North America's World Cup mountain. Home to the annual “Birds of Prey" World Cup alpine ski race, and the 1989, 1999 and 2015 FIS Alpine World Ski Championships, Beaver Creek is unique in that it has the power to bring people together in a beautiful luxury ski resort setting, removed from the outside world.


From longtime favorites to brand -new hot spots — small bites to multi -course meals — Beaver Creek offers a vast and varied dining scene.
The award -winning Beano ’s Cabin offers amazing cuisine, a well -chosen wine list and impeccable service in a one -of-a-kind setting.
Tucked into an on -mountain meadow at the base of Larkspur Bowl, this luxurious log hideaway is one of Colorado's top restaurants.
Start your evening with an open -air sleigh ride through Beaver Creek's iconic aspen groves to an exquisite gourmet dinner.
Here, you'll be treated to a true feast for the senses with our open kitchen where guests can watch our chefs in action as they prepare five -course meals comprised of traditional Colorado fare.
It's the most delicious way to end a perfect day on the slopes.







BASE ELEVATION
8,100 FT
SUMMIT ELEVATION
11,440 FT
VERTICAL RISE
3,340 FT
NUMBER OF TRAILS
167
NUMBER OF LIFTS
24
SKIABLE ACREAGE
2,082 ACRES
Beaver Creek is a feast for the eyes; a delight for the senses. The influence of renowned resorts such as Switzerland ’s St. Moritz, Italy ’s Cortina, and Spain ’s Val d ’Aran led to the creation of a unique mountain resort full of excitement and village luxury.
Originally designed to accommodate skiers of all abilities, Beaver Creek Mountain continues to welcome and challenge those who visit its slopes. From the gentle groomed runs of Strawberry Park to the rugged glades and bump runs of Grouse Mountain, Beaver Creek is enjoyed by a variety of Nordic Sports enthusiasts.
When George Townsend first settled in the Valley in 1881, he knew he ’d found something special, an exceptional mountain, lined with aspen groves and beautiful vistas that would become a world renowned destination. In 1972, Vail continued its vision by purchasing the land and began designing a resort that combined western hospitality and European charm. Obstacles delayed resort completion, but on December 15, 1980, Beaver Creek finally opened to the public.
Beaver Creek may be home to incredible corduroy and family -friendly terrain, but its Birds of Prey course also has a reputation for being a formidable stop on the Men ’s Alpine Ski World Cup —as Beaver Creek is the only mountain in the U.S. to regularly host the international race series.
At Beaver Creek, experience the refined side of winter. It ’s rare blend of premium experiences among natural Rocky Mountain splendor is why Beaver Creek continues to set the standard for a luxury vacation.

