Skip to main content

Royal Elk Villas Residence 7 | Beaver Creek, Colorado | LIV Sotheby's International Realty

Page 1


Ideal locations for all seasons! Enjoy spectacular restaurants, shopping and all of the summer and winter activities Beaver Creek provides just out your front door.

www.OnlyInBC.com

Some homes feel like a destination. This one feels like a homecoming —an alpine sanctuary where the mountains rise around you like old friends and every room carries the soft echo of a life well -lived. Tucked into the cherished Royal Elk Villas enclave, this 4 -bedroom retreat is a rare blend of craftsmanship, serenity, and the effortless grace that defines Beaver Creek, Colorado.

Unsurpassed Luxury Living

Morning light pours across integrated plaster walls, warming spaces shaped by intention and quiet luxury. The great room opens like a breath with vaulted tongue -and -groove ceilings lifting your gaze upward, a moss -rock fireplace anchoring the room with its steady glow. It ’s a place where winter evenings stretch long and gentle, where laughter settles into the corners, and where the mountains outside feel close enough to touch. Thoughtful luxurious updates bring a sense of calm refinement: designer wool carpeting underfoot, refreshed bathrooms and kitchen, updated flooring, and a dedicated coffee station that turns simple rituals into small celebrations. The open loft invites possibility — family room, study, creative refuge —whatever your life needs in the moment.

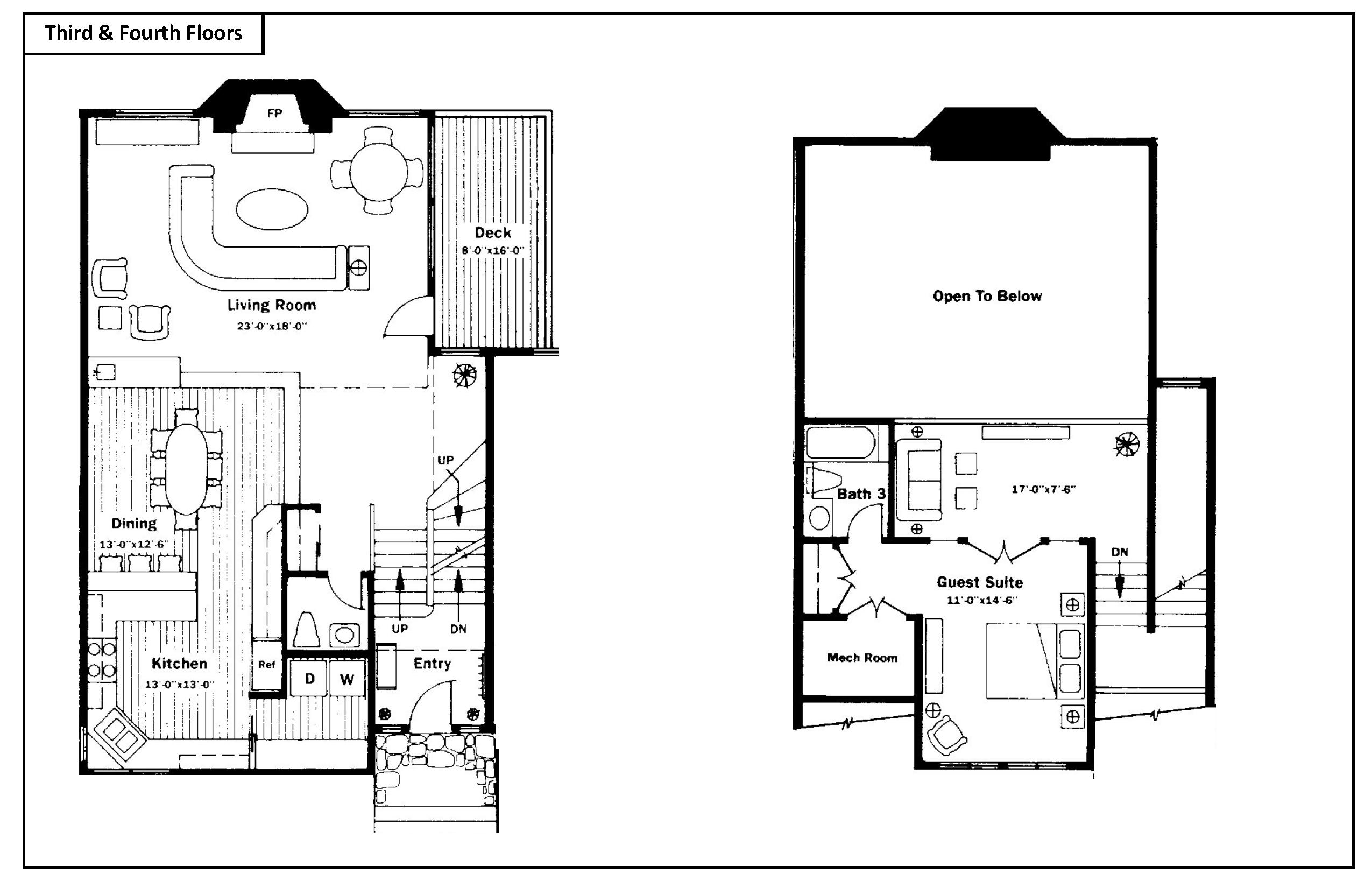
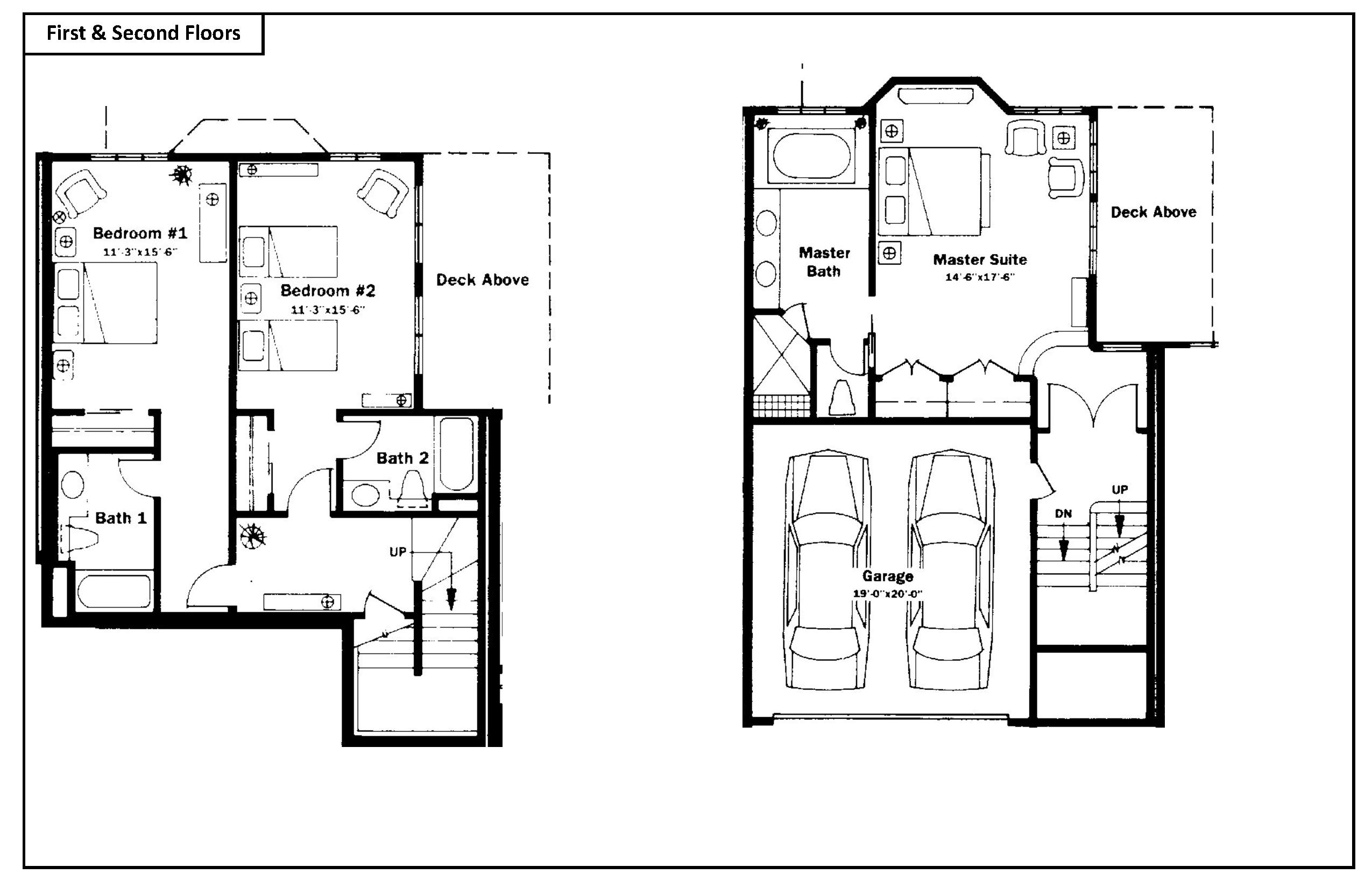
Floor Plans

2,860 +/ - Square Feet

*NOT TO SCALE

Beaver Creek, Colorado

Situated high up Gore Valley and surrounded by the magnificent White River National Forest, Beaver Creek, located just 10 miles west of Vail, is a private year -round resort community where luxury begins at the gate.

Beaver Creek ’s small village is an escape from the ordinary. A complimentary shuttle provides pick -up and drop -off to all homes and businesses within Beaver Creek and Bachelor Gulch. The village offers award winning dining year -round and world -class performances at the Vilar Performing Arts Center that presents an array of shows from Broadway to opera, rock to soul, and dance to comedy throughout the year.

Just 100 miles from Denver, visitors flock year round to enjoy the sheer beauty of the Rockies, intimate old world European charm, luxury accommodations, moderate climate, wide array of luxury real estate and countless cultural events and recreational activities offered at Beaver Creek.

Winter

Whether you are an expert snowboarder who appreciates “steep and deep ” runs, a moderate ski enthusiast attracted to groomed cruisers, or a first -timer signed up for your inaugural lesson on the bunny slopes, wintertime in Beaver Creek will excite your inner child and exceed expectations.

The varied landscape makes this area a favorite among families, and children love the kid -friendly activities found across the mountains.

Even if you have no interest in attaching the slender boards to your feet, you can still find plenty of entertainment off the ski trails.

Adventurous sorts tackle the multi -lane tubing hills for an adrenaline -filled ride downhill. When you ’re ready for more, you ’ll be whisked back to the top — no uphill tube hauling necessary!

Other outdoor activities include ice skating, snowshoeing and ski biking.

Summer

As inviting as Colorado is in the winter months, summer bursts at the seams with activities. The arts reign supreme, with events such as music, dance, and jazz festivals — each featuring several performances throughout the season.

When the mountains call, lace up your hiking boots for some of the most beautiful trails in Colorado.

If you prefer to hike across manicured fairways and greens, enjoy a round of golf at one of the many fine courses.

If mountain biking is your passion, you ’ve come to the right place. Some areas accommodate mountain biking, with gondolas carrying bikes up the mountain to access a network of trails. You can also take a ride to the top of the hill and hike back down to the base.

Activities such as horseback riding and ropes courses help ensure there is something for everyone.

Beaver Creek Club

Exclusively for property owners in Beaver Creek, this club provides members with special privileges and unique opportunities to relax, play and participate in stimulating activities.

THE CLUB

Year -round access to the Clubhouse

Exclusive winter use of Beano ’s Cabin & Allie ’s Cabin for Lunch

Complimentary daily continental breakfast at the Clubhouse

Ski -in / Ski -out valet services

Designated lockers in the private locker room

THE BENEFITS

Dedicated concierge for everything from lift tickets to dinner reservations

Reciprocity program at Game Creek Club & Zach ’s Cabin

Spa & fitness access

Use of Beaver Creek Golf Course member rates

Preferred court times at Beaver Creek Tennis Center

THE ACTIVITIES

Complimentary Wine & Cheese events

Men’s & Ladies ’ Ski Days

Corduroy and Cocoa (BCC ’s First Tracks)

Summer & Winter Holiday Parties

Snowshoe Hikes to Allie ’s and Beano ’s Cabin

Summer Hiking & Biking Adventures

Family Adventures Around the Valley Tennis Center Events

Beaver Creek Resort

Beaver Creek is known as North America's World Cup mountain. Home to the annual “Birds of Prey" World Cup alpine ski race, and the 1989, 1999 and 2015 FIS Alpine World Ski Championships, Beaver Creek is unique in that it has the power to bring people together in a beautiful luxury ski resort setting, removed from the outside world.

Dining

From longtime favorites to brand -new hot spots — small bites to multi -course meals — Beaver Creek offers a vast and varied dining scene.

The award -winning Beano ’s Cabin offers amazing cuisine, a well -chosen wine list and impeccable service in a one -of-a-kind setting.

Tucked into an on -mountain meadow at the base of Larkspur Bowl, this luxurious log hideaway is one of Colorado's top restaurants.

Start your evening with an open -air sleigh ride through Beaver Creek's iconic aspen groves to an exquisite gourmet dinner.

Here, you'll be treated to a true feast for the senses with our open kitchen where guests can watch our chefs in action as they prepare five -course meals comprised of traditional Colorado fare.

It's the most delicious way to end a perfect day on the slopes.

Beaver Creek Mountain

BASE ELEVATION

8,100 FT

SUMMIT ELEVATION

11,440 FT

VERTICAL RISE

3,340 FT

NUMBER OF TRAILS

167

NUMBER OF LIFTS

24

SKIABLE ACREAGE

2,082 ACRES

History of Beaver Creek

Beaver Creek is a feast for the eyes; a delight for the senses. The influence of renowned resorts such as Switzerland ’s St. Moritz, Italy ’s Cortina, and Spain ’s Val d ’Aran led to the creation of a unique mountain resort full of excitement and village luxury.

Originally designed to accommodate skiers of all abilities, Beaver Creek Mountain continues to welcome and challenge those who visit its slopes. From the gentle groomed runs of Strawberry Park to the rugged glades and bump runs of Grouse Mountain, Beaver Creek is enjoyed by a variety of Nordic Sports enthusiasts.

When George Townsend first settled in the Valley in 1881, he knew he ’d found something special, an exceptional mountain, lined with aspen groves and beautiful vistas that would become a world renowned destination. In 1972, Vail continued its vision by purchasing the land and began designing a resort that combined western hospitality and European charm. Obstacles delayed resort completion, but on December 15, 1980, Beaver Creek finally opened to the public.

Beaver Creek may be home to incredible corduroy and family -friendly terrain, but its Birds of Prey course also has a reputation for being a formidable stop on the Men ’s Alpine Ski World Cup —as Beaver Creek is the only mountain in the U.S. to regularly host the international race series.

At Beaver Creek, experience the refined side of winter. It ’s rare blend of premium experiences among natural Rocky Mountain splendor is why Beaver Creek continues to set the standard for a luxury vacation.

David is recognized as a luxury and lifestyle real estate powerhouse in Vail and Beaver Creek, Colorado. With more than 25 years of experience, he has crafted his practice by transforming an industry -wide shift to remarkable client experiences, launching properties on the world stage and providing expert care far beyond the sale. At the end of the day, it ’s the relationships he builds that create a strong foundation for generations to come.

As the founder of McHugh & Company and Colorado Ski Towns (www.ColoradoSkiTowns.com) he has shaped an ever -growing mountain home experience for those who value and breathe a different air. McHugh & Company seamlessly and successfully delivers a streamlined, custom approach, whether a client is here locally or halfway across the world. Colorado Ski Towns is David ’s brainchild allowing him and his team to add value to realtors and customers around the country and around the world by showcasing the best properties and the best real estate brokers in each of our luxury world class ski markets. He also holds a deep and developed network garnered from years of groundbreaking creative projects and collaborations with the best in the industry. Since 2020, David ’s team with Colorado Ski Towns have closed over $2.8 billion dollars in sales.

We founded Colorado Ski Towns to unite the Top -Producing Real Estate Brokers within Sotheby ’s International Realty and provide the best level of service for luxury real estate in Colorado Ski Country. Our website has been specifically designed to target luxury buyer ’s in our top feeder markets along with Sotheby's International Realty affiliates across the country and the world providing buyers and sellers the resources and experience of the #1 Real Estate Team in the Colorado Rocky Mountains with over $745 million in sales in 2021.

For decades, we have defined luxury. The place, the life, the style. We didn ’t arrive here by accident. Our brand is built on heritage. Knowing where we came from, and where we ’re headed. For us, influence is not enough. It’s about influencing the influences.

Embracing individuality. The unique. The remarkable.

Reaching beyond borders. Beyond trends. Beyond dreams. While others aspire to the unrivaled we LIVit.

Turn static files into dynamic content formats.

Create a flipbook
Royal Elk Villas Residence 7 | Beaver Creek, Colorado | LIV Sotheby's International Realty by David McHugh | LIV Sotheby's International Realty - Issuu