Construções modulares mistas em aço-madeira direcionadas ao ensino técnico-profissionalizante

Page 1

CONSTRUÇÕES MODULARES MISTAS EM

AÇO-MADEIRA DIRECIONADAS AO ENSINO

TÉCNICO-PROFISSIONALIZANTE Beatriz Costa

2022

UNIVERSIDADE

CONSTRUÇÕES MODULARES MISTAS EM AÇO-MADEIRA DIRECIONADAS AO ENSINO TÉCNICO-PROFISSIONALIZANTE

Beatriz Guilhermino Rodrigues da Costa

Orientadora: Prof.ª Dr.ª Albenise Laverde Trabalho de Conclusão de Curso 2 apresentado à Faculdade de Arquitetura e Urbanismo e Design da Universidade Federal de Uberlândia, como requisito parcial para a obtenção de título de Bacharel em Arquitetura e Urbanismo.

2022
Uberlândia - MG

Aos meus pais Giannine e Gilberto

À minha irmã Heloísa

Agradecimentos

Minha trajetória nesses últimos 5 anos foi repleta de novos conhecimentos, amizades e conquistas, dos quais sinto muito orgulho e gratidão.

Orgulho por todo meu crescimento até aqui como pessoa, pela profissional que estou me tornando, e gratidão pelas experiências que vivenciei e lembranças que levarei para o resto da vida.

Por tudo isso, agradeço primeiramente aos meus pais, por todo incentivo, investimento e motivação;

À minha irmã, pela companhia e apoio em toda minha trajetória;

Ao meu namorado, pelo apoio e companheirismo nessa etapa;

Aos meus amigos do curso de Arquitetura e Urbanismo, por dividirem comigo esses anos de graduação e tornarem leves e memoráveis todos os nossos momentos juntos;

À professora Albenise Laverde, por ter me orientado nesse trabalho e também em iniciações científicas e eventos acadêmicos ao longo da graduação;

À comunidade da FAUeD, pelos conhecimentos repassados e educação recebida;

À Universidade Federal de Uberlândia, por ter sido a instituição que me proporcionou tantos ganhos e experiências.

“O arquiteto é uma espécie de explorador capaz de reconhecer o que existe já quase pronto diante de si.”

LISTA DE FIGURAS

Figura 1 – Mapas com a localização de SENAC e SENAI no Brasil. 16

Figura 2 Gráficos quantitativos regionais de cidades que possuem SENAC ou SENAI no Brasil ........................................................... 18

Figura 3 SENAI Belo Horizonte...................................................20

Figura 4 Sequência de imagens exemplo de unidade móvel SENAI MG................................................................................................ 21

Figura 5 Gráfico comparativo entre cursos de linha de treinamento regular das unidades de SENAI SP e MG.......................................22

Figura 6 Gráfico comparativo entre cursos de formação continuada SENAI SP e MG ..........................................................24

Figura 7 – Modelo do pavilhão para a exposição comemorativa dos Anos XXV da Paz .......................................................................... 27

Figura 8 – Sequência de imagens da École de la verrerie Croismare .....................................................................................................29

Figura 9 Sequência de imagens da Escola Desmontável em Bouqueval 30

Figura 10 Escola comunitária em Vantoux ................................. 31

Figura 11 Sala de aula do Complexo Escolar em Villejuif ............ 32

Figura 12 – Sequência de imagens do UNESCO Neighborhood Workshop, Otranto 1979 .............................................................. 34

Figura 13 Sequência de imagens do Markies Camper Trailer...... 35

Figura 14 Sequência de imagens do IBM Travelling Pavilion ...... 36

Figura 15 Corte transversal do IBM Travelling Pavilion............... 37

Figura 16 Imagens da Vila Serra do Navio .................................. 38

Figura 17 Hospital Sarah Kubitschek........................................... 39

Figura 18 Sequência de imagens do Portable Construction Training Center...........................................................................................40

Figura 19 – Imagem do Screen Machine 2 após fixação no local ... 41

Figura 20 – Imagem do DIM Mobile Retail Unit Uniqlo Pop-Up Store .....................................................................................................42

Figura 21 – Imagem da Portable House sendo transportada......... 43

Figura 22 Sequência de imagens da Opera Village .....................44

Figura 23 Localização do município de Almenara.......................49

Figura 24 Características climáticas de Almenara 51

Figura 25 Localização do município de Manga........................... 52

Figura 26 Características climáticas de Manga ...........................54

Figura 27 Localização do município de Ubaí............................... 55

Figura 28 - Características climáticas de Ubaí............................... 57

Figura 29 - Gráfico do programa base do projeto ......................... 59

Figura 30 Localização das cidades de implantação .....................60

Figura 31 Diagrama matriz de fluxos 61

Figura 32 Município de Almenara ............................................... 63

Figura 33 Situação Terreno Almenara.........................................64

Figura 34 Entorno Terreno Almenara .........................................64

Figura 35 - Vista terreno Almenara ............................................... 65

Figura 36 Corte AA.....................................................................66

Figura 37 – Planta terreno Almenara com acessos........................66

Figura 38 - Município de Manga.................................................... 67

Figura 39 - Entorno terreno de Manga.......................................... 67

Figura 40 Situação Terreno Manga ............................................68

Figura 41 Sequência de imagens do terreno de Manga...............69

Figura 42 Planta terreno Manga com acessos 69

Figura 43 Corte BB ..................................................................... 70

Figura 44 Município de Ubaí ....................................................... 70

Figura 45 Situação Terreno Ubaí.................................................71

Figura 46 Sequência de imagens do terreno de Ubaí ................. 72

Figura 47 Planta terreno Ubaí com acessos.................................73

Figura 48 - Entorno terreno Ubaí .................................................. 73

Figura 49 Corte CC..................................................................... 74

Figura 50 Sequência de croquis módulo base............................. 76

Figura 51 Croqui implantação terreno Almenara 77

Figura 52 Croqui implantação terreno Manga..............................77

Figura 53 Croqui implantação terreno Ubaí ................................ 78

Figura 54 Croqui inicial de estudo do projeto ............................. 79

Figura 55 - Gráficos de dimensionamento de viga e pilar de aço... 79

Figura 56 - Modelagem módulo base do projeto ..........................80

Figura 57 - Gráfico de dimensionamento de viga vagão................80

Figura 58 - Módulos duplo e quádruplo......................................... 81

Figura 59 - Croquis janela saliente e canhão de luz .......................82

Figura 60 Sequência de imagens projeto Almenara.................... 83

Figura 61 Sequência de imagens projeto Manga ........................84

Figura 62 Sequência de imagens projeto Ubaí 85

Figura 63 Implantação e vias de entorno Almenara................. 87

Figura 64 Planta Almenara com layout.......................................88

Figura 65 Corte esquemático de Almenara ................................89

Figura 66 Vistas 1 e 3 de Almenara.............................................89

Figura 67 Vistas 2 e 4 de Almenara.............................................90

Figura 68 – Implantação e vias de entorno – Manga ..................... 91

Figura 69 - Planta Manga com layout ...........................................92

Figura 70 Corte esquemático Manga .......................................... 93

Figura 71 Vistas 2 e 4 Manga 93

Figura 72 Vistas 1 e 3 Manga.......................................................94

Figura 73 Implantação e vias de entorno Ubaí .........................96

Figura 74 Planta com layout Ubaí ............................................... 97

Figura 75 – Corte esquemático Ubaí .............................................98

Figura 76 Vistas 1 e 3 Ubaí ..........................................................98

Figura 77 – Vistas 2 e 4 Ubaí..........................................................99

Figura 78 – Configurações de uso do pilar Y................................ 101

Figura 79 Configuração do entramado do piso elevado ........... 102

Figura 80 Painéis de vedação.................................................... 103

Figura 81 Painel wall 104

Figura 82 Telha sanduíche termoacústica................................. 104

Figura 83 Telha translúcida ...................................................... 104

Figura 84 Resultados Almenara................................................. 106

Figura 85 - Resultados Manga..................................................... 110

Figura 86 - Resultados Ubaí .........................................................113

LISTA DE TABELAS

Tabela 1 - Estratégias bioclimáticas aplicáveis....................................................................................................................................................45

Tabela 2 Diretrizes de escolha das cidades para simulação de implantação ....................................................................................................48

Tabela 3 Condicionantes projetuais ................................................................................................................................................................. 75

Tabela 4 Diretrizes projetuais........................................................................................................................................................................... 75

Tabela 5 Comparação entre sistemas estruturais estudados .......................................................................................................................... 100

SUMÁRIO

INTRODUÇÃO 11

1. CAPÍTULO 1 | O ENSINO TÉCNICO-PROFISSIONALIZANTE 13

1.1. Contextualização dos cursos profissionalizantes no Brasil 13

1.2. Unidades fixas e unidades móveis 19

2. CAPÍTULO 2 | CONSTRUÇÕES FLEXÍVEIS E ITINERANTES VOLTADAS AO ENSINO 26

2.1. Estratégias bioclimáticas aplicáveis 45

3. CAPÍTULO 3 | CONTEXTO DE INSERÇÃO DO TRABALHO - ADAPTAÇÕES TEMÁTICAS 47

3.1. Diretrizes e escolha das cidades para simulações de implantação 47 3.2. Caracterização do usuário 58 3.3. Programa base e adaptações contextuais 58

4. CAPÍTULO 4 | PROPOSIÇÃO PROJETUAL 63

4.1. Desenvolvimento do estudo preliminar 76 4.2. Desenvolvimento do projeto 86 4.3. Resultados 105

5. CONSIDERAÇÕES FINAIS 117

REFERÊNCIAS BIBLIOGRÁFICAS

INTRODUÇÃO

O presente trabalho está inserido no debate sobre a experimentação construtiva com a utilização de sistemas modulares mistos com madeira e aço. Tem como base, o estudo iniciado na pesquisa de iniciação científica finalizada em 2021, intitulada “A experimentação construtiva na obra de Jean Prouvé: análise dos sistemas mistos aço madeira”1, transformando se o TCC, em uma oportunidade para ampliar o estudo de aplicações possíveis do sistema misto com madeira e aço em edificações voltadas para cursos técnico profissionalizantes no Brasil. Para isso, o trabalho considerou dados socioeconômicos do estado de Minas Gerais, com a proposição de simulações de implantação em cidades de pequeno porte, como também, próximas a vilas rurais, na intenção de promover oportunidades de capacitação para jovens residentes em regiões distantes de grandes centros urbanos e potencializar a geração de trabalho e renda nestes locais.

A pesquisa busca também, repensar os espaços arquitetônicos que abrigam a educação técnico profissionalizante entendida como aquela que se situa entre a fronteira da formação e do trabalho. Este espaço, com diferentes possibilidades de permanência local, deve estabelecer uma relação com sua localização, sua comunidade, seus recursos, sua economia, sua visão particular de desenvolvimento e, fundamentalmente, definir um estado crítico sobre o seu funcionamento e a sua visão de futuro.

Segundo o arquiteto Renzo Piano, no livro ‘A responsabilidade do arquiteto’, a arquitetura deve manter o “Respeito ao ambiente e à cultura do lugar pelo uso não invasivo da tecnologia”, (PIANO, 2011, p. 12), assim como “A arquitetura deve se tornar cúmplice, deve participar das características do local, do território”, (PIANO, 2011, p. 102).

Visto que o tema do presente trabalho não apresenta ampla bibliografia, sua contribuição se dá de forma teórica e prática. Inicialmente foi realizada uma pesquisa de dados visando entender o cenário atual de formação profissionalizante no Brasil, englobando as características

1 O trabalho intitulado ‘A experimentação construtiva na obra de Jean Prouvé: análise dos sistemas mistos aço madeira’ foi desenvolvido entre os anos de 2019 e 2021 como pesquisa de iniciação científica financiada pelo CNPQ - Conselho Nacional de Desenvolvimento Científico e Tecnológico e também em formato voluntário, para continuação da pesquisa.

11

desse formato de ensino e seus usuários, a arquitetura pré fabricada, escolar e itinerante. No campo prático, este trabalho adota a experimentação construtiva durante o estudo de possibilidades projetuais arquitetônicas e construtivas, com a realização de estudos formais, de conforto e tecnologia.

OS SISTEMAS MISTOS AÇO-MADEIRA

A madeira é utilizada de forma mista com outros materiais como o aço, o concreto, o vidro e até o policarbonato. Em obras que serão apresentadas neste trabalho, pode se observar o emprego do material evidenciando suas características e possibilidades construtivas, além do caráter poético e acolhedor da madeira, que foi explorado ao longo do trabalho e poderá ser observado no mesmo.

A TECNOLOGIA NA ARQUITETURA

Ao longo dos anos, a arquitetura passou e ainda passa por diversos movimentos motivados por problemáticas e preocupações mundiais, envolvendo problemas sociais e climáticos de todo o mundo, e a tecnologia acaba sendo o principal objeto de busca por respostas da área. Nesse âmbito, entre a utilização do Low Tech e do High Tech na arquitetura, o ideal seria a busca pelo equilíbrio entre esses dois extremos? Este trabalho busca entender as influências e resultados da arquitetura aplicada utilizando conceitos de projeto que trabalhem as tecnologias dos materiais empregados, de forma a garantir bem estar e sustentabilidade sem o uso invasivo da tecnologia e, assim, sem altos gastos econômicos para a execução do projeto.

12

1. CAPÍTULO 1 | O ENSINO TÉCNICO-PROFISSIONALIZANTE

O ensino técnico-profissionalizante, atualmente, compreende o nível formativo voltado para o desenvolvimento de habilidades, competências e conhecimentos a partir de uma abordagem teórico-prática de aprendizagem. Esse tipo de ensino é entendido como uma forma de formação flexível e modular, permitindo que os critérios de adaptabilidade sejam combinados com as mudanças trazidas pelas novas tecnologias e novas formas de trabalho, mas sempre com o objetivo de criar mão de obra qualificada.

Diante da realidade atual de hiato no acesso à educação profissional, é necessário promover um modelo de ensino profissionalizante mais flexível e disponível à população, contextualizado ao perfil dos alunos, à realidade socioeconômica e cultural destes, à realidade dos territórios onde são desenvolvidos os cursos profissionalizantes e à dificuldade estrutural dos mesmos em oferecer especialidades e estratégias de aprendizagem relevantes.

Através de estratégias de aprendizagem que considerem e integrem todos estes elementos, é possível assegurar experiências que desenvolvam competências de empregabilidade e habilidades profissionais que permitam aos alunos ingressar com sucesso no mercado de trabalho, continuar os estudos e ser uma contribuição para o desenvolvimento do país e de suas famílias.

1.1.

CONTEXTUALIZAÇÃO DOS CURSOS PROFISSIONALIZANTES NO BRASIL

No Brasil, apenas 9% dos formandos do ensino médio recebem formação profissional. No ano de 2020, o país registrou 1,9 milhão de matrículas na educação profissional técnica de nível médio, e o Plano Nacional de Educação (PNE)2 estabelece como meta alcançar 5,2 milhões de matrículas até 2024, sendo 50% na rede pública.

2 O Plano Nacional de Educação (PNE) determina diretrizes, metas e estratégias para a política educacional no período de 2014 a 2024. Disponível em: <https://pne.mec.gov.br/>.

13

Um dos cinco maiores complexos de educação profissional do mundo é o SENAI Serviço Nacional de Aprendizagem Industrial, que faz parte da rede privada e é referência no Brasil, tendo formado mais de 80 milhões de pessoas nos últimos 79 anos em cursos técnicos, de qualificação, aperfeiçoamento, entre outros, alinhado às demandas da indústria. Já no setor comercial, temos o SENAC Serviço Nacional de Aprendizagem Comercial, que desde 1946 é o principal agente de educação profissional voltado para o Comércio de Bens, Serviços e Turismo do País.

A partir de planilha disponibilizada pelo MEC3, foram elaborados pela autora os seguintes mapas com a identificação de cidades que possuem pelo menos uma unidade de SENAC e/ou SENAI no Brasil:

3 Disponível em: <https://dados.gov.br/dataset/ept educacao profissional e tecnologica>. Acesso em: 10 de janeiro de 2022.

14
15

Figura 1 Mapas com a localização de SENAC e SENAI no Brasil autora,

16
2022

Com base nos mapas elaborados e expostos na fig. 1, é possível observar em cores e analisar quantitativamente a discrepância de ofertas dos cursos profissionalizantes citados, em questão territorial no Brasil. Nota-se que as regiões sudeste e sul do país, principalmente os estados de São Paulo e Santa Catarina, acomodam a maior parte das cidades que possuem unidades de SENAC e SENAI, instituições de referência mundial em ensino profissionalizante.

Compreende se também, a partir dos mapas (fig. 1), que há a centralização destas instituições de ensino profissionalizante nos grandes centros urbanos e capitais, evidenciando a discrepância de investimento na educação profissional no país e a deficiência do interior em qualificação profissional.

Os gráficos abaixo (fig. 2) expõem quantitativamente as cidades, separadas por regiões do Brasil, que possuem SENAC ou SENAI. Nota se que a região sudeste contém a maior parte das cidades que possuem essas instituições, totalizando 221 cidades. Entretanto, ainda assim esses números compõem apenas 13,2% das cidades dessa região, que engloba os estados de São Paulo, Minas Gerais, Rio de Janeiro e Espírito Santo.

17

Figura 2 Gráficos quantitativos regionais de cidades que possuem SENAC ou SENAI no Brasil

Fonte: Elaborado pela autora com base em planilha fornecida pelo MEC.

Com a segunda maior quantidade de cidades que contam com as instituições de ensino profissionalizante SENAC e SENAI, temos a região Sul, contando com 158 cidades. Visto que esse número engloba 39,6% das cidades da região, que comporta os estados do Paraná, Santa Catarina e Rio Grande do Sul, entende-se que a região Sul do país é a mais equilibrada em questão de ofertas destes cursos.

18

A partir de dados do IBGE acerca do PIB das unidades federativas do Brasil, sabe-se que o estado de São Paulo é o mais rico do país, contando com um PIB de R$ 2.348.338 mi (2019)4 . Pode-se então vincular essa informação ao fato de o estado de São Paulo ser o principal contribuinte para a industrialização no país em quesito de oferta de cursos técnico profissionalizantes, segundo mapas (fig.1) e gráficos (fig. 2) elaborados, e concluir que há uma relação direta entre a oferta desses cursos de formação citados e a geração de mão de obra qualificada, contribuindo para o crescimento deste setor no estado.

Torna se interessante, então, realizar um estudo comparativo entre as características de oferta de cursos técnico profissionalizantes nos estados de São Paulo e Minas Gerais, visando organizar os principais pontos a serem trabalhados. Para isso, foram analisados os cursos das unidades de SENAI em suas formas de aplicação presentes nos dois estados citados.

1.2. UNIDADES FIXAS E UNIDADES MÓVEIS

As instituições do SENAI, que ofertam cursos técnicos e profissionalizantes na área industrial, possuem unidades fixas e unidades móveis para a aplicação dos mesmos. As unidades fixas são aquelas construídas em cidades específicas, também chamadas de ‘sedes’ neste trabalho, enquanto as unidades móveis correspondem a carretas e caminhões que são equipados com máquinas e materiais específicos para ofertarem cursos a empresas, ongs ou instituições que solicitarem o serviço.

Durante conversa com Victor Braga5, supervisor das Escolas Móveis do SENAI do estado de São Paulo, o mesmo tirou algumas dúvidas sobre a organização dos cursos nas unidades fixa e móvel, evidenciando os seguintes pontos:

4 Fonte: IBGE. Disponível em: <https://www.ibge.gov.br/explica/pib.php>.

5 Durante a etapa de pesquisa de dados, ao entrar em contato via e mail com o FIESP Federação das Indústrias do Estado de São Paulo para buscar informações sobre as escolas móveis, o Supervisor das mesmas, Victor Braga, sugeriu a realização de ligação telefônica para auxiliar da melhor forma no fornecimento de dados realização do trabalho.

19

1. O SENAI possui duas linhas de treinamentos: a primeira, chamada Linha de Treinamento Regular, oferta cursos técnicos de maior carga horária, que são realizados nas unidades fixas, como por exemplo a representada na fig. 3;

Fonte: SENAI 2022. Disponível em: < https://senai2022.com/senai-belo-horizonte-2022/>. Acesso em: 29 de abril de 2022.

2. A segunda, chamada Cursos de Formação Continuada, oferta cursos de carga horária entre 24h e 300h, sendo cursos rápidos de aprimoramento, e não com caráter de formação técnica;

3. Na modalidade de unidades móveis (fig. 4), os cursos atendem a turmas de, no máximo, 16 alunos, e as demandas são geralmente de indústrias e empresas que buscam capacitar seus trabalhadores em horários flexíveis da jornada de trabalho, como intervalos e horários de almoço, por exemplo.

20
Figura 3 SENAI Belo Horizonte

Fonte: SENAI | Belo Horizonte | Unidade de Escolas Móveis. Anexos recebidos via e mail após contato com a instituição. Janeiro de 2022.

Para análise comparativa do contexto dos cursos profissionalizantes ofertados pelo SENAI, foram estudadas as infraestruturas do SENAI dos estados de São Paulo e Minas Gerais, buscando identificar problemáticas e diretrizes de projeto. A partir disso, foram elaborados os gráficos abaixo (fig. 5), com a relação de dados levantados.

21
Figura 4 Sequência de imagens exemplo de unidade móvel SENAI MG

Obs.: a categoria ‘outros’ engloba cursos de pouca oferta (1 2) em ambos os estados.

*área de destaque em Minas Gerais

**área de cursos não ofertados em Minas Gerais

Figura 5 Gráfico comparativo entre cursos de linha de treinamento regular das unidades de SENAI SP e MG

Fonte: Elaborado pela autora, com dados fornecidos pelo SENAI SP e SENAI MG. Disponível em: <https://www.sp.senai.br/cursos/18/cursos tecnicos?menu=31; https://www7.fiemg.com.br/senai>. Acesso em: 1 de fevereiro de 2022.

22

Os gráficos elaborados mostram quantitativamente a caracterização dos cursos oferecidos pelas unidades do SENAI nos estados de São Paulo e Minas Gerais, com a separação por área de trabalho, como por exemplo administração, alimentos, automação, entre outros. Constatouse que, além da quantidade de cursos ofertados no estado de São Paulo ser evidentemente maior que a de Minas Gerais, as áreas trabalhadas pelos dois estados são similares, porém possuem focos diferentes.

Enquanto em São Paulo há 380 cursos ofertados, com maior foco na área de mecânica, em Minas Gerais há a oferta de 224 cursos, com a área de elétrica/eletrônica tendo maior visibilidade. Há também cursos ofertados pelo estado de São Paulo em áreas que não são trabalhadas no estado de Minas Gerais, como é o caso de Plásticos, e cursos na área de Edificações, que possuem destaque por serem ofertados em Minas Gerais, mas possuírem pouca visibilidade em São Paulo.

Após análise dos cursos ofertados na linha de treinamento regular, ou seja, nas unidades fixas do SENAI de São Paulo e Minas Gerais, foi realizada a análise dos cursos ofertados em formação continuada, em unidades móveis dos mesmos. Para organização dos dados levantados, foram elaborados os gráficos abaixo:

23

Figura 6 Gráfico comparativo entre cursos de formação continuada SENAI SP e MG

Fonte: Elaborado pela autora, com dados fornecidos pelo SENAI SP e SENAI MG. Disponível em: <https://www.sp.senai.br/cursos/18/cursos tecnicos?menu=31; https://www7.fiemg.com.br/senai>. Acesso em: 1 de fevereiro de 2022.

24

Em relação aos cursos ofertados nas unidades móveis de SENAI, o hiato é maior entre os estados de São Paulo e Minas Gerais. Enquanto as escolas móveis do SENAI do estado de São Paulo oferecem 941 cursos distribuídos em 26 áreas de atuação diferentes, destacando as áreas de metalmecânica e eletroeletrônica, em Minas Gerais esses números caem para 44 cursos em 9 áreas de atuação, com destaque para Construção Civil e Usinagem.

A partir das informações levantadas em diferentes fontes para realização da pesquisa de dados, foi então proposta a realização de projeto para o presente trabalho evidenciando a importância da oferta de cursos técnico profissionalizantes nas diversas localidades brasileiras para o crescimento econômico do estado em questão e, então, do país.

25

2. CAPÍTULO 2 | CONSTRUÇÕES FLEXÍVEIS E ITINERANTES VOLTADAS AO ENSINO

A partir dos dados levantados e analisados no capítulo 1, entende-se que há um déficit em ofertas de cursos técnico-profissionalizantes em áreas descentralizadas no país, como as regiões norte e nordeste do Brasil, e, em um cenário mais próximo, a região norte do estado de Minas Gerais. Visando atender às diversas localidades, cenários físicos e econômicos, tem se como propícia e até necessária a utilização de uma arquitetura com caráter flexível e passível de ser itinerante, para atender às comunidades de forma pontual e por um determinado período de tempo.

La arquitectura flexible está compuesta por edificios diseñados para responder al cambio a lo largo de su vida. Los edificios así diseñados tienen considerables ventajas: pueden usarse durante más tiempo; se adecuan mejor a su finalidad; albergan la experiencia y la intervencion de los usuarios; sacan partido de las innovaciones técnicas con mayor facilidad; y son económica y ecológicamente más viables. (KRONENBURG, 2007, p. 7)

Ainda segundo Kronenburg, "(...) la arquitectura flexible no es un fenomeno nuevo, sino una forma de construcción que ha evolucionado paralelamente a las habilidades creativas que desarollan los seres humanos.” (KRONENBURG, 2007, p. 11). O conceito e aplicação de uma arquitetura flexível e itinerante não é novo. Em 1964, Emílio Perez Piñero, arquiteto espanhol e pesquisador de estruturas leves e retráteis, desenvolveu em seu trabalho de conclusão de curso (ainda como estudante de arquitetura) um projeto de pavilhão para a exposição comemorativa dos Anos XXV da Paz, cuja estrutura era inovadora e flexível.

26

Esse projeto, demonstrado na imagem ao lado (fig. 7), contava com uma estrutura leve e retrátil transportada por caminhão, sendo então um exemplo de arquitetura flexível e itinerante, que gerava grandes espaços cobertos, com a máxima eficiência e mínimo consumo de materiais, ainda nos anos 1960.

Figura 7 Modelo do pavilhão para a exposição comemorativa dos Anos XXV da Paz

Fonte: Anquiscopio. Disponível em: <https://arquiscopio.com/las estructuras desplegaples de perez pinero/?lang=pt>. Acesso em 13 de março de 2022.

Dessa forma, foram analisados alguns projetos como estudos de caso, entendendo seus conceitos, suas formas de aplicação e suas características como obras de arquitetura flexível, móvel, passíveis de serem itinerantes e também de caráter escolar, tendo como foco a pré fabricação. As obras foram analisadas seguindo as seguintes diretrizes: implantação, área construída, sistema construtivo, materiais, insolação,

27

ventilação, mobilidade e público alvo6; após sua análise, foram organizadas em grandes áreas nas quais se encontram, como: flexibilidade, temática escolar, e estruturas mistas.

Entendendo a questão escolar, com foco em projetos que evidenciem o uso da pré fabricação em aço e madeira, foram estudadas obras de Jean Prouvé7, profissional que realizou muitos projetos importantes para o tema, tendo relevância também no sistema construtivo, diretrizes projetuais e materiais utilizados. Ao trabalhar com a experimentação construtiva desde o início de sua trajetória, Prouvé, que pensava a estrutura de um mobiliário da mesma forma que de um edifício, entendendo técnica e estética, realizou diversos projetos desmontáveis e passíveis de serem transportados. Essa simetria entre móveis e edifícios é única e induz uma abordagem abrangente. Na realidade, quando Prouvé começa a pensar em móveis, ele pensa em estrutura, e, portanto, em arquitetura, rompendo a fronteira entre móveis e edifícios, o que lhe dá a oportunidade de conceber casas portáteis, módulos desmontáveis, marcando o início do nomadismo na arquitetura. (SEGUIN, 1998, p. 11)

Entre os anos de 1948 e 1949, Jean Prouvé, juntamente com seu irmão Henri Prouvé, realizou o projeto de escola com estrutura préfabricada, intitulado L’école de la verrerie Croismare (fig. 8). Essa construção é um dos raros exemplos de grandes edificações de madeira e aço antes da produção de metal leve e consiste em uma escola de fabricação de vidro localizada em Croismare, uma comuna francesa com população em torno de 700 habitantes (em 2018 a comuna tinha 655 habitantes).

6 Está inserido, ao final do presente trabalho, o APÊNDICE A, com o resumo em tabela das análises realizadas acerca dos estudos de caso, seguindo as diretrizes apresentadas.

7 Jean Prouvé (1901-1984) foi um importante artesão e metalúrgico francês, pioneiro do século XX na criação de mobiliário e arquitetura pré-fabricada. Além do uso de aço em suas obras, Prouvé também utilizou da madeira, em uso único e também em sistemas mistos com o aço.

28

Esse é um dos projetos de pórticos centrais mais significativos já produzidos pelo Atelier Jean Prouvé8, e que reúne os princípios fundamentais de suas obras. Ele compõe uma área de 255 m², com 7 pórticos centrais de 296 cm de altura que se situam no eixo do comprimento do edifício e estão ligados entre si por uma viga central, e um corredor externo também com pórticos em toda sua extensão.

Figura 8 Sequência de imagens da École de la verrerie Croismare

Fonte: Jousse enterprise. Disponível em: <https://issuu.com/jousseentreprise/docs/prouve_croismare_v2>. Acesso em 24 de janeiro de 2022.

A multifuncionalidade dos painéis de fachada é um aspecto marcante do projeto, que foi utilizado como referência para o presente trabalho e permite a integração de elementos de acabamento, como janelas salientes, venezianas de correr, ou até mesmo isolamentos térmicos e acústicos. Os painéis possuem variações de dois tipos: maciços ou vidrados, e permitem compor uma fachada de forma rítmica e contrastante.

8 O Atelier Jean Prouvé foi fundado em Nancy na década de 1930, contemporâneo à escassez do metal e ao início da utilização do material madeira pontualmente por Jean Prouvé, a partir de experimentações construtivas em suas obras.

29

Outro aspecto da obra que foi analisado e levado em consideração para o trabalho foi a soltura do solo empregada na edificação, com utilização de estrutura esbelta para sustentação do entramado do piso.

A partir das diretrizes determinadas para estudo de projeto, pôde se analisar que a École de la verrerie Croismare, construção pré fabricada com 255 m², teve sua implantação realizada em uma área de clareira e de forma a ficar acima do nível do solo. Isso deu se pela utilização do material madeira, que foi utilizado na obra juntamente com aço e vidro. Seu sistema construtivo conta com pórticos centrais e externos, ambos em aço.

Por seu caráter pré fabricado e desmontável, a construção pode ser montada em diferentes locais, possibilitando o uso de orientações solares ideais durante a alocação dos painéis de vedação e esquadrias, possibilitando também a ventilação cruzada.

Ainda em 1949, Prouvé realizou seu projeto de Escola Desmontável em Bouqueval (fig. 9), uma comuna francesa com população em torno de 300 habitantes (em 2018 tinha 307 habitantes). A construção tem seu uso específico escolar e conta com objetivos similares aos perseguidos no presente trabalho, pois consiste em uma escola rural industrializável, desmontável e produzida por fabricação em massa.

Figura 9 – Sequência de imagens da Escola Desmontável em Bouqueval

Fonte: Galerie Patrick Seguin. Disponível em: <https://www.patrickseguin.com/en/product /jean-prouve-bouqueval-demountableschool adapatation jean nouvel 1950 2016 vol 13/>. Acesso em 10 de março de 2022.

30

A partir das diretrizes determinadas para estudo de projeto, pôde-se analisar que a escola desmontável em Bouqueval teve sua implantação realizada em um local amplo aberto, possibilitando a escolha da melhor orientação solar, em consonância com a alocação dos painéis de vedação e esquadrias, o que possibilita também a ventilação cruzada.

Seu sistema construtivo conta com pórticos centrais em “U” em aço, integrando os materiais utilizados na construção, que foram madeira, alumínio e vidro. Nota se também o uso de piso em chapas de aço levemente elevado do nível do solo e a marcação da entrada a partir de pórticos externos que suportam uma cobertura em toldo.

No ano seguinte, em 1950, Jean Prouvé realizou outro projeto escolar, a Escola Comunitária em Vantoux (fig.10), uma comuna francesa com população em torno de 900 habitantes (em 2018 tinha 856 habitantes). Esse projeto fez parte de um complexo que foi registrado como monumento histórico na França, e contou com uso de pré fabricação em estruturas metálicas, vedação com painéis de madeira e esquadrias em aço e vidro.

A partir das diretrizes determinadas para estudo de projeto, pôde se analisar que a Escola comunitária em Vantoux, de caráter pré fabricado, teve sua implantação fixa no local, com uso de piso em concreto, característica distinta das obras analisadas anteriormente. Seu sistema construtivo conta com pórticos metálicos interna e externamente, que marcam a circulação e suportam também a cobertura externa.

Figura 10 Escola comunitária em Vantoux

Fonte: SULZER, P. Jean Prouvé, oeuvre complète. 1917 a 1984. Vol. 1, 2, 3 e 4. Basel: Birkhäuser Boston Berlin. 2008.

31

A forma com que os pórticos externos marcam a circulação é um ponto muito interessante do projeto e que foi utilizado como referência para este trabalho. Sobre o uso de materiais, a obra conta com aço, madeira, vidro e concreto, todos muito presentes em obras de Prouvé e que garantem a montagem rápida no local, mesmo com o caráter fixo da obra.

Já em 1957, o Complexo Escolar em Villejuif (fig.11), também projetado por Jean Prouvé, contou com o conceito aplicado de forma diferente das anteriores, visto que o complexo consistia em três edifícios, sendo dois com sete salas de aulas e um playground coberto, e o terceiro com quatro salas de aulas e um playground coberto. As salas de aula tinham como objetivo serem rapidamente desmontáveis e com possibilidade de ampliação, então foi criada uma estrutura leve com pilares metálicos perfurados e pilares centrais assimétricos que sustentam o forro de painéis de CLT (cross laminated timber) e a cobertura em telhas de alumínio.

Esse complexo foi desmontado e remontado com sucesso em diferentes locais e usos, como instituições e capelas, e seus componentes foram exibidos no Centre Pompidou em 1990 e 2000.

Figura 11 Sala de aula do Complexo Escolar em Villejuif

Fonte: Galerie Patrick Seguin. Disponível em: <https://vimeo.com/143123656>. Acesso em 10 de março de 2022.

32

A partir das diretrizes determinadas para estudo de projeto, pôde-se analisar que o complexo escolar, mais especificamente a sala de aula de 37,5 m² (fig. 11) teve sua implantação realizada de forma livre em diversos locais de clareira. Nota-se que as vedações são inteiramente em vidro, garantindo insolação em todas as faces da construção, de forma contrária à ventilação, que só é possibilitada com a abertura de algum dos painéis de vidro, além do que é proporcionado pelos pilares vazados.

A respeito dos materiais, a obra conta com aço, vidro e madeira, presentes na estrutura em pilares vazados e em “T”, vedações e cobertura, respectivamente. Pelo seu caráter pré fabricado e desmontável, o complexo escolar em Villejuif pode ser montado e desmontado em questão de horas.

O segundo principal ponto a ser estudado no presente trabalho foi a itinerância, aspecto trabalhado por diversos arquitetos, como Renzo Piano e escritórios de arquitetura que serão elencados em sequência. A também chamada “Arquitetura Portátil” garante o uso de diferentes materiais e técnicas construtivas que são constantemente aprimoradas visando leveza e rapidez de montagem.

Portable architecture uses a much wider range of materials and constructional techniques than conventional buildings projects and it is therefore at the forefront in the exploitation of technology transfer opportunities in the building industry. However, it is not always innovative, cutting edge technology that has proven the best resource. (KRONENBURG, 2008, p. 44)

Assim como Jean Prouvé teve seu destaque pela temática escolar pré-fabricada, Renzo Piano possui uma gama de projetos que se enquadram ao tema itinerante e foram analisados nessa etapa do trabalho. Segundo Piano, “A universalidade da mensagem está paradoxalmente na própria capacidade de a linguagem arquitetônica se adequar ao local, ao ambiente, à cultura que ela expressa.” (PIANO, 2011, p. 92)

Em 1979, Renzo Piano realizou seu projeto voltado para um experimento de reconstrução proposto pela UNESCO, chamado UNESCO Neighborhood Workshop (fig. 12). O projeto consistia em um cubo transportado por caminhão guindaste e montado em uma praça, para

33

reconstruir o caráter cultural e de pesquisa na comunidade. É um exemplo de construção itinerante, que utiliza painéis retráteis com a funcionalidade de setorizar os ambientes, além de organizar os objetos de estudo dispostos ali.

Os quatro lados do módulo foram dedicados a etapas diferentes de pesquisa, sendo: levantamento, estratégia, documentação e construção, respectivamente. Essas áreas foram desdobradas sob uma cobertura de tenda que abrigava atividades abertas e convidativas à participação dos cidadãos locais. Muito tempo foi gasto para conceber esta estratégia e a forma e conteúdo da Oficina de Vizinhança. Esse módulo inicial do experimento da UNESCO foi instalado em Otranto por apenas uma semana, porém foi o suficiente para demonstrar o potencial da estratégia e das energias construtivas que ele poderia desencadear na comunidade.

O aspecto cúbico e a modularidade da construção, juntamente com o uso de painéis retráteis para separação de ambientes foram os principais pontos dessa obra analisados e utilizados como referência para o trabalho.

Figura 12 Sequência de imagens do UNESCO Neighborhood Workshop, Otranto 1979

Fonte: Archleague, Fotos © Gianni Berengo Gardin. Disponível em: https://archleague.org/article/renzo piano building workshop selected projects part 3>. Acesso em 5 de março de 2022.

34

A partir das diretrizes determinadas para estudo de projeto, pôde-se analisar que o UNESCO Neighborhood Workshop, construção itinerante e cúbica com uma área de 5,76 m² (2,4 x 2,4 m) pode ser implantado em qualquer local, e montado por algumas pessoas. Por ser uma construção leve e pré fabricada, com uso de painéis metálicos vazados e cobertura em lona, ela garante insolação e ventilação aos usuários.

Já em 1980, foi criado o Markies Camper Trailer (fig. 13), pelo arquiteto Eduard Bohtlingk, com características inovadoras para a época, e que foram motivadoras para que o projeto ganhasse prêmios até o ano de 2015. A obra consiste em um trailer de 8,36 m², que pode ter sua área ampliada para 25 m² quando aberto. Para isso, foram utilizados toldos laterais em plástico (transparente e opaco) que são abertos quando fixado no local, garantindo espaços de descanso e convivência aos usuários.

Seu sistema construtivo é composto por steelframe e estrutura secundária em madeira compensada; A insolação e a ventilação são controladas a partir da abertura dos toldos laterais, pois estes podem ser abertos completamente ou não. O trailer possibilita a itinerância em locais com acesso por rodovias, e tem seu foco voltado para campistas.

Figura 13 Sequência de imagens do Markies Camper Trailer

Fonte: Bohtlingk. Disponível em: <https://www.bohtlingk.nl/en/markies 2/>. Acesso em 31 de março de 2022.

35

O projeto foi inscrito no concurso “Temporary Living” de 1985 e foi concebido como uma casa móvel. Ele tem dimensões de 2,00 m por 4,50 m e o seu espaço pode ser triplicado após fixação no local de destino, por meio de toldos.

Seu ambiente interno é dividido em três partes: a seção central consiste em uma estrutura de madeira compensada e aço e contém um banheiro, cozinha e área de estar com móveis dobráveis. Em uma das extensões do toldo, os campistas encontram duas áreas de dormir separadas. Do outro lado, há uma sala de estar com terraço.

Enquanto o toldo do quarto protege da luz e proporciona privacidade, o outro toldo é feito de um plástico transparente, mas à prova de intempéries. O uso de transparências nesse projeto de caráter simples e flexível é um ponto de destaque para o trailer. Com bom tempo, os toldos podem ser retraídos de forma conversível, tornando o ambiente aberto. “Perhaps the simplest system is a roll up awning that can extend from the side of the trailer to make a covered space that forms an external living room.” (KRONENBURG, 2007, p. 46).

Em 1986, Renzo Piano realizou seu projeto IBM Travelling Pavilion (fig. 14), um pavilhão desmontável que era transportado de cidade em cidade em uma frota de trailers construídos e estampados especialmente para ele. Esse projeto englobou as explorações de Piano em leveza, transparência e construção com unidades repetitivas.

Figura 14 Sequência de imagens do IBM Travelling Pavilion

Fonte: Archleague, Fotos © Gianni Berengo Gardin. Disponível em: https://archleague.org/article/renzo piano building-workshop-selected-projects-part-3>.

Acesso em 5 de março de 2022.

36

Como o edifício permanecia em cada local por até dois meses, muitas vezes eram feitos preparativos do local que incluíam rampas, paisagismo e caminhos de acesso. A estrutura baseava-se em um piso de aço suspenso que continha um espaço oco para serviços. Para isso, foi anexada uma série de arcos de três pinos independentes fixados à borda do piso em sua base. Os dois segmentos de cada arco consistiam em um sistema estrutural que incorporava materiais tradicionais e modernos usados em conjunto para fornecer uma imagem orgânica e tecnológica.

Cada segmento consistia em seis pirâmides de policarbonato fixadas na ponta e na borda por juntas de alumínio fundido a barras de madeira laminada. Juntas de Neoprene e hastes de aço inoxidável ajustáveis foram usadas nos pontos de conexão para permitir o movimento diferencial entre os diversos materiais, e também para acomodar a flexibilidade necessária na montagem e desmontagem de um edifício portátil.

Figura 15 – Corte transversal do IBM Travelling Pavilion

Fonte: Blogspot. Disponível em: http://arquitecturamashistoria.blogspot.com/2007/11/delicias renzo piano y el pabelln.html>. Acesso em 6 de março de 2022.

A leveza das peças utilizadas na composição dessa obra, juntamente com o uso de transparências e seu caráter itinerante são pontos marcantes para o estudo do mesmo, entendendo-o como projeto de referência para trabalhar esses aspectos no âmbito projetual.

37

Em 1956, já em um cenário nacional, foi realizado por Oswaldo Bratke o projeto da Vila Serra do Navio, em que foram executadas diversas residências em madeira, material abundante no local. O projeto contou com artifícios arquitetônicos para melhor se adaptar às condições climáticas tropicais, como uso de beirais, ventilação cruzada, e paredes rebaixadas entre os cômodos para melhor ventilação.

Outros artifícios inseridos no projeto foram os painéis externos, utilizados como brises fixos ou móveis, em estilo de veneziana ou porta de correr. Estes garantiam conforto além de estética e flexibilidade ao projeto.

Figura 16 Imagens da Vila Serra do Navio

Fonte: Archdaily. Disponível em: <https://www.archdaily.com.br/br/772335/classicos da arquitetura vila serra do navio oswaldo bratke>. Acesso em 30 de maio de 2022.

38

Ainda em um cenário nacional, em 1994, foi criado por João Filgueiras Lima (Lelé) o Hospital Sarah Kubitschek em Salvador, projeto de grandes características marcantes para análise projetual e aplicação. Entretanto, para o presente trabalho os principais pontos analisados foram os painéis de vedações utilizados, englobando transparência, ventilação, iluminação, estética e modularidade.

Figura 17 Hospital Sarah Kubitschek

Fonte: Archdaily. Disponível em: <https://www.archdaily.com.br/br/01 36653/classicos da-arquitetura-hospital-sarah-kubitschek-salvadorjoao filgueiras lima lele>. Acesso em 19 de julho de 2022.

39

No ano de 1999, foi criada pelo Office of Mobile Design9 uma oficina de ensino móvel com a finalidade de possibilitar a oferta de cursos práticos voltados à construção civil, aos trabalhadores no local em que a construção é feita. O projeto, chamado Portable Construction Training Center (fig. 18), foi feito para a ONG Venice Community Housing Corporation, com materiais de construção reciclados e doados pelos estudantes da Universidade de Woodbury.

Como mencionado por Kronenburg sobre a finalidade do projeto em “The PCTC is a mobile teaching workshop to enable courses in plumbing, painting, carpentry, plastering and electrical installation to take place in site where the actual building construction is taking place”

(KRONENBURG, 2007, p. 199), por ser uma oficina de cursos práticos da construção civil implantada no local de execução da obra, esta se torna um exemplar único a ser utilizado como referência para o trabalho.

Figura 18 Sequência de imagens do Portable Construction Training Center

Fonte: KRONENBURG, R. Flexible: Arquitectura que integra el cambio. Blume, 2007

9 Office of Mobile Design é um escritório de arquitetura criado por Jennifer Siegal em 1998, que tem como foco estruturas portáteis, desmontáveis e relocáveis. Disponível em: <http://www.designmobile.com/>.

40

A partir das diretrizes determinadas para estudo de projeto, pôde-se analisar que a implantação da Portable Construction Training Center é realizada em locais de obras de construção civil, com o público alvo sendo os trabalhadores dessas obras. Seu sistema construtivo conta com treliças racionalizadas para sustentação da cobertura e estrutura metálica para as vedações laterais. Lateralmente, a obra conta com toldos translúcidos que podem ser abertos possibilitando iluminação natural e ventilação.

Em 2004, foi construído o Screen Machine 2 (fig. 19), projeto realizado pelo Grupo Toutenkamion, líder europeu em design, fabricação e personalização de cabines de caminhões e unidades móveis em caminhões, semirreboques e abrigos/contêineres.

O projeto consiste em um cinema móvel instalado em um trailer articulado, com extensão lateral fixado no local por mecanismo hidráulico de fundação. Ao analisar projetos de arquitetura itinerante, observa se que o mecanismo hidráulico empregado na obra é de aspecto interessante para ser utilizado como referência em aplicações nas unidades móveis de cursos profissionalizantes, por exemplo.

Figura 19 Imagem do Screen Machine 2 após fixação no local

Fonte: KRONENBURG, R. Flexible: Arquitectura que integra el cambio. Blume, 2007

41

O cinema móvel é composto por uma estrutura em steelframe, que pode ser montada em menos de 1 hora e acomoda mais de 100 assentos, além de ser acessível a todos. The new cinema takes form of an articulated trailer that can be taken to any location that can be reached by road. It sits on hydraulic legs that provide a firm foundation when two sides of the truck are extended to make the raked auditorium. Access ramps and steps are set up separately. (KRONENBURG, 2007, p. 177)

Em 2005, a empresa LOT EK criou o DIM Mobile Retail Unit Uniqlo Pop-Up Store (fig. 20), uma carreta que consistia em uma instalação artística e com uso prático, que contava com a finalidade de ser uma loja que viajasse até o local em que o cliente estivesse.

Figura 20 Imagem do DIM Mobile Retail Unit Uniqlo Pop Up Store

Fonte: KRONENBURG, R. Flexible: Arquitectura que integra el cambio. Blume, 2007

42

O projeto foi construído em uma oficina local e entregue no local em 24 horas. Depois de 3 meses, após o encerramento das atividades da instalação foi removido do local e guardado em um depósito até a próxima festa. Contêineres foram usados como “salas” móveis e tiveram suas faces cortadas em forma de janelas, pórticos e até mobiliário. Essa forma de trabalhar as aberturas e transparências é interessante, pois garante iluminação natural ao mesmo tempo que transforma a construção em algo leve e sofisticado esteticamente.

Instaladas sobre rodas, as “salas” móveis puderam ser realocadas facilmente. Com 16 m de comprimento e 90 m², pode aumentar em três vezes seu tamanho, por meio de elementos que se abrem lateralmente.

Em 2007, o Office of Mobile Design criou o projeto Portable House (fig. 21), que consistia em edificações pré fabricadas transportadas tanto de forma única e completa, quanto de forma dupla, em dois módulos acoplados no local. Possuem módulos básicos de 3,6 m por 18 m, com uso de steelframe e estrutura secundária em madeira.

43
Figura 21 Imagem da Portable House sendo transportada Fonte: KRONENBURG, R. Flexible: Arquitectura que integra el cambio. Blume, 2007

A unidade de 70 m² foi projetada como parte de um sistema modular que pode acomodar diversas variações, sendo também um ótimo exemplo de flexibilidade, visto que os ambientes podem ser ampliados dependendo da demanda da unidade familiar.

Segundo Kronenburg, “OMD’s Portable House is a redesign of the typical North American mobile home that incorporates conventional manufactured housing construction techniques with a contemporary design aesthetic and ecological emphasis.” (KRONENBURG, 2008, p. 103)

Já no ano de 2010 foi criada a Opera Village, obra de Diébédo Francis Kéré, em uma área de 12 hectares localizada na cidade de Laongo, em Burkina Faso. Seu programa consistia em uma ópera, uma escola para 500 crianças, um protótipo de casa e um posto de saúde.

O principal destaque dessa obra para o trabalho se dá pela utilização de uma cobertura curva e elevada, garantindo ventilação entre o volume e a cobertura e, assim, maior conforto térmico aos usuários.

Figura 22 Sequência de imagens da Opera Village

Fonte: Arquitectura Viva. Disponível em: <https://arquitecturaviva.com/works/ opera village 6>. Acesso em 30 de maio de 2022.

44

2.1. ESTRATÉGIAS BIOCLIMÁTICAS APLICÁVEIS

Tabela 1 Estratégias bioclimáticas aplicáveis

45

A partir dos estudos de caso exemplificados anteriormente, pôde-se observar e analisar diferentes estratégias bioclimáticas utilizadas nas obras, e que são aplicáveis no trabalho em questão. Essas estratégias englobam tanto questões projetuais, como aproveitamento de tecnologias dos materiais e peças utilizadas.

Inicialmente, é de extrema importância realizar estudos de implantação para determinação e uso da melhor orientação solar para o projeto, além do estudo da ventilação natural para aplicação da ventilação cruzada, por exemplo. Também são utilizadas diferentes formas de fechamento, como painéis ventilados para vedação, e cobertura elevada para maior conforto térmico da edificação, que são pontos interessantes a serem implementados na etapa de projeto.

Em relação à umidade e ao uso do material madeira, é há a estratégia da soltura da edificação do solo, para proporcionar ventilação sob o piso e não prejudicar o material. Isso é feito com uso de estruturas pontuais, como mostrado em algumas obras.

46

3. CAPÍTULO 3 | CONTEXTO DE INSERÇÃO DO TRABALHO - ADAPTAÇÕES TEMÁTICAS

O presente trabalho terá como área de simulação de implantação a região do norte do estado de Minas Gerais caracterizada pelo déficit de ofertas de cursos técnico-profissionalizantes em locais próximos, assim como, por serem regiões com pouca diversificação de serviços com população reduzida. Tais regiões puderam ser observadas nos mapas apresentados no capítulo 1, e também foram analisadas conforme seus potenciais econômicos e características físicas e sociais.

3.1. DIRETRIZES E ESCOLHA DAS CIDADES PARA SIMULAÇÕES DE IMPLANTAÇÃO

Para realizar a escolha das cidades a serem trabalhadas como primeiras simulações de implantação do projeto, foi determinada uma quantidade de 3 cidades, para garantir diferentes características e diretrizes projetuais, na intenção de evidenciar o caráter flexível da proposta e eficiência do sistema construtivo em questão. Buscou se, inicialmente, selecionar cidades de caráter urbano e também de caráter rural, para trabalhar diferentes cenários de cursos a serem ofertados. Em sequência, buscou se trabalhar também com cidades de populações próximas em quantidade, e com características econômicas e geográficas diferenciadas, para realizar a implantação do projeto da melhor forma em cada local. O Brasil parece experimentar, nas últimas décadas, a mudança do padrão ocupacional e produtivo de suas áreas rurais. Agricultores sofrem o processo que é denominado na sociologia de "diferenciação social do campesinato", que transforma poucas pessoas em pequenos empresários rurais e leva a maioria a uma espécie de migração forçada em busca de alternativas de sobrevivência nas grandes cidades ou em suas proximidades. (MATOS, 2004, p. 12)

47

Tendo em vista o vínculo econômico social do trabalho, as três diferentes cidades do estado de Minas Gerais que foram selecionadas para simulação de implantação do projeto, experimentação e exemplificação comparativa, foram: Almenara, Manga e Ubaí. A partir de suas características elencadas a seguir, pode se entender as condicionantes projetuais e assim as diferentes adaptações dos módulos propostos.

Tabela 2 Diretrizes de escolha das cidades para simulação de implantação

Fonte: elaborada pela autora com base em dados fornecidos pelo IBGE. Disponível em: <https://cidades.ibge.gov.br/>. Acesso em 31 de março de 2022.

48

ALMENARA – MG

O município de Almenara é situado no interior de Minas Gerais, localizado no Vale do Jequitinhonha, às margens do Rio Jequitinhonha. Possui uma população em torno de 40.000 habitantes e conta com faculdades e Instituto Federal, porém não possui unidades de SENAC ou SENAI. A sua economia se baseia em pecuária, artesanato e, recentemente, recebeu a empresa de mineração Magnesita S.A., além de redes de lojas. Entretanto, após o ano de 1995, a cidade entrou em decadência pela falta de geração de renda com a pecuária extensiva. Possui um IDH de 0,642 (médio).

Figura 23 Localização do município de Almenara

Fonte: Wikipedia. Disponível em: <https://pt.wikipedia.org/wiki/Almenara>. Acesso em: 15 de março de 2022.

49
50

Figura 24 Características climáticas de Almenara

Fonte: Projeteee. Disponível em: < http://www.mme.gov.br/projeteee/dados-climaticos/>. Acesso em 23 de maio de 2022.

A partir dos gráficos acima pode-se observar as características climáticas do município de Almenara, incluindo temperaturas médias, chuvas, umidade relativa e ventos predominantes. Além de possibilitar compreender o território a ser trabalhado, tais dados auxiliam a concepção do projeto, visto que para trabalhar com a madeira é necessário promover ventilação e estanqueidade à água, promovendo assim a durabilidade do material.

51

A partir dos dados levantados, entende-se que Almenara possui umidade relativa alta, com grandes chuvas nos meses de janeiro, abril e outubro e ventos predominantes do Leste, pontos essenciais para estudo do projeto no local e uso de estratégias bioclimáticas relevantes.

MANGA – MG

O município de Manga é situado no semiárido mineiro, no alto médio vale do Rio São Francisco, e possui uma população média de 19.000 habitantes. A cidade tem história indígena e surgiu como arraial na época do bandeirismo, conta com a Cachoeira do Japoré, onde o rio corre entre pedras e matas nativas.

Manga não possui faculdades ou unidades de SENAC ou SENAI, e sua economia conta com turismo local, nos parques naturais e festas típicas. Possui um IDH de 0,603 (médio).

Figura 25 Localização do município de Manga

Fonte: Wikipedia. Disponível em: <https://pt.wikipedia.org/wiki/Manga_(Minas_Gerais)>. Acesso em: 22 de março de 2022.

52
53

Figura 26 Características climáticas de Manga

Fonte: Projeteee. Disponível em: < http://www.mme.gov.br/projeteee/dados climaticos/>. Acesso em 23 de maio de 2022.

A partir dos gráficos acima pode se observar as características climáticas do município de Manga, incluindo temperaturas médias, chuvas, umidade relativa e ventos predominantes. Entende se que Manga possui umidade relativa muito alta, com grandes chuvas em outubro e seca entre maio e setembro, além de ventos predominantes de noroeste e leste.

54

UBAÍ

O município de Ubaí é localizado no norte de Minas Gerais, pertencente à microrregião de Montes Claros. Sua população média é de 13.000 habitantes, entretanto possui caráter rural, contando com 30 comunidades em sua zona rural.

A economia da cidade se baseia na extração de carvão vegetal, pecuária e agricultura, e a cidade possui um IDH de 0,651 (médio).

Figura 27 Localização do município de Ubaí

Fonte: Wikipedia. Disponível em:<https://pt.wikipedia.org/wiki/Uba%C3%AD>. Acesso em: 15 de março de 2022.

55
56

Figura 28 Características climáticas de Ubaí

Fonte: Projeteee. Disponível em: < http://www.mme.gov.br/projeteee/dados climaticos/>. Acesso em 23 de maio de 2022.

A partir dos gráficos acima pode-se observar as características climáticas do município de Ubaí, incluindo temperaturas médias, chuvas, umidade relativa e ventos predominantes. Entende-se que Ubaí possui umidade relativa muito alta, com grandes chuvas em dezembro e janeiro, e seca entre maio e setembro, além de ventos predominantes de sul e leste.

57

3.2. CARACTERIZAÇÃO DO USUÁRIO

Entendendo os usuários do projeto como estudantes de cursos técnico-profissionalizantes, estes são caracterizados como: jovens a partir do segundo ano do ensino médio (entre 15 e 16 anos), com opções de realização do curso concomitante com o ensino médio, sendo aulas de manhã e curso à tarde ou vice versa, ou realização do curso subsequente ao ensino médio, realizado logo após a conclusão do mesmo.

3.3. PROGRAMA BASE E ADAPTAÇÕES

CONTEXTUAIS

A partir das diferentes cidades escolhidas para simulação da implantação do projeto e do estudo dos usuários contemplados por ele, pôde-se criar um programa distinto para cada um dos municípios, com indicações de cursos profissionalizantes que melhor se adequassem à economia local e suas possibilidades, visando a criação de turmas com 12 a 18 alunos. Dessa forma, foi criado um programa base para as edificações, contendo ambientes essenciais para uma sede de cursos profissionalizantes, como: administração, almoxarifado, recepção, banheiros, área de convivência, sala para aulas teóricas, sala para aulas práticas, laboratórios específicos para determinados cursos, e área de serviços para apoio. Poderão ser inseridos também, ambientes além do programa base proposto, como biblioteca e espaços digitais.

58

Figura 29 Gráfico do programa base do projeto autora, 2022

59

Já em relação aos cursos que serão ofertados em cada cidade, entende-se que os locais escolhidos possuem diferentes contextos econômicos, culturais e sociais. Assim, levando em consideração esses parâmetros e as potencialidades de cada local, abaixo estão descritos os programas selecionados para cada cidade:

ALMENARA

Cursos voltados para as áreas de administração, design de produto, marketing e alimentos, visando ampliar as atividades econômicas já trabalhadas no município, que englobam artesanato e pecuária;

MANGA

Cursos voltados para as áreas de administração, marketing, turismo e design de produto, visando ampliar as atividades econômicas já trabalhadas no município, que são voltadas para os parques e locais turísticos da região, além do artesanato;

UBAÍ

Figura 30 Localização das cidades de implantação

autora, 2022

Cursos voltados para as áreas de administração, marketing, alimentos e maquinários, visando ampliar as atividades econômicas já trabalhadas no município, voltadas para pecuária e agronomia e englobar títulos nas áreas de manutenção e conserto de máquinas agrícolas. Nessa cidade em específico, há a particularidade da oferta de cursos voltados para maquinários, utilizando a infraestrutura disponível em unidades móveis do SENAI.

60

Figura 31 Diagrama matriz de fluxos autora, 2022

61

Em relação aos cursos oferecidos e suas características, o técnico em administração dá suporte às atividades de planejamento, gestão, avaliação e controle dos recursos humanos, materiais, tecnológicos ou financeiros de uma organização.

É um profissional bastante ligado ao trabalho em escritório e demais setores administrativos. Algumas de suas atividades são: atuação na área de compras e vendas; intercâmbio de mercadorias e serviços; execução de áreas fiscal e financeira, entre outras. Durante o curso, são realizadas disciplinas como: matemática financeira, gestão empresarial, finanças e contabilidade.

O objetivo do curso técnico em alimentos é habilitar o profissional para trabalhar com tudo o que envolve o processamento de alimentos de origem animal e vegetal. Aprendem formas de otimizar as máquinas e implementos, além da análise sensorial, controle de insumos e produtos, controle fitossanitário, distribuição e comercialização, relacionando com o desenvolvimento das soluções de tecnologia da produção de alimentos.

O curso técnico em marketing tem o objetivo de capacitar o aluno com conhecimentos teóricos e práticos em diversos setores, como no marketing digital, operacional, cultural, esportivo, político, social, antropólogo, entre outros. Algumas disciplinas presentes no curso são: comunicação mercadológica, empreendedorismo, gestão de vendas, e plano de comunicação.

O profissional técnico em turismo trabalha a capacidade de comunicação e expressão necessárias ao exercício das atividades de Guia de Turismo, considerando o conhecimento científico, bem como os novos recursos de tecnologia da informação. Utiliza instrumentos de comunicação, localização, técnicas de condução, de interpretação ambiental e cultural na atuação profissional.

Foram organizados ambientes voltados às aulas práticas e salas voltadas às aulas teóricas, de forma a serem utilizados por todos os alunos dos cursos oferecidos na unidade, em diferentes horários ou turnos de aulas.

62

4. CAPÍTULO 4 | PROPOSIÇÃO PROJETUAL

A partir da escolha das cidades no capítulo 3, foi realizada a escolha dos terrenos de inserção do projeto, sendo um terreno escolhido em cada uma delas. A busca pelos terrenos foi norteada pelas seguintes diretrizes: topografias, geometrias, acessos, áreas e demandas diferentes entre eles, visando a utilização dessas características como desafios de implantação do projeto em cada localidade. No município de Almenara (fig. 32) foi escolhido um terreno de 1.118,33 m², localizado no setor oeste da cidade, em uma importante via de acesso à mesma, a Rua Dr. Sábino Silva. Situado próximo à Escola Municipal, seu perímetro conta com 15,50 m de testada, 24,80 m de fundo, 55,50 m de comprimento e um lado inclinado, gerando então um terreno de geometria trapezoidal (fig. 33).

Figura 32 Município de Almenara autora, 2022

63

Figura 33 Situação Terreno Almenara autora, 2022

Figura 34 Entorno Terreno Almenara autora, 2022.

Em relação a outros desafios do terreno, por estar localizado entre edificações escolares e ginásio, há a presença de ruídos que devem ser levados em consideração durante a concepção do projeto. Na figura 33, observa-se o terreno e suas faces marcadas por cores. De amarelo a vermelho, há a ordem crescente de fachadas favoráveis a desfavoráveis em relação à insolação.

64

Figura 35 - Vista terreno Almenara

Fonte: Google Maps Street View.

Na imagem acima (fig. 35) pode se observar o terreno escolhido, que é delimitado pelo muro de divisa com a construção ao lado e está situado ao lado do ginásio da Escola Municipal de Almenara, construção amarela ao lado direito da imagem. Ao fundo, encontra-se o edifício da Escola Municipal de Almenara que acomoda as salas de aula.

Entendendo as características do terreno, pôde-se iniciar as propostas projetuais de implantação no mesmo, e definir pontos de acesso demonstrados na fig. 37.

65

Figura 37 Planta terreno Almenara com acessos autora, 2022. Como é possível observar nas figuras 33 e 35, o terreno escolhido para simulação de implantação na cidade de Almenara possui apenas uma de suas laterais voltada para a via, e as outras três localizadas no meio de quadra. Dessa forma, os meios de acesso ficam limitados à Rua Dr. Sábino Silva.

No Corte AA abaixo (fig. 36), pode-se observar o perfil natural do terreno, que será mantido ao longo da simulação de implantação do projeto no mesmo.

Figura 36 Corte AA autora, 2022.

66

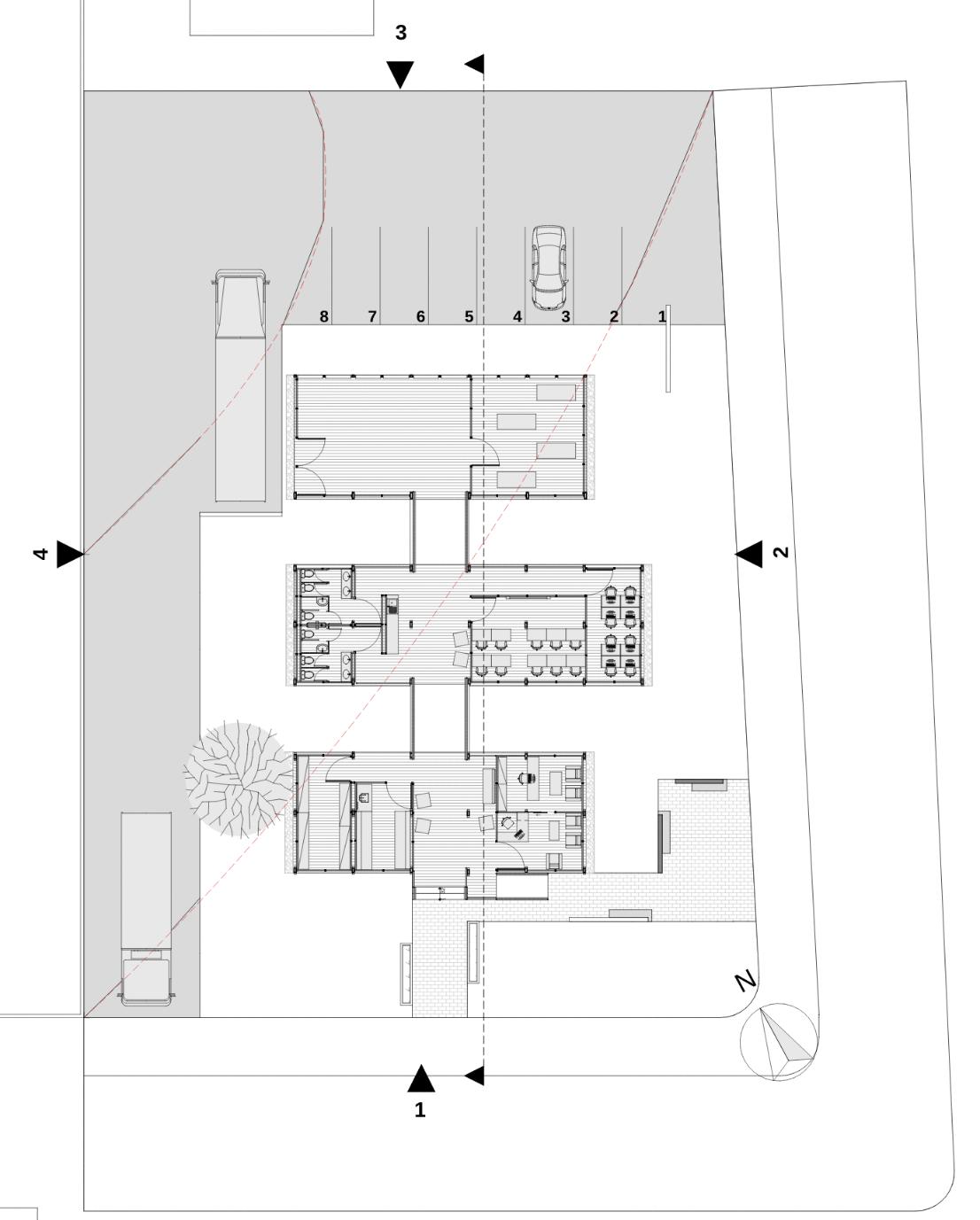
Já o terreno escolhido no município de Manga (fig. 38) possui características diferentes do anterior. Ele é localizado no setor leste da cidade, próximo ao terminal rodoviário e ao parque municipal, em uma área de uso misto, porém predominantemente residencial (fig. 39).

Figura 38 Município de Manga autora, 2022

Figura 39 Entorno terreno de Manga autora, 2022.

67

Com área de 721,14 m², o terreno possui uma geometria retangular e seu perímetro conta com laterais de 38 e 19 metros. Entendendo as características do terreno, pôde se estudar as formas de implantação no mesmo, a partir das vias de acesso, visto que este se encontra em uma esquina, no cruzamento entre as ruas Olávo Bilac e Miguel Couto.

Na figura 40 ao lado, observa se o terreno em questão, com a marcação dos ventos predominantes e suas fachadas marcadas com cores que representam a insolação em cada uma delas. A partir desses aspectos são então pensados os diferentes ambientes do projeto.

68
Figura 40 Situação Terreno Manga autora, 2022.

Figura 41 Sequência de imagens do terreno de Manga

Fonte: Google Maps Street View.

Nas figuras 42 e 43 pode-se observar as características topográficas do terreno de Manga, assim como as formas de acesso escolhidas para o projeto.

Figura 42 - Planta terreno Manga com acessos autora, 2022.

69

Figura 43 Corte BB autora, 2022.

O terceiro terreno escolhido para simulação de implantação do projeto, localizado no município de Ubaí (fig. 44), conta com uma área de 1.617,09 m². Ele está inserido no setor Sudoeste da cidade e próximo ao terminal rodoviário, sendo estrategicamente posicionado.

Figura 44 Município de Ubaí autora, 2022.

70

A geometria desse terreno é trapezoidal, porém mais amplo que o de Almenara, visto que seu perímetro conta com 34,88 m de frente, 32,51 m de fundo, e lados de 47,94 m e 47,89 m de comprimento. Entendendo as características do terreno, pôde-se elencar proposições de acesso no mesmo, a partir da Rua Lindolfo Cardoso e da Avenida Canoas, visto que este se encontra em uma esquina.

Na figura 45 ao lado pode se observar a marcação dos ventos predominantes no terreno além das fachadas de maior e menor insolação, de acordo com sua localização. Esses são aspectos de extrema importância para a inserção de aberturas e transparências no projeto, além de planejar espaços de longa permanência.

Figura 45 Situação Terreno Ubaí autora, 2022.

71

Nas imagens acima, observa se as vias de acesso ao terreno, que é amplo e bem localizado no município. Entretanto, a escola municipal ao lado, que juntamente com o terminal rodoviário trás movimento para a área, também é fonte de ruídos, sendo um dos desafios a serem trabalhados no projeto.

Já nas figuras 47 e 48, estão demarcados o terreno com seus acessos planejados para um primeiro estudo, além dos usos que se estabelecem em seu entorno imediato.

72
Figura 46 Sequência de imagens do terreno de Ubaí Fonte: Google Maps Street View.

Figura 47 Planta terreno Ubaí com acessos autora, 2022.

Figura 48 Entorno terreno Ubaí autora, 2022.

73

Nas figuras 47 e 49 observa-se a topografia original do terreno, ponto determinante para a implantação do projeto e que será mantido a partir das adequações do projeto no local.

Figura 49 Corte CC autora, 2022. Entendendo as diferentes características de cada terreno escolhido, partiu se então para a etapa de organização de condicionantes e diretrizes projetuais, a partir de aspectos analisados nos estudos de caso e passíveis de implementação, e soluções projetuais utilizadas nos estudos de caso e que serão incorporadas ao projeto deste trabalho. Segundo Renzo Piano, “Há uma constante relação entre a arquitetura e a arte, que não se expressa apenas nas formas e nas razões do objeto arquitetônico, mas também, e talvez sobretudo, na relação com o ambiente, com a água, com a luz e até com o vento.” (PIANO, 2011, p. 12)

Dessa forma, pontos como flexibilidade, modularidade, busca pela utilização de iluminação natural, além das outras condicionantes elencadas na tabela 3, tornam-se pontos chave do projeto.

In a built environment that is now affected more and more by rapid and dramatic change, ecological considerations, and social and cultural impact, a form of architecture that is flexible, lightweight in construction, has minimal impact on sensitive sites, and is responsive to new technological and aesthtetic opportunities has great value. (KRONENBURG, 2008, p. 7)

74

Tabela 3 Condicionantes projetuais Fonte: Elaborada pela autora, 2022

Tabela 4 - Diretrizes projetuais autora, 2022.

75

4.1. DESENVOLVIMENTO DO ESTUDO PRELIMINAR

A partir das análises dos terrenos mostrados anteriormente e das sugestões de programa para cada uma das cidades realizadas no capítulo 3, foram realizados os primeiros estudos referentes ao módulo base do projeto e às formas de implantação do mesmo em cada local.

Figura 50 Sequência de croquis módulo base autora, 2022.

Iniciando pelo módulo base do projeto, foi pensado uma modulação de 3 x 3 m visando conforto no momento da montagem da construção pré fabricada. Como observa se na fig. 50, foram realizados croquis de diferentes soluções estruturais, como pular e viga, treliça e pilar em “T”, visando entender a melhor tipologia a ser utilizada no projeto.

76

Assim como a modulação arquitetônica, na etapa de estudo inicial do projeto, os terrenos de Almenara, Manga e Ubaí foram divididos em grelhas de 3 x 3 m para uma orientação inicial de formas de implantação, como observa se nas figuras a seguir:

Figura 52 Croqui implantação terreno Manga autora, 2022.

Figura 51 Croqui implantação terreno Almenara autora, 2022.

77

Figura 53 Croqui implantação terreno Ubaí autora, 2022.

Como é possível observar nas figuras, os módulos base de 3 x 3 m foram pensados para serem acoplados de acordo com a necessidade de cada ambiente e também possibilitando ajustes ao longo de seu uso. Dessa forma, podem ser realizadas esperas estruturais no momento da construção para futuras ampliações do espaço útil.

Juntamente com os estudos dos ambientes direcionados aos cursos profissionalizantes, também foi pensada a circulação para cada simulação de implantação nos terrenos. Entendendo a circulação como ponto norteador da implantação do projeto em cada terreno e também como norteadora do uso do edifício pela população, esta deveria ser contrastante com os módulos projetados. Dessa forma, na primeira etapa do trabalho, a circulação foi pensada com uma estrutura diferente do restante do projeto.

Na fig. 54 observa-se um estudo inicial da conexão dos módulos base com a marcação da circulação entre eles.

78

Assim, o módulo base inicial, pensado para a primeira etapa do trabalho, foi concebido com uma estrutura metálica em pilares e vigas de aço, ambos de seção I com dimensões 10 x 10 cm e 10 x 15 cm respectivamente, seguindo as indicações de Yopanan Rebello (fig. 55). Essa estrutura foi distribuída ao longo das diferentes implantações em forma de grelha de dimensões 3 x 3 m, dimensão final do módulo em questão.

Figura 54 Croqui inicial de estudo do projeto autora, 2022.

Figura 55 - Gráficos de dimensionamento de viga e pilar de aço

Fonte: Rebello, Yopanan. Bases para projeto estrutural na arquitetura, São Paulo, Zigurate Editora, 2007.

79

Figura 56 Modelagem módulo base do projeto autora, 2022.

Figura 57 Gráfico de dimensionamento de viga vagão

Fonte: Rebello, Yopanan. Bases para projeto estrutural na arquitetura, São

Paulo, Zigurate Editora, 2007.

Além dos pilares e vigas em aço, também foi utilizada a viga vagão para as edificações contempladas com 2 ou mais módulos acoplados, necessitando vencer vãos maiores no entramado de sustentação. Seguindo também as indicações de Rebello quanto às dimensões da viga vagão, esta será utilizada para vãos de 6 m e terá dimensão de 10 x 30 cm (fig. 57).

80

Já as vedações, inicialmente foram projetadas apenas em painéis de madeira, englobando tanto painéis inteiriços quanto painéis de esquadrias. Com dimensões de 1,5 x 3,0 m, estes foram inseridos diretamente nos vãos formados pela junção pilar e viga, mantendo a etapa de montagem da construção seca e rápida.

Os painéis de esquadrias mencionados foram pensados com três variantes: painéis em madeira com portas de correr em vidro; painéis em madeira com esquadrias pivotantes em madeira; painéis em madeira com janela basculante em vidro e aço. Além desses painéis, ainda com foco em aproveitar ao máximo a insolação e a ventilação natural, também houve a utilização de módulos metálicos de janelas refletoras de luz passíveis de serem acopladas nos painéis desejados, também chamadas de janelas salientes.

Outra oportunidade de aproveitamento de luz natural foi realizada com a utilização de canhões de luz, instalados sobre os ambientes que receberem menor insolação, e com foco em iluminar o ambiente sem gerar ofuscamento.

81
Figura 58 Módulos duplo e quádruplo autora, 2022.

Visto que o projeto em questão tem como objetivo ser implantado em diferentes localidades, em todos os estudos de projeto realizados, os módulos podem ser alocados seguindo a melhor insolação do terreno. Para isso, poderão ser realizadas substituições de painéis de vedação e esquadrias, instalação das janelas de reflexão de luz e dos canhões de luz, além da geração de ventilação cruzada também com a escolha dos painéis de vedação.

Figura 59 - Croquis janela saliente e canhão de luz autora, 2022 Como representação do resultado do estudo preliminar do projeto, encontram se a seguir imagens das simulações de implantação do projeto realizado nos terrenos de Almenara, Manga e Ubaí, respectivamente.

82

Figura 60 Sequência de imagens projeto Almenara autora, 2022.

83
84
Figura 61 Sequência de imagens projeto Manga autora, 2022
85
Figura 62 Sequência de imagens projeto Ubaí autora, 2022.

4.2. DESENVOLVIMENTO DO PROJETO

Com a continuação do trabalho e aprimoramento dos projetos realizados nos terrenos de Almenara, Manga e Ubaí, as formas de implantação nos terrenos escolhidos foram reestruturadas, buscando melhor utilização de esquinas e topografias favoráveis para locação dos acessos principais.

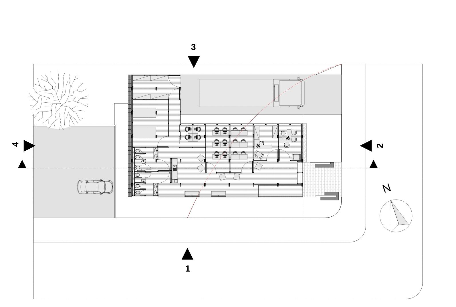
Iniciando com a implantação no terreno de Almenara (fig. 63), esta foi planejada a partir de sua via de acesso, a Rua Dr. Sábino Silva, a qual conta com com um acesso principal de pedestres, um acesso para veículos de carga e descarga, além de um pequeno estacionamento de apoio à edificação.

86

Figura 63 Implantação e vias de entorno Almenara autora, 2022.

87

Na figura 64, pode se observar os diferentes ambientes organizados de acordo com o programa elaborado para a cidade de Almenara, além das áreas abertas de acessos, convivência e descanso, que seguem a topografia natural do terreno.

Ao adentrar a edificação, o usuário tem acesso à recepção e à administração. Em seguida, há a primeira sala, destinada a aulas teóricas, e o almoxarifado, que possui uma abertura externa para a área de carga e descarga.

Após a passarela, o usuário tem acesso à copa e aos banheiros, que formam uma área de apoio e acomodam os núcleos hidráulicos da edificação. Estes fazem a ligação direta do reservatório aos equipamentos hidrossanitários, garantindo maior facilidade de montagem e flexibilidade de implantação.

Seguindo, há a segunda sala, de maior área, destinada a aulas teóricas de maior número de alunos, e duas salas destinadas a aulas práticas, localizadas na face posterior do terreno. Essas salas foram planejadas para serem inseridas nesse local devido à proximidade da escola municipal e seus ruídos.

Figura 64 Planta Almenara com layout autora, 2022.

88

Figura 65 Corte esquemático de Almenara autora, 2022 Figura 66 Vistas 1 e 3 de Almenara autora, 2022

89
90
Figura 67 Vistas 2 e 4 de Almenara autora, 2022

A implantação do projeto no terreno de Manga (fig. 68) se deu a partir de sua esquina, focando o acesso principal de pedestres e de carga e descarga pela Rua Miguel Couto, e o estacionamento tendo acesso pela Rua Olávo Bilac.

Figura 68 Implantação e vias de entorno Manga autora, 2022

Observando a figura 69, pode-se entender a organização espacial do projeto de Manga, com os diferentes acessos e ambientações internas.

Ao adentrar a edificação, o usuário tem acesso à recepção e à administração do local. Em seguida, encontram se duas salas voltadas para aulas teóricas.

Seguindo pela circulação, o usuário tem acesso à copa, área de convívio e sanitários, onde se encontram os núcleos hidráulicos da edificação.

Por fim, há uma pequena sala de estudos próxima à sala destinada a aulas práticas, e o almoxarifado que tem uma abertura direta para a área de carga e descarga, externa.

Figura 69 - Planta Manga com layout autora, 2022

92

Figura 70 Corte esquemático Manga autora, 2022

Figura 71 Vistas 2 e 4 Manga autora, 2022

93
94
72 Vistas 1 e 3 Manga
2022
Figura
autora,

Como terceira simulação de implantação do projeto, temos o terreno na cidade de Ubaí (fig. 73). Localizado em uma importante esquina da cidade, sua implantação conta com dois acessos de pedestres, sendo um na Rua Lindolfo Cardoso e outro pela Avenida Canoas. Também conta com dois acessos para veículos de carga e descarga nessas duas vias, sendo o da Rua Lindolfo Cardoso destinado aos veículos com carga do almoxarifado, e o da Avenida Canoas destinado às unidades móveis do SENAI que ofertem cursos técnico profissionalizantes no local, e também ao estacionamento de apoio.

95

Figura 73 Implantação e vias de entorno Ubaí autora, 2022.

96

A figura 74 possibilita observar a espacialidade do projeto de Ubaí, com a criação de três edificações interligadas, que setorizam os usos do centro profissionalizante.

Os acessos principais para pedestres estão localizados próximos à esquina, juntamente à praça que foi criada como uma gentileza urbana no local.

Ao adentrar a edificação, o usuário tem acesso à recepção e à administração, localizadas no primeiro bloco. Nele, também estão alocados o almoxarifado e o laboratório, visando manter próximos os ambientes que necessitem de maior supervisão e organização interna.

No segundo bloco estão alocadas duas salas de aulas teóricas, de diferentes áreas para acomodar turmas de variados tamanhos, além dos banheiros e da copa.

Já o terceiro e último bloco conta com duas salas voltadas para aulas práticas, e possui também uma abertura exclusiva para o pátio externo de aulas práticas que são fornecidas pelas Unidades Móveis do SENAI.

Figura 74 Planta com layout Ubaí autora, 2022

97

Figura 75 Corte esquemático Ubaí autora, 2022

Figura 76 Vistas 1 e 3 Ubaí autora, 2022

99
4
Figura 77 Vistas 2 e
Ubaí autora, 2022

Foi repensado também o sistema estrutural a ser utilizado no projeto, perpassando estudos de viabilidades a partir de facilidade de montagem, leveza, flexibilidade de usos. Voltando às ideias iniciais do trabalho, haviam três tipologias diferentes acerca da configuração estrutural pensada para o projeto, o módulo “caixa”, o pórtico e o pilar Y. Para a continuação do trabalho, foram então estudadas essas três tipologias buscando a que melhor se adaptasse aos ideais do projeto, suas condicionantes e diretrizes.

Tabela 5 Comparação entre sistemas estruturais estudados autora, 2022

100

Na primeira etapa do trabalho foram utilizados pilares e vigas metálicos formando uma configuração de “caixa” modular com dimensões de 3 x 3 m. Porém, nesta etapa final, são utilizados pilares em Y e vigas com prolongamentos ambos metálicos, e este último, para utilização em ambientes que necessitem de maiores vãos.

O sistema estrutural continua seguindo a modulação de 3 x 3 m pensada no início de estudo do projeto.

Os pilares em Y, como mostrados nas figuras a seguir, podem ser utilizados de diversas formas ao longo da concepção do projeto, marcando circulações, possibilitando a flexibilidade interna e o prolongamento de vãos, a partir do uso de vigas maiores.

Os pilares em formato Y consistem em pilares de chapas metálicas dobradas, com seção descontínua e com junção de vigas também de seção descontínua, que são acopladas em seu topo, com angulação específica. Essa forma de concepção da estrutura garante maior facilidade de transporte e mais leveza durante a sua montagem.

Figura 78 Configurações de uso do pilar Y autora, 2022

101

Figura 79 – Configuração do entramado do piso elevado autora, 2022

A mudança estrutural de pilar e viga (módulo “caixa”) para pilar em Y possibilitando a formação de pórticos e grandes vãos garante mais flexibilidade para o projeto, tanto em relação à implantação quanto à organização interna.

Nas imagens, além dos pilares em Y que estão em evidência, temos, em azul, as vigas que os conectam e garantem estabilidade ao sistema. Em amarelo estão as vigas de prolongamento, que são duplas e se acoplam nos pilares em Y “abraçando os”. Em vermelho estão os pilares de apoio das vigas duplas, também “abraçados” por elas. E, em roxo, estão as vigas de conexão desses pilares, que finalizam o sistema.

A figura 79 exemplifica o entramado utilizado para a sustentação do piso. Este é composto por vigas metálicas vazadas que, além de exercerem seu papel estrutural, também garantem maior leveza no momento da montagem e seus vãos possibilitam a passagem de infraestrutura, como um piso elevado. Dessa forma, todas as edificações planejadas com esse sistema projetado têm sua configuração leve, de fácil montagem e organização de instalações de infraestrutura pelo piso elevado.

As ligações de água, esgoto, energia elétrica e telefone deverão ser solicitadas junto às respectivas concessionárias de cada localidade, devendo ser executadas conforme padrão municipal. As águas pluviais serão captadas em rede independente à rede de esgoto, por meio de grelhas de drenagem inseridas nos terrenos, e poderão ser utilizadas para irrigação, ou deverão ser lançadas em boca de lobo próxima ao lote de implantação.

102

Figura 80 Painéis de vedação autora, 2022

Em relação aos painéis de vedação, estes também sofreram algumas alterações nessa etapa do trabalho, como pode ser observado na figura acima. Eles possuem 6 variações, sendo: painel de vedação translúcido, painel translúcido com porta, painel opaco de vedação, painel opaco com porta, painel com veneziana grande e painel com veneziana pequena. Os painéis possuem dimensões de 1,5 x 2,5 m e são compostos por peças de madeira, osb, alumínio e telha translúcida ondulada. Eles são utilizados nos projetos de acordo com a orientação solar, a ventilação e os usos de cada ambiente.

Será utilizada a telha sanduíche termoacústica para as coberturas e o painel wall para as lajes de vedação horizontal dos ambientes, garantindo isolamento ideal para a execução das atividades em cada ambiente, e conforto aos usuários.

103

Utilizada nos painéis translúcidos para trabalhar as transparências

Figura 83 – Telha translúcida

Fonte: toptelhas

Utilizada nas coberturas

Figura 82 Telha sanduíche termoacústica

Fonte: acoplano

Utilizado nas lajes, como vedação horizontal

Figura 81 Painel wall

Fonte: artesana

No que diz respeito aos espaços educativos e materialidade, vários estudos realizados atualmente estabeleceram uma relação direta entre o espaço interior e a saúde e conforto de quem o habita. Isso, uma vez que os seres humanos experimentam inatamente um sentimento de conexão com a natureza conhecido como "Biofilia", o que tem demonstrado que a percepção dos ambientes naturais desperta positivamente nas pessoas respostas fisiológicas, assim como o uso de materiais de origem natural na construção de edificações. A capacidade higroscópica da madeira permite também regular a humidade dos ambientes interiores, mantendo a num intervalo mais saudável.

104

4.3. RESULTADOS

Como fruto do trabalho, os projetos de construções modulares mistas em aço-madeira direcionadas ao ensino técnicoprofissionalizante foram realizados gerando centros técnicos-profissionalizantes para as cidades de Almenara MG, Manga MG e Ubaí MG. Seguindo as diretrizes e condicionantes projetuais apresentadas, o objetivo de concepção de uma arquitetura flexível, leve, transportável, de fácil montagem, e com implantação em diferentes topografias foi alcançado.

O ensino técnico profissionalizante é concebido como um espaço flexível, experimental, com um grande vínculo à sua localização, uma vez que trabalha com a região, suas matérias primas, sua indústria e fundamentalmente com o conhecimento local. Assim, a evidência do sistema construtivo, realizada a partir das transparências e vazios em cada implementação do projeto é interessante pois estimula o pensamento lógico e o vínculo entre teoria e prática.

Cada cidade incluída nesse trabalho terá uma relação diferente com o projeto em questão, dependendo de suas características próprias que envolvem cultura, economia, clima e também dimensão de população e territorial. Porém, entende-se que a arquitetura foi trabalhada buscando evidenciar as potências de cada local, ampliando suas possibilidades de ensino, a inclusão da população no mercado de trabalho, além da realização de pesquisas e estudos sobre os materiais trabalhados, que atualmente não possuem ampla bibliografia.

105

ALMENARA

106
Figura 84 Resultados Almenara Autora, 2022
107
108
109
110
Figura 85 Resultados Manga autora, 2022
MANGA
111
112
113
Figura 86 Resultados Ubaí autora, 2022 UBAÍ
114
115
116

5. CONSIDERAÇÕES FINAIS

O trabalho de conclusão de curso aqui apresentado utilizou da oportunidade de ampliar os estudos de aplicações possíveis do sistema misto com madeira e aço no Brasil em edificações voltadas para cursos técnico-profissionalizantes. Teve como resultado a concepção do projeto de uma arquitetura modular e flexível em aço e madeira com demonstração de implantações em três diferentes cidades do estado de Minas Gerais: Almenara, Manga e Ubaí, evidenciando a técnica e também a poética dos materiais.

Inserido no debate sobre a experimentação construtiva, o presente trabalho teve como objetivo a realização de um projeto flexível para aprofundar os estudos de concepção estrutural e arquitetônica do tema em questão, evidenciando as diferentes possibilidades de aplicação e ampliação das edificações de acordo com as características de cada cidade escolhida e o programa organizado para ela.

Entendendo as diferentes categorias de cursos técnico-profissionalizantes apresentados anteriormente e as diretrizes projetuais elencadas, como mobilidade e flexibilidade, o trabalho também teve como objetivo a ampliação do projeto para utilização das unidades móveis do SENAI em consonância com o projeto proposto, utilizando a infraestrutura existente em cursos móveis fornecidos pela instituição para ampliar o fornecimento de cursos ao interior do estado de Minas Gerais.

Por fim, a partir da experimentação construtiva ao longo da concepção do projeto, entende-se que não é necessária a inserção de tecnologias específicas e mecanismos de alto investimento para ter uma arquitetura tecnológica e otimizada no âmbito do conforto, visto que isso pode ser alcançado por meio de estudos de projeto e escolha dos materiais, que podem contribuir para o vínculo do usuário com a arquitetura, como é o caso da madeira e do aço utilizados.

Segundo Kronenburg, “Where the building use is temporary, the siting of limited duration, and the impact transient, experimentation is as valuable for an innovative low tech building as it is for a high tech one.” (KRONENBURG, 2008, p. 14)

117

REFERÊNCIAS BIBLIOGRÁFICAS

- ADDIS, B. Edificação: 3000 Anos de Projeto, Engenharia e Construção. Porto Alegre: Boohman, 2009.

- BUCHANAN, P. Renzo Piano Building Workshop: Complete Works. V. 1-5. Phaidon Press Limited, New York, 2007. (primeira edição 1993).

DPA DIESTE Documents de Projectes d’Arquitectura. Publicación del Departament de Projectes Arquitectònics de la Universitat Politècnica de Catalunya (UPC). v. 15. Catalunya, 1999.

FIEMG. Senai FIEMG, 2022. Encontre seu curso. Disponível em: <https://www7.fiemg.com.br/senai>. Acesso em: 1 de fevereiro de 2022.

GOV.BR. Portal Brasileiro de Dados Abertos, 2022. EPT Educação Profissional Tecnológica. Disponível em: <https://dados.gov.br/dataset/ept educacao profissional e tecnologica>. Acesso em: 10 de janeiro de 2022.

- Jovens com formação técnica no ensino médio têm mais chances de emprego formal e evolução de carreira, diz estudo, G1, 2022. Disponível em: <https://g1.globo.com/trabalho e carreira/noticia/2022/03/14/jovens com formacao tecnica no ensino medio tem mais chances de emprego-formal-e-evolucao-de-carreira-diz-estudo.ghtml>. Acesso em: 15 de mar. de 2022.

- KRONENBURG, R. Flexible: Arquitectura que integra el cambio. Blume, 2007

- __________. Portable Architecture: Design and Technology. Basel, Birkhauser, 2008.

- Las estructuras desplegables de Pérez Piñero, Arquiscopio, 2012. Disponível em: <https://arquiscopio.com/las-estructuras-desplegaples-deperez pinero>. Acesso em 13 de março de 2022.

LOBATO, P. Minas tem 164 cidades onde população rural é maior que urbana. Jornal Estado de Minas, 2015. Disponível em: <https://www.em.com.br/app/noticia/gerais/2015/09/13/interna_gerais,687774/minas tem 164 cidades onde populacao rural e maior que urbana.shtml>. Acesso em: 14 de mar. de 2022.

118

MATOS, R. Urbano influente e rural não agrícola em Minas Gerais. Belo Horizonte, UFMG, 2004.

MULLER, D. Arquitetura ecológica. Editora SENAC, 2012.

NERVI, P.L. Lenguage arquitectónico. Buenos Aires. Facultad de Arquitectura y Urbanismo, 1951. ___________.

Construire Correttamente - Caratteristiche e Possibilità dele Strutture Cementizie Armate. 2ª Edizione, Editore Ulrico Hoepli Milano. Milan, 1965.

PIANO, R. Renzo Piano - A responsabilidade do arquiteto / conversas com Renzo Cassigoli. São Paulo: BEI Comunicação, 2011.

PIPPARD, A.J.S. The Experimental Study Of Structures. London: Edward Arnold & Co, 1947.

- PROUVÉ, J. Conversaciones con Jean Prouvé / Armelle Lavalou (ed.). Editorial Gustavo Gili, Barcelona, 2005.

- REBELLO, Y. Bases para projeto estrutural na arquitetura, São Paulo, Zigurate Editora, 2007.

- ROLAND, C. Frei Otto: Estructuras. Estudios y trabajos sobre la construcción ligera. Editora Gustavo Gili, Barcelona, 1965.

- ROLLET, P. L’architecture expérimentée à échelle grandeur. [abr. 2006]. Entrevistador: Nadie Hoyet. Grenoble.

SANTOS, D. Prefab Architecture. Loft Publications, 2010.

SEGUIN, P. The enemy of complacencies In: EDITION ENRICO NAVARRA & GALERIE JOUSSE SEGUIN Jean Prouvé. Turin, Italie: G. Canale & C. S.p.A., 1998.

SENAI. Portal SENAI SP, 2022. Cursos técnicos. Disponível em: <https://www.sp.senai.br/cursos/18/cursos tecnicos?menu=31>. Acesso em: 1 de fevereiro de 2022.

SULZER, P. Jean Prouvé, oeuvre complète. 1917 a 1984. Vol. 1, 2, 3 e 4. Basel : Birkhäuser Boston Berlin. 2008.

- TORROJA, E. Razon y ser de los tipos structurales. Madrid: Instituto Técnico de la Construcción e del Cemento, 1958.

119
120

Turn static files into dynamic content formats.

Create a flipbook
Issuu converts static files into: digital portfolios, online yearbooks, online catalogs, digital photo albums and more. Sign up and create your flipbook.
Construções modulares mistas em aço-madeira direcionadas ao ensino técnico-profissionalizante by Beatriz Costa - Issuu