Bayley Blyther Landscape Architecture Portfolio 2024

Page 1

Bayley Blyther LANDSCAPE ARCHITECTURE PORTFOLIO

Our plant selection process for the long border project was intricately linked to our theme of change and the passage of time. We curated a color palette that transitioned from dark, muted hues representing the “past” to clear whites and greens for the “present,” and vibrant, abstract colors for the “future.” Each plant choice was carefully considered to complement the narrative arc, creating a cohesive and immersive experience that

50m Key: Temporal Bloom Odyssey
St. James’ Square 1-2 FCH Campus Lawn 3-4 Barnwood Park, Gloucester 5 Magnolia Court, FCH 6 North Place, Cheltenham 7-8 Park Campus, University of Gloucestershire 9 Alney Island, Gloucester 10 “Look at the Lilies”, St. Aidan’s 11 RHS Tatton Park Garden Border 2024 12-13 14
1 Design Process

St. James’ Square Visualisations

During my first year at university, I was keen on improving how I presented designs while exploring new technologies. I used SketchUp to plan St. James’ Square in Cheltenham, incorporating existing buildings to give context to my design. Early on, I realized that designing in 3D was crucial for truly understanding the space. I also experimented with collages to make my visuals more engaging. Additionally, I applied basic drawing skills I learned to create cross-sections and axonometric views, which I then polished using Photoshop. My goal was to make viewers feel like they were right there in St. James’ Square.

4
Close
Lawn
Francis
Hall

Barnwood Park, Gloucester

In my second year, I undertook a comprehensive project focusing on a single site, starting with strategic sustainable design and progressing to detailed construction planning.

1st SEM: I developed a preliminary site layout and design proposal incorporating site engineering, hydrology, phytoremediation, sustainable materials, and vegetation strategies. Key exercises included creating a hydrological strategy with SUDs components, a mood board for sustainable hard materials, and a vegetation strategy featuring phytoremediation and edible plants.

2nd SEM: Building on this foundation, I focused on delivering detailed hard and soft landscape plans for a selected area of my design. This involved creating construction documents and technical drawings at a 1:200 scale, detailing materials, planting typologies, access arrangements, and water drainage. The goal was to refine my design with sustainable principles and demonstrate my construction detailing skills. The final deliverables showcased an integrated approach to sustainable landscape architecture, from strategic design to technical execution.

5 ECO CAFE PORTICO WOODLAND MEADOW WOTTON BROOK Plantingplanextract401 AD5604 Sustainable Technology 2 Barnwood Park & Arboretum General Arrangement Plan Bayley Blyther s4103145 10 20 30 16/02/2023 A0 1:200 101 Key: EXISTING TREE PROPOSED TREE GREEN ROOF AQUATIC PLANTS GRAVEL PATHWAY WILDFLOWER MEADOW CUSHION/ALPINE PLANTS WATER COIR ROLL WITH BRUSHWOOD FASCINES FRENCH DRAIN installed. Manufactured in the UK, from high quality mild steel, with a 20-micron galvanized zinc coating, topped with an electrostatically applied 110-micron powder coat and cured under extreme heat to create a hard-wearing skin that is paint. Reclaimed FSC® certified hardwood timber decking and walkway. Thickness (90mm), Width (125mm). Constructed on site drilled with 90mm long L-BohrFix® A4 Screws into 60mm x 125mm joists then screws. Joists are attached to 100mm x 100mm timber posts set into CP20 concrete foundations 150mm above ground level. Larch Timber Bollard Lighting by Barriers Direct® (H1200mm, length & width 140mm square diameter) put into 400mm concrete foundation. Finished with a coat of TD TB Allstone® wildflower meadow topsoil, low fertility soil, slightly acidic, non saline, non calcareous loamy sand with low stone content. Screened to 12mm no manure base. Free draining in dark rich brown Serge Ferrari® 502 PVC Moss Green. Bespoke Tensile Fabric Canopy installed over boardwalk in the rain garden to collect rain droplets and transfer them into ponds. Weight standard EN ISO 2286-2 (570g/m2), Width (180cm), standard format length (40lm), Tensile strength standard EN ISO 1421 (200/200 daN/ 5cm), tear strength standard DIN 53.363 (20/20 daN). SkyGarden® Sedum Blanket System variety of sedum species. £35 per sqm. 80mm protection mat over roof platform. A 30mm drainage plate is placed on top of the protection mat. 40mm separation fabric over drainage plate. 80mm of top soil suitable for sedum plants. French Drain 200mm perforated and sloped for drainage buried under 800mm of coarse aggregate TigerMulch bound rubber mulch made from recycled rubber. 100mm depth of bound rubber mulch laid over 60mm MOT type 1 subbase and geotextile membrane. Timber board edging (150mm) twice nailed to timber posts that is 600 long at 1200 centers. Timber sleeper stepped ramp 2400mm x 100mm x 200mm laid 150mm above gravel and 20mm below. 50 x 50 x 500mm pointed treated softwood posts per sleeper nailed with 120mm 250mm from each end center. Slope varies with maximum of 1:15. 100mm gravel over 100mm compacted hardcore laid over a well compacted subgrade. Each sleeper is separated by 1500mm. stone. 100mm x 50mm inside frame, curved beam ex 300mm 75mm bolted to truss and 100mm 100mm tapered supports with 112 9 bolts. Handrail cut from waste under bridge truss bolted to 3 tapered supports on each side. Curved corten steel mesh bolted to FD TM TE TS FB Cotswold Pea Gravel by Allstones® (10mm) laid with depth of 50mm on top of 150mm MOT type 1, laid over Terram geotextile membrane CG Shelter Pavilion. 2300mm natural faced concrete capping. Timber roof pitch of 40 degrees. M12 bolts for all timber to timber and Three trussed rafters on the roof. SP Insect home. Made with unwanted scraps such as bricks, twigs, cardboard, leaves and wood Stepping stone natural Cotswold. Supplied by Garden Stones. Thickness 34mm laid on top soil. 180mm spread between each stone. SS CG CR CR MT MT MT MT MT MT MT MT MT MT MT MT MT MT MT SB SF TB TB TB TB TB 430 180 180 200 100 100 500 50 1500 10 150 150 900 170 200 410 830 Construction Drawings Bayley Blyther s4103145 Section AA scale 1:10 Prunus avium with bolts 120 c'sk & plugged Concrete foundation Bench Set. All timber pressure c'sk & Timber block twice nailed to at 1200 centres TigerMulch, laid 100mm on Geotextile 60mm MOT Type 1 subbase Stepping stone natural laid on top soil. 180mm spread between each stone. Compacted soil posts set in CP20 150mm above 1:15 slope Timber sleeper stepped ramp 50 x 50 x 500mm pointed treated nailed with 120mm galvanized annular nails onto 250mm from subgrade. Each sleeper is Timber sleepers peeking 10mm above directing water towards retention Natural stone 100 x 100 1175 tapered Ø160 370 300 150 600 470 50 150 1670 Ø300 100 600 490 2000 Ø160 650 370 15 240 880 300 350 3083,5 2760,48 80 1000 500 Barnwood Park Arboretum RAKT corten bench 1800 in Allstone® soil, slightly acidic, sand with low stone base. Free draining and meadow rate: 5 grams Allstones® (10mm) laid 150mm MOT geotextile subbase reservoir Brushwood faccine 300mm dia, placed below pre-established Salix pre-established of each roll is 52kg. above average summer geotextile Wildflower seed mix together using 3mm fixing twine Ends of coir 1000mm bank filler Waterside stakes at Salix 3000mm long Section DD Section EE from boardwalk Serge Ferrari® 502 Canopy sloping down Pipe transferring garden collector 4mm wind and hooked to Concrete foundation Terram geotextile 3650 timber Metal brackets mudsill Timber railway sleepers 100 150 timber rail 100 block spacers at 26.30 Page Title: Drawn by: AD5604 Sustainable Technology 2 Barnwood Park & Arboretum Planting Plan Bayley Blyther Student no. s4103145 Date: 16/02/2023 Size: A1 Scale: 1:100 Drawing no. 401 2m 2m 4m 6m 8m 10m 1:100 Abbreviation Species Quantity Flowers Height (cm) Type GV Galium verum 1.26% Jun Sep 50 80 Perennial ML Medicago lupulina 1.47% May Oct 15 80 Annual SM Sanguisorba minor 1.68% Jun Sep 15 50 Perennial RA Ranunculus acris 1.26% May Jun 30 100 Perennial SD Silene dioica 1.26% Apr Sep 60 90 Perennial SA Silene alba 1.05% May Oct 50 100 Perennial DC Daucus carota 0.84% Jun Oct 30 100 Perennial SN Silene noctiflora 1.05% Jun Aug 20 100 Annual AA Anthemis arvensis 1.35% Jun Jul 30 50 Annual SV Salvia verbenaca 1.05% May Aug 30 40 Perennial AG Agrostemma githago 4.05% May Aug 50 70 Annual CC Centaurea cyanus 1.8% Jun Oct 20 80 Annual PV Primula veris 0.21% Apr May 15 30 Perennial LV Leucanthemum vulgare 0.63% May Sep 20 100 Perennial MA Myosotis arvensis 0.84% May Jul 20 40 Annual DP Digitalis purpurea 0.84% Jun Aug 50 100 Biennial AD Aruncus dioicus 0.84% Jun Aug 30 90 Perennial CN Centaurea nigra 1.26% Jun Sep 30 80 Perennial CS Centaurea scabiosa 0.84% Jun Sep 50 90 Perennial CSE Chrysanthemum segetum 1.35% Jun Oct 30 50 Annual MM Malva moschata 0.63% May Sep 20 150 Perennial PR Papaver rhoeas 0.45% May Jul 50 70 Annual PVU Prunella vulgaris 1.05% Jun Sep 15 30 Perennial RA Rumex acetosa 1.05% May Jul 30 100 Perennial HP Hypericum perforatum 0.42% Jun Sep 30 90 Perennial AM Achilliea millefolium 0.42% Jun Oct 20 100 Perennial RM Rhinanthus minor 1.05% Jun Sep 20 50 Annual AC Agrostis castellana 3.5% 50 100 Grass CCR Cynosurus cristatus 17.5% 30 60 Grass FO Festuca ovina 14% 15 50 Grass FR Festuca rubra, litoralis 21% 10 20 Grass PP Poa pratensis 5.6% 30 90 Grass PPR Phleum pratense 8.4% 50 100 Grass Abbreviation Species Quantity Form Girth (cm) Height (cm) Clear stem (cm) Root condition SAL Salix alba Feathered, multi-stem 25 30 100 300 200 RB BP Betula pendula Pyramidal, multi-stem 10 12 200 300 300 350 RB PS Pinus sylvestris Feathered, multi-stem 18 20 120 170 250 300 RB PA Prunus avium Feathered, multi-stem 10 12 200 375 180 200 RB Abbreviation Species Quantity Flowers Max Height (cm) Type CA Carex acutiformis 68 May Jun 70 Perennial CF Carex flacca 68 May Jun 30 Perennial IP Iris pseudacorus 34 May Jun 150 Perennial JE Juncus effusus 34 Jul Sep 120 Perennial Juncus inflexus 34 Jul Sep 100 Perennial LS Lythrum salicaria 34 Jun Aug 120 Perennial PA Phalaris arundinacea 34 Jun Jul 120 Grass GM Glyceria maxima 34 Jul Aug 200 Grass Wildflower meadow seed mix Trees Abbreviations Species Quantity Root Condition Pot size (l) Density Planted in groups of: DD Dryopteris dilatata 30 Container 1.5 2 4/m 3/5/7 DF Dryopteris felix-mas 30 Container 1.5 2 4/m 3/5/7 OR Osmunda regalis 20 Container 1.5 2 1/m 1/3/ Ferns Shrubs Abbreviations Species Quantity Root Condition Habit Height (cm) Min. No. of branches VO Viburnum opulus 26 Bagged Branched 60 80 CS Cornus sanguinea 26 Bagged Branched 70 100 DFR Dianthus fruticosus 15 Bagged Branched 20 50 Perennials Abbreviations Species Quantity Root Condition Pot size (l) Height (cm) Planted in AJ Armeria juniperfolia 10 Container 0.5 5 7 3/5/7 TV Thymus vulgaris Container 1.5 15 30 3/5/7 CH Cotula hispida 15 Container 0.5 15 3/5/7 SO Sedum oreganum 20 Container 0.5 3/5/7 EP Erysimum pulchellum 12 Container 0.5 20 3/5/7 RH Raoulia hookeri 15 Container 0.5 3/5/7 OM Oxalis massoniana 13 Container 0.5 10 3/5/7 EPU Echinacea pupurea 35 Container 0.5 60 150 3/5/7 FU Filipendula ulmaria 35 Container 0.5 70 3/5/7 PD Penstemon digitalis 35 Container 0.5 90 150 3/5/7 AV Aquilegia vulgaris 35 Container 0.5 60 70 3/5/7 HF Helleborus foetidus 35 Container 0.5 80 -100 3/5/7 EC Eupatorium cannabinum 35 Container 0.5 40 150 3/5/7 CG Campanula glomerata 35 Container 0.5 20 60 3/5/7 CP Carex pendula 35 Container 0.5 120 140 3/5/7 Pre-established Salix coir rolls Pinus sylvestris Betula pendula Salix alba Prunus avium Dianthus fruticosus Viburnum opulus Cornus sanguinea Key: 68 no. CA 68 no. CF 34 no. IP 34 no. JE 34 no JI 34 no. LS 34 no. PA 34 no. GM 10 no. AJ 8 no. TV 15 no. CH 20 no. SO 12 no EP 15 no. RH 13 no. OM 10 no. AJ 8 no. TV 15 no. CH 20 no. SO 12 no EP 15 no. RH 13 no. OM 35 no. CG 35 no. CP 35 no. AV 35 no. HF 35 no. EC 35 no. EPU 35 no. FU 35 no. PD
ECO CAFE PORTICO BIKE STORAGE Plantingplanextract401 AD5604 Sustainable Technology Barnwood Park & Arboretum General Arrangement Plan Bayley Blyther s4103145 0 10 20 1:200 16/02/2023 A0 1:200 Material References COIR ROLL WITH BRUSHWOOD FRENCH DRAIN Brick Compost Bin site using collected, restored brick. With 10mm concrete mortar between bricks create a 5000mm by 3000mm rectangular wall at a height of 1500mm. 100mm mass concrete footing. At the midpoint of the 5000mm wall, make a separation wall to separate newly added Stone Warehouse® Cambrian Boulder Large (varied between 300-600mm). Supplied on a pallet in a wooden crate approx. 8-10 pieces per crate. Lovely natural earthy shades of colour that appear more vivid when wet. Perfect for water features. Placed in swale for natural stepping stone bridge (not permanent placement). Core Edge (65mm) Stone Warehouse® 5x 1075mm strips, totalling 5 linear meters of edging once installed. Manufactured in the UK, from high quality mild steel, with a 20-micron galvanized zinc coating, topped with an electrostatically applied 110-micron powder coat that is designed for external use create a hard-wearing skin that is paint. Reclaimed FSC® certified hardwood timber decking and walkway. Thickness (90mm), Width (125mm). Constructed on site drilled with 90mm long L-BohrFix® A4 Screws into 60mm x 125mm joists then hammered with timber pegs to hide screws. Joists are attached to 100mm x 100mm timber posts set into CP20 concrete foundations 150mm above ground level. BC Larch Timber Bollard Lighting by Barriers Direct® (H1200mm, length & width 140mm square diameter) put into 400mm concrete foundation. Finished with a coat of danish oil. CB CE TD TB Salix® pre established Coir Roll (300mm dia) placed over brushwood faccine (300mm dia), placed between (1670mm long, placed in the ground/ 125mm above average water level). 500mm between stake and bankment fill with brushwood Terram geotextile membrane. CR Allstone® wildflower meadow topsoil, low fertility soil, slightly acidic, non saline, non calcareous loamy sand with low stone content. Screened to 12mm no manure base. Free draining in dark rich brown colour. MT Serge Ferrari® 502 PVC Moss Green. Bespoke Tensile Fabric Canopy installed over boardwalk in droplets and transfer them into ponds. Weight standard EN ISO 2286-2 (570g/m2), Width (180cm), standard format length (40lm), Tensile strength standard EN ISO 1421 (200/200 daN/ 5cm), tear strength standard DIN 53.363 (20/20 daN). SF SkyGarden® Sedum Blanket System pre-grown blanket contains a variety of sedum species. £35 per sqm. 80mm protection mat over roof platform. A 30mm drainage plate is placed on top of the protection mat. 40mm separation fabric over drainage plate. 80mm of top soil suitable for sedum plants. SB Sheldon Cycle Shelter SCS304. Langley Design® Product Reference: SCS304.15000mm long. Length/bay (mm): 5000. Width (mm): 2500. Height (mm): 3017. Fixing: below-ground-base-fix. Slat material: treated-redwood. Metal finish: galvanised. RAKT® Corten steel and timber bench. Timber slats are combined with a corten steel base, which forms its own attractive, rust-like require painting. Three different sizes scattered around pathways, length (mm) 665/1200/1800, width (mm) 600/690, height (mm) 465/470. CS CT French Drain 200mm perforated drain pipe wrapped with filter cloth and sloped for drainage buried under 800mm of coarse aggregate gravel. TigerMulch bound rubber mulch made from recycled rubber. 100mm depth of bound rubber mulch laid over 60mm MOT type 1 subbase and geotextile membrane. Timber board edging (150mm) twice nailed to timber posts that is 600 long at 1200 centers. Timber sleeper stepped ramp 2400mm x 100mm 200mm laid 150mm above gravel and 20mm below. 50 x 50 x 500mm pointed treated softwood posts per sleeper nailed with 120mm galvanized annular nails onto 250mm from each end center. Slope varies with a maximum of 1:15. 100mm gravel over 100mm well compacted subgrade. Each sleeper is separated by 1500mm. Branscombe Table And Bench Set. Table height: 830mm. Table width: 1000mm. Table top width: 710mm. Seat height: 510mm. Seat width: 330mm Footbridge Corten steel mesh grated. Each end of underbridge truss conjoined to foundation stone. 100mm x 50mm inside frame, curved beam ex 300mm x 75mm bolted to truss and 100mm x 100mm tapered supports with 112 x 9 bolts. Handrail cut from waste under bridge truss bolted to 3 tapered supports on each side. Curved corten steel mesh bolted to underbridge truss and inside frame. FD TM TE TS FB BT Cotswold Pea Gravel by Allstones® (10mm) laid with depth of 50mm on top of 150mm MOT type 1, laid over Terram geotextile membrane over a compacted subgrade. CG Shelter Pavilion. 2300mm natural faced concrete capping. Timber roof pitch of 40 degrees. M12 bolts for all timber to timber and timber to concrete connections. Three trussed rafters on the roof. SP Insect home. Made with unwanted scraps such as bricks, twigs, cardboard, leaves and wood chippings. IH Stepping stone natural Cotswold. Supplied by Garden Stones. Thickness 34mm laid on top soil. 180mm spread between each stone. SS SB

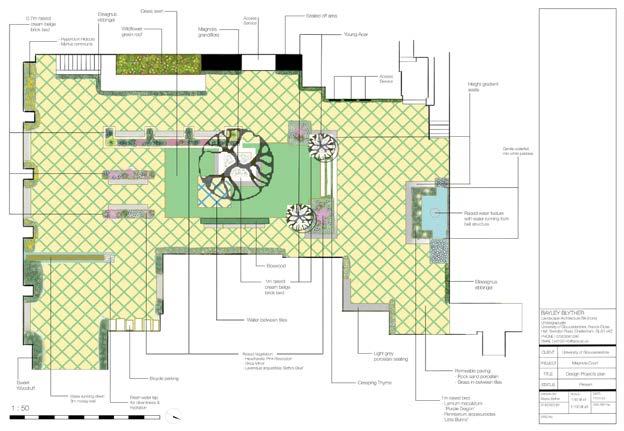
Magnolia Court, FCH

In my first semester, I redesigned Magnolia Court, aiming to transform it into a welcoming, tranquil space for staff, students, and visitors. The design integrates sustainable materials and features, such as permeable paving and water elements, to enhance biodiversity and manage drainage. Emphasizing verticality and open spaces, the layout encourages relaxation and interaction while maintaining access to existing architectural features. Inspired by Feng Shui principles, the design blends traditional and modern elements, creating a harmonious environment with vibrant vegetation and thoughtful lighting to ensure the space is inviting both day and night.

North Place, Cheltenham

In my second semester of the second year, the project focused on refining and documenting complex design solutions for a selected site. The process began with reviewing strategic priorities from the Cheltenham Plan 2020 and the Gloucester, Cheltenham, and Tewkesbury Joint Core Strategy 2011-2031, which informed the development of the masterplan. I created key strategic layers, which I sketched on overlays and ranked in order of importance. These strategies were visually communicated through an A1 poster, effectively linking the site’s context to the proposed design. The final submission included a comprehensive A3 Design Report, detailing the design process, background research, site appraisal, and strategic policies, culminating in a thorough and professional presentation of the developed landscape design.

7

North Place, Cheltenham

The second part of the project involved producing detailed visualizations to illustrate the design’s impact and functionality. This included fully rendered and annotated site plans at 1:500 and 1:200 scales, site sections at 1:100 scale, and a series of sequential sketches that captured the project’s evolution. These visualizations, combined with supporting sketches, sections, and precedent images, provided a clear and compelling narrative of the design intentions. The visual elements were crucial in conveying the ambition and strategic thinking behind the project, ensuring that the design was both aesthetically pleasing and functionally robust.

8

Park Campus, University of Gloucestershire

In the first semester of my third year, the sustainable technology course focused on a pilot project for stormwater management and biodiversity enhancement. This project involved detailed volumetric earthworks calculations to integrate a stormwater attenuation pond into the existing site, alongside developing infrastructure planting strategies to boost habitat biodiversity. I calculated the biomass and carbon sequestration properties of the planting scheme at planting, 10 years, and 50 years using various tools. The submission included four precise A1 technical drawings: the existing site with habitat types and major trees identified, proposed earthworks plans and sections at a 1:500 scale, and an infrastructure planting plan at a 1:250 scale with detailed planting schedules. These visualizations were essential for demonstrating the project’s feasibility and ecological benefits.

9 67.4m 69.1m 70.1m 70.7m 10m 10m 20m 30m 40m 50m 1:500 Key: General Notes: Total pond cut:8899m Total mound volume:2773.75m Total fill= 11,478m Total cut= 13,393m 67.4m 69.1m 70.1m 10m 10m 20m 30m 40m 50m 1:500 Matrix A Planting Schedule (Woodland Trees) Quantity Latin Name Nursery Stock Specification Tree Pit Size Matrix B Planting Schedule (Woodland Edge) Quantity Latin Name Nursery Stock Specification Tree Pit Size Matrix C Planting Schedule (Underplanting) Quantity Latin Name Nursery Stock Specification Tree Pit Size Matrix Planting A - Woodland Trees B - Woodland Edge C - Underplanting · · · · · · · · · · · · · · · · · ·
67.4m 64.5m 69.1m 63.2m 70.1m 10m 10m 20m 30m 40m 50m Key: Target Notes:

Alney Island, Gloucester (Pre-design Phase)

“Look at the Lilies”, St. Aidan’s

The St. Aidan’s church site redevelopment brief calls for a transformation of the current grass area into a welcoming, safe, and sustainable space for both the congregation and the wider community. Inspired by the concept of ‘Seven Sacred Spaces’, derived from monastic faith tradition, the design should incorporate areas for personal reflection, worship, exercise, study, and hospitality, fostering spiritual engagement and holistic well-being while promoting inclusivity and community involvement. Specific requirements include accommodating a prefabricated building for facilities and addressing security concerns, integrating with adjacent spaces like the Oasis building and the MUGA. The design should also consider the partnership with ‘Cheltenham is Growing’ and adhere to a budget range of £30K - £100K (excluding the building), aiming to inspire innovative designs that foster discussion and collaboration.

In our collaborative effort, we drew inspiration from biblical symbolism, utilizing the lily as the foundational concept for the Seven Sacred Spaces. Safety and security were paramount, with meticulous planning to enhance sightlines and deter antisocial behavior, while strategic illumination created a serene ambiance while minimizing light pollution. Our design offers a range of communal spaces, from informal gatherings under the canopy of Salix babylonica to structured areas like the Chapter and Chapel, with features like the scriptorium and dedicated patio providing havens for exploration and respite. Incorporating historical elements, such as a Celtic knot overlay in the productive garden, and prioritizing inclusivity with varied planting bed heights, our design aims to ensure accessibility for all members of the community.

11 god’s nature god’s nature

The RHS brief stipulated that this year’s theme was “making a statement,” emphasizing the need for a compact yet impactful space with a prominent focal point. In response, our initial approach involved a thorough integration of the brief. We convened to discuss our individual interpretations of what making a statement entails, brainstorming various ideas.

Initially, we gravitated towards a proportional design strategy, featuring a juxtaposition of large and small elements centered around the themes of industrialization and rewilding. However, our exploration soon led us down an intriguing path, branching into the realm of fairy tales. We contemplated the notion of crafting a “miniature” world, where tiny human figures would symbolize pollinators and ants, highlighting the concept of humans assuming nature’s roles in the aftermath of environmental devastation. Our vision included the creation of bug hotel-style structures to support this narrative.

To flesh out our concept, we delved into sketching and gathered inspiration from relevant images to refine our ideas further.

Make a Statement

Temporal Bloom Odyssey

Building upon our initial concept, we shifted our focus towards the theme of climate change and broader concepts of change. This pivotal decision sparked a phase of experimentation, where we delved into exploring various shapes, materials, and color palettes for both the overall border design and the central structures – our primary design focal points aimed at drawing people’s attention.

Our design process was driven by several key considerations, with a primary focus on creating dynamic visual interest withintheborder.Wecarefullyexperimentedwithalternate heights to introduce movement and contrast against the surrounding planting. Additionally, we paid particular attention to crafting an open “gateway” effect, strategically aligning the structures to provide viewers with enticing vistas to peer through. These deliberate design choices were aimed at enhancing the overall viewer experience and encouraging engagement with the project’s narrative.

We began exploring the overall color palettes of the border, focusing particularly on the planting colors and textures. Our aim was to showcase our narrative individually through the sculptures and planting, respectively, before bringing the two elements together in juxtaposition to enrich each other’s stories.

For the planting color palette, we sought to reflect the timeline, opting for dark purples, greys, and pops of white to symbolize the past. To depict the present, we chose clear whites, greens, and grasses. Finally, we embraced bright and abstract colors to signify the unpredictable future.

Following our decision to center the design around interlinking the structures, we delved deeper into the experimentation phase, focusing on refining the design of these pivotal elements. Our attention turned to considerations of proportionality and the visual impact of the “gateway” concept.

The creation of an opening served a dual purpose: not only did it offer a perspective for people to traverse through the site, but it also symbolized an “eye-opener” moment. This symbolic gesture aimed to heighten viewers’ awareness of the people and environment surrounding them, offering a fresh perspective that might lead to new insights and self-reflection.

In line with this theme of perspective, we began contemplating the idea of incorporating a survey element into the design. This survey would serve to collect a diverse range of statements reflecting the public’s various perspectives on our theme. We envisioned incorporating these statements as a written design element, enriching the project’s narrative and encouraging viewers to engage with the multitude of perspectives surrounding the theme of change and climate awareness.

Temporal Bloom Odyssey

As

Upon deliberation, we resolved to fashion three frames interwoven with wires, symbolizing “portals”

Furthermore, we sought to convey deeper meanings through the density of strings within the portals. We intended for this visual element to symbolize the myriad choices we encounter in life, illustrating how delving into the past can influence our present and future decisions. By integrating these symbolic elements, we aimed to create an immersive experience that prompts introspection and fosters a deeper understanding of the complexities of human existence within the context of time.

our theme evolved, our focus crystallized around the concepts of change and time, with a strong emphasis on narrative storytelling. We envisioned the “eye-opener” portal of the structure as a gateway to traverse through different eras in time, creating a dynamic journey for viewers.
design process for these built sculptures underwent numerous iterations during the conceptual sketching phase. Initially, we explored organic and alien mounding forms, but as our exploration deepened, we shifted towards a more minimalist and structured frame. This transition was spurred by our desire to offer viewers a multifaceted perspective as they navigated around the site. By enlarging the openings and ultimately considering the idea of creatingaframe,weaimedtoprovideviewerswithvariedviewpoints, thereby enhancing their experience. Additionally, this shift allowed us to strike a balance between the structural elements and the planting concerns, ensuring that neither overshadowed the other.
The
that each encapsulate either the past, present, or future. This conceptual framework aimed to construct a narrative around the ever-changing nature of time and its profound impact on individuals. We envisioned these portals as conduits for viewers to engage in self-reflection and gain fresh perspectives. Our aspiration was for viewers to peer through these portals, not only to admire the surrounding planting but also to connect with the person on the opposite side. Through this interaction, we hoped to instill a moment of realization – a recognition that every individual harbors a unique story, shaped by their own timeline and perspectives.
Temporal Bloom Odyssey Jessica Richardson, Ashley Woollaston, Bayley Blyther

Temporal Bloom Odyssey

RHS Tatton Park Garden Border 2024

200 words submission

Step into the enchanting world of the “Temporal Bloom Odyssey,” a visionary project transcending traditional gardening, captivating the imagination. This innovative endeavor invites visitors on a transformative journey through time, where the narrative of past, present, and future unfolds amidst a breathtaking tapestry of plantings and structures.

In the “Past,” evoking historical reverence with solemn hues of black, white, and dark shades achieved by plants. Weathered wood and charred metal portals serve as gateways, with bursts of colorful wire hinting at future vibrancy amidst past solemnity.

Transitioning to the “Present,” the landscape pulsates with movement and uncertainty, symbolized by grassy, flowing plants swaying with the wind. Minimalist portals reflect the current simplicity, juxtaposed against a dark centerpiece, offering contemplation amidst possibility.

Finally, the “Future” bursts forth with vibrant color and abstract textures, embodying boundless potential and innovation. Metal, wood, and wire structures herald a kaleidoscope of possibilities ahead.

Through seamless integration of structure and planting, the “Temporal Bloom Odyssey” invites people on a profound journey through time, where past, present, and future converge in a harmonious symphony of growth and change.

13
plant selection process for the long border project was intricately linked to our theme of change and the passage of time. We curated a color palette that transitioned from dark, muted hues representing the
to clear whites
greens
the
vibrant, abstract colors for the
plant choice was carefully considered to complement the narrative arc, creating a cohesive and immersive experience that prompts reflection on the dynamic nature of time and change. 7.01m 2.00mourful metal and wood structures with woven black wire Present Portal: Clear, white, silver structures with woven blue and white wire and white metal and charred woodven multi-coloured Still water basin symbolizing the flexibility opportunity Past themed planting with dark shades of purple and amber consisting of white flowers planting set multi-coloured planting pallete Present themed planting set lushplish ‘infinite blur possibility’ ASHLEY WOOLLASTON, JESSICA RICHARDSON & BAYLEY BLYTHER UNIVERSITY OF GLOUCESTERSHIRE TEMPORAL BLOOM ODYSSEY Temporal Bloom Odyssey Jessica Richardson, Ashley Woollaston, Bayley Blyther Temporal Bloom Odyssey Creating a project name for our long border project involves capturing the essence of time progression, the integration of structural elements, and the concept of growth or evolution. We thought the project name should reflect the journey through the past, present, and future, as well as the harmony between the natural and built environments within the border planting. Considering these elements we decided on the name Temporal Bloom Odyssey. This name suggests a journey through time, represented by the growth and changes in the planting border. “Bloom” highlights the garden aspect, while “Odyssey” emphasizes the narrative journey through the past, present, and future.
Our
“past”
and
for
“present,” and
“future.” Each
Temporal
The name
Jessica Richardson, Ashley Woollaston, Bayley Blyther
Bloom Odyssey

Abstract

Green infrastructure, encompassing parks, open spaces, and natural elements within urban areas, plays a crucial role in placemaking and shaping the cultural dynamics of communities. This dissertation conducts a cross-cultural comparative analysis of green infrastructure implementation in Balinese and English villages to understand how it influences cultural dynamics and community well-being. Balinese villages, deeply rooted in cultural and ecological wisdom, contrast with English villages, which adhere to a more conventional Western urban planning model. The study explores the impact of green infrastructure on cultural identity, community interactions, access disparities, and the challenges of urban planning in both contexts. By examining the national policy context, specific green infrastructure projects, and local community perspectives, this dissertation aims to shed light on the broader implications of green infrastructure implementation on cultural dynamics.

14

CONTACT

Email: s4103145@glos.ac.uk

LinkedIn: www.linkedin.com/in/ bayley-blyther-466a23233

Francis Close Hall, University of Gloucestershire, Cheltenham, GL50 4AZ

15

Turn static files into dynamic content formats.

Create a flipbook
Issuu converts static files into: digital portfolios, online yearbooks, online catalogs, digital photo albums and more. Sign up and create your flipbook.