My first document

Page 1


INTERIOR DESIGN PORTFOLIO

BASHAYER ABDUALLAH

SELECTED WORKS

ABOUT

Graduate Interior Designer with a interior design principles, space planning, and design software. Proven ability to apply creative and tech-nical skills to design functional INFO

Phone: +966 556462731

Email: Bashayerabduallah9@gmail. com

Address: Yanbu, Saudi Arabia

Links: www.linkedin.com/in/ bashayer-abduallah

FEEELANCER WORK

Apartment Renovation Project 2022

- Completed the renovation project within the set deadline and budget - Successfully implemented all design elements according to the client’s specifications.

Residential Project 2020

- Developed a comprehensive floor plan that maximized space utilization and functionality. - Selected finishes and materials based on client preferences and budget.

EDUCATION

Bachelor in Interior Design

Yanbu Industrial College 2020 - 2024

Workshop

Innovation in practice: Strategic planning and design for the hospital ofthe future.

2021

The Language of Design: Form andMeaning 2021

RESUME RESUME

SOFTWARE

3d MAX AutoCAD Sketchup Vray Corona Photoshop Illsutrator Office Suite

SOFT SKILL

- Creativity

- Teamwork - Time management - Critical thinking - Innovation

LANGUAGE

Arabic - Native English - proficiency

COLLABORATION WORKS

Azaz Architects 2023 Nov

- Collaborated with Azaz Architects to produce graphics drawings: an Exploded Diagram, a Concept Diagram, and a Collage drawing, to be published on Archdaily.

APARTMENT PROJECT

BATHROOM PROJECT

DRAWINGS & SKETCHES

1 STUDIO PROJECTS

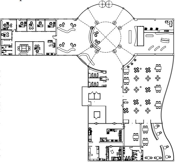
LUSIN ARMENIAN RESTAURANT

INFO

Place: Yanbu, Saudi Arabia

Year: 2021

Type: Commercial Project Area: 600 m2

Majestic: Applying skylight and enhancing the light in the space, adding symbols that represent Armeniay culture(the ornament walls, tinted glass, pattern), plaster paint

Vibrant

using a variety of materials, colors, and texture element that adds excitement to the space, different levels in ceiling

Eclectic

The space has multiple functions (entertaining, shopping, mini-museum), using various fabrics, using ele -

ments that represent the Arminian culture

Dining Area

SENSORIAL HOTEL

Place: : Wadi AlDesah , Saudi Arabia

Year: 2022

Type: Commercial

Project Area: 1600 m2

Lecturer: Taneem

When I was a child, I visited Wadi Al Disah and was awestruck by its stunning mountainous landscape. I recently revisited the valley, and I was reminded of why it is one of the most spectacular valleys in Saudi Arabia. The name Al Disah means “valley of palm trees,” and this is evident in the verdant valley floor, which is surrounded by towering sandstone cliffs and pillars. These natural formations are ideal for exploration. Unfortunately, there are no hotels in the area.I took it upon myself to rectify this situation by designing a hotel in the valley.

Section

Suit Room

ATARAXIA PRIMARYHEALTHCARE

Place: : Wadi Al-Desah , Saudi Arabia

Year: 2022

Type: Commercial Project Area: 1600 m2

Lecturer: Taneem AlJohani

Primary healthcare facility located in Jeddah, North Obhur. jeddah known for it’s high temperatures and humidity during the summer. The Objective is To present hospitals with ways to be prepared for future challenges (futureproof) such as flexibility and adaptability and address the current issues. ( Pandemic

2 APARTMENT PROJECT

3 BATHROOM PROJECT

4 DRAWINGS & SKETCHES

In our color therapy course, my classmate and I embarked on a fascinating project: to reflect each other’s personalities through the lens of color. We delved deep into color psychology, learning about the emotions, associations, and energies evoked by various hues. Through introspective exercises and open communication, we explored our individual color palettes, identifying the shades that resonated most with our inner selves.

5

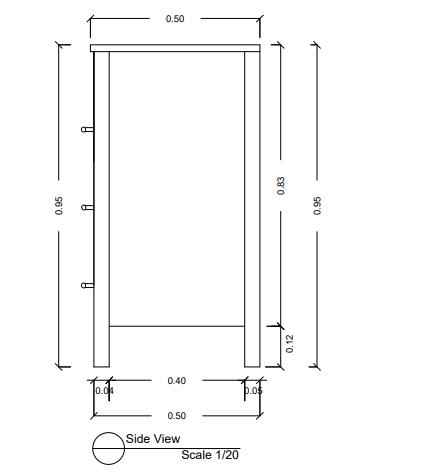
DETAILS DRAWINGS

DETAILS DRAWINGS

Turn static files into dynamic content formats.

Create a flipbook
Issuu converts static files into: digital portfolios, online yearbooks, online catalogs, digital photo albums and more. Sign up and create your flipbook.
My first document by Bashayer Abdallah - Issuu