Design Anthology UG2
Architecture BSc (ARB/RIBA Part 1)
Compiled from Bartlett Summer Show Books
![]()
Architecture BSc (ARB/RIBA Part 1)
Compiled from Bartlett Summer Show Books
At The Bartlett School of Architecture, we have been publishing annual exhibition catalogues for each of our design-based programmes for more than a decade. These catalogues, amounting to thousands of pages, illustrate the best of our students’ extraordinary work. Our Design Anthology series brings together the annual catalogue pages for each of our renowned units, clusters, and labs, to give an overview of how their practice and research has evolved.
Throughout this time some teaching partnerships have remained constant, others have changed. Students have also progressed from one programme to another. Nevertheless, the way in which design is taught and explored at The Bartlett School of Architecture is in our DNA. Now with almost 50 units, clusters and labs in the school across our programmes, the Design Anthology series shows how we define, progress and reinvent our agendas and themes from year to year.
2025 On the Mend: Patterns, Assembly and Form through Self-Build Practices
Jhono Bennett, Zachary Fluker, Maxwell Mutanda
2024 Radical Repair: Designing Through Self-Build Practices
Zachary Fluker, Jhono Bennett, Hannah Corlett
2023 1:1 Systems of Exchange
Jhono Bennett, Zach Fluker
2022 Eco-Promethean
Maria Knutsson-Hall, Barry Wark
2021 Natural State
Maria Knutsson-Hall, Barry Wark
2020 Between the Object and the Picturesque
Barry Wark, Maria Knutsson-Hall with Levent Ozruh
2019 Urban Cliff
Maria Knutsson-Hall, Barry Wark
2018 High Density
Soomeen Hahm, Aleksandrina Rizova
2017 Spontaneous Procedures
Soomeen Hahm, Aleksandrina Rizova
2016 Sprezzatura
Damjan Iliev, Javier Ruiz
2015 SimbioCity
Damjan Iliev, Julian Krueger
2014 Interstitial Ecologies
Damjan Iliev, Julian Krueger
2013 Newtopia
Damjan Iliev, Julian Krueger
2012 Gimme Shelter
Damjan Iliev, Julian Krueger
2011 Infill and Overspill
Ben Addy, Julian Krueger
2010 Twist and Insert, Add and Alter
Ben Addy, Julian Krueger
2009 Urban Sting
Julia Backhaus, William Firebrace, Julian Krueger
2008 Urban Flip
William Firebrace, Julian Krueger
2007 Urban Blending
William Firebrace, Julian Krueger
2006 Isolated and Insulated Landscapes
Agnieszka Glowacka, Sabine Storp
2005 Tales of Two Moods
Felicity Atekpe, Karl Unglaub
2004 Icon
Felicity Atekpe, Karl Unglaub
Jhono Bennett, Zachary Fluker, Maxwell Mutanda

Jhono Bennett, Zachary Fluker, Maxwell Mutanda
UG2 continues to work on exploring reparative architecture, emphasising the transformative potential of repair and upcycling in revitalising existing buildings and underutilised urban spaces. This approach places materiality at the heart of architectural intervention, advocating sustainable practices that address environmental concerns while fostering community engagement.
Central to our methodology is a commitment to understanding the broader urban context and its inhabitants. Students have immersed themselves in local communities, conducting site research through situated conversations to grasp the nuanced needs and aspirations of residents. This participatory design process ensures that architectural proposals are contextually responsive and serve as catalysts for social cohesion and empowerment.
This year, the unit actively engaged in hands-on design research, too, with students encouraged to experiment with physical material models that embody the principles of repair and sustainability. Notably, these include explorations of biological membranes from SCOBY – a by-product of kombucha fermentation – as viable building materials; innovative applications of upcycled fabrics to create adaptable architectural elements; the development of ceramic glazes derived from industrial waste materials sourced from surrounding industries; and the transformation of demolition waste into new construction materials, exemplifying the principles of a circular economy.
Additionally, participatory design sessions with local children and community members were facilitated, ensuring that the design process remains inclusive and reflective of diverse voices. Mapping small-scale industrial manufacturing processes enabled the integration of multiple programmes within single architectural interventions, promoting a hybrid approach that meets community needs while enhancing the site’s inherent value.
UG2 students took design research and developed buildings through people, communities and material flows. The focus on small industrial sites provided a solid foundation for understanding how building proposals can be developed to close the loop of industrial material waste in Haringey, London – retaining materials that are often discarded and reintegrating them into the architectural fabric. This strategy ensures that buildings maintain a direct and meaningful relationship with their communities through material use and upcycling initiatives.
Year 2
Tomiwa Balogun, Elizabeth Bronstein, Dominic Coles Saffirio, Anika Deb, Mia Deville, Rosie Dymock, Yui Kato, Sophie Link, Isabelle Shirley
Year 3
Dahui (Dahee) Im, Caitlin McHale
Technical tutors and consultants
Jane Chew (Year 3), Ruth Cuenca Candel (Year 2)
Critics
Beatrice De Carli, Katerina Dionysopoulou, Daniel Dream, Margit Kraft, Ifigeneia Liangi, Billy Mavropoulos, Toby O’Connor, Liz Tatarintseva






















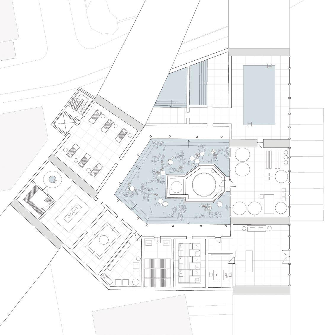
1, 16, 19–21 Caitlin McHale, Y3 ‘Ceramic Heartland in Haringey’. An amalgamation of artist studios with exhibition and creative enterprise spaces in a light industrial area.
2–6 Dominic Coles Saffirio, Y2 ‘The Flayed Circus’. Waste produced during beer manufacturing at a local brewery is upcycled to grow a protective and performative biodynamic membrane to host a contemporary circus within a hybrid production factory.
7–8 Sophie Link, Y2 ‘Off-Cut Atelier: Furniture Repair Studio’. A furniture repair and off-cut timber yard coupled with an existing timber merchant provides space to host educational facilities for local residents.
9–10 Rosie Dymock, Y2 ‘Composing the Classroom’. An adaptable music venue for practice and performance that provides acoustically tuned spaces to support borough initiatives to provide music lessons for all children.
11, 13 Dahui (Dahee) Im, Y3 ‘Re-Play/Revealing the Mix’. An upcycled industrial shell becomes a playful, imaginative nursery extension in Haringey. Constructed from local demolition waste, clay tiles and crushed bricks, the project reimagines the area’s industrial heritage through sustainable design.
12 Tomiwa Balogun, Y2 ‘Textile Fusion’. Insulation created from off-cuts and waste produced by local fashion industries is fused into structural panels for the development of new and existing buildings.
14 Elizabeth Bronstein, Y2 ‘Liquid Commons’. Reimagining a historic water filtration site as a social hydrotherapy centre to reconnect residents and athletes with water and its restorative powers.
15 Mia Deville, Y2 ‘Marble Mosaic Gallery and Workshop’. Reuse and adaptation of an existing commercial building into an art centre that produces marble mosaics from an adjacent marble factory.
17–18 Anika Deb, Y2 ‘Socially Sustainable Allotment Garden’. Transforming disused land and neglected garden walls into a vibrant community hub for growing and cooking – revitalising space, fostering connection and promoting local food resilience.

Zachary Fluker, Jhono Bennett, Hannah Corlett
Our rapidly urbanising world will require more material resources than are currently available in our planet’s already fragile ecosystem. Driven by this need to reconsider resource use in line with pressing environmental, social and economic considerations, built environment practice is on a path towards radical change in how we produce and, more importantly, repair and maintain our built fabric.
This shift in how we make requires more inventive means of material reuse, existing building reconfiguration and a critical rethink on how we work together as spatial practitioners. UG2 embraces this dynamic challenge and works to develop architectural interventions that respond to the contextually nuanced needs of the people and the communities who make up our cities. From user-centric built-in furniture to high-level spatial strategies, the unit’s projects explore the potential for how repair could empower and support new relationships between individuals and the city.
On-site research and first-hand experience on how acts of repair have shaped and impacted architecture and the city were gathered during the unit trip to Berlin. While there, we visited the reconfigured Neues Museum, Neue Nationalgalerie and the retrofitted Tempelhof Airport. Back in London, the unit explored the district of Limehouse where a dense urban environment in the former docklands provided fragments of latent land and defunct infrastructure. Unravelling the potential of these sites through careful analysis and documentation has led to proposals that integrate multiple layers of natural and built infrastructures. By adopting a critical position on repair, each project identifies how actions of re-cycling, re-configuration and re-use can drastically re-shape the spatial context of Limehouse.
For UG2, ‘radical repair’ represents a design methodology that anticipates the future and provides a framework for transformation that positions people and their relationship to the city at the forefront of design. Within this framework, each project identified a user group within Limehouse that guided the building programme and nature of the intervention. This outlook on developing human-centred design leads directly into the unit’s interest in self-build construction and the role that co-produced architecture plays in a more equitable urban future for our planet.
Year 2
James Tyler, Odin Verden, Graeme Wong
Year 3
Jaeho (Leo) Cho, Laura Dietzold, Harshal Gulabchandre, Esin Gumus, Regan Reser, Nora Seferi, Chunyi (Sally) Sun, Lettie Vera-Sanso Talbot
Technical tutors and consultants: Wolfgang Frese, Alberto Fernández González
Critics: Katerina Dionysopoulou, Maria Fulford, Billy Mavropoulos, Maxwell Mutanda, Jörg Majer, Thomas Parker, Elly Selby, Mira Yung
2.1, 2.14, 2.18 Harshal Gulabchandre, Y3 ‘The Kitchen Estate‘. Commercial Road High Street in East London has a range of socioeconomic and ecological disparities which require urban repair. The diasporic Bangladeshi community residing on this high street face a multitude of intersectional housing and food insecurities. The project addresses these systemic issues through a community kitchen, vertical farm and social housing. Using selfbuilt rammed earth construction as a vehicle for sociotechnical community engagement and material localism on the high street, the building repairs local disparities and empowers local people.
2.2–2.4 Chunyi (Sally) Sun, Y3 ‘Tailor Made’. This project proposes a new site of craft for a sewing community of migrant women in Limehouse. The buildings are based on a self-build modular system derived from the women’s working patterns and the grid of old concrete foundations. Engaging with reuse and reconfiguration, the design features timber elements and adjustable footings for disassembly, adapting to community fluctuations. Leftover concrete foundations are repurposed into landscape elements, maintaining a connection to the site’s history. Textile waste is upcycled using the women’s skills to create light baffles. The site is divided into production, education and retail areas, with sewing workshops, classrooms and public-facing shopfronts. Small, configurable units create intimate spaces, emphasising the community’s familial nature.
2.5, 2.7 Jaeho (Leo) Cho, Y3 ‘Upcycling Playground’. The project creates a spatial intervention in Limehouse, involving repair through the upcycling of waste materials. Inspired by a child’s ability to transform seemingly worthless items into personal treasures, the project begins by creating a catalogue of handmade papers using tools and waste paper found at home. On-site research leads to the development of leaf bricks, which became the focal point for the repair intervention. Based on interviews with locals, the project provides an educational playground for children at the local nursery. The design focuses on making the upcycling process accessible and inviting for children to interact with voluntarily. The project’s aesthetics, user interface and scale are shaped by its educational aspect and exclusive use by children.
2.6 Nora Seferi, Y3 ‘Loafers Lair’. This project investigates how the principles of spectral light can be applied to the design of a therapy centre that utilises this type of light therapy to trigger serotonin and melatonin production in the body. Digital tools are used to craft and create layered façades that regulate the amount of natural light and urban vegetation growth the building will have. Additionally, internal conditions are created where these qualities can be altered to benefit the mental health of users, accommodating their varying waking times and working hours.
2.8 Lettie Vera-Sanso Talbot, Y3 ‘Rogue Histories’. In London’s East End, where historical erasure is a pressing issue, this project proposes a civic space called the Centre of the Unconventional Historians to research and celebrate the city’s past. The project focuses on hobbyist historians who scavenge the Thames to uncover lost relics and give voice to underrepresented lives. These unconventional historians provide a more egalitarian account of London’s past that is overlooked. The project investigates how reuse methods can support a space for these historians and the public to share local histories of the Thames and surrounding areas. The architecture embodies a three-fold register of the city’s past: a repository of ‘lost’ artefacts, a platform for previously unrepresented lives and a structure built from waste material found within the Thames.
2.9–2.10 Laura Dietzold, Y3 ‘An Act of Continuous Repair’. Significant sea level rise in London is predicted under high emission scenarios, affecting infrastructure and the built environment in flood-prone zones near the Thames. Current flood defence infrastructure takes a simplistic approach, attempting to ‘design our way out’ of the challenge with walls and barriers. This project proposes a retrofitted form of flood defence infrastructure that encourages controlled flooding, allowing the city to make use of water as a precious resource. By focusing on retrofitting existing infrastructure and adapting it to future needs, the proposal creates a symbiotic relationship between the built and natural environments, rather than relying on complex and expensive infrastructure that disconnects us from water.
2.11–2.12 Regan Reser, Y3 ‘The Ritual’. The project is a spa for Limehouse Basin boat dwellers. It fulfils the basic human need for bathing while aiding mental and physical health through relaxation rituals. Inspired by the stages of water purification and the site’s historical accumulator tower, the spa filters wastewater supplied from the boats. This creates an off-grid water recycling system that mimics the boat dwellers’ lifestyle and alleviates the burden on London’s sewage system. The building utilises both mechanical and ecological forms of purification, with wetland roofing as the first level of filtration before the water enters mechanical processes for use in cleaned pools and steams. Black water is used to create biogas to power the spa. The project combines a study of historical infrastructure, consideration of users’ needs and innovative water recycling.
2.13, 2.16 Graeme Wong, Y2 ‘Avian Arcadia’. This proposal for E1 Waterbird Welfare, a community group in Limehouse, presents a sanctuary for injured waterbirds that serves as a symbol of renewal. Beyond rehabilitation, the building provides a space for education where volunteers and students learn about safeguarding urban wildlife. The design, echoing a bird’s wing, symbolises the journey to recovery and return to the wild. The project embodies self-build and repair, empowering individuals to actively restore their environment and foster stewardship. Together, the community works to rescue, save and rehabilitate urban wildlife, ensuring a thriving ecosystem for the future.
2.15 Esin Gumus, Y3 ‘Thames Interpretation Centre’. The project explores Limehouse’s vanished maritime history through its shoreline, focusing on Limehouse Hole Stairs. Inspired by the scattered rubble and remnants along the shore, a pier design incorporating an exhibition space is proposed. The pier’s accessibility changes with the tides, creating a dynamic interaction with the site’s historical narrative, allowing people to engage with and learn about Limehouse’s past. The project also includes a Thames interpretation centre, showcasing the river’s historical significance and its evolving relationship with communities. It promotes river restoration, rewilding and the use of materials dredged from the river in traditional crafts. The centre fosters skill sharing and strengthens community ties through these activities.
2.17 Odin Verden, Y2 ‘Velo Hub’. The project interprets repair as enhancing performance in cycling by balancing speed and comfort. By making changes to the bike and body, the project improves overall performance. When introduced to a site, the same methodology is applied to identify interventions that can increase the area’s performance. Just like in cycling, any intervention will involve a trade-off, but the project resolves both issues while encouraging the development of new skills in documentation and modelling. The ultimate goal is to use this repair-for-performance methodology in future projects, optimising systems by addressing multiple factors simultaneously.

























Jhono Bennett, Zach Fluker
As spatial practitioners, we are intrinsically shaped by our situated experiences, knowledges, values and beliefs when called upon to design. The way we see, think and act in our built environments is fundamentally formed by the various reciprocal 1:1 exchanges that make up our contemporary built environment systems: our cities. These moments of exchange range from the items we buy at the nearby hardware store for home repair to the recommended content on social media platforms and the kind of dwellings we dream of occupying in the cities we aspire to inhabit. Such intimate, multi-scalar moments within the built environment reveal the ever-emerging dynamics of me:us, and offer the opportunity to inform a more grounded and critically contextually responsive approach to architectural design.
Urban crises of varying degrees are affecting many large cities worldwide. London now faces multiple socio-spatial challenges that are only worsening access to affordable living and housing. Despite the UK’s rich history of self-made actions, the potential of self-build practices to address the problem remains largely unexplored. As a unit, we are deeply interested in exploring the untapped opportunities that lie within the socio-technical dimensions of such systems. We believe in the power of grassroots processes that tread responsible lines between the individually made and mass-produced, the virtual and the physical, the small scale and large scale. Through these investigations, we seek to understand the role that contemporary designers can play in unlocking these large-scale, human-centred, community-based systems through very real exchanges of what the unit refers to as hand-made data and other contextually valuable resources.
During the first iteration of 1:1 Systems of Exchange, our focus was directed toward exploring methods that could leverage self-build practices as a means of furthering existing potential within communities of East London. At the same time we took into account the unique socio-spatial factors at play, including the positionality of the researcher/designer in framing these strategies. By concentrating on the London Borough of Tower Hamlets, our approach involved developing our own documentation techniques to understand better the nature of the conflicts between urban systems of exchange in both physical and virtual realms. We questioned the concept of DIY culture and assessed the potential of self-build practices in empowering individuals to shape our cities.
Year 2
Maria Gasparinatou, Aryan Kaul, Shuheng Wang, Zhi Qi (Tina) Wu
Year 3
Magdalena Gauden, Zuzanna Jastrzebska, Fardous Khalafalla, Archie Koe, Arushi Kulshreshtha, Jack Powell, Rauf Sharifov
Technical tutors and consultants: Simon Beames, Beatrice De Carli, Alberto Fernández González, Tamara Khan, Jakub Klaska, Tony Le, Rowan Mackay, James Palmer, Thomas Parker, Liz Tatarintseva
Critics: Egmontas Geras, Sarah Harding, Margarita Garfias Royo, Elly Selby, Isaac Simpson, Liz Tatarintseva, Unit 21
2.1, 2.22–2.23 Aryan Kaul, Y2 ‘The Meanwhile Repair Collective’. In collaboration with Meanwhile Gardens Community Association, this project addresses a collapsing factory building through a self-build scheme. It rehabilitates existing spaces, such as offices, storage, workshops and meeting areas, and fosters social cohesion. Interviews, tours and volunteering inform the design process. Drawing inspiration from a Moroccan self-build practice, the project explores rammed earth construction in London and incorporates recycled materials. Digital fabrication simplifies construction, using timber columns for both structure and formwork. The incremental development process respects the site’s self-build community, minimising interruptions and preserving usable spaces.
2.2–2.3, 2.24–2.28 Jack Powell, Y3 ‘Bookbinding Vernaculars’. The LCBA Workshop is a public factory owned by the London Centre for Book Arts and serves as a hub for bookmaking, ideas and art. Built by independent thinkers in East London, the building reflects the craft of bookmakers while elevating materials such as paper and thread. It is part of a growing network of waterfront workshops, bridging canal-dwellers and bookbinders. These workshops and publishers protect against censorship, encourage free discourse and foster intellectual and artistic expression.
2.4–2.6 Archie Koe, Y3 ‘The Audiophile’s Sonic Sanctuary’. The Audiophile’s Sonic Sanctuary is a psychoacoustic therapy centre in Tower Hamlets that uses rain-generated frequencies for mental healing. By combining holistic sound therapy practices with scientific psychoacoustic research, the centre offers customised treatments for anxiety, depression and insomnia. The building’s design incorporates acoustic research and exoskeleton strategies to create isolated therapy spaces. It addresses the mental health epidemic among young individuals and helps foster a sense of hope and community.
2.7–2.8 Zhi Qi (Tina) Wu, Y2 ‘The Augmented Strayed Homes’. This project reimagines laundrettes as communal spaces through self-build methods. It combines a laundrette with shared areas to encourage social interaction and make laundry time more engaging. Inspired by Edwina Attlee’s Strayed Homes the project merges private and communal spheres, fostering user interaction and creating an immersive ambience. The architectural design defines the boundary between public and private realms in Limehouse, London.
2.9–2.10 Zuzanna Jastrzebska, Y3 ‘Urban Scout Centre’. The project draws inspiration from adventure playgrounds to celebrate self-build activities in urban environments. Focusing on a local Scout community in Whitechapel, the design is influenced by pioneering Scouting and utilises a round timber skeleton with a mass timber shell structure. 3D scanning and digital analysis enable the incorporation of natural wood qualities. The resulting Scout shed design combines hi-tech and primitive building methods to create an adaptable and engaging scout centre that brings the camp atmosphere to an urban context.
2.11–2.12 Maria Gasparinatou, Y2 ‘Putting on a Show for 45 Lark Row’. Why is dance often hidden? The project addresses this question by proposing a dance centre that operates throughout the day, offering classes, performances and club nights by Regent’s Canal. Located at 45 Lark Low, the building engages with the relationship between passerby and dancer. The design concept revolves around the interplay of skin and bone. A steel structure supports a draped wire mesh that creates varying levels of transparency, framing the building like an open theatre.
2.13–2.15 Shuheng Wang, Y2 ‘Metaphor of Mycelium’. The project looks at how a London community could work together to remediate heavily contaminated soil through collective production. The project involves soil removal and the subsequent construction of a self-build building with two functions: mycelium remediation of contaminated soils and a mycelium studio for nearby residents. The construction spans five phases over approximately eight years, engaging the local community and strengthening bonds. The project’s significance lies in its involvement of families to solve London’s soil pollution crisis through self-building.
2.16–2.18 Magdalena Gauden, Y3 ‘Baking Bonds Between Us’. This community-based project fills a void in interaction spaces by placing a bakery at its core. Through bakery workshops showcasing diverse cultural products, it fosters bonds among residents of various backgrounds. The community is involved in both the bakery and the building transformation, contributing to ceramic cladding production. Retaining onsite trees promotes wellbeing, while the building’s design encourages human interaction, relaxation and collaborative hand craft activities for passers-by.
Inspired by Gabriel Epstein’s Lansbury Estate, the project aims to bring delight and enjoyment to the local community.
2.19 Arushi Kulshreshtha, Y3 ‘Lights, Camera, Action!’. This project revitalises a neglected community garden near Regent’s Canal into a vibrant space for local businesses and aspiring filmmakers. It explores the intersection of theatre, film and architecture, incorporating stories and studio systems into the design. Located in Tower Hamlets’ Vyner Street, the building offers filming spaces, workshops, meeting rooms and flexible areas. It addresses sustainability by repurposing film waste into building materials, reducing carbon emissions and promoting a circular, self-build film studio and set construction workshop.
2.20 Rauf Sharifov, Y3 ‘Delivery Driver Union Hub’. The proposed project is a multifunctional centre for delivery drivers, constructed using self-recycled and self-manufactured polymer building materials. It provides a supportive and safe environment for drivers and addresses their neglected needs. The building incorporates a skill development scheme focused on plastic recycling and uses materials collected by drivers. It features a translucent façade, personalised spaces and an efficient flow to enhance driver comfort and create a sense of community.
2.21 Fardous Khalafalla, Y3 ‘If You Know, You Know’. This project focuses on the street fashion community of East London’s Brick Lane, catering to enthusiasts of the popular subculture of streetwear. Streetwear fashion emphasises exclusivity, limited edition releases and a direct-to-consumer approach. The project provides a dedicated space for urban creatives who connect through social media, showcasing their designs made in makeshift studios and photographed in makeshift sets. It recognises the need for infrastructure to support these designers and seeks to fill that gap through a centre that supports self-build fashion.































Maria Knutsson-Hall, Barry Wark

In Greek mythology, Prometheus was a Titan who moulded man from clay and stole fire from the Gods to give to humanity. He was so inventive that in Western classical traditions he became a figure who represented the quest for innovation. In giving fire to the humans, Prometheus had disobeyed Zeus and was severely punished; thus his name has also become associated with the unintended consequences of our actions and mass suffering.
In a more contemporary sense, Prometheanism is a term popularised by theorist John Dryzek. It describes an environmental orientation that views the Earth as a resource whose utility is determined primarily by human needs and interests, and whose environmental problems are overcome through human innovation. The unintended consequences of this anthropocentric world view have leveraged technology to accelerate productivity beyond sustainable levels and led to the exploitation of natural resources, creating the so-called Anthropocene age. We are presented on a daily basis with the devasting impact of human activity on the planet, revealing how our actions (predominantly in the Global North) are creating seemingly irreversible, ultimately horrific changes.
A monumental shift in how we perceive our relationship to the natural world is needed. We can no longer view humans and our artefacts as privileged, separate and impervious to everything on the planet, but must rather understand that all things on earth are enmeshed in a global ecology. Ecocentrism is an ontological and ethical belief that refutes existential privileges or divisions between human and non-human beings and could help to redefine how we see our place within the biosphere.
This year UG2 reinvigorated the environmental project in architecture with a sense of hopefulness, asking how ecocentric values might redirect Prometheanism towards creating buildings that could mitigate or even reverse environmental destruction. Students focused on innovation and lateral thinking, harnessing various technologies across design, simulation and fabrication. Projects were undertaken in Glasgow, the year the city hosted COP26, with proposals ranging from carbon capture facilities to refurbishment and reuse of derelict buildings and to new forms of spaces that help us connect with the environment.
Year 2
Magdalena Herman, Sophie Hoet, Jazzlyn Jansen, Arushi Kulshreshtha, Sze Chun Liu, Rauf Sharifov, Annika Siamwalla, Yong (Benedict) Siow, Besim Smakiq, Pasut Sudlabha
Year 3
Blenard Ademaj, Yuto Ikeda, Zahra Parhizi, Elijah Ramsay, Zuzanna Sienczyk, Elise Wehowski
Many thanks to our technical tutors and consultants: James Palmer, Levent Ozruh, Tony Le
2.1, 2.11–2.12 Yuto Ikeda, Y3 ‘The Clyde C: Urban Carbon Capture’. Inadequate progress in reducing carbon dioxide emissions has only aggravated advancing climate change. The project mitigates this from an architectural perspective, with a largescale installation of carbon capture technology. ‘The Clyde C’ is a project that integrates carbon removal within a residential programme. The site is situated on an abandoned dock in Govan, Glasgow, providing its industrial history of shipbuilding as a contextual background. The developed procedural system which generates computational aggregations helps optimise carbon capture performance and the integration of programmes. In addition, a stable carbon sink of biochar is introduced as an acoustic buffer between domestic and technical spaces, as well as for interstitial growth enhanced by its fertile characteristic. 2.2–2.4 Zuzanna Sienczyk , Y3 ‘Wool Experience’. Nearly 80% of building insulation is made from synthetic fibres whose production is a major contributor to climate change. This project examines the possibility of turning back to the use of a natural, often forgotten resource – wool. Through the use of a water jet machine, wool fibres can be embedded into timber, offering a level of insulation comparable to the synthetic alternative, while decreasing its environmental impact and reviving British industry. The main scope of the project is focused on designing an insulation system that will allow for the refurbishment of old buildings that currently lack insulation. Fleece as an insulator would not only benefit the environment, but also the Scottish economy, where the wool market experienced an unprecedented downturn during the pandemic, forcing numerous shepherds to burn their harvests to avoid rising costs.
2.5, 2.13 Jazzlyn Janssen, Y2 ‘Rewilding the City: New Botanical Gardens’. Inspired by the natural vegetation scattered around the edges of Glasgow’s historical façades, a bioreceptive building celebrates the too often discarded foliage. Focusing on the overlooked beauty of moss, the public open-air theatre on the west side of Glasgow embraces and designs for the effects of the natural environment on the architecture, encouraging biodiversity and coexistence. The controlled rewilding of its walls and the varying filtration of light play foundational roles in activating these spaces as flourishing human and non-human zones. This new method of engaging, experiencing and interacting with the environment balances the urban and the wild, allowing for ecological restoration and reconnection in a new form of botanical garden.
2.6 Sze Chun Liu, Y2 ‘High Rise’. The project speculates on an alternative future for the now demolished concrete Whitevale Towers in Glasgow’s east end. The project considers the anonymity of high-rise living and looks to foster community between residents through rezoning the tower into vertical neighbourhoods. The project is also driven by the importance of building reuse, with a particular focus on 20th-century residential towers, which are ubiquitous across the city of Glasgow.
2.7 Zahra Parhizi, Y3 ‘Living Claycelium’. This project uses mycelium as a bonding agent for clay, with 3D-printed ‘claycelium’ creating an active multilayer wall system with exceptional structural integrity and cladding properties. The architecture’s wall allows mycelium to continue to grow inside the clay, strengthening the building over time.
2.8–2.10 Elise Wehowski, Y3 ‘Carbon Building’. A new eco-conscious structure to unite the neighbourhood of Haghill, Glasgow, with a sheltered public plaza serving as a central meeting point. Biochar is produced by heating biomass and can store up to 70% of carbon present in the original material. The project integrates as much biochar as possible to help create a reusable carbon
sink. The component-based design allows for quick disassembly and can be reused many times. The designs are also cast in part-based moulds that can be assembled in any shape.
2.14–2.15 Blenard Ademaj, Y3 ‘The Scottish Multi-Faith Society’. Grottos occupy a space between architecture and garden, allowing humans and non-humans to coexist within a single environment. The project takes this notion of grottos and uses the unmaintained conditions of the site to create a language within the building, blurring the barrier between architecture and nature to enable us to bring forth new methods of construction.
2.16 Elijah Ramsay, Y3 ‘Eco Anxiety Retreat’. As awareness around the environmental crisis increases, many people are left filled with anxiety, hopelessness and a sense of nihilism. The building creates a space for users to experience the therapeutic and biophilic properties of natural landscapes and simultaneously witness the role of technology at work in mitigating environmental degradation. The project uses maerl, a natural entity similar to coral that sequesters carbon. Through environmental analysis, the spa is designed to propagate maerl in increasing amounts. The project is seen as a prototypical condition that could be replicated along the Scottish coast.
2.17 Arushi Kulshreshtha, Y2 ‘Clydeside CPA’. Located along the north bank of the River Clyde, the project transforms the Clyde riverside into an inclusive performance space and proposes Glasgow’s first external covered public space.
2.18 Magdalena Herman, Y2 ‘MycoClinic’. The MycoClinic provides biodegradable 3D-printed roofs made of mycelium and soil. After the mycoroof cladding decays and falls onto the ground, the process of mycoremediation begins to positively impact the environment.
2.19 Besim Smakiq, Y2 ‘Museum of the Glasgow Style’. The project explores ideas around camouflage and context through the use of neural-network styletransfer algorithms.
2.20 Yong (Benedict) Siow, Y2 ‘Co-Space’. The project speculates upon a series of structures for both humans and non-humans within the Scottish landscape.




















An object of observation can be, in a number of different ways, partly natural, partly artefactual, and something that is a natural object might nevertheless not be in a natural state.1
The above quote by English philosopher Malcolm Budd describes how one might engage and appreciate natural objects. It alludes to the fact that even if the origin of the object is natural, if it is not in a natural state then it ceases to be appreciated as such. This year, UG2 considered the reverse: If the object in question is a human artefact and is in a natural state, can we begin to appreciate it in the same way that one appreciates the natural world?
The effects of natural phenomena, such as erosion, staining and flora propagation, perpetually alter buildings. It is, therefore, interesting to consider ‘green’ architecture’s call to bring nature in when it is already there, we simply invest energy in design and maintenance strategies for its removal.
UG2 investigated biospatial conditions that encourage and embrace the visibility of their environment to dissolve the notion that they are separate and impervious to the natural world. The students explored projects in Rye, East Sussex, and considered how the wider environment has impacted the fortunes of human settlements, both positively and negatively. This is particularly pertinent for Rye, which is situated two miles from the sea at the confluence of three rivers, as the predicted rise in sea levels will severely affect the community, flooding entire neighbourhoods and returning it to a seaside town.
In addition to considering how to design for these scenarios, the students’ proposals endeavoured to develop novel aesthetic sensibilities of what ecological architecture could be beyond its current offerings. The projects work with new biomaterials, explore architecture’s role within ecology and create spaces that engage users’ imaginations to consider their sense of place within the biosphere.
Year 2
Seb Bellavia, Bogdan Botis, Grace BoytenHeyes, Kyra Johnston, Clara Popescu, Charmaine Tang, Chan Tou (Antonio) Yang
Year 3
Ho Kiu (Jeffrey) Cheung, Lavinia Fairlie, Tilly Grayson, Mankiran Kundi, Charles Liang, Harrison Maddox, Ioana-Stefania Petre
Technical tutors and consultants: Levent Ozruh, James Palmer
We would like to thank our critics: Hadin Charbel, Andreas Koerner, Deborah Lopez Lobato, Justin Nicholls, Levent Ozruh
1. Malcolm Budd (2002), The Aesthetic Appreciation of Nature: Essays on the Aesthetics of Nature (Oxford: Clarendon Press), p14.
2.1 Seb Bellavia, Y2 ‘Camber Pier’. The project develops the coastal village of Camber, East Sussex, through socio-economic and infrastructural means and acts as a coastal defence against erosion and rising sea levels. Utilising framework mesh elements and biorock to accrete material, the coastal defence becomes part of the beach itself and transforms the surrounding environment into a coexistent experiential space.
2.2 Harrison Maddox, Y3 ‘Myco House’. A project that explores the potential of mycelium-derived composite materials to create a modular and deployable flood defence system, with integrated housing units, for flood-prone areas in Rye, East Sussex. The project demonstrates the potential such a system has in relation to transit compatibility, interchangeability and bio-contribution.
2.3–2.4 Tilly Grayson, Y3 ‘Reforging Communites’. Focussing on Rye’s industrial history – ironworks and Cinque Ports – is a proposal for a museum as an homage to the past. The museum functions as a community hub to combat feelings of isolation in the community. The structure is designed for deconstruction and reconstruction, and questions whether iron has a place within an ecological future.
2.5–2.6 Ioana-Stefania Petre, Y3 ‘The Dungeness B Recommissioning Project’. The project recommissions the existing Dungeness B Nuclear Power Station to integrate the existing nearby community and to preserve the area’s authenticity. The building uses emblematic parts of the power station as a base for the proposal that includes housing, a library and art spaces.
2.7 Kyra Johnston, Y2 ‘Asylum Seeker Sanctuary’. A sanctuary for asylum seekers is situated around 45 minutes from the port of Dover, where most asylum seekers land after crossing the English Channel. The project explores how biophilic architecture can accommodate asylum seekers in a way that is empathetic and tranquil.
2.8 Charmaine Tang, Y2 ‘Out of Place’. A ‘natural state’ is often perceived as dirty or out of place. The project reimagines a crèche as a landscape and encourages children to explore, understand and learn from nature, not simply within the binary definitions of ‘dirty’ and ‘clean’, but in a respectful and playful way.
2.9 Clara Popescu, Y2 ‘Geomorphous Awareness’. The project approaches the problem of dune destabilisation in Camber Sands, East Sussex. Sitting at a key break within the dune environment, it shelters the site from prevailing winds and exploits sand deposition processes. The design allows for the integration of the environment into the building with the incorporation of nooks for plant and animal inhabitation.
2.10 Bogdan Botis, Y2 ‘The Preservation of Rye’s Salt Marshes’. The project explores the impact of flooding and coastal erosion on the salt marshes of Rye Harbour Nature Reserve, East Sussex. It proposes a series of structures that generate new opportunities for salt marshes to develop, adapt and thrive in the everchanging environmental conditions that they face.
2.11 Grace Boyten-Heyes, Y2 ‘Hydrobotanical Bathhouse’. A bathhouse that adapts to tidal flooding. Water intake is filtered using hydrobotany forming gardens that double up as social spaces. The building also monitors changing water conditions and responds to the return of Rye’s old coastline using the transitioning landscape to question object permanence and anthropocentric views of buildings as defying nature.
2.12–2.13 Mankiran Kundi, Y3 ‘A Revitalisation of Human and Biophilic Expression’. The project brings new life to the town of Rye, East Sussex, through the creation of spaces for self-expression, specifically graffiti. Biophilic design strategies, including the gradual propagation of moss, promote occupant wellbeing.
2.14–2.16 Lavinia Fairlie, Y3 ‘A Transient Harbour’. The proposed harbour in Rye, East Sussex, works as a system that responds to the shifting landscape threatened by rising sea levels and daily tidal fluctuations. The harbour retains the local seafaring community’s connection to the land, while improving marine biodiversity and water quality in the River Rother.
2.17–2.18 Ho Kiu (Jeffrey) Cheung, Y3 ‘By Land, Sea and Air: Reconfiguring fishing’. It is a global issue that current fishing methods destroy sea habitats. If these trends continue there will be little or no seafood available for sustainable harvest by 2080. Rye, East Sussex, is an inshore town with a rich history of fishing. The project explores drone fishing and biorock as sustainable approaches to reverse man-made damage.
2.19 Charles Liang, Y3 ‘Otter Daycare’. Otter spotting was first recorded in 1864 in a survey manual produced by the Sussex Wildlife Trust. An apex predator at the top of the food chain in its ecosystem, any river and wetland pollution results in a huge decline of otter numbers. The project proposes a kindergarten with an area for otter holts that achieves harmonious coexistence between humans and nature.
2.20–2.22 Chan Tou (Antonio) Yang, Y2 ‘Cohabitation
Within the Fluvial Landscape’. This project addresses the disappearance of public open spaces in UK coastal towns due to rising sea levels. A theatre and public space celebrate and embrace the natural rhythms of tidal movements. Glimpses of human/non-human habitation and interaction is observed through different zones of coexistence. Control and access are traded between species by the changing of the tides.
























Between the Object and the Picturesque Barry Wark, Maria Knutsson-Hall with Levent Ozruh

Barry Wark, Maria Knutsson-Hall with Levent Ozruh
In many cities our primary interaction with nature is through one of two perceptive models of appreciation, either as objects or as the picturesque. We commonly experience these objects of nature as potted plants and small items scavenged from their context and turned into sculptural artefacts. We consume images of nature through documentaries and social media feeds where we bask in their aesthetics.
Nature is neither object or image, it is a wide variety of environments and spaces in which we have evolved in and experienced for millennia. It is a complex ecosystem; it evolves over time and seasons; it is fragile and volatile; and it has the power to comfort and unnerve us. Our built environment has increasingly controlled and minimised the natural world to the point where we have become physiologically and perhaps psychologically separated from it. With this in mind, we looked to challenge the way we experience nature in our buildings, between the object and the picturesque.
Continuing our investigation of cities in desert biomes, this year we travelled to Amman, Jordan. The city is facing many challenges, such as its lack of urban mobility due to poor planning and steep topography; the prevalent use of air conditioning to cool its buildings; and a severe water shortage. The latter has led to the government anticipating that Amman will run out of water by 2025. That said, Jordanians have survived its harsh conditions for millennia. The Nabateans were masters of both rock-cut architecture and water management systems, allowing them to build the spectacular city of Petra.
This year’s projects imagine what impact further environmental degradation might have on the communities of Amman. We propose buildings that could mitigate these projected environments through passive design whilst still offering new forms of public and private space that respond to the evolving needs of urban life. We explore what an immersive nature space would mean in Amman, working with its idiosyncrasies and challenging the notion of sustainable architecture beyond its current image. Projects control the sand blown into the city by dust storms to create spatial effects; celebrate the rain, turning it into a precious spectacle to be appreciated; and develop novel bioaesthetics derived from the Wadi Rum desert and Petra. The resulting buildings engage with nature in novel ways, in the hope of strengthening citizens’ sense of place within their beautiful but precarious landscape.
Year 2
Sahba Akbar, John Krenshaw Clayson, Crina (Bianca) Croitoriu, Jina Gheini, Serim Hur, Meg Irwin, Yushen (Harry) Jia
Year 3
Hazel Balogun, Alisa Baraboshkina, Heather Black, Victoria Blackburn, Ocian Hamel-Smith, Evelyn Jesuraj, Yeree Kim, Luke Topping
We would like to thank James Palmer for his continued invaluable support in teaching the technology module
Thank you to our critics for their generosity in time, knowledge and spirit: Barbara-Ann CampbellLange, Marcos Cruz, Gonzalo Herrero, Casper Johnson, Laura Mark, Justin Nichols, Hannes Mayer
Thanks also to Mazen Alali for his expertise and guidance in Amman
2.1 John Krenshaw Clayson, Y2 ‘Figures of the Picturesque’. This project is a versatile market area that facilitates both formal and informal market vendors as well as aiding urban mobility in Amman. It uses convolutional neural networks to replicate drawn figures of nature and begin an exploration into a translation between analogue and digital tools. The scheme acts as a criticism of the way nature manifests in modern cities, especially in the West, where plants are often experienced as objects or as the picturesque. This is emphasised in Western planning through its concentration on vista; a characteristic not present in Arabic planning and perhaps evidential in arguing for the inherent biophilic qualities of Arabic planning.
2.2–2.3 Heather Black, Y3 ‘Arab League Headquarters’. The project explores notions of security architecture and its conservative approach to public interface. It challenges the traditions of secure spaces using the context of a new headquarters for the Arab League in Amman, Jordan. The design strategy of the site is focused on ‘sand flooding’ which changes the accessibility and security of the building. During events, the landscape is flooded and it is subsequently drained when the event has finished, returning the space to public use.
2.4, 2.6, 2.19 Hazel Balogun, Y3 ‘A System for Urban Flow’. Amman’s rapid expansion, topography and urban grid have contributed to poor pedestrian conditions. With the agenda of improving urban mobility in the city, the project provides an accessible route across one of the city’s hillside topographies. Influenced by modern and vernacular hydraulic technologies, the landscape captures seasonal stormwater to reduce the intensity of local flash-flooding.
2.5 Ocian Hamel-Smith, Y3 ‘Amman Marketplace’. The market, and its square, serves the most vulnerable demographics of Amman’s population, especially those whose right to work formally is not permitted due to various tiers of citizenship. This project aims to solidify an existing market, located on a floodplain, as a democratic space, with added commercial facilities to allow the local skilled tradesmen a space to feel safe and fulfilled.
2.7–2.8 Evelyn Jesuraj, Y3 ‘A Workplace for Women’. This project aims to address issues surrounding the high unemployment rates among female university graduates in Jordan. In order to bypass the law, many employers do not hire women as it triggers a policy where childcare facilities would have to be provided onsite. The design for an engineer’s office tackles this head-on by proposing a building where the workspace and creche are integrated in a novel construction system.
2.9 Luke Topping, Y3 ‘A New Direction for Ornament’. This project is a theatre in Downtown Amman positioned above the locally famous Jafra Café. The architectural investigation was inspired by a fascination with 21stcentury ornamentation in the Middle East, positioned from a contemporary digital discourse. The building is composed of geometries that tessellate between the scale of the building and the scale of the ornamental. The geometry provides directions North, South, East and West through large architectural gestures and the composition of its facades.
2.10 Yeree Kim, Y3 ‘Amman Building Centre’. This project investigates how contemporary design and fabrication tools could recreate the aesthetic qualities and passive environmental strategies found at Petra, Jordan. These topics are explored in a centre for the built environment in downtown Amman. The building acts as exhibition space and construction laboratory where the public can navigate and experience the spatial conditions of Jordan’s ancient architecture.
2.11 Jina Gheini, Y2 ‘Nature Play’. This project is an after-school activity centre. It focuses on creating outdoor and indoor playgrounds for children, increasing their
physical activity, as there is currently a lack of play areas in Amman. The design aims to provide spaces in which children can experience nature that is overgrown and wild, which has been shown to be beneficial for both their mental and physical health.
2.12–2.13 Alisa Baraboshkina, Y3 ‘Wedding by the Water’. This proposal is a wedding and events venue that endeavours to create a building system that alleviates its water demands within the context of Amman’s water-shortage crisis. This is investigated through a collection system of fine mesh panels, drawing moisture from the air in the mornings and providing solar shading in the daytime.
2.14 Crina (Bianca) Croitoriu, Y2 ‘Bedouin Heritage Centre’. This project provides the nomadic Bedouins with a space in the city to temporarily inhabit. It is also a place in which they can educate others about their culture and traditions aiding to the preservation of a culture which is predominantly transferred through speech.
2.15–2.16 Sahba Akbar, Y2 ‘Civic Mobility’. This project explores the challenges of urban mobility in Amman which are a product of its challenging topography and rapid expansion over the last 50 years. A cable-car system which terminates in downtown Amman is designed for the city. The building proposal is focused on this terminus, which also integrates space for an informal market and eating spaces. As a strategy to collect pollutants from the air and form a new spatial identity for the network, the work explores bioplastic as a disposal building skin.
2.17 Yushen (Harry) Jia, Y2 ‘The Saltwater Hammam’. This building is a bathhouse that uses filtered grey water to raise awareness of recycling water, an ever-dwindling natural resource in Amman. The building focuses on a journey of intensification. As visitors descend the spiral staircase, the concentration of space, light, vegetation, steam, and salt becomes denser.
2.18 Meg Irwin, Y2 ‘Alternative Health Centre’. The project for a healthcare centre in downtown Amman is inspired by the ancient architecture of Petra and how the Nabateans mastered their environment to provide passive thermal comfort. The project studies and implements these strategies, including the integration of water; working with hybrid construction and rock-cut spaces; and retreating behind the natural rock formations onsite which provide shade. The result is a building that opens a dialogue between natural and made, in the creation of a biophilic building.
2.20 Serim Hur, Y2 ‘Urban Cliff Techtonics’. This project explores the urban cliff hypothesis that states that our cities are akin to the habitat templates of cliffs. From observing the historic structures in Amman, the plant growth occurs where the stone blocks decreased in size, creating more gaps for water retention. Inspired by the iconic Hashem restaurant in downtown Amman, the building develops the ‘backstreet’ as a public space culture of the city in the creation of a kitchen and café.
2.21 Victoria Blackburn, Y3 ‘Al-Lweibdeh Preschool and Shelter’. The Al-Lweibdeh Preschool is an adaptable building, which delivers education for the local community and can transform to provide shelter and relief during times of crisis. The building both embraces and mitigates the increasing intensity of sandstorms in the Middle East, to raise local consciousness about the impact of global warming on the Jordanian environment.





















Urban Cliff Maria Knutsson-Hall, Barry Wark

This year, we explored the ‘urban cliff’ hypothesis, which identifies that our cities are often akin to the habitat templates of cliffs. This is based upon the similarities in their physical composition, whereby both have a lack of soil and rooting space, with moisture ranging from dry to waterlogged due to their hard and impervious surfaces. These conditions are apparent in abandoned buildings, pavements and along railway lines where our built environment is less polished and forgotten. Rather than try to implement a superficial and manicured nature, the unit instead looked to exploit these qualities and viewed it as fertile ground for the exploration of moments of wilderness in architecture.
We travelled to Morocco’s Eastern border with the Sahara Desert and the Atlas Mountain range, visiting Fes, Chefchaouen, Marrakesh and Ait Ben-Haddou. During our excursions, we cast a critical eye on traditional construction and vernacular architecture, observing and examining how these tight-knit cities form out of a necessity to escape the intense heat. The unit focused on civic architecture in Marrakesh, addressing projections on near future scenarios. The proposals explored issues such as mismanagement of natural resources, tourism, gentrification of the medina, education and other social services. Many projects also integrated new forms of public space into central Marrakesh to facilitate the varying lifestyles of the inhabitants of Ville Nouvelle and those of the old city.
In searching for urban cliff conditions, it was impossible not to take influence from Marrakesh’s famous riads, or courtyard houses. The calm, vegetated interiors of the buildings, with their delicate ornament, formed a strong contrast to the more robust and austere external conditions of the medina. Many of the students’ projects play on this internal/external duality found throughout the city, and employ the same passive cooling systems to regulate the thermal conditions in their proposals.
Inspired by the energy of the city, its deeply textured walls and its overgrown courtyards, the projects endeavoured to capture these qualities in an architecture that is at once progressive and, at the same time, inspired by its context. Balancing moments of high intensity with serenity, the work reimagines a variety of traditional materials through avant-garde design and fabrication tools. The proposals ultimately integrate water and vegetation in novel, considered and meaningful ways, to create alluring moments of atmospheric wilderness within the Marrakesh medina.
Year 2
Jean Bell, Nicholas Collee, James Della Valle, Ceren Erten, Paul Kohlhaussen, Ian Lim, Sut (Eunice) Lo, Natali Rayya, Josef Stoger, Kar (Tiffanie) Tseng
Year 3
Sheryl Beh, Katarzyna Dabrowska, Imogen Dhesi, Karishma Khajuria, Yue (Nicole) Ren, Benjamin Webster
Many thanks to our technical tutor James Palmer for his invaluable contribution to the unit and to Sonia Magdziarz for her passion and positivity in the teaching of the skills workshops
Thank you to our guest critics and those offering their comments and support throughout the year: Richard Beckett, Tom Budd, Barbara-Ann Campbell-Lange, Sir Peter Cook, Christina Grytten, Shireen Hamdan, Simon Herron, Andreas Koerner, Chee-Kit Lai, Justin Nicholls, Sara Shafiei, Sam Welham
We are grateful to our sponsor Populous for their continuing support of the unit
2.1 UG2, Y2 and Y3 ‘Model Display’. Collective output of the units model-centred, design methodology. These include spatial studies, material composites, tectonic assemblies and final building models.
2.2, 2.3, 2.7, 2.10 Imogen Dhesi, Y3 ‘Riad Al Nisa’. This project is a building for the women of Marrakesh who have become isolated or ostracised from their communities. Developed from the riad typology, it provides accommodation, vegetated courtyards and a new public space. This space functions as a mint tea garden and enables the building’s residents to interact and foster relationships with their neighbours. It is characterised by an opulent water feature, adapted to the Marrakesh climate, that passively cools the building whilst also providing an acoustic and atmospheric experience.
2.4–2.5 Benjamin Webster, Y3 ‘Modular Tectonic Experiments’. Early experiments investigating the potential of extruded earth and ceramic components to be assembled into larger structures.
2.6 Sheryl Beh, Y3 ‘Chinese Tourism Centre’. Chinese tourists visiting Morocco have increased since a visa requirement was removed. This project creates a building that assists these tourists in orientating themselves within the medina and, also, in training local tour guides in basic Mandarin language skills.
2.8 Ceren Erten, Y2 ‘Visiting School’. This project creates a school where children from rural areas can come and stay for a period of time in Marrakesh and access facilities that might not be available to them in their villages. The aim is that it will allow the country to develop its literacy rate and further its digital skills. The building is composed of classrooms and accommodation and, simultaneously, creates a cool underbelly, forming much-needed public space.
2.9 Josef Stoger, Y2 ‘Fashion School’. Motivated by the rich heritage of fashion in Marrakesh, the project looks to foster a culture that rejects the global fashion industry in the creation of a style that is idiosyncratic to the city. The proposal is for a dedicated fashion school where the building is inspired by the Berber tents and loose-fit fabrics adorned by older generations.
2.11 Yue (Nicole) Ren, Y3 ‘Souvenir Auction House’. Many souvenirs in the Marrakesh medina are not the product of careful hand-craft but are mass produced and imported from China. This proposal is for an auction house where traders can bid on larger quantities of these goods. It draws upon the smoothed-out aesthetic of many of the city’s buildings where, over time, they become bulbous as more layers of earth and clay are applied to their façades.
2.12 James Della Valle, Y2 ‘Light Entertainment’. This project builds on idea of the souk as a space for entertainment and performance. The proposal refurbishes a dilapidated collection of buildings to the north of Jemaa el-Fnaa Square, creating a series of urban incisions composed of lightweight walls, amphitheatres and rooftop canopies that act to frame and promote informal performance. The model is a 1:20 detail of how these incisions might meet the existing fabric.
2.13 Nicholas Collee, Y2 ‘House of Football’. This project creates a much-needed sports amenity in a poor part of the medina. It explores components and in-situ ‘post-carving’, after construction, to create visual complexity as a wayfinding strategy.
2.14 Ian Lim, Y2 ‘Souvenir Riad’. With Instagram tourism on the rise, what value is there in pictures as a souvenir? Questioning this phenomena, this project proposes that true value in travelling might be to obtain a unique experience or handmade souvenir. The result is a workshop building where visitors can create their own souvenirs guided by local craftspeople.
2.15 Katarzyna Dabrowska, Y3 ‘The Felt Garden’. This project explores notions of life and death in the creation of a garden, where felt urns are filled with seeds and the ashes of the deceased. Over time, the seeds germinate and become luscious plants. As generations pass, the felt bags disintegrate, allowing for new residents to bring life to the garden.
2.16 Jean Bell, Y2 ‘Rooftop Renewal-Casting Experiments’. This project embodies ideas about how one might capture the materiality and richness of the historic medina in which it is sited. It looks at casting with rubber moulds taken from existing wall conditions. The formwork of the new proposal is lined with the casts.
2.17 Karishma Khajuria, Y3 ‘Unfulfilled Aspirations’. This project endeavours to create a space where the women of Marrakesh are able to fulfil life ambitions. The building provides sanctuary, education and leisure. Conceived as a small neighbourhood with several riads and passageways, it is cooled and thermally regulated by screens and water channels.
2.18 Benjamin Webster, Y3 ‘Bab Doukala Riads’.
As the medina of Marrakesh is becoming gentrified, many people are being displaced to the outskirts of the city. The proposal is for new affordable housing in the interstitial space between the old medina wall and the new city. The housing design, inspired by the riad typology, is arranged around central courtyards hosting vegetation and water. The structure is created out of modular elements which utilise the courtyards to passively cool the building.
2.19 Sut (Eunice) Lo, Y2 ‘Medina Market’. There are many places to buy food in the medina but few places to sit and enjoy it. This project explores a new kind of market space for the medina that is, at once, a series of food stalls and, at the same time, a shaded and vegetated public space.
2.20 Natali Rayya, Y2 ‘Equine Veterinary Clinic’. Donkeys are still widely used throughout the medina to transport goods. Working long hours under intense heat can often put a lot of strain on these animals. This project creates a clinic where the animals can have check-ups and treatment, and is supported by a visitor centre where they can interact with retired and recovering animals in a garden courtyard.
2.21 Kar (Tiffanie) Tseng, Y2 ‘Tannery Working Men’s Club’. Morocco is known for its tanneries. The intense heat and smell during the production process can be too much for many visitors. The workers, however, endure these conditions daily with little respite or retreat. This project creates a humble working men’s club for the tanners where they can shower, rest and converse, away from the harsh sun. The building is thermally regulated through a series of wind towers that can be seen poking up from the medina floor.
2.22–2.23 Paul Kohlhaussen, Y2 ‘Hammam Bab Doukala’. The hammam in Morocco forms one of the most democratic and inclusive public spaces. This project explores the idea that the hammam can bridge the widening gulf between those of the medina and the new city, as Marrakesh evolves with increased tourism. The building is formed of a series of spatial gradients ranging from gender specific to mixed, hammam to spa and inside to outside. The design is characterised by new ceramic ornaments inspired by the interiors of the city’s architecture. These ceramics vary to either filter water or create ceiling conditions where condensation is collected and reused.

























Year 2
Sadika Begum, Yu Chow, Bryn Davies, Rusna Kohli, Hugo Loydell, Szymon Padlewski, Wei Tan, William Zeng
Year 3
Jie Yi Kuek, Jiyoon Lee, Linggezi Man, Joanna Mclean, Patrycja Panek, Renzhi Zeng
Special thanks to COBE Architects, BIG and Henning Larsen for welcoming us to their offices and giving us insight into their design approach and projects in Copenhagen and beyond
Thank you to our Year 3 Technical Tutor, David Edwards and to Thomas Bagnoli and David Edwards for Digital Workshops
Thank you to our critics: Yota Adilenidou, Thomas Bagnoli, Ping-Hsiang Chen, Mollie Claypool, Serena Croxson, David Edwards, Alicia Hidalgo, John McElgunn, Federico Nassetti, Jack Newton, Igor Pantic, Knot Saenawee, Jeroen Van Ameijde
UG2 investigates ideas through digital simulations, analogue prototypes, material tests and digital fabrication. We are keen to go beyond the conventional and explore building prototypes that are innovative, adaptive and responsive to the programme, users and context. Students develop individual architectural projects utilising algorithmic design methodology, iterative process physical and digital models and installations. This year we explored the notion of high density on a material, architectural and urban scale.
Students began the year by designing a small-scale architectural proposal: a pavilion, inspired by making and construction techniques, material studies and environmental performance. The projects question how architecture relates to time by looking at states of transformation from temporary to permanent on a material and spatial scale. Students adopted hybridised analogue and digital design methods in order to achieve highly articulated spatial constructs. The pavilion project informed the architectural language of the main building project whilst bringing in new parameters such as programme, context and local materials.
In response to our theme of ‘high density’, we investigated multi-use and multi-programmatic architectural typologies. The building projects are situated in Copenhagen, known for years for its horizontal skyline broken only by the spires and towers of its churches and castles. Its mixed-use centre is recognised as an example of best practice in urban planning. In recent years there has been a boom in urban development and modern architecture with large-scale, high-density projects being realised in the areas around the city centre. We looked at the juxtaposition between the medieval inner city of Copenhagen and the newer residential boroughs on the outskirts featuring new types of urban planning and high-density, mixed-use contemporary schemes by BIG amongst others.
Most of our sites are located in Nordhavn, a harbour area in Copenhagen which is the largest metropolitan development masterplan in Scandinavia. The projects raise a series of questions. How can we design for the future of co-working, co-living and cohabiting whilst improving the sense of community and relationship to nature? Can we create density without compromising space or quality? Can density improve the way we inhabit our cities? The final building projects are contextually sensitive while being contemporary and innovative in their architectural agenda. They are diverse in their scale and include a mixed-use bee hub, an innovative co-working centre and a boat repair house to name a few.

Fig. 2.1 Jiyoon Lee Y3, ‘Community Bee Farm’. Located in the centre of Copenhagen, the project proposes a new typology for urban living, integrated with an active vertical bee farm. A carefully choreographed dense system of porous filters allows for the cohabitation of bees and people. The beehive becomes the central piece in the proposal serving as an urban beacon in the area. Figs. 2.2 – 2.3 Wei Tan Y2, ‘Modular Aggregation’. By adopting modular aggregation techniques the project introduces a range of possible symbiotic inhabitations. Studies in material weathering and modular connectivity inform a flexible pavilion that responds to the user and weather. Fig. 2.4 Szymon Padlewski Y2, ‘Cancellous Pavilion’. The project investigates the spatial qualities of cancellous bone using digital simulations and material prototypes. The


final pavilion features porous concrete shells that appear to grow naturally from the landscape. Fig. 2.5 Renzhi Zeng Y3, ‘Inhabited Bridge’. The project proposes a structure that connects two important facilities on site: the Orientkaj metro station and Copenhagen International School. The building is designed as an inhabited bridge which functions as both infrastructure and social space for the local students. The envelope of the building was explored though a range of digital and physical models focused on optimised mesh tessellation.


Fig. 2.6 Joanna Mclean Y3, ‘Living Landscape Pavilion’. Situated in the Serpentine Gallery grounds in Hyde Park, London the project explores the constant and ever-changing process of destruction and renewal, catalysed by the natural geological processes of erosion, weathering and deposition. The landscape pavilion augments in response to rainfall and time. Fig. 2.7 Yu Chow Y2, ‘Nordhavn School’. The building presents ways of facilitating non-verbal communication between the students by utilising vertical atria and classrooms on different levels. Sleeping pockets and play areas are hidden within the façade and a central spine wall, all hidden under a large landscaped roof accessible to the public on the outside.
Fig. 2.8 Linggezi Man Y3, ‘The Elevated Theatre’. The building comprises an elevated auditorium within a dense lightweight

woven structural system. A series of physical and digital prototypes using threads and points were made to achieve the optimal structural system. Multiple cycle and pedestrian paths weave through the building and connect to the existing infrastructure, allowing visitors to freely pass through and over the building at any time.


Fig. 2.9 Jie Yi Y3, ‘Hydrotherapy Rehabilitation Centre’. Located in the Nordhavn Harbour area, the building consists of an integrated system of public and private routes, pools and enclosed volumes, all woven together by a complex timber structural system. Variations of wood bending and layering are used to create primary structure, shading devices and transitions between slab and façade. Fig. 2.10 Bryn Davies Y2, ‘Public Market’. The project is inspired by initial studies of local Danish allotments. The building features elevated stepped allotment platforms which overlook a flexible market place on the ground underneath. Fig. 2.11 Jiyoon Lee Y3, ‘Folding Pavilion’. The pavilion explores the idea of folding and unfolding in response to time and solar movement. A series of physical devices trace and capture various lighting conditions
throughout the day. Figs. 2.12 – 2.13 Jiyoon Lee Y3, ‘Community Bee Farm’. The symbiotic relationship between bees and people is controlled by a series of meshed filters with a range of opening sizes. The building also incorporates modular vertical gardens which provide an improved acoustic environment but also food source for the bees. The accommodation units feature private gardens and courtyards, allowing for views towards the central beehive and beyond.




Fig. 2.14 Joanna Mclean Y3, ‘Charlie and The Green Juice Factory’. The proposal is an organic fruit and vegetable market place, providing fresh goods to the growing community of Nordhavn. Produce unsold in the market is transferred into juice production, whereby the traditionally linear production process is reconfigured vertically and exposed in order for the visiting public to wander, explore and experience the process of fresh juice production. A variety of green juices are produced, changing in accordance with the available produce. Figs. 2.15 – 2.16 Patrycja Panek Y3, ‘Water House’. The project aims to explore entropic architectural design in the context of the hydro-environmental education and wellbeing centre in Copenhagen. The design encompasses two distinctive spectrums of experience, inside and outside, via bioengineered
brick façades and natural light filtering. The light is diffused via wall perforations and cascading waterfalls. The user is encouraged to engage with and explore the methods of water purification by visiting various zones within the landscape.



Figs. 2.17 – 2.18 Rusna Kohli Y2, ‘Elderly Community Villas’. In response to Nordavn’s mission to be the most sustainable district of Copenhagen, the project interweaves public and private activities, through layered landscape and greenhouses organised by a water channelling system. The project is comprised of modular living quarters under a horizontal system of water pools and falls, establishing a new horizontal density typology. Fig. 2.19 William Zeng Y2, ‘Street Food Market’. Inspired by traditional market arcades and canopies, the project incorporates covered streets and pavilions under an undulating colourful roof. Layers of perforated panels filter the light, creating an ever-changing spatial experience throughout the day. The roof structure is used to organise the spaces and circulation at ground level.



Figs. 2.20 – 2.22 Hugo Loydell Y2, ‘Maritime Education and Training Centre’. Located in Redmolen, an island to the east of Nordhavn, the centre incorporates sailing teaching facilities and communal space. The site is known for its nautical past, originally having been rebuilt from industrial docks. A series of digital fragment studies inform the overall structural system, which consists of large glulam structural timber frames and concrete deck. The new water inlets are sculpted to better integrate the boats with the internal working of the building. With the main harbour of Nordhavn located to the left of the building, the structure rises to open itself to the public. The main atrium provides access to the workshop, boat inlets, lecture theatre and classrooms. The timber structure transitions from the roof into the interiors to envelop
circulation and internal volumes, allowing the public and sailing students to navigate the space fluidly while still experiencing the building’s aesthetics.



Year 2
Paul Brooke, Yuqi Cai, Wei Ning Chung, Sebastian Fathi, Grey Grierson, Kyuri Kim, Samuel Martin
Year 3
Rupinder Gidar, Ziyu Jiang, Rachel Lee, Tung Yi Leung, Rory Noble-Turner, William Stephens, Yu Wu, Qiming Yang
Thank you to:
Consultants:
Year 3 Technical Tutor and Digital Workshops – David Edwards (Herzog & de Meuron)
Digital Workshops:
Wang Fung Chan (Heatherwick Studio), Niran Buyukkoz (Zaha Hadid Architects), Andrew Chard (Heatherwick Studio)
Guest Critics: David Edwards (Herzog & de Meuron), Konstantinos Chalaris (Chelsea College of Art), Aleksandar Bursac (Soomeen Hahm Design), Pereen d’Avoine (Russian for Fish), Nilesh Mahendra Shah (Russian for Fish), Serena Croxson, Manuel Jiménez García (The Bartlett, UCL), Caroline Lundin (Sundae Creative), Igor Pantic (Zaha Hadid Architects)
Guest Critics: David Edwards (Herzog & de Meuron), Konstantinos Chalaris (Chelsea College of Art), Aleksandar Bursac (Soomeen Hahm Design), Pereen d’Avoine (Russian for Fish), Nilesh Mahendra Shah (Russian for Fish), Serena Croxson, Manuel Jiménez García (The Bartlett, UCL), Caroline Lundin (Sundae Creative), Igor Pantic (Zaha Hadid Architects)
In Unit 2, we develop ideas through digital simulations, analogue prototypes, material tests and digital fabrication. We encourage digital and analogue making, shifting quickly between the hand and the computer. We are inspired by local materials, textures, architectural and urban typologies and local context.
Our students’ projects this year are situated in Mexico City, a large metropolis with an ever-growing population. Our theme focused on the notion of spontaneous procedures on an architectural and urban scale. Through an understanding of algorithmic design methodology, we asked the students to juxtapose organised and spontaneous systems – could we design through transformation, adaptation, re-organisation? We looked at the interfaces between stasis and flux, local and global, bottom-up and top-down, natural and artificial. Throughout the year, students developed highly spatial and architectural individual approaches informed by sophisticated urban, spatial and material research.
The year commenced with a short research project where students developed a range of analogue and physical prototypes informed by a procedure – a making technique. These initial constructs were then developed into architectural spatial systems, resulting in intricate structures, elaborate skins and integrated inhabited spaces. Students were encouraged to combine a range of design techniques in order to achieve highly articulated spatial hybrid constructs.
After the field trip in January, students chose individual sites and developed building projects in Mexico City. We were fascinated by the Mayan ruins still visible in the city, Louis Barragan’s beautiful use of colour and texture and the urban mix of various programmes, rituals, and ornament and building styles. We drew inspiration from the growing urban patterns in the city, the naturally occurring slum areas and defined modernist city blocks, and the interaction between natural and urban landscapes. We explored Mexico City as a spontaneous urban system and asked students to respond to its emerging contradictions. The projects are contextually sensitive while being contemporary and innovative in their architectural agenda. They vary in scale – from a secluded nunnery to a large infrastructural hub in the historic centre – with each responding to the cultural and urban diversities we found in the city.

Fig. 2.1 Tung Yi Leung Y3, ‘Reconstructing Mayan Architecture’. Based in the heart of Mexico City, the aim of the project is to reinterpret and reconstruct Mayan relief patterns with modern digital technology. Inspired by the geometric architectural decorations on the ornamental zoomorphic entrance from the Rio Bec, Chenes and Puuc regions from the 7th to 10th centuries, the building consists of a reusable building fabric that constantly changes according to the reconstruction that is taking place. Fig. 2.2 Rupinder Gidar Y3, ‘Reconfigurable Laminated Structures’. The building project is a new factory typology where flexible surfaces control visibility and light. Fig. 2.3 Kyuri Kim Y2, ‘Woven Structure’. The project studies the behaviour of woven strands through large-scale physical prototypes of foam and concrete. Fig. 2.4 Rachel Lee Y3,


‘Liquid Formations’. A particular interest in fluid dynamics and substances interaction was tested through a series of casts and moulds. These initial tests informed the notion of generating unique spaces using simulation in the building project later on. Fig. 2.5 Paul Brooke Y2, ‘OsteoFabricate’. The project focused on the transformation of fluid, freeforming material such as expanding foam into a structured and controlled architectural proposal. The resulting porosity and opacity gradients allow for varying quality of light. The material was tested using a bespoke apparatus in order to create a family of structural joints.


Fig. 2.6 Wei Ning Chung Y2, ‘Mexican Pottery Workshop’. The building consists of modular timber-frame components which can be adapted for various uses – housing market stalls, or creating stairs and roof platforms. The structures plug into the existing market street, creating a dialogue with the context and existing activities. Fig. 2.7 Samuel Martin Y2, ‘Cinema Complex’. The project is located in a residential area in Mexico City. Dynamic façade patterns are used as projection devices, creating an ever-changing building skin. The building skin also guides visitors through the building, creating a smooth transition between inside and outside.
Fig. 2.8 Yu Wu Y3, ‘Dancing School’. The design is inspired by traditional Mexican dresses with their rich layers of patterns and materials. Studies into the movement of a Mexican dress


led to the development of a complex hyperbolic roof structure. The roof folds create shading for the outdoor performance area and also establish a highly spatial experience for the dancers inside. Fig. 2.9 Sebastian Fathi Y2, ‘Glimpses into a Political Symbiosis’. The site in Mexico City is adjacent to Bazar El Oro which is a local ‘tianguis’ (temporary market). The proposal plays with a very particular political idiom in the city – the exchange between the market union leaders and the political delegate of the borough. The building provides a hostel for the tianguis market vendors between their nomadic trips across the city visiting other markets, office space for the local delegate and the vendors, and in addition, it augments the existing tianguis by introducing a new through-route.


Figs. 2.10 – 2.11 Grey Grierson Y2, ‘Student Housing’. The project reinterprets the traditional ‘Vecidade’ model (collective housing) for Mexico City’s student population. The angular outer geometry of the building is designed to draw away from the noise of the busy traffic on the adjacent motorway. The idea of the fold is taken from the entrance through to the communal courtyard landscape and the student rooms. The doors of the student units are able to fold across, allowing the students to create a highly social atmosphere. The skin is inspired by the geometric nature of traditional Mexican textiles which blend patterns of various geometries and sizes into one another. Figs. 2.12 – 2.14 Qiming Yang Y3, ‘Piñata Children's Workshop’. Piñata plays an important social role in Mexican’s festival culture. The building provides space for children to


design, make and showcase their own piñatas. The content of the building would eventually attract both locals and tourists so that they could experience the palace of piñatas as well as the nearby park. A series of study models reveals a deep façade with inhabited pockets and intricate structures, allowing for views and light to penetrate the building.



Figs. 2.15 – 2.19 Rory Noble-Turner Y3, ‘A Descent into Hallowed Strata’. Located in the historic centre of Mexico City, the scheme proposes to rejuvenate the existing Pino Suárez public plaza to provide a new transportation hub and market space within a deep-excavated landscape. The project proposes an architecture of continuous excavation – a space that is constantly growing whilst adapting to ever-changing programmatic, structural and geological conditions. It was on this site, half a millennium ago, that magnificent architecture once stood, its passages and cooling channels built in honour of the flow of wind and rain. Today, all that remains of this historic place of worship is the crown jewel of the once-great complex, the central shrine to Ehecatl. The shrine’s moment of resurrection has finally arrived, its position of power rightfully
restored upon a new celebratory pedestal, seated at the heart of this proposed scheme. One could argue that today’s modern cathedrals take the form of transportation hubs, an architecture in honour of the flow of people, cultures and ideas. This scheme aims to become just that, a future monument to a city densely layered in history and culture. A constructed ruin, where the boundary between architecture and landscape becomes blurred. This four-dimensional, inhabited excavation occurs in stages, after one year, 10 years, 25 years, perhaps even 50 years; with the architecture constantly adapting to unpredictable geological conditions, the unforeseen unearthing of Aztec remains, and the rapidly evolving programmatic and infrastructural requirements.





Fig. 2.20 Yuqi Cai Y2, ‘Tacubaya Ceramic Gallery’. The site sits next to the ‘Triangle of Tacubaya’, a cultural destination consisting of two art galleries and Luis Barragan House and Studio. The programme is a ceramic artist residence. The building exhibits ceramic artworks and also provides a residence for national and international ceramic artists to stay in temporarily. Fig. 2.21 William Stephens Y3, ‘Permeating the Gated School’. Hanging tensile structures create an upside-down school, allowing for existing archaeological heritage and public space to exist below. Intricate structural skin allows light to penetrate deep into the classrooms and ground plane. Figs. 2.22 – 2.24 Ziyu Jiang Y3, ‘Monastic Centre’. Inspired by early studies into water flow and corrosion, the project exploits the potential of entropic


design in the form of a nunnery in Mexico City. The general arrangement of water, trees and public circulation through the building forms a symbiotic system. The skin and roof are designed to absorb and collect water through porous concrete panels which gradually degrade over time. Spaces are naturally uncovered over the 100-year lifespan of the building, colours bloom over time due to the corrosion of copper panelling, light enters through increasingly porous external walls, and water is allowed to flow via its natural path through the site, as if to converse with the delicate and fragile relationship between time and architecture.



Year 2
Yihan (Zara) Chen, Wing (Melody) Chu, Hanadi Izzuddin, Jaejun Kim, Aleksandra Kugacka, Rachel Lee, Niraj Shah, Ziyuan (Oliver) Zhu
Year 3
Yan Ho (Brian) Cheung, Hilda Hiong, Ning (Yi) Lui , Minesh Patel, Tobias Petyt, Sze (Viola) Poon, Joanna Rzewuska, Meng (Tony) Zhao
Thank you to our consultants and critics: Richard Beckett, Isaïe Bloch, Harry Bucknall, Mathew Butcher, Marjan Colletti, Mollie Claypool, Manuel Jimenez Garcia, Yael Riesner, Bob Sheil, David Storring and Barry Wark
One must avoid affectation and practice in all things a certain sprezzatura, disdain or carelessness, so as to conceal art, and make whatever is done or said appear to be without effort and almost without any thought about it. The Book of the Courtier, Baldassare Castiglione, 1528
This year UG2 explored spaces for living and socialising in the future using time-based tools and advanced 3D modelling computation techniques driven by emergent paradigms in digital design. We emphasised the use of Sprezzatura, a courtier’s most valuable skill, also defined as nonchalance, studied carelessness or well- rehearsed naturalness. The focus was on demonstrating how the perfect courtier, in order to behave with Sprezzatura, uses strategies of rhetoric and deceit and how these behavioural strategies and techniques can be reconfigured to drive a contemporary design methodology using advanced digital tools.
In Term 1, we familiarised ourselves with the concept of Sprezzatura through a series of task-specific workshops which investigated parallel digital and spatial design strategies in architecture. We decoded the underlining principles of this socio-cultural behaviour and used them to inform and customise specific computational techniques to explore concepts such as intricacy, redundancy, exuberance and excess. The design task was to propose a series of inhabitable spaces/fragments in Rome. The function and context of our proposals were dependent on individual preference, however, they all needed to exemplify the tension that Sprezzatura provides such as: complex vs. simple; extravagant vs. plain; redundant vs. essential; eccentric vs. balanced; intricate vs. smooth; explicit vs. ambiguous; formed vs. amorphous. At the same time we discussed the contemporary confrontation between design mediums (manual, intuitive) and automatic tools (algorithmic).
During Terms 2 and 3 we designed a public Villa hybridised with additional programmes sited in Rome, Venice or Florence. The design process began by criticising the typology of the Villa and proposing new radical possibilities of inhabitation. We re-examined housing as a body of formal and behavioural possibilities, triggering new and innovative opportunities for the design of living and socialising spaces. The control, rigour and precision of some of our techniques would interlock with the redundancy, vagueness and ambiguity that others produce. Sprezzatura, by nature, is an art of dissimulation and a process of communication whose extreme application will hyper-polarise the output, from which will emerge a new ‘ego’, or in our case, a new architectural typology; an emergent architectural persona.

Fig. 2.1 Ning (Yi) Lui Y3, ‘Tough Love’, Wedding Venue Obstacle Course, Venice. Typically the altar and dome of a cathedral represent heaven, and in this project this place of holy matrimony has been reinvented. The wedding venue creates an engaging, and more realistic representation of communal union, whilst providing visitors with a picturesque and romantic setting. Fig. 2.2 Ning (Yi) Lui Y3, ‘Tough Love’, Wedding Venue Obstacle Course, Venice. The cathedral draws on typical Gothic elements, as gargoyles adorn the facades. The carved grotesques prevent rainwater damage, as water spouts theatrically from their mouths. The functional and highly ornamental nature of this is quintessentially Gothic. Figs. 2.3 & 2.5 Hanadi Izzuddin Y2, ‘Birdwatching Pavilion’, Rome. The project explores a transition in formal condition
through three architectural components that mediate between states of solidity, fibrosity and porosity: a bench, a staircase and three birdwatching pods. The formal state is varied to inform functionality, such as the creation of a porous artificial nest where the figure is able to materialise and dematerialise as one transits into the realm of the birds. Fig. 2.4 Minesh Patel Y3, ‘Private Members Club’, Rome. Situated on Tiber Island, the building provides facilities for creatives and media artists working and traveling through the city. The proposal investigates various notions of privacy and voyeurism by accentuating topographic characteristics of the site to influence movement patterns and visual permeability throughout the building.




Fig. 2.6 Tobias Petyt Y3, ‘Steampunk Villa-Cum-Workshop Residence’, Rome. This project takes the original purpose of the Italian renaissance villa as an agricultural farmhouse and re-interpreted it within an urban industrial context. The project combines the domestic value of a villa with the output qualities of a factory to create a completely self-automated building reminiscent of Rome’s industrial past intertwined with Italian Renaissance flamboyance. Fig. 2.7 Hilda Hiong Y3, ‘Villa for Gymnast’, Rome. Ornamentation is re-appropriated as an architectural device embedded with gymnastics exercising equipment for people to practice and develop physio-motoric skills. The wall also acts as a perforated interstitial space filtering air and facilitating natural ventilation throughout the building. Fig 2.8 Tobias Petyt Y3, ‘Dystopian Prosthesis’,
Venice. Derived from interpretations of Sprezzatura, the design focused around developing a mecha-organic prosthetic set in a Venetian dystopian future. Out of this intervention developed the programme of a clockmaker character in pursuit of rebuilding his home on an abandoned classic Venetian façade repaired with leftover metal pieces, clockwork mechanical elements intertwined with Gothic Renaissance architecture. Fig. 2.9 Yan Ho (Brian) Cheung Y3, ‘Bath House Villa’, Tuscany. Situated next to a natural hot spring, the building pumps mineral-rich water into an aggregation of outdoor bath pools embedded into the slope of the landscape. The topography of the baths will evolve over time as a consequence of the precipitation of the water into calcium concretions.




Fig. 2.10 Jaejun Kim Y2, ‘Inhabitable Bridge’, Venice. Jaejun’s project investigates the possibility of a multi-directional inhabitable bridge which would link a number cul-de-sacs disconnected by the Venetian canals whilst also providing space for leisure and public gatherings. Fig. 2.11 Jaejun Kim Y2, ‘Villa + Glassblowing Workshop’, Murano Island, Venice. Physical Model. Expressing chemical bond changes in glass molecules through intense heat, the overall building structure and façade envelope is developed to represent a delicate artefact referential to its immediate context. Fig. 2.12 Niraj Shah Y2, ‘Advanced Material Laboratory and Residence’, Modena. Based near Italy’s illustrious ‘Motor Valley’, this building is inspired by automotive and aviation technologies, materials and manufacture process. The proposal embeds
Modena’s car culture in Parco Enzo Ferrari, as well as being the luxury residence of the owner. Fig. 2.13 Tony Zhao Y3, ‘Film Studio Villa’, Venice. The project borrows from futuristic scenarios of science-fiction filmography, as well as contemporary technologies in fabrication, to propose a home for a movie director. Situated on Lido Island near the Venice Film Festival, the villa represents an assemblage of technological interventions, controlled underwater cooling systems and audio-visual equipment.




Fig. 2.14 Aleksandra Kugacka Y2, ‘Aroma Villa’, Rome. Wall fragment and ceiling detail.The project was driven by the investigation on materialising the evanescent quality of smell. It plays on the notion of seduction and attraction through blurring the line between open and closed spaces. The villa undertakes a sensory journey which leads from the herbal gardens through the distillation of essential oils to the experience in the aromatherapy chambers. The exuberant factory identity of the building that produces smells make visitors reconnect with their senses in order to produce a strong and lasting image of architecture. Fig. 2.15
Sze (Viola) Poon Y3, ‘Retreat Villa Borghese’, Rome. Stair detail. The building provides a retreat from the busy park and city life where visitors are guided through the infrastructure
with the movement of water. A series of inhabitable spaces and reconstructed public parks aims to raise awareness of the current water situation through investigation of the integration of ecology and infrastructure, while providing multiple platforms for interaction with the aquatic world.
Fig. 2.16 Ning (Yi) Lui Y3, ‘Tough Love’, A Wedding Venue Obstacle Course, Venice. Extravagant, daring and excessive in form, this cathedral allows all the passion that love entails to come alive. Marriage and companionship are celebrated for what they really are; beautiful, spectacular and undoubtedly tough.



Yat (Heidi) Au-Yeung, Hoi Man (Christy) Cheung, Lester Tian-Lang Cheung, Maria Marysia Chodzen, Klaudia Kepinska, Yik Yu (Romario) Lai, Maryna Omelchenko, Issui Shioura, Ben Sykes-Thompson
Nicola Chan, Ka Yi Kwan, Cheoi-Yeung (Nick) Park, Catherine Penn, Sophie Tait, Astrid Von Heideken, Allegra Willder
Thanks to our technology consultant, Robert Haworth. Thank you to our guest critics for their wit and wisdom: Kathy Basheva, Harry Bucknall, Matthew Butcher, Mollie Claypool, Melissa Clinch, William Firebrace, Murray Fraser, Mikala Holme Samsøe, Luke Olsen, Yael Reisner, Amandus Sattler, Bob Sheil, Guvenc Topcuoglu, Barry Wark
We are interested in cities, their patterns, structures, and the variety of spaces and ecosystems that exist within them. This year we deepened our ongoing research by focusing on the relationship between formal and informal modes of settlement as interdependent, symbiotic entities within the fragile and often unsustainable environment of Rio de Janeiro. To design in these circumstances we needed to further our understanding of various geopolitical, socioeconomic and environmental implications set within an increasingly complex and dynamic city. We considered contentious topics ranging from population expansion, gentrification, demolition and transportation to deforestation and land-use zoning. The reality of these issues has moulded Rio de Janeiro’s urban fabric into a continuously transforming landscape, a patchwork of organised and unorganised enclaves offering fertile ground for architectural surprise and innovation.
The year began by conducting a series of exploratory studies aimed at understanding specific sites in Rio that have been transformed by both formal and informal forces into unique spatial conditions. Our findings led towards the development of speculative urban scenarios, outlining new models for living and working in the city. Project 1 emerged as an in-depth analysis of a key segment in our proposed scenarios. It was further refined through the synthesis of broader functional, environmental and technological implications. The approach to this project was experimental: propositions ranged from small-scale architectural constructs to large strategic masterplans with shared requirements where cohabitation, socialising or governance can take place.
Project 2: Hybrid
Following our fieldtrip we combined Project 1 investigations and onsite experiences into hybridised building programmes tuned to revitalise specific sites within the city centre. The unit had to demonstrate an entrepreneurial capacity bringing together unexpected urban conditions, users, social issues and building functions. Students were encouraged to combine divergent themes such as the planned and spontaneous, the homogenous and diverse, the explicit and subversive, the synthetic and organic.
UG2 pursued architecture as a hybridised entity capable of combining unorthodox functions and processes that currently define much of the organisational character of Rio de Janeiro. Students’ final projects culminated in the proposals of prototypical building typologies and adaptive infrastructures within the context of ecologically responsive and specialised environments.

Fig. 2.1 Ben Sykes-Thompson Y2, ‘Transport Service Interchange and Sport Complex’. The project investigates the introduction of a responsive transport and service network across Rio to link the disconnected informal ‘favelas’ to the surrounding formal ‘barrio’. The creation of a sports complex between two communities aims to encourage interaction and focus growth around the seams of the fractured city. Fig. 2.2 Sophie Tait Y3, ‘Rio Community Theatre’. The project explores various notions of transformative architecture and provides a variety of stages and spaces for experimental and interactive performances. Fig. 2.3 Klaudia Kepinska Y2, ‘Museum of African-Brazilian Culture’. The museum is located on an important archealogical site and acts as a permanent memorial of the violence against humanity that the slavery
period represented. Fig. 2.4 Ka Yi Kwan Y3, ‘Fitness Farm and Spa Centre’. This sports facility uses the sun’s energy to create a variety of micro-climatic zones inside and around the building to increase the performance of its users. Fig. 2.5 Ben Sykes-Thompson Y2, ‘Transport Service Interchange and Sport Complex’.




Figs. 2.6 – 2.7 Nicola Chan Y3, ‘Float to Favela’. A project that identifies three key issues in Rio de Janeiro’s favelas: ‘water and sanitation’, ‘health and rehabilitation’ and ‘n ature and public space’. It takes advantage of the popular and widely broadcast Rio Carnival to approach these topics in
Game developments in the favelas, before the demolition of culturally important buildings has caused the loss of the harmonised community. By proposing a pigment factory and market, the project aims to regain the sense of community through introducing colour to the surrounding context, but



Fig. 2.9 Issui Shioura Y2, ‘Medical Marijuana Centre’. This building project speculates on architecture dedicated to the research and consumption of marijuana as a legalised drug. Fig. 2.10 Hoi Man (Christy) Cheung Y2, ‘Sports and Spa Complex’. The project aims at narrowing the social gap between the rich and the poor in Rio de Janeiro, through using ‘beauty’ as a theme for social interaction. Fig. 2.11 Catherine Penn Y3, ‘The Mangrove Reforestation Centre’. An ecotourism resort focusing on the reconstruction of historical mangrove forests around the Barra Tijuca. Fig. 2.12 Allegra Willder Y3, ‘Religious Community Centre’. The purpose of the centre is to provide the people of the Flamengo neighbourhood with the opportunity to address their wellbeing in terms of mind, body and spirit. Fig. 2.13 Maria Marysia Chodzen Y2, ‘Instituto
Árvore de Rio de Janeiro’. A museum dedicated to the forests of Brazil and also a tree-growing nursery, which provides seed banks, seed drying, germination and tree planting processes for the replantation of trees into favelas. Fig. 2.14 Yik Yu (Romario) Lai Y2, ‘Library Garden’. The design takes into account technical innovation of aeroponics as the basic means of growing native guarana berries while spatially experimenting the interplay between vegetation, people movement, and library facilities. Fig. 2.15 Maryna Omelchenko Y2, ‘Favela Residential Extension’. This scheme investigates and proposes a strategy to build new homes in the favela through the use of sustainable materials, the provision of community facilities and public spaces.







Fig. 2.16 Lester Tian-Lang Cheung Y2, ‘Rio Art Biennale’. The project proposes a series of workshops and open air exhibition spaces to accommodate the annual art bienalle festival. The upper floor of the building is dedicated as a living area for artists-in-residence. Fig. 2.17 Astrid von Heideken Y3, ‘Archive of Lost Architecture’. The archive and exhibition pavillion is located in the centre of Rio de Janeiro and addresses the history of lost colonial architecture. Fig. 2.18 Yat (Heidi) Au-Yeung Y2, ‘Portable Music Venue’. The project investigates lightweight transportable architectures that also provides music and performance facilities for the Afro Reggae movement in Rio de Janeiro. Fig. 2.19 Lester Tian-Lang Cheung Y2, ‘Rio Art Biennale’.




Damjan Iliev, Julian Krueger
Damjan Iliev, Julian Krüger
Year 2
Samual Coulton, Ren Zhi Goh, Cheng Guo, Jun Wing (Michelle) Ho, Cheung (Ivan) Hung, Nikolas Kourtis, Ka Wing (Clarence) Ku, Masahiro Nakamura, Shi Qi (Kiki) Tu
Year 3
Quiling Guan, Linghze (Frances) Lu, Cheol-Young (Nick) Park, Bethany Penman, Cassidy Reid, Saijel Taank, Marie Walker-Smith, Jessica Wang
Unit 2 would like to thank Oliver Wilton (Technology Consultant), and our guest critics for their wit and wisdom: Bihter Almaç, Matthew Butcher, Mollie Claypool, William Firebrace, Rob Howarth, Jack Newton, Yael Reisner. We would like to extend particular thanks on behalf of the students to Barry Wark for his extraordinary support, design input and organisation of workshops throughout the year
www.unit-2.com
In light of present global crises such as population expansion, natural resource depletion and environmental disasters, there is an urgent need to align urban development and architecture with nature. This year we addressed the issue of sustainability by focusing on ‘Urban Ecology’, an interdisciplinary field concerned with the relationship between living organisms and their urban environments. In the past few decades, Urban Ecology has offered great insights into how cities can become places where artificial and natural ecosystems coexist in harmony, considering both built and natural environments as equal habitats for biodiversity and cities as multifaceted, interstitial products in the discourse of human-nature interaction.
Term 1 focused on the notion of thresholds and their ability to mediate between nature and architecture. Students were asked to design a site-specific, small-scale, inhabitable structure as an integral part of a larger whole in the area around Camden Market. The main aim was to rethink architecture’s role as a mediator between habitat and immediate surroundings for the benefit of a more ecologically balanced urban environment.
In December we visited Istanbul, a city that has undergone a fascinating transformative period, from an ancient settlement situated within the Bosphorus bay area to a massive urban agglomeration. Home to one of the largest urban populations in the world, Istanbul is also a city of the small, the intimate and the specific. It is saturated with intricate passageways, makeshift structures, vibrant communities and unique experiences. However, fast paced urban development, population growth, infrastructure failure and transforming economic realities postulate an ever-changing landscape. The city lacks green spaces and its connectivity to nature is fragile. There is a need to rethink traditional urban patterns and environmental responsiveness as a bottom-up approach from an architectural, interstitial scale.
Informed by the first project and subsequent field trip investigations, students were required to synthesise the overall brief agenda into a complete building proposal. The design process started with a series of speculative spatial analyses derived from specific sites within the city centre. These analyses evolved through the appropriation of various environmental and infrastructural problems that are characteristic of the site, its immediate surroundings and wider urban context. Developing an element of environmental responsiveness through the fusion of space, structure and surface was of particular importance as it informed an ecologically sound and interstitial relationship between inside/ building and outside/nature. Students were expected to further their research into various social and cultural influences that translated directly into complex internal programmes and spatial organisations. The project culminated in fully functioning architectural propositions that are well integrated into the urban, social and natural environment.

Fig. 2.1 Cassidy Reid Y3, ‘Marine Biology Faculty’. Situated next to the historic Galata Bridge, the project is an environmental facility focused on improving aquatic ecology. The masterplan addresses problems with contaminated surface runoff polluting the Golden Horn. Water caustics inspire the aquarium design and exaggerate the aquatic experience when inside the building. Fig. 2.2 Shi Qi (Kiki) Tu Y2, ‘Camden Mushroom Restaurant’. The façade of this restaurant specialising in mushroom dishes, is used to grow glowing mushrooms. The natural glow creates a unique atmosphere inside and outside the building. Fig. 2.3 Marie Walker-Smith Y3, ‘Camden Birdwatching Retreat’. This small building is attached to an existing office block and offers a retreat for birdwatchers and nesting opportunities for wild bird on its


green roof. Fig. 2.4 Cheung (Ivan) Hung Y2, ‘Camden Market Barber Shop’. A double-layered façade absorbs sound from the busy street and generates complex light patterns inside the building to create relaxing and calm atmospheres. Fig. 2.5 Masahiro Nakamura Y2, ‘Floating Allotments’, Union Canal. A shelter for two people and a number of growing platforms for hydroponic gardening. All parts are designed in a to be connected, to create larger water-based communities. Fig. 2.6 Ren Zhi Goh Y2, ‘Biophilic School’, Kabatas, Istanbul. The school adopts a striated landscape, where the floors and platforms are at varying levels to allow the building to become more permeable to natural light. The atmospheric and tactile qualities of the vegetation and natural elements surround the children and create natural learning environments.



Fig. 2.7 Jun Wing (Michelle) Ho Y2, ‘Horticultural Madrasa’, Istanbul. Located next to an old Mosque, this building and its surrounding gardens serve the community as a religious school and distillery of fine herbal oils used for religious ceremonies. Fig. 2.8 Bethany Penman Y3, ‘Molecular Gastronomy Culinary School and Restaurant’. The project proposes a building where modern practices can be as celebrated as the rich culinary practices rooted in Istanbul’s daily life. She approached this much like a molecular chef creating a new gastronomic recipe: by breaking it down into its molecules, arranging these and assembling the final product. The culinary school, restaurant and research aspects are these individual components that work together to form the cohesive building. Through experimenting with sugar, Bethany wished to
capture spaces where a multi-sensory eating experience could be enjoyed. The public walking past the entrance façade experience a flavoured taste mist humidified into the air, while smelling the sweet scent of a syrup being clarified.
Fig. 2.9 Samuel Coulton Y2, ‘Carpet Restoration and Natural Dye Workshop’, Istanbul. By literally weaving into its immediate context, the project aims to restore a historic courtyard steeped in Turkish textile history, reproducing its concentric nature on macro and micro scales. The proposal also responds to two adjacent mosques by aligning its primary grid structure towards Mecca, creating a landscaped prayer garden at its centre, shaded by the open façade. This would, in time, create a new network of green spaces in similar derelict squares, all of which would contribute to the natural dyeing process.



Fig. 2.10 Quiling Guan Y3, ‘Tulip Hammam’, Istanbul. Fig. 2.11 Ka Wing (Clarence) Ku Y2, ‘Shadow Theatre and Coffee House’, Istanbul. Fig. 2.12 Nikolas Kourtis Y2, ‘Taksim Democracy Forum’, Istanbul. The building acts as a meeting place for democratic exchange by providing debating theatres, galleries, meeting spaces and radio station. Hidden inside is a secondary circulation route to protect activists in the event of government lockdown and police raid. Fig. 2.13 Saijel Taank Y3, ‘Earthquake Monitoring Centre’. Fig. 2.14 Jessica Wang Y3, ‘Istanbul Waterfront Spa’. The spa building uses its large roof structure to purify water which is then used in the building. A small lab produces beauty products from algae which are grown onsite. Fig. 2.15 Lingzhe (Frances) Lu Y3, ‘Istanbul Greening Nursery’. The project takes inspiration from wheeled



Ottoman miniature gardens to explore the possibility of improving greening coverage for modern Istanbul. By exporting gardens, the design ambition is to relieve the pressure between city expansion and ecology. Fig. 2.16
Cassidy Reid Y3, ‘Marine Biology Faculty’.





Damjan Iliev, Julian Krueger
Damjan Iliev, Julian Krueger
Utopian places are a contradiction in terms: ‘ou’ is the Greek word for ‘not’ and ‘topos’ means ‘place’. The utopian place is a place which does not exist. These non-existent places have always inspired and fuelled the imagination of philosophers, writers and architects to create models of ideal communities, technical perfection and formal purity.
By 2050 over two thirds of the world population will live in cities. How will the natural environment cope with this new growth? What does this mean for human life in the new urban millennium? How will cities have to change to accommodate this phenomenon? What new utopia will emerge in this time of crisis?
This year Unit 2 explored the ideas of utopia by learning from New York, a city which has always been a backdrop and inspiration for visionary thinking. We invited the students to contemplate on the future of a city like New York: to imagine, design and explore their own utopia for a metropolitan living.
The Unit responded to the Museum of Modern Art (MoMA) P.S.1 pavilion competition in Queens, New York. The brief involved proposing a site-specific, inhabitable pavilion, which extended the museum’s internal programme and provides facilities for the annual ‘Warm Up’ music and performance festival. The challenge was how to create a temporary outdoor structure that can generate comfortable micro-climatic conditions for large public gatherings. The structure had to address environmental issues including sustainability, recycling and responsiveness to atmospheric characteristics such as light, temperature, humidity, airflow and sound.
The spatial and functional implications of the project were key requirements for both the museum and music festival and had to be explored through various tectonic analyses relating to mass, volume, form and surface.
The Term 1 project was considered a warm up experimental exercise with an underlining ecological agenda where students were expected to develop a unique architectural aesthetic through the use of various formal and conceptual tools derived from both digital and analogue methods of working.
In early December the unit travelled to New York, a city which seduces visitors with its pulsating and vibrant energy. We explored new architecture, climbed the classic skyscrapers, strolled along the linear gardens on the High Line, and took part in the New York City life. A visit to MoMA P.S.1 helped the students to contextualise and fine tune their Term 1 pavilion projects.
The field trip main goal was to explore and record the Brooklyn/Queens waterfront edge. Bound between the East River and Brooklyn/Queens Expressway, this is the place where the relentless city grid begins to dissolve. It was once the heartbeat of a thriving urban metropolis before its occupants relocated to cheaper and readily available lands on the periphery of the city. At present the waterfront is a large de-industrialised zone: a terrain vague full of unused ship building factories and cargo storage complexes. This urban void characterised by public vacuum and ecological disbalance is most evident in areas such as Brooklyn Navy Yard, Red Hook, Hunters Point, and Bushwick Inlet. And yet this area is one of New York’s most extraordinary physical assets.
New York City waterfront is the longest and most diverse of any American city. Recognising its untapped potential, the city planning authorities have issued a set of urban and architectural initiatives such as Vision 2020, New York Waterfront Action Agenda, and NYC-2030. All these initiatives share a common ground to promote a sustainable symbiotic relationship between man-made structures and nature to benefit the environment and achieve higher quality of life.
The Term 2 project synthesised the requirements of the Vision 2020 plan: a legitimate interest in sustainable energy, industry and culture that can create new building ecologies and ‘soft’ adaptive infrastructures along the East River waterfront.
Coming back from the field trip, the students proposed a building project that established new models for living and working in the metropolis of the future. They were asked to create an imaginative urban plan, a ‘vision’ of their site that summarised their utopian agenda and formed the necessary substructure to develop the project in further detail.
Third year students worked on programmes for complex and technologically sound buildings which were well integrated into the urban, social and natural environment. Second year students pursued a more exploratory approach to building design, paying close attention to conceptual clarity and spatial organisation.
Unit 2 encouraged the use of various cutting-edge design techniques: 3D-modelling, Ecotect analysis, reverse engineering, Rhino scripting, plug-ins, rendering, laser-cutting, rapid-prototyping and CNC milling. These techniques allowed students to proliferate their abilities in architectural design and representation, resulting in ‘newtopian’ architectures for the future.
Thanks to all our guests for their wit and wisdom: Johan Berglund, Andrew Best, Dan Bucsescu at the Pratt Institute, Harry Bucknell, William Firebrace, Timo Haedrich, Steven Johnson, Ekaterini Maria Konidari, Krasimir Krastev, John Ward Regan at NYU, Luis Reis, Yael Reisner, John L. Veikos, Mersiha Veledar at Cooper Union, Barry Wark and Martin West.
Yin Fung Jacky Chan, Yvonne Cheng, Clare Dallimore, Rufus Edmondson, Alexandra Edwards, George Proud, Hei Man (Belle) Tung, Park Hin Yeung
Qidan Chen, Melanie Cheng, Qiuling Guan, Anthony Williams, Ka Yu (Jamie) Wong, Shou-Hang (Tim) Wu, Tung Ning (Vincent) Yeung
Fig. 2.1 Hei Man (Belle) Tung, Y2, P.S.1 Landscape Pavilion, Perspective Render. The design extends the museum courtyard area by providing auditorium seating space, bar, temporary pool and a small stage for the Warm-Up music festival. Fig. 2.2 Alexandra Edwards, Y2, The pavilion contains an exhibition about hurricane Sandy´s impact on New York City. The design derives from the New York Grid which is transformed into a three dimensional structure and forms the different spaces of the pavilion. Fig. 2.3 Melanie Cheng, Y2, Dancing stage and film platform, Perspective Views. The elevated structure is surrounded by screens for live performance projections. It contains a bar and several dance floors. Fig. 2.4 Clare Dallimore, Y2, P.S.1 Pavilion, Render. The shading canopy is made from photo-reactive acrylic
panels which store energy during the day and emits an ambient glow during the night. Fig. 2.5 Yvonne Cheng, Y2, Perspective View. This canopy is made from hydro-active fabric which harvests moisture from the air. The collected water is stored and released to cool the dancing crowds.





Fig. 2.6 George Proud, Y2, Interior View. The pavilion is constructed from timber logs and serves as an extension to a nearby timber merchant. The timber is arranged to aid the curing process and also allow light within its interior. Fig. 2.7
Park Hin Yeung, Y2, PS1 Kitchens, Nighttime render. The pavilions provide small eating and cooking areas for a variety of food from around the world. The pavilions are designed to be erected quickly and reused after the festival. Fig. 2.8
Qiuling Guan, Y3, Physical model. During the day the pavilion is used by the local skateboarding community. At night the skating ramps are transformed into seating and dancing stages. Fig. 2.9 Shou-Hang (Tim) Wu, Y3, Isolation Space, Physical models and Longitudinal Section. The individual pods are sound insulated and provide different opportunities to relax
during the music festival. The timber grid-shell structure is padded with foam panelling to enhance its acoustic performace and also protect the nearby residential community from excessive noise levels.




Fig. 2.10 Hei Man (Belle) Tung, Y2, New York Wetland, The building is embedded into a large marsh landscape, softening the waterfront and helping to prevent damage during storm surges. It comprises an information centre, a veterinarian clinic for birds as well as a number of hides for birdwatchers. Fig. 2.11 Rufus Edmondson, Y2, East River Yacht Club, Williamsburg. This building is suspended over the water and provides wine bars, restaurants and small aquaculture farming facility where the once famous New York Blue-point oysters were produced. Fig. 2.12 Shou-Hang (Tim) Wu, Y2, Algae research centre. The building consists of a research facility, library and auditorium. The outer façade skin is used to breed algae, provide alternative source of sustainable energy and reduce excessive solar gains.



Fig. 2.13 - 2.14 Yin Fung Jacky Chan, Y2, Brooklyn Beer Spa, Axonometric and Interior view. Beer spas are popular in some parts of Europe. This will be the first American beer spa. A micro brewery is integrated within the core of this building and beer is used for the different pools of the spa. Fig. 2.15
Qidan Chen, Y3, Ferry Terminal, Physical model. The building is part of a wider system of artificial landscapes used to purify large quantities of water, currently flowing unfiltered into the East River. Fig. 2.16 Ka Yu (Jamie) Wong, Y3, Capsule structure, Aerial View. The building provides structure and services for small residential capsules. The individualised pods vary in size and can be easily transported to other locations around the world. Fig. 2.17 – 2.18 Tung Ning (Vincent) Yeung, Y3, Brooklyn Navy Yard Bathhouse and Oyster Farm, Interior
View and Ground Floor Plan. Bathhouses along the two main rivers in New York had a long tradition but vanished due to water pollution. This building uses oysters which are farmed on the roof to filter the water used for the bathing pools. Fig. 2.19 Park Hin Yeung, Y2, Brooklyn Green House and Food Market, Interior View of mushroom farming facility. The building houses a variety of greenhouses, public market and cafeteria introducing new gardening and growing technologies to the public.







2.20 – 2.23 Anthony Williams, Y3, Salmon and Seaweed Farm and Market. Designing for a volatile future, where extreme weather events like Hurricane Sandy are becoming more frequent, the proposal is a salmon and seaweed farm and market, on the waterfront of Red Hook. Its permeable, surge-proof structure will act as a storm defence for the vulnerable community behind. Working within New York’s ‘Vision 2020’ scheme, the project aims to fully integrate itself into its community, offering much needed jobs while supporting various local businesses with its products and by-products. The building is a community hub that brings the unique light quality of seaweed across its canopy, casting a golden glow within the market and ever-changing,slow-moving shadows over its floors.




Damjan Iliev, Julian Krueger
Julian Krüger, Damjan Iliev
We are interested in cities, their patterns, structures and the variety of spaces and boundaries that form and exist within them. This year Unit 2 explored the themes of exuberance, pragmatism and accommodation. Students were encouraged to explore, investigate and invent new building typologies in variable scales that fulfil the basic human needs from small inhabitable rooms to large complex building programmes that can generate functional and yet beautiful spaces where the individual or community can reside either permanently or temporary.
The year began by producing a series of experimental structures which provided micro-space living environments for specific sites in London. Students were asked to reconsider the intuitive human notion of shelter as well as its form, materiality and function. The shelter had to be comfortable and offer protection from the sun, rain, wind, cold and other climatic conditions. The concepts from the fast initial exercise culminated with the design of a small dwelling that could accommodate multiple users through shared programmatic requirements where cohabitation and socialising could take place. Its relationship to the immediate social and wider urban environment was of great significance. Methods of representation included developing 3D or physical models and a set of plans and sections to scale. Throughout the course of the whole year Unit 2 set out a series of workshops, portfolio reviews and seminars closely linked to the individual design work.
In December Unit 2 visited Vienna, ‘the grand dame of Europe’s capitals’, for architectural inspiration, unexpected conjunction and taste for the Viennese high culture, unique charm and “Lebensfreude”. The city’s combination of high quality architecture, impeccable urban network, well-tended cafes and diverse population has ranked it as one of the most liveable cities with the highest quality of life in the world. We embarked on an architectural pilgrimage that covered the quintessential Baroque, Art Nouveau, Wiener Moderne architectural styles and the best contemporary buildings and housing schemes that make Vienna special. We arranged special access to visit buildings by Otto Wagner, Adolf Loos, Coop Himmelb(l)au, Zaha Hadid and the Viennese Institute of Architecture and Applied Arts where we met fellow colleagues and gained vital input. We also visited Viennese architects which gave us an insight into their current work and view on architecture.
From Vienna we took the train to visit Budapest, the capital of Hungary and second most important city of the Austria-Hungarian Empire which dissolved in 1918. We visited the great Hungarian baths, experienced the mix of derelict 19th
century bourgeois architecture, socialist housing projects and contemporary architecture and also enjoyed the famous Hungarian hospitality.
Coming back from our trip, the Unit focused on an architectural proposition at a greater scale. Students developed a building proposal for their chosen site in Vienna or Budapest. The overriding theme of accommodation was considered broadly. Students were expected to develop an architectural language and demonstrate entrepreneurial capacity to hybridise unexpected urban conditions, programmes, users, social issues and building typologies.
Thanks to all our guest critics for their wit and wisdom: Marcos Cruz, Murray Fraser, Laura Allen, Patrick Weber, Rashid Ali, Rut Cuenca William Firebrace, Gabby Shawcross, Krassimir Krastev, Kathy Basheva, Juana Canet, Elena Gomez, Steven Foley, Friedrich Vitzthum, Ivana Bocina, Justin CK Lao, Jose Sanchez Recio and Johan Voordouw.
Year 2: Julia Rutkowska, Yoana Yordanova, Miljun Celeste Wong, Lauren Marshall, Alexia Souvaliotis, Helen Siu, Arti Braude, Saijel Taank
Year 3: Tao Wei, Nawanwaj Yudhanahas, Xin Zhan, Stanley Hanjie Tan, Maria Goustas

Fig. 2.1 Tao Wei, Jewish community centre located near Leopoldstad on the Danube River in Vienna. Close to the old Jewish quarter, it serves the again growing Jewish community in Vienna and offers a theatre, synagogue and various communal spaces. Fig. 2.2 Tao Wei, View of main entrance. Fig. 2.3 Tao Wei, Longitudinal Section.


Fig. 2.4 Arti Braude, Workshop and retreat for a community craftsman in London. The small building is designed so it can be built by one person (the community craftsman) who runs a workshop which can be used by members of the Brick Lane neighbourhood. Fig. 2.5. Arti Braude, main building project proposes a Dervish dancing theatre and lodge accommodating annual dervish pilgrimages visiting the Gül Baba memorial in Víziváros, Budapest. Fig. 2.6 Arti Braude, Axonometric view, Workshop, London. Fig 2.7 Helen Siu, Tokaji-wine Headquarter in Budapest. Helen made use of the existing system of natural caves and labyrinths under the Budavári Palace. The labyrinths form part of her building which are used to store wine. Large funnels form an artificial landscape used to grow grape vines

and lead natural light into the deep underground. Fig 2.8 Alexia Souvaliotis, Axonometric view, Bike workshop in Brick Lane, London. Alexia´s building addresses the east London bike community and provides a workshop for bikes and small living unit for the owner of the shop. The building represents a large shelf structure with a construction system inspired by bikes manufacturing techniques. Fig 2.9 Tao Wei, Extract of main building proposal showing theatre and kinetic facade envelope. Fig 2.10 Nawan Yudhanahas, Headquarter for the International Danube River Commission, DRC in Budapest. An over sailing roof structure provides shelter for a water-landscape which reacts to the changing level of the river. The building provides an auditorium, debating chamber, offices and laboratories.








Fig 2.12 Stanley Tan, Axonometric view, Housing scheme for a self-sustainable garden community and public food market in London/ Tottenham Hale. The project studies the theme of urban-suburbanization, efficiency of urban infrastructure and rural retreat. The living units are integrated into a canopy which is used to grow vegetables and also works as a water-collection and irrigation system.
Fig 2.13 Stanley Tan, Internal perspective, Communal housing, Tottenham Hale, London. Fig 2.14 Lauren Marshall, Aerial view, Budapest, the “World Capital of Spas”, is located over a geological fault line which is the reason for the thermal activity in the ground. Lauren carried out a series of iterative landscape interventions on the slopes of Buda proposing an outdoor bathhouse with wide-ranging views of the city. Fig 2.15 Maria Goustas,

Plan, Light therapy centre in Vienna. Vienna is the home town of Siegmund Freud, the father of psychoanalysis and therapy. Light therapy is a rather new concept to treat disorders like depression. Maria’s building is embedded with various embedded fibre-optic and facade envelope devices which can be exactly tuned to create different light conditions inside the centre. Fig 2.16 Miljun Celeste Wong, Axonometric view, Dog-spa on the river Danube in Budapest. Celeste’s proposition consists of a dog spa, veterinarian clinic and dog shelter for a city which has the highest population of dogs in Europe.



Fig. 2.17 Yoana Yordanova, Plan, Public Hammam Bath House in Vienna. Yoana´s building is a modern interpretation of a traditional Turkish bath (Hammam) and tries to integrate Turkish lifestyle into the city. A sophisticated system of routes for male and female visitors leads through the building. Fig. 2.18 Yoana Yordanova, Aerial view of Public Hammam Bath House, Vienna. Fig. 2.19 Saijel Taank, Plan, Fish market and fish hatchery in Vienna. The building spans across the “Wienkanal” and forms a connection between two different city quarters which are currently separated by the canal. Large tanks are used to breed fish to repopulate the river with endangered fish species. The scheme also provides a market for fish, in line with Vienna´s great tradition of food markets.



Unit 2 is interested in inventing and constructing complex spaces and buildings. We are concerned with creating architecture which is dynamic, architecture which plays with different qualities and takes the user through a journey of functional and joyful spaces
This year the unit focused on two locations, London and Los Angeles. We tried to understand and explore these two locations and use our experiences to invent new architectural and urban typologies, programmes and concepts for metropolitan living
The year began with a small, experimental infill-building project in London Three sites in west London with different spatial possibilities and constraints were given to the students who recorded and analysed the sites and invented particular programmes for a small infill building
The students were asked to explore techniques of organising space and were encouraged to experiment with different ways of representing architecture in drawings, models and other media such as film and photography
Third year students were working on programmes that were demanding and tightly integrated into the context, while second year students were encouraged to work with simple functional requirements whilst maximising the spatial possibilities
The field trip in November took us to Los Angeles, a place that has only ever been about progress and development; a very young metropolis, with its instant architecture it is a city of edges, of automobile-driven growth and horizontal expansion. During our trip we explored, analysed and recorded L.A., its life and its urban and suburban spaces. We experienced the Californian lifestyle, drove the freeways, saw amazing architecture, enjoyed the beach culture and finally went on a road trip through the Nevada desert to also learn from Las Vegas.
On our return to London our time was devoted to the main building project in London The unit was interested in the frayed edges of the city, between the planned and accidental, where the physical ease with which development can take place is often tightly constrained by policy
The unit explored how these areas can be developed to maximise the potential of the infrastructure in place combining a resolved attitude to the extra-urban landscape with a robust understanding of the site, programme and construction method
Year 2: Muhammad Abd Rahman, Taimar Birthistle-Cooke, Jianhuang Chen, Nuozi Chen, Sarah Edwards, Kawai Ho, Yin Lee, Rebecca Li, Amalie White
Year 3: Jae Ahn, Yll Ajvazi, Charles Blanchard, Frederick Lomas, Stanley Hanjie Tan, Li Grace Zhou
Fig. 2.1 Grace Li Zou Mosaic workshop Infill building project on Golbourne Road in west London The site is located next to a disused public house The image shows a model of the building where colourful mosaic tiles are produced The tiles will, over time, cover the adjacent buildings Fig. 2.2 Charles Blanchard, Police station on the union canal in west London Parts of the building are used as a counterweight for a balance footbridge which provides the access Fig. 2.3 Grace Li Zou, Conceptual illustration of mosaic workshop on Golbourne Road Fig. 2.4 Charles Blanchard, Section of police station on union canal




Fig 2 5 Carmen Lee, Papermaking factory and printer with hidden editorial office for the production of political pamphlets and fanzines The pamphlets get secretly disseminated to shops in and around London through the distribution network of the paper factory Internal view
Fig 2 6 Jianhuang Chen, Retreat for a wildlife guardian on the union canal in west London The facade of the building provides shelter and nesting opportunities for wild birds
Fig. 2.7 Taimar Birthistle-Cooke, Musselfarm and restaurant on the river Thames near Dartford bridge Section
Fig 2 8 Carmen Lee, Elevation of papermaking factory
Fig. 2.9 Stanley Tan, Diving centre located in an abandoned chalk quarry in Kent Fig. 2.10 Yll Ajvazi, Bowling lane on Portobello Road in west London The infill building sits in between the westway and the Hammersmith and City tube line and provides two bowling lanes and a small bar


Fig 2 11 Yll Ajvazi, Conceptual illustration of the bowling lane in its context, visualising the speed of the traffic around the builidng





Fig 2 12 Charles Blanchard, Open prison (category D prison) on the river Thames near Dartford Bridge The project is located on the marshland by the river and uses water to control the prison environment Camera view of canals leading through the site Fig. 2.13 Charles Blanchard, CCTV view of canal at high tide, flooded with water Fig. 2.14 Charles Blanchard, Model photo showing bird’s-eye view of the prison Fig. 2.15 Charles Blanchard, CCTV camera view, category D prisoner accommodation and communal allotments Fig. 2.16 Charles Blanchard, Model photo taken from the riverside showing the pier with high security accomodation Open prison accomodation and allotments for category D prisoners in the background Fig. 2.17 Charles Blanchard, Plan of the open prison






Yr 2:
Ashley James, Azuki Ichihashi, Augustine Ong, Julia Ran Chen, Yuan Zhao, Angela Lo, Ruthie Falconer, Glenn Wooldridge
Yr 3: Anton Chernikov, Rupert Rampton
Twist and Insert, Add and Alter
‘One starts an action simply because one must do something.’ T.S. Eliot.
We were interested in the variety of spaces that exist within cities – these places may be constructed or carved into the existing, occupied or derelict, ad hoc or abandoned, temporary or well worn. These volumes of lightness and darkness may be obviously beautiful and visionary, or, perhaps, more disguised and subtle in effect. We encouraged students to examine such transitory spaces and experiment with different methods and techniques in order to observe, explore, analyse, develop and refine their own individual approach to the city and insert new design proposals into the urban fabric.
The unit occupied and investigated a disused building in central London as a site for exploration. Using their bodies, students recorded a sequence of journeys through this locale, creating a series of animated models and devices en route to employ and test different techniques in drawing, modelling, installation, filmmaking, and stop-frame animation.
Through investigating the existing context, we proposed a new critical interjection into the urban fabric, explored and refined through an extension of the experimental and representational tools, developed and promoted in the first term. We were looking to envisage and create dynamic and atmospheric scenarios scattered throughout our familiar London.
We welcome you to join us on our journey from the Thames to the Mediterranean Sea and back via the Seine, to twist, insert, add and alter.

































Julia Backhaus, William Firebrace, Julian Krueger
Yr 2: Will Armstrong, Jason Claxton, Hugh Scott Moncrieff, Risa Nagasaki, Joe Paxton
Camille Thuillier, John Wu, Emily Yan.
Yr 3: Mark Attmore, Diego Cano Lasso, Keti Carapuli, Daniel Dodds, James Blaze Burn Sale, Claire Taggart, Ahmad Zahrif.
A sting is a small delicate action which can cause a great effect. What happens when something is transported from one culture to another, and begins to change the surrounding environment? What happens architecturally, when a new element is placed into an existing space, and changes activities on a much larger scale? We are concerned with creating architecture which is dynamic, never quite the same today as tomorrow, fading away, reappearing unexpectedly, altering with the light. This means looking not just at the design of the object, but also considering its effects on the surrounding society, the way its influence begins to spread.
The year began with a weekend visit to Lubeck, an island city in North Germany, its internal structure defined by five large and magnificent mediaeval churches. The students used one of the churches for the construction of a temporary installation and as a site for a small building project, inserting an unexpected function into the ex-isting fabric. We examined the City of London, a strange mix of large-scale financial institutions placed into the street pattern of historic London.Unpredicted new activities were proposed to create a set of individual architectural proposals.
Thanks to our guest critics: Stephen Gage, Christine Hawley, Laura Allen, Ben Stringer, Johannes M-Lotze, Guvenc Topcuoglu, Ricardo Ostos, Simon Herron, Susanna Isa, Luke Olson, Max Kahlen, Ben Addy, Rashid Ali and Matthew Butcher.




























Yr2: Patrick Kattner, Emi Bryan, XueTing Snow Cai, Gabriel Cheung, Lucinda Dye, Cheuk Ling Joyce Lau, Young Woo Lee, Tingting Qin, Suyang Xu, Satoru Nakanishi.
Yr3: Carmelo Arancon, Emma Bailey, Lewis James, Anthony On Wing Lau, Daniel Lauand, Alyssa Ohse, Justin Randle.
‘Space is a doubt; I have constantly to mark it to designate it. Its never mine, never given to me, I have to create it. Space melts like sand running through one’s fingers. Time bears it away and leaves me only shapeless shreds’. (Georges Perec).
Individual spaces are not so simply defined, one becomes easily confused or overlaid with another. As architects we might see this not as problem but as an inspiration towards inventing and constructing complex spaces, with differing, perhaps also contradictory, qualities, which move between various conditions – which FLIP. In the unit we use techniques of modelling, stop-motion film and drawing to examine and devise new spaces. By using film we are able to show these spaces as changing, places to be moved through, as sequences and performances.
BRUSSELS: The design of a small-scale space with two opposing functions, set into an existing building.
MADRID: Southern interlude, architectural inspiration, unexpected conjunctions, serious nightlife!
DEPTFORD: The recording of a riverside site where contesting lifestyles occur. The insertion of new uses into the existing mix. The design of a flip building, considered from the scale of the city, through its internal spaces, to its details and materials.
Thanks to all our critics. Laura Allen, Stephen Gage, Simon Herron, Yeoryia Manolopoulou, Jean Garret, Ricardo de Ostos, Johannes Mueller-Lotze, Guvenc Topcuoglu, Liam Young, Kate Davies, Robert Thum.























Yr 2: Christopher Burman, Pui Yue Stephanie Chung, Jonathan De Wind, Chiara Hall, Jennifer Laurie Jameson, Sophia Jones, Thomas King, Chantanee Nativivat, Richard Thebridge, Emilia-Dimitra Tsaoussi. Yr 3: Silviya Aytova, Julian Bond, Jonathan Chattaway, Alpa Depani, Mark Goddard, Chloe Kletsa, Benedetta Rogers, Luke Rowett.
We are nterested in cities, their patterns and structures. Over time most cities evolve as an assembly of contradictory elements, rural, brash, decrepit, subtle, brutal, undefinable. It is this mix which creates vitality and surprise. The idea of blending supposes some control to this mix, some way of working with time and movement to add new elements to an existing pattern. What kind of blend: fine medium coarse...?
The year will begin by some short experimental projects with objects, graphics, devices, stopmotion films, will then evolve a building project, and will finish with an opportunity to reassess the year and re-assemble the work into a graphic booklet.
We will be using two locations which both have a particular quality of town and country. The first is Hastings, a town set on the south English coast, just below the South Downs, a mix of faded Victorian style, twentieth century mass entertainment, wooden fisher houses, a funicular, fish ‘n chip shops, a beach strewn with marine junk. Here we will begin the investigation, evolve a way of working.
The second location is Berlin, an inland city with its own landscapes, lakes, woods, and its particular mix of communist extravagance and recent reconstruction. In particular we will examine the interzone of Alexanderplatz, and evolve new insertions, derived from the Hastings research, placed into this urban fabric. We intend that these locations will create two poles for creating architecture.





William Firebrace and Julian Krüger
This page: Hastings Blending Devices
























Yr 2: James Crick, Edward Farndale, Stephanie Gallia, Lucy Paton, Benedetta Rogers, Elizabeth Shaw, Deena Shuhaiber. Yr 3: Pascal Bronner, Jacqueline Chak, Anabela Chan, Tammy Chow, Chris Day, Andrew Friend, Elie Lakin, Safia Qureshi.
This year Unit 2 took the concept of 'island' as an extraordinary starting point for our 'passport', 'quarantine' and final building projects. Our journey took us to two physical islands - Eel Pie and Malta.
Eel Pie Island has a very colourful history. Originally a stop over point for Henry VIII to eat eel pie on his way to Hampton Court it always attracted a strange crowd. The windup radio was born on Eel Pie, when Trevor Baylis connected an old radio, a mechanical clockwork mechanism and some wires to a bicycles dynamo. The island, immortalized in George Harrison's song 'Cockamamie business', has nowadays a reputation as an enclave of artists and eccentrics.
In the middle of a remarkably clear and unpolluted expanse of the blue Mediterranean sea lies the archipelago of Malta, consisting of mainly three islands: Malta, Gozo and Comino - The Greeks called it the island of honey. The islands are inhabited by around 400 000 people, of which 55 000 are ex-pats, and about 150 000 cars.
Our projects this year were generated through site exploration, documentation, research and physical testing. Our architectural responses explored different time scales - ranging from the slow drying of the Maltese saltpans to the 30 seconds it takes to light up a firework.























Yr 2: Barry Cho, Grace Cooper, Elspeth Cornish, Yat Hoi Desmond Hung, Zachary Anthony Keene, Ruth Watkinson, Lukas Westcott Yr 3: Carolyn Behar, Jason Kwok
Kwan Chan, Morten Engel, Hsiao-Wei Lee, Sara Mohammadi Khabazan, Amelia Rule, Bashrat Verjee, George Wong
There is a sense of a heightening of experience when objects and settings are distanced from use as autonomous ‘stories’, and yet at the same time are fully accepted as part of our day-to-day existence It is this tension, this excitement created by the simultaneous perception of the ordinary and the strange, which we investigate this year in two distinctive ways and stories
1 Mood Catchers
The first story takes place in the area around the Serpentine in Hyde Park, where you can swim, eat, see art, ride horses, sail, listen to music, and here we look at developing a new ‘topography’ for the Serpentine From this, we attempt to generate a spatial gesture for the building project that is evocative of a particular mood, capturing a fleeting moment, and is a discourse about contemporary leisure and the ephemeral in architecture
2 Mood Makers
In the same way that the introduction of train travel led to a faster and different perception of the landscape, the internet and other digital media have changed our way of communicating and seeing, and offer different, more open-ended and interactive ways of story-telling We investigate how these new technologies can influence our understanding and movement through space, extending our knowledge of the city as a place of public event These projects deal with film/video making and screening in a dense urban setting and involve not only the study of film, digital and video as media of performance, but also traditions of theatricality, spectacle and public event










Yr 2: Kraisupa (Ont) Asvinvichit, Yee-Lain Billing, Michiko Sumi, Tsuyoshi To Yr 3: Irene Astrain, Simone Brewster, Gemma Douglas, Kieran Hawkins, Audrey Lematte, Gemma Noakes, Edwhite Pe, Sara Shafiei
Icon
"It is for architects to move beyond the self-conscious set pieces and to devise, as in the best music scores, gaps of uncertainty in which the individual can participate "
Cedric Price, Re:CP
Through Cedric Price's sketches, a kind of shorthand writing (probably done with one of his fountain pens and his rubber stamp) and through a series of provocative projects, Cedric Price influenced the work of a wide range of architects like Archigram, Rogers, Fosters and Alsop, as well as Rem Koolhaas and Bernard Tschumi and many others
In the 1960s his aviary became an icon for the London Zoo, while his Fun Palace project was an icon for a new type of open, moveable, adjustable space In the 1990s the London Eye became an icon for the new millennium and for the redevelopment of the South Bank, which was initiated by the ideas of Price in order to "bring about a major rejuvenation"
Within this unit we investigate three iconic themes/gaps of the work of Cedric Price and re-interpret them from a new point of view






