

268 St Leonards Avenue
A rarely offered Lawrence Park residence of exceptional craftsmanship and architectural pedigree, available for the first time since 2012. Designed by renowned architect Lorne Rose with interiors by Carey Mudford, this distinguished Tudor-style home sits on a prime 50 x 150 ft lot and offers approximately 5,500 sq ft of beautifully finished living space. The striking Indiana limestone and brick façade, cedar shingle roof, leaded glass windows, copper detailing, and hand-crafted stone portico create timeless curb appeal. A heated driveway, steps, porch, and walkways ensure yearround comfort, complemented by mature landscaping, irrigation, exterior lighting, and integrated security. Inside, refined detailing defines every space, including 10ft ceilings on the main level, 9 ft ceilings above and below, heated marble floors, custom millwork, coffered ceilings, rich hardwood flooring, and sound-insulated construction. Principal rooms flow seamlessly for both elegant entertaining and everyday family living. The chef’s kitchen features premium appliances, bespoke cabinetry, and opens to an oversized family room with walk-out to a private stone terrace. The upper level offers generously proportioned bedrooms and spainspired baths, highlighted by a luxurious primary retreat with vaulted ceilings, marble finishes, steam shower, and private outdoor access. The fully finished lower level with radiant heated floors provides exceptional versatility, including a large recreation room with walk-out, wet bar, wine cellar, guest or nanny suite, and extensive storage. Thoughtfully maintained and continuously upgraded, the home delivers enduring quality and modern reliability. Complete with a rare three-car secure garage, this is an exceptional opportunity just moments to Toronto’s top schools, the Granite Club, Bayview Avenue, Highway 401, and surrounding parks, a truly special offering in one of the city’s most coveted family neighbourhoods.


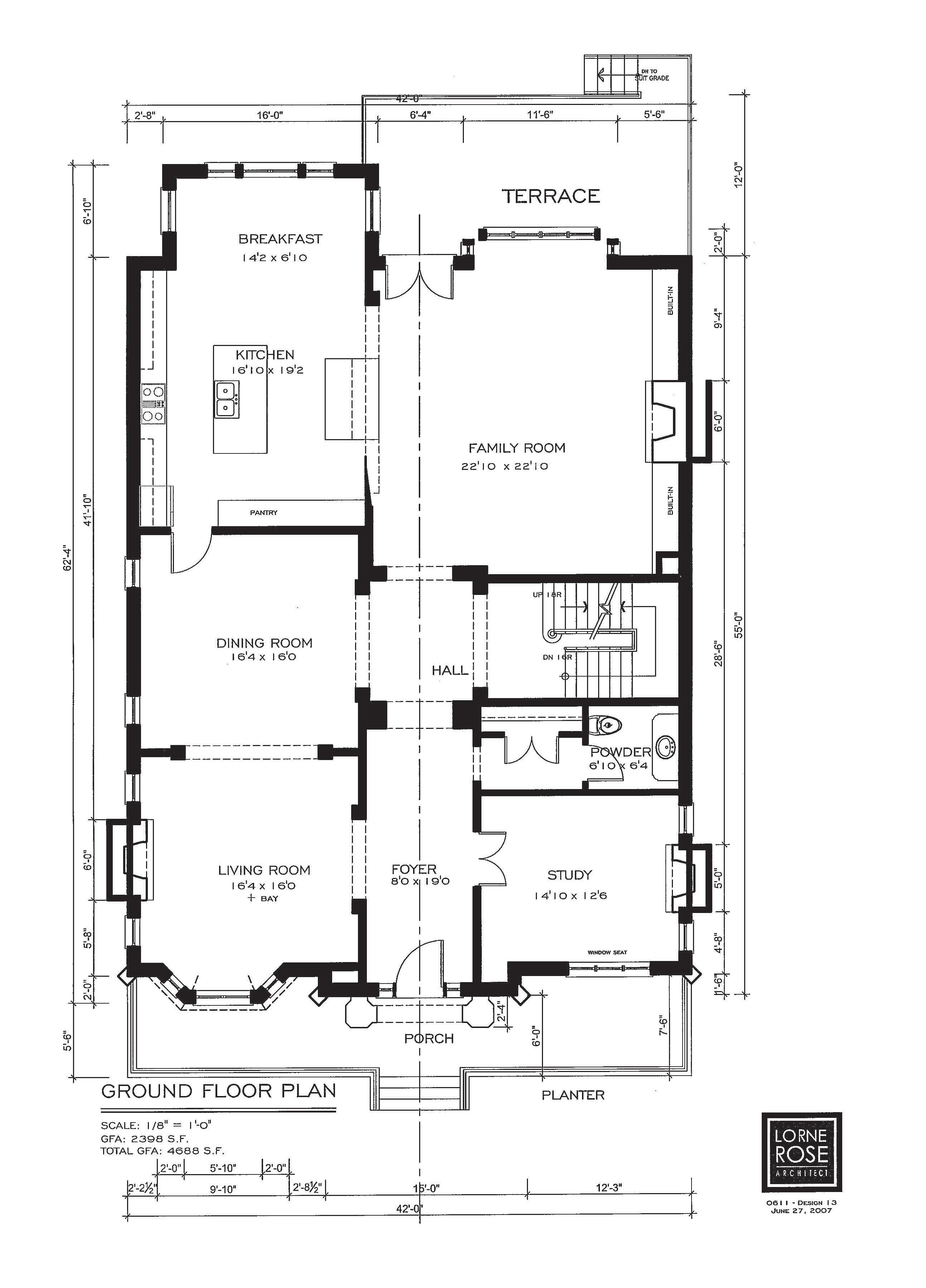
MAIN LEVEL
10 ft. ceiling heights throughout the main level, halogen pot lighting, quarter cut white oak flooring with Wenge inlay throughout, moulded ceiling throughout, sound insulated pipes and drain, heavy doors and heavy hardware, all water pipes are made of copper.
FOYER: 9.28m x 2.45m (30’5” x 8’1”)
· Custom mahogany door with leaded glass side lights
· Marble floor with marble inlay and water heated floor · Recessed panel wainscoting
· 3 separate ceiling areas
· Cornice mouldings









LIVING ROOM: 5.75m x 5.13m (18’10” x 16’10”)
· Bay window (all leaded glass)
· Wood or gas burning fireplace with a custom mantle encased in a marble surrounding
· Two custom circle leaded glass windows
· Moulded coffered ceiling.
DINING ROOM: 4.98m x 4.86m (16’4” x 15’11”)
· Floor to ceiling wainscoting
· Moulded coffered ceiling
· Leaded glass windows
· Two surround sound speakers
KITCHEN: 5.78m x 5.08m (18’11” x 16’8”)
· Main centre island 5’ x 9’8’’ with Stattuario marble counter top and Stattuario back splash
· Extremely bright and spacious custom kitchen cabinetry designed by Carey Mudford · Leaded glass windows
· Top of the line appliances, 48’’ Sub-Zero panelled side by side fridge, Wolf 6-burner, Wolf oven gas range, Wolf electric convection oven, Wolf warmer, Wolf microwave, Miele espresso maker, Miele panelled dishwasher, garburator, powerful hood.
· Intercom, light fixture, halogen pot lights
· Pot filler over the stove
· Wine cooler
· Swing custom walnut door to the dining room
BREAKFASTAREA: 4.35m x 2.40m (14’3”x 7’10”)
· Overlooks garden and patio
FAMILY ROOM: 7.38m x 6.85m (24’2” x 22’6”)
· Coffered ceiling
· Includes bay window
· Double French door walk out to an Owen Sound stone patio
· Gas fireplace with custom mantle and marble surround
· Wall of custom cabinetry with 4 leaded glass doors
· Roughed-in surround sound speakers
· All walnut trim and stained furnish finishing

LIBRARY: 4.15m x 3.93m (13’7” x 12’10” )
· Custom 5’ x 8’ walnut double doors with bevelled glass inserts
· Entrance off foyer Herring bone hardwood floor with Wenge border
· Matching walnut panelling throughout including ceiling designed by Carey Mudford
· Leaded glass windows
· Wood burning fireplace (could be gas) with herring bone design brick firebox, custom mantel design, marble hearth & surround
· Wired for internet/ phone/ TV
· Intercom, two surround sound speakers
POWDER ROOM: 2 piece
· Double closet one of a kind custom solid walnut 8’ doors
· Heated limestone floor with basket-weaved marble floor
· Custom vanity with Stattuario counter top
· Horus polish nickel faucet, custom Toto toilet, quiet fan
· Sound insulated walls



SECOND FLOOR
The lovely and grand 2 level staircase with landing features an impressive 5’6’’ x 10’ leaded glass window. At the top you are greeted by a 6’x6’ skylight with custom designed bevelled glass & iron overlay. Trim working under ramp and side of the stair, the whole hallway features wainscoting and cornice moulding and a double linen closet, quarter cut white oak with Wenge border, 9 ft. ceiling heights, heavy doors and heavy hardware, all water pipes are made of copper, pot lights, laundry chute.





PRIMARY SUITE: 6.08m x 5.93m (19’11” x 19’5”)
6 - Piece Ensuite: Walk in closet 13’4’’ x 11’6’’
· Double door to ante room
· Double door walk out to covered stone patio · Coffered ceiling, 11’7” ceiling heights
· Two surround sound speakers
· Trim work on ceiling · Intercom wired for internet/phone/TV · Sound insulated walls
· Coffered ceiling, 11’6’’ ceiling heights, ceiling trim work
· Oversized marble Stattuario shower 7’ x 4’ with multi rain shower head, hand shower, body jets, soap box, bench, Horus polish nickel fixture & steam
· His & Her vanities with custom Stattuario marble countertops 2nd matching mirrors
· 2 - Person AMMA OVAL 72” x 42” Jacuzzi air
tub with heated backrest and one custom piece of Stattuario marble on top
· Horus polish nickel faucets
· Separate water closet, latest model of Toto toilet, quiet fans
· Water-heated Stattuario marble floor
· Custom vanity linen closet
· Sound insulated walls
· Extremely spacious and elegant with sky light
· Centre island with granite countertop
· Custom furniture with floor to ceiling shelving and drawers





BEDROOM: 4.40m x 3.78m (14’5” x 12’5”)
· Moulded coffered ceiling, 11’6’’ ceiling height
· Walk-in closet with built-ins
· Leaded glass double window
· Intercom wired for internet/phone/TV
BEDROOM: 5.68m x 3.90m (18’8” x 12’9”)
· Includes bay window
· Double closet with built-ins
· Leaded glass windows, window seat
· Moulded coffered ceiling, 11’6’’ ceiling heights
· Intercom wired for internet/phone/TV
5 PIECE BATHROOM:
· Heated marble floor
· Custom cabinetry with double sinks, marble countertops, double mirrors
· Skylight
· Separate soaker tub and water closet
· Toto toilet, quiet fan
· Sound insulated wall
BEDROOM: 4.43m x 4.38m (14’6” x 14’4”)
· Double and single closet
· Moulded coffered ceiling, 11’6’’ceiling heights
· Leaded glass windows, window seat
· 5 piece semi-ensuite
· Intercom wired for internet/phone/TV
SEMI-ENSUITE BATHROOM: 5 Piece
· Heated marble floor
· Custom vanity with double sinks, marble counter top, double mirrors
· Toto toilet, quiet fan
· Marble shower with inlay, rain showerhead
· Sound insulated wall
BEDROOM: 4.56m x 3.78m (14’11” x 12’5”)
· Two closets
· Window seat
· Moulded coffered ceiling, 11’6’’ ceiling heights
· 5 Piece semi- ensuite
· Intercom wired for internet/phone/TV
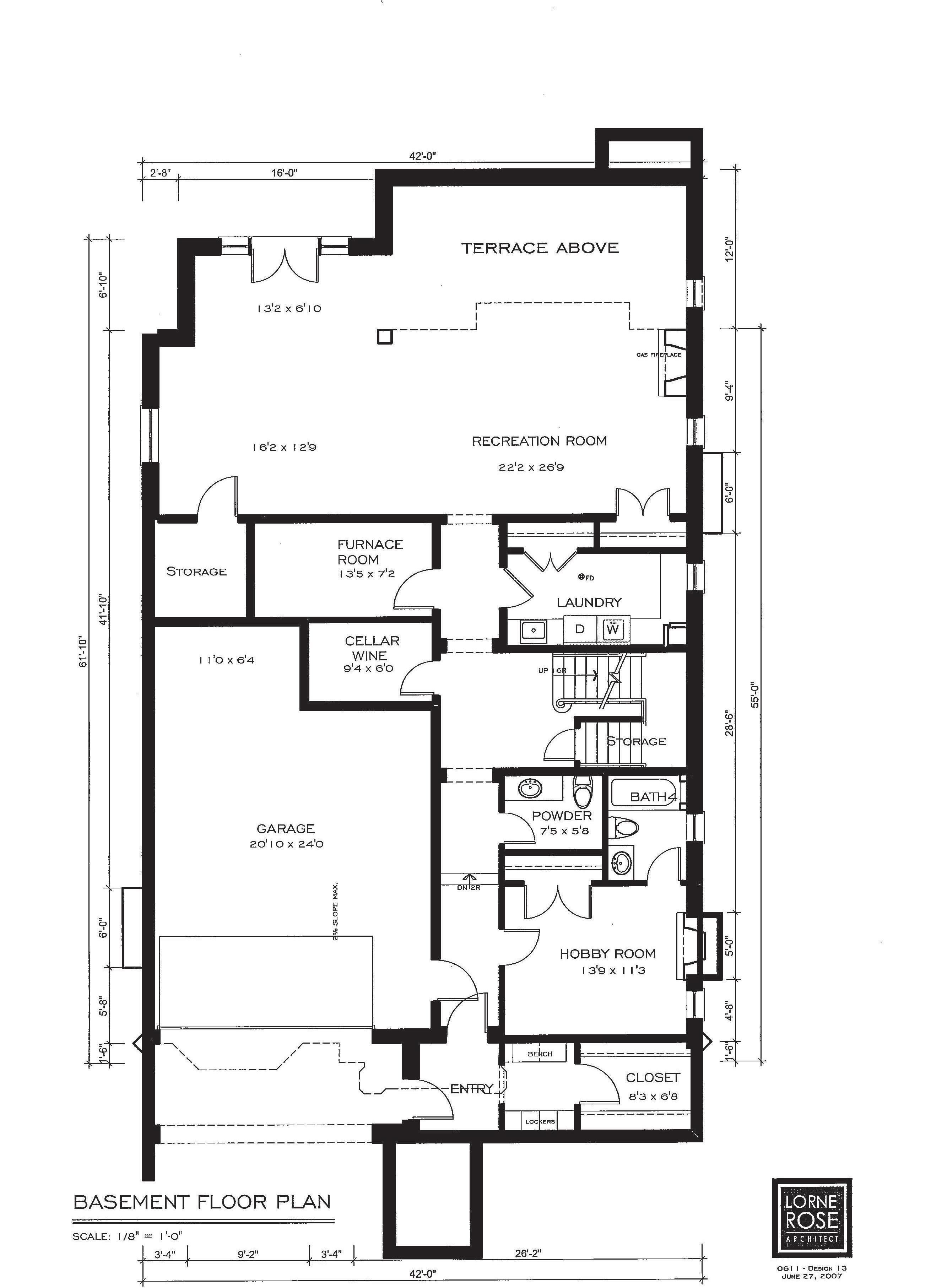
LOWER LEVEL:
Heated floors throughout, engineered white oak hardwood floors heated floors throughout, 9’ ceiling heights, wainscoting, heavy doors and heavy hardware, all water pipes are made of copper, pot lights.
FOYER:
· Separate entrance for street access
· Entrance to garage, steel fire rated door
· Engineering white oak hardwood, water heated floor
· Floor to ceiling wainscoting in entrance, pot lights
· Custom metal door with leaded glass
· Cold room , Sump pump




RECREATION ROOM: 11.88m x 6.68m (39’ x 21’11” )
· Custom built-in wet bar with antique brown granite countertops, built-ins, dishwasher, fridge, sink
· Walk out to garden with Owen Sound stone steps
· Gas fireplace with custom mantle
· Two built-ins, water-heated floor
· Pot lights, many windows
· Intercom, wired for TV/phone,
· Roughed-in for home theatre
WINE CELLAR
· 600 bottle capacity cooler
· Herringbone marble design floor
· Original 100 year old bricks on the wall
· Custom cabinet and shelves in mahogany
· Artistic mahogany door design





EXERCISE/NANNY’S ROOM: 4.13m x 3.15m (13’6” x 10’4”)
· 4 piece marble ensuite
· Double closet with built-ins
· Carpeted, water-heated floor
· Intercom, wired for phone/TV
POWDER ROOM: 2 Piece 3.67m x 4m (12’3’’ x 13’6’’)
· Custom vanity and Calcutta marble counter top
· Water-heated marble floor, quiet fan
· Sound insulated walls
LAUNDRY:
· Granite counter top
· Custom cabinets with lots of storage
· Miele front load washer and dryer
· Porcelain floor, sink
· Pot lights, light under cabinet, ventilation system
· Moulded ceiling, laundry chute
· Water- heated floor
MUD ROOM:
· Lots of storage
· Walk-in cupboard with ventilation system





Extensive recent infrastructure improvements provide outstanding peace of mind and modern efficiency.
Washer and dryer (2021/22).
Avante security system upgrade including front-door security film and camera enhancements (2025). Both sump pumps replaced with battery backup (2025).
New high-efficiency furnaces and A/C units (2025).
New boiler servicing radiant heated floors and driveway snow-melt system (2026).
Wine fridge chiller replaced (2023). New central vacuum system (2024). New garage door and motor (2024). Carefully maintained mechanicals and systems throughout ensure turnkey comfort, reliability, and long-term value.
INCLUSIONS:
6-burner Wolf stove, Wolf electric convection oven, Wolf warmer, Wolf microwave, Miele espresso maker, Miele panelled dishwasher, 48” Sub-zero panelled side by side fridge, GE wine fridge, garburator, pot filler over stove, all electric light fixtures, Intercom system in all rooms, 4 exterior cameras (2 front/2 back)and registered system, sprinkler system front and rear, surround sound speakers, all quiet fans in all bathrooms, Miele front loading washer and dryer, central vacuum system with 6 outlets, security system, hot water return pump.
FEATURES:
· Lawrence Park family home
· Close to Cheltenham and Wanless Parks
· Excellent private and public schools in the area
· Hot water heated drive way/steps/ porch and walkway
· Hot water heated basement floor
· All bathroom floors hot water heated
· Foyer and hard surfaces hot water heated
· Front elevation easy access natural stone front ·
· Lorne Rose – Architect, Carey Mudford –
Interior Designer
· Built-in 2010-2011 by custom builder
· Highest standard of finishes
· LPAA – Soccer, T-ball and Family Fun Day
· Outstanding family neighbourhood
GARAGE:
· 3 car garage
· Dry walled and tile border
· Fire rated door automatic door
· Garage door opener and 2 remote controls
· Roughed-in for electrical heating
HEATING:
2 Forced air gas furnaces High Efficiency units
Central air conditioning 75 gallon hot water tank (rental) Very organized utility room with tiled floor
· 2 electric filters
· HVAC air exchange
· Separate boiler for Heated floor
· 2 humidifiers and one steam humidifier