Portfolio 2024

Page 1

BAILEY STEVENS

Education

Rice University, Houston, TX

Architecture

M.Arch expected January 2025

Studio Representative, 2021 - 2023

The University of the South, Sewanee, TN

Studio Art MAJOR HISTORY MINOR

Bachelor of Arts recieved May 2021

Order of the Gown Fall 2018

Phi Alpha Theta; History Honors Society Arts Fellow

Skills

So ware Visual Media

Rhino

AutoCad

Revit

Illustrator

Sketchup

Enscape

Photoshop

Indesign

Vray Photography, Archival, Photography, Drawing, Oil Painting, Watercolor, Dark Room Printing, Platinum Palladium Printing, Procreate, Social Media, Marketing, Web Design

Light Room

Microsoft 365

After Effects

Experience

Merriman Holt Powell Architects, Houston, TX; Summer 2023

Architectural Intern

Participated in design development and schematic design phases for single project

Prepared materials and presented schematic design drawings to clients and contractors

Worked in Revit to create and finalize Schematic Design set for final submittal under supervision of project manager

VCBO Architecture, Salt Lake City, UT; Summer 2022

Intern/BIM Technician

Developed 3D models for active projects in Education, Commercial, and Healthcare

Prepared models for virtual reality presentations, collected and created 3D entorage

Collaborated with architects and interior designers on 3D models and Renderings

Babson Center for Global Communications, Sewanee, TN; Fall 2018 to May 2021

Graphic Designer

Designed promotional materials for University events and lectures, occuring at least once a month

Collaborating on materials with speaking guests and Babson center employees

Studio Erik Schmidt, Berlin, DE; Summer 2019

Artist’s Apprentice

Learned styles and methods from artist while organizing existing studio library and archives

Photographed and archieved over 100 works, and met with galleries and collectors for art exhibitions

Dyke Nelson Architecture, Baton Rouge, LA; Summer 2018

Handled Transfer of all architectural contracts between systems

Created Presentation Materials for team of architects

Communicated with and delivered materials to Louisiana Permits Office

Created Renderings of 12 active architectural projects Intern

Collegiate Activities

Rice Architecture, Fall 2021 to Present

Graduate/Research Assistant

Locating or Recreating lost Architectural Drawings for puplication

Collaborating on graphics for social media and book puplication

Photographing events, lecture series, and reviews

225.302.0908 sbs6@rice.edu baileystevensart.com

Shelter for Mothers + E.A.C.

Houston Museum of Immigration

Mixed Use Climate House Houston

Studio Art

Shelter for Mothers

& Emergency Aid Coalition

Houston, TX

Studio 601 - Rice University

Professor Mark Wamble

Fall 2023

Located on the current site of the Emergency Aid Coalition, within the Museum District of Houston, TX, the shelter for single mothers is designed to provide temporary housing, mental and physical healthcare, dining, and childcare services. The Emergency Aid Coalition currently does an outstanding job of serving the homeless of the area as well as families in need, though they have outgrown their facility and are in need of larger storage and meal prep areas. The shelter would join their new facility on the currently unoccupied space on the rest of the city block, both programs contained in a singular envelope while maintaining a strict level of security needed to protect the women of children that require the shelter’s services. This envelope was developed within the studio following a structural study of the skin-on-frame kayak, a 4,000 yearold technology originally constructed with driftwood, seal skin, and sinew lashing.

Project partner; Jared Snow Unskinned Wall Panel Module Laser cut ply-wood, & artificial sinew Bailey Stevens & Jared Snow [left] Skin-On-Frame kayak; Plan and Elevation. Bailey Stevens [right] Stress Model. Laser cut ply-wood, artificial sinew, bomboo composite textile, & bio-resin Bailey Stevens & Jared Snow

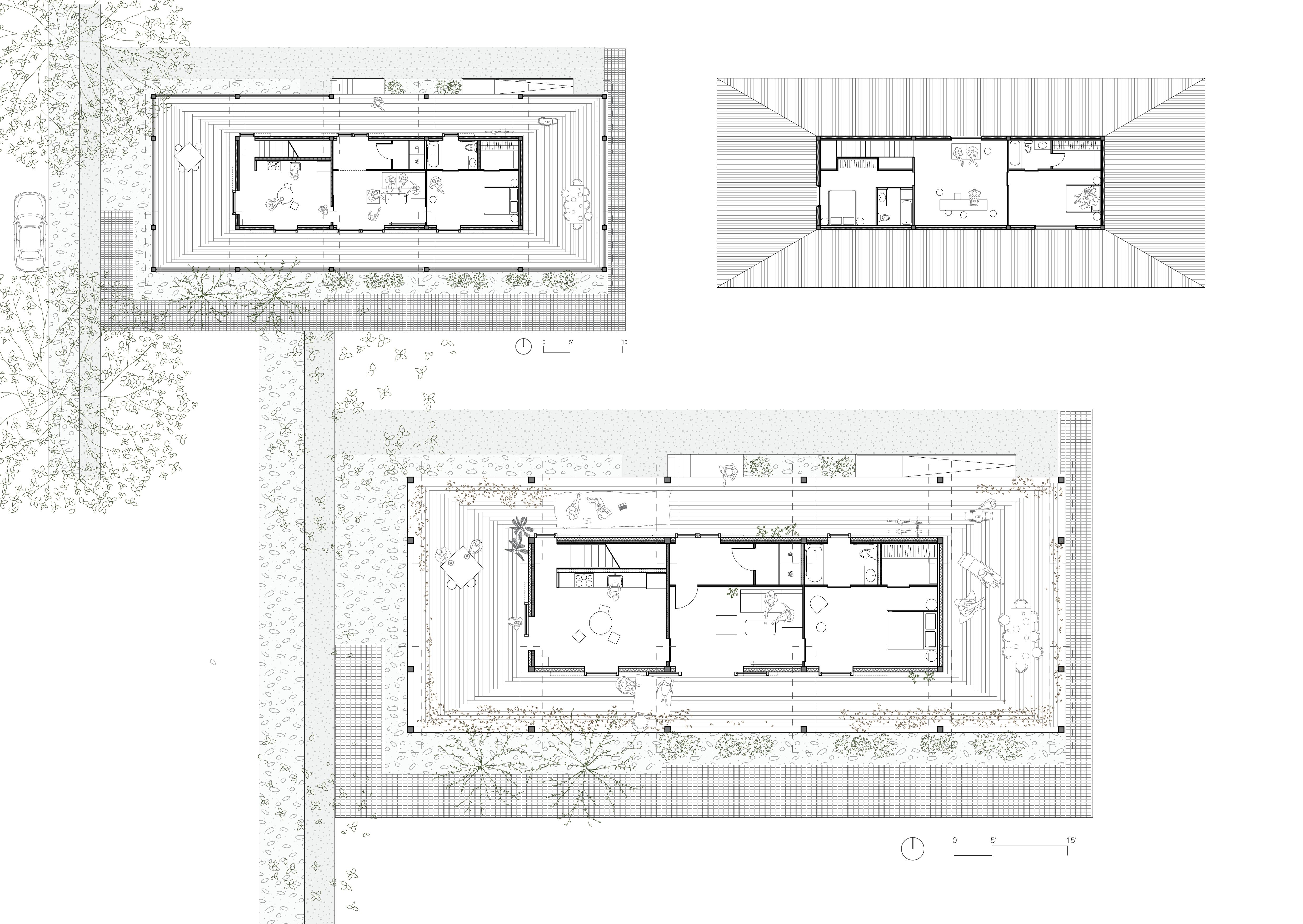
Plans levels 1-4

Bailey Stevens

Section Perspective. Cafeteria, housing units, and counseling Bailey Stevens Perspective Render. Corner of Calumet and Fannin Streets Bailey Stevens
Wall Section 1/2” = 1’-0”
Perspective Render. Housing tower light-well Bailey Stevens

Immigration museum

Buffalo Bayou, Houston, TX

Studio 503 - Rice University Professor Carlos Jimenez Fall 2022

Immigration Museum Houston is a celebration of the history and influence of immigrants on the city of Houston. As the most diverse city in the United States, it is easy to see how much of an impact immigration has had on the city. Located on Buffalo Bayou, this project integrates itself into this unique landspcape and provides gallery space, conference rooms, archives, a cafe, and two 150 seat aditoriums for lectures and screening films.

Site map. Buffalo Bayou at Jackson Hill Bridge.
Floor Plans.
West Section Perspective. Theater and Cafe view
5 20 50
Interior Perspective Render. Revised 2023 South Elevation. Facing Allen Parkway Exterior Perspective Render. Revised 2023

Climate House

Houston, TX

Tall Timbers - Rice University Professor Jesús Vassallo Fall 2022

This project is designed to be fully constructed with mass timber. The idea for the house was to be specifically catered to the Houston Climate. Typically Climate houses are made to insulate in winter and open up in summer. In Houston, the summer temperatures and humidity are the elements that the house must be insulated from. The winters, on the other hand, are nice and ideal weather for spending time outside comfortably. With this in mind, this project is designed to stay cool and shaded in the summer, and expand into the outdoors for the winter.

Group Project: Bailey Stevens, Yuhan Chen, Yufei Wang, and Nino Chen Deck

Perspective. Ink and watercolor on paper.
Above: First Level Plan (Summer). Nino Chen and Yuhan Chen Right: First Level Plan (Winter). Top Right: Second Level Plan. North Elevation (Summer). Bailey Stevens North Elevation (Winter). Bailey Stevens Section and Details. Yufei Wang Edited for Portfolio Winter Render. Bailey Stevens

Mixed Use Haus

Houston, TX

Studio 502 - Rice University Professor Mark Wamble Spring 2022

Taking inspiration from Herzog De Meuron’s Vitra Haus, this project attempt to use similar language of rotated extrusions and varying floor to ceiling heights. The ground level is dedicated to a mix of retail and manufacturing, originally intended for a small business that manufactures custom wax coats. The second and third levels have spaces for retail, resturants, offices, and private practices. The last two floors are a collection of unique apartments. The glass caps at the end of each extrusion serve as a focal point for the space and to allow for reorientation amidst changing axes.

Floor Plans. Revised 2023

North Section through central Stair. Revised 2023

Exterior Perspective Render. Houston Thunderstorm

Studio Art

Sewanee, TN

The University of the South; Sewanee Fall 2019 - Spring 2021

Selected work from undergraduate Thesis and Plein-Air Sketchbooks.

The Emperor. Bailey Stevens. Oil on Canvas. Fall 2020 Eight of Cups. Bailey Stevens. Oil on Canvas. Fall 2020 Watercolors; Amsterdam and Paris. Bailey Stevens. Watercolor on Paper. Summer 2019

Watercolors; Spreewald and Alexanderplatz. Bailey

Stevens. Watercolor on Paper. Summer 2019

Two of Cups. Bailey Stevens. Oil on Canvas. Fall 2019

225.302.0908

sbs6@rice.edu

baileystevensart.com

Turn static files into dynamic content formats.

Create a flipbook
Issuu converts static files into: digital portfolios, online yearbooks, online catalogs, digital photo albums and more. Sign up and create your flipbook.
Portfolio 2024 by baileystevensarch - Issuu