BETWEEN PORCH & PAVEMENT



Concept Design Presentation
![]()



Concept Design Presentation


Some places are rooted. Others are restless. This one lives in between.
The porch represents pause... familiarity, gathering, the rhythm of a place that understands how to linger.
The pavement represents motion... momentum, precision, the confidence to move forward.
Between them is where character is formed.
This hotel does not choose between staying and going... between tradition and progress. It holds both.
Shaped by movement. Grounded in strength. Balanced in the space between porch and pavement.
In Summerville, where the air hangs soft beneath the pines and time seems to stretch with the late afternoon sun, the Baker Hotel does not announce itself, it draws you in.
An open door.
A slow pour.
A place to land.
Rooted in the rhythm of the Lowcountry and shaped by the town’s quiet evolution, the hotel feels familiar but never predictable. It’s grounded, textural, and quietly soulful. Heritage isn’t polished for display; it’s felt in the materials, in the pacing, in the way spaces unfold with ease. Summerville’s unhurried charm is simply captured through a contemporary lens: understated, thoughtful, and effortlessly cool.


If your name is on the door it should stand for something.
A graduate of The Citadel, Marine, and businessman, Tommy Baker built his company on discipline, precision, service, and the belief that how something is delivered matters just as much as what is delivered. Details aren’t decoration; they’re integrity.
There’s a structure in the way he works and genuine warmth in the way he leads. It’s the kind of southern hospitality that makes you feel welcome the moment you walk in the door. The Baker Hotel reflects that balance. This isn’t a vanity project. It’s a place built with intention, run with consistency, and delivered with respect; where guests are treated right, every single time.


This is a place where locals meet for coffee that turns into conversation and where visitors are folded easily into the fabric of the town.
The Baker Hotel respects Summerville’s heritage: the craftsmanship, the scale, the deep-rooted sense of community, while looking forward with clarity and confidence.
It is tailored but approachable. Elevated but easy. Designed with purpose, yet filled with heart. Like the Lowcountry itself, it does not demand attention. It draws you in slowly and once you arrive, it feels as though you’ve always been expected.



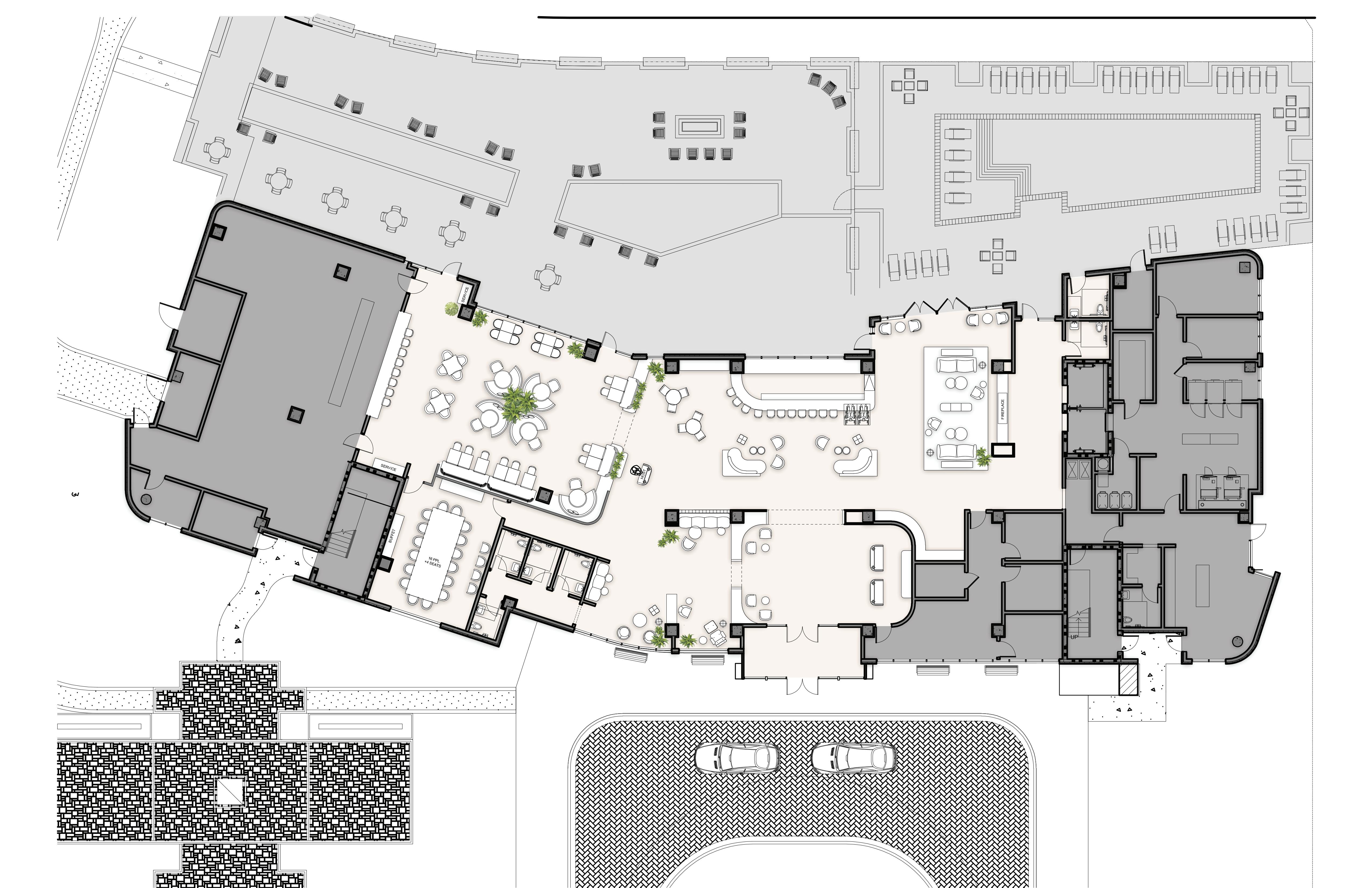
Soft curves and streamlined silhouettes define the architectural language, drawing directly from the curved, sculptural profile of the building and the sweeping landscape of marshes and meandering tidal creeks. The architecture moves, and the interiors move with it, carrying that same sense of flow from outside in.
Spaces unfold with one room giving way to the next with ease. Framed thresholds guide you forward, creating rhythm without interruption.
The lobby breathes into the lounge, and the bar opens onto a veranda where inside and outside dissolve into one another.


Guided by Tommy Baker’s legacy in the automotive world and shaped by his military discipline, the design carries a respect for precision, craft, and execution. Nothing is ornamental for the sake of it. Every line earns its place. Upholstery takes cues from classic car interiors with channel tufting, piping, and banquettes that mirror the contour of a vintage seat.
Even the smallest gestures are deliberate, from contrast stitching that traces each edge to subtle references woven throughout, like his signature pocket square interpreted in the design of the cocktail napkins. These details don’t shout, but they resonate. They’re thoughtful, personal, and built to last.


Capturing the essence of the Lowcountry, the design reflects a sense of ease, familiarity, and quiet authenticity. It’s rooted in the slow pulse of the region and there’s an unhurried charm that invites you to stay awhile. To sink back into a porch chair, feel the breeze move through, let conversation drift, and time loosen its grip.
Summerville’s spirit comes through clearly but quietly, seen through a contemporary perspective that feels fresh without loosing its roots. Light filters softly through the pines. Evenings stretch longer than expected. The architecture doesn’t interrupt this pace, it supports it.
Below the pines, the hotel becomes less a destination and more a familiar presence. The beauty lives in the pacing, in its soulfulness, and the gentle art of lingering just a little longer.


Hospitality here is not theatrical. Instead, service is approached with the same care and intentionality as the physical design: precise yet warm, polished yet personal. It’s the kind that makes you feel taken care of rather than waited on.
Every space has a natural gathering point. Furniture and lighting build energy and hold it, celebrating magnetism not hierarchy. The lobby invites lingering, the library offers a quiet corner, the hearth encourages connection, and at the bar your favorite seat is waiting for you. Here, hospitality is genuine, instinctive, and deeply human.































Thoughtful detailing

























































The Baker
Designed with purpose, yet filled with heart. Once you arrive, it feels as though you’ve always been expected.

