Portfolio

Urban Design Selected Projects
![]()

Urban Design Selected Projects
Urban Designer
+1(825)449-7033

Azindinar.1999@gmail.com

@aziiiin.98

azindinarvand

Bachelor Degree (2017-2021)
Jondishapoor University of Dezful, WORKSHOP
Urban Management (2020)
Jondishapoor University of Dezful, LANGUAGE
Persian Native English IELTS
AutoCad ArcGIS
SketchUp
Photoshop
Photography
Shavadoon Magazine
•Description: a Faculty Magazine in the Urbanism & Architecture department Link
•Role: Magazine Editor, presenter
My Duties: Collaborated with urban planning professionals, academics, and designers to produce high-quality content that highlighted both traditional and modern approaches to urban and architectural development.
I’m Azin Dinarvand, an urban planning professional with a Bachelor’s degree in Urban Studies from Jundi-Shapur University of Technology. My work focuses on sustainable development, with expertise in pedestrian-friendly design, spatial analysis, and community engagement. My thesis on enhancing pedestrian pathways in historic districts reflects my dedication to creating accessible, culturally rich public spaces.
With experience as a Research Assistant and an Ecotourism Specialist, I’ve developed strong skills in GIS, AutoCAD, and effective communication. Now based in Calgary, I am eager to contribute to projects that foster community connections, sustainability, and resilience in urban spaces.
• Crime Prevention Through Environmental Design (CPTED)
• ArcGIS Pro Basics by Esri
• integrated urban management by Shahre Danesh Academy
• Introductory course in ArcGIS software by Iran’s Architectural Center (IAC)
• AutoCAD(2D) by University of Jundi Shapur
• Project Management by Google Career Certificates
Ecotourism specialist
Museum of the Shush city
Jundi-Shapur University of techniligy
Research assistant
(2017_2021) (2017_2021) (2020_2021)
Junior planner
Sadrab Puya Consulting Engineers
Urban design of Golabdarreh neighborhood 2019
Individual project
Academic Project
USustainable Urban Development
2019
Individual project
Academic Project
Individual project
Academic Project
2018
The northern and northwestern sections of the neighborhood are engaged in informal con struction and the formation of a residential area with a predominant residential land use. Informal construction occurs on lands with out official documentation and in violation of is sued permits for increased economic efficiency. There is a lack of neighborhood service per capita and insufficient public parking. Low-quality physical and environmental condi tions, the presence of dilapidated and unsafe ar eas, and abandoned green and open spaces with in the boundaries of the Golabdarreh river valley. Neglect of laws and regulations regarding quan titative and qualitative boundaries of river val leys and urban fault lines, and construction reg ulations applicable in urban development plans. The existence of an old hiking trail in the northern and western sections of the inter vention area and the presence of vegetation and suitable green spaces with tall, old trees. The presence of desirable views of Tehran and the topography of the river valley with pleasant scenery. Proximity to recreational land uses, such as Teh ran’s tobogganing park in the western section. The tourism approach, in coordination with sus tainable urban regeneration, aims to develop com prehensive planning solutions to improve existing conditions and create public benefits, alongside adherence to applicable regulations and laws.








Cultural functional coverage radius


Green space functional coverage radius
Religious functional coverage radius Educational functional coverage radius
Introduction of the Area
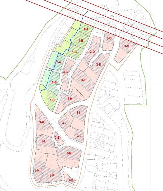
Area of Golabdareh Neighborhood
Location:District 1, Zone 3 of Tehran Municipality
Area of the Neighborhood:Approximately 56.9 hectares
Area of the Local Plan:38.7 hectares
Population of the Neighborhood (Statistics of 2016): 14,568 people
Population of the Local Plan (Statistics of 2016): 12,018 people
Area of Dilapidated Fabric:8.5 hectares
Number of Dilapidated Fabric Lots:678
Area of Lots Located on the Fault Line:21.4 hectares
Number of Lots Located on the Fault Line:939

The development pattern of the area and its components :
1. Development of activities related to recreation and tourism.
2. Protection of natural environmental features and elements (such as rivers-valleys, gardens, slopes of Alborz)
3. Protection of historical heritage of the region
4. Forecasting related and complementary service centers and areas with various functional levels in the entire region.
5. Compliance with the hierarchy of the communication network.











Three Turkish ethnicities (Mishkinshahr, Saveh, Ardabil) live in the neighborhood with 40% frequency, Ler people (Hamadan, Kohdasht) with 30% frequency and Afghan immigrants with 30% frequency. The education of Lero Turks is often below diploma and most Afghans are considered illiterate. They are often engaged in labor and driving jobs and are scattered throughout the neighborhood. According to the existing social capital analysis, it can be said that there are conflicts between the old residents of Gulabdare neighborhood and the immigrants (Afghans, Turks, Lors, etc.).
Examination of the construction status in the area
Afghan migrants
Saveh, Qazvin people
Lorestan people
Meshkin shahr people
Toyserkani people

Aerial image related to the year 1956









Historical and valuable characteristics of the Golabdar neighborhood
1. The area of the Twin Stone.
2. Imamzadeh Qasem.
3. Malek garden.
4. Etymology: The abundance of apple and rosewater trees.
5. Role in the past: The mountainous route of Golabdar.
6. Historical and valuable features: The large gardens of the past, such as Vaziri Garden and Malek Garden, the tomb of Imamzadeh Qasem, the Twin Stone, and the mountainous route.
7. History of settlement and the initial formation core: The migration of villagers to Imamzadeh Qasem for herding and agriculture.


Proposed development model :

Current status in the special residential area :

Proposed Aggregation Model in the special residential zone_ R122-1 of the Twin stone area :


excavation area
Type 3 of the channel edge blocks, east-west or north-south building orientation. lighting of the building from the all four sides.
excavation area

access from the roadway
Type 1 of the channel edge blocks, east-west building orientation. lighting of the building from the east and west.

Type 2 of the channel edge blocks, east-west building orientation. lighting of the building from the east and west.

access from the roadway
excavation area

Parking ramp to compensate for the elevation difference between the street and ground floor.
Individual project
Academic Project
2019 The focus on deteriorated and old urban fabrics, as well as addressing their instability, has become a critical and central issue. This urgency has prompted relevant organizations to strive for the organization and regeneration of these areas, emphasizing the need for intervention over different periods. Approaches to urban restoration and improvement have evolved over time, transitioning from reconstruction, revitalization, renewal, and redevelopment to urban regeneration and renaissance. Throughout this process, there has been a shift from a purely physical perspective to incorporating social, economic, cultural, and artistic considerations.

The master plan is being approved by Dezful













In order to validate the relationship between the subscales and the total score of the questionnaire, the realization of the community-oriented regeneration of Siahposhan neighborhood of Dezful, Pearson’s correlation was used that the total score of the questionnaire with the dimension of social potentials r=0.503 and with the dimension of physical characteristics - Space is r=0.377; which is reported as significant at the error level of 0.50. Cronbach’s alpha method was used to determine the reliability of the questionnaire. In this way, questionnaires were first distributed to 30 people of the community, which for the feasibility questionnaire of community-oriented regeneration of Siahposhan neighborhood of Dezful is equal to 0.767 and physical-spatial characteristic is 0.734 and because it is more than the value of 0.7 It can be considered desirable to continue the research with a larger sample of the society with the necessary results.






The neighborhood of Siyaposhan Dez in the next 5 years (1403) has a good condition in terms of social and physical injuries, and in terms of sports, the arrangements have reached national and international standards. Also, this neighborhood is a hub for tourism and handicrafts in the region.









Diagrams of Challenges and Objectives for Stormwater Drainge Systems
Challenges:
1. Insufficient funding for implementation .
2. Administrative inefficiencies and poor coordination .
3. Delays in project execution .
4. Lack of structured decision-making meeting .
Analysis . . . Prioritizing problems from the perspective of residents. Problems prioritized by local groups.
Challenges: Objectives:
Challenges: Objectives:
5. Inadequate consideration of economic feasibility .
Challenges:
6. Limited community engagement and awareness .
Objectives:
Challenges: Objectives:
Objectives:
1. Develop actionable and efficient plans .
2. Secure sufficient funding and resources .
3. Ensure timely project execution .
4. Foster community participation and collaboration .
5. Create sustainable solutions to key issues .
6. Monitor progress and adapt plans as needed .
1. Improper placement of electricity poles and improper lighting in some passages.
2. The need to repair and improve most of the houses in the neighborhood.
3. Creating a suitable sports environment for teenagers.
4. Failure to properly collect waste at the neighborhood level.
. . According to the theoretical foundations of the research and the plans implemented during the regeneration process, the need to design a neighborhood center to be managed with the participation of the residents was raised by the social leaders. This neighborhood center can include an open or closed community center.


Designing a pathway from the sidewalk to the green space, designing a gazebo in this area, and designing furniture on the water .



Creating a shade structure for climatic comfort and designing furniture and shading using trees .
. .
After the formation of social groups and the participation of the people of the neighborhood and as a result of the decisions made by the representatives of the groups, the priorities of the residents of the neighborhood were extracted and then with the help of the local people, the necessary follow-ups were done to solve these problems. The pictures below show the implementation stages of some of these projects that were implemented to solve the mentioned problems.

Urban Design Portfolio
