ayushi portfolio.
college of architecture planning, and public affairs
university of texas at arlington
selected works
2024-2025






![]()
college of architecture planning, and public affairs
university of texas at arlington
selected works
2024-2025






linkedin.com/in/ayushi-tecture/
ayushi.mavuduru@gmail.com 813-233-6460

I am an undergraduate architecture student driven by the power of design to uplift individuals and unify our communities. I have cultivated at the interests of architecture, planning, public policy, historic preservation, and urban design in service of these goals. I am most inspired by the design of urban spaces, cultural and civic institutions, and aspire to be part of meaningful work in landscape, education, supportive housing and transit-oriented design. In recent work experience, I have channeled my skill sets in design, research, public speaking and community engagement to

give back to my campus and its broader neighborhood. At the age of 12, a life-changing move from my hometown in Tampa, Florida, to Sammamish, Washington, where I took my first industrial design, drafting, and sculpture courses prompted me to consider architecture as a potential career. A second relocation to Richardson, Texas solidified my passion for the field through an awareness of how architecture touched the day-to-day lives of all people, and thus was the best avenue to channel both my creativity and drive for social change.

education
honors bachelors of science in architecture
university of texas at arlington
graduates may 2026
honor guide
may 2025.- present
National Medal of Honor Museum
provide hour-long exhibit, field trip, and architectural tours, share knowledge with guests enquiring about exhibits, brief guests and operate dustoff VR experience
undergraduate research assistant
sept.- dec. 2024
Prof. Julia Lindgren, UTA School of Architecture
contributed case study research and engagement strategies towards a design playbook for housing supporting DFW's former foster youth
special collections reference assistant
jun. - aug 2024.
UTA Libraries Special Collections (Historical Archive)
facilitated research by pulling archival materials, managing front desk, curating selections for a mini exhibit
skills
downtown operations intern
jul. 2024- aug. 2024
Downtown Arlington Management Corporation
enhanced placemaking and storefront grant process, provided long-term design recommendations to property owners, business
social justice peer educator/ p.e.a.k mentor
nov. 2022- may 2024
UTA Intercultural Student Engagement Center; formerly Cultural Engagement & Social Change
engaged student groups with 1 to 2 hour interactive sessions furthering mutal respect and understanding



Hudson Yards, Manhattan, New York
luxury office tower
arch 3553: design studio I fall 2024
Taking inspiration from the rail frog- the device facilitating smooth transitions between rail tracks- the Nexus negotiates a transition between the historical urban fabric of Midtown and the unprecendented scale of Hudson Yards.
2341 N Cannon Dr, Chicago, Illinois
boating venue
arch 3554: design studio II spring 2025
Competitve boating venue and recreational landmark located in the heart of Lincoln Park in Chicago; investigates ephmeral and infrastructural conditions through a tectonic system comprised of “void”, “plate” and “anchor”


Urban Reserve, Dallas, Texas
multifamily residential
arch 2552: basic design & drawing I spring 2023
Study of three housing typologies as an attainable means of densification
Prototypes: i) atrium ii) townhome iii) single stair

conceptual models + drawings 2022-2025
Celebrating the centrality of anolog model building in cultivating my understanding of architectural form & structural systems
structural investigations: hanger & tie, beam & cantilever, mass-plane-frame hendrix house: musicality in design
30|60 tower
wrigleyville conditions of infill

2021- 2025
Buildings and public spaces within and beyond the DFW metroplex that have shaped my understanding of design
Kimbell Art Musuem, Sundance Square
Modern Art Museum, PS 1200 Fort Worth
Pacific Plaza Dallas 'Skybox" Tampa
Oculus & Seaglass Carousel New York
Hudson Yards, Manhattan, New York site: luxury office towers project type:
course :
instructors:
arch 3353: design studio I; fall 2024
~
Carlos Alba, Eduardo Castenada & Jason Wheeler
collaborators: Ayushi Mavuduru (site research, plans, landscape, context model, climate studies, exterior renders) Keila Hrabal (massing, facade, tower section, interior renders)

Soaring above an active rail yard, the Nexus at Hudson Yards embodies the dynamism and spirit of New York city through its flowing and intertwining form reminiscent of the ever-evolving rail infrastructure characterizing the site. The Nexus brings luxury office space and high end restaurant to Hudson Yards while expanding on a network of thriving public greenspace and making meaningful cultural contributions through a local history gallery and community-centered workspaces. Informed by the geometries of intersecting rail lines and the frog- the device negotiating a seamless transition between tracks, the Nexus at Hudson Yards facilitates connections between the various cultures, infrastructures, and identities that overlap and intersect at its footprint.



two towers frame a gateway into Hudson Yards angle and twist in response to key context features flow into an interconnected form
The changing angles and diverging footprints mediate a transition between the North-South axis of the 7th line extension and Bella Abzug Park, and the East-West axis of public bus and passenger rail connecting to Moynihan station and Grand Central station. Likewise, the flowing and intersecting forms of the Nexus reintroduce public space to west side and provide a welcoming gateway from the historic urban fabric of Midtown to the unpredecented scale and modernity of Hudson Yards

looking northwest from 10th Avenue

prevailing wind study context winter wind
















Lincoln Park Boat Club, Chicago, Illinois site:
project type: boathouse, recreation center, and competition venue
arch 3554: design studio II; spring 2025
instructors:
course : Sandra Espinoza



This proposal for a vibrant boating campus at the site of the historic Lincoln Park Boat Club features state-of-the-art indoor rowing facilities, an expansive competition venue, and public recreation. Regatta and the Interstitial activates the entire greenway east of Lincoln Park’s Zoo and west of the South Lagoon; investigating ephemeral and infrastructural conditions intrinsic to the site’s century-long history as a boating facility. Special consideration is given to the interplay between human modifications of the lagoon edge and the long-standing rituals associated with competitive boating.


planning diagram integrates square footage and program requirements (ephemeral) with tectonic system (infrastructural)
A tectonic system consisting of “void,” “plate,” and “anchor” reconciles the distinct programs of clubhouse, boathouse, and visitor center by addressing the varying requirements in access and enclosure associated with each. An innovative structural system employing retaining walls, A-beams, and steel ties upholds this tectonic system and actualizes a dynamic layering of indoor and outdoor space across this sprawling campus. This layered reconcilliation of program preserves the sunken foundation and facade of the original Lincoln Park Boathouse, transforming it into a vibrant realm or recreation, spectating, and celebration.



sun path existing conditions

recreation & infrastructure
site analysis

soil & flooding



























































competetive program: rowing tanks, rowing village, competitive boat staging


spectator terraces and a public "float in" recreation zone ebb and flow on the eastern edge of the site

northern edge of regatta campus features elevated walkways and spectator terraces

rowing tank building is elevated above grade to preserve connections from seasonal rowing village to competive staging
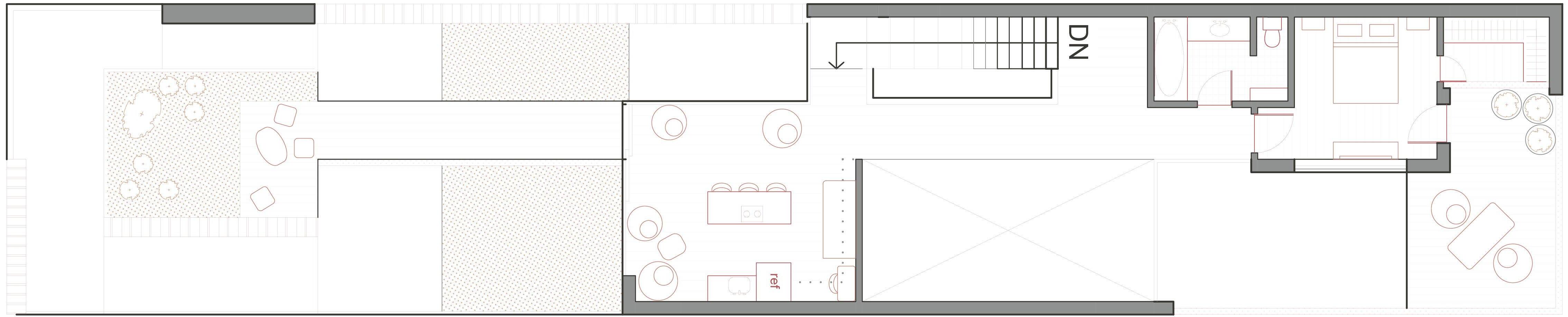
154 N Bailey Avenue, Fort Worth, TX, 76107 site: project type: multifamily residential
instructors:
arch 4556; design studio III, fall 2025 course : Gregory Ibanez & Bart Shaw

This design investigation examines three housing typologies- the atrium house, the townhome, and the single-stair apartmentas attainable means of densification in the suburban context. Each of these typologies was applied to a singular site in the wellestablished White Settlement neighborhood of Fort Worth. Special attention is given to facade design and tectonic characteristics that give dignity to the built form of each typology, and, by extension, its inhabitants. These three design excercises collectively lead to a nuanced understanding of the three typologies with respect to environmental characteristics like daylight and airflow, spatial organization of public and private space, perceptual relationships to its context, and experiential qualities for its residents.


i atrium house
1.516 acres open 0.541 acres covered X 100 = 280 %

ii townhome
1.074 acres open 2.204 acres covered X 100 = 48.7% open to covered open to covered

iii single stair
2.359 acres open
0.964 acres covered X 100 = 244% open to covered
2 bed X 8 + 3 bed X 4

total bedrooms 2.05 acres = 13.67 = 4.32 acres 22.22

total bedrooms 3 bed x 32 units = bedrooms/ floor 1 bed x2 + 2 bed x2
x 5 floors x 9 buildings =

units breakdown :
building footprint:
occupants per acre:
2 bed + 2 bath (6); 3 bed + 3 bath (2); 2 bed +1 bath (2); 3 bed + 2 bath (2)


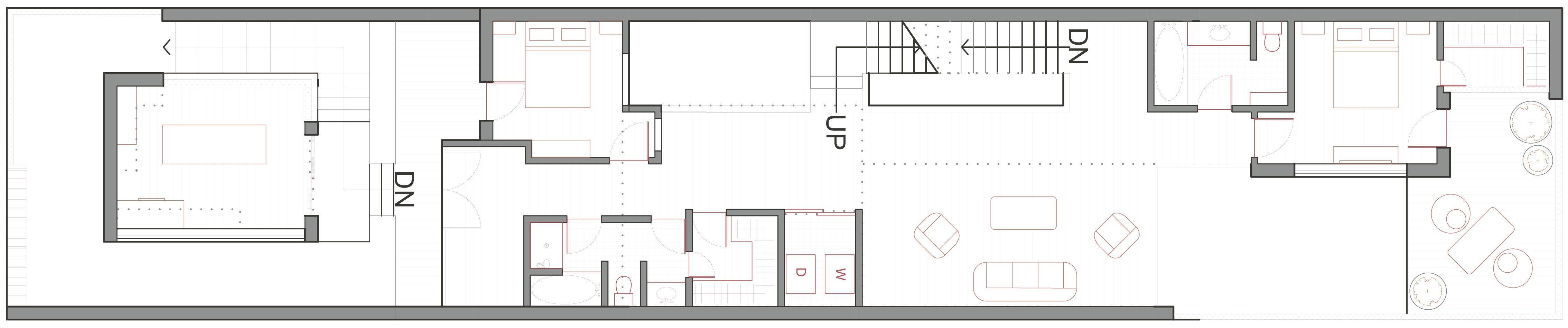
Two clusters of atrium homes are organized by an axis at a 56- degree diagonal to North Bailey Avenue. Both attached and detached carports, as well as auxiliary parking, are constrained to the perimeter of the project site, allowing for a vibrant pedestrian and bicycle boulevard connecting individual residences to greenspaces within the housing development and with the broader neighborhood. Two short access driveways at the northwest and southeast ends of the residential plot create an opportunity for a bike trail and green buffer to and from the adjacent maintenance yard.








The residences nest and slide past one another to create moments that celebrate the historic live oak trees rooted across the southwestern edge of the site. Each home is defined by two distinct atriums- an introverted forecourt surrounded by bedrooms, and a social courtyard overlooked by kitchen, dining, and living areas. Echoing the organization of each house in relation to its neighbors, within these atriums, stone pavers stagger and slide apart to reveal planting and water features.

2 bed + 2 bath

atrium brings light and ventillation into kitchen and living space
32 units; 3 bedrooms, 3 bathrooms each units breakdown : building height:
building footprint:
occupants per acre:

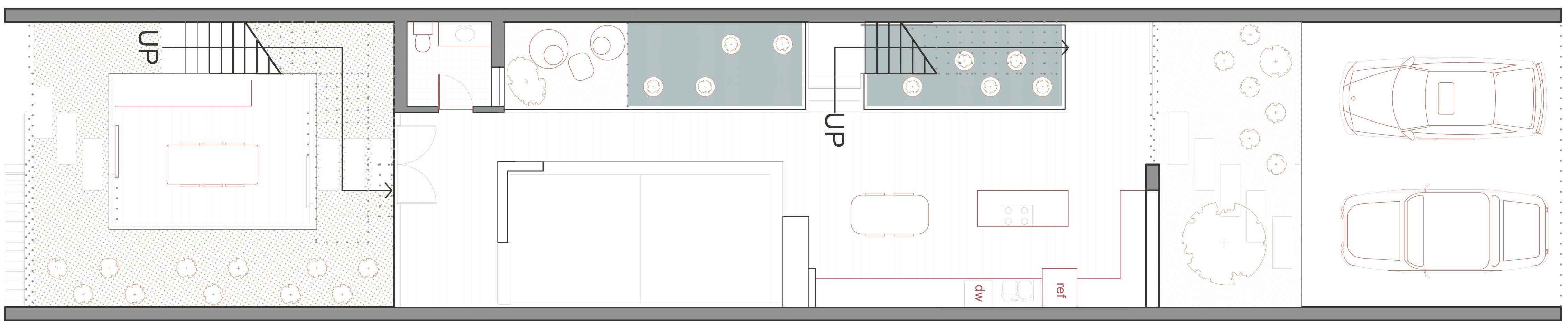
The second of a pair of townhomes exploring the identity and experiences of two adult siblings establishing distinct households, House A2 reflects the pursuit of individual passions, authenticity in relationships, and flouting of societal conventions within the emotional world of an archetypal younger sister. The focal point of this design is the studio which appears to float above a glass enclosed tea room nestled within a spacious forecourt. This formal entertaining space is confined a distance away from the core functions of the home, while more intimate entertaining and gathering spaces are elevated to the second and third floors, forming a clamplike mass that interlocks with the primary bedroom, studio, and kitchen.






glass-enclosed tea room rises from the center of a gravel forecourt, while suspended stairs lead to the “floating” studio above
House A2 notably accommodates non-nuclear family structures and unorthodoxl living spaces, with two guest bedrooms, full bathrooms, and private balconies that stack on the second and third floors. The third-floor houses a solarium and rooftop garden; the placement of these above the owner’s primary bedroom and studio reflects a level of comfort with those who are typically entertained within the home. The facade consists of aluminum mesh screens and curved louvers, forming multiple translucent layers through which one must pass to reach the day-to-day functions of the house, while the flowing forms of the screening device speak to the interwoven organization of individual and social, and restful and productive space.

enclosed by undulating painted aluminum fins, outdoor terrace and solarium form an intimate entertaining zone on third floor
occupants per acre: building footprint: 1 bed 1 bath (10); 2 bed 2 bath (10)

This single stair prototype engages with the surrounding single family housing with a permeable circulation core that diffuses light into the units and dematerializes the form into four solid corners. Entries to individual units are demarcated with translucent glass block, establishing a balance between fire protection, privacy, and an abundance of natural light. The dynamic, crosshair-shaped core through which light enters interjects beyond the interior circulation, into individual units.
The primary facade of the prototype faces southwest in line with North Bailey Avenue, and facing it’s closes neighbor- a school for youth with disabilities. Vertical slots of perforated brick further reconcile the difference in scale between this prototype and it’s surroundings. Coupled with continuous slots of glass block, these facade elements embrace the relative verticality of this form while emitting a striking, lantern-like glow at night.






section looking northeast


kitchen island overlooks living room wrapped by perforated brick while a glass block wall delinates access to private spaces
An exchange of light from multiple orientations faciliated by the placement of balconies in line with the glass block walls. The form responds to varying solar exposure on the site, with balconies that are recessed to provide shading on the south sides of the form, and those which project outward and widen at the north end to bring in more diffused, indirect light within the unit. Living rooms are wrapped with perforated brick, another material that provides durability and safety while providing light and privacy. In plan, no bedroom windows are placed on the primary facade, ensuring privacy for residents and reducing solar heat gain

Culiminating in a series of investigative study models completed throughout ARCH 3554: Design Studio II in my junior year, architectural acrobatics encompasses my journey to better understand structure, tectonics, and materiality through model building and analog drawing. This process that seamlessly integrates analytical drawing with physical models has empowered me to reconcile contextual conditions with deeper historical and cultural narratives, while also remaining grounded in the reality of how buildings are constructed.

mass-plane frame investigations using repurposed materials

composite system of inclined and vertical hangers

series of three beam and cantilever studies

system of ties with unequal tension expressed through organically shaped meshes
right: composite collage representing beam and cantilever relationships through both orthogonal and fluid geometries


hendrix house: form of this residence developed through analysis of sheet music into a sectional parti, and the construction of a musical object producing multi-layered, resonating sound

30|60 tower: extruded mass and three floor plates formed by a collision of two grid systems; form revolves around a 3 storey sculpture while the facade echoes its layered quality and expresses the negotation between two grid systems

clockwise from top: conceptual model, sectional parti, sheet music analysis, musical object









wrigleyville conditions of infill:
This mixed-use, multi-tenant housing in the heart of Wrigleyville provides a balance between the historic baseball-centric amenities and private, contemporary residences full of natural light. Parti drawings and physical models were used to develop a tectonic approach in managing fire egress, a historical facade condition, and the need for natural light on this infill lot.








study models 1''=32'














final conceptual model 1’’=32’


Spanning the DFW metroplex and beyond, public spaces and buildings have shaped my understanding of architecture, urban design, and place making. They have collectively informed form-making, facade design, use of materials, and experiential character in my own studio work.







