PORTFOLIO - Ayman AHMADOU - Architecte DE

Page 1

PORTFOLIO ARCHITECTURE

Ayman AHMADOU

Architecte DE 2022

Bonjour,

Je m'appelle Ayman Ahmadou, j'ai 31 ans et je suis originaire de Syrie. Mon amour pour l'architecture s'est développé depuis mon plus jeune âge et est devenu un rêve qui s'est finalement réalisé avec mon diplôme d'État en Architecture de l'ENSA STRASBOUR.

Je suis déterminé à développer mes compétences dans plusieurs domaines au cours de ma carrière. En 2015, j'ai obtenu un diplôme de la Faculté d'Architecture de l'Université d'Alep, ainsi qu'un diplôme de photographie en 2014.. J'ai aussi bénéficié d'expériences pratiques en travaillant bénévolement pour le Croissant-Rouge et la Croix-Rouge - section shelter - de 2012 à 2015.

Ma passion principale est de concevoir pour le développement social et les communautés marginalisées. J'essaie de connecter mon travail académique aux défis mondiaux actuels et me suis spécialisé dans les réfugiés pendant ma maîtrise. Mon travail de memoire portait sur l'impact de la guerre syrienne sur les bâtiments historiques d'Alep et mon projet PFE de conception sur l'urbanisme et la construction de logements pour les réfugiés. Et elle l'a tiré jusqu'à la dernière tente. Cela me donne de la motivation et un aperçu du contexte local, et me permet de conceptualiser une solution de conception en fonction des besoins et de la culture locale.

Mon amour pour l'architecture, ma curiosité pour ce domaine et ma conscience environnementale nourrissent ma passion pour les filières en développement et les valeurs locales.

Portfolio de Ayman AHMADOU

- Février 2023 -

Architecte DE 23 | 10 | 1991

LinkedIn: aymanahmadou

6 rue sébastien leclerc, 54000 Nancy

07 76 69 29 70

ay.ahmdou@gmail.com

ayman.ahmadou@etu.nancy.archi.fr

My Website

Permis B et véhicule personnel

ÉDUCATION

ENSA Nancy, 2022 - 2023

September 2022 | Master DNA (Design Numérique Architecture)

ENSA Strasbourg, 2019 - 2022

• September 2022 | PFE AVTT, Architecture pour les réfugiés. Atma - camps de la dignite - jusqu’à la dernière tente

• Janvier 2022 | Mémoire, L‘impact de la guerre syrienne sur les batiments historiques de la vieille ville d‘alep – syrie

2020 - 2022 | Master 1 et 2

2019 - 2020 | Licence 3

Faculté d‘Architecture à Alep - Syrie, 2011 - 2015

5ème année

• Etudes en Architecture à Faculté d‘Architecture à Alep

ESBA ALEP - Syrie, 2014

Diplôme de photographie

EXPÉRIENCES

G.SFAKSI | Stagiaire | Thionville

Juillet 2021

• Stage 2 Mois dans une agence d‘architecture, G.SFAKSI - Architecte D.P.L.G.

3D Revit, Suivi de projets résidentiels de l‘esquisse au simulations 3D, photomontages et détails techniques.

Photographe & Graphic designer | Freelance

Septembre 2017 - 2021

• Photographie de Mariage & Drone, Concepteur graphique.

G.SFAKSI | Stagiaire | Thionville

Juin 2020

• Stage 1 Mois dans une agence d‘architecture, G.SFAKSI - Architecte D.P.L.G.

Phase esquisse logements individuels et petits collectifs, simulations 3D, présentation clients.

G.SFAKSI | Stagiaire | Thionville

Novembre 2016

• Stage 6 Mois dans une agence d‘architecture, G.SFAKSI - Architecte D.P.L.G.

Observation et découverte du métier de l‘architecte, simulations 3D & vidéo d‘animation.

COMPÉTENCES

REVIT

LUMION

AUTOCAD

ARCHICAD

3D MAX

BLENDER

SKETCHUP

ADOBE CREATIVE SUITE

Ps, Ai, Id, Lr, Pr

PHOTO/LASERGRAMMÉTRIE

AGISOFT METASHAPE

LANGUES

ARABE: langue maternelle | FRANÇAIS: BON - DELF B1

LOISIRS & INTÉRÊTS

Baccalauréat Scientifique, 2010 - 2011

Lycée Idlib - Syrie

Croix Rouge Syrien, CICR | Bénévole | Syrie

Mai 2012 - 2015

• Membre du département premiers secours, du bureau de coordination, de l‘unité de gestion des catastrophes.

Drones Photography Bénévolat Voyages

Ce portfolio est une compilation de projets étudiants réalisés au cours de sept années. Il illustre les compétences en architecture qui permettent de répondre à divers enjeux, contextes et programmes, en proposant des formes adaptées.

Les 20 projets présentés couvrent des problématiques et des environnements variés, témoignant de l'évolution majeure de mon parcours académique en architecture. Ils révèlent les sensibilités qui ont guidé ma pratique, en produisant des formes, des espaces et des images. Ce portfolio est une vitrine des compétences acquises, ainsi que des réalisations et des expériences qui ont influencé mon approche de l'architecture.

EN FRANCE

• JUSQU’À LA DERNIÈRE TENTE

PFE AVTT | Architecture pour les réfugiés. Atmacamps de la dignite -

• LOGEMENTS COLLECTIF DE DIFFÉRENTES SURFACES

M2 - S1 Architecture, théorie et projet

• MÉMOIRE

L'IMPACT DE LA GUERRE SYRIENNE SUR LES BATIMENTS HISTORIQUES DE LA VIEILLE VILLE D'ALEP – SYRIE

• ON DIRAIT LE SUD

M1 - S2 Résilience autoroutière A35

• LA GARE DU NORD, INTERFACE DE LA TRANSITION

M1 - S1 Urban studio - La transition de Mulhouse à Ungersheim

• CONSTRUIRE UNE ÉCOLE D'ARCHITECTURE, STRASBOURG

L3 - S2 Édifice et programme

• CONSTRUIRE UNE ÉCOLE D'ARCHITECTURE, STRASBOURG

L3 - S1 Construire l'espace urbain

PFE JUSQU’À LA DERNIÈRE TENTE, ARCHITECTURE POUR LES RÉFUGIÉS.

CAMPS DE LA DIGNITE ATMA, SYRIE

Le camp d’Atma est le plus grand du nord de la Syrie, avec une superficie de 360 hectares, il se localise à 3 km de la ville d’Atma, à 60 km de la ville d’Alep. Avec un million d’habitants qui vivent dans de mauvaises conditions. Cependant depuis plus de 10 ans ce camps n’a eu aucun développement, toujours que des tentes, des caravanes … Alors pour cadrer mon projet et définir ma problématique, au départ j’avais plusieurs questions et avec des recherches, j’ai pu finalement les affiner pour aboutir à la question suivante: Quelles sont les mesures qui peuvent être prises pour améliorer les caractéristiques et les éléments urbanistiques pour améliorer ce camp ? Et comment pouvonsnous créer une ville intégrée sur la base du camp aléatoire dans lequel vivent un million de personnes ?

Pour répondre à cette problématique, tout d’abord, le projet vise à étudier le tissu urbain du camp d’Atma et analyser les caractéristiques architecturales, les services, les équipements publics, et le réseau des rues et des marchés. Ensuite, le projet consiste à créer une proposition de conception des logements pour des personnes déplacées, ainsi des stratégies pour leur réinstallation dans le camp d’Atma en organisant et en développant le camp à travers l’utilisation des matériaux et des débris de bâtiments détruits pendant ces années de guerre.

Le camps sera réaménager par zone mais en gardant l’infrastructure existante et dans chaque zone, il y aura différents types de logements, ( 60 , 80 , 120 m2). j’ai utilisé des modules de 4,5 m pour créer plusieurs espaces dans le logement, chaque modules présente une espace ( cuisine, chambre , cour …) , j’ai utilisé les caractéristiques des maison anciennes d’Alep comme le Liwan, le moucharabieh.

Comment puis-je créer une ville basée sur le camp aléatoire dans lequel vivent un demi-million de personnes ?

Réflexionssurlamiseenplaced'unhabitatrapideet confortableenréponseàlasitua�onprécairedesmillionsde réfugiésSyriens.

LaguerreenSyriequiduredepuisdesannéesaengendréune catastrophehumanitairejamaisconnuedepuisla2emeguerre mondiale.Unpaysréduitenruine,descentainesdemilliersde vic�mesetplusde10millionsderéfugiés.Cesréfugiéssonten grandepar�e enSyrieetdanslespaysfrontaliers:Irak, Jordanie,Turquie, .Ilsviventdansdescondi�onstrèsdifficiles voireinhumaines.

L'idéeduprojetdanslapremièrephaseestde réorganiserle campd'AtmadanslenorddelaSyrieàlafron�èresyro-turque etd'enfaireuneville réalistebaséesurlasitua�onactuelle.

Environundemi-milliondeSyriensdéplacésviventdansce camp.Grâceauxconven�onsinterna�onales,ce�ezone garan�t àlapopula�ondevivreenpaix,loindescombats.

Destravauxserontréalisésaucoursdeladeuxième phasepourconstruiredesunitésdestructures économiquesmaisaussirapidesàinstaller,qui assurerontunconfortdécentauxrésidentsetles protégerontdesintempéries(chaleur,froid,neigeet inonda�ons).

Leprojetprendralaformed'unvilleoffrantdes habita�ons,desécolesdesadministra�ons,descentres desoins,commerces,etc..répar�s selonun aménagementadéquat.

confortableenréponseàlasitua�onprécairedesmillionsde réfugiésSyriens. phasepourconstruiredesunitésdestructures économiquesmaisaussirapidesàinstaller,qui
PLAN DU CAMPACTUEL-LES VILLESDES PERSONNESDÉPLACÉES 1-12.000 CARTED’INONDATION EN HIVER 1-12.000 Carte d’égout actuelle 1-12.000 Carte d’égout actuelle 1-12.000
Carte des Mobilités 1-12.000 Carte site de projet 1-12.000 Carte d’activité zoom 1 1-3000 Carte site de projet 1-12.000 Carte d’activité zoom 1 1-3000 Carte de stratégie de camp provisoire 1-12.000 Carte du site du camp d’Abayden sur le camp d’Atma 1-12.000 Camp provisoire C PLAN DE MASSE -ILO 1-200 COUP DE MASSE -ILO 1-200 C C PLAN DE MASSE -ILO 1-200 COUP DE MASSE -ILO 1-200 Carte des Mobilités 1-12.000 Carte site de projet 1-12.000 Carte d’activité zoom 1 1-3000 habitatrapide et millions de engendréune guerre milliers de Cesréfugiés sont en frontaliers Irak, très difficiles réorganiserle syroturque lasituationactuelle vivent dans ce cette zone combats Des travaux seront réalisésau cours de la deuxième phasepour construire des unitésdestructures économiquesmais aussi rapides à installer, qui assureront un confort décent aux résidentsetles protégeront desintempéries (chaleur, froid, neige et inondations) Le projet prendra laforme d'un villeoffrant des habitations, des écoles des administrations, descentres de soins,commerces, etc répartis selon un aménagement adéquat basée sur le camp aléatoire dans lequel personnes ?

CONCEPT DE PROJET

CARACTÉRISTIQUES TRADITIONNEL

LES QUI ONT ÉTÉ UTILISÉES DANS LA PROPOSITION DE CONCEPTION.

CONSTRUCTION & MATÉRIEL

LES QUI ONT ÉTÉ UTILISÉES DANS LA PROPOSITION DE CONCEPTION.

DALLE EN BÉTON

DÉCOMBRES & CIMENT

STRUCTURE DU BÂTIMENT

BLOCS DE BÉTON LOCAUX

A 4.5 9 AA AB TYPE A SMALL B 4.5 BA BB BC TYPE B MEDIUM C CB CC TYPE C LARGE DIAGRAMME DE COMBINAISON LES VIEILLES MAISONS D'ALEP LIWAN RIWAQ BEIT DÔME TENTE TRADITIONNELLE
ARABESQUE RIWAQ LIWAN VIEILLES FENÊTRES
PORTES
MOUCHARABIEH /
/
ISOLATION BRIQUES CIMENT ET SABLE BLOCS DE BÉTON LOCAUX BALLE DE PAILLE DÉBRIS DE GUERRE PIERRE LOCALE RÉFÉRENCE ELEMENTAL MONTERREY -MEXICO SANDBAG HOUSE. MMA, SOUTH AFRICA ASSEMBLAGE

TYPE AA

TYPE AB

900 20 42020 43020 42020 350 420 365 160 314 259 A A 1 2 3 4 5 5 6 7 RDC 1:100 TYPE
PERSONNES TUDIO 120 M AU SOL DONT COUR 0 ÉCHELLE 1:100 12467 PROGRAMME Rez-de-chaussée 1. Entrée 2. Cours 3. Cuisine 4. Salle de bain 5. Chambre principal 6. Salle de séjour 7. Chambre Terrasse sur le toit 8. Réservoir d'eau 9. Panneaux solaires 10. Terrasse 11. Espace de plantation En utilisant 6 grille modulaire, la plus grande unité d'habitation unifamiliale, une grande famille de 2-3 générations peut construire une maison à un étage avec une cour selon les principes de l'architecture vernaculaire de Alep. COUPE AA 1:100 A A 1 310 860 264 174 ÉTAGE 1:100 9 10 11 8 1011 A A 1 2 3 4 5 5 6 7 RDC 1:100 TYPE
12 PERSONNES TUDIO 120 AU SOL DONT COUR ÉCHELLE 1:100 12467 PROGRAMME Rez-de-chaussée 1. Entrée 2. Cours 3. Cuisine 4. Salle de bain 5. Chambre principal 6. Salle de séjour 7. Chambre 1 ETAGE 7. Chambre 8. Terrasse Terrasse sur le toit 9. Réservoir d'eau 10. Panneaux solaires 11. Espace de plantation La maison de type peut être agrandie davantage lorsqu'elle est combinée avec une disposition d'étage de type b. COUPE AA 1:100 A A 1 ÉTAGE 1:100 8 5 5 7 TYPE
PERSONNES 81 0 ÉCHELLE 1:100 12467 PROGRAMME Rez-de-chaussée 1. Entrée 2. Cours 3. Cuisine 4. Salle de bain 5. Chambre principal 6. Salle de séjour Terrasse sur le toit 7. Réservoir d'eau 8. Panneaux solaires 9. Terrasse 10. Espace de plantation 11 900 20 420 20 419 20 900 420 276 144 239 256 420 420 420 A 1 2 3 4 5 6 RDC 1:100 En utilisant GRILLE MODULAIRE, une petite famille de 2 personnes peut construire une maison à un étage avec une cour et une terrasse sur le toit qui sera un espace de couchage et de vie supplémentaire. COUPE AA 1:100 A 900 450 450 264 174 10 7 8 9 1 ÉTAGE 1:100 TYPE
PERSONNES TUDIO 80 AU SOL DONT COUR ÉCHELLE 1:100 12467 PROGRAMME Rez-de-chaussée 1. Entrée 2. Cours 3. Cuisine 4. Salle de bain 5. Chambre principal 6. Salle de séjour 1 ETAGE 7. Chambre principal 8. Chambre 9. Terrasse Terrasse sur le toit 10. Réservoir d'eau 11. Panneaux solaires 12. Espace de plantation 900 20 420 20 419 20 900 420 276 144 239 256 420 420 420 A 1 2 3 4 5 6 RDC 1:100 En utilisant 4 grille modulable peut se prolonger verticalement avec un plancher pour accueillir 5 personnes de ou 3 générations. COUPE AA 1:100 A A 7 8 9 1 ÉTAGE 1:100 TYPE BB 7 PERSONNES TUDIO 80 AU SOL DONT COUR 0 ÉCHELLE 1:100 12467 PROGRAMME Rez-de-chaussée 1. Entrée 2. Cours 3. Cuisine 4. Salle de bain 5. Chambre principal 6. Salle de séjour 1 ETAGE 7. Chambre principal 8. Chambre Terrasse sur le toit 9. Terrasse 10. Réservoir d'eau 11. Panneaux solaires 12. Espace de plantation En utilisant 4 grille modulable peut se prolonger verticalement avec un plancher pour accueillir 7 personnes de ou 3 générations. COUPE AA 1:100 11 900 20 420 20 419 20 900 420 276 144 239 256 420 420 420 A 1 2 3 4 5 6 RDC 1:100 11 A A 1 ÉTAGE 1:100 7 7 8 TYPE
COUPE AA 1:100 PERSONNES S 60 SOL DONT COUR En utilisant 3 GRILLE MODULAIRE, une petite famille de 2 personnes peut construire une maison à un étage avec une cour et une terrasse sur le toit qui sera un espace de couchage et de vie supplémentaire. ÉCHELLE 1:100 12467 PROGRAMME Rez-de-chaussée 1. Entrée 2. Cours 3. Cuisine 4. Salle de bain 5. Chambre principal Terrasse sur le toit 6. Réservoir d'eau 7. Panneaux solaires 8. Terrasse 9. Espace de plantation A A 900 20 417 20 442 2431016710 430 ÉTAGE 1:100 6 7 8 9 10 2531031110276 144 239 900 422 410 A A RDC 1:100 2 1 3 4 5
C
CB
B
BA
A
PERSONNES TUDIO 60 AU SOL DONT COUR Lorsque la famille s'agrandit, ils peuvent construire un étage supplémentaire en utilisant la même grille de modules. Pour loger 3-4 personnes. ÉCHELLE 1:100 12467 PROGRAMME Rez-de-chaussée 1. Entrée 2. Cours 3. Cuisine 4. Salle de bain 5. Salle de séjour 1 ETAGE 6. Chambre principal 7. Chambre Terrasse sur le toit 8. Réservoir d'eau 9. Panneaux solaires 10. Terrasse 11. Espace de plantation 10 A A ÉTAGE 1:100 6 7 10 A A RDC 1:100 2 1 3 4 5 COUPE AA 1:100
PERSONNES 60 SOL DONT COUR 0 ÉCHELLE 1:100 12467 PROGRAMME Rez-de-chaussée 1. Entrée 2. Cours 3. Cuisine 4. Salle de bain 5. Salle de séjour ETAGE 6. Chambre principal 7. Chambre Terrasse sur le toit 8. Réservoir d'eau 9. Panneaux solaires 10. Terrasse 11. Espace de plantation A A 6 6 7 1 ÉTAGE 1:100 En utilisant 3 grille modulable peut encore être agrandie l'étage supérieur avec une pièce autour de la cour pour accueillir 5 personnes. COUPE AA 1:100 A 2 1 3 4 5 RDC 1:100

M2LOGEMENTS COLLECTIF DE DIFFÉRENTES SURFACES, STRASBOURG

Il est proposé de construire un ensemble résidentiel dans le quartier de Scheltigheim, situé au nord de Strasbourg, comprenant des appartements de différentes tailles, y compris un appartement de T5, T4, T3 et T2. Des travaux ont été effectués pour optimiser l'utilisation de l'espace, en créant un appartement lumineux avec des vues sur l'est et l'ouest. La patio a été placée de manière à connecter les chambres et le salon. L'agencement des différents espaces a permis de créer une ambiance participative avec les autres habitants grâce à des espaces verts sur le toit.

Il convient de noter que le quartier de Scheltigheim est un quartier résidentiel paisible et verdoyant, avec un accès facile aux transports en commun et aux commerces. Ce projet de construction contribuera à renforcer la communauté locale en offrant des logements modernes et fonctionnels, ainsi que des espaces de vie agréables et ouverts sur l'extérieur. En somme, ce projet est une opportunité pour améliorer la qualité de vie des résidents et pour contribuer au développement durable du quartier de Scheltigheim.

PLAN R+1. 1-200 PLAN RDC. 1-200 PLAN R+3. 1-200 PLAN R+2. 1-200 T5 DUPLEX PLAN RDC 1-100 T5 DUPLEX PLAN R+1 1-100 COUPE BB 1-100 COUPE AA 1-100 T2 PLAN RDC 1-100 T3 PLAN RDC 1-100 T4 DUPLEX PLAN RDC 1-100 T4 DUPLEX PLAN R+1 1-100

M2L'IMPACT DE LA GUERRE SYRIENNE SUR LES BATIMENTS HISTORIQUES DE LA VIEILLE VILLE D'ALEP – SYRIE

Résumé

L'art est souvent la victime oubliée des guerres, s'inquiéter des bâtiments historiques, héritage, sculptures et antiquités semble futile, voir inutile, alors que la souffrance humaine augmente. Cependant, il y a des bonnes raisons pour envisager la préservation culturelle pendant et après les conflits. Définir le patrimoine n'est pas une question simple, car il est multiforme et en constante évolution. Il s'agit d'un concept subjectif qui peut être vu de plusieurs points de vue. Pourtant, sa définition a été traditionnellement associée à « l’héritage des ancêtres », aux objets matériels et immatériels et aux idées ayant une signification sociale. De nombreux sites irremplaçables du patrimoine culturel syrien ont été endommagés, détruits ou pillés à cause du conflit armé. Certains monuments qui existent depuis des milliers d'années ont été transformés en ruines en quelques jours. Les six sites du patrimoine mondial de l'UNESCO ont été inscrits sur la liste du patrimoine en péril.

Le précieux patrimoine culturel de la Syrie n'a pas de valeur uniquement pour les Syriens mais pour toute l'humanité. Son héritage remonte à des milliers d'années. C'est la maison de nombreuses civilisations anciennes et le lieu de naissance du premier alphabet et de la note musicale au monde. Son emplacement stratégique était un lieu où de nombreuses armées se combattaient pour s'installer ou contrôler depuis l’histoire ancienne : les Hittites, Hurrites, Hébreux, Araméens, Assyriens, Arabes, Egyptiens, Babyloniens, Cananéens, Perses, Grecs, Romains, Croisés, Turcs, Mongols et les Français ont tous cherché à contrôler la région.

La ville d'Alep n'a plus ce beau visage qui reflète la force économique de la ville, étant donné qu'elle a été pendant des décennies la capitale économique de la Syrie. La ville a également perdu nombre de ses antiquités, qui servaient de lanternes éclairant l'histoire d'une région imprégnée de civilisation. La guerre conspirait contre elle et en détruisait une partie importante. Cette guerre depuis dix ans a fait des centaines de milliers de morts, a également entraîné la suppression de nombreux monuments historiques du pays, dont ceux d'Alep, la deuxième plus grande ville syrienne après Damas. Retour avec des images sur les monuments archéologiques et historiques les plus importants de la ville détruite. En examinant les bâtiments archéologiques de la vieille ville d'Alep, le cas de (Mosquée AL Mahmandir,

et Khan QurtBek,), nous pouvons passer en revue les changements les plus importants qui leur sont survenus, avant, durant et après conflit, dont actuellement les travaux de restauration. À la lumière des événements actuels en Syrie en général et dans la ville d'Alep en particulier, cette mosquée AL Mahmandir et Khan QurtBek ont été détruits partiellement.

Des mots clés :

Alep, la veille ville, AL Mahmandir, Al Kadi, Bab Al Naser, Khan QurtBek, Khan, Guerre, Paix

Cette proposition est basée sur un scénario de ce que pourrait être la vie en 2050, où les situations d'urgence climatique, sociale et sanitaire pourraient s'aggraver.

A35, qui est devenu vieux et négligé par le reste de la ville, deviendra un lieu de vie libre où la végétation récupérera ses droits et où une nouvelle vie sera possible.

Je suggère que ce site soit situé dans le centresud près de Strasbourg sur l'autoroute A35.

L'idée du projet est d'étendre la construction horizontalement et de manière dynamique pour qu'il soit un bâtiment environnemental recouvert de végétation et de panneaux solaires.

Le projet est composé de 4 étages / commerciaux et résidentiels / connectés par des rampes reliant tous les étages jusqu'à l'autoroute.

ON DIRAIT LE SUD -
PRODUCED BY AN AUTODESK STUDENT VERSION PRODUCED BY AN AUTODESK STUDENT VERSION PRODUCED BY AN AUTODESK STUDENT VERSION PRODUCED BY AN AUTODESK STUDENT VERSION PRODUCED BY AN AUTODESK STUDENT VERSION PRODUCED BY AN AUTODESK STUDENT VERSION PRODUCED BY AN AUTODESK STUDENT VERSION PRODUCED BY AN AUTODESK STUDENT VERSION PRODUCED BY AN AUTODESK STUDENT VERSION PRODUCED BY AN AUTODESK STUDENT VERSION PRODUCED BY AN AUTODESK STUDENT VERSION PRODUCED BY AN AUTODESK STUDENT VERSION PRODUCED BY AN AUTODESK STUDENT VERSION PRODUCED BY AN AUTODESK STUDENT VERSION PRODUCED AUTODESK STUDENT VERSION PRODUCED BY AN AUTODESK STUDENT VERSION PRODUCED BY AN AUTODESK STUDENT VERSION PRODUCED BY AN AUTODESK STUDENT VERSION
M1
RÉSILIENCE AUTOROUTE A35, STRASBOURG

M1LA GARE DU NORD, THÉÂTRE DE LA TRANSITION - MULHOUSE EN TRANSITION

Le projet de la Gare du Nord de Mulhouse vise à renforcer le réseau de solidarité entre les différentes villes de la Radiale jusqu'à Ungersheim. La Gare du Nord, actuellement considérée comme peu attrayante, peut devenir un moteur de transition et une interface entre les villes. Le couloir de la Doller, situé au nord de Mulhouse, est une zone directement connectée à la radiale jusqu'à Ungersheim. Cette connectivité offre des capacités de mobilité importantes et une mutation du couloir vers une mobilité écologique pourrait faciliter les échanges de biens et les déplacements de personnes. Le projet pourrait également valoriser les anciens réseaux ferroviaires pour étendre les connexions entre les villes.

Mulhouse est le coeur de l'agglomération M2a et propose de nombreuses infrastructures sportives, culturelles et éducatives. C'est une ville dynamique avec 42% de personnes âgées de moins de 29 ans et un carrefour d'un réseau international grâce à l'aéroport Mulhouse/Bâle, l'autoroute A36 et la voie ferroviaire.

1 - Station de Tram 2 - Restaurants et cafés 3 - Parking TUK-TUK 4 - Aires de jeux 5 - Espaces de repos 6 - Bassin de rétention d’eau 7 - Bâti existant 8 - Parc

L3CONSTRUIRE UNE ÉCOLE D’ARCHITECTURE, STRASBOURG

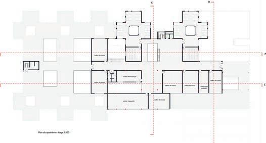
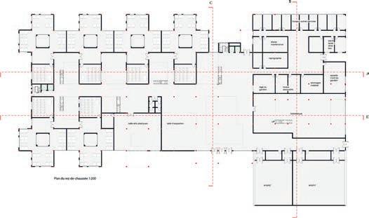
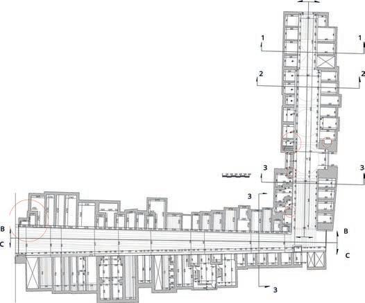
L'école d'architecture est située sur un site avec une vue sur le canal du nord et un jardin au sud-ouest. Elle comprend un RDC, 3 étages et 24 ateliers bien organisés. L'accès principal est au sud, et le RDC comprend des services administratifs, une bibliothèque, deux amphithéâtres, 6 ateliers et un grand hall d'entrée en double hauteur. Il y a une salle d'exposition à gauche du hall et des escaliers pour accéder aux autres étages. Les ateliers sont disposés en forme de croix avec un noyau central et une salle de correction. La bibliothèque est sur deux niveaux avec une mezzanine et des espaces vides pour l'éclairage. Au 1er étage, il y a une cafétéria, une salle informatique, une salle de cours et les ateliers. Au 2ème étage, il y a 8 ateliers, des bureaux d'enseignants, des salles de cours et une salle informatique. Au 3ème étage, il y a 2 ateliers, des salles de cours, une salle informatique et des espaces vides pour l'éclairage. Les façades comprennent de grandes fenêtres pour bien éclairer les espaces intérieurs. Les photos montrent l'ambiance créée par les façades vitrées et la vue sur le canal qui donne un sentiment de calme.

L3TRANSFORMER ET PRÉSERVER

Le projet vise à créer un lien entre deux quartiers résidentiels de Strasbourg (Quartier des XV et Robertsau), le Wacken, les Institutions Européennes et le Port Autonome. Le secteur choisi est stratégique pour une évolution sur le long terme. Le principal objectif est de créer une transition douce entre la ville et le quartier verdoyant de la Robertsau. Le corridor est un élément central du projet qui crée des percées visuelles, établit un lien avec le canal et constitue des entrées pour les piétons et les cyclistes. Une place publique marque l'une des entrées principales dans le quartier avec des commerces de proximité. Une autre place sera un point de rencontre pour les habitants et les propriétaires de jardins. Les îlots bâtis sont disposés de manière irrégulière autour du corridor pour former un hameau semblable à la ville voisine, tout en respectant le paysage existant et en préservant les espaces verts.

en voir plus, scannez le code-barres
Pour

EN SYRIE

• PROJET DE CONSTRUCTION MODULAIRE

PFE | Architecture pour les réfugiés.

• RESTRUCTURATION DU QUARTIER "THEL AL ZARAZEER" UNE BANLIEUE D'ALEP

5éme année - S1 planification urbaine

• RESTAURATION DES D'ALEP RESTAURATION ET RÉHABILITATION

5éme année - S1 Réhabilitation des bâtiments et sites historiques

• AEROPORT INTERNATIONAL D'ALEP

5éme année - S1 Conception architecturale

• VILLA DÉCORATION INTÉRIEURE D'EXTÉRIEUR

5éme année - S1 Conception architecturale

• PROJET D'AUVENT DE PISCINE D'HIVER

5éme année - S1 Dessins de conception exécutifs des bâtiments

• PLANIFICATION D'UN QUARTIER RÉSIDENTIEL, 40 HECTARES

5éme année - S1 planification urbaine

• HOPITAL POUR ENFANTS, HOTEL ****, BUREAUX, Logements collectif, Projet Urbanisme, CENTRE COMMERCIAL, COLLège 600 élèves, Clinique Médicale, Ecole élèmentaire, Villa Moderne

4,3,2,1éme année - Conception architecturale, planification urbaine

PFE LA SITUATION HUMANITAIRE DES RÉFUGIÉS, SYRIE LA

Le projet de construction modulaire vise à répondre à la situation précaire de millions de réfugiés syriens en mettant en place des modules préfabriqués économiques et rapides à installer qui assurent un confort décent à la population. En effet, la guerre en Syrie a engendré une catastrophe humanitaire sans précédent depuis la Seconde Guerre mondiale, réduisant le pays en ruine et créant des conditions très difficiles voire inhumaines pour les réfugiés.

Les objectifs de ce projet sont multiples, notamment d'évacuer le maximum de gens possible des zones de combats, d'alléger les centres d'accueil dans les villes en proie à des affrontements, de permettre le retour des enfants à l'école, de réduire le chômage en embauchant des ouvriers pour la mise en place du projet et de créer des sessions de formations pour les adultes afin qu'ils reprennent confiance et se préparent à une reprise d'activité.

Les sites de ces projets doivent être sûrs et peuvent être installés en lieu et place des actuels sites de tentes.

SI

TUATION HUMANITAIRE DES RÉFUGIÉS

Depuis le début de la révolution syrienne en mars 2011, les Syriens ont subi les formes les plus horribles de torture et d'intimidation, telles que les assassinats, les viols et les emprisonnements. Cette situation a forcé une grande partie du peuple syrien à fuir leur foyer et à se diriger vers les pays voisins tels que la Turquie et le Liban pour échapper à la guerre.

CARTE DE SYRIE

La carte de Syrie est présentée pour mettre en évidence un site spécifique dans le nord du pays, près de la frontière turque, où plus de 2 millions de personnes vivent dans des conditions précaires.

La proximité de la frontière faciliterait la mise en place d'une usine de montage de modules et permettrait la création de nouveaux sites d'accueil dans tout le pays.

Le projet consiste en la création d'un village avec des logements, des écoles, des administrations, des centres de soins et des commerces.

Le module doit répondre à plusieurs critères, notamment faciliter la fabrication, le transport et l'installation, être flexible et pouvoir être utilisé pour toutes sortes d'activités. Jusqu'à quatre modules peuvent être empilés les uns sur les autres pour optimiser l'espace au sol.

La plus grande partie des réfugiés syriens ont fui vers ces pays après l'intensification des attaques en Syrie. Environ un million de personnes vivent dans des tentes dans des conditions tragiques en raison du manque de services de base et des épidémies, en particulier pendant la saison hivernale avec des pluies fréquentes et de la neige. Les tentes sont souvent détruites et moins solides que les maisons normales, exposant les gens à de grands risques.

En tant qu'ingénieurs et architectes, notre rôle dans ces circonstances est de trouver des solutions appropriées pour atténuer les souffrances du peuple et établir une société sûre qui garantisse leurs droits ainsi que ceux de leurs enfants. Nous présentons ci-dessous plusieurs modèles proposés dans des étapes successives pour des logements sûrs afin que les réfugiés puissent abandonner les tentes et leurs inconvénients.

PH ASE I : LOGEMENTS D'URGENCE, MODÈLE RÉSIDENTIEL A

Un espace collectif de logements d'urgence de 81 m² a été aménagé et comprend 6 appartements séparés avec des cloisons internes. Chaque appartement fait 15 m² et est composé d'une chambre à coucher, d'un salon, d'une cuisine et d'une salle de bain.

L'unité contient 11 logements d'urgence, 2 restaurants self-service, une école, deux salles de formation et une aire de jeux pour enfants. Environ 288 personnes peuvent être hébergées dans l'unité, ce qui équivaut à 66 familles. Les soins de santé sont fournis par un centre médical.

Le projet utilise les énergies renouvelables (solaire et éolien) pour fournir de l'électricité et de l'éclairage. L'eau potable est fournie par des puits d'eau qui sont forés et traités.

Ce projet fournit un logement sûr et primaire à l'abri des conflits armés, avec la possibilité pour les enfants de continuer leur éducation. Les résidents reçoivent également une formation pour construire leur propre maison à partir de modèles de logements préfabriqués et ont accès à des possibilités d'emploi pour garantir une vie décente.

La première zone habitée du projet consiste en un bâtiment rapide de 230m2 composé de 5 étages et pouvant accueillir 18 unités de logement, soit 180 appartements et jusqu'à 720 personnes. Chaque appartement a une superficie de 100m2 et se compose de deux chambres à coucher, un salon, une cuisine et des services publics.

Les panneaux de bois avec des couches isolantes sont utilisés pour les interfaces. Le processus de construction est rapide, résistant au vent et à la pluie et dure environ un mois si la main-d'œuvre, les outils et les composants de base sont disponibles. Des panneaux solaires sont installés pour produire de l'électricité et des sources d'eau potable sont sécurisées. Il y a également des parcs, un centre de santé et des écoles pour les enfants.

MO DÈLE RÉSIDENTIEL
B

DÈLE RÉSIDENTIEL C (PRÉ-FABRIQUÉ BETON)

Le modèle résidentiel C est un bâtiment préfabriqué en béton, qui est composé d'appartements de 60 à 120 m2, avec un hall d'entrée, des salons, des chambres, une cuisine, une salle de bain et des toilettes. Il y a également des couloirs menant aux étages supérieurs. Ce modèle peut atteindre 6 à 8 étages et contient un total de 94 appartements. Chaque appartement peut accueillir jusqu'à 6 personnes, ce qui permet d'héberger une population totale de 564 personnes.

MO

RESTRUCTURATION DU QUARTIER "THEL AL ZARAZEER" UNE BANLIEUE D'ALEP PLANIFICATION URBAINE

Tal al-Zarzir est un quartier situé dans le sud-ouest d'Alep, à 4,5 km de la citadelle d'Alep. La région est caractérisée par des bâtiments illégaux de plusieurs étages, construits par des entrepreneurs ou par l'ajout progressif d'étages supplémentaires par des particuliers, ce qui a rendu les fondations faibles et instables, risquant de causer l'effondrement des bâtiments. Les rues sont étroites et les conditions de vie sont très pauvres, avec un manque d'installations récréatives, de services de santé et d'éducation.

La zone couvre 98,5 hectares et compte une population de 57 414 personnes. Le quartier est administré par le Conseil municipal d'Alep et a des connexions routières, des ressources en eau, l'électricité et l'assainissement. Les bâtiments du quartier sont classés comme étant en bon état, moyen, ou très mauvais.

Le coût total estimé des investissements nécessaires pour mettre en œuvre le programme de développement immobilier est de 9,077 milliards de SP, aux prix de 2011.

5
éme

RESTAURATION DES D'ALEP RESTAURATION ET RÉHABILITATION

La ville d'Alep, située dans l'Est, est connue pour sa beauté et son authenticité orientale, ainsi que pour son riche patrimoine historique et urbain, y compris les marchés traditionnels uniques et les nombreux bâtiments historiques et monuments archéologiques. En 2017, 100 000 personnes, soit 5 % de la population totale de la ville de deux millions d'habitants, y vivent encore.

L'objectif de la recherche est d'étudier les anciens marchés de la ville, en particulier les Khanaat et Qaisiriyat, en termes de planification et d'urbanisation, ainsi que les changements fonctionnels survenus en raison des événements actuels dans la ville. L'objectif est également de mettre en évidence les transformations des Mahzahler en termes de caractéristiques, de fonctions et de problèmes rencontrés, tout en essayant de moderniser et de réhabiliter les bâtiments déformés afin de maintenir leur fonction commerciale et leur importance en tant que point de repère touristique commercial et historique.

5
éme

L'hôpital national d'Alep a été fondé en 1819 et était initialement appelé Al-Hamidi Aliens Hospital. Il a été construit en 1897 avec des subventions et disposait de 32 chambres, salles d'opération et médecins, ainsi que de deux jardins à l'avant et à l'arrière pour les pauvres et les étrangers de la ville.

L'hôpital a été réaménagé en Hôtel Carlton dans la dernière décennie et a été complètement détruit par un bombardement en 2014. Ce bâtiment ottoman reflétait un caractère différent de l'architecture de la vieille ville et était caractérisé par l'ouverture vers un vide intérieur.

Le marché de Zerb à Alep est un marché historique situé sur le côté est de la ville. Il a été créé au IVe siècle avant notre ère et a pris sa forme actuelle pendant la domination ottomane.

Il comprend 37 marchés avec des plafonds en roseaux et est considéré comme l'un des plus beaux marchés arabes islamiques à caractère urbain. Le marché de Zerb est situé dans la partie nord de l'Hôtel Carlton et contient 71 magasins vendant des textiles et des articles de bédouins.

La structure du marché est composée de murs en jarretelle armée et d'un lit voûté s'étendant jusqu'à la fin de toutes les premières places. Malheureusement, le bâtiment a été brûlé et presque détruit par la guerre en 2012, perdant ainsi sa nature historique et fonctionnelle. Il est donc du devoir des architectes de restaurer la vie de cet ancien marché.

Le Khan al-Shunah est situé au sud du château d'Alep en face de son entrée. Il est composé de deux marchés orthogonaux qui comprennent des boutiques des deux côtés. Il a été utilisé pour la préservation des métiers artisanaux et comprend 49 différents métiers, tels que la production de fourrure, de bijoux, de cuivre, de calligraphie, de tissage à la main et bien d'autres. Le centre du Khan est une cour intérieure avec une superficie de plus de 750 m2 et une piscine de chaque côté. Le Khan est différent des autres car il se compose d'un étage et deux marchés perpendiculaires, tandis que d'autres domaines sont composés de deux étages pour le commerce et les animaux et comme hôtel pour les locataires. Le Khan a été utilisé comme un site archéologique culturel, mais a été endommagé pendant la guerre et nécessite maintenant une restauration.

KH AN AL-ABAJI

Le Khan al-Abaji est un bâtiment situé à l'ouest du Khan al-Shunah et à côté du Khan al-Jaroudi. Il a une cour intérieure d'environ 600 mètres carrés, avec deux entrées principales, l'une venant de l'ouest et l'autre du sud-ouest.

L'HÔPITAL NATIONAL D'ALEP ZE RB MARCHÉ KH AN AL-SHUNAH

Le Khan Khair Bek se compose de deux parties : une cour rectangulaire entourée de galeries et de petites pièces pour stocker et exposer les marchandises des marchands. Au dernier étage, il y avait des pièces similaires aux pièces basses qui étaient utilisées pour héberger les commerçants, et ces chambres étaient reliées par une galerie avec des arcs brisés.

KH AN AL-JEROUDI

Khan al-Jeroudi est un khan situé à l'ouest de Khan alNasser et à côté de Khan al-Shunah. Il se compose d'une cour intérieure d'environ 600 mètres carrés et dispose d'une entrée principale située au nord.

KH AN KHAIR BEK

LA SITUATION ACTUELLE

Il est malheureux de constater que de nombreux bâtiments historiques et marchés commerciaux ont été détruits pendant la guerre d'Alep. En tant qu'étudiants en architecture, vous avez travaillé pour retrouver l'apparence des bâtiments à travers des archives, des photos et des articles historiques. Toutes les caractéristiques architecturales ont été dessinées avant la guerre, et l'ampleur de la destruction a été analysée et comparée aux photographies de 2015. Cependant, en raison des affrontements à proximité, il n'a pas été possible de documenter la situation actuelle avec des images. Malgré cela, vous avez travaillé avec des ingénieurs pour fournir des études préliminaires et des solutions pour la reconstruction des zones historiques détruites.

À travers notre travail et notre accès aux archives de photos et de plans architecturaux, des plans plus précis ont été créés en créant plusieurs élévations et coupes pour documenter leur état architectural. Malheureusement, les bâtiments sont maintenant gravement endommagés et nous pouvons utiliser ces plans dans le processus de restauration des bâtiments historiques dans la vieille ville d'Alep.

TR AVAIL DE DOCUMENTATION
L'HÔPITAL NATIONAL D'ALEP ZE RB MARCHÉ
KH AN AL-SHUNAH
MA

Considérations générales pour les aéroports :

Règles et concepts pour guider la sélection de l'emplacement, les dimensions et l'expansion de l'aéroport.

Facteurs affectant l'emplacement de l'aéroport : distance de l'expansion urbaine, conditions météorologiques, facilité d'accès, capacité d'expansion, autres aéroports à proximité, emplacement et établissement économique.

Éléments affectant la taille de l'aéroport : taille et caractéristiques des aéronefs, augmentation du volume des vols, facteurs climatiques et hauteur du sol.

Concept : bloc gonflable (Pompée) avec grande travée et dôme principal de 4 mètres de hauteur contenant des bureaux, des points informations et un hall avec distributeur d'eau, ainsi que deux grands halls de départ, d'arrivée et de transit avec un marché commercial gratuit sur deux étages et accès facile pour les passagers en transit.

5
PFE | ARCHITECTURE
éme
PROJET DE CONSTRUCTION MODULAIRE
POUR LES RÉFUGIÉS

VILLA DÉCORATION INTÉRIEURE D'EXTÉRIEUR CONCEPTION ARCHITECTURALE

Il s'agit d'une villa de luxe située en bord de mer offrant une vue imprenable sur la mer. D'une superficie de 360 mètres carrés, elle se compose d'un duplex comprenant un rez-de-chaussée et un premier étage. Le rez-de-chaussée est composé d'une grande salle de réception, d'une cuisine américaine, d'une salle à manger lumineuse, d'un bureau, d'une petite pièce et de toilettes. De plus, il y a plusieurs entrées différentes.

Le premier étage abrite une suite de trois chambres et une terrasse. Pour ajouter à l'esthétique, la villa est entourée d'une clôture extérieure qui est utilisée pour planter des plantes et créer une atmosphère agréable.

La façade avant donne sur la mer et il y a un pavillon privé pour bateau, ce qui permet aux résidents de partir naviguer en mer. Des travaux sont en cours pour la décoration intérieure, la disposition des meubles, l'éclairage, etc.

5
éme

PROJET D'AUVENT DE PISCINE D'HIVER - DÉTAILS ET DIMENSIONS

Il s'agit d'une villa de luxe située en bord de mer offrant une vue imprenable sur la mer. D'une superficie de 360 mètres carrés, elle se compose d'un duplex comprenant un rez-de-chaussée et un premier étage. Le rez-de-chaussée est composé d'une grande salle de réception, d'une cuisine américaine, d'une salle à manger lumineuse, d'un bureau, d'une petite pièce et de toilettes. De plus, il y a plusieurs entrées différentes.

Le premier étage abrite une suite de trois chambres et une terrasse. Pour ajouter à l'esthétique, la villa est entourée d'une clôture extérieure qui est utilisée pour planter des plantes et créer une atmosphère agréable.

La façade avant donne sur la mer et il y a un pavillon privé pour bateau, ce qui permet aux résidents de partir naviguer en mer. Des travaux sont en cours pour la décoration intérieure, la disposition des meubles, l'éclairage, etc.

5
éme

5 PLANIFICATION D'UN QUARTIER RÉSIDENTIEL, 40 HECTARES

Le projet concerne la planification d'un quartier résidentiel de 40 hectares avec une densité de population de 250 habitants par hectare, ce qui correspond à une population totale de 10 000 habitants. Le quartier est divisé en quatre unités au sol, chacune avec une superficie et une population différentes.

L'Unité 1 a une superficie de 8,5 hectares et peut accueillir 400 familles, soit 2000 habitants. Parmi ces familles, il y a 100 familles dans des logements séparés et 300 familles dans des logements connectés.

Les Unités 2 et 3 ont chacune une superficie de 10 hectares et peuvent accueillir 600 familles, soit 1500 habitants. Parmi ces familles, il y a 150 familles dans des logements jumelés et 450 familles dans des logements connectés.

L'Unité 4 a une superficie de 11,5 hectares et peut accueillir 700 familles, soit 3500 habitants. Parmi ces familles, il y a 175 familles dans des logements jumelés et 525 familles dans des logements connectés.

Chaque unité dispose d'un hall d'entrée, de salons, de chambres, de cuisine, de salle de bains et de toilettes, ainsi que de logements séparés et connectés.

éme
PORTFOLIO 2023
AHMADOU Architecte DE LinkedIn 07 76 69 29 70
Ayman
ay.ahmdou@gmail.com ayman.ahmadou@etu.nancy.archi.fr

Turn static files into dynamic content formats.

Create a flipbook
Issuu converts static files into: digital portfolios, online yearbooks, online catalogs, digital photo albums and more. Sign up and create your flipbook.