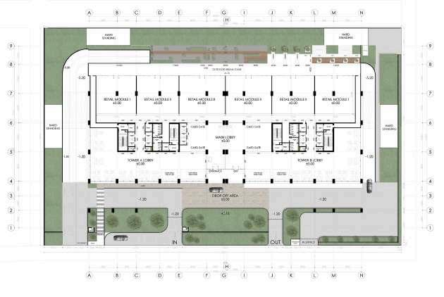
Driven by a passion for sustainable development as a changemaker who prioritizes data over
assumptions, I actively applied these sustainable design principles in my bachelor thesis titled,
“Office Retail Tower Design with a Green Architecture Approach in The Modern Independent
City of BSD.” My thesis, didn't just "apply" green principles; I challenged the status quo of
Jakarta’s energy-intensive office towers by using the EDGE Building App. This allowed me to
prove that my design could realistically achieve significant efficiencies, notably 80.45% in
water and 36.97% in energy