Architectural Explorations
50 - 63 Media & Modeling
![]()
Architectural Explorations
50 - 63 Media & Modeling
Project Year : 2025
Location : Atlanta, Georgia
Contribution : Individual
Software : Rhino, Illustrator, Photoshop, Enscape
This apartment building is designed for individuals and families relocating to Atlanta for the first time. Inspired by the intimacy of a neighborhood cul-desac, the architecture fosters a sense of excitement and belonging for residents beginning a new chapter of their lives. Referencing BIG’s 8 House, each unit includes private outdoor space. Street-facing apartments feature both a front porch and rear balcony, while inward-facing units have generous porches overlooking the shared courtyard. The ground floor activates the street with a restaurant and pocket café, while resident-only amenities: communal laundry, a workshop, and bicycle parking, support daily life and interaction. Communal spaces are punched through the front façade to frame views and encourage use of the ramp and social stair, weaving the pace of city life with the intimacy of a neighborhood.






South Downtown Blocks in 1960
South Downtown Blocks in 1926
Train Lines in 1926

Highway Lines in 2025

Marta Lines in 2025

Key Buildings in 1998

Occupied Blocks 1911
Site Analysis Map & Site Model at 1/16” = 1’-0”


Conceptual Section & Circulation

The building’s shared circulation paths run from the ground to the roof, connecting each floor through a series of ramps with a 4% grade. They function as communal front gardens, encouraging spontaneous interaction among neighbors.


























Each unit’s kitchen window faces their porch, creating opportunities for casual connection.



Project Year : 2025
Location : Venice, Italy
Contribution : Individual
Software : Rhino, Illustrator, Photoshop, Enscape, MidJourney


The short summer semester began with a week-long immersion in Venice, including visits to both the project site and the Architecture Biennale. Grounded in the city’s layered history and sensory conditions, the design translates the sound and feel of Venice into architecture through angular walls, compressed passages, and arched colonnades.
Located beside the Basilica di Santa Maria della Salute, the site is shaped by ringing church bells and winds moving in from the Giudecca Canal. These environmental forces inform the project’s spatial organization and experiential sequence, positioning the site as a threshold between monument, waterfront, and everyday Venetian life.
The proposal is a bathhouse that reinterprets ritual bathing as a communal experience, comprising seven distinct pool types, an event space, a steam and sauna circuit, and gardens that mediate between interior and exterior.


Building on precedent research, a series of artificial intelligence studies were used to explore multiple design solutions and methods of fabrication. The brief began with an analysis of precedents that each engaged the relationship between land and water.
Fragments from classmates’ traced plans and sections were then assembled into a collage, constrained by the same land–water relationship. The resulting composition evokes the Venice skyline, incorporating multiple building forms and a westwardsetting sun. This collage served as the base input for subsequent explorations using Midjourney AI.



“Image of an architectural cast resin model of a bath house, emphasis on interplay between light and darkness, mixture of ancient roman architecture and contemporary curvature styles, repeating rounded edges, visible entry, figures walking around, white resin and orange resin, white background”

These AI images were creatively synthesized to create a rhino 3D model which was then 3D printed (Pictured above).







M 1:200 Section Model




Project Year : 2024
Location : Boston, Massachusetts
Contribution : Individual
Software : Revit, SketchUp, Enscape,
Photoshop, Illustrator


Studio VII was a semester-long individual project focused on the design of a boutique hotel at a selected site. The project encompassed code analysis, space planning, 3D modeling, and the selection of FF&E.
A site along the Boston Harborwalk was chosen, drawing inspiration from one of the city’s most iconic landmarks, the Isabella Stewart Gardner Museum. Reflecting the museum’s eclectic architectural language, the hotel integrates multiple styles as a homage to different architectural periods. Central to the design is the influence of the Gardner Museum’s courtyard and skylight, as well as the rotating botanicals that animate the atrium throughout the year.















Project Year : 2023
Location : Atlanta, Georgia
Contribution : Team
Software : AutoCAD, Sketchup, Enscape, Forma, Photoshop

Haus Nouveau is a collaborative project that reimagines an existing building in downtown Atlanta, converting it from commercial use into a mixed-use apartment development. The team worked across three primary zones: the lobby level, typical residential floors, and the roof level. Design development was carried out collaboratively, including the overall concept, FF&E direction, and complete branding for both the apartment building and café.
All project components shown were completed by me, with the exception of the residence floor space planning and FF&E selection for the marketrate apartment units. The team utilized a redline-based workflow to critique and refine one another’s work, resulting in optimized floor plans that accommodate universal, affordable, and market-rate housing.












Project Year : 2023
Location : Varies
Contribution : Team
Software : AutoCAD, SketchUp,
Enscape, V-Ray, Photoshop


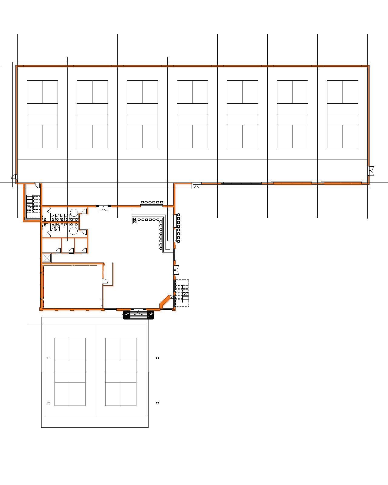
Pickle & Social is an emerging building typology that supports a wide range of ages and abilities. During my internship, I contributed to the design of multiple Pickle & Social venues across the United States. These spaces are hybrid entertainment venues that integrate outdoor and indoor courts with retail, dining, bars, and codecompliant support spaces tailored to each location.
As one of the primary designers for many of the upcoming Pickle & Social sites, I developed digital 3D models, site plans, schematic design sets, and renderings. This section highlights my contributions to four future locations.
In September 2023, my work for the Frisco, Texas location was published in multiple news outlets. In December 2023, the Pickle & Social in Buford, Georgia, which I assisted in designing, opened to the public.










Dates : 2024 & 2025
Contribution : Varies
Software : Rhino, Illustrator, Photoshop, Grasshopper, Shape Machine
Selection of works created in two “Media & Modeling” courses. Explored two- and threedimensional architectural representation through both manual and digital techniques. Developed skills in sketching, physical modelmaking, and digital modeling software to visualize spatial concepts and design ideas. Emphasis on translating conceptual thinking into tangible and digital forms, enhancing spatial understanding and communication of architectural intent.

Project Year : 2025
Contribution : Partner
This 3D composition was derived from a 2D parti inspired by geometric forms found in the elevation of the Star Apartments precedent. The process began with the geometries of the largest area, which were extruded to the greatest widths to establish visual hierarchy. As the area of each 2D geometry decreased, its spatial presence within the final mass diminished proportionally. Color further reinforced this hierarchy, with the primary geometry rendered in the darkest tone, while the secondary and supplemental forms appeared lighter to emphasize their diminished presence within the composition.







Section Views

Shape Machine was utilized to create the 2D Parti based on a section of the Star Apartments in Los Angeles. From 2D, Grasshopper was applied to extrude solid forms.
Isometric of Final Massing











Byrd Architecture & Interior Design