

Abril 2024
AGENDA DEL DÍA:

![]()


Abril 2024
AGENDA DEL DÍA:


1. Sistemas “embreizados”: Ejemplos de simetrías y asimetrías aparentes
2. Teoría: Disipadores de energía tipo Chevron – tipo tirantes inclinados
3. ENVOLTURAS (PIELES) – Sistemas estructurales secundarios de soporte
4. Bases teóricas para los anclajes
5. Casos de estudio desde las referencias bibliográficas
Sistemas Estructurales 3 / Magíster Ing. Luis Stolz







Estadio Nacional de Beijing: Caso 1: La estética
Juegos Olímpicos del 2008: Diseño de Herzog & De Meuron
“El mito de la ingeniería plana” Stolz.

TOMADO DE: https://arquitecturaviva.com/works/estadio-nacional-en-pekin-6

Hechos: -)110,000toneladasdeacero -)24columnasatirantadasde 1000tondeaceroc/u -)Seeliminóeltechoretráctil porcostos Hechos:








https://i.pinimg.com/originals/d9/24/52/d924527a5056c858ad91f2a0b87f552c.jpg
Milstein Hall. Universidad de Cornell

https://images.adsttc.com/media/images/55f8/083d/d4f7/b715/c900/0140/newsletter/4615446965_b7b90b7eb1.jpg?1442318393










Charleson, A. (2008). Seismic Design for Architects. Outwitting the Quake. New York: Elsevier.

Charleson, A. (2008). Seismic Design for Architects.
Outwitting the Quake. New York: Elsevier.

















Charleson, A. (2008). Seismic Design for Architects. Outwitting the Quake. New York: Elsevier.








https://www.taylordevices.com/custom/pdf/website/techlibrary/Taylor%20Devices_Damper%20Configuration%20Design%20Guide.pdf













• El cliente ha decidido descartar los muros de corte de concreto y prefiere utilizar dispositivos de disipación sísmica.
• El arquitecto consulta algunas referencias bibliográficas básicas para poder crear un modelo de predimensionamiento de disipadores tipo Chevron y breizas en el edificio de 10 niveles propuesto al cliente.
Algunas consideraciones iniciales:
-) Colocar estaciones de disipadores desde sótano hasta último nivel.
-) Colocar en las esquinas en el sentido corto y agregar una estación adicional si la distribución entre ejes es mayor de 5 tramos.
-) Colocar en las esquinas en el sentido largo. Si fuera necesario y por la extensión, colocar una estación adicional cada dos tramos.
-) Siga los modelos planteados en las diapositivas 22 y 23.
-) Dibuje el modelo de acuerdo a la planificación realizada y utilice el criterio de detallado de las diapositivas 15 a la 20.

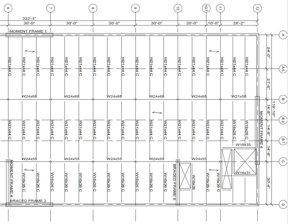
Estación A Estación B
Estación F Estación G = =
Elevación 8-1
Elevación A-G











Columnas y vigas: Si aumenta la altura se mantiene el peralte y disminuye el peso por pie lineal. Salvo, en la azotea.

Columnas y vigas: Si aumenta la altura se mantiene el peralte y disminuye el peso por pie lineal. Salvo y en la azotea, se mantiene.

Columnas y vigas: Si aumenta la altura se mantiene el peralte y disminuye el peso por pie lineal. Salvo y en la azotea, se reduce.
https://www.aisc.org/modernsteel/sections/chicago-tour/

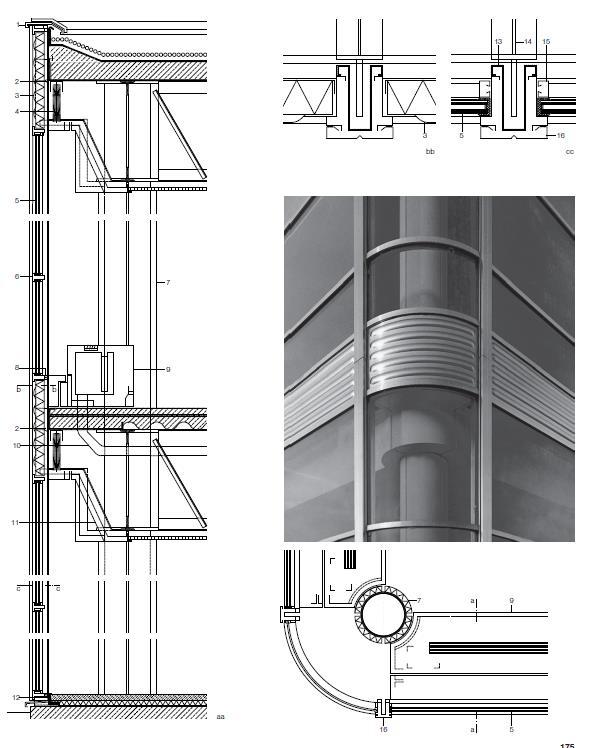
Elementos de Sostenimiento de piel
Viga perimetral WF



Elemento principal de estructura secundaria
Elementos de Sostenimiento de piel
¿Fijaciones a las vigas, a las columnas o, combinación de ambas?




Viga perimetral WF


Viga perimetral WF

















Pg. 113

















































