

![]()




Sistemas Estructurales 3 2024 / Sección Ing. Stolz











Definir3detallesespecíficos: Columnasvigas:esquina–central- lateral

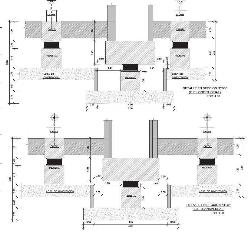
Definir3secciones: 2longitudinales 1transversal

Definirplanta estructural:Vigas (nomenclatura W14x115)ppals. Secs. p.ej.
1 2 3 4 5
Definirsistemade Cimentación: 1. Sifueran pedestales–zap 2. Sifueran aisladores sísmicos
Definirdetallede gradas Definircuadrodetamañosdevigas,columnas,metal decks,etc.consunomenclaturaW14x115)p.ej.
Cuidadoconla colocacióndetipo deperno:su diámetro,sulargoy sudesignación
Cuidadoaldibujar patinesyalmas:un correctolenguajede dibujo
Cuidadoconlos acotados(puedeser milimétrico)

IGUALESOBSERVACIONESPARALOSPROYECTOS
CONTECHOS YAPLICACIONESCOMPLICADAS
Cuidadoconel largo,ancho, espesordelaplatina (placa)
Cuidadoconel espaciamientode pernos
Cuidadoaldesignar lasvigasytiposde uniones
Cuidadoconla colocacióndetipo deperno:su diámetro,sulargoy sudesignación
Cuidadoaldibujar patinesyalmas:un correctolenguajede dibujo
Cuidadoconlos acotados(puedeser milimétrico)

Cuidadoconel largo,ancho, espesordelaplatina (placa)
Cuidadoconel espaciamientode pernos
Cuidadoaldesignar lasvigasytiposde uniones
¿CUIDADO!IGUALESOBSERVACIONESPARALOSPROYECTOSCONTECHOS YAPLICACIONES COMPLICADAS
















L= 9 pies: carga alta límite inferior f=3” y d=6”
L= 9 pies: carga baja límite inferior f=2” y d=4”
Vigas principales (28 – 30 plg peralte dependiendo de la Luz y tipos de cargas (livianas o pesadas)





WF = W = Patín ancho = peralte de la pieza






Grupo 4 / 2021




Grupo 4 / 2021

Falta información de pernos y espesores de platinas. Perfiles W.
Cotas en milímetros Centra sur. Planos de APSA

Centra sur. Planos de APSA

Cotas en milímetros


PLANTA ARQUITECTÓNICA ESTRUCTURAL
PLANTA DE DETALLE
DETALLE DE PERNO DE ANCLAJE Cotas en milímetros Centra sur. Planos de APSA

DETALLE DE ANCLAJE DE TUBO DE COLUMNA A ELEMENTO DE CONCRETO REFORZADO

SECCIÓN TRANSVERSAL CON EL POSICIONAMIENTO DE LAS
COLUMNAS EN RELACIÓN A LOS ELEMENTOS DE TECHO
Cotas en milímetros Centra sur. Planos de APSA


DETALLE DE ANCLAJE DE PLACAS DE ELEMENTOS DE ACERO UNIDOS ENTRE ELLOS.

DETALLE DE ANCLAJE DE PLACAS DE ELEMENTOS DE ACERO UNIDOS A ELEMENTOS VERTICALES DE CONCRETO REFORZADO.

DETALLE DE ANCLAJE DE COLUMNAS WF A LOSA DE CONCRETO REFORZADO EXISTENTE






¿Qué hacer con joist de estabilización lateral?
Centra sur. Planos de APSA
Peralte = 1100 / 10500 = 10.50%

Otros tipos de estabilizadores - disipadores en X












ABRIL 2024





Los sistemas de control pasivos están basados en dispositivos mecánicos muy simples que tienen una respuesta de tipo inercial a las acciones del sismo.
A diferencia del resto de sistemas, son más económicos y no dependen de fuentes de energía para funcionar.
La hipótesis básica del aislamiento sísmico es que podemos separar la estructura de los movimientos del suelo incorporando elementos flexibles entre la estructura y la cimentación.
Esto hace que se disminuya la energía de entrada y logra que la estructura responda mejor.
Los aisladores aumentan los desplazamientos totales pero reducen las deformaciones en los entrepisos.














0.5 Ton/m² x 64 m² (Atr) x 7 losas = 224 Ton = 224,000 kg = 492,800 lb = 493 Kips 25.5 plg
http://www.dis-inc.com/






Los disipadores de energía, por el contrario al aislamiento sísmico, no alteran la energía de entrada.

Su eficiencia se manifiesta absorbiendo parte de la energía sísmica evitando que ésta sea disipada por deformaciones inelásticas (fuera del rango elástico) en los diferentes elementos que conforman la estructura.
Reducen el nivel de daño de la estructura.
Reducen las fuerzas cortantes, derivas y las respectivas aceleraciones en cada nivel.
Su utilizados además, para control de vibraciones inducidas por el viento.




https://www.aisc.org/globalassets/aisc/publications/facts-forsteel-buildings-3-earthquakes-and-seismic-design.pdf
















https://www.aisc.org/technical-resources/







AVIA 2 2020
Supervisión de capas de recubrimiento en estructuras de acero. MEDIDOR DE ESPESOR MARCA CEM

