Jasha Balcom and Joya Anderson Seller Guide 2023

Page 1

THE INFORMED Seller's Guide Jasha Balcom + Joya Anderson c. 678.679.9906 o. 404.237.5000 jashabalcom@atlantafinehomes.com | joyaanderson@atlantafinehomes.com
Contents The Pre-Listing Process Preparing Your Home for Sale 4 Pre-Inspection Myths 6 Advantages of Pre-Inspections 7 Seller’s Property Disclosure Statement 8 The Marketing Process Introduction 18 Promoting Your Property 19 Advertising Options for Your Home 20 The Showing Process Showing Your Home 21 Showing Expectations 22 21 Factors That Affect the Sale Price of a Home 23 The Contract Process Writing the Contract: Glossary of Terms 24 Purchase and Sale Agreement 26 The Appraisal Process What is an Appraisal? 36 Quick Fixes 38 The Inspection Process Buyer’s Right to Inspect 40 Frequently Asked Questions 40 Do-It-Yourself Repairs 42 What Should I Know About Termites? 44 What Should I Know About Mold? 45 What Should I Know About Lead-Based Paint? 46 The Closing Process What is a Closing? 48 Who Does What? 48 Debits and Credits 48 What Should I Bring to Closing? 49 Problems at Closing 49 Pre-Closing and Closing Checklist 50 The Moving Process Moving Checklist 52 Packing List by Room 58

Jasha Balcom Joya+Anderson

In Atlanta, there are two talented individuals in the real estate industry, Joya Anderson and Jasha Balcom. Joya is known for her high-touch service and expertise in the Atlanta market, while Jasha excels in guiding his clients toward success in luxury real estate. Together, they invest in their clients’ goals and work tirelessly to achieve them.

Joya’s innate ability to connect with people and build communities makes her exceptional at what she does. She excels in markets like Roswell, Sandy Springs and Brookhaven, working with families and those looking to downsize. Her clients appreciate her dedication to excellence and trust her gentle personality when it comes to negotiating difficult conversations.

Jasha, on the other hand, brings multi-faceted expertise to the table. He specializes in new construction and relocation needs, utilizing his extensive network to deliver tangible results for his buyers and sellers. Having lived and worked in places like Rio de Janeiro and Playa del Carmen, he has a broad understanding of the worldwide real estate market and the art of digital marketing.

Both Joya and Jasha actively support causes they’re passionate about. Joya volunteers with HOPE for Domestic Violence and values staying healthy through exercise and travel, while Jasha advocates for sports-based youth development and loves exploring all the exciting areas Atlanta has to offer. They are both passionate about the city, its diverse culture and the transformation of neighborhoods like West Midtown.

FUN FACTS

You can watch both Jasha and Joya on the The Oprah Winfrey Network show “Put A Ring On It.”

YOUR
PARTNERS IN REAL ESTATE SUCCESS

The Pre-Listing Process

PREPARING YOUR HOME FOR SALE

Home is where your heart is. Houses, on the other hand, are commodities sold on the open market. You are getting ready to sell a house. Most people do not really see their houses after they have lived there for a while. They do not notice the effects of gradual physical deterioration and junk accumulation. Little stuff to them; not so little stuff to a buyer! If you make the right improvements when preparing your house to sell, you increase the odds of selling it quickly for top dollar. If you do nothing or if you make the wrong changes to your property, you waste the time and money you spent, prolong the sale or reduce the ultimate sale price.

THE EXTERIOR

Buyers generally decide if they want to see the inside within 20 seconds of viewing the external attractiveness (curb appeal) of your property. No matter how magnificent your house is on the inside, many buyers will drive by without even stopping if the curb appeal doesn’t say, “I’m loved, and I’m cared for.” The following, at a minimum, should be addressed when you put your house on the market:

• Attractive landscaping provides instant curb appeal.

• Keep the lawn mowed and tidy. Freshen the flower beds. Add fresh pine straw or chips.

• If the exterior paint is old and not in top condition - paint. A bucket of paint provides a good return on investment! On top of making your house look better, psychologically it translates to the buyer that you love the house so much that you take care of it. That counts.

• Repair/replace torn window screens.

• Replace cracked window panes.

• Make sure windows are operable.

• Wash windows so they sparkle.

• Pressure wash the deck if necessary.

• Clean the gutters.

• If the roof is stained, have it professionally cleaned.

THE INTERIOR

Exteriors attract, but interiors sell! Curb appeal draws buyers into your house, but appealing, well cared for interiors make the sale. You do not usually have to spend thousands of dollars on your house prior to putting up the For Sale sign. On the contrary, little things you do generally give the biggest increase in value.

CONCENTRATE ON THE THREE Cs

Clean it up, clear the clutter and make cosmetic improvements.

CLEAN, SCRUB AND POLISH

Your stove, oven, refrigerator, microwave oven and other appliances must be spotless inside and out. Scour walls, floors, bathtubs, showers and sinks until they sparkle. Buyers will notice strong smells as soon as they walk through your front door, so eliminate smoke, mildew and pet odors. Cleaning drapes and carpets helps get rid of odors. Dehumidifiers help musty basements. If you are a smoker, clean all ashtrays daily. Use air fresheners or citrus-scented potpourri to keep your house odor-free. Whether you do the work or hire someone, make sure that your house is spotless and odorless.

4

CLEAR OUT THE CLUTTER

Clutter can reduce your house’s value. Clear away kitchen counters and keep dirty dishes out of the sink. Eliminating clutter and excess furniture makes rooms appear larger. Recycle those stacks of old magazines and newspapers you have been saving for no good reason. Dump all that junk you have accumulated over the years in your attic and basement. Closet space sells houses. Get rid of all those clothes you do not wear any more. Clean those closets out and organize them. Make them look large and roomy! Do the same with built-in drawers. Like it or not, serious buyers will inspect your closets and built-in drawers.

MAKE COSMETIC IMPROVEMENTS

Painting isn’t expensive if you do it yourself, but be careful when selecting colors. Avoid bold colors with strong visual impact. Stick to conventional soft whites and other neutral colors that will not clash with most prospective buyers’ tastes. If your finished basement is dark and gloomy, paint the walls and ceiling a light color.

Pay attention to everything in your house that could cause the buyer to “reduce your price.” Find it and repair it before you put it on the market. Look for any hairline cracks over doors or windows and nail pops in sheetrock. Locate any ceiling stains and the source of the leak. Check for windows with cracked panes or that don’t open and shut properly. Watch for doors that stick, do not close or slide properly. Check bathrooms for signs of mildew, rust stains in sinks and toilets, missing tiles or grout or inadequate caulking around tubs. Check for drippy faucets, slow draining sinks and tubs, broken mirrors, etc. Check all kitchen appliances that remain with the property.

PRE-INSPECTION MYTHS

COUNT ON IT! PURCHASERS WILL HAVE YOUR PROPERTY THOROUGHLY INSPECTED BEFORE BUYING IT.

Expect inspectors to poke into everything - your house’s roof, chimney, gutters, plumbing, electrical wiring, heating and cooling systems, insulation, smoke detectors, all the permanent appliances and fixtures in your kitchen and bathrooms, and the foundation. They will also check for health, safety, and environmental hazards. You can bet that they’ll also look for damage from wood-destroying insects (carpenter ants, termites and powder-post beetles) as well as dry rot and fungus infections. Whew! The question is, what do you, the seller, do about inspections? Preinspect before the buyer, or wait until the buyer inspects to respond?

In the State of Georgia, a seller must disclose any known defects to prospective buyers via a Seller’s Property Disclosure that is made a part of the sales agreement. For this reason, some real estate agents argue against getting a house inspected before putting it on the market. These agents point out that you can’t tell buyers about problems if you don’t know that the problems exist. They also believe that handing buyers a long list of repair problems as they enter your house will turn many of them off. They recommend getting buyers emotionally committed to the property first, before their own inspectors drop the bomb.

That line of reasoning is based on an ostrich-like logic: What you don’t know can’t get you into trouble – for a while, anyway.

Some agents may also use a second argument to convince sellers not to get pre-inspections on their property. Buyers generally won’t believe anything in reports paid for by sellers. According to these agents, buyers suspect that you will hire a go-easy inspector to falsely report that your house is as solid as the Rock of Gibraltar. So, why spend several hundred dollars on an inspection report that buyers won’t believe? Or worse yet, the buyer will still inspect and come up with still more.

You can find a nugget of truth in both these arguments. On the other hand, the best defense is a good offense. Beat buyers to the punch. Get your inspections before they get theirs. Discover everything wrong with your house before putting it on the market. Defusing a crisis begins by discovering that a problem exists. Consider these four reasons for having your property thoroughly inspected before marketing.

6

ADVANTAGES OF PRE-INSPECTIONS

DAMAGE CONTROL

Suppose that your house has a structural defect. Why wait passively for an ultimatum to fix the defect after you have already negotiated your best price or else kiss the deal goodbye? If you discover the problem before marketing the house, you can either disclose it to prospective buyers with a repair estimate and price accordingly; or you can have the work done by a competent specialist (with work orders, costs and guarantees) before putting the house up for sale. Either way, your negotiating position is much stronger if you know about problems in advance and accurately know the cost to correct them.

SPECIAL NOTE: It’s a pretty safe bet you will not be invited to join the buyers when their property inspector goes through your property. Having your own preinspection gives you and, if you like, your agent, the opportunity to tag along with the inspector. There is no substitute for seeing defects with your own eyes.

FINANCIAL PLANNING

Chances are you are going to be buying another house. Therefore, it is very important to have a realistic estimate of your net proceeds of sale before committing to buy your next home. Flaws hidden out of sight, behind walls or concealed in inaccessible areas, such as under your house or up in the attic where you can’t see them, are time bombs. Defects you cannot see and do not know about such as faulty wiring, termite damage, a cracked heat exchanger in your furnace, dry rot, asbestos insulation, lead in your water pipes, and so on, are potential deal killers. A good pre-marketing inspection can reveal all these problems. Asking prices aren’t sales prices. If your house needs major repairs, you will pay for them one way or another. You can have repairs done before the sale, reduce your asking price to reflect the cost of repairs, or give buyers an escrow credit to do the work themselves. Remember, buyers will always ask for more dollars than the repairs may actually cost.

FINE TUNING

Professional property inspectors can help you spot minor defects such as dirty filters in the heating system, ventilation problems in the basement, garage, or crawl space, blocked gutters, loose door knobs, stuck windows, a missing chimney hood or spark arrester and so on. Eliminating small maintenance problems like these give prospective buyers who tour the property a favorable and correct impression that your house is extremely well maintained.

PEACE OF MIND

The inspector alerts you to health and safety precautions you should take. Install smoke detectors, ground electrical outlets, keep flammable products away from furnaces, heaters and fireplaces. These are examples that make your house safer for the next owner and safer for you as long as you continue living in it.

LOCATING PROPERTY INSPECTORS

Locating house inspectors is usually quite easy. One good source of property inspectors is your real estate agent. Ask for a list of names of property inspectors who perform only property inspections. Good professional inspectors earn their living solely from inspection fees and do not do corrective work.

7

SELLER’S PROPERTY DISCLOSURE STATEMENT

While caveat emptor, or buyer beware, is still generally the law in Georgia, there are three situations where a seller of residential real estate can be held liable if he fails to disclose defects in the property.

1. When the seller knowingly lies about an existing concealed defect (active fraud).

2. When the seller doesn’t lie but takes steps to prevent discovery of a concealed defect.

3. When a seller knows about a concealed defect and does not attempt to conceal it, but makes no disclosures of its existence.

The Georgia Association of REALTORS® developed a unique tool for the purpose of helping a seller disclose defects in his property. It is a list of questions relative to the physical condition of the seller’s property called Seller’s Property Disclosure Statement. The GAR contract provides that this form become a part of the sales contract, and assumes that the buyer will see this list prior to making an offer on that particular property.

Sellers are not obligated to complete this form since we are still a caveat emptor state, but the seller should be aware that:

1. Failure to complete the statement does not relieve the seller of disclosing any known defects.

2. Refusing to complete the statement might not be in his best interest. Use of such a form is becoming more customary in the industry and a buyer might be very reluctant to purchase a property where no statement has been completed.

3. Completing the statement but answering “I don’t know” in all areas will not protect the seller from the disclosure obligations listed above.

8
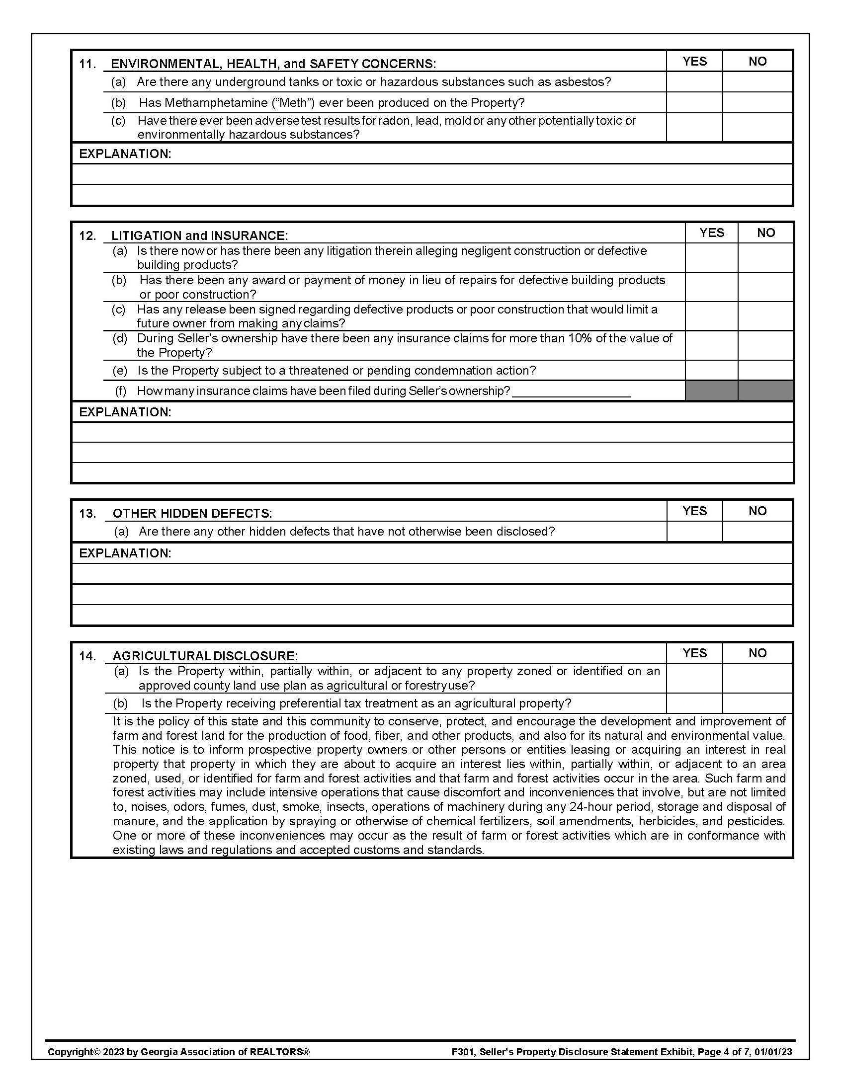
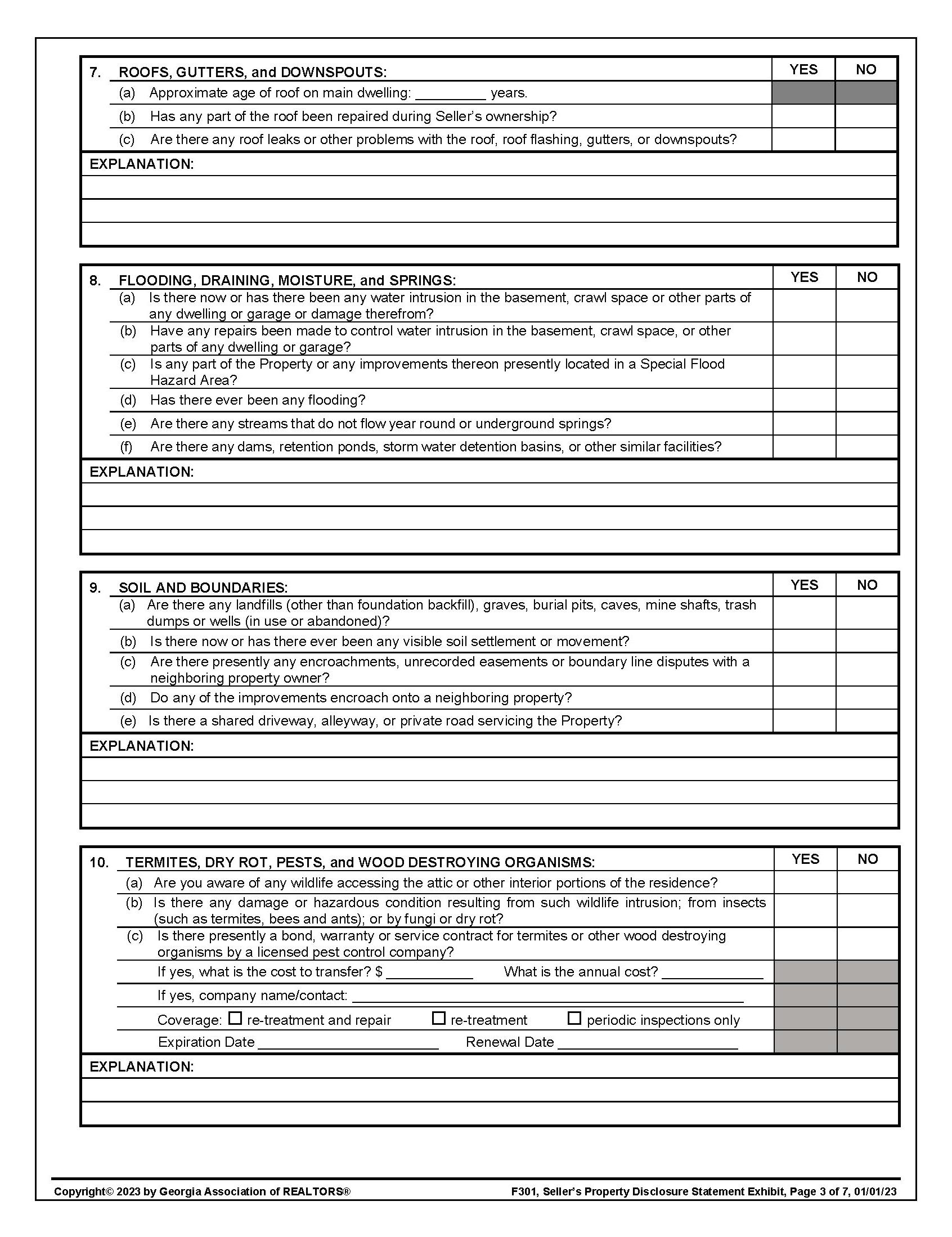
10
SELLER’S PROPERTY DISCLOSURE STATEMENT
SAMPLE
11
SAMPLE
12
SAMPLE

SAMPLE

13

SAMPLE

14

SAMPLE

15

SAMPLE

16

The Marketing Process

Not all homes are created equal and neither are all REALTORS®. What sets Atlanta Fine Homes Sotheby’s International Realty apart is our dedication to the highest level of performance for our clients. The marketing of your property is of utmost importance. The goal of our marketing plan is to touch every possible prospect for your home through internet promotion, print media, direct mail and focused distribution of information to agents in your area.

It has been reported that over 95% of all first inquiries regarding real estate are through the internet. Therefore, we have placed critical importance on the use of both technology and fundamental applications to ensure you the most satisfaction throughout the process of marketing your property.

We have developed a comprehensive media campaign to introduce your property to the market. It includes local advertising, direct mail to neighbors and past clients, and email promotion to agents in the community who are most likely to have clients with an interest in your property.

Teamwork is a vital component of a successful campaign to sell your home. Your responsibility is to make sure that your house is in the best showing condition possible before we begin our promotion and advertising. We can assist you with a checklist of important details and the names of resources to help you complete any needed repairs.

18
INTRODUCTION

PROMOTING YOUR PROPERTY

Effective marketing with consistent promotions is the key to success. In selling real estate, there needs to be a comprehensive strategy designed to attract buyers to your property. At Atlanta Fine Homes Sotheby’s International Realty, the selling of your property involves more than just an ad in the paper, a sign in the yard, and waiting for a buyer. In reviewing the various forms of marketing, the Internet has been proven to be a very effective means of marketing your home. Research by the National Association of REALTORS® shows that nearly 100% of all home buyers use the Internet to shop for their home. Rather than tackling the complicated buying process by themselves, 89% of Internet home shoppers worked with a real estate agent. Therefore, we will use a comprehensive plan that includes promoting your home to colleagues throughout the area to expose your home to the most buyers.

INTERNET

All Atlanta Fine Homes Sotheby’s International Realty’s listings are featured on the world’s most powerful media sites and real estate-focused websites in the world, including: Zillow, Trulia, Realtor.com, WSJ.com and more.

ANNOUNCEMENT IN SALES MEETING

Your home will be introduced to all Atlanta Fine Homes Sotheby’s International Realty sales associates via virtual caravan. The presentation includes color photos of the exterior and interior, as well as details about your home. This is the first opportunity to market your home to real estate professionals.

BROKER OPEN

On the first available Tuesday, key agents and brokers will be invited to tour your home. A catered lunch, or other incentives, will be offered to draw as many agents as possible, thus maximizing exposure for your property. Any feedback from the agent tour will be provided to you immediately.

OPEN HOUSE

If desired, public open houses will be held periodically, providing an opportunity for potential buyers to tour your home.

MARKET EXPOSURE

In addition to the strong Internet presence we offer our clients, our company and listings may be marketed in various print media such as the Reporter Papers, Alpharetta-Roswell Herald, Marietta Daily Journal and more. Color brochures will also be created for display at your home.

RELOCATION CONNECTIONS

Prospects for your home come from relocation services, corporations, executive search firms and fellow associates who keep track of potential buyers moving into the Atlanta area.

REFERRAL NETWORKS

Your home will be promoted by word of mouth to a personal network of fellow sales associates as well as my sphere of influence and past clients.

STATUS UPDATES

You will receive an update on market activity as we go along and you will find out the responses to your property by buyers and agents. Every 30 days, we will review current market statistics and at this time will discuss adjustments or recommendations that may be necessary to reposition your home in the market in order to accelerate a satisfactory sales agreement.

19

ADVERTISING OPTIONS FOR YOUR HOME

Together we will customize an advertising campaign to target potential buyers for your home. In order to choose the most appropriate advertising, it is important to consider your timeline, your marketing goals and the demographics of qualified buyers. Below is a list of our most effective print and online advertising selections. We may advertise in the following media outlets:

• Alpharetta-Roswell Herald

• Atlanta INtown

• Cherokee Ledger

• Forsyth Herald

• Johns Creek Herald

• Marietta Daily Journal

• Milton Herald

• Reporter Papers (Brookhaven, Buckhead, Dunwoody, Sandy Springs)

• Featured Home of the Day on Blog.AtlantaFineHomes.com

• Promoted/Featured Posts on Facebook and Instagram

• Introducing Postcard

• RESIDE Magazine

20
Postmodern Houses Offer History and Humor Karen Pittman’s Favorite Items at Home High Design: Ceilings Shine as Fifth Walls The Best Burgers Around the World

The Showing Process

SHOWING YOUR HOME

You are ready! You’ve cleaned, scrubbed, polished, shined, repaired and staged. You are now ready to “bring on the buyers.” However, there are a few final things you can do to maximize the showing process.

BRIGHT, WELL-LIT HOUSES SEEM MORE CHEERFUL, INVITING AND SPACIOUS

Keep draperies and blinds open to let in light. Turn on all lamps in every room (even during the day to brighten the room). Turn on all hallway and stairwell lights. Turn on lights in closets, over counter tops and cook tops. At night, turn on porch lights and outdoor lighting.

MAKE IT LOOK LIVED-IN

Add bowls of fresh fruit to counter tops and fresh flowers to a table. Create fragrant aromas, such as fresh baked cookies, brewed coffee or cinnamon simmering on the stove. Set the table with attractive, color coordinated place mats, napkins, china, etc.

MAKE YOURSELF SCARCE DURING SHOWINGS

If the buyer comes in with an agent, it is best to leave while the property is being shown. It is very intimidating to buyers to have the owner hover over them while they are touring the property. They don’t feel free to explore closets, cabinets and all those nooks and crannies that every serious buyer wants to inspect. Secondly, hovering over buyers often sends the wrong signals – signals that you are extremely anxious to sell, possibly resulting in a low offer. Sometimes the most important information you get from a showing is the reason a buyer doesn’t like the property. Correcting a problem or overcoming an objection starts with finding out that there is one.

TAKE CARE AND PROTECT YOUR VALUABLES

Unfortunately, we do not live in a perfect world. Therefore, the best plan is to make certain there is no open invitation. Before your house is shown, you should take care that all expensive jewelry, loose money, credit cards, blank checks and any other small valuables are put in a safe place and out of harm’s way. These measures are important throughout the listing period, but they are especially important during an open house when you may be expecting a large turnout. In these circumstances, suggest that the listing agent be accompanied by someone who can assist. One agent can greet, the other can conduct the tour.

21

SHOWING EXPECTATIONS

Your house is ready and buyers are coming! How is it handled? Will you show by appointment or put a lockbox on your door? What if nobody comes?

MAKE SHOWING YOUR PROPERTY EASY FOR AGENTS

The easier your house is to show, the more often agents will show it. If you haven’t agreed to a lockbox, re-think the idea. When an agent shows your house using a lockbox, you always know who and when they entered your home. Your agent will electronically retrieve the information from the lockbox after the showing and call the agent for feedback. Your agent will also provide additional information to the showing agent that would be helpful in the selling of your home. Your agent will pass along to you any feedback that may be helpful in the selling process.

TOO FEW SHOWINGS?

If there are few showings, the price may be too high. Your home may be worth the price, but if you are not having many showings, it may be that the market will not bear the price. Remember, the market determines the price. If there is little interest, you may consider adjusting the price. If a house stays on the market too long, it can adversely affect the selling price. Buyers will be afraid to purchase because they think there could be a major flaw in the house, or that they would face the same problem when they get ready to sell. Remember, you don’t want to list your home to “own it,” you want to list your home to “sell it.”

NO-SHOWS

You may be disappointed occasionally when an agent schedules a showing and then doesn’t show up. Don’t be! There are any number of reasons for a no show. Perhaps the buyers fell in love with the home they saw just before yours. A buyer’s baby may be misbehaving or become ill in the car and it was time to stop. Or the buyers did not have as much time as they had previously told their agent. When things like this happen, the agent may not have time to call you and explain.

21 FACTORS THAT AFFECT THE SALE PRICE OF THE HOME

23
1. On main thoroughfare Minus 10% of sales price Plus 20% more marketing time 2. Electric heat Minus 10% of sales price Plus 15% more marketing time 3. House facing school or business property Minus 8% of sales price Plus 20% more marketing time 4. Power line behind or in view of house Minus 15% of sales price Plus 25% more marketing time 5. Very steep driveway up or down to house Minus 10% of sales price Plus 25% more marketing time 6. Gully or very steep drop off behind house Minus 5% of sales price Plus 10% more marketing time 7. Creek behind or beside house Minus 3% of sales price Plus 3% more marketing time 8. House exterior needs painting Minus 3% of sales price Plus 5% more marketing time 9. Golf course lot in line of wayward tree shots Price affect varies Plus 10% more marketing time 10. Smoke or pet odor Minus 10% of sales price Plus 10% more marketing time 11. Interior needs painting/wallpaper Minus 5% of sales price Plus 15% more marketing time 12. Cluttered, messy basement Minus 1% of sales price Plus 5% more marketing time 13. Out of date kitchen or bathroom Price affect varies Plus 20% more marketing time 14. Rooms with different color carpet Minus cost of replacement Plus 10% more marketing time 15. Hard coat or synthetic stucco Minus 5% of sales price Plus 20% more marketing time 16. Unusual architecture Minus 20% of sales price Plus 30% more marketing time 17. Age and appearance of roof Minus cost of replacement Plus 5% more marketing time 18. Swimming pool Price affect varies Plus 10% more marketing time 19. Asbestos Minus 10% of sales price Plus 10% more marketing time 20. Mold Cost of remediation + 3% Plus 25% more marketing time 21. Termite damage Cost of replacement Plus 15% more marketing time
FACTOR APPROXIMATE PRICE AFFECT APPROXIMATE TIME AFFECT

The Contract Process

WRITING THE CONTRACT: GLOSSARY OF TERMS

The process of buying or selling a property is a complex transaction involving numerous parties and commonly, conflicting interests. To reduce the possibility of misunderstanding or miscommunication between these parties, all negotiations regarding the purchase or sale of real estate should ultimately be reduced to a written agreement. This agreement, when signed by all parties should represent the entirety of the agreement between buyer, seller and any other party materially involved in the transaction. The section below describes important areas of the written agreement which ultimately forms a contract between the two parties. It is very important that you read and UNDERSTAND the entire agreement prior to signing it. Your professional real estate agent or attorney can be invaluable in helping you to understand the important details contained in this document.

PURCHASE AND SALE AGREEMENT

The document that creates a valid enforceable contract between a buyer and seller in Georgia, is called a Purchase and Sale Agreement. This contract has been created and pre-approved by attorneys and the Georgia Association of REALTORS® (GAR) and includes, but is not limited to, terms related to the legal description of the property, purchase price, method of payment, buyer’s earnest money, closing date and possession, inspection and agency. No longer is there a finance contingency included in the Purchase and Sale Agreement. If a buyer needs a finance contingency, it must be stipulated by way of an attached exhibit stating the terms of the loan. Otherwise, the contract states only that the buyer is paying cash.

OFFER AND COUNTER OFFER

The process of creating a Purchase and Sale Agreement involves negotiation and may require several iterations to finally arrive at a complete agreement between the parties. Each time a party initiates changes, or adds to a Purchase and Sales Agreement, an offer or counter offer is created. The buyer, or buyer’s agent, presents offers to the seller’s agent, the seller’s agent in turn presents the offer to the seller. The seller may accept the offer as is or make a “counter offer.” Any changes to the offer automatically resets the time limits and voids the original offer once received by the original offering party. It is important while negotiating a purchase or sale to remain

aware of the time limits each party allows for response. Time is of the essence in real estate agreements and if you miss a deadline, you may miss an opportunity, or worse, be committed to something you didn’t want.

BINDING AGREEMENT

A Binding Agreement is created when one party presents a signed written offer to purchase or sell property to a second party, and that party accepts the same offer in writing, unchanged, and delivers written acceptance back to the offering party before the time limit in the offer expires. In the GAR (Georgia Association of REALTORS®) Purchase and Sale Agreement, the date the parties reach mutual agreement is referred to as the Acceptance Date and the date the written notice of acceptance is received by the offering party is referred to as the Binding Agreement Date. It is the responsibility of the party receiving the written notice of acceptance to notify the other.

DUE DILIGENCE PERIOD

In the current Purchase and Sale Agreement, the inspection takes place during the due diligence period. The buyer has an agreed-upon amount of time from the Binding Agreement Date to conduct any evaluations, inspections, appraisals, examinations, surveys or testing at the buyer’s sole expense during this period. The buyer may terminate the agreement during that time for any reason whatsoever

24

and receive a refund of their earnest money. In order to terminate the agreement, the buyer must give written notice to the seller prior to the end of the due diligence period. However, the buyer may want to proceed after the inspection. If so, the buyer may give the seller an amendment to address concerns (i.e., repairs) with the property which can then be negotiated between the buyer and seller. Once that is done and the due diligence period has expired, the buyer must proceed with the sale.

EARNEST MONEY DEPOSIT

The earnest money or “good faith” money that accompanies the Purchase and Sale Agreement or offer is typically 1% to 5% of the sales price (this amount may be negotiated). A personal check is usually made payable to the selling broker and deposited or wired into the selling broker’s escrow account within five banking days of reaching the Binding Agreement Date. The Purchase and Sale Agreement does state that if the buyer breaches any of the buyer’s obligations or warranties under the contract, the holder or seller may have the right to retain earnest money as liquidated damages. Recent changes to the GAR purchase and sale agreement have tightened the buyer’s responsibility to obtain financing and perform other duties which may prove to be advantageous to certain sellers. Buyers also now have the specific responsibility to determine neighborhood factors which may be undesirable. The GAR purchase and sale agreement instructs buyers to research the registered sex offender database if they are concerned about offenders residing in the neighborhood.

APPRAISALS

The Purchase and Sale Agreement does not contain a pre-printed appraisal contingency. However, there are some lenders who will decline to offer the buyer a loan if the property does not appraise for the contract price. The buyer and seller may choose to renegotiate to the lesser

appraised value. When a buyer has added an appraisal contingency to the special stipulations, the disposition of the contract will follow the terms of contingency.

CLOSING DATE AND POSSESSION

The Purchase and Sale Agreement provides that the closing shall be on a specific date, at a specific location and possession will follow either the closing or other time as mutually agreed. The parties further agree that the buyer will allow the seller to retain possession through closing, through number of hours after closing, or within number of days after closing. This section of the contract also states that both parties agree that should the loan be unable to be closed on the proposed date or that the seller fails to satisfy title, either party, upon written notice provided before the agreed upon closing date, can extend the contract closing date up to seven days. Once this option is used by either party, the right terminates and is no longer able to be exercised.

RIGHTS AND RESPONSIBILITIES

The Purchase and Sale Agreement not only outlines the details of the agreement between the parties, it also determines the disposition of earnest money, the resolution of disputes between the parties and limits the liability of certain parties to the transaction. The agency and brokerage section defines representation for both parties to the contract and defines the rules of engagement between, brokers, agents, clients and customers. Sections of the Purchase and Sale Agreement also dictate how communications are exchanged between the parties and provides for specific contact methods.

25
26
PURCHASE AND SALE AGREEMENT
SAMPLE

SAMPLE

27

SAMPLE

28

SAMPLE

29

SAMPLE

30

SAMPLE

31

SAMPLE

32

SAMPLE

33

SAMPLE

34

SAMPLE

35

The Appraisal Process

WHAT IS AN APPRAISAL?

An appraisal is an unbiased, professional opinion of a home’s value. Appraisals are almost always used in purchase and sale transactions and commonly used in refinance transactions. In a purchase and sale transaction, an appraisal is used to determine whether the home’s contract price is appropriate given the home’s condition, location and features. In a refinance, it assures the lender that it isn’t handing the borrower more money than the home is worth.

Lenders want to make sure that homeowners are not over borrowing for a property because the home serves as collateral for the mortgage. If the borrower should default on the mortgage and go into foreclosure, the lender will recoup the money it lent by selling the home. The appraisal helps the bank protect itself against lending more than it might be able to recover in this worst-case scenario. (Investopedia)

THE APPRAISAL PROCESS

Because the appraisal primarily protects the lender’s interests, the lender will usually order the appraisal. According to the Appraisal Institute, an association of professional real estate appraisers, a qualified appraiser should be licensed or certified (as required in all 50 states) and be familiar with the local area. Federal regulations state that the appraiser must be impartial and have no direct or indirect interest in the transaction. Fannie Mae requires appraisers to certify that they have experience appraising similar properties in the same geographic area.

A property’s appraisal value is influenced by recent sales of similar properties and by current market trends. The home’s amenities, number of bedrooms and bathrooms, floor plan functionality and square footage are also key factors in assessing the home’s value. The appraiser must do a complete visual inspection of the interior and exterior and note any conditions that adversely affect the property’s value, such as needed repairs.

Typically, appraisers use Fannie Mae’s Uniform Residential Appraisal Report for single-family homes. The report asks the appraiser to describe the interior and exterior of the property, the neighborhood and nearby comparable sales. The appraiser then provides an analysis and conclusions about the property’s value based on his or her observations.

The report must include a street map showing the appraised property and comparable sales used, an exterior building sketch, an explanation of how the square footage was calculated, photographs of the home’s front, back and street scene, front exterior photographs of each comparable property used and any other information, such as market sales data, public land records and public tax records, that the appraiser uses to determine the property’s fair market value. An appraisal costs several hundred dollars and generally the borrower pays this fee. (Investopedia)

WHO PERFORMS THE APPRAISAL?

• Appraisers are licensed by individual states after completing coursework and internship hours that familiarize them with their real estate markets.

• The lender might use an appraiser on its staff, or contract with an independent appraiser. If you are allowed to choose the appraiser, and it isn’t someone the lender is familiar with, the results might be subject to review before they are accepted.

• The appraiser should be an objective third party, someone who has no financial or other connection to any person involved in the transaction. (About.com)

36

WHAT YOU WILL SEE ON A RESIDENTIAL APPRAISAL REPORT

Appraisals are very detailed reports, but here are a few things they include:

• Details about the subject property, along with side-byside comparisons of three similar properties.

• An evaluation of the overall real estate market in the area.

• Statements about issues the appraiser feels are harmful to the property’s value, such as poor access to the property.

• Notations about seriously flawed characteristics, such as a crumbling foundation.

• An estimate of the average sales time for the property.

• What type of area the home is in (a development, stand alone acreage, etc.). (About.com)

RESIDENTIAL APPRAISAL METHODS

There are two common appraisal methods used for residential properties:

1. Sales Comparison Approach: The appraiser estimates a subject property’s market value by comparing it to similar properties that have sold in the area. The properties used are called comparables, or “comps”. No two properties are exactly alike, so the appraiser must compare the comps to the subject property, making paperwork adjustments to the comps in order to make their features more in-line with the subject property. The result is a figure that shows what each comp would have sold for if it had the same components as the subject.

2. Cost Approach: The cost approach is most useful for new properties, where the costs to build are known. The appraiser estimates how much it would cost to replace the structure if it were destroyed.

WHAT YOUR AGENT CAN DO FOR YOU TO HELP THE APPRAISAL PROCESS

The best thing a homeowner or broker can do to help the appraisal process is to prepare a one-page sheet for the appraiser that outlines the changes and repairs that the home has undergone since it was bought. (NY Times)

WHAT THE APPRAISAL MEANS TO YOU

As a seller, a low appraisal, if accurate, means you will have to lower your home’s price to get it sold. Lenders will not approve loans for more than a home is worth, and holding out for an all-cash buyer who doesn’t require an appraisal as a condition of completing the transaction is unlikely to net you a higher sales price. No one wants to overpay for a home.

Unfortunately, recent distressed sales in the surrounding area can lower your home’s appraisal value. If you feel that your home’s value has been dragged down by the sales prices of nearby foreclosures and short sales, you may be able to convince the appraiser that your home is worth more if it is in significantly better condition than those properties. Sellers should also know that federal guidelines (intended to eliminate the inflated appraisal values that contributed to the housing crisis) sometimes cause appraisals to come in below fair market value and can make low appraisals difficult to challenge.

When everything goes smoothly, the home appraisal is just another box to tick on a loan-closing checklist. When the appraisal value is lower than expected, the transaction can be delayed or even canceled. Regardless of which situation you encounter in your homebuying, selling or refinancing experience, a basic understanding of how the appraisal process functions can only work in your favor.

(Investopedia)

37

QUICK FIXES

Quick fixes for improving the value of your home that your agent should have told you (by D. Scott Murphy, Appraiser):

1. LANDSCAPING: Too much landscaping and you waste your money, but enough to create good curb appeal is well worth it.

2. PAINT: Painting is relatively inexpensive and probably the No. 1 return on investment. It makes a great first impression for a buyer to enter a freshly painted home. Keep it neutral to appeal to the largest pool of buyers.

3. WASH YOUR WINDOWS: May not seem significant but it is an easy do-it-yourself project and is often overlooked and helps give your house that well kept and maintained feel. Along with this, you will most likely be removing your screens to give a cleaner look and allow more light in. Store the screens for the buyers future use.

4. UPDATE THE HARDWARE throughout the House: An easy do-it-yourself project that will go a long way to improving the value of your home.

5. DE-CLUTTER AND REMOVE PERSONAL ITEMS: This is a common recommendation of agents and stagers. Appraisers put ourselves in the shoes of a typical buyer and this will go a long way with a buyer, as well as the appraiser.

6. BEDROOMS: Do you have as many as you think you have? The bedroom count has the most impact on value. Many homeowners convert two bedrooms to one, removing doors, windows and closets that are required for a room to be counted as a bedroom.

7. ALLOWANCES: Rather than give an allowance, your seller will be better off replacing the carpet, or painting the house, etc. The new carpet or new paint will draw more offers and generally result in higher offers than the offer with the allowance (taking into consideration the cost to complete the repair). Also, most lenders do not allow significant allowances and it could cause problems with the appraisal and loan approval.

8. DRIVEWAYS: Seriously damaged, cracked driveways will deter buyers. They also may create a safety hazard and be flagged by the home inspector and appraiser. While out of the control of the seller, the slope of the driveway must be considered as FHA may not approve financing if the slope exceeds 14%.

9. TAXES AND UTILITY BILLS: Get your financial “house” in order. Buyers will be looking at many homes and comparing tax bills and utility bills. Plan ahead as tax bills can only be contested during a 45-day window each year (usually around March/April/May). Think about added insulation, weather stripping and completing other energy conserving projects which will result in a series of lower utility bills at the time of listing. Most utility companies offer free home energy audits.

10. CLOSETS: Most homes lack sufficient closet space. There are numerous options for closet organization systems to improve the value of your home.

The Inspection Process

BUYER’S RIGHT TO INSPECT

According to the Purchase and Sale Agreement, the buyer has the opportunity to have your home inspected by a professional before closing. The contract specifies when the inspection will take place after the offer is accepted and that in certain cases, the closing is contingent upon a satisfactory inspection. The buyer pays for the inspection, and it is advised that the seller not be present during the inspection. NOTE: As the seller, you do have the option to market your home “as is,” but the buyer may still have the property inspected.

A pro-active approach anticipating the inevitable will be time and money well spent. A pre-sale home inspection can identify potential issues and serve as a sales tool. A professional inspection report presented next to the disclosure helps inspire confidence for the potential buyer.

Identifying problem areas and correcting them before the buyer’s inspector finds them has some advantages. The repairs can be made at the seller’s discretion and time frame instead of last minute repairs scrutinized by the buyer. The cost of a pre-sale home inspection is part of the marketing costs of selling a home. The next best thing is staging the house for a home inspection. This is when the seller addresses common problem areas that an inspector will surely discover. Make these discoveries yourself and correct the issues proactively.

SPECIAL NOTE: If you are selling a stucco home, you may want to have the stucco pre-inspected and have repairs, if any, completed prior to putting your home on the market. The buyer may elect to have a separate inspection of the condition of the stucco.

FREQUENTLY ASKED QUESTIONS

WHAT IS A HOME INSPECTION?

A home inspection is a visual inspection of structures and components of a home to find items that are not performing correctly, items that are unsafe and items that are in violation of the code at the time the house was built or remodeling occurred. If a defect or a symptom of a defect is found, the home inspector will include a description of the defect in a written report and may recommend further evaluation. Cosmetic issues should not appear on an inspection report.

CAN THE BUYER ASK THE SELLER TO MAKE REPAIRS?

The due diligence paragraph gives the buyer the ability to give an amendment to the seller to “address concerns” with the property which would be repairs. The buyer gives this amendment to the seller and the parties can negotiate a satisfactory solution to the areas of concern.

WHAT ARE THE TOP TEN HOME INSPECTION PROBLEMS?

• Gutters not draining properly

• Rotted wood around window fascia and soffit boards

• Water entry into the basement or crawl space

• Broken seals on double pane windows

• Missing grout around tubs and shower stalls

• Heating and cooling equipment needing service

• Small nail holes (known as toe board nail holes) along the bottom edge of the roof

• Creosote build-up in the flu pipe of the fireplace

• Faulty Ground Fault Circuit Interrupter (GFCI) outlets

• Windows painted shut

40

DO-IT-YOURSELF REPAIRS

Many inspection issues can be handled by the homeowner. The items below are relatively common and are within the capabilities of most homeowners or handymen. Specialized professional help is suggested as needed. Allow a couple of hours to carefully evaluate the visible components of your home. Try to look at the house like you are seeing it for the first time. Carefully scrutinize the interior and exterior of your home. Go up in the attic and down into the basement or crawl space. Inspect the garage. The average home inspection report will have 20-30 items. Most will be very minor and are often issues due to a lack of maintenance.

EXTERIOR

• Cut back all vegetation approximately two feet from house.

• Keep pine straw, bark, mulch and earth six inches from bottom of siding.

• Replace damaged siding, chimneys and areas around windows and doors. Use cement-based lap siding to replace.

• A thick coat of paint will fill up the open cracks that develop in moisture affected hardboard siding. Caulk or seal all gaps as needed.

• A good power wash can make a paint job look new.

• If the deck is nailed or screwed to the house, the inspector will suggest bolting for additional strength. Bolting with carriage bolts is simple if the interior walls are unfinished. Extensive lag screwing is the alternative if no access is available.

• Are deck hand rails secure at all corners, or wobbly? Are deck stair treads in good shape? Are deck guardrail pickets no more than four inches apart? Buyers will be concerned if this is on the report.

• Power wash and seal deck with stain.

• Repair or replace wood rot in wood trim.

• Seal openings around penetrations in exterior wall, use spray foam around gas supply lines, AC refrigerantcondensate drain lines and exhaust vents.

• Test operation of garage door automatic openers, reverse sensors and the sensors located at the door tracks.

• Do garage door springs have safety cables running through them? This is a safety item.

• Cracks in brickwork? Patch missing mortar with matching mortar color.

• Remove dead trees from property.

• Steel support columns on a deck or sunroom should be wire brushed for rust and repainted.

• Are dampers on bathroom exhaust vent hoods closing when not in use?

• Is the clothes dryer vent cleaned?

ROOF

• Clean gutters, downspouts and roof valleys. Replace leaky gutters.

• Replace missing roof shingles.

• Extend downspouts away from the foundation.

• Check roof protrusions to see if there are any leaks in the attic.

• Clean all debris out of the attic.

PLUMBING

• Is plumbing supply made of polybutene plastic? This can be blue or grey. Be prepared for possible negotiation on allowance to replace.

• Check for leaks under all sinks at water supply and drain lines.

• Is there any noticeable corrosion at water heater?

42

• Are shut-off valves accessible?

• Slow drains? Low water pressure? Check for clogged pipes.

• Grout/caulk that which is missing at ceramic tile shower stall.

• Try to rock toilets sideways. If they rock, they need to be secured to floor.

HEATING AND AIR CONDITIONING SYSTEMS

• Are exhaust flue connections secure and clearing combustible surfaces?

• Change dirty filters.

• Seal leaky ductwork with metal tape 181 UL.

• Professionally service older units.

• Are exterior AC units on pad above grade?

• Is there water in the attic over flow pan? This indicates a problem.

ELECTRICAL SYSTEM

• Any open junction boxes must be covered.

• Buy a $10 tester and check all receptacles.

• Check electrical panel box for double taps, sloppy wiring and excessive splices.

• Service wire to kitchen sink disposal encased in protective conduit and properly clamped to disposal.

• Are all receptacles in wet areas Ground Fault Circuit protected?

INTERIOR

• Seal and paint any inactive water stains in drywall ceilings and walls.

• Smoke detectors should have good batteries.

• Unstick all windows.

• Have fireplaces been cleaned and inspected recently? Check damper operation.

• Is masonry fireplace liner in good condition?

• Is any mortar missing from brickwork?

• Are bathrooms and dryer vent exhausted to exterior?

• Are stairway pickets four inches or less apart?

• Are there any water stains on the attic roof sheathing? Look around ridge vents, plumbing vents, fascia boards, rafters, etc.

• Are there any cracked or damaged roof truss members or rafters?

• Attic framing (ridge beams, hip and valley ridge beams, rafters, etc.) should be properly braced.

• Does the exposed fiberglass insulation in the garage or basement have asbestos?

CRAWLSPACE

• Do any excessive standing water, gravel or drainage issues exist?

• Is there any rotten wood subfloor or joists around bathroom/kitchen plumbing?

• Are vents to exterior provided?

• Clean out debris.

• Is the plastic vapor barrier continuous?

SPECIAL NOTE: These issues represent a small sample of potential concerns that could show up on an inspection report. Every home is unique in its design, construction, materials and condition.

43

WHAT SHOULD I KNOW ABOUT TERMITES?

In the state of Georgia, no longer is the seller responsible for presenting the buyer with a termite inspection letter stating the condition of the home and whether or not it has been affected by termites. However, if the buyer chooses to do a home inspection, the home inspector will reveal if there has been any damage in the past or present and this most often can be alarming to the perspective buyer. We highly recommend that both parties know what the circumstances are so the information is disclosed for properly.

How badly can termites hurt your home? Well, throughout the United States they cause billions of dollars in destruction every year. They can destroy things ranging from wood, trees on your property, books, plants and even parts of swimming pools. Just by existing, they can prevent you from selling your home – no one is going to want to buy without getting rid of them first and assessing the extent of the damage.

If you have termites in your home, the good news is that they can take quite a while before you see any real damage. In many cases, it takes up to five years or so before you see any signs of the problem. On the other hand, a healthy colony can consume an entire foot of a 2x4 in just a few months. That doesn’t sound so bad, but the extent of the harm depends on how it’s distributed in your house - the termites don’t eat the entire board, they tunnel around in them. It is tough to tell exactly how much it will cost you to repair it because it can vary so much.

CAN THE PROBLEMS BE REPAIRED?

Yes. In fact, sometimes you can get away with just reinforcing the damaged wood if it has not been hurt that badly. You are going to have to have a professional come look at it if you have had a colony for a while, though –all termites often eat away at load-bearing wood, and you need to make sure that your home is still structurally sound.

We strongly encourage that the homeowner have an annual contract with a qualified pest control company that is bonded for not only treatment but, treatment and repair. In addition, the Sentricon bait system is found to be a very effective way in controlling termites from ever coming near the structure of your home.

44

WHAT SHOULD I KNOW ABOUT MOLD?

FACTS ABOUT MOLD

Molds are simple, microscopic organisms whose purpose in the ecosystem is to break down dead materials. Molds can be found on plants, dry leaves and on just about every other organic material. Some molds are useful, such as those used to make antibiotics and cheese. Some molds are known to be highly toxic when ingested, such as the types that invade grains and peanuts. Most of the mold found indoors comes from outdoors.

Molds reproduce by very tiny particles called spores. The spores float in on the air currents and find a suitable spot to grow. Spores are very light and can travel on air currents. If mold spores land on a suitable surface, they will begin to grow. Molds need three things to thrive – moisture, food and a surface to grow on. Molds can be seen throughout the house, and can be found in most bathrooms. Mold growth can often be seen in the form of discoloration, and can appear in many colors – white, orange, pink, blue, green, black or brown. When molds are present in large quantities (called colonies), they can cause health problems in some people.

Mold spores can cause adverse reactions, much like pollen from plants. Mold spores cause health problems when they become airborne and are inhaled in large quantities. Everyone is exposed to mold in some concentration in the outdoor air. Indoor exposure to molds is not healthy for anyone. In particular, people with allergies, existing respiratory conditions or suppressed immune systems are especially susceptible to health problems from mold exposure. Additionally, infants and children, pregnant women and the elderly can be sensitive to the effects of mold exposure. Some molds are more hazardous than others are. For some people, a small number of mold spores can cause health problems. For others, it may take many more.

SYMPTOMS OF MOLD EXPOSURE

There are many symptoms of mold exposure. The extent of symptoms depends on the sensitivity of the exposed person. Allergic reactions are the most common and typically include respiratory problems such as wheezing and difficulty breathing, nasal and sinus congestion, burning, watery, or reddened eyes, blurry vision, sore throat, dry cough, nose and throat irritation, shortness of breath and skin irritation. Other less common effects are include nervous system problems (headaches, memory loss and moodiness), aches and pains; and fever. If you have any of these symptoms, and they are reduced or completely gone when you leave the suspected area, chances are you have been exposed to some sort of allergen, quite possibly mold.

DETECTING MOLD

Some mold problems are obvious – you can see it growing. Others are not so obvious. If you can see mold, or if there is a musty odor in your house, you probably have a mold problem. Areas that are wet, or have been wet due to flooding, leaky plumbing, leaky roofing, or areas that are humid (such as bathrooms and laundry rooms) are most likely to have mold growth. Look for previous water damage. Visible mold growth may be found underneath wallpaper and baseboards, behind walls, or may be evident by discolored plaster or drywall.

Many home inspectors or industrial hygienists can conduct air sampling to detect the presence of mold spores. If there is obvious mold, you can conduct a swab test that can be analyzed to determine the molds that are present. Testing is the only way to determine if you have a mold problem and what type it is.

45

WHAT SHOULD I KNOW ABOUT MOLD? (CONT.)

WHAT TO DO ABOUT MOLD

The first course of action is to determine why the mold is growing. Investigate any areas that are moist and repair the source of the moisture. There could be a roof or plumbing leak, or groundwater leaking into the basement. The air conditioning drip pan could have mold growing in it. The air duct system could be contaminated with mold. If you see mold in the laundry room, chances are the dryer is not properly vented to the outside. Clothes dryers generate humidity and should never be vented inside the house.

Mold will grow on any surface that provides moisture and food. Substances that are porous and can trap molds, such as paper, rags, wallboard and wood, should be thrown out. After all repairs have been made it is time to clean.

Use the following pointers:

Mix a household cleaner (without ammonia) with hot water and scrub affected areas before sanitizing with a bleach solution that is 10% bleach and 90% water. Wear gloves when handling moldy materials. If you are sensitive to mold, you may wish to wear a particulate-removing respirator or face mask. Also, wear protective clothing that is easily cleaned or may be discarded. Hard, non-porous materials can be cleaned with a solution of bleach and water, 10% bleach to 90% water. Use a sponge or cloth to wipe the area clean. Never mix bleach with other cleaning products; it can produce a toxic gas! It is important to clean thoroughly. If you leave some mold behind, the spores will be easily released back into the air when the material dries out. Remove porous materials such as ceiling tiles, carpeting and sheet rock (drywall) and dispose of them. They are nearly impossible to clean and will surely produce more spores when dry. If mold is the result of flooding, remove all drywall to at least 12 inches above the high water mark. Visually inspect the interior of the walls to ensure that you removed all contaminated drywall. Allow the area to dry for 2-3 days after cleaning and sanitizing with the bleach solution. Use a stiff brush to remove mold from block walls or uneven surfaces. Have family members or bystanders leave the area while cleaning or abatement is being done.

WHAT SHOULD I KNOW ABOUT LEAD-BASED PAINT?

Many houses and condominiums built before 1978 may have paint that contains high levels of lead (called lead-based paint). Buyers are encouraged to check for lead prior to buying or renovating pre-1978 housing. Federal law requires that individuals receive certain information regarding lead-based paint prior to buying.

Sellers have to disclose known information on lead-based paint and lead-based paint hazards prior to selling a house. Sales contracts must include a disclosure about lead-based paint. Buyers have up to 10 days to check for lead.

Renovators disturbing more than two square feet of painted surfaces have to give you a pamphlet from the EPA entitled, “Protect Your Family From Lead In Your Home.”

Ask your agent for additional information regarding this subject and a copy of the pamphlet.

46

The Closing Process

WHAT IS A CLOSING?

The closing process is the final step in buying or selling real estate. Different states have varying ways of handling the closing process. In Georgia, real estate closings occur with the assistance of a real estate attorney who specializes in real estate transactions. Customarily the closing attorney has the responsibility of examining the title to the property, preparing the of closing loan documents, conducting the closing, recording the closing documents, issuing title insurance and dispersing the lender’s and/or purchaser’s funds. In a real estate transaction where a lender is providing financing, the closing attorney represents only the lender. While the actual closing can be conducted in any number of ways, it is the closing attorney who coordinates all parties to assure compliance with contractual obligations generated by the Purchase and Sale Agreement, the lender’s requirements and compliance with state and federal regulations.

WHO DOES WHAT?

From the seller’s perspective, the closing process is usually much simpler than the buyer’s closing process. Once the Purchase and Sale Agreement has been accepted by all parties a copy of that agreement is transmitted to the designated closing attorney and the closing is scheduled. In transactions where the buyer will be borrowing money, you should normally expect at least 30-45 days as the minimum time needed to prepare for a closing. During this time, while buyer and seller work to execute the conditions of the Purchase and Sale Agreement (inspections, loan applications, repairs, etc.) the closing attorney will be busy making sure that clear title exists to the property, that no liens exist and all recorded mortgages are known or satisfied. Additionally, the buyer must document that funds are on hand or obtain financing for the purchase of the property. Lenders typically have a list of attorneys who they will allow to close transactions for them. This means that while the buyer may nominate the closing firm or attorney, the attorney is actually working for the lender, not the buyer. When no lender is used, or the buyer hires an attorney, it is advisable for a seller to obtain representation on their own from a qualified real estate attorney to represent his or her legal interests in the transaction.

DEBITS AND CREDITS

Prior to closing, the attorney will prepare a statement of funds and expenses for each party to the transaction. This uniform document is known as a Settlement Statement and contains a detailed accounting of the entire financial transaction. In Georgia, the closing costs associated with the lender and loan normally fall on the buyer’s side of the transaction unless a prior agreement has been made in the Purchase and Sale Agreement. Seller’s side expenses typically include commissions and marketing expenses for the property, pro-rations and adjustments, payoff costs for first, second and other mortgages, and courier fees. The seller may also be asked to pay for a home warranty if included in the Purchase and Sale Agreement. Typically, the seller’s expenses are paid at closing out of the proceeds received from the buyer, with the seller receiving a single check, net of all deductions. In some circumstances when sellers expenses exceed the proceeds from the buyer, the seller will be required to pay additional sums at closing to complete the sale.

48

WHAT SHOULD I BRING TO CLOSING?

At the closing, the seller should be prepared with the following:

1. All house keys and electronic devices for garage doors, alarm systems, mail boxes, etc.

2. Documentation/receipts required by the Purchase and Sale Agreement for repairs, cleaning, etc.

3. Warranties that might still be in effect.

4. Warranties and receipts on repairs if applicable.

5. Photo identification.

6. Certified check and a personal check book if the seller owes money at closing.

7. Original Power of Attorney, if necessary, drafted by the attorney closing the transaction.

PROBLEMS AT CLOSING

Since the process of closing a real estate transaction involves numerous parties, multiple contractual commitments and lots of money, problems are not uncommon. The saying that “nothing is over until it’s over” is very appropriate with regard to a real estate closing. However, careful planning and diligent attention to the contractual details can alleviate many potential problems before they happen. Making sure that agreed-upon repairs are completed in advance and accepted by the buyer is one key example of careful planning. Your agent is an excellent resource in identifying and eliminating factors that might interfere with your successful closing. Other factors, beyond the control of the buyer or the seller can also affect a closing. Should the loan be unable to be closed on the proposed date, or that the seller fails to satisfy title upon written notice provided before the agreed-upon closing date, either party can extend the contract closing date up to seven days. Once this option is used by either party, the right terminates and is no longer able to be exercised.

49

PRE-CLOSING AND CLOSING CHECKLIST

IMMEDIATELY UPON ACCEPTANCE OF THE CONTRACT

• Follow-up on any terms outlined in the contract (providing homeowner association paperwork, clearance letters, etc.).

• Make any repairs included in the contract.

• Provide the current mortgage loan(s) information and/or equity line of credit information to your agent (this should include your account numbers, contact information for the lender(s) and your personal information).

DURING THE HOME INSPECTION

• You should not be onsite, but your real estate agent may be there as your representative.

• If possible, be accessible by phone to answer any questions.

• Provide your agent with keys to any areas (crawlspaces, attics, etc.) that the inspector will need to access.

• If the property is currently vacant, ensure that all utilities are on prior to the inspection.

ONE TO

TWO WEEKS FOLLOWING THE ACCEPTANCE DATE OF THE CONTRACT

• Review any inspection amendment from the buyer with your agent and begin making agreed repairs.

• Provide your agent with your preferred closing time.

• Reserve your moving truck or schedule your moving service.

• If contractually obligated to provide a termite clearance letter, you should call the company that provided your initial letter prior to listing (this must be done no more 30 days before closing).

TWO WEEKS BEFORE THE CLOSING DATE

• Get a change of address package from the post office.

• Begin notifying family, friends, debtors, etc. of address change.

• Begin collecting information to pass on to the new owner (receipts for appliances, warranty information, owner’s manuals, repair and contractor contact information and dates of service).

50

ONE WEEK BEFORE THE CLOSING DATE

• Call your utility companies to schedule the final readings and the disconnect dates.

• Get directions to closing attorney’s office from your real estate agent.

• Collect receipts and information in relation to the work done to satisfy the inspection amendment and give copies to your real estate agent.

DAY BEFORE CLOSING

• Review the HUD 1 Settlement Agreement to verify that the terms of the contract are correct and pay special attention to the line items for water bills, homeowner association dues and mortgage balances.

• If you have any concerns, discuss them with your agent.

• If there is a chance of any dispute, your agent will advise you to bring proof of payment to the closing.

DAY OF CLOSING

• Bring a photo ID and any documents requested by the closing attorney or either real estate agent.

• Bring your checkbook, just in case there is a small item that needs to be handled on the spot (this is usually not necessary, but it’s always nice to have that option).

• Bring updated termite clearance letter, if required by contract.

• Give the new owner your forwarding address and phone number in case anything is accidentally sent to you at the old address.

51

The Moving Process

MOVING CHECKLIST

EIGHT WEEKS BEFORE MOVING

• Call several movers for estimates. Remember, on-site estimates are always more accurate.

• Be sure to get references from prospective movers.

• Once you’ve chosen your mover, discuss costs, packing, timing and insurance.

• Create a “move file” to store important information and collect receipts for moving-related expenses.

• Ask the Internal Revenue Service for information about tax deductions on moving expenses and what receipts you will need to keep.

SEVEN WEEKS BEFORE MOVING

• Prepare an inventory of everything you own. Divide this inventory into three separate categories: (1) items to be handled by the mover, (2) items to be handled by yourself, and (3) items to be left behind.

• Stock certificates, wills and other one-of-a-kind items (jewelry, photos and home videos) are difficult or impossible to replace. Plan to carry them with you instead of packing them.

• Two good ways to rid yourself of items no longer needed: (1) host a garage sale or (2) donate to charities. These two techniques can help you to raise a little cash or serve as a tax deduction.

• Arrange for disposal of items not sold or donated.

• Contact your insurance agent to transfer property, fire, auto and medical insurance.

• Organize dental and medical records. Be sure to include prescriptions, eyeglass specifications and vaccination records.

• Inquire about changes that may occur in your auto licensing and insurance when moving. Notify your children’s school(s). Make arrangements for records to be forwarded to the new school district.

SIX WEEKS BEFORE MOVING

• Contact any clubs or organizations you are associated with for information on transferring, selling or ending your memberships.

• Start becoming acclimated to your new community. Familiarize yourself with your new shopping districts, location of hospitals, police and fire departments. Contact the Chamber of Commerce or Visitor’s Bureau to request any desired information on schools, parks and recreation, community calendars and maps.

52

FIVE WEEKS BEFORE MOVING

• Start including your children in the process. Make it exciting and fun by having your kids do some of their own packing and labeling.

• If you plan to do any part of the packing, start collecting suitable containers and packing materials.

• If no longer required, cancel local deliveries.

• If you have pets, call your new township to determine if there are any specific requirements for pet ownership. In addition, transfer veterinarian records.

• Register your children in their new schools.

• Check on specific medical forms required for Georgia schools that need to be filled out.

FOUR WEEKS BEFORE MOVING

• If you are moving out of a multi-story building, contact building management to inquire about scheduling your move date and time. Certain buildings may have date and or time restrictions as to when moving can be done. Remember to keep this in mind when planning to move, especially if you are doing your own packing. If you cannot finish packing by the move-in day and time allotted to you, you can accumulate additional costs.

• Contact your moving company to schedule your move date. It is always easier to change your move date than to reschedule at the last minute.

• Visit USPS.com to fill out a change-of-address form. Notify magazine subscriptions, stocks, mutual funds, banks, credit card companies, newspapers, doctors, lawyers, accountants, REALTORS®, state and federal tax authorities, workplaces, schools, alma maters, your voter registration office and motor vehicle bureau of your change of address. Anything mailed to you the month before you move, insert a change-of-address card with the effective date.

• Close any local charge accounts.

• Make airline and hotel reservations (if necessary).

• Notify insurance companies of your move. Transfer all insurance on your home and possessions.

• Contact utilities for disconnection or transfer (electric, gas, phone, cable, etc.). If possible, be certain to still have them connected on moving day. Arrange to have them disconnected from your present home or schedule a last reading after your scheduled move-out.

53

THE MOVING CHECKLIST (CONT.)

THREE WEEKS BEFORE MOVING

• If necessary, arrange for a babysitter to watch your children on moving day. You may need someone to keep your children occupied and make sure they remain safe during the busy loading process.

• While you are sorting through your belongings, remember to return library books and anything else you have borrowed. Also, remember to collect all items that are being cleaned, stored or repaired (clothing, shoes, furs, watches, etc.).

TWO WEEKS BEFORE MOVING

• Call ahead to have utilities connected at your new home.

• Make final packing decisions. Start packing items you don’t use often.

• Clean and clear your home, including closets, basements and attics.

• Call your bank to find out how to transfer your bank accounts.

• Each year, many people move without clearing their safety deposit boxes. Do not be one of them.

• You should carry valuables with you. If you have hidden any valuables around the house, be sure to collect them before leaving. Some state laws prohibit the moving of house plants. Consider giving your plants to a friend or local charity.

• Plan meals that will use up the food in your freezer and refrigerator.

• Have your automobile serviced if you are traveling by car.

• Transfer all current prescriptions to a drugstore in your new town, if needed.

• Dispose of flammable items such as fireworks, cleaning fluids, matches, acids, chemistry sets, aerosol cans, paint, ammunition and poisons, such as weed killer.

• Drain all the oil and gasoline from your lawn mower and power tools to ensure safe transportation. Refer to your owner’s manual for specific instructions.

ONE WEEK BEFORE MOVING

• This is your week to tie up loose ends. Check back through this guide to make sure you have not overlooked anything.

• Your moving company should have provided you with various labels for your goods. These can include “Do Not Load.” “Load First,” “Load Last” and “Fragile.” Take special care to label your goods appropriately.

• Pack your suitcases and confirm your family’s travel arrangements (flights, hotel, rental cars, etc.). Try to keep your plans as flexible as possible in the event of an unexpected change of schedule.

• Make sure your moving agent knows the address and phone number where you can be reached if you are not going directly into your new home.

• At least one day before moving, empty, defrost and clean your refrigerator and freezer. If necessary, prepare your stove to be moved. Try using baking soda to get rid of odors.

• Prepare a “Trip Kit” for moving day. This kit can contain items such as snacks, beverages and games for the kids to keep them occupied during the move. If you are stopping overnight, be sure to pack items such as toothbrushes and other essentials you will need while your belongings are in transit.

• Plan on returning rented cable receivers.

54

MOVING DAY

• Strip your beds, and make sure the bedding goes into a “Load Last” box.

• Make sure to be on hand when the movers arrive. It is important that an adult be authorized to take your place if you are unable to be present at any time while the movers are there. Let the agent know to whom you have given this authority. Be sure that your chosen representative knows exactly what to do. Remember – this person may be asked to sign documents obligating you to charges.

• Confirm the delivery date and time at your new address. Write directions to your new home for the van operator, provide the new phone number and include cell phone numbers where you can be reached in transit. Make sure to take along the destination agent’s name, address and telephone numbers.

• Always try to spend as much time with the mover as possible. If you have special instructions, like what to load first and last, make sure it is explained to your mover. Communicate well with the movers. If you choose to have your mover handle your valuables or other fragile goods, tell the mover in advance.

• When the van operator arrives, review all details and paperwork. Accompany the driver as he or she inspects and tags each piece of furniture with an identifying number. These numbers, along with a detailed description of your goods and their condition at the time of loading, will appear on the inventory sheets.

• It is your responsibility to see that all of your goods are loaded, so remain on the premises until loading is completed. To ensure that nothing gets left behind, always do a final inspection of the premises. Do not sign any releases without completing this inspection.

• If you get to the destination before the mover, be patient. They might have encountered traffic or some other type of delay.

• Since you will probably want to clean before the furniture is unloaded, make sure your vacuum is packed last, so it can be unloaded first.

55

THE MOVING CHECKLIST (CONT.)

MOVE-IN DAY

• The van operator will contact you or the destination agent 24 hours prior to the expected arrival time. This allows time to locate you and arrange for unloading. If for some reason you cannot be reached, it is then your responsibility to contact the destination agent.

• Be sure you are there when the movers arrive. Plan to stay around while they unload in case they have any questions. If you cannot be there personally, be sure to authorize an adult to be your representative to accept delivery and pay the charges for you. Inform the destination agent of your chosen representative’s name. Your representative will be asked to note any change in the condition of your goods noted on the inventory at the time of loading, and to note any items missing at the time of delivery.

• Have payment on hand for your moving charges. Unless other billing arrangements were made in advance, payment is required upon delivery in cash, traveler’s checks, money order or cashier’s check. Most of the time, personal checks are not accepted.

• Check to make sure the utilities have been connected, and follow up on any delays.

• Confine your pets to an out-of-the-way room to help keep them from running away or becoming agitated by all of the activity.

• It is a good idea to review your floor plan so you can tell the movers where to place your furniture and appliances. Plan to be available to direct them as they unload. To prevent possible damage, televisions, stereos, computers, other electronic equipment and major appliances should not be used for 24 hours after delivery, allowing them to adjust to room temperature

• GET SOME REST AND ENJOY YOUR NEW HOME!

AFTER THE MOVE

• Get new driver’s licenses, library cards and voter registration cards.

• Walk and drive around your neighborhood and community to orient yourself and your family.

56

PACKING LIST BY ROOM

Cupboards

Closets

ROOM CONTENTS BOX NO. KITCHEN

Drawers

Other: ______________________

Other: ______________________

DINING ROOM

China Cabinet or Hutch

Light Fixture(s) and Lamp(s)

Table (s) and Chair(s)

Other: ______________________

Other: ______________________

LIVING ROOM

Bookcase(s) and Content(s)

Entertainment Center

Stereo, TV, DVD, etc.

Knickknacks and Artwork

Lamps

Couch, Chair(s) and Table(s)

Other: ______________________

Other: ______________________

FAMILY ROOM

OWNER’S BEDROOM

Entertainment Center

Stereo, TV, DVD, etc.

Knickknacks and Artwork

Lamps

Couch, Chair(s) and Table(s)

Other: ______________________

Other: ______________________

Closet

Dresser and Contents

Bed, Dresser, Night Stands and Desk

Other: ______________________

Other: ______________________

58

ROOM

BEDROOM NO. 1

CONTENTS BOX NO.

Closet

Dresser and Contents

Bed, Dresser, Night Stands and Desk

Other: ______________________

Other: ______________________

BEDROOM NO. 2

STUDY / OFFICE

Closet Dresser and Contents

Bed, Dresser, Night Stands and Desk

Other: ______________________

Other: ______________________

Computer Equipment: CPU, Monitor and Printer

Desk and Contents

Bookshelves and Contents

File Cabinets and Contents

Other: ______________________

Other: ______________________

BATHROOM NO. 1

Cupboards and Contents

Linens and Towels

Knickknacks and Wall Hangings

Other: ______________________

Other: ______________________

BATHROOM NO. 2

Cupboards and Contents

Linens and Towels

Knickknacks and Wall Hangings

Other: ______________________

Other: ______________________

59

ROOM

BATHROOM NO. 3

PACKING LIST BY ROOM (CONT.)

CONTENTS BOX NO.

Cupboards and Contents

Linens and Towels

Knickknacks and Wall Hangings

Other: ______________________

Other: ______________________

ATTIC

GARAGE

BASEMENT

Trunks Boxes

Other: ______________________

Other: ______________________

Yard Equipment and Garden Tools

Home Maintenance Equipment and Tools

Other: ______________________

Other: ______________________

Cupboards and Shelves

Knickknacks and Wall Hangings

Other: ______________________

Other: ______________________

60

Notes

61

AFH Insurance

AFH Insurance, LLC is a full-service, independent agency and preferred service provider of Atlanta Fine Homes Sotheby’s International Realty, representing a carefully selected group of national and regional insurance companies. Our independence allows us the flexibility to shop and compare a wide variety of carriers.

Committed to exceptional service, our goal is to exceed the expectations of our clients across Metro Atlanta, and at all price points. We strive to maximize coverage, minimize cost and offer personalized solutions made specifically for you and for your overall protection.

Available Products:

Home, Auto, Umbrella, Valuable Articles, Flood, Rental Property, Vacant Home, Motorcycle, Watercraft

Our agency also offers business, health, disability and life insurance. Contact us to learn more.

John Sahnger

Insurance Agent | 678.553.5294

jsahnger@afhnsure.com

afhnsure.com

325 River Valley Road NW, Atlanta
Buckhead 404.237.5000 3290 Northside Parkway NW, Suite 200 Atlanta, Georgia 30327 Intown 404.874.0300 1555 Peachtree Street NE, Suite 100 Atlanta, Georgia 30309 770.442.7300 1125 Sanctuary Parkway, Suite 400 Alpharetta, Georgia 30009 770.604.1000 1000 Johnson Ferry Road, Building 400, Suite 408 Marietta, Georgia 30068 Cobb
Atlanta
North
atlantafinehomes.com | sothebysrealty.com Sotheby’s International Realty Affiliates LLC. All Rights Reserved. Sotheby’s International Realty® is a registered trademark licensed to Sotheby’s International Realty Affiliates LLC. An Equal Opportunity Company. Equal Housing Opportunity. Each Office Is Independently Owned And Operated.

Turn static files into dynamic content formats.

Create a flipbook
Issuu converts static files into: digital portfolios, online yearbooks, online catalogs, digital photo albums and more. Sign up and create your flipbook.