


![]()



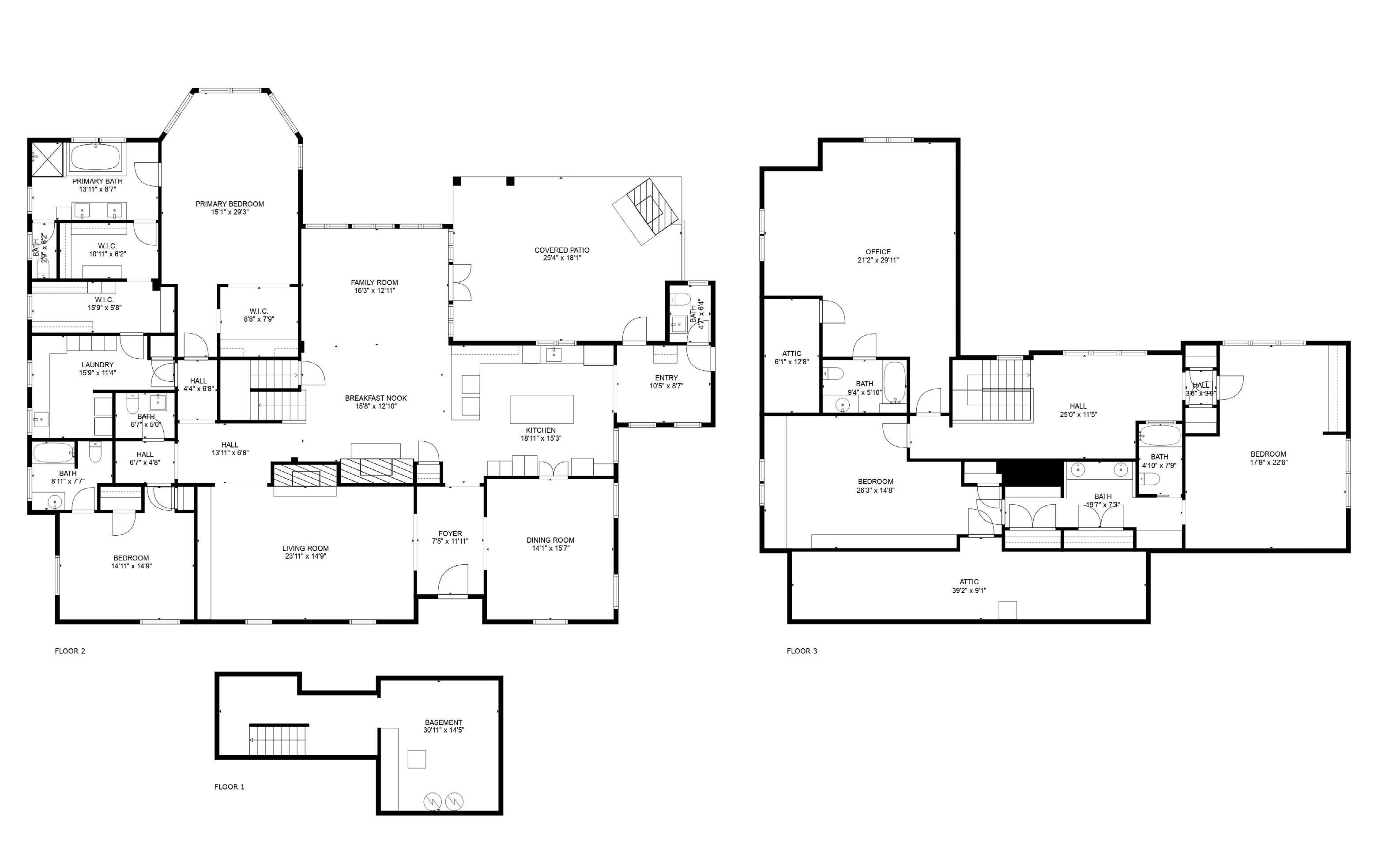
Welcome to 221 Robin Hood, where privacy, scale and timeless design converge in one of Midtown's most coveted neighborhoods. Set atop a hill on .96± acres—the largest lot in Sherwood Forest—this reimagined residence offers a rare combination of seclusion and sophistication in the heart of the city. Surrounded by mature landscaping and thoughtfully hardscaped grounds, the property is an oasis of calm where greenery frames every view and no neighboring windows peer in. Inside, classic architectural symmetry welcomes you with an elegant dining room to your right and a gracious living room to your left, setting the tone for refined living and effortless entertaining. At the heart of the home, the chef's kitchen opens to a sun-drenched family room with floor-toceiling windows that bring the serene outdoors in. The mainlevel primary suite is a true retreat, featuring bay windows that overlook the lush backyard, a spa-like bathroom, and expansive dual closets with direct access to the laundry room. Upstairs, three spacious bedrooms and a large bonus room offer flexibility for family, work or guests. Travel outside to the crown jewel of the home: a spectacular four-season patio complete with a fireplace, built-in grill, dining area and room to entertain on any scale. This is more than a beautiful home—it's an extraordinary opportunity to own one of Midtown's only acre-sized parcels. A seamless blend of setting, style and soul—all just minutes from Atlanta's best restaurants, shopping and cultural destinations.
5 bedrooms, 4 bathrooms, 2 half bathrooms



























click for virtual tour

