Kiin Thai Sushi restaurant renovations

Page 1


Kiin Thai Sushi At Cambridge

What I have learned

Freelancing on this renovation was a valuable learning experience. I strengthened my skills in design, construction, project management, and real-time problem-solving. From coordinating with contractors to managing budgets and communicating with the owner, this hands-on work prepared me for future projects as a confident and adaptable designer.

GREETINGS!

The brief for Kiin Thai Sushi was to create The renovation blends modern simplicity with warm Thai character. Natural materials, soft lighting, and clean lines create a calm, welcoming space. Inspired by Japanese minimalism and Thai hospitality, the design focuses on comfort, flow, and visual balance—especially around the new bar feature.

Before renovation, Kiin Thai Sushi felt outdated—dark, cramped, and lacking flow. During my first site visit, I took detailed measurements and photos to assess its potential. A major design shift came when the owner requested a full bar, which required reworking the entire front zone. I redesigned the layout to improve circulation, storage, and seating while keeping a balanced, cohesive look. These early decisions shaped the overall transformation, guiding upgrades in layout, lighting, and materials within the project’s long timeline and tight budget.

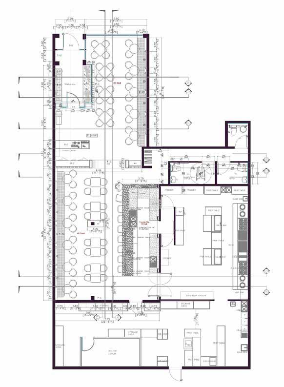
Exsiting Plan

Construction Administration

To complete the project as planned, we needed to rebuild the existing structure. I went to meetings every week with the owner, contractors, and other professionals to talk about the project's progress and deal with any problems that arose. I also checked and approved the materials and products used in the construction.

Phase 1: Site Clearing

These photos capture the cleared space before construction began. With furniture and decor removed, I could assess site limitations, take accurate measurements, and prepare for a full redesign.

Before

Phase 2: Construction Coordination & Design Adjustments

Construction began with steel framing and major layout changes. I visited the site frequently to coordinate with the contractor and make adjustments

When the arch framing didn’t match the drawings, I identified the issue and coordinated directly with the contractor using sketches and translation tools. I adjusted the framing on-site to preserve the original design, showing flexibility and fast problem-solving under pressure.

Phase 4: Clean Handover (Pre-Furnishing)

Rising material costs led to value engineering. I reduced scope while preserving the concept—making on-site design changes and visual notes to keep the vision intact.

Framing mismatch on-site – identified and marked for correction.
Reframed arches aligned with original design intent.
Original elevation drawing used to guide construction.
Proposed Floor Plan
Interior perspective showing spatial flow and material palette.
Detailed elevation for wood arch screen and finishes.
Wall feature and seating nook with warm lighting and wood detailing.
Detailed elevation for wood slat feature wall and integrated bench.

Detailed elevation showing wood panel layout and dimensions.

3D view illustrating the rhythm and materiality of the wood paneling pattern.

Design Development Process

While studying for my Master of Architecture at Wentworth Institute of Technology, I was also deeply involved in this project. Managing both school and real-world construction was challenging but incredibly rewarding. This page captures moments from that journey—sketches, redlines, site visits, material samples, and meetings. It became a long-term effort, evolving over two years until the project was finally completed.

Balancing my academic work with hands-on design and construction taught me how to adapt, solve problems on the fly, and communicate clearly with contractors and clients. Every mark-up and meeting helped shape the space and strengthen my confidence as a designer.

Thank you

Turn static files into dynamic content formats.

Create a flipbook
Issuu converts static files into: digital portfolios, online yearbooks, online catalogs, digital photo albums and more. Sign up and create your flipbook.
Kiin Thai Sushi restaurant renovations by Asmapon Somruyparzead - Issuu