


Brossard, J4Z 3V4
Le 9935, rue de Châteauneuf à Brossard est un immeuble de bureaux offrant des espaces fonctionnels et flexibles adaptés à une variété d’usages professionnels. Sa configuration efficace favorise une organisation fluide des activités quotidiennes, tandis que son emplacement stratégique sur la Rive-Sud assure un accès rapide aux principaux axes routiers et aux pôles commerciaux à proximité. La propriété constitue une opportunité idéale pour les entreprises recherchant accessibilité, fonctionnalité et visibilité dans un secteur d’affaires établi.
Superficie du bâtiment
Nombre d’espaces







Situé au cœur du secteur industriel de Brossard
Accès rapide aux autoroutes 10 et 30
À quelques minutes du pont Samuel-De Champlain
À environ 4 km du station REM Brossard
À proximité du Quartier DIX30 et des services
Excellente accessibilité vers Montréal et la Rive-Sud
Stationnement disponible sur place


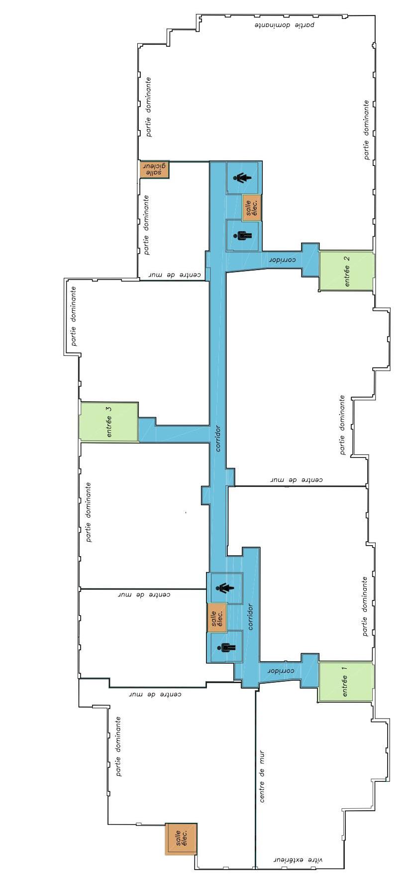
Plan d’étage | Rez-de-chaussée (RDC)

Local RDC-2
2 936 pi 2
AVIS DE NON-RESPONSABILITÉ
Services immobiliers Asgaard Inc., 2026. Tous droits réservés. Les renseignements contenus aux présentes proviennent de sources que nous jugeons fiables. Toutefois, nous ne faisons aucune déclaration ni ne donnons aucune garantie quand à l’exactitude desdits renseignements.

POUR PLUS DE RENSEIGNEMENTS :
LINDA NG
Vice-présidente principale
LAURIE CHARRON
Associée

Courtier immobilier lng@asgaard.ca
AVIS DE NON-RESPONSABILITÉ

Courtier immobilier commercial lcharron@asgaard.ca
Le présent document a été préparé par Services immobiliers Asgaard Inc. à des fins d’information générale et de marketing uniquement. Aucune déclaration ni garantie, explicite ou implicite, n’est faite quant à l’exactitude, l’exhaustivité ou la fiabilité des renseignements qu’il contient. Toute partie intéressée est invitée à effectuer sa propre vérification indépendante des informations présentées.
Services immobiliers Asgaard Inc. décline toute responsabilité quant aux pertes ou dommages pouvant découler de l’utilisation du présent document. Cette publication est la propriété de Services immobiliers Asgaard Inc. et/ou de ses concédants et est protégée par le droit d’auteur. © 2026. Tous droits réservés. Cette communication ne vise pas à causer ni à entraîner la rupture d’un mandat de courtage ou de représentation existant.
SERVICES IMMOBILIERS ASGAARD INC. AGENCE IMMOBILIÈRE | asgaard.ca 630, rue Saint-Paul O., bureau 500, Montréal, Québec, H3C 1L9 | T. 514 729-8484