


![]()



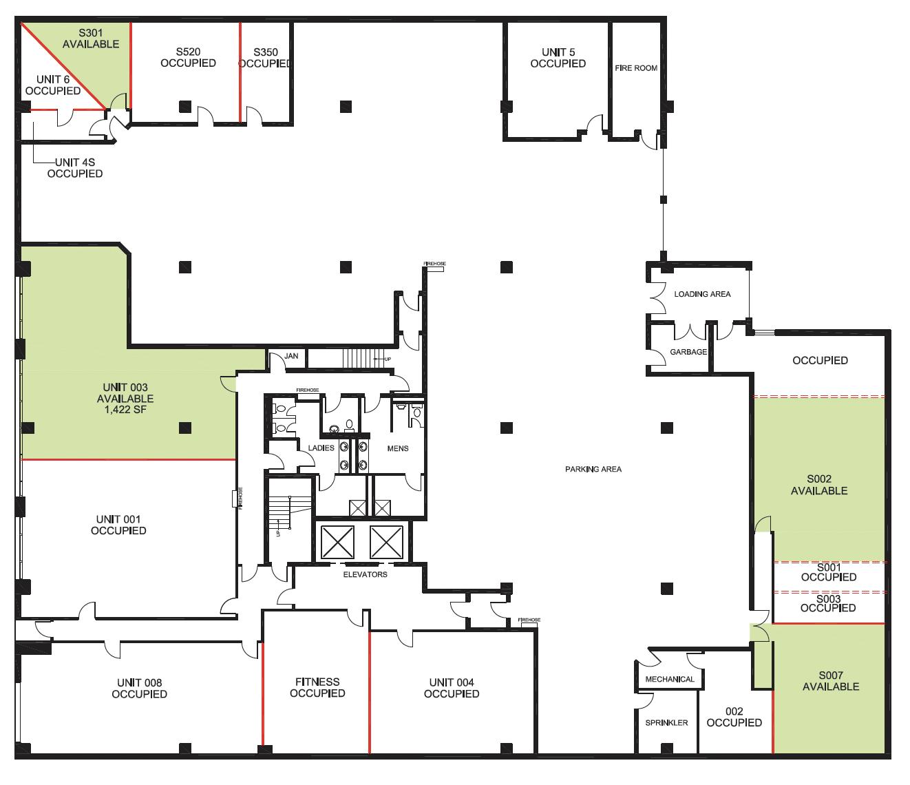
The building is located on the northwest corner of Hunt Club and Dazé Street, offering high visibility; and is located on a landscaped site of approximately 17,000 square meters. The building is a ten minute drive to the airport, 15 minute drive to the downtown core, walking distance to theatres, shopping and restaurants.


























JOHN ESPOSITO
Vice President, Broker of Record (Ontario) Asgaard Real Estate Services Inc. jesposito@asgaard.ca


MAX FRANCISCHIELLO, MBA President Chartered Real Estate Broker maxf@asgaard.ca
ASGAARD REAL ESTATE SERVICES INC. | asgaard.ca 160 Elgin, Suite 1800, Ottawa, Ontario, K2P 2P7 | T. (613) 565-4848