Beyond the white - Rehabilitation center for autism - Asal Rababah

Page 1

Asal Rababah 2 | Page
BEYOND THE WHITE 3 | Page

Beyond the white Rehabilitation center for autism

Asal Rababah

Graduation Project 1

Department Of Architecture

College Of Architecture & Design

Jordan University of Science and Technology

First Semester 2022-2023

Prepared By Asal Rababah 131698

Supervisor Dr. Nermeen Dalgamoni

2o22

Asal Rababah 4 | Page
BEYOND THE WHITE 5 | Page

Acknowledgment

"If you love your work, if you enjoy it, you're already a success."

First and foremost, Iwould liketoshow my deepest gratitude tomy supervisor, Dr.Nermeen Dalgamoni, who has provided me with valuable guidance in every stage of this project.

Secondly, I have been lucky to have my family around, checking on me and celebrating my little achievements, so thank you.

Iwouldalsoliketothankmyfriendsand every person who has been with me on this journey. Thank you for making this such a special journey.

Finally, I am grateful for every moment ofthisjourney,duringwhich Ilearneda lot and created many moments and memories. Thank you to everyone who shared these moments with me.

Asal Rababah 6 | Page
BEYOND THE WHITE 7 | Page

Abstract

AutismhasspreadrapidlyinJordanand isincreasingatagreaterratecompared to previous years. According to the CDC, Jordan has reached the seventh rank in the world in the incidence of autism with percentage of 92.10 per 10k children. About 1 in every 100 children are diagnosed with autism spectrum disorder in 2022.

The main reason for this increase is the lack of health and educational centers that serve this group and educate the community about what autism is and how it is possible to interact with an autistic person.

Wemustrememberthatwearelooking for sustainable community, where every group of it have the same opportunity in life. Trying to give this group of community the right to access education,treatment,socializing,bean active member of the community, and increases the awareness about autism and it different spectrums.

As an architect, it is also my duty to work on improvingsociety and begin to fill in the gaps in it. Architecture has a great power that can affect the way we interactwiththeenvironmentandwith people This project aims mainly to create a healthy, friendly environment capable of treating autism, and also to educate people and parents about autism to help both groups coexist together.

Asal Rababah 8 | Page
BEYOND THE WHITE 9 | Page
Asal Rababah 10 | Page Contents Introduction .................................................................................................................. 14 Beyond the white 16 Why autism? 17 Autism 20 Challenges 22 How it is help? ..................................................................................................................... 24 Users.................................................................................................................................... 25 Site 28 1.Irbid analysis............................................................................................................... 30 2.Site analysis ................................................................................................................ 31 Why Irbid? 33 Irbid ..................................................................................................................................... 34 Environmental aspect.......................................................................................................... 38 Demographics...................................................................................................................... 40 Access to services 42 Access to Public utility 44 Planned Infrastructure 48 Land use............................................................................................................................... 50 Public facilites...................................................................................................................... 51 Site selectin criteria ............................................................................................................. 52 Location ............................................................................................................................... 53 Site 56 Location 58 Context 60 Access to Public facilities..................................................................................................... 61 Maps of the site................................................................................................................... 63 Dimension............................................................................................................................ 64 Topography 65 Traffic 67 Temperature & direction 68 Sun and wind movements 69 Strength and weakness ....................................................................................................... 70 Case studies................................................................................................................... 72
BEYOND THE WHITE 11 | Page The Pears Centre for Autism 74 Caudwell International Children’s Centre for autism 110 Advanced School 134 Spectrum autism center (proposed project)..................................................................... 152 LEARN, PLAY, THRIVE (Thesis Project | 2020) ................................................................... 170 Inside Out…Centre Pompidou ........................................................................................... 188 Utah Valley University Autism Center 202 Alice in Wonderland (proposed) 218 Social Sensory Architecture for Children with Autism 234 Program ...................................................................................................................... 242 The objectives.................................................................................................................... 246 The site .............................................................................................................................. 251 The User............................................................................................................................. 253 Autistic child experience 259 Community visitor experience 261 The zones 263 Organization ...................................................................................................................... 265 Initial spatial diagram ........................................................................................................ 278 Concept ....................................................................................................................... 292 Concept 294 Design philosophy 296 Spatial diagram 298 Organization 300 schematic plan................................................................................................................... 304 3D layering......................................................................................................................... 306 Schematic section 308 user experience 310

list of figures

Figure 1: Jordan Map

Figure 2: Characteristic of ibid –photoshop created by the author

Figure 3: Irbid City

Figure 4: Demographics of Irbid City / Personal Work Based on Department of Statistics Data-Jordan.

Figure 5: population density in Irbid

Figure 6: Refugees density in Irbid

Figure 7: Access to services in Irbid

Figure 8: Access to Recreational facilities

Figure 9: Access to Healthcare facilities

Figure 10: Access to Commercial activities

Figure 11: Access to Educational facilities

Figure 12: planned infrastructures in Irbid city

Figure 13: Accessibility in Irbid city

Figure 14: land use in Irbid city

Figure 15: Public facilities in Irbid city

Figure 16: Site selection criteria –photoshop created by the author

Figure 17: Site selection – Irbid - in Bani Obeid District -Residential zone

Figure 18: Site selection criteria –photoshop created by the author

Figure 19; Site location and accessibility.

Figure 20; Site location and accessibility.

Figure 21; Spaces that surround the site

Figure 22: Accessibility to services

Figure 23: Context and views

Figure 24: Maps Theory

Figure 25: Dimension of the site

Figure 26: sections of the site by google earth.

Figure 27: Main Street and views

Figure 28: Traffic maps of the site.

Figure 29: Temperature and Wind Direction.

Figure 30: Sin and wind direction.

Figure 31: SWOT analysis.

Figure 32: The Pears Centre for Autism

Figure 33: The Pears Centre for Autism

Figure 34: Accessibility to the project.

Figure 35: Site plan from google earth

Figure 36: Context from google earth

Figure 37: Site plan component

Figure 38: Site plan from google earth.

Figure 39: 3D view of the project.

Figure 40: Zoning and organization

Figure 41: services of the plan.

Figure 42: Floor plans (a) ground floor plan, (b) First floor.

Figure 43: user’s movements

Figure 44: Floors section.

Figure 45: Circulation system.

Figure 46: vegetation on the site

Figure 47: outdoor areas

Figure 48: Elevation and Form Design

Figure 49: Sustainable materials

Figure 50: sustainable section.

Figure 51: Interior design elements

Figure 52: Materials used

Figure 53: Materials and Colors

Figure 54: interior design elements

Figure 55: Interior Design Elements

Figure 56: Caudwell International

Children’s Centre for autism

Figure 57: Caudwell International

Children’s Centre for autism

Figure 58: Site plan of the project

Figure 59: context and surrounding from google earth

Figure 60: the main two courtyard and two sections

Figure 61: circulation system

Figure 62: zoning of the floors

Figure 63: Roof ratio

Figure 64: Structure used

Figure 65: courtyard sections

Figure 66: structure design elements

Figure 67: Elements of interior spaces and playground areas

Figure 68: Elements of interior spaces

Figure 69: Advanced School

Figure 70: sensory garden

Figure 71: Accessibility to the project.

Figure 72: Site plan from google earth

Figure 73: site plan from google earth

Figure 74: zoning, circulation and greenery

Figure 75: elevation and form design

Figure 76: outdoor design elements

Figure 77: Spectrum autism center (proposed project)

Figure 78: Spectrum autism center (proposed project)

Figure 79: design composition

Figure 80: key elements of the design

Figure 81: form generation

Figure 82: Zoning of the project

Figure 83: Circulation system and user’s movements

Figure 84: Sustainable Section

Figure 85: : farm land

Figure 86: Elevation Design

Figure 87: outdoor court

Figure 88: Top view, sensory garden

Figure 89: sensory garden

Figure 90: site plan from google earth

Figure 91: site from google earth

Figure 92: zoning diagram and composition

Figure 93: the Maine zones of the garden

Figure 94: view of the garden and its elements

Figure 95: Centre Pompidou

Figure 96: Centre Pompidou

Figure 97: Design sketch.

Figure 98: program (a) project percentage of the site, (b) outdoor court, (c) zoning.

Figure 99: Color code system

12 | Page
Asal Rababah
99 101 103 104 108 110 112 114 119 120 121 122 124 124 125 127 128 132 134 136 137 138 143 145 147 150 152 155 157 158 159 161 162 164 164 165 168 170 172 173 174 179 181 189 186 188 191 193 195 27 32 35 37 39 39 41 42 43 44 45 46 47 49 50 53 54 56 57 58 59 60 61 62 63 64 65 66 67 68 72 74 76 77 78 80 81 83 85 86 87 88 88 89 90 91 93 95 96 97

Figure 100: Materials used.

Figure 101: Structure System

Figure 102: Utah Valley University Autism Center

Figure 103: Utah Valley University Autism Center

Figure 104: project zones.

Figure 105: floor plans (a) ground plan (b) first plan

Figure 106: interior design components

Figure 107: interior design components

Figure 108: materials and colors used

Figure 109: Alice in Wonderland (proposed)

Figure 110: key elements of the design

Figure 111: zones of the design

Figure 112: zones of the design

Figure 113: circulation system of the project

Figure 114: Areas where children can escape to and explore

Figure 115: Different areas of the garden

Figure 116: vegetable mapping

Figure 117: Design elements and principle.

Figure 118: (a) Farming zone, (b) Drawing wall.

Figure 119: Spectrum autism center (proposed project)

Figure 120: Design elements.

Figure 121: Visual and colors elements

Figure 122: Autism Characteristic

Figure 123: Autism Cases.

Figure 124: Site Forces.

Figure 125: Personal space for autism.

Figure 126: Autistic user

Figure 127: Public users

Figure 128: Autistic experience

Figure 129: Community visitor experience

Figure 130: Zones matrix and percentage.

Figure 131: Main zones area.

Figure 132: Relationship and main circulation.

Figure 133: Hierarchy of zones

Figure 134: Diagnosis Zone area and matrix

Figure 135: Main relationship between spaces

Figure 136: the zone area and matrix.

Figure 137: Main relationship between spaces

Figure 138: the zone area and matrix.

Figure 139: Main relationship between spaces

Figure 140: the zone area and matrix.

Figure 141: Main relationship between spaces

Figure 142: the zone area and matrix.

Figure 143: Main relationship between spaces

Figure 144: Initial spatial diagram

Figure 145: the zone area and matrix.

Figure 146: the zone area and matrix.

Figure 147: Sensory parts and location

Figure 148: Zoning on site and environmental forces.

Figure 149: zoning on section – process of journey.

Figure 150 :3D layering- environmental solution.

Figure 151: concept diagram – integration process.

Figure 152: concept diagram

Figure 153: zones relationship and main access, transition zone.

Figure 154: (a) Spatial diagram, (b) sketch section of the experience.

Figure 155: organization elements.

Figure 156: organization principle.

Figure 157 :(a) sequence of spaces (b) Schematic plan.

Figure 158: 3D layering and outdoor spaces

Figure 159: Schematic section and sensory experience.

Figure 160: Integration process.

Figure 161: visual design transition.

BEYOND THE WHITE 13 | Page
288 292 293 295 296 299 301 302 304 306 308 309
195 197 200 202 206 207 209 211 213 216 219 221 221 223 223 223 225 227 229 232 235 237 244 246 248 250 252 254 258 258 260 261 262 263 264 256 266 267 268 269 270 271 272 273 276 378 280 282 284 286
Asal Rababah 14 | Page 01
Introduction ▪ Beyond the white 13 ▪ Why autism? 15 ▪ Autism 17 ▪ Challenges 19 ▪ How it is help? 21 ▪ Users 23 ▪ Site 25
Chapter
BEYOND THE WHITE 15 | Page
"Ibelieveofthepowerofdesignandtherightofeveryonetohaveaccessto thatpowertocreateaworldwhereourarchitectureistrulyarchitectureforall.
“MagdaMostafa[1]

Beyond the white

The Project is a rehabilitation center and sensory experience aim to give autism people the opportunities to integrate with our community and be an activemember,byprovidethemthe access to services and participation, and expected to rehabilitate autistics by training, treating, educating them and then integrating with society. We trained to design for perfectly capable, able, walking, talking, seeing, speaking, moving, tall man.[1]But what about others?

To create a sustainable community where the integration of all the components can be seen, we must first fill up the gaps within our community.

Autism people are neglected in Jorden, they are not receiving the attention they need. This bringing Jordan in 2022 toreach the seventh rank in the world, with percentage of 92.2% for 10k person, about one person out of 100 people had been diagnosed with autism, which is about 110,000 people have autism in 2022, compare with 8 thousand in 2019. This number is very dangerous.[2]

Jordan has witnessed a significant increaseduringthepastcoupleyearsin this number, and perhaps the most important reasons for that: the pandemic, lack of parent’s awareness of the symptoms, and the lack of government organizations to care for autistic people.[3]

Asal Rababah 16 | Page

Why autism?

Parentsofpeoplewithautismcomplain about the high cost of treatment in private centers because there is a lack ingovernmentcentersforthiscategory in Jordan, and most of it centralized in the capital, make it hard for parents to treat their children. Even these a few centers don’t provide the appreciate environmenttohealingautism,mostof them a residential space! and contain the variety of disability and disorders put us in sensitive situation and create a new problem.[4]

Another reason for parents refuses to treat their children is their ignorance andlackofawarenessofthetruevision of autism. They feel ashamed of having an autistic child and tend to hide him and not treat him!

The noticeable increase in the number of people with autism in the past two years, both locally and internationally, Covid 19 was a major reason that contributed to the increase, as pandemic reduced people’s interaction with each other and with the environment then increased isolation and depression.

Autism Unemployment rate is high and it is from the highest percentge between all disbilites and disordesrs.

Asal Rababah 18 | Page
BEYOND THE WHITE 19 | Page " عاطق لاو ةموكح لا ،يدلب يف دحوتلا لافطلأ معد دجوي لا نم هلفط ةياعر يداملا هعضو لمتحي لا نمو ،صاخ يوذ دحوتلا هيدي نيب نم عيضي فوس [5]”

Autism

Autism is not a disability it's a different ability.Autism spectrumdisorder (ASD) is a neurological and developmental disorder that affects how people interact with others, communicate, learn,andbehave.Althoughautismcan be diagnosed at any age, it is described as a “developmental disorder” because symptoms generally appear in the first two years of life. [6]

If you have met one person with autism, you have met one person with autism. [7]

Autism seen as spectrums, its many cases and types, as each case of autism is different from the others and is considered a special case. Like the spectrums, autism ranges between a hyper sensitive type people which are very intelligent and have super skill to do some stuff, and the hypo sensitive people which are under the intelligent average and need a special care, they may reach a point of disability with some of their senses. The cases betweenhyper andhypo istheaverage intelligent and have less symptoms than other cases.[6]

Asal Rababah 20 | Page
BEYOND THE WHITE 21 | Page
function
Language More skill Sensory Executive
Perception

Challenges

One of the most important issues associated with people with autism is their sensitivity and their extreme effecting to sensory stimuli and the environment, which makes their view of the world different. When autistic enter a space, he focuses in all components, the light, the smell, the colors and all other things. This kind of issue may because they had problems with their senses, autistics find it hard to deal with their senses, put them in harder situation, they freak out from single detail reaching a state of panic, a point of the brain cannot process the information of an environment, they tend to escape from this environment.

Autistic person has always been known for his inability to interact socially or communicate and relate to others, leading to difficulty to forming relationships and friendships. They had problems with communication and expressions, they found it hard to expresswhattheyfeelandwhatexactly they need. [6]

One other thing that characterize an autistic is the repetitive behavior, he could be dong the same thing for couples of hours without break, hey may keep eat and eat without stop!

Autistic people obsess with routine, it organize their life,thismay why a lot of autistic like order and see things in the right position. If you start count to ten and stop in six, this may freak some type of autistic.

Asal Rababah 22 | Page
BEYOND THE WHITE 23 | Page

While this project is working to help people with autism and provide them the service that they need, is also aim to spread awareness about autism, its our duties to let people know the real autism,itiscasesandsymptoms.When they know, they feel and start to help. This is how we help autistics.

Let open the door and help people come together, share feelings and thoughts to create the moments and have a memory.

“Thereneedstobe alotmore emphasis on what a child can do instead of what he cannot do.”

How it is help?

Asal Rababah 24 | Page
BEYOND THE WHITE 25 | Page

Users

The project working to help autistics, and that by provide them the services that they need, at the same time this will never be done if people will not be aware of autism and how to deal with person with autism.

Ifwehelped autistics andprovidethem all the services they need, our duties don’t stop here cause if we don’t reach a point that autistics will integrate with community and start interaction to making friends, autistics will still be isolated from the community!

As I mentioned beyond the white had two target users (autistics and public), autistics include all ages, that the project will be open for them to help them or provide them the opportunities to be part of this project. Public user will participate in different function, the presence of them is not justaboutawarenessandtrainingbutit is go far to contribute the treatment process.

In other hand other users may be: parents of autistic, specialize and staff and other interested people.

Asal Rababah 26 | Page

Autistics

Autistics

Users

Public

Public

Parents

Parents

Specialized

Specialized

BEYOND THE WHITE 27 | Page

Site

Ifwetalkaboutwherethebestlocation for autism center in Jordan, first we need to looking for a site where there the highest number and low services for autism. Second, we looking for appropriate site to achieve the aim of the project, easy to reach, near services, near a hospital, quite zone, surrounding with natural environment.

In Jordan there is about 10 center specializes in autism ,9 of it in Amman and one in Zarqa. And there are many cities still don’t have any facility for autism and this make it difficult for parents to drive all the way back and forth daily, Therefore, they register their children in special needs and disabilities centers, and this creates a bigger problem.

Suggestion site: Irbid – In Irbid there is no specialized center of autism even Irbid had the highest population in Jordan after Amman, parents have to register their children in special needs and disabilities centers with high cost. The suffering of the people in Irbid has increased greatly recently compared to other governorates. The site was chosen close to the main street that connects Irbid, Jerash and Amman, so that it accommodates and serve the largestnumberofpeopleandfacilitates access to it.

Asal Rababah 28 | Page
BEYOND THE WHITE 29 | Page
Figure 1 : Jordan Map
Asal Rababah 30 | Page 02 02 Chapter Chapter 1.Irbid analysis ▪ Why Irbid? 30 ▪ Irbid 31 ▪ Environmental aspect 35 ▪ Demographics 37 ▪ Access to services 39 ▪ Access to Public utility 41 ▪ Planned Infrastructure 45 ▪ Accessibility 46 ▪ Land use 47 ▪ Public facilities 48 ▪ Site selectin criteria 49

2.Site analysis

BEYOND THE WHITE 31 | Page
▪ Location 51 ▪ Site 53 ▪ Accessibility 55 ▪ Context 57 ▪ Access to Public facilities 58 ▪ views 59 ▪ Maps of the site 60 ▪ Dimension 61 ▪ Topography 62 ▪ Street system 63 ▪ Traffic 64 ▪ Temperature & direction 65 ▪ Sun and wind movements 66 ▪ Strength and weakness 67

Why Irbid?

Irbid city has witnessed urban expansion over the past years, which is still in progress, this increase in urbanization followed by increase in thenumberofresidentswhichdemand anincreaseinthefacilitiesandservices. Perhaps one of the most important requirements is the availability of centersforeducationandrehabilitation of people with autism.

Residents of Irbid complain about the lack of centers to treat their autistic children.Mostoftheautismcentersare located in the capital, and parents either have to leave for Amman or enroll their children in centers for people with disabilities at a high cost.

Even these centers do not provide the appropriate environment for treatment, as many call them shelter centers, as it include most of imbalances associated with children, whether mental, psychological, or physical or nervous. Recently some of these centers closed in Irbid.

The suffering of parents due to the lack of any interest in their autistic children is hug, as the situation may reach them either by ending the lives of their children or their lives.

BEYOND THE WHITE 33 | Page

Irbid

One of the most important northern citiesinJordan,withanareaof 1571.71 km2.

Asal Rababah 34 | Page
Figure 2: Characteristic of ibid –photoshop created by the author
BEYOND THE WHITE 35 | Page

Irbid

Irbidislocatedabout70msnorthofthe capital of Jordan; Amman, and approximately 20 kms south of the Syrian borders. It is considered as the culturalcapital of Jordan andthisname wasgivenaccordingtohowrichthecity is in its historical background and the amount of Ottoman remains that were found from long time ago considering whole buildings, landscapes and other remains.[8]

Irbid is considered the second largest metropolitanpopulationinJordanafter thecapitalAmmanandthethirdlargest city in size after the cities Amman and Zarqa'a with an area of approximately about 1572 sq. And a population of about 1.77 million the city is a major ground transportation hub between Amman-Syria to the north and Mafraq to the east; it's a home to several colleges and universities; Yarmouk university, Jordan university of science and technology and other colleges which makes its atmosphere more suited for college life than a touristic spot.[8]

An incredible fact about Irbid is that it is more active in the night life, and the city center is a home to countless indoor and outdoor cafes and restaurants.

Asal Rababah 36 | Page
BEYOND THE WHITE 37 | Page
Figure 3: Irbid City created by author

Environmental aspect

Irbid is known for its natural conditions as it has the sub-humid Mediterranean part of Jordan with annual rainfall of about 630mm. People who live in Irbid enjoy four full seasons, although the precipitation level is high mainly during the fall and winter. Moreover, the frost is not noticeable during the year, while the summer season is quite hot and dry.[8]

One of the most recognizable characteristics of Irbid is the red soil, that is why sometimes it is called 'The Red Soil City'. Unfortunately, according to the urban distribution among the agricultural lands, the soil started to have some problems such as: aridity andsalinity.Irbidis620mabovethesea level and it is considered as a semi flat city as thehighest spot of the city isthe downtown, the so-called `Tal Irbid' where historical forms the first urban settlementcanbefoundandwherethe city started the expansion [8]

Asal Rababah 38 | Page

Demographics

BEYOND THE WHITE 39 | Page
Figure 4: Demographics of Irbid City / Personal Work Based on Department of Statistics Data-Jordan.[9]

Demographics

Irbid is the second most populated city inJordanPopulation,afterAmmancity. The majority of the population resides withintheadministrativebordersofthe Greater Irbid Municipality., and has the highest population density in Jordan.[10]

The population of Irbid Governorate in 2022 is 974,699 people, of which 493,949 are males and 480,750 are females, with an average age of 24.

Asforthenumberofchildren,thereare 104,015 children between the ages of (10-14), 99,326 children between the agesof(5-9),and97,307childrenunder the age of 4 years. A total of approximately 300,648 child.[10]

Asal Rababah 40 | Page
BEYOND THE WHITE 41 | Page
Figure 5: population density in Irbid [101 Figure 6 : Refugees density in Irbid [10]

Access to services

Water - Irbid depends on rain water, groundwater, or that stored in dams and wells. In Irbid, 54% of Jordan's water resources are collected. About 63% of Irbid's population is connected to the public drinking water network in Jordan. And 99% of the population has access towater sources,andoneofthe most important problems related to obtaining water: poor pumping for the houseandwaterdoesnotreachhomes periodically.[10]

Sewage and waste water - the sanitation service covers 52% of the total population of the governorate, and about 48% of the population of Irbiddependonothermeans(cesspits).

Solid waste management - - Irbid governorate produces approximately 721,504 tons of solid waste annually, which is the highest share in the north region for the year 2016, and it is expectedthatsolidwasteproductionin the governorate will double by 2034.

Electricity and energy - in Irbid governorate there is availability served by electricity and energy.[10]

Asal Rababah 42 | Page
BEYOND THE WHITE 43 | Page
Figure 7: Access to services in Irbid [10]

Access to Public utility

These maps shows the access to the main utilities and the time percentage to reach it.

Asal Rababah 44 | Page
Figure 8: Access to Recreational facilities [10]
BEYOND THE WHITE 45 | Page
Figure 9 : Access to Healthcare facilities [10]
Asal Rababah 46 | Page
Figure 2 : Access to Commercial activities [10]
BEYOND THE WHITE 47 | Page
Figure 3 : Access to Educational facilities [10]

Planned Infrastructure

there are about five projects include: Major Urban Development Projects, Major Transportation and Urban Mobility Projects, Major Water Management Projects, Major Waste Management Projects, Climate Change and Sustainability Projects386 and Storm-water Management Projects387.

Asal Rababah 48 | Page
Figure 4 : planned infrastructures in Irbid city [10]

Accessibility

CityGreater Irbid Municipality is the strategic centre of the Irbid Governorate due to its administrative centre and close proximity to international borders.

BEYOND THE WHITE Page
Figure 13 : Accessibility in Irbid city [10]

Land use

Greater Irbid Municipality’s footprint reached 356 km2 in 2021. The majority of land in Irbid is privately owned; GIM owns only 30 km2 of land within its boundaries, where only 1% of this land is built-up and one third is Haraj lands, which are forest-covered lands owned by the national government (treasury).

Asal Rababah 50 | Page
Figure 14 : land use in Irbid city [10]

Public facilities

The map shows the spatial distribution of the public facilities within administrative boundary including educational, healthcare, religious, commercial, and recreational facilities. Publicfacilitiesaremainlyconcentrated at the city center

BEYOND THE WHITE 51 | Page
Figure 15: Public facilities in Irbid city [10]

Site selectin criteria

Asal Rababah 52 | Page
Figure 16 : Site selection criteria – photoshop created by the author
BEYOND THE WHITE 53 | Page

Location

The site is located in Amman – Jerash –Irbid street ,in a residential zone, surrounding with many facility, and near hospital and parks.

Asal Rababah 54 | Page
Figure 5 : Site selection – Irbid - in Bani Obeid District -Residential zone
BEYOND THE WHITE 55 | Page

Site

The selection of the site was based on many criteria, as shown in the figure

Asal Rababah 56 | Page
Figure 18 : Site selection criteria – photoshop created by the author
BEYOND THE WHITE 57 | Page

Location

The selected site in Irbid, Bani Obeid district , in a residential area and quite zone, the site also chosen with a set back of the main street to get a less traffic and noise zone.

1670 m distance from the main street, about 5m in the car

1670 m distance from the main street, about 5m in the car

Asal Rababah 58 | Page
The street The street
Figure 19: Site location and accessibility.
BEYOND THE WHITE 59 | Page
Figure 6: Site location and accessibility.

Context

The site is surrounding with many facility that serve the neighborhood and the area. From educational, medical, commercial shops, mosques to parks and farms.

Asal Rababah 60 | Page
1 2 2 2 2 2 2 3 3 3 3 4 4 4 4 4 4 5 3 3 5 5 6 6
1.Park 2. Commercial Shop 3. Restaurant 4. Residential 5. School 6. Party Hall
6 6 6 6 6 6 3 3 3 3 7 7 5 5 3 3 5 5 8 8 8 8 8 8 9 9 9 9 9 9
7. Irbid mall 8. Cafe shop 9 Mosque Figure 21; Spaces that surround the site
BEYOND THE WHITE 61 | Page
Access to Public facilities
Figure 22: Accessibility to services

views

The area witnessed a fast urban expansion for last couples of years, and the residential zone in the front street are class A.

Asal Rababah 62 | Page
Figure 23 : Context and views

Maps of the site

BEYOND THE WHITE 63 | Page
Figure 7 : Maps Theory

Dimension

The site s mainly flat with few mountains and valleys, farms capture most of both. the selected site with a low slop.

Asal Rababah 64 | Page
Figure 8 : Dimension of the site
BEYOND THE WHITE 65 | Page
Topography
Figure 9 : sections of the site by google earth.

Street system

As the site I near a main street so, the traffic is mainly high to medium specially in the morning and evening, this traffic is around the street. The traffic on the street front the site is low traffic almost all day time .

Asal Rababah 66 | Page
Figure 10 : Main Street and views
BEYOND THE WHITE 67 | Page Traffic
Figure 11 : Traffic maps of the site.

Temperature & direction

The wind is most often from the west for 10 months, from January 6 to November 9, with a peak percentageof 92% on July26.Thewind is most often from the east for 1.9 months, from November 9 to January 6, with a peak percentage of 37% on January 1.

In Irbid, the summers are long, hot, arid, and clear and the winters are cold andmostlyclear.Overthecourseofthe year, the temperature typically varies from 42°F to 89°F and is rarely below 35°F or above 94°F.[11]

Asal Rababah 68 | Page
Figure 12 : : Temperature and Wind Direction [11]

Sun and wind movements

BEYOND THE WHITE 69 | Page
Figure 13 : Sin and wind direction.

Strength and weakness

The most challenging aspect when design for autism is the noise and distraction elements of the site.

Asal Rababah 70 | Page
Figure 14 : SWOT analysis.
BEYOND THE WHITE 71 | Page

Chapter three

Case studies

Asal Rababah 72 | Page 03
▪ The Pears Centre for Autism 71 ▪ Caudwell International Children’s Centre for autism 107 ▪ Advanced School 131 ▪ Spectrum autism center (Proposed project) 149 ▪ LEARN, PLAY, THRIVE (Thesis Project | 2020) 167
BEYOND THE WHITE 73 | Page ▪ Inside Out…Centre Pompidou 185 ▪ Utah Valley University Autism Center 199 ▪ Alice in Wonderland (proposed) 215 ▪ Social Sensory Architecture for Children with Autism 231

The Pears Centre for Autism

Typology School & Center

Location London, United Kingdom

Architect Penoyre + Prasad

Asal Rababah
Figure 15 :;
[12]
The Pears Centre for Autism
BEYOND THE WHITE
Figure 16 :
The Pears Centre for Autism [12]

Why this case?

As the categories of the proposed project, this case design for autism and design in a way that help children with autism and their families.

The case show that the design of space could really help with teach and treat children with autism, which focused on the connection with natural environment, sustainable design strategiesandonthecirculationsystem within the interior space.

BEYOND THE WHITE 77 | Page

Location

The school located in a quite zone in England, London, UK. In a residential zonewherelessnoiseandtraffic,alsoit is set back from the street. we can notice the greenery site that surrounding the project. which this obviously show the connectivity with nature and the outdoor environments

The surrounding buildings of the project are: two primary school, a farm land, Green Pumping Station and a wood trees land which is part of conservation project.

The land is flat with area of 14000 sq meter and the interior space about 5000sq meter.[5]

Accessibility

From the main street

Asal Rababah 78 | Page
Figure 34: : Accessibility to the project. Figure 17 : Site plan from google earth

Context

1. Residential housing

2. Primary School

3. Small farms

4. Green Pumping Station

5. Highgate Wood

Asal Rababah
18 :
from
Figure
Context
google earth
BEYOND THE WHITE

Site plan

The model is a one piece, a rectangle shape surrounding with some greenery and trees .it also has a small outside court as a play area and the parking is the last component.

This way of design makes it easy to understand, just a few times and student will get the sequence of it.[13]

Asal Rababah 82 | Page
Figure 19 : Site plan component [13] Figure 20 : Site plan from google earth.

School Philosophy

ABA-AmbitiousaboutAutism-Through education we seek to transform the lives of children with autism and the lives of their families.[5]

The design of the school based on the hope that we have to change and fix what we already missed. The simple design and net organization aim to fit the need of people with ASD perfectly. A school that seeks to help autism people to reach a point where it can show to the world the ability and skills that autistic people had.

What special about this school is that it combines an educational area and a training center, as it is the first of its kind in UKthat includesthesefunctions together in 2008. The school was developed over many years in cooperationwith the children’s parents and their vision of what is best and what can become better.[13]

After analysis the main challenges of ASD architects Penoyre and Prasad tried to create the balance for every individual of autism using the difference between what we already know and we are familiar with and the sensory input or what we can call stimulator. One of the biggest challenges faced by the architect was themethodoflinkingtheprojecttothe external environment while maintaining calm.[13

Asal Rababah 84 | Page

The school designed for 80 students with age of (4 – 18) years old, it is capturing the majority, so architects design thebest spacewheretheycould feel comfort, ease to use, simple to process from inside or outside. The design was respectful of the environment and the context in many respects.[13]

BEYOND THE WHITE
Figure 21 : 3D view of the project. [12]

Program

The project is two floors building which organized in different zone referee to the type of project user’s, they are: students, parents, teachers, staff and visitors. The program split in two main zone the first one focused on the students (school) and the other one focused on staff (center). (Headquarters of -ambitious about autism-, a national charity and the treehouse school for autism). [13]

These zones are also reflected in the design in two side the right side for administration zone and the left side forteachingzone.thisorganizationhad been copied in the second floor, so the student doesn’t have to rethink or reunderstandthenewzonesoftheupper level. The students learning zone include class room, workshops, gathering space. Training areas, and also area for life skills environments such as kitchen, bathroom and laundry.” Even back of house areas such as delivery or maintenance have been designed to accommodate opportunistic learning potential for children.[6]The design of this zonewas simple,flexible,repetitivespaceswhich make it easy to use and process. The staff zone includes administration offices, training rooms and shared spaces such as painting and music rooms.

Asal Rababah 86 | Page
BEYOND THE WHITE 87 | Page
Figure 22 : Zoning and organization [13]

Program

The design of this zone was simple, flexible,repetitivespaceswhichmakeit easy to use and process. The staff zone includesadministrationoffices,training rooms and shared spaces such as painting and music rooms.

The rest room was associated with the main program, as we can notice from the figure below, every class room had its bathroom and it is also placed in the main circulation zone and the services areas.

Asal Rababah 88 | Page
Figure 23 : services of the plan.
BEYOND THE WHITE 89 | Page
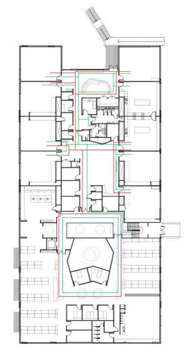
Figure 24 : Floor plans (a) ground floor plan, (b) First floor. [12]

Circulation

The circulation is mainly liner paths which start where the core end, the core divided the circulation as the zoningwhichislocatebetweenthetwo zones, the multipurpose hall located in the heart of the building offer more flexible zone for gathering and other activity. [60

The horizontal circulation had been designed as the main gathering and sharingspace,allservicesareprojected in this zone.

Asal Rababah 90
Figure 26 : user’s movements [13] Figure 25 : Floors section. [13]
BEYOND THE WHITE 91 | Page
Figure 27 : Circulation system.

The transition

The transition from outdoor to word indoor was design smoothly. The outdoor areas play a great role in the concept, because it where student connect with nature. And the outdoor environment and sensory.it is offer many spaces for play, learning and rest and there is an entrance to the second floor from the outdoor area, this creates a cool experience of students and make it easy to transit between spaces. In order to make parents fully aware of the development of their childrenandhowtheyinteractwiththe external environment, a greenery rest area had been added around outdoor court and they also could come and spendtimewiththeirchildreninmiddle of natural environment.

Asal Rababah 92 | Page
Figure 28 : vegetation on the site Figure 47 : outdoor areas

Form

The longitudinal tringle shape what specialized the school with a green inclined roof, The facade design in a way that respect the linear shape,

The windows projected from the two long sides of the rectangle in linearly lined, with the least number of openings on the short sides.” The delicate balance between a lifeaffirmingdegreeofsensorystimuluson the one hand, and calm on the other has remained a key issue in design. “[12]

Asal Rababah 94 | Page
BEYOND THE WHITE 95 | Page
Figure 429 : Elevation and Form Design.

Suitability

The building design with sustainable strategies which ensurethe used ofthe available natural resources, wind, sun and rain. These strategies represented in the use of sun reflectors, skylights which play a big role in daylight and passive cooling and heating system, double ceiling atrium spaces, Louvered on the façade storage direct sunlight and use to block outdoor to ensure there is no distraction while class, Solar energysystem,greenroof,naturaldaylighting, high thermal mass and natural ventilation system. [13]

The passive cooling and heating system happen through the day, in morning summer day the high thermal mass represented with concrete absorb the heatwithsunlighthelpwithcoolingthe innerspacewhereat night skylight play a role with cooling. The heat gain happens through the window that placed all out the building and skylight, the inclined roof shape helps also with daylight and heat gain The building is predictedtouse67%lessenergy10%of the energy will be derived from renewable energy sources (ground coupled air pipes).'

Asal Rababah 96 | Page
BEYOND THE WHITE 97 | Page
Figure 30 : Sustainable materials

Light and view

The daylight and views can be addressed in four categories: skylights, overhangs, double height ceilings, and an open facade. The skylights designed in deafferents size and shape based on the location of it, the function of the space and orientation of the building. Which all of these kinds serve to bring the light into the center and take advantage from natural recourses. The ceilings are double-height where the light wells extend down to the bottom floor. Overhangs provide shade in the summer, and their perforated nature allows for a gradient of daylight yearround. The windows are located in a ribbon around the whole building, making the facade open, and with the aid of shutters and overhangs, they provide distilled views and light. ?[12]

Asal Rababah 98 | Page
Figure 50 : sustainable section. [13]
BEYOND THE WHITE 99 | Page
Figure 51 : Interior design elements

Materials

The materials were chosen in sustainable and friendly strategies and related to context, such as: warm orange brick, the natural timber, glassclad building and a green roof.

The transparency is used to maximize daylight. Steel is used to hold up the transparent elements. [13]

Asal Rababah 100 | Page
BEYOND THE WHITE 101 | Page
Figure 31 : Materials used

Color palate

The color palette seems to correlate to thematerialsused:transparent,earthy, or neutral. The neutral colors are usually grayscale.

The earthy colors are the wood and brickparts.Thetransparentincludethe louvered overhangs and the light wells. The earthy colors seem to be articulated in the facade and also in atrium or shared spaces, highlighting the spaces that serve as links to the outside world. This is shown in wood flooring, wood louvered shutters, and brick used in the facade.

The neutral colors are present in the individual classrooms. All permanent architectural elements in those individualized spacesareneutral:white orgray.Thisincludesthefinishesonthe walls, and the bare concrete. [13]

Asal Rababah 102 | Page
BEYOND THE WHITE 103 | Page
Figure 32 : Materials and Colors

Details

In the classrooms, the space was divided into more than one zone, and lockers or cabinets were used as a separation element. It was also found that the use of rug carpets is useful, whether in defining an area or improving the child's senses, touch or sight. We can also notice the repetition of the idea of multi used space in the shared spaces. the openings were designed with respect for the child’s scale. The cylindrical column was used as a structural element and an appearance element, as it was noted thatchildrenwithautismtendtorotate around it

The used of the double volume in the visual connectivity and for the natural light from the roof.

Asal Rababah 104 | Page
Figure 33 : Interior Design Elements Figure 34 : interior design elements
Asal Rababah 108 | Page

Conclusion

In this case, architect has emphasized the simplicity of the design, which seems to work perfectly with autism cases. less is more, the simple form, simple and net organization of the spaces within the project have shown goodresultsandopportunitieswiththe treatment process. A specially designedcirculationareaasaonezone, where all other services and support areasarelocated,toenhancechildren's activity with others.

Naturally,autisticchildren'sbrainstend to overcomplicate things and that's what gets them into difficult situations, so one of the powerful and crucial elementsofdesignforautismistokeep it as simple as possible.

BEYOND THE WHITE 109 | Page

Caudwell International Children’s Centre for autism

Typology Therapy and Research

Location Newcastle, United Kingdom

Architect James Pass - C4 Projects

Asal Rababah
Figure 535 : Caudwell International Children’s Centre for autism [14]
BEYOND THE WHITE
Figure 36 : Caudwell International Children’s Centre for autism

Why this case?

he Caudwell International Children’s Centre (CICC) is an award-winning in a competition to design for autism. As the categories of the proposed project, this case design for autism and design in a way to help children with autism and their families. The unique location of the project, in the Keele university. Thedesignofthegeometryinamodern way to combine the elements and create an integration system project in a sustainable way.

BEYOND THE WHITE 113 | Page

Location

The unique location of Caudwell international autism center is one of its most important features, which is locate in the campus of Keele university,southernStaffordshire,UK.it issetbackfromthemainstreetinquite zone in a distance from active zone of the university. The area of the project about 6000 sq mt.[14]

Asal Rababah
[14]
Figure 58 : Site plan of the project

In a flat land with area about 6000 sq mt. The access of the project is directly from the main street of the university. The surrounding context of the center is almost natural greenery areas.no building beside it, the keele campus, public park, keele innovation park and some farming land.

BEYOND THE WHITE

Asal Rababah

Context

1. Farms land

2. Greenery areas

3. Parking

4. Harper & Keele Veterinary School

5. Keele university

Figure 37 : context and surrounding from google earth
BEYOND THE WHITE

School Philosophy

The design of this center built in order toreducethetimewaitingoftreatment to help the huge number of autism people and their parents in According to Sky News “The average waiting time tobeassessedforautismisatleasttwo years, and the children who are eventually diagnosed wait on average for four years. The center, set in the groundsofKeeleUniversityin2017,will enablefamiliestogetadiagnosiswithin just six weeks. An early autism diagnosiscanbevitalinhelpingfamilies understandtheir child'sbehavior.”. The design of the form was adapted from thebutterflylogoofthecharity(Client). They used the wings of the butterfly as the mass of the main concept. The aim was to create an environment where children had fun and wanted to revisit without the pressure of feeling they were being assessed. The design epitomizes`inclusivity',withtheunique projectsurpassingtheUK'saccessibility and sustainability standards. The architect tried to work out to how children with sensory and social challenges could move around the building with the least amount of stress. The architect thought It couldn't be just another hospital or health center, it had to be somewhere inspirational. [14]

Asal Rababah 118 | Page
BEYOND THE WHITE

Program

The project's design is based on the autistic spectrum and other neurological disorders.as these illnesses are mainly associated to sensory perception. Project will give them sensory flexibility. [14

] There are two different zones in the building and each one separated from the other. In designing the interior spaces, the architect focused on the two cases of autism: HYPO and HYPER. The project was divided into two parts, one part For HYPO (the first wing) and the other For HYPER (the second wing).[14]

These two masses characterize with innercourtforeach,inordertoconnect the interior space with the outdoor environment. There are a different of height between these two masses, this done in a sustainable purpose, to connect children with outdoor and makethemfeelfree,andthisalsodone tocreatetheshapeofthebutterflywith the inclined celling. A safe place for individuals with autism to go to when they feel overwhelmed and overloaded.

Asal Rababah 120 | Page
BEYOND THE WHITE 121 | Page
Figure 38 : the main two courtyard and two sections

Program

Internally, the building had to reflect the way children with autism like to navigate and move, and to provide a calming sensory experience. The Hypo case required a space with characteristic the opposite ofthespace for HYPER case, which Hypo need to feelfree,comfortable,ahomelydesign, assorted with nature, simple navigation, open spaces and connect withnature.withierHypercaseneedto feel secure, simple and modern design, no sun glare, reduce visual stimulus, private spaces, safe outdoor spaces>[14]

Circulation

Themaincirculationsystemisacircular path which centered around the main to courts, Inside, 360-degree loop corridors discourage children from running and, by going away with harsh, right-angled corners, reduce the anxiety of surprise encounters.

Asal Rababah 122 | Page
Figure 39 : circulation system
BEYOND THE WHITE 123 | Page
Figure 40 : zoning of the floors [14]

Form and materials

The curve and smooth shape give the feeling of relax and less amount of stressunliketherightandsharpangles. The roof of the building needs smooth lines and curves to fits the concept of the butterfly. Skylights to provide natural light for hyposensitive users as theydetestdirectsunlight.Glazingwith shaded louvers to diffuse light

To manage their sensory stimulation, materials choose smooth and secure, suchasvinylfloors,carpet,andcushion panels on walls painted in soft hues. StonePanelTM,amaterialusedtocoat exterior façades to design a structure that looked natural, warm and inviting. The curvilinear shape is both good look andpractical.anaturallyoccurringgrey quartzite with blue undertones that gives the Center afeelingof brightness, warmth, and freshness.[14]

Asal Rababah 124 | Page
Figure 41 : Roof ratio
42
Figure 43 : Design elements
Figure
: Design elements

Structure

the project is a three-story building with structure of columns and beams and frames structure's unique roof of the project done through many processes, and then established a zone below this roof to fit all the structure. The steel roof thus formed compromised a complicated mix of facetted, raking and curved elements fitted within the allotted zone to form the basic steel skeleton onto which the roof finishes could be applied. [14]

Asal Rababah 126 | Page
Figure 44 : Design elements Figure 45 : Design elements Figure 46 : Structure used [14] Figure 65 : courtyard sections [14] Figure 66: structure design elements

Interior design and details

The project includes a variety of space types and forms to meet the functions that are designedforit.Theprojectwill also have an inclusive design and a calmingsensoryexperience.thecurved interior decor and curved furniture's give a feeling of simplicity and relaxation. the floor is vinyl, kids may playonitwithoutrisk.theuseofpurple color is an uplifting and calming color.[14]

The majority of the rooms have natural light, which helps children's feel more at ease, and the height is also appropriate for them to feel unrestricted.

Ground Level Trampoline

Designed for wheelchair users, Carved Boulder from a glacial boulder found in the woodland this feature will provide seating and another great place for children to curl up inside. Spinning Stone Four-ton oval boulder with recessed di-agonal groove and foundation anchor. The boulder height is approximately 2.00m and the diameter is 1.50m. Many children with autism enjoy the motion of spinning something. Smelling Pots Little protected flasks are placed in stainless steel stations and these can be filled with a multitude of Zoflora fragrances. [14]

Asal Rababah 128 | Page
BEYOND THE WHITE 129 | Page
Figure 67: Elements of interior spaces and playground areas Figure 6847 : Elements of interior spaces
Asal Rababah 132 | Page

Conclusion

What if there is a building, provide a space that matches your mood. When it comes to autism, the way they feel are key elements of the design, in this case, architect designed the best program for the two main cases of autism.

courtyard in the inner zone works with connection with the natural environment and is a sustainable strategy. And also helping with calm and relax which is the main principle of the design, we can see the architect also emphasize this with curved shapes and furniture as well as purple color choice in the interior space. the seventh.

BEYOND THE WHITE 133 | Page

Advanced School

Typology School

Location The new Cairo, Egypt

Architect Magda Mostafa

134 | Page
Asal Rababah
Figure 69 : Advanced School [15]
BEYOND THE WHITE
Figure 7048 : sensory garden [15]

Why this case?

As the categories of the proposed project, this case design for autism and design in a way to help children with autism and their families. This design school provide a spital experience for autistic people with outdoor environment in a way to enhance their creativity and improve their skills. This design upon the index development ASPECTSS.

BEYOND THE WHITE 137 | Page

Location

The advance center is located in a suburban area of the Qattameya district, which is part of new Cairo, distant from the pollution of Cairo's urban center. Project is located in the heart of its immediate neighboring residential area, [9] In a commercial planned zone in new Cairo, in a relatively new neighborhood that contains multiple schools andnurseries adjacent to the site as capital international school, and little heroes’ nursery. The project area is flat of topography, there are no different levels upon the surface, also there is hierarchy and harmony in skyline and views due to the same level point but different height peak points.

Accessibility

From the main street

Asal Rababah 138 | Page
Figure 71: Accessibility to the project. Figure 72 : Site plan from google earth

1. Residential Zone

2. American College

3. Mosque

4. Power Station

5. Church

Context

Asal Rababah Figure 73 : site plan from google earth
BEYOND THE WHITE

School Philosophy

This project is done as one of the outcome of Magda Mostafa research aboutautismandwhattheyreallyneed from the community, One of her innovation of theresearch isASPECTSS, which is a design index establishing parameters to create environments favorable for autistic users, Making advancespecialneedseducationcenter –Magda Mostafa a pioneer in this area. [15

This project is based on the main concepts of ASPECTESS, as it contains 7 elements, each element has a special requirement to design for autism. The project provides service to children with autism, as it aims to develop children's abilities,especially theability to social interaction. The project is also based on another goal, which is to increase community awareness of autism and its conditions. The main reason for choosing this site and designinginthiswaywastoavoidnoise or any sensory stimuli that might affect the education and training process withintheproject.Sinceautisticpeople are greatly affected by any sensory input, even if it is simple. [15]

Theideaofintegratingchildrenintothe community was implemented through two methods. The first is through local shops inside the project, and the second is the sensory garden that contains some vegetables and fruits that are shared with the outside community.

Asal Rababah 142 | Page
BEYOND THE WHITE

Program

The spaces in the project are divided based on the type of space and the sensory effects in it, and it is divided into high stimulus areas, low stimulus areas, and the transition area.

Highstimulusareasincludeclassrooms, drawing and music spaces, which are areas of high concentration, while low stimulus areas include treatment and training areas, which need less focus, and the transition zones which are either gardens or playgrounds, located between each of the stimulus areas.

In the sensory garden, there are many experiences for students, perhaps the most important of which is training children on sustainable practices for the environment, such as agriculture, where students can plant, the simple design and how to separate spaces according to the stimulus. The circulation is a straight path in one direction to emphasize the idea of the rotation.[15]

Asal Rababah 144 | Page
BEYOND THE WHITE 145 | Page
Figure 74 : zoning, circulation and greenery [15]

Form and materials

The design of the form relied on more than one shape and in different height, and it also had more than one color for the facade’s material, but most of them tended to be light color to emphasize on calmness and simplicity.

The main materials that had been used is the reinforced concrete all over the facadeindifferentcolors,architectalso created a cavity in the masses in order tointegratethemasswithsomenatural vegetation. This also done as a sustainable strategy. The glass screens to allow break down the sun light into the interior spaces without any heat.

Asal Rababah 146 | Page
BEYOND THE WHITE 147 | Page
Figure 75 : elevation and form design

Details

One of the most important elements of theproject is the pointswhere children connect with the external environment and the community, and it came in different zone, the first of which is the sensory garden and its components, shops, and finally a large swimming pool located inside the building, which isforcompetitionsandintegrationwith the schools that surrounding the project.

Such activities enhance and develops theabilitiesofstudents,andalsomakes theworldseethecapabilitiesofautistic children. In the sensory garden, there are Freestanding concrete walls tohelp children draw and express what is inside them.[15]

Asal Rababah 148 | Page
Figure 76 : outdoor design elements [15]
Asal Rababah 150 | Page

Conclusion

Acoustics: The architect reduced noises and sounds by separating spaces that need quiet from other spaces, and we notice this in the educational area, and materials were used to reduce echoes.

Spatial sequence: This is related to circulation. movement sequence was applied in an easy, simple and routine path, taking into account cases of autism and its characteristics. Escape space: When an autistic child in panic situations,hetendstoescapeandhide. architectprovidedquietspacesforsuch panic and escape cases Compartmentalization: The design of the building with different sections, different functional groups, taking into account the sensory factors.

Transitions: designed to follow the main idea of the project, separating high stimulus areas from low stimulus areas, which are either gardens, corridors, or playground areas.

Sensory Zoning: the spaces were divided and distributed based on their sensory quality not their function, which are areas of high stimulus and low stim-ulus zones.

Finally, safety: the design takes into account the safety of children, so any dangerous elements, such as sharp edges, were eliminated as much as possible.

BEYOND THE WHITE 151 | Page

Asal Rababah

Spectrum autism center (proposed project)

Typology Therapy center

Location Egypt - not specific exactly where

Architect Farah Waleed Farouk

Figure 77 : Spectrum autism center (proposed project16)
BEYOND THE WHITE
Figure
78 : Spectrum autism center (proposed project16)

Why this case?

The Caudwell International Children’s Centre (CICC) is an award-winning in a competition to design for autism. As the categories of the proposed project, this case design for autism and design in a way to help children with autism and their families. The unique location of the project, in the Keele university. Thedesignofthegeometryinamodern way to combine the elements and create an integration system project in a sustainable way.

BEYOND THE WHITE 155 | Page

Site plan

the design done by the combination of different rectangle, trying to integrate the project with outdoor as much as possible.

Asal Rababah 156 | Page
1. Visual Sensory Garden 2. Olfactory Sensory Garden 3. Editable Sensory Garden – Urban Farm 4. Tactical Sensory Garden 5. Auditory Sensory Garden 6. Playground Land
BEYOND THE WHITE 157 | Page
Figure 79 : design composition

School Philosophy

The project was first proposed due to the increasing with autism cases in Egypt, they reached about 800000 people. And males are four times more likelytobediagnosedthanwomen.The project user’s categories as: primary user,theadultandchildrenwithautism and their parents, secondary user, admirative, teacher and therapist., and tertiary user, visitor, security and housekeeping.

The concept is based on the wide autism spectrum where each person is different than the next. Design considerations for those on the spectrum are unique like them. There are 7 main aspects which guide the design process: acoustics, compartmentalization, spatial sequencing, escape space, transition zones, sensory zoning and safety. The form is also based on the actual shape of the spectrum. [16]

Asal Rababah 158 | Page
BEYOND THE WHITE 159 | Page
Figure 80 : key elements of the design [16]

Program and form

The design of the geometry was based on the seven main components of the autism spectrum. architect begin the design in a clear shape, and then began to apply theories to it.

first aspect she started with is compartmentalization by divide the one-piece shape to different parts which are, inpatient, medical, administration, common space, patient's center.

then she applied the second aspect, spatial sequencing, by create an easy and safe navigation within the project. Andthelastmethodtheself-shadingby integrate the inner zone with natural planting.[16]

Asal Rababah 160 | Page
Figure 81 : : form generation [16]
BEYOND THE WHITE 161 | Page
Figure 82 : Zoning of the project [16]

Program and form

The seven key elements of the autism spectrum served as the base for the geometric design. Architect begin the design in a clear shape, and then began to apply theories to it.[16] First aspect she started with is compartmentalization by divide the one-piece shape to different parts which are, inpatient, medical, administration, common space, patient's center.

Then she applied the second aspect, spatial sequencing, by create an easy and safe navigation within the project. Andthelastmethodtheself-shadingby integrate the inner zone with natural planting. These masses organized around sensory garden, the transition zones had been implemented with the privacy aspect, from private to semi private transition, semipublic to finally the public. Escape pods had been provided in the project (escape space aspect). The circulation is linear path in all the spaces in the project, to emphasize on routine which associated with the spectrum ASPECTSS. And this concept also implemented with the repetition of the zones in the three story. [16]

The project has been integrated with different sensory gardens, each garden aims to strengthen children's senses and enhance their abilities.

Asal Rababah 162 | Page
BEYOND THE WHITE 163 | Page
Figure 83 : Circulation system and user’s movements [16]

Sustainability

Three main sustainable strategies:

Energy:ReducedWindowtoWallRatio, Reflective Paint for Roof, Reflective Paint for Walls, Low-E Coated Glass, Energy Saving Light Bulbs, Occupancy Sensors, Solar Panels, Solar Water Heaters and Courtyard.

Water: Low Flow Fixtures, Dual Flush System, Rainwater Harvest, Drip Irrigation, Use of Local Plants and Permeable Pavements.

Waste: Waste Recycling, Greywater Treatment and Blackwater Treatment

The majority of light is diffuse which is the goal as autism needs diffuse lights

[16]
Asal Rababah
Figure 85 : : farm land [16] Figure 86 : Elevation Design [16]
BEYOND THE WHITE
Figure 87 : outdoor court [16]
Asal Rababah 168 | Page

Conclusion

Architect start the design on one of the most important characteristic of autism, which is the differences betweenitscases.Autismspectrumisa seven aspect, and differ from the typical spectrum that we are familiar with. A variety of therapy strategies in this building with different schedules, to cover most of the autism spectrum. Architect done this with a line of friendlyproject,whereevenwastesare recycling.

Diversity also found in the sensory garden, which it a five sensory garden, to fit five senses, Sight, Sound, Smell, Taste, and Touch

BEYOND THE WHITE 169 | Page

LEARN, PLAY, THRIVE (Thesis Project | 2020)

Typology

Sensory garden

Location Orangevale, California

Architect Wenxi Huang

Asal Rababah Figure 88 : Top view, sensory garden [17]
BEYOND THE WHITE
Figure 89 : sensory garden [17]

Why this case?

This case represented a guideline to design a therapeutic garden for children with autism spectrumdisorder in the best way or what we can call sensory garden.

In this case, architect provided the many spaces that allow children with autismtousealltheirsensesduringthe experience of this garden. To enhance the use of these senses and activation, and

BEYOND THE WHITE 173 | Page

Location

The garden is located in the center of odyssey learning center in Sacramento, California, US.

In a quite zone, residential zone surrounding with greenery>

Accessibility

From the main street

Asal Rababah 174 | Page
Figure 90 : Accessibility to the project. Figure 91 : site plan from google earth

Asal Rababah Context

1. Residential Housing

2. Greenery Land

3. Preschool

4. Small Farming Land

5. Commercial Shop

Figure 92 : site from google earth
BEYOND THE WHITE

School Philosophy

The best thing can we do to ensure the successionoftheproject,istointegrate children with natural environments. this thesis represents the components of the sensory garden, an important zone in design for autism.

The garden in a main outdoor court of Odyssey center which is a school for autistic children, this garden used as a mean to connect children with outdoor spaces, but still undevelopable even thoughithasmanypotentials,thiszone used by children as transition zone, with no planting or experience to be part of.

According to the architect, the users of such building who have been interviewed have expressed interest in having an arrangement and design of the court to create a dynamic experience help with treating autistic children.sothiscasecometotransform the empty court to a sensory garden.

It divided to many zones, with many activity and different experiences, allow children to go to any zone they want, deponed on their emotion and feeling. This all done as a process of heling to sport the main purpose of the center. [17]

Asal Rababah 178 | Page

Program

Architectdesignthegarden inTwigand leaves shape which is provide a curvier shape, to be flexible, smooth circulation, ease to be used by children and give them a feel of relaxation. The garden contains three main zone, a resettingzone,lecturezoneandactivity zone. the process of healing in the gardenstartinthezoneblueandpurple as shown in the diagram, in the zone everything design and the type of the usedplantstoreadjustingthefeelingof the child and make him rest.

Reaching the next zones which represented in the color yellow and red, these zones where the activity and integration start. The zone yellow with less degree of activity compared with the red zone. [17]

Asal Rababah 180 | Page
BEYOND THE WHITE 181 | Page
Figure 93 : zoning diagram and composition [17]

Program

Purple Zone: The color purple symbolizes relaxation and calming dawn, this zone at the entrance set to make children relax and resisting. So theyinterthegardenwiththiszoneand theyarerelaxed,then it is uptothemif they want to continue the journey or not. It contains from three rest and relax zone with some supportive elements such as the wood panels, water feature, sensory panting and visual signage. Blue Zone: The peace color and it is also having the same function of the purple zone which is located at the entrance too. It constraint from bench to rest and plants, in this zone children start to gathereitherwithotherstudentsorthe staff. This zone act as transition zone between the active zone (the red) and the quite zone (the purple). Red And Yellow Zone: These zones are the most active, the red zone is where the physical activity and social interaction appearance, it contains some elements that stimulate children creativity’s such as: drawings wall, rollinghills, play area and musical zone As the yellow is it symbolizes optimism, energy, the yellowzoneiswherechildrenfocusand learn. Contains sandbox therapy area and therapy sessions area, and this zonemoreprivatethantheredanditis enclosed by trees [17

Asal Rababah 182 | Page
Figure 94 : the Maine zones of the garden

Program

All the components of the garden were done to enhance the senses of the children and develop their sensory perception, linking the children to the outdoor natural environment through this garden and its elements. It was a good design and supports the idea of the building.

The design of the garden was not limitedonlytothezonethatmadeitup, as each of the components was an environmentally friendly element, so the materials were natural materials suchaswoodtoconfirmtheideaofour belonging to the environment. The use of rainbow colors, natural sounds and materials with different textures, flowers with different scents, and fruits enhances the sense of taste such as lemon, everything has been carefully chosen to strengthen the child's senses and perception. [17]

Asal Rababah 184 | Page
Figure 95 : view of the garden and its elements
Asal Rababah 186 | Page

Conclusion

A therapeutic garden can indeed act as an additional healing strategy for children with autism spectrumdisorder due to the multitude of design elements it possesses. The guideline that has been showed in this case, was able to highlight several crucial design elements for an autistic children oriented therapeutic garden.

The most important out of these guidelines would be to include escape spaces in the design. With sensory overload being a common problem among autistic children, having a place to escape towards, reset and relax is very important.

BEYOND THE WHITE 187 | Page

Inside Out…Centre Pompidou

Typology

Cultural Center

Location Paris, France

Architect Renzo Piano, Richard Rogers

Asal Rababah Figure 96 : Centre Pompidou
BEYOND THE WHITE
Figure 97 : Centre Pompidou

Why this case?

Giving users the appreciate space for gathering to sharing their ideas and arts, a space that help them to express whatinsideasthebuildingdesigned.by turned the in out, Renzo Piano & Richard Rogers maximized the interior space in a unique systems giving the usertheflexiblezonetogetacrosstheir thoughts.

BEYOND THE WHITE 191 | Page

School Philosophy

A multifunctional center in the heart of Paris, covering an area of 100,000 square meters and entirely devoted to contemporary art, music, cinema and theatre. A revolutionary and versatile space where culture is in osmosis with the surrounding urban environment. Is a humorous and colored urban machine, not at all "high-tech", but rather artisan instead, as it was put together piece by piece. All the functions of the building, including the walkways and the plant systems, have been moved to the outside and are characterized by a different color, so as to obtain a vast and totally uncluttered area inside. [18]

The Centre Pompidou with its "piazza" form a single molded setting, actively providingaresourceofurbanandsocial functions.[6] The project is from a competition, and the design of Renzo Piano, Richard Rogers was the only one that suggested using a quarter of the areaallocatedfortheproject.Themain objective of the project was to create an iconic landmark in the center of the site and overlooking Paris ,also maximize the internal space by turned in out. [18]

Asal Rababah 192 | Page
BEYOND THE WHITE
Figure 98 : Design sketch. [18]

Program

The center is contain eight floors, two of them basement. The first floor and the final one are a preeminent and temporary expiation, followed by a design center and offices ,reaching up to the library.

The linear shape of the building also reflectedinthefloorplans.Thebuilding alsohadalargecourtyardintheoutside ,which is an open space offer the possibilityformanyused.Thisdesignof the spaces and the form giving the users a feeling of freedom and relaxation [18]

Asal Rababah 194 | Page
BEYOND THE WHITE 195 | Page
Figure 99 : program (a) project percentage of the site, (b) outdoor court, (c) zoning. [19]

Color-Coded Systems

What also make this center special the color coded system, Renzo Piano and Richard Rogers used the basic color mainly to emphases on the different system that had been used within the project (Red, Yalow, Blue, Green, Orange and White).

The colored used as followed, the large HVAC components with white color, circulatory elements (stairs and elevators) with red color, climate control with blue color, plumbing with green color and electrical elements with yellow and orange color.[18]

Materials

With these different system, there are also different materials that have been through the buildings such as steel, concrete, glass, and the colored tubes.

Asal Rababah 196 | Page
BEYOND THE WHITE 197 | Page
Figure 100 : Color code system [19] Figure 101 : Materials used. [19]

Structure System

The structure systems are from the main concept,whichdesigned carefully at the facade of the center in a creative way. , In order to accommodate the deep beams needed to span the whole building width, the project features a repeating steel bay system that is repeated six times vertically with high floor to ceiling heights.[18]

The main structure elements mainly include the steel , reinforcement concrete, columns, beams and the trusses.

Asal Rababah 198 | Page
BEYOND THE WHITE 199 | Page
Figure 102 : Structure System [19]
Asal Rababah 200 | Page

Conclusion

The user is the main element of the project, cause in the end who will use thespace,thedesignofspacehadahug impactontheuserfelling and effect his mood. We can see in this case that architect design to give the feel of freedom help people together and express theirfeelingsbythisdeign of in out and give them this large interior space behind of the outdoor courtyard. And this what I looking for first when designing for autism help them to feel free and express what they need and share their thoughts and opinions.

BEYOND THE WHITE 201 | Page

Asal Rababah

Utah Valley University Autism Center

Typology Center

Location Utah, United States, Architect Renzo Piano, Richard Rogers

BEYOND THE WHITE
Figure 104 : Utah Valley University Autism Center [20]

Why this case?

In this case architect design a friendly interior design by using elements and materialsthatmakekidsfellrelaxwhile learningorhealing,andhealsoshowed a good opportunities to deal with circulations zones with focus in connectivity with natural environment.

BEYOND THE WHITE 205 | Page

School Philosophy

Thethreeprimary functionalobjectives forthislearningcenterinclude:educate the community about autism, train the teachers of autistic children, and provideastate-of-the-art, safelearning environments for autistic children. The building had to be visible to the community, easy to find, and be open and inviting.[[20] Children with autism can benefit from this innovative ideas of an autism building. reducing sensory input, which can overwhelm a child with autism was the first thing in consecration, as an example. Lighting, acoustics, and texture were all designed with particular care. Electrical engineering, mechanical engineering, audio visual design, security, and structured cabling were all provided by Spectrum Engineers.

The 4,600 square meters of this project's development were finished in 2017. Architect used glass facades that extend from the first floor to the second in the main area as one of the design's main methods to link the internal areas with the exterior's natural environment.

Asal Rababah 206 | Page
BEYOND THE WHITE 207 | Page

Program

The5600squaremetersaredistributed into two floor designs with therapy, educational, management, and transition zones. The therapy zone continuetothesecondfloorinaddition of management area. The managerial area and the therapeutic zone both extend to the second story. A play field and outdoor garden are included in the program.

Asal Rababah 208 | Page
Figure 105 : project zones.
BEYOND THE WHITE 209 | Page
Figure 106 : floor plans (a) ground plan (b) first plan

Interior design

Theinteriordesign,thearrangementof the furniture, the materials used, the distribution of the lighting, and the colors are probably some of the most crucial aspects of the project.

The floors of the main circulation area, where the reception is located, have been set up with double volumes to provide for visual continuity and sustainability. In addition, a large glass screen thatwasprojectedintotheview ofthegardengavedaylights,sunpower from the solar panels, and a good view with a sense of connection to nature.

Eventheescapezoneshadbeendesign with view of nature, and its presented in some type, the hanging chair is an example of it

Asal Rababah 210 | Page
Figure 107 : interior design components

Interior design

The horizontal circulation was also effectively planned; rather than only using standard paths, the architect sought to incorporate certain components that would help develop children's abilities and sensibilities. He used the mirror to make the corridor appear bigger and enhance the children's vision. also combined it with the rest area allowed the children to sit by themselves or in groups and talk with their Colleagues, helping them to enhance their communication skills.

Asal Rababah 212 | Page
Figure 108 : interior design components

Color and materials

A friendly materials have been used in the project which are : orange brick in the façade with glass with solar panels and natural timbe. The internal materials mainly concrete natural timber and vinyl floor.

Earthythemofcolorusedintheproject and some natural color which presented with the use of light color in the most of the elements with some use of the light yellow and blue.

Green symbolizes growth, harmony, freshness, and fertility, and generally makes people feel emotionally safe.

Asal Rababah 214 | Page
Figure 109 : materials and colors used
Asal Rababah 216 | Page

Conclusion

In this case the design was friendly and take into account many aspects related to interior design. The circulation system may be transform even if it just a linear path, plus to using some elements could help to made the corridors look wider such as the mirrors.

The connectivity between levels plays alsoagreatrolesintodesignforautism, we can used an open court and multi prepose hall or any other ways Colors as we saw in the interior design or the play filed , green was the dominant color with used of some light yellow andbluewhichhadapositiveimpacton autistic children.

BEYOND THE WHITE 217 | Page

Alice in Wonderland (proposed)

Typology Garden for children with autism spectrum disorder

Location United States

Architect Karen Muscat, Lyna Loumi & Nadine Zammit

Asal Rababah Figure 110 : Alice in Wonderland (proposed) [21]
BEYOND THE WHITE

Design Philosophy

Thisprojectis agarden designed within a residential care center for children living with autism spectrum disorder. The aim was to provide a playful and explorative environment which doesn’t overwhelm and overstimulate the children.[1]Thisgardenwasinspiredby MajidaMostafa'sresearch,apioneerin the field of architecture, and her approach to designing for autism. So, when designing this garden, the design took sensory input into account initially. In addition, the aspect from acoustics, lighting , provide a escape zones and design with no sharp edges and smooth materials. Also the smooth transition between these zones taking into account the right adjacency between the zones

The experience divided between sensory zones and play and interaction zones [21]

Asal Rababah 220 | Page
BEYOND THE WHITE 221 | Page
Figure 111 : key elements of the design [21]

Zoning

The main themeof theproject revolves around the story of Alice in Wonderland, drawing inspiration from severalelementsofthenarrative.Lewis Carroll wrote the story in 1865 and is thought to have had neurodivergent charactertraitscommoninpeoplewith autism. The experience created through the design of Wonderland is a journey through the story of Alice, with three main themes materialized in the design.[21] The translation zone connect the main zones and its linear. The center zone in in the activity zone where the focused tasks are given to children. The journey end with sensory zone, here the children engaged and provide materials and activity to enhance visual, auditoryolfactorytaste senses.Escapespacesareinthisgarden in the edge between the main zones. A sound barrier had been used on the exterior wall that face the main street. Thegarden located in the middleofthe building blocks, so the accessibility from the blocks to the garden is easy and simple.

Asal Rababah 222 | Page
BEYOND THE WHITE 223 | Page 1111111
Figure 112 : zones of the design [21]

Zoning

The flow diagram shows the various paths and the spots that are either hyper sensory or have physical stimulation. Additionally, it identifies the many access and departure locations. A loop the kids may use to access the area between internal and exterior areas is made possible by an arcade that is set up inside the residential units themselves.

Asal Rababah 224 | Page
BEYOND THE WHITE 225 | Page
Figure 113 : circulation system of the project[21] Figure 114 : Areas where children can escape to and explore[21] Figure 115 : Different areas of the garden[21]

vegetation mapping

The types of planting was chosen carefully. in sensory zone included everlasting Perennial shrubs and flowers. andtheflowerswerearranged roughly according to the colors of the rainbow to give it a logical visual sequence that would make sense to a autistic child. Additionally, this order would aid in reducing excessive visual stimuli.

The everlasting perennial plants, most of which are native, would allow the garden to be in use for extended periodsoftheyear.Kidsaretaughthow to grow and care for plants including tomatoes, peppers, strawberries, and various herbs in the gardening patch. The kinds of flowers were picked to engage to the child's senses in terms of color or perfume, selecting varieties witharangeofhuesandaromas.Itwas alsoimportanttopickfruitsandveggies that were simple for kids to grow and didn't require a lengthy growth time while choosing the sorts of fruits and vegetables. [21]

Asal Rababah 226 | Page
BEYOND THE WHITE 227 | Page
Figure 116 : vegetable mapping [21]

Design Philosophy

The smoothness and simplicity of the garden's components are apparent. Even though there are many different fruits and veggies, earthy and natural colors were selected for other objects, such the walls, to prevent the autistic child's focus from being badly impacted.

To guide the kid to the designated locations, soft materials and colorful floor materials were employed. Instead of the grass, which irritates the child if he walks on it barefoot, these soft materials allow the child to move through them while they are barefoot. Through the use of a sound-absorbing tree wall and the distribution of trees from the outside to the inside of the garden, outside noise was muffled and seclusion was ensured.

Asal Rababah 228 | Page
BEYOND THE WHITE 229 | Page
Figure 117 : Design elements and principle.

Design Philosophy

The garden also provides many activities that an autistic child can do in addition to agriculture. There is a games area, drawing walls, and areas for interaction and communication with others.

Asal Rababah 230 | Page
Figure 118 : (a) Farming zone, (b) Drawing wall.
Asal Rababah 232 | Page

Conclusion

A therapeutic garden can indeed act as an additional healing strategy for children with autism spectrumdisorder due to the multitude of design elements it possesses. The guideline that have been showed in this case, was able to highlight several crucial design elements for an autistic children oriented therapeutic garden. The most important out of these guidelines would be to include escape spaces in the design. With sensory overload being a common problem among autistic children, having a place to escape towards, reset and relax is very important.

BEYOND THE WHITE 233 | Page

Social Sensory Architecture for Children with Autism

Typology Gallery

Location University of Michigan, US

Architect U-M architect and Sean Ahlquist

Asal Rababah Figure 119 : Spectrum autism center (proposed project) [22]
BEYOND THE WHITE

Design Philosophy

SeanAhlquist,aU-Marchitectanatthe Taubman College of Architecture and Urban Planning at the University of Michigan, collaborated to produce a sensory theater performance for kids with autism spectrum disorder (ASD). Sean Ahlquist is an associate professor at the College, By understanding more about his daughter's unique requirements and how she interacts withtheworldaroundher,Ahlquisthas looked for answers to initially assist his daughter with her autism. .[22]

the design used a flexible structure with some other Elements that attract the child's attention and arouse his curiosity, in mean while they can interact with the people there and ask aboutanythingtheydonotunderstand. the first method used was Stretch Color, which is a 2D surface with a projected black-and-white image, a bit is y applying pressure to different sectionsoftheimage,one maydigitally color it much like they would if they were using a computer application and a mouse. The goal of the performance, which was developed and produced by MSU theater faculty member Dionne O'Dell, was to provide autistic children a participatory theatrical experience. Following this first concept, a more sophisticated 3D framework was created. by O'Dell , focusing in particularondesigningnewmethodsto serve kids with ASD.

Asal Rababah 236 | Page
Figure 120 : Design elements. [22]

Zoning

Thiskindofexperiencehasbeenshown a good result in autistic kids behavior, by focusing first in sound and vision senses, then the touch. In a storytelling style they will understand more, they can ask, react and made friends. This experience also available for public visitor in order to make them aware of what autism is. By this experience, which combines the theater and architectural fields in order to healing, has opened up new opportunities for this sensory performance to be used in Schools, museums, and other public.

"Each child that has autism is different, but what many have in common is that 60-90%ofthemhaveahyper-awareness to sensory stimuli. Some kids are very sensitive to loud sounds or bright lights while others, like Ara, respond enthusiastically to strong tactile sensations.Receivingpressure,likebeing wrapped in a heavy blanket, excites her, allowing us to turn her hypersensitivity into a beneficial tool for reinforcing play and social interaction." Sean Ahlquist,[22]

Asal Rababah 238 | Page
Figure 121 : Visual and colors elements [22]
Asal Rababah 240 | Page

Conclusion

the experience that this design offer highlighted many important points to design for autism. The use of attractive colors for an autistic child creates curiosity in him to continue searching, telling stories, and using cartoon characters that can facilitate the access of information to a child, and also integrating public visitors from these plays as well, to help autistic children form friendships.

BEYOND THE WHITE 241 | Page

Chapter four

Asal Rababah 242 | Page 04
Program ▪ The objectives 244 ▪ The site 248 ▪ The User ▪ Autistic child experience 250 ▪ Community visitor experience 252 ▪ The zones 254 ▪ Initial spatial diagram 275 ▪ Zoning on site 283 ▪ 3D zonings 287
BEYOND THE WHITE 243 | Page
"IusedtobeafraidthataslongasIwas autistic,I'dnever beabletoliveproperlyasahumanbeing.Thereweresomany thingsIcouldn'tdolikeotherpeople,andhavingtoapologies day in, day out totally drained me of hope" [23]
-Naoki Higashida
Asal Rababah 246 | Page
Figure 122 : Autism Characteristic

The objectives

SinceIstartworkingonthisprojectand manyhaveaskedmewhatIamworking on, so my answer was, "It's about autism, "and they like what ? How come?

A lot of people still unaware of the influence of architecture in our life and ourbehaver,weshapeourbuildingand then it shapes us. Create a space for autistics to provide them with the best experience possible in an effort to heal them and enable them to participate in society., to show the world the true vision of autism. We must first understand the spectrums of autism by examining its instances and characteristics in order to develop an experience for autistic. Mainly there aretwocasesofautismHypoandHyper and the zones between them. The characteristics of each different and required a special environment. Basically, thedesign of autism relied on sevenaspectsbasedonMajidaMostafa research, she called them ASPECTESS. Which are as follow:

Acoustics by minimalize noises and distraction, Spatial sequences by the routine, escape by a private zone for individual, Compartmentation by appreciate function of the spaces then break them down in many pieces, Transitionspacesbysimpleandsmooth navigation paths, Sensory zoning by sensory experience and enhance their sensesandfaintlyensureSafety.People around us, how they treat us, and even how they perceive us

BEYOND THE WHITE 247 | Page
Asal Rababah 248 | Page
Figure 123 : Autism Cases.

all have an impact on us as individuals. We have reached 2022, and many people still view autism as a disability and feel terrible for those who have it. Even parents of autistic children experience shame of having an autistic member in their family, and they may neglect their kid and feel sorry for themselves, while they may are the luckiest to had him. Therefore one of the most significant purposes of the project is to raise awareness about autism, its causes, characteristics, and treatment methods, as well as to show theworldtherealabilitiesandqualities that autistic individuals can possess. We'renotsearchingforsympathyhere, so they may come and enjoy themselveswhiletheabilitiesofautistic kids also advance. Also to show the parents how to handle ASD situations, what they can do to help children, and how they can participate in their children's schedules. First, we must start creating the ideal environment possible for autistic children in order to achieve that, which includes the entire process of teaching and treating them then find and develop their latent potential. So, the question now ,Can autistics be genius? A lot of research's have been shown that Autism As a Disorder of High Intelligence,[24] and other said that that autism is the result of enhanced, but imbalanced, components of intelligence.[24] so to show the parents that they have a gift and they most be thankful and work together to help their child.

BEYOND THE WHITE 249 | Page
Asal Rababah 250 | Page
Figure 124 : Site Forces.

The site

Thesiteoftheprojecthaddirectimpact on the design , the program and the spaces that form the project. Also, on the orientation and the form of the project. The area of the whole site is about 60 km and the selected site is about 20 km.

KingAbdullahgardenhasahugeimpact on the project, the students could go there to developed their ability with dealing with public spaces or communication and to connect them with outdoor natural environment, or the visitorsof thegarden could join our project and raise their awareness, so we need a space to adapted that and also to be available for other users of the site from residents, students and others. Other major aspect of the site the sun orientation and wind direction, as autistic are sensitive to bright light and may make them confuses and loss their attention especially during the therapy or education time.

Moreover, the topography of the site also has a role in the program, our site had a slope with percentage of 1.3%, 2.6% in the selected area of the site. Whicharenotdangersforchildrenwith this number.

BEYOND THE WHITE 251 | Page
Asal Rababah 252 | Page
Figure 125 : Personal space for autism.

The User

Creating a program of the project must refers to three aspect, project’s goals, the users and site forces. The scale and personal zone of an autistic person must be considered while determining the right space for them. They say if your child don’t like to hug or touch you,heprobablyhasautism,Asautistic persons are particularly sensitive to personal space and require twice as much personal space as the average persontofeelcomfortableinaspace.If a class room with 30 sq meters area is associated to serve 20 to 30 students then it is serve the half with autism.

An experiment on the personal space requirements of autistic people revealed that the person with autism requires about 2.5 meters of personal zone to feel comfort in a space , and that this distance changes when they interact socially withother people, as it was discovered that this range increases at the beginning of social interaction to reach about 3 meters. After some time has passed during the talk, the three meters will gradually reducetoalmostonemeteranhalf.[25]

Based on this the area of zones and its function changed to give the comfortable to autistic user, especially whenstartinvolvingpublicvisitorinthe project.

BEYOND THE WHITE 253 | Page
Asal Rababah 254 | Page
Figure 126 : Autistic user

The User

In order to fulfill the project's goals, a variety of users are participating in the process to help develop a habitat that will support and encourage this group of community. Autistic user make up the majority of this users and are the focusofourdesignwork.Therearetwo primary groups of autistics, children and adults. Adults are mainly involved to support autistic children, job opportunity,sharetheirskills,andhelp them communicate and find friends.

Autistic children are the target user of the project , and they are three groups, thefirstgroupinvolvechildrenwithage between 6months to 5 years, those children will spent about one to three hours in therapy zone with companion, the percentage of their presence is limited to the zone of diagnosis and therapy, as they do not need to access the school education or other zones.

The second group are children with age between 6 to 18 years, which they will accessthefullexperienceoftheproject starting with the diagnose zone to creativity.

Children of high school age may not access all zones, so they may just come to share skills or communicate. But as we cant find two autistic similar, still their presence also may change based on their level, so we may found a 6 years old autistic with skills better than 10 years old.

BEYOND THE WHITE 255 | Page
Asal Rababah 256 | Page
Figure 127 : Public users

The User

The public visitors make up the second category of users; they participate in the project's primary objectives and greatly contribute to its success. The main group ofthepublicmainly arethe parents,theparentsofautisticchildren may participate in the program of their child and learn aboutthetruepotential of people with autism, and they should know there is no shame to have child with autism.

Other public visitor may be an interested people on autism, art and otherthings,ortheresidentsofthesite and the users of it, school students and visitors of King Abdullah Gardens, which are located next to the project site.

The presence of public visitors in the project is limited to zones of awareness, sensory experiences, exhibitions, or agricultural and commercial zones.

The times of their presence or use of the project are not specified and depend basically on the visitor and his interests or the project’s working hours and activities.

The project's workers, who include specialist physicians, instructors, management personnel, and any other users who support the project's daily operations, make up the last category of users. This group is present during the whole working time and is present in all project zones.

BEYOND THE WHITE 257 | Page
Asal Rababah 258 | Page
Figure 128 : Autistic experience

Autistic child experience

Theinfluenceoftheprojectonautistics will start as they put the first step in it. So the experience will start from outdoor garden – sensory garden, followed by the diagnosis zone, the therapy zone, the education zone, the community zone, and finally the sensory garden, which will begin with nature and finish with it. these zones complete each others and are interconnected to achieve the main goals that made for it which is help autistic to improve their ability for understandingand interaction,express their inside, and discovered the creativity that they may had then show the world that.

Autistic adults are included in the project through the creative zone and the commercial zone in order to achieve social justice and to provide opportunities for all members of society, since the high unemployment rate in the autism community and also contribute to the project's success by allowingthemtoassist autisticchildren and be a part of the public gathering interface.

BEYOND THE WHITE 259 | Page
Asal Rababah 260 | Page
Figure 128 : Community visitor experience

Community visitor experience

Increases the awareness of community about autism may will be succussed by showing them the true case of the spectrum. The journey will start from out side where they can see the ability ofautisticpeoplewithfarming,drawing and their art in the sensory garden. moving for the gallery where the creativity of autistic people shown ,the zone where they can communicate with autism people. Therapy zone also provide sessions that tech people

The project also will offer a VR experience for visitor that make them liveasanautistictoshowthemthetrue world of autism and the autistic people angel of the world. The zone of creativity is maybe the one where the generalpublicandautisticpeoplecome together most. For comprehensive benefit, the therapy zone offers a significant consultation area for public and is moveable, allowing it to check towns and neighborhoods and offer any necessary support and guidance.

BEYOND THE WHITE
Asal Rababah 262 | Page
Figure 129 : Zones matrix and percentage.

The zones

Toaccomplishtheproject'sgoals,these zones were chosen carefully. The project's area approximate to 3,000 square meter, 90% of its total size, is dedicatedtochildren'susage,with50% of that space set aside for gathering.

BEYOND THE WHITE 263 | Page
Figure 130 : Main zones area.
Asal Rababah 264 | Page
Figure 131 : Relationship and main circulation.

Organization

Autistic people must first be healed, educated, and develop their communication skills before they can access the zones of gathering and creativity. This sequential structure of thezonesallowsforthehealingprocess to be followed. Additionally, this is true for visitors, as we spread knowledge then emotions.

BEYOND THE WHITE 265 | Page
Figure 132 : Hierarchy of zones
Asal Rababah 266 | Page x
Figure 133 : Diagnosis Zone area and matrix

Diagnosis Zone

The diagnostic stage of the therapeutic procedureiscrucial.Whichiswherethe autism spectrum and its severity are established, then each autistic child is given an individual schedule.

In order to reach that , the child is subjected to many examinations, the most essential of which are probably the psychological, social, and abilities tests. And contain Social Diagnosis zone, Psychiatrist zone, Observation Room, ODP for public consulting and services, Diagnosis rooms where the scheduleandprogramforautisticsetto move to the next zone, therapy zone, and this zone other space that spurt its function from offices and services rooms.

BEYOND THE WHITE 267 | Page
Figure 134 : Main relationship between spaces
Asal Rababah 268 | Page
Figure 135: The zone area and matrix

Therapy s Zone

Therapy zone come with different spaces too to adapted all the condition that may occurs, and in reason of autistics need different facilities and ways for treating. this zone include Speech therapy office and rooms, Observation room , Autism therapy room, Physiotherapy room, Observation room, Sensory playroom and this zone other space that spurt its function from offices and services rooms. Public visitors are allow to access this zone only the offices for knowledge or awareness about autism.

BEYOND THE WHITE 269 | Page
Figure 136 : Main relationship between spaces
Asal Rababah 270 | Page
Figure 137 : the zone area and matrix.

Occupational therapy zone

Occupational therapy zone complete thetherapyzoneandcomeinstage2of treating and it is specialize to improve the daily skills of autistic children in their home, so it is include spaces to give feel of homely from bedroom, living room , kitchen and common bathrooms, in addition to others supportive facilities from outdoor garden ,administration office and services rooms.

BEYOND THE WHITE 271 | Page
Figure 138 : Main relationship between spaces
Asal Rababah 272 | Page
Figure 139 : the zone area and matrix.

Educational zone

Educational zone has the less area of project, this is because it is not for all children is just for the needed condition, and to teach children with autism the physical experience works more effectively in most of them.

This zone basically include a classrooms, training rooms, group room, private room for individual learningand library andalso associated with an outdoor space.

BEYOND THE WHITE 273 | Page
Figure 140 : Main relationship between spaces
Asal Rababah 274 | Page
Figure 141 : the zone area and matrix.

Sensory zone

The sensory zone occupies the largest area of the project, as it is the point where the autistics start to interact with the public visitors, the main two spaces of this zone the VR experience for children in away of healing and improve their skills, the other VR experience associated for public visitor to let them see the point view of autistic people about world. Other spaces are sensory gallery and a dining room.

BEYOND THE WHITE 275 | Page
Figure 142 : Main relationship between spaces
Asal Rababah 276 | Page
Figure 143 : the zone area and matrix.

Creativity zone

In the last zone, the results of the project and the product of design are shown through the large exhibition, in which the talents and abilities of the autistic are displayed in drawing, music and sculpture. Public are highly involved in this zone. This zone include show space, painting room, music space, writing and language rooms, cooking room

BEYOND THE WHITE 277 | Page
Figure 144 : Main relationship between spaces

Initial spatial diagram

All the zones that make up the project are connected linearly, as we talked about earlier, through a longitudinal corridor that connects them all and links the project with the external nature

Asal Rababah 278 | Page
Figure 145 : Initial spatial diagram
BEYOND THE WHITE 279 | Page
Asal Rababah 280 | Page
Figure 146 : the zone area and matrix.

Commercial zone

The diagnostic stage of the therapeutic procedureiscrucial.Whichiswherethe autism spectrum and its severity are established, then each autistic child is givenanindividualschedule.Inorderto reach that , the child is subjected to many examinations, the most essential of which are probably the psychological, social, and abilitiestests.

BEYOND THE WHITE 281 | Page
Asal Rababah 282 | Page
Figure 147 : the zone area and matrix.

Sensory garden zone

The diagnostic stage of the therapeutic procedureiscrucial.Whichiswherethe autism spectrum and its severity are established, then each autistic child is given an individual schedule.

In order to reach that , the child is subjected to many examinations, the most essential of which are probably the psychological, social, and abilities tests.

BEYOND THE WHITE 283 | Page
Asal Rababah
Figure 148 : Sensory parts and location

Sensory garden and commercial zones

The zones of the sensory garden are distributed throughout the project, starting with the senses of sight and smell at the entrance of the project, and the last area of the project constitutes the largest area of the sensory areas, agricultural areas, commercial and drawing walls, which begin at the beginning of the project at the entrance and appear again at the endoftheprojectinthesensorygarden as well.

BEYOND THE WHITE
Figure 149 : Zoning on site and environmental forces.

Zoning on site

To follow the main goals of the project, as to keep the experience smooth and easy the zoning on site follow this method , as it placed with the same orientation line of the site, trying as much as possible to place the spaces in a friendly way on the site. The spaces were arrangedwith taking intoaccount the environmental factors that would affect the project or the therapeutic processforpeoplewithautism.Thereis a main entrance from the project, which is from the main street of the site, and this street is also shared with KingAbdullahGardens.Thegreenareas of sensory gardens and agricultural facilities have been placed towards the wind, which is west-south, and also to benefit from as much sunlight as possible during the day.

On the other side, educational facilities were placed on the opposite side of direct sunlight to avoid any obstacles that might affect the educational process,beinganautisticpatientwhois negatively affected by direct sunlight and may distracthimduring the lesson.

Asal Rababah
Figure 150 : zoning on section – process of journey.

Zoning on site

This section represent a basic thought about levels of the design, which also follow the linearity that organized the zones and spaces.

The site start with the high point of the slop and start to decrees.

BEYOND THE WHITE

3D zonings

Asal Rababah 290 | Page
Figure 151 :3D layering- environmental solution.
BEYOND THE WHITE 291 | Page
Asal Rababah 292 | Page 05 Chapter Concept ▪ Concept statement 291 ▪ Design philosophy 293 ▪ Spatial diagram 295 ▪ Organization 297 ▪ schematic plan 301 ▪ 3D layering 303 ▪ Schematic section 305 ▪ user experience shots 307
BEYOND THE WHITE 293 | Page

Concept

From social exclusion to social inclusion. Children and young people with autism are often denied access to schools. Adults with autism often lack the support they need to gain and maintain employment. People with autism are often excluded in social settings where they struggle with interactions with other people.

Each time a person with autism is excluded the effects accumulate, often leaving people with autism isolated within their communities.

While people with autism struggle with social interaction and communication, that does not mean they can’t be included as valued members of society like everyone else.

Social inclusion means having access to education, health care and services, as well as living in a society where other people make an effort to understand andincludepeoplewhoaredifferent.It also means having one’s concerns taken seriously when asking for support.

Asal Rababah 294 | Page
Figure 152 : concept diagram – integration process.
BEYOND THE WHITE 295 | Page
Figure 153 : concept diagram

Design philosophy

But in order to achieve that we must remember that a designing for autism hadmanyaspects,andtherearealotof things must be control and design well, especially that a part of the project contain public visitors unless otherwise the project will fail to help autistics.

As i mentioned previously there are 9 aspects (ASPECTESS) must be achieved to create a friendly design for autism.

Beyond the white will be achieved this aspect with focuses in three aspects of them, spatial sequences, sensory experience and escape spaces

As the autistics tend to get lost in spaces and feel overwhelmed, spatial sequences presented in the project as the guide for autistics started from the beginning of the journey, as a linear path make it easier to autistic to use and rememberdaily. Inadditiontothat the sensory expense will be distributed around this path helping to achieve the main objective of the project. Escape spacesstandforthespacethatautistics could escape toward it when they feel overwhelmed.

I started the organization of the zones by separate the therapy zone and give itthewholeprivacyinordertostartthe healing process and trained autistics to interacts and communicate then integrate them to see the result or a way of treating too.

Asal Rababah 296 | Page
BEYOND THE WHITE 297 | Page
Figure 154 : zones relationship and main access, transition zone.

Experience section

Asal Rababah 298 | Page
Spatial diagram
Figure 155 : (a) Spatial diagram, (b) sketch section of the experience.
BEYOND THE WHITE 299 | Page

Organization

The linear wall that shown in the diagram represent the friendly access for autism that will be with them in the process and protect them from outside either public visitors or maybe the direct sun light. The horizontal wall it separatesbetweenzoneswithdifferent function and different users start from the awareness and training zone, therapy zone and the community zone. The circulation would be smooth and easy as a linear corridor bath and, in all floors, make it easier to autistics to move and navigation

The integration process also will be smooth and step by step as we first make visitors aware of autism and how to interacted and communicate with the and autistics must first train.

The process starts of autistics see groups of public interact and communicate then they may join, so here the autistics had access to community zone but the opposite not. With reaching the farming zone the interaction between them will increase and theymay get familiar toeach other and start to make friends.

Asal Rababah 300 | Page
BEYOND THE WHITE 301 | Page
Figure 156 : organization elements

Organization

Therapy zone is associated with different outdoor spaces, first the sensory garden, second a ply filed and hasanaccessforparentsandthesetwo zones are private, the last is a greenery space and a play field for public visitors and autistics have access to this zone.

The farming zone include all the users from autistics, parents and public visitors. As we may notice that the interaction between public and autistics start with outdoor spaces which is a step from the therapy as the autistics don’t feel that they forced to enter spacewithpeoplethathedoesn’t know. After the faming zone they may enter the restaurant, show spaces and trained zones together.

Asal Rababah 302 | Page
BEYOND THE WHITE 303 | Page
Figure 157 : organization principle.
Asal Rababah 304 | Page
schematic plan Social exclusion
Figure 158 :(a) sequence of spaces (b) Schematic plan.
BEYOND THE WHITE 305 | Page
Asal Rababah 306 | Page 3D layering Mind+Body+Environment=Experience
Figure 169 : 3D layering and outdoor spaces.

How to design spaces that are healthy for both our minds and our bodies?

BEYOND THE WHITE 307 | Page

Schematic section

The space is much more than just its appearance. Textures, smells, and sounds can strongly affect the user's experience. Based on this, sensory architecture can transform the interaction between people and the built environment into something even deeper.

he sensory process also start with a smooth transition which is mean the the sensory experine start with one sense to two and end with the five senses at the farming zone and the resturent that the person use all of his

Asal Rababah
Figure 160 : Schematic section and sensory experience.

Our senses are closely connected with memory, both recalling past ones and laying down new memories.

Denise Scott Brown once said: “Architecture can’t force people to connect; it can only plan the crossing points, remove barriers, and make the meeting places useful and attractive.”

BEYOND THE WHITE

user experience

The integration process also will be smooth and step by step as we first make visitors aware of autism and how to interacted and communicate with the and autistics must first train.

Asal Rababah 310 | Page
Figure 161 : Integration process.

Start of the journey

End of the journey

BEYOND THE WHITE 311 | Page
Figure 162 :visual design transition.

References

www.coursehero.com

1. https://www.youtube.com/watch?v=0H-6iIyQ9Bs

2. Autism Rates by Country 2021.” Worldpopulationreview.com, 2021, worldpopulationreview.com/countryrankings/autism-rates-by-country

15. for autism, Architecture. “Advance Center for Autism.” Architecture for Autism, 12 Oct. 2014,

16.https://www.behance.net/gallery/135692663/S pectrum-Autism-Center

17. Huang, Hillary. “LEARN, PLAY, THRIVE by Hillary Huang - Issuu.” Issuu.com, 10 June 2020, issuu.com/hillaryhuang/docs/learn_play_thrive_hu ang_wenxi_2020.

18, Adelyn Perez. "Architecture Classics: Centre Georges Pompidou / Renzo Piano Building Workshop + Richard Rogers" 11 Jun 2010. ArchDaily.

5. Sheikh, Ghada. “Jordanian Mothers of Autistic Children Ask the Government: Where Are the Rights of Our Children?” Raseef, 2020, raseef22.

6. National Autistic Society. “Sensory Differences - a Guide for All Audiences.” Www.autism.org.uk, 2 Sept. 2020,

7. CENTRE, HEALIS AUTISM. “When You Meet One Person with Autism, You’ve Met One Person with Autism.” Healis Autism Centre, 14 July 2020,

8. Wikipedia. “Irbid.” Wikipedia, 22 Jan. 2023,

9. Bzour, Ansam. “Spatial Entity Greenway in Irbid City - Jordan by Ansam Bzour - Issuu.” Issuu.com, 2020,

10. SECO), Swiss State Secretariat for Economic Affairs. Urban Planning & Infrastructure in Migration Contexts IRBID SPATIAL PROFILE Jordan 31. 31 Mar. 2022.

11. (Irbid Climate, Weather by Month, Average Temperature (Jordan) - Weather Spark, n.d.)

12. Penoyre & Prasad. (2018, August 1). The Pears National Centre for Autism. Penoyre & Prasad.

13. Alsane, Aiysha. “The Pears National Centre for Autism Education by Aiysha Alsane - Issuu.” Issuu.com, 28 Aug. 2016, issuu.

14. project, C4. “Caudwell International Children’s Centre - Keele.” C4 Projects, 15 Aug. 2018,

<https://www.archdaily.com/64028/ad-classicscentre-georges-pompidou-renzo-piano-richardrogers> ISSN 0719-8884

19. Villena, Hazel. “Centre Pompidou Case Study by Hazel Villena - Issuu.” Issuu.com, 1 Oct. 2018, issuu.com/hazelvillena/docs/case_study.

20. UNIVERSITY, UTAH. “Utah Valley University Autism Center | Curtis Miner Architecture.” Www.cmautah.com, 1 Jan. 2017, www.cmautah.com/project/uvu-autism-center/

21. Casar, Fran. “Wonderland Garden for ASD Fran Cassar Architecture.” Francassar.com,

https://francassar.com/wonderland-garden-forASD

22. Christele Harrouk. "Social Sensory Architecture for Children with Autism" 20 Aug 2019. ArchDaily. Accessed 3 Feb 2023.

<https://www.archdaily.com/923290/socialsensory-architecture-for-children-with-autism> ISSN 0719-8884

Conversation

23. Naoki Higashida, et al. The Reason I Jump: One Boy’s Voice from the Silence of Autism. London, Sceptre, 2014.

24. Crespi, Bernard J. “Autism as a Disorder of High Intelligence.” Frontiers in Neuroscience, vol. 10, no. 300, 30 June 2016, www.ncbi.nlm.nih.gov/pmc/articles/PMC4927579/, 10.3389/fnins.2016.00300.

25.Gessaroli,Erica,etal.“PersonalSpaceRegulation in Childhood Autism Spectrum Disorders.” PLoS ONE, vol. 8, no. 9, 23 Sept. 2013, p. e74959, 10.1371/journal.pone.0074959.

Asal Rababah 314 | Page
3. يف دحوتلا ىضرم ةاناعم فعاضي انوروك“ .قراط ,يناوليد ,ةيبرع تندنبدنا ”.ندرلأا 26 Dec. 2020, 4. عافترا نيب دحوتلا ىضرم ةاناعم“ .ءابنلأا ةلاكو ,)ارتب( ةيندرلأا ارتب ”.نيدلاولا لهجو جلاعلا فيلاكت ةلاكو- ,ةيندرلأا ءابنلأا 13 Apr. 2015,
BEYOND THE WHITE 315 | Page
Asal Rababah 316 | Page

Turn static files into dynamic content formats.

Create a flipbook
Issuu converts static files into: digital portfolios, online yearbooks, online catalogs, digital photo albums and more. Sign up and create your flipbook.