Digitale bouwstenen
Een ontwerpend onderzoek naar de toepassing van game-belevingen in educatieve ruimtes.


Academie van Bouwkunst
Gerrit van de Werfhorst
2 April 2024
![]()
Een ontwerpend onderzoek naar de toepassing van game-belevingen in educatieve ruimtes.


Academie van Bouwkunst
Gerrit van de Werfhorst
2 April 2024
Dit afstudeerverslag presenteert een ontwerpend onderzoek naar de wijze waarop videogames de schoolarchitectuur kunnen verrijken. Het onderzoekt hoe de rijke ervaringen uit populaire games benut kunnen worden om fysieke leeromgevingen te verrijken, met als doel verder te gaan dan de traditionele onderwijsmethoden van zit- en luisteronderwijs, die vaak niet voldoen aan de natuurlijke behoeften van actief en verkennend leren bij kinderen.
De doelstelling is het ontdekken hoe ervaringen uit de gamewereld kunnen bijdragen aan het vormgeven van scholen waar kinderen niet alleen luisteren en zitten, maar ook creëren, participeren en ontdekken. Dit onderzoek richt zich niet op het vervangen van boeken door computers, maar op het benutten van principes die games aantrekkelijk maken voor het creëren van leeromgevingen die kinderen uitnodigen tot actief leren.
Kenmerkend voor dit onderzoek is de tweetrapsopbouw. In het eerste deel, Level 1, wordt de belevingswereld van kinderen in deze games geobserveerd door een pedagogische bril, en worden deze observaties vervolgens vertaald naar ruimtelijke concepten. De ruimtelijke concepten die hieruit voortkomen, benadrukken het bevorderen van verkennen en toevallige ontmoetingen, interactieve en introspectieve ervaringen, en bieden hands-on ervaringen waarbij kinderen worden gestimuleerd om te experimenteren.
In het tweede deel, uitgevoerd als een casestudie, worden deze concepten toegepast in een praktijksituatie. Dit maakt het mogelijk gericht te onderzoeken hoe de ontwikkelde ruimtelijke concepten de belevingswereld van het kind in een echte schoolsetting kunnen verrijken. Het resultaat is een getransformeerde klassieke leeromgeving naar een leerlandschap dat, door het stimuleren van verkennen en zintuiglijkheid, verschillende leerervaringen beter laat aansluiten bij de belevingswereld van het kind.
Dit project benadrukt het belang van het begrijpen van de wereld van het kind en de potentie van de gamewereld als bron van inspiratie voor het vernieuwen van onderwijs en de daaraan gerelateerde leeromgevingen. Door inzichten uit de gamewereld praktisch toe te passen, biedt dit onderzoek nieuwe perspectieven voor het ontwerpen van ruimtes die creativiteit, actieve deelname en zintuiglijke ontwikkeling stimuleren.
Het nodigt uit om na te denken over het creëren van leeromgevingen die niet alleen intellectuele groei bevorderen, maar ook omgevingen zijn waar elk kind zijn of haar kracht kan ontplooien.
Als aankomend architect ben ik gefascineerd door schoolarchitectuur. Deze passie is in de afgelopen jaren gegroeid. Al meer dan twaalf jaar zet ik mij actief in om de schoolpleinen van basisscholen te transformeren. Deze pleinen, vaak ongeïnspireerd en leeg, zie ik als een perfecte kans om te transformeren naar een inspirerende plek waar kinderen worden uitgenodigd om te ontdekken. Met deze transformaties sluit ik aan bij de hedendaagse pedagogische inzichten die bewegend en ontdekkend leren stimuleren.
Tijdens het ontwerpen van deze schoolpleinen viel het mij op dat veel wensen en uitgangspunten voornamelijk pragmatisch zijn, gericht op beheer en onderhoud, terwijl de echte behoeften en dromen van de kinderen niet genoeg aandacht krijgen. Daarom koos ik voor een aanpak waarbij ik met de kinderen in overleg ga, hun


ideeën verzamel en deze vertaal naar praktische ontwerpen voor speel- en leeromgevingen. Deze gesprekken gaven mij inzicht in de denkwijze van de kinderen en maakten mij ook nieuwsgierig naar een completer beeld van hun belevingswereld. Deze nieuwsgierigheid bracht mij bij videogames, oftewel de virtuele gamewereld. Tegenwoordig brengen veel kinderen hun tijd online door. In populaire games zoals Minecraft en Fortnite kunnen kinderen werelden verkennen, elkaar ontmoeten of creaties maken. Juist hier zie ik een parallel met hedendaagse pedagogische inzichten waarbij ontdekkend leren wordt gestimuleerd.
Deze bevinding vormt het uitgangspunt van mijn afstudeerproject, een ontwerpend onderzoek dat zich richt op het verkennen van videogames om zo een dieper inzicht te verkrijgen in de belevingswereld van kinderen. Dit inzicht wordt daarna ruimtelijk vertaald naar de ontwikkeling van de leeromgeving. Het doel is om te onderzoeken hoe een fysieke leeromgeving kan bijdragen aan het verrijken van het leerproces. Ik nodig u, de lezer, uit om samen met mij deze ontdekkingsreis te maken.
Van links naar rechts gezien zijn dit actiebeelden van populaire videogames: Minecraft, Fortnite en Roblox. (bron: Twitch, 2023)


1.1 De wereld door kinderogen: begrijpen van jonge belevingen
1.2 Van het krijtbord tot cyberspace: de transformatie van de leeromgeving
1.3 Virtuele spelwerelden: Nieuwe realiteit in kinderbeleving
1.4 Kruisbestuiving: vermenging van digitale en fysieke belevingen
1 LevelI Minecraft,RobloxenFortnite onder deloep 2
2.1 Methode: Een blik via Twitch
2.2 Game-ontwerpprincipes: Minecraft, Roblox en Fortnite
2.3 Van digitale ervaringen naar fysieke concepten
2.4 Resultaten: De nieuwe bouwstenen
3.1 Methodologie casus
3.2 Bassischool “de Oase” als casus
3.3 Het ontwerpproces: Van leerplek naar leerzones
3.4 Het ontwerp: Een leerlandschap met kampvuren, grotten en drinkplaatsen
3.5 Het resultaat van de casestudie
3.6 De Oase vs. bestaande leerlandschappen
4.1 De conclusies van het onderzoek
4.2 De aanbevelingen voor ontwerpopgaves
4.4 Level III: beperkingen van het onderzoek en suggesties toekomstig onderzoek Slotwoord
Afsluitende opmerkingen en reflectie op het onderzoeksproces Dankbetuiging aan betrokkenen
Lijst van gebruikte bronnen en literatuurverwijzingen
Bijlagen
De wereld van onderwijsprofessionals en pedagogen heeft in de afgelopen decennia aanzienlijke vooruitgang geboekt in het begrijpen van de wijze waarop kinderen leren. Dit heeft geleid tot een vernieuwde focus op actief leren, dat vaardigheden zoals creativiteit, samenwerking en zintuiglijke ontwikkeling bevordert (Robinson & Aronica, 2015). Deze vaardigheden zijn essentieel voor de voorbereiding van kinderen op een toekomst waarin flexibiliteit en innovatief denken steeds belangrijker worden. Parallel aan deze pedagogische verschuiving heeft zich ook een ontwikkeling voorgedaan in schoolarchitectuur. Het concept van het ‘leerlandschap’ is ontstaan, een benadering waarbij leeromgevingen zijn ontworpen om kinderen te ondersteunen in hun natuurlijke behoefte aan actief leren (Broekhuizen & Verstegen, 2008). In plaats van te zitten en luisteren in een traditioneel klaslokaal, bieden deze ruimtes kinderen de mogelijkheid om vrij te bewegen in een leerrijke omgeving, wat leren een meer dynamische en interactieve ervaring maakt.
Ondanks deze ontwikkelingen houden veel scholen in Nederland vast aan traditionele onderwijsmodellen, waarin leerlingen voornamelijk zitten en luisteren in een klassikale setting. In contrast hiermee staat de wereld van videogames, waar veel kinderen dagelijks meerdere uren doorbrengen. In deze digitale spelwerelden ontwikkelen ze onbewust belangrijke vaardigheden. Neem bijvoorbeeld de populaire “lego-achtige” videogame Minecraft, waarin kinderen met blokken kunnen bouwen in een digitale wereld waar ook anderen kunnen deelnemen. Deze game stimuleert kinderen om zelf
Foto van een groep kinderen in een traditionele klassikale setting,


Foto van een kind dat de videogame Mine -
waarbij de kinderen luisteren naar de lerares. (bron: Belga, 2023)


craft aan het spelen is. (bron: Belga, 2023)
te bouwen, oplossingen voor problemen te bedenken en samen te werken met anderen, wat direct aansluit bij de doelen van actief leren.
Dit verslag richt zich op het onderzoeken van de manier waarop ervaringen uit de wereld van videogames, die aansluiten bij moderne pedagogische inzichten, kunnen bijdragen aan het vormgeven van schoolomgevingen. Dit wordt gedaan door kinderen te observeren terwijl ze specifieke videogames spelen. Dit maakt analyse mogelijk van hoe het ontwerp van deze games hun gedrag en leerprocessen beïnvloedt. Dit onderzoek richt zich op populaire videogames anno 2023, zoals Roblox, Minecraft en Fortnite, die een speciale plaats innemen bij kinderen van 4 tot 12 jaar (Populaire games, z.d.). Deze spellen bevorderen niet alleen creativiteit, maar bevorderen ook ontmoetingen, samenwerking en het verkennen van de wereld, wat hen verbindt met hedendaagse onderwijsinzichten die de nadruk leggen op creativiteit, participatie en zintuiglijke ontwikkeling.
Er wordt in dit verslag specifiek gekeken naar hoe de drie populaire videogames creativiteit, samenwerking en zintuiglijk leren stimuleren door hun digitale omgeving. De centrale onderzoeksvraag is: “Hoe kunnen inzichten uit Roblox, Minecraft en Fortnite gebruikt worden om fysieke leeromgevingen te ontwerpen die creativiteit, samenwerking en zintuiglijk leren stimuleren?”
Het voornaamste doel van het onderzoek is om een brug te slaan tussen de wereld van videogames en schoolarchitectuur en aan te tonen hoe het ontwerp van videogames inzichten kan bieden voor de evolutie van schoolarchitectuur. Dit wordt gesymboliseerd door de titel ‘Digitale Bouwstenen’, gericht op het verrijken van het leerproces door aan te sluiten bij de belevingswereld van kinderen.
Een ander belangrijk doel is het aansporen van onderwijsorganisaties om de beperkingen van traditionele
Het onderzoek heeft een tweetrapsopbouw, waarbij in het eerste deel, Level I, de belevingswereld van de kinderen in games wordt geobserveerd en vertaald naar ruimtelijke concepten. In het tweede deel, Level II, worden de ruimtelijke concepten toegepast in een praktijksituatie door middel van een casestudie. Dit verslag omvat, naast de inleiding, de volgende hoofdstukken:
Hoofdstuk 1. Theoretisch kader: Biedt een overzicht van relevante literatuur over leertheorieën, de rol van spel in het leren en de waarde van virtuele gamewerelden.
Hoofdstuk 2. Level I: Legt uit hoe de observaties in de virtuele gamewereld zijn uitgevoerd en geanalyseerd en toont hoe digitale ervaringen zijn omgezet naar concepten voor fysieke leeromgevingen.
Hoofdstuk 3. Level II: Vertaalt de concepten uit de gamewereld naar een praktijksituatie met behulp van een casestudie.
Hoofdstuk 4. Conclusies en Aanbevelingen: Vat de belangrijkste bevindingen samen en biedt suggesties voor toekomstige ontwerpen van leeromgevingen.
Reflectie: Reflecteert op het onderzoeksproces en de implicaties voor de toekomst van onderwijsinnovatie. leeromgevingen in te zien en de leeromgeving meer aan te passen aan de natuurlijke manieren van leren en leven. Dit onderzoek stelt daarom ook een belangrijke vervolgvraag: “Hoe verhouden deze inzichten zich tot de leeromgeving van het traditionele zit- en luisteronderwijs?” Deze vraag richt zich op de aanpassingen die nodig zijn om leeromgevingen te creëren die actief leren bevorderen.
Toelichting van het hoofdstuk, waarin kort wordt toegelicht wat de inhoud van de paragrafen is.

Voorbeeldweergave van de beginpagina van een hoofdstuk.
Schema ter ondersteuning van de tekst.
Termen die groen en cursief zijn, zijn termen die in de naastgelegen toelichting worden uitgelegd.
Toelichting op afbeeldingen en schema’s.

Voorbeeldweergave van de pagina met tekst en schema’s.
De groene teksten in de brede tekstkaders benadrukken een conclusie of samenvatting.

Voorbeeldweergave van de pagina met een samenvatting of conclusie.
Dit hoofdstuk, het theoretisch kader, bespreekt relevante theorieën en bestaande onderzoeken die betrekking hebben op het leren van kinderen, de impact van fysieke ruimte op leren, de rol van games in de ontwikkeling van kinderen en meer.
Dit onderzoek richt zich enerzijds op gebieden die al lange tijd in ontwikkeling zijn, namelijk pedagogiek en schoolarchitectuur. Het is belangrijk om begrippen zoals traditioneel onderwijs, vernieuwingsonderwijs, pedagogiek, Montessori en leerlandschappen te begrijpen, evenals de relaties ertussen. Anderzijds focust dit onderzoek zich op een onderzoeksgebied dat slechts 40 jaar geleden is ontstaan, namelijk de virtuele gamewereld. Het is belangrijk om duidelijk te hebben wat deze wereld inhoudt en welke bestaande studies hieraan gerelateerd zijn. Tot slot zijn er ook studies die zich hebben beziggehouden met de kruisbestuiving tussen de virtuele gamewereld en architectuur in het algemeen. Bij deze studies is het relevant om te bespreken welke methoden hierbij zijn toegepast.
Concreet bestaat dit hoofdstuk uit vier paragrafen met de volgende onderwerpen:
“De wereld door kinderogen” begint met inzichten uit de ontwikkelingspsychologie en pedagogiek. Dit onderdeel gebruikt bestaande onderzoeken om uit te leggen hoe belangrijk het is om leeromgevingen te ontwikkelen die goed aansluiten bij hoe kinderen de wereld zien en begrijpen.
“Van het krijtbord tot cyberspace” onderzoekt hoe de schoolarchitectuur is veranderd in lijn met pedagogische inzichten. Dit deel bespreekt ook hoe de opkomst van het digitale tijdperk invloed heeft gehad op onderwijsmethoden en dus op het ontwerp van leeromgevingen.
“Nieuwe realiteiten van de kinderbeleving” richt de aandacht op de wereld van videogames, oftewel de virtuele gamewereld. Er wordt onderzocht hoe deze wereld aansluit bij het onderzoek en welke rol het speelt in de ontwikkeling en het leren van kinderen.
“Vermenging van digitale en fysieke belevingen” behandelt bestaande studies naar de integratie van digitale en fysieke ervaringen in leeromgevingen. Dit onderdeel verkent hoe de principes van de digitale spelwereld toegepast kunnen worden bij het fysiek inrichten van scholen.
Het vakgebied ontwikkelingspsychologie helpt te begrijpen hoe kinderen de wereld om hen heen zien en leren begrijpen. Het verkennen van dit onderzoeksgebied is een logische eerste stap, omdat het fundamenten legt voor het begrijpen van pedagogische visies. Allereerst worden er belangrijke mijlpalen toegelicht vanuit het vakgbied van de ontwikkelingspsychologie. Te beginnen met het werk van kinderpsycholoog Jean Piaget.
Jean Piaget, een vooraanstaand figuur in dit veld, beschreef kinderen als jonge ontdekkingsreizigers die actief leren door interactie met hun omgeving (Piaget & Inhelder, 2008). Dit idee heeft diepgaand de algemene kennis verrijkt over de manieren waarop kinderen leren en hoe zij de wereld interpreteren. Na Piaget hebben andere onderzoekers zoals Lev Vygotsky en Howard Gardner verder inzicht geboden in kinderlijke ontwikkeling. Vygotsky benadrukte het belang van sociale interactie en cultuur, terwijl Gardner aantoonde dat intelligentie veelzijdig is en dat kinderen op diverse manieren kunnen uitblinken (Hooijmaaijers & Stokhof, 2014)
Een sleutelconcept uit de ontwikkelingspsychologie is het constructivisme, voorgesteld door Piaget. Dit idee suggereert dat kinderen kennis verwerven door hun omgeving te verkennen en ermee in wisselwerking te treden. Bijvoorbeeld, wanneer een kind blokken stapelt
Een foto van een klein kind dat een balk vasthoudt en met alle zintuigen de balk waarneemt. (Eigen foto).

en een toren bouwt, leert het over balans en zwaartekracht door directe ervaring en experiment (Piaget & Inhelder, 2008). Dit actieve leerproces is wat Piaget zag als de kern van leren.
Vygotsky voegde toe dat leren diepgeworteld is in sociale contexten. Leren fietsen met hulp van een ouder of vriendje illustreert hoe samenwerking en communicatie de ontwikkeling versnellen, een idee dat onderstreept hoe belangrijk sociale interactie is in het leerproces van kinderen.
Gardner’s theorie van meervoudige intelligenties opent onze ogen voor de diverse talenten van kinderen. Een kind dat misschien niet uitblinkt in wiskunde maar wel in muziek, laat zien dat er verschillende soorten intelligenties zijn die allemaal waardevol zijn. Het erkennen van deze diverse talenten is essentieel om elk kind te helpen zich volledig te ontwikkelen (Hooijmaaijers & Stokhof, 2014).
Vanuit de ontwikkelingspsychologie gezien, wordt elk kind als uniek persoon gezien die zelf de wereld ontdekt en leert begrijpen. De psychologie geeft inzichten in het denken, voelen en het wereldbegrip van kinderen, terwijl pedagogiek deze kennis toepast om effectieve onderwijsmethoden te ontwerpen.
De pedagogische benadering heeft zich sinds de Verlichting aanzienlijk ontwikkeld. Er zijn verschillende ontwikkelingen geweest in de pedagogiek in de afgelopen eeuwen. Van gelijkheid tot aan de recente nadruk op digitale competenties en emotionele intelligentie. In het kader van gelijkheid bedacht Comenius -een filosoof, hervormer en pedagoog uit de 17e eeuw- bijvoorbeeld aan een school waar elk kind welkom is, niet alleen de rijke of slimme kinderen. Het idee van gelijkheid of beter gezegd inclusiviteit is nog steeds een relevant thema. Op dit moment is de digitalisering van de maatschap -

pij ook een belangrijk thema. Vooral nu we in een wereld leven waar computers en internet een grote rol spelen. Kinderen leren nu ook hoe ze moeten omgaan met technologie, iets wat digitale vaardigheden wordt genoemt.

Op de cartoonprent wordt het principe van constructivisme uitgelegd. Links is de reguliere rol van een docent die kennis overdraagt aan de leerlingen met een oplossing voor een bepaald probleem. Terwijl rechts het principe van constructivisme weerspiegeld wordt, waarbij de kennis niet rechtstreeks wordt overgedragen, maar waarbij leerlingen zelf dienen na te denken over de mogelijke oplossingen. Deze betrokken manier van leren, zorgt ervoor dat de leerlingen de kennis beter onthouden. (bron: Massinks, 2023).
Voordat er scholen bestonden, leerden kinderen thuis of in kleine groepjes van hun ouders of een lokale expert belangrijke dingen zoals lezen, schrijven en rekenen. Voor sommige, vaak rijkere, families betekende dit privélessen of onderwijs op speciale scholen (Boekholt & De Booy, 1987).
In de 19e eeuw begon dit te veranderen door de industriële revolutie, die zorgde voor een behoefte aan meer gestandaardiseerd onderwijs. Scholen werden georganiseerd met als doel algemene kennis en vaardigheden te leren, nodig voor de toekomstige werkende bevolking. Het idee dat alle kinderen tot een bepaalde leeftijd naar school moeten, de leerplicht, ontstond eerst in Duitsland en daarna in Nederland rond 1900.
Deze scholen richtten zich vooral op uniformiteit en discipline, met klassen waarin kinderen in rijen zaten en luisterden naar de leraar die voor een krijtbord stond. Er was weinig ruimte voor vragen of creativiteit. Voor kinderen betekende dit lange dagen van stilzitten en luisteren, waarbij de lesmethoden vooral gericht waren op tekst en toetsen. Dit systeem zorgde wel voor een standaardniveau van kennis, maar hield weinig rekening met de persoonlijke interesses of talenten van elk kind (Robinson & Aronica, 2015).
Een klaslokaal rond 1910, Collectie Nationaal Onderwijsmuseum, Dordrecht.

Na de Tweede Wereldoorlog begonnen mensen kritiek te uiten op dit strikte systeem. Ze zagen in dat niet elk kind op dezelfde manier leert en dat onderwijs flexibeler moet zijn, meer afgestemd op de behoeften van elk kind. Dit leidde tot nieuwe vormen van onderwijs, waarin het kind en zijn belevingswereld centraal staan, bekend als vernieuwingsonderwijs (Boekholt & De Booy, 1987)
Binnen vernieuwingsonderwijs vallen methoden zoals Montessori en Jenaplan, die kinderen centraal stellen en leren aanpassen aan hun behoeften. Montessori-onderwijs, bedacht door Maria Montessori, gebruikt speciale materialen waarmee kinderen zelfstandig kunnen leren. Een voorbeeld zijn sensorische materialen, waarmee kinderen spelenderwijs wiskundige concepten en zintuiglijke vaardigheden ontwikkelen. Jenaplan-onderwijs, ontwikkeld door Peter Petersen, benadrukt leren in gemeenschap. Kinderen van verschillende leeftijden werken samen in projecten, bevorderen zo zowel academische als sociale vaardigheden. Beide methoden illustreren hoe vernieuwingsonderwijs individuele groei en ontwikkeling ondersteunt door kinderen actief bij hun leerproces te betrekken (Robinson & Aronica, 2015).
In het vernieuwingsonderwijs is creativiteit belangrijk. Kinderen worden aangemoedigd om buiten de gebaande paden te denken, originele ideeën te ontwikkelen en op creatieve wijze problemen op te lossen. Ze werken aan projecten die echte problemen aanpakken, wat niet alleen hun creativiteit stimuleert, maar ze ook voorbereidt op de echte wereld. Het creatieve proces kent verschillende werkvormen en stadia, zoals inspiratie opdoen, feiten verzamelen, gegevens herschikken, de focus op de taak leggen, verkennen van opties, realisatie en tot slot reflectie(Doorley, 2012).Deze werkvormen vereisen verschillende houdingen, zoals samenwerken, communiceren en zelfstandig werken.
Ook participatie is essentieel; kinderen zijn actief betrokken bij hun leerproces. Ze mogen meebeslissen over wat en hoe ze leren, wat leidt tot betere samenwerking, communicatie en empathie. Kinderen leren zo niet alleen van de leraar, maar ook van elkaar, wat het leren dieper en betekenisvoller maakt.
Zintuiglijke ervaringen zijn ook een groot deel van vernieuwingsonderwijs. Door te leren via directe ervaringen, zoals natuurwandelingen of wetenschappelijke experimenten, wordt leren levendig en interessant. Kinderen ontdekken dat de wereld om hen heen niet alleen met hun ogen, maar met al hun zintuigen, wat bijdraagt aan hun algehele ontwikkeling.
Door deze benaderingen sluit het onderwijs beter aan bij hoe kinderen de wereld ervaren en stimuleert het hun natuurlijke nieuwsgierigheid en verlangen om te ontdekken en te leren. Zo worden niet alleen academische vaardigheden verbeterd, maar ook de sociale, emotionele en creatieve ontwikkeling van kinderen ondersteund.
Montessori geeft les op haar school in Smithfield, Londen in 1951 (bron: Trouw, 2014).

Dit overzicht laat zien hoe ons begrip van kinderen en hun leerproces aanzienlijk is geëvolueerd, wat heeft geleid tot de opkomst van vernieuwingsonderwijs. Desondanks kiezen veel scholen nog steeds voor traditionele onderwijsmethoden. Informatie op de website scholenopdekaart.nl laat zien dat van de 7.024 reguliere basisscholen in Nederland, 1.671 vernieuwingsonderwijs aanbieden, terwijl 5.353 scholen de conventionele methode volgen. Deze methode legt de nadruk op gestructureerde lessen en toetsen.
De onderwijsfilosoof Sir Ken Robinson heeft uitgebreid zijn bezorgdheid geuit over deze aanpak in zijn werken. In zijn boek “Creatieve Scholen” bekritiseert hij het traditionele onderwijssysteem voor het onderdrukken van individuele talenten, verbeelding en creativiteit. Hij wijst op de praktijk waarbij kinderen worden aangemoedigd om kennis op een uniforme wijze te absorberen en regelmatig worden getoetst. Kinderen die afwijken van de norm worden soms zelfs aangepast met medicatie, om maar te kunnen functioneren binnen dit strakke systeem. Dit gaat vooral ten koste van kinderen die van nature meer behoefte hebben aan beweging. Vernieuwingsonderwijs, met bijvoorbeeld bewegend leren, zou deze kinderen juist kunnen ondersteunen door onderwijs te bieden dat beter aansluit bij hun behoeften.
Robinson benadrukt dat het traditionele systeem de unieke eigenschappen van elk kind negeert, terwijl vernieuwingsonderwijs deze juist erkent en kinderen helpt hun eigen sterke punten te ontwikkelen en te benutten. De hervorming van het onderwijs, zoals voorgesteld door Sir Ken Robinson en vele andere onderwijsexperts, is essentieel om kinderen adequaat voor te bereiden op hun en onze toekomst. Ondanks talrijke publicaties en studies die deze hervorming ondersteunen, blijft het traditionele onderwijssysteem overheersen.
De keuze voor een onderwijssysteem heeft ook invloed op de architectuur van schoolgebouwen. Ondanks de dominantie van traditionele methodes hebben schoolgebouwen toch interessante ontwikkelingen doorgemaakt, zoals leeromgeving die ontworpen zijn op basis van pedagogische inzichten die verbonden zijn aan het vernieuwingsonderwijs. Dit verder wordt verkend in de volgende paragraaf.

Een cartoon waarbij de leerkracht de leerling vraagt zijn medicatie te nemen om op deze wijze beter aandacht te kunnen hebben in de les. Deze cartoon geeft de situatie weer van de manier waarop kinderen worden aangepast om mee te kunnen draaien in het zit- en luisteronderwijs. (bron: Presentationzen, z.d.).
School te Utrecht, J.P. Coenstraat, circa 1905 interieur klaslokaal met schoolbanken gericht naar het krijtbord (bron: Nederland naar school, 1996).

Een plattegrond met uitgestrekte schoolbanken. Lagere school te Scheemda, 1795, plattegrond (bron: Nederland naar school, 1996).
Tot laat in de 18e eeuw was onderwijs in Nederland voornamelijk de verantwoordelijkheid van lokale gemeenschappen, kerken en individuele initiatieven. Met de oprichting van de Bataafse Republiek in 1795 kwam hier verandering in en kreeg de overheid een grotere rol. Dit zorgde voor de bouw van betere schoolgebouwen en markeerde het begin van het klassikaal onderwijs rond 1800. Scholen uit die tijd werden gebouwd met veel aandacht voor luchtkwaliteit en gezondheid, en introduceerden lessen rond het krijtbord als een gestructureerde, maar strikte leermethode (Boersma & Verstegen, 1996) Hoewel deze aanpak verbeteringen op het gebied van hygiëne en organisatie bracht, was

er weinig aandacht voor de individuele leerbehoeften van kinderen.
In de 20e eeuw, na de invoering van de leerplicht in 1901, kwamen de zogenoemde standaardscholen op, bedoeld om uniform onderwijs te bieden aan een snel groeiend aantal leerlingen. Deze scholen waren een verbetering, maar boden weinig ruimte voor de natuurlijke nieuwsgierigheid en bewegingsdrang van kinderen (Robinson & Aronica, 2015).
De manier waarop scholen werden gebouwd, begon te veranderen met meer nadruk op pedagogische inzichten, naast functionele en gezondheidsaspecten. De traditionele indeling van scholen, met nadruk op discipline en orde, voldeed niet aan de behoeften van kinderen naar persoonlijke aandacht en de ruimte om hun nieuwsgierigheid te volgen (Boersma & Verstegen, 1996).
Een plattegrond en een gevelbeeld van een typische klassikale gangschool. School te Utrecht, Janskerkhof, 1886, (Nederland naar school, 1996).


Twee kinderen die actief aan het leren en spelen zijn in de ruimte buiten de klaslokalen. Almere basisschool Polygoon 1992, Hertzberger (bron: De scholen van Hertzberger, 2009).
Na 1945 brachten pedagogische theorieën, onder invloed van denkers als Jean Piaget en Lev Vygotsky, een verschuiving teweeg. Ze pleiten voor onderwijs dat aansluit bij de ontwikkelingsstadia en individuele behoeften van kinderen, wat leidde tot methoden zoals Montessori, Dalton en Jenaplan (Vernieuwingsonderwijs | het Onderwijsloket, z.d.). Deze methoden openden de deuren naar klassen en leeromgevingen die kinderen stimuleren tot zelfontdekking en actief leren.
Hoewel veel scholen nog vasthouden aan het traditionele klaslokaal waar iedereen zijn vaste plek heeft, zien we een groeiend aantal scholen die dit concept loslaten. Deze innovatieve scholen introduceren een nieuw idee: leerlandschappen. Hierin is niet één vaste plek voor iedereen. Kinderen mogen kiezen waar ze werken, soms zelfs hun eigen plekje uitkiezen. Dit idee steunt op het principe dat kinderen op verschillende manieren leren en dat een school daarop moet inspelen. Deze scholen worden ingericht als flexibele en uitnodigende ruimtes die kinderen aanzetten tot persoonlijke groei en het ontdekken van nieuwe dingen. (Broekhuizen & Verstegen, 2008) Door slim gebruik te maken van verschillende materialen en de ruimtes anders in te delen, worden deze scholen plekken waar kinderen graag leren en spelen.
Er zijn verschillende manieren om een dynamische leeromgeving te creëren. Door naar voorbeelden te kijken, zien we diverse strategieën die het traditionele klassikale schoolmodel gedeeltelijk of helemaal hebben veranderd in een open leeromgeving. Een voorbeeld van zo’n open leeromgeving is de school ‘t Karregat in Eindhoven, waar alle binnenmuren zijn verwijderd.
Dit zorgt ervoor dat kinderen elkaar altijd kunnen zien, wat leidt tot een sterkere gemeenschapszin binnen de school. Sommige scholen kiezen ervoor om een deel van de binnenmuren te verwijderen of gebruik te maken van verplaatsbare wanden. Dit leidt tot grote, open ruimtes die zijn opgedeeld in verschillende thematische zones.
Elke strategie biedt, door de manier waarop er met begrenzingen zoals muren wordt omgegaan, een unieke ervaring in hoe kinderen de ruimte beleven. Hier volgen nu een aantal voorbeeldprojecten die illustreren hoe deze aanpakken in de praktijk functioneren en welke invloed ze hebben op de leerervaringen van kinderen.
Op de bovenste afbeelding is een foto van het interieur van de school ‘t Karregat, waarbij er geen afgesloten klaslokalen zijn, maar het klaslokaal wordt gedefinieerd door borders en verhogingen. Op de onderste afbeelding is de plattegrond te zien van dezelfde school, waarbij te zien is dat de school in dezelfde ruimte is geplaatst als het winkelgebied, een tweede school en andere gemeenschappelijke functies, zonder dat hier afgezonderde ruimtes zijn toegepast. (bron: Google, z.d).



Bij het ontwerpen van leeromgevingen kan de strategie van overlappende ruimtes een grote rol spelen in het stimuleren van verkenning. Dit houdt in dat verschillende ruimtes in elkaar overgaan en er doorgangen zijn die de grenzen tussen de ruimtes vervagen. Het idee is om kinderen uit te nodigen om te verkennen en ontdekken, door de ruimte zo in te richten dat nieuwsgierigheid wordt gestimuleerd (Hertzberger, 2008).
Een voorbeeld hiervan is de Montessorischool in Delft, ontworpen door Herman Hertzberger. Hier zijn de ruimtes ontworpen zonder vaste wanden, wat zorgt voor flexibiliteit en een gevoel van openheid creëert. Hertzberger had een duidelijk doel voor ogen: een schoolomgeving moest zowel veilig als dynamisch zijn. Hij ontwierp een leerlandschap waar kinderen geleidelijk vanuit hun vertrouwde klaslokaal naar meer openbare ruimtes kunnen bewegen, afhankelijk van hun behoefte. Door ruimtes in elkaar over te laten lopen, nodigde hij kinderen uit om hun omgeving actief te verkennen, mede doordat de overgangen tussen ruimtes niet altijd duidelijk zijn.
Deze aanpak speelt in op de natuurlijke drang van kinderen om te ontdekken en te spelen. Door verschillende activiteitengebieden visueel en fysiek met elkaar te
Schema van het bovenaanzicht van overlappende en in elkaar grijpende ruimtes.


Plattegrond van de Montessorischool in Delft, waarbij te zien is dat door de verstaffeling van de klaslokalen in combinatie met verschillende afmetingen qua ruimtes, er overlappende ruimtes ontstaan. (bron: Ruimte en leren,

Twee kinderen die samenwerken in een afgezonderde kindernis die aan de gemeenschappelijke ruimte grenst.
(bron: Ruimte en leren, 2008)
verbinden, worden kinderen aangemoedigd hun leeromgeving te verkennen en samen te werken met andere kinderen. Dit bevordert niet alleen sociale vaardigheden en teamwork, maar maakt kinderen ook bewust van de diverse mogelijkheden die hun omgeving biedt.
Hertzberger voegde ook hoekjes, nisjes en diverse beschutte werkplekken toe die verbonden zijn met gemeenschappelijke ruimtes. Een interessant detail is dat kinderen met behulp van kleedjes hun eigen privédomein binnen een openbare ruimte kunnen creëren, wat kinderen de vrijheid geeft de dynamiek van hun leeromgeving naar eigen behoefte vorm te geven.
Dit ontwerp stimuleert kinderen om een actieve rol te spelen in hun eigen leerproces, ondersteunt hun zintuiglijke ontwikkeling en bevordert creativiteit door ze de vrijheid te geven hun omgeving op hun eigen manier te verkennen en te interpreteren.


Op deze twee foto’s is te zien op welke wijze kinderen in de school zichtlijnen hebben met het schoolplein. Daarnaast wordt de relatie binnen en buiten versterkt door het universeel toepassen van steenblokken. Deze zijn zowel als buiten- en binnenmuren gebruikt. Montessorischool Delft (bron:Ruimte en leren, 2008).
In de Montessorischool in Delft loopt binnen en buiten in elkaar over. Dit komt doordat hij dezelfde soort stenen voor zowel de binnen- als buitenmuren gebruikt. Samen met de vele ramen die uitzicht bieden op buiten, maakt dit de overgang van binnen naar buiten minder duidelijk. Kinderen voelen zich hierdoor meer verbonden met de buitenwereld, wat hen stimuleert om zowel binnen als buiten te verkennen en te leren. Dit ontwerp benadrukt dat leren overal kan plaatsvinden, niet alleen binnen de muren van het klaslokaal.
Op deze foto is de veelzijdigheid te zien van de toegepaste gevelsteen als speelelement in de zandbak. De gaten in de steen geven de kinderen de behoefte om hiermee te spelen. Montessorischool Delft (bron: Ruimte en leren, 2008).

Schema van een plattegrond van de leeromgeving met gedeeltelijke muren en geen afgezonderde klaslokalen. De hele ruimte is niet in een oogopslag waar te nemen, waardoor nieuwsgierigheid en verkennen ruimtelijk wordt gestimuleerd.
De tweede strategie waar we bij stilstaan, is de benadering van een leeromgeving zonder klaslokalen. Dit concept wordt toegepast op de school de Toverberg in Zoetermeer. Hier zijn alle ruimtes met elkaar verbonden, waardoor de hele school één open gebied vormt. De afmetingen van de ruimtes bepalen of het een persoonlijke of een gemeenschappelijke plek is.
Bij de Toverberg zorgen meubels en bepaalde wanden ervoor dat niet alles direct zichtbaar is. Dit ontwerp moedigt kinderen aan om hun omgeving te verkennen en te ontdekken wat er om de hoek te vinden is. Het maakt de school een boeiende plek waar nieuwsgierigheid wordt gewekt en kinderen worden aangespoord om op ontdekkingstocht te gaan.
Deze benadering stimuleert de nieuwsgierigheid van kinderen en draagt bij aan het ontdekken en verkennen.
Drie foto’s op verschillende posities van het interieur van de school de Toverberg te Zoetermeer. Door meubilair en verschillende wanden worden ruimtes gecree erd waar kinderen instructie krijgen of zelfstandig kunnen werken. (bron: Schooldomein, 2023).
Plattegrond van de leeromgeving van de Toverbergschool in Zoetermeer. (bron: Schooldomein, 2023).





De derde strategie in het creëren van vernieuwende leeromgevingen draait om het concept van flexibele begrenzing. Deze benadering maakt het mogelijk om ruimtes aan te passen aan wat er op dat moment nodig is, waardoor verschillende manieren van leren en allerlei activiteiten worden ondersteund. Een school die deze strategie toepast, is Daltonschool De Spaarndammerhout in Amsterdam. Hier gebruiken ze aanpasbare wanden om de indeling van de ruimte te veranderen op basis van de huidige behoeftes. Deze flexibiliteit maakt het mogelijk om de ruimtes voor verschillende onderwijsactiviteiten te gebruiken, van individuele studie tot groepsprojecten.

Isometrische weergave van het principe van een leeromgeving met verschuifbare wanden.
Plattegrond van de Daltonschool ‘De Spaarndammerhout’ in Amsterdam, de stippellijnen geven weer welke wanden verschuifbaar zijn. (bron: Schooldomein, 2023)
Een ander inspirerend voorbeeld is de Fuji Kindergarten in Tokyo, Japan, ontworpen door Tezuka Architects. Deze school maakt gebruik van verschuifbare buitenwanden en creëert met vaste elementen, zoals bouwblokken, een flexibele leeromgeving. Dit zorgt voor een dynamische en aanpasbare leeromgeving waarin kinderen worden uitgenodigd om zowel binnen als buiten een werkplek te zoeken, wat de grens tussen binnen en buiten doet vervagen.
Hoewel deze benaderingen veel flexibiliteit bieden, is het belangrijk om te vermelden dat de mate van flexibiliteit en de keuze voor de inrichting van de leeromgeving vaak niet direct door de kinderen zelf wordt bepaald, maar afhankelijk is van de beslissingen van een leraar. Op deze manier hebben kinderen in mindere mate directe regie over hun werkplek. Dit benadrukt het belang van een bewuste en responsieve houding van leraren bij het faciliteren van een adaptieve leeromgeving die aansluit bij de behoeften van elke leerling.

Plattegrond en rechts een drietal foto’s van de Fuji Kindergarten in Tokyo, Japan, waar alle buitenwanden verschuifbaar zijn. (bron: Archdaily, 2017).




De vierde strategie van de reeks innovatieve onderwijsideeën betreft het gebruik van een open ruimteconcept, waarbij de school is ingedeeld in thematische leerzones. Dit idee transformeert een enkele, grote ruimte met behulp van diverse objecten en structuren die verschillende activiteitenzone afbakenen. Elke zone is ontworpen om meerdere leeractiviteiten te faciliteren. Aan de hand van twee voorbeelden wordt dit concept toegelicht.
Dit gymnasium heeft een grote, open ruimte waarin objecten fungeren als aparte ‘zones’ voor uiteenlopende activiteiten, zoals lezingen, workshops en sociale evenementen. Het gebruik van unieke, abstracte vormen verhoogt de veelzijdigheid van het gebouw en geeft het een bijzondere uitstraling.


Isometrische weergave van het principe van een open leeromgeving met objecten als ruimtes.
Op de foto en plattegrond is te zien dat de leeromgeving van het gymnasium Ørestad bestaat uit verschillende klassikale ruimtes en objecten die in de open ruimtes zijn geplaatst waardoor er een mix ontstaat tussen de traditionele klaslokaal leeromgeving en de informele omgeving die door de ronde objecten worden gefaciliteert. (bron: Een traditie van verandering, 2008).
Deze foto’s laten een schoolomgeving zien van De Vittra School van Rosan Bosch. De leeromgeving van de kinderen bestaat uit verschillende objecten en kleine ruimtes die een specifieke vorm van leren faciliteren. Op de rechterfoto boven is een groene ligbank te zien waar kinderen comfortabel kunnen werken. Op de achtergrond is een grotachtige ruimte te zien, die geluidsdicht is waardoor hier geconcentreerd werken mogelijk is. (bron: Rosan Bosch, 2023).
De Vittra School Telefonplan in Zweden, ontworpen door Rosan Bosch. Op een vergelijkbare manier maakt deze school gebruik van objecten in een grote open ruimte voor diverse doeleinden. Wat opvalt, is dat de vormgeving van deze objecten heel specifiek is en gericht op bepaalde leerervaringen, wat elke zone een eigen karakter geeft.
Beide scholen laten zien hoe door het inzetten van objecten en zones een leerlandschap ontstaat die niet alleen praktisch is, maar ook de manier waarop leerlingen de ruimte beleven en gebruiken verrijkt. Dit stimuleert participatie en moedigt leerlingen aan om zelf of samen op ontdekkingstocht te gaan. Zo’n dynamische leeromgeving prikkelt de nieuwsgierigheid en nodigt uit tot zelfstandig leren en samenwerken.




Aan de hand van deze referentieprojecten kan er geconcludeerd worden dat kinderen op verschillende manieren kunnen leren in verschillende leeromgevingen. De exacte vorm en focus van deze leeromgevingen kunnen verschillen, afgestemd op de unieke pedagogische visies. Sommige onderwijsmethodes vinden het belangrijk dat kinderen van elkaar leren of door samen te werken met de natuur. Sommige scholen vinden technologie heel belangrijk en anderen gebruiken dit haast niet. Een school die technologie een belangrijke rol geeft zijn de Steve Jobs-scholen. Deze scholen gebruiken technologie, zoals iPads, om elk kind op zijn eigen manier te laten leren. Leraren hebben bij deze scholen een meer begeleidende rol in plaats van vooral frontaal voor de klas uitleggen. Ook zorgt het gebruik van technologie ervoor dat kinde -
Op deze foto zien we kinderen in de leeromgeving van een Steve Jobs school in Amsterdam. De traditionele schoolbank is vervangen door de iPad. (bron: Innovateedu, z.d.).


ren niet alleen in de klas leren, maar ook thuis en op het internet.
David D. Thornburg, een expert op het gebied van onderwijs en technologie, heeft diepgaand gekeken naar hoe de digitale wereld het leren beïnvloedt. Zijn werk, ‘Campfires in Cyberspace’, laat zien dat ondanks alle nieuwe technologieën, de basisbehoeften voor leren hetzelfde blijven. Thornburg kwam met het idee van ‘archetypische leerervaringen’, die bestaan uit vier kernervaringen die samen een evenwichtige leeromgeving vormen: ‘kampvuur’, voor het delen van kennis en verhalen; ‘Drinkplaats’, een plek waar kinderen op een makkelijke manier van elkaar leren; ‘Grotten’, een plek voor persoonlijke bezinning; en ‘Levensbomen’, waar leren plaatsvindt door echte ervaringen. Deze manieren van leren zijn, volgens Thornburg, nog steeds van groot belang, zelfs met de vooruitgang in technologie. Deze leerervaringen kunnen ook specifiek gespiegeld worden aan de leeromgeving van kinderen.

Kamvpuur




Hier draait het om het formele delen van kennis, waarbij een expert of leraar informatie deelt met kinderen. Dit is een moment waarop kinderen een basis krijgen voor hun verdere leren.



Drinkplaatsen
Dit zijn de informele ontmoetingsplaatsen waar kinderen kennis en ervaringen uitwisselen met hun leeftijdsgenoten. Deze plekken stimuleren samenwerking en helpen kinderen hun begrip van onderwerpen te verdiepen.


Grotten
Deze individuele ruimtes bieden de kans voor diepe reflectie en persoonlijke groei. Het zijn plekken waar leerlingen zich kunnen concentreren op wat ze hebben geleerd en dit kunnen verwerken.



Levensbomen
Het toepassen van geleerde kennis in de echte wereld. Door kennis in praktijk te brengen, leren leerlingen hoe theorie en praktijk elkaar kunnen versterken. Natuurlijke elementen of praktische tools in de leeromgeving verrij -
ken deze ervaring.
Deze onderwijsideeën sluiten goed aan bij wat bekende onderwijzers zoals Piaget hebben gezegd over actief leren en de rol van het kind als een actieve deelnemer in zijn of haar eigen leerproces. Met deze benadering kunnen scholen plekken maken die niet alleen vol zijn met informatie en technologie, maar die ook helpen bij de groei van het kind. Dit biedt een goede manier om verschillende soorten onderwijs te bekijken en te kiezen wat het beste werkt voor elk kind.
Nu technologie een steeds grotere rol speelt in het leven van de kinderen, is het essentieel dat de leeromgeving zich blijft ontwikkelen om deze nieuwe realiteit te omarmen. In de volgende paragraaf duiken we verder in de digitale wereld van de kinderen.
Naast de fysieke leeromgeving besteden veel kinderen tijd in de wereld van videogames. Volgens het peilstationsonderzoek 2019 van het Trimbos Instituut wordt ongeveer 89% van de kinderen in deze leeftijdscategorie gekenmerkt als gamer, waarvan 38% dagelijks gamet (Trimbos-instituut, 2022). In dit digitale tijdperk vinden ontmoetingen tussen kinderen plaats online via sociale media en verschillende games. Kinderen in de leeftijdscategorie van 4-12 jaar besteden aanzienlijk veel tijd aan game-omgevingen. Videogames zijn interactieve spellen die worden getoond op een beeldscherm, zoals een televisie, computermonitor of smartphone. Spelers bedienen het spel met controllers, toetsenborden, muizen of aanraakschermen. Deze games variëren van eenvoudige puzzels tot complexe werelden waar men kan verkennen, missies voltooien en met andere spelers kan samenwerken of tegen hen kan spelen. De games kunnen thuis gespeeld worden op spelcomputers zoals de PlayStation of Xbox, op de computer, en onderweg op draagbare apparaten zoals smartphones en tablets. Dit maakt videogames toegankelijk voor bijna iedereen, overal.
Op de onderstaande foto is een meisje te zien die de videogame Minecraft aan het spelen is op de iPad. (bron: Belga, 2013).


Een weergave van de spelconsoles die de afgelopen 50 jaar zijn uitgebracht (bron: Belga, 2013).
Professor Katherine Isbister onderscheidt in haar boek “How Games Move Us” games in twee categorieën, namelijk gaming en playing (Isbister, 2017). Gaming is een meer gestructureerde activiteit die volgens een reeks regels of wetten wordt uitgevoerd, zoals bij schaken of een voetbalspel.
Playing omvat spellen die meer door fantasie gedreven zijn en minder beperkt worden door vaste regels, hoewel het definiëren van regels wel een belangrijk onderdeel kan zijn van het spelen. Deze spellen focussen meer op de talenten, karakters en interesses van kinderen. Belangrijk is dat kinderen zich niet beperkt voelen door autoriteit en dat er ruimte is voor participatie en zelforganisatie.
Er bestaan veel verschillende soorten videogames, onderverdeeld in genres net als bij films (Isbister, 2017). Zo zijn er actiespellen waar het draait om snelle reflexen, avonturenspellen die mensen meenemen op een verhalende reis en puzzelspellen die het denkvermogen op de proef stellen. Elk genre biedt een unieke ervaring, afhankelijk van wat het kind zoekt.
Videogames kunnen alleen gespeeld worden, wat ‘singleplayer’ genoemd wordt, of met anderen, wat ‘multiplayer’ genoemd wordt. In singleplayer games beleven de kinderen het avontuur alleen, terwijl in multiplayer games wordt samengewerkt of gestreden tegen vrienden of spelers van over de hele wereld via een internetverbinding. Al deze verschillende digitale videogames samen vormen de virtuele gamewereld.
Deze afbeeldingen vertonen de principes van gaming en playing.
De bovenste afbeelding is van een voetbalvideogame genaamd Fifa 98. Dit is een gaming spel, waar de regels “vast” staan.
De onderstaande afbeelding laat een videogame zien wat het principe playing laat zien. De gamer kan in dit spel in een open wereld een pretpark maken en beheren waardoor het spel niet zo afgekaderd is qua regels, zoals het voetbal wel heel duidelijke kaders heeft qua regels en tijden. (bron: Twitch, 2023).


Het begrijpen van de gamewereld, die verder gaat dan specifieke videogames, omvat ook verschillende sociale platforms waar kinderen uit diverse sociaaleconomische achtergronden samen spelen. De platform zijn vaak een mix tussen gaming en playing spellen. Deze platforms dienen als digitale attractieparken met een groot aanbod aan ‘attracties’ die interactieve en individuele ervaringen bieden. Deze plaformen kunnen worden beschouwd als digitale attractieparken. Elk platform heeft een unieke stijl en thema. Kinderen navigeren door deze digitale attractieparken met een avatar, zelf vormgegeven en aangekleed en ontmoeten digitaal anderen. Afhankelijk van het platform is het mogelijk dat kinderen zelf items zoals kleren, schoenen en tassen kopen. Dergelijke digitale omgevingen staan bekend als de metaverse.
De metaverse is een digitale wereld waar individuen samenkomen om te spelen, werken, leren en met elkaar te praten, volledig online. Het wordt gezien als een enorme digitale ruimte, vergelijkbaar met het internet, maar ingericht als een ruimtelijke wereld. In de metaverse gebruiken mensen een digitale versie van zichzelf, een avatar, om rond te lopen, met anderen te praten, te bouwen, games te spelen en meer.
Links is een eigen gemaakte maquette te zien die een poging doet om het principe van de metaverse te vertalen naar een fysiek model.
Foto van een kind dat de videogame Fortnite aan het spelen is. (bron: Twitch,2023).


In de introductie worden drie games uitgelicht die erg populair zijn onder kinderen van 4 tot 12 jaar: Minecraft, Roblox en Fortnite. Deze games zijn verschillende uitwerkingen van de digitale wereld die de Metaverse wordt genoemd.
Net als films hebben videogames ook verschillende genres; actie, horror, sport, futuristisch, open wereld, sandbox en nog veel meer. Binnen deze genres zijn weer verschillende manieren van spelen binnen gaming.
Het genre ‘sandbox’ en ‘open wereld’ zijn van toepassing op Minecraft. ‘Sandbox’, oftewel zandbak, biedt een speelwijze die lijkt op spelen in een echte zandbak, zonder specifieke instructies (Isbister, 2017). ‘Open wereld’ duidt op een wereld die voor iedereen toegankelijk is. In Minecraft kunnen kinderen werelden bouwen en deze verkennen met een methode vergelijkbaar met Lego, inclusief de toevoeging van spelelementen zoals gevechten.
Roblox wordt geclassificeerd als ‘sandbox’ of ‘door gebruikers gegenereerd’. Spelers kunnen hun eigen werelden creëren en ook spelcomponenten toevoegen. Dit houdt in dat kinderen zelf spellen kunnen ontwerpen in deze digitale wereld. Ze kunnen bijvoorbeeld

Van links naar rechts gezien zijn dit actiebeelden van populaire videogames: Minecraft, Fortnite en Roblox. bron: Twitch, 2023.

een schaakbord maken of een racebaan om te racen. Het ontwerpen van deze spellen is een belangrijk aspect van deze game. Vandaar, naast de classering ‘sandbox’, ook de classificatie ‘door gebruikers gegenereerd’.
Fortnite valt onder het genre ‘open wereld’ en ‘battle royale’. Dit is in de basis een survivalgame die spelers uitdaagt om in een steeds kleiner wordende wereld te overleven. Avatars en een uitgebreid wapenarsenaal zijn cruciale elementen. Naast deze survivalgame, kunnen spelers met hun avatar anderen ook ontmoeten en zelfs virtuele concerten bijwonen, wat Fortnite een mix van strategie, bouw en zelfexpressie maakt.
Een gedeeld kenmerk van deze games is de mogelijkheid om in een digitale wereld andere kinderen te ontmoeten en dat kinderen zelf invloed kunnen uitoefenen op hun omgeving. Dit biedt kinderen de vrijheid om zelf te kiezen hoe ze spelen, wat creatief denken, probleemoplossend vermogen en samenwerking stimuleert. Deze aanpak sluit aan bij een pedagogische visie die creativiteit, participatie en zintuiglijke ervaringen bevordert. De parallellen tussen deze aspecten van gamewereld en architectuur openen nieuwe mogelijkheden om te verkennen hoe digitale ruimtes creativiteit en interacties in de fysieke wereld kunnen beïnvloeden en verrijken. Het volgende deel gaat in op de kruisbestuiving tussen de gamewereld en architectuur.


Het onderzoeksgebied dat de verbinding tussen videogames en architectuur verkent, focust op de inzet van gameprincipes voor het vormgeven van gebouwen en stedelijke ruimten. Dit veld biedt inzichten in hoe elementen uit de digitale spelwereld, zoals interactiviteit en gebruikersbetrokkenheid, toegepast kunnen worden om fysieke omgevingen te verbeteren. Door te kijken naar hoe games ruimtes ontwerpen die zowel boeiend als functioneel zijn, kunnen ontwerpers innovatieve ideeën opdoen voor het realiseren van meer levendige en responsieve architectuur.Hier volgen enkele voorbeelden van onderzoeksmethodes die deze benadering illustreren.
Game-ontwerpprincipes : De toepassing van game-ontwerpprincipes in architectuur leidt tot de creatie van vernieuwende, interactieve omgevingen die zowel de verbeelding prikkelen als functioneel zijn. Een voorbeeld hiervan is de integratie van dynamische verlichting en geluidseffecten uit games in openbare ruimtes, waardoor deze plekken levendiger en aantrekkelijker worden voor bezoekers.
Hieronder een fragment te zien van een game-analyse van Pacman uit het boek Space Time Play: Computer Games, Architecture and Urbanism: The Next Level van Friedrich von Borries, waarbij stedenbouwkundige experimenten worden uitgevoerd aan de hand van deze gameplay.

Virtuele realiteit (VR) dompelt gebruikers onder in een compleet digitale omgeving via een headset, terwijl augmented reality (AR) digitale informatie of beelden toevoegt aan de echte wereld, zichtbaar via smartphones of speciale brillen.
Gebruikerservaring : Door inzichten uit virtuele werelden te benutten, kunnen unieke gebruikerservaringen worden gecreëerd die nieuwe perspectieven bieden op het gebruik en de beleving van fysieke ruimtes. Een voorbeeld hiervan is het ontwerpen van gebouwen en interieurs die aan te passen zijn naar de behoeften van de gebruiker, geïnspireerd door de aanpasbare omgevingen in games.
Virtual en augmented reality ( VR & AR ) : Deze technologiee n bieden architecten krachtige middelen om ontwerpen op een indrukwekkende, meeslepende manier te presenteren. Zo kan een architect met VR een klant door een nog te bouwen gebouw leiden, maar ook AR maakt het mogelijk om digitale verbeteringen in de echte wereld te zien, zoals het visualiseren van een nieuw gebouw op een bestaande locatie.
Gamification: Het toepassen van spelelementen in niet-spelcontexten, zoals het leren in architectuur, maakt het leerproces boeiender en interactiever. Een voorbeeld van gamification in de architectuur is een educatief programma waarbij studenten missies en uitdagingen moeten voltooien in een virtuele stad, waardoor ze spelenderwijs leren over stedenbouwkundige principes.

Deze vier aspecten vormen slechts een deel van de onderzoeksvelden, maar specifiek in dit onderzoek ligt de focus op game-ontwerpprincipes en gebruikerservaring om de kwaliteiten van bestaande games te ontdekken. Het boek “Space Time Play: Computer Games, Architecture and Urbanism: The Next Level” van Friedrich von Borries, Steffen P. Walz, en Matthias Böttger belicht deze relatie tussen computerspellen en architectuur uitgebreid en dient als een fundamentele bron voor de verdere verkenning van dit onderzoeksgebied.
Het boek benadrukt dat games onze kijk op ruimte en tijd kunnen veranderen en hoe belangrijk dit inzicht is voor het ontwerpen van steden en gebouwen. Het beschrijft hoe virtuele werelden meer bieden dan alleen plekken om te ontdekken; ze kunnen helpen om de echte wereld rijker te maken qua ervaringen. Door te leren van de manier waarop games verhalen vertellen en plekken creëren waar je iets kunt doen, krijgen architecten nieuwe ideeën om steden en gebouwen leuker en levendiger te maken. Het boek praat ook over hoe van games geleerd kan worden om stadsleven aantrekkelijker te maken en toont aan dat games veel kunnen leren over het ontwerpen van steden en het bouwen van gebouwen.
Een voorbeeld uit dit boek is een analyse van het spel Super Mario. Deze analyse laat zien hoe belangrijk het is om goed op te letten en te luisteren in het spel, met name hoe de game zicht en geluid op elkaar afstemt. Geluiden helpen spelers te begrijpen waar ze zijn en wat er om hen heen gebeurt. Dit geeft nieuwe ideeën over het gebruik van geluid in bijvoorbeeld scholen, waar geluid vaak wordt beperkt om de les niet te storen. Verschillende geluiden kunnen een ruimte echter aangenamer maken, wat helpt bij het gevoel van privacy en het gevoel deel uit te maken van een groep. Dit laat zien dat het belangrijk is om niet alleen te kijken, maar ook te luisteren en te voelen hoe een ruimte wordt ervaren.

Het werk van Friedrich von Borries, Steffen P. Walz, en Matthias Böttger biedt een bijzondere zienswijze op hoe videogames geanalyseerd kunnen worden.
In het volgende hoofdstuk, “Level 1”, worden drie videogames onder de loep genomen. Er wordt gezocht naar wat deze games bijzonder maakt en hoe dat kan helpen bij het ontwerpen van echte plekken. Door te kijken hoe kinderen games spelen, net zoals kinderpsychologen en pedagogen kijken naar hoe kinderen zich gedragen, kan het spelen van games veel inspiratie geven. Het doel is om te ontdekken hoe de manier waarop games zijn ontworpen en hoe ze worden ervaren, kan helpen bij het ontwikkelen van creativiteit, samenwerking en het ervaren van de wereld om ons heen. Er wordt vooral gekeken naar hoe ruimtes in games gedrag kunnen bei nvloeden en wat dat betekent voor het ontwerpen van fysieke ruimtes.
Hieronder een fragment te zien van een game-analyse van Super Mario waarbij de game onder de loep wordt genomen (bron: Twitch, 2023).

Dit theoretisch kader bestudeert vier kernthema’s gerelateerd aan kinderontwikkeling: onderwijsmethoden, schoolgebouwen, de gamewereld en de link tussen games en architectuur. Hier volgt op een beknopte wijze de uiteenzetting:
Onderwijsmethoden en schoolgebouwen
De evolutie van pedagogische methoden, gericht op de individuele leerbehoeften en talenten van elk kind, heeft geleid tot een heroverweging van de traditionele schoolomgeving. Vernieuwingsonderwijs, met methoden zoals Montessori en Jenaplan, benadrukt het belang van een adaptieve en stimulerende leeromgeving. Deze pedagogische verschuiving heeft scholen aangezet tot de ontwikkeling van flexibele leerlandschappen die creativiteit, samenwerking en zelfsturend leren bevorderen, waardoor een directe verbinding tussen pedagogiek en schoolomgeving ontstaat.
Inzichten van David Thornburg
Thornburg introduceert een model met vier kernleerervaringen: kampvuur, waterput, grot en levensbomen. Dit model ondersteunt het ontwerp van complete leeromgevingen die informatieoverdracht, sociale interactie, reflectie en de toepassing van kennis in de echte wereld bevorderen.
Digitale wereld van de Kinderen
De digitale revolutie heeft niet alleen de maatschappij getransformeerd, maar ook een diepgaande invloed gehad op onderwijsmethoden. Kinderen groeien op in een wereld waarin technologie en gamen een belangrijk deel van hun leven vormen.
Videogames en vernieuwingsonderwijs
Populaire games zoals Minecraft en Fortnite stimuleren creativiteit, probleemoplossing en actieve deelname, wat overeenkomt met de doelen van het vernieuwingsonderwijs. De wijze waarop kinderen door spel leren en ontdekken, weerspiegelt de pedagogische principes van een actieve en betrokken leerhouding.
Gamewereld & architectuur
In de afgelopen decennia is onderzoek ontstaan dat verkent hoe de principes van gameontwerp kunnen bijdragen aan het vormgeven van de fysieke omgeving. Een methode is het observeren van gameontwerpen, om deze manier van vormgeven te gebruiken als inspiratie voor de fysieke wereld.
In het kader van dit onderzoek zal er een observatie zijn van hoe kinderen met games omgaan, wat inzichten kan bieden voor onderwijsinnovaties
In het eerste deel van een tweedelig onderzoek wordt de digitale wereld van Minecraft, Roblox, en Fortnite verkend om de belevingswereld van kinderen te onderzoeken. De focus ligt op de stimulatie van creativiteit, ontdekking, en samenwerking bij kinderen door het ontwerp van deze spellen. Deze digitale ervaringen worden daarna omgezet naar fysieke concepten binnen de context van bestaande klassikale leeromgevingen.
Methode: Verkenning via Twitch
Eerst wordt uiteengezet hoe de observatie van gamende kinderen plaatsvindt en welke analysemethoden toegepast zijn.
Observaties van kinderen spelend in videogames zoals Fortnite, Minecraft, en Roblox worden gedetailleerd besproken, met een focus op bijdragen aan creativiteit, ontdekking, en samenwerking. Ook wordt de verbinding met pedagogische theorieën onderzocht.
Van digitale belevenissen naar fysieke concepten
Hier wordt beschreven hoe de analyses van digitale ervaringen zijn omgezet naar concepten voor fysieke klassikale leeromgevingen.
In het afsluitende paragraaf komen de belangrijkste bevindingen aan bod. Deze bevindingen bieden nieuwe perspectieven voor het ontwerpen van dynamische en interactieve leeromgevingen.
De observaties zijn verricht via het medium Twitch. Twitch is een website waar gamers hun computerscherm kunnen delen terwijl ze videogames spelen. Kinderen van over de hele wereld kunnen dan meekijken, net zoals men zou doen over de schouder van iemand die een spel speelt. Op Twitch kunnen kijkers ook communiceren met de persoon die het spel speelt, via berichtjes. Kinderen kunnen zich aanmelden bij Twitch en tijdens het gamen kunnen zij ervoor kiezen om hun spelactiviteit uit te zenden. Of zij nu heldenrollen aannemen in hun eigen verhalen, werelden bouwen in Minecraft, of op missie gaan in Fortnite, hun ervaringen tijdens het spelen - van frustraties tot momenten van vreugde - bieden inzicht in hun digitale belevingswereld. Hier volgen nu in een beknopte wijze aan aantal belangrijke punten als het gaat over de methodiek.
Datacollectie
De focus van deze studie ligt op populaire spellen onder kinderen tot 12 jaar, zoals Fortnite, Minecraft en Roblox, met speciale aandacht voor de ‘open wereld’-modus vanwege het potentieel om creativiteit, betrokkenheid en ontdekking te stimuleren. Gegevens worden verzameld uit livestream-sessies op Twitch, waar kinderen hun spelervaringen delen. Dit biedt inzicht in hun interactie met het spel, hoe zij uitdagingen tegemoet treden en nieuwe werelden verkennen.


Rechts is een schermweergave te zien van een observatie via Twitch. In het midden wordt de gameplay uitgezonden. Links is een schema te zien met de andere kijkers en rechts is een chatruimte, waarbij iedereen met elkaar kan communiceren.


Fragment van het beginscherm van de website van Twitch, waarbij opvalt dat de games Fortnite en Minecraft bovenaan staan, wat aangeeft hoe populair deze videogames zijn
De analyse richt zich op de evaluatie van spellen door een educatieve lens, gebruikmakend van pedagogische theorieën over creativiteit, engagement en zintuiglijke exploratie. Unieke speleigenschappen worden onderzocht op hun potentieel om deze aspecten bij kinderen te bevorderen. Een voorbeeld hiervan is het toepassen van modulaire speelelementen, geïnspireerd door Minecraft’s stapelmogelijkheden, die de waarde van aanpasbaarheid en gebruikersinitiatief benadrukken.
De methode van live-observatie biedt een authentiek beeld van kinderspel, hoewel er beperkingen zijn in termen van betrouwbaarheid en validiteit door variabele content. Het gebruik van Twitch biedt voordelen zoals openbare toegankelijkheid, terwijl tegelijkertijd de privacy van spelers wordt beschermd door geen persoonlijke informatie te onthullen.
In de volgende paragrafen wordt deze boeiende digitale wereld verder verkend.


Fortnite is een online game waarin 100 spelers via een parachute op een eiland worden gedropt met één doel: overleven en als laatste overblijven. In Fortnite zijn “verkennen” en “veranderende omgevingen” gameprincipes die de spelervaring uniek maken. Deze principes vereisen dat spelers niet alleen snel denken en handelen, maar ook voortdurend hun strategieën aanpassen aan een omgeving die nooit hetzelfde blijft.
Deze uitdaging wordt verrijkt door drie cruciale gameplay-elementen: een heuvelachtig eiland, een onvoorspelbare, krimpende storm die spelers naar elkaar drijft, en een uniek bouwsysteem dat spelers in staat stelt om snel structuren te bouwen voor bescherming of om hoger gelegen punten te bereiken.


Het eiland waarop de spelers landen, is qua omvang vier keer zo groot als het eiland Texel. Het is een heuvelachtig gebied met verschillende steden en dorpen. Op de heuvels hebben de spelers uitzichten en kunnen ze elkaar spotten, maar vanwege de grote afstand is het te lastig om met elkaar te strijden. Om met elkaar de strijd aan te gaan, moeten ze naar elkaar toe komen door het dal in te gaan. In dit dal liggen gebouwen en dorpen. Het stimuleren van een ontmoeting door elkaar op de heuvels te kunnen spotten en vervolgens elkaar op te zoeken is een belangrijk element dat spelers aanzet tot verkennen.
Boven is het beginscherm te zien van het spel. De gamer vliegt met een parachute boven het eiland en kan zelf kiezen wanneer hij of zij landt.
speler 2 speler 1


Schema van het eiland waar het spel zich afspeelt. Het eiland bestaat uit verschillende steden blokken (zwart) en daaromheen een heuvelachtig gebied.
Links is een schematische doorsnede te zien tussen twee heuvels. De spelers kunnen elkaar op de heuvels zien, maar zullen naar elkaar toe moeten komen om ten strijde te gaan. Dit gebeurt meestal in het dal, waar de gebouwen de zichtlijnen laten wegvallen en er toevallige ontmoetingen ontstaan.

Het unieke bouwsysteem van Fortnite stelt spelers in staat om snel structuren te bouwen voor bescherming of om hoger gelegen punten te bereiken. Dit betekent dat in een vuurgevecht de speler die het beste en snelste kan bouwen vaak een strategisch voordeel heeft.
Dit fragment laat een bouwwerk zien dat gemaakt is door een gamer. Met het maken van deze objecten kan de gamer een eigen beschutting bouwen tegen de aanvallen van de tegenstanders.

Fragment van de verschillende plaatmaterialen die toepasbaar zijn, met elk een andere kwaliteit en sterkte. De materialen zijn overal op het eiland te vinden, maar moeten wel door de gamer verzameld worden.


Hierboven is een ingezoomd fragment te zien van een stedelijke omgeving waar de door de gamer gebouwde objecten zijn geplaatst. De gamer wordt uitgedaagd om op een effectieve wijze te bouwen, zodat het bouwwerk bestand is tegen de tegenaanval.

Het meest kenmerkende element van Fortnite’s veranderende omgeving is de storm, die spelers naar elkaar toe drijft door het speelbare gebied geleidelijk te verkleinen. Elke twee à drie minuten wordt de cirkel kleiner, waardoor spelers gedwongen worden zich aan te passen aan een nieuwe omgeving. De constante dreiging van de storm stimuleert spelers om het eiland te verkennen en te ontdekken, op zoek naar materialen en strategische posities, terwijl het bouwsysteem een creatieve en tactische respons op zowel de omgeving als de acties van andere spelers mogelijk maakt.


Rechts wordt aan de hand van zes weergaves het principe van de krimpende storm vertoond op de plattegrond van het eiland. De gamer die in de storm belandt wordt uitgeschakeld en kan niet meer meedoen in de huidige sessie. De opening, waar de storm niet is, kan soms van positie veranderen. In een tijdsbestek van een paar minuten krimpt de stormvrije cirkel en verandert deze willekeurig van positie. Hieronder is een fragment te zien van de storm vanuit de lucht. (bron: Twitch, 2023).






In Fortnite is ondanks vastgestelde omgevingen elk spel uniek. Spelers verkennen actief hun omgeving voor hulpbronnen, reageren op veranderingen en blijven waakzaam voor tegenstanders. Dit dynamische spel bevordert niet alleen aanpassingsvermogen en strategisch denken, maar maakt ook de ervaringen levendig en uitdagend.
Verkennen wordt gestimuleerd door zichtlijnen en een veranderende omgeving, wat bijdraagt aan een leerrijke setting. Dit stimuleert ontdekkend leren, een belangrijk pedagogisch principe dat spelers aanzet tot voortdurende planning en verbetering van vaardigheden in bouwen en strategie.

Minecraft dompelt spelers onder in een wereld gemaakt van blokken, een plek waar bouwen en verkennen samensmelten tot een speelse manier van leren.
Bij het opstarten worden spelers geplaatst in een elke keer anders zijnde wereld, vol met vrijheden om te ontdekken en de omgeving naar wens aan te passen.
Door navigatie in twee centrale spelmodi, Survival en Creative, wordt creativiteit, samenwerking, probleemoplossend vermogen en planningsvaardigheden gestimuleerd.
Wat minecraft qua gameplay uniek maakt is de eenvoud en de veelzijdigheid van de blokken en daarnaast het hands-on principe waarbij kinderen zonder instructies of voorafbedachte doelen te werk gaan.


Een weergave van het blokkenlandschap van Minecraft. De gamers kunnen in dit landschap alle blokken weghalen of blokken toevoegen. (bron: Twitch, 2023).
In de wereld van Minecraft is alles opgebouwd uit blokken, van de kleinste tuin tot de grootste berg en elk bouwwerk daartussen. Deze blokken hebben allemaal dezelfde maat, wat het bouwen eenvoudiger maakt, een beetje zoals met legoblokjes spelen. Het gebruik van deze blokken leert gebruikers hoe ze ruimtes goed kunnen inrichten en geeft ze inzicht in het belang van evenwicht en samenhang.


Dit is het gezichtsveld van de gamer, die als het ware als persoon door de omgeving loopt en met de rechterhand blokken kan toevoegen of verwijderen. (bron: Twitch, 2023).
Via een menu kan de gamer in een keuzepalet komen waar verschillende soorten en typen blokken gekozen kunnen worden. (bron: Twitch, 2023).

De verscheidenheid aan blokken in Minecraft biedt een scala aan materialen, elk met unieke kenmerken. Zo zijn er de harde steenblokken voor stevige bouwwerken, terwijl zand- en houtblokken weer andere uitdagingen met zich meebrengen, zoals verzakken of in brand vliegen. Deze kenmerken nodigen uit tot doordacht bouwen en vooruitplannen. Het verkennen van de meest geschikte methodes en materialen voor uiteenlopende projecten wordt hiermee een belangrijk onderdeel van het spel.
In deze schermweergave is te zien dat de blokken ook speciale functionaliteiten kunnen hebben, zoals een schakelaar. (bron: Twitch, 2023).

In deze digitale zandbak staat ‘Leren door te doen’ centraal. Vanaf het eerste moment zijn spelers vrij om te experimenteren: van het kappen van bomen voor hout tot het delven naar waardevolle grondstoffen. Deze hands-on benadering introduceert spelers op natuurlijke wijze in de wereld van constructie en het nut van diverse materialen.
Dit actieve leren stimuleert niet alleen de verbeelding, maar brengt ook lessen in levensvaardigheden zoals vooruitplannen en middelenbeheer. Het bouwen van je eerste huis in Minecraft is meer dan een spel; het is een les in strategie, doorzettingsvermogen en creativiteit.



In de linker schermweergave is te zien op welke eenvoudige wijze de blokken gestapeld kunnen worden. (bron: Twitch, 2023).






De bovenliggende reeks van blokken stapelen laat zien op welke wijze de blokken doorgestapeld kunnen worden, zonder rekening te houden met fysieke zwaartekracht.

Minecraft dient als een praktijkvoorbeeld van het constructivisme, een onderwijstheorie die benadrukt hoe kennis wordt opgebouwd uit ervaring. Door kinderen uit te nodigen hun verbeelding te gebruiken bij het bouwen van structuren, biedt Minecraft hen de mogelijkheid om direct te leren van de gevolgen van hun eigen acties. Dit proces stimuleert niet alleen actieve betrokkenheid en creatieve expressie maar ondersteunt ook hun cognitieve ontwikkeling op een interactieve manier. Minecraft illustreert zo de waarde van spelgebaseerd leren binnen het kader van het constructivisme, door aan te tonen dat digitale omgevingen concrete bijdragen kunnen leveren aan de ontwikkeling van fysieke leercontexten. Het spel moedigt kinderen aan tot actieve exploratie en een verdiept begrip van hun interactie met de wereld, essentieel voor een effectief leerproces.

Roblox vormt een unieke speelomgeving waar het vertellen van verhalen en deelname aan deze verhalen centraal staan.
Dit platform biedt kinderen, alleen of samen, de mogelijkheid om uit een breed scala aan verhaalgedreven ervaringen te kiezen, vergelijkbaar met het selecteren van nummers op een jukebox. Elke keuze leidt hen naar een uniek avontuur, waar ze actief deel van uitmaken.


Een schermweergave van het startmenu van Roblox, waar de verschillende spellen of verhalen gekozen kunnen worden. (bron: Twitch, 2023).
Een kernaspect van Roblox is de nadruk op verhaalgedreven ervaringen. Spellen binnen dit platform slepen spelers mee in avonturen, van mysterieuze steden vol geheimen tot heroïsche speurtochten, waarbij de spelers zelf de richting en uitkomst van het verhaal beïnvloeden. Deze interactiviteit maakt spelers tot een essentieel onderdeel van het verhaal, waarbij hun acties de wereld om hen heen vormgeven.
Vier schermweergaven van verschillende ervaringen of spellen. De bovenste weergave speelt zich af in een Gucci-winkel en hier kan de gamer digitale items kopen. Bij de tweede weergave stapt de gamer in de wereld van Napoleon om de strijd aan te gaan. In de onderliggende ervaring kan de gamer als onderhoudsmedewerker werkzaamheden verrichten. Tot slot is in de laatste weergave een simulatie te zien, waarbij de gamer samen met andere gamers een uitzending van het NOS journaal uitvoert. (bron: Twitch, 2023).





Een schermweergave van een interactieve gameplay binnen Roblox waar de Slag bij Waterloo wordt gevoerd en waarbij de gamer samen met andere gamers strategieën en tactieken moet bepalen. (bron: Twitch, 2023)
Roblox promoot interactie en samenwerking op creatieve wijze. Spelers worden uitgedaagd om samen te werken aan projecten zoals het bouwen van een stad, wat niet alleen een uitwisseling van ideeën, maar ook samenwerking vereist.
Daarnaast biedt het platform kansen voor introspectie, zoals bij het ontwerpen van eigen spellen. Dit proces stimuleert spelers om na te denken over wat spellen leuk maakt en hoe ze anderen kunnen betrekken bij hun creaties. Feedback van de gemeenschap wordt hierbij een waardevolle les.




Een schermweergave van een metro-ervaring, met een subtiele verwijzing naar een speciaal event. (bron: Twitch, 2023)

Een schermweergave van een introspectieve ervaring, waarbij een gamer een fabriek met productie opbouwt en via een simulatie moet zorgen dat de fabriek winstgevend is. (bron: Twitch, 2023)
Roblox biedt een rijke mix van verhalende diepgang en creatieve vrijheid, die samen een vruchtbare omgeving vormen voor het ontwikkelen van creativiteit, samenwerking en zelfreflectie. Dit platform belichaamt de pedagogische theorieën van David Thornburg over de kracht van verschillende leerervaringen, zoals het ‘kampvuur’ en ‘grotten’, waarbij de dynamiek van ontmoeten en terugtrekken centraal staat. Binnen Roblox vinden spelers gemeenschappelijke ‘kampvuurmomenten’ waar verhalen worden gedeeld en ervaringen uitgewisseld in een collectieve setting. Tegelijkertijd bieden ‘grot’-achtige ervaringen de mogelijkheid voor individuele verdieping en introspectie, waar spelers zich kunnen terugtrekken om te bouwen, creëren, of simpelweg de diepte van hun eigen verbeelding te verkennen. Door deze wisselwerking tussen gemeenschappelijke interactie en persoonlijke reflectie benadrukt Roblox het belang van zowel sociale als individuele leerprocessen.
De games hebben waardevolle inzichten opgeleverd over hoe participatie, creativiteit en zintuiglijke waarneming gestimuleerd kunnen worden. Deze paragraaf gaat in op hoe deze inzichten zijn omgezet naar fysieke concepten die binnen een leeromgeving de participatie, creativiteit en zintuiglijkheid bevorderen.
Centraal in dit onderzoek staat de zoektocht naar nieuwe inzichten uit de gamewereld en een kritische blik op de beperkingen van het traditionele klassikale schoolmodel. Er is bewust gekozen om deze digitale inzichten toe te passen binnen de context van een bestaande schoolomgeving. Deze stap maakt het mogelijk het conventionele klassikale model te herzien en te transformeren naar een omgeving die, geïnspireerd door de gamewereld, participatie, creativiteit en zintuiglijke ervaringen stimuleert.
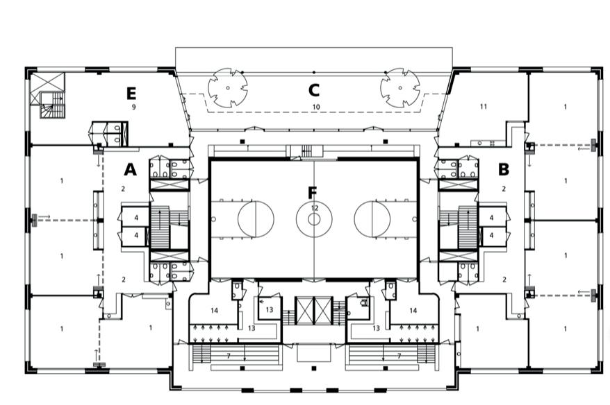
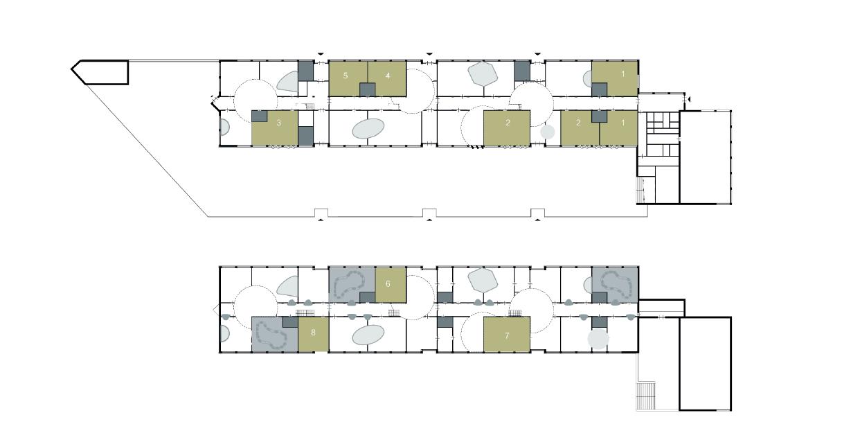
De vertaalslag van digitale ervaringen naar een fysieke setting heeft plaatsgevonden in een specifiek geselecteerde school, die door zijn diverse ruimtes zoals klaslokalen, gangen en een gemeenschappelijke ruimte, verdeeld over twee verdiepingen, ideaal bleek. De keuze voor basisschool De Kasteelhoeve in Zwolle was doorslaggevend vanwege de variëteit in ruimtes, wat essentieel was voor de implementatie van de ontwikkelde concepten.
De isometrische weergaves van de ruimtes illustreren hoe basisschool De Kasteelhoeve dient als experimenteeromgeving voor het toepassen en testen van de uit de gamewereld afgeleide concepten in een fysieke leeromgeving

3D weergave van de structuur van de basisschool de Kasteelhoeve die gebruikt wordt als context voor de toepassing van het vertalen van de nieuwe concepten. De school is geschikt vanwege de diversiteit qua ruimtes: hal, gang, lokaal, atrium en tot slot de horizontale en verticale schakeling van klaslokalen.

Fortnite, met zijn nadruk op verkennen heeft geïnspireerd tot een ruimtelijk concept waarbij het spelen met zichtlijnen verkenning en toevallige ontmoetingen stimuleert. Denk hierbij aan de verkenningsdrang door de zichtlijnen op de heuvels.
speler 2 speler 1 Links is een schematische doorsnede te zien tussen twee heuvels. De spelers kunnen elkaar op de heuvels zien en worden getriggerd om elkaar op te zoeken. Dit leidt tot toevallige ontmoetingen met andere gamers.
Bij de toepassing van dit gameprincipe is ervoor gekozen om het verkennen in de klassikale leeromgeving te stimuleren door doelbewuste ingrepen, ook wel interventies genoemd. Geïnspireerd door de techniek van Gordon Matta-Clark, waarbij geometrische vormen uit structuren worden gesneden, zoals te zien in zijn ‘Office Baroque’-project. Zonder diepgaand in te gaan op de kwaliteiten van dit werk, nodigt deze aanpak uit tot een nieuwe beleving van ruimte, bevordert het bewustzijn en stimuleert het heroverwegen van onze omgeving. Door ruimtes aan te passen, worden kinderen aangemoedigd om verder te kijken dan het gebruikelijke en de wereld om hen heen actiever te verkennen. Een bijkomende kwaliteit van deze werkwijze is het concept van gestaltpsychologie, het idee dat mensen onvolledige beelden instinctief compleet maken, wat leidt tot een dieper begrip en nieuwe perspectieven voor hun omgeving. Deze werkwijze wordt voornamelijk toegepast om het ontdekken en verkennen te stimuleren door ruimtes visueel en fysiek aan elkaar te koppelen.

Een foto van het werk van kunstenaar Gordon Matta-Clark, die op strategische plekken geometrische vormen in een bestaand gebouw had weggehaald, waardoor er een nieuwe ruimtelijkheid ontstaat waarbij nieuwe zichtlijnen ontstaan. Gordon Matta-Clark, Office Baroque 1977 (bron: Google, z.d.).
Een eigen gemaakte maquette van karton van de school de Kasteelhoeve waarbij bolvormen op verschillende plekken zijn ingesneden en verdraaid.

In beide modellen zijn bolvormige insnijdingen aangebracht op verschillende plekken binnen een bestaande schoolhal, precies op de overgang tussen lokalen en gangen. Deze insnijdingen zijn met zorg uitgevoerd om de bestaande structuur van de school te verrijken. Bij model 1 zijn de insnijdingen verwijderd, terwijl in model 2 de insnijdingen rond hun middelpunt zijn geroteerd. De keuze voor een bolvorm is ingegeven door het sterke contrast dat deze vormt met de bestaande rechte wanden en vloeren.
Model 1 hanteert het burlesque-principe, waarbij de nadruk niet enkel ligt op het direct zichtbare, maar juist op het onthullen van het verborgene. Door strategisch delen van wanden en vloeren weg te halen, komen nieuwe visuele verbindingen tot stand die nieuwsgierigheid prikkelen. Zo is op een afbeelding te zien hoe dit ruimtelijk effect sorteert: een kind op de eerste verdieping vangt een glimp op van andere kinderen, wat de drang tot verkennen kan stimuleren. Deze ontdekkingsroute kan vervolgens leiden tot diverse ontmoetingen.
Een maquette van karton van de school de Kasteelhoeve van de onderkant gezien, waarbij bolvormen op verschillende plekken zijn ingesneden en verwijderd.




Een reconstructie van het principe van het weghalen van een bolvorm uit de gangruimte. Op deze weergave is te zien dat het weghalen van de wanden en vloeren nieuwe zichtlijnen creëert en op de verdieping een gedeelte van de gang weghaalt, wat de bereikbaar van de aangrenzende ruimtes op de 1e verdieping verstoort.


Model 2 stimuleert exploratie door de bestaande zichtlijnen te onderbreken en nieuwe fysieke connecties tot stand te brengen, wat de nieuwsgierigheid prikkelt en de wens tot ontdekking versterkt. Door obstakels in de looproutes worden kinderen gedwongen keuzes te maken, waarbij diverse ruimtes op zowel de begane grond als de verdiepingen met elkaar in verbinding staan. Deze aanpak wekt niet alleen nieuwsgierigheid, maar moedigt ook actief verkennen en ontdekken aan.
Een tweede maquette van karton van de school de Kastelhoeve gezien van de onderkant, waarbij bolvormen op verschillende plekken zijn insneden en verdraaid.



Een reconstructie van het principe van het insnijden van een bolvorm in de gangruimte en deze vervolgens verdraaien om zijn middenas. Op deze weergave is te zien dat de verdraaiing als een blokkade fungeert, waardoor de bestaande zichtlijn in de gang verdwijnt, maar er ook nieuwe fysieke toegangen ontstaan met de naastgelegen klaslokalen.
In beide modellen wordt het verkennen gestimuleerd door het manipuleren van zichtlijnen, wat bijdraagt aan een dynamisch leerlandschap. Dit bevordert ontdekkend leren, een essentieel pedagogisch principe dat aanzet tot constante planning en het verfijnen van vaardigheden in zowel bouwen als strategie.


Minecraft heeft geleid tot het idee van leren door hands-on ervaringen met aanpasbare objecten, die kinderen uitnodigen tot diverse toepassingen. Dit concept stimuleert kinderen om actief hun speel- en leeromgeving vorm te geven. Samenwerking en creatie worden aangemoedigd, evenals leren door ervaring - voelen, zien en doen. Door met verschillende materialen te werken en actief deel te nemen aan het bouwproces, verkennen kinderen spelenderwijs de wereld.

Weergave van een demontage van een tafel en stoel, die gebruikt kunnen worden als grondstoffen voor nieuwe objecten.
De eerste toepassing introduceert een demontagemethode, waarbij meubels zoals stoelen en tafels gedemonteerd worden om als basis voor nieuwe creaties te dienen. Dit benadrukt het idee van spelen met objecten buiten hun gebruikelijke context, waarmee kinderen nieuwe dingen of zelfs eigen speelplekken kunnen bouwen, wat hun creativiteit en verbeeldingskracht stimuleert.


Een tweetal experimenten om met de tafelbladen nieuwe zit- en leerplekken te creëren die het samenwerken en leren stimuleren. Bij de linker installatie ontstaan er verschillende hoek- en zitvlakken, wat kinderen bewust een plek laat kiezen. De rechter installatie fungeert als een soort van turbine, waarbij de focus ligt op het collectief aanschouwen. Hieronder is een weergave te zien van de linker installatie in een gangcontext. De installatie reageert op de nauwe gang op een manier, waarbij de gang minder voorspelbaar wordt en waar kinderen kunnen ontdekken.


De eerste toepassing bouwt voort op het idee van insnijdingen in muren en vloeren, waarbij de overgebleven stukken zijn omgevormd tot handzame objecten van diverse vormen en groottes. Deze objecten kunnen in elkaar worden gezet als flippo’s, waardoor kinderen ondersteunende objecten voor het leerproces kunnen creëren.

Op de linkerafbeelding is een uitslag te zien van vormen die gebruikt kunnen worden voor het maken van verschillende installaties door de kinderen.
Links is de 3D-geprinte versie te zien van de objecten. Bij de keuze van de vormen is gekeken naar bestaand speelgoed met de kwaliteit dat de objecten door de vorm en connectiemogelijkheden, oneindig veel mogelijkheden hebben, zonder dat er specifieke spelinstructies nodig zijn. Dit resulteerde in met name veel bochtachtige vormen, die vanwege de vorm bijdragen aan de veelzijdigheid qua gebruik.

Boven en onder verschillende foto’s van gemaakte installaties en objecten, die als ondersteuning van het leerproces gebruikt kunnen worden, als aanvulling op de traditionele werktafel.
Bij beide toepassingen ontstaan objecten die zowel individueel als collectief te gebruiken zijn, en die kinderen invloed geven op hun leeromgeving op meubilairschaal. De vorm en functionaliteit van deze objecten ondersteunen het leerproces. Zonder vaste regels of specifieke instructies hebben kinderen de vrijheid om hun spel te definiëren, wat creatief denken, probleemoplossend vermogen en samenwerking bevordert






Terugblik op de twee verschillende game-ervaringen, van interactie en introspectie. (bron: Twitch, 2023).
Roblox heeft aangezet tot het overwegen van het faciliteren van uiteenlopende ervaringen, waardoor kinderen kunnen kiezen tussen momenten van afzondering of samenwerking. Het principe van de narratieve -verhalende- ervaringen van Roblox heeft geleid tot het idee van verschillende bouwblokken, die zowel interactie als introspectie mogelijk maken. De bouwblokken zijn ontworpen met diverse vormen die, door rotatie, verschillende functionaliteiten bieden.
Weergave van de Roblox-poppetjes die naar eigen smaak aangekleed kunnen worden. (bron: Twitch, 2023).

Bovenstaande foto’s laten verschillende multi-inzetbare bouwblokken zien. Waaronder door de schotelvorm, die door een 180 graden rotatie verandert van een naar buiten gerichte loungebank, naar een naar binnengerichte overlegbank.









Zo kan een schotelvormige bank bijvoorbeeld transformeren van een introverte zitplaats naar een extroverte ligbank die het gezichtsveld naar buiten richt. Er zijn ook vormen die een gevoel van geborgenheid ondersteunen.








Foto’s van de verschillende objecten die door rotatie een andere ervaring krijgen.

van de bouwblokken in een
als vervanging van de
tionele werktafel en hierdoor het karakter van de ruimte verandert en interactie maakt doordat de blokken verplaatsbaar zijn en veranderen qua functie.
Kinderen krijgen zo de keuze tussen alleen zijn of samenwerken, in een ruimte die zich aanpast aan hun wisselende behoeften. Dit stimuleert creativiteit door kinderen aan te moedigen hun omgeving actief te wijzigen.
Ze krijgen controle over hun eigen leer- en interactieprocessen, zowel met de ruimte als met elkaar, wat de deelname bevordert. Daarnaast worden sensorische ontwikkelingen verrijkt door de tastbare en visuele kenmerken van de bouwblokken, die uitnodigen tot ontdekking en experimenteren.
Dit vertaalproces stimuleert een manier van denken gericht op de uiteenlopende leerervaringen en behoeften van kinderen, die balanceren tussen interactie en introspectie - een reflectiemoment-.
Als afsluiting van dit eerste deel van het onderzoek worden koppelt de resultaten gekoppeld aan de onderzoeksvraag: Hoe kunnen inzichten uit Roblox, Minecraft en Fortnite gebruikt worden om fysieke leeromgevingen te ontwerpen die creativiteit, samenwerking en zintuiglijk leren stimuleren? En hoe verhoudt dit zich tot de leeromgeving van het traditionele zit- en luisteronderwijs? Met dit deel van het onderzoek kan er al een voorlopig antwoord geven op het eerste deel van de onderzoeksvraag.
De observaties van Fortnite, Minecraft en Roblox hebben waardevolle perspectieven geboden op het cree ren van ervaringen en methodes die aansluiten bij de belevingswereld van het kind. Door met een pedagogische bril naar de drie games te kijken, zijn er interessante verbindingen gelegd met pedagogische theorieën, die vervolgens zijn vertaald naar ruimtelijke concepten.
Links de inspiratie uit de gameplay en rechts de vertaling naar een ruimtelijke aanpassing.
Fortnite, met zijn nadruk op verkennen, verwijst naar de visie van Piaget waarin verkennen en ontdekken centraal staan in het leerproces. Dit heeft geïnspireerd tot een ruimtelijk concept waarbij het spelen met zichtlijnen verkenning en toevallige ontmoetingen tussen kinderen stimuleert.


Minecraft biedt met zijn lego-achtige gameplay een hands-on ervaring, waarbij kinderen gaan experimenteren. Dit bracht inspiratie voor het concept ‘Demontage Methode’ naar voren, dat de creatieve en zintuiglijke ontwikkeling stimuleert door middel van hands-on experimenten en samenwerking.
Links de inspiratie uit de gameplay van het modulaire systeem en rechts de vertaling naar een ruimtelijke transformatie van het bestaande meubilair.


Roblox staat bekend om zijn verhalende kwaliteiten en de diversiteit daarin. Kinderen kunnen in een open wereld interactieve ervaringen opzoeken die zowel onderdompelend zijn als gericht op individuele ervaringen. Vanuit een pedagogisch perspectief legde deze diversiteit een link met de archetypische leerervaringen van Thornburg, waarbij het leerproces verdeeld wordt in verschillende soorten ervaringen. Hierdoor inspireerde Roblox de ontwikkeling van het concept van multi-inzetbare bouwblokken die interactie en introspectie bevorderen.
Links de inspiratie uit de gameplay om te denken in verschillende ervaringen en rechts de vertaling naar een ruimtelijke toepassing van bouwblokken.

Deze drie nieuwe bouwstenen dienen als inspiratie voor ‘Level 2’ van dit onderzoek, waarbij de opgedane inzichten worden toegepast op bestaande leeromgevingen. In de context van een leeromgeving kunnen nieuwe ruimtelijke concepten op de volgende wijze bijdragen aan het stimuleren van de creativiteit, participatie en de zintuiglijke ontwikkeling:

Creativiteit



Het stimuleren van creativiteit door ruimtes te creëren die kinderen uitnodigen om hun eigen omgevingen te bouwen en aan te passen. Daarnaast interactieve en introspectieve ruimtes creëren die het gehele creatieve werkproces van de kinderen faciliteren.



Het bevorderen van participatie door het ontwerp van gemeenschappelijke ruimtes die ontmoetingen en samenwerkingsprojecten tussen kinderen aanmoedigen, vergelijkbaar met de interactieve spelomgevingen in Fortnite. Daarnaast ruimtes creëren die door kinderen met behulp van modulaire tools aangepast kunnen worden.


Zintuiglijke ontwikkeling

Het verrijken van de zintuiglijke ervaring door interactieve elementen die kinderen uitnodigen tot exploratie en ontdekking. Elementen waarbij kinderen een gevoel van privé en publiek kunnen ervaren. Daarnaast ook door elementen en objecten toe te passen waarmee kinderen met handen, voeten en andere zintuigen door de ruimte heen kunnen bewegen.
In het volgende hoofdstuk, ‘Level 2’, worden deze nieuwe bouwstenen toegepast op bestaande leeromgevingen om een beter begrip te krijgen van de toepassing en vooral ook om een antwoord te geven op het tweede deel van de onderzoeksvraag. Namelijk, hoe deze inzichten zich verhouden tot de leeromgeving van het traditionele zit- en luisteronderwijs.
In het tweede deel wordt de toepassing van de in Level I ontwikkelde concepten in een praktische casestudie toegelicht, met een focus op de transformatie van een traditioneel klaslokaal naar een interactieve leeromgeving. Het ontwerpproces, de toepassing van de concepten en de uiteindelijke impact op de leerervaring van kinderen wordt besproken
De eerste paragraaf beschrijft de opzet van dit onderzoeksdeel, dat een casestudie als methode is toegepast om een bestaande schoolomgeving te transformeren.
De tweede paragraaf behandelt de keuze voor Basisschool “de Oase” als casus , en licht toe waarom deze specifieke situatie ideaal is voor deze studie.
In de derde paragraaf wordt het ontwerpproces uitgediept, met een nadruk op de toepassing van de concepten uit level 1.
De vierde paragraaf presenteer de herontworpen leeromgeving en verklaart de functionaliteit ervan.
De vijfde paragraaf evalueert hoe het nieuwe ontwerp in vergelijking met het oorspronkelijke ontwerp bijdraagt aan het stimuleren van creativiteit, participatie en zintuiglijke ervaring.
Ten slotte wordt in de zesde paragraaf de unieke waarde van het ontwerp binnen de context van bestaande leerlandschappen besproken, evenals eventuele overeenkomsten.
De tweede fase van het onderzoek richt zich op het toepassen van nieuwe ruimtelijke concepten uit het voorgaande hoofdstuk, ook wel de ‘nieuwe bouwstenen’ genoemd, in een bestaande omgeving. Net als bij het vorige hoofdstuk is er gekozen om deze digitale inzichten toe te passen binnen de context van een bestaande schoolomgeving. Zoals eerder vermeld, moeten de ontwerpaanpassingen schoolorganisaties bewuster maken van de beperkingen van het traditionele klassikale schoolmodel.
Daarnaast is er voor gekozen om de ontwerpopgave als casestudie uit te voeren. Een casestudie als methode biedt de mogelijkheid om inzicht te geven in hoe kinderen hun leeromgeving ervaren op het gebied van specifieke aspecten. Het ontwerpen van een schoolgebouw wordt namelijk beïnvloed door meer factoren dan enkel het leerproces. Dit wordt beïnvloed door veranderingen in de samenleving, nieuwe technologieën, het streven naar een inclusieve omgeving en het overbruggen van verschillen tussen etnische groepen. Hoewel elke school uniek is met eigen kenmerken en een specifieke gemeenschapsrol, richt dit onderzoek zich voornamelijk op de invloed van de schoolinrichting op het leren. Aan de hand van een casus wordt specifiek een oplossing aangedragen via een ontwerp. Dat is de meerwaarde van een casestudie.
Casusselectie
De Oase, gelegen in Utrecht met een karakteristieke gangenstructuur, dient als illustratief voorbeeld voor deze studie. De keuze valt op De Oase vanwege de
traditionele indeling met gangen. Deze analyse begint met het beoordelen van de huidige inrichting op functionaliteit en organisatie. Het gebrek aan gemeenschappelijke leerruimtes biedt een kans om de betrokkenheid, creativiteit en zintuiglijke ervaringen van de leerlingen te verbeteren en de bestaande gangschool te transformeren naar een leerlandschap.

Isometrische weergave begane grond met de bestaande klasindeling.
Door een analyse te doen van de ruimtelijke indeling, wordt er gekeken op welke wijze de leeromgeving verschillende leerervaringen ondersteunt. De vier leerervaringen van David Thornburg dienen als maatstaf om de volledigheid van de leeromgeving te beoordelen.
Gebaseerd op de analyse worden specifieke ontwerpaanpassingen voorgesteld om de schoolomgeving dynamischer en stimulerender te maken. Deze aanpassingen, geïnspireerd door de gamewereld, beogen een grotere variatie in activiteiten, samenwerking tussen leerlingen, en zintuiglijke stimulatie te bevorderen.
Na het uitvoeren van de ontwerpinterventies wordt de impact op de schoolomgeving beoordeeld. Aan de hand van de vaardigheden creativiteit, participatie en zintuiglijke ontwikkeling wordt besproken hoe het ruimtelijk ontwerp deze vaardigheden stimuleert.
De geselecteerde school voor deze casus is basisschool De Oase, gelegen in de Vinex-wijk Leidsche Rijn in Utrecht. Deze school, die in 2016 haar deuren opende, beschikt over 28 klaslokalen. Dit is een school met een gangenstructuur. Bij een gangenstructuur is de opzet vrij uniform, waarbij een gang als ruggengraat is toegepast om de aangrenzende klaslokalen met elkaar te verbinden.
De voornaamste reden voor de keuze van deze gangschool is de slanke en langwerpige vorm van het gebouw. Deze langwerpige vorm maakt het een uitdaging om een leeromgeving te creeren waar kinderen gaan ontdekken en verkennen. Als architect is het juist interessant vanuit deze situatie op zoek te gaan naar mogelijkheden om deze omgeving te transformeren naar een leerlandschap. Een analyse van deze leeromgeving zal duidelijk maken op welke aspecten dit schoolgebouw geen ondersteuning biedt in het ruimtelijk bevorderen van creativiteit, participatie en zintuiglijke ontwikkeling.
Maatstaf
De analyse van basisschool De Oase wordt bekeken door de lens van David Thornburgs vier kernleerervaringen: Kampvuur, Drinkplaatsen, Grotten, en Levensbomen. Deze benadering biedt een dieper inzicht in hoe de schoolomgeving de leerervaringen van kinderen beïnvloedt naar aanleiding van David Thornburg’s vier kernleerervaringen: Kampvuur, Drinkplaatsen, Grotten, en Levensbomen. Deze benadering biedt een dieper inzicht in hoe de schoolomgeving de leerervaringen van kinderen beïnvloedt.

Isometrische weergave basisschool de Oase.

Isometrische weergave 1e verdieping met de bestaande klasindeling.

Isometrische weergave begane grond met de bestaande klasindeling.
Begane grond
1e verdieping
Weergave van de plattegronden met de functies in de bestaande situatie.
Rood = klaslokaal
Lichtgeel = kantoorruimte leerkracht
Donkergeel = kantoorruimte administratie
Lichtgrijs = bergingruimte en andere ondersteunende functies
Middengrijs = gymzaal
Donkergrijs = sanitaire voorzieningen.
De traditionele klasopstelling in De Oase, gericht op frontaal onderwijs met de leraar als centraal punt, weerspiegelt het kampvuurconcept waarbij kennis formeel wordt gedeeld. Echter, de beperkte variëteit aan leeromgevingen binnen de school belemmert de mogelijkheid voor kinderen om op een interactieve en betrokken manier deel te nemen aan deze kennisdeling. Het ontbreken van flexibele ruimtes die infromele ontmoetingen en interactie tussen kinderen en leraren ondersteunen, beperkt de rijkdom van het kampvuurmoment.

Isometrische weergave begane grond met de bestaande klasindeling.
De weergave rechts is een reconstructie van het klaslokaal, waarbij de werktafels van de kinderen twee-aantwee aan elkaar zijn gekoppeld en gericht zijn naar het instructiebord.


Plattegrond begane grond waarbij de pijlen de toegang tot de school aangeven. De zwarte pijlen zijn de entrees vanaf de weg, zoals rechts in de impressie te zien is. De groene pijlen zijn toegangen vanaf het schoolplein. De rode vlakken zijn de gangruimtes naar de klaslokalen.
De huidige ruimtelijke organisatie van De Oase, met een nadrukkelijke scheiding tussen binnen- en buitenruimtes en het gebrek aan gemeenschappelijke leeromgevingen, beperkt de mogelijkheden voor informele ontmoetingen en kennisuitwisseling tussen kinderen. De gangen, die voornamelijk dienen als looproutes, missen de potentie om te functioneren als ‘drinkplaatsen’ waar kinderen spontaan kunnen samenkomen, samenwerken en van elkaar kunnen leren, doordat de gang niet is ingericht met zitplekken of hangplekken. Ook het ontbreken van direct daglicht nodigt niet uit om in deze ruimte te verblijven. In de huidige situatie dient deze ruimte puur een facilitaire functie
Er lijkt een tekort te zijn aan ‘grotten’ – individuele en rustige ruimtes waar kinderen zich kunnen concentreren, reflecteren en persoonlijke groei kunnen ervaren. De uniforme opzet en het ontbreken van speciaal ingerichte plekken voor individuele studie of reflectie beperken de mogelijkheden voor kinderen om zich terug te trekken en dieper in te gaan op hun leerproces.
Reconstructie van de gangruimte in de bestaande situatie.



De school biedt weinig tot geen mogelijkheden om geleerde kennis in de praktijk te brengen buiten de traditionele klascontext. Er ontbreekt een verbinding met de natuurlijke omgeving en andere praktische leerzones waar kinderen theorie kunnen toepassen in echte scenario’s. Dit gebrek aan ‘levensbomen’ beperkt de ervaringen waarbij leerlingen kunnen leren door te doen, experimenteren en een wisselwerking aangaan met de wereld buiten het klaslokaal.
De inrichting en structuur van basisschool De Oase, zoals waargenomen vanuit het perspectief van de kinderen, ondersteunen niet optimaal de ontwikkeling van participatie, creativiteit en zintuiglijke ervaringen. De traditionele klasopstelling, de scheiding tussen binnen en buiten en het ontbreken van diverse en flexibele leeromgevingen beperken de mogelijkheden voor kinderen om te leren in een setting die hen uitnodigt tot exploratie en actieve deelname. Door de ruimtes te heroverwegen in termen van de leerervaringen van kampvuur, drinkplaatsen, grotten en levensbomen kan de school een omgeving worden die beter aansluit bij de behoeften en het potentieel van de leerlingen. Zo kan De Oase transformeren van een leeromgeving met een vaste werkplek naar een leeromgeving met verschillende leerervaringen die aansluiten op de behoeftes van het kind.
Isometrische weergaven basisschool de Oase.

Reconstructie gevelaanzicht waarbij zichtbaar is dat er geen verbinding is met een natuuromgeving.
Oorspronkelijk functie verdeling
In de voorgaande paragraaf is geconcludeerd dat bestaande situatie van de Oase op de diverse leerervaringen niet optimaal de ontwikkeling van participatie, creativiteit en zintuiglijke ervaringen stimuleert. Met behulp de ‘nieuwe bouwstenen’ uit de gamewereld wordt de Oase getransformeerd van een klassikaal schoolmodel naar een leerlandschap. In deze paragraaf wordt het proces besproken en worden de keuzes en stappen toegelicht om de bestaande leeromgeving te transformeren naar een gebalanceerde leeromgeving. Dit is aan de hand van de volgende stappen gedaan.
Te beginnen met het aanpassen van de functies. Op dit moment domineren traditionele klaslokalen de ruimte, vooral ingericht voor lessen waarbij de focus op de leerkracht ligt.
Het plan is om elke leeftijdsgroep een passend klaslokaal te bieden, waarbij speciale aandacht uitgaat naar de jongste kinderen vanwege hun unieke behoeften. De indeling van klaslokalen baseert zich niet alleen op leeftijd, maar ook op de behoefte aan exploratie en ontdekking.
Voor de onderbouw (groep 1 en 2) worden lokalen aan de oostzijde, dicht bij de gymzaal en het schoolplein, gekozen voor korte afstanden en directe toegang. Dit ondersteunt de benodigde overzichtelijkheid en veiligheid voor deze leeftijdscategorie.
De middenbouw (groep 3, 4 en 5) vindt een plek aan de westzijde, waarbij de klassen van groep 4 en 5 strategisch zijn geplaatst om storende invloeden van buitenaf te minimaliseren.
De bovenbouw (groep 6, 7 en 8) krijgt lokalen op de bovenverdieping, in lijn met hun niveau van zelfstandigheid en verantwoordelijkheid.
Naast deze beredenering, zijn de exacte posities van de lokalen ook afgestemd op de wens om een gemeenschappelijke ruimte te creëren die het ontdekken en verkennen stimuleren. Dit proces wordt op de volgende pagina toegelicht.
Weergave van de plattegronden met de nieuwe functieverdeling. Rood = klaslokaal
Lichtgeel = kantoorruimte leerkracht
Donkergeel = kantoorruimte administratie
Lichtgrijs = bergingruimte en andere ondersteunende functies
Middengrijs = gymzaal
Donkergrijs = sanitaire voorzieningen.
Net als in de open werelden van Fortnite, Minecraft en Roblox, moet de leeromgeving aanvoelen als een breed en uitgestrekt landschap dat verkend kan worden. Dit in tegenstelling tot de huidige situatie, die een langwerpige vorm heeft. Bovendien zijn in de bestaande structuur alle ruimtes verbonden via de gang. Door klaslokalen met elkaar te verbinden, ontstaan nieuwe ruimtes. Door strategisch te bepalen welke klaslokalen met elkaar verbonden worden, ontstaan verschillende soorten ruimtes. Het geven van een doorgang aan klaslokalen creëert een ruimte met een specifieke bestemming. Wanneer een ruimte meerdere doorgangen krijgt, wordt deze onderdeel van een route, waardoor nieuwe looplijnen ontstaan en deze ruimtes drukker en dus dynamischer worden. Dit komt de leerervaring ten goede, zowel het terugtrekken in 'grotten' als het ontmoeten bij 'waterplaatsen'.
Syntaxmethode
Uit verschillende studies naar een optimale inrichting is de volgende opzet voortgekomen, waarin is bepaald welke ruimtes met elkaar verbonden moeten worden. Dit gedaan aan de hand van syntax methode. De syntaxmethode analyseert de structuur en het gebruik van ruimtes, gericht op de navigeerbaarheid en onderlinge verbindingen. Het onderzoekt een aantal aspecten.
Toegankelijkheid: De eenvoud waarmee verschillende delen van een ruimte bereikbaar zijn.
Connectiviteit: De verbindingen tussen ruimtes en de aanwezigheid van knooppunten welke veel bewegingslijnen samenbrengen.
Zichtlijnen: De mogelijkheid om vanuit één gebied andere gebieden te zien, wat invloed heeft op beweging en gebruik.
Deze analyse helpt bij het beoordelen van het dyna -
mische karakter van ruimtes, waarbij ruimtes met hoge toegankelijkheid-meerdere toegangen-, sterke connectiviteit en duidelijke zichtlijnen waarschijnlijk levendiger en interactiever zijn. Dit onderzoek gaat niet verder in op de uitwerking van deze methode, maar toont aan dat er zowel luwe als dynamische ruimtes gecreëerd kunnen worden door de wijze waarop ze met elkaar verbonden zijn. In de bestaande situatie waren alle lokalen (met uitzondering van enkele klaslokalen op de eerste verdieping) aangesloten op de gang. Door de lokalen onderling te verbinden, ontstaan nieuwe routes waardoor de betreffende ruimtes doorgangsruimten worden. Het creëren van luwte komt ten goede aan de structuur ‘grot’ en het versterken van de dynamiek bevordert de leerervaring ‘drinkplaats’. Hieronder is het uiteindelijke resultaat te zien van deze studie.
Weergave van de plattegronden met de nieuwe ruimtelijke verbindingen
Horizontale verbinding tussen twee klaslokalen =
Verticale verbinding tussen twee klaslokalen =
Blokkeren van de bestaande looproute =
Net als bij de ruimtelijke concepten uit het vorige deel van het onderzoek, worden de ruimtes met elkaar verbonden door elementen weg te nemen middels insneden.
Vormen
In het vorige deel van het onderzoek waren er specifieke bolvormen gebruikt voor de insnedes. In dit deel van het onderzoek, worden er ook specifieke vormen gekozen. Het is goed om hier kort bij stil te staan, om de gedachte erachter te begrijpen. De impact van vormen op onze perceptie is zowel interessant als complex. Vormen hebben, net als dat rood een ‘warme kleur’ is, een impact op perceptie. Dit is de wijze hoe een ruimte ervaren wordt. Concave vormen , de binnenkant van een bol, geven een gevoel van inkrimping, alsof de ruimte naar binnen trekt. Convexe vormen , zoals de buitenkant van een bol, creëren daarentegen een gevoel van expansie. De aanpassing van het lichaam aan deze vormen gebeurt onbewust, gericht op het middelpunt van de vorm.
Bij een ingesneden en geroteerde bol ontstaat een perceptie van beweging en dynamiek, wat verwachtingen in een gestructureerde omgeving kan verstoren en een behoefte creëert om de beweging te begrijpen.


Fragment uit het eerste deel van het onderzoek, betreffende de verdraaide bolvormige insnede bij de school De Kasteelhoeve.

Bewegende vormen
Vormen die beweging suggereren, kunnen ons lichaam ook aanzetten om zich aan deze waargenomen beweging aan te passen. Dit kan spanning veroorzaken, maar ook een poging om fysiek balans te vinden. Bijvoorbeeld, bij het passeren van kunstwerken zoals “Open Ended” van Richard Serra, kunnen we de neiging voelen om ons lichaam mee te buigen met de kromming van de sculpturen.
Door bewust gebruik te maken van vormen en beweging, kunnen vormen bepaalde gevoelens oproepen, zoals geborgenheid of juist een aanzet tot beweging. Dit speelt een belangrijke rol in hoe we ruimtes op zintuiglijk gebied ervaren. In de volgende pagina’s worden de verschillende insneden verder toegelicht.
De eerste insneden zijn bedoeld om de bestaande verkeersruimte uit te breiden en te laten functioneren als een ruimte die bestemd is voor ontmoeting. Bij het bepalen van de vorm en posities zijn verticale cilindervormige perforaties gekozen, die op vier strategische posities in de bestaande structuur worden geplaatst. Deze cilinders zijn verspringend vanuit de middenas van het gebouw gepositioneerd en qua positie afgestemd op de gewenste manier hoe de nieuwe indeling ruimtes aan elkaar verbindt of juist afsluit van elkaar. Dit is toegelicht in deel 2, ‘Nieuwe ruimtelijke organisatie
De keuze voor cilindervormen is gebaseerd op hun centrale punt, waardoor ze functioneren als autonome zones binnen het ontwerp. Alle cilinders hebben dezelfde grootte, wat betekent dat er geen hiërarchie is in de perforaties. De locatie van deze cilinders langs de lengte- en breedteas van het gebouw is zorgvuldig gekozen om diverse ruimtelijke ervaringen te faciliteren. Met drie ingangen heeft het bestaande gebouw het unieke kenmerk dat elke ingang de perforatie op een unieke wijze ervaart. Deze cilinders zijn zo ontworpen dat ze niet alleen ruimtelijk verbonden zijn met de gangruimte maar ook het loopvlak onderbreken, waardoor duidelijk afgebakende gebieden ontstaan.
Verder is een vierde cilinder toegevoegd specifiek om de gang met het buitengebied te verbinden. Deze cilinder is zodanig gedimensioneerd dat hij een variërende impact heeft op de omliggende ruimte, afhankelijk van de positionering.
Weergave van de positie van de cilindervormige perforaties en de gehandhaafde klaslokalen en bestaande loopassen van de school.

Isometrische weergave van de cilindervormige perforaties

Plattegrond van de cilindervormige perforaties
Op sommige plekken wordt de cirkel doorbroken door een behouden klaslokaal, wat leidt tot een gevarieerde ruimtelijkheid. Deze aanpak levert verschillende atria op, waarbij een cilinder uitsteekt over de buitenmuur en zo een doorgang naar buiten vormt.
De perforaties houden rekening met de structuur van het gebouw; het dak en de buitenmuur blijven behouden en worden slechts aangepast met behulp van modulaire elementen, zoals kanaalplaatvloeren. Op de volgende pagina’s wordt dit aan de hand van impressies zichtbaar gemaakt. Hierdoor blijft de thermische schil van het gebouw behouden, die vervolgens wordt verrijkt met glaselementen.
Weergave van de vergroende delen van het schoolplein en in de school zelf.

Isometrische weergave van de nieuwe inrichting schoolplein.

Plattegrond van de nieuwe inrichting schoolplein.

Impressie vanaf het nieuwe schoolplein.


Impressie in de school van de ruimte die gecreëerd is door de cilindervormige perforatie.

Het schoolplein ondergaat ook een transformatie, waarbij de grijze betontegels grotendeels worden verwijderd om plaats te maken voor een groener plein. De verwijderde tegels vinden een nieuwe bestemming in het creëren van borders op het plein en het vormen van amfitheaters en zitkuilen. Binnen de school krijgen de tegels, in gebroken vorm, een tweede leven door ze te gebruiken voor de wanden van de gehandhaafde klaslokalen binnen de atria. Dit gebruik van tegels draagt bij aan een verankerde uitstraling en brengt een buitenelement naar de atria. Bovendien worden de cirkelvormen, die binnen de atria zijn geïntroduceerd, ook doorgezet in het ontwerp van het schoolplein om de relatie tussen binnen en buiten te versterken. Hierdoor ontstaat een samenhangend visueel en ruimtelijk thema die de verbinding tussen de leeromgevingen binnen en het groene buitenplein bevordert.
Weergave van de vergroende delen van het schoolplein met de grijze ronde vlakken die ingevuld worden met functies zoals links in de impressie te zien.
Impressie van een versteend rond vlak op het schoolplein met een pannakooi.

De volgende ingrepen functioneren als landmarks: ze creëren verticale verbindingen tussen klaslokalen boven elkaar en maken bestaande grenzen beloopbaar voor de kinderen. Deze ingrepen dienen tegelijkertijd als herkenbare oriëntatiepunten en als verblijfsruimten.
Het doel is om verticale ruimtes fysiek met elkaar te verbinden en ze te transformeren tot duidelijk herkenbare objecten.

Weergave van de toegepaste geometrische vormen.
De ingreep maakt gebruik van geometrische vormen zoals cirkels, ovalen, vierkanten en cilinders, die uit de bestaande structuren worden gehaald en getransformeerd tot driedimensionale objecten zoals bollen, ellipsoïden, kubussen of kegels. Er zijn drie bollen, een ovaal, een vierkant en een cilinder gekozen. De keuze voor een ovaal, vierkant en cilinder komt voort uit een experiment met vormen, waarbij deze vormen een specifieke richting suggereren. Door deze objecten om hun middelpunt te kantelen, worden ze dwingender in de waarneming, wat bijdraagt aan het principe van de landmarks. De drie bolvormen zijn strategisch aan de uiteinden van het nieuwe landschap geplaatst en hoeven minder op te vallen.


Weergave van het kantelen van de ovale vorm om de middenas.


Isometrische weergave van de toepassing van de landmarks.

Plattegrond met de toegevoegde landmarks.
Uitsneden in de wanden en vloeren op verschillende plekken binnen de school creëren nieuwe visuele en auditieve verbindingen tussen ruimtes. Deze vormen zijn niet alleen fysieke verbindingen, maar ook op zichzelf staande ruimtes. Anders dan bij verticale perforaties, zijn deze vormen bedoeld als opvallende landmarks die contrasteren met de reguliere klaslokaalomgeving. Hun unieke uiterlijk, gecreëerd door schijven uit de muren te snijden en bijeen te houden met horizontale lamellen, suggereert beweging en versterkt hun opvallende aanwezigheid.
Het resultaat zijn zes geometrische vormen van verschillende afmetingen die als trappen naar hogere verdiepingen fungeren en tegelijkertijd als verblijfsplekken dienen, afgeschermd door semitransparante begrenzingen.
Studiemodellen van het uitwerken van de beloopbare landmark.

Maquette die de uitwerking van de landmark weergeeft. De ringen zijn uitgesneden en vervolgens uit elkaar gezet om een ovale vorm te krijgen en wordt door horizontale traptreden aan elkaar verbonden.


Foto van de binnenkant van de ovaalvormige landmark, die de werking van de landmark als verblijfsruimte laat zien.


Impressie van de binnenkant van de kubusvormige landmark. Net als de andere landmarks, dient deze ruimte als trap en als verblijfsruimte.

De derde ingreep is het creëren van zichtlijnen tussen de landmarks en atria om het effect van Fortnite toe te passen, waar kinderen worden aangemoedigd om te verkennen en ontdekken. Deze dient ter ondersteuning van de voorgaande ingrepen. Op ooghoogte van de kinderen worden horizontale cilindervormige lijnen tussen de landmarks geperforeerd op beide verdiepingen. Deze lijnen versterken de visuele verbindingen tussen de ruimtes en moeten kinderen nog meer aansporen tot activiteit. De omtrek van de cilinder draagt bij aan het ‘burlesque’ effect. Ten opzichte van de loopas van de gang zijn deze zichtlijnen diagonaal geplaatst, waardoor de loopas in de gang ook wordt gebruikt om de bewegingen te stimuleren.



Ruimtelijke weergave van de doorkijk, door verschillende ruimtes, naar een landmark.

Isometrische weergave van de toepassing van de doorkijkperforaties.

Plattegrond met de toegevoegde doorkijkperforaties.

Impressie van de impact van de diagonale doorkijkperforaties.

De vierde ingreep herstructureert de bestaande materialen van de school. Het schoolplein wordt ontdaan van grijze betontegels ten gunste van een groener ontwerp. De verwijderde tegels vinden een nieuwe bestemming als randen voor plantenbedden op het plein en voor het creëren van amfitheaters en zitkuilen. Binnen de school krijgen deze tegels, nu in gebroken vorm, een tweede leven als extra wanden voor de behouden klaslokalen in de atria, waardoor een gevoel van verbondenheid met buiten ontstaat.
Impressie waar de ruimtelijke zichtbaarheid van de gestapelde (gebroken) betontegels in de atria te zien is.


Isometrische weergave van het aanbrengen van de versteende wanden in de nieuwe atria en de lusvormige wanden op de 1e verdieping.

Plattegrond met een overzicht van de versteende wanden in de nieuwe atria en de lusvormige wanden op de 1e verdieping.
Een andere toepassing van hergebruik betreft de gipsplaten. Op de eerste verdieping vormen gestapelde gipsplaten een lusvormige wand in drie afgescheiden ruimtes. Deze wand bevat aan beide kanten eivormige uitsparingen die als individuele werkplekken dienen. De dikte en samenstelling van de wand geven deze structuur een “steenachtig” uitstraling. Anders dan eerdere ingrepen, introduceert deze een slingerende vorm, zodat elke werkplek een eigen, unieke verbinding heeft met de andere. Binnen een interne boog delen drie werkplekken visuele relaties, terwijl in een externe bocht een werkplek visueel geïsoleerd blijft van de anderen. Door deze vormgeving ontstaan gevarieerde relaties tussen de werkplekken. Het introverte karakter van de lus wordt benadrukt door natuurlijk licht dat binnenvalt door een bolvormige opening in het dak.




De doorsnede links is de bestaande situatie en de doorsnede rechts laat zien op welke wijze de nieuwe lusvormige wand aansluit op de bestaande wand en vloer. Door een bolvormige inkeping te doen in het plafond, krijgt deze afgesloten ruimte het gewenste daglicht.

3D weergave lusvormige wand met eivormige inkepingen.
Studiemaquette wand voor het testen van het effect van het stapelen van gipsplaten.


Impressie ruimte binnen de lusvormige wand.

De laatste ingreep, vergelijkbaar met de tweede interventie, betreft het transformeren van een bestaande muur. Deze keer worden delen van de muur taps toelopend naar binnen gesneden en vervolgens in een reeks achter elkaar geplaatst, resulterend in een nis.
Deze nis, met zijn geborgen uitstraling, is bekleed met kussens aan de binnenkant, wat een nestachtig gevoel geeft en bijdraagt aan een sfeer van geborgenheid.
Deze nissen, ontworpen als individuele rustplekken voor kinderen, bevinden zich op de eerste verdieping in de gang, specifiek bij de groepen van de bovenbouw.
Deze locatie is gekozen vanwege de luwte die daar ontstaat, waardoor een ideale rustige omgeving voor de kinderen wordt gecreëerd. Visueel zijn de nissen in een zigzagpatroon met elkaar verbonden, wat het gevoel van veiligheid en privacy voor de bovenbouwleerlingen verder versterkt.


Weergave uitwerking frame kindernissen.

Isometrische weergave van het toevoegen van kindernissen op de 1e verdieping.


Plattegrond met een overzicht van de toegevoegde kindernissen op de 1e verdieping.

Impressie van een kindernis.

In deze paragraaf wordt de impact van de ingrepen besproken door de bril van de archetypische leerervaringen. Op de volgende pagina wordt per leerervaring de nieuwe situatie besproken.
Plattegronden met schematische weergave leerervaringen bestaande situatie
Plattegronden met schematische weergave leerervaringen nieuwe situatie
Legenda
kampvuur (afgesloten ruimte)


Plattegronden met het totaaloverzicht van alle ingrepen.

Isometrische weergave bestaande situatie.

Isometrische weergave nieuwe situatie.
Elke groep krijgt een eigen klaslokaal, plus drie gedeeltelijke open plekken voor instructie, wat diverse manieren van kennisoverdracht mogelijk maakt. Voor de jongste leerlingen (kleuters) blijven de traditionele klaslokalen behouden -omdat deze kinderen nog niet in staat zijn om losgelaten te worden-, terwijl de oudere leerlingen in groepen leren rond de standaard klaslokalen. Dit bevordert het gevoel van gemeenschap en samenwerking. Door het toevoegen van minder formele leerplekken en de klaslokalen direct te verbinden met het buitenterrein, wordt de band tussen binnen en buiten versterkt. Dit verrijkt het ‘Kampvuur’-concept van samen leren en ervaringen delen in verschillende omgevingen.
Impressie van het klaslokaal.

Plattegronden met het totaaloverzicht van de kampvuurstructuur. Met de afgesloten instructieruimte (vierkant) en de semi-open instructieruimte (stippellijnen).

De vernieuwde indeling versterkt de ‘Drinkplaatsen’-beleving, gericht op informele ontmoetingen en het delen van kennis, door de ruimtes opener en meer verbonden te maken. Levendige ontmoetingspunten en het gebruik van ‘doorkijkjes’ stimuleren spontane gesprekken en maken natuurlijke interactie tussen kinderen mogelijk. Dit zorgt voor een actieve en interactieve sfeer, essentieel voor ‘Waterplaatsen’, waar leerlingen samen kunnen komen en van elkaar kunnen leren. Kinderen kunnen in deze ruimtes met verschillende elementen zelf kiezen hoe ze willen zitten of werken. Plekken met één ingang zijn rustiger en geschikt voor geconcentreerd werken, terwijl ruimtes met meerdere ingangen levendiger zijn en uitnodigen tot ontmoetingen.


Plattegronden met het totaaloverzicht van de gemeenschappelijke ruimte.

Twee langsdoorsneden die een beter inzicht geven van de schaal van de gemeenschappelijke ruimtes, die blauw gearceerd zijn. De bovenste doorsnede is door het midden van het gebouw, de gang, en de onderste doorsnede snijdt door de lokalen aan de noordzijde.
Twee impressies van de doorloopruimte met landmark, waarbij kinderen met elementen zelf installaties hebben gebouwd die als ondersteuning dienen voor het leerproces


Het toevoegen van meer afgezonderde plekken en persoonlijke nissen creëert veilige, intieme gebieden die de 'Grotten'-beleving ondersteunen. Deze plekken bieden kinderen een rustige omgeving voor zelfstandig leren of reflectie, weg van de drukte maar toch binnen de gemeenschappelijke ruimte. Deze veranderingen verrijken de 'Grotten'-ervaring door kinderen ruimtes te geven waar ze zich kunnen afzonderen en concentreren.
Impressie concentratiewerkplek binnen de lusvormige wand.

Plattegronden met het totaaloverzicht van de grottenstructuur. Met de afgesloten instructieruimte (vierkant), de extra geïsoleerde concentratieruimte en tot slot de kindernissen voor het terugtrekken.
Impressie kindernis in de gangruimte.


De nieuwe indeling van de school illustreert hoe het principe van levensbomen aan de leeromgeving kan worden toegevoegd.
Binnen de school is nu ook ruimte gemaakt voor groen, waar kinderen thematische opdrachten kunnen verkennen. Dit binnengroen verbindt verschillende leeraspecten, waardoor er meer kansen ontstaan voor kinderen om actief hun kennis toe te passen.
Het schoolplein, dat eerder bedekt was met betontegels, is nu voorzien van diverse beplanting die kinderen uitnodigt tot thematisch onderzoek. Glooiende terreinen creëren visuele scheidingen die ontdekking stimuleren en kuilen kunnen bijdragen aan klimaatadaptatie.
Vanuit een aantal lokalen is nu een doorgang naar buiten gerealiseerd om de verbinding met de natuur te versterken. Dit biedt de leeromgeving de mogelijkheid om de natuur actief te betrekken in het leerproces.

Plattegronden met het totaaloverzicht van de toepassing van groen.
Impressie van een moestuin grenzend aan een lokaal

Impressie van de natuur elementen in de school

Impressie van het schoolplein, een waterbassin, wat ook dient als een pannakooi om te voetballen.




Als afsluiting van dit tweede deel van het onderzoek worden de resultaten gekoppeld aan de onderzoeksvraag: Hoe kunnen inzichten uit Roblox, Minecraft en Fortnite gebruikt worden om fysieke leeromgevingen te ontwerpen die creativiteit, samenwerking en zintuiglijk leren stimuleren en hoe verhoudt dit zich tot de leeromgeving van het traditionele zit- en luisteronderwijs? In deze paragraaf wordt besproken hoe de veranderingen in de schoolomgeving bijdragen aan het verhogen van betrokkenheid, creativiteit en de zintuiglijke ontwikkeling van kinderen, met speciale aandacht voor de tekortkomingen van de oorspronkelijke leeromgeving.



Om te beginnen met participatie: dit betekent actief deelnemen en een bijdrage leveren. In het onderwijs houdt betrokkenheid in dat kinderen actief deel uitmaken van de besluitvorming rondom hun leerproces.
De inrichting van de school, met haar open ruimtes en verbindingen, nodigt uit tot ontdekking. De vrijheid om visueel en fysiek verschillende delen van de school te verkennen, wordt versterkt door de toevoeging van atriums en een gevarieerd aanbod aan ruimtes. Dit moedigt kinderen aan tot ontdekken, geleid door de zichtlijnen en de diversiteit binnen de leeromgeving.

Illustratie van de bestaande leeromgeving.


2.Van vaste werkplek naar diverse leerervaringen

3. Ruimtelijke continuïteit en verantwoordelijkheid

1. Ontdekken door zichtlijnen



2.Van vaste werkplek naar diverse leerervaringen
Door vaste werkplekken los te laten, krijgen kinderen de vrijheid om zelf te kiezen waar en hoe ze willen leren. Deze verandering benadrukt de verschuiving van een traditionele naar een flexibele leeromgeving, waar kinderen zelf de regie hebben. De ruimtelijke variatie in de school ondersteunt verschillende leerervaringen, van individueel werk tot groepsinteracties, aangemoedigd door natuurlijke elementen en diversiteit in de ruimtes. Deze aanpak biedt ondersteuning aan een breed spectrum van leerbehoeften.
3.Ruimtelijke continuïteit en verantwoordelijkheid
Met tweederde van de schoolruimtes die in elkaar overlopen, ontstaat er een gevoel van continuïteit. Deze verbondenheid moedigt kinderen aan om gezamenlijk verantwoordelijkheid te nemen voor de sfeer, vergelijkbaar met hoe gedragscodes worden bepaald in virtuele spelwerelden. Kinderen worden aangespoord om actief bij te dragen aan een positieve leeromgeving.Door deze benaderingen worden kinderen niet alleen meer betrokken bij hun eigen leerproces, maar ontwikkelen ze ook hun creativiteit en leren ze op verschillende manieren te leren, in een omgeving die samenwerking en persoonlijke ontwikkeling bevordert
Vergelijking met de bestaande leeromgeving
De traditionele gangtype schoolomgeving beperkt actieve participatie en ontdekking door gescheiden klaslokalen, wat de fysieke en visuele verbinding tussen leeromgevingen belemmert en een gefragmenteerde gemeenschapsbeleving creëert. Dit ontwerp beperkt de mogelijkheid voor kinderen om te verkennen en hun leeromgeving zelf te kiezen, waardoor flexibele en dynamische leerervaringen ontbreken. Bovendien vermindert de compartimentalisatie de mogelijkheden voor samenwerking en gemeenschapsvorming, essentieel voor een gedeelde verantwoordelijkheid en cultuur van samenwerking.




Creativiteit is essentieel in de ontwikkeling van kinderen, het voedt hun vermogen tot innovatie en probleemoplossing. Het omvat verschillende stadia: inspiratie opdoen, het verzamelen van informatie, het herordenen van ideeën, focussen, het verkennen van opties, het realiseren van concepten en uiteindelijk reflecteren. Elk stadium vereist bepaalde vaardigheden zoals samenwerking, communicatie en zelfstandig werken en de ontworpen leeromgeving speelt hier strategisch op in.
1. Aangepaste ruimtes voor creatieve fasen
De omgeving biedt ‘grotten’ voor diepgaande focus en reflectie, ideaal voor de latere stadia van het creatieve proces. Tegelijkertijd nodigen ‘drinkplaatsen’ uit tot levendige discussies en het delen van ideeën, perfect voor de eerste inspiratie- en brainstormfases. Deze ruimtes zijn zo vormgegeven dat ze leerlingen moeiteloos laten overgaan tussen solo en samenwerkingsverbanden, wat essentieel is voor elke stap van hun creatieve ontwikkeling.
2. Flexibiliteit door handzame objecten en tools
De toegankelijkheid en samenstelling van diverse tools en werkplekken creëren een dynamische ruimte die meebeweegt met de behoeften van het creatieve proces. Horizontale werkbladen en verticale projectievlakken bieden uiteenlopende mogelijkheden voor presentatie en ontwikkeling, wat bijdraagt aan een flexibele werkomgeving. Dit faciliteert zowel individueel werk als groepssamenwerking, door kinderen uit te nodigen samen te komen en gezamenlijk aan projecten te werken.

Illustratie van de bestaande leeromgeving.

1. Aangepaste ruimtes voor creatieve fasen

2. Flexibiliteit door handzame objecten en tools

3. Inspiratie uit vormen en materialen





3. Inspiratie uit vormen en materialen
Het hergebruik van bestaande materialen en de herinrichting van ruimtes door circulaire ontwerpprincipes bieden een unieke omgeving die traditionele klaslokalen overstijgt. Dit moedigt kinderen aan om buiten gebaande paden te denken en stimuleert hun verbeeldingskracht en creativiteit. Door deze aanpak worden kinderen geïnspireerd door de omgeving zelf, wat een onmisbaar aspect is van het creatieve proces.
Samengevat, deze doordachte inrichting van de leeromgeving stimuleert actieve deelname aan het creatieve proces. Van het genereren van ideeën tot de realisatie van projecten, elk aspect van de omgeving is ontworpen om samenwerking, flexibiliteit en inspiratie te bevorderen, ondersteunend aan de veelzijdige ontwikkeling van creatieve vaardigheden bij kinderen.
Vergelijking met bestaande leeromgeving Traditionele klaslokalen met hun rigide en uniforme ontwerp voldoen niet aan de behoeften van het creatieve proces, beperken de mogelijkheid tot navigeren door verschillende creatieve stadia en bieden weinig aanpasbaarheid. Er is een tekort aan gespecialiseerde ruimtes en materialen, wat essentieel is voor individuele reflectie, groepssamenwerking en het tot leven brengen van ideeën. Bovendien ontbreekt het aan inspirerende elementen die creativiteit stimuleren, waardoor de verbeeldingskracht en de mogelijkheid voor innovatieve oplossingen beperkt worden.



Zintuiglijkheid speelt een sleutelrol in hoe kinderen hun omgeving ervaren en begrijpen. Het gaat om het stimuleren van alle zintuigen, waardoor kinderen een diepere connectie met hun omgeving kunnen opbouwen.
Deze rijke, multisensoriële benadering helpt kinderen niet alleen de wereld om hen heen te verkennen, maar bevordert ook hun creativiteit en probleemoplossend vermogen. Hieronder volgt hoe een doordacht ontwerp deze principes in praktijk brengt
1. Multisensoriële ervaring
Het ontwerp van de ruimte maakt gebruik van zowel visuele als auditieve elementen om een rijke, multisensoriële ervaring te creëren. Het atrium, met zijn ruime visuele verbindingen en de echo van geluiden door de hoge plafonds, biedt een dynamische auditieve ervaring. Dit speelt in op de natuurlijke nieuwsgierigheid van kinderen en moedigt hen aan om de ruimte actief te verkennen. Tegelijkertijd zorgen meer afgezonderde plekken, zoals de lusvormige wand met individuele werkplekken, voor een intiemere sfeer waar concentratie en introspectie centraal staan.
2. Materiaalkeuze
Materialen zijn gekozen om deze ervaringen te ondersteunen. Hout brengt warmte en een gevoel van geborgenheid, vooral in kleinere nissen die uitnodigen tot rust en concentratie. Tegelijkertijd maken de open en luchtige atriums met hun gestapelde tegelwanden een naadloze overgang tussen binnen- en buitenruimtes








mogelijk, waardoor een gevoel van gemeenschap en openheid ontstaat. Deze keuzes versterken niet alleen de esthetische waarde van de ruimtes maar spelen ook in op het welzijn en de emotionele staat van de gebruikers.
Het gebruik van opvallende objecten en vormen draagt bij aan een stimulerende omgeving. Geometrische vormen trekken de aandacht en nodigen uit tot interactie, wat de ontdekkingsreis van kinderen verrijkt. Natuurlijke elementen, zoals beplanting in de atriums, voegen een extra dimensie toe door geur en textuur, waardoor de zintuiglijke ervaring wordt verdiept. Deze elementen fungeren niet alleen als visuele ankers maar verrijken ook de ruimtelijke beleving door beweging en diversiteit te suggereren.
Deze benadering toont hoe een omgeving kan worden vormgegeven om zintuiglijkheid op alle fronten te stimuleren. Door zorgvuldige overwegingen op het gebied van ontwerp, materiaalgebruik en de inzet van specifieke objecten en vormen, ontstaat een leeromgeving die kinderen uitnodigt tot exploratie, creativiteit en verbinding met hun omgeving.
Vergelijking met de bestaande leeromgeving
De bestaande klassikale leeromgeving is primair ingericht op functionaliteit en efficiëntie, met beperkte aandacht voor zintuiglijke stimulatie en het welzijn van kinderen. Deze klaslokalen bieden vooral visuele en auditieve ervaringen, waarbij het gebruik van uniforme materialen zoals kunststof en metaal de zintuiglijke ontwikkeling niet bevordert. Bovendien ontbreekt het in deze ruimtes aan natuurlijke materialen, inspirerende objecten en vormen, wat essentieel is voor het stimuleren van de nieuwsgierigheid en exploratie bij kinderen.
In deze laatste paragraaf wordt het nieuwe leerlandschap van De Oase vergeleken met een aantal leerlandschappen die in het theoretisch kader besproken zijn. Een complete vergelijking van de schoolgebouwen vormt op zichzelf een afstudeeropdracht. Zoals eerder vermeld, staat een schoolgebouw niet alleen in het teken van het stimuleren van specifieke vaardigheden, maar wordt het ook beïnvloed door de specifieke context, ligging, omvang en de eventueel gehanteerde onderwijsmethode. Al deze variabelen maken het vergelijken een uitgebreide taak, wat buiten het doel van dit onderzoek valt, aangezien dit onderzoek zich richt op de beperkingen van het klassikale schoolmodel.
Toch is het interessant om te benoemen wat het nieuwe leerlandschap van De Oase, in vergelijking met andere leerlandschappen, uniek maakt. Hiernaast worden de schoolgebouwen getoond, waarbij de ruimtes - in een schema met kleuren - vertaald zijn naar de archetypische leerervaringen van het Kampvuur, Drinkplaatsen, Grotten en de Levensbomen. Twee aspecten zijn noemenswaardig, die voortkomen uit de analyse van de gamewereld:
1.Ontdekken
De manier waarop verkennen en ontdekken gestimuleerd wordt in De Oase, dankzij het burlesque principe, geeft een ruimtelijke kwaliteit die bijdraagt aan het ontdekken. Bij de referentieprojecten is aan de vorm van het blauw gearceerde gebied te zien dat zowel de Montessorischool als de Vittraschool een vergelijkbare ervaring van de gemeenschappelijke ruimte bieden.
Een kenmerk van De Oase is het diverse en complete aanbod van leerervaringen binnen het schoolgebouw. Opvallend is dat het schoolgebouw “De Spaarndammerhout” in deze weergave geen leerervaring biedt die het terugtrekken en individueel werken ondersteunt. De overige referentieprojecten missen ook één of twee van de archetypische leerervaringen.
Deze vergelijkingswijze biedt een beknopte blik op hoe scholen de diverse leerervaringen wel of niet ondersteunen. Dit kan onderwijsorganisaties helpen zich bewust te worden van de beperkingen van hun leeromgeving in relatie tot de visie op de complete archetypische leerervaring.

Legenda
kampvuur (afgesloten ruimte)

In het afsluitende deel van dit onderzoek wordt de focus gelegd op het samenbrengen van de belangrijkste inzichten, het aanreiken van concrete tips en het verkennen van mogelijke richtingen voor toekomstig onderzoek naar de integratie van game-elementen in fysieke leeromgevingen.
De conclusie kijkt terug op de ontdekkingen over de invloed van games zoals Roblox, Minecraft en Fortnite op het vormgeven van stimulerende leeromgevingen die het traditionele onderwijsmodel overstijgen. Het benadrukt hoe deze inzichten kunnen bijdragen aan een actievere en meer betrokken houding van leerlingen ten opzichte van hun leerproces.
Daarna volgen praktische aanbevelingen, bedoeld als richtlijnen voor onderwijsprofessionals en ontwerpers die de onderzoeksresultaten in de praktijk willen brengen. Deze adviezen zijn gericht op het creëren van leeromgevingen die de nieuwsgierigheid van leerlingen prikkelen, hen aanzetten tot zelfontdekking en rijke zintuiglijke ervaringen bieden.
In het onderdeel over toekomstige onderzoeksrichtingen wordt erkend dat dit onderzoek zijn beperkingen kent en dat er ruimte is voor verdere verkenning. Er wordt aangemoedigd tot vervolgonderzoek dat deze ideeën op bredere schaal toepast en test in diverse educatieve settings.
Dit onderzoek verkent hoe inspiratie uit populaire games zoals Roblox, Minecraft en Fortnite kan leiden tot het ontwerpen van fysieke leeromgevingen die creativiteit, samenwerking en zintuiglijke ontwikkeling stimuleren en hoe deze benaderingen passen binnen de traditionele leeromgeving van zittend en luisterend onderwijs.
Door te kijken naar wat kinderen aantrekt in deze games, identificeerde de studie drie sleutelprincipes voor een stimulerende leeromgeving:
- de behoefte aan exploratie,
- de noodzaak voor een mix van individuele en groepsactiviteiten
- het belang van een praktische, doe-het-zelf be nadering.
Uit de eerste fase bleek dat het interactieve en veelzijdige karakter van deze games waardevolle lessen biedt voor het vormgeven van ruimtes die kinderen uitnodigen om actief en met plezier te leren.
Vervolgens zijn deze game-geïnspireerde concepten toegepast in de echte wereld, binnen een schoolomgeving, om te zien hoe deze theorieën de praktijk kunnen verrijken. De casestudie “Het Kampvuur, de Grot en de Drinkplaats” toonde aan dat dergelijke ontwerpprincipes de betrokkenheid, creativiteit en zintuiglijke ervaring van kinderen aanzienlijk verbeteren, waardoor ze actieve deelnemers worden in hun eigen leerproces.
De veranderingen in de schoolomgeving leidden tot een duidelijke toename van actieve betrokkenheid bij de kinderen. Ruimtes die ontdekking, samenwerking en persoonlijke expressie bevorderen, moedigen kinderen aan om hun nieuwsgierigheid te volgen en zelfstandig te leren, geïnspireerd door de elementen van de games die ze zo waarderen.
Deze bevindingen beantwoorden de centrale onderzoeksvraag door te laten zien dat elementen uit de gamewereld succesvol geïntegreerd kunnen worden in het ontwerp van leeromgevingen. Ze bieden een levendige en boeiende leerervaring die traditioneel onderwijs overstijgt, terwijl ze ook bijdragen aan de ontwikkeling van belangrijke vaardigheden bij kinderen.
Samengevat biedt dit onderzoek een frisse kijk op hoe de digitale en fysieke leerwerelden elkaar kunnen versterken. Het onderstreept het belang van het creëren van onderwijsruimten die aansluiten bij de leefwereld van kinderen, hun behoeften aan verkenning, creativiteit en samenwerking. Door traditionele onderwijsmodellen opnieuw te bekijken en deze innovatieve benaderingen te omarmen, kunnen we leeromgevingen ontwikkelen die niet alleen educatief verrijkend zijn, maar ook de allesomvattende ontwikkeling van het kind ondersteunen, aansluitend bij hun natuurlijke manier van leren en ontdekken.
Gebaseerd op de inzichten en resultaten van dit onderzoek, zijn hier aanbevelingen voor het ontwerp van leeromgevingen die kinderen uitnodigen tot actief leren, creativiteit, participatie en zintuiglijke ontwikkeling stimuleren:
Ontwerp voor verkenning
Creëer ruimtes die kinderen aanmoedigen om hun omgeving te verkennen, net zoals ze dat doen in open-wereld games zoals Minecraft. Dit betekent flexibele ruimtes met op diverse manieren die nieuwsgierigheid prikkelen. Bijvoorbeeld, het inrichten van klaslokalen met verschillende zones die verschillende activiteiten ondersteunen - van rustige leeshoeken tot dynamische projectgebieden.
Bevorder samenwerking
Ontwerp gemeenschappelijke ruimtes die interactie en teamwerk stimuleren. Introducereer flexibele meubels en aanpasbare werkstations waar kinderen samen kunnen komen voor groepsprojecten. Deze ruimtes moeten open en toegankelijk zijn, waardoor kinderen gemakkelijk kunnen samenkomen en ideeën kunnen delen.
Stimuleer creatieve expressie
Faciliteer omgevingen waar kinderen zich kunnen uiten en hun ideeën tot leven kunnen brengen. Dit kan door het aanbieden van materialen en gereedschappen die creatief spel en ontwerp ondersteunen, zoals bouwblokken, kunst- en knutselspullen en technologie die programmeren en digitale creatie bevordert.
Integreer natuurlijke en zintuiglijke elementen
Maak gebruik van natuurlijke materialen, planten en elementen die verschillende zintuigen prikkelen. Dit kan helpen om een rijke, multisensoriële leeromgeving te creëren die de fysieke interactie met de leeromgeving bevordert. Denk aan het inzetten van texturen, geuren, en geluiden die de zintuiglijke ontwikkeling stimuleren.
Ontwikkel flexibele ruimtes
Ontwerp leeromgevingen die makkelijk aan te passen zijn aan verschillende leeractiviteiten en onderwijsmethoden. Dit betekent het creëren van modulaire ruimtes die kunnen veranderen afhankelijk van de behoefte, van individuele studieruimtes tot grote groepsactiviteiten.
Betrek kinderen bij het ontwerpproces
Maak kinderen actieve deelnemers in het vormgeven van hun leeromgeving. Dit kan door hen keuzes te bieden in hoe hun klas of speelruimte is ingericht, of door speciale projecten waarbij ze zelf ontwerpoplossingen kunnen bedenken en uitvoeren.
Door deze richtlijnen toe te passen, kunnen ontwerpers en onderwijsprofessionals omgevingen bouwen die niet alleen leerzaam zijn, maar ook sterk aansluiten bij de wereld van het kind. Deze aanpak nodigt uit tot een bredere visie op leren, waarbij de fysieke omgeving een actieve bijdrage levert aan het leerproces van kinderen
Het onderzoek via een casestudie benadering heeft speficieke inzichten opgeleverd, maar kent ook beperkingen die de algemene toepasbaarheid kunnen beïnvloeden. Een kritiekpunt is de mogelijk beperkte weergave van de complexiteit en diversiteit die echte schoolomgevingen kenmerken. Dit kan de diepte en breedte van bruikbare inzichten beïnvloeden en de generaliseerbaarheid van de bevindingen beperken.
Aandachtspunten rond gedrag
Er is voornamelijk gefocust op het stimuleren van positief gedrag binnen ontworpen leeromgevingen, met minder aandacht voor hoe deze ontwerpen onbedoeld ongewenst gedrag kunnen ondersteunen. Vooral binnen open en flexibele leeromgevingen zijn de implicaties voor toezicht en veiligheid belangrijke overwegingen die verdere verkenning vereisen.
Keuze voor videogames
Daarnaast was de analyse grotendeels gericht op een select aantal populaire games, wat mogelijk andere betekenisvolle speel- en leerervaringen uitsluit. Deze beperking kan de ontwikkeling van een breder onderbouwde visie op het ontwerp van leeromgevingen hinderen.
Over de generaliseerbaarheid
De unieke context van de onderzochte casus kan de overdraagbaarheid van de resultaten op andere on -
derwijssituaties beperken, wat de vraag oproept naar de brede toepasbaarheid van de verkregen inzichten.
Toekomstig onderzoek zou zich kunnen richten op het verkennen van de toepasbaarheid van de ontwikkelde ontwerpprincipes in een verscheidenheid aan onderwijscontexten. Dit zou inzicht bieden in de universele bruikbaarheid en waarde van deze benaderingen.
Een volgende stap, ‘Level 3’, zou het implementeren en beheren van de ontworpen concepten in praktische situaties kunnen omvatten. Belangrijk hierbij is te onderzoeken hoe deze ontwerpen in de praktijk functioneren in termen van toezicht, veiligheid, en het beheersen van negatief gedrag, om de praktische haalbaarheid en duurzaamheid binnen de dynamische onderwijspraktijk te beoordelen.
Deze aanbevelingen zijn gericht op het verrijken van toekomstig onderzoek met waardevolle pedagogische inzichten en bijdragen aan het creëren van veilige, stimulerende onderwijsomgevingen die het welzijn en de ontwikkeling van kinderen centraal stellen.
Afsluitende opmerkingen en reflectie op het onderzoeksproces
In mijn afstudeerproject heb ik de impact van videogame-inzichten op schoolarchitectuur verkend, met als doel leeromgevingen levendiger en meer ontdekkingsgericht te maken. Mijn fascinatie voor het omvormen van schoolpleinen naar inspirerende plekken was de aanleiding. Ik zocht naar vernieuwde manieren om architectuur, pedagogiek en game design te integreren, om zo ruimtes te ontwerpen die kinderen aanzetten tot spelen en leren.
Dit avontuur bracht onzekerheden met zich mee, vooral door het unieke uitgangspunt van het verbinden van digitale spelprincipes met fysieke leeromgevingen. Mijn benadering gebaseerd op observatie. Ik heb gekeken naar hoe kinderen interactie hadden met games zoals Minecraft en Fortnite, wat essentiële inzichten opleverde. Deze methode, het observeren om te leren, onderstreept mijn toekomstvisie als architect. Het benadrukt het belang van een onderzoekende houding, waarbij kijken en luisteren naar de eindgebruikers centraal staan in het ontwerpproces.
Door deze aanpak heb ik ontdekt hoe de principes van ontdekking, creativiteit en samenwerking uit videogames toegepast kunnen worden in echte wereldscenario’s. Het resultaat is een nieuw perspectief op schoolarchitectuur, waarbij digitale lessen worden vertaald naar fysieke, stimulerende leeromgevingen. Dit project bevestigt de waarde van een interdisciplinaire benade -
ring en dient als fundament voor mijn toekomstige werk, waarbij observeren centraal staat in het brengen van innovatie binnen de architectuur.
Tot slot rest mij nog een dankbetuiging. Allereerst wil ik Annemariken, Dafne, Ralph en Wouter bedanken als interne en externe mentoren voor hun begeleiding gedurende de afgelopen twee jaar. Jullie reflecties op mijn gedachtes hebben mij de juiste inzichten gegeven om tot het gewenste resultaat te komen. Daarnaast wil ik Gerard en Moniek bedanken voor hun inspanningen om dit afstuderen mogelijk te maken en Miranda voor haar bijdrage aan het verscherpen van het verslag. Uiteraard kan ik in deze dankbetuiging mijn vrouw Esther niet overslaan. Als moeder van mijn twee kinderen zorgde zij er met extra inspanningen voor dat ik ongestoord kon focussen op mijn academische werk. Bovendien was zij als bovenbouwdocent een belangrijke schakel bij het spiegelen van mijn ideeën in relatie tot praktijksituaties. Tot slot wil ik mijn medestudenten - Dirk, Fadia, Jorrit en Veerle - bedanken, met wie ik de afgelopen vijf jaar heb samengewerkt. Het relativerende karakter van onze gesprekken heb ik altijd gezien als een essentieel onderdeel van een gebalanceerde leeromgeving.
Lijst van gebruikte bronnen en literatuurverwijzingen
Literatuur
Boekholt, P. T. F. M., & De Booy, E. P. (1987). Geschiedenis van de school in Nederland vanaf de middeleeuwen tot aan de huidige tijd. Uitgeverij Van Gorcum.
Broekhuizen, D., & Verstegen, T. (2008). Een traditie van verandering: de architectuur van het hedendaagse schoolgebouw.
Boersma, T., & Verstegen, T. (1996). Nederland naar school: twee eeuwen bouwen voor een veranderend onderwijs. NAI Publishers.
Ching, F. (1979). Architecture, Form, space & Order . http://ci.nii.ac.jp/ncid/ BB18970529
De Graaf, K., Ibelings, H., & Onderwijsgebouwen, S. A. R. (2005). De school in de 21ste eeuw: ontwerponderzoek Staro 2003-2004
Dobraszczyk, P. (2021). Architecture and anarchism: Building Without Au thority.
Doorley, S., Witthoft, S., & University, H. P. I. O. D. A. S. (2012). Make space: How to Set the Stage for Creative Collaboration. John Wiley & Sons.
Hanson, J. (1999). Decoding homes and houses. https://doi.org/10.1017/cbo9780511518294
Hertzberger, H. (1996). Ruimte maken, ruimte laten : Lessen in architectuur.
Hertzberger, H. (2008). Ruimte en leren. 010 Publishers.
Hertzberger, H., & De Swaan, A. (2009). Alle Scholen. 010 Publishers.
Hooijmaaijers, T., & Stokhof, T. (2014). Ontwikkelingspsychologie voor on derwijs en kinderopvang. Uitgeverij Koninklijke van Gorcum Bv.
Hudson, M., & White, T. (2019). Planning learning spaces: A Practical Guide for Architects , Designers and School Leaders (Resources for School Administrators, Educational Design). Laurence King Publis hing.
Isbister, K. (2017). How games move us: Emotion by Design. MIT Press.
Kohnstamm, R. (1990). Kleine ontwikkelingspsychologie: deel 2 . Bohn Staf leu van Loghum.
Maurer, M., & Maurer, N. (2002). Play : Maurer United Architects. http://ci.nii.ac.jp/ncid/BA61176376
Pauley, J. A. P., Bradley, D. F. B., & Pauley, J. F. P. (2019). Zo kun je mij bereiken (5de editie). Booklight uitgeverij/ Process Communication Nederland.
Piaget, J., & Inhelder, B. (2008). The psychology of the child.
Piaget, J. (2005). Language and thought of the child. In Routledge eBooks. https://doi.org/10.4324/9780203992739
Robinson, K., & Aronica, L. (2015). Creatieve Scholen / druk 1: Een revoluti onaire methode over hoe we onze kinderen moeten lesgeven. Thornburg, D. D. (1999). Campfires in cyberspace.
Van Den Driessche, M., Lagae, J., Stuhlmaher, M., & Van Der Pol, B. (2007). OASE 72 Terug naar school/ Back to School . OASE. https://biblio.ugent.be/publication/355990
Von Borries, F., Walz, S. P., & Böttger, M. (2007). Space Time Play: Compu ter Games, Architecture and Urbanism: The Next Level. Springer Sci ence & Business Media.
Walker, S. (2019). Cutting Matta-Clark: The Anarchitecture Investigation . The Journal of Architecture, 24(1), 118–121. https://doi.org/10.1080/13602365.2019.1569387
Internetbronnen
About — Cas Holman. (z.d.). Cas Holman. https://casholman.com/about casholman
AnjiPlay — Cas Holman. (z.d.). Cas Holman. https://casholman.com/design/ anji-play
BNA Branchevereniging Nederlandse architectenbureaus. (z.d.). BNA. https://bna.nl/kennis/bna-onderzoek/schooldomein
Brodrück, R. (2019). Tegenwoordigheid van architectuur [PhD proefschrift]. TU Eindhoven.
Een korte geschiedenis van het onderwijs. (2016, december). www.onderwijsmuseum.nl. https://www.onderwijsmuseum.nl/ files/2016-12/een_korte_geschiedenis_van_het_onderwijs_dec._16_. pdf
Ministerie van Onderwijs, Cultuur en Wetenschap. (2023, 27 februari). Pe dagogisch klimaat. Primair onderwijs | Inspectie van het onderwijs. https://www.onderwijsinspectie.nl/onderwijssectoren/primair-onder wijs/schoolverschillen/pedagogisch-klimaat
Populaire games. (z.d.). www.kijkwijzer.nl. https://www.kijkwijzer.nl/kennis/ games/populaire-games/
Springzaad. (2022, 17 oktober). Springzaad: Meer ruimte voor natuur en kinderen - Springzaad. https://www.springzaad.nl/
Trimbos-instituut. (2022, 17 november). Jeugd en riskant gedrag 2019Trimbos-instituut. https://www.trimbos.nl/aanbod/webwinkel/af1767jeugd-en-riskant-gedrag-2019/
Vernieuwingsonderwijs | Het Onderwijsloket. (z.d.). https://www.onder wijsloket.com/kennisbank/artikel-archief/welke-concepten-voor-ver nieuwend-onderwijs-zijn-er/
Via de QR-code of via de onderstaande link kan het afstudeervoorstel worden ingezien.
https://qrco.de/bf1JB4

Via de QR-code of via de onderstaande link kan de documentatie van schouw 1 worden ingezien.
https://qrco.de/bf1JDe

Via de QR-code of via de onderstaande link kan de documentatie van schouw 2 worden ingezien.
https://qrco.de/bf1JIx

Via de QR-code of via de onderstaande link kan de documentatie van schouw 3 worden ingezien.
https://qrco.de/bf1JWc

Een ontwerpend onderzoek naar de toepassing van game-belevingen in educatieve ruimtes.
Gerrit van de Werfhorst
ArtEZ University of the Arts
Master architectuur
Onderlangs 9
6812 CE Arnhem
Externe mentor
Dafne Wiegers, AHH Amsterdam
Mentoren Artez
Annemariken Hilberink
Ralph Bodruck
Wouter Hilhorst
Beoordelaar verslag
Miranda Nieboer
Extern gecommitteerde
Pieter Diks

Contact gerritvdw@gmail.com
Trefwoorden
Onderwijshuisvesting, gamewereld, vernieuwingsonderwijs, bevelingswereld kind, klassikaal schoolmodel, pedagogiek, schoolarchitectuur, leerervaringen