Interaction design Wonen in een katalysator

Page 1

INTERACTION DESIGN

2023
Cindy Smit Wonen in een katalysator

INTERACTION DESIGN

Wonen in een katalysator Cindy Smit

VOORWOORD

Voor u ligt de scriptie van mijn afstudeerproject “Interaction Design, wonen in een katalysator’’ aan de Academie van Bouwkunst ArtEZ te Arnhem. Als afsluiting van de masterstudie wordt een door mijzelf geformuleerd afstudeervoorstel verder onderzocht, ontworpen en uitgewerkt. Dit verslag vormt de tekstuele uitleg van mijn onderzoek en ontwerp opgave.

Dit verslag is bedoeld voor diegene die geïnteresseerd is om meer te weten te komen over mijn afstudeerproject. Het verslag geeft een beeld van de verschillende facetten van mijn onderzoek, waaruit het ontwerp tot stand is gekomen.

Mijn dank gaat uit naar mijn mentor, Yukiko Nezu. Daarnaast wil ik de begeleiders vanuit de academie, Ralf Brodruck, Annemariken Hilberink, Wouter Hilhorst en afstudeercoördinator Gerard van Heel bedanken voor de prettige begeleiding gedurende mijn afstudeerproces.

INTERACTION DESIGN 2022
Cindy Smit

SAMENVATTING

SAMENVATTING

We leven in een tijd waarin sociale interactie verandert. Interactie vindt steeds meer digitaal en op social media plaats en begroetingen op straat behoren steeds minder tot het huidige tijdsbeeld. In de trein of de bus doen we de moeite om contact met vreemde te vermijden. We doen alsof we druk met iets bezig zijn of zetten onze tas op de stoel naast ons neer [1] . Daarnaast geven jongeren aan moeite te hebben met offline en dus fysiek contact [2] . Een verandering die niet geheel positief te noemen is.

Op social media hebben we in vergelijking met vroeger veel meer interactie dan voorheen, in de vorm van commentaren, sms’jes en tweets. Echter blijkt uit onderzoek dat dit niet hetzelfde effect heeft als fysieke interactie. Zo stellen socioloog Randall Collins en Jutus Uitermark dat fysiek samenzijn nodig is voor emotionele energie. Volgens hen worden hieruit alle betekenisvolle sociale relaties opgebouwd [3]

Als architect heb je de kans om met de gebouwde omgeving fysieke plekken te creëren waar sociale interactie kan plaatsvinden, je zou het zelfs kunnen bevorderen. Maar hoe maak je deze plekken? Waar houd je rekening mee? Hoe breng je nu eigenlijk mensen samen? Wat is sociale interactie en wat heeft dit te maken met onze ‘persoonlijke ruimte’ en hoe belangrijk is de overgang tussen privé en openbaar?

Eveneens is de woningnood de opgave van de huidige tijd. Het woningtekort blijft groeien en de samenstelling van huishoudens verandert sterk. Zo blijven we tegenwoordig langer alleen wonen en scheiden mensen vaker. De woningvoorraad is echter niet opgewassen tegen deze ontwikkelingen. Daarnaast wijst onderzoek uit dat in 2050 het merendeel van de bevolking in steden wilt en zal wonen [4] . Dit betekent dat er meer stedelijke woningen gebouwd moeten worden.

Als je dit stedelijk vraagstuk samenvoegt met het belang van interactie kun je stellen dat het tijd is voor een nieuwe manier van wonen. Maar hoe ziet deze nieuwe manier van wonen er dan uit?

In dit afstudeeronderzoek ‘interaction design, wonen in een katalysator’ wordt er antwoord gezocht op deze vragen. Hoe kan je nou echt interactie bevorderen binnen stedelijke woningbouw op grootschalig niveau?

Als casuslocatie is er gekozen voor een plot gelegen op Veur-Lent, een schiereiland in de rivier de Waal, het zogeheten stadseiland van Nijmegen. Een locatie met veel vrijheid en geringe context die het ontwerp dicteert. De focus van het onderzoek ligt op de binnenruimte van het gebouw. De keuze voor deze locatie maakt het mogelijk om hier ook volledig op te focussen.

Binnen het onderzoek wordt er onder andere gezocht naar geborgenheid en sfeer, de juiste tactiliteit, gerbuikmakend van sociale psychologie en organisatorische oplossingen. Door deze verscheidene facetten te combineren ontstaan er ruimtes en ontmoetingen waarin de stap naar interactie kleiner wordt en men de mogelijkheid heeft deze aan te gaan.

Het doel van dit onderzoek is niet om een 'af' en compleet gebouw te ontwerpen. Het uiteindelijke ontwerp kan ter voorbeeld genomen worden voor een nieuwe manier van wonen, wonen met meer interactie, een nieuw woonconcept. Het verslag geeft handvaten om anders naar wonen, interactie en ontmoetingen te kijken.

1 Knack (2012)
4 Space 10 & Urgent Agency
2 Hansen-Staszyński, O. (2015)
3 Ham,
M. (2020) (2018)
INTERACTION DESIGN 2022
INHOUD
Data Augustus 2023 Auteur Cindy Smit ArtEZ Academie van de Bouwkunst ArtEZ Arnhem Mentor Yukiko Nezu Begeleiding Ralf Brodruck Annemariken Hilberink Wouter Hilhorst Afstudeer coördinator Gerard van Heel Status Definitief Trefwoorden Architectuur, sociale interactie, interactie design, woongebouw, persoonlijke ruimte, tactiliteit , woningnood, deelwonen Voorwoord Samenvatting Inspiratie; Social interaction is key Inleiding Essentie van het ontwerp Golden rings Leeswijzer De opgave Uitgangspunten Onderzoeksvraag Oningekaderd - locatie Let’s unfold Plattegrond en hoofdstukindeling Definities Huiselijkheid The invisible space Delen Ontwerp Conslusie Nawoord Literatuurlijst // // // // // // // 01// 02// 03// 04// 05// // // 010 015 018 020 026 028 030 034 038 048 130 166 198 204 206
COLOFON
Presentatie tweede schouw // 09 INTERACTION DESIGN 2022

INSPIRATIE

Social interaction is KEY

INLEIDING

‘Inspiration is in the people, you should interact with each other as often as you can’. Een uitspraak die ik deed in het eerste studiejaar aan de academie bij een van mijn eerste projecten en die herhaaldelijk in andere projecten terugkwam. Het eerste project omvatte het ontwerpen van een studentenhuis waarin ik al snel het ontmoeten en samenbrengen van deze studenten centraal plaatste. In de daaropvolgende projecten was er ook altijd wel een ontmoetingsplek te vinden, daarbij maakte het niet uit of het om een kantoor, woonhuis of openbare plek ging.

Als toekomstig architect zag ik de kans om een fenomeen te doorbreken, een fenomeen dat ik mij persoonlijk erg aantrek. Onder dit fenomeen versta ik het feit dat in de huidige maatschappij interactie gestuurd lijkt te worden door sociaal media en waarin we tegelijkertijd elkaar in de fysieke wereld niet eens meer groeten laat staan opmerken in het voorbijgaan. Zijn we eenmaal samen binnen dan is gechargeerd gezegd het de tv waar we samen aan gekluisterd zijn. Ik vind dit een enorm gemis. Mij inziens kunnen we die tijd beter benutten door aandachtig te luisteren naar de belevingswereld van de mensen die direct naast ons staan. Ik vind het een van de taken van de architect om hierin sturing te geven en daar waar de mogelijkheid zich aandient plekken te creëren waar men de gelegenheid heeft om te interacteren met elkaar. Om zo bij te dragen aan de groei van de sociale cohesie met je directe omgeving. Het maken van deze plekken is dan ook de essentie van het afstuderen en wordt op bladzijde nr. 15 verder toegelicht.

Ten grondslag aan mijn afstuderen staat het idee dat je door middel van ontwerp de sociale interactie kan beïnvloeden.

10

Cindy Smit

INSPIRATION IS IN THE PEOPLE, YOU SHOULD INTERACT WITH EACH OTHER AS OFTEN AS YOU CAN
11 INTERACTION DESIGN 2022

Binnen het afstuderen heb ik kennis genomen van diverse referenties met betrekking to sociale psychologie, bestaande architectuur en het analyseren van mijn eigen omgeving en ervaringen. Er zijn echter geen referenties een-op-een als onderlegger genomen voor de beantwoording van het vraagstuk, hierdoor blijven deze ook in het verslag op de achtergrond.

Terugkijkend heb ik ontworpen zoals wordt omschreven wordt in het boek Precisions van Le Corbusier. Hierin staat het volgende;

''Le Corbusier also conveys uniquely well the drama and excitement of the avantgarde ''prophet'', who fearlessly assaults the authorities, the academies and received opinion. It is a call to think for oneself, not to take anything for granted - ''to tend to be entilery disinterested''.

He calls on architects to design with abstract forms, without recourse to decoration or overt historical references. To this extent, he is making the same leap in architecture that painters were making with abstract art, but he is trying to maintain a fundamental connection with man. It is, at its heart, a call tot take architecture serioously as an art, but, above all, as an art defined by human values. ''

12

Zoektocht naar thuis, grenzen en tactiliteit //[Eigen beeld]

13 INTERACTION DESIGN 2022
Model golden rings
14
//[Eigen foto’s model essentie van het ontwerp]

ESSENTIE VAN HET ONTWERP

Om door middel van ontwerp sociale interactie te beïnvloeden ga ik op zoek naar ‘gouden ringen’.

GOLDEN RINGS

Laten we meer ‘gouden ringen’ maken; gouden plekken; katalysators van interactie. Leid de mensen en breng ze nader, maak de stap tot interactie kleiner. Creëer meer momenten waarin dit mogelijk is.

Als architect heb je de mogelijkheid om deze gouden ringen/plekken te creëren. Een kans die aangegrepen moet worden in een tijd waarin de fysieke interactie waar we eigenlijk van oorsprong naar smachten enkel en alleen afneemt en steeds meer wordt overgenomen door het digitale.

Een ontwerp kan mensen niet forceren om een connectie aan te gaan. Wel kan er worden nagedacht over kruispunten, het wegnemen van barrières en kan men ontmoetingsplekken creëren die zowel functioneel als aantrekkelijk zijn. Deze kruispunten en ontmoetingsplekken die de stap tot interactie verkleinen zijn de gouden ringen binnen het ontwerp.

15 INTERACTION DESIGN 2022
Onderzoek katalysator, essentie ontwerp //[Schetsboek]
16
1. 2.

1. Elke ruimte kan je interactie dimmen of meer bevorderen // interactie dimmer 2 notitie lezing Stephanie Akkaoui Hughes // imperfectie zorgt ervoor dat er ruimte is om dingen organisch te laten ontstaan en zo onstaat er ook ruimte voor interactie 3. Zoektocht naar de kern van het ontwerp // spanningsveld tussen ontwijken en ontmoeten

17 INTERACTION DESIGN 2020-2021
3.

LEESWIJZER

00// Er volgt zo allereerst een hoofdstuk waarin de aanleiding tot de uiteindelijke hoofdvraag wordt onderbouwd en de uitgangspunten van het ontwerp worden geformuleerd.

Tekst in deze kleur is begeleidende tekst of extra informatie.

Er zijn katernen van dit verslag gedrukt op een andere kleur papier; dit zijn onderzoeken, proces of inspiratiebeelden.

SCHETSEN

Het gehele onderzoek is structrueel en door middel van schetsen vastgelegd in een notitieboek, deze komen dit gehele verslag terug. Elke schets is genummerd 00. Soms vertellen de schetsen extra informatie en waar nodig wordt er naar verwezen in de tekst (00).

DIGITALE VERSIE

In de digitale versie kom je translucente bladzijde tegen met een rode stiknaad. In de gedrukte versie zijn dit losse bladzijden. Ook zijn uitklapbare delen ingevoegd als een extra bladzijde.

18
19 INTERACTION DESIGN 2022

DE OPGAVE UITGANGSPUNTEN

De essentie van het afstuderen is het terugbrengen van INTERACTIE in de huidige maatschappij. Interactie is een breed begrip en kan je op diverse niveaus binnen de architectuur onderzoeken; privé, openbaar.

Echter is er een onderwerp waar we in deze tijd niet om heen kunnen en dat is de huidige WONINGNOOD .

20

//WONINGNOOD

Volgens de huishoudensprognose van het CBS [1] blijft het aantal eenpersoonshuishoudens stijgen en zo ook de vraag naar geschikte woningen voor deze doelgroep. Er is niet enkel voor deze doelgroep een woningtekort, er heerst een woningnood die zich de komende 10 jaar niet oplost [2] . Voornamelijk in Amsterdam, Utrecht en in Nijmegen is het tekort aan woningen het grootst [3] . Dit zijn steden waar de ruimte om te bouwen ook nog eens relatief beperkt is.

1 CBS 2019

2 (ABF Research, 2019)

3 (Gelderlander, 2019)

21 INTERACTION DESIGN 2022

De huidige manier van wonen werkt de woningnood verder in de hand, er is een beperkte doorstroom van bestaande woningen en veel woningen zijn net te groot omdat men tegenwoordig langer alleen blijft wonen.

De huidige manier van wonen past dan ook niet meer bij het woningaanbod op de markt en biedt geen soelaas voor de toekomst. In 2050 zal 7 op de 10 mensen in de stad wonen [1] . Als we dat gaan invullen zoals we dat nu ‘standaard’ doen, leven we steeds meer in hoogbouw waar we totaal de connectie met elkaar verliezen. Doorgaans alleen, eenzaam en in een net iets te groot hokje.

Het is tijd voor een NIEUWE MANIER VAN WONEN .

1 SPACE10 & Urgent Agency (2018)
22
House in Moscow //[RueTemple Studio,2018]

//HUIDIGE RUIMTE GEBRUIK

We leven gemiddeld nu op zo’n 65 m 2 per persoon. Maar nog schrikbarender is het gemiddelde van één eenpersoonshuishouden dit is namelijk maar liefst 88 m 2 Enkel in een aantal grote steden; Utrecht, Groningen en Amsterdam, beschikken alleenstaande over minder dan 70 m 2 woonoppervlak.

//EEN NIEUWE MANIER VAN WONEN

Het is tijd voor een nieuwe manier van wonen, het woningtekort blijft groeien en de ruimte voor wijdse nieuwbouw neemt af op de plek waar hier het meest om gevraagd wordt; steden. In mijn optiek is het dan ook tijd voor een herformulering van de woning; comfort met een reële footprint per gezinssamenstelling, die stapelbaar is en een sociale factor bevat.

We moeten op zoek naar een toegankelijke middenweg tussen het gemiddelde van 65 m 2 per persoon en de tiny housing movement. Kleiner leven in een tiny house is namelijk helemaal hip en happening maar dit vergt een manier van leven die niet voor iedereen toegankelijk is. Een middenweg met ruimtelijke kwaliteit. Geen eigen bezit qua meubilair maar meubilair passend gemaakt is voor de woning met ruimte voor personalisering. Woningen zoals deze zijn gebaat bij een afwisseling met ruimtes met meer hoogte, veel daglicht en een luxere uitstraling om te compenseren voor het kleinere vloeroppervlakte.

//VERHUIZINGEN EN EIGEN BEZIT

De cijfers van het CBS [1] liegen er niet om. De 20- tot 40-jarigen overhuizen het meest. Hoe handig is het om telkens als je verhuist al je meubilair te moeten over huizen. Is eigen bezit nog wel van deze tijd? Als een woning is ingericht met op maat gemaakt meubilair kan men ook veel slimmer omgaan met elke vierkante meter. Dat zie je hiernaast in een project van RueTemple. Zonder het mee ontwerpen van het meubilair had dit nooit zo in el

kaar gepast.

1 CBS 2019
23 INTERACTION DESIGN 2022
-

Dat INTERACTIE belangrijk is werd in de essentie van de opgave (blz. 10-13) al aangekaart. Daarnaast is eenzaamheid een maatschappelijk en groeiend probleem dat toeneemt onder zowel jong als oud. Het terugbrengen van sociale interactie is essentieel en een belangrijke opgave in een woongebouw voor de huidige tijd.

24
Home around communication //[Takeshi Hosaka, 2016]

//EENZAAMHEID EN SOCIALE INTERACTIE

Eenzaamheid onder jongeren is een maatschappelijk probleem. Eenzaamheid ontstaat onder andere door het gemis van sociale contacten en/of ontbreken van een sociaal netwerk. Mogelijk is deze oorzaak van eenzaamheid dan ook te linken aan de verandering van de huidige maatschappij. In de huidige maatschappij is de relatie tussen een specifieke plek, zoals bijvoorbeeld een wijk, en het sociale netwerk van zijn bewoners niet meer zo vanzelfsprekend als in het verleden. De technologie van tegenwoordig biedt namelijk de mogelijkheid om net zo makkelijk contact te leggen met iemand in Amerika als met de buurman.

//DODELIJK

Eenzaamheid is een probleem dat wat we niet zomaar onder stoelen en banken kunnen schuiven. Zo is er een verband tussen eenzaamheid en gezondheid. De kans op vroegtijdig overlijden wordt namelijk groter op het moment dat men eenzaamheid ervaart, dit heeft te maken met depressie en een verhoogd risico op zelfmoord, het minder gebruik maken van de gezondheidszorg, minder bewegen, minder goed slapen en sneller geneigd zijn om te roken en drinken. Tevens kan eenzaamheid voor stress zorgen wat weer invloed heeft op de hormoonhuishouding en het immuunsysteem.

//HET POSITIEVE EFFECT

VAN HET TOEVOEGEN VAN

SOCIALE INTERACTIE AAN

EEN WOONGEBOUW

Als je een woongebouw als een wijk op zichzelf ziet kan deze bijdragen aan het ontstaan van een sociaal netwerk. Ontmoe -

ten, sporadisch en herhaald kunnen het begin zijn van het ontstaan van duurzame relaties. Het toevallig tegen komen en sporadisch ontmoeten van mensen in je directe omgeving is goed voor de publieke familiariteit . Dit brengt positieve effecten me zich mee zoals; een gevoel van vertrouwen en veiligheid.

//SOCIALE INTERACTIE

BINNEN DE WONING

Net zo belangrijk al dan niet belangrijker is de interactie tussen gezinsleden. ‘Weg met de ‘tv-haard’, maak ruimte voor gesprek. De tv is er maar hoeft niet in de ruimte te schreeuwen om aandacht en aangezet te worden.

Ruimtes mogen met elkaar communiceren; een mooi voorbeeld daarvan is home around communication van Takeshi Hosaka. Zo kun je vanuit elke kamer elkaar zien en zijn de slaapkamers volledig open. Dit is misschien wat extreem, naar mijn mening moet namelijk wel ieder zijn of haar privacy hebben in een woning, maar we hoeven niet de gehele dag ons eigen ‘afgesloten’ hokje te hebben. Ruimtes met flexibiliteit zo luidt mijn credo.

25 INTERACTION DESIGN 2022

DE OPGAVE

Onderzoeksvraag

ONDERZOEKSVRAAG

Met alle voorgaande informatie is het geheel geformuleerd in de volgende onderzoeksvraag;

Hoe ziet een stedelijk woongebouw voor circa 200 mensen eruit, waarin de bevordering van sociale interactie* en het nader tot elkaar komen centraal staat?

Interactie*

Zien van elkaar Gesprek Ontmoeten

EXTRA RANDVOORWAARDEN:

De opgave omvat het maken van een wooncomplex waarin sociale interactie zowel in de woning als daarbuiten wordt gecreëerd voor verschillende huishoudens.

De wooneenheden in het complex dienen zo ontworpen te zijn dat er een functioneel maar ruimtelijk ontwerp ontstaat. Het dient toegankelijk te zijn voor een gemiddeld persoon, dit betekent geen

extreme tiny-housing oplossingen, maar ook niet zoals we nu leven met gemiddeld zo’n 65 m 2 per persoon. De uitdaging is om het toegankelijke nieuwe normaal creëren. Er mag dus best lucht gebracht worden in het ontwerp door middel dan viden, maar hier dient een balans in te zitten. Naast deze ruimtelijkheid dient er een speelsheid in het ontwerp te zitten, doorkijkjes en relaties tussen de diverse ruimten.

26

UIT, WAARIN DE BEVORDERING VAN SOCIALE INTERACTIE * EN HET NADER TOT ELKAAR KO

HOE ZIET EEN STEDELIJK WOON GEBOUW VOOR CIRCA 200 MENSEN ER -
27 INTERACTION DESIGN 2022
MEN CENTRAAL STAAT?

ONINGEKADERD

De casuslocatie voor dit project is Veur-Lent. Veur-lent bevindt zich ten noorden van de Stad Nijmegen.

Er is gekozen voor deze locatie om niet te veel te hoeven te reageren op de omgeving, ingekaderd te worden of gestuurd. Dit zodat de focus gelegd kan worden op de hoofdopgave; het creëren van interactie in een woongebouw.

Het waterpeil rondom de locatie fluctureert. De locatie zelf blijft boven water.

28
De locatie
29 INTERACTION DESIGN 2022
Casus locatie Veur-Lent //[Eigen beeld]

LET’S UNFOLD

het ontwerp

Hiernaast is de plattegrond van het uiteindelijke ontwerp te zien als antwoord op de gestelde onderzoeksvraag.

In de volgende hoofdstukken zal stap voor stap duidelijk worden door middel van deelonderzoeken waarom er bepaalde elementen in dit ontwerp zitten en waarom ze op deze wijze zijn ontworpen en toegepast.

In de plattegrond zie je op diverse plekken nummers staan. Deze nummers refereren aan het bladzijdenummer waar dit onderdeel wordt uitgelicht.

Je kan deze bladzijde uitgeklapt laten om erop te reflecteren en terug te kijken tijdens het lezen van het het verslag.

De onderzochte en bevraagde onderdelen zijn grofweg te structureren in drie grote peilers; huiselijkheid, de persoonlijke ruimte en de factor delen. Dit zijn dan ook de hoofdstukken die hierop volgen.

01// Allereerst zoomen we in op HUISELIJKHEID , een gevoel wat moeilijk te bevatten en te doorgronden is. De basis voor een fijne en vertrouwde leefomgeving.

02// In het tweede deel wordt er ingezoomd op de persoonlijke ruimte ook wel genoemd ‘ THE INVISBLE SPACE’ en alles wat daarmee in direct verband ligt.

03// Vervolgens gaan we in het derde deel op zoek naar DELEN , wat is men bereid te delen, hoe ver gaan we? En wat is er nodig voor de gezochte connectie in dit woongebouw.

04// In het vierde hoofdstuk datgene van het ONTWERP wat nog niet eerder onthuld is getoond.

05// In het laatste deel vind je de CONCLUSIE en wordt er teruggekeken op het gehele onderzoek

30
050 068 072 088 095 134 150 31 INTERACTION DESIGN 2022
056 050 040 054 068 064 067 092 097 098 090 140 148 104 182 111 114 153
050 070 074 082 154 170 33 INTERACTION DESIGN 2022

01//

DEFINITIES

Om de volgende hoofdstukken goed te kunnen volgen is hiernaast het basisprincipe van het ontworpen gebouw uitgelicht en gedefinieerd in doorsnede.

Het gehele GEBOUW

De STRAAT met aan weerszijden woningen, te zien op de vorige bladzijze. Twee bouwlagen hoog.

03// 04//

De WONINGEN

02//
GEMEENSCHAPPELIJKE FUNCTIES , reikend over meerdere straten 34
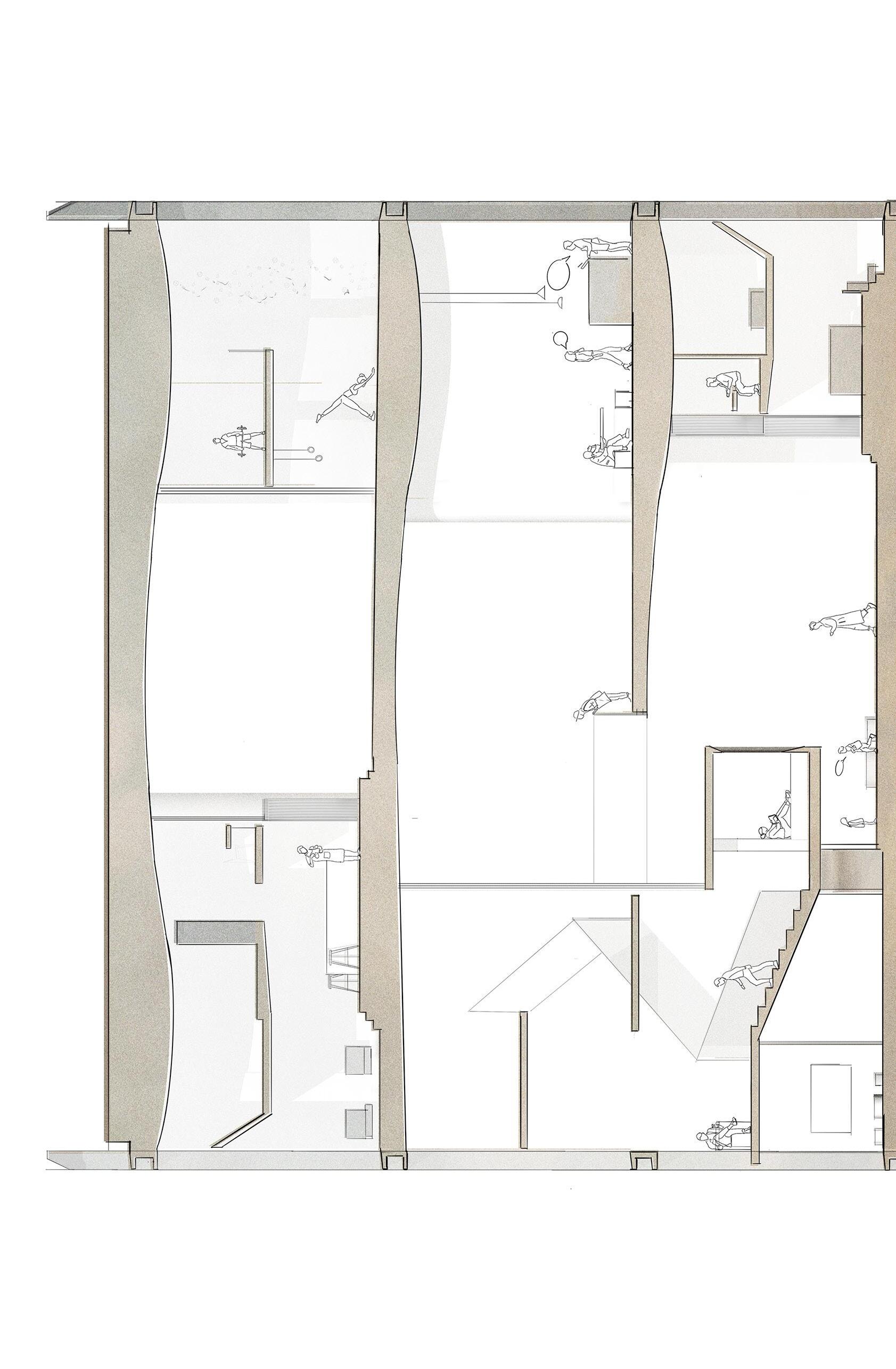
01 02 03 Doorsnede basisprincipes gebouwstructuur //[Eigen beeld] 04 04 35 INTERACTION DESIGN 2022
36
Aanzicht van verschillende straten //[Eigen beeld] 4.

Onderzoek naar gemeenschappelijke functies //[Eigen beeld]

4. Eerste schets aanzet // aanzicht van straten boven elkaar. Mogelijk kaders die naar buiten treden // een systematische stapeling 5. Eerste principe doorsnede // verschillende functies verbinden de verschillende straten met elkaar

37 INTERACTION DESIGN 2022
5.
38
Huiselijkheid Een zoektocht naar thuis Willemsplein 040 042 // 39 INTERACTION DESIGN 2022

HUISELIJKHEID

een zoektocht naar ‘thuis’

Op de volgende bladzijden is er onderzoek gedaan naar huiselijkheid, wat maakt een thuis? Wat maakt een gemeenschap, wat geeft je een veilig gevoel en het gevoel van thuiskomen? Kortom wat is een thuisgevoel?

Dit gevoel is essentieel voor een prettige leefomgeving en dus ook op een bepaald niveau interactie met elkaar aan te gaan en verbinding te voelen.

Dat het thuisgevoel belangrijk is en een basis vormt voor veel essentiële elementen, zien we ook terugkomen in de piramide van Abraham Maslow waar de menselijke behoefte op hiërarchische manier wordt gerangschikt. Thuisgevoel is een menselijke behoefte die zich afspeelt op diverse niveaus van deze piramide. [1]

Thuiskomen zit in heel veel kleine dingen o.a. geluiden, de afwerking van de vloer, de geur en de familiratiteit van je omgeving.

40
1 Jonker, W. (2016) Thuis in een verzorgingshuis; meer dan een mooie kamer 5. ZELFACTUALISATIE 4. ERKENNING 3. SOCIALE BEHOEFTE 2. ZEKERHEID 1. FYSIEK
41 INTERACTION DESIGN 2022
Piramide Abraham Maslow //[Eigen beeld]

When are you home? Is it from here?

//[Eigen foto’s onderzoek naar het gevoel van huiselijkheid]

42

Rennend op sokken over het warme vloerkleed, over de gang zo van de trap. Een sprint naar beneden om je pakketje op te halen.

Aan het werk op de vrijdagmiddag, tweemaal in het uur dreunt de deur op de begane grond. Iemand komt ‘thuis’ .

De buurvrouw loopt naar de voordeur in haar zondagse pak om het eten op te halen bij de bezorger en groet je.

Je opent de deur, een gevoel van thuiskomen, je groet je drie buren die samen in de hal in gesprek zijn.

Dalend de trap af, huiselijk krakend, op naar werk.

Een rotdag, thuiskomend bij de eerste treden waar je wederom wordt gegroet, een familiariteit, een thuis.

Waarom loop ik hier over de gang met mijn sokken? Wat geeft mij het gevoel dat ik mijn pakketje in mijn joggingpak beneden kan ophalen?

Is het t’ gedreun van de deur die je in je privé domein hoort wanneer iemand thuis komt, het gekraak van de trap als je hem afdaalt, de familirariteit of de half gesneden pool vloerbekking met zijn ‘cosy’ gevoel?

In dit huis wonen zo’n 17 huishoudens. Wij delen een whatsapp, een voordeur en een prachtig ruime hal die vanaf de trap bekleed is met vloerbedekking.

Dit is het gevoel van thuiskomen, thuis zijn in een wooncomplex gaat veel verder dan de voordeur van je privé domein.

WILLEMSPLEIN
43 INTERACTION DESIGN 2022
44

When are you home? Is it from here?

//[Eigen foto’s onderzoek naar het gevoel van huiselijkheid]

45 INTERACTION DESIGN 2022
46

When are you home? Is it from here?

//[Eigen foto’s onderzoek naar het gevoel van huiselijkheid]

In het bovenstaande voorbeeld zorgt de vloerafwerking voor een andere benadering van de algemene ruimte en dus ook de samenhorigheid van de bewoners.

In het uiteindelijke ontwerp wordt deze materialisatie in de STRAAT toegepast.

47 INTERACTION DESIGN 2022
48

The invisible space

De vier belangrijkste zones

Ontwerpen met ‘the invisible space’

The ‘awkward’ spaces

Een nieuwe invalshoek

Doelgroep, het creëren van balans

Groepsgrootte en het belang van de straat

Common ground

People are different

Positie woningen

Mate van interactie per ruimte

Keuken, hart van de woning een sociale ruimte

Bufferzone

Regie en het belang hiervan

Sfeer en levendigheid

Dynamiek met afstand en hoogte

Plafond

Sereniteit, jezelf terugtrekken in je privé domein

050 054 056 064 068 072 074 076 081 082 084 088 090 095 // 49 INTERACTION DESIGN 2022

THE INVISIBLE SPACE

de vier belangrijkste zones

Om ‘gouden’ momenten te kunnen cree ren en plekken die als katalysator van interactie op te treden, moet er binnen het ontwerp bewust omgegaan worden met de zogeheten ‘invisible space’.

De ‘invisible space’ bestaat uit de intieme, persoonlijke, sociale en publieke ruimte  die ieder om zich heen draagt.

Buiten de publieke ruimte is een nog niet verder gedefinieerde zone. Op deze afstand kunnen we nog net zwaaien naar bekenden of met stemverheffing overbruggen. Het is zelfs zo dat als een bekende op deze afstand naar ons toe loopt dat we deze nog niet groeten. Men zal dan wegkijken tot hij of zij op enkele meters afstand is. Dit is een connectie waar we niet direct mee wordt ontworpen binnen het project.

BINNEN DE INTIEME RUIMTE //45CM

Deze zone omvat je partner, ouders, broers en zussen, goede vrienden en naaste familieleden. Over het algemeen kan je partner dichterbij komen dan anderen. Als we toch vreemden moeten toelaten in de intieme ruimte wenden we ons af, vermijden oogcontact en hebben een gesloten houding. Zo zie je mensen in een lift of bij een passage met een vreemde in de trein naar de grond staren of hun mobiel.

DE PERSOONLIJKE

RUIMTE //45- 125CM

In de persoonlijke ruimte kun je men de hand schudden en een gesprek met normaal stem niveau voeren. Ook zijn alle gezichtsuitdrukkingen goed leesbaar.

DE

SOCIALE RUIMTE //125-350CM

In de sociale ruimte kan men elkaar groeten op afstand. Ook is er ruimte voor bijvoorbeeld een tafel of een loket.

DE PUBLIEKE RUIMTE //350+CM

In de publieke zone kunnen we een grotere groep mensen toespreken. Tevens is het een afstand waarop we elkaar nog kunnen groeten door bijvoorbeeld te zwaaien. Ook is er een connectie door zicht. [1]

1 van Marwijk, F. (2017). Lichaamstaal. Zaltbommel: Haystack
50

Model waarin de verschillende interacties te zien zijn, genummerd van boven naar beneden: 1. ontmoeting tussen twee mensen die elkaar een vraag stellen op bijvoorbeeld het station. 2. ontmoeting tussen drietal mensen, twee mensen in een gesprek en een passant die gedag zegt. 3. ontmoeting. tussen twee mensen op een feestje [de betreding van de intieme ruimte wordt tijdelijk toegelaten door de externe factoren; harde muziek e.d.] 4. twee mensen die elkaar passeren en op afstand begroeten.

51 INTERACTION DESIGN 2022
Verschillende ontmoetingen, intieme, persoonlijke en sociale ruimte //[Model interacties]

CONNENCTIE GEDAG

“Sociale connectie’’ op deze afstand zeg je mogelijk gedag tegen een voorbijganger

CONNECTIE DOOR ZICHT

‘‘ Publieke connectie’’ enkel een connectie door zicht mogelijk of de afstand voor een presentatie

52

CONNENCTIE INTIEM

“Intieme connectie’’ partner of bekende. Of een persoonlijke connectie op bijvoorbeeld een feestje, in sommige situaties tolereert men een overschrijding van de ‘normaal’ gewenste afstanden omdat de omstandigheden niet anders toelaten

CONNENCTIE GESPREK

“Persoonlijke connectie’’ op deze afstand is het mogelijk om een gesprek aan te gaan

Onderzoek
//[Eigen
53 INTERACTION DESIGN 2022
naar relaties
schema]

ONTWERPEN MET ‘THE INVISIBLE SPACE’

Met kennis van de invisble space kan je ontwerpen, Welke hoeveelheid ruimte ervaart men als prettig en welke hoeveelheid ruimte is te beperkt of te overvloedig.

THE ‘AWKWARD’ SPACES

Te kleine ruimtes waarbij geen rekening wordt gehouden met de persoonlijke benodigde ruimte werken benauwend. Er is gevoelsmatig geen ruimte voor een gesprek en we voelen ons onprettig. Hierdoor gaan we ons anders gedragen; we maken ons klein, onze spieren spannen zich aan en we ontwijken oogcontact.

Een kleine ruimte waarbij we dit allemaal ervaren en welke voorkomt in vele stedelijke gebouwen is de lift. In de lift probeert men dit fenomeen te onderdrukken door middel van spiegels en een extra hoge ruimte. De spiegel maakt de ruimte optisch groter en onderdrukt daarmee een deel van de angstige gevoelens [1]

1 Well, T. (2022) Mirror Meditation
54
Why is the elevator always such a boring space, why is there no room for conversation, why so awkward? //[Schetsboek] 6.

6. Notitie van de verschillende afstanden 7 Constatering van de ongemakkelijke situatie in de lift 8. Referenties waarin de lift onconvectioneel wordt gebruikt

9. Eerste idee om de lift vorm te geven als een ruimte waar men wel interactie kan aangaan

55 INTERACTION DESIGN 2022
7. 8. 9

EEN NIEUWE INVALSHOEK

De lift zoals we deze voornamelijk tegenkomen in de traditionele woongebouwen, is een hele saaie en sombere ruimte. Er is geen ruimte voor een gesprek of een ontmoeting en daarmee dus geen ruimte voor interactie. Het is gewoonweg een hele ongemakkelijke ruimte (7).

Realistisch gezien kan je in een stedelijk woongebouw de lift niet weglaten. Derhalve is er binnen het onderzoek aandacht besteedt aan het ontwerp van een nieuwsoortige lift. Een lift waarin je kunt ontmoeten, een gesprek kunt hebben of waar je zelfs even in blijft zitten met je krant en je complexgenoten groet.

De afmeting van de lift in het ontwerp zijn zorgvuldig ontworpen aan de hand van de afmetingen van de hiervoor benodigde persoonlijke ruimte. Zo kan men comfortabel naast elkaar zitten, heeft men nog steeds een connectie als men tegenover elkaar zit en kan je nog steeds prettig naar binnenlopen als er al mensen in de lift zitten. Daarnaast heeft de lift diverse in- en uitgangen zodat je er gemakkelijk doorheen kan bewegen (11). Door de vide rondom de lift signaleer je de lift al eerder en zie je deze langzaam aan komen vanaf de andere verdiepingen (12). De lift is transulent zodat je ook kan zien wie er al in zit en of er al iemand in zit om zo een ongewenste ontmoeting of verrassing te voorkomen. De lift zal trager van verdieping naar verdieping gaan ten opzichte van een traditionele lift. Mensen zullen dan ook even moeten wachten, hiervoor is er een bar ontworpen rondom de lift. Zo kan men hier verzamelen, een gesprek aangaan en ‘s ochtends hun koffie nuttigen.

Dat een lift meer kan zijn dan enkel een hokje wat je verticaal van a naar b verplaatst, was al eerder te zien in andere ontwerpen (blz. 59-61).

56
Nieuwe lift, concept //[Schetsboek] 10.

lift over meerdere straten 11. Verschillende mogelijke looplijnen en kruizingen in de nieuwe lift // meerdere uitgangen zorgen ervoor dat men organisch zijn of haar route kan vervolgen

57 INTERACTION DESIGN 2022
10. Doorsnede van de 11.
58

Bata's elevator bevindt zich in de Bata's skyscraper. Het kantoor van de directeur is een lift van 6 bij 6 meter met een snelheid van 0.75 m/s. [1]

BATA’S ELEVATOR //[NRC, 2016]
1 Wikipedia (2022) Baťa's Skyscraper 59 INTERACTION DESIGN 2022

Moving Gallery ontworpen door Norman Foster. Een lift van 3 bij 6 meter die functioneert als bewegende galerij en men geleidelijk van niveau naar niveau brengt op dit kleine plot in New York City. [1]

Een ontwerp door OMA. In deze woning is de lift van 3 bij 3,5 meter het hart van de woning. Op de ene verdieping is de lift onderdeel van de woonkamer en het andere moment onderdeel van de keuken. [2]

MAISON À BORDEAUX //[Hans Werlemann, n.b.] MOVING GALLERY //[Nigel Young, 2010] 1 Walker, A. (2010) Norman Foster Completes “Moving Gallery” in a Giant Elevator
60
2 OMA (1998) Maison à Bordeaux
61 INTERACTION DESIGN 2022
62
63 INTERACTION DESIGN 2022

DOELGROEP, HET CREËREN VAN BALANS

Een gemeenschap functioneert het beste en is in balans wanneer deze uit een gemengde groep bestaat.

Er is namelijk geen enkele ‘life cycle’ zelfvoorzienend, elke generatie leert van elkaar [1] . Naast dat er in diverse boeken over deze balans wordt geschreven, is het ook terug te zien in wijkanalyses. Wijken die bestaan uit bewoners van verschillende afkomsten en leeftijden, functioneren het beste.

Het is daarom van belang dat in een gebouw waar de interactie centraal staat er ruimte is voor individuen uit elke groep van de levenscyclus, jong tot oud.

Het te ontwerpen woongebouw bevat met deze reden diverse woningen; één, twee, drie en vierpersoonshuishoudens en is geschikt voor ieder die nog zelfstandig kan wonen, jong tot oud. Op deze manier kan men van elkaar leren en elkaar ook ondersteunen.

1 Chirstopher,
64
A. & Murray, S. (1977). A Pattern Language. New York: Oxford University Press Inc.
Levenscyclus in balans //[The Pattern language] 65 INTERACTION DESIGN 2022
66

gehele gebouw //[section]

8 straten met elk 15-17 woningen //[section]

GROEPSGROOTTE EN HET BELANG VAN DE STRAAT

Binnen het onderzoek wordt er gezocht naar interactie tussen 200 individuen die in een en hetzelfde woongebouw leven. Het is echter niet mogelijk om dezelfde mate van interactie aan te gaan met elk individu of eenzelfde onderlinge connectie te vormen met ieder individu uit een groep van deze grootte.

Er is een degelijk verschil of je iemand enkel herkent van gezicht of dat je er een diepere connectie mee aan gaat en er een band mee opbouwt. Daarnaast is het onmogelijk om een hoge mate van geborgenheid, vertrouwen en het eerder genoemde gevoel van huiselijkheid te creëren tezamen met 200 individuen.

Om dit wel te kunnen bewerkstelligen en met een gedeelte van de bewoners van het woongebouw een diepere connectie aan te kunnen gaan, zal het woongebouw opgedeeld worden in kleinere groepen.

In The Pattern Language, geschreven in 1977 spreekt men over clusters van maximaal tien tot twaalf woningen [1] Een groepsgrootte waarbij er nog makkelijk overlegd zou kunnen worden. Vandaag de dag zijn huishoudens vaak kleiner vandaar dat er op basis van dit gegeven voor gekozen is om in het ontwerp clusters te creëren van 15-17 woningen, deze clusters vormen samen met de ruimte hiertussen de STRATEN van het woongebouw.

67 INTERACTION DESIGN 2022
1 Chirstopher, A. & Murray, S. (1977). A Pattern Language. New York: Oxford University Press Inc.

COMMON GROUND

Elke straat bestaat uit 15-17 woningen, deze zijn verbonden met elkaar door de gemeenschappelijke ruimte tussen de woningen. Deze ruimte is het medium waardoor men in staat is om contact te maken.

In de traditionele straat zoals we deze doorgaans kennen is dit medium de stoep, de straat of de tuin. In een stedelijk flat- of woongebouw is deze ruimte er doorgaans niet, in dit geval is er meestal sprake van een smalle galerij of corridor die onvoldoende ruimte biedt om het gesprek aan te gaan of gedag te zeggen [1]

The schrijvers van de Pattern Language in 1977 stellen dan ook dat er om deze reden bewoners geen contact kunnen maken in een flatgebouw, er ontbreekt een ontmoetingsruimte of wel common ground.

In het ontwerp is deze common ground bewust gecreëerd, de straat; een binnenruimte onder hetzelfde dak met voldoende persoonlijke ruimte en voorzien van diverse functies om te dienen als katalysator van interactie.

68
1 Harmen van de Wal, H. & van Dorst, H. Leuenberger, T. Vonk, E. & van Vugt, E. (2016). Privacyscript de invloed van architectuur op sociale interactie in woongebouwen /
69 INTERACTION DESIGN 2022
Concept collage straat //[3d section]

PEOPLE ARE DIFFERENT

Diverse woningen zorgen voor diverse afmetingen. De breedte van de woningen wordt gelijk gehouden zodat iedere woning in de straat hetzelfde aanzicht heeft, een gevoel van gelijkwaardigheid (13).

Je zou de verspringen in diepte van de woningen kunnen zien als een aanleiding voor een interessante gevel. Echter is er een andere aangelegenheid waarbij dit van pas komt. Men is namelijk verschillend, het ene individu houdt van meer reuring dan de ander, men verschilt op het spectrum van introvert en extravert (14).

Dit betekent dat niet iedereen dezelfde relatie wil en kan hebben tot de straat. Omdat elke woning dezelfde breedte heeft kan er gespeeld worden met de compositie van de woningen per straat, zo onstaan er in elke straat diverse plekken (12). De ene plek is rustig, de ander meer bevindt zich meer tussen de verkeersstromen van de verschillende functies en is daarmee drukker.

70

Onderzoek relatie tot de straat, verschillende dieptes woningen //[Shetsen en aantrekeningen, Pattern Language (1977)]

71 INTERACTION DESIGN 2022
12.

Onderzoek relatie tot de straat, verschillende dieptes woningen //[Schetsen]

DIEPTE X X X 72
13.

13. Breedte van drie-, twee- en eenpersoonshuishoudens is gelijkwaardig, de diepte verschilt // [plattegrond] 14. Schematische voorstelling van hoe de straat kan veranderen breedte door diverse opstellingen van de woningen // daarbij veranderd de 'snelheid' van deze plekken.

73 INTERACTION DESIGN 2022
14. 15. 16.

POSITIE WONINGEN

In de bovenstaande schetsen is het onderzoek naar de positionering van de woningen ten opzichte van elkaar in de straat vastgeld. Dit is eveneens onderzocht in 3D-programma.

17. Indien je de woningen rondom een plein situeert zal je continu contact hebben maar gelijktijdig ook het idee hebben dat men continue naar binnen kijkt, deze opstelling is té GECONCENTREERD

18. Wanneer je de woningen lijn recht tegenover elkaar situeert krijg je ook een situatie waarbij

je continu recht bij elkaar naar binnen kijkt. Wel onstaat er zo meer ruimte voor beweging in de straat. 19. De beste optie is om de woningen ten op zichte van elkaar te laten verspringen. Zo ontstaat er CONTACT door middel van schuine zichtlijnen maar is er ook privacy.

74
17. 18. 19.

Onderzoek naar situering woningen //[Schetsboek]

20. Opstelling van banken // je moet niet op sociale mensen rekenen voor interactie maar de mogelijkheden creeeren om interactie aan te gaan

75 INTERACTION DESIGN 2022
20.
76

Binnen het ontwerpproces is er veel gebruikt gemaakt van het boek The Pattern Language en de uitgangspunten die hierin worden omschreven. Net zoals van de andere ontwerp stappen zijn hiervan aantekeningen en schetsen gemaakt. Op de volgende bladzijdes in deze katern worden er een aantal toegelicht. Sommige schetsen zijn al eerder langsgekomen in dit verslag. Voor de aantekeningen staat een cijfer omcirkeld dit is het desbetreffende hoofdstuk waarvan de aantekeningen is gemaakt, daaronder is het bladzijdenummer onderstreept.

77 INTERACTION DESIGN 2022
ONDERZOEK PATTERN LANGUAGE //[Schetsboek] 21. 22. 23.

21. Eerste notitie over de doelgroep // gebalanceerd 22. Vergelijking van de straat met een promenade // voyeur en flaneur // een aantrekkelijke plek 23. activiteiten moeten voldoende gebundeld zijn om genoeg verkeer te krijgen en functies te laten werken 24. Mensen zijn verschillend, de een houdt meer van drukte, waar de ander liever meer afgelegen woont // hiervoor zijn er verschillende plekken en relaties tot de straat nodig 25. Het maximaal aantal woningen om echt een persoonlijke sociale connectie mee te kunnen hebben is 10-12, als we in the pattern language kijken.

79 INTERACTION DESIGN 2022
24. 25.
ONDERZOEK PATTERN LANGUAGE //[Schetsboek] 80

26. In het boek wordt geschreven dat een connectie over meer dan vier bouwlagen nagenoeg niet mogelijk is 27. Om een connectie te voelen met thuis heeft men een kleine tuin nodig of een connectie met de grond, het maaiveld // groen 28. Veel mensen voelen zich weggestopt in hoogbouw, alleen in zijn of haar appartement. Dit komt voornamelijk door trappen, liften en lange gangen.

81 INTERACTION DESIGN 2022 27. 26.
28.

29. Het is van belang om contact te houden met ouderen // vaak wordt men weggestopt terwijl we heel goed van elkaar kunnen leren 30. Grenzen en overgangen kunnen door diverse elementen gecreëerd worden door bomen // een entree // versmalling of trap 31. Naast drukte heeft men ook een plek nodig om even te 'refreshen', een stilte plek 32. De plek tussen huizen is belangrijk, het is het gemeenschappelijke land die als plek dient voor interactie 33. In de organisatie van straten worden huizen vaak gescheiden door grote wegen en is het niet mogelijk om hier te spelen, dit wordt omschreven als een gemis voor de sociale ruimte

82
ONDERZOEK PATTERN LANGUAGE //[Schetsboek] 29. 30. 31.
83 INTERACTION DESIGN 2022
32. 33.
ONDERZOEK PATTERN LANGUAGE //[Schetsboek] 84

34. ''The public room'' een ruimte die net voldoende is gedefinieerd zodat mensen hier op een natuurlijke manier stoppen, een ruimte met een goede balans tussen open en gesloten // een ruimte waar men zich comfortabel voelt en kan ontmoeten 35. Een familie functioneert niet op zichzelf maar heeft meerdere mensen om zich heen nodig

85 INTERACTION DESIGN 2022
34. 35.
ONDERZOEK PATTERN LANGUAGE //[Schetsboek] 86
37. 38.
36.
87 INTERACTION DESIGN 2022 39.
88
89 INTERACTION DESIGN 2022

MATE VAN INTERACTIE PER RUIMTE

In de ene ruimte staan we meer open voor interactie dan de ander. Er zijn ruimtes waar we ons terug willen trekken en ruimtes waar we het juist fijn vinden om interactie aan te gaan.

In het schema hiernaast is de mate van interactie per ruimte weergegeven.

PRIVE DOMEIN

Interactie dimmer per gebouwonderdeel //[Eigen schema]

STRAAT WONING
TOILET
WASTAFEL WOONKAMER KEUKEN 90
DOUCHE SLAAPKAMER
WASRUIMTE GROTE KEUKEN GUEST-ROOM DEEL KAST SPEELRUIMTE LOUNGE KANTOREN BIE B KOFFIEBAR BUITENRUIMTE/TUIN 91 INTERACTION DESIGN 2022 SEMI OPENBAAR OPENBAAR
GEHELE GEBOUW

KEUKEN

hart van de woning, een sociale ruimte

De keuken als buffer tussen privé en semi openbaar, een sociale ruimte.

De keuken en koken vervullen van oorsprong een belangrijke functie in het dagelijks leven, de keuken is een plek waar men samenkomt en ervaringen deelt.

Hiernaast zijn twee schilderijen te zien, de vette keuken en de magere keuken geschilderd door Jan Steen in de 17e eeuw. In beide vertoningen is te zien dat de keuken de plek is voor het sociale leven, onmoeting en uitwisseling. Het gehele leven speelt zich af voor de haard, de keuken van vroeger.

In de 19e eeuw verdween langzaam de keuken voor de elite en werd de grootte vorm en de positie van de eet tafel voor de sociale interactie belangrijk. [1]

In de huidige samenleving heeft de keuken weer een prominente plek ingenomen. De ‘elite; vormt zicht rondom de keuken voorzien van alle gemakken van ‘cooker’ tot stoomoven. In veel gevallen is niet het nuttigen van de maaltijd het evenement maar het samen koken zelf.

De keuken is vanuit de oorsprong dus een hele sociale functie waar men samenkomt, het middelpunt van de woning.

1 (2018) FORUM NO.2. De keuken. Amsterdam: Drukkerij Raddraaier Amsterdam
92
Jan Steen - de vette keuken //[1665-1670]
93 INTERACTION DESIGN 2022
Jan Steen - de magere keuken //[1650-1655]

Onderzoek relatie privé domein ten op zichte van de straat //[Schetsen]

94
40. 41. 43. 42.

40. Schetsen waarin de ruimtes geschakeerd achter elkaar worden getekend // meest naar minste interactie 41. Analyse mensen met voortuin, een bufferzone hebben vaak de gordijnen open, daar waar mensen zonder voortuin vaak alles volledig dicht hebben 42. Slaapkamer mogelijk zien als een cocon waar men zich kan terugtrekken

43. De keuken zit achter een pui die men zelf kan openen of sluiten // toevoeging van regie

44. keuken als buffer // verschillende opstellingen zorgen voor meer of minder privacy

95 INTERACTION DESIGN 2022 44.
96

BUFFERZONE

Om een goede overgang te creëren tussen het privé domein [de woning] en de semi-publieke ruimten [straat] is de bufferzone tussen beide essentieel (41).

De bufferzone creëert een subtiele overgang, een gradiënt tussen beide.

97 INTERACTION DESIGN 2022 45.
Zoektocht vormgeving bufferzone, afstand en positie //[Schetsen]

REGIE EN HET BELANG HIERVAN

Om je thuis te voelen heeft men de behoefte regie te hebben. Zoals eerder al werd benoemd kan je mensen niet foreceren om een connectie aan te gaan.

De pui van de woningen is naar wens in gedeeltes te openen en te sluiten (43).

Iedereen wil graag de director van zijn of haar eigen leven zijn. Wanneer de deuren opengaan is het jouw woonkamer, jouw ruimte; jullie ruimte.

98
Gesloten pui //[Doorsnede, schets]
99 INTERACTION DESIGN 2022
Geopende pui //[Doorsnede, schets]

SFEER EN LEVENDIGHEID

Door de toepassing van een translucent materiaal is er op elk moment een gevoel van leven in de straat. Op het moment dat iedereen zijn of haar pui sluit zie je schimmen en lichten.

Daarnaast zorgt het materiaal voor een gradiënt van privacy.

100
101 INTERACTION DESIGN 2022
Model onderzoek naar translucente pui //[Eigen foto]

Woningen straat //[Aanzicht]

KEUKEN SOCIALE RUIMTE, BUFFER TUSSEN PRIVÉ EN SEMI OPENBAAR

LEVENDIGHEID

102
GRADIENT REGIE PRIVACY 103 INTERACTION DESIGN 2022

DYNAMIEK MET AFSTAND EN HOOGTE

De woningen hebben elk een split level en een verdieping. Door het toepassen van verschillende hoogtes ontstaat er voor sommige ruimtes een afstand tot de ‘straat’. Zo ligt de zitruimte meer verdiept ten op zichte van de straat, wat zorgt voor privacy (47).

Vanaf een tweepersoonshuishouden wordt er gebruikt gemaakt van vides om zo de mogelijkheid te creëren voor een connectie tussen de begane grond van de woning en de verdieping (50).

In diverse maquettes is er onderzoek gedaan naar hoe dit hoogteverschil het best gecreëerd kan worden, te zien op de bladzijde hiernaast.

104
105 INTERACTION DESIGN 2022
Modellen onderzoek naar hoogteverschil en licht //[Eigen foto]

PLAFOND

In de volgende schetsen is er onderzoek gedaan naar hoogtes en gebogen plafond met gebaar richting de straat

49 Relatie tussen verschillende niveaus met een tribune-achtige vormgeving, deze vormgeving zorgt echter voor een gevoel van ‘NEERKIJKEN’ op de straat en creëert een te grote afstand waarbij de woningen gevoelsmatig boven de straat staan. 50. Relatie tussen verschillen -

de niveaus door het toevoegen van VIDEN zorgt voor een CONNECTIE over meerdere lagen 47. Gebruik van een ZITKUIL als hart van de woning, teruggetrokken, intiem en beschermd. Onderlegger voor de uiteindelijk toegepaste verdiepte zitruimte

106
46. 47.

48. Door het toepassen van een GEBOGEN PLAFOND met één en hetzelfde materiaal opent de woning zich als het ware richting de straat en ontstaat er een OMARMING van woning tot woning.

107 INTERACTION DESIGN 2022
Onderzoek naar hoogtes en plafond //[Schetsboek] 48. 49. 50.

Beide modellen gefotografeerd vanaf straatzijde

//Links: model met een

verdiepte ruimte en een

plafond wat zich duidelijk opent richting de straat. //Rechts: model heeft ruimten die als een tribune steeds hoger worden.

Hierdoor lijk je neer te kijken op de straat, dit creëert geen

fijne relatie en zorgt voor een te grote afstand en een fysieke en gevoelsmatige barrière.

Modellen onderzoek naar hoogteverschil //[Eigen foto]

108
109 INTERACTION DESIGN 2022

Modellen onderzoek naar licht prikkelarme ruimte //[Eigen foto]

110

SERENITEIT, JEZELF TERUGTREKKEN IN JE PRIVÉ DOMEIN

Wanneer je de hele dag de mogelijkheid hebt om interactie met elkaar aan te gaan dien je ook een plek te hebben om je terug te kunnen trekken, sereen even voor jezelf, prikkelarm.

In het ontwerp is dit de ‘slaapkamer’.

111 INTERACTION DESIGN 2022
Doorsnede concept licht //[Schets]
112

Modellen onderzoek naar licht prikkelarme ruimte //[Eigen foto]

113 INTERACTION DESIGN 2022

In de slaapkamer bevindt zich een interieur element. Het element biedt mogelijkheden maar dicteert niet. Je kunt erop slapen, zitten of het eenvoudigweg aan de kant schuiven om gebruik te maken van de rest van de ruimte (51).

Geïnspireerd door Home Economics, Venice Architecture Biennale door architect Jack Self (bladzijde nr. 162).

114

je net niet naar buiten kijken en ben je volledig afgezonderd van externe prikkels

51. Schetsen verschillende configuraties interieur element slaapkamer. 52. Wanneer je zit op het element in de slaapkamer kan
115 INTERACTION DESIGN 2022
Onderzoek naar slaapkamer element //[Schetsboek] 51. 52.
116
117 INTERACTION DESIGN 2022
Referentie sereniteit //[Waterside Buddist Shrine, ARCHSTUDIO, 2017]
PRIVATE YET VIVID, ZOEKTOCHT NAAR TRANSPARANTIE STREETMEKKA VIBORG / EFFEKT //[Foto; Archdaily] 118
119 INTERACTION DESIGN 2022
REFERENTIE TE OPENEN GEVEL 120
DOIS TRÓPICOS - MNMA STUDIO // [A.KLOTZ, 2020]

WEESPERFLAT - HERMAN HERTZBERGER //[1966]

Een studentenflat ontworpen door Herman Hertberger, met diverse gezamenlijke ruimtes. Een van zijn vele projecten waar ontwijken en ontmoeten centraal staat. Op de foto hier1 Arcam (1966) Weesperflat

boven is de 'stadsstraat; te zien zoals Herman dit noemde [1]

121 INTERACTION DESIGN 2022

PRIVE WONEN

PRIVE TUIN
HOOGVLIET VMX ARCHITECTS
122
MENSEN OP ZOEK NAAR MEER BUFFER; MAKEN GROTERE HEG MET PLANTENPOTTEN
PRIVE WONEN STRAAT PRIVE WONEN SEMIPRIVE BUFFER TUIN PRIVE TUIN 123 INTERACTION DESIGN 2022
UNITE D' HABITATION - LE CORBUSIER //[1947] 124
Het Corbusierhaus (Type Berlin) werd aangepast aan Berlijn naar een prototype dat de architect twee keer eerder in Frankrijk rk. [1]
125 INTERACTION DESIGN 2022
1 Walker, A. (2010) Norman Foster Completes “Moving Gallery” in a Giant Elevator
//[1961] 126
127 INTERACTION DESIGN 2022
128
129 INTERACTION DESIGN 2022
130
DELEN Zoektocht naar delen Gemeenschappelijke functies Circulatie principe Verdeling functies Uitvalswegen en overgangen Bieb en sportruimte Zoektocht connectie tussen straten Klimruimte en kas Bioscoop en entertainment ruimte 112 120 124 126 128 130 134 136 138 // 131 INTERACTION DESIGN 2022

ZOEKTOCHT NAAR DELEN

Onderzoek naar gedeeld wonen

Om interactie in een woongebouw verder te brengen dan enkel een dagelijks/ wekelijks 'supermarkt-groetje' dient het gebouw over een gemeenschappelijk element te beschikken. Maar wat is men bereid om te delen? Tot hoe ver ga je hierin en wat werkt?

Space 10 & Urgent.Agency lanceerde een online enquête waarin zij inmiddels al 158.072 mensen van zo’n 175 landen hebben aangegeven hoe ze samen zouden willen wonen, wat ze zouden willen delen en wat niet [1]

Uit onderzoek blijkt dat de meerderheid van de mensen graag een privé domein heeft met daarin zijn of haar eigen badkamer en keuken.

Ook geeft men aan dat de gewenste omvang van de gemeenschap waarmee men een of meerdere elementen zou delen uit minimaal 4 en maximaal 25 mensen zou moet en bestaan, mede hierom ook het belang van de STRAAT.

In het volgende katern zie je verschillende antwoorden uit de enquête die gebruikt zijn als basis voor het onderzoek.

1 SPACE10 & Urgent Agency (2018) 132

ENQUETE NO. 158072

SPACE10, is een door IKEA gefinancierde 'future living lab' en houdt zich bezig met het identificeren van opkomende trends en het ontwerpen van innovatieve antwoorden op de grotere veranderingen die naar

verwachting in de samenleving gaan plaatsvinden in de komende jaren. Urgent.Agency is een cultuur-ontwerpbureau. Zij maken cultuur- en ontwikkelingsstrategiee n, stadsontwerp, identeit en communcatie.

Wil je in een gemeenschap wonen die locaties heeft over de hele wereld?

Als je gemeenschap een zelfrijdende auto heeft waar zou je dan willen wonen?

77 % zegt dat enkel de gemeenschappelijke ruimte gemeubileerd moeten zijn. Hun prive domein willen zij zelf inrichten

Uit hoeveel mensen zou de gemeenschap moeten bestaan?

YES! 70 60 50 40 30 20 10 0 10 0
4-10 10-25 25-50 50-100 100+ 48% 32% 13% 4% 3%
133 INTERACTION DESIGN 2022
Privé- en gemeenschappelijke -ruimtes met duidelijke grenzen en functies De meerderheid prefereert om een communnity te delen met koppels, single mannen en vrouwen Modulaire wanden die ruimtes insluiten of ruimtes openen gebaseerd op de behoefte Als je niet thuis bent mogen andere mensen dan je privé ruimte gebruiken? OFF-LIMITS 10 0 YES 134

1. Te weinig privacy (34%)

2. Rotzooi van andere mensen (21%)

3. Niet volledig controle hebben over beslissingen die impact hebben op het dagelijks leven (17%)

4. Iemand misschien niet aardig vinden in de community (14%)

5. Potentiële discussies bij een onenigheid (14%)

1. MORE ways to SOCIALIZE (39%)

2. Kosten delen, meer voor je geld (20%)

3. Het hebben van een gemeenschap buiten werk en school(18%)

4. Een beter huis is een actievere locatie (8%)

5. Meer gemak in het dagelijks leven (7%)

6. Mensen om je heen hebben om hulp te vragen(4%)

7. Toegang to verschillende gemeenschappelijke functies (2%)

8. Het hebben van extra’s zoals een gym (2%)

70 % wil graag extra betalen voor een service waarbij de rekeningen worden betaald, de gemeenschappelijke ruimtes worden schoongemaakt, etc.

78%vind het hebben van huisdieren prima

-
+
135 INTERACTION DESIGN 2022

TO SHARE OR NOT TO SHARE

Wat

ZELFVOORZIENDE TUIN 11% INTERNET 11% GEREEDSCHAP 9% GEMEENSCHAPPELIJKE RUIMTE 9% WERKRUIMTE 9% HUISHOUDELIJKE APPARTATUUR 8% KEUKEN 8% SCHOONMAKEN ALGEMEEN 8% ZELFRIJDENDE AUTO 8% KINDEROPVANG 6% DAGELIJKS ETEN 6% BOODCHAP PEN 4% WC & DOUCHE BEDROOM 0% 3%
is men bereidt om te delen? 136
137 INTERACTION DESIGN 2022

Eerste concept, gemeenschappelijke functies gebundeld, straten identiek //[Schetsboek]

138
53.
139 INTERACTION DESIGN 2022
53. Eerste doorsnede schets // grote open ruimte binnenkomst // mogelijk om volledig naar boven te fietsen // maar geen aanleiding om elke individuele straat te bezoeken als bewoner

GEMEENSCHAPPELIJKE FUNCTIES

In het eerste concept (te zien op de vorige bladzijde (blz. 138)) liggen alle gemeenschappelijke functies in het midden van het gebouw en waren de straten identiek aan elkaar.

Bij deze opzet is het niet interessant om in andere straten te gaan kijken. Hierdoor loopt men mogelijk diverse onmoetingen mis.

Om de circulatie van mensen door het woongebouw te bevorderen is er uiteindelijk voor gekozen om de gemeenschappelijke functies door het gebouw te verweven en deze over verscheidene straten te laten reiken.

140

Verschillende gemeenschappelijke functies in het woongebouw,

die gemaakt kunnen worden door het concept;

01 02 03 04 05 06 07 08 09 10 11 12
Gemeenschappelijke functies verspreid door het gebouw //[Diagram, eigen beeld]
141 INTERACTION DESIGN 2022
functies delen: 1. Groene kas enwerk 2. Fitness 3. Bieb 4. Kantoor 5. Muziek 6. Keuken 7. Kinder en spelruimte 8. Vergader 9. Woonkamer 10. Sportzaal 11. Film, theather en feestzaal e.d. 12. Werkplaats

Onderzoek naar gemeenschappelijke functies //[Schetsboek]

142
54.
143 INTERACTION DESIGN 2022 55.
56. 144
Onderzoek naar bieb en sportruimte //[Schetsboek]

56. CIRCULATIE PRINCIPE , het natuurlijk kunnen doorlopen van gemeenschappelijke functies waarbij diverse routes met elkaar kruizen.

145 INTERACTION DESIGN 2022

57. Verdeling van de functies over de verdiepingen, 58. GECATEGORISEERD per functie en vanuit daar evenredig verdeeld over het gehele woongebouw

Zoektocht naar de juiste verdeling van functies, gecategoriseerd //[Schetsboek]

57.
146
58.
58. 147 INTERACTION DESIGN 2022

UITVALSWEGEN EN OVERGANGEN

Schetsen met onderzoek naar de vormgeving van de gemeenschappelijke functies

59. Een WASBAR gecombineerd met bank inclusief ruimte voor groen. Een ontmoetings plek

die in elke straat terugkomt. 60. Diverse functies in een straat. Vanaf elke plek zijn er diverse UITVALSWEGEN waarbij men op een natuurlijke manier altijd zijn/haar route kan vervolgen 61. Duidelijke OVERGANGEN zijn te creëren door middel van trappen zoals dat wordt gedaan ter plaatse

van de bufferzones van de woningen.

148
59. Onderzoek naar gemeenschappelijke functies //[Schetsboek] 60.
INTERACTION DESIGN 2022
61.
149
150
Onderzoek naar bieb en sportruimte //[Schetsboek]
62.
63. 151 INTERACTION DESIGN 2022
152
Onderzoek naar bieb //[Schetsboek]
64. Vervolg studie naar de bieb // verschillende trappen met elk een ander functie en snelheid
153 INTERACTION DESIGN 2022
64.
65. 154

Onderzoek naar diverse gemeenschappelijke functies //[Schetsboek]

66.
155 INTERACTION DESIGN 2022
67. 65. Schetsen naar klimruimte met een speciale ervaring // functies die je enkel in een woongebouw zoals dit kan plaatsen
156
Onderzoek naar klimruimte //[Schetsboek]
68.
66. Combinatie van werkruimte en groene kas // werkruimte achter een groene buffer
157 INTERACTION DESIGN 2022
Onderzoek naar kas met werkplekken //[Schetsboek]

BIOSCOOP EN ENTERTAINMENT RUIMTE

69. De ruimte is MULTIFUNCTIONEEL ; feesten, lezingen, presentaties en dergelijke kunnen hier gegeven worden. 70. De indeling is niet standaard. Mensen zijn letterlijk meer op elkaar GERICHT, denk bijvoorbeeld aan een opstelling zoals in de Moulin Rouge. 71. Zonder de ruimte te betreden is te zien of er al mensen aanwezig zijn, mocht je toch geen behoefte hebben om de ruimte te betreden kun je jouw weg op een NATUURLIJKE WIJZE vervolgen zonder een ongemakkelijke confrontatie aan te gaan. 72. De vloer is in hoogte aan te passen met daaronder lampen voor bijvoorbeeld een feest.

158
69.
70. 71. 72.
159 INTERACTION DESIGN 2022
Bioscoop en entertainment ruimte //[Schetsboek]
160

De gemeenschappelijke functies kun je zien als de vroeger plek om te wassen. In het Frans; Lavoir, ook wel ‘to gossip’ dit omdat je hier alle roddels en dus ook gesprekken uitvoerig plaatsvonden.

161 INTERACTION DESIGN 2022
Lavoir; to gossip //[ Les femmes au lavoir vers 1850 en France]
Jack self - Home Economics //[2016] 162
163 INTERACTION DESIGN 2022
164
165 INTERACTION DESIGN 2022
166
ONTWERP Eenpersoonshuishouden Tweepersoonshuishouden Installatie Daglicht Totaal ontwerp 148 150 160 162 // 167 INTERACTION DESIGN 2022

//ONE //ONE

Places of possible of possible interaction interaction

//EEN PERSOONS_HOUSHOUDEN

Plattegrond begane grond van een eenpersoonshuishouden.

O. Plekken voor mogelijke interactie. 1. BUFFERZONE , zone die een fijne gradatie creëert tussen privé en semiopenbaar. Gedefinieerd

door materiaal, hoogte en afstand. 2. Een GEVEL die mensen de mogelijkheid geeft directie te geven aan de open en geslotenheid van zijn of haar woning. 3. KEUKEN , persoonlijke connectie,

mogelijk een gesprek met een bezoeker, gericht op de staat voor een mogelijke sociale connectie. 4. Verplaatsbaar MEUBILAIR , persoonlijke connectie, mogelijk gesprek met gasten. 5. TRAP , leidt naar

PERSON_HOUSEHOLD PERSON_HOUSEHOLD
4. 5.
6. 7. 8.
2. 3.
0 168
1. LEVEL

met met een meubelstuk die de mogelijkheid biedt om te zitten, te liggen op zij te schuiven e.d.

de

mogelijk groeten van iemand die op straat niveau loopt door te zwaaien

privé domein. 6. LAMELLEN die zich steeds meer openen naar mate je verder naar beneden loopt. Vanaf de staat lijken deze gesloten en zorgen ze voor privacy. 7. GARDEROBE 8. OPSLAG onder de vloer. 9. PRIVE DOMEIN , met sereen lichtinval volgens het eerder beschreven lichtmodel. Wanneer je zit in deze ruimte heb je geen uitzicht. 10. MULTIFUNCTIONEEL ELEMENT , je eigen domein 11. BUREAU met uitzicht over straat, 9. 10.
0 1 2 LEVEL 1 169 INTERACTION DESIGN 2022
11.

O. Plekken voor mogelijke interactie. 1. BUFFERZONE , zone die een fijne gradatie creëert tussen privé en semiopenbaar. Gedefinieerd door materiaal, hoogte en afstand. 2. Een GEVEL die

1 Lichaamstaal (van Marwijk, F. 2017)

mensen de mogelijkheid geeft directie te geven aan de open en geslotenheid van zijn of haar woning. eveneens is de ruimte tussen de keuken en de gevel bruikbaar als je hem opent 3. Een ronde TAFEL

elke omzittende is gelijk aan elkaar [1] 4. Verplaatsbaar MEUBILAIR , persoonlijke connectie, mogelijk gesprek met gasten met een verdiepte zithoek voor meer afstand tot de straat 5. Wanneer je

//TWEE PERSOONS_HOUSHOUDEN
1. 2. 3. 4.
LEVEL 0 170

samen woont dien je ook een plek te hebben om je terug te kunnen trekken t.o.v. elkaar de zogeheten ‘ PRIVATE NOOK’

6. PRIVE DOMEIN , met sereen lichtinval volgens het eerder beschreven lichtmodel.

Wanneer je zit in deze ruimte heb je geen uitzicht. 7. Een gordijn om de ruimte af te sluiten 8. Een dubbele WASTAFEL , een plek om op het eind van de dag in prive nog even een gesprek aan te

gaan met je partner. 9. VIDE voor een connectie met je medebewoner op de andere verdieping.

6. 9. 8. 5.
0 1 2 LEVEL 1
171 INTERACTION DESIGN 2022
7.
172
Beeld van de straat met vloerbedekking //[Eigen beeld]
173 INTERACTION DESIGN 2022
Scan van eerste schetsen //[Schetsrol] 174
175 INTERACTION DESIGN 2022
176
Onderzoek naar relaties //[Eigen schema] 177 INTERACTION DESIGN 2022
178
179 INTERACTION DESIGN 2022

INSTALLATIE

Het gebogen plafond biedt ruimte en een aanleiding om de warme lucht die stijgt (73) af te zuigen in het plafond, waar ruimte is voor installatie (74). Verse lucht kan vervolgens weer de ruimte ingeblazen worden onder de treden van de trappen (75).

73.
180
Straat, ventilatie, warmte //[Schetsboek] 74.
181 INTERACTION DESIGN 2022
75.

DAGLICHT

76. Het belang van DAGLICH T in de straat, dit element wordt toegevoegd door middel van een snede in het gebouw en door de DOORLAATBAARHEID van de gemeenschappelijke functies. Net zoals dat van belang is bij de vides

ter plaatse van gemeenschappelijke functies dienen ook deze snedes dusdanig te zijn vormgegeven dat de omarming en huiselijkheid van de straat staande blijft. 77. De RONDE afscheiding tussen diverse functies en woningen in de plattegrond zorgen voor een zachte overgang.

182
Straat, ventilatie, warmte //[Schetsboek] 76.
183 INTERACTION DESIGN 2022
77.
184
Toevoegen van daglicht, splitsen van het volume //[Diagram, eigen beeld]
185 INTERACTION DESIGN 2022
092 141 150 154 151 186

TOTAAL ONTWERP

Op de volgende bladzijden zijn doorsneden te zien van het uiteindelijke ontwerp. In dit ontwerp zijn alle onderdelen die hiervoor zijn besproken geïmplementeerd.

Ook in deze doorsnede vind je op diverse plekken nummers. Deze nummers refereren aan het bladzijdenummer waar dit onderdeel eerder werd uitgelicht.

040 067 083 097 098 106 148 168 187 INTERACTION DESIGN 2022
092 141 150 154 151 188
040 067 083 097 098 106 148 168 170
180 190
054 056 191 INTERACTION DESIGN 2022
180 192
054 056
040 067 111 097 106 148 194
092 141 141 143 154 195 INTERACTION DESIGN 2022
040 067 111 097 106 148 196
092 141 141 143 154 141
198
CONCLUSIE Totaal ontwerp Conclusie Een vergelijking Nawoord 168 168 174 176 // 199 INTERACTION DESIGN 2022

CONCLUSIE

In het afstudeeronderzoek is er gezocht naar een antwoord op de volgende vraag; Hoe ziet een stedelijk woongebouw voor circa 200 mensen waarin de bevordering van sociale interactie* en het nader tot elkaar komen centraal staat eruit?

Het moge duidelijk zijn dat dit geen makkelijke vraag is om te beantwoorden en dat het samenhangt met verscheidende factoren.

In het ontwerp komt HUISELIJKHEID terug, denk aan SFEER en TACTILITEIT , het gebruik van vloerbedekking en een FIJNE GRADATIE tussen privé en openbaar, de BUFFERZONE is hierbij essentieel.

Daarnaast is de bewoner eigen REGIE verschaffen essentieel om hem/haar een gevoel van thuis te geven. Dit gevoel van eigenaarschap is onder andere verwerkt in de gevel van iedere individuele woning. Eveneens is het van belang dat ieder zijn eigen PRIVÉ-DOMEIN heeft om zichzelf op zijn of haar tijd terug te kunnen trekken.

Daarnaast zijn er diverse elementen om te DELEN . Aanvullend functioneren ook de vluchtroutes als gemeenschappelijke buitenruimte.

Veel van deze ruimten had je als alleenwonend individu of als gezin nooit op zichzelf kunnen hebben, denk bijvoorbeeld aan een bioscoop en een bibliotheek. Al deze ruimtes zijn zo vormgegeven dat je diverse UITVALROUTES hebt en je op een natuurlijke manier je weg langs en door de ruimtes kan vervolgen. Daarmee kan ieder individu er zelf voor kiezen om ontmoe -

tingen aan te gaan of er juist even voor te kiezen om elkaar enkel op afstand te groeten.

Op diverse plekken wordt er gestuurd op wel of geen interactie door te ontwerpen met de PERSOONLIJKE RUIMTE

Als uitgangspunt voor het ontwerpend onderzoek is gekozen voor een locatie op het stadseiland van Nijmegen, namelijk Veur-Lent. Terugkijkend op het ontwerp is het een WOONCONCEPT en is deze NIET LOCATIESPECIFIEK . Met een aantal aanpassingen is dit ontwerp/woonconcept zowel toepasbaar in de stad als daar buiten.

Terugkijkend op het concept zit er een BANDBREEDTE aan, het huisvesten van minder dan 200 mensen op deze wijze is niet haalbaar, daarvoor zijn er te veel gemeenschappelijke functies en ruimtes, wel kan dit concept makkelijk opgeschaald worden tot zo'n 500-600 mensen. Een ideale grootte zou ik nu inschatten op 400 bewoners.

Door het lezen van dit onderzoek en verslag wordt je geprikkeld anders te gaan kijken naar wonen, interactie en het faciliteren van ONTMOETINGEN . Kennis die in mijn optiek ELKE ARCHITECT moet hebben. Ontwerpen met TACTILITEIT, INTERACTIE en gevoel voor de menselijke maat en daarmee dus je PERSOONLIJKE RUIMTE zouden op nummer één moeten staan. Deze aandachtsgebieden zijn net zo belangrijk als de huidige milieuproblematiek. Het is daarbij van belang kritisch te blijven kijken en onderzoeken naar de veranderende behoefte.

200

Er is gekeken naar dagelijkse gebruiken voor moeilijk te bevatten begrippen zoals HUISELIJKHEID. Hiervoor is er onderzoek gedaan in de praktijk door te ZIEN , te ERVAREN , KRITISCH te kijken naar de omgeving en deze te ANALYSEREN Door middel van fotografie en verhalen is deze sfeer overgebracht.

Woonconcept op diverse locaties //[Eigen beeld]

201 INTERACTION DESIGN 2022

//EEN VERGELIJKING

In het eerste hoofdstuk wordt de huidige woonsituatie van de gemiddelde nederlander omschreven; een ruimtegebruik van zo’n 65 m 2 per persoon.

In het nieuwe woonconcept zijn woningen verkleind en is er meer ruimte gecreëerd voor gemeenschappelijke functies. Maar hoe ziet het eruit als we beide woonconcepten naast elkaar leggen en de m 2 en m 3 gaan vergelijken?

In het ontworpen woongebouw is er woonruimte voor 215 mensen hiervoor is in totaal een oppervlakte van 12.422 m 2 uitgetrokken.

In het traditionele woonconcept gebruikt men gemiddel 65 m 2 per persoon, als je dit vermenigvuldigd met 215 mensen resulteert dit in een totale oppervlakte van 13.975 m 2

In het nieuwe concept is er veel lucht, en wordt gebruik gemaakt van verdiepingen met dubbele hoogte en vides. Toch resulteert dit als het aankomt op de uiteindelijke m 3 , gerekend met een normale verdiepingshoogte voor het normale woonconcept niet voor een groot verschil.

202
203 INTERACTION DESIGN 2022

NAWOORD

In tegenstelling tot eerdere projecten die ik maakte binnen de opleiding en waarbij ik na de eerste schetsen vrij snel greep naar de uitwerking in mijn digitale tekenprogramma. Bestaat mijn hele afstuderen vrijwel enkel uit schetsen. Ik ontwierp met tactiliteit en gevoel. Schaal was niet per definitie gelijk van toepassing, verhoudingen wel. Zo ontstond er voor mij een NIEUWE WERKWIJZE

Hierdoor had ik vaak het gevoel dat het ontwerp niet compleet was, dat terwijl alle antwoorden in mijn schetsboek te vinden waren. Een interne STRIJD die ik moeilijk los kon laten, mede door mijn perfectionistische aard. Ik had de behoefte om alles wat ik al had ontworpen om te zetten in een digitale tekening met maatvoering en dergelijke. Iets waar dit project uiteindelijk helemaal niet om vroeg.

Uiteindelijk zat de UITDAGING hem in het zoeken van de JUISTE COMBINATIE van zowel digitaal en handgeschetst beeld.

De OMVANG van dit project was gemiddeld genomen groter dan die van de vele projecten die ik op zowel de Academie als in mijn werkzame leven heb gedraaid. Dit maakte het een uitdaging om vanuit massa te gaan schuiven en denken. Hierom greep ik dan ook in eerste instantie naar een oplossing van X aantal identieke straten. Dit om het behapbaar te maken. Mijn opgedane ervaring bij het ontwerp van dit woonconcept geeft mij nu het vertrouwen dat ik in de toekomst ook met andere ontwerpopdrachten met een dergelijk grote projectomvang uit de voeten kan.

Naast dat de omvang het project nogal groot bleek. Ontbrak het ook nog aan kaders. Het project werd niet ingekaderd door context of een strikt plan van eisen. Deze KADERLOOSHEID heeft tot heel wat zwemmen geleidt. Mede daardoor werd dit project op alle vlakken tegelijkertijd ontwikkeld.

Het liefst had ik zoals Le Corbusier dat weleens deed in zijn ontwerpen, volledig CONTEXTLOOS en zonder locatie ontworpen. Echter werd ik door het CURRICULUM van de academie geforceerd toch met een locatie te komen. Uiteindelijk is geaccepteerd dat dit verder niet in belang van het onderzoek was, maar door de verplichting is het wel een onderdeel geweest van het proces.

Fysieke INTERACTIE is hoofdzaak in dit onderzoek. Voor mij kwam deze interactie tijdens het afstuderen tot een DIEPTEPUNT . Tijdens het afstuderen werk je sowieso al op het al wel bekende persoonlijke afstudeereiland, waarbij je op jezelf bent aangewezen. Echter kwam er in 2020 Corona bij kijken, wat er voor zorgde dat al het contact ook nog eens digitaal plaatsvond. Samen met de uitdagingen van het afstuderen en de prestatiedruk die ik mijzelf kan opleggen ben ik mezelf nog nooit zo tegengekomen als tijdens het afstuderen, tot het punt dat ik eigenlijk tot stilstand kwam. Juist in deze periode heb ik meer geleerd dan ooit om grenzen te leggen en BALANS te houden.

Net zoals het onderzoek is het verslag beetje bij beetje ontwikkeld. Dit was een zoektocht en zeker GEEN LINEAR PROCES waarin het van A tot en met Z werd geschreven. Zo kon X allang geschreven

204

en ‘definitief’ zijn terwijl onderdeel C en D nog ontbraken.

Wederom een werkwijze die niet van nature bij mij past. Maar wel een werkwijze waar dit specifieke ontwerp kennelijk om vroeg.

Net zoals de verscheidene mogelijkheden binnen het ontwerp is het totale VERSLAG ook op meerdere manieren te lezen. Je kan het verslag lezen op chronologische volgorde of je kan beginnen bij de plattegrond en zo doende het verslag aan de hand van je eigen nieuwsgierigheid naar verscheidene elementen ontdekken. Daarnaast is door middel van fonts, hoofdletters en kleuren de mogelijkheid geboden om elk stuk volledig te lezen of op hoofdlijnen te scannen. Er is niet één manier om dit verslag te lezen, de lezer zelf heeft (net als de woningeigenaar in mijn ontwerp) DE REGIE in handen.

Binnen het afstudeeronderzoek heb ik ‘gevoel’, tactiliteit en de psyche van de mens nader bestudeerd. Een onderdeel wat me altijd al heeft getrokken en bijdraagt aan mijn verdere ontwerpen. Dit is eveneens een onderwerp waar ik mij graag in BLIJF VERDIEPEN . Mensen begrijpen is namelijk ook een groot onderdeel van ons beroep. Door je te VERPLAATSEN IN DE GEBRUIKER kan je de beste ontwerpen maken.

Gedurende het ontwerpproces ben ik een gehele tijd bezig geweest met de plint van het gebouw en de gevel van het geheel. Echter kwam ik er gelang achter dat dit niet de ESSENTIE was van het ontwerp. Eveneens omdat het project uiteindelijk niet-locatie specifiek werd

205 INTERACTION DESIGN 2022

LITERATUURLIJST

//INTERNET

• AD (2021). Organisaties woonprotesten: 1 miljard voor woningbouw onvoldoende. Geraagdpleegd op januari 2022 van https://www. ad.nl/wonen/organisaties-woonprotesten-1-miljard-voor-woningbouw-onvoldoende~ab79999c/

• Akkaoui-Hughes, S. (2017, maart). Architetecting Interaction. [tedx talks]

• Arcam (1966). Weesperflat. Geraadpleegd op 1 augustus 2023 van https://arcam.nl/architectuur-gids/ weesperflat/

• Ham, M. (2020, April) Socioloog en geograaf Justus Uitermark: ‘Corona is een les in wederzijdse afhankelijkheid. Geraadpleegd op 20 september 2020, van https://www. socialevraagstukken.nl/interview/ socioloog-en-geograaf-justus-uitermark-corona-is-een-les-in-wederzijdse-afhankelijkheid/

• Hansen-Staszyński, O. (2015, mei). Jongeren vinden communicatie ‘in real life’ stressvol [onderzoek]. Geraadpleeegd op februari 2020, van https://www.frankwatching. com/archive/2015/05/28/jongeren-vinden-communicatie-in-real-life-stressvol-onderzoek/

• NRC (2020, Juni). Wel en geen contact vanachter het plexiglas. Geraapleegd op Juni 2020, van https:// www.nrc.nl/nieuws/2020/06/21/ wel-en-geen-contact-vanachterhet-plexiglas-a4003550

• OMA (1998). Maison à Bordeaux. Geraadpleegd op 14 augustus 2023 van https://www.oma.com/pro -

jects/maison-a-bordeaux

• Optimale gezondheid (2017, april). De effecten van de social media op je lichaam en geest. Geraadpleegd op 7 februari 2021, van https:// www.optimalegezondheid.com/effecten-van-de-sociale-media-opje-lichaam-en-geest/

• Research BPD (2018, juli). Parkeren in relatie tot (toekomstig) autobezit & -gebruik. Geraardpleegd op 27 maart 2021, van https://www.bpd. nl/media/1jhnansr/bpd-parkeernormen.pdf

• Walker, A. (2010, september). Norman Foster Completes “Moving Gallery” in a Giant Elevator. Geraadpleegd op 14 augustus 2023 van https://www.fastcompany. com/1662349/norman-foster-completes-moving-gallery-in-a-giant-elevator

• Wikipedia (2022, december). Baťa's Skyscraper. Geraadpleegd op 22 augustus 2023 van https://en.wikipedia.org/wiki/Baťa%27s_Skyscraper

// LITERATUUR

• Chirstopher, A. & Murray, S. (1977). A Pattern Language. New York: Oxford University Press Inc.

• Eberle, D. , Hugentobler, M. & Schmid, S. (2019). A History Of Collective Living. Zwitserland: Birkhäuser

• Mehaffy, M., Kryazheva, Y., Rudd, A., Salingaros, N. (2020). A New Pattern Language for Growing Regions. Sustatis Press.

206

• Le Corbursier (2015). Precisions, On the present state of architecture and city planning. Zwitserland: PARK BOOKS

• SPACE10 & Urgent Agency (2018)

IMAGINE. SPACE10

• Van de Wal, H. (2015). Privacy Script. Bussum: Thoth, Uitgeverij.

//PODCAST & UITZENDINGEN

• Maas, W. (2020, 6 oktober). De Vooravond [Uitzending]. BNNVARA.

• Hertzberger, H.(gastheer). (2021, 14 oktober). Herman Hertzberger ver structuralisme. [aflevering podcast]. FASadE. Geraardpleegd op 16 maart 2021, van https://open.spotify.com/episode/2CRDGedvzMAOBxylCdFZql?si=wB7njygASymTTRMDdkFAbQ

//GREEP UIT NAGESLAGEN REFERENTIES

• Hertzberger, H. Weesperflat (1966)

• BKK-3, Sargfabrik (1996)

• BKK-3, Miss Sargfabrik (2000)

• Unité d'Habitation (1952)

• Nieuwenhuys, C. New Babylon (1920)

• VMX architects, Hoogvliet (2007)

• Hosaka, T. Home around communication (2016)

• People's Architecture Office, Leping Foundation (2017)

• MVRDV, Ku.Be House of Culture and movement (2016)

• Alt Design Office, Outsu House (2016)

• Tomohiro Hata, ReSlope house (2015)

• RCR, Casa Entremuros (2008)

• Ruetemple

• Rotterdam Startmotor

207 INTERACTION DESIGN 2022

Turn static files into dynamic content formats.

Create a flipbook
Issuu converts static files into: digital portfolios, online yearbooks, online catalogs, digital photo albums and more. Sign up and create your flipbook.