PORTAFOLIO ARQ. KEVIN ROMERO J.

Page 1


Soy especialista en visualización arquitectónica y BIM Manager, con sólidas habilidades en conceptualización de proyectos, diseño arquitectónico y diseño de interiores. Combino creatividad y precisión técnica para desarrollar soluciones innovadoras, gestionando proyectos de manera eficiente y adaptándome a las necesidades de cada cliente.

Sobre mi...

Información personal

Contacto

Kevin Ignacio Romero Jiménez. 09. 09. 1998

arq.kevinromero@gmail.com +593 962532137

Educación

• Bachiller - Unidad Educativa Ecuatoriano Suizo (2016)

• Grado en Arquitectura - PUCE. (2023)

• Master en Diseño de Interiores - UIDE. (2025)

Capacitación continua

• Energias Renovables en la Arquitectura (PUCE 2017)

• AutoDesk Revit Architecture Avanzado (CETEC 2018)

• Espacio y arquitectura andina (PUCE 2018)

• Arquitectura y urbanismo paisajista (PUCE 2019)

• Asentamientos Informales en América Latina (PUCE 2019)

• Avalúo de Bienes Inmuebles Urbanos (CODADEPRO 2023)

• Prevención de riesgos en la construcción (CODADEPRO 2024)

• Ordenanza y aprobación de planos (CAMICON 2024)

Reconocimientos

Mención honorifica Taller de Arquitectura V. Proyecto “Vivienda colectiva La Mariscal”. (2020)

Experiencia laboral • EKRON - Residente de obra y Supervisor de proyectos.

May 2018 - Oct 2018: Residente de obra en construcción auditorio Club Independiente del Valle.

• PUCE - Asistente catedrático

Ago 2019 - Ene 2020: Asistente catedrático en Diseño arquitectónico y Urbano lV y Teoría e Historia de la Arquitectura ll.

• Arq. Manuel Uribe - Diseñador y Dibujante

Mar 2021 - Oct 2022: Planificación y diseño proyecto “Parque Catazho Ecuador”.

• RJ&J Contructores & Consultores - Residente de obra

Abr 2022 - Ene 2023: Residente de obra en Construcción de bordillos para el barrio Alma Lojana y Construcción de muro para el barrio La Isla.

• KR Construcciones - Jefe/Supervisor de proyectos

Feb 2023 - Actualidad: Remodelación de proyectos residenciales y comerciales.

Software

• BIM Manager: Intermedio

• AutoDesk AutoCAD: Avanzado

• AutoDesk Revit: Avanzado

• Google Sketchup: Avanzado

• Lumion: Avanzado

• Twuinmotion: Avanzado

• Adobe Photoshop: Avanzado

• Chaos Enscape: Avanzado

• Adobe Illustrator: Avanzado

• Adobe In Desing: Avanzado

• After Effects: Intermedio

• Adobe Premier: Básico

• Paquete Office: Avanzado

• Apple Procreate: Intermedio

• AI Softwares: Avanzado

Idiomas

• Español: Nativo

• Inglés: Avanzado

• Portugués: Avanzado

• Francés: Intermedio

Gym Panamericano
Natural Vitality
El Pisque
Dinamizador
Dinamizador
Zigurat
Núcleo
Umbral Fanca

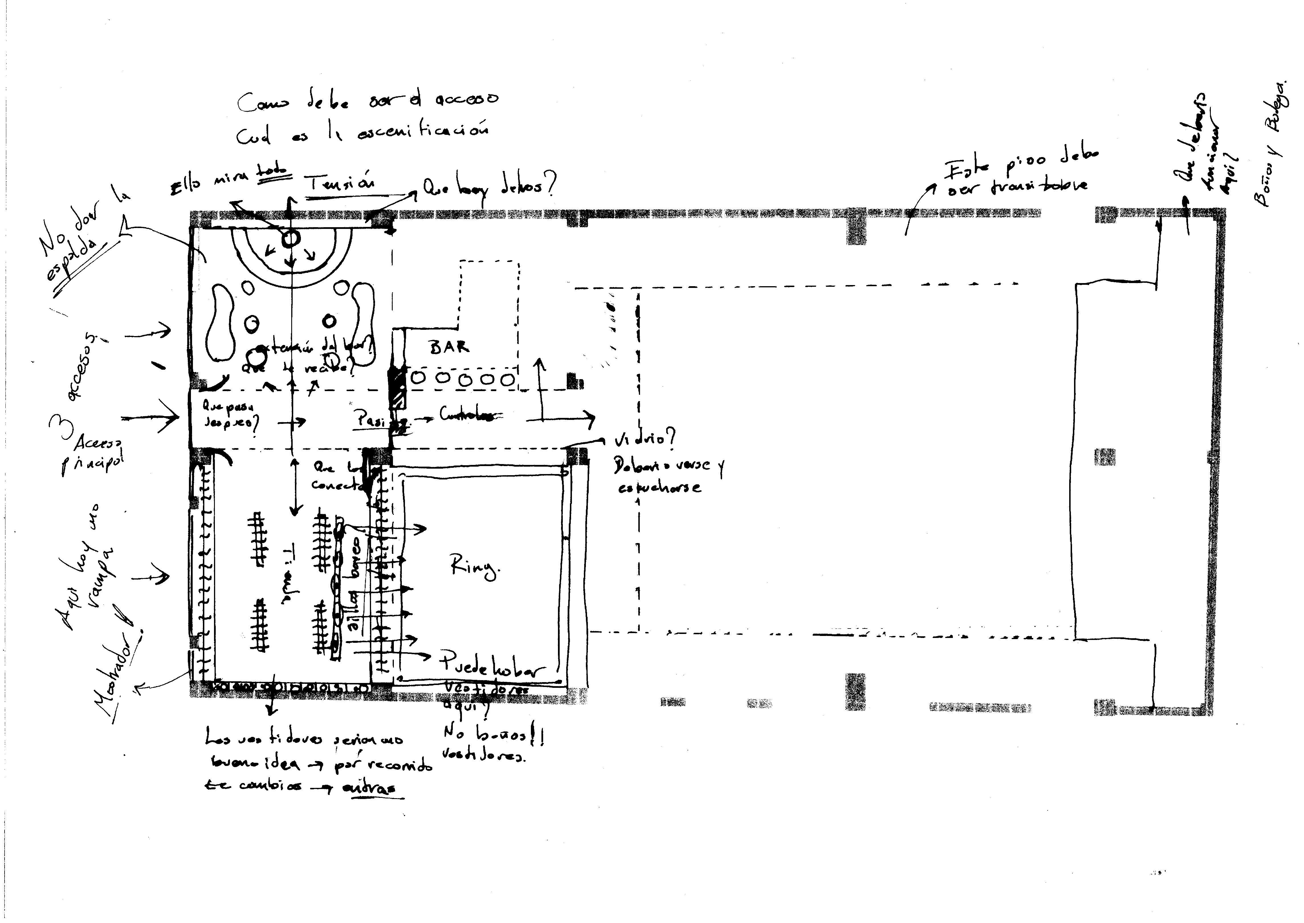
01 | Gym Panamericano

Año: 2024

Ubicación: Santo Domingo de los TsachilasEcuador

Software: SketchUp - Enscape - Photoshop - AI

Contexto

El Gym Panamericano en Santo Domingo de los Tsáchilas busca modernizar sus espacios para mejorar la funcionalidad y experiencia de sus usuarios. La remodelación integra áreas clave como la recepción, tienda y zonas de entrenamiento, manteniendo la identidad de la marca y promoviendo un estilo de vida activo.

Concepto

Basado en el concepto “Energía Viva”, el diseño combina movimiento y vitalidad a través de espacios abiertos, formas dinámicas y colores vibrantes. Materiales como madera y vegetación equilibran el ambiente, creando un espacio innovador que inspira bienestar.

02 | Natural Vitality

Año: 2024

Ubicación: Quito - Ecuador

Software: SketchUp - Enscape - Photoshop - AI

Contexto

Ubicado en el Hinode Center en la Av. Shyris, Natural Vitality es un centro de bienestar integral que busca renovar sus espacios para ofrecer una experiencia más cómoda y acogedora. El rediseño integra áreas como consultorios, sueroterapia, cafetería y espacios de coworking, adaptándose a las necesidades de salud y bienestar de los usuarios mediante un entorno funcional y armonioso.

Concepto

Inspirado en el concepto “ÑawiKausay” o “Visión de vida”, el diseño fusiona naturaleza, bienestar y personalización.

A través de colores cálidos, materiales orgánicos y una distribución que potencia la conexión entre cuerpo y mente, el proyecto busca crear un espacio donde la salud y la tranquilidad se integren de manera natural en la vida cotidiana.

PLANTA BAJA

03 | El Pisque

Año: 2023

Ubicación: Guayllabamba - Ecuador

Software: Rhinoceros 3D - TwuinmotionPhotoshop

Contexto

El Proyecto Pisque consiste en la remodelación de la Junta de Riego El Pisque, abordando problemas de materialidad, distribución espacial y deterioro visual. El edificio presenta espacios mal distribuidos, áreas en desuso y materiales desgastados en ventanas, cielos rasos y pisos, afectando su funcionalidad y estética.

FACHADA FRONTAL
PLANTA BAJA

Concepto

La propuesta busca recuperar el valor histórico y monolítico del edificio, respetando su memoria arquitectónica. La intervención se centra en mejorar los espacios de trabajo mediante una redistribución funcional y el uso de mobiliario integrador, manteniendo la esencia del lugar y potenciando su confort y operatividad.

04 | Dinamizador

Año: 2022

Ubicación: La Gasca - Quito - Ecuador

Software: SketchUp - Twuinmotion - Photoshop

Contexto

Ubicado en el barrio Belisario Quevedo de Quito, este proyecto surge como respuesta a la necesidad de densificar zonas estratégicas alrededor de las estaciones del Metro de Quito. Aprovecha el edificio abandonado del Seminario Mayor para transformarlo en un espacio autosustentable, integrando vivienda mixta, comercio y espacio público de calidad, reduciendo la necesidad de desplazamiento masivo, especialmente en contextos de emergencia sanitaria.

Concepto

El diseño busca revitalizar un espacio subutilizado mediante un enfoque de autosuficiencia urbana, integrando vivienda estudiantil, áreas comerciales, espacios verdes y huertos urbanos. La intervención combina la estructura existente con nuevos bloques de estructura metálica y fachadas modulares de aluminio, creando un entorno funcional, sostenible y adaptable a las dinámicas de la ciudad.

PLANTA BLOQUE A
FACHADA LATERAL DERECHA
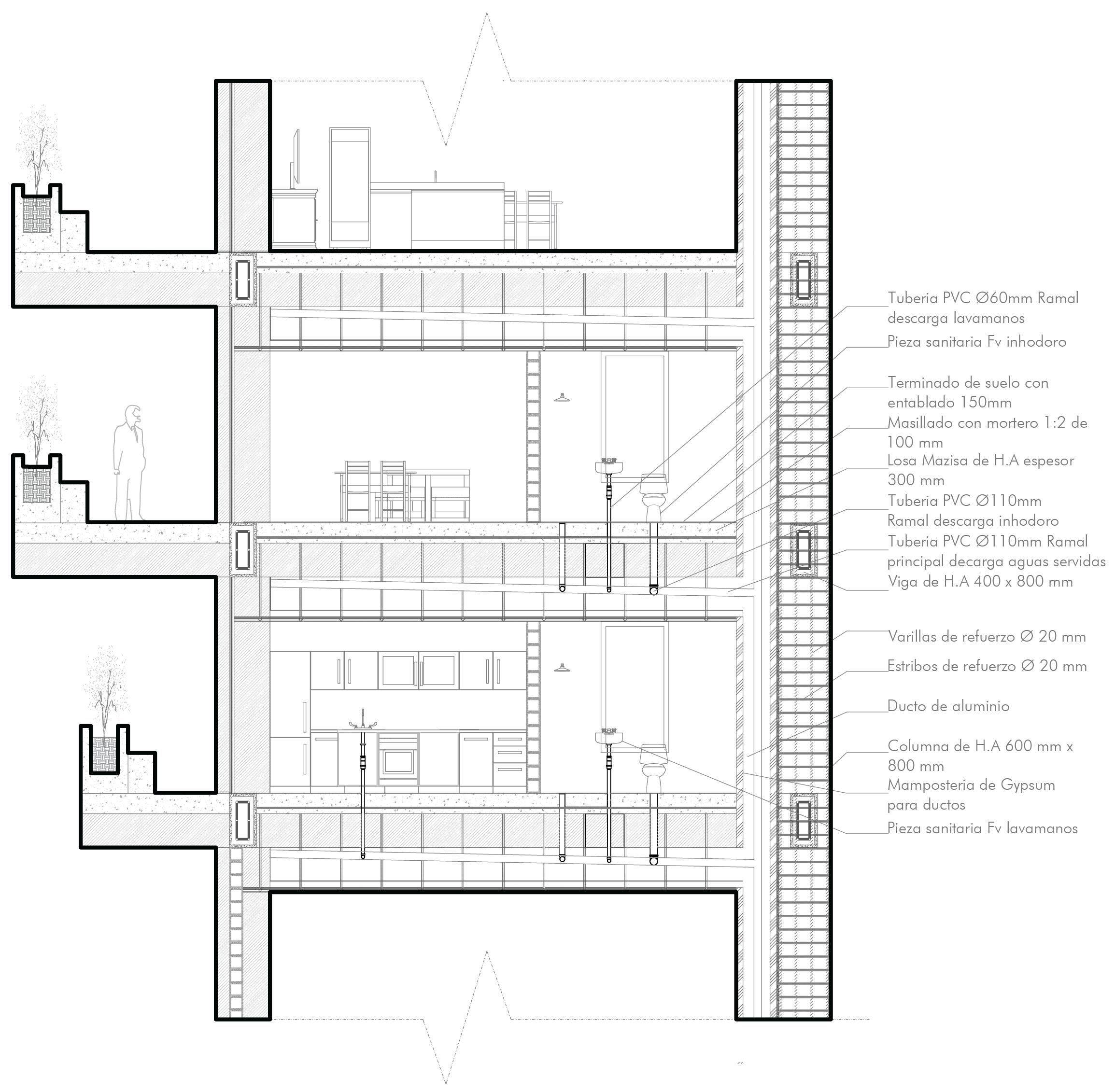
CORTE POR MURO CONSTRUCTIVO

05 | Zigurat

Año: 2021

Ubicación: La Magdalena - Quito - Ecuador

Software: SketchUp - Lumion - Photoshop

Contexto

En el barrio histórico La Magdalena de Quito, el proyecto propone un condensador vertical tipo zigurat para densificar la zona y optimizar el uso del suelo, evitando la expansión urbana hacia áreas protegidas. Se reemplazan viviendas subutilizadas para integrar más habitantes de forma sostenible.

Concepto

El diseño conecta espacios públicos, privados y colectivos, integrando un mercado, templo al aire libre, biblioteca y terrazas. La estructura combina un diafragma de hormigón armado con cerchas de acero y Steel Framing, logrando solidez y funcionalidad.

DESPIECE CONSTRUCTIVO
PLANTA DEPARTAMENTOS
PLANTA SUITS

06 | Núcleo

Año: 2019

Ubicación: La Mariscal - Quito - Ecuador

Software: AutoDesk Revit - Photoshop

Contexto

Ubicado en La Mariscal, Quito, el proyecto se define como un elemento vertical conector social que combina vivienda colectiva, espacios comerciales y áreas públicas. Inspirado en la historia y morfología del barrio, integra referencias patrimoniales y contemporáneas para responder a las dinámicas urbanas y fortalecer la interacción comunitaria.

Concepto

El proyecto reinterpreta la tipología de Casa Jardín del barrio La Mariscal, fusionando tradición y modernidad. Inspirado en la convivencia de arquitectura patrimonial y contemporánea, propone un diseño vertical que actúa como puente entre la ciudad y sus habitantes, priorizando la conexión social y la funcionalidad urbana.

PLANTA ALTA CORTE

CORTE POR MURO CONSTRUCTIVO

07 | Umbral Fanca

Año: 2019

Ubicación: Bahía de Caraquez - Ecuador

Software: SketchUp - Twuinmotion - Photoshop

Contexto

Centro comunitario en Fanca-Bahía de Caráquez, diseñado tras el terremoto de 2016, integra elementos locales como bambú y cubiertas de zinc. Su programa incluye espacios para adultos mayores, niños y talleres, además de soluciones sostenibles como tanques de agua lluvia y una parada de autobuses.

Concepto

El proyecto se inspira en la tipología tradicional del barrio Fanca, donde los patios internos actúan como ejes de interacción y conexión. Esta estructura se reinterpreta en el diseño para generar espacios de encuentro comunitario que integran naturaleza y funcionalidad, manteniendo un diálogo armónico con el entorno urbano inmediato.

CORTE TRANVERSAL S/E

PLANTA ARQUITECTÓNICA S/E

Arte

Contexto

Exploro la escultura, la fotografía y el dibujo arquitectónico para expresar la conexión entre forma, espacio y emociones. Mi trabajo combina detalles artísticos y precisión técnica, creando piezas que reflejan sensibilidad humana y armonía con el entorno.

Tributo a la AfroEcuatoriana
Retratro Rocio Jiménez
Portal Japones - Estilo esferográfico
Barrio San Marcos - Estilo esferográfico
Catedral Sevilla - Estilo rapidógrafo
La Alhambra - Estilo rapidógrafo
Quionofobia - Suiza
La Plataforma - París
Trama - Zurich
Nave Espacial - Monclóa

“Of the ground and into the light is the first basis of a good house. Looking at it, you could not imagine it anywhere but right there”.

Turn static files into dynamic content formats.

Create a flipbook
Issuu converts static files into: digital portfolios, online yearbooks, online catalogs, digital photo albums and more. Sign up and create your flipbook.
PORTAFOLIO ARQ. KEVIN ROMERO J. by Arq. Kevin Romero - Issuu